AGENDA - LPP
|
1. On Site Inspections - 1.00pm – 3.30pm a) 19-23 Empress Street Hurstville b) 1-3 John Street Kogarah Bay c) 325-329 Princes Highway Carlton
|
|
Break - 3.30pm |
|
2. Public Meeting – Consideration of Items 4.00pm – 6.00pm |
|
Public Meeting Session Closed - 6.00pm (Break – Light Supper served to Panel Members) |
|
Georges River Council – Local Planning Panel Monday, 7 May 2018 |
Page 2 |
|
3. Reports and LPP Deliberations in Closed Session - 6.30pm |
LPP012-18 1-3 John Street Kogarah Bay – DA2017/0218
(Report by Team Leader Development Assessment)
LPP013-18 19-23 Empress Street Hurstville – DA2017/0465
(Report by Independent Assessment)
LPP014-18 325-329 Princes Highway Carlton – DA2017/0491
(Report by Senior Development Assessment Officer)
|
4. Confirmation of Minutes by Chair |
REPORT TO GEORGES RIVER COUNCIL
LPP MEETING OF Monday, 07 May 2018
|
LPP Report No |
LPP012-18 |
Development Application No |
DA2017/0218 |
|
Site Address & Ward Locality |
1-3 John Street Kogarah Bay Kogarah Bay Ward |
||
|
Proposed Development |
Demolition of existing structures and construciton of seven (7) storey residential flat buidling containing twenty three (23) units and basement parking |
||
|
Owners |
Development and Construction Group NSW - M Ibrahim |
||
|
Applicant |
A Ibrahim |
||
|
Planner/Architect |
Tecton Group Architects |
||
|
Date Of Lodgement |
3/07/2017 |
||
|
Submissions |
Original DA - 10 submissions, amended plans - a further 3 submissions |
||
|
Cost of Works |
$6,243,859.00 |
||
|
Local Planning Panel Criteria |
Non compliance with KLEP 2012 and unresolved submissions |
||
|
List of all relevant s.4.15 matters (formerly s79C(1)(a)) |
Greater Metropolitan Regional Environmental Plan No 2 – Georges River Catchment, State Environmental Planning Policy (Infrastructure) 2007, State Environmental Planning Policy No 55 - Remediation of Land, State Environmental Planning Policy No 65 – Design Quality of Residential Apartment Development, State Environmental Planning Policy (Building Sustainability Index: BASIX) 2004, Kogarah LEP 2012, Kogarah DCP 2013 |
||
|
List all documents submitted with this report for the Panel’s consideration |
|
||
|
Report prepared by |
Team Leader Development Assessment |
||
|
|
Summary of matters for consideration under Section 4.15 Have all recommendations in relation to relevant s4.15 matters been summarised in the Executive Summary of the assessment report? |
Yes |
|
Legislative clauses requiring consent authority satisfaction Have relevant clauses in all applicable environmental planning instruments where the consent authority must be satisfied about a particular matter been listed, and relevant recommendations summarised, in the Executive Summary of the assessment report? |
Yes |
|
Clause 4.6 Exceptions to development standards If a written request for a contravention to a development standard (clause 4.6 of the LEP) has been received, has it been attached to the assessment report? |
Yes - Clause 4.6 variation received regarding height regarding original DA plans. NOTE: Amended Clause 4.6 variation request not received for amended plans |
|
Special Infrastructure Contributions Does the DA require Special Infrastructure Contributions conditions (under s7.24)? |
Not Applicable |
|
Conditions Have draft conditions been provided to the applicant for comment? |
No, conditions have not been prepared as the recommendation of this report is refusal |
|
Site Plan
|
EXECUTIVE SUMMARY
Proposal
1. Council is in receipt of a development for the demolition of the existing dwellings and the construction of a seven (7) storey residential flat building containing twenty three (23) units and basement parking on the subject site.
Site and Locality
2. The subject site is known as 1-3 John Street Kogarah Bay and consists of two (2) lots with a legal description of Lots 20-21 Section 17 DP1963. The site is a regular-shaped parcel of land located on the north western side of John Street, between Lacey Street and Park Road, Kogarah Bay.
The site has an area of 1226.2sqm, a street frontage of 30.48m and depth of 40.235m.
The site has a slight fall from the rear towards the street (change in level of 1m – 1.5m), and contains no significant vegetation. The site contains two detached dwelling houses, various outbuildings and a swimming pool, which are to be demolished to accommodate the proposed development.
Existing development in John Street consists mostly of detached 1-2 storey dwellings. The proposal is one of the first residential flat developments in John Street, since the maximum height was increased to 21m for residential flat buildings in this zoning under KLEP 2012.
Zoning and KLEP 2012 Compliance
3. The site is zoned R3 Medium Density Residential under KLEP 2012 and the proposal is permissible with Council’s consent.
NOTE: It should be noted that the north-western side of John Street is zoned R3 Medium Density Residential. The opposite (south-eastern) side of John Street is zoned R2 Low Density Residential.
The proposed development has a significant non-compliance with the controls in Clause 4.3 – Height of Buildings, which prescribes a maximum height of 21m for the subject site. The height of the proposed development (in the latest amended plans) varies as follows:
· 21.71m – measured to the highest point of main building wall;
· 22.94m – measured to the wall enclosing the rooftop communal open space;
· 24m – measured to the highest point of the building overall (which is pergola roof and walls of the toilet and lift core on the rooftop communal open space).
A Clause 4.6 variation to this development standard has been sought which is detailed later in this report. It should be noted that the clause 4.6 request for variation was submitted with the original DA plans, and has not been updated to reflect the latest amended DA plans.
Although a Clause 4.6 request for variation has been submitted, it is not considered that this adequately addresses the requirements of Clause 4.6 of KLEP 2012. In particular, it does not demonstrate why compliance with the height control is unreasonable or unnecessary in the circumstances, and most importantly it has not been updated to reflect the latest set of amended plans, which have significantly increased the height of the development compared to the original DA plans.
Kogarah Development Control Plan 2013 (KDCP 2013)
4. The proposed development satisfies most provisions of Council’s KDCP 2013, however there are concerns regarding the height of the development (as noted above) and some of the provisions of the Apartment Design Guide (ADG). This is discussed in more detail in the body of this report.
Submissions
5. The proposed development has been neighbour notified on two (2) occasions during DA processing, and the following number of submissions have been received:
· Ten (10) submissions to the original DA plans;
· Three (3) submissions to the amended plans (re-notified in January 2018).
The issues of concern raised in the submissions included – height of the development exceeds the 21m maximum, inconsistency with existing streetscape character, privacy impacts, overshadowing, traffic and parking impacts, and also DA documentation not updated with amended plans (eg Statement of Environmental Effects etc).
Conclusion
6. Having regard to the Heads of Consideration under Section 4.15(1) of the Environmental Planning and Assessment Act 1979 and following a detailed assessment of the proposal, Development Application No. 2017/0218 should be refused for a number of reasons, as outlined in the Recommendation to this report.
In particular, as mentioned, this is one of the first residential flat developments proposed in John Street, under relatively new planning controls under KLEP 2012 that now allow for residential flat developments with a 21m height limit. The new residential flat developments will establish the scale and massing for development in this street. It is imperative that the first new developments are satisfactory in terms of the new planning controls, particularly in terms of the maximum height.
The proposed development significantly exceeds the height controls in KLEP 2012 (ie maximum height 24m), and if approved, would undermine the new planning controls and would set an undesirable precedent.
The development will also provide an unacceptable transition to the lower density zone (R2 Low Density Residential) on the opposite side of John Street. Specifically, the development proposes an insufficient setback from the front building façade at the upper levels (above 4 storeys), which will result in unacceptable impacts of bulk and scale, and excessive building mass on (lower density) development on the opposite side of John Street, resulting in a poor transition from the R3 Medium Density zone to the R2 Low Density Zone.
It is noted that these issues of concern have been discussed with the applicant, who has advised that they do not intend to make any further design changes to address these issues of concern. Accordingly, an assessment has been undertaken in relation to the (amended) plans, and the outcome of this assessment is to recommend refusal of this DA.
DESCRIPTION OF THE PROPOSAL
7.
Original DA Plans
The original DA plans proposed the construction of a seven (7) storey residential flat building containing twenty-five (25) units and basement parking on the subject site.
Amended DA Plans
The amended plans now propose the construction of a seven (7) storey residential flat building containing twenty-three (23) units and basement parking on the subject site. The mix of units proposed in this development are:
· 3 x 1 bedroom;
· 12 x 2 bedroom;
· 8 x 3 bedroom units.
The development also provides two (2) levels of basement parking via a driveway located on the southern side of the site. In total, the basement parking provides 37 resident spaces, 5 visitor spaces (including car wash space), 3 motorbike and 15 bicycle spaces.
DESCRIPTION OF THE SITE AND LOCALITY
8. The subject site is known as 1-3 John Street Kogarah Bay and consists of two (2) lots with a legal description of Lots 20-21 Section 17 DP1963. The site is a regular-shaped parcel of land located on the north western side of John Street, between Lacey Street and Park Road, Kogarah Bay.
The site has an area of 1226.2sqm, a street frontage of 30.48m and depth of 40.235m.
The site has a slight fall from the rear towards the street (change in level of 1m – 1.5m), and contains no significant vegetation. The site contains two detached dwelling houses, various outbuildings and a swimming pool, which are to be demolished to accommodate the proposed development.
Immediately to the east is a single-storey dwelling at 1A John Street. Immediately to the south west there are two storey detached dwellings and dual occupancy (duplex) developments at 5-9 John Street. It should be noted that these adjoining properties to the south west are the subject of a separate DA (DA2017/0663) for a six (6) storey residential flat development containing forty four (44) units over two (2) levels of basement parking. Properties on the north western side of John Street are zoned R3 Medium Density Residential which allows residential flat developments.
Opposite John Street to the south east of the subject site are generally one and two storey detached dwellings. It is noted that the properties across John Street are zoned R2 Low Density Residential, which generally allows lower-scale development such as one to two storey residential developments such as dwelling houses, and dual occupancy and multi-dwelling housing developments.
An aerial photo to illustrate the subject site and its immediate surrounds, is provided in the Executive Summary to this report (above). In addition, the following are selected photos of existing development in John Street in the immediate vicinity of the subject site.

Subject Site – 1-3 John Street, Kogarah Bay. Source: Google Street View.

One- and Two-Storey Dwelling Houses at 6 and 8 John Street, directly across from the subject site. Source: Google Street View.
HISTORY
9. There are a number of pertinent matters by way of History/Background to the subject site and proposed development. These are briefly discussed as follows.
Background to Current Planning Controls under KLEP 2012
As noted previously, the subject site and adjoining properties have generally been used for low-density residential development (mostly detached dwellings and dual occupancy developments), in accordance with the previous zonings that had prevailed for this location.
The subject site was zoned R3 Medium Density in KLEP 2012 when it was gazetted in 2013. Prior to 26 May 2017, there were no FSR or maximum height limits in the LEP, instead these were prescribed in Kogarah DCP 2013. At the time, under KDCP 2013, there was no FSR control, instead there was a density control of 2.1m2 site area per square metre of dwelling. Assuming dwellings of (say) 80m2 in area, this would have allowed 15 units on the site. Under KDCP 2013, the height limit was generally 12-14m.
When the Kogarah New City Plan (KLEP Amendment No 2) was exhibited, the site was prescribed with a FSR of 2:1 and a maximum height of 21m. Following public exhibition of the Draft LEP, on 4 April 2016, the then Kogarah Council resolved to change the FSR from 2:1 as exhibited to 1.5:1. In relation to height, it was also resolved to apply a split maximum building height control of 9m for the first 12m of the site at the John Street frontage of the zone (around the front third of the site), with the rest of the zone having a maximum height of 21m. This proposed change from what was exhibited was as a result of community concerns about the future character of the area, and also the impacts on development on the opposite side of John Street which was still zoned R2 Low Density Residential.
However, the Department of Environment & Planning did not make these changes to the LEP when it was gazetted, and so the FSR and height controls were set at 2:1 FSR and 21m height limit when KLEP Amendment No 2 was gazetted.
Previous DA – DA2016/203
A previous DA was lodged on 4 October 2016 for the subject site, proposing a five (5) storey residential flat building containing twenty (20) units with basement parking. At the time, the planning controls were prescribed in the previous Kogarah New City Plan and also KDCP 2013.
This previous DA was withdrawn on 13 April 2017. Around this time, more definitive planning controls were to be incorporated into KLEP 2012 which would allow development of a greater height (now 21m) and FSR (2:1), and these took effect on 26 May 2017, as noted above.
Current DA – DA2017/0218
The current DA was lodged on 3 July 2017, and shortly after it was referred to a number of officers within Council, and notified to neighbours for a period from 9 to 23 August 2017. Ten (10) submissions were received to the original notification process (see discussion in the Submissions and Public Interest section of this report, below).
The DA was considered by the Design Review Panel meeting on 3 August 2017. The Panel advised that the (original) design cannot be supported in its current form and should be amended. A summary of some of the specific concerns of the DRP in relation to the original design were:
· This is the first development at this scale, so it needs to sensitively address building transition to the lower density residential development across John Street;
· The site analysis submitted with the DA was not consistent with the Apartment Design Guide (ADG) requirements, in particular, there is no evidence of a site-specific design response;
· The proposed side/rear setbacks were likely to impact on the privacy/amenity of existing and likely future development on adjoining sites;
· Various structures were provided in the front setback area (eg garbage store, front wall elevations, entrance structure, fire boosters etc) which exacerbates bulk and is out of character;
· A simplified 4 storey massing with setbacks to the upper levels was suggested, together with other changes such as change in building materials and landscaped edges to reduce visual bulk;
· The at-grade garbage store should be relocated to the basement;
· The basement as originally proposed was excessively large and poorly designed, in particular it reduced the capacity for large trees to mitigate the scale of the development;
· The driveway (underground, connecting the basement levels) previously proposed within the rear setback should be removed, as it significantly compromised landscaping opportunities;
· The communal open space was insufficient and did not comply with the ADG provisions. The location at ground floor level creates privacy issues due to proximity to adjacent units. Due to the scale of the development, rooftop communal open space was recommended, and a minor breach to the height could be supported to provide access to the rooftop open space;
· Within the front setback area, small trees were originally proposed, which were recommended to be replaced with larger trees so as to reduce visual impact and assist in scale transition;
· Relocate OSD tanks from deep soil zones to under driveways or in the basement;
· Various concerns re internal amenity of many of the units, which needed to be resolved through re-design.
A letter was sent to the applicant on 3 October 2017, to advise of the DRP concerns summarised above, as well as concerns regarding stormwater disposal and also traffic/parking.
Amended plans were received on 5 December 2017, proposing a range of design
changes. The most notable of these was the provision of rooftop communal open
space (with a roof over that space as well as lift and stairway structures to
access that space), setting in the upper levels of the development by some 2m
above the forth storey, as well setting in the driveway from the rear boundary
so as to provide improved deep soil area.
These amended plans were re-notified to neighbours for a period from 9 January to 6 February 2018. A further three (3) submissions of objection were received to the re-notification, which are discussed in the Submissions and Public Interest Section of this report, below.
The amended plans were re-submitted to the DRP for further consideration, at their meeting on 20 February 2018. In summary, the DRP supported the application subject to resolution of a number of matters raised in their consideration of the proposal, which included:
· Colours/materials should be consistent with current development proposal on the adjoining site (5-9 John Street to the west);
· It was noted that development of this scale would be visually intrusive in the short term until other sites in this block were developed;
· The top three-storeys were setback to address the Panel’s previous concerns, the amount of balcony space was also reduced;
· The driveway should be roofed by raised areas so as to increase the extent of green cover as well as reducing noise and pollution impacts to adjoining units;
· Concerns were raised regarding the extensive use of pedestrian ramp along the south-west boundary;
· Rainwater storage should be provided with storage under hardstand areas outside of deep soil zones;
· The previous comments re landscape were mostly addressed, however an enclosed area with toilet and kitchenette should be provided to the rooftop communal open space area;
· Balcony design should be refined to provide screening and adequate privacy as well as wind protection;
· The front entry door should be relocated closer to the façade to ameliorate safety concerns.
Further amended plans were submitted on 16 March 2018, to incorporate the refinements suggested by the DRP. These did not substantially change the design of the development, and so re-notification of these latest amendments was not required.
ZONING
10. The subject site is zoned R3 Medium Density Residential under KLEP 2012, and the proposal is permissible with Council’s development consent. The zoning of the property is the same as it was before the recent amendments to KLEP 2012 (New City Plan) took effect.

Kogarah LEP 2012 Zoning Map. Source: www.legislation.nsw.gov.au
PLANNING ASSESSMENT
11. The site has been inspected and the proposed development has been assessed under the relevant Section 4.15(1) "Matters for Consideration" of the Environmental Planning and Assessment Act 1979.
Environmental Planning Instruments
Kogarah Local Environmental Plan 2012
12.
Zoning
As noted above, the subject site is zoned R3 Medium Density Residential under KLEP 2012, and the proposal is permissible with Council’s development consent.
Principal Development Standards
KLEP 2012 contains a number of development standards applicable to the development. Compliance with these development standards is summarised in the following table.
|
Clause |
Standard |
Proposal |
Complies |
|
1.2 – Aims of the Plan |
In accordance with Clause 1.2 (2) |
Consistent with many aims of the plan, though concerns are raised re the height of the proposal in this instance |
No, see discussion below on height |
|
1.4 - Definitions |
Residential Flat Building |
The development meets definition of a residential flat building. |
Yes |
|
2.3 - Zone objectives and Land Use Table |
Development must be permissible with consent Meets objectives of R3 Mixed Use Zone
|
The development is permissible with consent in the R3 Medium Density Residential zone, and generally meets the objectives of this zone. |
Yes |
|
2.7 - Demolition |
Demolition is permissible with consent |
Demolition proposed, permissible with consent |
N/A |
|
4.3 – Height of Buildings |
21m as identified on Height of Buildings Map |
21.71m to main building wall 24m to highest point of building
|
No, see discussion below
|
|
4.4 – Floor Space Ratio |
2:1 as identified on Floor Space Ratio Map |
2:1 |
Yes
|
|
4.6 – Exceptions to development standards |
Development consent must not be granted for development that contravenes a development standard unless the consent authority has considered a written request from the applicant that seeks to justify the contravention of the development standard (Cl 4.6 variation) |
The proposal seeks a variation to Clause 4.3 – Heights of Buildings under the HLEP 2012. A request for the variation has been provided and is discussed later in this report. |
No – an updated request for variation under Clause 4.6 has not been submitted regarding the amended plans |
|
5.10 – Heritage Conservation |
Must consider the effect of the proposed development on the heritage significance of the item concerned. |
The site is not in close proximity of any heritage items or heritage conservation area, and the development is consistent with the objectives of this clause. |
Yes |
|
6.1 – Acid Sulphate Soils |
Requires assessment to be undertaken if the land is identified on the Acid Sulphate Soils Map |
The subject site is not shown as being affected by acid sulfate soils as identified on the Acid Sulfate Soil Map. |
Yes |
|
6.2 – Earthworks |
Requires Council to consider various matters before granting consent to earthworks |
The proposed development will require significant excavation works in order to accommodate the basement car park. The proposed excavation is the minimum necessary to achieve a basement and it has been designed to allow for substantial deep planting areas around the perimeter of the building.
The development application documentation includes a geotechnical report which is insufficient for assessment purposes. This is discussed in more detail in the Submissions section of this report. |
No |
|
6.3 – Flood Planning |
Requires assessment to be undertaken if the land is identified on the flood Planning Map, or other land at or below the flood planning level |
The subject site is not shown as being affected on the Flood Planning Map. |
Yes |
Assessment of Variation to Clause 4.3 – Height of Buildings Development Standard
As noted above, KLEP 2012 prescribes a maximum building height of 21m. The latest amended plans for the proposed development do not comply with this requirement, as it proposes a building height of 21.71m (to the main part of the building) and 24m (to the pergola roof, the walls enclosing the rooftop communal open space, and walls of the toilet and lift/stairway core access).
The extent of the non-compliance is illustrated in the following drawing:

South western side elevation (amended plans), showing extent of non-compliance with the KLEP 2012 height control. Source: Applicant’s DA plans, marked up.
It should be noted that the original DA plans also presented a non-compliance to the height control. The main reason for the greater non-compliance in the amended plans has been the provision of communal open space on the rooftop, with associated structures to provide access and amenity to that space, which was provided in amended plans as a result of the St George Design Review Panel’s review of the proposal. Basically, the rooftop communal open space and associated structures have simply been placed on top of the building with minimal adjustment to the overall height of the building, which has caused the greater non-compliance to the KLEP 2012 height control in the amended plans.
The development does not meet the particular aims of the Kogarah LEP in that it does not guide the orderly and sustainable development of Kogarah, or encourage a diversity of housing choice suited to meet the needs of the current and future residents of Kogarah.
For comparison purposes, the corresponding drawing (south-west elevation) of the original DA plans is provided below.

South western side elevation (original plans). Source: Applicant DA plans.
Clause 4.6 – Exceptions to development standards
13. To support the non-compliance to the KLEP 2012 height controls, the applicant has submitted a request for variation under Clause 4.6 of KLEP 2012. Note: It should be noted that the applicant’s request for variation was made in relation to the original DA plans. There was no updated request for variation submitted to support the amended plans.
Clause 4.6 of KLEP 2012 states the following:
(1) The objectives of this clause are as follows:
(a) to provide an appropriate degree of flexibility in applying certain development standards to particular development,
(b) to achieve better outcomes for and from development by allowing flexibility in particular circumstances.
(2) Development consent may, subject to this clause, be granted for development even though the development would contravene a development standard imposed by this or any other environmental planning instrument. However, this clause does not apply to a development standard that is expressly excluded from the operation of this clause.
As mentioned throughout this report, the “Height of Buildings” map under KLEP 2012 prescribes a maximum 21m height limit for the subject site. The development proposes heights of 21.71m (to the main part of the building) and 24m (to the pergola roof, the walls enclosing the rooftop communal open space, and walls of the toilet and lift/stairway core access), which does not comply.
The applicant has submitted a Clause 4.6 seeking a variation of the maximum height of building standard as specified in KLEP 2012 for the original DA plans for the following reasons (a full copy of the Clause 4.6 request is attached to this report):
· Strict compliance with the height of buildings principal development standard under Kogarah Local Environmental Plan 2012 is unreasonable or unnecessary in the circumstances of the case where:
o the extent of the non-compliance is relatively minor and will not result in any adverse impacts on the adjoining land uses with respect to overshadowing, loss of privacy, inappropriate scale etc.
o the non-compliance primarily relates to a small portion of the roof and lift overrun and does not seek to increase the number of storeys or density of the development. As such, there is no tangible nexus between the height variation and the overall land use intensity.
o the proposed design solution is considered to represent an appropriate development outcome for the site, displaying a high quality design, whilst ensuring that a high standard of amenity for future residents will be achieved.
· there are sufficient environmental planning grounds having regard to the Court matters Four2Five v Ashfield Council and Wehbe v Pittwater Council to justify the contravention to the development standard as the objectives of the building height standard are still met, despite the non-compliance;
· the building has been designed to a high quality and the amenity for future residents will be to a high standard;
· the non-compliance does not directly result in any adverse environmental impacts in terms of the building being out of context with the anticipated bulk and scale of development in the locality;
· the proposal will provide additional high quality housing choice in keeping with the desired future character of the area; and
· the scale and nature of the non-compliance does not give rise to any matter of State or Regional significance, nor does it adversely affect the public interest.
Having regard to the circumstances of this case where:
· the overall style, scale and built form of the building is commensurate with the likely future ‘built environment’ and desired character of the area;
· the proposal is consistent with the aims and objectives of Kogarah Local Environmental Plan 2012; and
· the proposal is generally consistent with the objects of the Environmental Planning & Assessment Act 1979, in particular, the orderly and economic use and development of land and ecologically sustainable development,
it is submitted that this Clause 4.6 Exceptions to Development Standards request is well founded. As such, strict compliance with the height of buildings principal development standard prescribed in Clause 4.3 of Kogarah Local Environmental Plan 2012 is unreasonable and unnecessary having regard to the circumstances of the case. Accordingly, having regard to the assessment and justification contained in this Clause 4.6 Exceptions to Development Standards submission, it is requested that Council support the proposed variation and the development in its proposed form.
Assessment Officer’s Consideration of Applicant’s Clause 4.6 Request for Variation:
The above Clause 4.6 request for variation has been prepared in relation to the original DA plans, which proposed a height of 21.71m. This exceeded the maximum 21m height limit by 710mm.
Amended plans were submitted in relation to the DA, which increased the overall height of the development to 24m (at the highest point) by placing communal open space (and associated structures) on the rooftop. There was no significant adjustment to the height of the rest of the building to offset this increase in height caused by these rooftop structures, and the height of the building was simply increased as a result of these additional structures.
No amended Clause 4.6 request for variation has been submitted with the amended plans, and therefore Council would not have the power to support the amended plans.
Council Officers have traditionally supported minor variations to the height control for small portions of the building such as lift over-runs or the like. In this instance (as shown in the south west elevation drawing provided previously in this report) the extent of the non-compliance is not minor. For example the privacy walls and planter box enclosing the rooftop communal open space runs almost the full length of the rooftop area. Further, the stairway access to the rooftop and the bathroom have been provided with full-height walls which add to the overall height of the building.
The applicant has submitted a “Streetscape Analysis” drawing which compare the proposed development with adjoining developments that could be approved under the new planning controls. This is provided below, and it shows that the development will be significantly higher than both the 21m height limit and also the desired future building heights on adjoining properties in this location:
Streetscape
Analysis drawing (view from John Street) comparing the proposed development
with possible future adjoining developments. Note the 21m height limit shown,
and the extent of the breach for this development. Source: Applicant’s
amended DA plans.
In addition to the above, there have been DAs lodged with Council for two (2) of the immediately adjoining properties to the subject site, and therefore some consideration should be made in this assessment as to how the height of this development compares to these adjoining developments.
This is set out in the table below. Also provided below are elevation drawings of these adjoining developments to show how they compare to the subject development.
|
Site |
Maximum Height to main wall (m) |
Maximum overall height (m) |
No of storeys |
|
Subject Site. 1-3 John Street DA2017/0218 |
21.71m max |
24m (to pergola roof, walls of rooftop communal open space, walls of toilet and lift / stairway) |
7 |
|
Adjoining Site (to the south west) 5-9 John Street DA2017/0663 |
Approx 19.42m max |
22.1m (to lift over-run) 21.02m (to roof over rooftop communal space) |
6 |
|
Adjoining Site (to the north west) 198-200 Princes Hwy DA2017/0655 |
Approx 19.26m max |
22.6m to lift over-run |
6 |

East elevation drawing for 5-9 John Street – adjacent to the subject site. This development proposes a maximum height of approx. 19.42m (measured to main part of building wall) and 22.1m (measured to the lift over-run). Source: Applicant DA plans for 5-9 John Street DA2017/0663

South-east elevation for 198-200 Princes Street – facing the subject site. This development proposes a maximum height of approx. 19.26m (measured to main part of building wall) and 22.6m (to lift over-run). Source: Applicant DA plans for 198-200 Princes Hwy DA2017/0655
Overall, the proposal is considered to be unacceptable in terms of its building height. The development essentially proposes an additional storey compared to the surrounding developments that have been lodged under the current planning controls, which will result in an excessive height. It will also result in unacceptable streetscape impacts as well as impacts on developments on the opposite side of John Street, because the building will have an insufficient setback at the higher levels (eg above 4 storeys) to provide a transition to the lower density zone opposite John Street.
Accordingly, and it is recommended that this DA be refused for these reasons.
State Environmental Planning Policies
State Environmental Planning Policy (Building Sustainability Index: BASIX) 2004
14. A BASIX Certificate has been issued for the proposed development and the commitments required by the BASIX Certificate have been satisfied.
State Environmental Planning Policy (Vegetation in Non-Rural Areas) 2017
15. The State Environmental Planning Policy (Vegetation in Non-Rural Areas) 2017 replaces the repealed Clause 5.9 of KLEP 2012 (Preservation of Trees and Vegetation). The intent of this SEPP is consistent with the objectives of the repealed Standard where the primary aims/objectives are related to the protection of the biodiversity values of trees and other vegetation on the site.
In this instance, the development proposes the removal of fourteen (14) trees within the site. Only three (3) of these trees, which are Bungalow Palm trees, require consent under the provisions of Part B2 – Tree Management & Green Web in Kogarah Development Control Plan 2013. The remaining trees have a height of less than 3.5m and/or branch spread less than 3m diameter, and therefore consent is not required for the removal of those trees.
The three (3) bungalow palm trees are not considered to be significant specimens and therefore no arborist assessment was made by the applicant, and no referral was required by Council’s Consultant Arborist. It is considered that it would be sufficient to address the removal of those trees with replacement planting, as provided in the applicant’s Landscape Plan, as part of any approval for this development.
State Environmental Planning Policy No 55 – Remediation of Land
16. SEPP 55 applies to the land and pursuant to Section 4.15 is a relevant consideration.
Clause 7 of the SEPP requires Council to consider whether or not the land may be contaminated as part of its assessment of the DA.
According to Council records, the site has been used for only residential purposes, and so there is no reason to suspect that the site may be contaminated. Accordingly, it is considered that the site is suitable for the proposed development without the need for any contamination remediation.
State Environmental Planning Policy No 65 – Design Quality of Residential Apartment Development
17. An assessment of the application against the provisions of SEPP 65 and the Apartment Design Guide (ADG) is provided below.
A design verification statement has been provided by Lydia Farah of Tecton Group (Registration No.8635) of DKO Architects in accordance with Clause 50 of the Environmental Planning and Assessment Regulation 2000. It is noted that this design verification statement has been provided in relation to the original DA plans, and no updated documentation has been submitted with the amended DA plans.
Application of SEPP 65
|
Clause |
Standard |
Proposal |
Complies |
|
3 - Definitions |
Complies with definition of “Residential Apartment Development” |
Complies with definition |
Yes |
|
4 - Application of Policy |
Development involves the erection of a new building |
The development involves the construction of a new mixed used development |
Yes
|
Part 4 Application of Design Principles under the SEPP
18. The application was referred to the Design Review Panel (DRP) for comment – both in relation to the original DA, and also the amended DA plans. The proposed development has been significantly amended in the latest amendments, to incorporate the comments of the DRP.
An assessment of the Design Quality Principles and the comments of the DRP in respect of both the original DA plans and the latest amendments are provided below.
Principle 1: Context and neighbourhood character
Good design responds and contributes to its context. Context is the key natural and built features of an area, their relationship and the character they create when combined. It also includes social, economic, health and environmental conditions.
Responding to context involves identifying the desirable elements of an area’s existing or future character. Well designed buildings respond to and enhance the qualities and identity of the area including the adjacent sites, streetscape and neighbourhood.
Consideration of local context is important for all sites, including sites in established areas, those undergoing change or identified for change.
Design Review Panel Comment:
DRP Meeting 3 August 2017:
The site is in an existing low scale residential area which has recently been rezoned to R3, with a 21m building height, similar to this proposal. The Panel note that this new zoning does not extend to the other side of the street and that surrounding development is low scale detached dwellings. This proposal is the first at this scale and should therefore sensitively address the transition of scale.
While the proponent has provided a photographic analysis of the site and a survey this does not correspond with the ADG description of a site analysis. Therefore there is no evidence of a site specific response that can address the many issues of transitional context, scale and impacts on streetscape and adjoining properties.
DRP Meeting 1 March 2018:
It would be desirable if the colours and materials were complementary with the current development proposal on the adjoining site which is currently subject to a Court appeal.
Because of the significant up-zoning of the subject site and all sites in this block, a development of this scale will be visually intrusive in the short term until such time as the other sites in the block are redeveloped.
Development Assessment Officer (DAO) Comment: The DRP has provided specific comment in relation to the transition in scale from the north west side of John Street (R3 zone which allows residential flat buildings with a height limit of 21m) to the lower-density residential zone on the opposite side (R2 zone which allows lower density residential development with a height limit of 9m).
The applicant has addressed the issue of scale transition to the R2 Low Density Residential zone opposite the site, by setting the building back from the front by an additional 2m above level 4.
However, concern is raised regarding the overall height of the development. As noted in consideration of the other Design Principles under SEPP 65, in the original DA plans, the DRP had raised concerns regarding the communal open space, and in response, the applicant has amended the proposal to provide this space on the roof of the development. Essentially, the applicant has done this without any adjustment to the height (eg floor levels etc) and as a result, the related structures (ie lift/stair access, amenities, enclosing walls, and pergola over the rooftop communal open space) now all exceed the 21m height limit (to a maximum height of 24m).
This is considered to be unacceptable for one of the first residential flat developments on this side of John Street, and it will have the effect of undermining the new planning controls and set an undesirable precedent subsequent developments in this location.
Principle 2: Built form and scale
Good design achieves a scale, bulk and height appropriate to the existing or desired future character of the street and surrounding buildings.
Good design also achieves an appropriate built form for a site and the building’s purpose in terms of building alignments, proportions, building type, articulation and the manipulation of building elements.
Appropriate built form defines the public domain, contributes to the character of streetscapes and parks, including their views and vistas, and provides internal amenity and outlook.
Design Review Panel Comment:
DRP Meeting 3 August 2017:
While the proposal appears to generally meet its LEP controls it does not comply with the ADG setback requirements along its rear boundary (6m to habitable space for the first four (4) storeys and 9m above that). Nor are its side and rear elevations protective of adjoining properties privacy and amenity. The proposals massing and expression exacerbates its scale and impact on neighbouring properties and on the streetscape. The random staggering of levels (balconies as well as floor plans) is not supported. Glazed balconies especially to the rear compromise privacy between sites. The garbage store and front wall elevations and entrance structure further exacerbates bulk and is out of character.
The Panel believe that expressing a simplified four (4) storey massing with setback upper levels would be a far more successful contextual response. The upper levels should be setback from the lower floor levels and perhaps provided with a change in material and landscaped edges to reduce visual bulk. Garbage store should be relocated to the basement and a more transparent solution to the front fence should be provided (refer to neighbouring properties for reference).
The basement is excessively large and poorly configured further reducing deep soil zones which in turn limits capacity for trees on the property. This is a significant issue given this predominantly residential context. Tress also mitigate scale and provide privacy. Therefore the basement should be reconfigured to maximise deep soil in all setbacks.
The driveway in the rear setback should be removed; a more efficient layout would allow the second ramp to be housed underneath the entry ramp. The Panel notes that they have seven (7) additional spaces have been provided. These should be removed and continuous deep soil provided.
DRP Meeting 1 March 2018:
The proposal was modified to accommodate the previous comments of the Panel by setting back the top three (3) storeys to all boundaries. The amount of balcony space was also reduced.
The driveway should be roofed by raised area(s) to the extent possible and the surface landscaped. This will increase the extent of green cover, and reduce noise and pollution impacts on both the neighbouring property and the proposed bedrooms which look directly over the vehicle ramp.
The Panel queries the extensive use of pedestrian ramp access along the south west boundary. An alternative option should be explored and planting provided along this boundary.
DAO Comment: The proposal has been amended to set back the top three (3) storeys as noted above. However the placement of communal open space and its related structures has resulted in an unacceptable height non-compliance as discussed throughout this report.
Since the DRP meeting on 1 March 2018, the proposal has also been amended to provide additional roofed area over the basement carpark, so as to provide increased landscaped area as well as addressing noise impacts.
However the proposal has retained the pedestrian access along the south west boundary despite the concerns of the DRP.
Principle 3: Density
Good design achieves a high level of amenity for residents and each apartment, resulting in a density appropriate to the site and its context.
Appropriate densities are consistent with the area’s existing or projected population. Appropriate densities can be sustained by existing or proposed infrastructure, public transport, access to jobs, community facilities and the environment.
Design Review Panel Comment:
DRP Meeting 3 August 2017:
Acceptable
DRP Meeting 1 March 2018:
Compliant and acceptable, subject to verification of areas by Council.
DAO Comment: The development is generally acceptable in terms of Density. The proposal complies with the 2:1 FSR established for this site, and has room sizes which comply with the requirements of the ADG.
Principle 4: Sustainability
Good design combines positive environmental, social and economic outcomes.
Good sustainable design includes use of natural cross ventilation and sunlight for the amenity and liveability of residents and passive thermal design for ventilation, heating and cooling reducing reliance on technology and operation costs. Other elements include recycling and reuse of materials and waste, use of sustainable materials and deep soil zones for groundwater recharge and vegetation.
Design Review Panel Comment:
DRP Meeting 3 August 2017:
The proposal should demonstrate state-of-the-art sustainability practices.
Rainwater storage should be provided, with storage located under hardstand, outside of deep soil zones. The volume of storage should be sufficient to irrigate soft landscape areas for a number of weeks.
DRP Meeting 1 March 2018:
The proposal has good mid-winter solar access and natural ventilation compliance.
See comments above about deep soil.
A proposal of this scale should incorporate a raft of sustainability measures in accordance with ADG principles.
DAO Comment: The proposal is generally considered to be acceptable in terms of Sustainability considerations.
Principle 5: Landscape
Good design recognises that together landscape and buildings operate as an integrated and sustainable system, resulting in attractive developments with good amenity. A positive image and contextual fit of well designed developments is achieved by contributing to the landscape character of the streetscape and neighbourhood.
Good landscape design enhances the development’s environmental performance by retaining positive natural features which contribute to the local context, co-ordinating water and soil management, solar access, micro-climate, tree canopy, habitat values and preserving green networks.
Good landscape design optimises useability, privacy and opportunities for social interaction, equitable access, respect for neighbours’ amenity and provides for practical establishment and long term management.
Design Review Panel Comment:
DRP Meeting 3 August 2017:
The proposal does not provide sufficient common open space in accordance with the ADG. Furthermore common open space at ground level is compromised by its proximity to adjacent units therefore creating privacy issues. It is also located on podium with limited capacity for tree planting particularly along the boundary. On a project of this scale it is recommended that rooftop communal open space be provided. The Panel supports a minor breech of height to provide access to roof terraces.
The ground level landscape is compromised by the basement design. This should be reconfigured as discussed above under ‘Built Form’ with car parking numbers complying with the maximum required by Council. Deep soil should be provided at the rear and side setbacks and additional medium to large trees should be integrated in these zones.
Streetscape should be redesigned to remove fire boosters from the frontage. Tree planting can assist in addressing the scale transition from medium to low density. The proposed Banksia street trees should be replaced with large trees such as Tallowwoods which have been used in adjacent streets. Small trees are not supported.
OSD tanks should be relocated clear of deep soil zones and to hard stand areas such as under driveways or in the basement.
DRP Meeting 1 March 2018:
The majority of previous comments have been addressed with the exception of providing deep soil along the side setbacks and the integration of medium to large trees in these areas.
The design of the rooftop communal open space should consider use by small groups and individuals and provide more intimate areas for passive recreation. An enclosed area with toilet and kitchenette should be provided.
The area of glass balustrading to the south east should have low level planting in front to discourage direct access.
The ground floor open space should be made engaging and secure for children’s play.
DAO Comment: As noted in the comments of the DRP Meeting on 1 March 2018, most of the previous comments of the DRP have been addressed in the latest amendments to the proposal.
The development provides some deep soil areas on the north eastern side, however the location of the driveway and private open space on the south western side means that it is not possible to provide such deep soil zones on that side of the development.
Principle 6: Amenity
Good design positively influences internal and external amenity for residents and neighbours. Achieving good amenity contributes to positive living environments and resident well being.
Good amenity combines appropriate room dimensions and shapes, access to sunlight, natural ventilation, outlook, visual and acoustic privacy, storage, indoor and outdoor space, efficient layouts and service areas and ease of access for all age groups and degrees of mobility.
Design Review Panel Comment:
DRP Meeting 3 August 2017:
See notes above regarding presentation of the building to its much lower scale context and streetscape.
Internal amenity is compromised as follows:
· Many of the units such as 103, 104 and 105 and above have poor internal circulation requiring bedroom to bathroom paths crossing living areas
· Non compliance of rear balcony setbacks to rear boundary
· Bathroom access directly from living spaces in Unit 403 and above is unacceptable
· Staggering of plans is very inefficient in terms of drainage and structure; this may compromise required 2700mm ceilings to all habitable areas
· The lobbies do not have access to natural light and air as required by the ADG
· See comments above regarding inefficient basement layout and compromise of deep soil provision
· See comments above about location of OSD.
· Fire booster detail must be provided
· Single beds are shown in many units which makes amenity hard to gauge
· Clearance in front of wardrobes is not demonstrated in adaptable units
· See note above regarding garbage room location
· See note above regarding limited large trees along side and rear setbacks
· See note above regarding glazed balconies to rear setback and impacts on adjoining privacy.
DRP Meeting 1 March 2018:
The design of balconies should be developed in detail to provide screening and adequate privacy as well as protection from winds for the corner balconies.
DAO Comment: The initial consideration of this proposal by the DRP made a number of significant concerns about the design of the development, which have been largely addressed in the latest amendments to the satisfaction of the DRP.
Although there has been amended plans submitted subsequent to the most recent consideration of the proposal by the DRP (on 1 March 2018), these do not appear to have included any further development of the balcony design for privacy screening or wind protection, as suggested by the DRP.
Principle 7: Safety
Good design optimises safety and security within the development and the public domain. It provides for quality public and private spaces that are clearly defined and fit for the intended purpose. Opportunities to maximise passive surveillance of public and communal areas promote safety.
A positive relationship between public and private spaces is achieved through clearly defined secure access points and well lit and visible areas that are easily maintained and appropriate to the location and purpose.
Design Review Panel Comment:
DRP Meeting 3 August 2017:
Acceptable.
DRP Meeting 1 March 2018:
The recessed front entry door could be located closer to the façade to ameliorate safety concerns.
See above under ‘Landscape’ regarding rooftop balustrading.
DAO Comment: The DRP had raised very few issues regarding Safety. In relation the matter of the front entry door, the plans for the DRP had initially had the front entry door set into the building (in a narrow entry corridor) by some 3.7m. This has now been addressed by providing the front entry door at the front of this corridor without any inset. It is considered that the proposal is satisfactory in terms of Safety.
Principle 8: Housing diversity and social interaction
Good design achieves a mix of apartment sizes, providing housing choice for different demographics, living needs and household budgets.
Well designed apartment developments respond to social context by providing housing and facilities to suit the existing and future social mix.
Good design involves practical and flexible features, including different types of communal spaces for a broad range of people and providing opportunities for social interaction among residents.
Design Review Panel Comment:
DRP Meeting 3 August 2017:
See notes above regarding adaptable units and provision of communal open space.
DRP Meeting 1 March 2018:
See comments above under ‘Landscape’ regarding the design of communal open space.
DAO Comment: The proposal has been amended to address the previous issues of concern from the DRP in terms of provision of communal open space and landscape, and is not considered to be acceptable in terms of Housing Diversity and social interaction.
Principle 9: Aesthetics
Good design achieves a built form that has good proportions and a balanced composition of elements, reflecting the internal layout and structure. Good design uses a variety of materials, colours and textures.
The visual appearance of a well designed apartment development responds to the existing or future local context, particularly desirable elements and repetitions of the streetscape.
Design Review Panel Comment:
DRP Meeting 3 August 2017:
· Refer to ‘Built form’ above for refined massing strategy incorporating four (4) storey definition on all sides of the building and setback upper levels with landscape edge and material change.
· Simplified materials that age well ie brick with less render and steel
· Redesign balconies, integrate with façade and reduce expression of cantilevered slabs
· Remove unnecessary screens
· Remove entrance portico
· Reconsider colour palate
DRP Meeting 1 March 2018:
The proponent has revised the general aesthetics of the building to accommodate most of the previous comments of the Panel and is now acceptable. Although the built form is less than optimal, it has been generated by the setbacks required to satisfy privacy separation distances, and there is no better solution apparent which would allow the permissible density to be achieved.
DAO Comment: The proposal has been amended to address the previous issues of concern from the DRP in terms of provision of communal open space and landscape, and is not considered to be acceptable in terms of Housing Diversity and social interaction.
Recommendation
Design Review Panel Comment:
DRP Meeting 3 August 2017:
The design cannot be supported in its present form and should be amended as outlined above for reconsideration by the Panel.
DRP Meeting 1 March 2018:
The Panel supports the application subject to the issues raised above being resolved. The application satisfies the design quality principles contained in SEPP 65.
DAO Comment: It is considered that the issues of concerns from the Design Review Panel have been addressed from the DRP’s first consideration of the proposal at their meeting on 3 August 2017.
However, in addressing the concerns from the DRP particularly in relation to provision of communal open space, the proposal has been amended to include substantial structures at the roof level, including a pergola roof over, balustrade walls and lift/stairway access to the communal open space, and toilet facilities. These associated structures result in the building significantly exceeding the maximum 21m height limit prescribed for this site.
Clause 28 – Consideration of Apartment Design Guide
19. The following table is an assessment against the design criteria of the ‘Apartment Design Guide’ (ADG) as required by SEPP 65.
|
Clause |
Standard |
Proposal |
Complies |
|
Objective 3D-1
|
1. Communal open space has a minimum area equal to 25% of the site. -Where it cannot be provided on ground level it should be provided on a podium or roof
-Where developments are unable to achieve the design criteria, such as on small lots, sites within business zones, or in a dense urban area, they should: • provide communal spaces elsewhere such as a landscaped roof top terrace or a common room • provide larger balconies or increased private open space for apartments • demonstrate good proximity to public open space and facilities and/or provide contributions to public open space |
Communal open space consists of 235sqm at ground floor level and also 172sqm on the rooftop level.
This equates to 407sqm which is 33.1% of the site area of 1226.2sqm.
Proposal achieves the required design criteria.
|
Yes
|
|
2. Developments achieve a minimum of 50% direct sunlight to the principal usable part of the communal open space for a minimum of 2 hours between 9 am and 3 pm on 21 June (mid winter) |
Rooftop communal open space will receive good solar access. Also, the ground level communal open space will receive good solar access as it is on the northern side of the site.
The development complies with the ADG requirement in terms of solar access to the communal open space. |
Yes |
|
|
Objective 3E-1
|
Deep soil zones are to meet the following minimum requirements:
· 650sqm – 1,500sqm, 3m min dimension
Deep soil = 7% (85.83sqm at this site) |
Deep soil zone of 176.9sqm (or 14.4%) provided in the amended plans, located at the rear/northern side of the site, with minimum dimension of 3m.
|
Yes |
|
Objective 3F-1 |
Separation between windows and balconies is provided to ensure visual privacy is achieved.
Minimum required separation distances from buildings to the side and rear boundaries are as follows:
-Up to 12m (4 storeys) Habitable rooms and balconies = 6m Non-habitable rooms = 3m
-Up to 25m (5-8 storeys) Habitable rooms and balconies = 9m Non-habitable rooms = 4.5m
|
Proposal generally has side and rear setbacks as follows:
Levels 1-4: Side setbacks 6m, rear setbacks 7.768m;
Levels 5-7: Side setbacks to NE side ranging from 7.5m to rear ensuite and 9m to the rest of the wall.
Side setbacks to SW side ranging from 7.5m to kitchen laundry and bathroom, and 9m to the rest of the wall.
|
No – see discussion below |
|
Objective 3J-1 |
1. For development in the following locations: • on sites that are within 800 metres of a railway station or light rail stop in the Sydney Metropolitan Area; or • on land zoned, and sites within 400 metres of land zoned, B3 Commercial Core, B4 Mixed Use or equivalent in a nominated regional centre the minimum car parking requirement for residents and visitors is set out in the Guide to Traffic Generating Developments, or the car parking requirement prescribed by the relevant council, whichever is less.
The car parking needs for a development must be provided off street. |
The development is not within 800m of a railways station/light rail stop, and it is not zoned/within 400m of land zoned B3 or B4. Therefore the provisions of Council’s DCP applies to the development.
Complies. See discussion under DCP later in this report.
|
Yes
|
|
Objective 4A-1 |
Living rooms and private open spaces of at least 70% of apartments in a building receive a minimum of 2 hours direct sunlight between 9 am and 3 pm at mid winter in the Sydney Metropolitan Area |
Complies
|
Yes
|
|
A maximum of 15% of apartments in a building receive no direct sunlight between 9 am and 3 pm at mid winter |
Concern re unit G04 given its location on the ground floor. This unit wil receive poor direct sunlight, but otherwise the development provides good solar access to all other units and is acceptable. |
Yes |
|
|
Objective 4B-3 |
1. At least 60% of apartments are naturally cross ventilated in the first nine storeys of the building. |
All units can achieve good cross-ventilation |
Yes
|
|
2. Overall depth of a cross-over or cross-through apartment does not exceed 18m, measured glass line to glass line |
N/A |
N/A
|
|
|
Objective 4C-1 |
Measured from finished floor level to finished ceiling level, minimum ceiling heights are: Habitable rooms = 2.7m Non-habitable rooms = 2.4m |
2.7m for all rooms |
Yes
|
|
Objective 4D-1 |
Apartments are required to have the following minimum internal areas:
1 bedroom = 50sqm 2 bedroom = 70sqm 3 bedroom = 90sqm
The minimum internal areas include only one bathroom. Additional bathrooms increase the minimum internal area by 5sqm each |
Complies
3 x 1br units = min 55.4sqm
12 x 2br units = min 89sqm
8 x 3br units = min 118sqm
Some units have more than one bathroom but still achieve compliance with the minimum internal areas as indicated above |
Yes
|
|
Every habitable room must have a window in an external wall with a total minimum glass area of not less than 10% of the floor area of the room. Daylight and air may not be borrowed from other rooms |
Window provided for each habitable room with appropriate glass area provided. |
Yes
|
|
|
Objective 4D-2 |
1. Habitable room depths are limited to a maximum of 2.5 x the ceiling height |
Within range. |
Yes
|
|
2. In open plan layouts (where the living, dining and kitchen are combined) the maximum habitable room depth is 8m from a window |
Complies
|
Yes
|
|
|
Objective 4D-3 |
1. Master bedrooms have a minimum area of 10sqm and other bedrooms 9sqm (excluding wardrobe space)
2. Bedrooms have a minimum dimension of 3m (excluding wardrobe space)
3. Living rooms or combined living/dining rooms have a minimum width of:
-3.6m for studio and 1 bedroom - 4m for 2 and 3 bedroom apartments
4. The width of cross-over or cross-through apartments are at least 4m internally to avoid deep narrow apartment layouts |
Generally complies.
All spaces meet the minimum requirements of the ADG and are acceptable. |
Yes
|
|
Objective 4E-1 |
All apartments are required to have primary balconies as follows:
-1 bedroom = 8sqm/2m depth -2 bedroom = 10sqm/2m depth -3+ bedroom = 12sqm/2.4m
The minimum balcony depth to be counted as contributing to the balcony area is 1m |
All units have balconies that meet or exceed both the minimum area and depth requirement of the ADG. |
Yes |
|
2. For apartments at ground level or on a podium or similar structure, a private open space area is provided instead of a balcony. It must have a minimum area of 15sqm and a minimum depth of 3m. |
The ground floor units have been provided with private open space areas which comply with the minimum area prescribed.
|
Yes |
|
|
Objective 4F-1 |
The maximum number of apartments off a circulation core on a single level is 8
(Where the design criteria is not achieved, no more than 12 apartments should be provided off a circulation core on a single level) |
One entry corridor provided. Ground floor has 4 units Level 1 has 5 units Level 2-3 has 4 units each Levels 4-6 has 2 units each
|
Yes
|
|
Objective 4G-1 |
In addition to storage in kitchens, bathrooms and bedrooms, the following storage is provided:
-1 bedroom = 6m³ -2 bedroom – 8m³ 3 bedroom – 10m³
At least 50% of the required storage is to be located in the apartments. |
Basement storage is provided for all units in compliance with the ADG requirements, both in the basement and in the units themselves.
|
Yes
|
In summary, the proposal is considered to be consistent with many of the principles of the ADG and SEPP 65 – Design Quality of Residential Flat Development.
Draft Environmental Planning Instruments
20. No Draft Environmental Planning instruments affect the proposed development.
Development Control Plans
Kogarah Development Control Plan 2013 (KDCP 2013)
21. The proposed development is subject to the provisions of the Kogarah Development Control Plan 2013 (KDCP2013).
It should be noted that there are numerous areas of non-compliance with the provisions of KDCP 2013, which is mainly the result of the recent KLEP 2012 amendments which allow for greater density (2:1) and height (21m) than was previously envisaged under the provisions of KDCP 2013.
In undertaking this DCP assessment, it is noted that Section 3.43 of the Environmental Planning & Assessment Act 1979 (in summary) states that a provision of a DCP that is inconsistent with the provisions of an Environmental Planning Instrument (eg KLEP 2012) has no effect.
The following comments are made with respect to the proposal satisfying the objectives and controls contained within the DCP.
Frontage
KDCP 2013 prescribes a 20m frontage for residential flat buildings. The subject site has a frontage of 30.48m which complies with KDCP 2013.
Height & Building Envelope Requirements
KDCP 2013 prescribes Height and Building Envelope Requirements for the various types of Medium Density Housing allowed under this Part of the DCP. As noted previously, these controls are now inconsistent with the height provisions of KLEP 2012, however they are discussed below for comparison purposes.
For Residential Flat Buildings, the maximum height controls are a “H1” Height of 12m and a “H2” height of 14m. In this instance, the “H2” height is taken from a measurement at a 45o angle from the “H1” height, as shown in the following diagram:

Maximum Height Controls under Part C2 – Medium Density Housing. Source: KDCP 2013
Although the proposed development significantly exceeds the height controls in KDCP 2013, this is the result of the recent changes to the Development Standards in KLEP 2012, which allow for a 21m height limit, which took effect in May 2017. KDCP 2013 has not been amended to reflect the provisions of the LEP. It is noted that where there is an inconsistency between the LEP and DCP provisions, the LEP prevails, and therefore Council is able to consider the proposal for development with a maximum height of 21m on this site.
As discussed throughout this report, the proposed development does not comply with the maximum 21m height limit under KLEP 2012, as follows:
· 21.71m – measured to the highest point of main building wall;
· 22.94m – measured to the wall enclosing the rooftop communal open space;
· 24m – measured to the highest point of the building overall (which is pergola roof and walls of the toilet and lift core on the rooftop communal open space).
Accordingly, the proposal is considered to be unacceptable in terms of height. As mentioned, this is one of the first residential flat developments in John Street, and therefore it is imperative that these initial developments fully comply with the height requirements of KLEP 2012. Such a significant variation to the height controls would significantly undermine the newly adopted height controls, and therefore it is considered that the proposal should not be supported.
Setbacks
Front Setbacks
KDCP 2013 prescribes front setbacks which state that a maximum of 75% of the width of the building must be a minimum 5.0m with the remaining 25% setback a minimum of 7.0m.
Levels 4-6 fully comply with the front setback requirement, as these levels have been setback from the main façade of the building for a front setback of 9m (to the wall) and 7m (to the edge of the balcony).
Levels 1-3 also comply with the above requirement, as the portions of the building with a 7m setback exceeds 25%. On these levels, the portion of the building with a 5m setback is approx. 44% which complies with the maximum 75%.
The ground floor level technically does not comply with the front setback controls, because although the minimum setback is 6.167m at the ground floor, only the entry of the building has a minimum 7m setback. The portion of the building with a minimum 7m setback at the ground floor level is some 12.5%.
Despite the DCP non-compliance, the proposal is considered to be acceptable for the following reasons:
· In terms of front setbacks, the objectives of KDCP include ensuring that multi-dwelling housing and residential flat buildings provide a varied front setback. The proposed development provides a large amount of articulation and variation in the front setback to ensure that the objectives of the control are satisfied.
· In terms of consistency with the existing streetscape, the front setback of the proposed development is generally consistent with the existing setbacks in the street. In this regard, the following are the existing and proposed front setbacks in the immediate vicinity:
o 1A John Street (immediately to the NE) – measured setback of 3.7m
o No 1 and 3 John Street (existing dwellings on subject site) – measured setbacks of 5m – 6m
o No 5 John Street (immediately to the SW) – existing development measured at 6m. Note: the proposed residential flat development at 5-9 John Street has front setbacks ranging from 6m – 7m.
· Having regard to the above, it is considered that the proposed development will be consistent with the existing and proposed front setbacks in John Street. Further, it is considered that because the upper levels of the development at set back a further 2m from the main building façade, the development is appropriate in terms of front setbacks.
Side/Rear Setbacks
KDCP 2013 prescribes a side and rear setback control of 3m plus ¼ the amount that the wall height exceeds 3m. As the development generally has a wall height of 21m (not including the structures at the rooftop level which are set in from the external wall and have a greater height), the DCP would require side/rear setbacks of 7.5m.
The proposal has side setbacks of 6m and rear setbacks of 7.768m up to level 4, and side/rear setbacks of 7.5m to 9m above level 4, which does not fully comply with the DCP control.
However, the proposal is subject to the provisions of the ADG in terms of side and rear setbacks, which over-rides the provisions of the KDCP2013. As previously mentioned, the ADG prescribes side/rear setbacks of 6m for buildings up to 12m (4 storeys) and 9m for buildings up to 25m.
Accordingly, the proposal also does not comply with the provisions of the ADG in terms of side setbacks. This non-compliance occurs on the northern and southern sides of the building on levels 4-6.
It is considered that as one of the first developments in an area subject to new planning controls (that allow development to a greater density and building height) that this development should fully comply with the side/rear setback controls. The non-compliance with the side setbacks will result in additional overshadowing impacts and bulk and scale impacts onto the neighbouring property to the south. Accordingly, the proposed side/rear setbacks are not acceptable and the development is not supported.
Site Coverage
KDCP 2013 prescribes a maximum 45% site coverage, which equates to 551.79sqm at this site (1226.2sqm site area). The development proposes a site coverage of some 450sqm of 37% of the site, which complies with the DCP control.
Impervious Area
KDCP 2013 prescribes a maximum 55% impervious area, which equates to 674.41sqm at this site.
The development proposes an impervious area of some 920sqm (when including the basement levels below) or 75%, which does not comply with the DCP requirement.
However, the development proposes significant deep soil zones at the front and rear of the site, of some 300sqm, which significantly exceeds the ADG requirement of 7% (or 85.83sqm at this site), which will provide sufficient area for planting of trees and also absorption of rainwater.
Common Open Space
Common open space for residential flat building developments shall be provided at a rate of 30sqm per dwelling for those units that have balconies as their only form of private open space. Therefore, a minimum of 690sqm is required.
The proposed development incorporates 407sqm of common open space area, consisting of 235sqm at the rear of the building, and also 172sqm on the roof. Although the proposal does not comply with the requirements of the DCP, it exceeds the amount required under the ADG (ie 25% or 306.55sqm). The proposal would be considered acceptable despite the non-compliance with the DCP control, given that compliance with the ADG is achieved.
Private Open Space
Where provided, courtyards for ground floor units must be a minimum of 35sqm/ dwelling, with a minimum dimension of 3m. Otherwise all dwellings must be provided with a balcony 12sqm in area with a minimum dimension of 3m.
In accordance with SEPP No 65, the provisions within a DCP that relate to "private open space and balconies" have no effect and the provisions of the ADG are applicable. In this instance, all units meet the minimum requirements of the ADG in terms of balconies for proposed units.
Other Requirements
22.
Solar Access
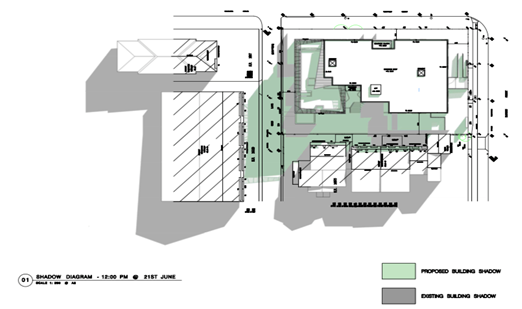
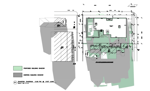
KDCP 2013 states that where neighbouring properties are affected by overshadowing, at least 50% of the neighbouring existing primary private open space or windows to main living areas must receive a minimum of 3 hours sunlight between 9am-3pm on the winter solstice.
Shadow diagrams have been provided with the amended plans (both for 21 June and 21 September). These 21 June shadow diagrams show that the development would cause a substantial overshadowing impact on the adjoining property to the south (5 John Street) at 9am, but by 12noon most of the shadows would fall onto the front setback area of 5 John Street or onto the street. By 3pm all of the shadows from the development would fall onto the street, with a small portion falling onto the properties across the street.
Although the proposal will cause significantly more overshadowing than the existing development, the orientation of the site will result in most of the shadows falling onto the front setback area or the street after 12noon. The proposal would therefore generally comply with the provisions of the DCP in terms of overshadowing.
However, such overshadowing is linked to the height of the development. The
height of the development in this instance significantly exceeds the 21m
maximum prescribed under KLEP 2012. If the development was reduced in height to
enable compliance with KLEP 2012, then the extent of overshadowing would be
reduced accordingly.
Privacy
The proposed development complies with the setback requirements contained within KDCP 2013 but in any case, has been designed having regard to the separation requirements of Part 3F - Visual Privacy within the ADG. The development makes provisions for sliding privacy screens on balconies while providing a generous landscape buffer around the perimeter of the site enabling reasonable levels of external and internal privacy to be maintained by neighbouring development.
Traffic and Parking
KDCP 2013 prescribes a minimum of 37 resident and 5 visitor parking requirements, at the rate of 1 space per 1br unit (3 x 1br requires 3 spaces), 1.5 spaces per 2br units (12 x 2br requires 18 spaces) and 2 spaces per 3br unit (4 x 3br requires 8 spaces) and 1 visitor space per 5 units.
The development proposes 42 parking spaces (37 resident and 5 visitor) which complies with the DCP requirement.
In terms of traffic generation, the Traffic and Parking Assessment report submitted with the DA indicates that the development would potentially generate 11 additional vehicle trips per hour compared to the existing situation, which is contended to be minor and will not have any noticeable impact on the road network serving the site.
Council’s Traffic Engineers have reviewed the potential impacts and advised they are considered minor on the local road network. The extent of additional generation is consistent with the expectations of the zone.
Adaptable and Accessible Housing
KDCP 2013 prescribes a minimum of three (3) adaptable units in developments of between 21-30 units. The development nominates three (3) of the ground floor units as adaptable housing units, which complies with the DCP requirement.
IMPACTS
Natural Environment
23. The proposal would have minimal impact in terms of the Natural Environment. The proposal does not involve the removal of any significant vegetation, and any potential issues of regarding soil erosion and sediment control could be addressed via conditions of consent.
Built Environment
24. As detailed throughout this report, the development is unacceptable in terms of its overall height, and also proposes a poor transition to the lower density development on development on the opposite side of John Street. The proposed height of 24m (to the highest point) significantly exceeds the maximum prescribed under KLEP 2012 (21m). As one of the first residential flat developments in this street, it is considered that approval of this development at the proposed height of 24m would significantly undermine the newly established planning controls, and would set an undesirable precedent.
Social Impact
25. Approval of the development would generally have acceptable social impacts, by contributing to the range of housing choice available to the community of Kogarah Bay. However, as discussed throughout this report, the height of the building proposed in this application is unacceptable.
Economic Impact
26. Approval of the development would generally have acceptable economic impacts, for example, re-development of the subject site would create employment opportunities for construction workers, and provision of additional housing would create additional properties available to both the rental and owner-occupied housing markets. However, as discussed throughout this report, the height of the building proposed in this application is unacceptable.
Suitability of the Site
27. A review of the environmental constraints pertaining to the subject land has been undertaken. There are no constraints (eg flooding, slope instability, bushfire etc) that would render the site as unsuitable for the proposed development.
SUBMISSIONS AND THE PUBLIC INTEREST
28. In accordance with the provisions of Section A2 – Public Notification of KDCP 2013, the DA was placed on neighbour notification from 9-23 August 2017, and ten (10) submissions were received.
The amended plans were re-notified for a period from 9 January to 6 February 2018, and a further three (3) submissions were received, all from property owner(s) who made submissions on the original DA.
The location of the objectors’ properties in relation to the subject site are illustrated on the map below.

Location map showing objectors properties. Source: www.nearmap.com.au, marked up.
The issues of concern are summarised and discussed as follows.
Discrepancies/inaccuracy of DA documents
Concern is raised that the documentation submitted with the DA includes discrepancies, omissions, flawed recommendations and inaccuracies.
In particular, concern is raised regarding the various documents submitted with the DA, including:
· Geotechnical report – the geotechnical assessment undertaken for this development is insufficient for the nature of development proposed and potential impacts on neighbouring properties cannot be properly assessed;
· Lack of a Construction Traffic Management Plan (CTMP);
· Lack of detail provided regarding the BASIX certificate (eg location of air conditioning condenser units etc);
· Inaccurate survey information;
· Lack of detail regarding impacts on trees on adjoining properties;
· Lack of detail on proposed fencing;
· Lack of detail regarding noise generated from the garage door;
· Potential inaccuracy of the shadow diagrams;
· Poor SEPP 65 Assessment
· No detail regarding any substation.
Comment: These issues of concern were raised as a result of the notification of the original plans for this DA. The neighbours’ concerns are considered to be well-founded, and the DA documentation should have been properly updated to reflect the exact nature of the development now proposed in the current DA.
The objector has noted that these were also issues of concern from the previous DA for this site (DA203/2016) which was withdrawn before determination. It is evident that the documentation accompanying this DA has largely been re-submitted with the current DA, but without being properly updated to reflect the nature of the current proposal.
In addition to those neighbour concerns from the original notification, Council officers are also concerned that although amended plans have been submitted, the supporting documentation has not been properly updated to reflect those amended plans. For example, although the height of the development has been increased (for the structures associated with the rooftop communal open space), there has been no updated Clause 4.6 request for variation submitted with the amended plans, and also no updated Statement of Environmental Effects.
The neighbour made a detailed submission regarding the discrepancies, omissions, flawed recommendations and inaccuracies in the DA documentation. Given that the recommendation of this report is refusal, it is not considered to be necessary to require the applicant to address these issues. These are incorporated into the reasons for refusal in the Recommendation to this report.
Height non-compliance and unacceptable Clause 4.6 Request
Concern is raised that the development does not comply with the 21m height limit established in KLEP 2012. Further, concern is raised that the Clause 4.6 request for variation to the Height control has not been properly made and relies on assessment of incorrect objectives to justify why compliance is unreasonable or unnecessary.
Comment: This objection was made in relation to the original DA plans, in which the applicant had identified that the proposal breached the height control (21m) by some 710mm for the lift over-run and at the front of the development.
The specific concerns of the neighbour are that the applicant’s clause 4.6 request for variation makes reference to the incorrect objectives of the height control. The neighbour’s objection is correct, as the applicant has indeed made reference to the wrong objectives of the height control in their Clause 4.6 request for variation.
In addition to the above concerns regarding the Clause 4.6 request for variation in relation to the original DA plans, it is noted that there has been no amended Clause 4.6 Request for Variation submitted with the amended DA plans – which have increased the proposed height of the building to a maximum of 24m (at highest point). There is no power to approve the amended plans for the current DA given that no clause 4.6 request for variation has been submitted to support the amended plans that have increased the height of the development.
In any case, Council officers consider that this (24m) height is unacceptable, particularly given that this is one of the first residential flat developments proposed since the planning controls (KLEP 2012) were amended to a 21m height limit.
Front setbacks
Concern is raised that the proposed 4.8m front setback does not reflect the 6m front setback prevailing in the street, and this will exacerbate the bulk of the building.
Comment: These concerns were raised in relation to the original DA plans. The amended plans have increased the front setback of the development, and would now be generally satisfactory. For further discussion on the front setbacks, refer to the DCP Compliance section earlier in this report.
Side/rear setbacks
Concern is raised that the side/rear setbacks do not comply with the provisions of the ADG, and will have an adverse impact on the amenity of neighbouring properties.
Comment: These concerns were also raised in relation to the original DA plans. The amended plans increased the side/rear setbacks of the development, and although there are some areas of non-compliance, they are considered to be generally satisfactory as previously discussed (refer to the DCP Compliance section earlier in this report).
Impervious area
Concern is raised that the development significantly exceeds the impervious area controls (in KDCP 2013).
Comment: These concerns were also raised in relation to the original DA plans. The amended plans reduced the impervious area, however there are some areas of non-compliance, the development is now considered to be generally satisfactory as previously discussed (refer to the DCP Compliance section earlier in this report).
View loss
Concern is raised that the development’s non-compliances with applicable planning controls (front setbacks, side setbacks etc) will cause unacceptable impacts on views available from the neighbour at 5 John Street.
Comment: It is generally considered that this location does not enjoy significant views. This is because the topography is relatively flat in John Street, and also there is significant distance in the direction of the subject site from the neighbour’s property to the nearest body of water (over 2km straight line distance from the neighbour’s property at 5 John Street to Botany Bay). Further, the views are mostly blocked by existing buildings and vegetation. Accordingly, there are minimal views available from the neighbour’s property, in the direction of the subject site in this location.
The NSW Land and Environment Court has established a Planning Principle to be used in assessment of view impacts (in its consideration of Tenacity v Warringah Council (2004) NSWLEC140). It is not considered to be necessary to undertake a full assessment of view impacts given that minimal views exist in this location.
The neighbour’s main concerns are that the non-compliances of the proposed development (particularly in relation to front and side setbacks, and to a lesser extent the building height) cause an unacceptable impact in terms of views available from their property. In this regard, as discussed previously, the front setbacks have been addressed in the amended plans that have been re-notified to the neighbours, and are now largely compliant. The only area of non-compliance now exists at the lower level of the development, which would ensure minimal impact on views.
Also, the view impacts in this instance would be mostly a side view from the neighbour’s property looking over the subject site. Side views from a property over a proposed development site are recognised in the Tenacity Planning Principle as being more difficult to protect.
It is not considered to be a reasonable expectation to retain side views from the neighbour’s property over/through the subject site, particularly given that the views in this location are not significant.
Design Quality
Concern is raised that the development will be of poor design quality. The neighbour has provided an example of another development by this applicant which they state has a poor external appearance in terms of its finishes and colours.
Comment: Although the DA is recommended for refusal, the architectural plans indicate that the development has an acceptable presentation in terms of its external finishes and colours. There is no reason to believe that the finished product would be unacceptable in terms of its design/appearance, provided it is to be constructed as per any approved plans (which address the recommended reasons for refusal).
Character
All properties in John Street are either one or two storey, and the height of the seven storey development will far exceed the height of existing properties which will destroy the character of the streetscape.
Comment: It is noted that the proposal will be significantly inconsistent with the existing streetscape character of John Street, however it is noted that the planning controls (in KLEP 2012) have recently been amended to allow a height limit of up to 21m. As a general statement, it is considered that new residential flat developments would be consistent with the desired future character of development on the northern side of John Street. However the specific design of the proposal (as per the amended plans) is not acceptable given the extent to which it exceeds the maximum 21m height limit prescribed in KLEP 2012, and also the design of the building proposes an insufficient building setback at the upper levels of the development (above 4 storeys), and so there will be significant bulk and scale impacts on the R2 Low Density Residential zone across the street. This report recommends refusal of the application for these reasons.
Privacy
The proposal will cause privacy impacts on neighbouring properties as a result of its increased height. Concern is raised that this will impact on properties both adjacent to the site and also opposite the street.
Comment: This issue of concern appears to be a more general issue regarding the planning controls for the property which allows residential flat development at a greater height (21m in this instance) than the current one to two storey developments prevailing in the street. When a residential area undergoes transition from a low density to higher density environment, the new residential flat developments naturally have greater impacts in terms of privacy than the previous given the nature of the development.
The proposed development has undergone design revisions, which have been reviewed on two occasions during this DA process by the Design Review Panel. At the most recent review meeting by the DRP, they recommended that the design of the balconies should be developed in detail to provide screening for adequate privacy. The applicant has been willing to undertake such design modifications to ensure an appropriate level of privacy considering the nature of the development.
In terms of impacts on adjoining properties to the side and rear, the boundary setbacks are generally acceptable in terms of the provisions of the ADG. Where there are encroachments, the windows have been designed to minimise privacy impacts to adjoining properties. Impacts on adjoining properties across John Street will be adequately mitigated by the combined distance (of approximately 20m) between the front of the proposed building, and the adjoining buildings across the street.
Overshadowing
The proposal will cause increased overshadowing onto neighbouring properties.
Comment: Once again, this issue of concern appears to relate to the planning controls which now allow for residential flat development at a greater height than previously.
Shadow diagrams have been provided with the amended plans (both for 21 June and 21 September). These 21 June shadow diagrams show that the development would cause a substantial overshadowing impact on the adjoining property to the south (5 John Street) at 9am, but by 12noon most of the shadows would fall onto the front setback area of 5 John Street or onto the street. By 3pm all of the shadows from the development would fall onto the street, with a small portion falling onto the properties across the street.
Although the proposal will cause significantly more overshadowing than the existing development, the orientation of the site will result in most of the shadows falling onto the front setback area or the street after 12noon. The proposal would therefore generally comply with the provisions of the DCP in terms of overshadowing.
However, such overshadowing is linked to the height and overall bulk of the
development. The height of the development in this instance significantly
exceeds the 21m maximum prescribed under KLEP 2012. If the development was
reduced in height to enable compliance with KLEP 2012, then the extent of
overshadowing could be reduced accordingly.
The shadow diagrams for the amended plans (21 June) are provided below.

Shadow diagram for proposed development – Winter Solstice. Source: Applicant DA plans.
Garbage
Concern is raised that the development does not provide garbage facilities in the basement (ie provided at grade), which will cause visual and external odour impacts.
Comment: This was an issue of concern regarding the original DA plans, which provided an at-grade garbage storage area on the southern side of the development. This has been resolved in the amended plans, by providing the garage room within the basement.
Communal open space
Concern is raised that the development does not provide the required communal open space, which reduces the amenity of the development.
Comment: This was also an issue raised regarding the original DA plans. The latest amendments (which were notified to neighbours) have provided a substantial communal open space area on the rooftop. Whilst these amendments have generally resolved the issue of lack of communal space, in this instance (by simply placing the communal space with it’s associated structures on the roof with no adjustment to the height of the building) – the amendments have resulted in the building being excessively high, and non-compliant with Council’s planning controls. This height non-compliance is not supported as discussed throughout this report.
Traffic and parking
Concern is raised that the development will cause increased traffic in John Street, as well as increased demand for on-street parking.
Comment: A Traffic and Parking Assessment report by Terraffic Pty Ltd has been submitted with the DA (ie original DA plans). The Traffic and Parking assessment has considered the existing road network, the traffic generation potential and the parking demand from this development.
In terms of traffic generation, the Terraffic Report indicates that the development would potentially generate 11 additional vehicle trips per hour compared to the existing situation, which is contended to be minor and will not have any noticeable impact on the road network serving the site.
Further, the proposal fully complies with the car parking requirements of Council’s DCP. Concern has been raised by a number of residents that John Street already has a high demand for on-street parking, which will be made worse with the new development. In this regard, the development provides sufficient visitor parking in compliance with Council’s DCP requirements to minimise the potential for on-street parking.
Council’s Traffic Engineers have reviewed the potential impacts and advised they are considered minor on the local road network. The extent of additional generation is consistent with the expectations of the zone.
Precedent
Approval of this DA would set a precedent for approval of other residential flat developments in this location.
Comment: This issue of concern from the neighbours relates to the general principle of approval of a new residential flat development in an area that has been previously occupied by low density on- to two-storey detached dwellings. These general concerns are not supported, given that the new planning controls that have taken effect now allow for residential flat buildings of up to 21m in height.
However, as discussed throughout this report, the proposal (as amended) seeks a significant increase in height above the 21m limit. As one of the first residential flat developments in John Street, it is important that these new planning controls are upheld, as the initial developments in this location will set a precedent for the developments which follow. Importantly, the new residential flat developments should provide a transition in built form and massing to the lower density development on the opposite side of the street (R2 zone), to ensure impacts on the lower-density residential development are minimised. For these reasons, the development is considered to be unacceptable and should not be approved.
Isolation
Concern is raised from the owner of No 198 Princes Highway (to the rear/north of the site) that development of the subject site will isolate them from developing their property because they do not have access to John Street.
Comment: This issue of concern related to the original notification of this DA. Since that time, a DA has been lodged for the neighbour’s property (including both 198-200 Princes Highway), and this development is under assessment at the time of writing.
Property devaluation
Concern is raised that the proposed development will lower the value of adjoining properties.
Comment: This is not a valid planning consideration. This position has been reinforced on many occasions including by decisions made in the NSW Land and Environment Court.
REFERRALS
Council Referrals
29. The DA was referred to a number of officers within Council, who have provided comments as follows. The referral officers have provided conditions of consent where appropriate, as indicated in their comments below.
Team Leader – Subdivision & Development
The DA was referred to Council’s Team Leader – Subdivision & Development, who has provided the following comments:
· The stormwater design lodged involves an above ground OSD system that surrounds the building extents and includes all proposed lawn areas both common and private. I have conditioned that the OSD is to be amended to not include any private areas. The OSD storage required should be able to be provided within the approximately 240 sq. metres of common open space at the rear of the site.
· The OSD will require that ground levels are lowered significantly at the rear of the property with the finished ground levels to be lowered by approximately 1.1 metres in the northern corner and 1.5 metres in the western corner of the site. This may need to be assessed for non-stormwater related impacts eg. impact on neighbouring properties.
This is further to review of the stormwater management plans submitted with the DA.
The following stormwater related conditions must be complied with…”
Senior Traffic Engineer
The DA was referred to Council’s Senior Traffic Engineer who has provided the following comments:
· “The parking rates and traffic generation are appropriate and can be approved.
Ground Level
· Any planting adjacent the driveway near the boundary shall comply with the requirements of “AS/NZS 2890.1:2004 - Off Street Car Parking, Section 3.2.4(b)”. This is to allow adequate sight distance of pedestrians on the footpath area for drivers exiting the property.
Basement 1
· Due to there being parallel parking on one side and angle parking on the other side of the aisle, adjacent spaces 7 & 8, the proposed aisle width does not meet the requirements of “AS/NZS 2890.1:2004 - Off Street Car Parking, Section 2.4.4(b) (iii)”. The aisle width shall be designed at a minimum width of 6.3m. The submitted design has an aisle width of 6m which does not comply.
· Any "Disabled Parking" spaces shall comply with “AS/NZS 2890.6:2009 - Off Street Parking for People with Disabilities”. The shared area adjacent the spaces shall have a bollard installed.
· The blind aisle adjacent to space 17 shall be designed with a minimum 1 metre extension past the last parking space in accordance with “AS/NZS 2890.1:2004 - Off Street Car Parking, Section 2.4.2(c)”. The submitted design does not comply.
· The columns within the carpark area shall be constructed in accordance with “AS/NZS 2890.1:2004 - Off Street Car Parking. Section 5.2”. The design does not comply.
Basement 2
· Whilst there is nothing in the standards regarding the allocation or number of tandem parking spaces for a development, there is an excessive number of tandem spaces located at the bottom of the single driveway ramp and if residents are required to “car swap” this could lead to a potential incident. The tandem spaces near the bottom of the ramp should be converted to single spaces so that residents are not car swapping at the bottom of the ramp that has limited sight distance of vehicles approaching from the Basement 1 level.
The following conditions shall be placed upon the development consent if approved…”
Waste Management Officer
The DA was referred to Council’s Waste Management Officer who has provided the following comments.
“The bin room is big enough to hold the amount of bins required for a 2 x week garbage service. All rooms must be fitted with double doors to allow the easy moving of bins from the bin room to kerb side.
The waste room will contain the following to minimise odours, deter vermin, protect
surrounding areas, and make it a user-friendly and safe area:
· waste room floor to be sealed;
· waste room walls and floor surface is flat and even;
· all walls painted with light colour and washable paint;
· equipment electric outlets to be installed 1700mm above floor levels;
· The bin storage rooms will be mechanically exhausted as required by AS 1668.2;
· light switch installed at height of 1.6m;
· waste rooms must be well lit (sensor lighting recommended);
· optional automatic odour and pest control system installed to eliminate all pest
· types and assist with odour reduction - this process generally takes place at
· building handover - building management make the decision to install;
· all personnel doors are hinged and self-closing;
· waste collection area must hold all bins - bin movements should be with ease of access;
· conform to the Building Code of Australia, Australian Standards and local laws; and childproofing and public/operator safety shall be assessed and ensured.
· Occupational Health and Safety issues such as slippery floors in waste rooms and the weight of the waste and recycling receptacles will need to be monitored.
· Cleaners will monitor the bin storage area and all spills will be attended to immediately by cleaners.”
Building Surveyor
For the purpose of Building Referral Clearing House referral comments, the submitted plans have been briefly reviewed for general compliance with the BCA.
There are some BCA deficiencies, namely one egress in carpark that may require design layout changes and lose of car space, if not supported by an alternative solution, at the CC stage. The applicant should consult with a BCA consultant to satisfy the requirements.
(The Building Surveyor has advised that these matters can be addressed via conditions of consent, should approval be granted for this development).
CONCLUSION
30. The proposal has been assessed using the heads of consideration listed in Section 4.15 of the Environmental Planning and Assessment Act 1979, and is considered to be unsatisfactory in its current form, mostly due to the height of the development (24m to the highest point of the building), which substantially exceeds the 21m maximum height limit under the newly adopted planning controls for Kogarah LEP 2012. The development will also provide an unacceptable transition to the lower density zone (R2 Low Density Residential) on the opposite side of John Street. Specifically, the development proposes an insufficient setback from the front building façade at the upper levels (above 4 storeys).
It is noted that these issues of concern have been discussed with the applicant, who has advised that they do not intend to make any further design changes to address these issues of concern. Accordingly, an assessment has been undertaken in relation to the (amended) plans, and the outcome of this assessment is to recommend refusal of this DA.
DETERMINATION
31. THAT pursuant to Section 4.16(1) of the Environmental Planning and Assessment Act, 1979, as amended, the Council refuses Development Application No DA2017/0218 for demolition of existing structures and construction of a seven (7) storey residential flat building containing twenty three (23) units and basement parking at Lots 20-21 Section 17 DP1963 and known as 1-3 John Street, Kogarah Bay, for the following reasons:
1. Refusal Reason - Insufficient Information - Insufficient information has been submitted to enable Council to make a full and proper assessment of the proposal. In particular, an updated request for variation under Clause 4.6 has not been submitted in relation to the amended plans. Also, various DA documentation contains discrepancies, omissions, flawed recommendations and inaccuracies.
2. REF2.2 - Refusal Reason - Environmental Planning Instrument - Pursuant to Section 4.15(1)(a)(i) of the Environmental Planning and Assessment Act 1979, the proposed development does not comply with the relevant environmental planning instruments in terms of the following:
(a) Clause 4.3 – Height of Buildings under Kogarah LEP 2012. The development does not comply with the 21m maximum height limit prescribed in the maps under Clause 4.3 of Kogarah LEP 2012.
(b) Clause 4.6 – Exceptions to Development Standards. An amended request for variation under Clause 4.6 of Kogarah LEP 2012 has not been submitted in support of the amended plans. Therefore Council has no power to approve the development application.
(c) Clause 6.2 – Earthworks under Kogarah LEP 2012. The development application documentation contains insufficient information to enable a proper consideration of the excavation and geotechnical considerations associated with the basement car park.
3. REF2.6 - Refusal Reason – Impacts on the Environment - Pursuant to Section 4.15(1)(b) of the Environmental Planning and Assessment Act 1979, the proposed development is likely to have an adverse impact on the following aspects of the environment:
(a) Built environment – The proposed development will result in a building of an excessive height, and as one of the first residential flat developments in John Street, will establish an undesirable precedent and undermine the newly established planning controls in this location.
(b) Built Environment – the development will also provide an unacceptable transition to the lower density zone (R2 Low Density Residential) on the opposite side of John Street. Specifically, the development proposes an insufficient setback from the front building façade at the upper levels (above 4 storeys).
4. REF2.8 - Refusal Reason – Public interest - Pursuant to Section 4.15(1)(e) of the Environmental Planning and Assessment Act 1979, the proposed development is not considered to be in the public interest and is likely to set an undesirable precedent.
|
Attachment ⇩1 |
Proposed Site Plan - 1-3 John St Kogarah Bay |
|
Attachment ⇩2 |
Front and Rear Elevations - 1-3 John St Kogarah Bay |
|
Attachment ⇩3 |
Side Elevations - 1-3 John St Kogarah Bay |
|
Georges River Council - Georges River Local Planning Panel (LPP) - Monday, 7 May 2018 LPP012-18 1-3 John Street Kogarah Bay [Appendix 2] Front and Rear Elevations - 1-3 John St Kogarah Bay |
Page 47 |
|
Georges River Council - Georges River Local Planning Panel (LPP) - Monday, 7 May 2018 LPP012-18 1-3 John Street Kogarah Bay [Appendix 3] Side Elevations - 1-3 John St Kogarah Bay |
Page 48 |
|
Georges River Council – Local Planning Panel Monday, 7 May 2018 |
Page 49 |
REPORT TO GEORGES RIVER COUNCIL
LPP MEETING OF Monday, 07 May 2018
|
LPP Report No |
LPP013-18 |
Development Application No |
DA2017/0465 |
|
Site Address & Ward Locality |
19-23 Empress Street Hurstville Hurstville Ward |
||
|
Proposed Development |
Demolition of existing structures and construciton of a four storey residential flat building contianing twenty six units and basement car parking |
||
|
Owners |
JB Empress Pty Ltd |
||
|
Applicant |
Architecture and Building Works |
||
|
Planner/Architect |
Architect - Jim Apostolou (Architecture and Building Works), Planner - Delvin Planning |
||
|
Date Of Lodgement |
6/10/2017 |
||
|
Submissions |
One (1) |
||
|
Cost of Works |
$7,381,580.00 |
||
|
Local Planning Panel Criteria |
The proposal is a form of development to which State Environmental Planning Policy No 65 - Design Quality of Residential Flat Development applies |
||
|
List of all relevant s.4.15 matters (formerly s79C(1)(a)) |
Greater Metropolitan Regional Environmental Plan No 2 – Georges River Catchment, State Environmental Planning Policy No 55 - Remediation of Land, State Environmental Planning Policy No 65 – Design Quality of Residential Flat Development, State Environmental Planning Policy (Vegetation in Non-Rural Areas) 2017, State Environmental Planning Policy (Building Sustainability Index: Basix) 2004, Kogarah Local Environmental Plan 2012, Kogarah Development Control Plan 2013 |
||
|
List all documents submitted with this report for the Panel’s consideration |
Architectural plans Shadow diagrams Survey plan
|
||
|
Report prepared by |
Independent Assessment |
||
|
|
Summary of matters for consideration under Section 4.15 Have all recommendations in relation to relevant s4.15 matters been summarised in the Executive Summary of the assessment report? |
Yes |
|
Legislative clauses requiring consent authority satisfaction Have relevant clauses in all applicable environmental planning instruments where the consent authority must be satisfied about a particular matter been listed, and relevant recommendations summarised, in the Executive Summary of the assessment report? |
Yes |
|
Clause 4.6 Exceptions to development standards If a written request for a contravention to a development standard (clause 4.6 of the LEP) has been received, has it been attached to the assessment report? |
Not Applicable |
|
Special Infrastructure Contributions Does the DA require Special Infrastructure Contributions conditions (under s7.24)? |
Not Applicable |
|
Conditions Have draft conditions been provided to the applicant for comment? |
No, standard conditions have been attached |
|
Site Plan
|
Executive Summary
Proposal
1. Development consent is sought for demolition of the existing dwellings and ancillary structures and the construction of a four (4) storey residential flat building containing twenty six (26) residential apartments, two (2) levels of basement car parking containing thirty three (33) car parking spaces, storage areas for each apartment and a garbage store.
Site and Locality
2. The site is identified as 19-23 Empress Street, Hurstville where it consists of three (3) individual lots a legal description of Lots 36-38 Sec 6 of DP 1808. The site is a regularly shaped parcel of land and is located on the south western side of Empress Street with a secondary frontage to Finney Street. Cole Lane adjoins the site to the rear.
The site has an area of 1425sqm and street frontages to both Empress Street and Cole Lane of 30.18m and Finney Street of 47.24m.
The locality surrounding the subject site contains a mixture of single storey dwellings which are yet to be redeveloped, multi-dwelling housing and multi storey residential flat buildings of varying scales.
Zoning and Compliance with LEP Standards
3. The site is zoned R3 – Medium Density Residential under Kogarah Local Environmental Plan 2012 and the proposal is a permissible form of development with Council’s consent. The proposed development satisfies all relevant objectives contained within the LEP.
Development Control Plan
4. The proposed development generally satisfies the provisions of Kogarah Development Control Plan 2013. This is discussed in more detail in the body of this report.
Submissions
5. The application was neighbour notified from 20 October 2017 to 3 November 2017 where one (1) submission was received raising the following concern:
· Overshadowing.
Level of Determination
6. The application is referred to the Local Planning Panel for determination as the proposal is a form of development to which State Environmental Planning Policy No 65 – Design Quality of Residential Flat Development applies.
Conclusion
7. Having regard to the Heads of Consideration under Part 4.15 of the Environmental Planning and Assessment Act 1979, Development Application No. 2017/0465 is recommended for approval subject to suitable conditions.
Report in Full
DESCRIPTION OF PROPOSAL
8. Development consent is sought for demolition of the existing dwellings and ancillary structures and the construction of a new four (4) storey residential flat building containing twenty six (26) residential apartments, two (2) levels of basement car parking containing thirty three (33) car parking spaces, storage areas for each apartment and a garbage store.
A breakdown of the proposed development is provided as follows:
§ Demolition of all existing structures on the site and the carrying out of earthworks including excavation to facilitate the basement levels which are works that are ancillary to the primary works for which consent is sought.
§ The construction of a two (2) level basement carpark which is located partly above ground and is capable of providing parking for thirty-three (33) vehicles. Access to this carpark is provided off Cole Lane which adjoins the site at the rear.
§ The construction of a four (4) storey residential flat building containing twenty six (26) apartments and consisting of 2 x 1 bedroom apartments, 21 x 2 bedroom apartments and 3 x 3 bedroom apartments.
§ The provision of deep soil and landscaped area along the sites perimeters and two (2) communal open space areas located both at ground level along the south eastern side of the building and along the rear of the building accessed from level three (3).

Photomontage of proposed development
HISTORY
9.
6 Oct 17 The subject DA was submitted with Council.
20 Oct - 3 Nov 17 The application was placed on neighbour notification in accordance with KDCP 2013. One (1) submission was received.
18 Dec 17 The application was reviewed by Council’s external Design Review Panel (DRP).
6 Mar 18 Following an assessment of the application, the applicant was advised of various concerns with the proposed development. In summary, these included: amenity and privacy issues with the ground floor communal open space, relocation of hydrant booster, improved privacy at the southern corner of the level 3 communal terrace, replacement street trees, car parking layout and waste management.
16 Mar 18 The applicant submitted amended plans to address the concerns raised by Council. These plans are relied upon for assessment in this report.
12 Apr 18 The applicant submitted elevational shadow diagrams at the request of Council Officers.
DESCRIPTION OF THE SITE AND LOCALITY
10. The site is identified as 19-23 Empress Street, Hurstville where it consists of three (3) individual lots a legal description of Lots 36-38 Sec 6 of DP 1808. The site is a regularly shaped parcel of land and is located on the south western side of Empress Street with a secondary frontage to Finney Street. Cole Lane adjoins the site to the rear.
The site has an area of 1425sqm and street frontages to both Empress Street and Cole Lane of 30.18m and Finney Street of 47.24m. The site presents a notable fall from the northern corner of the site to the southern-most corner of the site along Cole Lane of approximately 4.7m. There are no substantial trees on the site or along the street frontage that are proposed to be removed as a result of the development. Currently the property is occupied by three (3) single storey detached dwellings and outbuildings.
Immediately to the south east of the site is a two (2) storey townhouse development consisting of five (5) townhouses that has been strata subdivided. To the north west on the opposite side of Finney Street is a single storey dual occupancy development. At the rear of the site is a three (3) storey residential flat building and two (2) storey townhouses. On the opposite side of Empress Street to the north east are three (3) and four (4) storey residential flat buildings.

View of the site looking north west from Empress Street View of the site looking south west from Empress Street

View of the site looking north east from Finney Street View along the rear of the site from Cole Lane
ZONING
11. The site is zoned R3 – Medium Density Residential under Kogarah Local Environmental Plan 2012 and the proposal is a permissible form of development with Council’s consent.

Excerpt from Zoning Map
APPLICABLE PLANNING CONTROLS
12.
§ Greater Metropolitan Regional Environmental Plan No 2 – Georges River Catchment
§ State Environmental Planning Policy No 55 - Remediation of Land
§ State Environmental Planning Policy (Building Sustainability Index: BASIX) 2004
§ State Environmental Planning Policy - Design Quality of Residential Apartment Development (SEPP 65)
§ State Environmental Planning Policy (Vegetation in Non-Rural Areas) 2017
§ Kogarah Local Environmental Plan 2012
§ Kogarah Development Control Plan 2013
PLANNING ASSESSMENT
13. The site has been inspected and the proposed development has been assessed under the relevant Section 4.15(1) "Matters for Consideration" of the Environmental Planning and Assessment Act 1979.
Environmental Planning Instruments
14. The extent to which the proposed development complies with the Kogarah Local Environmental Plan 2012 (KLEP 2012) is detailed and discussed in the table below.
|
Clause |
Standard |
Proposed |
Complies |
|
1.2 – Aims of the Plan |
In accordance with Clause 1.2(2) |
The development is consistent with the aims of the plan |
Yes |
|
1.4 – Definitions |
Residential Flat Building |
The proposed development is consistent with the definition of a “residential flat building” |
Yes |
|
2.3 – Zone objectives and Land Use Table |
Meets objectives of R3 – Medium Density Residential zone
Development must be permissible with consent |
Development meets objectives.
Is a permissible form of development with consent |
Yes |
|
4.1A – Minimum lots sizes |
A minimum 1000sqm lot area is required for the purpose of residential flat buildings |
A consolidated lot area of 1425sqm is provided |
Yes |
|
4.3 – Height of Buildings |
15m as identified on Height of Buildings Map |
14.92m |
Yes |
|
4.4 – Floor Space Ratio |
1:5:1 as identified on Floor Space Ratio map |
1.5:1 or 2138sqm |
Yes |
|
Clause 6.2 – Earthworks
|
To ensure that earthworks do not have a detrimental impact on environmental functions and processes, neighbouring uses, cultural or heritage items or features of the surrounding land.
|
The application includes excavation works for the basement car parking levels. Subject to the use of appropriate construction techniques and the excavation being undertaken in accordance with the recommendations of an appropriate geotechnical report, the proposed development is not anticipated to have any adverse impacts and will satisfy the objectives of this clause. |
Yes
|
|
Clause 6.3- Flood Planning
|
The subject site is identified in the Kogarah Bay Creek Floodplain Risk Management Study and Plan 2009 and is within the 1 in 100 year floor extents |
The proposed development has been designed to comply with the requirements established by the Flood Study prepared by WMA Water with respect to FPLs within the development ensuring that the proposal does not result in any off-site impacts. |
Yes - Discussed in more detail below |
Flood Planning
The subject site is identified in the Kogarah Bay Creek Floodplain Risk Management Study and Plan 2009 and is within the 1 in 100 year floor extents.
![]()

Excerpt from Flood Planning Map
The flood planning levels provided by Council apply to the whole of the site despite there being a significant level difference across the site from Empress Street to Cole Lane. In order to establish flood planning levels (FPLs) and 1%AEP Levels that are more specific to the site and relevant to the proposed development a detailed Flood Study has been undertaken by WMA Water.
The Flood Study concludes:
As per Council policy, habitable areas must have a minimum floor level that is at or above the FPL of the 1% AEP (100-year ARI) peak flood level plus a 0.5 m freeboard. Therefore, the minimum residential floor level for the proposed development was found to be 51.9 m AHD, corresponding to the FPL at location I.
As per Council policy, non-habitable areas, such as garages and basements, must be protected to a FPL of the 1% AEP (100-year ARI) peak flood level. This typically applies to all possible ingress points to the car park such as vehicle entrances and exits, ventilation ducts, windows, light wells, lift shaft openings, risers and stairwells. As such, the minimum non-habitable entry levels for the proposed development are:
• 49.4 m AHD at the driveway entrance fronting Cole Lane, with the driveway corresponding to location E and F, and;
• 51.4 m AHD at the pedestrian access stair-well at the west of the site, corresponding to location I.
This flood study was forwarded to Council’s Stormwater Engineer for comment who advised that the proposed development has been designed to comply with the requirements established by the Flood Study prepared by WMA Water with respect to FPLs within the development ensuring that the proposal does not result in any off-site impacts. This is discussed in more detail in the later stages of this report.
Environmental Planning and Assessment Regulations
15.
Clause 50(1A): How must a development application be made?
As required by Schedule 1of SEPP 65 and Clause 50(1A) of the Environmental Planning and Assessment Regulation, 2000, a Design Verification Statement has been prepared by registered architect Jim Apostolou (Registration No. 7490) which verifies the design of the development achieves compliance with the design quality principles set out in Schedule 1of SEPP 65, in addition to the assessment against the principles provided within this Statement.
Clause 92(1)(b): Demolition
Clause 92(1)(b) of the Environmental Planning and Assessment Regulation, 2000 (the Regulations) prescribes that the provisions of Australian Standard AS2601:2001 - The Demolition of Structures are to be taken into consideration, pursuant to Section 4.15(1A)(iv) of the Act, in the case of a development application for the demolition of a building. The application seeks consent for the demolition of all existing structures from the site. Council will impose suitable conditions on any consent granted for the proposal to ensure compliance with the provisions of Australian Standard AS2601:2001 - The Demolition of Structures.
State Environmental Planning Policies
16. Compliance with the relevant state environmental planning policies is detailed below.
|
State Environmental Planning Policy |
Complies |
|
Greater Metropolitan Regional Environmental Plan No 2 – Georges River Catchment |
Yes |
|
State Environmental Planning Policy (Building Sustainability Index BASIX) 2004 |
Yes |
|
State Environmental Planning Policy No 55 - Remediation of Land |
Yes |
|
State Environmental Planning Policy (Vegetation in Non-Rural Areas) 2017 |
Yes |
|
State Environmental Planning Policy - Design Quality of Residential Apartment Development (SEPP 65) |
Yes |
Deemed State Environmental Planning Policy – Georges River Catchment
17. All stormwater from the proposed development can be treated in accordance with Council’s Water Management Policy and would satisfy the relevant provisions of the Deemed State Environmental Planning Policy – Georges River Catchment
State Environmental Planning Policy (Building Sustainability Index BASIX) 2004
18. A BASIX Certificate has been issued for the proposed development and the commitments required by the BASIX Certificate have been satisfied.
State Environmental Planning Policy No 55 - Remediation of Land
19. The purpose of State Environmental Planning Policy No 55 – Remediation of Land (SEPP 55) is to ensure that land which is contaminated is identified and appropriately remediated so as to be suitable for the proposed development.
The site has long standing residential use and there are no known records of contaminating activity being conducted on the site. In view of the above and having regard to the provisions of SEPP No 55, the site is considered suitable for the proposed development.
State Environmental Planning Policy (Vegetation in Non-Rural Areas) 2017
20. The Vegetation SEPP regulates clearing of native vegetation on urban land and land zoned for environmental conservation/management that does not require development consent.
The Vegetation SEPP applies to clearing of:
1. Native vegetation above the Biodiversity Offset Scheme (BOS) threshold where a proponent will require an approval from the Native Vegetation Panel established under the Local Land Services Amendment Act 2016; and
2. Vegetation below the BOS threshold where a proponent will require a permit from Council if that vegetation is identified in the council’s development control plan (DCP).
The Vegetation SEPP repeals clause 5.9 and 5.9AA of the Standard Instrument - Principal Local Environmental Plan with regulation of the clearing of vegetation (including native vegetation) below the BOS threshold through any applicable DCP.
The proposed development does not involve the removal of any significant tress or vegetation. In this regard, there are references in the applicable DCP to maximising tree retention in any development proposal and the issue is addressed through consideration of the proposed built form and the proposed landscaping works that are to be undertaken on site. This issue is addressed in more detail in the accompanying Landscape Plan prepared by Isthmus Pty Ltd.
State Environmental Planning Policy No 65 – Design Quality of Residential Apartment Development
21. The proposed development is subject to the provisions of SEPP No 65, which aims to improve the quality of residential flat design in NSW.
The application has been accompanied by a design verification from a qualified designer that verifies that:
a) He or she designed or directed the design of the modification, and
b) The modifications achieve the design quality principles as set out in Part 2 of SEPP No 65, and
c) The modifications do not diminish or detract from the design quality, or compromise the design intent of the approved development.
The application was referred to the Design Review Panel for consideration at their meeting on 18 December 2017. The following response details the Panel’s comments and the Officer’s response to these design recommendations.
CONTEXT AND NEIGHBOURING CHARACTER
The site is located on the corner of Empress Street and Finney Street and has a rear lane on its eastern boundary. There is a significant level change across the site of approximately 4.5m from the northern corner to the southern corner of the site adjacent to Cole Lane. The south east side of the site comprises two (2) storey townhouses. On Empress Street and Finney Street residential flat buildings of between three (3) and five (5) storeys are evident. There are no significant trees on the site, and very few street trees on street frontages.
Officer Comment: Noted
BUILT FORM AND SCALE
The development complies with the density control and is marginally under the 15m height control. It complies with ADG setback requirements from the common boundary and has satisfactory setbacks from all street frontages. Although the site coverage exceeds the Kogarah DCP 2013 control, this is not an issue as there are substantial areas of deep soil planting provided.
The basic plan configuration is well considered and provides good orientation and amenity, as well as appropriate presentation to the street frontages. Minor modifications should be made such as relocation of the hydrant booster into a single consolidated area with letterboxes to maximise landscape area.
The stepping down of the southern corner to provide for an open roof top communal space on Level 3 relates sympathetically to the sloping context of the site.
Officer Comment: The hydrant booster has been relocated into a single consolidated area with the letterboxes. This area is has been located within the primary frontage adjacent to the entry stairs of the building along Empress Street.
DENSITY
Complying and acceptable.
Officer Comment: Noted
SUSTAINABILITY
Acceptable
Officer Comment: Noted
LANDSCAPE
The landscape proposals are to be commended; they are of high quality and provide a good diversity of species, planting layouts and diverse scale.
The communal roof top space on Level 3 would provide very high amenity landscape areas. Minor modifications to improve use of that space such as inclusion of a small enclosed amenity area with toilet and kitchenette facilities would be desirable. Consideration should be given to increasing the width of planters on the southern corner of the terrace to increase privacy for adjacent residents.
The communal open space proposed at ground level may pose some amenity and privacy issues for adjacent townhouses. It is recommended that this be re-designed to increase planting beds and to reduce gathering spaces, and hard surfaces areas. The seat/stairs facing south should be removed. Seating should carefully be configured so as to look away from the boundaries.
Street tree planting should be provided to Empress Street and Finney Street. It is recommended that a footpath be provided on Finney Street in accordance with Council standards.
Officer Comment: The planting bed located along the south eastern boundary adjacent to the communal open space has been redesigned and now presents an increased width that provides a more generous buffer between this area and the neighbouring development adjoining the site along this elevation. Both paved areas and the provision of seating have also been minimised in this area.
The planting of additional trees along both Empress and Finney Streets will be addressed with the imposition of conditions.
AMENITY
The ‘internal’ bedrooms in Units G3 and G4 and above should have the glass line moved forward and the additional space utilised for desk or window seat.
There would be significant overshadowing on the townhouses to the south, but given the site constraints and the compliance with height and setback controls, this is considered to be acceptable.
The balconies to Units G4 and above have clear glass balustrades and no screens are provided. Given the exposure to north western sun and privacy issues screens should also be provided.
The entry levels should be re-investigated to see whether the access ramp could be removed or minimised (as an intrusion into deep soil zone).
Overall the amenity is of good standard.
Officer Comment: The relocation of the glass line in the bedroom areas of Units G3 and G4 has not been undertaken as this would result in FSR non-compliance.
With regards to the lack of screening provided to Units G4 and above, this design element is considered to break up the façade along the north west elevation. The remainder of dwellings are provided with screens while internal blinds can be used to control sun exposure to these units. There are no anticipated privacy issues as this part of the building is a corner element that is well separated from adjacent residential properties.
With respect to the entry levels being re-investigated and consideration being given to the removal of the access ramp, this is not a possible outcome due to the flood affectation of the site.
SAFETY
Acceptable
Officer Comment: Noted
HOUSING DIVERSITY AND SOCIAL INTERACTION
Satisfactory
Officer Comment: Noted
AESTHETICS
Satisfactory
Officer Comment: Noted
Apartment Design Guide Compliance Table
22. The following design requirements of the ADG not detailed in the SEPP 65 discussion above are assessed in the table below.
|
Design Criteria |
Required |
Proposed |
Comply |
||||||||||||||||||||||||
|
Min. Internal Area |
|
|
Yes
|
||||||||||||||||||||||||
|
Private Open Space and Balconies |
For apartments at ground level or on a podium or similar structure, a private open space is provided instead of a balcony. It must have a minimum area of 15sqm and a minimum depth of 3m. |
All areas generally conform with the minimum area and width requirements. |
Yes |
||||||||||||||||||||||||
|
Min. Communal Open Space |
25% of site area (356.2sqm)
|
28.4% or 405sqm
|
Yes |
||||||||||||||||||||||||
|
Deep Soil Landscape |
7% (99.75sqm) |
26.3% (376sqm) |
Yes |
||||||||||||||||||||||||
|
Building Separation
|
Minimum required separation distances from buildings to the side and rear boundaries are as follows:
Separation distances between buildings on the same site should combine required building separations depending on the type of room. |
Building separation distances are provided as follows:
Finney Street frontage A 13m separation distance is provided measured from the external-most face of the building and balconies along the north western elevation to the centreline of Finney Street.
Cole Lane Frontage A 6m separation distance is provided measured from the external-most face of the building and balconies along the south western elevation to the centreline of Cole Lane.
South eastern boundary The majority of the south eastern façade presents a 6m separation distance apart from the southern-most bedroom areas of units G.1 and 1.1.
|
Yes
Yes
No (1) |
||||||||||||||||||||||||
|
Solar Access |
Min 70% of units (19 units) |
88.5% (23 units) |
Yes |
||||||||||||||||||||||||
|
Cross Ventilation |
Min 60% of units (16 units) |
61.5% (16 units) |
Yes |
Variations to Apartment Design Guide
(1) Building Separation
Part 3F-1 of the ADG sets criteria for the separation of buildings on the same site and between adjoining sites.
For buildings up to 12m high (4 storeys) habitable rooms and balconies are to be setback from the boundaries a minimum of 6m and 3m to non-habitable rooms. In this regard, the majority of the building has been appropriately sited and suitably setback from the boundaries allowing for adequate building separation. The southern-most bedroom areas of units G.1 and 1.1 present a 3m setback from the south-eastern boundary in lieu of the required 6m. This shortfall is not supported for the following reasons:
§ The neighbouring townhouse development located at 25-27 Empress Street which adjoins the site to the south east naturally sits on a lower ground contour than that of the proposed development to its north west. This issue compounded with the fact that the proposed development will need to be raised along the rear in this location to ensure that it is above the flood levels, adds an unreasonable level of building mass that will have a direct impact to the amenity of the townhouse in this location.
§ While it is acknowledged that the south eastern perimeter wall of these offending bedroom areas will be blank and will be void of any glazed elements, this design outcome only ensures that any potential overlooking will be restricted from these bedrooms into the neighbouring rearmost townhouse development to its south-east but fails to ensure that a balanced outlook is provided. These intruding bedrooms areas unreasonably add to the visual bulk of the building when viewed from this neighbouring lower set townhouse development adding to an already imposing built form.
It is recommended that the southern-most bedroom areas of Units G.1 and 1.1 be deleted and a 6m separation be provided from these units to the south-eastern side boundary in line with the ADG requirements.
Draft Environmental Planning Instruments
Draft Environment SEPP
23. The Draft Environment SEPP was exhibited from 31 October 2017 to 31 January 2018.
This consolidated SEPP proposes to simplify the planning rules for a number of water catchments, waterways, urban bushland, and Willandra Lakes World Heritage Property.
Changes proposed include consolidating the following seven existing SEPPs:
· State Environmental Planning Policy No. 19 – Bushland in Urban Areas
· State Environmental Planning Policy (Sydney Drinking Water Catchment) 2011
· State Environmental Planning Policy No. 50 – Canal Estate Development
· Greater Metropolitan Regional Environmental Plan No. 2 – Georges River Catchment
· Sydney Regional Environmental Plan No. 20 – Hawkesbury-Nepean River (No.2-1997)
· Sydney Regional Environmental Plan (Sydney Harbour Catchment) 2005
· Willandra Lakes Regional Environmental Plan No. 1 – World Heritage Property.
The proposal is not inconsistent with the provisions of this Draft Instrument.
Development Control Plans
24. The proposal has been assessed under the relevant sections of the Kogarah Development Control Plan 2013 (KDCP 2013). The relevance of a number of controls expressed within KDCP 2013 are contrary to the scale of development now permitted under KLEP 2012. As a consequence, the proposal does seek to vary a number of the controls within the DCP, including significant variations of the height and FSR controls
In any case, the provisions of KDCP 2013 have been considered and in particular, the requirements of Part C2 – Medium Density Housing and Appendix 2 – Specific Precincts (Hurstville). A compliance table is provided below which outlines the proposal’s compliance with the relevant controls contained within KDCP 2013.
|
Controls |
Required |
Proposed |
Comply |
|
Part B2_ Tree Management and Greenweb |
The objectives of this Part are: (a) Establish the criteria governing the removal or pruning of trees. (b) Ensure that appropriate information is submitted to Council regarding tree management. |
This was discussed in detail under the State Environmental Planning Policy (Vegetation in Non-Rural Areas) 2017 commentary.
|
Yes |
|
Part B4 – Parking and Traffic |
The parking requirement for a residential flat building is: (i) 1 space per
1-bedroom apartment (iii) 2 spaces per 3-bedroom apartment (iv) 1 visitor space per 5 apartments 1 designated car wash bay which may also be a visitor space. |
See discussion in Part C2 – Medium Density Housing – Specific Precincts (Hurstville)
|
Discussed In Part C2 |
|
Part B5 – Waste Management and Minimisation |
Submit a Waste Management Plan with DAs involving: · demolition; · construction of a new building(s); or · change of use or alterations/additions to existing premises (only when this would result in a change of waste generation). For residential developments that include six or more dwellings, a dedicated caged area may be required within the bin room for the storage of discarded bulky items which are awaiting removal. This area must be easily accessible to all residents. Waste storage facilities must be easily accessible from residential units and appropriately located to facilitate the removal of waste to the Council collection point. Waste and recycling storage areas must be visually and physically integrated into the design of the development. Design elements such as fencing, landscaping and roof treatments may be used to screen the waste and recycling storage area |
The proposal is accompanied by a waste management Plan.
A waste storage area has been provided within the basement area readily accessed off Cole Lane.
The relevant details submitted with this application were referred to Council’s Waste Officer for comment. This is discussed in more detail in the referrals section of this report. |
Yes |
|
Part B6 – Water management |
All developments requiring Council approval within the City of Kogarah require consideration of the Water Management Policy. Habitable floor levels are to have a minimum of 500mm freeboard above the 100-year ARI flood level. Basements are to be protected up to and including the 100-year ARI flood level.
|
The proposed development is within a flood planning area and habitable floors comply with the required FPLs and basement protection as specified in the Flood Study prepared by wma water dated 14 September 2017. A detailed stormwater management plan prepared by Australian Consulting Engineers dated August 2017 has been submitted with this application. The relevant details submitted with this application were referred to Council’s Stormwater Engineer for comment. This is discussed in more detail in the referrals section of this report.
|
Yes |
|
Part C2- Medium Density Housing |
|||
|
Site Coverage
|
Site Coverage: 45% (641.6sqm) |
The proposed development has a site coverage of 55.8% (796sqm). |
No (1) |
|
Open Space |
Common Open Space Must be provided at the rate of 30sqm/ dwelling for dwellings having balconies as the only form of private open space, with a minimum overall area of 75sqm, and with minimum dimensions of 5m. This equates to 660sqm of Common Open Space
Private Open Space Where provided, courtyards for ground floor units must be a minimum of 35sqm/ dwelling, with a minimum dimension of 3m. Otherwise all dwellings must be provided with a balcony 12sqm in area with a minimum dimension of 3m.
|
The proposal provided 28.4% or 405sqm.
In accordance with clause 6A of SEPP No 65 the provisions within a DCP that relate to “private open space and balconies” have no effect and the provisions of the ADG are applicable.
Accordingly, compliance with the private open space and balcony requirements of the ADG are discussed in the SEPP No 65 Statement. |
No (2)
Complies with ADG |
|
Impervious Area |
55% or 784.2sqm |
73.6% or 1049sqm |
No (3) |
|
Views and View Sharing |
Development shall provide for the reasonable sharing of views.
|
Given the nature of surrounding developments and that the land rises to the north-west, it is not anticipated that any unreasonable level of view loss would be incurred by the surrounding properties that would warrant amendment of the application. |
Yes
|
|
Adaptable and Accessible Housing |
The minimum number of adaptable units designed in accordance with AS4299 - 1995 Adaptable Housing must be incorporated into the above developments: • 21-30 units – 3 adaptable units The adaptable units must comply with the relevant Australian Standards and be certified as “adaptable housing units”. |
The proposed development provides three (3) adaptable apartments being apartments G.2, 1.2 and 2.2. |
Yes |
|
Part C2- Medium Density Housing- Appendix 2- Specific Precincts (Hurstville) |
|||
|
Housing Types |
§ Provide a range of medium density housing. § Address streets with well-designed façades and windows. § Allow building to side boundaries without windows to create continuous street façades and to avoid problems of overlooking backyards. § Reduce walking distances and the need for lifts with maisonette apartments on upper levels. § Create extensive views to the south from the upper levels of residential buildings, by stepping building heights down towards the south. § Minimise environmental impact of taller buildings by relating site sizes and courtyard sizes to building height.
|
The development consists of a single building with a height of four (4) storeys accommodating twenty-six (26) residential apartments and two (2) levels of basement car parking with access off Cole Lane at the rear. The development appropriately addresses Empress Street, Finney Street and Cole Lane with differentiated facades The locality is characterised by an eclectic mix of residential development types with two (2) storey townhouses and three (3) to four (4) storey residential flat developments being most prevalent and dominating the streetscape. The development is of a scale and form that is anticipated within the R3 – Medium Density Zone and reflects the desired future character having regard to the height & FSR provisions of KLEP 2012 (Amd No 2) - New City Plan. |
Yes |
|
Building Heights |
A maximum height of three (3) storeys for the subject site.
|
The height controls are not considered relevant to the proposed development as it is reliant on the maximum building height of 15m specified within KLEP 2012 being the prevailing document. |
Complies with KLEP 2012 |
|
Density |
A maximum floor space ratio of 1:1.
|
The density controls are not considered relevant to the proposed development as it is reliant on the allowable FSR of 1.5:1 specified within KLEP 2012 The proposed development has an FSR of 1.5:1 (2138sqm) which complies with the allowable 1.5:1 (2138.7sqm). |
Complies with KLEP 2012 |
|
Site Area |
§ Maximum development densities and heights may only be achieved on sites which exceed the site areas. § Individual housing lots are not to be left isolated between larger development parcels. The minimum development lot size is two existing housing lots. § In the case of new development, the lots shown in the building footprints shall be consolidated and developed as a single parcel of land (with the exception 9-19 West Street, South Hurstville). |
The site has area of 1425.8sqm which exceeds the minimum area of 1000sqm specified. Clause 4.1A of KLEP 2012 specifies a minimum site area of 1000sqm for a “residential flat building” and this is the applicable standard relevant to the proposed development. The proposed development consolidates the three (3) identified parcels of land into a single development site.
|
Yes |
|
Minimum Unit Sizes |
Unit sizes are to comply with the following: § 1 bedroom – 75sqm § 2 bedroom – 100sqm § 3 bedroom – 115sqm
|
In accordance with clause 6A of SEPP No 65 the provisions within a DCP that relate to “apartment size and layout” have no effect and the provisions of the ADG are applicable. Accordingly, compliance with the apartment size and layout requirements have been discussed within the ADG compliance table earlier in this report. |
Complies with ADG |
|
Building Setbacks |
§ Site buildings within building footprints. § Set buildings back a minimum 5m from the property boundary on the street. § Set buildings back a minimum of 5m from the new front property boundary where property boundaries are set back 3.05m due to street widening. § Build walls without windows where building envelopes show the potential to build to the side boundary. |
The building footprint indicated by the DCP is L shaped and reflects a much lesser density of development which is inconsistent with what has been proposed by this development. |
No (4) |
|
Visual and Acoustic Privacy |
Site buildings within building footprints. § Set buildings back a minimum 5m from the property boundary on the street. § Set buildings back a minimum of 5m from the new front property boundary where property boundaries are set back 3.05m due to street widening. § Build walls without windows where building envelopes show the potential to build to the side boundary. |
In accordance with clause 6A of SEPP No 65 the provisions within a DCP that relate to “visual privacy” have no effect and the provisions of the ADG are applicable. Accordingly, compliance with “visual privacy” requirements of the ADG are discussed in the SEPP No 65 Statement. Consent condition will be imposed relating to noise control. |
Yes |
|
Solar Access |
§ Dwellings and courtyard areas of existing attached dwellings, multi dwelling housing and dual occupancy development are not to be overshadowed for a period of more than 3 hours between 9.00am and 3.00pm in mid-winter. § The setback requirements and private open space areas proposed should result in acceptable levels of solar access to new dwellings. |
Solar access to the courtyards and windows on the north western side of the adjoining townhouse developments at 25–27 Empress Street and 32–36 West Street will be adversely impacted upon by the proposed development.
|
No (5) |
|
Parking |
§ Provide 1 car space per dwelling. 2. § Provide one visitor car space per 5 dwellings. § 100% of car parking is to be provided on-site. § Parking spaces are not to be used as a storage space. § Vehicles are to enter and exit parking areas in a forward direction. § All parking is to be located below ground level. Council will permit part of the car parking area to be above ground level for ventilation (up to one metre), and will also consider variations to this on steeply sloping sites provided the general objectives are met. § The area of excavation for parking and other works below ground level is restricted to the footprint.
|
Council’s DCP requirement for on-site car parking is: 1 space per apartment (26 spaces), 1 visitor space per 5 apartments (5.2 spaces) Total required: 32 spaces However, in accordance with the provisions of SEPP No 65, the ADG and the Department of Planning & Environment’s technical note as Hurstville is identified as a Strategic Centre within the Plan for Growing Sydney and as the site is located within 800m of a Railway Station the RMS standards are applicable. Therefore, the standards for a Metropolitan Regional Centre (CBD) as contained within RMS Guide to Traffic Generating Developments can be applied resulting in a parking requirement of 29 spaces. Accordingly, as the proposed development provides 33 spaces within the basement it complies with both the RMS and DCP requirements. The proposed basement parking area protrudes well above the ground level at the rear of the building and is not located a maximum 1m above the ground level. |
No (6) |
|
Landscape |
§ In general, the building envelope shown for the building above the ground should also be the same for any building works below ground level. The area of excavation for parking and other works below the ground level is restricted to the footprint area. This ensures that there are sufficient areas for deep planting of trees and that stormwater runoff is minimised. § Advanced trees or shrubs are to be planted. Plant street frontages with full canopied trees to visually relate taller and lower developments in the street and to enhance front entrances to buildings. § Advanced tall tree species should be planted in the front of units that will integrate with the proposed streetscape trees to define the public domain and create a dense cover of tree screening. Provision should be made for deep soil planting (ie the planting of large trees) around the perimeter of the building and an area within the courtyard. Deep soil landscaping areas should be provided where possible within the side, front and rear setback areas. § Minimise impervious surfaces such as hard-paved outdoor area, footpaths, etc, to reduce stormwater runoff. § Maximise pervious surfaces by using porous pavements for car parks, footpaths and outdoor areas to promote filtration. |
Generally, the building footprint above the ground is consistent with the basement car parking area. Significant areas of deep soil are provided along all street frontages and along the south-western boundary of the site fronting Cole Lane. These areas allow for the provision of canopy trees and screening plants that will integrate the development into the streetscape and adjoining developments.
|
Yes |
|
Fencing |
§ Front fences must complement the streetscape where a pattern or style is established. § All fencing to the street is to be of a low masonry construction and must not exceed 1m in height. If street facing fences are over 1m in height they should be open style construction eg picket and must not exceed 1.8m. § Front fences must not be made of colourbond sheets or closed timber palings. Preferred materials are masonry, ornate timber (eg pickets), modern ornate metal grilles or a combination of these. § Privacy for courtyards/units should be achieved through the provision of shrubs and trees. |
Front fences to the courtyards and terraces along both Empress and Finney Streets will be dark and anodised with an aluminium finish. The proposed fencing will be of a palisade form promoting casual surveillance to these street frontages. The proposed fencing is considered to complement the proposed development and existing streetscape.
|
Yes |
|
Retaining Walls |
§ Walls should be designed to complement the design of the development and the streetscape. § Walls should be designed to minimise runoff to neighbouring properties or public land. § Walls should not interfere with natural drainage. § Retaining walls should have a maximum height of 600mm and comply with relevant Australian Standards |
As a result of the flood liable nature of the land, no fill or retaining walls are proposed. The development has been designed so as to not interfere with the natural movement of water.
|
Yes |
|
Roof Line |
§ Provide a variety of roof forms, including hips, gables, dormers, pergolas and the like. § Emphasise corners and building entrances with tower elements and canopies. § Build floor space into roof areas with dormer windows, to reduce apparent building height and create an interesting roof scape. |
The flat roof form is not inconsistent with existing roof forms in the locality and is reflective of the likely future character if the area.
|
Yes |
|
Façade Articulation |
Articulate façades with balconies, bay windows, entrance canopies and a range of materials and colours.
|
The proposal incorporates a variety of architectural elements, materials and colours that responds to the street and setting. Architectural elements such as entries, balconies, screens and shading devices provide interest that allows the building to contribute positively in the streetscape. |
Yes |
|
Building Entrances |
§ Building entrances are to be clearly marked with canopies, large doorways and other architectural elements. § Building entrances are to be accessible from the street, preferably directly addressing the street frontage |
An entry awning and wall feature inclusive of timber look cladding will ensure that the building entry is readily identifiable.
|
Yes |
|
Balconies |
Balconies are to be recessed into the building façade. Projecting balconies are desirable only where the balcony is also recessed into the façade. |
The balconies are recessed into the building their form and design ensures that they add interest and do not detract from the façade. |
Yes |
|
Service/Lifts |
Accommodate refuse areas in discreet enclosed areas on site.
All connection points to services are to be incorporated within buildings or associated hard or soft landscaping.
Service connections are not to cause a hazard to pedestrians or vehicles.
All residential flat buildings that have more than two habitable storeys are required to have lifts. |
All servicing and waste collection shall take place from Cole Lane at the rear of the site. As required all floors and common areas of the development are serviced by a lift.
|
Yes |
Variations to the DCP provisions
(1) Site Coverage
The proposed development has a site coverage of 55.8% (796sqm) in lieu of the maximum allowable 45% (641.6sqm). This non-compliance is largely the result of the DCP provisions not being reflective of the density controls permitted under the LEP. While numerically non-compliant, the proposed site coverage does not promote an overly dominant building form and will not unreasonably deny the opportunity for the provision of deep soil landscaping along the site perimeters.
The non-compliance is supported.
(2) Common Open Space
The proposal provides 28.4% or 405sqm of communal open space in two (2) separate locations on both the ground and third floor level (See excerpts below) that fails to comply with Council DCP controls of 660sqm. While failing to comply with Council’s DCP provisions, the proposed areas combined exceed the minimum ADG requirements for communal open space which in this requires 356.4sqm or 25%. It is considered that as the proposed communal open space satisfies the ADG requirement and is adequate for the scale of development providing enabling opportunities for social interaction between residents.
The non-compliance is supported.

Excerpt from architectural plans depicting Communal Open Space at ground level.

Excerpt from architectural plans depicting Communal Open Space at level three (3)
(3) Impervious Area
Council’s DCP allows 784.2sqm impervious area whereas 1049sqm (73.6%) of the proposed development could be considered impervious. However, the proposal provides 512sqm (35.9%) of landscape area at ground level of which 376sqm (26.3%) is considered to be located within deep soil zones. This area significantly exceeds the ADG requirement of 99.75sqm (7%).
Additionally, the provided landscaped area is capable of facilitating the provision of generous amounts of landscaping which has been detailed in the landscape plan accompanying this application. In addition, there are significant areas of soft landscaping in the communal open space area on the third floor while a 5,600 litre rainwater storage tank has been provided further assisting in the offsetting of this numerical non-conformity.
The non-compliance is supported.
(4) Building Setbacks
It is considered that having regard scale and nature of development anticipated by KLEP 2012, the strict application of the building footprint and setbacks is not appropriate.
In any case, the proposed development does (in part) reflect the building footprint and setbacks specified in the DCP.
The DCP requires minimum street setbacks of 5.0m and the proposed development observes the following street setbacks:
Empress Street: 5.0m
Finney Street: 3.0m
Cole Lane: 3.0m
While the street setbacks to both Finney Street and Cole Lane are non-compliant, it is considered that they are both acceptable as:
The proposed 3.0m setback to Finney Street is not inconsistent with existing developments on street corners within the locality that have varied setbacks to Finney Street and do not demonstrate a cohesive pattern.
Both the Finney Street and Cole Lane setbacks are deep soil areas that will accommodate generous amounts of landscaping that will allow the development to integrate into the streetscape while achieving the anticipated density. Separation between buildings has been generally provided in accordance with the ADG requirements. A consent condition will be imposed requiring the deletion of the southern-most bedroom areas of Units G.1 and 1.1. Upon deletion of these bedrooms, the proposal will observe strict compliance with the ADG separation requirements.
Overall, the proposal will provide an improved and high-quality streetscape frontage that will make a positive contribution to the locality and meet the relevant objectives of the control.
The non-compliance is supported.
(5) Solar Access
Given the orientation of the subject site to neighbouring properties and proposed development reflecting the desired future character anticipated by the height and floor space ratio specified within KLEP 2012, largely unavoidable shadowing will be cast on neighbouring developments. This impact is most notably evident upon review of the 21 June shadow diagram submitted as part of the architectural plan set which indicates a considerable amount of shadow being cast by the proposed development over the existing townhouse developments located at 25-27 Empress Street and 32-36 West Street.

Excerpt from shadow diagrams depicting 21 June 9:00am proposed/existing shadow

Excerpt from shadow diagrams depicting 21 June 12:00pm proposed/existing shadow

Excerpt from shadow diagrams depicting 21 June 3:00pm proposed/existing shadow
The level of impact being incurred by these neighbouring properties is acceptable as:
§ The existing shadow cast into the courtyards by the existing dwelling on the site, boundary fencing, pergolas and the townhouses themselves is extensive.
§ The proposed development generally complies with the separation requirements specified within the ADG and has also incorporated varied setbacks and heights to the south-eastern boundary so as to provide opportunities for increased solar access. These opportunities will again be improved with the recommended deletion of the southern-most bedroom areas of Units G.1 and 1.1.
§ The adjoining properties would still receive sunlight on 21 September.
(6) Parking
Access to the basement garage is proposed from Cole Lane. Due to the fall of the land and the flood liable nature of the land, a considerable portion of the basement carpark will be located above ground. This design outcome is contrary to the DCP requirements which outlines that the parking area is to be a maximum of 1m above the ground level for the purpose of providing natural ventilation. In this regard, the site characteristics and constraints do result in the basement protruding up to 2.5m within the southern-most corner of the building. In order to alleviate any potential visual impacts that may result from this non-compliance, the proposed basement is generously setback from the site perimeters in order to allow for the provision of deep soil landscaped areas within these areas. The proposed planting in these locations will assist in obscuring the protruding basement wall from both the south eastern neighbouring property and from Cole Lane.
Additionally, the deletion of the southern-most bedroom areas of Units G.1 and 1.1 will result in visually less dominant facades to both the south eastern neighbouring property and to Cole Lane. This outcome will also assist in offsetting any additional building bulk resulting from the protruding basement within the southern corner of the building where the non-compliance is most evident.
SECTION 94 CONTRIBUTIONS
25. The proposed development requires the payment of $227,493.73 of Section 94 contributions under the provisions of the Kogarah Section 94 Development Contributions Plan.
IMPACTS
26.
Natural and Built Environment, Social and Economic Impacts
The proposed development is of a scale and character that is in keeping with other recent developments that have been constructed in the locality. Accordingly, the proposal is not considered to have a significant impact on the natural and built environment of the locality. The proposal is unlikely to cause any unreasonable social and/or economic impacts.
Suitability of the site
It is considered that the proposed development is of a scale and design that is suitable for the site having regard to its size and shape, its topography, vegetation and relationship to adjoining developments.
SUBMISSIONS AND THE PUBLIC INTEREST
26. In accordance with the provisions of Council’s notification requirements, the application was placed on neighbour notification for a period of fourteen (14) days where adjoining property owners were notified in writing of the proposal and invited to comment. A total of one (1) submission was received raising the following concern.

Map showing location of submitter
Overshadowing
The owner of the property located at 2/28 West Street raised concerns to the overshadowing impact.
Comment: Upon review of the shadow diagrams accompanying this application, it appears that the residential apartment block that the objector resides in will only receive a minor amount of additional overshadowing on 21 June from 9:00am to 11:00am. This apartment block does not incur any overshadowing from this development from this time onwards. The objector will receive in excess of the minimum amount of solar access as required by both the ADG and Council’s DCP controls.
REFERRALS
Council Referrals
27.
Tree Officer
No objections were raised subject to conditions. Those conditions have been incorporated into the recommended conditions.
Waste Officer
Initial review by Council’s Waste Officer raised concern to the size of the bin room and its ability to cater for the required amount of bins. The original plans noted the provision of eleven (11) garbage and eleven (11) recycling bins in lieu of the required thirteen (13) garbage and recycling bins. The architectural plans have since been amended and the area enlarged where it is now capable of housing the required amount of bins. Standard waste conditions will be incorporated into the recommended conditions.
Stormwater Engineer
No objections were raised subject to conditions. Those conditions have been incorporated into the recommended conditions.
Environmental Health Officer
Council’s Environmental Health Officer raised no objection to the proposed development subject to the imposition of conditions.
CONCLUSION
28. Development consent is sought for demolition of existing structures and construction of a new four storey residential flat building containing twenty six (26) residential units and basement car parking at 19-23 Empress Street, Hurstville.
The application has been assessed having regard to the Heads of Consideration under Section 4.15 of the Environmental Planning and Assessment Act 1979, the provisions of the relative State Environmental Planning Policies, Local Environmental Plans and Development Control Plans. The proposed development achieves an acceptable level of compliance with those requirements and does not cause any unreasonable impacts upon neighbouring properties and/or the streetscape.
The application was notified and advertised in accordance with the Development Control Plan. A total of One (1) submission was received objecting to the development. The issues raised have been addressed in this report and are not considered to warrant further plan amendment or outright refusal of the application.
The application is recommended for approval.
DETERMINATION AND STATEMENT OF REASONS
29.
Statement of Reasons
1. The proposed development provides housing within a medium density residential environment in accordance with the applicable zone objectives.
2. The proposed development, subject to the recommended conditions, is consistent with the objectives of SEPP 65 –Design Quality of Residential Flat Development and Kogarah Local Environmental Plan 2012.
3. The proposed development is consistent with the objectives of the applicable development control plan, being Kogarah DCP 2013.
4. The proposed development is considered to be of an appropriate scale and form for the site and the character of the locality.
5. In consideration of the aforementioned reasons, the proposed development is a suitable response to the site and its approval is in the public interest.
30. THAT pursuant to Section 4.16(1) of the Environmental Planning and Assessment Act 1979, as amended, the Council grants development consent to Development Application DA2017/0465 for demolition of the existing structures and construction of new four storey residential flat building containing twenty six (26) residential units and basement car parking at 19-23 Empress Street, Hurstville, subject to the attached conditions.
Schedule A - General Conditions
GENERAL CONDITIONS
These conditions have been imposed to ensure that the development is carried out in accordance with the approved plans and to ensure that the appropriate fees and bonds are paid in relation to the development.
1. DEV6.1 - Approved Plans - The development must be implemented in accordance with the approved plans and supporting documentation listed below which have been endorsed by Council’s approved stamp, except where marked up on the plans and/or amended by conditions of this consent:
|
Description |
Reference No. |
Date |
Revision |
Prepared by |
|
Architectural Plans |
||||
|
Site Plan |
DA-1000 |
14/3/18 |
B |
AB Works |
|
Basement 2 |
DA-1010 |
14/3/18 |
B |
AB Works |
|
Basement 1 |
DA-1020 |
14/3/18 |
B |
AB Works |
|
Ground floor Plan |
DA-1030 |
14/3/18 |
B |
AB Works |
|
First Floor Plan |
DA-1040 |
14/3/18 |
B |
AB Works |
|
Second Floor Plan |
DA-1050 |
14/3/18 |
B |
AB Works |
|
Third Floor Plan |
DA-1060 |
14/3/18 |
B |
AB Works |
|
Roof Plan |
DA-1070 |
14/3/18 |
B |
AB Works |
|
North East Elevation |
DA-1110 |
14/3/18 |
B |
AB Works |
|
North West Elevation |
DA-1120 |
14/3/18 |
A |
AB Works |
|
South West Elevation |
DA-1130 |
14/3/18 |
B |
AB Works |
|
South East Elevation |
DA-1140 |
14/3/18 |
A |
AB Works |
|
Section A |
DA-1150 |
14/3/18 |
A |
AB Works |
|
Section B |
DA-1160 |
14/3/18 |
A |
AB Works |
|
Adaptability Details |
DA-1500 |
14/3/18 |
A |
AB Works |
|
Stormwater Plans |
||||
|
Cover Sheet, Legend & Drawing Schedule |
D00 |
21/8/17 |
A |
ACE |
|
Basement 2 |
D01 |
21/8/17 |
A |
ACE |
|
Basement 1 |
D02 |
21/8/17 |
A |
ACE |
|
Ground Floor |
D03 |
21/8/17 |
A |
ACE |
|
Drainage Details1 |
D04 |
21/8/17 |
A |
ACE |
|
Sections & Details |
D05 |
21/8/17 |
A |
ACE |
|
Erosion & Sediment Controls |
D10 |
21/8/17 |
A |
ACE |
|
Landscape Plans |
||||
|
Ground Floor |
IS0237DA1 |
3/10/17 |
A |
Isthmus |
|
Third Floor |
IS0237DA2 |
3/10/17 |
A |
Isthmus |
SEPARATE APPROVALS UNDER OTHER LEGISLATION
These conditions have been imposed to ensure that the applicant is aware of any separate approvals required under other legislation, for example: approvals required under the Local Government Act 1993 or the Roads Act 1993.
2. APR7.4 - Vehicular Crossing - Major Development - The following vehicular crossing and road frontage works will be required to facilitate access to and from the proposed development site:
(a) Construct a metre wide footpath for the full length of the frontage of the site (Empress Street and Finney Street) in in accordance with Council’s Specifications applying at the time construction approval is sought.
(b) The thickness and design of the driveway shall be in accordance with Council’s Specifications applying at the time construction approval is sought.
(c) Construct a new 150mm high concrete kerb with 450mm wide gutter for the full frontage(s) of the site in in accordance with Council’s Specifications for kerb and guttering, applying at the time construction approval is sought.
(d) Any existing vehicular crossing and/or laybacks which are redundant must be removed. The kerb and gutter, any other footpath and turf areas shall be restored at the expense of the applicant. The work shall be carried out in accordance with Council’s specification, applying at the time construction approval is sought.
Constructing a vehicular crossing and/or footpath requires separate approval under Section 138 of the Roads Act 1993, prior to the commencement of those works.
3. APR7.8 - Below ground anchors - Information to be submitted with S68 Application under LGA 1993 and S138 Application under Roads Act 1993 - In the event that the excavation associated with the basement carpark is to be supported by the use of below ground (cable) anchors that are constructed under Council’s roadways/footways, an application must be lodged with Council under Section 68 of the Local Government Act 1993 and the Roads Act 1993 for approval, prior to commencement of those works. The following details must be submitted.
(a) That cable anchors will be stressed released when the building extends above ground level to the satisfaction of Council.
(b) The applicant has indemnified Council from all public liability claims arising from the proposed works, and provide adequate insurance cover to the satisfaction of council.
(c) Documentary evidence of such insurance cover to the value of $20 million.
(d) The applicant must register a non-terminating bank guarantee in favour of Council for the amount of.
The guarantee will be released when the cables are stress released. In this regard it will be necessary for a certificate to be submitted to Council from a structural engineer at that time verifying that the cables have been stress released.
(e) That in the event of any works taking place on Council’s roadways/footways adjoining the property while the anchors are still stressed, all costs associated with overcoming the difficulties caused by the presence of the ‘live’ anchors will be borne by the applicant.
4. APR7.2 - Section 138 Roads Act 1993 and Section 68 Local Government Act 1993 - Unless otherwise specified by a condition of this consent, this Development Consent does not give any approval to undertake works on public infrastructure.
Separate approval is required under Section 138 of the Roads Act 1993 and/or Section 68 of the Local Government Act 1993 for any of the following activities carried out in, on or over a public road (including the footpath) listed below.
An application is required to be lodged and approved prior to the commencement of any of the following works or activities;
(a) Placing or storing materials or equipment;
(b) Placing or storing waste containers or skip bins;
(c) Erecting a structure or carrying out work
(d) Swinging or hoisting goods over any part of a public road by means of a lift, crane or the like;
(e) Pumping concrete from a public road;
(f) Pumping water from the site into the public road;
(g) Constructing a vehicular crossing or footpath;
(h) Establishing a “works zone”;
(i) Digging up or disturbing the surface of a public road (eg Opening the road for the purpose of connections to utility providers);
(j) Stormwater and ancillary works in the road reserve;
(k) Stormwater and ancillary to public infrastructure on private land; and
(l) If any excavation is to be supported by the use of below ground (cable) anchors that are constructed under Council’s roadways/footways.
These separate activity approvals must be obtained and evidence of the approval provided to the Certifying Authority prior to the issue of the Construction Certificate.
The relevant Application Forms for these activities can be downloaded from Council’s website www.georgesriver.nsw.gov.au. For further information, please contact Council’s Customer Service Centre on (02) 9330 6400.
5. APR7.5 - Road Opening Permit - A Road Opening Permit must be obtained from Council, in the case of local or regional roads, or from the RMS, in the case of State roads, for every opening of a public road reserve to access services including sewer, stormwater drains, water mains, gas mains, and telecommunications before the commencement of work in the road.
REQUIREMENTS OF OTHER GOVERNMENT AGENCIES
These conditions have been imposed by other NSW Government agencies either through their role as referral bodies, concurrence authorities or by issuing General Terms of Approval under the Integrated provisions of the Environmental Planning and Assessment Act 1979.
6. GOV8.13 - Notice of Requirements for a Section 73 Certificate - A Notice of Requirements of what will eventually be required when issuing a Section 73 Compliance Certificate under the Sydney Water Act 1994 must be obtained from Sydney Water Corporation. Application must be made through an authorised Water Servicing Co-ordinator. Please refer to the ‘Plumbing, building and developing’ section of the web site www.sydneywater.com.au then refer to ‘Providers’ under ‘Developing’ or telephone 13 20 92 for assistance.
Following application, a ‘Notice of Requirements’ will advise of water and sewer infrastructure to be built and charges to be paid. Please make early contact with the Co-ordinator, as it can take some time to build water/sewer pipes and this may impact on other services and building, driveway or landscape design.
The Notice of requirements must be submitted prior to the commencement of work. A Section 73 Compliance Certificate will be required at the completion of development in accordance with further conditions.
7. GOV8.14 - Section 73 Compliance Certificate - A Section 73 Compliance Certificate under the Sydney Water Act 1994 must be submitted to the PCA prior to the issue of the Occupation/Subdivision Certificate.
8. GOV8.15 - Electricity Supply - An application is required to be made to Ausgrid for a network connection. This may require the network to be extended or its capacity augmented. Evidence of this application being lodged with Ausgrid is required to be provided to the Certifying Authority prior to the issue of a Construction Certificate. For further details, you are advised to contact Ausgrid on 13 13 65 or www.ausgrid.com.au (Business and Commercial Services).
PRIOR TO THE ISSUE OF THE CONSTRUCTION CERTIFICATE
These conditions either require modification to the development proposal or further investigation/information prior to the issue of the Construction Certificate to ensure that there is no adverse impact.
9. CC9.34 - Stormwater System - The submitted stormwater plan has been assessed and approved as a concept plan only. No detailed assessment of the design has been undertaken. A Detailed Stormwater Plan and supporting information of the proposed on-site stormwater management system is to be submitted. The required details in this Plan and the relevant checklist are presented in the document ‘Water Management Policy. Kogarah Council. August 2006’
The design parameters and the general concept of the proposed on-site stormwater management system are to be the same as documented in the approved Concept Stormwater Plan for the proposed development. Any conceptual variations to the stormwater design will require written approval from Council and will require to be justified and supported by appropriate details, calculations and information to allow for proper assessment.
The Detailed Stormwater Plan is to address the following issue(s):
a) A suitably qualified engineer is to certify that appropriate design measures have been taken to ensure that the basement levels are protected from flooding in the case of the On-site Detention system malfunctioning.
All roof water and surface water from paved or concreted areas are to be disposed of in accordance with the Stormwater Plan by means of a sealed pipeline constructed in accordance with AS/NZS 3500.3:2015.
10. CC9.35 - On Site Detention - An on-site detention (OSD) facility designed by a professional engineer who specialises in Hydraulic Engineering must be designed, approved and installed. The design must include the computations of the inlet and outlet hydrographs and stage/storage relationships of the proposed OSD using the following design parameters:
· Volume of Storage =Tank 31m3
· Permissible Site Discharge= 25L/sec
11. CC9.44 - Driveway Construction Plan Details - Detailed engineering plans for the driveway shall be submitted with the Construction Certificate application for approval that show:
(a) Longitudinal and cross sections, gradients, access onto the proposed lots, type of construction materials designed in accordance with Council's Subdivision standards and AS/NZS2890.1-2004.
(b) Suitable underground provision for the supply of all relevant services to the proposed lots (proposed position of pipes and conduits).
(c) The full length of the driveway designed with a minimum 150mm thick reinforced concrete and minimum of 2.7m wide pavement/kerb face to kerb face width, and a non-slip surface.
12. CC9.45 - Council Property Shoring - Prior to the issue of the Construction Certificate, plans and specifications prepared by a professional engineer specialising in practising structural engineering must detail how Council’s property shall be supported at all times.
Where any shoring is to be supporting, or located on Council’s property, certified structural engineering drawings detailing; the extent of the encroachment, the type of shoring and the method of removal, shall be included on the plans. Where the shoring cannot be removed, the plans must detail that the shoring will be cut to 150mm below footpath level and the gap between the shoring and any building shall be filled with a 5MPa lean concrete mix.
13. CC9.47 - Fire Safety Measures - Prior to the issue of a construction certificate a list of the essential fire safety measures that are to be provided in relation to the land and any building on the land as a consequence of the building work must accompany an application for a construction certificate, which is required to be submitted to either Council or a PCA. Such list must also specify the minimum standard of performance for each essential fire safety measure included in the list. The Council or PCA will then issue a Fire Safety Schedule for the building.
14. CC9.5 - Damage Deposit - Major Works - In order to insure against damage to Council property the following is required:
(a) Pay Council, before the issue of the Construction Certificate, a damage deposit for the cost of making good any damage caused to any Council property as a result of the development: $132,944.16
(b) Pay Council, before the issue of the Construction Certificate, a non-refundable inspection fee to enable assessment of any damage and repairs where required: $300.00
(c) Submit to Council, before the commencement of work, a dilapidation report of the condition of the Council nature strip, footpath and driveway crossing, or any area likely to be affected by the proposal.
At the completion of work Council will review the dilapidation report and the Works-As-Executed Drawings (if applicable) and inspect the public works.
The damage deposit will be refunded in full upon completion of work where no damage occurs and where Council is satisfied with the completion of works. Alternatively, the damage deposit will be forfeited or partly refunded based on the damage incurred.
15. CC9.52 - Access for Persons with a Disability - for persons with disabilities must be provided to the premises/building in accordance with the requirements of the Premises Standards, the Building Code of Australia, and AS 1428.1. Details must be submitted with the Construction Certificate Application for approval.
16. CC9.39 - Compliance with Flood Study - The development is to be built in accordance with all requirements as stated in the report ‘“Re: Flood Impact Assessment for the development site - 19-23 Empress Street, Hurstville” by WMA Water dated 14 September 2017.
All possible ingress points such as vehicle entrances and exits, ventilation ducts, windows, light wells, lift shaft openings, risers and stairwells to the basement car parking levels are built at or protected up to the 1 in 100 year flood levels as defined in in the report ‘“Re: Flood Impact Assessment for the development site -19-23 Empress Street, Hurstville” by WMA Water dated 14 September 2017.
17. CC9.62 - Construction Traffic Management Plan - A Construction Traffic Management Plan detailing:
(a) construction vehicle routes;
(b) anticipated number of trucks per day;
(c) hours of construction;
(d) Access arrangements; and
(e) Proposed traffic measures to minimise impacts of construction vehicles
must be submitted for the approval of Council’s Engineers. Council’s Engineers must specify in writing that they are satisfied with the Traffic Management Plan prior to the issue of the Construction Certificate.
18. CC9.7 - SEPP 65 Design Verification Statement - A design verification statement, prepared by a qualified designer, shall be submitted to the Certifying Authority verifying that the plans and specifications achieve or improve the design quality of the development for which development consent was granted, having regard to the design quality principles set out under Schedule 1 of State Environmental Planning Policy No 65 -Design Quality of Residential Flat Development.
19. CC9.79 - Waste Storage - Residential and Mixed Use Developments - The plans shall include details of the waste storage area. The waste storage area shall not be visible from the street. The waste storage area shall be located within the lot/building in accordance with the approved plans.
The waste storage area shall be large enough to accommodate the required number of bins for the development and located in an area to suitably facilitate servicing on waste collection day.
The path to the bin room is to be at least 1.0 metres wide and kept clear and unobstructed at all times.
Residential Waste
The development will require thirteen (13) garbage bins and thirteen (13) recycling bins collected once a week.
The bins must be taken to Empress Street for collection.
The waste room will contain the following to minimise odours, deter vermin, protect surrounding areas, and make it a user-friendly and safe area:
· waste room floor to be sealed;
· waste room walls and floor surface is flat and even;
· all walls painted with light colour and washable paint;
· equipment electric outlets to be installed 1700mm above floor levels;
· The bin storage rooms will be mechanically exhausted as required by AS 1668.2;
· light switch installed at height of 1.6m;
· waste rooms must be well lit (sensor lighting recommended);
· optional automatic odour and pest control system installed to eliminate all pest
· types and assist with odour reduction - this process generally takes place at
· building handover - building management make the decision to install;
· all personnel doors are hinged and self-closing;
· waste collection area must hold all bins - bin movements should be with ease of access;
· conform to the Building Code of Australia, Australian Standards and local laws; and childproofing and public/operator safety shall be assessed and ensured.
· Occupational Health and Safety issues such as slippery floors in waste rooms and the weight of the waste and recycling receptacles will need to be monitored.
· Cleaners will monitor the bin storage area and all spills will be attended to immediately by cleaners.
20. CC9.8 - Design Quality Excellence (Major Development) -
(a) In order to ensure the design quality excellence of the development is retained:
i. The design architect is to have direct involvement in the design documentation, contract documentation and construct stages of the project;
ii. The design architect is to have full access to the site and is to be authorised by the applicant to respond directly to the consent authority where information or clarification is required in the resolution of the design issues throughout the life of the project;
iii. Evidence of the design architect’s commission is to be provided to the Council prior to release of the Construction Certificate.
(b) The design architect of the project is not to be changed without prior notice and approval of the Council.
21. CC9.85 - Tree Removal prohibited - This consent does not approve the removal or pruning (branches or roots) of any trees on the subject property, Council’s public footway, public reserves or on neighbouring properties.
22. CC9.91 - Amended Plant Species - The landscape plans (DWG ISO237DAI, ISSUE A) prepared by Isthmus landscape designs on October 2017 have been approved by Council subject to the following:
Changes to several tree species as proposed within the landscape plan due to size, canopy spread at maturity and locations proposed.
a) Ac - Angophora costata x 5
b) Eh - Eucalyptus haemastoma x 5
Street trees need to be incorporated in Finney Street and Empress Street Frontage in accordance with Kogarah City Council, Street Tree Management Strategy and Masterplan.
Street trees are to be planted prior to the issue of either an Occupation Certificate or Subdivision Certificate (whichever is first).
23. CC9.1 - Fees to be paid - The fees listed in the table below must be paid in accordance with the conditions of this consent and Council’s adopted Fees and Charges applicable at the time of payment (available at www.georgesriver.nsw.gov.au).
Payments must be made prior to the issue of the Construction Certificate or prior to the commencement of work (if there is no associated Construction Certificate).
Please contact Council prior to the payment of Section 7.11 Contributions to determine whether the amounts have been indexed from that indicated below in this consent and the form of payment that will be accepted by Council.
Council will only accept Bank Cheque or Electronic Funds Transfer (EFT) for transaction values of $500,000 or over. Council must be contacted prior to payment to determine correct total amount to be paid and bank account details (if applicable).
A summary of the fees to be paid are listed below:
|
Fee Type |
Fee |
|
GENERAL FEES |
|
|
Long Service Levy (to Long Service Corporation) Or, provide evidence of Payment direct to the Long Service Corporation. See https://portal.longservice.nsw.gov.au/bci/levy/ |
|
|
Builders Damage Deposit |
$132,944.16 |
|
Inspection Fee for Refund of Damage Deposit |
$300.00 |
|
Driveway and Restoration Works Design Inspection Fee (Multi-unit Development) |
$360.00 |
|
DEVELOPMENT CONTRIBUTIONS |
|
|
Kogarah Section 94 Development Contributions Plan No.1 - Roads and Traffic Management - Residential |
$2,181.50 |
|
Kogarah Section 94 Development Contributions Plan No.5 - Open Space 2007 |
$215,612.84 |
|
Kogarah Section 94 Development Contributions Plan No.9 - Kogarah Libraries - Buildings |
$4,798.95 |
|
Kogarah Section 94 Development Contributions Plan No.9 - Kogarah Libraries - Books |
$4,900.44 |
|
TOTAL |
$227,493.73 |
General Fees
The fees and charges above are subject to change and are as set out in the version of Council's Schedule of Fees and Charges or as required by other Government Authorities, applicable at the time of payment.
Development Contributions
The Section 7.11 contribution is imposed to ensure that the development makes adequate provision for the demand it generates for public amenities and public services within the area.
Indexation
The above contributions will be adjusted at the time of payment to reflect changes in the cost of delivering public amenities and public services, in accordance with the indices provided by the relevant Section 94 Development Contributions Plan.
Timing of Payment
The contribution must be paid and receipted by Council prior to the release of the Construction Certificate.
Further Information
A copy of the all current Development Contributions Plans may be inspected or a copy purchased at Council’s offices (Georges River Civic Centre, MacMahon Street, Hurstville and Kogarah Library and Service Centre, Kogarah Town Square, Belgrave Street, Kogarah) or viewed on Council’s website www.georgesriver.nsw.gov.au.
24. CC9.12 - Required design changes - The following changes are required to be made and shown on the Construction Certificate plans:
|
Amendments made in red on approved plans |
All changes made in red on the approved plans shall be updated and shown on the Construction Certificate plans. |
|
Deletion of bedrooms in order to increase apartment setbacks |
The deletion of the southern-most bedrooms associated with Units G.1 and 1.1 must be undertaken and the architectural plans amended accordingly. A minimum setback of 6m is required to be provided from these units to the south eastern side boundary. |
|
Fencing along south-eastern side |
The fence located along the south eastern side boundary is to comprise of a maximum height of 1.8m from natural ground level. |
25. CC9.13 - Low reflectivity roof - Roofing materials must be low glare and reflectivity. Details of finished external materials including colours and texture must be provided to the Certifying Authority.
26. CC9.32 - Erosion & Sedimentation Control - Erosion and sediment controls must be provided to ensure:
(a) Compliance with the approved Erosion & Sediment Control Plan
(b) Removal or disturbance of vegetation and top soil is confined to within 3m of the approved building area (no trees to be removed without approval)
(c) All clean water runoff is diverted around cleared or exposed areas
(d) Silt fences, stabilised entry/exit points or other devices are installed to prevent sediment from entering drainage systems or waterways
(e) All erosion and sediment controls are fully maintained for the duration of demolition, excavation and/or development works
(f) Controls are put into place to prevent tracking of sediment by vehicles onto adjoining roadway
(g) All disturbed areas are rendered erosion-resistant by turfing, mulching, paving or similar
(h) Compliance with Managing Urban Stormwater - Soils and Construction (Blue Book) produced by Landcom 2004.
These measures are to be implemented prior to the commencement of work (including demolition and excavation) and must remain until works are completed and all exposed surfaces are landscaped/sealed.
27. CC9.33 - Pre-Construction Dilapidation Report - Private Land - A professional engineer specialising in structural or geotechnical engineering shall prepare a Pre-Construction Dilapidation Report detailing the current structural condition of adjoining premises including but not limited to:
(a) All neighbouring buildings likely to be affected by the excavation as determined by the consulting engineer.
The report shall be prepared at the expense of the applicant and submitted to the satisfaction of the Certifying Authority prior to the issue of the Construction Certificate.
A copy of the pre-construction dilapidation report is to be provided to the adjoining properties (subject of the dilapidation report), a minimum of 5 working days prior to the commencement of work. Evidence confirming that a copy of the pre-construction dilapidation report was delivered to the adjoining properties must be provided to the PCA.
Should the owners of properties (or their agents) refuse access to carry out inspections, after being given reasonable written notice, this shall be reported to Council to obtain Council’s agreement to complete the report without access. Reasonable notice is a request for access in no sooner than 14 days between 8.00am-6.00pm.
28. CC9.48 - Structural details - Engineer's details prepared by a practising Structural Engineer being used to construct all reinforced concrete work, structural beams, columns and other structural members. The details are to be submitted to the Principal Certifying Authority for approval prior to construction of the specified works.
A copy shall be forwarded to Council where Council is not the PCA.
29. CC9.54 - Geotechnical report - Geotechnical Reports: The applicant must submit a Geotechnical Report, prepared by a professional engineer specialising in geotechnical engineering who holds the relevant Certificate of accreditation as required under the Building Professionals Act 2005 in relation to dilapidation reports, all site works and construction. This is to be submitted before the issue of the Construction Certificate and is to include:
(a) Investigations certifying the stability of the site and specifying the design constraints to be placed on the foundation, any earthworks/stabilization works and any excavations.
(b) Dilapidation Reports on the adjoining properties including, but not limited to 25 Empress Street, Hurstville prior to any excavation of site works. The Dilapidation Report is to include assessments on, but not limited to, the dwellings at those addresses and any external paths, grounds etc. This must be submitted to the PCA and the adjoining residents as part of the application for the Construction Certificate. Adjoining residents are to be provided with the report five (5) working days prior to any works on the site.
(c) On-site guidance by a vibration specialist during the early part of excavation.
(d) Measures to minimise vibration damage and loss of support to other buildings. Where possible any excavation into rock is to be carried out with tools such as rock saws which reduce vibration to adjoining buildings and associated structures. Where a hydraulic hammer is to be used within 30 metres of any building (other than a path or a fence) the report shall detail the maximum size of hammer to be used and provide all reasonable recommendations to manage impacts.
(e) Sides of the excavation are to be piered prior to any excavation occurring to reinforce the walls of the excavation to prevent any subsidence to the required setbacks and neighbouring sites.
30. CC9.6 - Site Management Plan - A Site Management Plan must be submitted with the application for a Construction Certificate, and include the following:
(a) location of protective site fencing;
(b) location of site storage areas/sheds/equipment;
(c) location of building materials for construction, e.g. stockpiles
(d) provisions for public safety;
(e) dust control measures;
(f) method used to provide site access location and materials used;
(g) details of methods of disposal of demolition materials;
(h) method used to provide protective measures for tree preservation;
(i) provisions for temporary sanitary facilities;
(j) location and size of waste containers/skip bins;
(k) details of proposed sediment and erosion control measures;
(l) method used to provide construction noise and vibration management;
(m) construction and demolition traffic management details.
The site management measures are to be implemented prior to the commencement of any works including demolition and excavation. The site management measures are to be maintained throughout the works, to maintain reasonable levels of public health, safety and amenity. A copy of the Site Management Plan must be kept on site and is to be made available upon request.
31. CC9.61 - Traffic Management - Compliance with AS2890 - All driveways, access ramps, vehicular crossings and car parking spaces shall be designed and constructed in accordance with the current version of Australian Standards, AS 2890.1 (for car parking facilities) and AS 2890.2 (for commercial vehicle facilities).
32. CC9.78 - Waste Management Plan - A Waste Management Plan incorporating all requirements in respect of the provision of waste storage facilities, removal of all materials from the site that are the result of site clearing, extraction, and, or demolition works and the designated Waste Management Facility shall be submitted to the Certifying Authority prior to the issue of any Construction Certificate.
33. CC9.84 - Landscape Plans - All landscape works shall be carried out in accordance with the approved landscape plans. The landscaping shall be maintained in accordance with the approved plans in perpetuity.
34. CC9.89 - Tree Removal & Replacement - Tree removal - Permission is granted for the removal of the following trees:
|
Tree species |
Number of trees |
Location |
|
Phoenix canariensis |
1 |
Middle of site at 19-23 Empress St Hurstville |
General Tree Removal Requirements
(a) All tree removal shall be carried out by a certified Tree Surgeon/Arborist to ensure that removal is undertaken in a safe manner and complies with the AS 4373-2007 - Pruning of Amenity Trees and Tree Works Industry Code of Practice (Work Cover NSW 1.8.98).
(b) No trees are to be removed on the site or neighbouring properties without the prior written approval of Council.
(c) Council shall be appointed to remove all tree/s on public land. All costs associated with the removal of the tree/s and the planting of replacement trees shall be met by the applicant. Fees and charges outlined in the table below are subject to change and are set out in the current version of Council's ‘Schedule of Fees and Charges’, applicable at the time of payment.
Tree Replacement
The following street trees are to be planted prior to the issue of either an Occupation Certificate or Subdivision Certificate (whichever is first). All replacement trees must be planted in accordance with Kogarah City Council, Street Tree Management Strategy and Masterplan.
|
Replacement Tree Species |
Number of trees |
Location |
Pot Size |
|
Tristaniopsis laurina |
4 |
Grassed nature strip fronting Finney Street |
45 litre |
|
Buckinghamia celsissima |
3 |
Grassed nature strip fronting Empress Street |
45 litre |
A copy of the Hurstville City Council’s Tree Removal and Pruning Guidelines and Kogarah City Council, Street Tree Management Strategy and Masterplan, can be downloaded from Council’s website www.georgesriver.nsw.gov.au.
35. CC9.9 - BASIX Commitments - All energy efficiency measures as detailed in the submitted BASIX Certificate must be implemented on the plans lodged with the application for the Construction Certificate.
PRIOR TO THE COMMENCEMENT OF WORK (INCLUDING DEMOLITION AND EXCAVATION)
These conditions have been imposed to ensure that all pre-commencement matters are dealt with and finalised prior to the commencement of work.
36. PREC10.11 - Dilapidation Report on Public Land - Major Development Only - Prior to the commencement of works (including demolition and excavation), a dilapidation report must be prepared for the Council infrastructure adjoining the development site, including:
The report must include the following:
(a) Photographs showing the existing condition of the road pavement fronting the site,
(b) Photographs showing the existing condition of the kerb and gutter fronting the site,
(c) Photographs showing the existing condition of the footpath pavement fronting the site,
(d) Photographs showing the existing condition of any retaining walls within the footway or road, and
(e) The full name and signature of the structural engineer.
(f) The Dilapidation Report must be prepared by a qualified structural engineer. The report must be provided to the PCA and a copy provided to the Council.
The Dilapidation Report must be prepared by a professional engineer. The report must be provided to the PCA and a copy provided to the Council.
The report is to be supplied in electronic format in Word or PDF. Photographs are to be in colour, digital and date stamped.
Note: Council will use this report to determine whether to refund the damage deposit after the completion of works.
37. PREC10.1 - Demolition & Asbestos - The demolition work shall comply with the provisions of Australian Standard AS2601:2001 - Demolition of Structures, NSW Work Health & Safety Act 2011 and the NSW Work Health & Safety Regulation 2011. The work plans required by AS2601:2001 shall be accompanied by a written statement by a suitably qualified person that the proposals contained in the work plan comply with the safety requirements of the Standard. The work plans and the safety statement shall be submitted to the PCA prior to the commencement of works.
For demolition work which involves the removal of asbestos, the asbestos removal work must be carried out by a licensed asbestos removalist who is licensed to carry out the work in accordance with the NSW Work Health & Safety Act 2011 and the NSW Work Health & Safety Regulation 2011 unless specified in the Act and/or Regulation that a license is not required.
All demolition work including the removal of asbestos, shall be undertaken in accordance with the Demolition Code of Practice (NSW Work Cover July 2015)
Note: Copies of the Act, Regulation and Code of Practice can be downloaded free of charge from the SafeWork NSW website: www.SafeWork.nsw.gov.au.
38. PREC10.10 - Dial before your dig - The applicant shall contact “Dial Before You Dig on 1100” to obtain a Service Diagram prior to the issuing of the Construction Certificate. The sequence number obtained from “Dial Before You Dig” shall be forwarded to Council’s Engineers for their records.
39. PREC10.2 - Demolition Notification Requirements - The following notification requirements apply to this consent:
(a) The developer /builder must notify adjoining residents five (5) working days prior to demolition. Such notification is to be a clearly written note giving the date demolition will commence, contact details of the developer/builder, licensed asbestos demolisher and the appropriate regulatory authority. Notification is to be placed in the letterbox of every premises (including every residential flat or unit, if any) either side and immediately at the rear of the demolition site.
(b) Five (5) working days prior to demolition, the developer/builder is to provide written notification to Council advising of the demolition date, details of the SafeWork licensed asbestos demolisher and the list of residents advised of the demolition.
(c) On demolition sites where buildings to be demolished contain asbestos, a standard commercially manufactured sign containing the words “DANGER ASBESTOS REMOVAL IN PROGRESS” measuring not less than 400mm x 300mm is to be erected in a prominent visible position (from street frontage) on the site. The sign is to be erected prior to demolition work commencing and is to remain in place until such time as all asbestos material has been removed from the site to an approved waste facility.
40. PREC10.3 - Demolition work involving asbestos removal - Work involving bonded asbestos removal work (of an area of more than 10 square metres) or friable asbestos removal work must be undertaken by a person who carries on a business of such removal work in accordance with a licence under clause 458 of the Work Health and Safety Regulation 2011.
41. PREC10.14 - Registered Surveyors Report - During Development Work - A report must be submitted to the PCA at each of the following applicable stages of construction:
(a) Set out before commencing excavation.
(b) Floor slabs or foundation wall, before formwork or commencing brickwork.
(c) Completion of Foundation Walls - Before any construction of flooring, detailing the location of the structure relative to adjacent boundaries and floor levels relative to the datum shown on the approved plans.
(d) Completion of Floor Slab Formwork - Before pouring of concrete/walls construction, detailing the location of the structure relative to adjacent boundaries and floor levels relative to the datum shown on the approved plans. In multi-storey buildings a further survey must be provided at each subsequent storey.
(e) Completion of any Pool Formwork - Before concreting of pool shell, detailing the location of the pool relative to the adjacent boundaries and its height relative to the datum shown on the approved plans.
(f) Completion of any Roof Framing - Before roof covered detailing eaves/gutter setback from boundaries.
(g) Completion of all Work - Detailing the location of the structure (including eaves/gutters) relative to adjacent boundaries and its height relative to the datum shown on the approved plans. A final Check Survey must indicate the reduced level of the main ridge.
Work must not proceed beyond each stage until the PCA is satisfied that the height and location of the building is proceeding in accordance with the approved plans.
42. PREC10.15 - Utility Arrangements - Arrangements are to be made with utility authorities in respect to the services supplied by those authorities to the development. The cost associated with the provision or adjustment of services within the road and footway areas is to be at the applicant’s expense.
DURING WORK
These conditions have been imposed to ensure that there is minimal impact on the adjoining development and surrounding locality during the construction phase of the development.
43. CON11.12 - Cost of work to be borne by the applicant - The applicant shall bear the cost of all works associated with the construction of the development that occurs on Council property. Care must be taken to protect Council's roads, including the made footway, kerbs, etc., and, where plant and vehicles enter the site, the footway shall be protected against damage by deep-sectioned timber members laid crosswise, held together by hoop iron straps and chamfered at their ends. This construction shall be maintained in a state of good repair and condition throughout the course of construction.
44. CON11.1 - Site sign - Soil & Erosion Control Measures - Prior to the commencement of works (including demolition and excavation), a durable site sign, issued by Council in conjunction with this consent, must be erected in a prominent location on site. The site sign warns of the penalties which apply to pollution, storing materials on road or footpath and breaches of the conditions relating to erosion and sediment controls. The sign must remain in a prominent location on site up until the completion of all site and building works.
45. CON11.13 - Obstruction of Road or Footpath - The use of the road or footpath for the storage of any building materials, waste materials, temporary toilets, waste or skip bins, or any other matter is not permitted unless separately approved by Council under Section 138 of the Roads Act 1993 and/or under Section 68 of the Local Government Act 1993. Penalty infringement Notices may be issued for any offences and severe penalties apply.
46. CON11.1 - Site sign - Soil & Erosion Control Measures - Prior to the commencement of works (including demolition and excavation), a durable site sign, issued by Council in conjunction with this consent, must be erected in a prominent location on site. The site sign warns of the penalties which apply to pollution, storing materials on road or footpath and breaches of the conditions relating to erosion and sediment controls. The sign must remain in a prominent location on site up until the completion of all site and building works.
47. CON11.2 - Hours of construction for demolition and building work - Any work activity or activity associated with the development consent that requires the use of any tools (including hand tools) or any power operated plant and machinery that creates noise on or adjacent to the site shall not be performed, or permitted to be performed, except between the hours of 7.00 am to 5.00 pm, Monday to Saturday inclusive. No work or ancillary activity is permitted on Sundays, or Public Holidays.
Note: A penalty infringement notice may be issued for any offence.
48. CON11.21 - Waste Management Facility - All materials removed from the site as a result of demolition, site clearing, site preparation and, or excavation shall be disposed of at a suitable Waste Management Facility. No vegetation, article, building material, waste or the like shall be ignited or burnt.
Copies of all receipts for the disposal, or processing of all such materials shall be submitted to the PCA and Council, where Council is not the Principal Certifying Authority.
49. CON11.2 - Hours of construction for demolition and building work - Any work activity or activity associated with the development consent that requires the use of any tools (including hand tools) or any power operated plant and machinery that creates noise on or adjacent to the site shall not be performed, or permitted to be performed, except between the hours of 7.00 am to 5.00 pm, Monday to Saturday inclusive. No work or ancillary activity is permitted on Sundays, or Public Holidays.
Note: A penalty infringement notice may be issued for any offence.
50. CON11.3 - Ground levels and retaining walls - The ground levels of the site shall not be excavated, raised or filled, or retaining walls constructed on the allotment boundary, except where indicated on approved plans or approved by Council.
PRIOR TO THE ISSUE OF THE OCCUPATION CERTIFICATE
These conditions have been imposed to ensure that all works have been completed in accordance with the Development Consent prior to the issue of the Occupation Certificate.
51. CC12.10 - Major Development - Internal driveways and parking spaces are to be adequately paved with concrete or bitumen, or interlocking pavers to provide a dust-free surface. All car parking spaces are to be line marked in accordance with AS1742, ‘Australian Standard Manual of Uniform Traffic Control Devices’ and the relevant guidelines published by the RMS.
52. OCC12.11 - SEPP 65 Design Verification Statement - The PCA must not issue an Occupation Certificate to authorise a person to commence occupation of the residential flat development unless the PCA has received a design verification from a qualified designer, being a statement in which the qualified designer verifies that the residential flat development achieves the design quality of the development as shown in the plans and specifications in respect of which the construction certificate was issued, having regard to the design quality principles set out in Part 2 of State Environmental Planning Policy No 65Design Quality of Residential Flat Development.
53. OCC12.24 - Consolidation of Site - The site shall be consolidated into one allotment and by a Plan of Consolidation being prepared by a Registered Surveyor. This Plan shall be registered at the NSW Land and Property Information prior to the issue of a final occupation certificate.
54. OCC12.26 - Requirements prior to the issue of the Occupation Certificate - The following shall be completed and or submitted to the PCA prior to the issue of the Occupation Certificate:
(a) All the stormwater/drainage works shall be completed in accordance with the approved Construction Certificate plans prior to the issue of the Occupation Certificate.
(b) The internal driveway construction works, together with the provision for all services (conduits and pipes laid) shall be completed in accordance with the approved Construction Certificate plans prior to the issue of the Occupation Certificate.
(c) Construct any new vehicle crossings required.
(d) Replace all redundant vehicle crossing laybacks with kerb and guttering, and replace redundant concrete with turf.
(e) A Section 73 (Sydney Water) Compliance Certificate for the Subdivision shall be issued and submitted to the PCA prior to the issue of the Occupation Certificate.
(f) Work as Executed Plans prepared by a Chartered Professional Engineer or a Registered Surveyor when all the site engineering works are complete shall be submitted to the PCA prior to the issue of the Occupation Certificate.
55. OCC12.28 - Vehicular crossing & Frontage work - Major development - The following road frontage works shall be constructed in accordance with Council's Specification for Vehicular Crossings and Associated Works together with the Vehicular Crossing Approval issued by Council’s Engineering Services Division:
(a) Construct a 1m wide footpath for the full length of the frontages (Empress Street and Finney Street) of the site in in accordance with Council’s Specifications for footpaths.
(b) Construct the vehicular crossing in accordance with Council’s Specifications for vehicular crossings.
(c) Construct a new 150mm high concrete kerb with 450mm wide gutter for the full frontage(s) of the site in in accordance with Council’s Specifications for kerb and guttering.
(d) Any existing vehicular crossing and/or laybacks which are redundant must be removed. The kerb and gutter, any other footpath and turf areas shall be restored at the expense of the applicant and in accordance with Council’s Specification for Vehicular Crossings and Associated Works.
A private contractor shall carry out the above work, at the expense of the applicant and in accordance with Council’s Specification for Vehicular Crossings and Associated Works.
The driveway and road frontage works are to be completed before the issue of the Occupation Certificate.
56. OCC12.29 - Completion of Major Works - Prior to the issue of a Final Occupation Certificate, the following works must be completed at the applicant’s expense to the satisfaction of Council’s Engineering Services section:
(a) Stormwater pipes, pits and connections to public stormwater systems within the road related area;
(b) Driveways and vehicular crossings within the road related area;
(c) Removal of redundant driveways and vehicular crossings;
(d) New footpaths within the road related area;
(e) Relocation of existing power/light pole
(f) Relocation/provision of street signs
(g) New or replacement street trees;
(h) New footway verges, where a grass verge exists, the balance of the area between the footpath and the kerb or site boundary over the full frontage of the proposed development must be turfed. The grass verge must be constructed to contain a uniform minimum 75mm of friable growing medium and have a total cover of turf predominant within the street.
(i) New or reinstated kerb and guttering within the road related area; and
(j) New or reinstated road surface pavement within the road.
Council’s Engineering Services Section must advise in writing that the works have been completed to their satisfaction prior to the issue of the Occupation Certificate. [Note: The damage deposit paid to Council will not be released until the works have been completed to Council’s satisfaction.
57. OCC12.33 - Flood Prone Land - Survey of levels - A registered surveyor shall verify the levels of the design runoff overland flow path and finished floor levels to Australian Height Datum. The surveyor is also to verify that the flow paths and finished floor levels have been built to the design levels, dimensions and surface finishes as specified in the approved plans.
58. OCC12.34 - Fire Safety Certificate before Occupation or Use - In accordance with Clause 153 of the Environmental Planning and Assessment Regulation 2000, on completion of building works and prior to the issue of an Occupation Certificate, the owner must cause the issue of a Final Fire Safety Certificate in accordance with Clause 170 of the aforesaid Regulation. The Fire Safety Certificate must be in the form or to the effect of Clause 174 of the Environmental Planning and Assessment Regulation, 2000. In addition, in relation to each essential fire or other safety measure implemented in the building or on the land on which the building is situated, such a Certificate is to state:
(a) That the measure has been assessed by a person (chosen by the owner of the building) who is properly qualified to do so.
(b) That as at the date of the assessment the measure was found to be capable of functioning at a standard not less than that required by the attached Schedule.
A copy of the certificate is to be given by the applicant to the Commissioner of Fire & Rescue NSW and a further copy is to be displayed in a frame and fixed to a wall inside the building's main entrance.
59. OCC12.8 - Allocation of car parking spaces - Car parking associated with the development is to be allocated as follows:
(a) Residential dwellings: twenty nine (29) spaces
(b) Residential visitors: four (4) spaces
60. OCC12.17 - Restriction to User and Positive Covenant for On-Site Detention Facility - A Restriction on Use of the Land and Positive Covenant shall be created and registered on the title of the property, which places the responsibility for the maintenance of the on-site stormwater management system on the owners of the land. The terms of the instrument are to be in accordance with Council’s standard terms and restrictions which are as follows;
Restrictions on Use of Land
The registered proprietor shall not make or permit or suffer the making of any alterations to any on-site stormwater management system which is, or shall be, constructed on the lot(s) burdened without the prior consent in writing of Georges River Council. The expression “on-site stormwater management system” shall include all ancillary gutters, pipes, drains, walls, kerbs, pits, grates, tanks, chambers, basins and surfaces designed to manage stormwater quantity or quality including the temporary detention or permanent retention of stormwater storages. Any on-site stormwater management system constructed on the lot(s) burdened is hereafter referred to as “the system”.
Name of Authority having the power to release, vary or modify the Restriction referred to is Georges River Council.
Positive Covenants
1. The registered proprietor of the lot(s) hereby burdened will in respect of the system:
a) keep the system clean and free from silt, rubbish and debris
b) maintain and repair at the sole expense of the registered proprietors the whole of the system so that if functions in a safe and efficient manner
c) permit the Council or its authorised agents from time to time and upon giving reasonable notice (but at any time and without notice in the case of an emergency) to enter and inspect the land for the compliance with the requirements of this covenant
d) comply with the terms of any written notice issued by the Council in respect of the requirements of this covenant within the time stated in the notice.
2. Pursuant to Section 88F(3) of the Conveyancing Act 1919 the Council shall have the following additional powers:
a) in the event that the registered proprietor fails to comply with the terms of any written notice issued by the Council as set out above the Council or its authorised agents may enter the land with all necessary materials and equipment and carry out any work which the Council in its discretion considers reasonable to comply with the said notice referred to in part 1(d) above
b) the Council may recover from the registered proprietor in a Court of competent jurisdiction:
i. any expense reasonably incurred by it in exercising its powers under subparagraph (i) hereof. Such expense shall include reasonable wages for the Council’s employees engaged in effecting the work referred to in (i) above, supervising and administering the said work together with costs, reasonably estimated by the Council, for the use of materials, machinery, tools and equipment in conjunction with the said work.
ii. legal costs on an indemnity basis for issue of the said notices and recovery of the said costs and expenses together with the costs and expenses of registration of a covenant charge pursuant to section 88F of the Act or providing any certificate required pursuant to section 88G of the Act or obtaining any injunction pursuant to section 88H of the Act. Name of Authority having the power to release vary or modify the Positive Covenant referred to is Georges River Council.
61. OCC12.18 - Maintenance Schedule - On-site Stormwater Management - A Maintenance Schedule for the proposed on-site stormwater management measures is to be prepared and submitted to Council. The Maintenance Schedule shall outline the required maintenance works, how and when these will be done and who will be carrying out these maintenance works.
62. OCC12.19 - Works as Executed and Certification of Stormwater works - Prior to the issue of an Occupation Certificate, the PCA must ensure that the stormwater drainage system has been constructed in accordance with the approved design and relevant Australian Standards. A works-as-executed drainage plan and certification must be forwarded to the PCA and Council, from a professional engineer specialising in hydraulic engineering.
This Plan and Certification shall confirm that the design and construction of the stormwater drainage system satisfies the conditions of development consent and the Construction Certificate stormwater design details approved by the PCA.
The works-as-executed drainage plan must be prepared by a professional engineer specialising in hydraulic engineering in conjunction with a Registered Surveyor and must include the following details (as applicable):
(a) The location of any detention basin/s with finished surface levels;
(b) Finished site contours at 0.2 metre intervals (if applicable)
(c) Volume of storage available in any detention areas;
(d) The location, diameter, gradient and material (i.e. PVC, RC etc.) of all stormwater pipes;
(e) The orifice size/s (if applicable);
(f) Details of any infiltration/absorption systems; and (if applicable);
(g) Details of any pumping systems installed (including wet well volumes) (if applicable).
63. OCC12.4 - BASIX Certificate - All energy efficiency measures as detailed in the approved BASIX Certificate in the plans approved with the Development Consent, must be implemented before issue of any Occupation Certificate.
64. OCC12.5 - BASIX Compliance Certificate - A Compliance Certificate must be provided to the PCA regarding the implementation of all energy efficiency measures as detailed in the approved BASIX Certificate before any Occupation Certificate is issued.
65. OCC12.6 - Completion of Landscape Works - All landscape works must be completed before the issue of the Final Occupation Certificate.
ONGOING CONDITIONS
These conditions have been imposed to ensure that the use or operation of the development does not adversely impact on the amenity of the neighbourhood or environment.
66. ONG14.12 - Noise Control - The use of the premises must not give rise to the transmission of offensive noise to any place of different occupancy. Offensive noise is defined in the Protection of the Environment Operations Act 1997 (as amended).
67. ONG14.25 - Outdoor Lighting - To avoid annoyance to the occupants of adjoining premises or glare to motorist on nearby roads, outdoor lighting must comply with AS 4282-1997: Control of the obtrusive effects of outdoor lighting.
68. ONG14.63 - Entering & Exiting of vehicles - All vehicles shall enter and exit the premises in a forward direction.
69. ONG14.67 - Annual Fire Safety Statement - The owner of the building premises must ensure the Council is given an annual fire safety statement in relation to each essential fire safety measure implemented in the building. The annual fire safety statement must be given:
(a) Within 12 months after the date on which the fire safety certificate was received.
(b) Subsequent annual fire safety statements are to be given within 12 months after the last such statement was given.
(c) An annual fire safety statement is to be given in or to the effect of Clause 181 of the Environmental Planning and Assessment Regulation 2000.
(d) A copy of the statement is to be given to the Commissioner of Fire & Rescue NSW, and a further copy is to be prominently displayed in the building.
70. ONG14.70 - Responsibility of Owners Corporation - The Owners Corporation shall be responsible for presenting all approved waste and recycling receptacles for collection, and returning all receptacles to the Main Waste Collection Room, as soon as practicable after they have been serviced.
The Owners Corporation shall also be responsible for maintaining all equipment, systems, facilities and storage areas used in conjunction with the provision of waste management services in accordance with all applicable regulatory requirements, relevant health and environmental standards, and to the satisfaction of Council.
71. ONG14.5 - Maintenance of Landscaping - All trees and plants forming part of the landscaping must be maintained. Maintenance includes watering, weeding, removal of rubbish from tree bases, fertilizing, pest and disease control, replacement of dead or dying plants and any other operations required to maintain healthy trees, plants and turfed areas.
72. ONG14.27 - Amenity of the neighbourhood - The implementation of this development shall not adversely affect the amenity of the neighbourhood or interfere unreasonably with the comfort or repose of a person who is outside the premises by reason of the emission or discharge of noise, fumes, vapour, odour, steam, soot, dust, waste water, waste products, grit, oil or other harmful products.
ADVICE
This advice has been included to provide additional information and where available direct the applicant to additional sources of information based on the development type.
73. ADV17.1 - Access to NSW Legislations (Acts, Regulations and Planning Instruments) - NSW legislation can be accessed free of charge at www.legislation.nsw.gov.au
74. ADV17.19 - Noise - Noise related conditions - Council will generally enforce noise related conditions in accordance with the Noise Guide for Local Government (http://www.environment.nsw.gov.au/noise/nglg.htm) and the Industrial Noise Guidelines (http://www.environment.nsw.gov.au/noise/industrial.htm) publish by the Department of Environment and Conservation. Other state government authorities also regulate the Protection of the Environment Operations Act 1997.
Useful links relating to Noise:
(a) Community Justice Centres - free mediation service provided by the NSW Government (www.cjc.nsw.gov.au).
(b) Department of Environment and Conservation NSW, Noise Policy Section web page (www.environment.nsw.gov.au/noise).
(c) New South Wales Government Legislation home page for access to all NSW legislation, including the Protection of the Environment Operations Act 1997 and the Protection of the Environment Noise Control Regulation 2000 (www.legislation.nsw.gov.au).
(d) Australian Acoustical Society - professional society of noise-related professionals (www.acoustics.asn.au/index.php).
(e) Association of Australian Acoustical Consultants - professional society of noise related professionals (www.aaac.org.au).
(f) Department of Gaming and Racing - (www.dgr.nsw.gov.au).
75. ADV17.28 - Sydney Water Section 73 Certificates - The Section 73 Certificate must be a separate certificate that relates specifically to this development consent. For example, if the development consent relates to the subdivision of the land, a Section 73 Certificate for the construction of the building that is subject to a different development consent will not suffice.
76. ADV17.3 - Disability Discrimination Act - This application has been assessed in accordance with the Environmental Planning and Assessment Act 1979. No guarantee is given that the proposal complies with the Disability Discrimination Act 1992. The applicant is responsible to ensure compliance with this and other anti-discrimination legislation. The Disability Discrimination Act 1992 covers disabilities not catered for in the minimum standards called up in the Building Code of Australia which refers to AS1428.1-Design for Access and Mobility.
77. ADV17.2 - Long Service Levy - The Long Service Corporation administers a scheme which provides a portable long service benefit for eligible workers in the building and construction industry in NSW. All benefits and requirements are determined by the Building and Construction Industry Long Service Payments Act 1986. More information about the scheme and the levy amount you are required to pay to satisfy a condition of your consent can be found at http://www.longservice.nsw.gov.au.
The required Long Service Levy payment can be direct to the Long Service Corporation via their web site https://online.longservice.nsw.gov.au/bci/levy. Payments can only be processed on-line for the full levy owing and where the value of work is between $25,000 and $6,000,000. Payments will be accepted for amounts up to $21,000, using either MasterCard or Visa.
78. ADV17.5 - Security deposit administration & compliance fee - Under Section 97 (5) of the Local Government Act 1993, a security deposit (or part) if repaid to the person who provided it is to be repaid with any interest accrued on the deposit (or part) as a consequence of its investment.
Council must cover administration and other costs incurred in the investment of these monies. The current charge is $50.00 plus 2% of the bond amount per annum.
The interest rate applied to bonds is set at Council's business banking facility rate as at 1 July each year. Council will accept a bank guarantee in lieu of a deposit.
All interest earned on security deposits will be used to offset the Security Deposit Administration and Compliance fee. Where interest earned on a deposit is not sufficient to meet the fee, it will be accepted in full satisfaction of the fee.
79. ADV17.6 - Stormwater & Ancillary Works - Applications under Section 138 Roads Act and/or Section 68 Local Government Act 1993 - To apply for approval under Section 138 of the Roads Act 1993:
(a) Complete the Driveway Crossing on Council Road Reserve Application Form which can be downloaded from Georges River Council’s Website at www.georgesriver.nsw.gov.au.
(b) In the Application Form, quote the Development Consent No. (eg. 2012/DA-****) and reference this condition number (e.g. Condition 23)
(c) Lodge the application form, together with the associated fees at Council’s Customer Service Centre, during business hours. Refer to Council’s adopted Fees and Charges for the administrative and inspection charges associated with Vehicular Crossing applications.
An approval for a new or modified vehicular crossing will contain the approved access and/or alignment levels which will be required to construct the crossing and/or footpath. Once approved, all work shall be carried out by a private contractor in accordance with Council’s specifications prior to the issue of an Occupation Certificate.
The developer must meet all costs of the extension, relocation or reconstruction of any part of Council’s drainage system (including design drawings and easements) required to carry out the approved development.
The preparation of all engineering drawings (site layout plans, cross sections, longitudinal sections, elevation views together with a hydraulic grade analysis) and specifications for the new storm water drainage system to be arranged by the applicant. The design plans must be lodged and approved by Council prior to the issue of a Construction Certificate.
NOTE: A minimum of four weeks should be allowed for assessment.
80. ADV17.13 - Site Safety Fencing - Site fencing must be erected in accordance with SafeWork Guidelines, to exclude public access to the site throughout the demolition and/or construction work, except in the case of alterations to an occupied dwelling. The fencing must be erected before the commencement of any work and maintained throughout any demolition and construction work.
A demolition licence and/or a high risk work license may be required from SafeWork NSW (see www.SafeWork.nsw.gov.au).
Schedule B – Prescribed Conditions
Prescribed conditions are those which are mandated under Division 8A of the Environmental Planning and Assessment Regulation 2000 and given weight by Section 80A (11) of the Environmental Planning and Assessment Act 1979.
Detailed below is a summary of all the prescribed conditions which apply to development in New South Wales. Please refer to the full details of the prescribed conditions as in force, at www.legislation.nsw.gov.au.
It is the responsibility of the beneficiary of this consent to determine which prescribed conditions apply.
81. PRES1001 - Clause 97A – BASIX Commitments - This Clause requires the fulfilment of all BASIX Commitments as detailed in the BASIX Certificate to which the development relates.
82. PRES1002 - Clause 98 – Building Code of Australia & Home Building Act 1989 - Requires all building work to be carried out in accordance with the Building Code of Australia. In the case of residential building work to which the Home Building Act 1989 relates, there is a requirement for a contract of insurance to be in force before any work commences.
83. PRES1003 - Clause 98A – Erection of Signs - Requires the erection of signs on site and outlines the details which are to be included on the sign. The sign must be displayed in a prominent position on site and include the name and contact details of the Principal Certifying Authority and the Principal Contractor.
84. PRES1004 - Clause 98B – Home Building Act 1989 - If the development involves residential building work under the Home Building Act 1989, no work is permitted to commence unless certain details are provided in writing to Council. The name and licence/permit number of the Principal Contractor or Owner Builder and the name of the Insurer by which work is insured under Part 6 of the Home Building Act 1989.
85. PRES1007 - Clause 98E – Protection & support of adjoining premises - If the development involves excavation that extends below the level of the base of the footings of a building on adjoining land, this prescribed condition requires the person who benefits from the development consent to protect and support the adjoining premises and where necessary underpin the adjoining premises to prevent any damage.
Schedule C – Operational & Statutory Conditions
These conditions comprise the operational and statutory conditions which must be satisfied under the Environmental Planning and Assessment Act 1979 and the Environmental Planning & Assessment Regulation 2000. Please refer to the full details of the Act and Regulations as in force, at www.legislation.nsw.gov.au.
It is the responsibility of the beneficiary of this consent to determine which operational and statutory conditions apply.
86. OPER1001 - Requirement for a Construction Certificate - The erection of a building must not commence until a Construction Certificate has been issued by the consent authority, the Council (if the Council is not the consent authority) or an accredited certifier.
87. OPER1002 - Appointment of a Principal Certifying Authority - The erection of a building must not commence until the beneficiary of the development consent has:
(a) appointed a Principal Certifying Authority (PCA) for the building work; and
(b) if relevant, advised the PCA that the work will be undertaken as an Owner-Builder.
If the work is not going to be undertaken by an Owner-Builder, then the beneficiary of the consent must:
(a) appoint a Principal Contractor to undertake the building work. If residential building work (within the meaning of the Home Building Act 1989) is to be undertaken, the Principal Contractor must be a holder of a contractor licence; and
(b) notify the PCA of the details of any such appointment; and
(c) notify the Principal Contractor of any critical stage inspections or other inspections that are required to be carried out in respect of the building work.
88. OPER1003 - Notification of Critical Stage Inspections - No later than two (2) days before the building work commences, the PCA must notify:
(a) the consent authority and the Council (if not the consent authority) of his or her appointment; and
(b) the beneficiary of the development consent of the critical stage inspections and other inspections that are to be carried out with respect to the building work.
89. OPER1004 - Notice of Commencement - The beneficiary of the development consent must give at least two (2) days notice to the Council and the PCA of their intention to commence the erection of a building.
90. OPER1007 - Critical Stage Inspections - The last critical stage inspection must be undertaken by the Principal Certifying Authority. The critical stage inspections required to be carried out vary according to Building Class under the Building Code of Australia and are listed in Clause 162A of the Environmental Planning and Assessment Regulation 2000.
91. OPER1008 - Notice to be given prior to critical stage inspections - The principal contractor for a building site, or the owner-builder, must notify the principal certifying authority at least 48 hours before each required inspection needs to be carried out.
Where Georges River Council has been appointed PCA, forty eight (48) hours notice in writing, or alternatively twenty four (24) hours notice by facsimile or telephone, must be given to when specified work requiring inspection has been completed.
92. OPER1009 - Occupation Certificate - A person must not commence occupation or use of the whole or any part of a new building unless an Occupation Certificate has been issued in relation to the building or part.
Only the Principal Certifying Authority appointed for the building work can issue the Occupation Certificate.
If you need more information, please contact the Senior Development Assessment Planner, below on 9330-6400 during normal office hours.
|
Attachment ⇩1 |
Site Plan DA-1000 - 19-23 Empress Street Hurstville |
|
Attachment ⇩2 |
North East Elevation DA-1110 - 19-23 Empress Street Hurstville |
|
Attachment ⇩3 |
North West Elevation DA-1120 - 19-23 Empress Street Hurstville |
|
Attachment ⇩4 |
South West Elevation DA-1130 - 19-23 Empress Street Hurstville |
|
Attachment ⇩5 |
South East Elevation DA-1140 - 19-23 Empress Street Hurstville |
|
Georges River Council - Georges River Local Planning Panel (LPP) - Monday, 7 May 2018 LPP013-18 19-23 Empress Street Hurstville [Appendix 1] Site Plan DA-1000 - 19-23 Empress Street Hurstville |
Page 103 |
|
Georges River Council – Local Planning Panel Monday, 7 May 2018 |
Page 108 |
REPORT TO GEORGES RIVER COUNCIL
LPP MEETING OF Monday, 07 May 2018
|
LPP Report No |
LPP014-18 |
Development Application No |
DA2017/0491 |
|
Site Address & Ward Locality |
325-329 Princes Highway Carlton Kogarah Bay Ward |
||
|
Proposed Development |
Demolition of existing structures and construction of a six storey mixed use development comprising three commercial tenancies, 45 residential units, basement car parking and landscaping, and occupation of shop 3 as a veterinarian hospital |
||
|
Owners |
Mr W Chan, Ms P Seanlaw, Mr P Britton |
||
|
Applicant |
Mr A Parris |
||
|
Planner/Architect |
Planning Ingenuity/Derek Rathby Architecture |
||
|
Date Of Lodgement |
18/10/2017 |
||
|
Submissions |
One |
||
|
Cost of Works |
$14,911,451.05 |
||
|
Local Planning Panel Criteria |
Development is defined as a “residential flat building” |
||
|
List of all relevant s.4.15 matters (formerly s79C(1)(a)) |
State Environmental Planning Policy No 55 - Remediation of Land, State Environmental Planning Policy (Building Sustainability Index: BASIX) 2004, State Environmental Planning Policy No 65 – Design Quality of Residential Apartment Development, Kogarah Local Environmental Plan 2012, Kogarah Development Control Plan 2013 |
||
|
List all documents submitted with this report for the Panel’s consideration |
Archtectural plans Statement of Environmental Effects Submission to the applicaiton
|
||
|
Report prepared by |
Senior Development Assessment Officer |
||
|
|
Summary of matters for consideration under Section 4.15 Have all recommendations in relation to relevant s4.15 matters been summarised in the Executive Summary of the assessment report? |
Yes |
|
Legislative clauses requiring consent authority satisfaction Have relevant clauses in all applicable environmental planning instruments where the consent authority must be satisfied about a particular matter been listed, and relevant recommendations summarised, in the Executive Summary of the assessment report? |
Yes |
|
Clause 4.6 Exceptions to development standards If a written request for a contravention to a development standard (clause 4.6 of the LEP) has been received, has it been attached to the assessment report? |
Not Applicable
|
|
Special Infrastructure Contributions Does the DA require Special Infrastructure Contributions conditions (under s7.24)? |
Not Applicable |
|
Conditions Have draft conditions been provided to the applicant for comment? |
No, standard conditions have been attached. Applicant verbally advised of this |
|
Site Plan
|
Executive Summary
1.
· Council is in receipt of an application for the demolition of existing structures and construction of a 6 storey mixed use development comprising 3 commercial tenancies, 45 residential units, basement car parking and landscaping, and occupation of shop 3 as a veterinarian hospital.
· The site is zoned B2 Local Centre under Kogarah Local Environmental Plan 2012 and the proposal is a permissible form of development with Council’s consent. The proposed development satisfies the relevant objectives contained within the LEP and complies with the relevant requirements but seeks a variation to the development standards relating to height for the lift overrun and associated roof structures to the roof top communal open space areas. This variation is discussed in the report.
· The application was notified/advertised to residents/owners in accordance with Council’s requirements and one submission was received in reply. The issues raised in the submission relate to potential privacy impacts from balconies and windows. These issues are discussed in the report.
· Following a detailed assessment of the proposal, Development Application No. DA2017/0491 is recommended for approval subject to the conditions of consent specified in the report.
DESCRIPTION OF THE PROPOSAL
2. The proposed development seeks approval for the demolition of existing structures and construction of a six (6) storey mixed use development comprising a three (3) commercial tenancies, 45 residential units, basement car parking and landscaping, occupation of shop 3 for a veterinarian hospital. Specifically, the proposed development will contain the following:
Lower Basement:
§ Parking for 48 cars (including adaptable spaces)
§ Individual resident’s storage space
§ Plant rooms
§ Lift cores & fire stairs
Upper Basement:
§ Parking for 41 cars (including adaptable spaces)
§ Parking for bicycles
§ Parking for motorbikes
§ Parking for delivery vehicles
§ Individual resident’s storage space
§ Plant room
§ Lift cores & fire stairs
Ground Floor Plan:
§ 240sqm of retail areas in 2 shops
§ 250sqm veterinarian hospital
§ Accessible wc
§ Residential entry & lobby
§ 1 x 1 bedroom and 3 x 2 bedroom units
§ Plant and services areas
§ Loading dock/service area
§ Waste and recycling bin storage areas
Levels 1, 2 and 3:
§ 1 x 1 bedroom and 7 x 2 bedroom and 1 x 3 bedroom units per level
§ Lift lobby/circulation corridor & fire stairs
Levels 4 and 5:
§ 1 x 1 bedroom and 5 x 2 bedroom and 1 x 3 bedroom units per level
§ Lift lobby/circulation corridor and fire stairs
§ Communal open space on level 4 (210sqm)
Roof terrace area
§ Communal open space on level 4 (260sqm)
§ Lift lobby/circulation corridor and fire stairs


Veterinarian hospital operation details
· 8am to 8pm (Monday to Friday) and 9am to 4pm (Saturday and Sunday);
· Weekday staff maximum of 8, weekend staff maximum of 4;
· On the weekend there are 4 staff on Saturday and 3 on Sunday;
· Waste is collected by a private waste management company every one to two weeks to collect clinical waste and cadavers for cremation;
· General waste is collected by Council’s bin collection service
· The proposed signage for the shopfront windows is exempt development under Division 2 Subdivision 7 of the SEPP (Exempt and Complying Development Codes) 2008

DESCRIPTION OF THE SITE AND LOCALITY
3. The subject site is known as 325 to 329 Princes Highway, Carlton, with a secondary frontage to Edward Street. The site has a regular shape, with a frontage to Princes Highway of 39.755m, a frontage to Edward Street of 45.72m and site area of 1,817.1sqm. The site is relatively flat with a slight fall to Edward Street. The site does not contain any significant trees. There are two street trees on the Council nature strip on Princes Highway and one street tree on the nature strip on Edward Street.
Existing on the site at the corner of Princes Highway and Edward Street is the St George Animal Hospital and on the site facing Princes Highway is a part one/part two storey commercial building. This building has vehicular access from the highway to the rear of the site.
The site forms part of the Carlton Local Centre. The existing area is characterised by predominantly commercial uses on the north-western side of Princes Highway with low density residential development to the north and south on land within the ‘R2’ low density residential zone. The sites to the west are occupied by one and two storey commercial developments that extend to the intersection with Arthur Street.
To the north and east of Edward Street are single storey dwelling houses. The dwelling located at 73 Edward Street, which directly adjoins the site, is a single storey semi-detached dwelling with a driveway along the shared site boundary and private open space located at the rear of the site on the south eastern side of the dwelling.

Aerial map

View of site from Princes Hwy (source: SEE)

View of site from Edward St (source: SEE)
ZONING
4. The subject site is zoned B2 – Local Centre under the Kogarah Local Environmental Plan 2012 and the proposed development is permissible in the zone with the consent of Council. The zone objectives are:
• To provide a range of retail, business, entertainment and community uses that serve the needs of people who live in, work in, and visit the local area
• To encourage employment opportunities in accessible locations
• To maximise public transport patronage and encourage walking and cycling
The proposed development complies with the zone objectives in that it will provide retail and business uses on the ground level which will serve the needs of the people of the local area. The proposed veterinarian hospital will replace the existing animal hospital which has been operating successfully on the site for many years and provides employment opportunities. The proposed development provides car parking spaces, bicycle and motorbike parking which provides various transportation options for residents, tenants and visitors to the development.

Zoning map
APPLICABLE PLANNING CONTROLS
PLANNING ASSESSMENT
Environmental Planning Instruments
Kogarah Local Environmental Plan 2012
5. The provisions of the Kogarah Local Environmental Plan (KLEP) apply to the proposed development which complies with the relevant provisions as follows.
|
Clause |
Standard |
Proposal |
Complies |
|
2.3 – Zone objectives and land use table |
B2 Local Centre |
Consistent with the zone objectives and land use table |
Yes |
|
4.3 – Height of Buildings |
21m as identified on Height of Buildings Map |
Approximately 23m maximum |
No (1) |
|
4.4 – Floor Space Ratio |
2.5:1 as identified on Floor Space Ratio Map |
FSR = 2.49:1 |
Yes |
|
6.2 – Earthworks |
Before granting development consent for earthworks the consent authority must consider: -Impact on drainage patterns and soil stability -The effect on likely future use or redevelopment of the land -The quality of the fill or the excavated soil -The effect on existing and likely amenity of adjoining properties -The source of fill material and the destination of excavated material - The likelihood of disturbing relics -The potential impacts on any watercourse, drinking water catchment or environmentally sensitive area |
The proposed earthworks are considered acceptable having regard to the provisions of this clause as the works are not likely to have a detrimental impact on environmental functions and processes, neighbouring uses, cultural or heritage items or features of the surrounding land.
|
Yes |
(1) Height of Buildings
The proposed development seeks a variation to the development standard relating to height. KLEP identifies a maximum height of 21m whereas the proposed development will have a maximum height of approximately 23m for part of the development. A variation to the height can be considered under Clause 4.6 – Exceptions to Development Standards of the KLEP. In assessing the variation, the questions identified in Clause 4.6 have to be considered. The applicant’s town planning consultant, Planning Ingenuity has provided a response to these questions as details below.

Diagram showing height above 21m in red
4.6 Exceptions to development standards
6.
(1) The objectives of this clause are as follows:
(a) to provide an appropriate degree of flexibility in applying certain development standards to particular development,
(b) to achieve better outcomes for and from development by allowing flexibility in particular circumstances.
Applicant’s comment: Objective 1(a) of Clause 4.6 is satisfied by the discretion granted to a consent authority by virtue of subclause 4.6(2) and the limitations to that discretion contained in subclauses (3) to (8). This submission will address the requirements of subclauses 4.6(3) & (4) in order to demonstrate to Council that the exception sought is consistent with the exercise of “an appropriate degree of flexibility” in applying the development standard, and is therefore consistent with objective 1(a). In this regard, the extent of the discretion afforded by subclause 4.6(2) is not numerically limited, in contrast with the development standards referred to in, subclause 4.6(6). Objective 1(b) of Clause 4.6 is addressed later in this request.
Comment: The development complies with the 21m height standard except for a portion of the roof for the lift overrun and associated structures (stairs, pergola) to the communal open space areas which has a maximum height of approximately 23m (9.5% variation). The Design Review Panel requested that a second communal open space area be provided as a roof terrace. This was considered appropriate so that apartments with access to each the two lifts have access to a communal open space area, rather than creating additional bulk to the development by providing additional corridors to link the two lift areas so to achieve access to one communal open space area.
Flexibility in applying the development standard is considered appropriate in this instance due to the specific site circumstances. The development has been designed so that this communal open space area is located towards the corner of the site and way from the adjoining residential developments. In this regard a better design and amenity outcome has been achieved by providing a second communal open space area to the roof.
(2) Development consent may, subject to this clause, be granted for development even though the development would contravene a development standard imposed by this or any other environmental planning instrument. However, this clause does not apply to a development standard that is expressly excluded from the operation of this clause.
Applicant’s comment: The development standards in clause 4.3 are not “expressly excluded” from the operation of clause 4.6.
Comment: The development standard relating to height is not excluded from the provisions of Clause 4.6 and a variation to the development standard can be considered.
(3) Development consent must not be granted for development that contravenes a development standard unless the consent authority has considered a written request from the applicant that seeks to justify the contravention of the development standard by demonstrating:
(a) that compliance with the development standard is unreasonable or unnecessary in the circumstances of the case, and
(b) that there are sufficient environmental planning grounds to justify contravening the development standard.
Applicant’s comment: The objectives and relevant provisions of Clause 4.3 are as follows, inter alia:
“ (a) to establish the maximum height for buildings,
(b) to minimise the impact of overshadowing, visual impact and loss of privacy on adjoining properties and open space areas,
(c) to provide appropriate scale and intensity of development through height controls.”
The Height of Buildings Map nominates a maximum height of 21m for the site. It is requested that an exception to this development standard be granted pursuant to Clause 4.6 so as to permit a maximum height of 23m to the lift overrun. In order to address the requirements of subclause 4.6(4)(a)(ii), each of the relevant objectives of Clause 4.3 are addressed in turn below.
Objective (a) – The maximum height has been established at 21m for the site. The proposed development provides a mixed use development and meets the objectives of the B2 Local Centre zone objectives. The proposed development is in line with the type of development envisaged for the site. The degree to which the proposal exceeds the maximum height is minor and complies with the maximum FSR for the site. For these reasons the proposed height meets Objective (a).
Objective (b) - Relates to minimising shadows on adjoining buildings and open space areas, visual impact and loss of privacy. The proposal is six stories and provides a compliant setback to the rear to ensure separation from the adjoining residential land use to the north. The proposal does not overshadow any public parks and does not cast shadow over any adjoining residential development.
Given the location of the proposed lift overrun non-compliance centrally within the building and the architectural treatment of the building in terms of setbacks and materials and viewing points from which the non-compliance would be seen, visual impacts not be created. The proposed development provides for building setbacks that comply with the controls of the DCP. The non-compliance cannot be seen from the street or adjoining residential properties. For these reasons the proposed height meets Objective (b).
Objective (c) - Seeks to ensure development provides a suitable scale and intensity. The minor non-compliance of the height does not offend the objective of providing an appropriate scale and intensity of development at the site. The proposal is in keeping with the desired built form for the site and future development to the west in accordance with the DCP controls. The built form, bulk and scale of is appropriate for the site and the proposed non-compliance with height will not be perceptible in the streetscape and character of the locality. The proposed development is therefore consistent with the objectives for maximum height, despite the numeric non-compliance.
Clause 4.6 (4) also requires consideration of the relevant zone objectives. The objectives of the Zone B2 Local Centre are as follows:
· “To provide a range of retail, business, entertainment and community uses that serve the needs of people who live in, work in and visit the local area.
· To encourage employment opportunities in accessible locations.
· To maximise public transport patronage and encourage walking and cycling.”
The proposed height non-compliance does not impact upon the achievement of the zone objectives. The proposed use will introduce space for a variety of commercial uses on the ground floor in a highly accessible area. These uses will be compatible with the residential apartments creating a mix of uses which will contribute to the economic strength of the centre. The proposed floor to floor heights will provide flexibility for use of the ground floor commercial spaces and enhance amenity for the residents.
The height variation is largely necessary to achieve lift access to all levels of the development and does not contravene any objectives for the zone and for that reason the proposed variation is acceptable.
Having regard to Clause 4.6(3)(b) and the need to demonstrate that there are sufficient environmental planning grounds to justify contravening the development standard, it is considered that there is an absence of significant impacts of the proposed non-compliance on the amenity of future building occupants, on area character and on neighbouring properties.
On “planning grounds” and in order to satisfy that the proposal meets objective 1(b) of clause 4.6 in that allowing flexibility in the particular circumstances of this development will achieve “a better outcome for and from development”, it is considered that the proposal provides for unrestricted accessibility to all occupants and visitors to the development by providing lift access which would not be achieved if the lift were removed to meet the maximum building height. Additionally, the floor to floor heights will provide flexibility for use of the ground floor commercial spaces and enhance amenity for the residents.
The variation to building height to accommodate the lift overrun does not impact on solar access, views or outlook and the streetscape appearance is not impacted by either aspect of the variation. As indicated, the proposal provides for a floor space ratio which complies with the maximum permitted and accordingly, the height breach is not associated with additional density beyond what is expected by the controls.
Returning to Clause 4.6(3)(a), in Wehbe V Pittwater Council (2007) NSW LEC 827 Preston CJ sets out ways of establishing that compliance with a development standard is unreasonable or unnecessary. It states, inter alia:
An objection under SEPP 1 may be well founded and be consistent with the aims set out in clause 3 of the Policy in a variety of ways. The most commonly invoked way is to establish that compliance with the development standard is unreasonable or unnecessary because the objectives of the development standard are achieved notwithstanding non-compliance with the standard.
The judgement goes on to state that:
The rationale is that development standards are not ends in themselves but means of achieving ends. The ends are environmental or planning objectives. Compliance with a development standard is fixed as the usual means by which the relevant environmental or planning objective is able to be achieved. However, if the proposed development proffers an alternative means of achieving the objective strict compliance with the standard would be unnecessary (it is achieved anyway) and unreasonable (no purpose would be served).
Preston CJ in the judgement then expressed the view that there are five different ways in which an objection may be well founded and that approval of the objection may be consistent with the aims of the policy, as follows (with emphasis placed on number 1 for the purposes of this Clause 4.6 variation [our underline]):
· The objectives of the standard are achieved notwithstanding non-compliance with the standard;
· The underlying objective or purpose of the standard is not relevant to the development and therefore compliance is unnecessary;
· The underlying object of purpose would be defeated or thwarted if compliance was required and therefore compliance is unreasonable;
· The development standard has been virtually abandoned or destroyed by the Council's own actions in granting consents departing from the standard and hence compliance with the standard is unnecessary and unreasonable;
· The zoning of the particular land is unreasonable or inappropriate so that a development standard appropriate for that zoning is also unreasonable and unnecessary as it applies to the land and compliance with the standard that would be unreasonable or unnecessary. That is, the particular parcel of land should not have been included in the particular zone.
Having regard to all of the above, it is our opinion that compliance with the maximum height development standard is unnecessary in the circumstances of this case as the development meets the objectives of that standard and the zone objectives. Therefore, insistence upon strict compliance with that standard would be unreasonable. On this basis, the requirements of Clause 4.6(3) are satisfied.
Comment: The applicant’s written request to vary the development standard has been considered and it is concluded that the applicant has justified that compliance with the development standard is unreasonable or unnecessary in the circumstances of the case, and that there are sufficient environmental planning grounds to justify contravening the development standard. This conclusion has been reached for the following reasons:
§ The height of the proposed development complies with the 21m height standard except for a small portion of the roof area relating to the lift overrun, stairs and the pergola to the communal open space. Variation to the height is approximately 2m (9.5% variation) and is located towards the corner of the site and away from adjoining residential properties. When viewed from the street the additional height is not readily visible.
§ The additional height to the development does not result in any additional privacy or shadow impacts to adjoining developments. Shadow diagrams submitted with the application show that adjoining developments will receive sunlight in excess of 3 hours between 9am and 3pm on June 21.
§ The floor space ratio of the development complies with the relevant development standard which demonstrates that the height of the development is not a result of additional floor area being provided to the development.
§ The proposed development is indicative of and consistent with the design of mixed developments which traditionally contain roof top communal open space areas which provide privacy and increased amenity to residents, rather than ground floor areas which adjoin the ground floor commercial uses.
(4) Development consent must not be granted for development that contravenes a development standard unless:
(a) the consent authority is satisfied that:
(i) the applicant’s written request has adequately addressed the matters required to be demonstrated by subclause (3), and
(ii) the proposed development will be in the public interest because it is consistent with the objectives of the particular standard and the objectives for development within the zone in which the development is proposed to be carried out, and
(b) the concurrence of the Director-General has been obtained.
Applicant’s comment: See comment provided above.
Comment: It is considered that the applicant has adequately addressed the matters identified in (3) above and the proposed development is consistent with the objectives identified in Clause 4.3 Height of Buildings. The height of the proposed development will not result in any additional impacts to adjoining developments and does not compromise any views or heritage items (of which there are none in the vicinity of the site). The design of the development allows for appropriate and equitable access to the communal open space located on the roof. The scale of the development is consistent with the expectations of the planning requirements for mixed developments.
The objectives of the B2 – Local Centre zone are:
• To provide a range of retail, business, entertainment and community uses that serve the needs of people who live in, work in, and visit the local area
• To encourage employment opportunities in accessible locations
• To maximise public transport patronage and encourage walking and cycling
The proposed development complies with the zone objectives in that it will provide retail and business uses on the ground level which will serve the needs of the people of the local area. The proposed veterinarian hospital will replace the existing animal hospital which has been operating successfully on the site for many years and provides employment opportunities. The proposed development provides car parking spaces, bicycle and motorbike parking which provides various transportation options for residents, tenants and visitors to the development. The provision of shop-top housing reflects the residential uses surrounding the subject site.
The variation to the height of 21m for the lift overrun and associated structures to the communal open space areas does not compromise this. The proposed development provides communal open space on the roof which has equitable access for all residents and has improved amenity when compared to it being provided on ground level where it would adjoin the commercial uses.
(5) In deciding whether to grant concurrence, the Director-General must consider:
(a) whether contravention of the development standard raises any matter of significance for State or regional environmental planning, and
(b) the public benefit of maintaining the development standard, and
(c) any other matters required to be taken into consideration by the Director-General before granting concurrence.
Applicant’s comment: No comment required.
Comment: The variation to the height does not raise any matters of significance for State or regional environmental planning. In this instance there is no public benefit in maintaining the development standard as the variation proposed is considered to be minor and relates to the lift overrun and associated structures to the communal open space. The proposed development complies with the development standard relating to floor space ratio and in this regard the additional height does not result in additional floor area being introduced to the development. The development results in a good design outcome for the adjoining developments and the streetscape.
(6) Development consent must not be granted under this clause for a subdivision of land in Zone RU1 Primary Production, Zone RU2 Rural Landscape, Zone RU3 Forestry, Zone RU4 Primary Production Small Lots, Zone RU6 Transition, Zone R5 Large Lot Residential, Zone E2 Environmental Conservation, Zone E3 Environmental Management or Zone E4 Environmental Living if:
(a) the subdivision will result in 2 or more lots of less than the minimum area specified for such lots by a development standard, or
(b) the subdivision will result in at least one lot that is less than 90% of the minimum area specified for such a lot by a development standard.
Applicant’s comment: No comment required.
Comment: Subdivision of land is not proposed in this application.
(7) After determining a development application made pursuant to this clause, the consent authority must keep a record of its assessment of the factors required to be addressed in the applicant’s written request referred to in subclause (3).
Applicant’s comment: No comment required.
Comment: A record of the assessment can be retained in Council’s records.
(8) This clause does not allow development consent to be granted for development that would contravene any of the following:
(a) a development standard for complying development,
(b) a development standard that arises, under the regulations under the Act, in connection with a commitment set out in a BASIX certificate for a building to which State Environmental Planning Policy (Building Sustainability Index: BASIX) 2004 applies or for the land on which such a building is situated,
(c) clause 5.4.
Applicant’s comment: No comment required.
Comment: The proposed development is not complying development. A BASIX Certificate has been submitted with the application and the commitments in the Certificate can be applied to the development irrespective of the height of the development.
Environmental Planning and Assessment Regulations 2000
7. The proposed development satisfies the relevant matters for consideration for development under the Regulations.
State Environmental Planning Policies
8. Compliance with the relevant state environmental planning policies is detailed and discussed in the table below.
|
State Environmental Planning Policy |
Complies |
|
Greater Metropolitan Regional Environmental Plan No 2 – Georges River Catchment |
Yes |
|
State Environmental Planning Policy 55 – Remediation of Land |
Yes (1) |
|
State Environmental Planning Policy (Building Sustainability Index BASIX) 2004 |
Yes |
|
State Environmental Planning Policy (Infrastructure) 2007 |
Yes (2) |
(1) State Environmental Planning Policy 55 – Remediation of Land
The application is accompanied by a Preliminary Site Investigation which determines if the subject site is suitable for the proposed residential use. A Preliminary Site Investigation was undertaken by EI Australia (report number E23537.E01_Rev0, dated 25 September 2017) which concludes that the site is suitable for the proposed development. The report recommends that certain procedures be undertaken prior to any development/earthworks.
(2) State Environmental Planning Policy (Infrastructure) 2007 (SEPP (Infrastructure))
The proposed development is subject to Clause 101 and Clause 102 of the SEPP (Infrastructure) as the subject site is located on Princes Highway which is listed as a classified road. Clause 101 requires that the development does not compromise vehicle movements on the classified road. The proposed development has vehicle access from Edward St which does not compromise vehicle movements on Princes Highway. The application was referred to Roads and Maritime Services (RMS) who has advised that no objection is raised to the development subject to conditions of consent being attached to any consent granted.
Clause 102 requires that residential developments located adjoining a road corridor or road that experiences high volumes of traffic to be considered in terms of potential noise and vibration from the road. The application is accompanied by an acoustic assessment of the potential impacts of road noise and vibration on the proposed development. An Acoustic Report entitled DA Acoustic Assessment prepared by Vipac Engineers and Scientists (reference no 20E-17-0115-TRP-458251-2, dated 19 September 2017). The report concludes that the proposed development can meet the requirements of Clause 102 subject to the recommendations of the report being adopted in the design of the development. The recommendations include treatment of windows and doors, insulation to ceilings, and material for the external walls of the apartments and treatment of walls, doors and windows for the veterinarian hospital.
STATE ENVIRONMENTAL PLANNING POLICY NO 65 – DESIGN QUALITY OF RESIDENTIAL APARTMENT DEVELOPMENT
9. The extent to which the proposed development complies with the controls and principles in the State Environmental Planning Policy 65 – Design Quality of Residential Apartment Development (SEPP 65) and the Apartment Design Guide (ADG) is detailed and discussed in the tables below.
Application of SEPP 65
|
Clause |
Standard |
Proposal |
Complies |
|
3 - Definitions |
Complies with definition of “Residential Apartment Development” (RAD) |
Complies with definition |
Yes |
|
4 - Application of Policy |
Development involves the erection of a new RFB, substantial redevelopment or refurbishment of a RFB or conversion of an existing building into a RFB |
Erection of a new residential flat building (mixed development) |
Yes |
|
50 – Development Applications |
Design verification statement provided by qualified designer
Registered Architect Name and Registration No. |
Design Verification Statement provided by Registered Architect Mr Derek Rathby (Registration No 7469) |
Yes |
Part 2 Design Quality Principles under the SEPP
|
Clause |
Standard |
Proposal |
Complies |
|
1 – Context and neighbourhood character |
Good design responds and contributes to its context (e.g. natural and built features of an area) |
Proposed development has been designed to respond to its context and the surrounding residential development |
Yes |
|
2 – Built form and scale |
Good design provides an appropriate scale in terms of the existing and desired future character and built form that suits the scale of the street and surrounding buildings |
The proposed development provides an appropriate scale in relation to the relevant requirements relating to floor space ratio, height, and setbacks |
Yes |
|
3 - Density |
Good design has a density appropriate for a site and its context, in terms of projected population and can be sustained by existing and proposed infrastructure |
Proposed development complies with the floor space ratio requirements |
Yes |
|
4 – Sustainability |
Good design combines positive environmental, social and economic outcomes. Includes use of natural cross ventilation and sunlight, recycling and reuse of materials and waste, use of sustainable materials and deep soil zones |
Proposed development provides appropriate outcomes for sustainability, through energy efficiency measures, landscape open space areas, cross ventilation and sunlight |
Yes |
|
5 - Landscape |
Good design recognises that together landscape and buildings operate as an integrated and sustainable system, resulting in attractive developments with good amenity, enhances the development’s environmental performance, optimises useability, privacy and opportunities for social interaction, equitable access, and practical management |
Landscaping to the site will be in the form of a communal open space areas and a 6m wide deep soil zone to the majority of the north (side) setback which adjoins the residential development on Edward St. The proposed planting to this area will improve the current site conditions. |
Yes |
|
6 - Amenity |
Good design influences internal and external amenity for residents and neighbours |
The proposed development mitigates privacy impacts with the location of balconies away from the adjoining residential zone on Edward St. The windows and balconies located adjoining this area have been provided with privacy screens to reduce overlooking to adjoining developments. |
Yes |
|
7 – Safety |
Good design optimises safety and security, both internal to the development and for the public domain |
The proposed development is consistent with crime prevention principles |
Yes |
|
8 –Housing diversity and social interaction |
Good design achieves a mix of apartment sizes, providing housing choice for different demographics, living needs and household budgets. Includes different types of communal spaces for social interaction |
The proposed development provides apartments with a variety of bedroom numbers and design layouts. Two communal open space areas have been provided which will be accessible to all residents. |
Yes |
|
9 - Aesthetics |
Good design achieves a built form that has a balanced composition of elements, a variety of materials, colours and textures and responds to the future local context |
The design of development and proposed external materials and finishes are appropriate. The proposed development results in a good architectural outcome. |
Yes |
Clause 30 – Consideration of Apartment Design Guide
|
Clause |
Standard |
Proposal |
Complies |
|
Objective 3D-1
|
1. Communal open space has a minimum area equal to 25% of the site. -Where it cannot be provided on ground level it should be provided on a podium or roof
-Where developments are unable to achieve the design criteria, such as on small lots, sites within business zones, or in a dense urban area, they should: • provide communal spaces elsewhere such as a landscaped roof top terrace or a common room • provide larger balconies or increased private open space for apartments • demonstrate good proximity to public open space and facilities and/or provide contributions to public open space
2. Developments achieve a minimum of 50% direct sunlight to the principal usable part of the communal open space for a minimum of 2 hours between 9 am and 3 pm on 21 June (mid winter) |
470sqm (25.9%) communal open space provided to level 4 and the roof above level 5.
The communal open space area has good amenity in that it receives at least 3 hours sunlight during winter and is a functional area with landscaping, bbq facilities and seating provided.
|
Yes
|
|
Objective 3E-1
|
1. Deep soil zones are to meet the following minimum requirements:
-Where the site is less than 650sqm = no minimum dimension
-Where site area is between 650sqm and 1500sqm = 3m minimum dimension
-Where the site is more than 1500sqm = 6m minimum dimension
Deep soil = 7% Achieving the design criteria may not be possible on some sites including where: • the location and building typology have limited or no space for deep soil at ground level (eg central business district, constrained sites, high density areas, or in centres) • there is 100% site coverage or non-residential uses at ground floor level Where a proposal does not achieve deep soil requirements, acceptable stormwater management should be achieved and alternative forms of planting provided such as on structure. |
Site area is 1817.1sqm = 6m deep soil area required. The proposed development provides 146sqm (8%) of the site located adjoining the northern boundary. An additional small deep soil area of 17sqm is provided adjoining the Princes Highway elevation to protect the root zone of the street tree to be retained.
|
Yes |
|
Objective 3F-1 |
1. Separation between windows and balconies is provided to ensure visual privacy is achieved.
Minimum required separation distances from buildings to the side and rear boundaries are as follows:
-Up to 12m (4 storeys) Habitable rooms and balconies = 6m Non-habitable rooms = 3m
-Up to 25m (5-8 storeys) Habitable rooms and balconies = 9m Non-habitable rooms = 4.5m
-Over 25m (9+ storeys) Habitable rooms and balconies = 12m Non-habitable rooms = 6m |
-Up to 23m (6 storeys) = 9m-10m separation distance provided to the closest adjoining residential zone (rear boundary) on Edward St. The adjoining site on Princes Highway is zoned B2 Local Centre and the development is built to the boundary with a solid wall on the boundary. Any redevelopment of the adjoining sites on Princes Highway will be built to the boundary to have a continuous façade to the Princes Highway. |
Yes
|
|
Objective 3J-1 |
1. For development in the following locations: - On sites that are within 800m of a railway station or light rail stop in the Sydney Metropolitan Area;
- The minimum car parking requirement for residents and visitors is set out in the Guide to Traffic Generating Developments, or the car parking requirement prescribed by the relevant Council, whichever is less
The car parking needs for a development must be provided off street |
The development complies with the requirements of the Kogarah Development Control Plan in relation to car parking and other facilities
|
Yes
|
|
Objective 4A-1 |
1. Living rooms and private open spaces of at least 70% of apartments in a building receive a minimum of 2 hours direct sunlight between 9 am and 3 pm at mid winter in the Sydney Metropolitan Area
3. A maximum of 15% of apartments in a building receive no direct sunlight between 9 am and 3 pm at mid winter |
Living room and private open spaces of 75% of units receive at least 2 hours of solar access.
<15% of units receive no direct sunlight |
Yes
|
|
Objective 4B-3 |
1. At least 60% of apartments are naturally cross ventilated in the first nine storeys of the building. Apartments at ten storeys or greater are deemed to be cross ventilated only if any enclosure of the balconies at these levels allows adequate natural ventilation and cannot be fully enclosed
2. Overall depth of a cross-over or cross-through apartment does not exceed 18m, measured glass line to glass line |
84% of units are appropriately cross ventilated.
Maximum depth is approximately 12.5m
|
Yes
|
|
Objective 4C-1 |
1. Measured from finished floor level to finished ceiling level, minimum ceiling heights are: Habitable rooms = 2.7m Non-habitable rooms = 2.4m |
2.7m for all rooms |
Yes
|
|
Objective 4D-1 |
1. Apartments are required to have the following minimum internal areas:
1 bedroom = 50sqm 2 bedroom = 70sqm 3 bedroom = 90sqm
The minimum internal areas include only one bathroom. Additional bathrooms increase the minimum internal area by 5sqm each
2. Every habitable room must have a window in an external wall with a total minimum glass area of not less than 10% of the floor area of the room. Daylight and air may not be borrowed from other rooms |
1 bedroom = 50-70sqm 2 bedroom = 80sqm 3 bedroom = 90-100sqm
Window provided for each habitable room with appropriate glass area provided. |
Yes
|
|
Objective 4D-2 |
1. Habitable room depths are limited to a maximum of 2.5 x the ceiling height
2. In open plan layouts (where the living, dining and kitchen are combined) the maximum habitable room depth is 8m from a window |
Within range.
Open plan layouts less than 8m from window. |
Yes
|
|
|
1. Master bedrooms have a minimum area of 10sqm and other bedrooms 9sqm (excluding wardrobe space)
2. Bedrooms have a minimum dimension of 3m (excluding wardrobe space)
3. Living rooms or combined living/dining rooms have a minimum width of: -3.6m for studio and 1 bedroom - 4m for 2 and 3 bedroom apartments
4. The width of cross-over or cross-through apartments are at least 4m internally to avoid deep narrow apartment layouts |
Development complies with these requirements |
Yes
|
|
Objective 4E-1 |
1. All apartments are required to have primary balconies as follows:
-1 bedroom = 8sqm/2m depth -2 bedroom = 10sqm/2m depth -3+ bedroom = 12sqm/2.4m depth
The minimum balcony depth to be counted as contributing to the balcony area is 1m
2. For apartments at ground level or on a podium or similar structure, a private open space is provided instead of a balcony. It must have a minimum area of 15sqm and a minimum depth of 3m |
All balcony areas are greater than dimensions required.
The ground floor units have a courtyard of between 90sqm and 100sqm.
|
Yes
|
|
Objective 4F-1 |
1. The maximum number of apartments off a circulation core on a single level is eight |
Maximum 9 units off two circulation cores |
Yes
|
|
Objective 4G-1 |
1. In addition to storage in kitchens, bathrooms and bedrooms, the following storage is provided:
-1 bedroom = 6m³ -2 bedroom – 8m³ 3 bedroom – 10m³ |
All units are noted as having storage areas that comply with the requirements however storage in basement areas not clearly shown and to be reinforced through a condition of consent. |
Yes, subject to condition of consent
|
|
Objective 4M |
Facades should be well resolved with an appropriate scale and proportion to the streetscape and human scale. |
Façade of development is appropriate |
Yes |
|
Objective 4N |
Roof treatments are integrated into the building design and positively respond to the street. Opportunities to use roof space for residential accommodation and open space are maximised. Incorporates sustainability features. |
Roof design is appropriate and integrated with design of the development. Communal open space provided to the roof area on level 4 and roof terrace above level 5 |
Yes |
|
Objective 4O |
Landscape design is viable and sustainable, contributes to the streetscape and amenity |
Landscape design is appropriate and provides suitable communal and private open space areas |
Yes |
|
Objective 4P |
Planting on structures – appropriate soil profiles are provided, plant growth is optimised with appropriate selection and maintenance, contributes to the quality and amenity of communal and public open spaces |
Landscaping to the site which includes planting on structures has been design by qualified landscape architect with details provided on species, soil depth etc. |
Yes |
|
Objective 4Q |
Universal design – design of apartments allow for flexible housing, adaptable designs, accommodate a range of lifestyle needs |
Design of apartments allows for use by different lifestyles |
Yes |
|
Objective 4R |
Adaptive reuse as apartment of existing buildings- new additions are contemporary and complementary, provide residential amenity while not precluding future adaptive reuse |
New development |
N/A |
|
Objective 4S |
Mixed use developments are provided in appropriate locations, provide active street frontages, residential levels of the building are integrated within the development and safety and amenity is maximised for residents |
The development provides an active street frontage to Princes Highway and Edward Street. Access to residential and commercial areas is separated. Development is consistent with crime prevention principles. |
Yes |
|
Objective 4T |
Awnings and signage – awnings are well located and compliment and integrate with the building design, signage responds to the context and desired streetscape character |
An awning has been incorporated into the façade of the development which is consistent with the streetscape. |
Yes |
|
Objective 4U |
Development incorporates passive environmental design, passive solar design to optimise heat storage in winter and reduce heat transfer in summer, natural ventilation minimises need for mechanical ventilation |
Development incorporates BASIX commitments in the design to provide appropriate energy efficiency features. |
Yes |
|
Objective 4V |
Water management and conservation – potable water use is minimised, stormwater is treated on site before being discharged, flood management systems are integrated inti site design |
Development incorporates appropriate stormwater measures. |
Yes |
|
Objective 4W |
Waste management – storage facilities are appropriately designed, domestic waste is minimised by convenient source separation and recycling |
Waste facilities are provided which are accessible to all residents |
Yes |
|
Objective 4X |
Building maintenance – building design provides protection form weathering, enables ease of maintenance, material selection reduces ongoing maintenance cost |
Design incorporates a mix of external finishes that require minimal maintenance such as face brick, timber and pre-fabricated coloured panels. |
Yes |
Advice from the Design Review Panel
10. This section outlines the advice provided by the Design Review Panel (DRP), the applicant’s and the author’s (DAO) comments. The Panel supports the application subject to the issues raised above being resolved. The application satisfies the design quality principles contained in SEPP 65.
PRINCIPLE 1 - CONTEXT AND NEIGHBOURING CHARACTER
DRP advice: The site is located on a corner with one side immediately adjacent to the Princes Highway and the other to Edward Street. It is in the B2 Local Centre zone with a permissible density of 2.5:1 and a height of 21m. It is subject to constant noise and pollution from the highway traffic to the south. To the north it adjoins a low density R2 Residential zone and to the south west a commercial site also with B2 zoning.
There are two (2) substantial Plane trees on Princes Highway and it is critical that they are conserved. On the Edward Street frontage there are two (2) Robinia trees which appear to be in good health, and the application proposes that one of these is to be removed. The land use along the highway is fringe commercial use.
Applicant’s comment: No comment required.
DAO’s comment: The scale and built form of the development is considered to be appropriate and is responsive to the zone. The development has been designed to reflect its location within a small commercial centre, providing ground floor commercial uses and apartments above. The design of the development does not result in unacceptable privacy and solar access impacts to adjoining developments.
PRINCIPLE 2 – BUILT FORM AND SCALE
DRP advice: The proposed development complies with height and density controls except for a very minor exceedance in height due to the lift over run. This is not a problem. It proposes a six storey development fronting Princes Highway and Edward Street with ground floor commercial and five (5) levels of residential above. A smaller residential wing of four storeys is located to the north west corner. The north west façade of the building is setback 9m from the boundary and the parking levels below are setback 6m which allows for deep soil planting. The following issues are of concern:
· The small communal area in the northern corner which would be of little value and potentially insecure
· The very deep and narrow access corridor through the lift serving the northern group of units
· Access to the Level 4 common terrace for residents in the north eastern block is not provided but this could be resolved with the provision of the suggested lift connections as suggested below, however it is highly desirable to provide a separate communal roof top space for residents of the north eastern block in any case.
· The lack of any linkage between the two service cores given that each is served by only a single lift. It is important that a crossover be provided for access when a lift is out of service. An obvious option which would be acceptable to the Panel is to provide direct access at Level 4 between the two lift cores.
· See comment regarding communal open space under ‘Housing Diversity and Social Interaction’
· The amenity of units facing directly to the highway would be severely compromised by road noise. This issue must be resolved whilst still retaining natural cross ventilation to units.
· Street tree planting in the public domain needs to be addressed. Protection of existing street trees is of critical importance. Drawings need to clearly identify Tree Protection Zones (TPZ) and Critical Root Zones (CRZ) as nominated by the consulting arborist.
Applicant’s comment:
· Small communal area: The subject area on the ground floor is now reconfigured to provide additional private open space and landscaping. A new roof terrace with lift and stair access is provided at roof level. The design including a range of facilities including BBQ and kitchenette, pergola, outdoor seating and deck areas together with generous landscaped planter beds.
· Access to common roof terrace: with the additional roof terrace direct access by both buildings is now provided.
· Amenity of units facing highway: The proposal includes cross ventilation and dual aspect apartments. Cross ventilation can be maintained with closed windows with the incorporation of “silenceair” ventilation commonly used with apartment complexes close to the airport or busy highways
· Street tree planting: architectural and landscape plans are amended to show seven new trees in the grass verge along both street frontages. Tree selection to be nominated by Council in development consent.
· Tree protection: lower basement plan and ground floor plan amended to show tree protection zone and critical root zone.
DAO’s comment: The development as amended is appropriate and responds to the comments of the DRP.
PRINCIPLE 3 – DENSITY
DRP advice: Complying and acceptable.
Applicant’s comment: No comment required.
DAO’s comment: The development complies with the floor space ratio and provides appropriate mix of commercial uses and residential apartments.
PRINCIPLE 4 – SUSTAINABILITY
DRP advice: Given the development of this scale site-wide sustainability measures such as rain water recycling and solar collection should be comprehensively integrated.
Applicant’s comment: The proposal includes good cross ventilation and solar access and complies with SEPP (Building Sustainability Index: BASIX) 2004. The proposal also includes deep soil zones for vegetation and stormwater control.
DAO’s comment: The development provides appropriate sustainability measures.
PRINCIPLE 5 – LANDSCAPE
DRP advice: The proposal includes landscape designs at ground level, small internal courtyard spaces at first floor level, and a communal roof top space at Level 4. The ground level landscape along the north western side provides important amenity benefits for the development as well as for adjacent properties. The design for this space should be completely reconsidered, maximise benefits of deep soil provision, and to increase tree plantings. Consideration should be given to taller specimens to provide shade and screening. As noted above the Panel does not support the inclusion of a communal court yard space in this location.
The communal roof top space on Level 4 is a large paved area with narrow planters around the boundary. Large paved expanses provides very little amenity and this space should be completely redesigned to provide:
· A series of smaller spaces defined by raised planters/gardens providing opportunities for more gathering zones
· A variety of amenities such as bench seating, tables, bbq, etc
· Expanded gardens and planting zones
· Greater diversity of species
· A small enclosed space containing kitchenette facilities should be provided adjacent to the lift
As noted above an additional roof top space should also be provided to serve residents in the north eastern wing of the building. The courtyard spaces on the first floor are largely decorative. The species again requires further refinement to respond to variations in solar access and to provide more visual amenity.
Street tree planting is a critical public domain element that should be provided with the site redevelopment. The Panel is concerned that the established Robinia trees on Edward Street is proposed to be removed to provide for the proposed driveway. To compensate a line of new street trees should be provided along the length of the frontage. Additional Plane trees should be provided to supplement the existing established street trees on the Princes Highway.
The proponents propose to retain the two (2) Plane trees on the highway. Further demonstration of measures used to protect these specimens is required on the architectural, landscape and engineering drawings. Tree protection zones (TPZ) and critical root zones (CRZ) should be clearly indicated on all drawings. The crown of the tree should also be clearly indicated including the extent of branching and capacity to ‘fit’ within the setbacks.
Further information is required on the proposed green walls. Typical details including species, structure and irrigation should be clearly nominated and document in the drawing package. Consideration should be given to ongoing maintenance requirements for these elements including appropriate access for maintenance staff.
Applicant’s comment:
· Landscaping: The landscape plan is significant modified to include an improved design not only for the deep soil and street trees but also for communal roof areas. Additional details for green walls are also provided including installation and maintenance.
· Amenity: The proposal is amended to include an additional communal roof terrace, street trees, trees in deep soil zone, privacy screens to north facing windows. All of which improve not only the amenity for the users but also adjoining and surrounding neighbours
DAO’s comment: The amendments made to the development in terms of landscaping to the site address the issues raised by the DRP.
PRINCIPLE 6– AMENITY
DRP advice: The following issues are of concern:
· Unacceptable entry to north western block. See comment above under ‘Built Form’. The lift will need to be relocated, or some other solution found to resolve this issue.
· The shallow balconies fronting the highway appear to be non-compliant in depth but may have a sound amelioration function, if so this needs to be explained
· Major noise impact from Princes Highway - see comments above under ‘Built Form’
· The viability of the proposed green walls. These, when poorly managed, can be a significant burden for occupants to manage and there is insufficient detail as to how these elements would be maintained and managed beyond construction.
· Communal open space amenity – refer to comments above in ‘Landscape’
Applicant’s comment: Amendments made to address these concerns.
DAO’s comment: The applicant has amended the plans to address the issues raised above. The changes are satisfactory and improve the design and amenity of the development.
PRINCIPLE 7 – SAFETY
DRP advice: Acceptable, however there is concern about the levels interface to the street in front of Shop 1 and 2. Further detail is required.
Applicant’s comment: No comment required.
DAO’s comment: Shop 1 and 2 have appropriate level access from the street which will be reinforced through conditions of consent.
PRINCIPLE 8 - HOUSING DIVERSITY AND SOCIAL INTERACTION
DRP advice: Acceptable mix of units, refer to comments above regarding communal open space.
Applicant’s comment: See comments above.
DAO’s comment: The proposed development provides a range of unit sizes and configurations and includes two communal open space areas for residents.
PRINCIPLE 9 - AESTHETICS
DRP advice: Satisfactory in relation to building form. The dark grey finish to large areas of the exterior is of concern. Greater warmth in colour and tone is recommended. Reliance on the green walls. Insufficient detail is provided as to the maintenance and durability of the green walls. Given they comprise a fair amount of the elevations the durability of these features is a concern.
Applicant’s comment: Additional information provided to address these issues.
DA’s comment: The colour palette of the external finishes has been amended and additional information has been provided in relation to the green walls.
Draft Environmental Planning Instruments
11. There are no draft Environmental Planning instruments that apply to the proposed development.
Development Control Plans
12. The proposed development is subject to the provisions of the Kogarah Development Control Plan 2013 (DCP). The following comments are made with respect to the proposal satisfying the objectives and controls contained within the DCP.
B – General Controls
B2 – Tree Management and Green Web
There are no trees on the site. Three street trees located at the front of the site will be retained and protected. The application is accompanied by a landscape plan prepared by a qualified landscape architect that proposes appropriate landscaping to the site and common open space areas within the rooftop communal open space areas and the ground floor areas.
B4 – Parking and Traffic
The extent to which the proposed development complies with the car parking provisions is outlined in the table below.
|
B4 |
Relevant Requirements |
Proposed |
Complies |
|
Parking requirements |
Residential 1 brm unit - 1 space/unit (5 units) = 5 spaces 2 brm unit - 1.5 spaces/unit (35 units) = 52.5 spaces 2+ brm unit - 2 spaces/unit (5 units) = 10 spaces
Visitor parking - 1/5 units (45 units) = 9 spaces
Residential required = 76.5 spaces
Car wash = 1 space (which can also be a visitor space
Accessible spaces - 1% of car spaces (76.5 spaces) = 1 spaces
Non residential Office/commercial - 1/40sqm (240sqm) = 6 spaces
Veterinarian (medical centre is the most relevant car parking requirements) – 1/40sqm (250sqm) = 6.25 spaces
Non-residential required = 12.25spaces
Total car spaces required = 88.75 (89) spaces |
Provided Residential = 75
Accessible = 10 for residential/2 for non-residential
Car wash = can be provided in a visitor space
Retail = 7
Veterinarian = 7
Total provided = 89 spaces, however two car spaces have to be reallocated to the residential component to meet the relevant requirements
|
Yes, subject to condition of consent |
|
Bicycle parking |
Residential 1/3 dwellings + 1/10 dwellings (visitor) = 19.5 spaces
Non-residential 1/5 car spaces = 2.45 spaces
Total required = 21.95 (22 spaces) |
Total provided = 22 bicycle spaces provided + 2 motorbike spaces |
Yes |
|
Design and layout of car parking areas |
Non-residential and residential uses to be separated
Basement to be within building footprint
Vehicles to enter and exit in a forward direction
Driveways not adjacent to doors or windows of habitable rooms
To comply with the Australian Standards |
The development complies with these requirements except that the basement extends for a small area outside the building footprint adjoining the northern boundary. This area forms the majority of the hard paved area of the terrace to the ground floor units with the remaining area being deep soil planting. As such the provision of deep soil planting to the site is not compromised and the development provides deep soil planting in excess of the requirements of the Apartment Design Guide. |
Acceptable |
|
Loading requirements |
Retail area between 15sqm and 500sqm – 1 bay
Design of loading bay facilities to be 3.5m wide x 9.5m long |
1 courier space provided which is 3.5m wide x 5.4m long. This is considered to be appropriate given the relatively small size of the non-residential components which are unlikely to require large delivery vehicles. The basement areas also include “bulky goods” areas that can temporarily accommodate items for delivery/storage. |
Acceptable |
B5 – Waste Management and Minimisation
A Waste Management Plan has been submitted with the application which is acceptable. Council’s Coordinator – Environmental Sustainability has examined the application and requested additional information that the applicant has addressed. Any consent granted will be subject to conditions of consent requiring the provision of appropriate waste facilities for the ongoing use of the development.
B6 – Water Management
The development can drain to the street via gravity. Appropriate conditions of consent can be attached to any consent granted.
B7 – Environmental Management
This section primarily relates to the building materials used in the development and their sustainability qualities. The proposed material and finishes to the development are considered appropriate and do not indicate any particular adverse environmental issues.
D – Commercial and Industrial
D1 – Development in the B1 and B2 Zones
|
D1 |
Relevant Requirements |
Proposed |
Complies |
|
3.1 Streetscape |
(3) Facades are to be ordered and articulated to visually break up the building massing, for example through materials, colour and the design of openings. Large areas of glass curtain walling and blank walls are to be avoided.
(4) Enhance pedestrian amenity through the provision of continuous awnings for weather protection.
(5) Promote safety and security by providing a high level of activation to the street, employing clear and direct lines of sight between the street and building entries, and using appropriate signage and lighting to enhance the amenity of the public domain.
(6) Site and design vehicular access (driveways, parking facilities, service access and garages) away from the main street frontage, from rear lanes or secondary streets |
The development complies with these requirements. |
Yes |
|
3.4 Building Heights |
(2) Buildings are massed towards the street frontage and step down towards the rear, to be in keeping with the existing retail/commercial built form pattern and compatible with the scale and character of adjacent residential areas.
(3) Where allotment adjoins a low density residential area, buildings should be: (i) reduced in height in accordance with the locality controls; (ii) setback from the adjoining property boundary
(5) Floor to ceiling heights should be a minimum of 3m at ground floor level, to allow for a range of uses including retail, commercial offices and home offices.
(6) Floor to ceiling should be a minimum of 2.7m at the upper storeys of the building, to allow for a range of uses, and to improve the environmental performance and amenity of the building. |
The development is consistent with these requirements. |
Yes |
|
3.5 Setbacks |
(1) Buildings adjacent to public roads are generally to align with and be built to the street frontage to provide continuity in the streetscape and encourage active frontages to ground level.
(2) Street setbacks at ground level are permitted only: (i) Where the existing footpath is narrow and the provision of additional pedestrian space is desirable (ii) Where the established pattern is setback (for example where there are residential buildings within the locality) (iii) Where the setback enables or enhances visual appreciations of adjacent heritage items.
(3) Side setbacks are generally not permitted in order to maintain the continuity of active frontages, unless specified in the locality controls.
(4) Where the locality abuts a residential zone and/or a residential allotment, the side setbacks are generally to be a minimum 3m, except where the locality character is established by the existing footprints and the allotment capacity of the locality would be unreasonably constrained. Refer to the Locality Controls of Part D2 for specific side setback requirements.
(5) Rear setbacks are determined by the context including the amenity of neighbouring residential uses and the amenity of any rear lanes. Refer to Locality Controls within Part D2 for specific rear setback requirements.
(6) Setbacks on corner blocks are to enable sufficient sightlines for traffic in accordance with the relevant Australian Standard.
(7) Upper level street setbacks are required to any residential component above retail/ commercial uses together with building design and apartment layout that satisfactorily mitigates the impacts of noise, fumes and vibration on major roads. |
The development complies with these requirements. |
Yes |
|
3.6 Building Design |
3.6.1 Building Facades 3.6.2 Active Frontages (1) Provide direct visual connections between footpaths and shops.
(2) Wrap shop fronts around corners into side streets to increase the area of active frontage.
(3) Design building openings at the ground floor to be in keeping with the overall building and bay scale and proportions.
(5) For commercial uses, avoid blank walls, dark or obscure glass to the street frontage.
(6) Incorporate continuous, independent and barrier free access to ground floor commercial entries, including effective signage, sufficient illumination, tactile ground surface indicators and pathways with limited cross-falls, sufficient width, comfortable seating and slip-resistant floor surfaces.
(7) Open grilles or see-through security screens are preferred to shutters, to optimise the openness of windows and any spill lighting of the footpath. Shutters, if provided, must be minimum 65% visually permeable.
(8) Pedestrian access to upper level uses is preferred from the side street or rear lane. If provided from the main street, openings for access are to be between 1.5m and 3m wide.
(9) Recessed shop frontages are not permitted except in the cases of heritage buildings where the recess is sympathetic to the building character.
3.6.3 Awnings (1) Awnings should retain any original awning features present that contribute to the desired locality character.
(2) Provide under awning lighting to improve public safety.
(3) Wrap awnings around the corners of the main commercial street onto side streets.
(4) Design awnings in the high range 3.6m – 4m and no higher or lower than adjoining awnings.
(5) Provide awnings flat or near-flat in shape (not tilted upwards away from the facade), and opaque in finish.
3.6.4 Balconies (1) Each apartment is to have at least one primary balcony.
(2) Primary balconies are to have a minimum depth of 2.5m and a minimum size of 10sqm.
(3) Design balconies that are recessed into the wall or enclosed with walls, columns or roofs to provide sufficient enclosure and visual firmness.
(4) Design balustrades that allow for views into, and along the street.
(5) Employ juliet balconies and French windows to articulate facades with architectural detail and vertically proportioned windows.
(6) Locate balconies adjacent to main living areas to expand the living space of units, where possible.
(7) Balconies are to be designed to respond to the local context. In this regard, special attention should be paid to the design of balconies for buildings situated on busy roads and/or adjacent to railway lines. This may be achieved by: (i) layering and recessing balconies to increase noise buffering from busy roads and railway lines; (ii) grouping balcony openings; (iii) providing balconies with operable screens, windows, or operable walls/sliding doors with a balustrade; (iv) recessing balconies in response to acoustic and visual privacy issues; and (v) ensure the privacy of occupants, neighbours, and public is taken into account by careful design and balustrades with a balance of transparent and solid materials.
3.6.5 Materials & Finishes (1) Utilise high quality and durable materials and finishes.
(2) Combine different materials and finishes to assist building articulation and modulation.
(3) Where the Locality includes a significant facade or streetscape, materials and finishes are to complement the existing streetscape.
(4) Avoid large unarticulated expanses of any single material to facades.
3.6.6 Mobility and Access (1) New development and refurbishments are to comply with the requirements of the Building Code of Australia (BCA) and the Australian Standards.
(2) All buildings with a residential component that have access to more than two storeys are required to have lift access.
3.6.7 Public Art (1) Development on sites over 1000m2 should, where possible include the provision of high quality artwork within development in a publicly accessible location.
(2) The artwork should be prepared having regard to links between the locality and details of such artwork and the proposed location are to be submitted with the development application.
3.6.8 Roof Forms and Parapets (1) Variation to the existing pattern of roof forms may only occur where the parapet line is not disrupted and where the new roof is not visible from the street below or adjacent public areas.
(2) Minimise the bulk and mass of roofs and their potential for overshadowing.
(3) Design roofs to generate a visually interesting skyline and minimise apparent bulk.
(4) Conceal lift over runs and plant equipment within well designed roofs.
(5) Roof fixtures (such as roof vents, chimneys, aerials, solar collectors, mobile phone transmitters, satellite dishes) are to be inconspicuously located so as not to be visible from the street (including side streets).
(6) Television antennae are to be located within the roof space.
3.6.9 Signage
|
The proposed development complies with these requirements and where the requirements of the Apartment Design Guide prevail, is consistent with those requirements.
The provision of public art to the site is not feasible given its location within a small local centre with minimal pedestrian movements and no adjoining public space areas.
The signage proposed to the veterinarian hospital will be inside the shop front as shown in the report above. The signage is considered appropriate and will not detract from the façade of the development. |
Yes |
|
3.7 Vehicular Access and Parking |
Refer to controls in Section B4 of this table.
|
Complies as detailed in the table above. |
Yes |
|
3.8 Dwelling Design, Apartment Mix and Dwelling Size |
(1) Provide a mix of studios, 1, 2 and 3 or more bedroom apartments in varying layouts.
(2) Dwellings within the residential component of a mixed development must have the minimum internal floor areas (IFA): • Studios - minimum IFA of 40sqm • 1 bedroom unit - minimum IFA of 60sqm • 2 bedroom unit - minimum IFA of 85sqm • 3 bedroom unit - minimum IFA of 100sqm
(3) In all instances the first bedroom is to maintain an internal floor area of 15sqm and the second bedroom is to maintain a minimum internal floor area of 12sqm |
The provisions of the Apartment Design Guide prevail in relation to apartment mix and sizes. The proposed development meets the relevant requirements. |
Yes |
|
3.10 Storage |
(1) All developments must provide a designated secure storage space (in addition to any areas set aside for off street parking) to a minimum floor area of 4sqm for each dwelling or unit. |
The development complies with this requirement and will be reinforced through a condition of consent. |
Yes |
|
3.11 Clothes Drying |
(1) Wherever possible, provide dedicated external clothes drying areas for all apartments that will be utilised by the residents, while being screened from the public view. |
Each apartment has internal laundry facilities. The site is located in a commercial zone and it is not considered appropriate that external clothes lines be provided for residents. The open space area located on the ground floor functions as a green zone which will be landscaped to provide appropriate screen planting and separation to the adjoining residential zone. |
Yes |
|
3.12 Amenity |
3.12.1 Visual and Acoustic Privacy (1) Design building separation for parallel ranges of buildings to at least the following standards for the residential component: -12m between habitable rooms/the edge of their balconies -9m between habitable rooms/the edge of their balconies and non-habitable rooms -6m between non-habitable rooms
(2) Offset facade openings from existing openings in adjacent development to minimise direct overlooking of rooms and private open spaces.
(3) For street wall buildings, design zero side setbacks to result in zero building separation, providing dual aspect commercial or residential uses with openings to the front (street) and the rear.
(4) For ground floor retail/commercial uses, provide appropriate rear and side setbacks to adjacent residential uses, and design building layout to avoid overlooking of private spaces.
(5) Utilise design elements to increase levels of privacy such as landscaping, screening, offset windows, recessed balconies, louvres, planter boxes, pergolas or shading devices.
(6) Development adjacent to the Railway Line or adjacent to road corridor with annual average daily traffic volume of more than 40,000 vehicles.
(7) Design and site buildings adjacent to noise generating land uses to minimise noise impacts, for example through building layout and location and size of openings.
(8) Where appropriate locate individual buildings and groups of buildings to act as barriers to the noise.
(9) Utilise the site and building layout to maximise the potential for acoustic privacy by providing adequate building separation within the development and from neighbouring buildings.
(10) Locate and design all noise generating equipment such as mechanical plant rooms, mechanical ventilation from car parks, driveway entry shutters, garbage collection areas or similar to protect the acoustic privacy of workers, residents and neighbours. The noise level generated by any equipment must not exceed an Laeq of 5dBA above background noise at the property boundary.
(11) Development is to meet or exceed the sound insulation requirements between separating walls and floors of adjoining dwellings of the Building Code of Australia.
(13) Where development is proposed adjacent to the railway line or a classified road corridor compliance with the requirements of the SEPP.
Safety and Security |
The proposed development meets these requirements as detailed in the report above. |
Yes |
|
3.13 Open Space and Landscaping |
(1) Retain existing, and incorporate new indigenous trees, shrubs and ground cover where appropriate.
(2) Maximise deep soil zones to provide for substantial landscaping and mature trees.
(3) Submit a landscape plan prepared by a qualified landscape architect.
(4) Where development is proposed adjacent to low density residential development, an appropriate landscape buffer is to be planted to provide separation and screening between the proposed development and the existing low density development (Refer to Locality Controls). These areas should be deep soil areas so as to allow for the planting of large/medium trees. |
The proposed development complies with these requirements. |
Yes |
D2 - Commercial Locality Guides
|
9 Carlton South |
Relevant requirements |
Proposed |
Complies |
|
9.3 Design Solutions |
Height (1) The street wall height to the Princes Hwy is to maintain a two storey façade.
(2) Maximum number of levels is 3.
(3) Maximum overall height (to the uppermost habitable part of the building) is 10.2m
(4) The total overall building height (including roofs and any projections such as plant, lift overruns, blades or the like) shall not exceed 2 metres above the habitable part of the building.
(5) No development is permitted in the roof void.
Preferred land use: Ground floor – Retail or commercial
First and Second floor – commercial preferred. Where residential is proposed it must be designed and setback to minimise noise transmission from the Princes Hwy.
Amalgamation:
Pedestrian Entry To be obtained from the Princes Hwy and side streets (where appropriate).
Vehicle Access To be obtained from side streets and rear laneways.
Car parking (1) Off-street parking to be provided for any new development underground or at the rear of the properties.
(2) No part of the basement is to be elevated above ground level fronting Princes Hwy.
(3) Where a basement is provided this is not to protrude more than 1m above natural ground level.
Balconies (1) For residential development, design balconies so that they are recessed to increase noise buffering from the Princes Highway. Design considerations should include: (i) Detailing balustrades using a proportion of solid to transparent materials; (ii) Detailing balustrades and providing screening from the public; (iii) Providing balconies with operable screens, Juliet balconies or operable walls/sliding doors with a balustrade.
(2) To maintain the privacy of adjoining properties to the rear of sites fronting the Princes Highway, balconies along the rear elevations of buildings are to be designed to prevent down viewing onto the adjoining residential properties.
Awnings (1) Development is to provide a suspended awning across the full frontage of the development and within 20m from its intersection to side streets. |
The requirements relating to height have been superseded by the new height standard under the Kogarah Local Environmental Plan which identifies a maximum height of 21m.
The development complies with the other relevant requirements except that the site includes 329 Princes Hwy as part of the site. This does not preclude the redevelopment of the adjoining sites which can be redeveloped in conjunction with the adjoining sites up to Arthur St. |
Acceptable |
|
9.4 Block A - Block bounded by Edward Street, Princes Highway and Arthur Street
|
Setbacks (1) The front setback to Princes Hwy being as follows: - Ground Floor (level 1) = build to boundary - First Floor (level 2) = Commercial – build to boundary, Residential – minimum 6m, however, buildings should be massed up to the full 2 storey height at the street frontage. - Second Floor (level 3) = Commercial – minimum 6m. Residential – minimum 6m (may include a maximum 3m wide balcony).
(2) The setback to Edward St and Arthur St being as follows: - Ground Floor (level 1) = build to boundary - First Floor (level 2) = Commercial – build to boundary, Residential – minimum 3m, (may include a maximum 3m wide balcony). - Second Floor (level 3) = minimum 3m
(3) The rear setback to 75 Edward St and 78 Arthur St being as follows: - Ground Floor (level 1) = minimum 6m - First Floor (level 2) = minimum 9m - Second Floor (level 3) = minimum 9m
Vehicular access (1) Vehicular access to 329-331 Princes Hwy is to be from Edward St via a right-of-way to be created with the redevelopment of 325-327 Princes Hwy. |
The requirements of the Apartment Design Guide apply to the proposed development and override those of the DCP. Notwithstanding this the proposed development is consistent with the requirements of the DCP.
The development has been designed to include vehicular access from the western elevation of the upper basement level to the adjoining site at 329-332 Princes Hwy. Should this access be required, easement can be established through this area and into the adjoining site. |
Yes |
Section 94 Contributions
13. The proposed development requires payment of $517,470.31 of Section 94 contributions based on the provisions of an additional dwellings on the subject site. The contribution amount is based on the following:
|
Contribution Type |
Contribution Amount |
|
Roads and traffic management |
$7399.56 |
|
Open Space |
$491490.45 |
|
Kogarah libraries – buildings component |
$10846.70 |
|
Kogarah libraries – books component |
$7733.60 |
|
Total Contributions: |
$517,470.31 |
IMPACTS
Natural Environment
14. The proposed development is unlikely to result in adverse impacts to the natural environment. The site contains no street trees. There are three street tree located on the nature strip at the front of the site and these will be retained and protected. A landscape plan prepared by a qualified landscape architect has been prepared for the development which shows appropriate deep soil planting to the northern boundary and to the communal open space areas on the rooftop. The landscaping will improve the current site conditions.
The proposed excavation to the site is for the purposes of providing two basemen levels for car parking and associated facilities. The excavation is consistent with that required for most new developments. A 6m setback has been provided to the majority of the northern boundary which adjoins the residential zone. This allows spatial separation between the excavation area and adjoining dwelling houses.
Built Environment
15. The proposed development is unlikely to result is adverse impacts to the built environment. The proposed development complies with the relevant requirements except in the height of the lift overrun and associated areas of the rooftop communal open space areas. This variation is discussed in the report and is supported as it is unlikely to result in adverse impacts to adjoining developments and the streetscape.
Social Impact
16. The proposed development has no apparent adverse social impact.
Economic Impact
17. The proposed development has no apparent adverse economic impact.
Suitability of the site
18. It is considered that the proposed development is of a scale and design that is suitable for the site having regard to its size and shape, its topography, vegetation and relationship to adjoining developments.
SUBMISSIONS AND THE PUBLIC INTEREST
19. The application was notified/advertised to residents/owners in accordance with Council’s requirements and one (1) submission was received in reply.

Map showing location of submitter
The issues raised in the submission relate to potential privacy impacts from balconies and windows.
Comment: In reply to the issues raised by the resident the applicant has provided privacy screens to the windows and balconies which adjoin the residential zone. Although the balconies and windows have a minimum setback of 9m from the adjoining residential boundary, the provision of privacy screens will further reduce potential overlooking to these dwellings.
REFERRALS
20.
Council Referrals
Senior Building Officer (Major Projects)
Council’s Senior Building Officer has raised no objection subject to conditions of consent being attached to any consent granted.
Development Engineer
Council’s Development Engineer has raised no objection subject to conditions of consent being attached to any consent granted.
Traffic Engineer
Council’s Traffic Engineer has examined the application and has raised no objection to the development subject to conditions of consent requiring the car spaces to comply with the Australian Standards.
Environmental Health Officer
Council’s Environmental Health Officer has raised no objection subject to conditions of consent being attached to any consent granted.
Consultant Arborist
Council’s Consultant Arborist has raised no objection subject to conditions of consent being attached to any consent granted.
External Referrals
Roads and Maritime Services (RMS)
The RMS has raised no objection to the application subject to conditions of consent being attached to any consent granted.
CONCLUSION
21. The application has been assessed having regard to the Heads of Consideration under Section 79C of the Environmental Planning and Assessment Act 1979, the provisions of the relevant State Environmental Planning Policies, Local Environmental Plans and Development Control Plans. The application seeks approval for the demolition of existing structures and construction of a six storey mixed use development comprising three commercial tenancies, 45 residential units, basement car parking and landscaping, and occupation of shop 3 as a veterinarian hospital.
The development has been assessed against the requirements of the relevant planning instruments and development control plans and is consistent with those requirements except in the height of the development relating to the lift overrun and associated structures to the communal open space areas on the roof. The submission received to the application has been addressed in the report and through amended plans. Following detailed assessment it is considered that Development Application No DA2017/0491 should be approved subject to conditions.
DETERMINATION AND STATEMENT OF REASONS
22. The reasons for this recommendation are:
· The proposed development complies with the requirements of the relevant environmental planning instruments and development control plan except in the height of the development which is considered acceptable having regard to the justification provided in the report above.
· The applicant has amended the proposal from that originally submitted to address issues raised by the Design Review Panel and Council officers to provide a better outcome for adjoining developments and the design of the development.
23. THAT pursuant to Section 4.16(1) of the Environmental Planning and Assessment Act, 1979, as amended, the Local Planning Panel, grants development consent to Development Application DA2017/0491 for the demolition of existing structures and construction of a six storey mixed use development comprising three commercial tenancies, 45 residential units, basement car parking and landscaping, and occupation of shop 3 as a veterinarian hospital on Lot 24 DP 74769, Lot 23 DP 2560/G and Lot 22 DP 5409/G and known as 325-329 Princes Highway, Carlton, subject to the following conditions of consent:
SPECIFIC DEVELOPMENT CONDITIONS
Section A Development Details
1. DEV6.1 - Approved Plans - The development must be implemented in accordance with the approved plans and supporting documentation listed below which have been endorsed by Council’s approved stamp, except where marked up on the plans and/or amended by conditions of this consent:
|
Description |
Reference No. |
Date |
Revision |
Prepared by |
|
Lower basement level |
Project No D1703 Drawing No 02 |
02/18 |
18 |
Derek Rathby Architecture Pty Ltd |
|
Upper basement level |
03 |
02/18 |
18 |
Derek Rathby Architecture Pty Ltd |
|
Ground floor plan |
04 |
01/18 |
16 |
Derek Rathby Architecture Pty Ltd |
|
First floor plan |
05 |
01/18 |
15 |
Derek Rathby Architecture Pty Ltd |
|
Second floor plan |
06 |
09/17 |
14 |
Derek Rathby Architecture Pty Ltd |
|
Third floor plan |
07 |
09/17 |
14 |
Derek Rathby Architecture Pty Ltd |
|
Fourth floor plan |
08 |
01/18 |
15 |
Derek Rathby Architecture Pty Ltd |
|
Roof terrace plan |
34 |
01/18 |
16 |
Derek Rathby Architecture Pty Ltd |
|
South and west elevations |
10 |
01/18 |
16 |
Derek Rathby Architecture Pty Ltd |
|
East and north elevations |
11 |
01/18 |
16 |
Derek Rathby Architecture Pty Ltd |
|
Section A-A |
12 |
01/18 |
16 |
Derek Rathby Architecture Pty Ltd |
|
Section B-B |
13 |
01/18 |
16 |
Derek Rathby Architecture Pty Ltd |
|
Sediment control plan |
22 |
09/17 |
14 |
Derek Rathby Architecture Pty Ltd |
|
Finishes schedule |
27 |
09/17 |
14 |
Derek Rathby Architecture Pty Ltd |
|
Demolition plan |
31 |
09/17 |
14 |
Derek Rathby Architecture Pty Ltd |
|
Preliminary Site Investigation |
E23537.E01_REV0 |
26/09/17 |
0 |
EIS Australia |
|
DA Acoustic Assessment |
20E-17-0115-TRP-458251-2 |
19/09/17 |
2 |
Vipac Engineers and Scientists |
|
Arboricultural Impact Report (except as amended by the conditions of consent) |
- |
05/12/17 |
A |
Landscape Matrix |
|
Stormwater drainage plan: Basement 1 Basement 2 Ground floor (as amended by the conditions of consent) |
C-3221- 01 02 03 |
12/09/17 |
1 |
Kozaroski and Partners |
|
Landscape drawings: -Cover sheet -Ground floor landscape plan -First floor landscape plan -Fourth floor landscape plan -Roof terrace landscape plan -Landscape section A-A -Landscape section B-B -Plant schedule and details
|
LA00 LA01 LA02 LA03 LA04 LA05 LA06 LA07 |
28.01.18 |
3 |
PDS Patterson Design Studio Landscape designers/ Urban Designers |
Section B Separate Approvals Required Under Other Legislation
2. APR7.2 - Section 138 Roads Act 1993 and Section 68 Local Government Act 1993 - Unless otherwise specified by a condition of this consent, this Development Consent does not give any approval to undertake works on public infrastructure.
Separate approval is required under Section 138 of the Roads Act 1993 and/or Section 68 of the Local Government Act 1993 for any of the following activities carried out in, on or over a public road (including the footpath) listed below.
An application is required to be lodged and approved prior to the commencement of any of the following works or activities;
(a) Placing or storing materials or equipment;
(b) Placing or storing waste containers or skip bins;
(c) Erecting a structure or carrying out work
(d) Swinging or hoisting goods over any part of a public road by means of a lift, crane or the like;
(e) Pumping concrete from a public road;
(f) Pumping water from the site into the public road;
(g) Constructing a vehicular crossing or footpath;
(h) Establishing a “works zone”;
(i) Digging up or disturbing the surface of a public road (e.g. Opening the road for the purpose of connections to utility providers);
(j) Stormwater & ancillary works in the road reserve; and
(k) Stormwater & ancillary to public infrastructure on private land
(l) If any excavation is to be supported by the use of below ground (cable) anchors that are constructed under Council’s roadways/footways.
These separate activity approvals must be obtained and evidence of the approval provided to the Certifying Authority prior to the issue of the Construction Certificate.
The relevant Application Forms for these activities can be downloaded from Council’s website www.georgesriver.nsw.gov.au. For further information, please contact Council’s Customer Service Centre on (02) 9330 6222.
3. APR7.4 - Vehicular Crossing - Major Development - The following vehicular crossing and road frontage works will be required to facilitate access to and from the proposed development site:
(a) Construct a metre wide footpath for the full length of the frontage of the site in in accordance with Council’s Specifications applying at the time construction approval is sought.
(b) The thickness and design of the driveway shall be in accordance with Council’s Specifications applying at the time construction approval is sought.
(c) Construct a new 150mm high concrete kerb with 450mm wide gutter for the full frontage(s) of the site in in accordance with Council’s Specifications for kerb and guttering, applying at the time construction approval is sought.
(d) Any existing vehicular crossing and/or laybacks which are redundant must be removed. The kerb and gutter, any other footpath and turf areas shall be restored at the expense of the applicant. The work shall be carried out in accordance with Council’s specification, applying at the time construction approval is sought.
Constructing a vehicular crossing and/or footpath requires separate approval under Section 138 of the Roads Act 1993, prior to the commencement of those works.
4. APR7.5 - Road Opening Permit - A Road Opening Permit must be obtained from Council, in the case of local or regional roads, or from the RMS, in the case of State roads, for every opening of a public road reserve to access services including sewer, stormwater drains, water mains, gas mains, and telecommunications before the commencement of work in the road.
5. APR7.7 - Building - Hoarding Application - Prior to demolition of the buildings on the site or the commencement of work above ground level a separate application for the erection of an A class (fence type) or a B class hoarding or C type scaffold, in accordance with the requirements of Work Cover Authority of NSW, must be erected along that portion of the footway/road reserve, where the building is within 3.0 metres of the street boundary. An application for this work under Section 68 of the Local Government Act 1993 and the Roads Act 1993 must be submitted for approval to Council.
The following information is to be submitted with a Hoarding Application under s68 of the Local Government Act and s138 of the Roads Act 1993:
(a) A site and location plan of the hoarding with detailed elevation, dimensions, setbacks, heights, entry and exit points to/from the site, vehicle access points, location of public utilities, electrical overhead wire protection, site management plan and builders sheds location; and
(b) Hoarding plan and details that are certified by an appropriately qualified engineer; and
(c) The payment to Council of a footpath occupancy fee based on the area of footpath to be occupied and Council's Schedule of Fees and Charges (available on our website) before the commencement of work; and
(d) A Public Risk Insurance Policy with a minimum cover of $10 million in relation to the occupation of and works within Council's road reserve, for the full duration of the proposed works, must be obtained a copy provided to Council. The Policy is to note Council as an interested party; and
(e) The application must be endorsement by the Roads & Maritime Services (RMS) as the hoarding is located within 100m of an intersection with traffic lights. For assistance you should contact the DA unit at RMS and speak to Hans on 88492076. Or email hans.pilly.mootanah@rms.nsw.gov.au to obtain concurrence for the hoarding structure.
6. APR7.8 - Below ground anchors - Information to be submitted with S68 Application under LGA 1993 and S138 Application under Roads Act 1993 - In the event that the excavation associated with the basement carpark is to be supported by the use of below ground (cable) anchors that are constructed under Council’s roadways/footways, an application must be lodged with Council under Section 68 of the Local Government Act 1993 and the Roads Act 1993 for approval, prior to commencement of those works. The following details must be submitted.
(a) That cable anchors will be stressed released when the building extends above ground level to the satisfaction of Council.
(b) The applicant has indemnified Council from all public liability claims arising from the proposed works, and provide adequate insurance cover to the satisfaction of council.
(c) Documentary evidence of such insurance cover to the value of $20 million.
(d) The applicant must register a non-terminating bank guarantee in favour of Council for the amount of. The guarantee will be released when the cables are stress released. In this regard it will be necessary for a certificate to be submitted to Council from a structural engineer at that time verifying that the cables have been stress released.
(e) That in the event of any works taking place on Council’s roadways/footways adjoining the property while the anchors are still stressed, all costs associated with overcoming the difficulties caused by the presence of the ‘live’ anchors will be borne by the applicant.
Section C Requirements of Concurrence, Integrated & Other Government Authorities
7. Roads and Maritime Services (RMS) Conditions
· The redundant driveways on the Princes Western Highway boundary shall be removed and replaced with kerbs and gutters to match existing. The design and construction of the kerbs and gutters on Princes Western Highway shall be in accordance with Roads and Maritime requirements. Details of these requirements should be obtained from Roads and Maritime Services, Manager Developer Works, Statewide Delivery, Parramatta (telephone 9598 7798).
A plan checking fee (amount to be advised) and lodgement of a performance bond may be required from the applicant prior to the release of the approved road design plans by Roads and Maritime.
· Detailed design plans and hydraulic calculations of any changes to the stormwater drainage system into Princes Western Highway are to be submitted to Roads and Maritime for approval, prior to the commencement of any works.
Details should be forwarded to:
The Sydney Asset Management
Roads and Maritime Services
PO Box 973 Parramatta CBD 2124.
A plan checking fee will be payable and a performance bond may be required before Roads and Maritime approval is issued. With regard to the Civil Works requirement please contact the Roads and Maritime Project Engineer, External Works Ph: 8849 2114 or Fax: 8849 2766.
· The developer is to submit design drawings and documents relating to the excavation of the site and support structures to Roads and Maritime for assessment, in accordance with Technical Direction GTD2012/001. The developer is to submit all documentation at least six (6) weeks prior to commencement of construction and is to meet the full cost of the assessment by Roads and Maritime. The report and any enquiries should be forwarded to:
Project Engineer, External Works
Sydney Asset Management
Roads and Maritime Services
PO Box 973 PARRAMATTA CBD 2124.
Telephone 8849 2114
Fax 8849 2766
If it is necessary to excavate below the level of the base of the footings of the adjoining roadways, the person acting on the consent shall ensure that the owner/s of the roadway is/are given at least seven (7) day notice of the intention to excavate below the base of the footings. The notice is to include complete details of the work.
· All demolition and construction vehicles are to be contained wholly within the site and vehicles must enter the site before stopping. A construction zone will not be permitted on Princes Highway.
· A Road Occupancy Licence should be obtained from Transport Management Centre for any works that may impact on traffic flows on Princes Highway during construction activities.
· Roads & Maritime Services also advises that it has no approved proposal that requires any part of the subject property for road purposes. Therefore there are no objections to the development proposal on property grounds provided all buildings and structures, together with any improvements integral to the future use of the site are wholly within the freehold property (unlimited in height or depth), along the Princes Highway boundary.
8. GOV8.13 - Notice of Requirements for a Section 73 Certificate - A Notice of Requirements of what will eventually be required when issuing a Section 73 Compliance Certificate under the Sydney Water Act 1994 must be obtained from Sydney Water Corporation. Application must be made through an authorised Water Servicing Co-ordinator. Please refer to the ‘Plumbing, building and developing’ section of the web site www.sydneywater.com.au then refer to ‘Providers’ under ‘Developing’ or telephone 13 20 92 for assistance.
Following application, a ‘Notice of Requirements’ will advise of water and sewer infrastructure to be built and charges to be paid. Please make early contact with the Co-ordinator, as it can take some time to build water/sewer pipes and this may impact on other services and building, driveway or landscape design.
The Notice of requirements must be submitted prior to the commencement of work. A Section 73 Compliance Certificate will be required at the completion of development in accordance with further conditions.
9. GOV8.14 - Section 73 Compliance Certificate - A Section 73 Compliance Certificate under the Sydney Water Act 1994 must be submitted to the PCA prior to the issue of the Occupation Certificate.
10. GOV8.11 - Trade Waste Agreements - A Trade Waste Agreement with Sydney Water may be required. Details of any work required to comply with the agreement must be detailed on the plans lodged with the Construction Certificate. If no trade waste agreement or grease trap is required, a letter from Sydney Water to this effect must be submitted with the application for the Construction Certificate.
Section D Prior to the Issue of a Construction Certificate
11. CC9.1 - Fees to be paid - The fees listed in the table below must be paid in accordance with the conditions of this consent and Council’s adopted Fees and Charges applicable at the time of payment (available at www.georgesriver.nsw.gov.au).
Payments must be made prior to the issue of the Construction Certificate or prior to the commencement of work (if there is no associated Construction Certificate).
Please contact council prior to the payment of S94 Contributions to determine whether the amounts have been indexed from that indicated below in this consent and the form of payment that will be accepted by Council.
Council will only accept Bank Cheque or Electronic Funds Transfer (EFT) for transaction values of $500,000 or over. Council must be contacted prior to payment to determine correct total amount to be paid and bank account details (if applicable).
A summary of the fees to be paid are listed below:
|
Fee Type |
Fee |
|
GENERAL FEES |
|
|
Long Service Levy (to Long Service Corporation) Or, provide evidence of Payment direct to the Long Service Corporation. See https://portal.longservice.nsw.gov.au/bci/levy/ |
|
|
Builders Damage Deposit |
$102,570.00 |
|
Inspection Fee for Refund of Damage Deposit |
$300.00 |
|
DEVELOPMENT CONTRIBUTIONS |
|
|
No.1 – Roads and Traffic Management – Residential |
$7,399.56 |
|
No.5 – Open Space 2006 |
$491,490.45 |
|
No.9 – Kogarah Libraries – Buildings |
$10,846.70 |
|
No.9 – Kogarah Libraries – Books |
$7,733.60 |
|
TOTAL |
$517,470.31 |
General Fees
The fees and charges above are subject to change and are as set out in the version of Council's Schedule of Fees and Charges or as required by other Government Authorities, applicable at the time of payment.
Development Contributions
The Section 94 contribution is imposed to ensure that the development makes adequate provision for the demand it generates for public amenities and public services within the area.
A Section 94A contribution has been levied on the subject development pursuant to the Georges River Council Section 94A Contributions Plan.
Indexation
The above contributions will be adjusted at the time of payment to reflect changes in the cost of delivering public amenities and public services, in accordance with the indices provided by the relevant Section 94 Development Contributions Plan.
Timing of Payment
The contribution must be paid and receipted by Council prior to the release of the Construction Certificate.
Further Information
A copy of the all current Development Contributions Plans may be inspected or a copy purchased at Council’s offices (Georges River Civic Centre, MacMahon Street, Hurstville and Kogarah Library and Service Centre, Kogarah Town Square, Belgrave Street, Kogarah) or viewed on Council’s website www.georgesriver.nsw.gov.au.
12. CC9.12 - Required design changes - The following changes are required to be made and shown on the Construction Certificate plans:
|
Car parking space allocation |
The car parking spaces on the approved plans are to be reallocated as follows: -Residential spaces: 68 spaces -Residential visitor spaces: 9 spaces -Retail spaces: 6 spaces -Veterinarian hospital spaces: 6 spaces
In accordance with the requirements of Kogarah Development Control Plan |
|
Storage areas |
Storage areas are to be provided to each apartment in the basement level/s and within the apartment in accordance with the requirements of the Apartment Design Guide. |
13. CC9.47 - Fire Safety Measures - Prior to the issue of a construction certificate a list of the essential fire safety measures that are to be provided in relation to the land and any building on the land as a consequence of the building work must accompany an application for a construction certificate, which is required to be submitted to either Council or a PCA. Such list must also specify the minimum standard of performance for each essential fire safety measure included in the list. The Council or PCA will then issue a Fire Safety Schedule for the building.
14. CC9.48 - Structural details - Engineer's details prepared by a practising Structural Engineer being used to construct all reinforced concrete work, structural beams, columns and other structural members. The details are to be submitted to the Principal Certifying Authority for approval prior to construction of the specified works. A copy shall be forwarded to Council where Council is not the PCA.
15. CC9.52 - Access for Persons with a Disability - Access for persons with disabilities must be provided throughout the site, including to all common rooms, lobby areas, commercial premises and sanitary facilities in accordance with the requirements of the Premises Standards, the Building Code of Australia and AS 1428.1. Details must be submitted with the Construction Certificate Application.
In regards to the above, pedestrian access throughout basement levels shall be highlighted/line marked and sign posted to safeguard egress.
16. CC9.54 - Geotechnical report - Geotechnical Reports: The applicant must submit a Geotechnical Report, prepared by a suitably qualified Geotechnical Engineer who holds the relevant Certificate of accreditation as required under the Building Professionals Act 2005 in relation to dilapidation reports, all site works and construction. This is to be submitted before the issue of the Construction Certificate and is to include:
(a) Investigations certifying the stability of the site and specifying the design constraints to be placed on the foundation, any earthworks/stabilization works and any excavations.
(b) Dilapidation Reports on the adjoining properties prior to any excavation of site works. The Dilapidation Report is to include assessments on, but not limited to, the dwellings at those addresses and any external paths, grounds etc. This must be submitted to the Certifying Authority and the adjoining residents as part of the application for the Construction Certificate. Adjoining residents are to be provided with the report five (5) working days prior to any works on the site.
(c) On-site guidance by a vibration specialist during the early part of excavation.
(d) Rock breaking techniques. Rock excavation is to be carried out with tools such as rock saws which reduce vibration to adjoining buildings and associated structures.
(e) Sides of the excavation are to be piered prior to any excavation occurring to reinforce the walls of the excavation to prevent any subsidence to the required setbacks and neighbouring sites.
17. CC9.54.1 - Vibration Damage - To minimise vibration damage and loss of support to the buildings in close proximity to the development, any excavation is to be carried out by means of a rock saw and if available, in accordance with the guidelines of the Geotechnical Engineer’s report.
Alternatively where a hydraulic hammer is to be used within 30 metres of any building (other than a path or a fence) a report from a qualified geotechnical engineer detailing the maximum size of hammer to be used is to be obtained and the recommendations in that report implemented during work on the site. The report shall be submitted with the Construction Certificate application.
18. CC9.54.2 - Slip Resistance All pedestrian surfaces in areas such as foyers, public corridors/hallways, stairs and ramps as well as floor surfaces in the wet rooms in any commercial/retail/residential units must have slip resistance classifications, as determined using test methods in either wet or dry conditions, appropriate to their gradient and exposure to wetting. The classifications of the new pedestrian surface materials, in wet or dry conditions, must comply with AS/NZS4586:2004 - Slip Resistance Classifications of New Pedestrian Materials and must be detailed on the plans lodged with the application for the Construction Certificate.
19. CC9.60 - Building - Prior to the issue of a Construction Certificate the applicant may be required, under Clause 144 of the Environmental Planning & Assessment Regulation, 2000 to seek written comment from FR NSW about the location of water storage tanks, construction of hydrant/booster pump and valve rooms, and any Fire Engineered Solution developed to meet the performance requirements under the Category 2 Fire Safety Provisions.
The applicant is also advised to seek written advice from FR NSW on the location and construction of the proposed Fire Control Centre Facility and location and installation of the sites Fire Indicator / mimic Panels.
20. CC9.61 - Traffic Management - Compliance with AS2890 - All driveways, access ramps, vehicular crossings and car parking spaces shall be designed and constructed in accordance with the current version of Australian Standards, AS 2890.1 (for car parking facilities) and AS 2890.2 (for commercial vehicle facilities).
21. CC9.32 - Erosion & Sedimentation Control - Erosion and sediment controls must be provided to ensure:
(a) Compliance with the approved Erosion & Sediment Control Plan
(b) Removal or disturbance of vegetation and top soil is confined to within 3m of the approved building area (no trees to be removed without approval)
(c) All clean water runoff is diverted around cleared or exposed areas
(d) Silt fences, stabilised entry/exit points or other devices are installed to prevent sediment from entering drainage systems or waterways
(e) All erosion and sediment controls are fully maintained for the duration of demolition, excavation and/or development works
(f) Controls are put into place to prevent tracking of sediment by vehicles onto adjoining roadway
(g) All disturbed areas are rendered erosion-resistant by turfing, mulching, paving or similar
(h) Compliance with Managing Urban Stormwater - Soils and Construction (Blue Book) produced by Landcom 2004.
These measures are to be implemented prior to the commencement of work (including demolition and excavation) and must remain until works are completed and all exposed surfaces are landscaped/sealed.
22. CC9.34 - Stormwater System - The submitted stormwater plan has been assessed and approved as a concept plan only. No detailed assessment of the design has been undertaken. A Detailed Stormwater Plan and supporting information of the proposed on-site stormwater management system is to be submitted. The required details in this Plan and the relevant checklist are presented in the document ‘Water Management Policy. Kogarah Council. August 2006’.
The design parameters and the general concept of the proposed on-site stormwater management system are to be the same as documented in the approved Concept Stormwater Plan for the proposed development. Any conceptual variations to the stormwater design will require written approval from Council and will require to be justified and supported by appropriate details, calculations and information to allow for proper assessment.
The Detailed Stormwater Plan is to address the following issue(s):
a) Council’s records indicate that the invert level of the existing council kerb inlet pit is shown incorrectly on the submitted stormwater concept plan. The invert level of the Council pipe is to be confirmed by further survey and the plans amended as required.
b) The connection into Council’s stormwater pit is to be made as high as practical.
c) There is a Sydney Water main that crosses the proposed On-site detention basin, and the design of the basin requires the lowering of the existing ground levels by up to approximately 1.5 metres. The Detailed Stormwater Plan is to include accurate peg-out information including levels of the sewer main to show that there will be adequate cover over the main to Sydney Water’s requirements.
d) A suitably qualified engineer is to certify that sufficient design measures have been included to prevent the potential for surcharge of the Council stormwater system into the sites drainage system.
e) Clear details are to be included that all rainwater tank storage is to be connected for reuse to toilets within the development and for irrigation as per the submitted stormwater web calculator results.
f) An oil/silt separator sized to the catchment area must be specified on the Detailed Stormwater Plan and located downstream of the proposed basement car parks and prior to discharge to Councils stormwater system.
g) The capacity of the rainwater tanks is to be as follows:
Unit 1 - Volume of Tank = 1300L
Unit 2 - Volume of Tank = 53,000L
23. All roof water and surface water from paved or concreted areas are to be disposed of in accordance with the Stormwater Plan by means of a sealed pipeline constructed in accordance with AS/NZS 3500.3:2015.
24. CC9.35 - On Site Detention - The submitted stormwater plan has been assessed as a concept plan only. Final detailed plans of the drainage system, prepared by a professional engineer specialising in hydraulic engineering, shall be submitted for approval with the Construction Certificate.
An on-site detention (OSD) facility designed by a professional engineer who specialises in Hydraulic Engineering must be designed, approved and installed. The design must include the computations of the inlet and outlet hydrographs and stage/storage relationships of the proposed OSD using the following design parameters:
(a) Unit 1 of the onsite detention system is to have 34.5 m3 Maximum Site Discharge of 32 Litres per Second. Unit 2 of the onsite detention system is to have 6.6 m3 Maximum Site Discharge of 5.7 Litres per Second. This is to be provided in accordance with the Stormwater Concept Plan and associated Design Assessment Report. The overflow is to be directed to the site drainage system.
(b) Peak flow rates from the site are to be restricted to a permissible site discharge (PSD) equivalent to the discharge when assuming the site contained a single dwelling, garage, lawn and garden,
(c) At Annual Recurrence Intervals of 2 years and 100 years.
Refer to Flow Controls in Council's Draft/Adopted Stormwater Drainage Policy.
The OSD facility shall be designed to meet all legislated safety requirements and childproof safety fencing around the facility must be provided where the OSD facility is open or above ground when the design peak storage depth is greater than 300mm. A durable metal plate or similar sign is to be placed at the OSD facility and must bear the words:
"BEWARE: This is an on-site detention basin/tank for rainwater which could overflow during heavy storms."
Full details shall accompany the application for the Construction Certificate.
25. CC9.5 - Damage Deposit - Major Works - In order to insure against damage to Council property the following is required:
(a) Pay Council, before the issue of the Construction Certificate, a damage deposit for the cost of making good any damage caused to any Council property as a result of the development $102,570.00
(b) Pay Council, before the issue of the Construction Certificate, a non-refundable inspection fee to enable assessment of any damage and repairs where required. $300.00
(c) Submit to Council, before the commencement of work, a dilapidation report of the condition of the Council nature strip, footpath and driveway crossing, or any area likely to be affected by the proposal.
At the completion of work Council will review the dilapidation report and the Works-As-Executed Drawings (if applicable) and inspect the public works.
The damage deposit will be refunded in full upon completion of work where no damage occurs and where Council is satisfied with the completion of works. Alternatively, the damage deposit will be forfeited or partly refunded based on the damage incurred.
26. CC9.48 - Structural details - Engineer's details prepared by a practising Structural Engineer being used to construct all reinforced concrete work, structural beams, columns and other structural members. The details are to be submitted to the Principal Certifying Authority for approval prior to construction of the specified works. A copy shall be forwarded to Council where Council is not the PCA.
27. CC9.6 - Site Management Plan - A Site Management Plan must be submitted with the application for a Construction Certificate, and include the following:
(a) location of protective site fencing;
(b) location of site storage areas/sheds/equipment;
(c) location of building materials for construction, e.g. stockpiles
(d) provisions for public safety;
(e) dust control measures;
(f) method used to provide site access location and materials used;
(g) details of methods of disposal of demolition materials;
(h) method used to provide protective measures for tree preservation;
(i) provisions for temporary sanitary facilities;
(j) location and size of waste containers/skip bins;
(k) details of proposed sediment and erosion control measures;
(l) method used to provide construction noise and vibration management;
(m) construction and demolition traffic management details.
The site management measures are to be implemented prior to the commencement of any works including demolition and excavation. The site management measures are to be maintained throughout the works, to maintain reasonable levels of public health, safety and amenity. A copy of the Site Management Plan must be kept on site and is to be made available upon request.
28. CC9.61 - Traffic Management - Compliance with AS2890 - All driveways, access ramps, vehicular crossings and car parking spaces shall be designed and constructed in accordance with the current version of Australian Standards, AS 2890.1 (for car parking facilities) and AS 2890.2 (for commercial vehicle facilities).
29. Acoustic Requirements - Compliance with submitted Acoustic Report - The Construction Certificate plans shall demonstrate compliance with the Acoustic Report submitted and approved by Council, titled “Development Application Acoustic Assessment” prepared by Vipac Engineers and Scientists Ltd and dated 25 September 2017. Verification by a suitably qualified acoustic consultant of this demonstration of compliance must accompany the Construction Certificate Plans.
30. Site Investigation Requirements - Detailed Site Investigation - A detailed site contamination investigation of the deep soil zone only, proposed for onsite retention in the northern section of the development site, must be carried out by an appropriately qualified contamination consultant in accordance with the requirements of the relevant NSW EPA Guidelines approved under the Contaminated Land Management Act 1997 including the EPA Guidelines for Consultants Reporting on contaminated sites and shall certify the suitability of the site for the proposed development. If investigation finds that contamination makes the land unsuitable for the proposed development and remediation is required, a Remedial Action Plan (RAP) must be submitted to Council prior to Council making a determination. Council reserves the right to require a site audit of the RAP.
Site contamination – Additional information
Any new information that comes to light during demolition or construction which has the potential to alter previous conclusions about site contamination and remediation must be notified to Council and the accredited certifier immediately.
Remedial Action Plan (RAP)
The Remedial Action Plan (RAP) must be prepared by an suitably qualified consultant in accordance with NSW Department of Environment and Conservation (DEC) and NSW Environmental Protection Authority (EPA) Guidelines and shall document all the remedial works to be undertaken at the site and also contain an environmental management plan and occupational health and safety plan for the remedial works.
Remediation Works
All remediation work must be carried out in accordance with: -
· The Managing Land Contamination: Planning Guidelines SEPP 55 Remediation of Land; and
· The EPA Guidelines made under the Contaminated Land Management Act 1997.
· And in accordance with the proposed Remedial Action Plan.
Validation Report
After completion of all Remediation works, a copy of the Validation and Monitoring Report prepared by suitably qualified contaminated land consultant shall be submitted to Council. The Construction Certificate shall not be issued until Council approves this Report. The validation report shall be prepared in accordance with the Office Environment and Heritage Guidelines, Consultants Reporting on Contaminated Sites, and shall certify the suitability of the site for the proposed development.
· describe and document all works performed;
· include results of validation testing and monitoring;
· include validation results of any fill imported on to the site;
· show how the objectives of the Remedial Action Plan have been met;
· show how all agreed clean-up criteria and relevant regulations have been complied with; and
· include clear justification as to the suitability of the site for the proposed development and the potential for off-site migration of any residual contaminants.
31. CC9.78 - Waste Management Plan - A Waste Management Plan incorporating all requirements in respect of the provision of waste storage facilities, removal of all materials from the site that are the result of site clearing, extraction, and, or demolition works and the designated Waste Management Facility shall be submitted to the Certifying Authority prior to the issue of any Construction Certificate.
32. CC9.79 - Waste Storage - Residential and Mixed Use Developments - The plans shall include details of the waste storage area. The waste storage area shall not be visible from the street. The waste storage area shall be located within the lot/building in accordance with the approved plans.
The waste storage area shall be large enough to accommodate the required number of bins for the development and located in an area to suitably facilitate servicing on waste collection day.
The path to the bin room is to be at least 1.0 metres wide and kept clear and unobstructed at all times.
Residential Waste
The property will require 23 x 240L bins collected once a week or 12 x 240L bins collected twice a week.
The waste room will contain the following to minimise odours, deter vermin, protect surrounding areas, and make it a user-friendly and safe area:
· waste room floor to be sealed;
· waste room walls and floor surface is flat and even;
· all walls painted with light colour and washable paint;
· equipment electric outlets to be installed 1700mm above floor levels;
· The bin storage rooms will be mechanically exhausted as required by AS 1668.2;
· light switch installed at height of 1.6m;
· waste rooms must be well lit (sensor lighting recommended);
· optional automatic odour and pest control system installed to eliminate all pest
· types and assist with odour reduction - this process generally takes place at
· building handover - building management make the decision to install;
· all personnel doors are hinged and self-closing;
· waste collection area must hold all bins - bin movements should be with ease of access;
· conform to the Building Code of Australia, Australian Standards and local laws; and childproofing and public/operator safety shall be assessed and ensured.
· Occupational Health and Safety issues such as slippery floors in waste rooms and the weight of the waste and recycling receptacles will need to be monitored.
· Cleaners will monitor the bin storage area and all spills will be attended to immediately by cleaners.
33. Animal Shelter – Trade Waste Agreement - The applicant shall obtain a Trade Waste Agreement (if required) with Sydney Water before the Construction Certificate is approved.
34. Landscape Plans - All landscape works shall be carried out in accordance with the approved landscape plans drawn by - PDS Landscape Architects and Urban designers. The landscaping shall be maintained in accordance with the approved plans in perpetuity.
35. CC9.85 - Tree Removal prohibited - This consent does not approve the removal or pruning (branches or roots) of any trees on the subject property, Council’s public footway, public reserves or on neighbouring properties.
36. CC9.86 - Compliance with submitted Arborist Report - The recommendations outlined in the Arborist’s Report titled Arboricultural Impact Report prepared by Landscape Matrix Pty Ltd dated 5 December 2017, must be implemented throughout the relevant stages of construction. Details of tree protection measures to be implemented must be detailed and lodged with the Construction Certificate application for approval and shall be in accordance with Section 4 - Australian Standard AS 4970-2009: Protection of trees on development sites.
The tree/s to be protected are listed in the table below.
|
Tree Species |
Location of Tree / Tree No. |
Tree Protection Zone (metres) |
|
T1 – Platanus X hybrida |
Nature strip fronting Princes Hwy |
4.2m |
|
T2 – Platanus X hybrida |
Nature strip fronting Princes Hwy |
10.2m |
|
T7 – Robina psuedoacacia |
Nature strip fronting Edward St |
4.2m |
37. CC9.87 - Tree Protection and Retention - The following trees shall be retained and protected:
|
Tree Species |
Location of Tree / Tree No. |
Tree Protection Zone (metres) |
|
T1 – Platanus X hybrida |
Nature strip fronting Princes Hwy |
4.2m |
|
T2 – Platanus X hybrida |
Nature strip fronting Princes Hwy |
10.2m |
|
T7 – Robina psuedoacacia |
Nature strip fronting Edward St |
4.2m |
Details of the trees to be retained must be included on the Construction Certificate plans.
General Tree Protection Measures
(a) All trees to be retained shall be protected and maintained during demolition, excavation and construction of the site.
(b) The tree protection measures must be in undertaken in accordance AS4970 -2009 Protection of trees on development sites.
(c) Details of the tree protection measures to be implemented must be provided with the application for a Construction Certificate by a suitably qualified Arborist (AQF Level 5 or above in Arboriculture).
(d) The Arborist must be present on-site during the stages of construction when works are being undertaken that could impact on the tree canopy or root zone within the tree protection zone to implement the tree protection measures as required.
(e) Unless otherwise specified in AS 4970-2009, a protective fence consisting of 1.8 metres high, fully supported chainmesh fence shall be erected around the base of the tree. The distance of the fence from the base of each tree is to be in accordance with the TPZ listed in the table above. A layer of organic mulch 100 millimetres thick shall be placed over the protected area and no soil or fill should be placed within the protection area.
(f) No services shall be installed within the TPZ of the tree unless approved by Council. This fence shall be kept in place during demolition, construction and also have a sign displaying ‘Tree Protection Zone’ attached to the fence and must also include the name and contact details of the Project Arborist.
Excavation works near tree to be retained
(g) Excavations around the trees to be retained on site or the adjoining properties shall be supervised by the Project Arborist to ensure that the root system will not adversely be affected.
(h) Where the Tree Protection Zone (TPZ) of trees on site or adjoining sites become compromised by any excavation works, the Project arborist shall be consulted to establish the position of any major roots and determine the necessary measures to protect these roots. The recommendations of the Arborist shall be submitted to Council prior to any further demolition or construction works taking place.
(i) Tree Protection Zone around the trees to be retained are not to have soil level changes or services installed in this area. Any structures proposed to be built in this area of the trees are to utilise pier and beam or cantilevered slab construction.
Details satisfying this condition shall be shown on the Construction Certificate plans.
38. Tree pruning (CC9.88)
Approval is given for the following works to be undertaken to trees on the site:
|
Tree species |
Location |
Approved works |
|
T2 – Platanus X hybrida |
Nature strip fronting Princes Hwy |
Branches to clear proposed building works |
|
T3 – Platanus X hybrida |
Nature strip fronting Princes Hwy |
Branches to clear proposed building works |
In accordance with revised Arborist Report dated 5 December. Removal or pruning of any other tree (that would require consent of Council) on the site is not approved. All pruning must be undertaken by a qualified Arborist in accordance with AS4373 -2007 Pruning of Amenity Trees and Amenity Tree Industry, Code of Practice (SafeWork NSW August 1998).
39. CC9.89 - Tree Removal & Replacement
Tree removal
Permission is granted for the removal of the following trees:
|
Tree species |
Number of trees |
Location |
|
T3 – Jacaranda mimosifolia T4 – Jacaranda mimosifolia T5 – Jacaranda mimosifolia T6 – Jacaranda mimosifolia |
1 1 1 1 |
Within site fronting Princes Hwy Within site fronting Princes Hwy Within site along western fence line Within site along western fence line |
|
T8 - Robina psuedoacacia |
1 |
Nature strip fronting Edward St |
|
T9 – Jacaranda mimosifolia T10 – Syzigium paniculatum |
1 1 |
Nature strip fronting Edward Street Within site, fronting Edward Street |
General Tree Removal Requirements
(a) All tree removal shall be carried out by a certified Tree Surgeon/Arborist to ensure that removal is undertaken in a safe manner and complies with the AS 4373-2007 - Pruning of Amenity Trees and Tree Works Industry Code of Practice (Work Cover NSW 1.8.98).
(b) No trees are to be removed on the site or neighbouring properties without the prior written approval of Council.
(c) Council shall be appointed to remove all tree/s on public land. All costs associated with the removal of the tree/s and the planting of replacement trees shall be met by the applicant. Fees and charges outlined in the table below are subject to change and are set out in the current version of Council's ‘Schedule of Fees and Charges’, applicable at the time of payment.
|
Fee Type – Tree removal on public land |
Amount |
|
Administration Fee for Tree Removal |
TBA |
|
Replacement Tree Fee (per Tree) |
TBA |
|
Cost of tree removal |
TBA |
|
Cost of Stump Grinding |
TBA |
A copy of the Hurstville City Council’s Tree Removal and Pruning Guidelines and Kogarah City Council, Street Tree Management Strategy and Masterplan, can be downloaded from Council’s website www.georgesriver.nsw.gov.au.
40. CC9.9 - BASIX Commitments - All energy efficiency measures as detailed in the BASIX Certificate No. 864053M, dated 27 September 2017 must be implemented on the plans lodged with the application for the Construction Certificate.
41. CC12.24 - Consolidation of Site - The site shall be consolidated into one allotment and by a Plan of Consolidation being prepared by a Registered Surveyor. This Plan shall be registered at the NSW Land and Property Information prior to the issue of a final occupation certificate.
42. CC9.69 - Car Wash Bays - Plans and specifications of the car washing system which has been approved by Sydney Water must be submitted with the application for the Construction Certificate.
All car washing bays shall be contained within a roofed and bunded car wash bay with pre-treatment approved by Sydney Water. The water from the car wash bay must be graded to a drainage point and connected to sewer.
If alternative water management and disposal options are proposed (i.e. where water is recycled, minimised or reused on the site), detailed plans and specifications of the water recycling system must be submitted with the application for the Construction Certificate for approval.
43. CC9.7 - SEPP 65 Design Verification Statement - A design verification statement, prepared by a qualified designer, shall be submitted to the Certifying Authority verifying that the plans and specifications achieve or improve the design quality of the development for which development consent was granted, having regard to the design quality principles set out under Schedule 1 of State Environmental Planning Policy No 65 -Design Quality of Residential Flat Development.
44. CC9.8 - Design Quality Excellence (Major Development) -
(a) In order to ensure the design quality excellence of the development is retained:
i. The design architect is to have direct involvement in the design documentation, contract documentation and construct stages of the project;
ii. The design architect is to have full access to the site and is to be authorised by the applicant to respond directly to the consent authority where information or clarification is required in the resolution of the design issues throughout the life of the project;
iii. Evidence of the design architect’s commission is to be provided to the Council prior to release of the Construction Certificate.
(b) The design architect of the project is not to be changed without prior notice and approval of the Council.
45. CC9.90 - Allocation of street addresses - In order to comply with AS/NZS 4819:2011 Rural and Urban Addressing & the NSW Addressing User Manual (Geographical Names Board of NSW) and Georges River Council’s requirements, the street addresses for the subject development must be allocated as advised by Georges River Council.
Details indicating compliance with this condition must be shown on the plans lodged with any Construction Certificate for approval.
46. CC9.33 - Pre-Construction Dilapidation Report - Private Land - A professional engineer specialising in structural or geotechnical engineering shall prepare a Pre-Construction Dilapidation Report detailing the current structural condition of adjoining premises including but not limited to:
(a) All neighbouring buildings likely to be affected by the excavation as determined by the consulting engineer.
The report shall be prepared at the expense of the applicant and submitted to the satisfaction of the Certifying Authority prior to the issue of the Construction Certificate.
A copy of the pre-construction dilapidation report is to be provided to the adjoining properties (subject of the dilapidation report), a minimum of 5 working days prior to the commencement of work. Evidence confirming that a copy of the pre-construction dilapidation report was delivered to the adjoining properties must be provided to the PCA.
Should the owners of properties (or their agents) refuse access to carry out inspections, after being given reasonable written notice, this shall be reported to Council to obtain Council’s agreement to complete the report without access. Reasonable notice is a request for access in no sooner than 14 days between 8.00am-6.00pm.
Section E Prior to the Commencement of Work (Including Demolition & Excavation)
47. PREC10.1 - Demolition & Asbestos - The demolition work shall comply with the provisions of Australian Standard AS2601:2001 - Demolition of Structures, NSW Work Health & Safety Act 2011 and the NSW Work Health & Safety Regulation 2011. The work plans required by AS2601:2001 shall be accompanied by a written statement by a suitably qualified person that the proposals contained in the work plan comply with the safety requirements of the Standard. The work plans and the safety statement shall be submitted to the PCA prior to the commencement of works.
For demolition work which involves the removal of asbestos, the asbestos removal work must be carried out by a licensed asbestos removalist who is licensed to carry out the work in accordance with the NSW Work Health & Safety Act 2011 and the NSW Work Health & Safety Regulation 2011 unless specified in the Act and/or Regulation that a license is not required.
All demolition work including the removal of asbestos, shall be undertaken in accordance with the Demolition Code of Practice (NSW Work Cover July 2015)
Note: Copies of the Act, Regulation and Code of Practice can be downloaded free of charge from the SafeWork NSW website: www.SafeWork.nsw.gov.au.
48. PREC10.10 - Dial before your dig - The applicant shall contact “Dial Before You Dig on 1100” to obtain a Service Diagram prior to the issuing of the Construction Certificate. The sequence number obtained from “Dial Before You Dig” shall be forwarded to Council’s Engineers for their records.
49. PREC10.14 - Registered Surveyors Report - During Development Work - A report must be submitted to the PCA at each of the following applicable stages of construction:
(a) Set out before commencing excavation.
(b) Floor slabs or foundation wall, before formwork or commencing brickwork.
(c) Completion of Foundation Walls - Before any construction of flooring, detailing the location of the structure relative to adjacent boundaries and floor levels relative to the datum shown on the approved plans.
(d) Completion of Floor Slab Formwork - Before pouring of concrete/walls construction, detailing the location of the structure relative to adjacent boundaries and floor levels relative to the datum shown on the approved plans. In multi-storey buildings a further survey must be provided at each subsequent storey.
(e) Completion of any Roof Framing - Before roof covered detailing eaves/gutter setback from boundaries.
(f) Completion of all Work - Detailing the location of the structure (including eaves/gutters) relative to adjacent boundaries and its height relative to the datum shown on the approved plans. A final Check Survey must indicate the reduced level of the main ridge.
Work must not proceed beyond each stage until the PCA is satisfied that the height and location of the building is proceeding in accordance with the approved plans.
50. PREC10.15 - Utility Arrangements - Arrangements are to be made with utility authorities in respect to the services supplied by those authorities to the development. The cost associated with the provision or adjustment of services within the road and footway areas is to be at the applicant’s expense.
51. PREC10.2 - Demolition Notification Requirements - The following notification requirements apply to this consent:
(a) The developer /builder must notify adjoining residents five (5) working days prior to demolition. Such notification is to be a clearly written note giving the date demolition will commence, contact details of the developer/builder, licensed asbestos demolisher and the appropriate regulatory authority. Notification is to be placed in the letterbox of every premises (including every residential flat or unit, if any) either side and immediately at the rear of the demolition site.
(b) Five (5) working days prior to demolition, the developer/builder is to provide written notification to Council advising of the demolition date, details of the SafeWork licensed asbestos demolisher and the list of residents advised of the demolition.
(c) On demolition sites where buildings to be demolished contain asbestos, a standard commercially manufactured sign containing the words “DANGER ASBESTOS REMOVAL IN PROGRESS” measuring not less than 400mm x 300mm is to be erected in a prominent visible position (from street frontage) on the site. The sign is to be erected prior to demolition work commencing and is to remain in place until such time as all asbestos material has been removed from the site to an approved waste facility.
52. PREC10.3 - Demolition work involving asbestos removal - Work involving bonded asbestos removal work (of an area of more than 10 square metres) or friable asbestos removal work must be undertaken by a person who carries on a business of such removal work in accordance with a licence under clause 458 of the Work Health and Safety Regulation 2011.
53. PREC10.17 - Structural Engineers Details - Supporting Council road/footway - Prior to the commencement of work in connection with the excavation of the site associated with the basement car park, structural engineer’s details relating to the method of supporting the excavation must be submitted.
54. PREC10.11 - Dilapidation Report on Public Land - Major Development Only - Prior to the commencement of works (including demolition and excavation), a dilapidation report must be prepared for the Council infrastructure adjoining the development site, including:
The report must include the following:
(a) Photographs showing the existing condition of the road pavement fronting the site,
(b) Photographs showing the existing condition of the kerb and gutter fronting the site,
(c) Photographs showing the existing condition of the footpath pavement fronting the site,
(d) Photographs showing the existing condition of any retaining walls within the footway or road, and
(e) Closed circuit television/video inspection (in DVD format) of public stormwater drainage systems fronting, adjoining or within the site, and
(f) The full name and signature of the structural engineer.
(g) The Dilapidation Report must be prepared by a qualified structural engineer. The report must be provided to the PCA and a copy provided to the Council.
The Dilapidation Report must be prepared by a professional engineer. The report must be provided to the PCA and a copy provided to the Council.
The report is to be supplied in electronic format in Word or PDF. Photographs are to be in colour, digital and date stamped.
Note: Council will use this report to determine whether to refund the damage deposit after the completion of works.
Section F During Construction
55. CON11.1 - Site sign - Soil & Erosion Control Measures - Prior to the commencement of works (including demolition and excavation), a durable site sign, issued by Council in conjunction with this consent, must be erected in a prominent location on site. The site sign warns of the penalties which apply to pollution, storing materials on road or footpath and breaches of the conditions relating to erosion and sediment controls. The sign must remain in a prominent location on site up until the completion of all site and building works.
56. CON11.12 - Cost of work to be borne by the applicant - The applicant shall bear the cost of all works associated with the construction of the development that occurs on Council property. Care must be taken to protect Council's roads, including the made footway, kerbs, etc., and, where plant and vehicles enter the site, the footway shall be protected against damage by deep-sectioned timber members laid crosswise, held together by hoop iron straps and chamfered at their ends. This construction shall be maintained in a state of good repair and condition throughout the course of construction.
57. CON11.13 - Obstruction of Road or Footpath - The use of the road or footpath for the storage of any building materials, waste materials, temporary toilets, waste or skip bins, or any other matter is not permitted unless separately approved by Council under Section 138 of the Roads Act 1993 and/or under Section 68 of the Local Government Act 1993. Penalty infringement Notices may be issued for any offences and severe penalties apply.
58. CON11.2 - Hours of construction for demolition and building work - Any work activity or activity associated with the development consent that requires the use of any tools (including hand tools) or any power operated plant and machinery that creates noise on or adjacent to the site shall not be performed, or permitted to be performed, except between the hours of 7.00 am to 5.00 pm, Monday to Saturday inclusive. No work or ancillary activity is permitted on Sundays, or Public Holidays.
Note: A penalty infringement notice may be issued for any offence.
59. CON11.21 - Waste Management Facility - All materials removed from the site as a result of demolition, site clearing, site preparation and, or excavation shall be disposed of at a suitable Waste Management Facility. No vegetation, article, building material, waste or the like shall be ignited or burnt.
Copies of all receipts for the disposal, or processing of all such materials shall be submitted to the PCA and Council, where Council is not the Principal Certifying Authority.
60. CON11.24 - Excavation works near tree to be retained - Excavation around the tree/s to be retained on site or the adjoining properties shall be supervised by the Project Arborist to ensure that the root system will not be adversely affected.
Where the Tree Protection Zone of trees on site or adjoining sites become compromised by any excavation works, the Project Arborist shall be consulted to establish the position of any major roots and determine the necessary measures to protect these roots. The recommendations of the Arborist shall be submitted to Council prior to any further demolition or construction works taking place.
61. CON11.3 - Ground levels and retaining walls - The ground levels of the site shall not be excavated, raised or filled, or retaining walls constructed on the allotment boundary, except where indicated on approved plans or approved by Council.
62. CON11.18 - Building - Structural Certificate During Construction - The proposed building must be constructed in accordance with details designed and certified by the practising qualified structural engineer. All structural works associated with the foundations, piers, footings and slabs for the proposed building must be inspected and structurally certified for compliance by an independent practising geotechnical and structural engineer. In addition a Compliance or Structural Certificate, to the effect that the building works have been carried in accordance with the structural design, must be submitted to the Principal Certifying Authority at each stage of Construction or prior issue of the Occupation Certificate.
63. CON11.11 Physical connection of Stormwater to site - No work is permitted to proceed above the ground floor slab level of the building until there is physical connection of the approved stormwater drainage system from the land the subject of this consent to Council's in.
Section G Prior to the issue of the Occupation Certificate
64. OCC12.17 - Restriction to User and Positive Covenant for On-Site Detention Facility - A Restriction on Use of the Land and Positive Covenant shall be created and registered on the title of the property, which places the responsibility for the maintenance of the on-site stormwater management system on the owners of the land. The terms of the instrument are to be in accordance with Council’s standard terms and restrictions which are as follows;
Restrictions on Use of Land
The registered proprietor shall not make or permit or suffer the making of any alterations to any on-site stormwater management system which is, or shall be, constructed on the lot(s) burdened without the prior consent in writing of Georges River Council. The expression “on-site stormwater management system” shall include all ancillary gutters, pipes, drains, walls, kerbs, pits, grates, tanks, chambers, basins and surfaces designed to manage stormwater quantity or quality including the temporary detention or permanent retention of stormwater storages. Any on-site stormwater management system constructed on the lot(s) burdened is hereafter referred to as “the system”.
Name of Authority having the power to release, vary or modify the Restriction referred to is Georges River Council.
Positive Covenants
1. The registered proprietor of the lot(s) hereby burdened will in respect of the system:
a) keep the system clean and free from silt, rubbish and debris
b) maintain and repair at the sole expense of the registered proprietors the whole of the system so that if functions in a safe and efficient manner
c) permit the Council or its authorised agents from time to time and upon giving reasonable notice (but at any time and without notice in the case of an emergency) to enter and inspect the land for the compliance with the requirements of this covenant
d) comply with the terms of any written notice issued by the Council in respect of the requirements of this covenant within the time stated in the notice.
2. Pursuant to Section 88F(3) of the Conveyancing Act 1919 the Council shall have the following additional powers:
a) in the event that the registered proprietor fails to comply with the terms of any written notice issued by the Council as set out above the Council or its authorised agents may enter the land with all necessary materials and equipment and carry out any work which the Council in its discretion considers reasonable to comply with the said notice referred to in part 1(d) above
b) the Council may recover from the registered proprietor in a Court of competent jurisdiction:
i. any expense reasonably incurred by it in exercising its powers under subparagraph (i) hereof. Such expense shall include reasonable wages for the Council’s employees engaged in effecting the work referred to in (i) above, supervising and administering the said work together with costs, reasonably estimated by the Council, for the use of materials, machinery, tools and equipment in conjunction with the said work.
ii. legal costs on an indemnity basis for issue of the said notices and recovery of the said costs and expenses together with the costs and expenses of registration of a covenant charge pursuant to section 88F of the Act or providing any certificate required pursuant to section 88G of the Act or obtaining any injunction pursuant to section 88H of the Act. Name of Authority having the power to release vary or modify the Positive Covenant referred to is Georges River Council.
65. OCC12.18 - Maintenance Schedule - On-site Stormwater Management - A Maintenance Schedule for the proposed on-site stormwater management measures is to be prepared and submitted to Council. The Maintenance Schedule shall outline the required maintenance works, how and when these will be done and who will be carrying out these maintenance works.
66. OCC12.19 - Works as Executed and Certification of Stormwater works - Prior to the issue of an Occupation Certificate, the PCA must ensure that the stormwater drainage system has been constructed in accordance with the approved design and relevant Australian Standards. A works-as-executed drainage plan and certification must be forwarded to the PCA and Council, from a professional engineer specialising in hydraulic engineering.
This Plan and Certification shall confirm that the design and construction of the stormwater drainage system satisfies the conditions of development consent and the Construction Certificate stormwater design details approved by the PCA.
The works-as-executed drainage plan must be prepared by a professional engineer specialising in hydraulic engineering in conjunction with a Registered Surveyor and must include the following details (as applicable):
(a) The location of any detention basin/s with finished surface levels;
(b) Finished site contours at 0.2 metre intervals (if applicable)
(c) Volume of storage available in any detention areas;
(d) The location, diameter, gradient and material (i.e. PVC, RC etc.) of all stormwater pipes;
(e) The orifice size/s (if applicable);
(f) Details of any infiltration/absorption systems; and (if applicable);
(g) Details of any pumping systems installed (including wet well volumes) (if applicable).12.19 Development
67. OCC12.28 - Vehicular crossing & Frontage work - Major development - The following road frontage works shall be constructed in accordance with Council's Specification for Vehicular Crossings and Associated Works together with the Vehicular Crossing Approval issued by Council’s Engineering Services Division:
(a) Construct a footpath for the full length of the frontage of the site in Princes Highway and Edward Street as required by Council in accordance with Council’s Specifications for footpaths.
(b) Construct the vehicular crossing in accordance with Council’s Specifications for vehicular crossings.
(c) Construct a new 150mm high concrete kerb with 450mm wide gutter for the full frontage(s) of the site in in accordance with Council’s Specifications for kerb and guttering.
(d) Any existing vehicular crossing and/or laybacks which are redundant must be removed. The kerb and gutter, any other footpath and turf areas shall be restored at the expense of the applicant and in accordance with Council’s Specification for Vehicular Crossings and Associated Works.
A private contractor shall carry out the above work, at the expense of the applicant and in accordance with Council’s Specification for Vehicular Crossings and Associated Works.
The driveway and road frontage works are to be completed before the issue of the Occupation Certificate.
68. OCC12.32 - Stormwater drainage works - Works As Executed - Prior to the issue of the Occupation Certificate, storm water drainage works are to be certified by a professional engineer specialising in hydraulic engineering, with Works-As-Executed drawings supplied to Council detailing:
(a) Compliance with conditions of development consent relating to stormwater;
(b) The structural adequacy of the On-Site Detention system (OSD);
(c) That the works have been constructed in accordance with the approved design and will provide the detention storage volume and attenuation in accordance with the submitted calculations;
(d) Pipe invert levels and surface levels to Australian Height Datum;
(e) Contours indicating the direction in which water will flow over land should the capacity of the pit be exceeded in a storm event exceeding design limits.
Council’s Engineering Services section must advise in writing that they are satisfied with the Works-As-Executed prior to the issue of an Occupation Certificate.
69. OCC12.31 - Dilapidation Report on Public Land for Major Development Only - Upon completion of works, a follow up dilapidation report must be prepared for the items of Council infrastructure adjoining the development site including:
The dilapidation report must be prepared by a professional engineer specialising in structural engineering, and include:
(a) Photographs showing the condition of the road pavement fronting the site
(b) Photographs showing the condition of the kerb and gutter fronting the site
(c) Photographs showing the condition of the footway including footpath pavement fronting the site
(d) Photographs showing the condition of retaining walls within the footway or road
(e) Closed circuit television/video inspection (in DVD format) of public stormwater drainage systems fronting, adjoining or within the site, and
(f) The full name and signature of the professional engineer.
The report must be provided to the PCA and a copy provided to the Council. The reports are to be supplied in electronic format in Word or PDF. Photographs are to be in colour, digital and date stamped.
NOTE: Council will use this report to determine whether or not to refund the damage deposit.
Council’s Engineering Services Division must advise in writing that the works have been completed to their satisfaction prior to the issue of an Occupation Certificate.
70. OCC12.7 - Post Construction Dilapidation report - Private Land - At the completion of the construction works, a suitably qualified person is to be engaged to prepare a post-construction dilapidation report. This report is to ascertain whether the construction works associated with the subject development created any structural damage to the following adjoining premises:
The report is to be prepared at the expense of the applicant and submitted to the PCA prior to the issue of the Occupation Certificate. In ascertaining whether adverse structural damaged has occurred to the adjoining premises, the PCA, must compare the post-construction dilapidation report with the pre-construction dilapidation report required by conditions in this consent.
Evidence confirming that a copy of the post-construction dilapidation report was delivered to the adjoining properties subject of the dilapidation report must be provided to the PCA prior to the issue of any Occupation Certificate.
71. OCC12.60 - Allocation of street addresses - Prior to issue of an Occupation Certificate, All house numbering are to be allocated in accordance with AS/NZS 4819:2011 Rural and Urban Addressing & the NSW Addressing User Manual (Geographical Names Board of NSW) and Georges River Council’s requirements. Council must be contacted in relation to all specific requirements for street numbering.
72. OCC12.34 - Fire Safety Certificate before Occupation or Use - In accordance with Clause 153 of the Environmental Planning and Assessment Regulation 2000, on completion of building works and prior to the issue of an Occupation Certificate, the owner must cause the issue of a Final Fire Safety Certificate in accordance with Clause 170 of the aforesaid Regulation. The Fire Safety Certificate must be in the form or to the effect of Clause 174 of the Environmental Planning and Assessment Regulation, 2000. In addition, in relation to each essential fire or other safety measure implemented in the building or on the land on which the building is situated, such a Certificate is to state:
(a) That the measure has been assessed by a person (chosen by the owner of the building) who is properly qualified to do so.
(b) That as at the date of the assessment the measure was found to be capable of functioning at a standard not less than that required by the attached Schedule.
A copy of the certificate is to be given by the applicant to the Commissioner of Fire & Rescue NSW and a further copy is to be displayed in a frame and fixed to a wall inside the building's main entrance.
73. OCC12.38 - Building - (Structural Certificates) - The proposed structure must be constructed in accordance with details designed and certified by the practising qualified structural engineer. In addition, Compliance or Structural Certificates, to the effect that the building works have been carried in accordance with the structural design, must be submitted to the Principal Certifying Authority prior issue of the Occupation Certificate.
74. OCC12.35 - Slip Resistance - At completion of work an in-situ (on-site) test, in wet and dry conditions, must be carried out on the pedestrian floor surfaces used in the foyers, public corridors/hallways, stairs and ramps as well as the floor surfaces in wet rooms in any residential units to ascertain the actual slip resistance of such surfaces taking into consideration the effects of grout, the gradients of the surface and changes from one material to another. The in-situ test must be carried out in accordance with AS/NZS 4663:2002. Proof of compliance must be submitted with the application for the Occupation Certificate for approval.
75. OCC12.4 - BASIX Certificate - All energy efficiency measures as detailed in the approved BASIX Certificate in the plans approved with the Development Consent, must be implemented before issue of any Occupation Certificate.
76. OCC12.5 - BASIX Compliance Certificate - A Compliance Certificate must be provided to the PCA regarding the implementation of all energy efficiency measures as detailed in the approved BASIX Certificate before any Occupation Certificate is issued.
77. OCC12.59 - Electricity Supply - Evidence shall be provided demonstrating that the development has been connected to the Ausgrid, if required.
78. OCC12.6 - Completion of Landscape Works - All landscape works must be completed before the issue of the Final Occupation Certificate.
79. OCC12.8 - Allocation of car parking spaces - Car parking associated with the development is to be allocated as follows:
(a) Residential dwellings: 68 car spaces (1 car space per 1bdrm unit, 2 car spaces per 3 or more bdrm unit) and 53 car spaces to be distributed to all 2 bdrm units).
(b) Accessible car spaces: 1 accessible car space per adaptable dwelling
(c) Residential visitors: 9 car spaces which shall remain as common property.
(d) Carwash bay: 1 car wash bay (which can be within a visitor’s space)
(e) Retail: 6 car spaces
(f) Veterinarian Hospital: 6 car spaces
(g) Bicycle spaces: 22 spaces
(h) Motorbike spaces: 2 spaces
80. CC12.10 - Major Development - Internal driveways and parking spaces are to be adequately paved with concrete or bitumen, or interlocking pavers to provide a dust-free surface. All car parking spaces are to be line marked in accordance with AS1742, ‘Australian Standard Manual of Uniform Traffic Control Devices’ and the relevant guidelines published by the RMS.
81. OCC12.11 - SEPP 65 Design Verification Statement - The PCA must not issue an Occupation Certificate to authorise a person to commence occupation of the residential flat development unless the PCA has received a design verification from a qualified designer, being a statement in which the qualified designer verifies that the residential flat development achieves the design quality of the development as shown in the plans and specifications in respect of which the construction certificate was issued, having regard to the design quality principles set out in Part 2 of State Environmental Planning Policy No 65Design Quality of Residential Flat Development.
Section H Operational Conditions (Ongoing)
82. ONG14.2 – Operation of Veterinarian Hospital - The approved Veterinarian Hospital is to operate as follows:
- The hours of operation are restricted to 8am to 8pm (Monday to Friday) and 9am to 4pm (Saturday and Sunday);
- The maximum number of staff are restricted to 8 on weekdays and 4 on weekends and public holidays
83. ONG14.28 - Activities and storage of goods outside buildings - There shall be no activities including storing or depositing of any goods or maintenance to any machinery external to the building with the exception of waste receptacles.
84. A separate clinical waste bin and sharp container is to be provided for the disposal of clinical waste and sharps. Clinical and sharps waste must be collected and disposed of by an authorised contractor in accordance with the Protection of the Environment Operations (Waste) Regulation 2005 (as amended).
85. ONG14.12 - Noise Control - The use of the premises must not give rise to the transmission of offensive noise to any place of different occupancy. Offensive noise is defined in the Protection of the Environment Operations Act 1997 (as amended).
86. ONG14.14 - Final Acoustic Report – Verification of Noise report - Within three months from the issue of an Occupation Certificate, an acoustic assessment is to be carried out by an appropriately qualified acoustic consultant, in accordance with the EPA's Industrial Noise Policy and submitted to Council for consideration. This report should include but not be limited to, details verifying that the noise control measures as recommended in the acoustic report submitted by Vipac Engineers and Scientists Ltd, titled “Development Application Acoustic Assessment report No. 20E-17-0115-TRP-458521-2 dated 19 September 2017”, are effective in attenuating noise to an acceptable noise level and that the use is not likely to give rise to ‘offensive noise’ as defined under the provision of the Protection of the Environment Operation Act 1997 (as amended).
87. ONG14.26 - Lighting – General Nuisance - Any lighting on the site shall be designed so as not to cause a nuisance to other residences in the area or to motorists on nearby roads and to ensure no adverse impact on the amenity of the surrounding area by light overspill or glare. Flashing, moving or intermittent lights or signs are prohibited.
88. ONG14.27 - Amenity of the neighbourhood - The implementation of this development shall not adversely affect the amenity of the neighbourhood or interfere unreasonably with the comfort or repose of a person who is outside the premises by reason of the emission or discharge of noise, fumes, vapour, odour, steam, soot, dust, waste water, waste products, grit, oil or other harmful products.
89. ONG14.5 - Maintenance of Landscaping - All trees and plants forming part of the landscaping must be maintained. Maintenance includes watering, weeding, removal of rubbish from tree bases, fertilizing, pest and disease control, replacement of dead or dying plants and any other operations required to maintain healthy trees, plants and turfed areas. The maintenance schedule shown on the approved landscape plan is to be undertaken in accordance with the details of that schedule. On the completion of the 12 month maintenance period, the landscape works shall be inspected and at the satisfaction of the landscape architect (PDS Paterson Design Studio), the responsibility will be signed over to the client.
90. ONG14.67 - Annual Fire Safety Statement - The owner of the building premises must ensure the Council is given an annual fire safety statement in relation to each essential fire safety measure implemented in the building. The annual fire safety statement must be given:
(a) Within 12 months after the date on which the fire safety certificate was received.
(b) Subsequent annual fire safety statements are to be given within 12 months after the last such statement was given.
(c) An annual fire safety statement is to be given in or to the effect of Clause 181 of the Environmental Planning and Assessment Regulation 2000.
(d) A copy of the statement is to be given to the Commissioner of Fire & Rescue NSW, and a further copy is to be prominently displayed in the building.
Section I Operational Requirements Under the Environmental Planning & Assessment Act 1979
91. OPER1001 - Requirement for a Construction Certificate - The erection of a building must not commence until a Construction Certificate has been issued by the consent authority, the Council (if the Council is not the consent authority) or an accredited certifier.
An application form for a Construction Certificate is attached for your convenience.
92. OPER1002 - Appointment of a Principal Certifying Authority - The erection of a building must not commence until the beneficiary of the development consent has:
(a) appointed a Principal Certifying Authority (PCA) for the building work; and
(b) if relevant, advised the PCA that the work will be undertaken as an Owner-Builder.
If the work is not going to be undertaken by an Owner-Builder, then the beneficiary of the consent must:
(a) appoint a Principal Contractor to undertake the building work. If residential building work (within the meaning of the Home Building Act 1989) is to be undertaken, the Principal Contractor must be a holder of a contractor licence; and
(b) notify the PCA of the details of any such appointment; and
(c) notify the Principal Contractor of any critical stage inspections or other inspections that are required to be carried out in respect of the building work.
An Information Pack is attached for your convenience should you wish to appoint Georges River Council as the Principal Certifying Authority for your development.
93. OPER1003 - Notification of Critical Stage Inspections - No later than two (2) days before the building work commences, the PCA must notify:
(a) the consent authority and the Council (if not the consent authority) of his or her appointment; and
(b) the beneficiary of the development consent of the critical stage inspections and other inspections that are to be carried out with respect to the building work.
94. OPER1004 - Notice of Commencement - The beneficiary of the development consent must give at least two (2) days notice to the Council and the PCA of their intention to commence the erection of a building.
A Notice of Commencement Form is attached for your convenience.
95. OPER1007 - Critical Stage Inspections - The last critical stage inspection must be undertaken by the Principal Certifying Authority. The critical stage inspections required to be carried out vary according to Building Class under the Building Code of Australia and are listed in Clause 162A of the Environmental Planning and Assessment Regulation 2000.
96. OPER1008 - Notice to be given prior to critical stage inspections - The principal contractor for a building site, or the owner-builder, must notify the principal certifying authority at least 48 hours before each required inspection needs to be carried out.
Where Georges River Council has been appointed PCA, forty eight (48) hours notice in writing, or alternatively twenty four (24) hours notice by facsimile or telephone, must be given to when specified work requiring inspection has been completed.
97. OPER1009 - Occupation Certificate - A person must not commence occupation or use of the whole or any part of a new building unless an Occupation Certificate has been issued in relation to the building or part.
Only the Principal Certifying Authority appointed for the building work can issue the Occupation Certificate.
An Occupation Certificate Application Form is attached for your convenience.
Section J Prescribed Conditions
98. PRES1001 - Clause 97A – BASIX Commitments - This Clause requires the fulfilment of all BASIX Commitments as detailed in the BASIX Certificate to which the development relates.
99. PRES1002 - Clause 98 – Building Code of Australia & Home Building Act 1989 - Requires all building work to be carried out in accordance with the Building Code of Australia. In the case of residential building work to which the Home Building Act 1989 relates, there is a requirement for a contract of insurance to be in force before any work commences.
100. PRES1003 - Clause 98A – Erection of Signs - Requires the erection of signs on site and outlines the details which are to be included on the sign. The sign must be displayed in a prominent position on site and include the name and contact details of the Principal Certifying Authority and the Principal Contractor.
101. PRES1004 - Clause 98B – Home Building Act 1989 - If the development involves residential building work under the Home Building Act 1989, no work is permitted to commence unless certain details are provided in writing to Council. The name and licence/permit number of the Principal Contractor or Owner Builder and the name of the Insurer by which work is insured under Part 6 of the Home Building Act 1989.
102. PRES1007 - Clause 98E – Protection & support of adjoining premises - If the development involves excavation that extends below the level of the base of the footings of a building on adjoining land, this prescribed condition requires the person who benefits from the development consent to protect and support the adjoining premises and where necessary underpin the adjoining premises to prevent any damage.
END CONDITIONS
NOTES/ADVICES
103. Review of Determination - Section 82A of the Environmental Planning and Assessment Act confers on an applicant who is dissatisfied with the determination of the application the right to lodge an application with Council for a review of such determination. Any such review must however be completed within 6 months from its determination. Should a review be contemplated sufficient time should be allowed for Council to undertake public notification and other processes involved in the review of the determination.
Note: review provisions do not apply to Complying Development, Designated Development, State Significant Development, Integrated Development or any application determined by the Sydney South Planning Panel or the Land & Environment Court.
104. Appeal Rights - Division 8 (Appeals and Related matters) Part 4 of the Environmental Planning and Assessment Act 1979 confers on an applicant who is dissatisfied with the determination of the application a right of appeal to the Land and Environment Court of New South Wales.
105. Lapsing of Consent - This consent will lapse unless the development is physically commenced within 5 years from the Date of Operation of this consent, in accordance with Section 95 of the Environmental Planning and Assessment Act 1979 as amended.
106. ADV17.10 - Council as PCA - Compliance with the BCA - Should the Council be appointed as the Principal Certifying Authority in determining the Construction Certificate, the building must comply with all the applicable deemed to satisfy provision of the BCA. However, if an alternative solution is proposed it must comply with the performance requirements of the BCA, in which case, the alternative solution, prepared by an appropriately qualified fire consultant, accredited and having specialist qualifications in fire engineering, must justifying the non-compliances with a detailed report, suitable evidence and expert judgement. Council will also require if deemed necessary, for the alternative solution to undergo an independent peer review by either the CSIRO or other accredited organisation. In these circumstances, the applicant must pay all costs for the independent review.
107. ADV17.11 - Energy Efficiency Provisions - Should Council be appointed as the Principal Certifying Authority, a report prepared and endorsed by an Energy Efficiency Engineer or other suitably qualified person must be submitted, detailing the measures that must be implemented in the building to comply with Section J of the BCA. The proposed measures and feature of the building that facilitate the efficient use of energy must be identified and detailed on the architectural plans. At completion of the building and before the issue of an Occupation Certificate, a certificate certifying that the building has been erected to comply with the energy efficiency provisions must be submitted to the Principal Certifying Authority.
108. ADV17.12 - Compliance with Access, Mobility and AS4299 - Adaptable Housing - Should the Council be appointment as the PCA, the Construction Certificate Application must be accompanied by detailed working plans and a report or a Certificate of Compliance from an Accredited Access Consultant certifying that the building design and access to the adaptable units complies with Council’s DCP and AS 4299 Adaptable Housing.
109. ADV17.9 - Council as PCA - Total Conformity with BCA - Should the Council be appointed as the Principal Certifying Authority, the Construction Certificate Application must be accompanied by the following details, with plans prepared and certified by an appropriately qualified person demonstrating compliance with the BCA:
· Mechanical ventilation to bathroom, laundry and basement areas not afforded natural ventilation.
· Provision of natural light to all habitable areas.
· Fire-fighting services and equipment including hydrant and booster assembly systems, sprinkler and valve room systems, hose reels, portable fire extinguishers, smoke hazard management systems and sound & warning systems.
· Emergency lighting and exit signs throughout, including terrace areas, lobby and basement areas.
· Construction of all fire (smoke) doors including warning and operational signage to required exit and exit door areas.
· Egress, travel distance and the discharge from an exit including the swing of exit doors.
· The protection of openings including spandrel separation.
· Fire compartmentation and fire wall separation details including all stairway, lift and service shaft areas.
· Protection of openings including paths of travel from fire isolated exists
· Re-entry facilities from fire isolated exit stairways.
· Sound transmission and insulation details.
· Window schedule is to include the protection of openable windows.
· The location of sanitary facilities for employees in accordance with Table F2.1
In this regard, detailed construction plans and specifications that demonstrate compliance with the above requirements of the BCA must be submitted to the Principal Certifying Authority with the Construction Certificate Application. Should there be any non-compliance, an alternative method of fire protection and structural capacity must be submitted, with all supporting documents prepared by a suitably qualified person.
In the event that full compliance with the BCA cannot be achieved and the services of a fire engineer are obtained to determine an alternative method of compliance with the BCA, such report must be submitted to and endorsed by the Principal Certifying Authority prior to issue of the Construction Certificate.
110. ADV17.13 - Site Safety Fencing - Site fencing must be erected in accordance with SafeWork Guidelines, to exclude public access to the site throughout the demolition and/or construction work, except in the case of alterations to an occupied dwelling. The fencing must be erected before the commencement of any work and maintained throughout any demolition and construction work.
A demolition licence and/or a high risk work license may be required from SafeWork NSW (see www.SafeWork.nsw.gov.au).
111. ADV17.2 - Long Service Levy - The Long Service Corporation administers a scheme which provides a portable long service benefit for eligible workers in the building and construction industry in NSW. All benefits and requirements are determined by the Building and Construction Industry Long Service Payments Act 1986. More information about the scheme and the levy amount you are required to pay to satisfy a condition of your consent can be found at http://www.longservice.nsw.gov.au.
The required Long Service Levy payment can be direct to the Long Service Corporation via their web site https://online.longservice.nsw.gov.au/bci/levy. Payments can only be processed on-line for the full levy owing and where the value of work is between $25,000 and $6,000,000. Payments will be accepted for amounts up to $21,000, using either MasterCard or Visa.
112. ADV17.28 - Sydney Water Section 73 Certificates - The Section 73 Certificate must be a separate certificate that relates specifically to this development consent. For example, if the development consent relates to the subdivision of the land, a Section 73 Certificate for the construction of the building that is subject to a different development consent will not suffice.
113. ADV17.29 - Electricity Supply - This development may need a connection to the Ausgrid network which may require the network to be extended or its capacity augmented. You are advised to contact Ausgrid on 13 13 65 or www.ausgrid.com.au (Business and Commercial Services) for further details and information on lodging your application to connect to the network.
114. ADV17.30 - Development Engineering - Conditions relating to future Strata Subdivision of Buildings
No approval is expressed or implied for the subdivision of the subject building(s). For any future Strata subdivision, a separate Complying Development Certificate shall be approved by Council or an Accredited Certifier.
Prior to the issue of any Strata Certificate of the subject building(s) the following conditions shall be satisfied:
(a) Unit Numbering
Apartment type numbers shall be installed adjacent or to the front door of each unit.
The unit number shall coincide with the strata plan lot numbering.
(b) Car Parking Space Marking and Numbering
Each car space shall be line marked with paint and numbered in accordance with the strata plan lot numbering.
“Visitor Parking" signs shall be installed adjacent to any and all visitor car spaces prior to the issue of any Strata Certificate.
(c) Designation of Visitor Car Spaces on any Strata Plan
Any Visitor car spaces shall be designated on the final strata plan as "Visitor Parking - Common Property".
(d) Allocation of Car Parking Spaces, Storage Areas and Common Property on any Strata Plan
i. All car parking spaces shall be created as a part lot of the individual strata’s unit lot in any Strata Plan of the subject building.
ii. All storage areas shall be created as a part lot of the individual strata’s unit lot or a separate Utility Lot (if practical) in any Strata Plan of the subject building.
iii. The minimum number of parking spaces required to be allocated as a part lot to each individual strata’s unit lot shall be in accordance with the car parking requirements of Council's Development Control Plan and as required by the relative development consent for the building construction.
iv. No parking spaces shall be created as an individual strata allotment on any Strata Plan of the subject building unless these spaces are surplus to the minimum number of parking spaces required.
If preferred the surplus car spaces shall be permitted to be created as separate Utility Lots, (instead as a part lot of the individual strata’s unit lot), in accordance with section 39 of the Strata schemes (freehold development Act 1973.
The above requirements regarding car parking spaces and storage areas may only be varied with the conditions of a separate Development Application Approval for Strata Subdivision of the Building(s).
(e) On Site Detention Requirements
The location any on-site detention facility shall be shown on the strata plan and suitably denoted.
(f) Creation of Positive Covenant
A Positive Covenant shall be created over any on-site detention facility by an Instrument pursuant to Section 88B of the Conveyancing Act 1919, with the covenant including the following wording:
"It is the responsibility of the Owner's Corporation to keep the on-site detention facilities, together with any ancillary pumps, pipes, pits etc, clean at all times and maintained in an efficient working condition. The on-site detention facilities shall not be modified in any way without the prior approval of Georges River Council."
Georges River Council is to be nominated as the Authority to release, vary or modify this Covenant.
115. ADV17.5 - Security deposit administration & compliance fee - Under Section 97 (5) of the Local Government Act 1993, a security deposit (or part) if repaid to the person who provided it is to be repaid with any interest accrued on the deposit (or part) as a consequence of its investment.
Council must cover administration and other costs incurred in the investment of these monies. The current charge is $50.00 plus 2% of the bond amount per annum.
The interest rate applied to bonds is set at Council's business banking facility rate as at 1 July each year. Council will accept a bank guarantee in lieu of a deposit.
All interest earned on security deposits will be used to offset the Security Deposit Administration and Compliance fee. Where interest earned on a deposit is not sufficient to meet the fee, it will be accepted in full satisfaction of the fee.
116. ADV17.6 - Stormwater & Ancillary Works - Applications under Section 138 Roads Act and/or Section 68 Local Government Act 1993 - To apply for approval under Section 138 of the Roads Act 1993:
(a) Complete the Driveway Crossing on Council Road Reserve Application Form which can be downloaded from Georges River Council’s Website at www.georgesriver.nsw.gov.au.
(b) In the Application Form, quote the Development Consent No. (eg. 2012/DA) and reference this condition number (e.g. Condition 23)
(c) Lodge the application form, together with the associated fees at Council’s Customer Service Centre, during business hours. Refer to Council’s adopted Fees and Charges for the administrative and inspection charges associated with Vehicular Crossing applications.
An approval for a new or modified vehicular crossing will contain the approved access and/or alignment levels which will be required to construct the crossing and/or footpath. Once approved, all work shall be carried out by a private contractor in accordance with Council’s specifications prior to the issue of an Occupation Certificate.
The developer must meet all costs of the extension, relocation or reconstruction of any part of Council’s drainage system (including design drawings and easements) required to carry out the approved development.
The preparation of all engineering drawings (site layout plans, cross sections, longitudinal sections, elevation views together with a hydraulic grade analysis) and specifications for the new storm water drainage system to be arranged by the applicant. The design plans must be lodged and approved by Council prior to the issue of a Construction Certificate.
NOTE: A minimum of four weeks should be allowed for assessment.
If you need more information, please contact the Senior Development Assessment Planner, below on 9330-6400 during normal office hours.
|
Attachment ⇩1 |
Site plan/landscape plan |
|
Attachment ⇩2 |
East and north elevations |
|
Attachment ⇩3 |
South and west elevations |
|
Georges River Council - Georges River Local Planning Panel (LPP) - Monday, 7 May 2018 LPP014-18 325-329 Princes Hwy Carlton [Appendix 1] Site plan/landscape plan |
Page 183 |
|
Georges River Council - Georges River Local Planning Panel (LPP) - Monday, 7 May 2018 LPP014-18 325-329 Princes Hwy Carlton [Appendix 2] East and north elevations |
Page 184 |