AGENDA - LPP
|
1. On Site Inspections - 1.00pm – 3.30pm a) 53-75 Forest Rd, 108-126 Durham St and 9 Roberts Ln Hurstville b) 108, 112 and 124 Forest Rd and 1 and 3 Wright St Hurstville c) 9 Glouceter Rd Hurstville d) 279-281 Belmore Rd Riverwood e) 2-12 Lime Kiln Rd and 1041a and 1041c Forest Rd Lugarno
|
|
Break - 3.30pm |
|
2. Public Meeting – Consideration of Items 4.00pm – 6.00pm |
|
Public Meeting Session Closed - 6.00pm (Break – Light Supper served to Panel Members) |
|
Georges River Council – Local Planning Panel Thursday, 21 June 2018 |
Page 2 |
|
3. Reports and LPP Deliberations in Closed Session - 6.30pm |
LPP020-18 2-12 Lime Kiln Road and 1041a and 1041c Forest Road Lugarno
(Report by Senior Development Assessment Officer)
LPP021-18 279 - 281 Belmore Road Riverwood
(Report by Manager Development and Building)
LPP022-18 108, 112 and 124 Forest Road and 1 and 3 Wright Street, Hurstville (Planning Proposal)
(Report by Senior Strategic Planner)
LPP023-18 Planning Proposal - 9 Gloucester Road, Hurstville
(Report by Strategic Planner)
LPP024-18 Planning Proposal - 53-75 Forest Road, 108-126 Durham Street and 9 Roberts Lane, Hurstville
(Report by Strategic Planner)
LPP025-18 Planning Proposal - Low Rise Medium Density Housing Code
(Report by Manager Strategic Planning)
|
4. Confirmation of Minutes by Chair |
REPORT TO GEORGES RIVER COUNCIL
LPP MEETING OF Thursday, 21 June 2018
|
LPP Report No |
LPP020-18 |
Development Application No |
DA2017/0217 |
|
Site Address & Ward Locality |
2-12 Lime Kiln Road and 1041a and 1041c Forest Road Lugarno Peakhurst Ward |
||
|
Proposed Development |
Amalgamation of three lots, demolition of existing structures and construction of a mixed development containing ground floor retail/commercial area, 14 apartments, and basement car parking area |
||
|
Owners |
Ms L I McKenzie |
||
|
Applicant |
Mr I McKenzie c/- PTI Architects Pty Ltd |
||
|
Planner/Architect |
Hamptons Property Services/PTI Architecture Pty Ltd |
||
|
Date Of Lodgement |
11/07/2017 |
||
|
Submissions |
35 submissions and 1 petition containing 228 signatures |
||
|
Cost of Works |
$5,633,976.00 |
||
|
Local Planning Panel Criteria |
Development is defined as a “residential flat building” -Variation to Hurstville Local Environmental Plan 2012 – height and non-residential floor space ratio -More than 10 submissions received from different households |
||
|
List of all relevant s.4.15 matters (formerly s79C(1)(a)) |
State Environmental Planning Policy No 55 - Remediation of Land, State Environmental Planning Policy (Building Sustainability Index: BASIX) 2004, State Environmental Planning Policy No 65 - Design Quality of Residential Apartment Development, Hurstville Local Environmental Plan 2012, Hurstville Development Control Plan No 1 - LGA Wide |
||
|
List all documents submitted with this report for the Panel’s consideration |
Architectural plans, Statement of Environmental Effects, Submissions to the application
|
||
|
Report prepared by |
Senior Development Assessment Officer |
||
|
|
Summary of matters for consideration under Section 4.15 Have all recommendations in relation to relevant s4.15 matters been summarised in the Executive Summary of the assessment report? |
Yes |
|
Legislative clauses requiring consent authority satisfaction Have relevant clauses in all applicable environmental planning instruments where the consent authority must be satisfied about a particular matter been listed, and relevant recommendations summarised, in the Executive Summary of the assessment report? |
Yes |
|
Clause 4.6 Exceptions to development standards If a written request for a contravention to a development standard (clause 4.6 of the LEP) has been received, has it been attached to the assessment report? |
Yes part of assessment report |
|
Special Infrastructure Contributions Does the DA require Special Infrastructure Contributions conditions (under s7.24)? |
Not Applicable |
|
Conditions Have draft conditions been provided to the applicant for comment? |
No, standard conditions have been attached with no design changes |
|
Site Plan
|
EXECUTIVE SUMMARY
· Council is in receipt of an application for the amalgamation of three lots, demolition of the existing structures and construction of a mixed development containing ground floor retail/commercial area, 14 apartments, and basement car parking area with access off Forest Road on the subject site.
· The site is zoned B1 Neighbourhood Centre under Hurstville Local Environmental Plan 2012 and the proposal is a permissible form of development with Council’s consent. The proposed development satisfies the relevant objectives contained within the LEP and complies with the relevant requirements but seeks a variation to the development standards relating to height. This variation is discussed in the report and supported due to the topography of the site.
· The application was notified/advertised to residents/owners in accordance with Council’s requirements on two occasions, once when the application was lodged, and once when the house numbering was corrected to accurately reflect the subject sites and 35 submissions and 1 petition containing 228 signatures were received in reply. The issues raised in the submissions are discussed in the report.
· Following a detailed assessment of the proposal, Development Application No. DA2017/0217 is recommended for approval subject to the conditions of consent specified in the report.
DESCRIPTION OF THE PROPOSAL
1. The application is for the amalgamation of three lots, demolition of the existing structures and construction of a mixed development containing ground floor retail/commercial area, 14 apartments, and basement car parking area with access off Forest Road. In particular, the development will comprise the following:
Basement level
§ Access to the basement area will be via a ramp from the ground floor which will be accessed from Forest Road
§ 13 residential parking spaces
§ 14 bicycle racks
§ Lift and stairs
§ Residential storage area
Ground floor (Forest Rd)
§ 102sqm of retail space
§ 9 retail car spaces (including 1 accessible space)
§ Commercial loading area
§ 3 residential car spaces
§ 4 visitor car spaces
§ Car wash bay
§ Waste facilities rooms, services room, hoist, bulk store room
§ Lift, stairs
§ Deep soil planting adjoining west and south boundary
Ground floor (Lime Kiln Rd)
Due to the level change across the site, the ground floor of Lime Kiln Road will sit horizontal with the first floor residential level of Forest Road.
§ 349.5sqm of retail space
§ Entry lobby for residential apartments
§ Lift, fire stairs and hoist
§ 4 x 2 bedroom apartments and 1 x 1 bedroom apartment
Level 1 (level 1 Lime Kiln Rd/level 2 Forest Rd)
§ 3 x 1 bedroom apartments
§ 3 x 2 bedroom apartments
§ 1 x 3 bedroom apartment
§ Lift, fire stairs and services area
Level 2 (Lime Kiln Rd)
§ 1 x 2 bedroom apartment
§ 1 x 3 bedroom apartment
§ Lift, fire stairs and services area
§ A communal open space area (209sqm)

Photomontage of development from corner of Lime Kiln Rd and Forest Rd

Photomontage of development from Forest Rd
DESCRIPTION OF THE SITE AND LOCALITY
2. The subject site is located at 2-12 Lime Kiln Road, 1041a, 1041b and 1041c Forest Road, Lugarno and together they form the subject site. Shops 2-12 Lime Kiln Road consist of one storey neighbourhood shops and two residential dwellings are located at 1041a and 1041c Forest Road. To the rear of these, there are two fibro buildings which were approved as residential uses in association with the neighbourhood shops.
The site has a frontage of 23.775m to Forest Rd and 28.86m to Lime Kiln Rd and a total area of 1401sqm. The site has a slope to the rear of the site towards the Forest Rd frontage. Lawrence Park is located on the north east corner of the site and fronts Forest Rd and Lime Kiln Rd.
There is currently no parking provided for the neighbourhood shops or for the residential uses at the rear of the shops. However, on street parking is available on Lime Kiln Rd to the front of the existing neighbourhood shops. Parking for the dwellings on Forest Rd is located in front of the existing dwellings.
The subject site is within a small block of properties which are zoned B1 Neighbourhood Centre. Adjoining the site on Lime Kiln Rd are shops within the B1 Neighbourhood Centre zone and adjoining these is Taylor Park. Adjoining the site on Forest Rd is a two storey dwelling house and adjoining this are dwelling houses.
Apart from the B1 Neighbourhood Centre zone, the area surrounding the subject site is primarily characterised by one and two storey dwelling houses.

Aerial map

View of site from Lime Kiln Road (source: SEE)

View of site from Forest Road (source: SEE)
ZONING
3. The subject site is zoned B1 – Neighbourhood Centre under the Hurstville Local Environmental Plan 2012 and the proposed development is permissible in the zone with the consent of Council. The zone objectives are:
• To provide a range of small-scale retail, business and community uses that serve the needs of people who live or work in the surrounding neighbourhood
The proposed development complies with the zone objectives in that it will provide non-residential floor area on the ground level which provides an active street frontage to both roads and provides shop-top housing which reflects the residential uses surrounding the subject site. The use of the non-residential floor area has not been identified in this application other than to show a representation of the potential use as a café or similar food shop. The uses that are permitted in the B1 zone are limited to those identified in the Hurstville Local Environmental Plan.

Zoning map
APPLICABLE PLANNING CONTROLS
PLANNING ASSESSMENT
Environmental Planning Instruments
Hurstville Local Environmental Plan 2012
4. The extent to which the proposed development complies with the Hurstville Local Environmental Plan 2012 (HLEP 2012) is detailed and discussed in the table below.
|
Clause |
Standard |
Proposed |
Complies |
|
1.2 – Aims of the Plan |
In accordance with Clause 1.2 (2) |
The development is consistent with the aims of the plan |
Yes |
|
1.4 - Definitions |
“Commercial premises” and “Shop top housing” |
The proposed development meets definitions |
Yes |
|
2.3 - Zone objectives and Land Use Table |
Meets objectives of B1 Neighbourhood Centre Zone
Development must be permissible with consent |
Development meets objectives
Is permissible development with consent |
Yes |
|
2.7 - Demolition |
Demolition is permissible with consent |
Demolition is proposed with this application |
Yes |
|
4.3 – Height of Buildings |
9m as identified on Height of Buildings Map |
12.28m maximum |
No (1) |
|
4.4 – Floor Space Ratio |
1.5:1 as identified on Floor Space Ratio Map |
1.33:1 |
Yes |
|
4.4A – Exceptions to Floor Space Ratios for Buildings on Land in Certain Zones |
Development consent must not be granted for development on land in zone B1 Neighbourhood Centre or zone B2 Local Centre unless the non-residential floor space ratio is at least 0.5:1 |
0.303:1. At the time the application was lodged the minimum non-residential floor space ratio was 0.5:1. On the 17 November 2017 this requirement was amended to be 0.3:1. As such the proposed development complies with this requirement.
The applicant has submitted a clause 4.6 assessment for the variation of the non-residential floor space ratio, however given that this standard has now been amended, it is not considered necessary to address it in the report. |
Yes |
|
5.9 – Preservation of Trees or Vegetation |
Trees to be removed are specified in DCP1 |
The site contains four trees to be removed which is supported by Council’s Tree management Officer. Planting will be provided to the proposed communal open space area and to the front of the site adjoining Lawrence Park. |
Yes |
|
6.7 – Essential Services |
The following services that are essential for the development shall be available or that adequate arrangements must be made available when required:
-Supply of water, electricity and disposal and management of sewerage
-Stormwater drainage or on-site conservation
-Suitable vehicular access |
Adequate facilities for the supply of water and for the removal of sewage available to this land
Stormwater can drain from the site via gravity to the street.
New driveway crossing to the site from Forest Rd (standard conditions for the submission of separate vehicular crossing applications and driveway design) |
Yes |
(1) Height of Buildings
5. The proposed development seeks a variation to the development standard relating to height. HLEP2012 identifies a maximum height of 9m whereas the proposed development will have a maximum height of 12.28m maximum for part of the development. A variation to the height can be considered under Clause 4.6 – Exceptions to Development Standards of the HLEP2012. In assessing the variation, the questions identified in Clause 4.6 have to be considered as follows:
4.6 Exceptions to development standards
(1) The objectives of this clause are as follows:
(a) to provide an appropriate degree of flexibility in applying certain development standards to particular development,
(b) to achieve better outcomes for and from development by allowing flexibility in particular circumstances.
Applicant’s comment: Clause 4.3 of the LEP provides the objectives of the development standard for height and states as follows:
a) to ensure that buildings are compatible with the height, bulk and scale of the existing and desired future character of the locality,
b) to minimise visual impact, disruption of views, loss of privacy and loss of solar access to existing development and to public areas and public domain, including parks, streets and lanes,
c) …
d) to nominate heights that will provide a transition in built form and land use intensity,
e) …
f) to facilitate an appropriate transition between the existing character of areas or localities that are not undergoing, and are not likely to undergo, a substantial transformation,
g) to minimise adverse environmental effects on the use or enjoyment of adjoining properties and the public domain.
Consistency and compatibility with the bulk and scale of the existing and future desired character of the locality
That part of the building which exceeds the development standard is up to 3.28m above the maximum limit. The non-conforming section, at its closest point, is set back 4.7m from the boundary fronting Lime Kiln Road and 4.8m-5m fronting Forest Road, being 1.1m above the maximum 9m height at this point. It should be noted that the highest point which is 3.28m above the maximum height is located in the centre of the site to the rear of the portion which fronts Lime Kiln Road (when viewed from the perspective 9m height plane drawing). Generally the majority of the other portions which exceed the height limit are located 2.36m above the maximum height limit.
The proposed height is a derivative of the fall of the land from east (Lime Kiln Road) to the west of the site. This is evidenced by the elevation fronting Forest Road (Northern Elevation), which demonstrates that only a minor portion of the building extends beyond the maximum height limit when viewed from Forest Road.
From review of the photomontage provided, when the development is viewed from Lime Kiln Road, while above the height limit, the form is consistent with the fall of the land and generally aligns with the existing development located to the south of the site, at 14 Lime Kiln Road. Therefore, the proposed development will not appear adversely in terms of the bulk and scale when viewed from both Lime Kiln Road and Forest Road.
In addition, as demonstrated in the 9m height planes diagrams, generally, the majority of the built form which projects above the maximum height limit is concentrated in the centre of the site, therefore having limited impact on neighbouring properties, nor visibility.
As a result of the proposed setbacks for both frontages on the upper levels which project above the maximum requirement, these are unlikely to have any effect on the average observer, when considered from the streetscape.
Further, the height of the non-complying area, as a result of the proposed setbacks, when viewed from the front boundary of the building is, in no way, visible from Lime Kiln Road and Forest Road, when standing at street level and measured from a standard eye height.
Therefore in both circumstances, the section of the building which is non-compliant with the height standard will go unnoticed and will not contribute to the bulk and scale of the building.
In terms of the compatibility with the desired future character of the area, to ensure uniformity between the existing and proposed use, the internal layout of the building must be balanced with the commercial viability of the proposal.
Therefore, as a building located in the Neighbourhood Centre, which seeks to extend the provision of retail space and provide an active frontage to Forest Road, as well as increasing residential accommodation, within the parameters of the maximum FSR, the bulk and scale of the building, which results in a height non-compliance is acceptable having regard to this objective.
Minimisation of impact in terms of:
Visual impact - Matters of visual impact have been considered above.
Disruption of views - The height of the non-compliant section of the building will not adversely impact any views enjoyed from neighbouring buildings.
Visual privacy - The eastern elevation of the building, including the section where the building does not comply, proposes to front both street frontages and is softened by the provision of landscaping to Lime Kiln Road and an angled frontage is provided to Forest Road. Both treatments can be viewed on the accompanying Sections A-A and B-B drawings. The non-compliant area located on the southern elevation is provided with a solid façade, with no window openings. This will negate potential impediment to existing development located to the south and south-west of the site. Window openings are provided on the western elevation, and have been provided with privacy screens for the lower portions of the window to ensure any potential overlooking or privacy impacts are mitigated.
As previously outlined, the non-complying area is generally located in the centre of the site. The separation distance between the non-complying component of the western elevation and the existing residential development located at 1043 Forest Road is approximately 23m. This distance is considered more than adequate in terms of maintaining visual privacy. All other outlooks front the street and therefore, the proposal will not compromise the visual privacy of these properties.
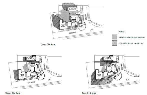
Solar access - In terms of solar access, the proposal has very limited additional impact over the existing situation, as a result of the proposed height, with the majority of change being directed towards Lime Kiln Road itself and the rear of 12A and 14 Lime Kiln Road for only short periods of time. The effect on commercial buildings is not relevant controls at the winter solstice.
The analysis above supports this position and demonstrates that the proposal is acceptable due to its limited impact, despite non-compliance with the development standards.

Adequate regard for transitional built form and land use intensity
To relevantly consider this objective, one must have regard for the zoning, height and floor space provisions within the vicinity of the site, which allow for identification of transitional locations within the vicinity.
To the south of the site, the existing commercial development is also located within the B1 Neighbourhood zone. All other properties surrounding the site have a different zoning; however, the height limit remains consistent.
Therefore, the proposed height, whilst non-compliant, is generally consistent with existing development surrounding the site and is of a scale that is not so out of proportion with the expectations of building height moving forward, such as to warrant refusal of the application.
The proposal responds to the slope of the land, as a stepped form is provided fronting Lime Kiln Road with this moving from Lime Kiln Road to Forest Road and is therefore respectful of the controls, despite non-compliance with the development standard.
However, the proposed form, being framed by the existing development to the south, albeit does not exceed the maximum height control, is generally consistent with the built form and land use intensity that is prevalent within its vicinity.


Minimisation of impact on infrastructure and vehicular traffic
As three retail/commercial spaces will continue to be provided, consistent with the existing situation, an increase in deliveries will not occur. In addition, a commercial loading area will be provided in the basement car park which will result in an improved outcome over the existing situation, as it will remove the loading zone from the street, therefore improving opportunities for on-street parking. All the parking required to be provided for both the residential and non-residential component of the development will be off-street in the proposed basement car park.
On-street parking will continue to be provided as per existing arrangements on Lime Kiln Road. It is assumed likely that, as a result of the proposal, the operating capacity of the Forest and Lime Kiln Road intersection will remain at the same level of service regardless of the development. The size and scale of the commercial component of the development is not such as to result in a significant increase in retail trade, but instead akin to the expectation of land zoned for a low scale commercial purpose.
The proposed access is located closer to the site boundary on Forest Road, which provides an improved layout to that of the existing access point. The new location is further from the tangent point of Forest Road, providing additional distance from the point of access/exit than the current arrangements. Therefore, the effect of the development will be minimal in these terms and the non-complying elements of the project would have limited, if any, effect, in this regard.
Minimisation of environmental effects
The non-compliant components of the proposed building will not result in any adverse environmental effects, nor the development itself.
Consistency with Zone Objectives – clause 4.6(4)(a)(ii)
In relation to whether a proposal is consistent with the objectives of a zone, the test for consistency is set out in Coffs Harbour Environment Centre v Coffs Harbour City Council (1991) 74 LGRA 185 (the Coffs Harbour case). The principles for determining what is meant by consistent are as follows:
· a development that is consistent with zone objectives does not need to promote the objective concerned strictly, but also encompasses development which may be complementary or ancillary to development which promotes the objective concerned; and
· a development is not consistent with zone objectives if it is antipathetic to those objectives, irrespective of whether efforts have been made to minimise the extent to which it is antipathetic
Thus, development will be consistent with zone objectives if it is not antipathetic to them. It is not necessary to show that the development promotes, or is ancillary to, those objectives, nor even show it is compatible, Schaffer Corporation v Hawkesbury City Council (1992) 77 LGRA 21.
The proposal is consistent with the objective of the B1 Neighbourhood Centre zone as follows:
(a) to provide a range of small-scale retail, business and community uses that serve the needs of people who live or work in the surrounding neighbourhood
The proposal is consistent with the existing use, but will provide opportunity for premises that are more contemporary and suited to current market conditions having regard to the localised position of the site. Additional commercial/retail space will be provided which will service the needs of the surrounding residents, whilst activating the Forest Road frontage, which was previously not the case. Existing improvements on the subject site provide approximately 277.09m² of retail space and the proposed development provides 426.5m². Therefore, an improved outcome will result which will be more consistent with existing controls, as a result of the proposal. The development will be compatible and consistent with the zoning, and continue to provide services for the day-to-day needs of local residents and people who work in the surrounding area.
Comment: The development complies with the 9m height standard except for the portion of the building shown in grey on the above height plane diagram which is maximum 12.28m. The non-compliance is primarily a result of the topography of the site which slopes towards Forest Rd and the adjoining residential zone. Flexibility in applying the development standard is considered appropriate in this instance due to the specific site circumstances. The development has been designed so that the highest part of the development faces the Lime Kiln Road frontage and away from the rear open space areas of the adjoining residential developments. In this regard better design outcomes have been achieved by applying the highest part of the development to the street frontage and not to at the rear of the site.
(2) Development consent may, subject to this clause, be granted for development even though the development would contravene a development standard imposed by this or any other environmental planning instrument. However, this clause does not apply to a development standard that is expressly excluded from the operation of this clause.
Applicant’s comment: The height is set out at Part 4 of the LEP entitled ‘Principal Development Standards’. Clause 4.6 only applies where the development standard is not excluded in accordance with clause 4.6(2).
Comment: The development standard relating to height is not excluded from the provisions of Clause 4.6 and a variation to the development standard can be considered.
(3) Development consent must not be granted for development that contravenes a development standard unless the consent authority has considered a written request from the applicant that seeks to justify the contravention of the development standard by demonstrating:
(a) that compliance with the development standard is unreasonable or unnecessary in the circumstances of the case, and
(b) that there are sufficient environmental planning grounds to justify contravening the development standard.
Applicant’s comment: The proposal seeks to provide additional commercial/retail space and residential accommodation to respond to market demand. The proposal also seeks to provide additional residential accommodation to service local housing needs which are of increasing demand in this location. The proposal will assist to meet that demand, while maximising the planning potential availed to the site and maintaining the status of the Lugarno neighbourhood centre. Non-compliance does not result in adverse impact to neighbouring properties, particularly in terms of bulk, scale and overshadowing.
The proposed outcome provides development more consistent with the objectives of the zone, with commercial development to both street frontages in an economically viable manner, whilst delivering additional residential accommodation to provide for the existing and future needs of the community.
The proposal will not set a precedent for future cases, as the impact of the non-compliances are limited and without compromise to neighbouring properties, nor the streetscape appearance surrounding the site. The non-compliance in terms of height is merely a derivative of the slope of the land.
Therefore, as there is no impact on adjoining properties, or the street network surrounding the proposal, there are sufficient environmental planning grounds to justify the departure. Compliance with the standard is unreasonable and unnecessary (clause 4.6(3)(a)). The grounds for establishing that strict application of a development standard is unreasonable and unnecessary in the context of a SEPP 1 objection are set out in Wehbe V Pittwater Council [2007] NSW LEC 827 (Wehbe) as follows:
(a) The objectives of the development standards are achieved notwithstanding the non-compliances.
(b) The underlying objectives or purposes of the standards are not relevant to the development with the consequence that compliance is unnecessary
(c) To establish that the underlying objective or purpose of the standard would be defeated if compliance was required and hence compliance would be unreasonable
(d) To establish that the development standard has been virtually abandoned or destroyed by Council’s own decisions departing from the standard, and hence compliance with it is unreasonable and unnecessary
(e) To establish that the zoning of the particular land was an anomaly or inappropriate and as a result the development standard is also an anomaly and so compliance with it is unreasonable or unnecessary.
In relation to (a), the express objectives of the standards are met, as set out previously. Accordingly, compliance with the standard becomes unnecessary. In relation to (b), the proposal achieves the objectives of the aforementioned standards as the scale of development is generally consistent with built form directly adjoining the subject site and, aside from the height and non-residential FSR non-compliance, is consistent with the prescribed planning controls, achieving a positive outcome consistent with the desired future character of the area.
While not as of right, these development standards have been utilised to ensure a built form that accords with the expectations of the standards and enables the proposal to make a positive contribution to rejuvenating the status of Lugarno Neighbourhood Centre, within the retail hierarchy of the local government area. The impact in terms of height has been presented to the street frontages in such a way that will go almost unnoticed as a result of applying setbacks to the non-complying components of the building. Hence, compliance is both unreasonable and unnecessary.
Comment: The applicant’s written request to vary the development standard has been considered and it is concluded that the applicant has justified that compliance with the development standard is unreasonable or unnecessary in the circumstances of the case, and that there are sufficient environmental planning grounds to justify contravening the development standard. This conclusion has been reached for the following reasons:
§ The height of the proposed development complies with the 9m height requirement except for the potion in grey on the height plane diagram which has a maximum height of 12.28m. This is primarily due to the slope of the site which falls towards Forest Road and the residential zone adjoining the site.
§ The development has been designed so that the highest part of the development is located at the Lime Kiln Road street frontage and not towards the rear of the site where the site adjoins the rear yards of the adjoining residential developments. In doing this the maximum height of the development adjoins the commercial zone and provides a transition between the B1 Neighbourhood Centre zone and the adjoining R2 Low Density Residential zone. The design of the development provides a good transition between the commercial zone and the adjoining residential zone. This has been done but concentrating the mass of the building away from the adjoining residential dwelling on 1043 Forest Road which adjoins the site on the western boundary. The side setback to the western (common) boundary on the first floor is 6m for a small portion of the western elevation of the development, and 8.5m for the majority of the elevation. On the second floor, the setback to the western boundary is 13m to the edge of the roof top communal open space area.
§ The additional height to the development does not result in any additional privacy or shadow impacts to adjoining developments, in particular the dwelling house adjoining the site 1043 Forest Road. Shadow diagrams submitted with the application show that this property will receive sunlight in excess of 3 hours between 9am and 3pm on June 21. In terms of privacy, the most affected property is 1043 Forest Road adjoining the western elevation. On the western elevation, the architect has added privacy screens to the lower half of windows and moveable privacy screens to the three balconies on the western elevation. A minimum 2.5m wide planter box is also located on the perimeter of the western elevation of the first floor and second floor where the communal open space is located. This area will contain planting that provides screening to the adjoining sites. The privacy screens and planting will effectively reduce overlooking of the adjoining properties.
§ The floor space ratio of the development is below the maximum permitted by the development standard which demonstrates that the height of the development is not a result of additional floor area being provided to the development.
§ Although the site is located within a relatively small B1 Neighbourhood Centre zone adjoining residential zones, the proposed development is indicative of and consistent with developments located in similar commercial zones. The development provides an appropriate mix of commercial floor area on the ground floor and apartments above. The development will provide an alternative form of residential accommodation to the area which is characterised by one and two storey residential dwellings.
(4) Development consent must not be granted for development that contravenes a development standard unless:
(a) the consent authority is satisfied that:
(i) the applicant’s written request has adequately addressed the matters required to be demonstrated by subclause (3), and
(ii) the proposed development will be in the public interest because it is consistent with the objectives of the particular standard and the objectives for development within the zone in which the development is proposed to be carried out, and
(b) the concurrence of the Director-General has been obtained.
Applicant’s comment: The additional height proposes to cater for an appropriate amount of commercial/retail space and residential accommodation which will not impact existing infrastructure or neighbouring properties, whilst ensuring viability from a commercial perspective. The location of the floor area which is contributing to the height non-compliance is set well back from the street frontages to reduce its visual appearance.
The proposal is in response to market demand in terms of commercial viability and the need for such residential accommodation in this area, which will, in turn, maximise the potential of the site.
The proposed non compliances will allow for a more favourable solution, making it a more attractive development than existing improvements, due to the quality of the space afforded, as a result of the amalgamation of the allotment, in addition to the provision of commercial uses on both street frontages. This space may be provided without impact to neighbouring properties and the general public, due to its design and location as previously demonstrated.
Therefore approving an exemption to the height and non-residential FSR standards are in the public interest, as it will provide a better quality outcome in design terms, as well as underpinning the commercial/retail viability of the proposal, and supplying additional residential accommodation for people who live and work in the area. There is no adverse consequence as a result of this proposal from the public domain. An active dual frontage will result in an improved outcome to that of existing situation, therefore having a material improvement to the context of the site.
The scale of the development will not cause adverse consequence on the environment, nor surrounding road network. It is therefore requested that the variation to the height be supported as it is well within the public interest.
Comment: It is considered that the applicant has adequately addressed the matters identified in (3) above and the proposed development is consistent with the relevant objectives identified in Clause 4.3 Height of Buildings which are:
a) to ensure that buildings are compatible with the height, bulk and scale of the existing and desired future character of the locality,
b) to minimise visual impact, disruption of views, loss of privacy and loss of solar access to existing development and to public areas and public domain, including parks, streets and lanes,
c) …
d) to nominate heights that will provide a transition in built form and land use intensity,
e) …
f) to facilitate an appropriate transition between the existing character of areas or localities that are not undergoing, and are not likely to undergo, a substantial transformation,
g) to minimise adverse environmental effects on the use or enjoyment of adjoining properties and the public domain.
The height of the proposed development is considered to be appropriate as discussed above. The additional height will not result in any additional impacts to adjoining developments and does not compromise any views. The design of the development provides an appropriate transition between the subject commercial zone and the adjoining residential zone. The scale of the development is consistent with similar mixed development located within commercial zones.
The objectives of the B1 – Neighbourhood Centre zone are:
• To provide a range of small-scale retail, business and community uses that serve the needs of people who live or work in the surrounding neighbourhood.
The proposed development is consistent with the zone objectives in that it will provide non-residential floor area on the ground level which provides an active street frontage to both roads and provides shop-top housing which reflects the residential uses surrounding the subject site. The use of the non-residential floor area has not been identified in this application but the non-residential uses that are permitted in the B1 zone are limited to those identified in the Hurstville Local Environmental Plan.
The development is considered to be in the public interest as it is consistent with the objectives of the development standard for height and the objective of the zone. The additional height to the development does not compromise this. The proposed development has a floor space ratio below the maximum permitted which demonstrates that the additional height is not a result of intensifying the site, but rather a design response to the slope of the site and the recognition of low density dwelling houses adjoining the site.
(5) In deciding whether to grant concurrence, the Director-General must consider:
(a) whether contravention of the development standard raises any matter of significance for State or regional environmental planning, and
(b) the public benefit of maintaining the development standard, and
(c) any other matters required to be taken into consideration by the Director-General before granting concurrence.
Applicant’s comment: No additional comment required.
Comment: The variation to the height does not raise any matters of significance for State or regional environmental planning. In this instance there is no public benefit in maintaining the development standard as the variation proposed is considered to be a design response to the topography of the site rather than an intensification of the development with additional floor area. The development results in a good design outcome for the adjoining developments and the streetscape.
(6) Development consent must not be granted under this clause for a subdivision of land in Zone RU1 Primary Production, Zone RU2 Rural Landscape, Zone RU3 Forestry, Zone RU4 Primary Production Small Lots, Zone RU6 Transition, Zone R5 Large Lot Residential, Zone E2 Environmental Conservation, Zone E3 Environmental Management or Zone E4 Environmental Living if:
(a) the subdivision will result in 2 or more lots of less than the minimum area specified for such lots by a development standard, or
(b) the subdivision will result in at least one lot that is less than 90% of the minimum area specified for such a lot by a development standard.
Applicant’s comment: No additional comment required.
Comment: Subdivision of land is not proposed in this application.
(7) After determining a development application made pursuant to this clause, the consent authority must keep a record of its assessment of the factors required to be addressed in the applicant’s written request referred to in subclause (3).
Applicant’s comment: No additional comment required.
Comment: A record of the assessment can be retained in Council’s records.
(8) This clause does not allow development consent to be granted for development that would contravene any of the following:
(a) a development standard for complying development,
(b) a development standard that arises, under the regulations under the Act, in connection with a commitment set out in a BASIX certificate for a building to which State Environmental Planning Policy (Building Sustainability Index: BASIX) 2004 applies or for the land on which such a building is situated,
(c) clause 5.4.
Applicant’s comment: No additional comment required.
Comment: The proposed development is not complying development. A BASIX Certificate has been submitted with the application and the commitments in the Certificate can be applied to the development irrespective of the height of the development.
Environmental Planning and Assessment Regulations 2000
The proposed development satisfies the relevant matters for consideration for development under the Regulations.
STATE ENVIRONMENTAL PLANNING POLICIES
Compliance with the relevant state environmental planning policies is detailed and discussed in the table below.
|
State Environmental Planning Policy |
Complies |
|
Greater Metropolitan Regional Environmental Plan No 2 – Georges River Catchment |
N/A |
|
State Environmental Planning Policy 55 – Remediation of Land |
Yes (1) |
|
State Environmental Planning Policy (Building Sustainability Index BASIX) 2004 |
Yes |
(1) State Environmental Planning Policy 55 – Remediation of Land
SEPP 55 identifies that the following is to be considered in determining a development application.
Contamination and remediation to be considered in determining development application
(1) A consent authority must not consent to the carrying out of any development on land unless:
(a) it has considered whether the land is contaminated, and
(b) if the land is contaminated, it is satisfied that the land is suitable in its contaminated state (or will be suitable, after remediation) for the purpose for which the development is proposed to be carried out, and
(c) if the land requires remediation to be made suitable for the purpose for which the development is proposed to be carried out, it is satisfied that the land will be remediated before the land is used for that purpose.
(2) Before determining an application for consent to carry out development that would involve a change of use on any of the land specified in subclause (4), the consent authority must consider a report specifying the findings of a preliminary investigation of the land concerned carried out in accordance with the contaminated land planning guidelines.
(3) The applicant for development consent must carry out the investigation required by subclause (2) and must provide a report on it to the consent authority. The consent authority may require the applicant to carry out, and provide a report on, a detailed investigation (as referred to in the contaminated land planning guidelines) if it considers that the findings of the preliminary investigation warrant such an investigation.
(4) The land concerned is:
(a) land that is within an investigation area,
(b) land on which development for a purpose referred to in Table 1 to the contaminated land planning guidelines is being, or is known to have been, carried out,
(c) to the extent to which it is proposed to carry out development on it for residential, educational, recreational or child care purposes, or for the purposes of a hospital-land:
(i) in relation to which there is no knowledge (or incomplete knowledge) as to whether development for a purpose referred to in Table 1 to the contaminated land planning guidelines has been carried out, and
(ii) on which it would have been lawful to carry out such development during any period in respect of which there is no knowledge (or incomplete knowledge).
The provisions of SEPP 55 require the consent authority to determine if the land the subject of the application is contaminated, and whether it is appropriate for the proposed development having regard to subclause (4).
The subject site contains one and two storey buildings which have been used for commercial and residential purposes for decades. A search of Council’s records has been undertaken and the recorded uses of the site relate to commercial and residential uses.
Table 1 of the Contaminated Land Planning Guidelines identifies contaminating uses that would trigger the preparation of a preliminary site investigation plan to determine if and the extent of any contamination. The recorded uses of the site shown in Council’s records do not show any uses identified in Table 1. Council’s records also do not show any action or information relating to contamination being identified on the site.
Based on this information it is considered that contamination and remediation has been considered in the assessment of the development application such that it has been concluded that a physical investigation of the site for contamination is not required at the development assessment stage.
A condition has been provided in the recommendation which requires that the Principal Certifying Authority is satisfied that the site is suitable with regards to contamination prior to a construction certificate being issued. This captures the requirement for remediation in the event that contamination is identified on the site.
STATE ENVIRONMENTAL PLANNING POLICY NO 65 – DESIGN QUALITY OF RESIDENTIAL APARTMENT DEVELOPMENT
The extent to which the proposed development complies with the controls and principles in the State Environmental Planning Policy 65 – Design Quality of Residential Apartment Development (SEPP 65) is detailed and discussed in the tables below.
Application of SEPP 65
|
Clause |
Standard |
Proposal |
Complies |
|
3 - Definitions |
Complies with definition of “Residential Apartment Development” (RAD) |
Complies with definition |
Yes |
|
4 - Application of Policy |
Development involves the erection of a new RFB, substantial redevelopment or refurbishment of a RFB or conversion of an existing building into a RFB |
Erection of a new residential flat building (mixed development) |
Yes |
|
50 – Development Applications |
Design verification statement provided by qualified designer
Registered Architect Name and Registration No. |
Design Verification Statement provided by Registered Architect Mr Peter Israel (Registration No 5064) |
Yes |
Part 2 Design Quality Principles under the SEPP
|
Clause |
Standard |
Proposal |
Complies |
|
1 – Context and neighbourhood character |
Good design responds and contributes to its context (e.g. natural and built features of an area) |
Proposed development has been designed to respond to its context and the topography of the site |
Yes |
|
2 – Built form and scale |
Good design provides an appropriate scale in terms of the existing and desired future character and built form that suits the scale of the street and surrounding buildings |
The proposed development provides an appropriate scale in relation to the relevant requirements relating to floor space ratio, height, and setbacks |
Yes |
|
3 - Density |
Good design has a density appropriate for a site and its context, in terms of projected population and can be sustained by existing and proposed infrastructure |
Proposed development complies with the floor space ratio requirements |
Yes |
|
4 – Sustainability |
Good design combines positive environmental, social and economic outcomes. Includes use of natural cross ventilation and sunlight, recycling and reuse of materials and waste, use of sustainable materials and deep soil zones |
Proposed development provides appropriate outcomes for sustainability, through energy efficiency measures, landscape open space areas, cross ventilation and sunlight |
Yes |
|
5 - Landscape |
Good design recognises that together landscape and buildings operate as an integrated and sustainable system, resulting in attractive developments with good amenity, enhances the development’s environmental performance, optimises useability, privacy and opportunities for social interaction, equitable access, and practical management |
Landscaping to the site will be in the form of a communal open space area and planter boxes. The proposed planting to this area will improve the current site conditions. |
Yes |
|
6 - Amenity |
Good design influences internal and external amenity for residents and neighbours |
The proposed development mitigates privacy impacts with the location of balconies on the front elevations of the site. Where balconies and windows are located on the western elevation, which adjoins the most potentially effected dwelling, have privacy screens and planter boxes which will reduce potential overlooking of adjoining developments. |
Yes |
|
7 – Safety |
Good design optimises safety and security, both internal to the development and for the public domain |
Proposed development is consistent with crime prevention principles |
Yes |
|
8 –Housing diversity and social interaction |
Good design achieves a mix of apartment sizes, providing housing choice for different demographics, living needs and household budgets. Includes different types of communal spaces for social interaction |
Proposed development provides one, two and three bedroom dwellings in a variety of layouts including adaptable housing. |
Yes |
|
9 - Aesthetics |
Good design achieves a built form that has a balanced composition of elements, a variety of materials, colours and textures and responds to the future local context |
Design of development and proposed external materials and finishes are appropriate. The proposed development results in a good architectural outcome. |
Yes |
Clause 30 – Consideration of Residential Flat Design Code Design Controls
|
Clause |
Standard |
Proposal |
Complies |
|
Objective 3D-1
|
1. Communal open space has a minimum area equal to 25% of the site. -Where it cannot be provided on ground level it should be provided on a podium or roof
-Where developments are unable to achieve the design criteria, such as on small lots, sites within business zones, or in a dense urban area, they should: • provide communal spaces elsewhere such as a landscaped roof top terrace or a common room • provide larger balconies or increased private open space for apartments • demonstrate good proximity to public open space and facilities and/or provide contributions to public open space
2. Developments achieve a minimum of 50% direct sunlight to the principal usable part of the communal open space for a minimum of 2 hours between 9 am and 3 pm on 21 June (mid winter) |
211.7sqm (15.11% of site) communal open space provided to the roof of the second floor.
The communal open space area has good amenity in that it receives at least 3 hours sunlight during winter and is a functional area with seating provided.
Additional landscaped area of 418.2sqm (29.85% of site) provided on ground level and first floor planter boxes. |
Yes
|
|
Objective 3E-1 |
1. Deep soil zones are to meet the following minimum requirements:
-Where the site is less than 650sqm = no minimum dimension
-Where site area is between 650sqm and 1500sqm = 3m minimum dimension
-Where the site is more than 1500sqm = 6m minimum dimension
Deep soil = 7% Achieving the design criteria may not be possible on some sites including where: • the location and building typology have limited or no space for deep soil at ground level (eg central business district, constrained sites, high density areas, or in centres) • there is 100% site coverage or non-residential uses at ground floor level Where a proposal does not achieve deep soil requirements, acceptable stormwater management should be achieved and alternative forms of planting provided such as on structure |
Site area is 1401sqm. Deep soil zone of minimum 3m minimum dimension provided on ground floor adjoining western and southern boundary.
Deep soil = 144.3sqm (10.3% of site) |
Yes |
|
Objective 3F-1 |
1. Separation between windows and balconies is provided to ensure visual privacy is achieved.
Minimum required separation distances from buildings to the side and rear boundaries are as follows:
-Up to 12m (4 storeys) Habitable rooms and balconies = 6m Non-habitable rooms = 3m
-Up to 25m (5-8 storeys) Habitable rooms and balconies = 9m Non-habitable rooms = 4.5m
-Over 25m (9+ storeys) Habitable rooms and balconies = 12m Non-habitable rooms = 6m |
The proposed development provides a separation distance of between 6m and 8.5m to the first floor and 13m to the edge of the communal open space area on the second floor form the western boundary of the adjoining R2 Low Density Residential zone which is consistent with the requirements of the ADG. |
Yes |
|
Objective 3J-1 |
1. For development in the following locations: - On sites that are within 800m of a railway station or light rail stop in the Sydney Metropolitan Area;
- The minimum car parking requirement for residents and visitors is set out in the Guide to Traffic Generating Developments, or the car parking requirement prescribed by the relevant council, whichever is less
The car parking needs for a development must be provided off street |
Subject site is not within 800m of a railway station. Development complies with the requirements of the Development Control Plan for residential parking and provides bicycle parking and storage areas in accordance with the ADG. |
Yes |
|
Objective 4A-1 |
1. Living rooms and private open spaces of at least 70% of apartments in a building receive a minimum of 2 hours direct sunlight between 9 am and 3 pm at mid winter in the Sydney Metropolitan Area
3. A maximum of 15% of apartments in a building receive no direct sunlight between 9 am and 3 pm at mid winter |
Living room and private open spaces of 71% of units receive at least 3 hours of solar access.
7% (1 unit) of units receive no direct sunlight |
Yes |
|
Objective 4B-3 |
1. At least 60% of apartments are naturally cross ventilated in the first nine storeys of the building. Apartments at ten storeys or greater are deemed to be cross ventilated only if any enclosure of the balconies at these levels allows adequate natural ventilation and cannot be fully enclosed
2. Overall depth of a cross-over or cross-through apartment does not exceed 18m, measured glass line to glass line |
71.4% of units are appropriately cross ventilated.
Maximum depth is less than 18m |
Yes |
|
Objective 4C-1 |
1. Measured from finished floor level to finished ceiling level, minimum ceiling heights are:
Habitable rooms = 2.7m Non-habitable rooms = 2.4m |
2.7m for all rooms |
Yes |
|
Objective 4D-1 |
1. Apartments are required to have the following minimum internal areas:
1 bedroom = 50sqm 2 bedroom = 70sqm 3 bedroom = 90sqm
The minimum internal areas include only one bathroom. Additional bathrooms increase the minimum internal area by 5sqm each
2. Every habitable room must have a window in an external wall with a total minimum glass area of not less than 10% of the floor area of the room. Daylight and air may not be borrowed from other rooms |
1 bedroom = 68.8sqm min 2 bedroom = 90.1sqm min 3 bedroom = 107.3sqm min
Window provided for each habitable room with appropriate glass area provided. |
Yes |
|
Objective 4D-2 |
1. Habitable room depths are limited to a maximum of 2.5 x the ceiling height
2. In open plan layouts (where the living, dining and kitchen are combined) the maximum habitable room depth is 8m from a window |
Within range.
Open plan layouts less than 8m from window. |
Yes |
|
|
1. Master bedrooms have a minimum area of 10sqm and other bedrooms 9sqm (excluding wardrobe space)
2. Bedrooms have a minimum dimension of 3m (excluding wardrobe space)
3. Living rooms or combined living/dining rooms have a minimum width of:
-3.6m for studio and 1 bedroom - 4m for 2 and 3 bedroom apartments
4. The width of cross-over or cross-through apartments are at least 4m internally to avoid deep narrow apartment layouts |
Development complies with these requirements |
Yes |
|
Objective 4E-1 |
1. All apartments are required to have primary balconies as follows:
-1 bedroom = 8sqm/2m depth -2 bedroom = 10sqm/2m depth
-3+ bedroom = 12sqm/2.4m
The minimum balcony depth to be counted as contributing to the balcony area is 1m
2. For apartments at ground level or on a podium or similar structure, a private open space is provided instead of a balcony. It must have a minimum area of 15sqm and a minimum depth of 3m |
All balcony areas are greater than dimensions required.
No ground floor units. |
Yes |
|
Objective 4F-1 |
1. The maximum number of apartments off a circulation core on a single level is eight |
Maximum 6 units |
Yes |
|
Objective 4G-1 |
1. In addition to storage in kitchens, bathrooms and bedrooms, the following storage is provided:
-1 bedroom = 6m³ -2 bedroom – 8m³ 3 bedroom – 10m³ |
All units have storage areas that comply with the requirements. |
Yes |
|
Objective 4M |
Facades should be well resolved with an appropriate scale and proportion to the streetscape and human scale. |
Façade of development is appropriate |
Yes |
|
Objective 4N |
Roof treatments are integrated into the building design and positively respond to the street. Opportunities to use roof space for residential accommodation and open space are maximised. Incorporates sustainability features. |
Roof design is appropriate and integrated with design of the development. Communal open space provided to the roof of the development |
Yes |
|
Objective 4O |
Landscape design is viable and sustainable, contributes to the streetscape and amenity |
Landscape design is appropriate and provides suitable communal and private open space areas |
Yes |
|
Objective 4P |
Planting on structures – appropriate soil profiles are provided, plant growth is optimised with appropriate selection and maintenance, contributes to the quality and amenity of communal and public open spaces |
Landscaping to the site which includes planting on structures has been design by qualified landscape architect with details provided on species, soil depth etc. |
Yes |
|
Objective 4Q |
Universal design – design of apartments allow for flexible housing, adaptable designs, accommodate a range of lifestyle needs |
Design of apartments allows for use by different lifestyles |
Yes |
|
Objective 4R |
Adaptive reuse as apartment of existing buildings- new additions are contemporary and complementary, provide residential amenity while not precluding future adaptive reuse |
New development |
N/A |
|
Objective 4S |
Mixed use developments are provided in appropriate locations, provide active street frontages, residential levels of the building are integrated within the development and safety and amenity is maximised for residents |
The development provides an active street frontage to Lime Kiln Rd and Forest Rd. Access to residential and commercial areas is separated. Development is consistent with crime prevention principles. |
Yes |
|
Objective 4T |
Awnings and signage – awnings are well located and compliment and integrate with the building design, signage responds to the context and desired streetscape character |
An awning has been incorporated into the façade of the development which is consistent with the streetscape. |
Yes |
|
Objective 4U |
Development incorporates passive environmental design, passive solar design to optimise heat storage in winter and reduce heat transfer in summer, natural ventilation minimises need for mechanical ventilation |
Development incorporates BASIX commitments in the design to provide appropriate energy efficiency features. |
Yes |
|
Objective 4V |
Water management and conservation – potable water use is minimised, stormwater is treated on site before being discharged, flood management systems are integrated inti site design |
Development incorporates appropriate stormwater measures. |
Yes |
|
Objective 4W |
Waste management – storage facilities are appropriately designed, domestic waste is minimised by convenient source separation and recycling |
Waste facilities are provided which are accessible to all residents |
Yes |
|
Objective 4X |
Building maintenance – building design provides protection form weathering, enables ease of maintenance, material selection reduces ongoing maintenance cost |
Design incorporates a mix of external finishes that require minimal maintenance such as face brick and pre-fabricated coloured panels. |
Yes |
Advice from the Design Review Panel
This section outlines the advice provided by the Design Review Panel (DRP) and the author’s (DAO) comments. The Panel supports the application subject to the issues raised being resolved. The application satisfies the design quality principles contained in SEPP 65.
PRINCIPLE 1 - CONTEXT AND NEIGHBOURING CHARACTER
DRP advice: The site comprises a low scale local centre with active shops in a residential neighbourhood on an undulating topography. The neighbourhood centre occupies a prominent immediately adjacent small public park with a major tree on the corner.
The context has been well described by the applicant. Before and after images have been provided which are very helpful in the proposal’s assessment. The proposal comprises a new building with basement parking comprising retail shops with fourteen (14) new units above.
Applicant’s comment: The proposal responds to its location contextually by providing a building that relates to the neighbouring buildings and the overall area.
DAO’s comment: The scale and built form of the development is considered to be appropriate and is responsive to the adjoining residential zone. The development has been designed to reflect its location within the B1 Neighbourhood Centre zone and does not result in unacceptable privacy and solar access impacts to adjoining developments.
PRINCIPLE 2 – BUIT FORM AND SCALE
DRP advice: The built form has been well conceived. It presents a general two (2) storey scale to the street and steps with the topography to its lowest point. The third storey is slightly above the height limit but is well screened and impacts on adjoining properties are well contained. The entry to the residential lobby is located at the corner adjacent to the park and corner tree.
The entry would be improved if Unit 05 was reduced in size to enable external building entry stairs to be moved to the west aligning with the internal corridor and within the property boundary. This corridor would be better if it served both residential and commercial uses (and allowed the integration of commercial WC, etc). To do this the front door should be replaced with open steel frame gates and the front residential doors moved to the west side of the corridor. The reduction in ground floor residential GFA would allow the re-planning of street facing units to improve access and amenity. The junction between the Lime Kiln Road wing and the Forest Road wing would be better if it were to be extended over two (2) storeys to provide light and northern outlook to the Level 1 lobby.
The steps in the typical lobby space at Level 1 are not supported. It would be better if all front doors were kept at the same level and the required stepping achieved with steps inside each east facing unit.
The north west corner of the development appears too lightweight and open to basement parking. It is recommended that the driveway opening is reduced in width, that a spandrel is introduced along the balustrade and a solid wall introduced at the western side of the building. It is recommended that the fire stairs in the Forest Road retail space are relocated to the west of the tenancy, allowing glass to open to the north.
The stepping along the east elevation is supported but the Panel believe it would be better as a sharp silhouette rather than as a slope. Glazed balustrades on the east elevation appear to clash with the awning; it may be better to consider a solid spandrel. This would allow a simplification and rationalisation of the awning.
Applicant’s comment: The proposal is next to retail + residential buildings on Lime Kiln Rd and a residential two storey building on Forest Rd. The scale of the proposal is compatible with the heights of these neighbouring buildings and of other buildings in the area, understanding also that this is a corner site so from an urban design point of view can have greater presence.
The proposal provides an appropriate built form and architectural treatment for the site and for the building’s purpose. Large open balconies are proposed complete with landscaping and privacy screens, which contribute positively to the character of the streetscape. The proposed building form is over in the middle of the site the DCP height being the considerable cross slope on the site. This has been carefully considered and resolved so that it is barely visible from the street.
DAO’s comment: The applicant has amended the proposal to address the internal changes requested by the DRP. The development has also been amended to undertake minor external amendments which appropriately address the comments of the DRP.
PRINCIPLE 3 – DENSITY
DRP advice: Acceptable.
Applicant’s comment: The proposal has a density in keeping with that of the area. The usage is also appropriate for the site.
DAO’s comment: The proposed development has a floor space ratio below the maximum requirements and provides an appropriate mix of commercial and residential floor area.
PRINCIPLE 4 – SUSTAINABILITY
DRP advice: Acceptable.
Applicant’s comment: The proposed building is designed to be energy efficient and at least compliant with the requirements of BASIX. The proposal works to make good use of natural light and cross ventilation.
DAO’s comment: The proposed development provides appropriate energy efficiency measures in accordance with the BASIX requirements.
PRINCIPLE 5 – LANDSCAPE
DRP advice: The existing Gum Tree in the park/verge should be retained and would provide a great outlook for the retail shops. With recommendations above regarding built form including redesign of the stair access, the proposed oval shaped planter currently located in the existing park could be redesigned and expanded as a lawn space with a low retaining wall. The proposed oval raised planter on the street edge should be removed and replaced with a garden surrounding the existing tree. Otherwise the landscaping is well executed.
Applicant’s comment: The works have been designed to minimise visual impacts on neighbouring buildings with deep soil planting along the South and West neighbouring boundaries. The proposal also includes landscaping to the upper levels to provide enjoyable outdoor living areas for the residents and screening to the areas below.
DAO’s comment: The open space area located at the corner of Lime Kiln Road and Forest Road is Lawrence Park which is a public reserve. The applicant was advised that maintenance/upgrading area would be undertaken by Council and that the application was to provide landscaped open space areas to the subject site only.
PRINCIPLE 6– AMENITY
DRP advice: The building has been very well conceived and housed in its quite complex topographical setting. See notes above about how the entry could be improved. The internal amenity of some units could be reviewed to incorporate internal stairs (as described above) and to reduce excessive circulation corridors such as in Unit 103. Care should be taken to avoid snorkel type bedrooms (which are now discouraged by the ADG) and walk through kitchens which create poor amenity. See comments above regarding solid spandrels rather than glass balustrades in front of awnings.
Applicant’s comment: The proposal seeks to make good use of its location and orientation. The proposed apartments will provide a high level of amenity for its occupants. This is in terms of layout, natural light, privacy and ventilation and with large balconies areas.
DAO’s comment: The applicant has amended the plans to address the issues raised above. The changes were relatively minor and internal to the building and satisfactorily responded to the DRP comments.
PRINCIPLE 7 – SAFETY
DRP advice: Acceptable.
Applicant’s comment: The building has been designed to create a safe environment. Access controls are provided to all internal areas and all spaces accessible are well lit and with good visibility at night.
DAO’s comment: The proposed development is consistent with crime prevention principles and provides appropriate separation of commercial and residential activities and areas.
PRINCIPLE 8 - HOUSING DIVERSITY AND SOCIAL INTERACTION
DRP advice: Adaptable units will need to be revised with amended plans.
Applicant’s comment: The retail and apartment areas have been designed based on the requirements of the local market.
DAO’s comment: The proposed development provides a range of unit sizes and configurations and appropriate adaptable housing.
PRINCIPLE 9 - AESTHETICS
DRP advice: The images presented with the proposal are very promising and indicate that a high quality, well resolved and attractive neighbourhood centre will be the result. Refer to above comments regarding solid spandrels, reduced driveway width and landscape.
Applicant’s comment: The building has been designed to present well in the streetscape and in a style appropriate for the area.
DA’s comment: The external finishes are appropriate and will result in a high quality development that will be a positive contribution to the site.
Draft Environmental Planning Instruments
There are no draft Environmental Planning instruments that apply to the proposed development.
Development Control Plans
The proposed development is subject to the provisions of the Hurstville Development Control Plan No 1. The following comments are made with respect to the proposal satisfying the relevant objectives and controls contained within the DCP.
DEVELOPMENT CONTROL PLAN NO 1 – LGA WIDE - SECTION 3.1 VEHICLE ACCESS, PARKING AND MANOEUVRING
The extent to which the proposed development complies with the car parking provisions is outlined in the table below.
|
Development |
Requirements |
Proposed |
Complies |
|
DS1.3 General |
Residential: 1 space/1 or 2 bedroom unit (12 unit) = 12 2 spaces/3+ bedroom unit (2 units) = 4 1 visitor space/4 units = 4 1 car wash bay Total = 16 residential spaces + 4 visitor spaces
Commercial: 1 space/50sqm (451.5sqm) = 9 spaces 1 loading /unloading area |
Residential: 16 residential spaces 4 visitor spaces 1 car wash bay
Commercial: 9 spaces 1 loading/unloading area |
Yes |
|
DS1.5 and DS1.6 Layout, Circulation, Access and Egress |
To comply with the Australian Standard. Does not encourage but will consider stacked parking. |
Compliance with the relevant Australian Standards can be achieved |
Yes |
|
DS1.9 and 1.10 Ramps, transitions and driveways |
To comply with the Australian Standards |
Compliance with the relevant Australian Standard can be achieved |
Yes |
|
DS1.16 and DS1.17 Parking for people with a disability |
To comply with the Australian Standards. Provision of parking beyond the AS is encouraged. |
-2 residential spaces -1 retail space -Comply with the AS. |
Yes |
|
DS2.1 ,DS2.2 and DS2.3 Environmental Design |
-Landscape plan to be prepared by qualified landscape architect illustrating means to soften the visual impact of parked cars -Significant environmental features to be retained and incorporated -Landscaping required includes planting beds 1m wide fronting a street or public place, shade trees to be provided in open parking areas, certain plant species to be avoided. |
Landscape plan submitted which shows a 3.66m wide landscaped area adjoining the Forest Rd entry to the carpark
|
Yes |
|
DS2.5 and DS2.6 Drainage |
Adequate drainage to be provided in accordance with Council’s Drainage Code. |
Drainage is acceptable |
Yes |
|
DS2.8 Streetscape |
If parking area adjoins a residential property fencing and/or mounding to be included to protect the privacy of the residential property and reduce noise. |
3.66m wide landscaped area proposed adjoining the western boundary residential zone. |
Yes |
|
PC3 Safer by Design |
Development to comply with the safer by design requirements included in PC3 including visibility, safety, security, pedestrians and car park layouts. |
The development generally complies with the safer by design requirements as relevant for basement car parking areas. |
Yes |
Councils’ Senior Traffic Engineer reviewed the application and requested that a traffic impact study be prepared for the development application which addresses access to and from the site, loading and unloading, swept path diagrams, car parking requirements, and sight lines of adjoining developments.
In response, the applicant submitted a Traffic and Parking Assessment Report (prepared by Varga Traffic Planning Pty Ltd, dated 9 November 2017, reference 17606). The report has been examined by Council’s Senior Traffic Engineer who has advised that the issues raised have been appropriately addressed in the report and no objection is raised to the application subject to conditions of consent being attached to any consent granted.
DEVELOPMENT CONTROL PLAN NO 1 – LGA WIDE - SECTION 3.3 ACCESS AND MOBILITY
The proposed development complies with the provisions of section 3.3 as follows.
|
Section 3.3 |
Requirements |
Proposed |
Complies |
|
Access requirements |
Access for all persons through the principal entrance and access to appropriate sanitary facilities and common areas in accordance with the BCA and relevant Australian Standards |
Appropriate access provided to all areas |
Yes |
|
Accessible car spaces for commercial component |
1 space/20 spaces or part thereof, where parking areas have more than 20 spaces but less than 50 spaces (9 spaces) = No spaces required as less than 20 provided |
1 accessible space is provided |
Yes |
|
Adaptable dwellings |
1 adaptable dwelling/10 dwellings or part there of (min) = 2
Adaptable dwelling complies with AS4299 |
2 adaptable units |
Yes |
DEVELOPMENT CONTROL PLAN NO 1 – LGA WIDE - SECTION 3.4 CRIME PREVENTION THROUGH ENVIRONMENTAL DESIGN
The extent to which the proposal complies with the requirements of this section of DCP1 is outlined in the table below.
|
Section 3.4 |
Requirements |
Proposed |
Complies |
|
PC1 Site and building layout |
a. ensures that the way in which the site, and the buildings within the site, are laid out enhance security and feelings of safety. b. ensures that private and public spaces are clearly delineated c. ensures that the design of the development allows for natural surveillance to and from the street and between individual dwellings or commercial units within the site d. provides entries that are clearly visible and avoid confusion e. avoids blind corners in pathways, stairwells, hallways and car parks f. provides natural surveillance for communal and public areas g. ensures that design for natural surveillance also provides for a suitable streetscape appearance h. where permitted, provides appropriate mixed uses within buildings to increase opportunities for natural surveillance, while protecting amenity i. locates public services (ATMs, telephones, help points, bicycle storage etc) in areas of high activity j. designs car parks to allow for natural surveillance and ensure clear sight lines, ease of access and safety at the entrance and within the car park |
The development generally complies with these requirements.
|
Yes |
|
PC2 Lighting |
a. enhances the amenity and safety of a site after dark by increasing opportunities for casual surveillance, deterring unauthorised access and reducing feelings of fear and vulnerability of legitimate site user b. enhances the amenity and safety of a site after dark by increasing opportunities for casual surveillance, deterring unauthorised access and reducing feelings of fear and vulnerability of legitimate site users c. is provided to enable natural surveillance, particularly in entrances/exits, service areas, pathways and car parks d. be clearly identifies all exist and entries after dark e. ensures service areas such as garbage areas and loading bays are well lit f. is designed so it doesn’t produce areas of glare and shadow |
The development provides appropriate lighting and will be reinforced through conditions of consent. |
Yes |
|
PC3 Landscaping |
a. does not reduce the security of a site b. where used to delineate private space, is used in a way which enhances safety c. does not obstruct casual surveillance and allows intruders to hide d. uses vegetation as barriers to deter unauthorised access e. avoids large trees/shrubs and buildings works that could enable an intruder to gain access |
The landscaping to the site is located on the ground level and roof top common open space and will be appropriately landscaped. The landscape plan has been prepared by a landscape architect. |
Yes |
|
PC4 Fencing |
a. does not restrict casual surveillance between the site and the street due to its height, location and design b. where on the front boundary, should be designed to maximise opportunities for casual surveillance between the site and the street and minimise opportunities for concealment |
The development complies with these requirements |
Yes |
|
PC5 Security and operational management |
a. ensures an appropriate level of security is achieved b. provides an appropriate level of security for individual buildings and communal areas to reduce opportunity for unauthorised access c. ensures individual dwellings are equipped with appropriate security devices d. ensures an appropriate level of security is achieved in communal areas e. provides adequate security to commercial premises with extended hours of operation |
Sufficient level of security provided |
Yes |
|
PC6 Building Identification |
a. ensures buildings are clearly identified by street number to prevent unintended access and to assist persons trying to find the address b. ensures that parking areas are clearly identified by signage to prevent unintended access and to assist persons trying to find their car c. ensures that signage is clearly visible, easy to read and simple to understand |
These requirements can be satisfied through conditions of consent
|
Yes |
|
PC7 Building ownership |
a. designed to promote a sense of site ownership and to encourage responsibility in making sure the site is well looked after and cared for b. designed to promotes pride and sense of place and ownership and reduce illegitimate use/entry. |
Entry area and driveway indicate ownership |
Yes |
|
PC8 Building Materials |
a. minimise opportunities for criminal damage and can be easily maintained b. reduce the opportunity for intruder access c. minimise opportunities for vandalism d. are regularly maintained and include swift removal of graffiti to enhance ‘cared for’ image |
Proposed building materials are appropriate in terms of crime prevention. |
Yes |
|
PC9 Building Maintenance |
a. creates the impression that the site is well looked after and well cared for b. uses materials that reduce the opportunity for vandalism. |
Conditions of consent can require the long term maintenance of the building. |
Yes |
DEVELOPMENT CONTROL PLAN NO 1 – LGA WIDE - SECTION 3.5 LANDSCAPING
There are four trees located on the site which are to be removed. The application is accompanied by an Arboricultural Impact Assessment report prepared by Advanced Treescape Consulting. The report concludes that the trees should be removed as they are not significant specimens, have lack of growing space or are in poor health and failing. The two trees located within Lawrence Park will not be affected by the development.
Council’s Tree management Officer has raised no objection to the landscaping of the site, subject to Lawrence Park being excluded from the plans. the applicant has amended the landscape plan to clearly show that Lawrence Park does not form part of the landscaping works. The landscape plan submitted with the application has been prepared by a qualified landscape architect which shows proposed landscaping to the site including the ground floor, roof top communal open space, and planter boxes.
DEVELOPMENT CONTROL PLAN NO 1 – LGA WIDE - SECTION 3.7 STORMWATER
The development can drain to the street via gravity. Appropriate conditions of consent can be attached to any consent granted.
DEVELOPMENT CONTROL PLAN NO 1 - LGA WIDE - APPENDIX 1 - SECTION 7 WASTE MANAGEMENT
A Waste Management Plan has been submitted with the application. This has been reviewed by Council’s Coordinator Environmental Sustainability and Waste and she has advised that the proposed waste facilities are satisfactory. Any consent granted will be subject to conditions of consent requiring the provision of appropriate waste facilities for the ongoing use of the development.
DEVELOPMENT CONTROL PLAN NO 1 - LGA WIDE - APPENDIX 1 - SECTION 8 ENERGY EFFICIENCY
The application is accompanied by a BASIX Certificate which identifies that the development meets the target scores.
In terms of overshadowing, shadow diagrams submitted with the application show that the proposed development will result in the adjoining residential dwelling receiving at least 3 hours sunlight between 9am and 3pm on 21 June which is consistent with the requirements of the DCP.
DEVELOPMENT CONTROL PLAN NO 1 - LGA WIDE - APPENDIX 1 - SECTION 9 PRESERVATION OF TREES AND VEGETATION
This has been discussed in the report above under the heading Section 3.5 Landscaping.
DEVELOPMENT CONTROL PLAN NO 1 – LGA WIDE - APPENDIX 1 – SECTION 10 - BUILDING HEIGHTS AND INDICATIVE STOREYS
DCP1 identifies that where the height limit is 9m the indicative maximum storeys of the development is 2 storeys. The proposed development has a 3 storey component which results in a maximum height of 12.28m. This has been discussed in the report above.
Section 94 Contributions
The proposed development requires payment of $158,604.29 of Section 94 contributions based on the provisions of an additional dwelling on the subject site. The contribution amount is based on the following:
|
Contribution Type |
Contribution Amount |
|
Open Space |
$138,952.15 |
|
Community facilities |
$19,652.14 |
|
Total Contributions |
$158,604.29 |
IMPACTS
Natural Environment
The proposed development is unlikely to result in adverse impacts to the natural environment. There are four trees located on the site which are to be removed. the application is accompanied by an Arboricultural Impact Assessment report prepared by Advanced Treescape Consulting. The report concludes that the trees should be removed as they are not significant specimens, have lack of growing space or are in poor health and failing. The two trees located within Lawrence Park will not be affected by the development. A landscape plan prepared by a qualified landscape architect has been submitted with the application which shows the introduction of landscaped deep soil area to the ground floor of the site, a landscaped roof top communal open space area, and planter boxes to the perimeter of the residential levels. Excavation to the site is required for the proposed basement car parking areas. This is unlikely to result in any adverse impacts to the site and is typical of mixed developments which include basement car parking areas.
Built Environment
The proposed development is unlikely to result is adverse impacts to the built environment. The proposed development complies with the relevant requirements except in the maximum height of the development. This variation has been discussed in the report and is primarily attributed to the topography of the site.
Social Impact
The proposed development has no apparent adverse social impact.
Economic Impact
The proposed development has no apparent adverse economic impact.
Suitability of the site
It is considered that the proposed development is of a scale and design that is suitable for the site having regard to its size and shape, its topography, vegetation and relationship to adjoining developments.
SUBMISSION
The application was notified/advertised to residents/owners in accordance with Council’s requirements on two occasions, once when the application was lodged, and once when the house numbering was corrected to accurately reflect the subject sites and 35 submissions and 1 petition containing 228 signatures were received in reply. The issues raised in the submissions are summarised below with a response provided by the applicant’s planning consultant and the Development Assessment Officer (DAO).
Height
Non compliance with the requirements
Applicant’s comment: As outlined in the Statement of Environmental Effects, the proposed maximum height of the development is 12.28m at its highest point. The maximum height level prescribed by the relevant controls is 9m. Whilst the height exceeds the maximum requirement for the development standard, to ensure an economically viable development is achieved, which incorporates sufficient non-residential floor space to satisfy the zoning objectives, an encroachment of the height was the only logical response.
Notwithstanding this, the additional building height is set back significantly from the principal building line, with the two units proposed on the second level, being 5.2m from the Lime Kiln Road street boundary. Sightlines have been provided from different angles surrounding the site to highlight the minimal impact that this section of non-complying building height will incur.
As illustrated in the below height plane perspective, only a small portion of the landscaped area encroaches the height limit. The landscaped areas provided to the upper levels of the development soften the bulk of the encroachment and provide screening to neighbouring properties.
In addition, as highlighted in the above perspectives, the upper floors go almost unnoticed when viewed from the street. The perspective demonstrates that the second level of the built form fronting Forest Road is mostly concealed when viewed from the western portion of Forest Road. The built form located on the northern elevation fronting Lime Kiln Road is partially viewed from Forest Road. However, much of this section is masked by the existing tree located in Lawrence Park.
The stepped built form ensures that the perceived bulk of the building will be minimised at the primary frontage to Lime Kiln Road, with much of the proposal being visible only from the secondary frontage, at Forest Road. Nevertheless, a stepped design has been provided for the second level towards Forest Road also, again to conceal the perceived bulk that may otherwise result.
Therefore, the proposed height is considered to provide a suitable transition between the existing built form and the natural topography of the site and its surrounds. In addition, please see the below height plane which illustrates the minor portions of the built form which project above the 9m height limit.

Perspective showing height above 9m in grey

Photomontage showing third floor in grey
DAO comment: The proposed development has a maximum height of 12.28m which is 3.28m above the maximum height development standard. The additional height is located towards the front of the site on Lime Kiln Road as shown on the perspective above. The variation to the height is discussed in the report above and is considered acceptable as it is a consequence of the topography of the site and does not result in additional impacts to adjoining developments. The development results in a good design outcome in terms of streetscape presentation and as a transition between the B1 Neighbourhood Centre zone and the adjoining R2 Low Density Residential zone.
Floor Space Ratio
Non-compliance with the requirements relating to the development and the minimum non-residential floor space ratio
Applicant’s comment: With regards to the maximum floor space ratio (FSR), the proposed FSR is 1.33:1, which is less than the development standard of 1.5:1. Therefore, the proposed development does not exceed the maximum FSR and is designed to ensure that the proposed quantum of floor space is appropriate having regard to the site conditions. Further, despite submissions suggesting that the development standard is exceeded, this is incorrect and further regard in this respect has not been provided.
Notwithstanding this, in relation to the non-residential floor space ratio; the required minimum floor space ratio for non-residential purposes is required to be at least 0.5:1 for development located in the B1 Neighbourhood Centre zone. This application relies on the reduced quantum of 0.3:1 commercial floor space. Whilst the desire to retain an area which can be dedicated as a non-residential use is appropriate, defining an appropriate proportion should be a derivative of location and market conditions, as opposed to a development standard, to ensure that any such space is economically viable. As a result, the Clause 4.6 which accompanied the application addressed the appropriateness of the proposed non-residential floor space provided.
DAO comment: The floor space ratio of the development is below the maximum permitted under the development standards. As such the development is not an overdevelopment of the site. At the time the application was lodged the Hurstville Local Environmental Plan required a minimum non-residential floor space ratio of 0.5:1 for the B1 Neighbourhood Centre zone. A new development standard of 0.3:1 had been exhibited and was subsequently gazetted four months after the application was lodged. The proposed development has a non-residential floor space ratio of 0.3:1 which is consistent with the Local Environmental Plan and results in four shops across the street frontage which provide an appropriate form of development for the zone.
Bulk and scale
Bulk and scale of the development is not consistent with the streetscape and surrounding areas which are residential and low density
Applicant’s comment: Adequate setbacks and recesses have been provided for the development to ensure that the perceived bulk and scale of the development is reduced. The proposed setbacks are compliant to ensure maximum amenity is provided to both the existing and proposed development. As detailed in the above photomontage, the residential accommodation provided on the second level is setback to minimise the bulk and scale of the development. The proposed bulk and scale of the development will not impact views to or from George’s River. Therefore, the proposed bulk and scale is considered appropriate for the site.
DAO comment: The bulk and scale of the development is considered to be appropriate. The development has been designed to be sympathetic with the adjoining residential zone with the highest part of the development being located towards the Lime Kiln Road frontage and the adjoining site on Lime Kiln Road located within the B1 Neighbourhood Centre zone. The development results in a good urban design outcome and provides an appropriate transition between the site and the adjoining residential dwellings. The development complies with the requirements of the Apartment Design Guide including the separation distances.
Parking shortfall
Applicant’s comment: A basement car park is proposed which will facilitate 29 car parking spaces with access from Forest Road. There is currently no parking provided for the neighbourhood shops or for the residential quarters existing on the site. However, on-street parking is available on Lime Kiln Road to the front of the existing neighbourhood shops. Parking for the residences which adjoin Forest Road are located in front of the existing dwellings on an existing uncovered driveway.
As the subject site is not located within 800 metres of a railway station or light rail, car parking and bicycle requirements as per the DCP have been relied upon for the purposes of the application. As previously detailed in the Statement of Environmental Effects sufficient parking is proposed. The quantum of car parking proposed therefore complies with these requirements.
DAO comment: The proposed development complies with the car parking requirements of the Hurstville Development Control Plan. The application was referred to Council’s Senior Traffic Engineer who requested additional information from the applicant including a revised entry area to the basement to provide additional sight lines for the adjoining residential dwelling on Forest Rd. The entry to the basement was subsequently amended to provide better sight lines as requested by the adjoining residents. Council’s Senior Traffic Engineer has advised that the additional information and improvement of sight lines from the basement has addressed her concerns and no objection is raised to the development subject to conditions of consent being attached to any consent granted.
Construction
Noise pollution and traffic disruption during demolition and construction
Applicant’s comment: Matters pertaining to construction such as noise and dust control are generally governed by conditions of consent imposed by Council. Demolition works will be undertaken in accordance with the relevant Australian Standards and any conditions of consent imposed by the Council. Permitted hours of construction will be limited, as will noise levels, via the relevant Australian Standards and again, relevant conditions of consent.
Noise during the construction period will be limited to the demolition of the existing structures, delivery of materials and equipment and construction of the development itself. Methodology and material type has been selected to minimise noise impacts upon surrounding properties during this time. It is anticipated that the impacts of construction would be akin to any similar construction site and not out of character for such purpose.
DAO comment: Should the development be approved the development consent will be subject to conditions of consent that restrict the construction hours and require dust suppression measures to be implemented on the site.
Traffic, safety and impacts on infrastructure
Applicant’s comment
On-street parking will not be compromised as a result of this proposal, with all residential car parking spaces being located within the basement of the building.
Furthermore, there will be a nett increase in car parking on Lime Kiln Road, with parking dedicated to the retail component of the development located within the basement in addition to the existing on-street parking. This will result in an increase in available on-street car parking spaces as the existing street car parking provided on Lime Kiln Road will not be relied upon, over the existing situation. A nett benefit will result.
This will also satisfy an issue raised in a submission regarding traffic flow and cars reversing from the current parking provided on Lime Kiln Road. As parking will now be provided for the retail uses in the basement car park, this will provide improved safety for existing residents of Lime Kiln Road. As adequate parking has been provided for each of the proposed dwellings and the development accommodates visitor parking, in addition to the existing on-street parking, the proposed parking arrangements are adequate.
Further concern was raised regarding pedestrian safety and the speed of cars. In terms of potential impact on road infrastructure, the size of the proposal, having regard to the zoning of the land, is acceptable in terms of traffic flow. The average movement of vehicles to and from this site will not result in an unacceptable impact in this location, nor anticipated for, this zone. Further, proximity to public transport will also provide alternative forms of transport to access this site. It is therefore considered that the size and scale of the development is acceptable, may be contained on the site and will not compromise existing infrastructure.
DAO comment: The proposed development complies with the car parking requirements in terms of onsite car parking spaces and the Australian standards. Council’s Senior Traffic Engineer has raised no objection to the development subject to conditions of consent being imposed on any consent granted. In terms of traffic generation, she has advised that the resultant traffic generation is unlikely to result in adverse impacts to the road network.
The existing shops on the site have no on site car parking spaces and utilise the on street parking located at the front of the site. The development will provide car parking for the shops, apartments, visitors, and a loading area within the basement which will reduce the reliance of on street parking.
Privacy Impact/Overlooking
Applicant’s comment: To ensure that no adverse privacy impacts occurred as part of the development, the non-compliant area of the development which is located above the maximum 9m height limit, on the southern elevation is provided with a solid façade and no window openings to ensure that there is no potential impact in terms of overlooking to the properties situated to the south and south-west of the site. Window openings are provided on the western elevation, but provided with privacy screens for the lower portions of the windows to ensure any potential overlooking or privacy impacts are mitigated to the neighbouring property located at 1043 Forest Road.
The non-complying area which provides built form above the prescribed height control, is generally located in the centre of the site. The separation distance between the non-complying component of the western elevation and the site boundary with 1043 Forest Road is approximately 23m. This distance is considered more than adequate in terms of maintaining adequate visual privacy. All other outlooks associated with the development front the street and therefore, the proposal will not compromise the visual privacy of these properties.
As a result of the distance provided between the upper levels and the neighbouring residential development at 1043 Forest Road, the impact in terms of overlooking is considered minor with the opportunity for direct overlooking being mitigated by the application of adequate setbacks, landscaping treatments and the application of privacy treatments to the southern and western elevational openings.
Several submissions were made in relation to privacy issues as a result of the location of the communal area on the top level of the development. The initial design of the communal area provided this in the south-western corner of the ground level. However, during an informal pre-DA meeting with Council’s Team Leader, it was suggested to relocate the communal area to the upper level, as sufficient amenity was not deemed to be achieved at the ground floor level. Therefore, in order to maximise the amenity provided to the residential dwellings within the proposal, having regard to the slope of the site, the communal area was provided on Level 2 of the development.
Concerns were also raised regarding the location of the balconies fronting Forest Road. The location of such balconies fronting the street and providing additional casual surveillance is considered a positive outcome. The location of the proposed balconies fronting Forest Road are not likely to impact upon existing residential developments, as they are located approximately 24m from the site. As for the submission regarding privacy issues from the balconies facing north onto Forest Road residents despite the movable sliding louvre doors proposed for each balcony, the separation distance alone provided is considered appropriate to maintain the amenity of the existing and proposed residents.
DAO comment: It is considered that the proposed development achieves appropriate measures to mitigate privacy impacts on the adjoin residential dwellings by providing generous side setbacks which exceed the separation distances required by the Apartment Design Guide, privacy screens to the windows and balconies adjoining the residential dwellings, and landscaped areas to the edge of the balconies and communal open space which will contain screen planting.
Character of the area
The proposed development is not consistent with the character of the area
Applicant’s comment: The proposal is acceptable in terms of its context and neighbourhood character, providing a shop top housing development that is appropriate to the context of the site and will enhance the identity of the area. It is also consistent with the objectives of the zone in which the site is located.
DAO comment: The proposed development is of a form and scale that is consistent with the zone of the site and provides a good urban design outcome in terms of streetscape and impacts on adjoining developments. The development has been appropriately designed to mitigate privacy impacts on the adjoining residential dwellings by locating the bulk of the building towards the Lime Kiln Rd frontage and the adjoining commercial zone.
B1 Neighbourhood Zone
Applicant’s comment: Numerous submissions were received which outlined that “the proposed development does not abide by the existing standards that define the B1 Neighbourhood Zone” and will set a precedent for future development. We are not aware of standards that define the B1 Neighbourhood zone; however, as previously outlined in the Statement of Environmental Effects which accompanied this application, the proposed development meets all of the objectives of the zone, which are to provide a range of small-scale retail, business and community uses that serve the needs of people who live or work in the surrounding neighbourhood
The proposal is consistent with the existing use of the site, but will provide opportunity for commercial premises that are more suited to current market conditions and the localised position that the site is located in. The development will be compatible and consistent with the zoning, and will continue to provide facilities and services for the day-to-day needs of local residents. In addition to this, the proposal will provide a development which is more consistent with the LEP standards for the area, as it will increase the amount of non-residential floor space provided for the development.
Although it is noted that, in its current form, the proposal will be non-compliant with the height control, a planning proposal to amend the current LEP proposes to amend this development standard to reduce the non-residential component to 0.3:1. This application seeks approval for non-residential floor space at 0.303:1 which meets the minimum requirements as per the proposed amendments of the Planning Proposal.
DAO comment: The proposed development is permissible in the zone and is a development reflective of the planning controls in that it provides ground floor shops and residential apartments above. The variations proposed to the planning requirements have been discussed in the report above and are supported as they are a consequence of the topography of the site and result in no additional impacts to adjoining developments while resulting in a good urban design outcome.
B2 Local Centre
Applicant’s comment: Numerous submissions identified that the development is not consistent with the zone objectives. However, the proposed development is consistent with the zone objectives of the relevant zone – B1 Neighbourhood Centre. The site is not located with the B2 Local Centre zone. It is assumed that many of the submissions may be based on the petition which displays numerous false assumptions representing the proposed development.
DAO comment: The site is not located within the B2 Local Centre zone and the requirements of this zone are not relevant to the application.
Commercial use of existing residential use
Applicant’s comment: Concern is raised in the submissions regarding the use of the existing residential area as commercial/retail space. The proposed use, as a shop top housing development, is permissible in the current zone and is consistent with Clause 4.4A of the LEP which requires non-residential floor space to be provided for development located in the B1 Neighbourhood Zone. In addition, the current tenant has a commercial lease which does not expire until 2019. A business which relates to the food and magazine industry is currently run from the premises.
Another concern which was raised in the submissions was the future commercial uses of the tenancies located on the ground floor. Each of the tenancies will be subject to a separate application for the proposed use. It was also noted that the proposed tenancies should be restricted to opening hours of 9am to 5pm. Upon submission of an application for the proposed use, Council will apply appropriate conditions in relation to the proposed operating hours considered to be deemed acceptable.
DAO comment: The proposed non-residential floor area to the development comprises four tenancies. The use of these tenancies has not been nominated in this application other than to indicate that one may be used for a café. The use of these tenancies is subject to separate development consent. The use of the tenancies is also limited to those used permitted within the B1 Neighbourhood Centre zone under the Hurstville Local Environmental Plan.
Solar access
Solar access to neighbouring property
Applicant’s comment: In terms of solar access, the proposal has very limited additional impact over the existing situation, as a result of the proposed height, with the majority of change being directed towards Lime Kiln Road itself and the rear of 12A and 14 Lime Kiln Road for only short periods of time. The effect on commercial buildings is not relevant controls at the winter solstice.
DAO comment: The proposed complies with the solar access requirements and the adjoining development will receive at least three hours sunlight between 9am and 3pm on June 21.
Setback on Forest Road
Applicant’s comment: The setback to Forest Road is acceptable to provide an active frontage and a viable use for the retail/commercial component of the development. To attract pedestrian traffic to the proposed commercial/retail space, a zero lot frontage is required. As the zero frontage fronts the street, the proposed setback is considered adequate and an appropriate response to the proposed use.
DAO comment: The proposed development has no setback to the Forest Rd boundary which is consistent with the requirements so that there is an appropriate interface between the commercial tenancies and the street. There was an issue with the wall adjoining the entry to the basement which interrupted the sight lines of the adjoining dwelling to Forest Rd. This has now been amended and the appropriate sight lines are achieved.
High rise in bushfire prone land foreshore building line
Applicant’s comment: The site is not identified as being bushfire prone nor is it located within the foreshore building line area. Therefore, comments in relation to these have not been considered.
DAO comment: The site is not located within a bushfire area and is not subject to a foreshore building line. The site is located with the Foreshore Scenic Protection Area, however there are no specific additional requirements for the B1 Neighbourhood Centre zone other than those identified in this report.
Sediment Run Off
Applicant’s comment: Reference is made to sediment run off which will occur as a result of the development. One particular submission received expresses concern that the “the building works will end up in Georges River, polluting the river for a long time”. In response to this, adequate measures will be taken to ensure that the building works and any material as a result of the demolition or construction of the development, will be maintained within the boundaries of the site, as previously outlined.
Furthermore, the proposed development is located approximately 481m from George’s River to the east and 440m from the river to the south. Considering the adequate measures that will be followed in association with Australian Standards and other development which is located within a much more proximate location to George’s River, further consideration in this regard is not necessary.
DAO comment: The construction phase of any development is subject to erosion and sediment control measures which have to be provided on site to mitigate adverse environmental impacts.
Notification
The application was not appropriately notified as the wrong address was provided
Applicant’s comment: Matters relating to notification are considered to be a Council matter. However, it is our understanding that the proposed development was notified on two separate occasions. Thus it is considered that, if due process was followed, the application has followed the appropriate procedures in terms of notification to neighbouring properties.
DAO comment: The application was notified on two occasions, once when the application was lodged and again when it was identified that the address of the subject site was not complete. The amended plans received were available on Council’s website for viewing, but were not formally notified to residents as the changes made to the development were primarily internal with the external changes being minor such as changing to the edge of the awning from a curve to an edge, providing privacy screens to windows and moveable privacy screens to balconies and an amendment to the edge of the basement wall to improve the sight lines of the adjoining dwelling.
Viability of the proposed retail/commercial uses
Applicant’s comment: Concern has been raised regarding the viability of the proposed commercial/retail tenancies provided as part of the development. It was suggested in the submissions that the existing retail tenancies were vacant and were not viable. It was also outlined that the proposal provides a density in excess of market demand and many of the tenancies remain untenanted at present. Furthermore, it was noted that the existing commercial properties have struggled to maintain tenants due to low demand.
In response to this, please find attached a copy of a letter from the managing agent for the subject site which identifies each of the existing tenancies in both the commercial and residential uses under a current lease agreement. The Managing agency has also outlined that a number of expressions of interest have been conveyed to them in response to the proposed development.
DAO comment: The subject site is located within the B1 Neighbourhood Centre zone and a commercial component has to be provided to the site with a minimum floor space ratio of 0.3:1. The provision of a new development to the site which provides onsite parking, associated facilities and residents in the apartments above is likely to revive interest in the commercial tenancies. Notwithstanding this, the existing shops have tenants and are not considered to be derelict or abandoned.
Property value
The property value of adjoining developments will be effected by the introduction of a commercial building which is not consistent with the surrounding area
Applicant’s comment: As property value is not a planning consideration, this has not been addressed in this correspondence.
DAO comment: The proposed development is permissible in the zone and will provide a different form of residential accommodation. The likelihood of adjoining property prices being reduced as a result of the development cannot be supported or refuted as it is not a consideration that can be made under the Environmental Planning and Assessment Act.
REFERRALS
Council Referrals
Traffic Engineer
Council’s Traffic Engineer has examined the application and has raised no objection to the development subject to conditions of consent requiring the car spaces to comply with the Australian Standards.
Team Leader – Subdivision and Development
Council’s Team Leader – Subdivision and Development has raised no objection to the development subject to conditions of consent being attached to any consent granted.
Tree Management Officer
Council’s Tree Management Officer has advised that landscaping to Lawrence Park does not form part of this application and any maintenance or upgrading to the park will be undertaken by Council. no objection is raised to the removal of trees form the site in accordance with the recommendations of the arborist’s report submitted with the application.
Environmental Health Officer
Council’s Environmental Health Officer has examined the application and raised no objection subject to conditions of consent being attached to any consent granted.
External Referrals
Design Review Panel
The comments of the DRP have been discussed in the report above.
CONCLUSION
The application has been assessed having regard to the Heads of Consideration under Section 79C of the Environmental Planning and Assessment Act 1979, the provisions of the relevant State Environmental Planning Policies, Local Environmental Plans and Development Control Plans. The application seeks approval for the amalgamation of three lots, demolition of the existing structures and construction of a mixed development containing ground floor retail/commercial area, 14 apartments, and basement car parking area with access off Forest Road on the subject site.
The development has been assessed against the requirements of the relevant planning instruments and development control plans and seeks a variation to the height of the development which is considered acceptable, as discussed in the report. The submissions received to the application have been addressed in the report and through amended plans. Following detailed assessment it is considered that Development Application No DA2017/0129 should be approved subject to conditions.
DETERMINATION AND STATEMENT OF REASONS
Statement of Reasons
· The proposed development is considered to be an appropriate scale and form for the site and the character of the locality
· The proposed development, subject to the recommended conditions, will have no unacceptable adverse impacts upon the natural or built environments
· In consideration of the aforementioned reasons, the proposed development is a suitable and planned use of the site and its approval is in the public interest
THAT pursuant to Section 80 of the Environmental Planning and Assessment Act, 1979, as amended, the Council, grants development consent to Development Application DA2017/0129 for the application for the amalgamation of three lots, demolition of the existing structures and construction of a mixed development containing ground floor retail/commercial area, 14 apartments, and basement car parking area on Lots 1, 2, and 3 DP 533797 and known as 2-12 Lime Kiln Road and 1041a and 1041c Forest Road Lugarno, subject to the following conditions of consent:
SPECIFIC DEVELOPMENT CONDITIONS
Section A Development Details
1. DEV6.1 - Approved Plans - The development must be implemented in accordance with the approved plans and supporting documentation listed below which have been endorsed by Council’s approved stamp, except where marked up on the plans and/or amended by conditions of this consent:
|
Description |
Reference No. |
Date |
Revision |
Prepared by |
|
Cover sheet and locality plan |
Job No 2017/0121 DA00 |
March 17 |
C |
PTI Architects Pty Ltd |
|
Basement floor plan |
DA 10 |
2 Nov17 |
E |
PTI Architects Pty Ltd |
|
Forest Road ground floor plan |
DA 11 |
2 Nov17 |
E |
PTI Architects Pty Ltd |
|
Lime Kiln Road ground floor plan |
DA 12 |
8 Nov17 |
F |
PTI Architects Pty Ltd |
|
Level 1 floor plan |
DA 13 |
8 Nov17 |
D |
PTI Architects Pty Ltd |
|
Level 2 floor plan |
DA 14 |
8 Nov17 |
C |
PTI Architects Pty Ltd |
|
East and north elevation |
DA 15 |
2 Nov17 |
D |
PTI Architects Pty Ltd |
|
West and south elevation |
DA 16 |
19 Oct 17 |
B |
PTI Architects Pty Ltd |
|
Section A-A/B-B |
DA 17 |
19 Oct 17 |
B |
PTI Architects Pty Ltd |
|
FSR calculation |
DA 18 |
2 Nov17 |
C |
PTI Architects Pty Ltd |
|
Demolition plan |
DA 25 |
9 Oct 17 |
B |
PTI Architects Pty Ltd |
|
External finishes and materials |
DA 23 |
10 Jul17 |
A |
PTI Architects Pty Ltd |
|
Landscape plan |
2LK/DA/LP/01 |
6 Nov 17 |
F |
JCA Landscape Architects |
|
Sediment and erosion control plan and details |
204520 DA2.01 DA2.02 |
8 Nov 17 |
C |
RGH Consulting Group |
|
Hydraulic services legend, drawing schedule and coversheet, Hydraulic services site plan, Concept stormwater plan (surface, upper basement, lower basement, management details and calculations |
H001 H100 DA3.01 DA3.02 DA3.03 DA3.04 |
8 Nov 17 |
C |
RGH Consulting Group |
|
Demolition and construction waste management plan, Waste management plan |
- |
Nov 17 |
- |
Waste Audit and Consultancy Services |
|
Arboricultural Impact Assessment |
17-097 |
6 Nov 17 |
2 |
Advanced Treescape Consulting |
Section B Separate Approvals Required Under Other Legislation
2. APR7.2 - Section 138 Roads Act 1993 and Section 68 Local Government Act 1993 - Unless otherwise specified by a condition of this consent, this Development Consent does not give any approval to undertake works on public infrastructure.
Separate approval is required under Section 138 of the Roads Act 1993 and/or Section 68 of the Local Government Act 1993 for any of the following activities carried out in, on or over a public road (including the footpath) listed below.
An application is required to be lodged and approved prior to the commencement of any of the following works or activities;
(a) Placing or storing materials or equipment;
(b) Placing or storing waste containers or skip bins;
(c) Erecting a structure or carrying out work
(d) Swinging or hoisting goods over any part of a public road by means of a lift, crane or the like;
(e) Pumping concrete from a public road;
(f) Pumping water from the site into the public road;
(g) Constructing a vehicular crossing or footpath;
(h) Establishing a “works zone”;
(i) Digging up or disturbing the surface of a public road (e.g. Opening the road for the purpose of connections to utility providers);
(j) Stormwater & ancillary works in the road reserve; and
(k) Stormwater & ancillary to public infrastructure on private land
(l) If any excavation is to be supported by the use of below ground (cable) anchors that are constructed under Council’s roadways/footways.
These separate activity approvals must be obtained and evidence of the approval provided to the Certifying Authority prior to the issue of the Construction Certificate.
The relevant Application Forms for these activities can be downloaded from Council’s website www.georgesriver.nsw.gov.au. For further information, please contact Council’s Customer Service Centre on (02) 9330 6222.
3. APR7.4 - Vehicular Crossing - Major Development - The following vehicular crossing and road frontage works will be required to facilitate access to and from the proposed development site:
(a) Construct a metre wide footpath for the full length of the frontage of the site in in accordance with Council’s Specifications applying at the time construction approval is sought.
(b) The thickness and design of the driveway shall be in accordance with Council’s Specifications applying at the time construction approval is sought.
(c) Construct a new 150mm high concrete kerb with 450mm wide gutter for the full frontage(s) of the site in in accordance with Council’s Specifications for kerb and guttering, applying at the time construction approval is sought.
(d) Any existing vehicular crossing and/or laybacks which are redundant must be removed. The kerb and gutter, any other footpath and turf areas shall be restored at the expense of the applicant. The work shall be carried out in accordance with Council’s specification, applying at the time construction approval is sought.
(e) Relocation of the existing power pole is to be approved by the relevant authority.
Constructing a vehicular crossing and/or footpath requires separate approval under Section 138 of the Roads Act 1993, prior to the commencement of those works.
4. APR7.5 - Road Opening Permit - A Road Opening Permit must be obtained from Council, in the case of local or regional roads, or from the RMS, in the case of State roads, for every opening of a public road reserve to access services including sewer, stormwater drains, water mains, gas mains, and telecommunications before the commencement of work in the road.
5. APR7.7 - Building - Hoarding Application - Prior to demolition of the buildings on the site or the commencement of work above ground level a separate application for the erection of an A class (fence type) or a B class hoarding or C type scaffold, in accordance with the requirements of Work Cover Authority of NSW, must be erected along that portion of the footway/road reserve, where the building is within 3.0 metres of the street boundary. An application for this work under Section 68 of the Local Government Act 1993 and the Roads Act 1993 must be submitted for approval to Council.
The following information is to be submitted with a Hoarding Application under s68 of the Local Government Act and s138 of the Roads Act 1993:
(a) A site and location plan of the hoarding with detailed elevation, dimensions, setbacks, heights, entry and exit points to/from the site, vehicle access points, location of public utilities, electrical overhead wire protection, site management plan and builders sheds location; and
(b) Hoarding plan and details that are certified by an appropriately qualified engineer; and
(c) The payment to Council of a footpath occupancy fee based on the area of footpath to be occupied and Council's Schedule of Fees and Charges (available on our website) before the commencement of work; and
(d) A Public Risk Insurance Policy with a minimum cover of $10 million in relation to the occupation of and works within Council's road reserve, for the full duration of the proposed works, must be obtained a copy provided to Council. The Policy is to note Council as an interested party; and
(e) The application must be endorsement by the Roads & Maritime Services (RMS) as the hoarding is located within 100m of an intersection with traffic lights. For assistance you should contact the DA unit at RMS and speak to Hans on 88492076. Or email hans.pilly.mootanah@rms.nsw.gov.au to obtain concurrence for the hoarding structure.
6. APR7.8 - Below ground anchors - Information to be submitted with S68 Application under LGA 1993 and S138 Application under Roads Act 1993 - In the event that the excavation associated with the basement carpark is to be supported by the use of below ground (cable) anchors that are constructed under Council’s roadways/footways, an application must be lodged with Council under Section 68 of the Local Government Act 1993 and the Roads Act 1993 for approval, prior to commencement of those works. The following details must be submitted.
(a) That cable anchors will be stressed released when the building extends above ground level to the satisfaction of Council.
(b) The applicant has indemnified Council from all public liability claims arising from the proposed works, and provide adequate insurance cover to the satisfaction of council.
(c) Documentary evidence of such insurance cover to the value of $20 million.
(d) The applicant must register a non-terminating bank guarantee in favour of Council. The guarantee will be released when the cables are stress released. In this regard it will be necessary for a certificate to be submitted to Council from a structural engineer at that time verifying that the cables have been stress released.
(e) That in the event of any works taking place on Council’s roadways/footways adjoining the property while the anchors are still stressed, all costs associated with overcoming the difficulties caused by the presence of the ‘live’ anchors will be borne by the applicant.
Section C Requirements of Concurrence, Integrated & Other Government Authorities
7. GOV8.13 - Notice of Requirements for a Section 73 Certificate - A Notice of Requirements of what will eventually be required when issuing a Section 73 Compliance Certificate under the Sydney Water Act 1994 must be obtained from Sydney Water Corporation. Application must be made through an authorised Water Servicing Co-ordinator. Please refer to the ‘Plumbing, building and developing’ section of the web site www.sydneywater.com.au then refer to ‘Providers’ under ‘Developing’ or telephone 13 20 92 for assistance.
Following application, a ‘Notice of Requirements’ will advise of water and sewer infrastructure to be built and charges to be paid. Please make early contact with the Co-ordinator, as it can take some time to build water/sewer pipes and this may impact on other services and building, driveway or landscape design.
The Notice of requirements must be submitted prior to the commencement of work. A Section 73 Compliance Certificate will be required at the completion of development in accordance with further conditions.
8. GOV8.14 - Section 73 Compliance Certificate - A Section 73 Compliance Certificate under the Sydney Water Act 1994 must be submitted to the PCA prior to the issue of the Occupation Certificate.
9. GOV8.11 - Trade Waste Agreements - A Trade Waste Agreement with Sydney Water may be required. Details of any work required to comply with the agreement must be detailed on the plans lodged with the Construction Certificate. If no trade waste agreement or grease trap is required, a letter from Sydney Water to this effect must be submitted with the application for the Construction Certificate.
Section D Prior to the Issue of a Construction Certificate
10. CC9.1 - Fees to be paid - The fees listed in the table below must be paid in accordance with the conditions of this consent and Council’s adopted Fees and Charges applicable at the time of payment (available at www.georgesriver.nsw.gov.au).
Payments must be made prior to the issue of the Construction Certificate or prior to the commencement of work (if there is no associated Construction Certificate).
Please contact council prior to the payment of S94 Contributions to determine whether the amounts have been indexed from that indicated below in this consent and the form of payment that will be accepted by Council.
Council will only accept Bank Cheque or Electronic Funds Transfer (EFT) for transaction values of $500,000 or over. Council must be contacted prior to payment to determine correct total amount to be paid and bank account details (if applicable).
A summary of the fees to be paid are listed below:
|
Fee Type |
Fee |
|
GENERAL FEES |
|
|
Long Service Levy (to Long Service Corporation) Or, provide evidence of Payment direct to the Long Service Corporation. See https://portal.longservice.nsw.gov.au/bci/levy/ |
|
|
Builders Damage Deposit |
$63,162.00 |
|
Inspection Fee for Refund of Damage Deposit |
$150.00 |
|
|
|
|
DEVELOPMENT CONTRIBUTIONS |
|
|
Hurstville Section 94 Development Contributions Plan 2012 - Residential (Community Facilities) |
$19,652.14
|
|
Hurstville Section 94 Development Contributions Plan 2012 - Residential (Open Space, Recreation, Public Domain) |
$138,952.15 |
General Fees
The fees and charges above are subject to change and are as set out in the version of Council's Schedule of Fees and Charges or as required by other Government Authorities, applicable at the time of payment.
Development Contributions
The Section 94 contribution is imposed to ensure that the development makes adequate provision for the demand it generates for public amenities and public services within the area.
A Section 94A contribution has been levied on the subject development pursuant to the Georges River Council Section 94A Contributions Plan.
Indexation
The above contributions will be adjusted at the time of payment to reflect changes in the cost of delivering public amenities and public services, in accordance with the indices provided by the relevant Section 94 Development Contributions Plan.
Timing of Payment
The contribution must be paid and receipted by Council prior to the release of the Construction Certificate.
Further Information
A copy of the all current Development Contributions Plans may be inspected or a copy purchased at Council’s offices (Georges River Civic Centre, MacMahon Street, Hurstville and Kogarah Library and Service Centre, Kogarah Town Square, Belgrave Street, Kogarah) or viewed on Council’s website www.georgesriver.nsw.gov.au.
11. CC9.47 - Fire Safety Measures - Prior to the issue of a construction certificate a list of the essential fire safety measures that are to be provided in relation to the land and any building on the land as a consequence of the building work must accompany an application for a construction certificate, which is required to be submitted to either Council or a PCA. Such list must also specify the minimum standard of performance for each essential fire safety measure included in the list. The Council or PCA will then issue a Fire Safety Schedule for the building.
12. CC9.48 - Structural details - Engineer's details prepared by a practising Structural Engineer being used to construct all reinforced concrete work, structural beams, columns and other structural members. The details are to be submitted to the Principal Certifying Authority for approval prior to construction of the specified works. A copy shall be forwarded to Council where Council is not the PCA.
13. CC9.52 - Access for Persons with a Disability - Access for persons with disabilities must be provided throughout the site, including to all common rooms, lobby areas, commercial premises and sanitary facilities in accordance with the requirements of the Premises Standards, the Building Code of Australia and AS 1428.1. Details must be submitted with the Construction Certificate Application.
In regards to the above, pedestrian access throughout basement levels shall be highlighted/line marked and sign posted to safeguard egress.
14. CC9.54 - Geotechnical report - Geotechnical Reports: The applicant must submit a Geotechnical Report, prepared by a suitably qualified Geotechnical Engineer who holds the relevant Certificate of accreditation as required under the Building Professionals Act 2005 in relation to dilapidation reports, all site works and construction. This is to be submitted before the issue of the Construction Certificate and is to include:
(a) Investigations certifying the stability of the site and specifying the design constraints to be placed on the foundation, any earthworks/stabilization works and any excavations.
(b) Dilapidation Reports on the adjoining properties prior to any excavation of site works. The Dilapidation Report is to include assessments on, but not limited to, the dwellings at those addresses and any external paths, grounds etc. This must be submitted to the Certifying Authority and the adjoining residents as part of the application for the Construction Certificate. Adjoining residents are to be provided with the report five (5) working days prior to any works on the site.
(c) On-site guidance by a vibration specialist during the early part of excavation.
(d) Rock breaking techniques. Rock excavation is to be carried out with tools such as rock saws which reduce vibration to adjoining buildings and associated structures.
(e) Sides of the excavation are to be piered prior to any excavation occurring to reinforce the walls of the excavation to prevent any subsidence to the required setbacks and neighbouring sites.
15. CC9.54.1 - Vibration Damage - To minimise vibration damage and loss of support to the buildings in close proximity to the development, any excavation is to be carried out by means of a rock saw and if available, in accordance with the guidelines of the Geotechnical Engineer’s report.
Alternatively where a hydraulic hammer is to be used within 30 metres of any building (other than a path or a fence) a report from a qualified geotechnical engineer detailing the maximum size of hammer to be used is to be obtained and the recommendations in that report implemented during work on the site. The report shall be submitted with the Construction Certificate application.
16. CC9.54.2 - Slip Resistance - All pedestrian surfaces in areas such as foyers, public corridors/hallways, stairs and ramps as well as floor surfaces in the wet rooms in any commercial/retail/residential units must have slip resistance classifications, as determined using test methods in either wet or dry conditions, appropriate to their gradient and exposure to wetting. The classifications of the new pedestrian surface materials, in wet or dry conditions, must comply with AS/NZS4586:2004 - Slip Resistance Classifications of New Pedestrian Materials and must be detailed on the plans lodged with the application for the Construction Certificate.
17. CC9.60 - Building - Prior to the issue of a Construction Certificate the applicant may be required, under Clause 144 of the Environmental Planning & Assessment Regulation, 2000 to seek written comment from FR NSW about the location of water storage tanks, construction of hydrant/booster pump and valve rooms, and any Fire Engineered Solution developed to meet the performance requirements under the Category 2 Fire Safety Provisions.
The applicant is also advised to seek written advice from FR NSW on the location and construction of the proposed Fire Control Centre Facility and location and installation of the sites Fire Indicator / mimic Panels.
18. CC9.61 - Traffic Management - Compliance with AS2890 - All driveways, access ramps, vehicular crossings and car parking spaces shall be designed and constructed in accordance with the current version of Australian Standards, AS 2890.1 (for car parking facilities) and AS 2890.2 (for commercial vehicle facilities).
19. CC9.32 - Erosion & Sedimentation Control - Erosion and sediment controls must be provided to ensure:
(a) Compliance with the approved Erosion & Sediment Control Plan
(b) Removal or disturbance of vegetation and top soil is confined to within 3m of the approved building area (no trees to be removed without approval)
(c) All clean water runoff is diverted around cleared or exposed areas
(d) Silt fences, stabilised entry/exit points or other devices are installed to prevent sediment from entering drainage systems or waterways
(e) All erosion and sediment controls are fully maintained for the duration of demolition, excavation and/or development works
(f) Controls are put into place to prevent tracking of sediment by vehicles onto adjoining roadway
(g) All disturbed areas are rendered erosion-resistant by turfing, mulching, paving or similar
(h) Compliance with Managing Urban Stormwater - Soils and Construction (Blue Book) produced by Landcom 2004.
These measures are to be implemented prior to the commencement of work (including demolition and excavation) and must remain until works are completed and all exposed surfaces are landscaped/sealed.
20. CC9.34 - Stormwater System - The submitted stormwater plan has been assessed as a concept plan only. Final detailed plans of the drainage system, prepared by a professional engineer specialising in hydraulic engineering, shall be submitted for approval with the Construction Certificate.
(a) All stormwater shall drain by gravity to Council's kerb and gutter directly in front of the development site in accordance with the Australian/New Zealand Standard AS/NZS 3500.3: 2015 (as amended).
21. All roof water and surface water from paved or concreted areas are to be disposed of in accordance with the Stormwater Plan by means of a sealed pipeline constructed in accordance with AS/NZS 3500.3:2015.
22. CC9.35 - On Site Detention - The submitted stormwater plan has been assessed as a concept plan only. Final detailed plans of the drainage system, prepared by a professional engineer specialising in hydraulic engineering, shall be submitted for approval with the Construction Certificate.
An on-site detention (OSD) facility designed by a professional engineer who specialises in Hydraulic Engineering must be designed, approved and installed. The design must include the computations of the inlet and outlet hydrographs and stage/storage relationships of the proposed OSD using the following design parameters:
(a) Maximum Site Discharge to be provided in accordance with the Stormwater Concept Plan and associated Design Assessment Report. The overflow is to be directed to the site drainage system.
(b) Peak flow rates from the site are to be restricted to a permissible site discharge (PSD) equivalent to the discharge when assuming the site contained a single dwelling, garage, lawn and garden,
(c) At Annual Recurrence Intervals of 2 years and 100 years.
Refer to Flow Controls in Council's Draft/Adopted Stormwater Drainage Policy.
The OSD facility shall be designed to meet all legislated safety requirements and childproof safety fencing around the facility must be provided where the OSD facility is open or above ground when the design peak storage depth is greater than 300mm. A durable metal plate or similar sign is to be placed at the OSD facility and must bear the words:
"BEWARE: This is an on-site detention basin/tank for rainwater which could overflow during heavy storms."
Full details shall accompany the application for the Construction Certificate.
23. CC9.5 - Damage Deposit - Major Works - In order to insure against damage to Council property the following is required:
(a) Pay Council, before the issue of the Construction Certificate, a damage deposit for the cost of making good any damage caused to any Council property as a result of the development $63,162.00.
(b) Pay Council, before the issue of the Construction Certificate, a non-refundable inspection fee to enable assessment of any damage and repairs where required. $150.00
(c) Submit to Council, before the commencement of work, a dilapidation report of the condition of the Council nature strip, footpath and driveway crossing, or any area likely to be affected by the proposal.
At the completion of work Council will review the dilapidation report and the Works-As-Executed Drawings (if applicable) and inspect the public works.
The damage deposit will be refunded in full upon completion of work where no damage occurs and where Council is satisfied with the completion of works. Alternatively, the damage deposit will be forfeited or partly refunded based on the damage incurred.
24. CC9.48 - Structural details - Engineer's details prepared by a practising Structural Engineer being used to construct all reinforced concrete work, structural beams, columns and other structural members. The details are to be submitted to the Principal Certifying Authority for approval prior to construction of the specified works. A copy shall be forwarded to Council where Council is not the PCA.
25. CC9.6 - Site Management Plan - A Site Management Plan must be submitted with the application for a Construction Certificate, and include the following:
(a) location of protective site fencing;
(b) location of site storage areas/sheds/equipment;
(c) location of building materials for construction, e.g. stockpiles
(d) provisions for public safety;
(e) dust control measures;
(f) method used to provide site access location and materials used;
(g) details of methods of disposal of demolition materials;
(h) method used to provide protective measures for tree preservation;
(i) provisions for temporary sanitary facilities;
(j) location and size of waste containers/skip bins;
(k) details of proposed sediment and erosion control measures;
(l) method used to provide construction noise and vibration management;
(m) construction and demolition traffic management details.
The site management measures are to be implemented prior to the commencement of any works including demolition and excavation. The site management measures are to be maintained throughout the works, to maintain reasonable levels of public health, safety and amenity. A copy of the Site Management Plan must be kept on site and is to be made available upon request.
26. CC9.61 - Traffic Management - Compliance with AS2890 - All driveways, access ramps, vehicular crossings and car parking spaces shall be designed and constructed in accordance with the current version of Australian Standards, AS 2890.1 (for car parking facilities) and AS 2890.2 (for commercial vehicle facilities).
27. CC9.68 - Acoustic Requirements - Compliance with submitted Acoustic Report -
The proposed use of the premises and the operation of all plant and equipment shall not give rise to an ‘offensive noise’ as defined in the Protection of the Environment Operations Act 1997 (as amended) and Regulations.
An Acoustic Report shall be prepared by a suitably qualified acoustic consultant demonstrating that the operation of the premises and plant equipment shall not give rise to a sound pressure level at any affected premises that exceeds the background LA90, 15 min noise level, measured in the absence of the noise sources under consideration by more than 5dB. The source noise level shall be assessed as an LAeq, 15 min in accordance with the NSW Environment Protection Authority’s NSW Industrial Noise Policy.
28. CC9.69 - Car Wash Bays - Plans and specifications of the car washing system which has been approved by Sydney Water must be submitted with the application for the Construction Certificate.
All car washing bays shall be contained within a roofed and bunded car wash bay with pre-treatment approved by Sydney Water. The water from the car wash bay must be graded to a drainage point and connected to sewer.
If alternative water management and disposal options are proposed (i.e. where water is recycled, minimised or reused on the site), detailed plans and specifications of the water recycling system must be submitted with the application for the Construction Certificate for approval.
29. Site Investigation Requirements - Detailed Site Investigation - A detailed site contamination investigation must be carried out by an appropriately qualified contamination consultant in accordance with the requirements of the relevant NSW EPA Guidelines approved under the Contaminated Land Management Act 1997 including the EPA Guidelines for Consultants Reporting on contaminated sites and shall certify the suitability of the site for the proposed development. If investigation finds that contamination makes the land unsuitable for the proposed development and remediation is required, a Remedial Action Plan (RAP) must be submitted to Council prior to Council making a determination. Council reserves the right to require a site audit of the RAP.
Site contamination – Additional information
Any new information that comes to light during demolition or construction which has the potential to alter previous conclusions about site contamination and remediation must be notified to Council and the accredited certifier immediately.
Remedial Action Plan (RAP)
The Remedial Action Plan (RAP) must be prepared by an suitably qualified consultant in accordance with NSW Department of Environment and Conservation (DEC) and NSW Environmental Protection Authority (EPA) Guidelines and shall document all the remedial works to be undertaken at the site and also contain an environmental management plan and occupational health and safety plan for the remedial works.
Remediation Works
All remediation work must be carried out in accordance with: -
· The Managing Land Contamination: Planning Guidelines SEPP 55 Remediation of Land; and
· The EPA Guidelines made under the Contaminated Land Management Act 1997.
· And in accordance with the proposed Remedial Action Plan.
Validation Report
After completion of all Remediation works, a copy of the Validation and Monitoring Report prepared by suitably qualified contaminated land consultant shall be submitted to Council. The Construction Certificate shall not be issued until Council approves this Report. The validation report shall be prepared in accordance with the Office Environment and Heritage Guidelines, Consultants Reporting on Contaminated Sites, and shall certify the suitability of the site for the proposed development.
· describe and document all works performed;
· include results of validation testing and monitoring;
· include validation results of any fill imported on to the site;
· show how the objectives of the Remedial Action Plan have been met;
· show how all agreed clean-up criteria and relevant regulations have been complied with; and
· include clear justification as to the suitability of the site for the proposed development and the potential for off-site migration of any residual contaminants.
30. CC9.78 - Waste Management Plan - A Waste Management Plan incorporating all requirements in respect of the provision of waste storage facilities, removal of all materials from the site that are the result of site clearing, extraction, and, or demolition works and the designated Waste Management Facility shall be submitted to the Certifying Authority prior to the issue of any Construction Certificate.
31. CC9.79 - Waste Storage - Residential and Mixed Use Developments - The plans shall include details of the waste storage area. The waste storage area shall not be visible from the street. The waste storage area shall be located within the lot/building in accordance with the approved plans.
The waste storage area shall be large enough to accommodate the required number of bins for the development and located in an area to suitably facilitate servicing on waste collection day.
The path to the bin room is to be at least 1.0 metres wide and kept clear and unobstructed at all times.
Residential Waste
The property will require 4 x 240L garbage bins collected twice a week and 7 x 240L recycling bins collected once a week, and 1 x 240L green waste bin. The bins must be taken to the kerbside for collection.
The waste room will contain the following to minimise odours, deter vermin, protect surrounding areas, and make it a user-friendly and safe area:
· waste room floor to be sealed;
· waste room walls and floor surface is flat and even;
· all walls painted with light colour and washable paint;
· equipment electric outlets to be installed 1700mm above floor levels;
· The bin storage rooms will be mechanically exhausted as required by AS 1668.2;
· light switch installed at height of 1.6m;
· waste rooms must be well lit (sensor lighting recommended);
· optional automatic odour and pest control system installed to eliminate all pest
· types and assist with odour reduction - this process generally takes place at building handover - building management make the decision to install;
· all personnel doors are hinged and self-closing;
· waste collection area must hold all bins - bin movements should be with ease of access;
· conform to the Building Code of Australia, Australian Standards and local laws; and childproofing and public/operator safety shall be assessed and ensured.
· Occupational Health and Safety issues such as slippery floors in waste rooms and the weight of the waste and recycling receptacles will need to be monitored.
· Cleaners will monitor the bin storage area and all spills will be attended to immediately by cleaners.
32. Landscape Plans - All landscape works shall be carried out in accordance with the approved landscape plans referenced in the table above. The landscaping shall be maintained in accordance with the approved plans in perpetuity.
33. CC9.85 - Tree Removal prohibited - This consent does not approve the removal or pruning (branches or roots) of any trees on the subject property, Council’s public footway, public reserves or on neighbouring properties.
34. CC9.86 - Compliance with submitted Arborist Report - The recommendations outlined in the Arborist’s Report titled Arboricultural Impact Assessment prepared by Advanced Treescape Consulting (dated 6 November 2017, reference 17-097, rev 2), must be implemented throughout the relevant stages of construction. Details of tree protection measures to be implemented must be detailed and lodged with the Construction Certificate application for approval and shall be in accordance with Section 4 - Australian Standard AS 4970-2009: Protection of trees on development sites.
The tree/s to be protected are listed in the table below.
|
Tree Species |
Location of Tree / Tree No. |
Tree Protection Zone (metres) |
|
T1 - Eucalyptus botryoides (Bangalay) |
Within Lawrence Park |
9m |
|
T2 – Glochidion ferdinandi (Cheese Tree) |
Within Lawrence Park |
2.4m |
35. CC9.87 - Tree Protection and Retention - The following trees shall be retained and protected:
|
Tree Species |
Location of Tree / Tree No. |
Tree Protection Zone (metres) |
|
T1 - Eucalyptus botryoides (Bangalay) |
Within Lawrence Park |
9m |
|
T2 – Glochidion ferdinandi (Cheese Tree) |
Within Lawrence Park |
2.4m |
Details of the trees to be retained must be included on the Construction Certificate plans.
General Tree Protection Measures
(a) All trees to be retained shall be protected and maintained during demolition, excavation and construction of the site.
(b) The tree protection measures must be in undertaken in accordance AS4970 -2009 Protection of trees on development sites.
(c) Details of the tree protection measures to be implemented must be provided with the application for a Construction Certificate by a suitably qualified Arborist (AQF Level 5 or above in Arboriculture).
(d) The Arborist must be present on-site during the stages of construction when works are being undertaken that could impact on the tree canopy or root zone within the tree protection zone to implement the tree protection measures as required.
(e) Unless otherwise specified in AS 4970-2009, a protective fence consisting of 1.8 metres high, fully supported chainmesh fence shall be erected around the base of the tree. The distance of the fence from the base of each tree is to be in accordance with the TPZ listed in the table above. A layer of organic mulch 100 millimetres thick shall be placed over the protected area and no soil or fill should be placed within the protection area.
(f) No services shall be installed within the TPZ of the tree unless approved by Council. This fence shall be kept in place during demolition, construction and also have a sign displaying ‘Tree Protection Zone’ attached to the fence and must also include the name and contact details of the Project Arborist.
Excavation works near tree to be retained
(g) Excavations around the trees to be retained on site or the adjoining properties shall be supervised by the Project Arborist to ensure that the root system will not adversely be affected.
(h) Where the Tree Protection Zone (TPZ) of trees on site or adjoining sites become compromised by any excavation works, the Project arborist shall be consulted to establish the position of any major roots and determine the necessary measures to protect these roots. The recommendations of the Arborist shall be submitted to Council prior to any further demolition or construction works taking place.
(i) Tree Protection Zone around the trees to be retained are not to have soil level changes or services installed in this area. Any structures proposed to be built in this area of the trees are to utilise pier and beam or cantilevered slab construction.
Details satisfying this condition shall be shown on the Construction Certificate plans.
36. CC9.89 - Tree Removal & Replacement
Tree removal
Permission is granted for the removal of the following trees:
|
Tree species |
Number of trees |
Location |
|
T3 – Lagerstroemia indica (Crepe Myrtle) T4 – G. ferdinandi (Cheese Tree) T5 – Pittosporum undulatum (Native Daphne) T6 – Cupressus macrocarpa ‘Brunniana Aurea’ (Brunnings Golden Cypress) |
1 of each |
Located within the site |
General Tree Removal Requirements
(a) All tree removal shall be carried out by a certified Tree Surgeon/Arborist to ensure that removal is undertaken in a safe manner and complies with the AS 4373-2007 - Pruning of Amenity Trees and Tree Works Industry Code of Practice (Work Cover NSW 1.8.98).
(b) No trees are to be removed on the site or neighbouring properties without the prior written approval of Council.
(c) Council shall be appointed to remove all tree/s on public land. All costs associated with the removal of the tree/s and the planting of replacement trees shall be met by the applicant. Fees and charges outlined in the table below are subject to change and are set out in the current version of Council's ‘Schedule of Fees and Charges’, applicable at the time of payment.
|
Fee Type – Tree removal on public land |
Amount |
|
Administration Fee for Tree Removal |
TBA |
|
Replacement Tree Fee (per Tree) |
TBA |
|
Cost of tree removal |
TBA |
|
Cost of Stump Grinding |
TBA |
A copy of the Hurstville City Council’s Tree Removal and Pruning Guidelines and Kogarah City Council, Street Tree Management Strategy and Masterplan, can be downloaded from Council’s website www.georgesriver.nsw.gov.au.
37. CC9.9 - BASIX Commitments - All energy efficiency measures as detailed in the BASIX Certificate No. 815438M_02, dated 8 November 2017 must be implemented on the plans lodged with the application for the Construction Certificate.
38. CC12.24 - Consolidation of Site - The site shall be consolidated into one allotment and by a Plan of Consolidation being prepared by a Registered Surveyor. This Plan shall be registered at the NSW Land and Property Information prior to the issue of a final occupation certificate.
39. CC9.69 - Car Wash Bays - Plans and specifications of the car washing system which has been approved by Sydney Water must be submitted with the application for the Construction Certificate.
All car washing bays shall be contained within a roofed and bunded car wash bay with pre-treatment approved by Sydney Water. The water from the car wash bay must be graded to a drainage point and connected to sewer.
If alternative water management and disposal options are proposed (i.e. where water is recycled, minimised or reused on the site), detailed plans and specifications of the water recycling system must be submitted with the application for the Construction Certificate for approval.
40. CC9.7 - SEPP 65 Design Verification Statement - A design verification statement, prepared by Peter Israel, shall be submitted to the Certifying Authority verifying that the plans and specifications achieve or improve the design quality of the development for which development consent was granted, having regard to the design quality principles set out under Schedule 1 of State Environmental Planning Policy No 65 -Design Quality of Residential Flat Development.
41. CC9.8 - Design Quality Excellence (Major Development) -
(a) In order to ensure the design quality excellence of the development is retained:
i. The design architect, Peter Israel is to have direct involvement in the design documentation, contract documentation and construct stages of the project;
ii. The design architect is to have full access to the site and is to be authorised by the applicant to respond directly to the consent authority where information or clarification is required in the resolution of the design issues throughout the life of the project;
iii. Evidence of the design architect’s commission is to be provided to the Council prior to release of the Construction Certificate.
(b) The design architect of the project is not to be changed without prior notice and approval of the Council.
42. CC9.90 - Allocation of street addresses - In order to comply with AS/NZS 4819:2011 Rural and Urban Addressing & the NSW Addressing User Manual (Geographical Names Board of NSW) and Georges River Council’s requirements, the street addresses for the subject development must be allocated as advised by Georges River Council.
Details indicating compliance with this condition must be shown on the plans lodged with any Construction Certificate for approval.
43. CC9.33 - Pre-Construction Dilapidation Report - Private Land - A professional engineer specialising in structural or geotechnical engineering shall prepare a Pre-Construction Dilapidation Report detailing the current structural condition of adjoining premises including but not limited to:
(a) All neighbouring buildings with a common boundary to the subject site
The report shall be prepared at the expense of the applicant and submitted to the satisfaction of the Certifying Authority prior to the issue of the Construction Certificate.
A copy of the pre-construction dilapidation report is to be provided to the adjoining properties (subject of the dilapidation report), a minimum of 5 working days prior to the commencement of work. Evidence confirming that a copy of the pre-construction dilapidation report was delivered to the adjoining properties must be provided to the PCA.
Should the owners of properties (or their agents) refuse access to carry out inspections, after being given reasonable written notice, this shall be reported to Council to obtain Council’s agreement to complete the report without access. Reasonable notice is a request for access in no sooner than 14 days between 8.00am-6.00pm.
Section E Prior to the Commencement of Work (Including Demolition & Excavation)
44. PREC10.1 - Demolition & Asbestos - The demolition work shall comply with the provisions of Australian Standard AS2601:2001 - Demolition of Structures, NSW Work Health & Safety Act 2011 and the NSW Work Health & Safety Regulation 2011. The work plans required by AS2601:2001 shall be accompanied by a written statement by a suitably qualified person that the proposals contained in the work plan comply with the safety requirements of the Standard. The work plans and the safety statement shall be submitted to the PCA prior to the commencement of works.
For demolition work which involves the removal of asbestos, the asbestos removal work must be carried out by a licensed asbestos removalist who is licensed to carry out the work in accordance with the NSW Work Health & Safety Act 2011 and the NSW Work Health & Safety Regulation 2011 unless specified in the Act and/or Regulation that a license is not required.
All demolition work including the removal of asbestos, shall be undertaken in accordance with the Demolition Code of Practice (NSW Work Cover July 2015)
Note: Copies of the Act, Regulation and Code of Practice can be downloaded free of charge from the SafeWork NSW website: www.SafeWork.nsw.gov.au.
45. PREC10.10 - Dial before your dig - The applicant shall contact “Dial Before You Dig on 1100” to obtain a Service Diagram prior to the issuing of the Construction Certificate. The sequence number obtained from “Dial Before You Dig” shall be forwarded to Council’s Engineers for their records.
46. PREC10.14 - Registered Surveyors Report - During Development Work - A report must be submitted to the PCA at each of the following applicable stages of construction:
(a) Set out before commencing excavation.
(b) Floor slabs or foundation wall, before formwork or commencing brickwork.
(c) Completion of Foundation Walls - Before any construction of flooring, detailing the location of the structure relative to adjacent boundaries and floor levels relative to the datum shown on the approved plans.
(d) Completion of Floor Slab Formwork - Before pouring of concrete/walls construction, detailing the location of the structure relative to adjacent boundaries and floor levels relative to the datum shown on the approved plans. In multi-storey buildings a further survey must be provided at each subsequent storey.
(e) Completion of any Roof Framing - Before roof covered detailing eaves/gutter setback from boundaries.
(f) Completion of all Work - Detailing the location of the structure (including eaves/gutters) relative to adjacent boundaries and its height relative to the datum shown on the approved plans. A final Check Survey must indicate the reduced level of the main ridge.
Work must not proceed beyond each stage until the PCA is satisfied that the height and location of the building is proceeding in accordance with the approved plans.
47. PREC10.15 - Utility Arrangements - Arrangements are to be made with utility authorities in respect to the services supplied by those authorities to the development. The cost associated with the provision or adjustment of services within the road and footway areas is to be at the applicant’s expense.
48. PREC10.2 - Demolition Notification Requirements - The following notification requirements apply to this consent:
(a) The developer /builder must notify adjoining residents five (5) working days prior to demolition. Such notification is to be a clearly written note giving the date demolition will commence, contact details of the developer/builder, licensed asbestos demolisher and the appropriate regulatory authority. Notification is to be placed in the letterbox of every premises (including every residential flat or unit, if any) either side and immediately at the rear of the demolition site.
(b) Five (5) working days prior to demolition, the developer/builder is to provide written notification to Council advising of the demolition date, details of the SafeWork licensed asbestos demolisher and the list of residents advised of the demolition.
(c) On demolition sites where buildings to be demolished contain asbestos, a standard commercially manufactured sign containing the words “DANGER ASBESTOS REMOVAL IN PROGRESS” measuring not less than 400mm x 300mm is to be erected in a prominent visible position (from street frontage) on the site. The sign is to be erected prior to demolition work commencing and is to remain in place until such time as all asbestos material has been removed from the site to an approved waste facility.
49. PREC10.3 - Demolition work involving asbestos removal - Work involving bonded asbestos removal work (of an area of more than 10 square metres) or friable asbestos removal work must be undertaken by a person who carries on a business of such removal work in accordance with a licence under clause 458 of the Work Health and Safety Regulation 2011.
50. PREC10.17 - Structural Engineers Details - Supporting Council road/footway - Prior to the commencement of work in connection with the excavation of the site associated with the basement car park, structural engineer’s details relating to the method of supporting the excavation must be submitted.
51. PREC10.11 - Dilapidation Report on Public Land - Major Development Only - Prior to the commencement of works (including demolition and excavation), a dilapidation report must be prepared for the Council infrastructure adjoining the development site, including:
The report must include the following:
(a) Photographs showing the existing condition of the road pavement fronting the site,
(b) Photographs showing the existing condition of the kerb and gutter fronting the site,
(c) Photographs showing the existing condition of the footpath pavement fronting the site,
(d) Photographs showing the existing condition of any retaining walls within the footway or road, and
(e) Closed circuit television/video inspection (in DVD format) of public stormwater drainage systems fronting, adjoining or within the site, and
(f) The full name and signature of the structural engineer.
(g) The Dilapidation Report must be prepared by a qualified structural engineer. The report must be provided to the PCA and a copy provided to the Council.
The Dilapidation Report must be prepared by a professional engineer. The report must be provided to the PCA and a copy provided to the Council.
The report is to be supplied in electronic format in Word or PDF. Photographs are to be in colour, digital and date stamped.
Note: Council will use this report to determine whether to refund the damage deposit after the completion of works.
Section F During Construction
52. CON11.1 - Site sign - Soil & Erosion Control Measures - Prior to the commencement of works (including demolition and excavation), a durable site sign, issued by Council in conjunction with this consent, must be erected in a prominent location on site. The site sign warns of the penalties which apply to pollution, storing materials on road or footpath and breaches of the conditions relating to erosion and sediment controls. The sign must remain in a prominent location on site up until the completion of all site and building works.
53. CON11.12 - Cost of work to be borne by the applicant - The applicant shall bear the cost of all works associated with the construction of the development that occurs on Council property. Care must be taken to protect Council's roads, including the made footway, kerbs, etc., and, where plant and vehicles enter the site, the footway shall be protected against damage by deep-sectioned timber members laid crosswise, held together by hoop iron straps and chamfered at their ends. This construction shall be maintained in a state of good repair and condition throughout the course of construction.
54. CON11.13 - Obstruction of Road or Footpath - The use of the road or footpath for the storage of any building materials, waste materials, temporary toilets, waste or skip bins, or any other matter is not permitted unless separately approved by Council under Section 138 of the Roads Act 1993 and/or under Section 68 of the Local Government Act 1993. Penalty infringement Notices may be issued for any offences and severe penalties apply.
55. CON11.2 - Hours of construction for demolition and building work - Any work activity or activity associated with the development consent that requires the use of any tools (including hand tools) or any power operated plant and machinery that creates noise on or adjacent to the site shall not be performed, or permitted to be performed, except between the hours of 7.00 am to 5.00 pm, Monday to Saturday inclusive. No work or ancillary activity is permitted on Sundays, or Public Holidays.
Note: A penalty infringement notice may be issued for any offence.
56. CON11.21 - Waste Management Facility - All materials removed from the site as a result of demolition, site clearing, site preparation and, or excavation shall be disposed of at a suitable Waste Management Facility. No vegetation, article, building material, waste or the like shall be ignited or burnt.
Copies of all receipts for the disposal, or processing of all such materials shall be submitted to the PCA and Council, where Council is not the Principal Certifying Authority.
57. CON11.24 - Excavation works near tree to be retained - Excavation around the tree/s to be retained on site or the adjoining properties shall be supervised by the Project Arborist to ensure that the root system will not be adversely affected.
Where the Tree Protection Zone of trees on site or adjoining sites become compromised by any excavation works, the Project Arborist shall be consulted to establish the position of any major roots and determine the necessary measures to protect these roots. The recommendations of the Arborist shall be submitted to Council prior to any further demolition or construction works taking place.
58. CON11.3 - Ground levels and retaining walls - The ground levels of the site shall not be excavated, raised or filled, or retaining walls constructed on the allotment boundary, except where indicated on approved plans or approved by Council.
59. CON11.18 - Building - Structural Certificate During Construction - The proposed building must be constructed in accordance with details designed and certified by the practising qualified structural engineer. All structural works associated with the foundations, piers, footings and slabs for the proposed building must be inspected and structurally certified for compliance by an independent practising geotechnical and structural engineer. In addition a Compliance or Structural Certificate, to the effect that the building works have been carried in accordance with the structural design, must be submitted to the Principal Certifying Authority at each stage of Construction or prior issue of the Occupation Certificate.
60. CON11.11 Physical connection of Stormwater to site - No work is permitted to proceed above the ground floor slab level of the building until there is physical connection of the approved stormwater drainage system from the land the subject of this consent to Council's in.
Section G Prior to the issue of the Occupation Certificate
61. OCC12.17 - Restriction to User and Positive Covenant for On-Site Detention Facility - A Restriction on Use of the Land and Positive Covenant shall be created and registered on the title of the property, which places the responsibility for the maintenance of the on-site stormwater management system on the owners of the land. The terms of the instrument are to be in accordance with Council’s standard terms and restrictions which are as follows;
Restrictions on Use of Land
The registered proprietor shall not make or permit or suffer the making of any alterations to any on-site stormwater management system which is, or shall be, constructed on the lot(s) burdened without the prior consent in writing of Georges River Council. The expression “on-site stormwater management system” shall include all ancillary gutters, pipes, drains, walls, kerbs, pits, grates, tanks, chambers, basins and surfaces designed to manage stormwater quantity or quality including the temporary detention or permanent retention of stormwater storages. Any on-site stormwater management system constructed on the lot(s) burdened is hereafter referred to as “the system”.
Name of Authority having the power to release, vary or modify the Restriction referred to is Georges River Council.
Positive Covenants
1. The registered proprietor of the lot(s) hereby burdened will in respect of the system:
a) keep the system clean and free from silt, rubbish and debris
b) maintain and repair at the sole expense of the registered proprietors the whole of the system so that if functions in a safe and efficient manner
c) permit the Council or its authorised agents from time to time and upon giving reasonable notice (but at any time and without notice in the case of an emergency) to enter and inspect the land for the compliance with the requirements of this covenant
d) comply with the terms of any written notice issued by the Council in respect of the requirements of this covenant within the time stated in the notice.
2. Pursuant to Section 88F(3) of the Conveyancing Act 1919 the Council shall have the following additional powers:
a) in the event that the registered proprietor fails to comply with the terms of any written notice issued by the Council as set out above the Council or its authorised agents may enter the land with all necessary materials and equipment and carry out any work which the Council in its discretion considers reasonable to comply with the said notice referred to in part 1(d) above
b) the Council may recover from the registered proprietor in a Court of competent jurisdiction:
i. any expense reasonably incurred by it in exercising its powers under subparagraph (i) hereof. Such expense shall include reasonable wages for the Council’s employees engaged in effecting the work referred to in (i) above, supervising and administering the said work together with costs, reasonably estimated by the Council, for the use of materials, machinery, tools and equipment in conjunction with the said work.
ii. legal costs on an indemnity basis for issue of the said notices and recovery of the said costs and expenses together with the costs and expenses of registration of a covenant charge pursuant to section 88F of the Act or providing any certificate required pursuant to section 88G of the Act or obtaining any injunction pursuant to section 88H of the Act. Name of Authority having the power to release vary or modify the Positive Covenant referred to is Georges River Council.
62. OCC12.18 - Maintenance Schedule - On-site Stormwater Management - A Maintenance Schedule for the proposed on-site stormwater management measures is to be prepared and submitted to Council. The Maintenance Schedule shall outline the required maintenance works, how and when these will be done and who will be carrying out these maintenance works.
63. OCC12.19 - Works as Executed and Certification of Stormwater works - Prior to the issue of an Occupation Certificate, the PCA must ensure that the stormwater drainage system has been constructed in accordance with the approved design and relevant Australian Standards. A works-as-executed drainage plan and certification must be forwarded to the PCA and Council, from a professional engineer specialising in hydraulic engineering.
This Plan and Certification shall confirm that the design and construction of the stormwater drainage system satisfies the conditions of development consent and the Construction Certificate stormwater design details approved by the PCA.
The works-as-executed drainage plan must be prepared by a professional engineer specialising in hydraulic engineering in conjunction with a Registered Surveyor and must include the following details (as applicable):
(a) The location of any detention basin/s with finished surface levels;
(b) Finished site contours at 0.2 metre intervals (if applicable)
(c) Volume of storage available in any detention areas;
(d) The location, diameter, gradient and material (i.e. PVC, RC etc.) of all stormwater pipes;
(e) The orifice size/s (if applicable);
(f) Details of any infiltration/absorption systems; and (if applicable);
(g) Details of any pumping systems installed (including wet well volumes) (if applicable).
64. OCC12.28 - Vehicular crossing & Frontage work - Major development - The following road frontage works shall be constructed in accordance with Council's Specification for Vehicular Crossings and Associated Works together with the Vehicular Crossing Approval issued by Council’s Engineering Services Division:
(a) Construct a footpath for the full length of the frontage of the site in Lime Kiln Rd and Forest Rd as required by Council in accordance with Council’s Specifications for footpaths.
(b) Construct the vehicular crossing in accordance with Council’s Specifications for vehicular crossings.
(c) Construct a new 150mm high concrete kerb with 450mm wide gutter for the full frontage(s) of the site in in accordance with Council’s Specifications for kerb and guttering.
(d) Any existing vehicular crossing and/or laybacks which are redundant must be removed. The kerb and gutter, any other footpath and turf areas shall be restored at the expense of the applicant and in accordance with Council’s Specification for Vehicular Crossings and Associated Works.
A private contractor shall carry out the above work, at the expense of the applicant and in accordance with Council’s Specification for Vehicular Crossings and Associated Works.
The driveway and road frontage works are to be completed before the issue of the Occupation Certificate.
65. OCC12.32 - Stormwater drainage works - Works As Executed - Prior to the issue of the Occupation Certificate, storm water drainage works are to be certified by a professional engineer specialising in hydraulic engineering, with Works-As-Executed drawings supplied to Council detailing:
(a) Compliance with conditions of development consent relating to stormwater;
(b) The structural adequacy of the On-Site Detention system (OSD);
(c) That the works have been constructed in accordance with the approved design and will provide the detention storage volume and attenuation in accordance with the submitted calculations;
(d) Pipe invert levels and surface levels to Australian Height Datum;
(e) Contours indicating the direction in which water will flow over land should the capacity of the pit be exceeded in a storm event exceeding design limits.
Council’s Engineering Services section must advise in writing that they are satisfied with the Works-As-Executed prior to the issue of an Occupation Certificate.
66. OCC12.31 - Dilapidation Report on Public Land for Major Development Only - Upon completion of works, a follow up dilapidation report must be prepared for the items of Council infrastructure adjoining the development site including:
The dilapidation report must be prepared by a professional engineer specialising in structural engineering, and include:
(a) Photographs showing the condition of the road pavement fronting the site
(b) Photographs showing the condition of the kerb and gutter fronting the site
(c) Photographs showing the condition of the footway including footpath pavement fronting the site
(d) Photographs showing the condition of retaining walls within the footway or road
(e) Closed circuit television/video inspection (in DVD format) of public stormwater drainage systems fronting, adjoining or within the site, and
(f) The full name and signature of the professional engineer.
The report must be provided to the PCA and a copy provided to the Council. The reports are to be supplied in electronic format in Word or PDF. Photographs are to be in colour, digital and date stamped.
NOTE: Council will use this report to determine whether or not to refund the damage deposit.
Council’s Engineering Services Division must advise in writing that the works have been completed to their satisfaction prior to the issue of an Occupation Certificate.
67. OCC12.7 - Post Construction Dilapidation report - Private Land - At the completion of the construction works, a suitably qualified person is to be engaged to prepare a post-construction dilapidation report. This report is to ascertain whether the construction works associated with the subject development created any structural damage to the following adjoining premises:
The report is to be prepared at the expense of the applicant and submitted to the PCA prior to the issue of the Occupation Certificate. In ascertaining whether adverse structural damaged has occurred to the adjoining premises, the PCA, must compare the post-construction dilapidation report with the pre-construction dilapidation report required by conditions in this consent.
Evidence confirming that a copy of the post-construction dilapidation report was delivered to the adjoining properties subject of the dilapidation report must be provided to the PCA prior to the issue of any Occupation Certificate.
68. OCC12.60 - Allocation of street addresses - Prior to issue of an Occupation Certificate, All house numbering are to be allocated in accordance with AS/NZS 4819:2011 Rural and Urban Addressing & the NSW Addressing User Manual (Geographical Names Board of NSW) and Georges River Council’s requirements. Council must be contacted in relation to all specific requirements for street numbering.
69. OCC12.34 - Fire Safety Certificate before Occupation or Use - In accordance with Clause 153 of the Environmental Planning and Assessment Regulation 2000, on completion of building works and prior to the issue of an Occupation Certificate, the owner must cause the issue of a Final Fire Safety Certificate in accordance with Clause 170 of the aforesaid Regulation. The Fire Safety Certificate must be in the form or to the effect of Clause 174 of the Environmental Planning and Assessment Regulation, 2000. In addition, in relation to each essential fire or other safety measure implemented in the building or on the land on which the building is situated, such a Certificate is to state:
(a) That the measure has been assessed by a person (chosen by the owner of the building) who is properly qualified to do so.
(b) That as at the date of the assessment the measure was found to be capable of functioning at a standard not less than that required by the attached Schedule.
A copy of the certificate is to be given by the applicant to the Commissioner of Fire & Rescue NSW and a further copy is to be displayed in a frame and fixed to a wall inside the building's main entrance.
70. OCC12.38 - Building - Structural Certificates - The proposed structure must be constructed in accordance with details designed and certified by the practising qualified structural engineer. In addition, Compliance or Structural Certificates, to the effect that the building works have been carried in accordance with the structural design, must be submitted to the Principal Certifying Authority prior issue of the Occupation Certificate.
71. OCC12.35 - Slip Resistance - At completion of work an in-situ (on-site) test, in wet and dry conditions, must be carried out on the pedestrian floor surfaces used in the foyers, public corridors/hallways, stairs and ramps as well as the floor surfaces in wet rooms in any residential units to ascertain the actual slip resistance of such surfaces taking into consideration the effects of grout, the gradients of the surface and changes from one material to another. The in-situ test must be carried out in accordance with AS/NZS 4663:2002. Proof of compliance must be submitted with the application for the Occupation Certificate for approval.
72. OCC12.4 - BASIX Certificate - All energy efficiency measures as detailed in the approved BASIX Certificate in the plans approved with the Development Consent, must be implemented before issue of any Occupation Certificate.
73. OCC12.5 - BASIX Compliance Certificate - A Compliance Certificate must be provided to the PCA regarding the implementation of all energy efficiency measures as detailed in the approved BASIX Certificate before any Occupation Certificate is issued.
74. OCC12.59 - Electricity Supply - Evidence shall be provided demonstrating that the development has been connected to the Ausgrid, if required.
75. OCC12.6 - Completion of Landscape Works - All landscape works must be completed before the issue of the Final Occupation Certificate.
76. OCC12.8 - Allocation of car parking spaces - Car parking associated with the development is to be allocated as follows:
(a) Residential dwellings: 16 car spaces (1 car space/1 or 2 bedroom unit, 2 car spaces per 3 or more bedroom unit)
(b) Accessible car spaces: 1 accessible car space per adaptable dwelling
(c) Residential visitors: 4 car spaces which shall remain as common property.
(d) Carwash bay: 1 car wash bay (which can be within a visitor’s space)
(e) Retail: 9 car spaces
(f) 1 loading/unloading area
(g) Bicycle spaces: 14 spaces
77. CC12.10 - Major Development - Internal driveways and parking spaces are to be adequately paved with concrete or bitumen, or interlocking pavers to provide a dust-free surface. All car parking spaces are to be line marked in accordance with AS1742, ‘Australian Standard Manual of Uniform Traffic Control Devices’ and the relevant guidelines published by the RMS.
78. OCC12.11 - SEPP 65 Design Verification Statement - The PCA must not issue an Occupation Certificate to authorise a person to commence occupation of the residential flat development unless the PCA has received a design verification from Peter Israel, being a statement in which the qualified designer verifies that the residential flat development achieves the design quality of the development as shown in the plans and specifications in respect of which the construction certificate was issued, having regard to the design quality principles set out in Part 2 of State Environmental Planning Policy No 65Design Quality of Residential Flat Development.
79. OCC12.41 - Acoustic Compliance - General Operation of Premises - The proposed use of the premises and the operation of all plant and equipment shall not give rise to an ‘offensive noise’ as defined in the Protection of the Environment Operations Act 1997 (as amended) and Regulations.
A suitably qualified person shall certify that the operation of the plant equipment shall not give rise to sound pressure level at any affected premises that exceeds the background LA90, 15 min noise level, measured in the absence of the noise sources under consideration by more than 5dB. The source noise level shall be assessed as an LAeq, 15 min in accordance with the NSW Environment Protection Authority’s “NSW industrial Noise Policy.
Certification must be submitted to the PCA prior to the issue of any Occupation Certificate.
80. OCC12.45 - Certification - Air handling systems (including water-cooling system, hot-water systems and warm-water systems) - Certification by a suitably qualified person engineer ‘2012 must be submitted to the PCA prior to the issue of any occupation certificate verifying that the air handling system has been installed in accordance with:
(a) Public Health Act 2010 (as amended)
(b) Public Health Regulation 2012 (as amended)
(c) AS/NZS 3666.1:2011 Air-handling and water systems of buildings -Microbial control -Design, installation and commissioning
Section H Operational Conditions (Ongoing)
81. ONG14.28 - Activities and storage of goods outside buildings - There shall be no activities including storing or depositing of any goods or maintenance to any machinery external to the building with the exception of waste receptacles.
82. ONG14.12 - Noise Control - The use of the premises must not give rise to the transmission of offensive noise to any place of different occupancy. Offensive noise is defined in the Protection of the Environment Operations Act 1997 (as amended).
83. ONG14.16 - Operation of Air Handling Systems - The occupier must operate air handling systems in compliance with Part 2 of the Public Health Regulation 2012 (as amended).
Where there is any change in the air handling system the occupier must register the changes in the regulated systems with Council.
Water cooling systems must be certified annually by a competent person as being an effective process of disinfection under the range of operating conditions that could ordinarily be expected.
84. ONG14.25 - Outdoor Lighting - To avoid annoyance to the occupants of adjoining premises or glare to motorist on nearby roads, outdoor lighting must comply with AS 4282-1997: Control of the obtrusive effects of outdoor lighting.
85. ONG14.14 - Final Acoustic Report – Verification of Noise report - Within three months from the issue of an Occupation Certificate, an acoustic assessment is to be carried out by an appropriately qualified acoustic consultant, in accordance with the EPA's Industrial Noise Policy and submitted to Council for consideration. This report should include but not be limited to, details verifying that the noise control measures as recommended in the acoustic report submitted by Vipac Engineers and Scientists Ltd, titled “Development Application Acoustic Assessment report No. 20E-17-0115-TRP-458521-2 dated 19 September 2017”, are effective in attenuating noise to an acceptable noise level and that the use is not likely to give rise to ‘offensive noise’ as defined under the provision of the Protection of the Environment Operation Act 1997 (as amended).
86. ONG14.26 - Lighting – General Nuisance - Any lighting on the site shall be designed so as not to cause a nuisance to other residences in the area or to motorists on nearby roads and to ensure no adverse impact on the amenity of the surrounding area by light overspill or glare. Flashing, moving or intermittent lights or signs are prohibited.
87. ONG14.27 - Amenity of the neighbourhood - The implementation of this development shall not adversely affect the amenity of the neighbourhood or interfere unreasonably with the comfort or repose of a person who is outside the premises by reason of the emission or discharge of noise, fumes, vapour, odour, steam, soot, dust, waste water, waste products, grit, oil or other harmful products.
88. ONG14.5 - Maintenance of Landscaping - All trees and plants forming part of the landscaping must be maintained. Maintenance includes watering, weeding, removal of rubbish from tree bases, fertilizing, pest and disease control, replacement of dead or dying plants and any other operations required to maintain healthy trees, plants and turfed areas. The maintenance schedule shown on the approved landscape plan is to be undertaken in accordance with the details of that schedule. On the completion of the 12 month maintenance period, the landscape works shall be inspected and at the satisfaction of the landscape architect (PDS Paterson Design Studio), the responsibility will be signed over to the client.
89. ONG14.67 - Annual Fire Safety Statement - The owner of the building premises must ensure the Council is given an annual fire safety statement in relation to each essential fire safety measure implemented in the building. The annual fire safety statement must be given:
(a) Within 12 months after the date on which the fire safety certificate was received.
(b) Subsequent annual fire safety statements are to be given within 12 months after the last such statement was given.
(c) An annual fire safety statement is to be given in or to the effect of Clause 181 of the Environmental Planning and Assessment Regulation 2000.
(d) A copy of the statement is to be given to the Commissioner of Fire & Rescue NSW, and a further copy is to be prominently displayed in the building.
Section I Operational Requirements Under the Environmental Planning & Assessment Act 1979
90. OPER15.1 - Requirement for a Construction Certificate - The erection of a building must not commence until a Construction Certificate has been issued by the consent authority, the Council (if the Council is not the consent authority) or an accredited certifier.
An application form for a Construction Certificate is attached for your convenience.
91. OPER15.2 - Appointment of a Principal Certifying Authority - The erection of a building must not commence until the beneficiary of the development consent has:
(a) appointed a Principal Certifying Authority (PCA) for the building work; and
(b) if relevant, advised the PCA that the work will be undertaken as an Owner-Builder.
If the work is not going to be undertaken by an Owner-Builder, then the beneficiary of the consent must:
(a) appoint a Principal Contractor to undertake the building work. If residential building work (within the meaning of the Home Building Act 1989) is to be undertaken, the Principal Contractor must be a holder of a contractor licence; and
(b) notify the PCA of the details of any such appointment; and
(c) notify the Principal Contractor of any critical stage inspections or other inspections that are required to be carried out in respect of the building work.
An Information Pack is attached for your convenience should you wish to appoint Georges River Council as the Principal Certifying Authority for your development.
92. OPER15.3 - Notification of Critical Stage Inspections - No later than two (2) days before the building work commences, the PCA must notify:
(a) the consent authority and the Council (if not the consent authority) of his or her appointment; and
(b) the beneficiary of the development consent of the critical stage inspections and other inspections that are to be carried out with respect to the building work.
93. OPER15.4 - Notice of Commencement - The beneficiary of the development consent must give at least two (2) days notice to the Council and the PCA of their intention to commence the erection of a building.
A Notice of Commencement Form is attached for your convenience.
94. OPER15.7 - Critical Stage Inspections - The last critical stage inspection must be undertaken by the Principal Certifying Authority. The critical stage inspections required to be carried out vary according to Building Class under the Building Code of Australia and are listed in Clause 162A of the Environmental Planning and Assessment Regulation 2000.
95. OPER15.8 - Notice to be given prior to critical stage inspections - The principal contractor for a building site, or the owner-builder, must notify the principal certifying authority at least 48 hours before each required inspection needs to be carried out.
Where Georges River Council has been appointed PCA, forty eight (48) hours notice in writing, or alternatively twenty four (24) hours notice by facsimile or telephone, must be given to when specified work requiring inspection has been completed.
96. OPER15.9 - Occupation Certificate - A person must not commence occupation or use of the whole or any part of a new building unless an Occupation Certificate has been issued in relation to the building or part.
Only the Principal Certifying Authority appointed for the building work can issue the Occupation Certificate.
An Occupation Certificate Application Form is attached for your convenience.
Section J Prescribed Conditions
97. PRE16.1 - Clause 97A – BASIX Commitments - This Clause requires the fulfilment of all BASIX Commitments as detailed in the BASIX Certificate to which the development relates.
98. PRE16.2 - Clause 98 – Building Code of Australia & Home Building Act 1989 - Requires all building work to be carried out in accordance with the Building Code of Australia. In the case of residential building work to which the Home Building Act 1989 relates, there is a requirement for a contract of insurance to be in force before any work commences.
99. PRE16.3 - Clause 98A – Erection of Signs - Requires the erection of signs on site and outlines the details which are to be included on the sign. The sign must be displayed in a prominent position on site and include the name and contact details of the Principal Certifying Authority and the Principal Contractor.
100. PRE16.4 - Clause 98B – Home Building Act 1989 - If the development involves residential building work under the Home Building Act 1989, no work is permitted to commence unless certain details are provided in writing to Council. The name and licence/permit number of the Principal Contractor or Owner Builder and the name of the Insurer by which work is insured under Part 6 of the Home Building Act 1989.
101. PRE16.7 - Clause 98E – Protection & support of adjoining premises - If the development involves excavation that extends below the level of the base of the footings of a building on adjoining land, this prescribed condition requires the person who benefits from the development consent to protect and support the adjoining premises and where necessary underpin the adjoining premises to prevent any damage.
END CONDITIONS
NOTES/ADVICES
102. Review of Determination - Section 82A of the Environmental Planning and Assessment Act confers on an applicant who is dissatisfied with the determination of the application the right to lodge an application with Council for a review of such determination. Any such review must however be completed within 6 months from its determination. Should a review be contemplated sufficient time should be allowed for Council to undertake public notification and other processes involved in the review of the determination.
Note: review provisions do not apply to Complying Development, Designated Development, State Significant Development, Integrated Development or any application determined by the Sydney South Planning Panel or the Land & Environment Court.
103. Appeal Rights - Division 8 (Appeals and Related matters) Part 4 of the Environmental Planning and Assessment Act 1979 confers on an applicant who is dissatisfied with the determination of the application a right of appeal to the Land and Environment Court of New South Wales.
104. Lapsing of Consent - This consent will lapse unless the development is physically commenced within 5 years from the Date of Operation of this consent, in accordance with Section 95 of the Environmental Planning and Assessment Act 1979 as amended.
105. ADV17.19 - Noise - Noise related conditions - Council will generally enforce noise related conditions in accordance with the Noise Guide for Local Government (http://www.environment.nsw.gov.au/noise/nglg.htm) and the Industrial Noise Guidelines (http://www.environment.nsw.gov.au/noise/industrial.htm) publish by the Department of Environment and Conservation. Other state government authorities also regulate the Protection of the Environment Operations Act 1997.
Useful links relating to Noise:
(a) Community Justice Centres - free mediation service provided by the NSW Government (www.cjc.nsw.gov.au).
(b) Department of Environment and Conservation NSW, Noise Policy Section web page (www.environment.nsw.gov.au/noise).
(c) New South Wales Government Legislation home page for access to all NSW legislation, including the Protection of the Environment Operations Act 1997 and the Protection of the Environment Noise Control Regulation 2000 (www.legislation.nsw.gov.au).
(d) Australian Acoustical Society - professional society of noise-related professionals (www.acoustics.asn.au/index.php <http://www.acoustics.asn.au/index.php>).
(e) Association of Australian Acoustical Consultants - professional society of noise related professionals (www.aaac.org.au).
(f) Department of Gaming and Racing - (www.dgr.nsw.gov.au).
106. ADV17.10 - Council as PCA - Compliance with the BCA - Should the Council be appointed as the Principal Certifying Authority in determining the Construction Certificate, the building must comply with all the applicable deemed to satisfy provision of the BCA. However, if an alternative solution is proposed it must comply with the performance requirements of the BCA, in which case, the alternative solution, prepared by an appropriately qualified fire consultant, accredited and having specialist qualifications in fire engineering, must justifying the non-compliances with a detailed report, suitable evidence and expert judgement. Council will also require if deemed necessary, for the alternative solution to undergo an independent peer review by either the CSIRO or other accredited organisation. In these circumstances, the applicant must pay all costs for the independent review.
107. ADV17.11 - Energy Efficiency Provisions - Should Council be appointed as the Principal Certifying Authority, a report prepared and endorsed by an Energy Efficiency Engineer or other suitably qualified person must be submitted, detailing the measures that must be implemented in the building to comply with Section J of the BCA. The proposed measures and feature of the building that facilitate the efficient use of energy must be identified and detailed on the architectural plans. At completion of the building and before the issue of an Occupation Certificate, a certificate certifying that the building has been erected to comply with the energy efficiency provisions must be submitted to the Principal Certifying Authority.
108. ADV17.12 - Compliance with Access, Mobility and AS4299 - Adaptable Housing - Should the Council be appointment as the PCA, the Construction Certificate Application must be accompanied by detailed working plans and a report or a Certificate of Compliance from an Accredited Access Consultant certifying that the building design and access to the adaptable units complies with Council’s DCP and AS 4299 Adaptable Housing.
109. ADV17.9 - Council as PCA - Total Conformity with BCA - Should the Council be appointed as the Principal Certifying Authority, the Construction Certificate Application must be accompanied by the following details, with plans prepared and certified by an appropriately qualified person demonstrating compliance with the BCA:
· Mechanical ventilation to bathroom, laundry and basement areas not afforded natural ventilation.
· Provision of natural light to all habitable areas.
· Fire-fighting services and equipment including hydrant and booster assembly systems, sprinkler and valve room systems, hose reels, portable fire extinguishers, smoke hazard management systems and sound & warning systems.
· Emergency lighting and exit signs throughout, including terrace areas, lobby and basement areas.
· Construction of all fire (smoke) doors including warning and operational signage to required exit and exit door areas.
· Egress, travel distance and the discharge from an exit including the swing of exit doors.
· The protection of openings including spandrel separation.
· Fire compartmentation and fire wall separation details including all stairway, lift and service shaft areas.
· Protection of openings including paths of travel from fire isolated exists
· Re-entry facilities from fire isolated exit stairways.
· Sound transmission and insulation details.
· Window schedule is to include the protection of openable windows.
· The location of sanitary facilities for employees in accordance with Table F2.1
In this regard, detailed construction plans and specifications that demonstrate compliance with the above requirements of the BCA must be submitted to the Principal Certifying Authority with the Construction Certificate Application. Should there be any non-compliance, an alternative method of fire protection and structural capacity must be submitted, with all supporting documents prepared by a suitably qualified person.
In the event that full compliance with the BCA cannot be achieved and the services of a fire engineer are obtained to determine an alternative method of compliance with the BCA, such report must be submitted to and endorsed by the Principal Certifying Authority prior to issue of the Construction Certificate.
110. ADV17.13 - Site Safety Fencing - Site fencing must be erected in accordance with SafeWork Guidelines, to exclude public access to the site throughout the demolition and/or construction work, except in the case of alterations to an occupied dwelling. The fencing must be erected before the commencement of any work and maintained throughout any demolition and construction work.
A demolition licence and/or a high risk work license may be required from SafeWork NSW (see www.SafeWork.nsw.gov.au).
111. ADV17.2 - Long Service Levy - The Long Service Corporation administers a scheme which provides a portable long service benefit for eligible workers in the building and construction industry in NSW. All benefits and requirements are determined by the Building and Construction Industry Long Service Payments Act 1986. More information about the scheme and the levy amount you are required to pay to satisfy a condition of your consent can be found at http://www.longservice.nsw.gov.au.
The required Long Service Levy payment can be direct to the Long Service Corporation via their web site https://online.longservice.nsw.gov.au/bci/levy. Payments can only be processed on-line for the full levy owing and where the value of work is between $25,000 and $6,000,000. Payments will be accepted for amounts up to $21,000, using either MasterCard or Visa.
112. ADV17.28 - Sydney Water Section 73 Certificates - The Section 73 Certificate must be a separate certificate that relates specifically to this development consent. For example, if the development consent relates to the subdivision of the land, a Section 73 Certificate for the construction of the building that is subject to a different development consent will not suffice.
113. ADV17.29 - Electricity Supply - This development may need a connection to the Ausgrid network which may require the network to be extended or its capacity augmented. You are advised to contact Ausgrid on 13 13 65 or www.ausgrid.com.au (Business and Commercial Services) for further details and information on lodging your application to connect to the network.
114. ADV17.30 - Development Engineering - Conditions relating to future Strata Subdivision of Buildings
No approval is expressed or implied for the subdivision of the subject building(s). For any future Strata subdivision, a separate Complying Development Certificate shall be approved by Council or an Accredited Certifier.
Prior to the issue of any Strata Certificate of the subject building(s) the following conditions shall be satisfied:
(a) Unit Numbering
Apartment type numbers shall be installed adjacent or to the front door of each unit.
The unit number shall coincide with the strata plan lot numbering.
(b) Car Parking Space Marking and Numbering
Each car space shall be line marked with paint and numbered in accordance with the strata plan lot numbering.
“Visitor Parking" signs shall be installed adjacent to any and all visitor car spaces prior to the issue of any Strata Certificate.
(c) Designation of Visitor Car Spaces on any Strata Plan
Any Visitor car spaces shall be designated on the final strata plan as "Visitor Parking - Common Property".
(d) Allocation of Car Parking Spaces, Storage Areas and Common Property on any Strata Plan
i. All car parking spaces shall be created as a part lot of the individual strata’s unit lot in any Strata Plan of the subject building.
ii. All storage areas shall be created as a part lot of the individual strata’s unit lot or a separate Utility Lot (if practical) in any Strata Plan of the subject building.
iii. The minimum number of parking spaces required to be allocated as a part lot to each individual strata’s unit lot shall be in accordance with the car parking requirements of Council's Development Control Plan and as required by the relative development consent for the building construction.
iv. No parking spaces shall be created as an individual strata allotment on any Strata Plan of the subject building unless these spaces are surplus to the minimum number of parking spaces required.
If preferred the surplus car spaces shall be permitted to be created as separate Utility Lots, (instead as a part lot of the individual strata’s unit lot), in accordance with section 39 of the Strata schemes (freehold development Act 1973.
The above requirements regarding car parking spaces and storage areas may only be varied with the conditions of a separate Development Application Approval for Strata Subdivision of the Building(s).
(e) On Site Detention Requirements
The location any on-site detention facility shall be shown on the strata plan and suitably denoted.
(f) Creation of Positive Covenant
A Positive Covenant shall be created over any on-site detention facility by an Instrument pursuant to Section 88B of the Conveyancing Act 1919, with the covenant including the following wording:
"It is the responsibility of the Owner's Corporation to keep the on-site detention facilities, together with any ancillary pumps, pipes, pits etc, clean at all times and maintained in an efficient working condition. The on-site detention facilities shall not be modified in any way without the prior approval of Georges River Council."
Georges River Council is to be nominated as the Authority to release, vary or modify this Covenant.
115. ADV17.5 - Security deposit administration & compliance fee - Under Section 97 (5) of the Local Government Act 1993, a security deposit (or part) if repaid to the person who provided it is to be repaid with any interest accrued on the deposit (or part) as a consequence of its investment.
Council must cover administration and other costs incurred in the investment of these monies. The current charge is $50.00 plus 2% of the bond amount per annum.
The interest rate applied to bonds is set at Council's business banking facility rate as at 1 July each year. Council will accept a bank guarantee in lieu of a deposit.
All interest earned on security deposits will be used to offset the Security Deposit Administration and Compliance fee. Where interest earned on a deposit is not sufficient to meet the fee, it will be accepted in full satisfaction of the fee.
116. ADV17.6 - Stormwater & Ancillary Works - Applications under Section 138 Roads Act and/or Section 68 Local Government Act 1993 - To apply for approval under Section 138 of the Roads Act 1993:
(a) Complete the Driveway Crossing on Council Road Reserve Application Form which can be downloaded from Georges River Council’s Website at www.georgesriver.nsw.gov.au.
(b) In the Application Form, quote the Development Consent No. (eg. DA2017/0491) and reference this condition number (e.g. Condition 23)
(c) Lodge the application form, together with the associated fees at Council’s Customer Service Centre, during business hours. Refer to Council’s adopted Fees and Charges for the administrative and inspection charges associated with Vehicular Crossing applications.
An approval for a new or modified vehicular crossing will contain the approved access and/or alignment levels which will be required to construct the crossing and/or footpath. Once approved, all work shall be carried out by a private contractor in accordance with Council’s specifications prior to the issue of an Occupation Certificate.
The developer must meet all costs of the extension, relocation or reconstruction of any part of Council’s drainage system (including design drawings and easements) required to carry out the approved development.
The preparation of all engineering drawings (site layout plans, cross sections, longitudinal sections, elevation views together with a hydraulic grade analysis) and specifications for the new storm water drainage system to be arranged by the applicant. The design plans must be lodged and approved by Council prior to the issue of a Construction Certificate.
NOTE: A minimum of four weeks should be allowed for assessment.
If you need more information, please contact the Senior Development Assessment Planner, below on 9330-6400 between 9.00am -11.00am business days.
|
Attachment ⇩1 |
FOREST ROAD GROUND FLOOR PLAN - 2 Lime Kiln Rd and 1041a 1041c Forest Rd Lugarno |
|
Attachment ⇩2 |
WEST + SOUTH ELEVATION - 2 Lime Kiln Rd and 1041a 1041c Forest Rd Lugarno |
|
Attachment ⇩3 |
EAST + NORTH ELEVATION - 2 Lime Kiln Rd and 1041a 1041c Forest Rd Lugarno |
|
Attachment ⇩4 |
SHADOW STUDY 2 - 2 Lime Kiln Rd and 1041a 1041c Forest Rd Lugarno |
|
Georges River Council - Georges River Local Planning Panel (LPP) - Thursday, 21 June 2018 LPP020-18 2-12 Lime Kiln Road and 1041a and 1041c Forest Road Lugarno [Appendix 2] WEST + SOUTH ELEVATION - 2 Lime Kiln Rd and 1041a 1041c Forest Rd Lugarno |
Page 81 |
|
Georges River Council – Local Planning Panel Thursday, 21 June 2018 |
Page 84 |
REPORT TO GEORGES RIVER COUNCIL
LPP MEETING OF Thursday, 21 June 2018
|
LPP Report No |
LPP021-18 |
Development Application No |
DA2016/0219 |
|
Site Address & Ward Locality |
279 - 281 Belmore Road Riverwood Peakhurst Ward |
||
|
Proposed Development |
Demolition of existing structures and construction of a mixed retail and residential development |
||
|
Owners |
Gibellina Investments Pty Ltd and Mrs F Signorelli |
||
|
Applicant |
Mr Michael Gheorgiou |
||
|
Planner/Architect |
Mr M Gheorgiou/LAVA and Andrew Andersons |
||
|
Date Of Lodgement |
15/08/2016 |
||
|
Submissions |
Nine (9) submissions |
||
|
Cost of Works |
$17,205,346 |
||
|
Local Planning Panel Criteria |
Development falls under the provisions of SEPP 65 |
||
|
List of all relevant s.4.15 matters (formerly s79C(1)(a)) |
Hurstville Local Environmental Plan 2012, Hurstville Development Control Plan No 1 - LGA Wide, State Environmental Planning Policy (Infrstructure) 2007, State Environmental Planning Policy No 55 - Remediation of Land, State Environmental Planning Policy No 65 - Design Quality of Residential Apartment Development, State Environmental Planning Policy (Building Sustainability Index: BASIX) 2004 |
||
|
List all documents submitted with this report for the Panel’s consideration |
Amended plans and information Submissions received to the application
|
||
|
Report prepared by |
Manager Development and Building |
||
|
|
Summary of matters for consideration under Section 4.15 Have all recommendations in relation to relevant s4.15 matters been summarised in the Executive Summary of the assessment report? |
Yes |
|
Legislative clauses requiring consent authority satisfaction Have relevant clauses in all applicable environmental planning instruments where the consent authority must be satisfied about a particular matter been listed, and relevant recommendations summarised, in the Executive Summary of the assessment report? |
Yes |
|
Clause 4.6 Exceptions to development standards If a written request for a contravention to a development standard (clause 4.6 of the LEP) has been received, has it been attached to the assessment report? |
Part of the assessment report |
|
Special Infrastructure Contributions Does the DA require Special Infrastructure Contributions conditions (under s7.24)? |
Not Applicable |
|
Conditions Have draft conditions been provided to the applicant for comment? |
No, the application is recommended to be deferred |
|
Site Plan
Aerial view of site |
EXECUTIVE SUMMARY
1. Council is in receipt of an application for the demolition of existing structures and construction of mixed retail and residential development containing ground floor retail area, 52 apartments and basement car parking area for 63 cars.
The subject site is zoned B2 Local Centre under Hurstville Local Environmental Plan 2012 and the proposal is a permissible form of development with Council’s consent.
Under the current planning controls, whilst the land is zoned, there is currently no floor space ratio and height controls for 281 Belmore Rd Riverwood due to the fact the land was formally a road.
The application was notified/advertised to residents/owners in accordance with Council’s requirements on two occasions, once when the application was lodged, and once when the amended proposal was submitted. In reply nine (9) submissions were received in reply. The issues raised in the submissions are discussed in the report.
Due to the site’s location adjoining the railway line, concurrence form Sydney Trains is required to the application. Sydney Trains has granted its concurrence in the form of deferred commencement conditions of consent which the applicant is required to satisfy prior to the consent being “activated”. If the proposal were to be approved these conditions could be included.
Following a detailed assessment of the proposal, the works proposed under DA2016/0219 is considered to be inconsistent with the existing built form and that envisaged under the height and FSR controls applying to the surrounding and nearby lands. Whilst it is acknowledged that 281 Belmore Road does not have an applicable height and FSR control under the LEP, the proposal is not considered to be adequately justified in its current urban context specifically in the absence of a urban form study for the Riverwood Town Centre which would set an overall vision and desired future character for the locality. Accordingly, the application is being recommended for deferral subject to the completion of the urban form study and the setting of a desired future character to the town centre.
DESCRIPTION OF THE PROPOSAL
2. The application is for the demolition of existing structures and construction of a 13 storey mixed retail and residential development containing ground floor retail area, 52 apartments and basement car parking area for 63 cars. In particular the proposed development will contain the following.
A summary of the proposed development is follows:
|
Number of apartments |
52 residential units, including; 11 x 1 Bedroom units 22 x 2 Bedroom units 19 x 3 Bedroom Units |
|
Retail floor area |
Two shops with a floor area of approximately 220sqm |
|
Number of car parking spaces |
63 spaces for the residential component No retail spaces provided Access to car spaces is via two hydraulic car lifts which are accessed off the rear of the site which is a right-of-carriageway |
|
Common Open Space Area |
On roof level with total area of 280sqm |
|
The proposal includes landscape upgrade works to the public domain immediately in front of the site on Belmore Road |
- Relocation of taxi rank to allow for greater public domain area - New planting and inclusion of additional street trees - New paving designed to be compliant with Council public domain policies and guidelines - New public seating - New shade devices
Image of proposed public domain works |

Perspective from Belmore Road

Perspective from railway line
DESCRIPTION OF THE SITE AND LOCALITY
3. The site is known as 279 and 281 Belmore Road, Riverwood. 279 Belmore Road contains two lots which contain a single storey commercial development. 281 Belmore Road contains one lot and comprises landscaped vacant land. The subject site has a combined frontage to Belmore Road of 33.335m, a rear boundary of 46.9m and a site area of 890.7sqm. To the rear of the site is a right-of-carriageway which gives vehicle access to the site and adjoining developments via Webb Street.
The site is within the Riverwood Town Centre. At the front of the site is a taxi rank, which is accessed from Belmore Road and a public domain area, to the north (side) and west (rear) of the site is the railway line and part of the Riverwood Plaza which wraps around Webb Street and to the railway line. To the east (side) of the site is a two storey building known as the Conca D’Oro function centre.
The area surrounding the subject site is characterised by primarily two storey commercial developments which are located within the Riverwood Town Centre. Further form the centre and on the opposite side of the railway line are residential developments.
It should be noted that 281 Belmore Road was formally a portion of road which was reclassified and sold in or around 2014/2015. As a result of this historical use, this portion of the development site is zoned, however does not have any applicable development standards i.e. height and FSR under the Local Environment Plan

Aerial view of site


Strategic Context
4. At the time this application was lodged work had commenced on the preparation/development of a priority precinct on the owned by the NSW Land & Housing Corporation to the north east of Riverwood Station.
The preliminary work undertaken by the NSW Department of Planning & Environment identified building heights of between 6-20 storeys.
In late 2016 Council commenced discussions with the NSW Department of Planning & Environment regarding expanding the study area to include Belmore Road and the Riverwood Town Centre and as a result work commenced on the boarder study in early 2017.
The preliminary built form proposed to the Belmore Road and Riverwood Centre was between 5-20 storeys, with the taller buildings located around Riverwood Station and Belmore Road.
The development proposed as part of the subject application is inclusive of a building adjacent to the railway line of 13 storeys, this proposal is consistent with the preliminary built form visions.
Notwithstanding, it needs to be noted that in early 2018 the NSW Department of Planning & Environment advised Council that the both the Riverwood Housing Estate and the extended study would be suspended and recommenced in April 2019. As such, at this point, there is no new strategic vision for the Riverwood Centre and this will not be finalised until the above detailed studies are completed.
Zoning
5. The subject site is zoned B2 Local Centre under the Hurstville Local Environmental Plan 2012 and the proposed development is permissible in the zone with the consent of Council.

Zoning map
BACKGROUND
6. The application was reported to the Design Review Panel on the 2 June 2016 as part of a PRE-DA application for a similar development on the subject site. The comments of the Design Review Panel were considered by the applicant in the preparation of the subject development application.
In lieu of the subject development application being reviewed again by the Design Review Panel, the application was sent to an independent urban designer, Geoff Baker of GBDC Pty Ltd for peer review of the Urban Design Study report submitted with the application (prepared by Architectus, dated August 2016). The purpose of this was to establish if the design and height of the proposed development was appropriate in the absence of height and floor space ratio controls for 281 Belmore Road Riverwood and its context within the Riverwood commercial centre and adjoining the railway line. In reply, Mr Baker undertook an assessment of the development against the relevant requirements and the existing and potential future character of the surrounding area. The recommendations and conclusions of his report were as follows:
§ If constructed, the proposal would constitute a major change in the built form of Riverwood town centre. At an FSR of 6.08:1 and a height of 16 storeys plus roof space it substantially exceeds any existing development in the vicinity.
§ Ideally, consideration of such a proposal would only occur after the completion of a comprehensive urban design and planning study of the whole town centre and nearby lands and a consequent zoning amendment. Given the general pressure for more intense development as a result of Sydney’s rapid growth and in light of current state government strategic planning directions, it appears possible, and even likely, that significant upzoning will occur in at least part of the town centre. However, this proposal reflects a unique situation, in that the larger portion of the site has no control for FSR or height. The proposal is compliant with current LEP provisions.
§ This report concludes, after a thorough review of current state strategic planning documents, that Riverwood town centre will likely need to accommodate apartment buildings in the foreseeable future. An increase in the intensity of development is logical where there is proximity to a metropolitan train station and it would add diversity to the local housing stock and bring economic benefits to local businesses.
§ A tower height of 10 to 12 storeys at this time on the subject site is considered appropriate for the following reasons:
o It would ensure that there are no material impacts on existing residential development (specifically no overlooking, no blocking of existing views and no overshadowing of current residential properties)
o The visual impact would not be unreasonable, bearing in mind the foregoing and looking again at the alternative and greater tower heights in the application’s urban design study. Also relevant in this regard is the slenderness of the proposed tower, which has only four apartments per floor
o The specific proposal includes worthwhile upgrades to the public realm adjacent to the site.
§ It is strongly recommended that all on-site parking is relocated below ground and that the floor space freed up is allocated to apartments. In addition, another floor can be added on Lots 8 and 9 whilst maintaining compliance with the maximum LEP height limit and FSR applicable to this part of the site. This strategy allows two floors to be removed from the tower without loss of residential floor space.
§ A review of the performance of the proposal against the objectives and guidelines of the Apartment Design Guide reveals that although the development performs outstandingly for solar access and well above minimum natural cross ventilation standards, there are some shortcomings. In particular, failure to meet ADG minimum room sizes and/or areas and balcony requirements is considered serious because these criteria are a key aspect of acceptable residential amenity.
In reply to the recommendations and conclusions of this report the applicant submitted a revised proposal for the development, which is the subject of this report. The applicant submitted:
In consideration of the above, the revised scheme has introduced a non-compliance in relation to height of the smaller building element, which was a result of implementing the recommendations proposed by Mr Baker. Other than this non-compliance the proposal aligns with Mr. Baker’s recommendations and is also supported by a review by Architectus demonstrating how the proposal achieves a suitable urban design outcome for the site.
Officer Comments: The comments of Council’s Urban Design Consultant are noted specifically the key points that ‘…the proposal would constitute a major change in the built form of Riverwood town centre.” And “Ideally, consideration of such a proposal would only occur after the completion of a comprehensive urban design and planning study of the whole town centre and nearby lands and a consequent zoning amendment.”
Whilst the remaining comments by the Urban Designer maybe appropriate for a development following an urban form study, at this point it is considered that the proposal is inconsistent with the existing built form and that envisaged under the height and FSR controls applying to the surrounding and nearby lands. Whilst it is acknowledged that 281 Belmore Road does not have an applicable height and FSR control under the LEP, the proposal is not considered to be adequately justified in its current urban context specifically in the absence of a urban lands study for the Riverwood Town Centre which would set an overall vision and desired future character for the locality. Accordingly, the application is being recommended for deferral subject to the completion of the urban form study and the setting of a desired future character to the town centre.
APPLICABLE PLANNING CONTROLS
PLANNING ASSESSMENT
Environmental Planning Instruments
Hurstville Local Environmental Plan 2012
7. The extent to which the proposed development complies with the Hurstville Local Environmental Plan 2012 (HLEP 2012) is detailed and discussed in the table below.
|
Clause |
Standard |
Proposed |
Complies |
|
1.2 – Aims of the Plan |
In accordance with Clause 1.2 (2) |
The development is consistent with the aims of the plan |
Yes |
|
1.4 - Definitions |
“Commercial premises” and “Shop top housing” |
The proposed development meets definitions |
Yes |
|
2.3 - Zone objectives and Land Use Table |
Meets objectives of B2 Local Centre zone
Development must be permissible with consent |
Development meets objectives
Is permissible development with consent |
Yes |
|
2.7 - Demolition |
Demolition is permissible with consent |
Demolition is proposed with this application |
Yes |
|
4.3 – Height of Buildings |
279 Belmore Rd: 18m height limit
281 Belmore Rd: No height identified |
279 Belmore Rd: 18.5m on eastern elevation and 21m on western elevation
281 Belmore Rd: 45.5m |
No (1), for 279 Belmore Rd
Not applicable |
|
4.4 – Floor Space Ratio |
279 Belmore Rd: 2:1 maximum
281 Belmore Rd: No floor space ratio identified |
279 Belmore Rd: 2.8:1
281 Belmore Rd: 3.02:1
Overall FSR: 5.82:1 for the entire site |
No (2) for 279 Belmore Rd
Not applicable |
|
4.4A – Exceptions to Floor Space Ratios for Buildings on Land in Certain Zones |
Development consent must not be granted for development on land in zone B1 Neighbourhood Centre or zone B2 Local Centre unless the non-residential floor space ratio is at least 0.3:1 |
0.246:1 with opportunity to expand retail floor area to 0.31:1
|
No (3) |
|
5.9 – Preservation of Trees or Vegetation |
Trees to be removed are specified in DCP1 |
The site contains no trees. Planting however will be provided to the proposed roof top communal open space area and to the front of the site where appropriate |
Yes |
|
6.7 – Essential Services |
The following services that are essential for the development shall be available or that adequate arrangements must be made available when required:
-Supply of water, electricity and disposal and management of sewerage
-Stormwater drainage or on-site conservation
-Suitable vehicular access |
Adequate facilities for the supply of water and for the removal of sewage available to this land
Stormwater can drain from the site via gravity to the street.
New driveway crossing to the site from the rear right-of-way (standard conditions for the submission of separate vehicular crossing applications and driveway design) |
Yes |
(1) Height of Buildings and (2) Floor Space Ratio
8. The proposed development seeks a variation to the development standard relating to height and floor space ratio as detailed in the table above. A variation to the height and floor space ratio can be considered under Clause 4.6 – Exceptions to Development Standards of the HLEP2012. In assessing the variation, the questions identified in Clause 4.6 have to be considered as follows:
4.6 Exceptions to development standards
(1) The objectives of this clause are as follows:
(a) to provide an appropriate degree of flexibility in applying certain development standards to particular development,
(b) to achieve better outcomes for and from development by allowing flexibility in particular circumstances.
Applicant’s comment: The proposed development is subject to a maximum building height of 18m on part of the site, specifically 279 Belmore Road. The taller tower element on part of the site, known as 281 Belmore Road is not subject to any development standards. The proposed built form on 279 Belmore Road achieves the following heights:
· 18.5m on the eastern elevation; and
· 21m on the western elevation
In relation to overshadowing, the shadow analysis diagrams enclosed with the architectural design plans show that the proposal would not have an adverse impact on the adjoining lands given:
· the location of the site in the town centre;
· type of developments located in the centre, which includes mainly commercial properties; and
· the separation between the buildings, which allow sunlight to penetrate between the buildings.
In consideration of the location of the proposed built form that exceeds the height limit, as well as the degree of exceedance and in review of likely impacts it is considered that the exceedance is completely acceptable for the site.
With respect to density the proposed part of the site, located at 279 Belmore Road is subject to a floor space ratio development standard, which is 2:1. The proposal seeks a density of 2.8:1 for this part of the site. Notwithstanding the non-compliance, the proposal is considered to be acceptable as it achieves a high quality urban design outcome for the site. Further, the proposal does not generate any adverse environmental impacts as a result of the non-complaint density.
It is believed that the proposal does meet the above objectives as it offers a development that does not generate any significant environmental impacts. The proposal achieves a good quality design with excellent outcomes for the site.
Comment: Whilst the proposal may not cause the environmental impacts as described by the applicant. The proposal will result in a development which is not consistent within its current urban context and that the variation to the height and floor space ratio for that part of the development located over 279 Belmore Rd is not considered to be appropriate or justifiable in the absence of a Town Centre urban form strategy to guide the strategic direction of the centre.

Height above 18m shown in red (Belmore Rd frontage)

Height above 18m shown in red (view from railway line)
(2) Development consent may, subject to this clause, be granted for development even though the development would contravene a development standard imposed by this or any other environmental planning instrument. However, this clause does not apply to a development standard that is expressly excluded from the operation of this clause.
Applicant’s comment: The proposal is supported by a clause 4.6 variation, which seeks a formal exception to the development standard and provides further justification.
Comment: The development standard relating to height is not excluded from the provisions of Clause 4.6 and a variation to the development standard can be considered.
(3) Development consent must not be granted for development that contravenes a development standard unless the consent authority has considered a written request from the applicant that seeks to justify the contravention of the development standard by demonstrating:
(a) that compliance with the development standard is unreasonable or unnecessary in the circumstances of the case, and
(b) that there are sufficient environmental planning grounds to justify contravening the development standard.
Applicant’s comment: We believe that strict compliance with the maximum building height and floor space ratio development standards is unnecessary in the circumstances of the case, as the proposal does not generate any adverse environmental impacts. The proposal sets a benchmark for the future redevelopment of the town centre, which is identified as a Priority Precinct. Further, there is no view loss or significant adverse visual impacts generated by the proposal. As such, there is sufficient justification for the proposal on the environmental planning grounds to allow for the contravention of the development standard.
Comment: The applicant’s written request to vary the development standards has been considered and it is concluded that the applicant has not adequately justified that compliance with the development standard is unreasonable or unnecessary in the circumstances of the case. This conclusion has been reached for the following reasons:
· The building height is considered to be inconsistent with the existing built form and that envisaged under the height and FSR controls applying to the surrounding and nearby lands.
· Whilst it is acknowledged that 281 Belmore Road does not have an applicable height and FSR control under the LEP, the proposal is not considered to be adequately justified in its current urban context specifically in the absence of a urban form study for the Riverwood Town Centre which would set an overall vision and desired future character for the locality.
· Accordingly, the application is being recommended for deferral subject to the completion of the urban form study and the setting of a desired future character to the town centre.
(4) Development consent must not be granted for development that contravenes a development standard unless:
(a) the consent authority is satisfied that:
(i) the applicant’s written request has adequately addressed the matters required to be demonstrated by subclause (3), and
(ii) the proposed development will be in the public interest because it is consistent with the objectives of the particular standard and the objectives for development within the zone in which the development is proposed to be carried out, and
(b) the concurrence of the Director-General has been obtained.
Applicant’s comment: The proposed development is within the public interest because it is consistent with the objectives of the relevant standards, including land use, providing a high level of amenity for future residents whilst maintaining the current level of amenity to surrounding development. It is considered that strict compliance with the development standard is unnecessary in the circumstances of the case, and that there are sufficient environmental planning grounds to justify contravening the development standards for Council to support the proposed development.
Objectives of the land use zone
The site is zoned B2 Local Centre. The objectives of the zone are as follows:
· To provide a range of retail, business, entertainment and community uses that
serve the needs of people who live in, work in and visit the local area.
· To encourage employment opportunities in accessible locations.
· To maximise public transport patronage and encourage walking and cycling.
· To maintain a commercial and retail focus for larger scale commercial precincts.
The proposal meets the above by:
· The proposal offers residential accommodation above retail uses, which is permissible within the zone but also meets future housing needs of the area. It also provides a type of development that is consistent with the intent of the land use zone;
· The proposal offers excellent residential amenity in well sized apartments;
· The proposal does not generate any significant adverse impacts on surrounding properties;
· The proposal is located within the Riverwood Town Centre and close to public
transport; and
· On 1 June 2017, the Department of Planning and Environment (DP&E) declared Riverwood a Priority Precinct for the purposes of accommodating more growth, hence potential for increased development standards to accommodate future economic growth of the centre.
Objectives of the building height development standard
In accordance with clause 4.3 of the RLEP, the objectives of the maximum building
height development standard are:
4.3 Height of buildings
(1) The objectives of this clause are as follows:
(a) to ensure that buildings are compatible with the height, bulk and scale of the existing and desired future character of the locality,
(b) to minimise visual impact, disruption of views, loss of privacy and loss of solar access to existing development and to public areas and public
domain, including parks, streets and lanes,
(c) to minimise the adverse impact of development on heritage items,
(d) to nominate heights that will provide a transition in built form and land use intensity,
(e) to establish maximum building heights that achieve appropriate urban form consistent with the major centre status of the Hurstville City Centre,
(f) to facilitate an appropriate transition between the existing character of areas or localities that are not undergoing, and are not likely to undergo, a substantial transformation,
(g) to minimise adverse environmental effects on the use or enjoyment of adjoining properties and the public domain.
The proposal meets the above by:
· As discussed in Section 4.2.4, the structure exceeding the maximum building heights is limited to the proposed smaller building.
· The non-compliance does generate any significant detrimental impacts than what would likely be generated by a complying development.
· The proposal is consistent with the intent of the zone and the future character of the area and promotes a high quality urban form.
· The proposal allows for satisfactory exposure for sky exposure and daylight
surrounding buildings that would be achieved by a complying development.
Objectives of the floor space ratio development standard
In accordance with clause 4.4 of the RLEP, the objectives of the maximum floor space ratio development standard are:
4.4 Floor space ratio
(1) The objectives of this clause are as follows:
(a) to ensure that buildings are compatible with the bulk and scale of the
existing and desired future character of the locality,
(b) to establish the maximum development density and intensity of land use, accounting for the availability of infrastructure and generation of
vehicular and pedestrian traffic to achieve the desired future character of the locality,
(c) to minimise adverse environmental effects on the use or enjoyment of adjoining properties and the public domain,
(d) to facilitate an appropriate transition between the existing character of areas or localities that are not undergoing and are not likely to undergo a substantial transformation,
(e) to minimise the adverse impact of the development on heritage items,
(f) to establish maximum floor space ratios that ensure the bulk and scale of development is compatible with the major centre status of the Hurstville City Centre.
The proposal meets the above by:
· As discussed in Section 4.2.4, the proposal is located within a Priority Precinct area.
· The proposal achieves an excellent high quality outcome for the site providing a benchmark for the design quality of the centre.
· The non-compliance does not generate any significant detrimental impacts than what would likely be generated by a complying development.
The proposal is consistent with the intent of the zone and the future character of the area and promotes a high quality urban form, and provides a suitable transition between adjoining buildings.
Comment: It is considered that the applicant has adequately addressed the matters identified in (3) above. Whilst the proposal would provide commercial and residential uses within the building close to a railway line, which encourages the use of public transport.
The arguments for variations in height and FSR at this point cannot be sustained in the absence of the urban form study. As noted in the Strategic Context section of this report, whilst the studies may have commenced in early 2018 the NSW Department of Planning & Environment advised Council that the both the Riverwood Housing Estate and the extended study would be suspended and recommenced in April 2019. As such, at this point, there is no new strategic vision for the Riverwood Centre and this will not be finalised until the above detailed studies are completed. At this point there is no strategic justification to vary height and FSR controls on the site and therefore would not “…facilitate an appropriate transition between the existing character of areas or localities that are not undergoing and are not likely to undergo a substantial transformation”.
As such, due to the scale and visual dominance of the development, without the vision, the proposal is not considered to meet the requirements of the objective to both “…ensure that buildings are compatible with the bulk and scale of the existing and desired future character of the locality” and “..minimise adverse environmental effects on the use or enjoyment of adjoining properties and the public domain.”
(5) In deciding whether to grant concurrence, the Director-General must consider:
(a) whether contravention of the development standard raises any matter of significance for State or regional environmental planning, and
(b) the public benefit of maintaining the development standard, and
(c) any other matters required to be taken into consideration by the Director-General before granting concurrence.
Applicant’s comment: No additional comment required.
Comment: The variation to the height and floor space ratio does not raise any matters of significance for State or regional environmental planning. In this instance there is no public benefit in maintaining the development standard as the variation proposed is considered to be an unreasonable design response in the context of surrounding development and the absence of a new strategic vision for the Town Centre.
(6) Development consent must not be granted under this clause for a subdivision of land in Zone RU1 Primary Production, Zone RU2 Rural Landscape, Zone RU3 Forestry, Zone RU4 Primary Production Small Lots, Zone RU6 Transition, Zone R5 Large Lot Residential, Zone E2 Environmental Conservation, Zone E3 Environmental Management or Zone E4 Environmental Living if:
(a) the subdivision will result in 2 or more lots of less than the minimum area specified for such lots by a development standard, or
(b) the subdivision will result in at least one lot that is less than 90% of the minimum area specified for such a lot by a development standard.
Applicant’s comment: No additional comment required.
Comment: Subdivision of land is not proposed in this application.
(7) After determining a development application made pursuant to this clause, the consent authority must keep a record of its assessment of the factors required to be addressed in the applicant’s written request referred to in subclause (3).
Applicant’s comment: No additional comment required.
Comment: A record of the assessment can be retained in Council’s records.
(8) This clause does not allow development consent to be granted for development that would contravene any of the following:
(a) a development standard for complying development,
(b) a development standard that arises, under the regulations under the Act, in connection with a commitment set out in a BASIX certificate for a building to which State Environmental Planning Policy (Building Sustainability Index: BASIX) 2004 applies or for the land on which such a building is situated,
(c) clause 5.4.
Applicant’s comment: No additional comment required.
Comment: The proposed development is not complying development. A BASIX Certificate has been submitted with the application and the commitments in the Certificate can be applied to the development irrespective of the height or floor space ratio of the development.
(3) Exceptions to Floor Space Ratios for Buildings on Land in Certain Zones
9. The non-residential floor space ratio of the development is 0.246:1 which is below the 0.3:1 required by the development standard. The applicant has not acknowledged this in the application but it is considered that this floor space ratio is acceptable.
Environmental Planning and Assessment Regulations 2000
10. The proposed development satisfies the relevant matters for consideration for development under the Regulations.
STATE ENVIRONMENTAL PLANNING INSTRUMENTS
11. Compliance with the relevant state environmental planning policies is detailed and discussed in the table below.
|
State Environmental Planning Policy |
Complies |
|
Greater Metropolitan Regional Environmental Plan No 2 – Georges River Catchment |
N/A |
|
State Environmental Planning Policy 55 – Remediation of Land |
Yes (1) |
|
State Environmental Planning Policy (Building Sustainability Index BASIX) 2004 |
Yes |
|
State Environmental Planning Policy (Infrastructure) 2007 |
Yes (2) |
(1) State Environmental Planning Policy 55 – Remediation of Land
12. A Preliminary Site Investigation Report has been submitted with the application, prepared by EI Australia (report number E22936AA_Rev0, dated 13 April 2016). The report concludes that there is potential for contamination to be present on the site. It is considered however that the condition of the soils and groundwater are unlikely to constrain the development of the site for the proposed purpose subject to the recommendation of the report being implemented.
(2) State Environmental Planning Policy (Infrastructure) 2007 (SEPP (Infrastructure))
13. The proposed development is subject to Clause 86 of the SEPP (Infrastructure) as the subject site is located within or near a railway corridor. The application requires the concurrence of Sydney Trains. After a long negotiation process with the applicant Sydney Trains has issued its concurrence to the application subject to deferred commencement conditions being attached to any consent granted.
Clause 87 of the SEPP (Infrastructure) requires that residential developments located adjoining a rail corridor to be considered in terms of potential noise and vibration from the rail corridor. The applicant has submitted a report entitled Acoustic Noise and Vibration near Railway Lines prepared by Acoustic Noise and Vibration Solutions Pty Ltd (reference no 2016-108 Rev 2, dated 21 June 2017). The report concludes that the proposed development can meet the requirements of Clause 87 subject to the recommendations of the report being adopted in the design of the development. The recommendations include treatment of windows and doors, insulation to ceilings, and material for the external walls.
STATE ENVIRONMENTAL PLANNING POLICY NO 65 – DESIGN QUALITY OF RESIDENTIAL APARTMENT DEVELOPMENT
14. The extent to which the proposed development complies with the controls and principles in the State Environmental Planning Policy 65 – Design Quality of Residential Apartment Development (SEPP 65) is detailed and discussed in the tables below.
Application of SEPP 65
|
Clause |
Standard |
Proposal |
Complies |
|
3 - Definitions |
Complies with definition of “Residential Apartment Development” (RAD) |
Complies with definition |
Yes |
|
4 - Application of Policy |
Development involves the erection of a new RFB, substantial redevelopment or refurbishment of a RFB or conversion of an existing building into a RFB |
Erection of a new residential flat building (mixed development) |
Yes |
|
50 – Development Applications |
Design verification statement provided by qualified designer
Registered Architect Name and Registration No. |
Design Verification Statement provided by Registered Architect Mr Andrew Andersons (Registration No 2822) |
Yes |
Part 2 Design Quality Principles under the SEPP
|
Clause |
Standard |
Proposal |
Complies |
|
1 – Context and neighbourhood character |
Good design responds and contributes to its context (e.g. natural and built features of an area) |
Proposed development has not been designed to respond to its context. |
No |
|
2 – Built form and scale |
Good design provides an appropriate scale in terms of the existing and desired future character and built form that suits the scale of the street and surrounding buildings |
The proposed development provides an inappropriate scale in relation to its context in the Riverwood local centre and adjoining the railway line. |
No |
|
3 - Density |
Good design has a density appropriate for a site and its context, in terms of projected population and can be sustained by existing and proposed infrastructure |
Proposed development is considered to achieve an inappropriate density. |
No |
|
4 – Sustainability |
Good design combines positive environmental, social and economic outcomes. Includes use of natural cross ventilation and sunlight, recycling and reuse of materials and waste, use of sustainable materials and deep soil zones |
Proposed development provides appropriate outcomes for sustainability, through energy efficiency measures, landscape open space areas, cross ventilation and sunlight |
Yes |
|
5 - Landscape |
Good design recognises that together landscape and buildings operate as an integrated and sustainable system, resulting in attractive developments with good amenity, enhances the development’s environmental performance, optimises useability, privacy and opportunities for social interaction, equitable access, and practical management |
Landscaping to the site will be in the form of a communal open space area and planting to the public domain area at the front of the site as negotiated with Council. |
Yes |
|
6 - Amenity |
Good design influences internal and external amenity for residents and neighbours |
The proposed development presents limited opportunities to create privacy impacts due to its location adjoining the railway line and commercial buildings. The design of the development however, has considered the amenity of future residents by limiting the openings which adjoin the railway line and incorporating noise mitigating measures in the materials that will be used. |
Yes |
|
7 – Safety |
Good design optimises safety and security, both internal to the development and for the public domain |
Proposed development is consistent with crime prevention principles |
Yes |
|
8 –Housing diversity and social interaction |
Good design achieves a mix of apartment sizes, providing housing choice for different demographics, living needs and household budgets. Includes different types of communal spaces for social interaction |
Proposed development provides one, two and three bedroom dwellings in a variety of layouts including adaptable housing. |
Yes |
|
9 - Aesthetics |
Good design achieves a built form that has a balanced composition of elements, a variety of materials, colours and textures and responds to the future local context |
The design of the development and proposed external materials and finishes are appropriate which will result a high quality development. |
Yes |
Clause 30 – Consideration of Apartment Design Guide Controls
|
Clause |
Standard |
Proposal |
Complies |
|
Objective 3D-1 |
1. Communal open space has a minimum area equal to 25% of the site. -Where it cannot be provided on ground level it should be provided on a podium or roof
-Where developments are unable to achieve the design criteria, such as on small lots, sites within business zones, or in a dense urban area, they should: • provide communal spaces elsewhere such as a landscaped roof top terrace or a common room • provide larger balconies or increased private open space for apartments • demonstrate good proximity to public open space and facilities and/or provide contributions to public open space
2. Developments achieve a minimum of 50% direct sunlight to the principal usable part of the communal open space for a minimum of 2 hours between 9am and 3pm on 21 June (mid winter) |
280sqm (31.4% of site) communal open space provided to the roof of the development and landscaped open space provided in small pockets throughout the site.
The communal open space area has good amenity in that it receives at least 3 hours sunlight during winter and is a functional area with seating provided. |
Yes |
|
Objective 3E-1 |
1. Deep soil zones are to meet the following minimum requirements:
-Where the site is less than 650sqm = no minimum dimension
-Where site area is between 650sqm and 1500sqm = 3m minimum dimension
-Where the site is more than 1500sqm = 6m minimum dimension
Deep soil = 7% Achieving the design criteria may not be possible on some sites including where: • the location and building typology have limited or no space for deep soil at ground level (eg central business district, constrained sites, high density areas, or in centres) • there is 100% site coverage or non-residential uses at ground floor level Where a proposal does not achieve deep soil requirements, acceptable stormwater management should be achieved and alternative forms of planting provided such as on structure |
Site area is 890.7sqm. Deep soil is not possible for the site given its location within the Riverwood town centre, the requirements for basement parking, and its proximity to Sydney trains infrastructure.
The ADG acknowledged that deep soil may not be possible in town centres or where excavation is required and deep soil can be substituted for landscaped areas within the development.
The proposed development provides landscaped open space in excess of the requirements as a roof top communal open space and small pockets throughout the development. The applicant also proposes public improvements to the front of the site and these will be negotiated with Council. |
Yes |
|
Objective 3F-1 |
1. Separation between windows and balconies is provided to ensure visual privacy is achieved.
Minimum required separation distances from buildings to the side and rear boundaries are as follows:
-Up to 12m (4 storeys) Habitable rooms and balconies = 6m Non-habitable rooms = 3m
-Up to 25m (5-8 storeys) Habitable rooms and balconies = 9m Non-habitable rooms = 4.5m
-Over 25m (9+ storeys) Habitable rooms and balconies = 12m Non-habitable rooms = 6m |
The proposed development achieves appropriate separation distances given that it has three frontages that adjoin a road or the railway line. Where the site adjoins the B2 Local Centre zone (on one elevation only) the development is built to the boundary which is the consistent with building sin commercial centres. |
Yes |
|
Objective 3J-1 |
1. For development in the following locations: - On sites that are within 800m of a railway station or light rail stop in the Sydney Metropolitan Area;
- The minimum car parking requirement for residents and visitors is set out in the Guide to Traffic Generating Developments, or the car parking requirement prescribed by the relevant council, whichever is less
The car parking needs for a development must be provided off street |
Subject site is within 400m of a railway station. Development complies with the requirements of the ADG for residential parking and provides bicycle parking and storage areas. |
Yes |
|
Objective 4A-1 |
1. Living rooms and private open spaces of at least 70% of apartments in a building receive a minimum of 2 hours direct sunlight between 9 am and 3 pm at mid winter in the Sydney Metropolitan Area
3. A maximum of 15% of apartments in a building receive no direct sunlight between 9am and 3pm at mid winter |
Living room and private open spaces of 100% of units receive at least 2 hours of solar access.
0% (no unit) of units receive no direct sunlight |
Yes |
|
Objective 4B-3 |
1. At least 60% of apartments are naturally cross ventilated in the first nine storeys of the building. Apartments at ten storeys or greater are deemed to be cross ventilated only if any enclosure of the balconies at these levels allows adequate natural ventilation and cannot be fully enclosed
2. Overall depth of a cross-over or cross-through apartment does not exceed 18m, measured glass line to glass line |
71% of units are appropriately cross ventilated.
Maximum depth is less than 18m |
Yes |
|
Objective 4C-1 |
1. Measured from finished floor level to finished ceiling level, minimum ceiling heights are:
Habitable rooms = 2.7m Non-habitable rooms = 2.4m |
2.7m for all rooms |
Yes |
|
Objective 4D-1 |
1. Apartments are required to have the following minimum internal areas:
1 bedroom = 50sqm 2 bedroom = 70sqm 3 bedroom = 90sqm
The minimum internal areas include only one bathroom. Additional bathrooms increase the minimum internal area by 5sqm each
2. Every habitable room must have a window in an external wall with a total minimum glass area of not less than 10% of the floor area of the room. Daylight and air may not be borrowed from other rooms |
1 bedroom = 50sqm min 2 bedroom = 80.45sqm min 3 bedroom = 108.45sqm min
Window provided for each habitable room with appropriate glass area provided. |
Yes |
|
Objective 4D-2 |
1. Habitable room depths are limited to a maximum of 2.5 x the ceiling height
2. In open plan layouts (where the living, dining and kitchen are combined) the maximum habitable room depth is 8m from a window |
Within range.
Open plan layouts less than 8m from window. |
Yes |
|
|
1. Master bedrooms have a minimum area of 10sqm and other bedrooms 9sqm (excluding wardrobe space)
2. Bedrooms have a minimum dimension of 3m (excluding wardrobe space)
3. Living rooms or combined living/dining rooms have a minimum width of:
-3.6m for studio and 1 bedroom - 4m for 2 and 3 bedroom apartments
4. The width of cross-over or cross-through apartments are at least 4m internally to avoid deep narrow apartment layouts |
Development complies with these requirements |
Yes |
|
Objective 4E-1 |
1. All apartments are required to have primary balconies as follows:
-1 bedroom = 8sqm/2m depth -2 bedroom = 10sqm/2m depth
-3+ bedroom = 12sqm/2.4m
The minimum balcony depth to be counted as contributing to the balcony area is 1m
2. For apartments at ground level or on a podium or similar structure, a private open space is provided instead of a balcony. It must have a minimum area of 15sqm and a minimum depth of 3m |
All balcony areas are greater than dimensions required.
No ground floor units. |
Yes |
|
Objective 4F-1 |
1. The maximum number of apartments off a circulation core on a single level is eight |
Maximum 4 units |
Yes
|
|
Objective 4G-1 |
1. In addition to storage in kitchens, bathrooms and bedrooms, the following storage is provided:
-1 bedroom = 6m³ -2 bedroom – 8m³ 3 bedroom – 10m³ |
All units have storage areas that comply with the requirements. |
Yes |
|
Objective 4M |
Facades should be well resolved with an appropriate scale and proportion to the streetscape and human scale. |
Façade of development is appropriate |
Yes |
|
Objective 4N |
Roof treatments are integrated into the building design and positively respond to the street. Opportunities to use roof space for residential accommodation and open space are maximised. Incorporates sustainability features. |
Roof design is appropriate and integrated with design of the development. Communal open space provided to the roof of the development. |
Yes |
|
Objective 4O |
Landscape design is viable and sustainable, contributes to the streetscape and amenity |
Landscape design is appropriate and provides suitable communal and private open space areas |
Yes |
|
Objective 4P |
Planting on structures – appropriate soil profiles are provided, plant growth is optimised with appropriate selection and maintenance, contributes to the quality and amenity of communal and public open spaces |
Landscaping to the site which includes planting on structures has been design by qualified landscape architect with details provided on species, soil depth etc. |
Yes |
|
Objective 4Q |
Universal design – design of apartments allow for flexible housing, adaptable designs, accommodate a range of lifestyle needs |
Design of apartments allows for use by different lifestyles |
Yes |
|
Objective 4R |
Adaptive reuse as apartment of existing buildings- new additions are contemporary and complementary, provide residential amenity while not precluding future adaptive reuse |
New development |
N/A |
|
Objective 4S |
Mixed use developments are provided in appropriate locations, provide active street frontages, residential levels of the building are integrated within the development and safety and amenity is maximised for residents |
The development provides an active street frontage to Belmore Road. Access to residential and commercial areas is separated. Development is consistent with crime prevention principles. |
Yes |
|
Objective 4T |
Awnings and signage – awnings are well located and compliment and integrate with the building design, signage responds to the context and desired streetscape character |
An awning has been incorporated into the façade of the development which is consistent with the streetscape. |
Yes |
|
Objective 4U |
Development incorporates passive environmental design, passive solar design to optimise heat storage in winter and reduce heat transfer in summer, natural ventilation minimises need for mechanical ventilation |
Development incorporates BASIX commitments in the design to provide appropriate energy efficiency features. |
Yes |
|
Objective 4V |
Water management and conservation – potable water use is minimised, stormwater is treated on site before being discharged, flood management systems are integrated inti site design |
Development incorporates appropriate stormwater measures. |
Yes |
|
Objective 4W |
Waste management – storage facilities are appropriately designed, domestic waste is minimised by convenient source separation and recycling |
Waste facilities are provided which are accessible to all residents |
Yes |
|
Objective 4X |
Building maintenance – building design provides protection form weathering, enables ease of maintenance, material selection reduces ongoing maintenance cost |
Design incorporates a mix of external finishes that require minimal maintenance such as pre-fabricated coloured panels and rendered features. |
Yes |
Draft Environmental Planning Instruments
15. There are no draft Environmental Planning instruments that apply to the proposed development.
Development Control Plans
16. The proposed development is subject to the provisions of the Hurstville Development Control Plan No 1. The following comments are made with respect to the proposal satisfying the relevant objectives and controls contained within the DCP.
DEVELOPMENT CONTROL PLAN NO 1 – LGA WIDE - SECTION 3.1 VEHICLE ACCESS, PARKING AND MANOEUVRING
17. The extent to which the proposed development complies with the car parking provisions is outlined in the table below.
|
Development |
Requirements |
Proposed |
Complies |
|
DS1.3 General |
The requirements of the Apartment Design Guide apply to the residential component of the development:
0.6 space/1 bedroom unit (11 units) = 6.6
0.9 space/2 bedroom unit (22 units) = 19.8
1.4 spaces/3+ bedroom unit (19 units) = 26.6
1 visitor space/7 units (52 units) = 7.4
Total = 53 residential spaces + 7.4 visitor spaces
1 car wash bay which can be within a visitor’s space
The requirements of the DCP apply for the commercial component: 1 space/50sqm (220sqm) = 4.4 spaces
1 loading /unloading area
Total spaces required = 64.8 (65) |
Residential: 53 residential spaces 8 visitor spaces 1 car wash bay located on each basement level within a visitors space
Commercial: 2 spaces 1 loading/unloading can be undertaken within a retail space
Total spaces provided = 63 |
No (1), for retail component |
|
DS1.5 and DS1.6 Layout, Circulation, Access and Egress |
To comply with the Australian Standard. Does not encourage but will consider stacked parking. |
Compliance with the relevant Australian Standards can be achieved |
Yes |
|
DS1.9 and 1.10 Ramps, transitions and driveways |
To comply with the Australian Standards |
Compliance with the relevant Australian Standard can be achieved |
Yes |
|
DS1.16 and DS1.17 Parking for people with a disability |
To comply with the Australian Standards. Provision of parking beyond the AS is encouraged. |
-8 residential spaces –No retail space required -Comply with the AS. |
Yes |
|
DS2.1 ,DS2.2 and DS2.3 Environmental Design |
-Landscape plan to be prepared by qualified landscape architect illustrating means to soften the visual impact of parked cars -Significant environmental features to be retained and incorporated -Landscaping required includes planting beds 1m wide fronting a street or public place, shade trees to be provided in open parking areas, certain plant species to be avoided. |
All parking is within a basement level
|
|
|
DS2.5 and DS2.6 Drainage |
Adequate drainage to be provided in accordance with Council’s Drainage Code. |
Drainage is acceptable |
Yes |
|
DS2.8 Streetscape |
If parking area adjoins a residential property fencing and/or mounding to be included to protect the privacy of the residential property and reduce noise. |
No adjoining residential zone. |
|
|
PC3 Safer by Design |
Development to comply with the safer by design requirements included in PC3 including visibility, safety, security, pedestrians and car park layouts. |
The development generally complies with the safer by design requirements as relevant for basement car parking areas. |
|
(1) Retail car spaces
18. The proposed development provides two car spaces less than required for the retail component of the development. Four (4) spaces are required under the provisions of the DCP and two (2) have been provided.
The applicant has provided the following justification for the variation:
The proposal includes two small retail spaces where one is proposed to be a cafe. The proposal is considered to be satisfactory based on the findings of the Traffic Assessment Report submitted with the amended plans in August 2017. The Traffic Assessment Report, on page 5 states:
“…the proposed retail tenancy (and café) will essentially only have “convenience” patronage and this will simply be an extension of the existing local centre. There is public parking available in the adjacent retail centre and due to the ‘obscure’ location of the proposed vehicle access for the development it is highly unlikely that any retail or café patrons would park in the proposed car park. Accordingly it is not proposed to provide any parking for the small retail and café elements and this is consistent with the RMS Development Guidelines which states “provision of public transport will reduce the demand for parking and if the proposed development is an extension of existing retail development the parking demand would be less than proportional to the increase in floor area”.
Although the Assessment of Traffic and Parking Implications report submitted with the application (prepared by Transport and Traffic Planning Associates, dated August 2017 Rev C) supports no onsite parking for the retail component, the applicant was advised that at a minimum two car spaces should be provided which can be allocated to each of the retail units. This was considered acceptable having regard to the location of the site and the fact that the proposed café and the second, relatively small retail unit are unlikely to be destination uses, but rather be frequented by passers-by, commuters, and people already in the Riverwood Town Centre.
The provision of one car space for each of the retail units will allow tenants to park on site in a secure car space, rather than rely on street parking. Having regard to the above, the variation to the retail car spaces is considered acceptable.
DEVELOPMENT CONTROL PLAN NO 1 – LGA WIDE - SECTION 3.3 ACCESS AND MOBILITY
19. The proposed development complies with the provisions of Section 3.3 as follows.
|
Section 3.3 |
Requirements |
Proposed |
Complies |
|
Access requirements |
Access for all persons through the principal entrance and access to appropriate sanitary facilities and common areas in accordance with the BCA and relevant Australian Standards |
Appropriate access provided to all areas |
Yes |
|
Accessible car spaces for commercial component |
1 space/20 spaces or part thereof, where parking areas have more than 20 spaces but less than 50 spaces (4.4 spaces) = No spaces required as less than 20 provided |
No accessible space is provided for retail component |
Yes |
|
Adaptable dwellings |
1 adaptable dwelling/10 dwellings or part there of (min) = 6
Adaptable dwelling complies with AS4299 |
Minimum 6 adaptable units provided |
Yes |
DEVELOPMENT CONTROL PLAN NO 1 – LGA WIDE - SECTION 3.4 CRIME PREVENTION THROUGH ENVIRONMENTAL DESIGN
20. The extent to which the proposal complies with the requirements of this section of DCP1 is outlined in the table below.
|
Section 3.4 |
Requirements |
Proposed |
Complies |
|
PC1 Site and building layout |
a. ensures that the way in which the site, and the buildings within the site, are laid out enhance security and feelings of safety. b. ensures that private and public spaces are clearly delineated c. ensures that the design of the development allows for natural surveillance to and from the street and between individual dwellings or commercial units within the site d. provides entries that are clearly visible and avoid confusion e. avoids blind corners in pathways, stairwells, hallways and car parks f. provides natural surveillance for communal and public areas g. ensures that design for natural surveillance also provides for a suitable streetscape appearance h. where permitted, provides appropriate mixed uses within buildings to increase opportunities for natural surveillance, while protecting amenity i. locates public services (ATMs, telephones, help points, bicycle storage etc) in areas of high activity j. designs car parks to allow for natural surveillance and ensure clear sight lines, ease of access and safety at the entrance and within the car park |
The development generally complies with these requirements.
|
Yes |
|
PC2 Lighting |
a. enhances the amenity and safety of a site after dark by increasing opportunities for casual surveillance, deterring unauthorised access and reducing feelings of fear and vulnerability of legitimate site user b. enhances the amenity and safety of a site after dark by increasing opportunities for casual surveillance, deterring unauthorised access and reducing feelings of fear and vulnerability of legitimate site users c. is provided to enable natural surveillance, particularly in entrances/exits, service areas, pathways and car parks d. be clearly identifies all exist and entries after dark e. ensures service areas such as garbage areas and loading bays are well lit f. is designed so it doesn’t produce areas of glare and shadow |
The development provides appropriate lighting and will be reinforced through conditions of consent. |
Yes |
|
PC3 Landscaping |
a. does not reduce the security of a site b. where used to delineate private space, is used in a way which enhances safety c. does not obstruct casual surveillance and allows intruders to hide d. uses vegetation as barriers to deter unauthorised access e. avoids large trees/shrubs and buildings works that could enable an intruder to gain access |
The landscaping to the site is located on the roof top common open space and in small pockets throughout the development and will be appropriately landscaped. The landscape plan has been prepared by a landscape architect. |
Yes |
|
PC4 Fencing |
a. does not restrict casual surveillance between the site and the street due to its height, location and design b. where on the front boundary, should be designed to maximise opportunities for casual surveillance between the site and the street and minimise opportunities for concealment |
The development complies with these requirements |
Yes |
|
PC5 Security and operational management |
a. ensures an appropriate level of security is achieved b. provides an appropriate level of security for individual buildings and communal areas to reduce opportunity for unauthorised access c. ensures individual dwellings are equipped with appropriate security devices d. ensures an appropriate level of security is achieved in communal areas e. provides adequate security to commercial premises with extended hours of operation |
Sufficient level of security provided |
Yes |
|
PC6 Building Identification |
a. ensures buildings are clearly identified by street number to prevent unintended access and to assist persons trying to find the address b. ensures that parking areas are clearly identified by signage to prevent unintended access and to assist persons trying to find their car c. ensures that signage is clearly visible, easy to read and simple to understand |
These requirements can be satisfied through conditions of consent
|
Yes |
|
PC7 Building ownership |
a. designed to promote a sense of site ownership and to encourage responsibility in making sure the site is well looked after and cared for b. designed to promotes pride and sense of place and ownership and reduce illegitimate use/entry. |
Entry area and driveway indicate ownership |
Yes |
|
PC8 Building Materials |
a. minimise opportunities for criminal damage and can be easily maintained b. reduce the opportunity for intruder access c. minimise opportunities for vandalism d. are regularly maintained and include swift removal of graffiti to enhance ‘cared for’ image |
Proposed building materials are appropriate in terms of crime prevention. |
Yes |
|
PC9 Building Maintenance |
a. creates the impression that the site is well looked after and well cared for b. uses materials that reduce the opportunity for vandalism |
Conditions of consent can require the long term maintenance of the building. |
Yes |
DEVELOPMENT CONTROL PLAN NO 1 – LGA WIDE - SECTION 3.5 LANDSCAPING
21. There are no trees on the site. The application is accompanied by a landscape plan prepared by a qualified landscape architect which shows the proposed landscaping to the site including the roof top communal open space and in small pockets throughout the site.
DEVELOPMENT CONTROL PLAN NO 1 – LGA WIDE - SECTION 3.7 STORMWATER
22. The development can drain to the street via gravity. Appropriate conditions of consent can be attached to any consent granted.
DEVELOPMENT CONTROL PLAN NO 1 – LGA WIDE - SECTION 6.2 RIVERWOOD
23. The proposed development has been assessed against the requirements of DCP1 as they relate to Riverwood and the development is consistent with these requirements.
Specifically due to the height and proposed FSR the proposal fails the following:
· The proposal does not meet the objective that development will be compatible with the existing built form, streetscape and scale of development.
· Control PC3 (Appendix 1 Clause 10) that buildings in the B2 Local Centre Fronting the railway shall be 13m and a maximum of 4 storeys.
DEVELOPMENT CONTROL PLAN NO 1 - LGA WIDE - APPENDIX 1 - SECTION 7 WASTE MANAGEMENT
24. A Waste Management Plan has been submitted with the application which is acceptable. Any consent granted will be subject to conditions of consent requiring the provision of appropriate waste facilities for the ongoing use of the development.
DEVELOPMENT CONTROL PLAN NO 1 - APPENDIX 1 - SECTION 8 ENERGY EFFICIENCY
25. The application is accompanied by a BASIX Certificate which identifies that the development meets the target scores.
In terms of overshadowing, shadow diagrams submitted with the application show that the adjoining site within the B2 Local Centre zone will be overshadowed by the development between 9am and 3pm on 21 June. The shadow however moves from the front of the site to the rear of the site which allows for sunlight to the front elevation and rear elevation for at least 2 hours of the day. Should the adjoining site be redeveloped, balconies would most likely be located on the front and rear elevation and they would gain the appropriate amount of sunlight required by the Apartment design Guide.
DEVELOPMENT CONTROL PLAN NO 1 - APPENDIX 1 - SECTION 9 PRESERVATION OF TREES AND VEGETATION
26. This has been discussed in the report above under the heading Section 3.5 Landscaping.
DEVELOPMENT CONTROL PLAN NO 1 – LGA WIDE - APPENDIX 1 – SECTION 10 - BUILDING HEIGHTS AND INDICATIVE STOREYS
27. DCP1 identifies that where the height limit is 18m the indicative maximum storeys of the development is 6 storeys. The proposed development is 6 storeys for that portion of the site that has a height limit which is consistent with this requirement.
Section 94 Contributions
28. The proposed development requires payment of $816,161.77 of Section 94 contributions based on the provisions of an additional dwelling on the subject site. The contribution amount is based on the following.
|
Contribution Type |
Contribution Amount |
|
Open Space |
$101,125.37 |
|
Community facilities |
$715,036.40 |
|
Total Contributions |
$816,161.77 |
IMPACTS
Natural Environment
29. The proposed development is unlikely to result in adverse impacts to the natural environment. There are no existing trees on the site. A landscape plan prepared by a qualified landscape architect has been submitted with the application which shows a landscaped roof top communal open space area, and pockets of landscaped area throughout the building. Excavation to the site is required for the proposed basement car parking. This is unlikely to result in any adverse impacts to the site and is typical of mixed developments within commercial zones.
Built Environment
30. The proposed development is likely to result is adverse impacts to the built environment due to the proposed height and FSR not being in context with the surrounding development
Social Impact
31. The proposed development has no apparent adverse social impact.
Economic Impact
32. The proposed development has no apparent adverse economic impact.
Suitability of the site
33. It is considered that the proposed development is of a scale and design that is suitable for the site having regard to its size and shape, its topography, vegetation and relationship to adjoining developments.
SUBMISSIONS
34. The application was notified/advertised to residents/owners in accordance with Council’s requirements on two occasions, once when the application was lodged, and once when the amended proposal was submitted. In reply nine (9) submissions were received in reply. The issues raised in the submissions are summarised below with a response provided by the applicant (where provided) and the Development Assessment Officer (DAO).
Traffic
The main issue raised in the submissions relates to the proposed construction access and whether this would be through Webb Street and the right-of-way located to the rear of the site. The issues raised by objectors specifically related to the reliance of Webb Street and the right-of-way by several properties fronting Belmore Road for vehicle access, loading and loading activities, etc. The concern was that should the application be approved, and construction commence, access to their driveways would be restricted. There was questions of whether the proposed construction route and access could be from Belmore Road.
Applicant’s comment: With respect to construction activities, I am of the view that a condition of consent could be imposed to ensure that a detailed Construction Traffic Management Plan (CTMP) be prepared to the satisfaction of Council prior to issue of any construction certificate. This would ensure that the correct measures could be developed and imposed in coordination with the future contractor developing the site. There are many developments throughout many centres in the Sydney Metropolitan Area, including the Sydney CBD, where construction traffic is managed successfully through a CTMP.
DAO Comment: The right-of-way located at the rear of the site provides legal access to the properties which have a frontage to Belmore Road from the corner of Webb St and the subject site which is at the end of the right-of-way. The properties which have access to this right-of-way include Riverwood Plaza which contains Woolworths and several small tenancies. Should access to the right-of-way be interrupted, car parking and loading/unloading areas of these properties cannot be accessed.
It is therefore critical that unimpeded access be provided to the right-of-way throughout any construction phase for the adjoining sites. The details of the construction site management plan which includes traffic management are difficult to determine at this stage of the application, particularly as the approval of Sydney Trains is still to be established with regards to access over railway infrastructure. Should the applicant satisfy Sydney Trains and the consent be “activated” the details relating to access over railway infrastructure and its implications on the right-of-way can be established.
A condition of consent is provided in the recommendation, should consent be granted that requires the applicant to provide a construction site management plan which incorporates a traffic management plan that has been negotiated with adjoining properties which benefit from the right-of-way and subject to Council’s approval. This will ensure that the construction phase details will be transparent and considerate of all effected properties.
Height
The 16 storey development is too high for the site and is not consistent with the surrounding area. It will set a precedent for the surrounding area.
DAO Comment: The application has been amended from that originally submitted and the maximum height is now 13 storeys. As discussed in the report, at this point the proposal is consider to be inconsistent within the urban context and further strategic work should be undertaken prior any approval.
View
One submission to the application did not object to the application but was of the view that a broader study and masterplan should be undertaken for the Riverwood town centre rather than site by site assessment. This would result in better deign outcomes for all sites and acknowledge the centre as a key area for redevelopment.
DAO Comment: The comments made in the submission are considered to be valid. The State Government has identified Riverwood as a priority precinct and Council is waiting for further direction to work with the State Government to develop this. All effected land owners will be notified when a study is due to be commenced.
Additional traffic
The proposed development will generate additional traffic to the surrounding streets which has not been adequately considered in the traffic report submitted with the application. The report also has inconsistencies in relation to the height of the development.
Applicant’s comment: Section 3.3 of the Traffic Assessment Report states:
"The operational performance of the intersections in the vicinity during peak periods is generally satisfactory with access/turning movement as well as pedestrian crossing movement by the existing traffic signal controls."
Moreover, Section 5, page 6, of the Report clearly shows that the traffic generation in the AM will be an estimated 10 vehicle trips per hour (vtph) and 8 vtph in the PM. The existing uses generate about 2-3 vtph. Therefore, this is an increase of 7 vtph in the AM and 5 vtph in the PM. These rates are insignificant when you consider that Belmore Road at Railway Bridge generates 15,524 Annual Average Daily Traffic and the overall daily flows along Belmore Road are between 580 and 850 vehicles in the AM and PM. The Report makes it abundantly clear that:
"Virtually all of the generated traffic movements will be to/from the south through the ROW and traffic signal controlled Belmore Road/Webb Street intersection apart from set down/pick-up movements on the frontage facility. It is apparent therefore that the proposed development will not result in any unsatisfactory traffic capacity or safety circumstances."
DAO Comment: Council’s Senior Traffic Engineer examined the application and requested clarification of swept paths, the number of car spaces to be provided on site, and requested modelling of the capacity of the surrounding road network. The applicant has provided information which shows that satisfactory swept paths have been provided and clarified the provision of car spaces for the retail area as detailed in the report. The applicant advised that modelling was not required as the details of the surrounding intersections has been detailed in the Traffic Assessment Report and found to be appropriate.
REFERRALS
Council Referrals
35.
Development Engineer
Council’s Development Engineer has raised no objection subject to conditions of consent being attached to any consent granted.
Traffic Engineer
Council’s Traffic Engineer has examined the application and has raised no objection to the development subject to the onsite car parking complying with the relevant requirements and the Australian Standards.
The application was also examined by the Coordinator Traffic and Transport and Coordinator Design Survey and Drainage in relation to the proposed public improvement works to the public at the front of the site and changes to the existing taxi rank. They have advised that the public improvements work can be negotiated with Council and this can be required as a condition of consent. The changes to the taxi rank are not supported as St George Cabs has objected on the following grounds:
· Access to the indented taxi bay would only be from the south;
· The exit would also only be limited to the north;
· There will be a reduction in the number of spaces available
The proposed changes to the taxi rank were proposed by the applicant as a means to offer improvements to the public area at the front of the site. Council’s Assets and Planning Section has advised that they will negotiate the improvements to the public area once an application is approved and they establish the public works required for the area.
Senior Building Surveyor (Major Projects)
Council’s Senior Building Surveyor (Major Projects) has raised no objection to the application subject to conditions of consent being attached to any consent granted.
External Referrals
36.
Sydney Trains
Sydney Trains has issued its concurrence subject to deferred commencement conditions of consent being attached to any consent granted.
Elected Councillors Comments
37. A number of Councillors of the Georges River Council provided comments on the application. A summary of the key points raised are outlined as follows:
· The height and FSR of the proposed development are out of context to the existing surrounding development and the permitted heights and floor space controls
· The height of the 13 storey tower is unprecedented in the Riverwood Town Centre
· A masterplan/strategic study should be undertaken for the centre prior to any development of this size being considered. This study would set the direction and vision for the centre
· The proposal is a significant overdevelopment of the site and the proposed 45.5m height and FSR of 5.82:1 for the development is not appropriate for the town centre
OPTIONS FOR THE PANEL TO CONSIDER:
38. In relation to the proposed development, the options available to the Panel to consider include:
A. Approval of the application subject to the deferred commencement conditions as provided by Sydney Trains, noting that the approval would assist in active growth within the centre. However it approval in the absence of a strategic urban future context may set an unfavourable precedent and result in unplanned / ad hoc built form outcomes
B. Refusal of the application due to the absence of a urban form study / Masterplan for the Riverwood Town Centre and the development being out of scale
C. Deferral of the application to allow the applicant to submit further information on how the height and scale of the proposed development would fit within the broader urban form and context of the Riverwood Town Centre
CONCLUSION
39. The application has been assessed having regard to the Heads of Consideration under the Environmental Planning and Assessment Act 1979, the provisions of the relevant State Environmental Planning Policies, Local Environmental Plans and Development Control Plans. The application seeks permission for the demolition of existing structures and construction of a 13 storey mixed retail and residential development containing ground floor retail area, 52 apartments and basement car parking area for 63 cars. The development has been assessed against the requirements of the relevant planning instruments and development control plans and is considered to be unacceptable as discussed in the report. The submissions received to the application have been addressed in the report.
Following detailed assessment it is considered that Development Application No DA2016/0219 should deferred until such time as an urban form study and new strategic vision and direction is set for the Riverwood Town Centre or alternatively the applicant submit further information on how the height and scale of the proposed development would fit within the broader urban form and context of the Riverwood Town Centre
DETERMINATION AND STATEMENT OF REASONS
Statement of Reasons
· The proposed development is not considered to be an appropriate built form in the absence of an urban form study and setting of a new vision/desired future character for the Riverwood Town Centre.
· The application should be deferred until such time as the strategic work has been completed.
RECOMMENDATION
THAT Development Application DA2016/0219 for the demolition of existing structures and construction of a 13 storey mixed retail and residential development containing ground floor retail area, 52 apartments and basement car parking area for 63 cars on Lots 8 and 9 DP 234023 and Lot 10 in DP 1208235 and known as 279 and 281 Belmore Road Riverwood, be deferred to enable the applicant an opportunity to provide further justification on the height and scale of the proposed development in relation to the broader urban form and context of Riverwood Town Centre
|
Attachment ⇩1 |
Ground Floor/Site Plan - 279-281 Belmore Rd Riverwood |
|
Attachment ⇩2 |
Elevation West - 279-281 Belmore Rd Riverwood |
|
Attachment ⇩3 |
Elevation Streetscape - 279-281 Belmore Rd Riverwood |
|
Georges River Council - Georges River Local Planning Panel (LPP) - Thursday, 21 June 2018 LPP021-18 279 - 281 Belmore Road Riverwood [Appendix 1] Ground Floor/Site Plan - 279-281 Belmore Rd Riverwood |
Page 120 |
|
Georges River Council – Local Planning Panel Thursday, 21 June 2018 |
Page 123 |
REPORT TO GEORGES RIVER COUNCIL
LPP MEETING OF Thursday, 21 June 2018
|
LPP Report No |
LPP022-18 |
Development Application No |
PP2014/0004 |
|
Site Address & Ward Locality |
108, 112 and 124 Forest Road and 1 and 3 Wright Street, Hurstville (Planning Proposal) Hurstville Ward |
||
|
Proposed Development |
Amendment to development standards under Hurstville LEP 2012 - Report following Public Exhibition |
||
|
Owners |
Shanghai Lihua Hurstville Pty Ltd Shanghai Lihua Hurstville Pty Ltd and SLH 108 PTY Ltd |
||
|
Applicant |
Tony Polvere |
||
|
Planner/Architect |
George El Khouri Architects |
||
|
Date Of Lodgement |
4/12/2014 |
||
|
Submissions |
15 |
||
|
Cost of Works |
N/A |
||
|
Local Planning Panel Criteria |
Direction from the Minister for Planning under Section 9.1 of the Environmental Planning and Assessment Act 1979 and the Georges River Council Local Planning Panel (LPP) Charter advise that any Planning Proposal lodged by a proponent or initiated by Council needs to be referred to the Local Planning Panel. |
||
|
List of all relevant s.4.15 matters (formerly s79C(1)(a)) |
N/A – Planning Proposal
|
||
|
List all documents submitted with this report for the Panel’s consideration |
Attachment 1 – Summary of Community Submissions; Attachment 2 – Summary of Public Authority Submissions; Attachment 3 – Planning Proposal (Revision 7) Attachment 4 – Economic Impact Assessment Report; Attachment 5 – Preliminary Site Investigation Report; Attachment 6 – Urban Design Report; Attachment 7 – Architectural Plans; Attachment 8 – Proposed Zoning Map (Exhibited and Recommended); Attachment 9 – Proposed Height of Buildings Map (Exhibited and Recommended); Attachment 10 – Proposed Floor Space Ratio Map (Exhibited and Recommended); Attachment 11 – Proposed Minimum Lot Size Map (Exhibited and Recommended). |
||
|
Report prepared by |
Senior Strategic Planner |
||
|
|
Site Plan
|
Executive Summary
1. On 4 December 2014, the former Hurstville City Council received a Planning Proposal (PP2014/0004) for Nos. 108, 112 and 124 Forest Road, Hurstville to amend the zone, height and floor space ratio of the subject properties. The Planning Proposal has subsequently been amended a number of times and Nos. 1 and 3 Wright Street, Hurstville have been included within the subject site.
2. At its meeting on 13 December 2016 (CCL127-16), Council endorsed that the Planning Proposal (Revision 6) be forwarded to the Department of Planning and Environment for a Gateway Determination to amend the Hurstville LEP 2012 to rezone part of the site from B2 Local Centre and R3 Medium Density Residential to B4 Mixed Use, amend the height from 9m, 12m and 23m to 34.5m and 46.5m and amend the Floor Space Ratio for part of the site from 1:1 and 1.5:1 to 4:1. Council received a Gateway Determination to exhibit the Planning Proposal on 24 February 2017 requiring the finalisation of the LEP by 3 March 2018. Council requested an extension to the Gateway timeframe for finalisation of the LEP in December 2017. An extension has been granted to 3 July 2018.
3. The Planning Proposal was exhibited from 17 May to 16 June 2017 and a total of 16 submissions were received. The submissions included two petitions signed by 61 and 30 signatories respectively and raised issues in relation to traffic and parking, amenity (including privacy, overshadowing and view loss) and noise.
4. This report considers the submissions received during the public exhibition. A summary of submissions received is included as attachments to this report.
5. In summary, the report recommends that the LPP note the issues raised in the submissions and support the amendments to the Hurstville LEP 2012 to:
a. Rezone parts of the site from B2 Local Centre and R3 Medium Density Residential to B4 Mixed Use (part of the site is already zoned B4 Mixed Use);
b. Increase the maximum height of the buildings for the site to a range between 34.5m and 46.5m (currently 9m, 12m and 23m);
c. Increase the maximum floor space ratio control for the site to 4:1 (currently 1:1, 1.5:1 and 4:1);
d. Remove Nos. 1 and 3 Wright Street, Hurstville from the application of minimum lot size, consistent with the B4 - Mixed Use zone; and
e. Amend Clause 4.4A of HLEP 2012 to include a minimum non–residential floor space provision of 0.5:1 for the subject site.
6. Georges River Council received an Offer to enter into a Voluntary Planning Agreement on 7 December 2016. Council entered into a Planning Agreement pursuant to Section 7.4 of the Environmental Planning and Assessment Act 1979 (“the Act”) with Shanghai Lihua Hurstville Pty Ltd and SLH 108 Pty Ltd on 26 March 2018.
7. Subject to the LPP consideration and support of the Planning Proposal, the next steps include consideration by the Environment and Planning (E & P) Committee and Council and if supported, a report to the Greater Sydney Commission (GSC) under Section 3.36 of the Act requesting the draft Hurstville LEP 2012 amendment be finalised.
8. In accordance with the Council resolution of 13 December 2016, Amendment No. 8 to DCP No. 2 – Hurstville City Centre (draft DCP 2) was also prepared for 108, 112 and 124 Forest Road and 1 and 3 Wright Street Hurstville (the ‘Bing Lee’ site). The draft DCP 2 was exhibited from 25 April to 1 June 2018 and four submissions received. The DCP was considered by the Councils Environment and planning Committee on 12 June 2018.
Report in Full
Background
9. In December 2014, the applicant, Tony Polvere, submitted a Planning Proposal for Nos. 108, 112 and 124 Forest Road, Hurstville to:
· Rezone part of the site from B2 Local Centre to B4 Mixed Use;
· Increase the height from 9m and 23m to 42m and 60m; and
· Increase the Floor Space Ratio (FSR) from 1.5:1 and 4:1 to 6.6:1.
10. Since the lodgement of the Planning Proposal in December 2014, an additional six (6) revised Planning Proposals have been received (taking the total number of versions to seven and the addition of 1 and 3 Wright Street to the site) and reported to Council with variations to the requested height, FSR, quantum of retail/commercial and number of residential apartments.
11. Table 1 below provides a summary of the Planning Proposal revisions and an account of Council, St George Design Review Panel (DRP), Independent Hearing and Assessment Panel (IHAP) and Urban Design Peer Review considerations:
|
Date |
Details |
|
4 December 2014 |
Planning Proposal request Revision 1 for 108, 112 and 124 Forest Road, Hurstville (3 lots) · Amend the two LEPs - Hurstville LEP 2012 and the then draft City Centre LEP: - Amend Hurstville LEP 2012 maps to remove 108 and 112 Forest Rd from the provisions of this LEP; - Amend draft City Centre LEP to include 108 and 112 Forest Rd within the City Centre land and to rezone 108 and 112 Forest Road from B2 Local Centre to B4 Mixed Use · Increase max. building height for: 108 and 112 Forest Rd. - From 9m to 27m (8 storeys) 124 Forest Rd - From 23m to 60m (19storeys) · Increase max. FSR to 6.6:1 on the three lots (from a range of 1.5 to 4:1)
· No. of residential units - 242 (40% adaptable) · Retail floorspace - 1890sqm · Commercial floorspace - 3885sqm · Proposed VPA Offer o 2m land dedication for road widening o Monetary contribution $2,600,000 |
|
6 May 2015
|
Council Report considering Revision 1 (as above) Summary of Council resolution · The matter deferred for 2 months and for the applicant to work with Officers for a mutually acceptable outcome
|
|
1 July 2015
|
Council Report considering Revision 1 Summary of Council resolution · Council note the report and the matter be referred back to the 5 August 2015 Council Meeting.
|
|
10 July 2015 |
Hurstville LEP 2012 Amendment No. 3 made (City Centre LEP) and effective 24 July 2015 |
|
17 July 2015 |
Planning Proposal request Revision 2 for 108, 112 and 124 Forest Road and 1 and 3 Wright Street, Hurstville (5 lots) (the “Bing Lee” site) Amend Hurstville LEP 2012 by: · Rezoning: · 108 and 112 Forest Rd from B2 Local Centre and 1-3 Wright St from R3 Medium Density Residential to B4 Mixed Use · Increasing max. height of: 108 and 112 Forest Road - From 9m to 42m (13 storeys) 1-3 Wright Street - From 12m to 42m (13 storeys) 124 Forest Road - From 23m to 60m (19 storeys) · Increasing max. FSR to 4.8:1 on the five lots
· No. of residential units - 264 (40% adaptable) · Retail floorspace - 1,100sqm · Commercial floorspace – Nil
Proposed VPA Offer: · Monetary contribution of $2,600,000. · Dedication of 2m wide land for road widening. · Provision of affordable rental housing. · Dedicated bus stopping lane. · Dedication of public access to plaza areas.
|
|
5 August 2015
|
Council Report considering Revision 2 Summary of Council resolution · Council refused the Planning Proposal. (Rescission Motion subsequently lodged.) |
|
10 August 2015 |
Rescission Motion on the 5 August 2015 Report |
|
19 August 2015 |
Council Report considering Rescission Motion Council resolution · RESOLVED THAT the following resolution of the Council Meeting of 5 August 2015 in relation to CCL807-15 – Revised Planning Proposal Request and Offer to enter into a Planning Agreement – 108 112 and 124 Forest Rd and 1-3 Wright St Hurstville be rescinded:
o THAT Council refuse the recommendation to receive and note the report. · FURTHER THAT if the rescission motion is successful, that it be superseded by the following: o THAT Council receive and note the report. o FURTHER THAT a report come back to Council on the Meeting of 16 September 2015.
|
|
12 August 2015
|
DRP meeting 1 – Considered Revision 2 DRP Advice: · The Planning Proposal should be accompanied by a detailed Urban Design Study to justify the proposed variations to the height and FSR controls within the surrounding context. · A variety of design options must be explored before selecting the final option for the site. · Other concerns raised were in relation to: · the transition to the lower scale residential buildings on the northwest of the proposed tall buildings, and · the poor amenity of the proposed public open space fronting Forest Road, adverse impacts on view lines and overshadowing.
|
|
26 August 2015 |
Planning Proposal request Revision 3 for the Bing Lee site Amend Hurstville LEP 2012 by: · Rezoning: · 108 and 112 Forest Rd from B2 Local Centre and 1-3 Wright St from R3 Medium Density Residential to B4 Mixed Use · Increasing maximum height of: 108 and 112 Forest Road - From 9m to 42m (13 storeys) 1-3 Wright Street - From 12m to 42m (13 storeys) 124 Forest Road - From 23m to 60m (19 storeys) · Increasing max. FSR to 4.8:1 on the five lots
· No. of residential units - 260 (20% adaptable) · Retail floorspace - 1,700sqm · Commercial floorspace - 600sqm VPA Offer - As in Revision 2 above.
|
|
16 September 2015
|
Council Report considering Revision 3 Summary of Council resolution · A full assessment report on the revised Planning Proposal and the VPA offer be presented to Council following the completion of the assessment and referrals on the proposal.
|
|
12 October 2015 |
Planning Proposal request Revision 4 for 5 lots Same as Revision 3 above – the urban design information was restructured only and not amended as per the DRP advice of 12 August 2015. |
|
28 October 2015 |
Pre Gateway Review (PGR) application lodged with the Department of Planning and Environment (Request as per Revision No. 3 above) |
|
4 December 2015 |
Council submission to the Department on the PGR application. |
|
November/ December 2015 |
Independent Urban Design Peer Review - Based on Revision 3 Recommendation: Two potential built form options recommended as follows: Option 1 o Height - 13-10 storeys (42m-33m); and o FSR of approximately 3.6:1. This option allows more density and height in recognition of the corner’s role as the western edge of the gateway to the Hurstville City Centre. Option 2 o Height - 10 storeys (33m) to the corner with a podium base and a maximum of 7 storeys (23m) along Forest Road; and o FSR of approximately 3.1:1. This option is driven by the principle of responding to the scale opposite the site on Forest Road. |
|
19 November 2015
|
DRP meeting 2 - Based on Revision 3 Advice: The DRP noted that they could not support the Planning Proposal in its current form and recommended the proposal be amended to be consistent with the recommendations of the Urban Design Peer Review, subject to further testing in relation to solar access, overshadowing and other amenity issues.
|
|
9 December 2015
|
Council Report 6 considering Revision 3 Summary of Council resolution · The applicant is to submit an amended Planning Proposal responding to the recommendations of the Urban Design Peer Review and the comments of the DRP by 18 January 2016. · Assessment report on the revised Planning Proposal and VPA offer be presented to Council in 2016 following the completion of the referrals on the amended Planning Proposal.
|
|
18 January 2016 |
Planning Proposal request Revision 5 for the Bing Lee site Amend Hurstville LEP 2012 by: · Rezoning: · 108 and 112 Forest Road from B2 Local Centre and 1-3 Wright Street from R3 Medium Density Residential to B4 Mixed Use · Increasing maximum height of: 108 and 112 Forest Road - From 9m to 34m (10 storeys) 1-3 Wright Street - From 12m to 34m (10 storeys) 124 Forest Road - From 23m to 43m (13 storeys) · Increasing max. FSR to 4:1 on the five lots
· No. of residential units - 217 (36% adaptable) · Retail floorspace - 1,170sqm · Commercial floorspace - 645sqm VPA Offer: A monetary contribution of $1,880,000.
|
|
18 February 2016
|
DRP meeting 3 – Based on Revision 5 DRP Advice: · The podium height needs to be decreased from 8 levels to 3-4 levels. · The extent, location and heights of the two towers need to be resolved. · The tower buildings to be set back from the podium by at least 4m. · The need for the bridging element between the two tower buildings. · Continuous commercial uses to be provided at street level along the three (3) frontages and awnings be provided on the three frontages (rather than the residential on the two (2) side streets). · Central courtyard to be developed as a communal space or an activated public space.
|
|
11 March 2016 |
Planning Proposal request Revision 6 for the Bing Lee site Amend Hurstville LEP 2012 by: · Rezoning: · 108 and 112 Forest Road from B2 Local Centre and 1-3 Wright Street from R3 Medium Density Residential to B4 Mixed Use · Increasing max. height of: 108 and 112 Forest Road - From 9m to 34.5m (10 storeys) 1-3 Wright Street - From 12m to 34.5m (10 storeys) 124 Forest Road - From 23m to 46.5m (14 storeys) · Increasing max. FSR to 4:1 on the five lots · No. of residential units - 217 (36% adaptable) · Retail floorspace - 1,150sqm (5% floorspace) · 20,478sqm (95% of floor space) · Commercial floorspace - Nil VPA Offer: · A monetary contribution of $2,280,000. · Dedication of land for road widening.
|
|
24 November 2016
|
IHAP Report considering Revision 6: IHAP determination: That a report to Council be prepared to advise of the IHAP recommendations and request that Council consider forwarding the Planning Proposal to the NSW Department of Planning and Environment to request a Gateway Approval for an amendment to the Hurstville Local Environmental Plan 2012 in relation to Nos. 108, 112 and 124 Forest Road and Nos 1 and 3 Wright Street, Hurstville to: · Amend the Land Zoning Map (LZM ) to rezone Nos 108 and 112 Forest Road, Hurstville from B2 - Local Centre Zone to B4 – Mixed Use Zone; · Amend the Land Zoning Map (LZM) to rezone Nos 1 - 3 Wright Street, Hurstville from R3 - Medium Density Residential Zone to B4 - Mixed Use Zone; · Amend the Height of Building map (HOB) to increase the height of buildings for Nos 108 and 112 Forest Road and 1 and 3 Wright Street, Hurstville to 34.5m; · Amend the Height of Buildings map (HOB) to increase the height of buildings for No 124 Forest Road, Hurstville to 46.5m; · Amend the floor space ratio map (FSR) to increase the maximum floor space ratio for Nos 108 and 112 Forest Road and Nos 1 and 3 Wright Street, Hurstville to 4:1; and · Amend the Lot Size Map (Sheet LSZ_008) to remove Nos. 1 and 3 Wright Street Hurstville from its application and consistent with the B4 - Mixed Use zone; and · Amend Clause 4.4A of HLEP 2012 to include the a provision relating to the subject site stating that development consent must not be granted for development unless the non –residential floor space is at least 0.5:1. THAT the Georges River IHAP also support the following: a) The preparation of an amendment to the Hurstville Section 94 Development Contributions Plan 2012 to include 108 Forest Road, 112 Forest Road and 1 and 3 Wright Street in the boundaries of the Hurstville City Centre to reflect the proposed B4 Mixed Use zoning of the land; and b) The preparation of an amendment to the Hurstville Development Control Plan No. 2 - Hurstville City Centre (Amendment No. 6) to include the subject site within the boundary of the Hurstville City Centre and site specific provisions including (but not limited to), setbacks to the adjoining residential development, street activation provisions and vehicular access points, building massing and form as well as provisions to upgrades to public domain, provide deep soil landscaped areas and through site connections and linkages.
|
|
13 December 2016
|
Council Report considering Revision 6 The Administrator moved and carried the IHAP recommendations as noted above.
|
|
16 December 2016 |
Planning Proposal was forwarded to the Department with a request for Gateway Determination in accordance with the Council resolution of 13 December 2016 to: · Rezone part of the site from B2 Local Centre and R3 Medium Density Residential to B4 Mixed Use; · Amend the height from 9m, 12m and 23m to 34.5m and 46.5m; · Amend the Floor Space Ratio for part of the site from 1:1 and 1.5:1 to 4:1; · Remove Nos. 1 and 3 Wright Street, Hurstville from the application of minimum lot size, consistent with the B4 - Mixed Use zone; and · Amend Clause 4.4A of HLEP 2012 to include a minimum non–residential floor space provision of 0.5:1 for the subject site.
|
|
24 February 2017 |
Gateway Determination received from the Department of Planning and Environment |
|
27 April 2017 |
Planning Proposal was updated (Revision 7) in accordance with the conditions of the Gateway Determination to include a minimum non-residential FSR of 0.5:1 |
|
17 May – 16 June 2017 |
Planning Proposal exhibited and 16 submissions received. |
Table 1: Summary of the Planning Proposal Revisions and Council, DRP, IHAP and Urban Design Peer Review considerations
12. For ease of understanding, the various revisions of the Planning Proposal are provided in Table 2 below:
|
Planning Proposal request |
Planning Proposal details |
|
Revision 1 (4 December 2014) - 108, 112 and 124 Forest Road, Hurstville (3 lots) |
|
|
Mixed-use development |
Zone change from B2 Local Centre to B4 Mixed Use |
|
Height: two towers - 27m (8 storeys) and 60m (19 storeys) |
|
|
FSR: 6.6:1 |
|
|
Retail: 1,890m2 |
|
|
Commercial: 3,885m2 |
|
|
Apartments: approx. 242 |
|
|
Revision 2 (17 July 2015) - 108, 112 and 124 Forest Road and 1 and 3 Wright Street, Hurstville (5 lots) (the “Bing Lee” site) |
|
|
Mixed-use development |
Zone change from B2 Local Centre and R3 Medium Density Residential to B4 Mixed Use |
|
Height: two towers - 42m (13 storeys) and 60m (19 storeys) |
|
|
FSR: 4.8:1 |
|
|
Retail: 1,100m2 |
|
|
Commercial: Nil |
|
|
Apartments: approx. 264 |
|
|
Revision 3 (26 August 2015) for the Bing Lee site (5 lots) |
|
|
Mixed-use development |
Zone change from B2 Local Centre and R3 Medium Density Residential to B4 Mixed Use |
|
Height: two towers - 42m (13 storeys) and 60m (19 storeys) |
|
|
FSR: 4.8:1 |
|
|
Retail: 1,700m2 |
|
|
Commercial: 600m2 |
|
|
Apartments: approx. 260 |
|
|
Revision 4 (12 October 2015) for the Bing Lee site (5 lots) |
|
|
Mixed-use development |
Design concept same as Revision 3, the urban design information was restructured only and not amended as per the DRP advice of 12 August 2015. |
|
Revision 5 (18 January 2016) for the Bing Lee site (5 lots) |
|
|
Mixed-use development |
Zone change from B2 Local Centre and R3 Medium Density Residential to B4 Mixed Use |
|
Height: two towers - 34m (10 storeys) and 43m (13storeys) |
|
|
FSR: 4:1 |
|
|
Retail: 1,170m2 |
|
|
Commercial: 645m2 |
|
|
Apartments: approx. 217 |
|
|
Revision 6 (11 March 2016) for the Bing Lee site (5 lots) |
|
|
Mixed-use development
|
Zone change from B2 Local Centre and R3 Medium Density Residential to B4 Mixed Use |
|
Height: two towers - 34.5m (10 storeys) and 46.5m (14 storeys) |
|
|
FSR: 4:1 |
|
|
Retail: 1,150m2 |
|
|
Commercial: Nil |
|
|
Apartments: approx. 217 |
|
|
Revision 7 (April 2017) for the Bing Lee site (5 lots) |
|
|
Mixed-use development
|
Zone change from B2 Local Centre and R3 Medium Density Residential to B4 Mixed Use |
|
Height: two towers - 34.5m (10 storeys) and 46.5m (14 storeys) |
|
|
FSR: 4:1 |
|
|
Retail: 2,704m2 |
|
|
Commercial: Nil |
|
|
Apartments: approx. 217 |
|
|
Notes: 1. Revision 7 takes into account the Department’s Gateway Determination conditions including a minimum non-residential floorspace of 0.5:1. 2. The EIA accompanying Revision 7 notes that the office market is well supplied within Hurstville, therefore Revision 7 proposes non-residential floorspace in form of retail (2,704sqm). |
|
Table 2: Summary of Planning Proposal revisions
13. The applicant’s revised Planning Proposal (Revision No. 6) was lodged on 11 March 2016 and included Nos. 1 and 3 Wright Street, Hurstville. Revision No. 6 of the Planning Proposal requested to amend the Hurstville LEP 2012 (HLEP 2012) to:
· Rezone parts of the site from B2 Local Centre and R3 Medium Density Residential to B4 Mixed Use (part of the site is already zoned B4 Mixed Use);
· Increase the maximum height of the buildings on the site to a range between 34.5m and 46.5m (currently 9m, 12m and 23m); and
· Increase the maximum floor space ratio control on the site to 4:1 (currently 1:1, 1.5:1 and 4:1).
Council consideration
14. At its meeting on 13 December 2016 (CCL127-16), Council considered the Planning Proposal and resolved:
(a) That Council endorse the forwarding of the Planning Proposal to the NSW Department of Planning and Environment to request a Gateway Approval for an amendment to the Hurstville Local Environmental Plan 2012 in relation to Nos. 108, 112 and 124 Forest Road and Nos 1 and 3 Wright Street, Hurstville to:
· Amend the Land Zoning Map (LZM) to rezone Nos 108 and 112 Forest Road Hurstville from B2 - Local Centre Zone to B4 – Mixed Use Zone;
· Amend the Land Zoning Map (LZM) to rezone Nos 1 - 3 Wright Street, Hurstville from R3 - Medium Density Residential Zone to B4 - Mixed Use Zone;
· Amend the Height of Buildings Map (HOB) to increase the height of buildings for Nos. 108 and 112 Forest Road and 1 and 3 Wright Street, Hurstville to 34.5m;
· Amend the Height of Buildings Map (HOB) to increase the height of buildings for No. 124 Forest Road, Hurstville to 46.5m;
· Amend the Floor Space Ratio Map (FSR) to increase the maximum floor space ratio for Nos. 108 and 112 Forest Road and Nos. 1 and 3 Wright Street, Hurstville to 4:1;
· Amend the Lot Size Map (Sheet LSZ_008) to remove Nos. 1 and 3 Wright Street, Hurstville from its application, consistent with the B4 - Mixed Use zone; and
· Amend Clause 4.4A of HLEP 2012 to include a provision relating to the subject site stating that development consent must not be granted for development unless the non –residential floor space is at least 0.5:1.
(b) That Council also note the IHAP resolution to support the following:
i. The preparation of an amendment to the Hurstville Section 94 Development Contributions Plan 2012 to include 108 Forest Road, 112 Forest Road and 1 and 3 Wright Street in the boundaries of the Hurstville City Centre to reflect the proposed B4 Mixed Use zoning of the land; and
ii. The preparation of an amendment to the Hurstville Development Control Plan No. 2 - Hurstville City Centre (Amendment No. 6) to include the subject site within the boundary of the Hurstville City Centre and site specific provisions including (but not limited to), setbacks to the adjoining residential development, street activation provisions and vehicular access points, building massing and form as well as provisions to upgrades to public domain, provide deep soil landscaped areas and through site connections and linkages.
15. In accordance with Council’s resolution of 13 December 2016, the Planning Proposal was forwarded to the Department of Planning and Environment on 16 December 2016. Council received a Gateway Determination to exhibit the Planning Proposal on 24 February 2017; which conditioned a minimum 28 days public exhibition and:
· Justification of the proposal’s inconsistency with Section 117 Direction 1.1 Business and Industrial Zones;
· A preliminary investigation of the land carried out in accordance with the contaminated land planning guidelines, to meet the requirements under the State Environmental Planning Policy 55 – Remediation of Land (SEPP 55);
· A revised Urban Design report illustrating the proposed built form taking into consideration the requirement for a minimum non-residential floor space of 0.5:1; and
· A revised Economic Impact Assessment taking into consideration the requirement for a minimum non-residential floor space of 0.5:1.
16. Both the Urban Design and the Economic Impact Assessment reports were placed on public exhibition with the Planning Proposal and the Planning Proposal was updated to reflect the revised reports.
17. The Planning Proposal was exhibited from 17 May to 16 June 2017 and a total of 16 submissions were received. The submissions included two petitions signed by 61 and 30 signatories respectively and mainly raised issues in relation to traffic and parking, amenity (including privacy, overshadowing and view loss), child safety and noise.
18. In accordance with Council’s resolution of 13 December 2016, Amendment No. 8 to DCP No.2 – Hurstville City Centre was prepared for the Bing Lee site and exhibited from 25 April to 1 June 2018.
19. Subject to the LPP (former IHAP) consideration of the Planning Proposal, it is anticipated to be reported to the E & P Committee on 9 July and Council on 23 July 2018.
20. The Gateway Determination required Council to finalise the amending LEP by 3 March 2018. Given the delays in ensuring DCP controls that provide for quality urban design outcomes are in place when the LEP is amended, in December 2017, Council requested the Department of Planning and Environment for an extension to the Gateway Determination for the Planning Proposal. Council has been granted an extension to 3 July 2018.
The Site and Locality
21. The subject site fronts Forest Road, Wright Street and Hudson Street and is located on the eastern edge of the Hurstville City Centre (Figure 1 below).

Figure 1: Site Plan
22. It comprises five lots, being Nos 108, 112 and 124 Forest Road and 1 and 3 Wright Street, Hurstville. The subject site has a total area of approximately 5,407sqm with the following frontages on three streets – Forest Road (90.6m), Hudson Street (49.3m) and Wright Street (70.9m).
23. The subject site is situated approximately 530m from Allawah Station and 650m from Hurstville Railway Station. The site surrounds are described as follows:
· North: To the north along Hudson Road and Wright Street are 3-4 storey residential flat buildings (Figure 2).

Figure 2: 3-4 storey residential apartments (Source: Google Maps)
· South: Opposite the subject site on the southern side of Forest Road is the East Quarter site (Figure 3). Stages 1 and 2 of this development are complete. The LEP for Stage 3 of the development was finalised on 5 May 2017.
This Planning Proposal requests two towers – 34.5m (10 storeys) and 46.5m (14 storeys) high, 210 residential units and 2,704sqm of commercial floor space on ground level.

Figure 3: Stages 1 and 2 of East Quarter (Source: Google Maps)
· East: To the east of the subject site are industrial uses which are accommodated in one and two storey buildings between Forest Road, Wright Street and Durham Street (Figure 4). A Planning Proposal on the industrial site; on the corner of Forest Road and Durham Street (i.e. Landmark Square Precinct) was supported by the former Hurstville Council on 20 April 2016 and received a Gateway in late 2017.
This Planning Proposal requested to rezone the site from part IN2 - Light Industrial zone and part R2 - Low Density Residential zone to B4 - Mixed Use zone and currently proposes a range of heights from 12m to 65m and an FSR range from 2:1 to 4:1 that includes a bonus 0.5:1 FSR for a hotel.

Figure 4: 1-2 storey industrial uses (Source: Google Maps)
· West: To the west of the subject site are two-storey shops and commercial offices (Figure 5).

Figure 5: 2 storey shops and commercial offices (Source: Google Maps)
Current Planning Controls
24. The Hurstville LEP 2012 applies to the subject site. The following provisions are relevant to the Planning Proposal; extracts of which are shown in Figures 6 to 11 below:
· Land zoning: B2 Local Centre, R3 Medium Density Residential and B4 Mixed Use;
· Height: ranges 9m, 12m and 23m;
· FSR: 1:1, 1.5:1 and 4:1;
· Active Street Frontages: active frontage along Hudson Street and Forest Road frontages;
· Heritage: no heritage items located on the site;
· Minimum Lot Size: 1 and 3 Wright Street affected by 450sqm minimum lot size; and
· Airspace Operations: must be considered.

Figure 6: Land Zoning Map Extract adapted from Hurstville LEP 2012

Figure 7: Height of Buildings Map Extract adapted from Hurstville LEP 2012

Figure 8: Floor Space Ratio Map Extract adapted from Hurstville LEP 2012

Figure 9: Heritage Map Extract adapted from Hurstville LEP 2012

Figure 10: Active Street Frontages Map Extract adapted from Hurstville LEP 2012

Figure 11: Minimum Lot Size Map Extract adapted from Hurstville LEP 2012
Assessment of the Planning Proposal
Strategic planning context
25. Consideration of the Planning Proposal request in relation to the Greater Sydney Region Plan (A Metropolis of Three Cities), the South District Plan, the State and Regional Statutory Framework and Section 9.1 Directions is provided below:
Greater Sydney Region Plan (A Metropolis of Three Cities)
26. A Metropolis of Three Cities was finalised and released by the Greater Sydney Commission in March 2018 and establishes the aspirations for the region over the next 40 years. The Region Plan is framed around 10 directions relating to infrastructure and collaboration, liveability, productivity and sustainability.
27. The Planning Proposal (Revision 7) is considered to be consistent with the following Directions and Objectives of the Greater Sydney Region Plan:
1. Direction 3: A city for people
Objective 6: Services and infrastructure meet communities’ changing needs
Objective 7: Communities are healthy, resilient and socially connected
Objective 8: Greater Sydney’s communities are culturally rich with diverse neighbourhoods
The Planning Proposal assists in encouraging healthy communities by creating a mixed-use development that provides a convenient focus for daily activities and benefits from its proximity to retail and services, and employment opportunities within the Hurstville City Centre. It is also in close proximity to Kempt Field, which provides a recreation focus for the local community.
2. Direction 4: Housing the city
Objective 10: Greater housing supply
Objective 11: Housing is more diverse and affordable
The Planning Proposal will increase housing opportunities within Hurstville City Centre (with an estimated 217 new residential apartments) within walking distance from Hurstville Railway Station and bus interchange.
Housing choice to suit the varying needs of residents will be provided through the development of the 217 new dwellings on the site, with a range of sizes provided. The variety of housing available will provide housing choice to suit different lifestyles, household sizes and affordability.
3. Direction 5: A city of great places
Objective 12: Great places that bring people together
The Planning Proposal anticipates creating a quality mixed-use development with retail floorspace on the ground floor and residential above. Other key considerations of the development include:
· Design Excellence - Promote design excellence through the creation of a sustainable and liveable environment for people through use of expert panels and active engagement between Council and applicants; that aligns with the vision for the Hurstville City Centre.
· Transition / Interface - Provide adequate transition compliant with the Apartment Design Guide between the new development and the adjoining residential development on Wright and Hudson Streets.
· Active Street Frontages – Ground floor frontages along Hudson Street, Forest Road and Wright Street to be active and pedestrian oriented.
4. Direction 7: A well connected city
Objective 14: A Metropolis of Three Cities – integrated land use and transport creates walkable and 30-minute cities
It is noted that the site is located well within the walkable catchments of the following transport hubs:
· 530m from the Allawah Railway Station;
· 650m from the Hurstville Railway Station; and
· 700m from the Hurstville bus interchange (Woodville Street)
The Planning Proposal anticipates providing approximately 217 new dwellings in the form of a mix of apartments. The site is suitable for this increase in dwellings as it is located within the Hurstville Strategic Centre, close to job opportunities and public transport services (Illawarra Railway line and bus interchange) with frequent services.
5. Direction 8: Jobs and skills for the city
Objective 22: Investment and business activity in centres
Objective 23: Industrial and urban services land is planned, retained and managed
The incorporation of the minimum non-residential floor space requirement of 0.5:1 will contribute towards achieving this Direction through providing employment floor space within the Hurstville Strategic Centre, on a site which benefits from its proximity to the commercial, retail and services within the Hurstville City Centre. This will also assist in delivering more investment and business activity and increased productivity.
South District Plan
28. The South District Plan was finalised and released by the Greater Sydney Commission in March 2018. The District Plan is a guide for implementing A Metropolis of Three Cities at the district level and proposes a 20-year vision by setting out aspirations and proposals for the South District. The District Plan provides eight Planning Priorities under six Directions.
29. The South District Plan sets five year dwelling and employment targets which councils in the South District are expected to accommodate in their LEPs. The Plan specifies a five year housing supply target of 4,800 for Georges River Council. Councils need to develop 6-10 year housing targets through the preparation of housing strategies.
30. The change in zone for the part of the site from R3 Medium Density Residential and B2 Local Centre to B4 Mixed Use, and the proposed height and FSR increases for the site will provide:
· Employment opportunities within the proposed retail floor space (approx. 2,704sqm); and
· Improvements to housing choice and availability in close proximity to public transport and the Hurstville City Centre which offers retail and essential services.
31. The Planning Proposal is considered to be consistent with the following Planning Priorities of the South District Plan as in Table 3 below:
|
Direction |
Planning Priorities relevant to the Planning Proposal |
|
Housing the city |
Planning Priority S5: Providing housing supply, choice and affordability, with access to jobs, services and public transport |
|
A city of great places |
Planning Priority S6: Creating and renewing great places and local centres, and respecting the District’s heritage |
|
Jobs and skills for the city |
Planning Priority S9: Growing investment, business opportunities and jobs in strategic centres |
|
A well connected city |
Planning Priority S12: Delivering integrated land use and transport planning and a 30-minute city |
Table 3: South District Plan - Directions and Planning Priorities applicable to the subject Planning Proposal
State and Regional Statutory Framework
32. The following is a list of State Environmental Planning Policies (SEPPs) that apply to the subject site and consideration of the Planning Proposal’s consistency with the objectives and provisions of the SEPPs. See Table 4 below:
|
State Environmental Planning Policy |
Applicable |
Consideration |
|
SEPP No.55 – Remediation of Land |
Applicable to the Planning Proposal. |
Proposal is generally consistent with this SEPP. A preliminary investigation of land in accordance with the contamination land planning guidelines was undertaken by the applicant as part of the conditions of the Gateway.
|
|
SEPP No.64 – Advertising and Signage |
Applicable to the Planning Proposal. |
Consistent. The Planning Proposal will not hinder the application of this SEPP.
|
|
SEPP No.65 – Design Quality of Residential Apartment Development |
Applicable to the Planning Proposal. |
Refer to consideration in points 86 to 89 of this report. |
|
SEPP (Affordable Rental Housing) 2009 |
Applicable to the Planning Proposal. |
Not inconsistent. The Planning Proposal request will not hinder the application of this SEPP.
|
|
SEPP (Building Sustainability Index: BASIX) 2004 |
Applicable to the Planning Proposal. |
Any future residential development will be required to comply with the BASIX requirements.
|
|
SEPP (Exempt and Complying Development Codes) 2008 |
Applicable to the Planning Proposal. |
Not inconsistent. The Planning Proposal does not hinder the application of this SEPP.
|
|
SEPP (Housing for Seniors or People with a Disability) 2004 |
Applicable to the Planning Proposal. |
Not inconsistent. The Planning Proposal request will not hinder the application of this SEPP.
|
|
SEPP (Infrastructure) 2007 |
Applicable to the Planning Proposal. |
Not inconsistent. The Planning Proposal request will not hinder the application of this SEPP.
|
Table 4: SEPPs applicable to the subject Planning Proposal
Section 9.1 Directions
33. The following is a list of Directions issued by the Minister for Planning to relevant planning authorities under Section 9.1 of the Environmental Planning and Assessment Act, 1979. See Table 5 below:
|
S9.1 Ministerial Direction |
Applicable |
Comment |
|
1. Employment and Resources |
||
|
1.1 Business and Industrial Zones Objectives: (a) Encourage employment growth in suitable locations, (b) Protect employment land in business and industrial zones, and (c) Support the viability of identified strategic centres. |
Applicable to the Planning Proposal. |
Consistent. No change is proposed to the B4 Mixed Use zoning of the site for 124 Forest Road. The proposed zoning change of the remaining site from R3 Medium Density Housing and B2 Local Centre will increase the amount of business zoned land in the Hurstville City Centre.
The Planning Proposal includes a minimum non-residential FSR of 0.5:1 to ensure that employment opportunities on the site are maintained. |
|
3. Housing, Infrastructure and Urban Development |
||
|
3.1 Residential Zones Objectives: (a) To encourage a variety and choice of housing types to provide for existing and future housing needs, (b) To make efficient use of existing infrastructure and services and ensure that new housing has appropriate access to infrastructure and services, and (c) To minimise the impact of residential development on environment and resource lands.
|
Applicable to the Planning Proposal. |
While not proposing the rezoning of the site to a residential zone, the retention/introduction of the B4 Mixed Use Zone and the proposed increase in the maximum height and FSR controls will allow for additional housing (approx. 217 dwellings) in an existing urban area, making efficient use of existing infrastructure, services and amenities. |
|
3.4 Integrating Land Use and Transport Objective: To ensure that urban structures, building forms, land use locations, development designs, subdivision and street layouts achieve the following planning objectives: (a) Improving access to housing, jobs and services by walking, cycling and public transport, and (b) Increasing the choice of available transport and reducing dependence on cars, and (c) Reducing travel demand including the number of trips generated by development and the distances travelled, especially by car, and (d) Supporting the efficient and viable operation of public transport services, and (e) Providing for the efficient movement of freight. |
Applicable to the Planning Proposal. |
The Planning Proposal is partly consistent with Direction 3.4 as it would allow for additional housing (approx. 217 dwellings) in a location with good access to the facilities within the Hurstville City Centre, in particular public transport.
Consideration of the traffic impact of the development on the road network is provided in points 64 to 76 of this Report.
Further details on an executed Voluntary Planning Agreement are provided in points 81 -85 of this Report. This includes provisions for: o land dedication for road widening; and o monetary contribution for the provision of public infrastructure, amenities and services within the Hurstville City Centre.
|
|
3.5 Development Near Licensed Aerodromes |
Applicable to the Planning Proposal. |
Consultation with Airport authorities has been undertaken as part of the public exhibition of the Planning Proposal and comments received and their consideration has been included in this Report.
Refer to points 47 to 63 of this Report for details. |
|
6. Local Plan Making |
||
|
6.1 Approval and Referral Requirements Objective: To ensure that LEP provisions encourage the efficient and appropriate assessment of development. |
Applicable to the Planning Proposal. |
Consistent. The Planning Proposal does not include provisions that require concurrence, consultation or referral of development applications to the Minister or public authority or identify development as designated development. |
|
6.3 Site Specific Provisions Objective: To discourage unnecessarily restrictive site specific planning controls. |
Applicable to the Planning Proposal. |
The Planning Proposal includes a minimum non-residential FSR of 0.5:1 on the site which is considered a means to ensure employment uses are provided on the site. The requirement will be included in the Hurstville LEP 2012 through an amendment to the existing Clause 4.4A. |
|
7. Metropolitan Planning |
||
|
7.1 Implementation of A Plan for Growing Sydney Objective: To give legal effect to the planning principles, directions and priorities for subregions, strategic centres and transport gateways contained in A Plan for Growing Sydney. Note: This Direction needs to be updated in light of the recently released Greater Sydney Region Plan (A Metropolis of Three Cities). |
Applicable to the Planning Proposal. |
The Planning Proposal is consistent with the latest metropolitan plan for Sydney, the Greater Sydney Region Plan (A Metropolis of Three Cities). The discussion is available in points 26 and 27 above. |
Table 5: Section 9.1 Directions applicable to the subject Planning Proposal
Public Exhibition
34. The Planning Proposal (PP2014/0004) was placed on public exhibition from 17 May to 16 June 2017, in accordance with the provisions of the Act and Regulation.
35. The notification for the public exhibition included the following:
· Statutory notice in The St George and Sutherland Shire Leader Newspaper (17 May 2017)
· Dedicated page on Council’s website (under Public Exhibitions)
· Facebook update (paragraph on project information linking to further details)
· Displays in Council’s Customer Service Centres and libraries including the public exhibition information, the Planning Proposal and appendices, draft Hurstville LEP 2012 Maps, Gateway Determination, relevant Council Reports and other legislative documents and information (e.g. section 117 Directions compliance table, State Environmental Planning Policy compliance, Hurstville LEP 2012 written instrument and Maps).
· Approximately 271 letters were sent to the affected and adjoining land owners and the key transport agencies, airport agencies and the Department of Education and Communities (in accordance with the Department’s Gateway Determination)
· Telephone and face to face contact with Strategic Planning and Council’s Duty Planner
36. During the exhibition, fourteen (15) submissions were received and the comments raised which specifically relate to the Planning Proposal are considered in this report. A late submission was received from TfNSW in May 2018 taking the total submissions to 16. Acknowledgement letters/emails were sent to all submitters following the end of the public exhibition/notification period.
37. For the purpose of reviewing and summarising the key issues raised, the submissions received during the public exhibition are grouped in the following categories: community submissions and public authority submissions. A summary is provided in Table 6 below:
|
Submission |
Number received |
|
Community |
7 |
|
Public Authority |
9 |
|
Total |
16 |
Table 6: Submissions received on the subject Planning Proposal
38. A summary of all submissions received during the public exhibition (17 May to 16 June 2017) is provided in Attachments 1 and 2.
Community submissions
39. A total of seven community submissions were received during the exhibition period (as detailed in Table 6 above).
40. These submissions predominately came from adjoining residents and included issues related to traffic and parking, residential amenity, child safety issues, overcrowding / overdevelopment and view loss. A detailed summary of the submissions received, and a response to the submissions is provided in Attachment 1 – Summary of Community Submissions.
41. The following is a summary of issues raised in the community submissions (note that an individual submission may raise more than one topic):
· Overcrowding / overdevelopment (1 submission) - concern over the density of the development
· View loss (1 submission) - concern over loss of views and natural light for apartments and homes on Forest Road, Wright Street and neighbouring properties
· Loss of property value (1 submission) - this is in conjunction with the loss of view and noise
· Traffic and parking issues (6 submissions) - concerns over excessive traffic on roads and parking problems
· Residential amenity (2 submissions) - concerns over solar access, privacy, overlooking and overshadowing issues
· Planning justification and rationale for rezoning (1 submission) - concern over planning and rezoning justification
· Child safety (1 submission) - concern regarding child safety due to a number of schools and coaching centres in the vicinity
· Infrastructure upgrades (1 submission) - concern regarding lack of infrastructure upgrades
· Allocate housing on alternative sites (1 submission) – request that sites developed below the specified FSR instead provide a source of new housing supply
· Acoustic amenity (4 submissions) - concern over noise from road traffic and wind
· Engagement with non-English communities (1 submission) - concern over the lack of information to these communities
· Community engagement (1 submission) - concern regarding the limited time provided for lodging submissions
· Non-residential floorspace/retail (1 submission) - concern regarding the ability to lease these spaces in light of 120 unleased commercial properties in Hurstville as on 31 May 2017 (realestate.com.au)
42. Of the total seven community submissions, two submissions (signed by 40 and 61 people respectively) also concur with the issues listed above including traffic and parking, noise pollution, overcrowding / overdevelopment, loss of view and child safety.
43. No changes have been recommended to the Planning Proposal as a result of the community submissions as the issues raised are anticipated to be considered in the future development application (DA) as part of SEPP65 and Apartment Design Guide (ADG) compliance.
44. As considered below, the Planning Proposal (PP2014/0004) was peer reviewed by an independent urban design consultant, GM Urban Design and Architecture Pty Ltd (GMU) and considered by the St George Design Review Panel (the “DRP”) on three occasions: 12 August 2015, 19 November 2015 and 18 February 2016. A number of comments in relation to the built form and the Design Quality Principles of SEPP 65 Design Quality of Residential Apartment Development were identified by the DRP; these issues have been addressed in the final revision of the Planning Proposal (Revision 7 – Refer Table 2).
45. Public Authority Submissions
The following public authorities were consulted and submissions received during the public exhibition of the Planning Proposal:
· Sydney Airport Corporation Limited;
· Civil Aviation Safety Authority;
· Commonwealth Department of Infrastructure and Regional Development;
· Roads and Maritime Services;
· Transport for NSW; and
· Department of Education and Communities.
46. A detailed summary of the comments received and a response to the submissions is provided in Attachment 2 – Summary of Public Authority Submissions.
47. The main issues raised in the submissions are summarised below.
Sydney Airport Corporation Limited (SACL) (Two submissions)
48. This summary is based on both submissions from Sydney Airport Corporation Limited (SACL).
Prescribed Airspace
49. SACL notes that 108, 112 and 124 Forest Road and 1 and 3 Wright Street lie within an area defined in schedules of the Civil Aviation (Buildings Control) Regulations, which limit the height of structures to 15.24 metres above existing ground height (AEGH) without prior approval of the Civil Aviation Safety Authority (CASA).
|
Property |
Prescribed Airspace (SACL) |
Proposed height in Planning Proposal (inclusive of lift over-runs, vents, chimneys, aerials, TV antennae, construction cranes) |
|
124 Forest Road |
130 metres above AHD |
104.5 metres AHD |
|
108 and 112 Forest Road and 1 and 3 Wright Street |
128m AHD |
93.5m AHD |
Table 7: Prescribed Airspace and proposed heights in Planning Proposal approved by SACL
50. Table 7 above compares SACL specified Prescribed Airspace heights for the respective sites with the maximum proposed heights in the Planning Proposal. SACL do not have any objections to the proposed heights as they are below the Prescribed Airspace heights. A new application must be submitted if the heights at these respective locations exceed these specific heights.
51. SACL advises that approval to operate construction equipment (i.e. cranes) should be obtained prior to any commitment to construct, in accordance with the information provided. A new approval must be sought in accordance with the Civil Aviation (Buildings Control) Regulations if the height of any temporary structure and/or equipment is greater than 15.24m AEGH.
52. Planning for Aircraft Noise and Public Safety Zones
SACL advises that the planning provisions (Section 9.1 Direction 3.5– Development near licensed aerodromes) for the assessment of aircraft noise for certain land uses are based on the Australian Noise Exposure Forecast (ANEF). The current ANEF which Council may use as a land use planning tool was endorsed by Airservices in December 2012 (Sydney Airport 2033 ANEF).
53. Response: SACL’s comments in relation to the Planning Proposal are noted. The airport impacts of any future development application (DA) will be addressed during the assessment of the DA and addressed in a future report to the Sydney South Planning Panel.
54. Recommendation: No change to the Planning Proposal is recommended in light of SACL’s comments.
Commonwealth Department of Infrastructure and Regional Development
55. The Department notes building heights for the Planning Proposal are 104.47m AHD and 92.50m AHD.
56. The Department understands that Council has consulted with SACL regarding this proposal, and note that SACL would be able to provide detailed information about the relevant airspace above the site.
57. The Department advises that given the heights of the buildings and their proximity to Sydney Airport, approval for the construction of these buildings may require approval under the Airports (Protection of Airspace) Regulations, including assessment by Civil Aviation Safety Authority and Air Services.
58. The Department recommends the proponents to continue to advise SACL of the planned final heights of the buildings as well as any associated crane activities.
59. Response: The Department’s comments in relation to the Planning Proposal are noted. Council will consult with the airport authorities as part of the assessment of any future DA and address it as part of a future report in the Sydney South Planning Panel.
60. Recommendation: No change to the Planning Proposal is recommended in light of the Department’s comments.
Civil Aviation Safety Authority (CASA)
61. CASA advises that due to the proximity of the development site to the Bankstown and Sydney Kingsford Smith aerodromes and the potential for cranes to be used during construction, Council should refer the proposal to both aerodromes and the procedure design organisation(s) responsible for the maintenance of the instrument flight procedures at these aerodromes.
62. Response: CASA’s comments in relation to the Planning Proposal are noted. Council will consult with the Bankstown and Sydney Kingsford Smith airport authorities as part of the assessment of any future DA and address it as part of a future report to the Sydney South Planning Panel.
63. RECOMMENDATION: No change to the Planning Proposal is recommended in light of CASA’s comments.
Roads and Maritime Services (RMS)
64. Roads and Maritime Services (RMS) has reviewed the Planning Proposal and believe the proposed amendments will not have a significant impact on the classified road network.
65. RMS note that the Planning Proposal includes a draft amendment to the Development Control Plan No. 2 – Hurstville City Centre that requires a vehicular access to the future mixed-use development “to be off Wright Street or Hudson Street and as close as practical to the interface with the residential boundary”.
66. While no infrastructure upgrade works are proposed as part of the subject proposal, it is understood that the intersection of Forest Road / Durham Street / Wright Street is proposed to be upgraded to a signalised intersection as part of the Stage 3 development of the ‘East Quarter’ development, south of the subject site. RMS are supportive of a development control that encourages access to be located as far from the future signalised intersection of Forest Road / Wright Street and Forest Road / Hudson Street to prevent potential conflict.
67. Response: RMS’s comments in relation to the Planning Proposal are noted. The traffic impacts of any future DA will be addressed during the assessment of the DA and addressed in a future report to the Sydney South Planning Panel.
68. Recommendation: No change to the Planning Proposal is recommended in light of RMS’s comments.
Transport for NSW (TfNSW) (Three submissions – the discussion below summarises all three submissions)
69. TfNSW has reviewed the various traffic studies accompanying the Planning Proposal and raised the following concerns:
o The traffic studies did not include any intersection analysis, and
o The proposed intersection upgrade within the proposed development at Forest Road/Hudson Street conflicted with the Development Application (DA/2016/0218) and its plan to upgrade the Forest Road/Wright Street/Durham Street intersection.
70. TfNSW requested Council to advise TfNSW of the outcome of DA/2016/0218, and if approved, revise the subject Planning Proposal to incorporate the approved intersection configuration in the traffic network modelling and road design and assess the implication of the two closely spaced signalised intersections; in particular from road safety and vehicle queuing perspectives.
71. Council advised TfNSW that the proposed intersection upgrade of Forest Road/Hudson Street did not form part of the subject Planning Proposal but was identified as a mitigation measure in the independent Traffic Impact Assessment (TIA, 2015) initiated by Council. Council also confirmed that upgrade of the Forest Road/Wright Street/Durham Street intersection had been approved as part of DA2016/0218 for the East Quarter site.
72. TfNSW acknowledged this in their second submission and advised that the proponent should assess the cumulative traffic impact with regard to the subject Planning Proposal and other approved developments within its area of influence.
73. Council clarified that the cumulative traffic impact of the subject site was included in the TIA study initiated by the former Hurstville Council in 2015 (now Georges River Council). The aforementioned TIA assessed the intersection performance and proposed mitigation measures of the cumulative traffic impact of five developments within the Hurstville City Centre, including the subject site. Further, the applicant’s traffic response prepared for the subject Planning Proposal in August 2017 demonstrated a reduction in peak hour traffic generation in conjunction with a reduction in residential units and an increase in retail space (Revision 7) as compared to the TIA (2015) that had modelled Revision 2.
74. In the May 2018 response, TfNSW acknowledged the Planning Proposal to be acceptable in relation to traffic issues. TfNSW requested Council, as the Planning Authority, to undertake the intersection upgrades identified in the TIA (2015) to ensure the additional traffic generation and impact of the five developments were appropriately addressed and did not pose further adverse impacts on the road network.
75. Response: TfNSW’s comments in relation to the Planning Proposal are noted.
A Planning Agreement was executed between Council and the applicant on 26 March 2018 that requires the developer to dedicate land to Council for the purpose of widening Forest Road to facilitate traffic movement on Forest Road; and make a monetary contribution to Council for the purpose of public infrastructure, amenities and services within the Hurstville City Centre. Details are available on Council’s website.
In relation to the upgrade of the Forest Road/Durham Street/Wright Street intersection, a VPA has been executed between the developer and Council as part of the East Quarter Stage 3 development; where the developer is required to carry out road works at the intersection of Forest Road and Durham Street ($1.76 million). Further details are available on Council’s website.
76. Recommendation: No change to the Planning Proposal is recommended in light of TfNSW’s comments.
Department of Education and Communities
77. The Department of Education raised no concerns in relation to the Planning Proposal.
78. Response: The Department’s comments in relation to the Planning Proposal are noted.
79. Recommendation: No change to the Planning Proposal is recommended in light of the Department’s comments.
80. No changes have been recommended to the Planning Proposal as a result of the Public Authority submissions; as the issues raised either relate to further consultation with the Airport Authorities during the consideration of the future DA or relate to the management of traffic impacts of the development and upgrade of key intersections in the vicinity. The traffic impacts of any future DA will be addressed during the assessment of the DA and addressed in a future report to the Sydney South Planning Panel.
Planning Agreement
81. Council received an Offer to enter into a VPA on 7 December 2016 and it was reported to the Council meeting on 13 December 2016, where Council accepted the offer.
82. The Planning Agreement was placed on public exhibition from 15 November 2017 to 15 December 2017.
83. Georges River Council entered into a Planning Agreement pursuant to Section 7.4 of the Act with Shanghai Lihua Hurstville Pty Ltd and SLH 108 Pty Ltd on 26 March 2018.
84. The VPA requires the Developer to provide land dedication to Council for the purpose of widening Forest Road to facilitate traffic movement on Forest Road; and make a monetary contribution to Council of $3,775,750 for the purpose of the provision of public infrastructure, amenities and services within the Hurstville City Centre that may include possible future road works, and obtaining relevant studies, and payment of consultants fees.
85. The monetary contribution is over and above any Section 7.11 and Section 7.12 contributions applicable to the development.
Independent Urban Design Peer Review
86. GM Urban Design and Architecture Pty Ltd (GMU) was commissioned by the former Hurstville Council in October 2015 to provide an independent urban design peer review of Revision 4 of the Planning Proposal, which proposed the following amendments to height and FSR:
· Building height – from 23m to 60m and from 9-12m to 42m
· FSR – 4.8:1
87. In summary, GMU concluded that the height and density as requested are not warranted by the site’s location and recommended that the applicant further amend the proposal to reduce the scale and density of the proposed development.
88. GMU in their report also provided two options for the applicant’s consideration:
a. Option1: Height to range between 13-10 storeys (42m-33m), FSR approximately 3.6:1
b. Option 2: Height to range between 10-7 storeys (33m-23m), FSR approximately 3.1:1
St George Design Review Panel
89. The St George Design Review Panel (“DRP”) considered various revisions of the Planning Proposal on three occasions:
a. 12 August 2015 (Revision 2);
b. 19 November 2015 (Revision 4); and
c. 18 February 2016 (Revision 5).
Note: Refer to Table 2 above regarding details of Planning Proposal revisions.
90. A number of comments in relation to the built form and the Design Quality Principles of SEPP 65 Design Quality of Residential Apartment Development were identified by the DRP.
91. The DRP recommended:
a. The four (4) storey podium be retained, brought forward to the street property alignment, and very desirably also be continued along the street alignments in both Wright and Hudson Streets; providing this alignment allows for a desirable streetscape.
b. Continuous commercial uses be provided at street level along the three (3) frontages (rather than the residential as indicated in the submission on the two (2) side streets).
c. The general arrangement of the central courtyard as proposed be maintained, and critically it be developed as either a communal space for residents with necessary security or as an activated and safe public space or as a combination of the two (2) with careful consideration of interfaces.
d. Awnings be provided to commercial frontages along all three (3) streets, rather than colonnades, provided that Council’s policy in relation to street trees and other items can be accommodated.
e. The additional five (5) slightly setback podium levels above the lower four (4) as proposed in the submission be deleted.
f. There should be two (2) residential towers setback from the podium frontages by at least 4m.
g. Tower heights could be in the seven (7) - fourteen (14) storey range provided they do not cause any unacceptable overshadowing impacts on residential development or the East Quarter plaza. At least 2hrs mid-winter sunlight must be maintained to existing or potential new residential units on nearby sites.
h. Design and activation of the communal open space is to be improved through use, circulation patterns, connections with public areas, appropriate planting and activation of adjacent building frontages.
i. Areas of deep soil for medium size trees are to be accommodated.
j. The preparation of a site specific DCP is essential for this site.
92. The applicant has amended the Planning Proposal to incorporate the GMU and DRP recommendations in the final concept design (Revision 7). The Planning Proposal (Revision 7 – March/April 2017) and all supporting documents are attached with this Report. They include:
a. Planning Proposal (Revision 7) - (Attachment 3)
b. Economic Impact Assessment - (Attachment 4)
c. Preliminary Site Investigation - (Attachment 5)
d. Urban Design Report - (Attachment 6)
e. Architectural Plans - (Attachment 7)
93. The DRP recommendations have been incorporated in Amendment No. 8 to DCP No. 2 – Hurstville City Centre (draft DCP 2). The key elements of the draft DCP 2 include:
· Design Excellence - Promote design excellence through the creation of a sustainable and liveable environment for people through use of expert panels and active engagement between Council and applicants; that aligns with the vision for the Hurstville City Centre.
· Land Dedication – Include details of the land to be dedicated to Council for road widening to address the traffic impacts of the future development of the site.
· Built Form and Setbacks – Provide a vibrant mixed use development that takes advantage of the site’s location.
· Façade Treatment and Street Corners – Articulate the building facades and emphasise street corners.
· Open Space and Landscaping - Ensure that development contributes to the amenity and quality of streets and the public domain.
· Pedestrian Experience – Promote a built form that provides a comfortable pedestrian environment.
· Transition / Interface - Provide adequate transition compliant with the Apartment Design Guide between the new development and the adjoining residential development on Wright and Hudson Streets.
· Active Street Frontages – Ground floor frontages along Hudson Street, Forest Road and Wright Street to be active and pedestrian oriented
· On-Site Parking – Parking for the future development is to be accommodated underground.
Conclusion and Next Steps
94. Council has exhibited the Planning Proposal and has received submissions from the community and public authorities. The issues raised in the community submissions are design and traffic related rather than the Planning Proposal. These issues will be addressed in the assessment report on a future development application to the Sydney South Planning Panel.
95. . An Environment and Planning Committee Report is anticipated to be presented on 9 July 2018 considering the submissions received to the Planning Proposal and draft DCP 2.
96. In light of the comments raised during the public exhibition, this report recommends that the LPP support the following proposed changes to the Hurstville Local Environmental Plan 2012 for the subject site (Nos. 108, 112 and 124 Forest Road and 1 and 3 Wright Street, Hurstville):
a. Amend the Land Zoning Map (LZM) to rezone Nos 108 and 112 Forest Road, Hurstville from B2 - Local Centre Zone to B4 – Mixed Use Zone (Attachment 8);
b. Amend the Land Zoning Map (LZM) to rezone Nos 1 - 3 Wright Street, Hurstville from R3 - Medium Density Residential Zone to B4 - Mixed Use Zone (Attachment 8);
c. Amend the Height of Buildings Map (HOB) to increase the height of buildings for Nos 108 and 112 Forest Road and 1 and 3 Wright Street, Hurstville to 34.5m (Attachment 9);
d. Amend the Height of Buildings Map (HOB) to increase the height of buildings for No 124 Forest Road, Hurstville to 46.5m (Attachment 9);
e. Amend the Floor Space Ratio Map (FSR) to increase the maximum floor space ratio for Nos 108 and 112 Forest Road and Nos 1 and 3 Wright Street, Hurstville to 4:1 (Attachment 10);
f. Amend the Lot Size Map (Sheet LSZ_008) to remove Nos. 1 and 3 Wright Street, Hurstville from its application, consistent with the B4 - Mixed Use Zone (Attachment 11); and
g. Amend Clause 4.4A of Hurstville LEP 2012 to include a provision relating to the subject site stating that development consent must not be granted for development unless the non-residential floor space is at least 0.5:1.
97. The advice from the Department of Planning and Environment at the issuing of the Gateway Determination (24 February 2017) confirmed that Council will request the Department to draft and finalise the Local Environmental Plan under Section 3.36 of the Environmental Planning and Assessment Act 1979.
98. The draft DCP 2 was exhibited from 25 April to 1 June 2018 and four submissions have been received.
99. A combined report on the submissions received to the Planning Proposal and the draft DCP 2 will be prepared for the 9 July 2018 Environment and Planning Committee, the minutes of which will be considered at the Georges River Council meeting on 23 July 2018 to advise the outcomes and recommendations of this LPP meeting and request that Council (as the “relevant planning authority”) resolve to support the Planning Proposal and the finalisation of the draft amendment to the Hurstville Local Environmental Plan 2012 as recommended above.
100. Subject to the LPP consideration and support of the Planning Proposal, the next steps include:
|
21 June 2018 |
LPP consideration of the submissions to the Planning Proposal (this Report) |
|
9 July 2018 |
E and P Committee consideration – Submissions received to Planning Proposal and draft DCP2 |
|
23 July 2018 |
Council consideration – Submissions received to Planning Proposal and draft DCP2 |
|
Late July/early August 2018 |
Subject to the resolution of Council, a report under Section 3.35 of the EP&A Act will be provided to the Department of Planning & Environment advising of Council’s resolution and any amendments to the Planning Proposal and requesting the draft Hurstville LEP 2012 amendment be finalised. |
|
Attachment ⇨1 |
Summary of Community Submissions - published in separate document |
|
Attachment ⇨2 |
Summary of Public Authority Submissions - published in separate document |
|
Attachment ⇨3 |
Planning Proposal (Revision 7) - published in separate document |
|
Attachment ⇨4 |
Economic Impact Assessment Report - published in separate document |
|
Attachment ⇨5 |
Preliminary Site Investigation Report - published in separate document |
|
Attachment ⇨6 |
Urban Design Report - published in separate document |
|
Attachment ⇨7 |
Architectural Plans - published in separate document |
|
Attachment ⇨8 |
Proposed Zoning Map - Exhibited and Recommended - published in separate document |
|
Attachment ⇨9 |
Proposed Height of Buildings Map - Exhibited and Recommended - published in separate document |
|
Attachment ⇨10 |
Proposed Floor Space Ratio Map - Exhibited and Recommended - published in separate document |
|
Attachment ⇨11 |
Proposed Lot Size Map - Exhibited and Recommended - published in separate document |
|
Georges River Council – Local Planning Panel Thursday, 21 June 2018 |
Page 159 |
REPORT TO GEORGES RIVER COUNCIL
LPP MEETING OF Thursday, 21 June 2018
|
LPP Report No |
LPP023-18 |
Development Application No |
PP2015/0005 |
|
Site Address & Ward Locality |
Planning Proposal - 9 Gloucester Road, Hurstville Hurstville Ward |
||
|
Proposed Development |
Planning Proposal to amend the Hurstville Local Environmental Plan 2012 as follows, in relation to 9 Gloucester Road, Hurstville (Lot 30 DP785238): a. To amend the Floor Space Ratio Map to increase the floor space ratio from 3:1 to 4:1 (including a minimum non-residential FSR of 0.3:1); and b. To amend the Height of Buildings Map to increase the maximum building height applying to the site from 23m to a range of heights being 23m, 30m, 40m, 50m and 60m. |
||
|
Owners |
GTB Hurstville Pty Ltd |
||
|
Applicant |
GTB Hurstville Pty Ltd |
||
|
Planner/Architect |
Planner - Dowling Urban / Architect - Turner |
||
|
Date Of Lodgement |
9/10/2015 |
||
|
Submissions |
N/A |
||
|
Cost of Works |
N/A |
||
|
Local Planning Panel Criteria |
Direction from the Minister for Planning under Section 9.1 of the Environmental Planning and Assessment Act 1979 and the Charter of the Georges River Council Local Planning Panel 2018 both specify that the Planning Proposal is to be referred to the Local Planning Panel before it is forwarded for Gateway Determination (approval). |
||
|
List of all relevant s.4.15 matters (formerly s79C(1)(a)) |
N/A – Planning Proposal
|
||
|
List all documents submitted with this report for the Panel’s consideration |
Attachment 1 – Design Review Panel Minutes dated 1 March 2018; Attachment 2 – Planning Proposal Report prepared by Dowling Urban; Attachment 3 – Architecture Concept Scheme prepared by Turner; Attachment 4 – Urban Design Report prepared by Austin McFarland; Attachment 5 – Tree Retention and Replacement Study prepared by Sturt Noble; Attachment 6 – Tree Canopy Study prepared by Turner; Attachment 7 – Economic Impact Assessment prepared by HillPDA; Attachment 8 – Transport Report prepared by Henson Consulting; Attachment 9 – Site Survey prepared by SDG; Attachment 10 – Letter from Director Environment and Planning dated 5 September 2017 |
||
|
Report prepared by |
Strategic Planner and Coordinator Strategic Planning |
||
|
|
Figure 1 – Site Plan
|
Executive Summary
1. GTB Hurstville Pty Ltd submitted a Planning Proposal request (PP2015/0005) on 9 October 2015 that seeks to amend the Hurstville Local Environmental Plan 2012 (“HLEP 2012”) in relation to 9 Gloucester Road, Hurstville (Lot 30 DP785238).
2. The Planning Proposal seeks:
a) To amend the Floor Space Ratio Map to increase the floor space ratio from 3:1 to 4:1 (including a minimum non-residential FSR of 0.3:1); and
b) To amend the Height of Buildings Map to increase the maximum building height applying to the site from 23m to a range of heights being 23m, 30m, 40m, 50m and 60m.
3. The site is located within the Hurstville City Centre and contains a campus style office park that accommodates approx. 10,042sqm of employment floor space.
4. This Planning Proposal is accompanied by an architectural concept scheme (Rev E dated May 2018, refer to Attachment 3) prepared by Turner demonstrating the following:
a) Building form with a variety of storeys ranging from 4 to 18 storeys:
i. Building A – 4 to 18 storeys (60m)
ii. Building B – 4 to 16 storeys (55m)
iii. Building C – 12 storeys (40m)
iv. Building D – 8 storeys (30m)
v. Building E – 4 to 6 storeys (23m)
b) Mixed use development featuring:
i. Approx. 2,770sqm retail / commercial floor space (0.3:1 FSR)
ii. Approx. 34,190sqm residential floor space (3.7:1 FSR)
c) 420 residential apartments comprising of:
i. 158 x one bedroom units
ii. 209 x two bedroom units
iii. 53 x three bedroom units
d) Multi-level basement car parking
e) At grade communal open space adjacent to public open space
f) Rooftop communal open space on top of each building
g) Public pedestrian underpass through-site link in the undercroft of Building B
h) Public open space of minimum 1,000sqm (identified as a Voluntary Planning Agreement contribution)
5. The concept scheme was considered by the Design Review Panel (“DRP”) on 1 March 2018 and the Panel generally supported the height and FSR proposed for the Planning Proposal subject to resolving a range of matters, which are addressed later in this report. A copy of the minutes is contained in Attachment 1.
6. The Planning Proposal is accompanied by an offer to enter into a Voluntary Planning Agreement (“VPA”) which is comprised of the following components:
a) Monetary contribution for public domain works and public road infrastructure;
b) Public access easement to a 1,000sqm open space area/pocket park on the site with embellishments including a children’s play area (refer Figure 31 below);
c) Public access easement to and from and across the land and pocket park;
d) Public art works; and
e) Public domain improvements including the undergrounding of electricity lines in front of 438-456 Forest Road (refer Figure 31 below) in addition to those undertaken with the redevelopment of the subject site.
7. The VPA offer will be reported separately to the Environment and Planning Committee, and Council.
8. This report recommends that the LPP support the Planning Proposal to increase the FSR from 3:1 to 4:1 and increase the height from 23m to a range of heights being 23m, 30m, 40m, 50m and 60m on the subject site and that the Planning Proposal be forwarded to the delegate of the Greater Sydney Commission for a Gateway Determination under Section 3.34 of the Environmental Planning and Assessment Act 1979.
9. This report also recommends an amendment to the Hurstville Development Control Plan No.2 – Hurstville City Centre (“HDCP No.2”) be prepared, to run concurrently with an amendment to the Hurstville LEP 2012 (if Gateway approval is given by the Department of Planning and Environment), to reflect urban design considerations for any future development of the site including the provision of public access, built form, boundary setbacks, deep soil areas, tree retention, vehicular access and any other relevant issues. The DCP is to be prepared at the proponent’s cost.
Report in Full
1 INTRODUCTION
10. GTB Hurstville Pty Ltd submitted a Planning Proposal request (PP2015/0005) on 9 October 2015 that seeks to amend the Hurstville Local Environmental Plan 2012 (“HLEP 2012”) in relation to 9 Gloucester Road, Hurstville (Lot 30 DP785238).
11. Table 3 below provides a chronology of the events leading up to this report on the revised Planning Proposal.
12. The revised Planning Proposal seeks:
a) To amend the Floor Space Ratio Map to increase the floor space ratio from 3:1 to 4:1 (including a minimum non-residential FSR of 0.3:1); and
b) To amend the Height of Buildings Map to increase the maximum building height applying to the site from 23m to a range of heights being 23m, 30m, 40m, 50m and 60m.
13. A VPA has been offered by the applicant and will be reported to the Environment and Planning Committee, and Council as a separate report.
2 SITE DESCRIPTION
2.1 Overview of the Site
14. This Planning Proposal applies to land known as 9 Gloucester Road, Hurstville (refer to Figure 2 below). The site has a legal description of Lot 30 DP785238 and is wholly in the ownership of GTB Hurstville Pty Ltd.
Figure 2 – Subject site at 9 Gloucester Road, Hurstville

15. The site is triangular in shape and is bound by Gloucester and Forest Roads to its north and south. These roads intersect at the eastern point in a splayed corner. The site is bound by private properties on its irregular western boundary and is located at the transition threshold between the central and western areas of the Hurstville City Centre.
16. The site has a total area of 9,240sqm. It excludes a 4x6m area on Gloucester Road (refer Figure 2 above) which is used as an electrical substation. A detailed site survey is provided in Attachment 9 and the overall frontage lengths are summarised in Table 1 below.
Table 1 – Site Boundary Dimensions
|
Boundary |
Overall Frontage |
|
Gloucester Road |
Approx. 148.7m |
|
Forest Road |
Approx. 158.3m |
|
Western boundary (adjacent to 438-452 Forest Road and 15 Gloucester Road) |
Approx. 108.5m |
17. The ground surface along the Forest Road frontage slopes gently downwards to the east and surface levels vary between about RL65.4 and RL61.4 relative to the Australian Height Datum (“AHD”). The ground surface level at the Gloucester Road frontage is relatively level between RL60.9 and RL61.4.
18. The site is currently occupied by three commercial buildings between 2 to 4 storeys with a FSR of approximately 1:1 (refer Figure 2 above). The existing built form represents a ‘suburban campus’ or ‘office park’ style configuration with a partially exposed basement car park. The remainder of the site comprises controlled access to the basement car park from Gloucester Road, an irregular through-site link and hardstand areas.
19. There are four existing tenants occupying the three commercial buildings, namely Centrelink, Austbrokers Pty Ltd, Stockdale Personnel Pty Ltd and the ORS Group Pty Ltd. The Economic Impact Assessment in Attachment 7 specifies that there is currently an estimated total of 82 staff with an estimated vacancy rate of 77% (or 7,691sqm).
20. The site is characterised by large trees with dense canopies lining the Forest Road and Gloucester Road street frontages, complemented by stretches of significant understorey planting which positively contribute to the area’s public domain. The highly landscaped appearance of the site, especially at the Forest and Gloucester Road corner, is particularly appreciated due to the relative lack of trees in the Hurstville City Centre. Refer to the Tree Study in Attachment 5 for an assessment of existing tree specimens on site.
21. Views of the site are shown in Figures 3-9 below.
Figure 3 – View of Gloucester / Forest Road corner

Figure 4 – View of 4 storey building from Gloucester Road

Figure 5 – View of car parking entrance on Gloucester Road

Figure 6 – View of recessed entrance to building on Forest Road

Figure 7 – View of 4 storey building from Forest Road

Figure 8 – View of pedestrian through-site link on Forest Road

Figure 9 – View of driveway at western boundary on Forest Road

2.2 Surrounding Land
22. The site is located towards the western edge of the Hurstville City Centre, refer to Figure 10 below for the location of the site (marked by x) in relation to the extent of the Hurstville City Centre.
Figure 10 – Extent of Hurstville City Centre

23. Its immediate context comprises of an array of underutilised sites including an at-grade public car park, service station, single storey factory outlet, other commercial premises and vacant railway land holdings. The site is isolated from other commercial use buildings. The primary interfaces of the site are described in Table 2 below.
Table 2 – Surrounding Development
|
Aspect |
Surrounding Development |
|
North |
· Gloucester Road – zone R3 Medium Density Residential · 3 to 5 storey walk-up style residential flat buildings |
|
East |
· Gloucester Road, Forest Road and Queens Road · Council owned car park on Gloucester Road · Coles service station · Various 2 storey commercial premises including Nara Lounge and Rivers |
|
South |
· Railway track and vacant railway land · Low-scale (2 storey) retail / commercial buildings with shop-top housing |
|
West |
· Adjoining 15 Gloucester Road – 4 storey walk-up style residential flat buildings · Adjoining 438-452 Forest Road – mixed use development with 2 storey podiums at street frontage and two towers (8 storeys and 16 storeys) towards the rear of the site · 454-456 Forest Road – low-scale (2 storey) retail / commercial building with shop-top housing · 458-460 Forest Road – ‘Toga’ mixed use development with tower forms of up to 60m |
24. Views of the surrounding land are shown in Figures 11-20 below.
Figure 11 – View of 2 storey premises on Forest Road

Figure 12 – View of Coles service station at corner of Gloucester and Forest Roads

Figure 13 – View of Council’s car park on Gloucester Road

Figure 14 – View along Gloucester Road (northerly) from intersection with Forest Road

Figure 15 – View of walk-up flats on Gloucester Road

Figure 16 – View of side boundary adjacent to No.15 Gloucester Road

Figure 17 – View along Forest Road (westerly) from intersection with Gloucester Road

Figure 18 – View of side boundary adjacent to No.438-452 Forest Road

Figure 19 – View of development at No.438-452 Forest Road

Figure 20 – View of mixed use residential development on Forest Road (R: ‘Toga’ development)

25. The site has direct access to Forest Road, which is a major road with local and regional bus services and a high level of accessibility for pedestrians, allowing for lesser car reliance for travel.
26. The site enjoys good access to Hurstville and Penshurst Railway Stations, being located within approx. 600m and 1,000m walking distance respectively, refer to Figure 21 below.
Figure 21 – Map of Accessibility to Railway Stations

27. Three major parks are within walking distance, comprising the Hurstville Oval and Velodrome, Arrowsmith Park and Penshurst Park and Aquatic Centre that provide for a range of major recreational opportunities.
3 PLANNING STRATEGIES, POLICIES AND CONTROLS
3.1 Existing Planning Controls
28. The site is currently zoned B4 Mixed Use under the HLEP 2012 (refer to Figure 22 below).
Figure 22 – HLEP 2012 Land Use Zoning Map

29. The site is identified as being affected by Active Street Frontages (“ASF”) under the HLEP 2012, refer to Figure 23 below. The ASF is applied along the Forest Road frontage. Clause 6.6 Active street frontages applies to the site.
Figure 23 – HLEP 2012 Active Street Frontages Map
![]()
30. The site has a maximum building height of 23m under the HLEP 2012, refer to Figure 24 below. Clause 4.3 Height of buildings is applicable to the site.
Figure 24 – HLEP 2012 Height of Buildings Map

31. The site has a maximum floor space ratio of 3:1 under the HLEP 2012, refer to Figure 25 below. Clause 4.4 Floor space ratio is applicable to the site.
Figure 25 – HLEP 2012 Floor Space Ratio Map

3.2 Background – Amendment No.3 to the HLEP 2012
32. The HLEP 2012 is a Standard Instrument LEP which requires the inclusion of maximum building heights and maximum FSRs as LEP development standards via maps and clauses.
33. At the date of its commencement on 7 December 2012, the HLEP 2012 did not contain height and FSR development standards for the Hurstville City Centre. Instead, height and FSR provisions were prescribed by the HDCP No.2. The subject site at 9 Gloucester Road had a maximum permissible building height of 23m and a maximum permissible FSR of 5:1 under the HDCP No.2.
34. In 2014, the former Hurstville City Council prepared an amendment to the HLEP 2012 (known as Amendment No.3) which identified maximum building heights and FSRs for properties within the Hurstville City Centre. In relation to the subject site, the draft amendment identified a maximum building height of 23m and a maximum FSR of 3:1.
35. During the public exhibition of draft Amendment No.3, a submission was received in relation to the subject site requesting a maximum FSR of 5:1 and maximum building heights “based on an urban design review of the appropriate redevelopment potential of the site”.
36. In consideration of the submission received, the former Hurstville Council’s planning staff made the following recommendation to not support the submission:
“It is not considered appropriate for the planning controls to be amended for this site or the site deferred from the draft LEP until such time as further planning investigations have been undertaken by the proponent and subject to a full assessment of their impact by Council”. [underlined added]
37. At its meeting dated 17 September 2014, the former Hurstville Council resolved to support the above recommendation. Amendment No.3 to the HLEP 2012 was gazetted and came into effect on 24 July 2015 with the current planning controls for the subject site as outlined above in this report.
38. In response to Council’s recommendation, the applicant submitted the subject Planning Proposal request (PP2015/0005) which includes planning investigations, detailed urban design considerations and an assessment of impacts.
3.3 Hurstville Development Control Plan No. 2
39. This report recommends that an amendment to the HDCP No.2 be prepared in the form of a site-specific chapter, to run concurrently with an amendment to the HLEP 2012 (if Gateway approval is given by the Department of Planning and Environment), to reflect urban design considerations for any future development of the site including the provision of public access, built form, boundary setbacks, deep soil areas, tree retention, vehicular access and any other relevant issues. The DCP is to be prepared at the proponent’s cost.
4 APPLICANT’S PLANNING PROPOSAL REQUEST
4.1 Background
40. A Planning Proposal request (PP2015/0005) for 9 Gloucester Road, Hurstville was lodged in October 2015 and since that time there have been five (5) amendments to the proposal.
41. Table 3 below provides a summary of the key events and amendments received leading up to the revised Planning Proposal which is the subject of this report. It should be noted that all events relating to the VPA are excluded from Table 3 as the VPA will be reported to Council in a separate report.
Table 3 – Summary of Key Events and Amendments
|
Date |
Details |
|
15 June 2015 |
Meeting between the applicant and Council staff to discuss a potential Planning Proposal. A preliminary concept scheme was presented, featuring: · 20 to 60m height (5-18 storeys); · 4.5:1 FSR; · 481 residential apartments; and · 1,600sqm commercial/retail floor space. |
|
9 October 2015 |
Planning Proposal lodged (PP2015/0005). No VPA offer was submitted but references to a future offer were provided in the applicant’s Planning Proposal Report. The concept scheme featured: · 23 to 60m height (5-18 storeys); · 4.5:1 FSR; · 450-475 residential apartments; · 1,700sqm commercial/retail floor space; · 300sqm community facility (subject to a future VPA offer); · 1,000sqm public park (subject to a future VPA offer); and · Public through-site link (subject to a future VPA offer).
|
|
19 November 2015 |
Planning Proposal was referred to the St George Design Review Panel (“DRP”). The Panel did not support the proposal and requested that the proposal be amended and referred to the Panel for further consideration. |
|
20 January 2016 |
Revision no.1 was submitted in response to the DRP minutes: · 23 to 60m height (5-18 storeys); · 4.5:1 FSR; · Minimum 1:1 commercial FSR (approx. 9,250sqm); · 347 residential apartments; · 300sqm community facility (subject to a future VPA offer); · 1,000sqm public park (subject to a future VPA offer); and · Public through-site link (subject to a future VPA offer). |
|
18 February 2016 |
Revision no.1 was referred to the DRP for consideration. The DRP supported the proposed density subject to the provision of sufficient deep soil and landscaping, and the preparation of a site-specific DCP to regulate future development. |
|
11 March 2016 |
A revised Planning Proposal was lodged which formalises the amendments proposed as part of revision no.1. |
|
March 2016 to May 2017 |
A draft VPA offer was submitted by the applicant to accompany the Planning Proposal. A series of correspondences occurred between Council staff and the applicants with regards to the proposed public benefits in the VPA offer and the method of calculating the uplift. The VPA offer will be reported separately to the Environment and Planning Committee, and Council. |
|
18 May 2017 |
An amended Planning Proposal (revision no.2) was submitted by the applicant featuring an increased residential dwelling yield by increasing the area of 60m building height by 415sqm. The scheme featured: · 23 to 60m height (5-18 storeys); · 4.5:1 FSR; · Minimum 1:1 commercial FSR (approx. 9,250sqm); · Approx. 400 residential apartments; · Provision of public open space which is 800 to 1,000sqm in area; · Provision of a public through-site link; and · Public domain improvements to be provided via the VPA. |
|
26 May 2017 |
Council staff conducted a preliminary assessment of revision no.2 and requested additional information from the applicant to justify the increase in the residential yield by 53 units (from revision no.1 to no.2) whilst the FSR sought remained at 4.5:1. Furthermore, the applicant was advised of Council’s concern regarding the viability of the 1:1 commercial FSR requirement due to the site’s location away from the B3 Commercial Core. |
|
13 July 2017 |
The applicant provided three development options with varying ratios of distribution between the residential and commercial/retail floor space. Option 3 below was identified by the applicant as their preferred option: 1. 3.5:1 residential FSR and 1:1 commercial/retail FSR 2. 4:1 residential FSR and 0.5:1 commercial/retail FSR 3. 4.2:1 residential FSR and 0.3:1 commercial/retail FSR |
|
2 August 2017 |
The applicant was advised that Council supports in principle a minimum 0.3:1 commercial/retail FSR on the site. |
|
5 September 2017 |
A letter from Council’s Director of Environment and Planning was provided to the applicant agreeing to the following (refer Attachment 10): · An increase in the maximum FSR for the whole site from 3.5:1 to 4.5:1, with the FSR being based on the following breakup: - 4.2:1 being the maximum residential floor space; and - 0.3:1 being the minimum non-residential floor space. |
|
8 September 2017 |
In response to Council’s letter, an amended Planning Proposal (revision no.3) was submitted by the applicant featuring a reduced commercial/retail FSR and increased residential dwelling yield. The scheme featured: · 23 to 60m height (5-18 storeys); · 4.5:1 FSR; · Minimum 0.3:1 commercial FSR (approx. 2,775sqm); · Approx. 450-475 residential apartments; · Provision of public open space which is 800 to 1,000sqm in area; · Provision of a public through-site link; and · Public domain improvements to be provided via the VPA.
|
|
5 October 2017 |
Revision no.3 was referred to the DRP for consideration. The Panel believed that insufficient information had been provided to support the increase in density and height, and requested that the proposal be amended and referred to the Panel for further consideration. |
|
12 February 2018 |
An amended Planning Proposal (revision no.4) was
submitted by the applicant featuring an extensive reconfiguration of the
building envelope and footprint as well as the introduction of a 4 storey
podium form on Forest Road. The reduction in building bulk resulted in a
reduced FSR. |
|
1 March 2018 |
Revision no.4 was referred to the DRP for consideration. The DRP recognised that the building form had been substantially modified in response to the comments of the Panel at its meeting dated 5 October 2017. As such, the proposed height and FSR were supported subject to the retention of existing significant trees. |
|
30 May 2018 |
An amended Planning Proposal (revision no.5) was submitted by the applicant with consideration of the DRP comments from its meeting dated 1 March 2018. This revision is the subject of this report. |
4.2 Summary of Planning Proposal Request
42. GTB Hurstville Pty Ltd submitted a Planning Proposal request (PP2015/0005) on 9 October 2015 that seeks to amend the Hurstville Local Environmental Plan 2012 (“HLEP 2012”) in relation to 9 Gloucester Road, Hurstville (Lot 30 DP785238).
43. A revised Planning Proposal request was submitted on 30 May 2018 and included the following amended documents which form the basis of the Planning Proposal request being considered in this report:
i) Planning Proposal Report (refer Attachment 2)
ii) Architectural Concept (refer Attachment 3)
iii) Urban Design Report (refer Attachment 4)
iv) Tree Retention and Replacement Study (refer Attachment 5)
v) Tree Canopy Study (refer Attachment 6)
vi) Economic Impact Assessment (refer Attachment 7)
vii) Transport Report (refer Attachment 8)
viii) Survey Plan (refer Attachment 9)
44. The Planning Proposal seeks to:
a) Amend the Floor Space Ratio Map to increase the floor space ratio from 3:1 to 4:1 (as per Figure 27 below), including a minimum non-residential FSR of 0.3:1 via an amendment to Clause 4.4A. The proposed clause wording is as follows:
4.4A Non-residential floor space ratios
(1C) Despite clause 4.4, development consent must not be granted for development on the following land unless the non-residential floor space ratio is at least 0.3:1:
(a) 9 Gloucester Road, Hurstville, being Lot 30, DP785238.
and
b) Amend the Height of Buildings Map to increase the maximum building height applying to the site from 23m to a range of heights being 23m, 30m, 40m, 50m and 60m(as per Figure 28 below).
45. The Planning Proposal does not seek to alter the land zoning and active street frontage provisions of the HLEP 2012.
Figure 27 – Proposed Floor Space Ratio Map

Figure 28 – Proposed Height of Buildings Map

4.3 Summary of Architectural Concept Scheme
46. This Planning Proposal is accompanied by an architectural concept scheme (Rev E dated 30 May 2018, refer to Attachment 3) prepared by Turner demonstrating the following:
a) Building form with a variety of storeys ranging from 4 to 18 storeys:
i. Building A – 4 to 18 storeys (60m)
ii. Building B – 4 to 16 storeys (55m)
iii. Building C – 12 storeys (40m)
iv. Building D – 8 storeys (30m)
v. Building E – 4 to 6 storeys (23m)
b) Mixed use development featuring:
i. Approx. 2,770sqm retail / commercial floor space (0.3:1 FSR)
ii. Approx. 34,190sqm residential floor space (3.7:1 FSR)
c) 420 residential apartments comprising of:
i. 158 x one bedroom units
ii. 209 x two bedroom units
iii. 53 x three bedroom units
d) Multi-level basement car parking
e) At grade communal open space adjacent to public open space
f) Rooftop communal open space on top of each building
g) Public pedestrian underpass through-site link in the undercroft of Building B
h) Public open space of minimum 1,000sqm (identified as a VPA contribution)
47. The concept scheme was considered by the Design Review Panel (“DRP”) on 1 March 2018 and the Panel generally supported the height and FSR proposed for the Planning Proposal subject to the resolution of a range of matters, which are addressed below in this report. A copy of the minutes is contained in Attachment 1.
5 ASSESSMENT OF THE PLANNING PROPOSAL
5.1 Strategic Planning Context
48. Consideration of the Planning Proposal request in relation to the Greater Sydney Region Plan (A Metropolis of Three Cities) and the South District Plan are provided below.
Greater Sydney Region Plan (A Metropolis of Three Cities)
49. The Greater Sydney Region Plan was finalised and released by the Greater Sydney Commission in March 2018 and establishes the aspirations for the region over the next 40 years. The Region Plan is framed around 10 directions relating to infrastructure and collaboration, liveability, productivity and sustainability.
50. The applicant has provided their assessment of the Planning Proposal against the relevant Objectives of the Region Plan as below:
51. Direction 4: Housing the city
Objective 10: Greater housing supply
Objective 11: Housing is more diverse and affordable
The Planning Proposal will provide approximately 420 new apartment dwellings. The site is suitable for this increase in dwellings as it is located within the Hurstville Strategic Centre, close to jobs and public transport (Hurstville Railway Station and bus interchange) with frequent services capable of moving large numbers of people. Housing choice to suit different needs and lifestyles will be provided with a range of apartment sizes to satisfy the apartment mix, objectives and design guidance of the Apartment Design Guide and the apartment size mix in the HDCP No.2.
52. Direction 5: A city of great places
Objective 12: Great places that bring people together
The Planning Proposal facilitates the provision of a public pocket park towards the centre of the site on Gloucester Road, as well as a public pedestrian underpass through-site link which connects Forest and Gloucester Roads. The public open space will be activated by retail uses at ground level. The proposal intends to transform the existing underutilised office park into an attractive new community meeting space.
53. Direction 6: A well-connected city
Objective 14: A Metropolis of Three Cities – integrated land use and transport creates walkable and 30-minute cities
Housing in close proximity to a range of regional public transport services will assist in meeting the 30-minute job access target. It is noted that the site is located well within the walkable catchments of the following transport hubs:
· 400m walking distance from the Hurstville bus interchange (Woodville Street);
· 600m walking distance from the Hurstville Railway Station; and
· 1,000m walking distance from the Penshurst Railway Station.
Furthermore, the proposal does not preclude the development of the Hurstville CBD commercial core. Instead, it intends to generate additional demand for local services through the introduction of 420 new dwellings and provides contemporary street-based economic activity on Forest Road.
54. Direction 7: Jobs and skills for the city
Objective 22: Investment and business activity in centres
While the proposed redevelopment reduces the amount of commercial floor space offered by the existing development, the current office facilities are redundant with poor economic prospects as demonstrated by the existing 77% vacancy rate. Health, education, knowledge and professional services as well as tourism are recognised sectors of future employment growth. The site is outside the commercial core of the Hurstville CBD and is therefore better suited for personal and professional services with different and more flexible accommodation needs.
The Planning Proposal will allow for the feasible redevelopment of redundant office facilities on a highly accessible but underutilised site for the purpose of a mixed use development.
55. Direction 8: A city in its landscape
Objective 30: Urban tree canopy cover is increased
Objective 31: Public open space is accessible, protected and enhanced
The proposal aims to retain the distinctive landscaped character of the site through the retention of the Gloucester Road street trees and the existing clusters of mature trees on the Forest Road frontage. The green corridor and microclimate will also be enhanced by the proposed introduction of an additional row of street tree planting on Forest Road. As a result, the proposal features an increase in urban tree canopy cover (refer to Tree Canopy Study in Attachment 6).
As part of the associated VPA and future redevelopment, all remaining overhead electricity wiring and services will be buried underground along this segment of Forest Road. This will provide an overhead clearance for the unobstructed growth of street trees.
The provision of a public pocket park with a children’s playground in addition to the mandatory communal open space creates a new accessible open space which would enhance the amenity of the Hurstville City Centre.
South District Plan
56. The South District Plan was finalised and released by the Greater Sydney Commission in March 2018. The District Plan is a guide for implementing A Metropolis of Three Cities at the district level and proposes a 20-year vision by setting out aspirations and proposals for the South District.
57. The Planning Proposal is considered to be consistent with the following Planning Priorities of the South District Plan.
|
Direction |
Planning Priorities relevant to the Planning Proposal |
|
Housing the city |
Planning Priority S5: Providing housing supply, choice and affordability, with access to jobs, services and public transport |
|
A city of great places |
Planning Priority S6: Creating and renewing great places and local centres, and respecting the District’s heritage |
|
Jobs and skills for the city |
Planning Priority S9: Growing investment, business opportunities and jobs in strategic centres |
|
A well connected city |
Planning Priority S12: Delivering integrated land use and transport planning and a 30-minute city |
|
A city in its landscape |
Planning Priority S15: Increasing urban tree canopy cover and delivering Green Grid connections Planning Priority S16: Delivering high quality open space |
58. The South District Plan also sets out Actions that would strengthen the Hurstville Strategic Centre. The applicant has identified that the Planning Proposal will assist in delivering the following Actions:
· “encourage new lifestyle and entertainment uses to activate streets and grow the night-time economy” and “recognise and support the role of Forest Road as a movement corridor and as an eat street” by providing contemporary commercial accommodation along the main Forest Road frontage suitable for a variety of purposes.
· “encourage
activation of secondary streets” by providing a pocket park and
associated retail uses on Gloucester Street, which is considered to be a
secondary street to Forest Road.
5.2 Council’s Local Strategic Plans
59. Consideration of the Planning Proposal request in relation to Council’s local strategic plans are provided below.
Draft Hurstville City Centre Urban Design Strategy (2018)
60. Georges River Council engaged SJB to prepare the Hurstville City Centre Urban Design Strategy which reviews and updates the existing development standards partly with the aim to identify opportunities for additional housing capacity within the Hurstville City Centre.
61. The site is located in the City West Transition Area character precinct. The Strategy identifies that the area is well planted with mature street trees and creates a green gateway to the Centre when entering from King Georges Road.
62. The Strategy acknowledges that the site is subject to a current Planning Proposal and recommends that the HLEP 2012 is amended to increase the height of the sub-block 2D (the subject site) from 23m to 60m at the western end of the site, stepping down to 40m at the eastern end, refer to Figure 29 below.
Figure 29 – Recommended height for subject site at sub-block 2D

63. The Planning Proposal is consistent with the overall maximum building height identified by the Strategy and retains the existing landscaped character of the City West Transition Area character precinct.
5.3 State and Regional Statutory Framework
64. The Planning Proposal is consistent with the following relevant State Environmental Planning Policies (SEPPs) as assessed by the applicant below:
State Environmental Planning Policy No. 55 – Remediation of Land
65. SEPP 55 aims to promote the remediation of contaminated land for the purpose of reducing risk and harm to human health or any other aspects of the environment.
66. The Planning Proposal does not contain provisions that will contradict or hinder the application of this SEPP. The applicant advises that the site’s historical use was for commercial purposes and the proposed use will comprise of retail / commercial purposes with residential above.
State Environmental Planning Policy No. 65 – Design Quality of Residential Apartment Development
67. The proposed development will be subject to the provisions of SEPP 65, which aims to improve the quality of residential apartment design in NSW.
68. The applicant has advised that the concept scheme has been designed in accordance with SEPP 65 and the Apartment Design Guide and any future DA will demonstrate compliance with the standards contained in this SEPP.
State Environmental Planning Policy (Infrastructure) 2007
69. The traffic-generating development provisions of the SEPP (Infrastructure) (Clause 104 and Schedule 3) require developments of a certain size or capacity to be referred to the Road and Maritime Services (“RMS”).
70. If the Planning Proposal is granted a Gateway Determination, it is anticipated that RMS will be included as a public authority to be consulted.
5.4 S9.1 Ministerial Directions
71. Ministerial Directions under Section 9.1 (formerly S117) of the Environmental Planning and Assessment Act 1979 set out a range of matters to be considered when preparing an amendment to a Local Environmental Plan.
72. The Planning Proposal is consistent with all relevant Ministerial Directions as assessed by the applicant in Table 4 below:
Table 4 – Consistency with S9.1 Ministerial Directions
|
S9.1 Direction |
Assessment |
|
1.1 Business and Industrial Zones |
The proposal is consistent with the Direction as it will give effect to the objectives of this Direction by facilitating the redevelopment of a redundant underutilised business zoned site which has a 77% vacancy rate. The proposal provides the opportunity to renew commercial activity on a site that is located outside the commercial core of the Hurstville CBD with more suitable contemporary facilities that support the viability of Hurstville as a Strategic Centre. |
|
3.1 Residential Zones |
The Planning Proposal encourages a variety and choice of housing types to provide for existing and future housing needs, whilst making efficient use of existing infrastructure and services. The proposal retains the landscaped character of the locality and demonstrates appropriate built form whilst minimising the impact on surrounding residential development. |
|
3.4 Integrating Land Use and Transport |
The Planning Proposal will enable retail and residential development in close proximity to jobs and services, thereby encouraging walking, cycling and use of public transport. |
|
7.1 Implementation of A Plan for Growing Sydney |
A Plan for Growing Sydney has been replaced by the Greater Sydney Commission’s Greater Sydney Region Plan (A Metropolis of Three Cities). The Planning Proposal is consistent with the Objectives of A Metropolis of Three Cities, as assessed by the applicant in Section 5.1 above. |
5.5 Design Review Panel
73. The St George Design Review Panel (“DRP”) first considered the Planning Proposal request at its meeting dated 19 November 2015. The Planning Proposal was subsequently referred to the DRP on multiple occasions, including 18 February 2016, 5 October 2017 and 1 March 2018 thereafter.
74. Table 3 of this report provides a chronology of the events leading up to this report on the revised Planning Proposal including the outcome of each DRP referral.
75. At the latest meeting dated 1 March 2018, an amended proposal dated January 2018 was considered and generally supported by the DRP subject to the retention of existing significant trees and the preparation of a tree canopy cover study. A copy of the DRP minutes is contained in Attachment 1.
76. The architectural concept scheme dated May 2018 (refer Attachment 3) is an updated version of the proposal considered by the DRP on 1 March 2018 and does not present any amendments or modifications to the maximum building envelope and proposed density.
77. It should be noted that some of the DRP recommendations involve detailed design work that are beyond the scope and purpose of a Planning Proposal and would typically be resolved at the development application stage.
78. Comments provided by the DRP are summarised below with respect to the applicable Design Quality Principles set out in SEPP 65:
Context and neighbourhood character
79. DRP Comment: The FSR has now been reduced to 4:1 including minimum 0.3:1 for commercial, generally fronting the Forest Road and Gloucester Road corner and the east side of the public square. This is supported. The heights have also been modified with a maximum of 60m and are considered to be acceptable in principle.
Council Comment: The proposed FSR and building height are considered to be appropriate to the high density context of the subject site. This segment of Forest Road is characterised by high density mixed use developments with maximum building heights of up to 60m and FSRs of up to 5:1.
80. DRP Comment: Substantial tree planting is a critical and positive aspect of the site, forming a landscaped ‘entry’ into Hurstville from the south. The proponent has still not devised a satisfactory strategy towards the conservation of this landscaping.
Council Comment: The canopy cover and landscaping provided by the existing development establishes a desirable green gateway to the Hurstville City Centre. The applicant has nominated the retention of all existing street trees on Gloucester Road as well as significant clusters of existing mature trees on Forest Road in light of the DRP comment.
Furthermore, the green oasis character of the site will be enhanced by an additional row of street trees on Forest Road to create a tunnel-like canopy over the pedestrian footpath. The overall surplus of ground level canopy cover (refer Attachment 6) provided by the proposal is considered to be an appropriate response to the conservation of this landscaped entry into Hurstville and positively enhances the existing character of the locality. A detailed tree retention schedule will be incorporated into the site specific DCP which accompanies this Planning Proposal.
Built Form and Scale
81. DRP Comment: A complete clearance should be provided above the cluster of Evergreen Alder trees at the centre of the site’s Forest Road frontage (location of proposed Building B) to ensure the retention and conservation of these trees.
Council Comment: The existing cluster of Evergreen Alder trees are located adjacent to the Forest Road boundary and the proposal includes a 4m wide setback in the maximum building envelope and basement footprint to assist in the preservation of these trees. Council may request that the 4m wide setback be increased as a result of detailed design at the development application stage. The pedestrian underpass through-site link has been deliberately positioned to accommodate this tree cluster which enables the provision of a four storey undercroft void for the ongoing growth of these trees.
However, it should be noted that the existing basement of the office park development currently encroaches into the Tree Protection Zones of the trees at the Forest Road frontage (refer Tree Study in Attachment 5) and the retention of these trees cannot be guaranteed due to proposed demolition of the existing basement.
For the above reasons, Council considers that this matter has been satisfactorily addressed for the purpose of the Planning Proposal and that further refinement of the building form will occur at the development application stage.
82. DRP Comment: Increase the proposed Gloucester Road setback of Building C from 2m to 4m to assist in the preservation of the existing London Plane trees and allow for an additional row of large tree planting.
Council Comment: The existing London Plane trees are located on Gloucester Road outside of the subject site and are required to be retained. Additional setback may be requested for this purpose subject to further detailed design.
Council recognises that the DRP request for an additional row of planting on Gloucester Road does indeed produce a more desirable outcome. However, this request is considered to be onerous in light of the surplus ground level canopy cover provided by the existing proposal. The concept scheme demonstrates the retention of Gloucester Road’s existing landscaped amenity and this is considered to be acceptable. Furthermore, additional large shade tree plantings on Gloucester Road are likely to reduce the solar access received by the public open space.
Landscape
83. DRP Comment: There should be no building over the existing tree canopies and existing microclimatic conditions must be maintained. The Panel requests that the applicant quantify the existing area of canopy cover as well as forecast the area of canopy cover that would be achieved with the present proposal, and identify the time period required to achieve equal or greater coverage than presently exists.
Council Comment: The applicant has prepared a Tree Canopy Study (refer Attachment 6) which quantifies the existing ground level canopy cover and provides a comparison with the proposed estimated canopy cover. The time period required to achieve equal or greater coverage can only be determined if the size and species of the proposed tree plantings are known, which are a detailed design matter that will be considered at the development application stage. However, a list of preferred planting species and planting sizes will be considered in the preparation of the site specific DCP. For the purpose of this Planning Proposal, the applicant has committed to the provision of a surplus in ground level canopy cover.
84. DRP Comment: Roof gardens should be provided for each building on the roof of each building.
Council Comment: This has been satisfactorily demonstrated by the architectural concept scheme (refer Attachment 3).
5.6 Urban Design Analysis
85. Located in the western end of the Hurstville City Centre, the subject site and its surrounding B4 Mixed Use zoned land are characterised by high density HLEP 2012 development controls that maximise redevelopment opportunities.
86. The western corner of the subject street block is defined by the ‘Toga’ development known as 458-460 Forest Road and 1B Pearl Street. This site has been recently developed with a height of 59.8m and FSR of 4.5:1 under the development approval 13/DA-35.
87. Immediately adjoining the western boundary of the site at 436-452 Forest Road is a 1990s mixed use development with approx. 130 residential units and comprised of two apartment towers of 16 and 8 storeys. Although this site has been granted a maximum building height of 60m and FSR of 5:1 under the HLEP 2012, redevelopment is not anticipated to occur in the immediate future due to the existing fragmented ownership.
88. The adjoining R3 Medium Density Residential zoned land towards the northern portion of the street block on Gloucester Road is predominately occupied by three storey walk-up flats. These sites currently have a maximum permissible height of 12m and FSR of 1:1. However, the Hurstville City Centre Urban Design Strategy has recommended that these areas be investigated for increases in height and FSR to 23m and 2:1-2.2:1 respectively.
89. Furthermore, the Strategy has recommended to increase the maximum building height to 40m for surrounding land to the east of the subject site (refer Figure 29 above).
90. In light of the existing development controls and recommended uplifts to the surrounding locality, the subject site is located in a critical location which requires the proposed built form to perform as the transition between medium and high density developments.
91. Figure 30 below illustrates the formal rhythm of the general adjoining built form as viewed from Gloucester Road. The darker red shading illustrates the heights required on the subject site to achieve an appropriate transition to the R3 zoned land on Gloucester Road, whilst the lighter pink shading represents the transitional form that responds to the higher density development on Forest Road to the rear.
Figure 30 – Gloucester Road Elevation showing Transition to Surrounding Context

92. The proposal is consistent with the above principle through the transitional heights of 23m, 30m and 40m proposed along the Gloucester Road frontage. The urban design strategy for the proposed envelope is outlined in the applicant’s Urban Design Report (refer Attachment 4).
93. The above principle is also applied to the Forest Road frontage where the maximum height increases from 40m at the Gloucester / Forest Road corner to 55m toward the centre of the site and 60m toward the western portion of the site. However, an additional 23m maximum building height (6 storeys) is applied at the western boundary adjoining 436-452 Forest Road to provide a low-scale buffer between the neighbouring 8 storey development and the proposed 18 storey (60m) tower.
94. To maintain the pedestrian amenity of Forest Road, a 4 storey podium is proposed along the Forest Road frontage to complement the active street frontages. This is further enhanced by the proposed tree plantings, provision of a 4 storey high pedestrian underpass through-site link and a public pocket park in addition to the at grade communal open space.
95. The shadows cast from the proposed envelopes fall mainly on the vacant railway land to the south of the site.
96. The Planning Proposal and the accompanying architectural concept scheme demonstrate an appropriate urban design response to its urban context and it also satisfies the relevant SEPP 65 Design Quality Principles. In this regard, the proposed density is considered to be suitable as the increased height and FSR does not compromise the amenity and design of any future development on site and the surrounding private and public spaces.
5.7 Economic Analysis
97. The Economic Impact Assessment (“EIA”, refer Attachment 7) submitted by the applicant concludes that although the Planning Proposal would lead to a net reduction in commercial floor space of approx. 7,230sqm, the number of jobs on the site compared to the ‘do nothing’ scenario is expected to increase by over 130 to reflect the improved use of space and amenity provided.
98. The existing campus style office park currently provides approx. 10,000sqm of commercial floor space. However, over 75% of the existing floor space is currently vacant. The EIA states that leasing this space is difficult in the current and foreseeable market of high supply and low demand, resulting in a high vacancy rate of 23% across the Hurstville centre. The prevalent market conditions support the proposal and it would be consistent with current development activity in Hurstville.
99. As discussed earlier in this report, the subject site is located in close proximity to major public multi-modal transport interchanges, essential amenities and services. The Planning Proposal will assist in meeting the strong housing demand in the area. The additional residential population would stimulate retail demand and employment within Hurstville City Centre.
100. The proposal is consistent with the objectives of the B4 Mixed Use zoning by allowing residential development in the Hurstville City Centre whilst maintaining active retail, business and other non-residential uses at street level, and integrating suitable business, office, residential, retail and other development in accessible locations so as to maximise public transport patronage and encourage walking and cycling.
101. Council recognises that commercial / office use demand on the subject site is limited due to its location on the outskirts of the Hurstville City Centre and subsequent separation from the B3 Commercial Core zoning in the centre of the CBD.
102. The reduction in commercial floor space is consistent with HLEP 2012 (Amendment No. 9) which in part reduced the amount of non-residential floor space required for B1 Neighbourhood Centre and B2 Local Centre zones from 0.5:1 to 0.3:1 under Clause 4.4A (Non-residential floor space ratios). The purpose of the amendment which was gazetted on 17 November 2017 is to encourage an appropriate mix of residential and non-residential uses in order to ensure a suitable level of non-residential floor space is provided to promote employment and reflect the hierarchy of the business zones.
103. A precedent was established by the approval of the ‘Toga’ development at 458-460 Forest Road and 1B Pearl Street which is located at the north-western corner of the subject street block. A total of 36,558sqm gross floor area was approved at 4.5:1 FSR with 563sqm allocated for retail premises. This equates to a FSR of less than 0.07:1 for non-residential land use within the ‘Toga’ development.
104. In comparison, the Planning Proposal will provide approx. 2,770sqm of non-residential floor space which equates to a 0.3:1 FSR. This is considered to be appropriate for the zoning and location of the site as the proposal will renew ageing offices.
105. Council’s Director of Environment and Planning endorsed the minimum 0.3:1 non-residential FSR in a letter to the applicant dated 5 September 2017 (refer Attachment 10). It should be noted that since the date of the letter, further refinements to the building form have been made and that the maximum FSR sought has been reduced to 4:1 as a result, however, the minimum 0.3:1 non-residential FSR remains unchanged.
106. The proposed retail / commercial floor space is located at ground level along the Forest Road frontage in Building A and is extended to the Gloucester Road corner at both ground floor and first floor in Building C. An open floor plate of over 750sqm is provided at the first floor of Building C to cater for the existing demand for office floor space.
5.9 Traffic and Transport
107. The concept scheme demonstrates one vehicle access point for the proposal via Gloucester Road adjacent to Building E. All car parking and services will be located in the basement.
108. The Transport Report (refer to Attachment 8) submitted by the applicant outlines the following key conclusions:
a) Vehicle traffic generation from the proposed development will be similar to the approved Hurstville City Centre Transport Management and Accessibility Plan 2013 (“TMAP”) scheme; and an insignificant change from the existing site uses;
b) Traffic generated by the proposed development can be accommodated within acceptable levels of service without adversely affecting traffic efficiency on the existing road network. Intersections are maintained at existing acceptable levels of service;
c) The impacts of the additional residential and commercial floor space and associated accessibility, traffic and infrastructure issues generated as a result of an increased height and FSR for the subject site are considered acceptable;
d) Access points for pedestrians, cyclists, and vehicles are suitable and in accordance with TMAP and road hierarchy considerations. The proposed through-site link will improve pedestrian circulation, add route choices and reduce walking distances to bus stops and local services. The anticipated traffic can be appropriately managed with no significant impact on amenity;
e) The proposed single driveway off Gloucester Road is appropriately located near the location of the existing subject site driveway, will not affect neighbours, and leaves Forest Road unobstructed for main road traffic, buses and bus stops, pedestrians and the future strategic bus corridor supported by the TMAP; and
f) There will be no adverse effects on the safety of any road users including public transport, pedestrians and cyclists.
109. Parking provisions, car park layout and road safety issues were not reviewed in detail as these will be subject to a detailed assessment at the development application stage.
6 VOLUNTARY PLANNING AGREEMENT
110. The Voluntary Planning Agreement Policy was adopted by Council on 1 August 2016 and sets out Council’s objectives in relation to the use of planning agreements.
111. Clause 5.3 of the Policy states that where either a planning proposal is proposed, or development consent is sought, which will result in an exceedance of development standards, resulting in an inherent increase in value of the land or development, the concept of land value capture may be used to assess the appropriate contribution.
112. Clause 5.13 of the Policy states through a formula, that Council capture fifty percent (50%) of the increase in the residual land value resulting from the planning uplift sought for a site via the Planning Proposal.
113. The Planning Proposal provides for uplift in the value of the land through the increase in FSR and height of buildings. The value of uplift prepared by the applicant has been independently assessed by Council’s consultant.
114. The VPA is comprised of the following components:
a) Monetary contribution for public domain works and public road infrastructure;
b) Public access easement to a 1,000sqm open space area/pocket park on the site with embellishments including a children’s play area (refer Figure 31 below);
c) Public access easement to and from and across the land and pocket park;
d) Public art works; and
e) Public domain improvements including the undergrounding of electricity lines in front of 438-456 Forest Road (refer Figure 31 below) in addition to those undertaken with the redevelopment of the subject site.
Figure 31 – Location of VPA Works


115. The VPA offer will be reported separately to the Environment and Planning Committee, and Council.
7 SUMMARY OF ASSESSMENT / CONCLUSION
116. In summary, the Planning Proposal seeks to amend the HLEP 2012 in relation to 9 Gloucester Road, Hurstville (Lot 30 DP785238):
a) To amend the Floor Space Ratio Map to increase the floor space ratio from 3:1 to 4:1 (including a minimum non-residential FSR of 0.3:1); and
b) To amend the Height of Buildings Map to increase the maximum building height applying to the site from 23m to a range of heights being 23m, 30m, 40m, 50m and 60m.
117. It is recommended that the LPP support the request for the following reasons:
a) The Planning Proposal and the accompanying architectural concept scheme demonstrate an appropriate urban design response to its context and it also satisfies the relevant SEPP 65 Design Quality Principles;
b) The proposed maximum building envelope demonstrates an appropriate urban design outcome through the formal transition to adjacent developments;
c) The proposed density is considered to be consistent with the mixed use development typology of recent developments in the vicinity of the site;
d) The proposal retains clusters of existing significant trees on the site and street trees along Gloucester Road whilst introducing additional street tree planting on Forest Road to enhance the existing canopy cover of this vital green corridor;
e) The proposal provides additional residential dwellings in an accessible location which is in close proximity to major public transport interchanges and other essential amenities and services;
f) The proposed commercial / retail floor space will generate a mixture of active and dynamic land uses; and
g) The Planning Proposal facilitates the creation of a public pocket park and through-site link to enhance the quality of the public domain within the Hurstville City Centre by providing critical open space infrastructure.
8 COMMUNITY CONSULTATION
118. Should the Planning Proposal be supported it will be forwarded to the delegate of the Greater Sydney Commission requesting a Gateway Determination.
119. If a Gateway Determination (Approval) is issued, and subject to its conditions, it is anticipated that the Planning Proposal will be exhibited for a period of 28 days in accordance with the provisions of the Environmental Planning and Assessment Act, 1979 and Regulation, 2000 and any requirements of the Gateway Determination.
120. Exhibition material, including explanatory information, land to which the Planning Proposal applies, description of the objectives and intended outcomes, copy of the Planning Proposal and relevant maps will be available for viewing during the exhibition period on Council’s website and hard copies available at Council offices and libraries.
121. Notification of the public exhibition will be through:
· Newspaper advertisement in The Leader
· Exhibition notice on Council’s website
· Notices in Council offices and libraries
· Letters to State and Commonwealth Government agencies identified in the Gateway Determination (if required)
· Letters to adjoining landowners (if required, in accordance with Council’s Notification Procedures)
122. The anticipated project timeline for completion of the Planning Proposal is shown below:
|
Task |
Anticipated Timeframe |
|
Lodgement of Planning Proposal request |
9 October 2015 |
|
Report to Georges River LPP on Planning Proposal |
21 June 2018 (this report) |
|
Report to Environment and Planning Committee on Planning Proposal |
9 July 2018 |
|
Report to Council on Planning Proposal |
23 July 2018 |
|
Anticipated commencement date (date of Gateway Determination) |
October 2018 |
|
Timeframe for government agency consultation (pre and post exhibition as required by Gateway Determination) |
November 2018 |
|
Commencement and completion dates for community consultation period |
December 2018 - February 2019 |
|
Dates for public hearing (if required) |
N/A |
|
Timeframe for consideration of submissions |
February 2019 |
|
Reporting to Council on community consultation and finalisation |
March 2019 |
|
Submission to the Department to finalise the LEP |
April 2019 |
|
Anticipated date for notification |
May 2019 |
123. It is noted that the project timeline will be assessed by the DPE and may be amended by the Gateway Determination.
9 NEXT STEPS
124. The Planning Proposal will be considered at a future Georges River Council Environment and Planning Committee meeting for consideration, including the LPP recommendations. The minutes of the Environment and Planning Committee meeting will subsequently be considered at a future Georges River Council meeting (“the relevant planning authority”). If the Planning Proposal is endorsed by Council it will be forwarded to the delegate of the Greater Sydney Commission for a Gateway Determination under Section 3.34 of the Environmental Planning and Assessment Act 1979.
125. If Council resolves not to support the Planning Proposal, the applicant has the opportunity to request a pre-Gateway Review by the NSW Planning Panels under the delegation of the Greater Sydney Commission. An applicant has 40 days from the date of notification of Council’s decision to request a review.
File Reference
PP2017/0004
|
Attachment ⇨1 |
Design Review Panel Minutes dated 1 March 2018 - published in separate document |
|
Attachment ⇨2 |
Planning Proposal Report prepared by Dowling Urban - published in separate document |
|
Attachment ⇨3 |
Architecture Concept Scheme prepared by Turner - published in separate document |
|
Attachment ⇨4 |
Urban Design Report prepared by Austin McFarland - published in separate document |
|
Attachment ⇨5 |
Tree Retention and Replacement Study prepared by Sturt Noble - published in separate document |
|
Attachment ⇨6 |
Revised Tree Canopy Study prepared by Turner - published in separate document |
|
Attachment ⇨7 |
Economic Impact Assessment prepared by HillPDA - published in separate document |
|
Attachment ⇨8 |
Transport Report prepared by Henson Consulting - published in separate document |
|
Attachment ⇨9 |
Site Survey prepared by SDG - published in separate document |
|
Attachment ⇨10 |
Letter from Director Environment and Planning dated 5 September 2017 - published in separate document |
|
Georges River Council – Local Planning Panel Thursday, 21 June 2018 |
Page 200 |
REPORT TO GEORGES RIVER COUNCIL
LPP MEETING OF Thursday, 21 June 2018
|
LPP Report No |
LPP024-18 |
Development Application No |
PP2015/0005 |
|
Site Address & Ward Locality |
Planning Proposal - 53-75 Forest Road, 108-126 Durham Street and 9 Roberts Lane, Hurstville Hurstville Ward |
||
|
Proposed Development |
Revised Planning Proposal to amend the Hurstville Local Environmental Plan 2012 as follows, in relation to the Landmark Square Precinct (formerly known as Hurstville East): a. To amend the land zoning from IN2 Light Industrial and part R2 Low Density Residential to B4 Mixed Use; b. To amend the Floor Space Ratio Map to increase the FSR from 0.6 (R2) and 1:1 (IN2) to 2:1 along Roberts Lane and up to 3.5:1 for the remainder of the site (including a minimum non-residential FSR of 0.5:1); c. To amend the Height of Buildings Map to increase the maximum building height applying to the site from 9m (R2) and 10m (IN2) to a range of heights being 12m, 15m, 21m, 28m, 30m, 40m and 65m; d. To amend the Active Street Frontages Map to apply active street frontages along the Forest Road and Durham Street frontages of the Precinct; and e. To apply a bonus FSR incentive of 0.5:1 based on the total Precinct site area for the purpose of hotel accommodation at the corner of Forest Road and Durham Street. |
||
|
Owners |
Various - discussed in the report |
||
|
Applicant |
Dickson Rothschild on behalf of One Capital Pty Ltd / Prime Hurstville Pty Ltd |
||
|
Planner/Architect |
Dickson Rothschild / UrbanPossible |
||
|
Date Of Lodgement |
18/05/2018 |
||
|
Submissions |
N/A |
||
|
Cost of Works |
N/A |
||
|
Local Planning Panel Criteria |
Direction from the Minister for Planning under Section 9.1 of the Environmental Planning and Assessment Act 1979 and the Charter of the Georges River Council Local Planning Panel 2018 both specify that the Planning Proposal is to be referred to the Local Planning Panel before it is forwarded for Gateway Determination (approval). |
||
|
List of all relevant s.4.15 matters (formerly s79C(1)(a)) |
N/A – Planning Proposal
|
||
|
List all documents submitted with this report for the Panel’s consideration |
Attachment 1 – Gateway Determination dated 19 October 2017; Attachment 2 – Report to the Environment & Planning Committee Meeting dated 12 June 2018; Attachment 3 – Revised Planning Proposal Report prepared by Dickson Rothschild; Attachment 4 – Revised Urban Design Report prepared by UrbanPossible; Attachment 5 – Economic Impact Assessment prepared by HillPDA; Attachment 6 – Social Impact Assessment prepared by HillPDA; Attachment 7 – Hotel Demand Assessment prepared by HillPDA; Attachment 8 – Traffic and Transport Impact Assessment prepared by Mott MacDonald; Attachment 9 – Heritage Impact Assessment prepared by Rappoport; Attachment 10 – Preliminary Site Investigation prepared by Environmental Investigations Australia; Attachment 11 – Detailed Site Investigation prepared by DLA Environmental Services; Attachment 12 – Consistency Review of Supporting Reports prepared by Dickson Rothschild; Attachment 13 – DRP Minutes dated 6 April 2017; Attachment 14 – Council Resolution for Item CCL147-17 dated 7 August 2017 |
||
|
Report prepared by |
Strategic Planner and Coordinator Strategic Planning |
||
|
|
Figure 1 – Site Plan
|
Executive Summary
1. Dickson Rothschild submitted a revised Planning Proposal request to Council on behalf of Prime Hurstville Pty Ltd on 17 May 2018 that seeks to amend the Hurstville Local Environmental Plan 2012 (“HLEP 2012”) in relation to the site bounded by Forest Road, Durham Street and Roberts Lane, Hurstville (the Landmark Square Precinct) as follows:
a) To amend the land zoning from IN2 Light Industrial and part R2 Low Density Residential to B4 Mixed Use;
b) To amend the Floor Space Ratio Map to increase the FSR from 0.6 (R2) and 1:1 (IN2) to 2:1 along Roberts Lane and up to 3.5:1 for the remainder of the site (including a minimum non-residential FSR of 0.5:1);
c) To amend the Height of Buildings Map to increase the maximum building height applying to the site from 9m (R2) and 10m (IN2) to a range of heights being 12m, 15m, 21m, 28m, 30m, 40m and 65m;
d) To amend the Active Street Frontages Map to apply active street frontages along the Forest Road and Durham Street frontages of the Precinct; and
e) To apply a bonus FSR incentive of 0.5:1 based on the total Precinct site area for the purpose of hotel accommodation at the corner of Forest Road and Durham Street.
2. This request seeks to alter the existing Gateway Determination (approval) received by Council on 19 October 2017 (refer Attachment 1) for the existing Planning Proposal (PP2015/0001) which sought to amend the HLEP 2012 in relation to the Landmark Square Precinct as follows:
a) Rezone the land from IN2 Light Industrial and part R2 Low Density Residential to B4 Mixed Use;
b) Amend the Floor Space Ratio Map to increase the FSR from 0.6 (R2) and 1:1 (IN2) to 2:1 along Roberts Lane and up to 3.5:1 for the remainder of the site (including a minimum commercial FSR of 0.5:1);
c) Amend the Height of Buildings Map to increase the maximum building height from 9m (R2) and 10m (IN2) to a range of heights of 12m along Roberts Lane and to 21m, 28m, 30m, 40m and 65m for the remainder of the site;
d) Amend the Active Street Frontages Map to apply an active street frontage along Forest Road and Durham Street frontages of the site; and
e) Provide a FSR incentive of 0.5:1 for hotel accommodation land uses for that portion of the site on the corner of Forest Road and Durham Street.
3. The existing Planning Proposal was endorsed by Council at its meeting dated 7 August 2017 (Item CCL146-17) to be forwarded to the delegate of the Greater Sydney Commission for a Gateway Determination. However, Council resolved that if a Gateway Determination is issued, then prior to community consultation:
(i) The proponent shall prepare a revised urban design analysis that assesses the inter-relationship between the proposed height and floor space ratio and considering provision of ground level communal open space, street setbacks, road widening and compliance with all aspects of the Apartment Design Guide.
4. Following the receipt of a Gateway Determination to exhibit the Planning Proposal on 19 October 2017, the revised Planning Proposal has been prepared by the applicant to address the above Council resolution.
5. The revised Planning Proposal is solely informed by the amended Urban Design Report and does not seek to alter the proposed density on the site or the intent of the existing Planning Proposal. Refer to Attachments 3 and 4 for the revised Planning Proposal Report and Urban Design Report.
6. For this reason, this report upholds the previous considerations made by Council with regards to the economic, hotel demand, social, heritage, traffic and transport impacts. This report only provides an assessment of the proposal with regards to urban design considerations.
7. In summary, the revised scheme comprises the following amendments:
a) Increased articulation in the overall maximum building envelope;
b) Reduced building footprint of the 19 storey tower on the corner of Forest Road and Durham Street (Building A);
c) Provision of additional pedestrian through-site link between Buildings C1 and C2 (previously Building C);
d) Reconfiguration of the proposed Height of Buildings Map as below:
i) Addition of transitional 15m (O) building height between the 12m (M) portion along Roberts Lane and the 21m (R) portion towards the centre of the Precinct;
ii) Addition of transitional 28m (T) building height towards the northern portion of Forest Road between the 21m (R) and 40m (W) portions;
iii) Reduction of the extent of the 40m (W) portion on Forest Road;
iv) Adjustment of the 65m (AA2) portion to be concentrated primarily along Forest Road; and
v) Increase area of 30m (U) portion on Durham Street; and
e) Clarification regarding the bonus 0.5:1 FSR application for the purpose of hotel accommodation at the corner of Forest Road and Durham Street.
8. The revised Urban Design Report prepared by UrbanPossible demonstrates a refined configuration of the proposed maximum building envelope with more building articulation and smaller building footprints (refer Attachment 4). The development provides for:
a) Building form with a range of heights from 3 to 20 storeys:
i) Building A – 7, 9 and 20 storeys including 3 storey podiums
ii) Building B1 – 4, 5 and 7 storeys including 3 storey podiums
iii) Building B2 – 9 and 19 storeys including podiums up to 3 storeys
iv) Building C1 – 3 storey Roberts Lane frontage and transitions to 4-5 storeys towards the rear
v) Building C2 – 3 storey Roberts Lane frontage and transitions to 4-5 storeys towards the rear
vi) Building D – 3 storey podium frontages and transitions to 4-5 storeys towards the rear
b) 7,023sqm of retail / commercial floor space with active street frontages along Forest Road and Durham Street
c) 7,023sqm of hotel accommodation floor space (approx. 130 hotel rooms)
d) Approx. 450 residential units
e) At grade central area of communal open space of approx. 2,500sqm with public access
f) Rooftop communal open space on top of each building
g) Public through-site links connecting Forest Road, Durham Street and Roberts Lane
h) 3m wide road widening along the Roberts Lane frontage
9. The Planning Proposal is accompanied by an offer to enter into a Voluntary Planning Agreement (“VPA”). Council considered a report on the VPA offer and Heads of Agreement (“HoA”) and resolved to accept the VPA offer and HOA at its meeting on 7 August 2017 (Item CCL147-17). The HoA outlines the terms of the VPA, which delivers additional public benefits over and above the usual Section 7.11 contributions (formerly Section 94) applicable to the development. Details of the VPA are provided later in this report.
10. The VPA remains unchanged by the revised Planning Proposal. It is anticipated that the VPA will be placed on public exhibition in accordance with the Council resolution (CCL147-17) concurrently with the Planning Proposal.
11. This report recommends that the LPP support the revised Planning Proposal and that the revised Planning Proposal Report and Urban Design Report be forwarded to the delegate of the Greater Sydney Commission for an Alteration to the Gateway Determination under Section 3.34 of the Environmental Planning and Assessment Act 1979.
12. This report also recommends an amendment to the Hurstville Development Control Plan No.2 – Hurstville City Centre (“HDCP No.2”) be prepared, to run concurrently with an amendment to the HLEP 2012 (if Gateway approval is given by the Department of Planning and Environment), to reflect urban design considerations for any future development of the site including the provision of public access, built form, boundary setbacks, deep soil areas, tree retention, vehicular access and any other relevant issues. The DCP is to be prepared at the proponent’s cost.
13. The reconfiguration of the development provides for a better design outcome as compared to the previous proposal that has a Gateway Determination and is supported.
Report in Full
1 INTRODUCTION
14. The original request to prepare a Planning Proposal (PP2015/0001) for the site bounded by Forest Road, Durham Street and Roberts Lane, Hurstville was originally submitted by Dickson Rothschild on behalf of One Capital Pty Ltd / Prime Hurstville Pty Ltd (“the applicant”) on 16 June 2015.
15. The Planning Proposal was subsequently amended a number of times with variations to the requested height, FSR, quantum of retail / commercial and number of residential apartments. The detailed chronology of events was previously reported to the Georges River Independent Hearing and Assessment Panel (“IHAP”) on 20 July 2017 and subsequently to Council at its meeting dated 7 August 2017.
16. In accordance with the Council resolution dated 7 August 2017, the Planning Proposal was forwarded to the Department of Planning and Environment (“DPE”) on 5 September 2017 and Council received a Gateway Determination (approval) on 19 October 2017 to exhibit the Planning Proposal. Refer to Attachment 1 for the Gateway Determination.
17. Since receipt of the Gateway Determination, the applicant has explored an alternative concept scheme which addresses the Council resolution requirement for the preparation of a revised urban design analysis.
18. On 17 May 2018, the applicant submitted a revised Planning Proposal request to Council seeking to amend the Planning Proposal through an Alteration to Gateway Determination, which is the subject of this report.
19. The revised concept scheme does not seek to alter the proposed density on the site or the intent of the existing Planning Proposal. The amendments are solely informed by the Urban Design Report which proposes reconfigurations of the maximum building envelope.
2 SITE DESCRIPTION
2.1 Overview of the Site
20. The Landmark Square Precinct is a triangular shaped site bounded by Forest Road, Durham Street and Roberts Lane, Hurstville with the street addresses of 53-75 Forest Road, 108-126 Durham Street and 9 Roberts Lane. The site adjoins the area defined as the Hurstville City Centre and is located within 400m from Allawah Station and 800m from Hurstville Station. The site is shown in Figure 2 below.
Figure 2 – Subject site (shown in red outline) (Source: SIX Maps)

21. The site has multiple land owners and contains a total of 19 separate lots legally described in Table 1 below. The applicant, Prime Hurstville Pty Ltd, owns 8 of the allotments as shown in Figure 3 below.
Table 1 – Legal Site Description and Existing Ownership
|
Lot/DP & Address |
HLEP 2012 Zone |
Ownership |
|
Lot A DP 372835 53 Forest Road |
R2 – Low Density Residential |
Mrs K Giacchi |
|
Lot 1 DP 225302 61-65 Forest Road |
IN2 – Light Industrial |
Prime Hurstville Pty Ltd |
|
Lot 101 DP 776275 67-69 Forest Road |
IN2 – Light Industrial |
Prime Hurstville Pty Ltd |
|
Lot 100 DP 776275 71A Forest Road |
IN2 – Light Industrial |
Prime Hurstville Pty Ltd |
|
Lot 10 DP 621395 73 Forest Road |
IN2 – Light Industrial |
Prime Hurstville Pty Ltd |
|
Lot 4 DP 12517 75 Forest Road |
IN2 – Light Industrial |
Prime Hurstville Pty Ltd |
|
Lot 3 DP 12517 75 Forest Road |
IN2 – Light Industrial |
Prime Hurstville Pty Ltd |
|
Lot 1 DP 12517 126 Durham Street |
IN2 – Light Industrial |
Prime Hurstville Pty Ltd |
|
Lot 2 DP 12517 126 Durham Street |
IN2 – Light Industrial |
Prime Hurstville Pty Ltd |
|
Lot 15 DP 601341 122A Durham Street |
IN2 – Light Industrial |
A & C Motor Repairs Pty Ltd |
|
Lot 1 DP 337499 120 Durham Street |
IN2 - Light Industrial |
Mr G & Mrs R Topalidia |
|
Lot 1 DP 213685 118A Durham |
IN2 – Light Industrial |
Mr H and Mrs W Hage |
|
Lot 2 DP 213685 118 Durham Street |
IN2 – Light Industrial |
Mr H and Mrs W Hage |
|
Lot 5 DP 171179 116 Durham Street |
IN2 – Light Industrial (Heritage Item) |
Boy Scouts Association Trustees |
|
Lot A DP 391801 114 Durham Street |
IN2 - Light Industrial |
Bagi Pty Ltd |
|
Lot B DP 391801 112 Durham Street |
IN2 – Light Industrial |
Bagi Pty Ltd |
|
Lot C DP 391801 110 Durham Street |
IN2 – Light Industrial |
Bagi Pty Ltd |
|
Lot D DP 391801 108 Durham Street |
IN2 – Light Industrial |
Bagi Pty Ltd |
|
Lot 1 DP 172819 9 Roberts Lane |
IN2 – Light Industrial |
Mrs J and Mr I Kordic |
Figure 3 – Allotments owned by applicant (Source: Intramaps)

22. The site has an area of 14,046sqm (approx. 1.4 hectares) and the following boundaries:
· Approx. 140m to Durham Street
· Approx. 175m to Forest Road
· Approx. 207m to Roberts Lane
23. The site is currently occupied by a range of uses including self-storage facility, automotive services and sales, community uses (Hurstville Scout Hall), funeral home, two storey residential flat building and single dwelling houses. Views of the site are shown in Figures 4 – 8 below.
Figure 4 – Properties fronting Durham Street (Source: Dickson Rothschild)

Figure 5 – Heritage item at 116 Durham Street (Hurstville Scout Hall) (Source: Google Maps)

Figure 6 – Residential properties on corner of Durham Street and Roberts Lane (Source: Google Maps)

Figure 7 – Forest Road and Durham Street intersection (Source: Dickson Rothschild)

Figure 8 – Residential dwelling on the corner of Forest Road and Roberts Lane (Source: Dickson Rothschild)

2.2 Surrounding Land
24. The site is currently located inside the boundary of the Hurstville City Centre in the Eastern Bookend Precinct (refer Figure 9 below). Council at its meeting held 3 July 2017 adopted a report and approved Hurstville Section 94 Development Contributions Plan (Amendment No. 2) to include Kempt Field, the subject site (bounded by Forest Road, Durham Street and Roberts Lane) and the Bing Lee site (being 108, 112 and 124 Forest Road and 1 & 3 Wright Street) into the Hurstville City Centre land application map.
Figure 9 – Extent of Hurstville City Centre

25. A summary of the surrounding land is provided below and shown in Figures 10 – 14:
a. South: On the opposite side of Durham Street is a large mixed use development known as East Quarter with buildings up to 19 storeys in height. The large open space area of Kempt Field (approx. 3 hectares) is also located opposite the site.
b. West: On the other side of Forest Road is an area of land zoned B2 Local Centre featuring a range of commercial uses including a car dealership at the corner of Forest Road and Wright Street. Residential land on Wright Street and Hudson Street is a mix of R2 Low Density and R3 Medium Density Residential and is characterised by 1-2 storey dwelling houses and 3 storey residential flat buildings respectively.
c. North: A number of educational facilities are located to the north along Forest Road on land zoned SP2 Infrastructure. These include Hurstville Public School, Georges River College – Hurstville Boys Campus, Bethany College and Sydney Technical High School. There are also sites along Forest Road zoned B2 Local Centre which have recently been redeveloped with shops on the ground floor and generally 2 to 3 levels of residential apartments above.
d. North / East: Land to the north and east along Lily Street, Cronulla Street and Botany Street is zoned R2 Low Density Residential. This area is predominantly characterised by 1-2 storey dwelling houses, with the rear yards of properties along Lily Street backing onto Roberts Lane.
Figure 10 – View of Kempt Field and the East Quarter development on the opposite side of Durham Street to the south of the Precinct (Source: Google Maps)

Figure 11 – View of Kempt Field looking west to the East Quarter site (Source: Google Maps)

Figure 12 – View of the opposite side of Forest Road at the intersection with Wright Street (Source: Google Maps)

Figure 13 – View along Forest Road of Hurstville Public School (Source: Google Maps)

Figure 14 – View of mixed use development along the southern side of Forest Road adjacent to the site (Source: Google Maps)

26. The site is well located within the subregional road network and it is also within 400m of Allawah Railway Station and 800m walking distance of Hurstville Railway Station. Refer to the Figure 15 below.
Figure 15 – Transport Context (Source: Dickson Rothschild)

27. The proposed development is also well positioned in relation to local amenities, including shops and schools. There are also numerous public open spaces and recreational facilities in close proximity to the subject site, including Kempt Field directly opposite the site on Durham Street.
3 PLANNING STRATEGIES, POLICIES AND CONTROLS
3.1 Existing Planning Controls
28. The HLEP 2012 applies to the Landmark Square Precinct and the following provisions are relevant to the Planning Proposal:
29. The site is currently zoned IN2 Light Industrial and part R2 Low Density Residential under the HLEP 2012 (refer to Figure 16 below).
Figure 16 – HLEP 2012 Land Use Zoning Map

30. The site has a maximum building height of 9m and 10m under the HLEP 2012, refer to Figure 17 below. Clause 4.3 Height of buildings is applicable to the site.
Figure 17 – HLEP 2012 Height of Buildings Map

31. The site has a maximum floor space ratio of 0.6:1 and 1:1 under the HLEP 2012, refer to Figure 18 below. Clause 4.4 Floor space ratio is applicable to the site.
Figure 18 – HLEP 2012 Floor Space Ratio Map

32. The site contains one (1) local heritage item, the Hurstville Scout Hall (Item I26) at 116 Durham Street under the HLEP 2012, refer to Figure 19 below. Clause 5.10 Heritage conservation is applicable to the site.
33. Heritage items located in the vicinity of the site include the following: Item I36 – 76 Lily Street, Hurstville (Californian bungalow) and Item I28 – Hurstville Public School – 80 Forest Road, Hurstville.
Figure 19 – HLEP 2012 Heritage Map

4 APPLICANT’S PLANNING PROPOSAL REQUEST
4.1 Background
34. The original request to prepare a Planning Proposal (PP2015/0001) for the site bounded by Forest Road, Durham Street and Roberts Lane, Hurstville was originally submitted by Dickson Rothschild on behalf of One Capital Pty Ltd / Prime Hurstville Pty Ltd (“the applicant”) on 16 June 2015.
35. The Planning Proposal was subsequently amended a number of times with variations to the requested height, FSR, quantum of retail / commercial and number of residential apartments. The detailed chronology of events was previously reported to the Georges River Independent Hearing and Assessment Panel (“IHAP”) on 20 July 2017 and subsequently to Council at its meeting dated 7 August 2017.
36. The Planning Proposal was referred to IHAP at its meeting dated 20 July 2017 where IHAP recommended that the Planning Panel be deferred so that:
a) A provision is included for affordable housing to be incorporated in any development on the site equivalent to not less than 5% of the gross floor area of the development.
b) A revised urban design analysis is undertaken to assess the inter-relationship between the proposed height and floor space ratio, considering provision of ground level communal open space, street setbacks, road widening as well as compliance with all aspects of the Apartment Design Guide.
c) Provisions are developed that require amalgamation in order to develop to the maximum heights and floor space ratios as outlined in the proposal.
37. At its meeting dated 7 August 2017 (CCL146-17), Council considered the Planning Proposal in light of the IHAP recommendations. The Administrator moved and declared carried:
(1) That Council acknowledge the recommendations of the Georges River IHAP in relation to the “Hurstville East” Planning Proposal for the provision of affordable housing, detailed urban design analysis and site amalgamation.
(2) That Council support forwarding to the delegate of the Greater Sydney Commission a request for a Gateway Determination under section 56 of the Environmental Planning and Assessment Act 1979 for the “Hurstville East” Planning Proposal to amend Hurstville Local Environmental Plan 2012 in respect of land known as 53-75 Forest Road, 108-126 Durham Street and 9 Roberts Lane, Hurstville:
a. Rezone the land from IN2 Light Industrial and part R2 Low Density Residential to B4 Mixed Use;
b. Amend the Floor Space Ratio Map to increase the FSR from 0.6 (R2) and 1:1 (IN2) to 2:1 along Roberts Lane and up to 3.5:1 for the remainder of the site (including a minimum commercial FSR of 0.5:1);
c. Amend the Height of Buildings Map to increase the maximum building height from 9m (R2) and 10m (IN2) to a range of heights of 12m along Roberts Lane and to 21m, 28m, 30m, 40m and 65m for the remainder of the site;
d. To amend the Active Street Frontages Map to apply an active street frontage along Forest Road and Durham Street frontages of the site; and
e. To provide a bonus FSR of 0.5:1 for hotel accommodation land uses at the portion of the site located on the corner of Forest Road and Durham Street.
(3) (a) That Council delegate the General Manager to negotiate with the proponent on the provisions of the affordable housing on the site in association with the uplift proposed in the “Hurstville East” Planning Proposal, prior to the issue of the Gateway Determination by the Greater Sydney Commission.
(b) Should negotiations referred to in (a) above not be finalised prior to the issue of the Gateway Determination, a further report be submitted to Council outlining progress to date and providing options for satisfactory completion of the matter.
(4) That if a Gateway Determination is issued by the Greater Sydney Commission or its delegate under Section 56 of the Environmental Planning and Assessment Act 1979 that the Planning Proposal should proceed, then prior to community consultation, the following shall be undertaken:
(i) The proponent shall prepare a revised urban design analysis that assesses the inter-relationship between the proposed height and floor space ratio and considering provision of ground level communal open space, street setbacks, road widening and compliance with all aspects of the Apartment Design Guide; and
(ii) Site amalgamation provisions are developed in order to ensure superior development outcome based on the maximum floor space ratios and heights; and
(iii) A suitable mechanism for the delivery of affordable housing on the site be agreed.
(5) That if it is determined by the Greater Sydney Commission or its delegate under Section 56 of the Environmental Planning and Assessment Act 1979 that the Planning Proposal should proceed, Council prepare an amendment to the Hurstville DCP to run concurrently with an amendment to the Hurstville Local Environmental Plan 2012, which reflects the revised urban design analysis for future development of the site including the inter-relationship between the proposed height and floor space ratio, amount and location of ground level open space, landscaped setbacks, deep soil areas, site access, road widening, through site links and site amalgamation requirements. The DCP shall be prepared at the proponents cost.
(6) That all land owners the subject of the Planning Proposal to amend Hurstville Local Environmental Plan 2012 (“Hurstville LEP 2012”) be notified of Council’s resolution.
(7) That the General Manager place the Planning Proposal on formal public exhibition subject to the satisfactory completion of the requirements of the recommendations 3 to 5 and in accordance with the conditions of any Gateway Determination issued by the Department of Planning and Environment.
38. In accordance with the Council resolution dated 7 August 2017, the Planning Proposal was forwarded to the Department of Planning and Environment (“DPE”) on 5 September 2017 and Council received a Gateway Determination (approval) on 19 October 2017 to exhibit the Planning Proposal. Refer to Attachment 1 for the Gateway Determination.
39. Since receipt of the Gateway Determination, the applicant has explored an alternative concept scheme (refer to Figure 21 and Attachment 4) which addresses the request for the preparation of a revised urban design analysis as per Council resolution (4)(i) above. The alternative scheme provides increased articulation in the overall maximum building envelope, an additional pedestrian through-site link, reconfiguration of the proposed heights, and clarification of the bonus FSR application for the purpose of hotel accommodation at the corner of Forest Road and Durham Street to be calculated based on the total site area of the Precinct (i.e. 0.5:1 of the total area of Zone B4 Mixed Use land bounded by Forest Road, Durham Street and Roberts Lane, Hurstville).
40. It should be noted that matters relating to the provision of affordable housing and road widening were reported to Council’s Environment and Planning Committee at its meeting dated 12 June 2018. The report recommends the requirement for affordable housing on the site as per Council resolution (3)(a), (3)(b) and (4)(iii) above be rescinded as Council cannot legally enforce this due to the absence of SEPP No 70—Affordable Housing (Revised Schemes) and a draft Affordable Housing Policy for Council or any substantive provisions in the HLEP 2012 requiring the provision of affordable housing. The report also recommends that a separate Planning Proposal be prepared to include a 3m wide local road widening on the Hurstville LEP Land Reservation Acquisition Map along the remaining length of the Roberts Lane boundary not covered by the road widening in the VPA, to ensure a consistent road widening will occur to allow two-way vehicle access (including small vans) on Roberts Lane. Refer to Attachment 2 for the Committee report of the meeting.
4.2 Summary of Planning Proposal Request
41. On 17 May 2018, the applicant submitted a revised Planning Proposal request to Council seeking to amend the existing Planning Proposal through an Alteration to the Gateway Determination, and included the following amended documents which form the basis of the request being considered in this report:
a) Planning Proposal Report prepared by Dickson Rothschild (refer Attachment 3)
b) Urban Design Report prepared by UrbanPossible (refer Attachment 4)
42. The revised Planning Proposal is solely informed by the amended Urban Design Report and does not seek to alter the proposed density on the site or the intent of the existing Planning Proposal. For this reason, this report only provides an assessment of the proposal with regards to urban design considerations.
43. The following documents were previously assessed by Council and remain unchanged by this revision. For this reason, this report upholds the previous considerations made by Council with regards to the economic, hotel demand, social, heritage, contamination and, traffic and transport impacts. The applicant has also advised that the findings of the existing expert reports below are still applicable to the revised Planning Proposal (refer Attachment 12).
i) Economic Impact Assessment (refer to Attachment 5)
ii) Social Impact Assessment (refer to Attachment 6)
iii) Hotel Demand Assessment (refer to Attachment 7)
iv) Traffic and Transport Impact Assessment (refer to Attachment 8)
v) Heritage Impact Assessment (refer to Attachment 9)
vi) Preliminary Site Investigation (refer to Attachment 10)
vii) Detailed Site Investigation (refer to Attachment 11)
44. The revised Planning Proposal seeks:
a) To amend the land zoning from IN2 Light Industrial and part R2 Low Density Residential to B4 Mixed Use;
b) To amend the Floor Space Ratio Map to increase the FSR from 0.6 (R2) and 1:1 (IN2) to 2:1 along Roberts Lane and up to 3.5:1 for the remainder of the site, including a minimum non-residential FSR of 0.5:1 via an amendment to Clause 4.4A. The proposed clause wording is as follows:
“Despite clause 4.4, development consent must not be granted on land in Zone B4 Mixed Use bounded by Forest Road, Durham Street and Roberts Lane, Hurstville unless the non-residential floor space ratio is at least 0.5:1.”
c) To amend the Height of Buildings Map to increase the maximum building height applying to the site from 9m (R2) and 10m (IN2) to a range of heights being 12m, 15m, 21m, 28m, 30m, 40m and 65m;
d) To amend the Active Street Frontages Map to apply active street frontages along the Forest Road and Durham Street frontages of the Precinct; and
e) To apply a bonus FSR incentive of 0.5:1 based on the total Precinct site area for the purpose of hotel accommodation at the corner of Forest Road and Durham Street via an amendment to Clause 4.4. The proposed clause wording is as follows:
“Despite subclause (2), the floor space ratio for land identified as “Area 1” on the Floor Space Ratio Map may exceed the floor space ratio by up to 0.5:1 of the total area of Zone B4 Mixed Use land bounded by Forest Road, Durham Street and Roberts Lane, Hurstville for the purpose of hotel accommodation.”
45. Table 2 below provides a comparison between the existing Planning Proposal which received the Gateway Determination and the revised Planning Proposal which is the subject of this report. Amendments proposed by the revised request are shown in italics.
Table 2 – Comparison of existing Planning Proposal and revised Planning Proposal
|
HLEP Amd |
Existing Planning Proposal |
Revised Planning Proposal |
|
Zone |
B4 Mixed Use |
B4 Mixed Use |
|
Active Street Frontage |
Active Street Frontages to be applied along the Forest Road and Durham Street frontages of the site. |
Active Street Frontages to be applied along the Forest Road and Durham Street frontages of the site. |
|
FSR |
2:1 along Roberts Lane and up to 3.5:1 for the remainder of the site (including a minimum non-residential FSR of 0.5:1). |
2:1 along Roberts Lane and up to 3.5:1 for the remainder of the site (including a minimum non-residential FSR of 0.5:1). |
|
Height |
A range of heights of 12m along Roberts Lane and to 21m, 28m, 30m, 40m and 65m for the remainder of the site. |
A range of heights of 12m along Roberts Lane and to 15m, 21m, 28m, 30m, 40m and 65m for the remainder of the site. |
|
Bonus FSR |
Provision of a bonus FSR of 0.5:1 for hotel accommodation land uses at the portion of the site located on the corner of Forest Road and Durham Street. |
Provision of a bonus FSR of 0.5:1 based on the total area Zone B4 Mixed Use land bounded by Forest Road, Durham Street and Roberts Lane, Hurstville for hotel accommodation at the portion of the site located on the corner of Forest Road and Durham Street. |
46. In summary, the revised scheme comprises the following amendments:
a) Increased articulation in the overall maximum building envelope (comparison provided in Figures 20 and 21 below);
b) Reduced building footprint of Building A;
c) Provision of additional pedestrian through-site link between Buildings C1 and C2 (previously Building C);
d) Reconfiguration of the proposed heights on the Height of Buildings Map as below (comparison provided in Figures 22 and 23):
i) Addition of transitional 15m (O) building height between the 12m (M) portion along Roberts Lane and the 21m (R) portion towards the centre of the Precinct;
ii) Addition of transitional 28m (T) building height towards the northern portion of Forest Road between the 21m (R) and 40m (W) portions;
iii) Reduction of the extent of the 40m (W) portion on Forest Road;
iv) Adjustment of the 65m (AA2) portion to be concentrated primarily along Forest Road; and
v) Increase in area of the 30m (U) portion on Durham Street; and
e) A provision to clarify the bonus 0.5:1 FSR application for the purpose of hotel accommodation at the corner of Forest Road and Durham Street.
Figure 20 – Existing proposed building massing

Figure 21 – Revised Planning Proposal building massing

Figure 22 – Existing Height of Buildings Map

Figure 23 – Revised Planning Proposal Height of Buildings Map


47. The revised Urban Design Report prepared by UrbanPossible demonstrates a refined configuration of the proposed maximum building envelope with more building articulation and smaller building footprints (refer Attachment 4). The development provides for:
a) Building form with a range of heights from 3 to 20 storeys:
i) Building A – 7, 9 and 20 storeys including 3 storey podiums
ii) Building B1 – 4, 5 and 7 storeys including 3 storey podiums
iii) Building B2 – 9 and 19 storeys including podiums up to 3 storeys
iv) Building C1 – 3 storey Roberts Lane frontage and transitions to 4-5 storeys towards the rear
v) Building C2 – 3 storey Roberts Lane frontage and transitions to 4-5 storeys towards the rear
vi) Building D – 3 storey podium frontages and transitions to 4-5 storeys towards the rear
b) 7,023sqm of retail / commercial floor space with active street frontages along Forest Road and Durham Street
c) 7,023sqm of hotel accommodation floor space (approx. 130 hotel rooms)
d) Approx. 450 residential units
e) At grade central area of communal open space of approx. 2,500sqm with public access
f) Rooftop communal open space on top of each building
g) Public through-site links connecting Forest Road, Durham Street and Roberts Lane
h) 3m wide road widening along the Roberts Lane frontage
48. The development yield remains unchanged in the revised Planning Proposal. The amendment has been prepared by the applicant to address Council’s resolution of 7 August 2017 which specifies if a Gateway Determination is issued, then prior to community consultation:
(i) The proponent shall prepare a revised urban design analysis that assesses the inter-relationship between the proposed height and floor space ratio and considering provision of ground level communal open space, street setbacks, road widening and compliance with all aspects of the Apartment Design Guide.
5 ASSESSMENT OF THE PLANNING PROPOSAL
5.1 Strategic Planning Context
49. Consideration of the Planning Proposal request in relation to the Greater Sydney Region Plan (A Metropolis of Three Cities) and the South District Plan are provided below.
Greater Sydney Region Plan (A Metropolis of Three Cities)
50. The Greater Sydney Region Plan was finalised and released by the Greater Sydney Commission in March 2018 and establishes the aspirations for the region over the next 40 years. The Region Plan is framed around 10 directions relating to infrastructure and collaboration, liveability, productivity and sustainability.
51. The Planning Proposal is considered to be consistent with the following Directions and Objectives of the Greater Sydney Region Plan:
52. Direction 3: A city for people
Objective 6: Services and infrastructure meet communities’ changing needs
Objective 7: Communities are healthy, resilient and socially connected
Objective 8: Greater Sydney’s communities are culturally rich with diverse neighbourhoods
The Planning Proposal assists in encouraging healthy communities by
facilitating a mixed use development which accommodates and caters for a range
of daily activities through the provision of a central plaza and commercial /
retail floor space. The Precinct also benefits from its proximity to retail and
services within the Hurstville City Centre. The location of the site in
relation to public open space and recreational facilities (including Kempt
Field) will also benefit future residents.
53. Direction 4: Housing the city
Objective 10: Greater housing supply
Objective 11: Housing is more diverse and affordable
The Planning Proposal will provide approximately 450 new apartment dwellings. The site is suitable for this increase in dwellings as it is located within the Hurstville Strategic Centre, close to jobs and public transport (Allawah Railway Station, Hurstville Railway Station and bus interchange) with frequent services capable of moving large numbers of people. Housing choice to suit different needs and lifestyles will be provided with a range of apartment sizes to satisfy the apartment mix, objectives and design guidance of the Apartment Design Guide and the apartment size mix in the Hurstville DCP No.2 (Hurstville City Centre).
54. Direction 5: A city of great places
Objective 12: Great places that bring people together
The Planning Proposal facilitates the provision of a central plaza with unrestricted public access via a series of public through-site links connecting the bounding streets of Forest Road, Durham Street and Roberts Lane. It is envisaged that the central plaza will provide a venue to host occasional pop-up markets and community events in addition to its function as the communal open space for the proposed development.
Objective 13: Environmental heritage is identified, conserved and enhanced
The proposal retains the existing local heritage item, the Scout Hall at 116 Durham Street. The item is associated with the Australian Scouting movement. The Hurstville Scout Group was founded in 1908, the same year that the Scout movement commenced in Australia. This makes the Hurstville Scout Group one of the oldest in Australia. The Scout Hall has continued to be used by the Scouts today as well as catering for other leisure and recreational pursuits. These uses are retained by the proposal.
55. Direction 7: A well connected city
Objective 14: A Metropolis of Three Cities – integrated land use and transport creates walkable and 30-minute cities
It is noted that the site is located well within the walkable catchments of the following transport hubs:
· 400m from the Allawah Railway Station;
· 800m from the Hurstville Railway Station; and
· 800m from the Hurstville bus interchange (Woodville Street).
56. Direction 8: Jobs and skills for the city
Objective 22: Investment and business activity in centres
The Planning Proposal, specifically the minimum non-residential floor space requirement and the bonus hotel accommodation FSR, will contribute towards achieving an increase in jobs within the Hurstville Strategic Centre on a site which benefits from its proximity to commercial, retail and services within the Hurstville City Centre.
Council’s Employment Lands Study prepared by JLL reports that the Precinct currently has 43 full-time equivalent employees. The proposal includes approx. 7,023sqm of commercial and retail floor space which would equate to a non-residential FSR of 0.5:1. The applicant’s Economic Impact Assessment calculated that this floor space could provide for an estimated 270 employees (refer Attachment 5). Additional employees were estimated for the hotel (approx. 110 employees) and work from home (approx. 30 employees). This totals to a sum of approx. 410 employees, which translates to an increase of over 350 jobs compared to the site’s current industrial land use.
This will assist in delivering more investment and business activity as well as increasing productivity in the Hurstville City Centre. The additional floor space bonus provided for the hotel accommodation development will further promote employment opportunities in the Hurstville Strategic Centre.
Objective 23: Industrial and urban services land is planned, retained and managed
Given the site’s proximity to relatively sensitive land uses such as schools, low scale residential dwellings and other new mixed use tower development, the range of permissible land uses in the IN2 Light Industrial zone is not considered to be wholly compatible with the character and land use of the locality. Permissible land uses within the IN2 zone include light industries, timber yards, vehicle hire premises and warehouse or distribution centres. These land uses are likely to have adverse impacts on surrounding residential land as they are typically noise generating and often require movements of large vehicles. The priority given towards the amenity of surrounding residential land greatly restricts the existing development potential of the site due to the inevitable amenity impacts despite the legal permissibility of certain land uses in the IN2 zone.
The types of land uses, which currently exist on the site, are largely private motor vehicle based, including a car wash, tyre store, car dealership and storage facilities. These types of uses, which attract car usage and private motor vehicle traffic, are not ideal for the subject site which is located within close walking distance of sustainable transport infrastructure.
The remnant industrial land is thus not well suited to the location, which has evolved over time into a city centre with a large residential population with good access to public transport. Analysis undertaken by HillPDA (refer Attachment 5) indicates that the subject site is not well suited to industrial land uses, performing poorly in terms of developable area, accessibility and connectivity, industrial agglomeration and environment.
South District Plan
57. The South District Plan was finalised and released by the Greater Sydney Commission in March 2018. The District Plan is a guide for implementing A Metropolis of Three Cities at the district level and proposes a 20-year vision by setting out aspirations and proposals for the South District.
58. The change in zone to B4 Mixed Use, and the proposed height and FSR increases for the site will provide:
· Increased employment opportunities within the proposed commercial and retail floor space (approx. 7,023sqm);
· Opportunity for hotel accommodation (through the proposed FSR bonus) which will provide for both employment opportunities and business and entertainment tourism in the Hurstville City Centre; and
· Improvements to housing choice and availability in close proximity to public transport and the Hurstville City Centre which offers retail and essential services.
59. The Planning Proposal is considered to be consistent with the following Planning Priorities of the South District Plan:
|
Direction |
Planning Priorities relevant to the Planning Proposal |
|
A city for people |
Planning Priority S3: Providing services and social infrastructure to meet people’s changing needs |
|
Housing the city |
Planning Priority S5: Providing housing supply, choice and affordability with access to jobs, services and public transport |
|
A city of great places |
Planning Priority S6: Creating and renewing great places and local centres, and respecting the District’s heritage |
|
Jobs and skills for the city |
Planning Priority S9: Growing investment, business opportunities and jobs in strategic centres Planning Priority S10: Retaining and managing industrial and urban services land |
|
A well connected city |
Planning Priority S12: Delivering integrated land use and transport planning and a 30-minute city |
5.2 Council’s Local Strategic Plans
60. Consideration of the Planning Proposal request in relation to Council’s local strategic plans are provided below.
Draft Hurstville City Centre Urban Design Strategy (2018)
61. Georges River Council engaged SJB to prepare the Hurstville City Centre Urban Design Strategy which reviews and updates the existing development standards partly with the aim to identify opportunities for additional housing capacity within the Hurstville City Centre.
62. The subject site is located at the eastern end of the Hurstville City Centre boundary and is envisaged by the Strategy to become a bookend area with a concentration of high density residential developments.
63. The Strategy acknowledges that the site is subject to a current Planning Proposal and retains the maximum building height and FSR in accordance with the Gateway Determination.
64. The proposal is consistent with the intent of the Strategy which seeks to create a high density residential gateway into the Hurstville City Centre and provide an appropriate transition to the adjacent lower density residential area.
Georges River Employment Lands Study (2017)
65. The Georges River Employment Lands Study provides Council with a strategic direction for employment lands across the Georges River LGA to ensure that sufficient land is zoned to accommodate future employment growth.
66. The Study identifies the site as the “Hurstville Industrial Precinct” and comprises approximately 1.3 hectares. The Precinct provides employment for approximately 43 people within the 10,127sqm of gross floor area. Key land uses in the zone are car sales and auto related services, dry cleaners, funeral home, scout hall, storage facility, furniture and home improvements and a number of residential properties.
67. The Study identifies low-medium demand for office uses, noting that the potential exists for a small amount of office space to support the industrial uses. Industrial use was also identified as low-medium in the Study, noting that the potential exists for intensification of the industrial uses. However, demand is most likely to come from services that satisfy the local community. Medium demand was identified for retail use as the site offers good exposure from Forest Road.
68. The Study considers it likely that regional level industrial and logistics operators will continue to locate primarily in northwest and southwest of Sydney due to the availability of land in close proximity to the M5 Motorway and the rest of the Orbital Network in the western region. Considering the site’s proximity to the Hurstville CBD it would likely be too costly to continue to be used for industrial as opposed to an alternate use.
69. The Study identifies the demand for residential use (i.e. shop top housing) as medium-high, noting that the Precinct shares characteristics with the Hurstville East Forest Road B2 Local Centre, including proximity to the railway station and the CBD. However, the Precinct possesses greater redevelopment potential than the Hurstville East B2 Local Centre due to larger landholdings. It is noted that there has already been significant supply of residential in the immediate vicinity which may lessen demand to a degree.
70. The Study makes the following recommendations for the Hurstville Industrial Precinct:
a) Rezone the Precinct from IN2 – Light Industrial and R2 – Low Density Residential to B4 – Mixed Use;
b) Implement a minimum non-residential floor space ratio (FSR) of 0.5:1 and ensure that non-residential floor space is provided at the ground floor to encourage street activation which promotes vibrancy in the centre, as well as continued employment opportunities; and
c) That a further review be undertaken with respect to the height and FSR in the context of the adjoining development.
71. Council considered the Study’s review of IN2 – Light Industrial zoned land at its meeting of 7 August 2017 and resolved to endorse the categorisation of the site (being referred to as Hurstville Industrial Precinct) as an “Investigation Precinct”. A peer review was also endorsed at the meeting to consider the methodology and assessment recommendations of the Study.
72. A peer review was undertaken which identified deficiencies in Council’s framework and recommended additional studies to improve the methodology for assessing industrial lands. These additional studies are currently being undertaken.
5.3 State and Regional Statutory Framework
73. The Planning Proposal is consistent with the following relevant State Environmental Planning Policies (SEPPs) as assessed by the applicant below:
State Environmental Planning Policy No. 55 – Remediation of Land
74. SEPP 55 aims to promote the remediation of contaminated land for the purpose of reducing risk and harm to human health or any other aspects of the environment.
75. A Preliminary Site Investigation prepared by Environmental Investigations was submitted on 31 August 2015. The investigation concluded that the site can be made suitable for the intended land use, including residential development, following the implementation of a number of remediation measures. A copy of the report is provided at Attachment 10.
76. A Detailed Site Investigation (refer Attachment 11) was also submitted by the applicant which identifies potential sources of contamination and the contaminants of concern resulting from past and present land uses, evaluates the presence of contamination in the identified areas of concern and assesses the suitability of the site for its intended development.
77. The Detailed Site Investigation concludes that the site is not currently considered suitable for future residential with gardens / accessible soil land use from a contamination perspective but can be made suitable for the proposed residential with gardens / accessible soil land use following the implementation of a Remediation Action Plan, which will be developed in accordance with the relevant regulatory requirements to address the identified contamination issues.
State Environmental Planning Policy No. 65 – Design Quality of Residential Apartment Development
78. The proposed development will be subject to the provisions of SEPP 65, which aims to improve the quality of residential apartment design in NSW.
79. The applicant has advised that the concept scheme has been designed in accordance with SEPP 65 and the Apartment Design Guide and any future development application will demonstrate compliance with the standards contained in this SEPP.
State Environmental Planning Policy (Infrastructure) 2007
80. The traffic-generating development provisions of the Infrastructure SEPP (Clause 104 and Schedule 3) require developments of a certain size or capacity to be referred to the Roads and Maritime Services (“RMS”).
81. If the Planning Proposal is granted an Alteration to the Gateway Determination, it is anticipated that RMS will be included as a public authority to be consulted.
5.4 S9.1 Ministerial Directions
82. Ministerial Directions under Section 9.1 (formerly S117) of the Environmental Planning and Assessment Act 1979 set out a range of matters to be considered when preparing an amendment to a Local Environmental Plan.
83. The Planning Proposal is consistent with all relevant Ministerial Directions as assessed by the applicant in Table 3 below:
Table 3 – Consistency with S9.1 Ministerial Directions
|
S9.1 Direction |
Assessment |
|
1.1 Business and Industrial Zones |
The Planning Proposal is inconsistent with this Direction due to the proposed rezoning of land from IN2 Light Industrial to B4 Mixed Use. However, a Planning Proposal may be inconsistent with the terms of this direction if the inconsistency is justified by a study which gives consideration to the objective of this direction. The Economic Impact Assessment prepared by HillPDA justifies that the Planning Proposal will encourage employment growth, retain employment floor space and support the viability of the Hurstville CBD and is therefore broadly consistent with the objectives of the Direction as below: · the proposed mix of land uses has the potential to provide an increase in employment generating uses, the number of jobs on the site and the Gross Domestic Product (“GDP”) generated by the site; · the zoning change to B4 Mixed Use, the increase in development intensity (i.e. maximum height and FSR) and the requirement for a minimum commercial FSR of 0.5:1 will encourage employment in a suitable location on the eastern edge of the Hurstville City Centre; and · the site is isolated from other industrial uses while surrounding residential development and road networks makes the site unsuitable for industrial development. |
|
2.3 Heritage Conservation |
The Planning Proposal request does not propose to change the heritage status of the Scout Hall at 116 Durham Street, does not adversely impact on the heritage item and retains its existing uses in the proposal. |
|
3.1 Residential Zones |
While not proposing the rezoning of the site to a residential zone, the B4 Mixed Use zone will allow a greater provision of housing in an existing urban area, improve housing choice, and making efficient use of existing infrastructure, services and amenities. |
|
3.4 Integrating Land Use and Transport |
The Planning Proposal allows for additional housing in a location with good access to public transport, services and facilities within the Hurstville City Centre. Additional housing in this location is less likely to generate an adverse impact on the existing traffic demand on the Sydney road network generally when compared to additional housing in a less accessible location. |
|
6.3 Site Specific Provisions |
The Planning Proposal includes a maximum floor space ratio incentive for hotel accommodation (Clause 4.4). This is not unnecessarily restrictive as it encourages the provision of hotels and other visitor accommodation on the site. |
|
7.1 Implementation of A Plan for Growing Sydney |
A Plan for Growing Sydney has been replaced by the Greater Sydney Commission’s Greater Sydney Region Plan (A Metropolis of Three Cities). The Planning Proposal is consistent with the Objectives of A Metropolis of Three Cities, as assessed in Section 5.1 above. |
5.5 Design Review Panel
84. The revised Planning Proposal and its accompanying Urban Design Report have not been referred to the St George Design Review Panel (“DRP”) for the following reasons.
85. The existing concept plan shown in Figure 20 above was considered by the DRP on 6 April 2017. The proposed maximum FSR and the range of building heights were generally supported, subject to further detailed design to be conducted at the DA stage which will be subject to a future DRP referral. Refer to Attachment 13 for a copy of the previous DRP minutes dated 6 April 2017.
86. The revised concept shown in Figure 21 above does not seek to alter the proposed density on the site or the intent of the existing Planning Proposal. Since the DRP previously supported the proposed density, the revised Urban Design Report was not referred to the DRP.
5.6 Background – Urban Design
87. In 2016, GM Urban Design & Architecture (“GMU”) was engaged by Council to provide independent advice on the Landmark Square Precinct Planning Proposal. GMU provided an indicative concept plan (refer Figure 24 below) which demonstrates a permeable building footprint with through-site links on Forest Road, Durham Street and Roberts Lane, a central plaza and concentration of density at the Forest Road and Durham Street corner. Based on the indicative concept plan, GMU recommended the following design principles and heights and FSRs:
· FSR 2.3:1 based on GFA (with 75% efficiency) and floor areas and heights identified in the Indicative Concept Plan below (refer Figure 24). Distribution of heights can deliver an FSR of 2.3:1 to 2.5:1, depending on efficiency and uses within the development.
· Recommended massing for the site includes maximum height of 13 storeys which equates to 41m (plus plant and roof features).
· Tallest building form should be marking the corner of Durham Street and Forest Road.
· Street to be addressed with a three (3) storey podium to relate to the existing podiums and lower scale surrounding the site.
· Scale to the streets can be approx. seven (7) storeys with transition to lower scale through five (5) storeys on the eastern ends.
· Eastern edge of the site is to be reopened to the existing low scale built form along Roberts Lane, therefore three (3) storeys is proposed.
· Site has opportunity for through site links and a plaza that can be publicly accessible or partially closed to a private courtyard for residents and hotel visitors. It is to increase permeability of the site and link north (including school) with the open space and the station.
· Recommended to provide retail and active uses on the ground level.
Figure 24 – Indicative Concept Plan recommended by GMU

5.7 Assessment of Revised Concept Scheme
88. Whilst the revised concept scheme (refer Figure 21 above) retains the development intensity proposed by the existing Planning Proposal, the revision does present a more refined footprint that allows greater through-site permeability which more closely resembles the indicative concept plan recommended by GMU.
89. The revised Planning Proposal is solely informed by the revised concept scheme and does not seek to alter the proposed density on the site or the intent of the existing Planning Proposal. All amendments made by the revised proposal have been considered by Council and are addressed below.
90. The revised concept scheme features extensive articulation of the maximum building envelope and provides additional opportunities for pedestrian connections in between Buildings C1 and C2 on Roberts Lane.
91. A transitional 15m (O) height is proposed adjacent to the 12m (M) height along the Roberts Lane frontage. This 3m increase to the existing Planning Proposal height map is considered to be acceptable as the overall FSR of this portion of the site remains at 2:1 as per the Gateway Determination. No additional overshadowing or adverse amenity impacts will be generated by this additional storey.
92. It is considered that this additional storey may present better amenity outcomes for the proposed development by providing the opportunity for additional rooftop private open spaces to be located in this space. Furthermore, greater passive surveillance of Roberts Lane may be achieved as a result.
93. In addition to the above, a formal building transition is also created on the Forest Road frontage through the introduction of a 28m (T) height between the 21m (R) and 40m (W) heights. This amendment proposes a reduction in the area of the 40m (W) height from approx. 2,000sqm in the existing Planning Proposal to 760sqm, thereby reducing the bulk of the proposed built form.
94. The addition of the 28m (T) building height is considered to be an appropriate way of providing a transition from the medium density development at the northern corner (Forest Road and Roberts Lane) of the Precinct towards the high density development at the south-western corner (Forest Road and Durham Street).
95. The revised concept scheme also reduces the building footprint of Building A at the corner of Forest Road and Durham Street. The lost floor space from Building A is transferred to Building B2 to create an additional 19 storey tower in the revised scheme.
96. In comparison to the existing Planning Proposal, the proposed extent of the 65m height remains at approx. 2,810sqm in area but is reduced in width. This reconfiguration is supported due to the notable reductions in overshadowing to Kempt Field and the minor additional overshadowing to the East Quarter development to the south (refer to Shadow Studies in Attachment 4).
5.8 Bonus Hotel FSR
97. Gateway Determination has been granted for the existing Planning Proposal which proposes an amendment to Clause 4.4 Floor Space Ratio of the HLEP 2012 to introduce a FSR incentive of 0.5:1 for part of the site identified on the Floor Space Ratio Map (Sheet FSR_008B) for “hotel accommodation”:
“… the floor space ratio for development on land identified as “Area 1” on the Floor Space Ratio Map may exceed the floor space ratio shown on the land on the Floor Space Ratio Map by 0.5:1 if the development is for the purposes of “hotel accommodation.”
98. Based on the intended development outcome of approx. 130 hotel rooms, the existing Planning Proposal features approx. 7,023sqm of floor space dedicated to hotel use which includes allocations for lobby, function spaces, back of house and 5,260sqm for hotel rooms. For this reason, the proposal has always featured a bonus 0.5:1 FSR calculated from the entire 14,046sqm site area of the Precinct.
99. However, the proposed LEP clause (italicised above) is interpreted as granting a bonus 0.5:1 FSR based on the area of Area 1. This is considered to be a significant departure from the original intent of the Planning Proposal as Area 1 is only comprised of approx. 1,500sqm in site area, which would lead to a mere 750sqm in bonus floor space for the purpose of hotel accommodation.
100. In light of the above, this revised Planning Proposal intends to provide clarification regarding the application of this bonus FSR clause through an amendment to the wording of the proposed clause so that the bonus is correctly calculated based on the total site area of the Precinct, which is known as the B4 zoned land bounded by Forest Road, Durham Street and Roberts Lane. The applicable location of the bonus FSR shall remain at Area 1.
101. Accordingly, the revised Planning Proposal proposes to amend the wording of Clause 4.4 as follows:
“Despite subclause (2), the floor space ratio for land identified as “Area 1” on the Floor Space Ratio Map may exceed the floor space ratio by up to 0.5:1 of the total area of Zone B4 Mixed Use land bounded by Forest Road, Durham Street and Roberts Lane, Hurstville for the purpose of hotel accommodation.”
102. It should be noted that the original Planning Proposal was presented to Councillors at a workshop on 9 April 2018 where the Councillors suggested that more FSR be allocated for hotel accommodation land uses whilst retaining the proposed overall FSR on the site. This suggestion was communicated to the applicant following the workshop and it was agreed that since hotel accommodation is considered as an employment-generating land use, some portions of the minimum 0.5:1 non-residential FSR may be utilised to provide for additional hotel floor space if required.
103. It should also be noted that the proposed Floor Space Ratio Map as shown in Figure 25 below remains unchanged by the revised Planning Proposal.
Figure 25 – Proposed Floor Space Ratio Map

6 VOLUNTARY PLANNING AGREEMENT
104. A Voluntary Planning Agreement (“VPA”) is a mechanism which allows for negotiation and agreement between planning authorities and developers to extract public benefits from the planning process and ensure that development produces targeted public benefits over and above measures to address the impact of development on the public domain.
105. Council considered a report on an offer to enter into a VPA and a HoA in relation to the Planning Proposal (PP2015/0001) at its meeting on 7 August 2017 (Item CCL147-17). The HoA outlines the terms of the VPA, which delivers additional public benefits over and above the usual S7.11 contributions (formerly S94) applicable to the development.
106. The VPA offer applies to all land owned by the applicant, Prime Hurstville Pty Ltd, which is eight (8) lots legally described as Lot 1 in DP 225302; Lot 100 & 101 in DP 776275; Lot 1, 2, 3 & 4 in DP 12517; and Lot 10 in DP621395, known as 61-75 Forest Road and 126 Durham Street, Hurstville. The VPA was calculated based on the overall uplift of the whole Precinct and the following public benefits were identified in the signed HoA:
a) A monetary contribution of $7,375,878 (indexed). The monetary amount is to be paid in stages as follows:
i) $1 million within 30 days of HLEP 2012 Amendment;
ii) $1 million immediately prior to the issue of a notice of determination granting the first Development Consent for the Developer’s Land; and
iii) The remainder prior to the issue of any Construction Certificate for the Development on the Developer’s Land.
b) The construction and dedication at no cost to Council of a 3m wide strip of land adjoining the Developer’s Land and Robert’s Lane prior to the issue of the first subdivision certificate or the issue of the first occupation certificate for building C as referred to in the Planning Proposal. The widened Robert’s Lane shall be constructed in accordance with Council’s standards and requirements. The estimated value of the land being dedicated and the road widening works totals $514,122.
c) An easement that benefits Council which will enable public access through the site.
107. Figure 26 below identifies the VPA scope of works comprising the 3m wide road widening of Roberts Lane only on the portion of the Lane (highlighted in yellow, circle #1) for which the developer owns. It was recommended to the Environment and Planning Committee at its meeting on 12 June 2018 to prepare a separate Planning Proposal for a 3m wide local road widening on the HLEP 2012 Land Reservation Acquisition Map (as dotted in yellow) along the remaining length of the Roberts Lane boundary, to ensure a consistent road widening will occur to allow two-way vehicle access (including small vans) on Roberts Lane. Figure 26 also identifies the public through-site links in the form of publicly accessible easements (#2) which are part of the VPA.
Figure 26 – VPA Scope of Works

108. At its meeting on the 7 August 2017, Council resolved to delegate authority to the General Manager to execute the HoA, to negotiate the specific terms of the VPA and to subsequently exhibit a draft of the VPA in accordance with the relevant provisions of the Environmental Planning and Assessment Act 1979. Refer to Attachment 14 for the Council resolution for Item CCL147-17.
109. Furthermore, authority was delegated to the General Manager to:
a) Authorise any minor changes to the draft VPA following public exhibition, provided that those changes do not diminish the value or nature of the public benefits to be delivered as identified above; and
b) Subsequently enter into the VPA on behalf of Council.
110. The VPA remains unchanged by the revised Planning Proposal as the density of the uplift remains unaltered. It is anticipated that the VPA will be placed on public exhibition in accordance with the Council resolution (Item CCL147-17) concurrently with the Planning Proposal and a future amendment to the HDCP No.2 containing the insertion of a site-specific chapter in relation to the Precinct.
7 SUMMARY OF ASSESSMENT / CONCLUSION
111. In summary, the revised Planning Proposal seeks to alter the existing Gateway Determination granted for PP2015/0001 in relation to the Landmark Square Precinct as follows:
a) Reconfiguration of the proposed Height of Buildings Map as below:
a. Addition of transitional 15m (O) building height between the 12m (M) portion along Roberts Lane and the 21m (R) portion towards the centre of the Precinct;
b. Addition of transitional 28m (T) building height towards the northern portion of Forest Road between the 21m (R) and 40m (W) portions;
c. Reduction of the extent of the 40m (W) portion on Forest Road;
d. Adjustment of the 65m (AA2) portion to be concentrated primarily along Forest Road; and
e. Increase in area of the 30m (U) portion on Durham Street; and
b) A provision to clarify the bonus 0.5:1 FSR application for the purpose of hotel accommodation at the corner of Forest Road and Durham Street.
112. It is recommended that the LPP support the request for the following reasons:
a) The revised Planning Proposal is solely informed by the revised concept scheme and does not seek to alter the proposed density on the site or the intent of the existing Planning Proposal;
b) The revised Urban Design Report demonstrates an appropriate urban design response through the increased formal transition and articulation and refinement in building form, thereby fulfilling Council’s resolution 4(i) for revised urban design analysis;
c) The revised scheme provides opportunities for additional public through-site links to be created which enhances the permeability of the Precinct;
d) The revised building envelope demonstrates a significant reduction in the overshadowing impacts to Kempt Field; and
e) The revision provides clarification regarding the application of the 0.5:1 bonus FSR for hotel accommodation to prevent potential misinterpretation.
8 COMMUNITY CONSULTATION
113. Should the revised Planning Proposal be supported it will be forwarded to the delegate of the Greater Sydney Commission requesting an alteration to the existing Gateway Determination.
114. If a Gateway Determination is issued, and subject to its conditions, it is anticipated that the Planning Proposal will be exhibited for a period of 28 days in accordance with the provisions of the Environmental Planning and Assessment Act, 1979 and Regulation, 2000 and any requirements of the Gateway Determination.
115. Exhibition material, including explanatory information, land to which the Planning Proposal applies, description of the objectives and intended outcomes, copy of the Planning Proposal and relevant maps will be available for viewing during the exhibition period on Council’s website and hard copies available at Council offices and libraries.
116. Notification of the public exhibition will be through:
· Newspaper advertisement in The Leader
· Exhibition notice on Council’s website
· Notices in Council offices and libraries
· Letters to State and Commonwealth Government agencies identified in the Gateway Determination (if required)
· Letters to affected and adjoining landowners (if required, in accordance with Council’s Notification Procedures)
117. The anticipated project timeline for completion of the Planning Proposal is shown below:
|
Task |
Anticipated Timeframe |
|
Lodgement of revised Planning Proposal request |
18 May 2018 |
|
Report to Georges River LPP on Planning Proposal |
21 June 2018 (this report) |
|
Report to Environment and Planning Committee on Planning Proposal |
9 July 2018 |
|
Report to Council on Planning Proposal |
23 July 2018 |
|
Anticipated commencement date (date of Gateway determination) |
September 2018 |
|
Timeframe for government agency consultation (pre and post exhibition as required by Gateway determination) |
November 2018 |
|
Commencement and completion dates for community consultation period |
December 2018-February 2019 (concurrent public exhibition with the Road Widening Planning Proposal, DCP and VPA) |
|
Dates for public hearing (if required) |
N/A |
|
Timeframe for consideration of submissions |
February-March 2019 |
|
Reporting to Council on community consultation and finalisation |
March 2019 |
|
Submission to the Department to finalise the LEP |
April 2019 |
|
Anticipated date for notification |
May 2019 |
118. It is noted that the project timeline will be assessed by the DPE and may be amended by the Gateway Determination.
9 NEXT STEPS
119. The revised Planning Proposal will be considered at a future Georges River Council Environment and Planning Committee meeting for consideration, including the LPP recommendations.
120. The minutes of the Environment and Planning Committee meeting will subsequently be considered at a future Georges River Council meeting (“the relevant planning authority”). If the Planning Proposal is endorsed by Council it will be forwarded to the delegate of the Greater Sydney Commission for an Alteration to Gateway Determination under Section 3.34 of the Environmental Planning and Assessment Act 1979.
121. If Council resolves not to support the revised Planning Proposal, the existing Planning Proposal will be publicly exhibited in accordance with the conditions of the current Gateway Determination dated 19 October 2017. Public exhibition will occur concurrently with the associated VPA and amendments to Hurstville DCP No. 2 for the Landmark Square Precinct in accordance with the Environmental Planning and Assessment Act 1979 and Environmental Planning and Assessment Regulation 2000.
File Reference
PP2015/0001 (Container 15/793)
|
Attachment ⇩1 |
Gateway Determination dated 19 October 2017 |
|
Attachment ⇩2 |
Report of the Environment & Planning Committee dated 12 June 2018 |
|
Attachment ⇩3 |
Revised Planning Proposal Report prepared by Dickson Rothschild |
|
Attachment ⇩4 |
Revised Urban Design Report prepared by UrbanPossible |
|
Attachment ⇩5 |
Economic Impact Assessment prepared by HillPDA |
|
Attachment ⇩6 |
Social Impact Assessment prepared by HillPDA |
|
Attachment ⇩7 |
Hotel Demand Assessment prepared by HillPDA |
|
Attachment ⇩8 |
Traffic and Transport Impact Assessment prepared by Mott MacDonald |
|
Attachment ⇩9 |
Heritage Impact Assessment prepared by Rappoport |
|
Attachment ⇩10 |
Preliminary Site Investigation prepared by Environmental Investigations Australia |
|
Attachment ⇩11 |
Detailed Site Investigation prepared by DLA Environmental Services |
|
Attachment ⇩12 |
Consistency Review of Supporting Reports prepared by Dickson Rothschild |
|
Attachment ⇩13 |
DRP Minutes dated 6 April 2017 |
|
Attachment ⇩14 |
Council Resolution for Item CCL147-17 dated 7 August 2017 |
|
Georges River Council - Georges River Local Planning Panel (LPP) - Thursday, 21 June 2018 LPP024-18 Planning Proposal - 53-75 Forest Road, 108-126 Durham Street and 9 Roberts Lane, Hurstville [Appendix 1] Gateway Determination dated 19 October 2017 |
Page 247 |










































































































































































































































































































|
Georges River Council - Georges River Local Planning Panel (LPP) - Thursday, 21 June 2018 LPP024-18 Planning Proposal - 53-75 Forest Road, 108-126 Durham Street and 9 Roberts Lane, Hurstville [Appendix 8] Traffic and Transport Impact Assessment prepared by Mott MacDonald |
Page 553 |
|
Georges River Council - Georges River Local Planning Panel (LPP) - Thursday, 21 June 2018 LPP024-18 Planning Proposal - 53-75 Forest Road, 108-126 Durham Street and 9 Roberts Lane, Hurstville [Appendix 8] Traffic and Transport Impact Assessment prepared by Mott MacDonald |
Page 554 |
























|
Georges River Council - Georges River Local Planning Panel (LPP) - Thursday, 21 June 2018 LPP024-18 Planning Proposal - 53-75 Forest Road, 108-126 Durham Street and 9 Roberts Lane, Hurstville [Appendix 8] Traffic and Transport Impact Assessment prepared by Mott MacDonald |
Page 579 |
|
Georges River Council - Georges River Local Planning Panel (LPP) - Thursday, 21 June 2018 LPP024-18 Planning Proposal - 53-75 Forest Road, 108-126 Durham Street and 9 Roberts Lane, Hurstville [Appendix 8] Traffic and Transport Impact Assessment prepared by Mott MacDonald |
Page 580 |




|
Georges River Council - Georges River Local Planning Panel (LPP) - Thursday, 21 June 2018 LPP024-18 Planning Proposal - 53-75 Forest Road, 108-126 Durham Street and 9 Roberts Lane, Hurstville [Appendix 8] Traffic and Transport Impact Assessment prepared by Mott MacDonald |
Page 585 |


|
Georges River Council - Georges River Local Planning Panel (LPP) - Thursday, 21 June 2018 LPP024-18 Planning Proposal - 53-75 Forest Road, 108-126 Durham Street and 9 Roberts Lane, Hurstville [Appendix 8] Traffic and Transport Impact Assessment prepared by Mott MacDonald |
Page 588 |
































































|
Georges River Council - Georges River Local Planning Panel (LPP) - Thursday, 21 June 2018 LPP024-18 Planning Proposal - 53-75 Forest Road, 108-126 Durham Street and 9 Roberts Lane, Hurstville [Appendix 9] Heritage Impact Assessment prepared by Rappoport |
Page 654 |













































































|
Georges River Council - Georges River Local Planning Panel (LPP) - Thursday, 21 June 2018 LPP024-18 Planning Proposal - 53-75 Forest Road, 108-126 Durham Street and 9 Roberts Lane, Hurstville [Appendix 10] Preliminary Site Investigation prepared by Environmental Investigations Australia |
Page 733 |


|
Georges River Council - Georges River Local Planning Panel (LPP) - Thursday, 21 June 2018 LPP024-18 Planning Proposal - 53-75 Forest Road, 108-126 Durham Street and 9 Roberts Lane, Hurstville [Appendix 10] Preliminary Site Investigation prepared by Environmental Investigations Australia |
Page 736 |
|
Georges River Council - Georges River Local Planning Panel (LPP) - Thursday, 21 June 2018 LPP024-18 Planning Proposal - 53-75 Forest Road, 108-126 Durham Street and 9 Roberts Lane, Hurstville [Appendix 10] Preliminary Site Investigation prepared by Environmental Investigations Australia |
Page 737 |











|
Georges River Council - Georges River Local Planning Panel (LPP) - Thursday, 21 June 2018 LPP024-18 Planning Proposal - 53-75 Forest Road, 108-126 Durham Street and 9 Roberts Lane, Hurstville [Appendix 10] Preliminary Site Investigation prepared by Environmental Investigations Australia |
Page 749 |






























|
Georges River Council - Georges River Local Planning Panel (LPP) - Thursday, 21 June 2018 LPP024-18 Planning Proposal - 53-75 Forest Road, 108-126 Durham Street and 9 Roberts Lane, Hurstville [Appendix 10] Preliminary Site Investigation prepared by Environmental Investigations Australia |
Page 780 |





|
Georges River Council - Georges River Local Planning Panel (LPP) - Thursday, 21 June 2018 LPP024-18 Planning Proposal - 53-75 Forest Road, 108-126 Durham Street and 9 Roberts Lane, Hurstville [Appendix 10] Preliminary Site Investigation prepared by Environmental Investigations Australia |
Page 786 |
|
Georges River Council - Georges River Local Planning Panel (LPP) - Thursday, 21 June 2018 LPP024-18 Planning Proposal - 53-75 Forest Road, 108-126 Durham Street and 9 Roberts Lane, Hurstville [Appendix 10] Preliminary Site Investigation prepared by Environmental Investigations Australia |
Page 787 |
|
Georges River Council - Georges River Local Planning Panel (LPP) - Thursday, 21 June 2018 LPP024-18 Planning Proposal - 53-75 Forest Road, 108-126 Durham Street and 9 Roberts Lane, Hurstville [Appendix 10] Preliminary Site Investigation prepared by Environmental Investigations Australia |
Page 788 |
|
Georges River Council - Georges River Local Planning Panel (LPP) - Thursday, 21 June 2018 LPP024-18 Planning Proposal - 53-75 Forest Road, 108-126 Durham Street and 9 Roberts Lane, Hurstville [Appendix 10] Preliminary Site Investigation prepared by Environmental Investigations Australia |
Page 789 |
|
Georges River Council - Georges River Local Planning Panel (LPP) - Thursday, 21 June 2018 LPP024-18 Planning Proposal - 53-75 Forest Road, 108-126 Durham Street and 9 Roberts Lane, Hurstville [Appendix 10] Preliminary Site Investigation prepared by Environmental Investigations Australia |
Page 790 |


|
Georges River Council - Georges River Local Planning Panel (LPP) - Thursday, 21 June 2018 LPP024-18 Planning Proposal - 53-75 Forest Road, 108-126 Durham Street and 9 Roberts Lane, Hurstville [Appendix 10] Preliminary Site Investigation prepared by Environmental Investigations Australia |
Page 793 |
|
Georges River Council - Georges River Local Planning Panel (LPP) - Thursday, 21 June 2018 LPP024-18 Planning Proposal - 53-75 Forest Road, 108-126 Durham Street and 9 Roberts Lane, Hurstville [Appendix 10] Preliminary Site Investigation prepared by Environmental Investigations Australia |
Page 794 |




















|
Georges River Council - Georges River Local Planning Panel (LPP) - Thursday, 21 June 2018 LPP024-18 Planning Proposal - 53-75 Forest Road, 108-126 Durham Street and 9 Roberts Lane, Hurstville [Appendix 10] Preliminary Site Investigation prepared by Environmental Investigations Australia |
Page 815 |
|
Georges River Council - Georges River Local Planning Panel (LPP) - Thursday, 21 June 2018 LPP024-18 Planning Proposal - 53-75 Forest Road, 108-126 Durham Street and 9 Roberts Lane, Hurstville [Appendix 10] Preliminary Site Investigation prepared by Environmental Investigations Australia |
Page 816 |






















|
Georges River Council - Georges River Local Planning Panel (LPP) - Thursday, 21 June 2018 LPP024-18 Planning Proposal - 53-75 Forest Road, 108-126 Durham Street and 9 Roberts Lane, Hurstville [Appendix 10] Preliminary Site Investigation prepared by Environmental Investigations Australia |
Page 839 |





|
Georges River Council - Georges River Local Planning Panel (LPP) - Thursday, 21 June 2018 LPP024-18 Planning Proposal - 53-75 Forest Road, 108-126 Durham Street and 9 Roberts Lane, Hurstville [Appendix 10] Preliminary Site Investigation prepared by Environmental Investigations Australia |
Page 845 |

|
Georges River Council - Georges River Local Planning Panel (LPP) - Thursday, 21 June 2018 LPP024-18 Planning Proposal - 53-75 Forest Road, 108-126 Durham Street and 9 Roberts Lane, Hurstville [Appendix 10] Preliminary Site Investigation prepared by Environmental Investigations Australia |
Page 847 |
|
Georges River Council - Georges River Local Planning Panel (LPP) - Thursday, 21 June 2018 LPP024-18 Planning Proposal - 53-75 Forest Road, 108-126 Durham Street and 9 Roberts Lane, Hurstville [Appendix 10] Preliminary Site Investigation prepared by Environmental Investigations Australia |
Page 848 |
|
Georges River Council - Georges River Local Planning Panel (LPP) - Thursday, 21 June 2018 LPP024-18 Planning Proposal - 53-75 Forest Road, 108-126 Durham Street and 9 Roberts Lane, Hurstville [Appendix 10] Preliminary Site Investigation prepared by Environmental Investigations Australia |
Page 849 |
|
Georges River Council - Georges River Local Planning Panel (LPP) - Thursday, 21 June 2018 LPP024-18 Planning Proposal - 53-75 Forest Road, 108-126 Durham Street and 9 Roberts Lane, Hurstville [Appendix 10] Preliminary Site Investigation prepared by Environmental Investigations Australia |
Page 850 |
|
Georges River Council - Georges River Local Planning Panel (LPP) - Thursday, 21 June 2018 LPP024-18 Planning Proposal - 53-75 Forest Road, 108-126 Durham Street and 9 Roberts Lane, Hurstville [Appendix 10] Preliminary Site Investigation prepared by Environmental Investigations Australia |
Page 851 |
|
Georges River Council - Georges River Local Planning Panel (LPP) - Thursday, 21 June 2018 LPP024-18 Planning Proposal - 53-75 Forest Road, 108-126 Durham Street and 9 Roberts Lane, Hurstville [Appendix 10] Preliminary Site Investigation prepared by Environmental Investigations Australia |
Page 852 |
|
Georges River Council - Georges River Local Planning Panel (LPP) - Thursday, 21 June 2018 LPP024-18 Planning Proposal - 53-75 Forest Road, 108-126 Durham Street and 9 Roberts Lane, Hurstville [Appendix 10] Preliminary Site Investigation prepared by Environmental Investigations Australia |
Page 853 |
|
Georges River Council - Georges River Local Planning Panel (LPP) - Thursday, 21 June 2018 LPP024-18 Planning Proposal - 53-75 Forest Road, 108-126 Durham Street and 9 Roberts Lane, Hurstville [Appendix 10] Preliminary Site Investigation prepared by Environmental Investigations Australia |
Page 854 |


|
Georges River Council - Georges River Local Planning Panel (LPP) - Thursday, 21 June 2018 LPP024-18 Planning Proposal - 53-75 Forest Road, 108-126 Durham Street and 9 Roberts Lane, Hurstville [Appendix 10] Preliminary Site Investigation prepared by Environmental Investigations Australia |
Page 857 |
|
Georges River Council - Georges River Local Planning Panel (LPP) - Thursday, 21 June 2018 LPP024-18 Planning Proposal - 53-75 Forest Road, 108-126 Durham Street and 9 Roberts Lane, Hurstville [Appendix 10] Preliminary Site Investigation prepared by Environmental Investigations Australia |
Page 858 |
|
Georges River Council - Georges River Local Planning Panel (LPP) - Thursday, 21 June 2018 LPP024-18 Planning Proposal - 53-75 Forest Road, 108-126 Durham Street and 9 Roberts Lane, Hurstville [Appendix 10] Preliminary Site Investigation prepared by Environmental Investigations Australia |
Page 859 |
|
Georges River Council - Georges River Local Planning Panel (LPP) - Thursday, 21 June 2018 LPP024-18 Planning Proposal - 53-75 Forest Road, 108-126 Durham Street and 9 Roberts Lane, Hurstville [Appendix 10] Preliminary Site Investigation prepared by Environmental Investigations Australia |
Page 860 |




|
Georges River Council - Georges River Local Planning Panel (LPP) - Thursday, 21 June 2018 LPP024-18 Planning Proposal - 53-75 Forest Road, 108-126 Durham Street and 9 Roberts Lane, Hurstville [Appendix 10] Preliminary Site Investigation prepared by Environmental Investigations Australia |
Page 865 |
|
Georges River Council - Georges River Local Planning Panel (LPP) - Thursday, 21 June 2018 LPP024-18 Planning Proposal - 53-75 Forest Road, 108-126 Durham Street and 9 Roberts Lane, Hurstville [Appendix 10] Preliminary Site Investigation prepared by Environmental Investigations Australia |
Page 866 |




|
Georges River Council - Georges River Local Planning Panel (LPP) - Thursday, 21 June 2018 LPP024-18 Planning Proposal - 53-75 Forest Road, 108-126 Durham Street and 9 Roberts Lane, Hurstville [Appendix 10] Preliminary Site Investigation prepared by Environmental Investigations Australia |
Page 871 |
|
Georges River Council - Georges River Local Planning Panel (LPP) - Thursday, 21 June 2018 LPP024-18 Planning Proposal - 53-75 Forest Road, 108-126 Durham Street and 9 Roberts Lane, Hurstville [Appendix 10] Preliminary Site Investigation prepared by Environmental Investigations Australia |
Page 872 |















































































































































































|
Georges River Council - Georges River Local Planning Panel (LPP) - Thursday, 21 June 2018 LPP024-18 Planning Proposal - 53-75 Forest Road, 108-126 Durham Street and 9 Roberts Lane, Hurstville [Appendix 11] Detailed Site Investigation prepared by DLA Environmental Services |
Page 1049 |










































































|
Georges River Council - Georges River Local Planning Panel (LPP) - Thursday, 21 June 2018 LPP024-18 Planning Proposal - 53-75 Forest Road, 108-126 Durham Street and 9 Roberts Lane, Hurstville [Appendix 11] Detailed Site Investigation prepared by DLA Environmental Services |
Page 1124 |



|
Georges River Council - Georges River Local Planning Panel (LPP) - Thursday, 21 June 2018 LPP024-18 Planning Proposal - 53-75 Forest Road, 108-126 Durham Street and 9 Roberts Lane, Hurstville [Appendix 11] Detailed Site Investigation prepared by DLA Environmental Services |
Page 1128 |





















































|
Georges River Council - Georges River Local Planning Panel (LPP) - Thursday, 21 June 2018 LPP024-18 Planning Proposal - 53-75 Forest Road, 108-126 Durham Street and 9 Roberts Lane, Hurstville [Appendix 11] Detailed Site Investigation prepared by DLA Environmental Services |
Page 1182 |

|
Georges River Council - Georges River Local Planning Panel (LPP) - Thursday, 21 June 2018 LPP024-18 Planning Proposal - 53-75 Forest Road, 108-126 Durham Street and 9 Roberts Lane, Hurstville [Appendix 11] Detailed Site Investigation prepared by DLA Environmental Services |
Page 1184 |


















|
Georges River Council - Georges River Local Planning Panel (LPP) - Thursday, 21 June 2018 LPP024-18 Planning Proposal - 53-75 Forest Road, 108-126 Durham Street and 9 Roberts Lane, Hurstville [Appendix 11] Detailed Site Investigation prepared by DLA Environmental Services |
Page 1203 |
|
Georges River Council - Georges River Local Planning Panel (LPP) - Thursday, 21 June 2018 LPP024-18 Planning Proposal - 53-75 Forest Road, 108-126 Durham Street and 9 Roberts Lane, Hurstville [Appendix 11] Detailed Site Investigation prepared by DLA Environmental Services |
Page 1204 |






|
Georges River Council - Georges River Local Planning Panel (LPP) - Thursday, 21 June 2018 LPP024-18 Planning Proposal - 53-75 Forest Road, 108-126 Durham Street and 9 Roberts Lane, Hurstville [Appendix 12] Consistency Review of Supporting Reports prepared by Dickson Rothschild |
Page 1212 |












|
Georges River Council – Local Planning Panel Thursday, 21 June 2018 |
Page 1227 |
REPORT TO GEORGES RIVER COUNCIL
LPP MEETING OF Thursday, 21 June 2018
|
LPP Report No |
LPP025-18 |
Development Application No |
N/A |
|
Site Address & Ward Locality |
Planning Proposal - Low Rise Medium Density Housing Code SELECT A WARD |
||
|
Proposed Development |
Planning Proposal - Low Rise Medium Density Housing Code |
||
|
Owners |
N/A |
||
|
Applicant |
Georges River Council |
||
|
Planner/Architect |
N/A |
||
|
Date Of Lodgement |
N/A |
||
|
Submissions |
N/A |
||
|
Cost of Works |
N/A |
||
|
Local Planning Panel Criteria |
Direction from the Minister for Planning under Section 9.1 of the Environmental Planning and Assessment Act 1979 and the Charter of the Georges River Council Local Planning Panel 2018 both specify that the Planning proposal is to be referred to the Local Planning Panel before it is forwarded for gateway Determination (approval). |
||
|
List of all relevant s.4.15 matters (formerly s79C(1)(a)) |
N/A – Planning Proposal
|
||
|
List all documents submitted with this report for the Panel’s consideration |
Attachment 1 – Letter dated 24 May 2018 from the Department of Planning and Environment advising of deferral requirements for the commencement of the Low Rise Medium Density Code. Attachment 2 – Schedule 1 – Additional Permitted Uses – Kogarah LEP 2012. Attachment 3 – Draft Planning Proposal Low Rise Medium Housing Code |
||
|
Report prepared by |
Manager Strategic Planning |
||
|
Executive Summary
Proposal
1. The Planning Proposal seeks the following:
a. An exemption from the application of the Low Rise Medium Density Housing Code to the R2 Low Density Residential zone within Hurstville Local Environmental Plan 2012 for manor houses, multi dwelling housing (terraces), multi dwelling housing, residential flat buildings and dual occupancies.
b. An exemption from the application of the Low Rise Medium Density Housing Code to Schedule 1 Additional Permitted Uses within the Kogarah Local Environmental Plan 2012 for manor housing, multi dwelling housing (terraces), multi dwelling housing, and dual occupancies.
c. An exemption from any related amendment to the Standard Instrument – Principal Local Environmental Plan, including the Standard Instrument (Local Environmental Plans) Amendment (Low Rise Medium Density Housing) Order 2017 [NSW] to the R2 Low Density Residential zone within the Georges River LGA, which is intended to introduce two new terms (manor houses and multi dwelling housing (terraces)); amend the existing definition of multi dwelling housing and the existing definition of residential flat buildings; and amend Direction 5 and introduce Direction 6 and Direction 7 in the Land Use Table, after Direction 5.
d. An exemption from any State Government initiated amendment to Hurstville Local Environmental Plan 2012 that is intended to add the terms manor houses and multi dwelling housing (terraces)) to the R2 Low Density Residential zone, and to permit those land uses where medium density housing or residential flat buildings is allowed in the R2 Low Density Residential zone.
e. An exemption from Environmental Planning and Assessment Amendment (Low Rise Medium Density Housing) Regulation 2017 or any amendment to the Environmental Planning and Assessment Regulation 2000 to the R2 Low Density Residential zone within the Georges River LGA, which is intended to allow an applicant to lodge a complying development certificate for medium density housing and concurrent subdivision and require the submission of a Design Verification Statement from the Building Designer.
2. If an exemption is not granted, Council requests a deferment in the commencement of the Low Rise Medium Density Housing Code and the amendments to the Standard Instrument – Principal Local Environmental Plan and the Environmental Planning & Assessment Regulation 2000, until 1 July 2019 or until such time as Council has completed the requisite strategic studies (including a housing strategy) to determine where additional density and diversity of housing type is appropriate in the LGA and finalised the drafting of the Georges River Local Environmental Plan.
3. Direction 5, 6 and 7 state:
a. Direction 5: Only the following types of development may be included in the Land Use Table: Add “Multi dwelling housing (terraces)” after “Multi dwelling housing”.
b. Direction 6. Manor houses must be permitted wherever multi dwelling housing is permitted in the Land Use Table.
c. Direction 7. Multi dwelling housing (terraces) cannot be prohibited in a zone if multi dwelling housing is permitted in that zone.
4. Council has raised concern with the impact of the Low Rise Medium Density Code and medium density housing in its R2 Low Density Residential Zone with the Department of Planning and Environment.
5. By letter dated 24 May 2018 the Department has advised that the Minister has indicated that he would consider deferring the commencement of the code to allow councils to rectify local planning controls to meet the strategic intent of the council area.
6. The Department’s letter further stated that this deferral from the Code will need the lodgement of a planning proposal with the Department by 27 June 2018. A copy of the Department’s letter dated 24 May 2018 is in Attachment 1.
7. This report recommends that the Georges River Local Planning Panel recommends to Council that the Planning Proposal – Low Rise Medium Density Housing Code, be forwarded to the delegate of the Greater Sydney Commission for a Gateway Determination under Section 3.34 of the Environmental Planning and Assessment Act 1979; and that a report to Council be prepared by Council staff to advise of the Local Planning Panel’s recommendations.
Site and Locality
8. The Planning Proposal applies to the whole of the Georges River Local Government Area.
Zoning and Permissibility
9. Council currently has:
a. Three LEPs:
i. Kogarah Local Environmental Plan 2012;
ii. Hurstville Local Environmental Plan 2012; and
iii. Hurstville Local Environmental Plan 1994.
b. Four DCPs:
i. Kogarah Development Control Plan 2013;
ii. Hurstville Development Control Plan 1 (Applies to land within the Peakhurst, Mortdale and Hurstville Wards);
iii. Hurstville Development Control Plan 2 Amendment Number 5 (Applies to sites within the Hurstville City Centre identified as Deferred Land); and
iv. Hurstville Development Control Plan 2 Amendment Number 6 (Applies to land identified as Hurstville City Centre, excluding the Deferred Land).
10. The Low Rise Medium Density Housing Code and its accompanying legislative changes permit:
a. manor housing and terrace housing in the R2 and R3 residential zones under the Hurstville LEP 2012,
b. manor housing and terrace housing in the R3 residential zone under the Kogarah LEP 2012, and
c. terrace housing for land listed in Items 17, 18 and 19 of Schedule 1 Additional Permitted Uses and that are zoned R2 under the Kogarah LEP 2012. Refer to Attachment 2 for the properties listed in Items 17, 18 and 19 of Schedule 1 to the Kogarah LEP 2012.
Submissions
11. There are no submissions at this stage. The Planning Proposal will be placed on community consultation in accordance with the Gateway Determination.
Conclusion
12. Council requests an exemption from the application of the State Environmental Planning Policy (Exempt and Complying Development Codes) Amendment (Low Rise Medium Density Housing 2017 (Low Rise Medium Density Housing Code), the Standard Instrument (Local Environmental Plans) Amendment (Low Rise Medium Density Housing) Order 2017 [NSW] and the Environmental Planning and Assessment Amendment (Low Rise Medium Density Housing) Regulation 2017.
Report in Full
Proposal
13. The Planning Proposal seeks the following:
a. An exemption from the application of the Low Rise Medium Density Housing Code to the R2 Low Density Residential zone within Hurstville Local Environmental Plan 2012 for manor houses, multi dwelling housing (terraces), multi dwelling housing, residential flat buildings and dual occupancies.
b. An exemption from the application of the Low Rise Medium Density Housing Code to Schedule 1 Additional Permitted Uses within the Kogarah Local Environmental Plan 2012 for multi dwelling housing (terraces), multi dwelling housing, and dual occupancies.
c. An exemption from any related amendment to the Standard Instrument – Principal Local Environmental Plan, including the Standard Instrument (Local Environmental Plans) Amendment (Low Rise Medium Density Housing) Order 2017 [NSW] to the R2 Low Density Residential zone within the Georges River LGA, which is intended to introduce two new terms (manor houses and multi dwelling housing (terraces)); amend the existing definition of multi dwelling housing and the existing definition of residential flat buildings; and amend Direction 5 and introduce Direction 6 and Direction 7 in the Land Use Table, after Direction 5.
d. An exemption from any State Government initiated amendment to Hurstville Local Environmental Plan 2012 that is intended to add the terms manor houses and multi dwelling housing (terraces)) to the R2 Low Density Residential zone, and to permit those land uses where medium density housing or residential flat buildings is allowed in the R2 Low Density Residential zone.
e. An exemption from Environmental Planning and Assessment Amendment (Low Rise Medium Density Housing) Regulation 2017 or any amendment to the Environmental Planning and Assessment Regulation 2000 to the R2 Low Density Residential zone within the Georges River LGA, which is intended to allow an applicant to lodge a complying development certificate for medium density housing and concurrent subdivision and require the submission of a Design Verification Statement from the Building Designer.
14. If an exemption is not granted, Council requests a deferment in the commencement of the Low Rise Medium Density Housing Code and the amendments to the Standard Instrument – Principal Local Environmental Plan and the Environmental Planning & Assessment Regulation 2000, until 1 July 2019 or until such time as Council has completed the requisite strategic studies (including a housing strategy) to determine where additional density and diversity of housing type is appropriate in the LGA and finalised the drafting of the Georges River Local Environmental Plan.
The Site and Locality
15. On 12 May 2016 the Minister for Local Government announced the newly formed Georges River Council (Council), which was formed out of the amalgamation of the former Kogarah Council and the former Hurstville Council.
16. The new Georges River Local Government Area (LGA) is 44.14 square kilometres with 147,000 people residing in the area.
17. The LGA is located in Southern Sydney and includes the suburbs of Allawah, Beverley Park, Beverly Hills (part), Blakehurst, Carlton (part), Carss Park, Connells Point, Hurstville, Hurstville Grove, Kingsgrove (part), Kogarah, Kogarah Bay, Lugarno, Mortdale, Narwee (part), Oatley, Peakhurst, Peakhurst Heights, Penshurst, Ramsgate (part), Riverwood, Sans Souci (part) and South Hurstville.
Zoning and Permissibility
18. Council currently has:
a. Three LEPs:
i. Kogarah Local Environmental Plan 2012;
ii. Hurstville Local Environmental Plan 2012; and
iii. Hurstville Local Environmental Plan 1994.
b. Four DCPs:
i. Kogarah Development Control Plan 2013;
ii. Hurstville Development Control Plan 1 (Applies to land within the Peakhurst, Mortdale and Hurstville Wards);
iii. Hurstville Development Control Plan 2 Amendment Number 5 (Applies to sites within the Hurstville City Centre identified as Deferred Land); and
iv. Hurstville Development Control Plan 2 Amendment Number 6 (Applies to land identified as Hurstville City Centre, excluding the Deferred Land).
19. Kogarah Local Environmental Plan 2012 (KLEP) and Hurstville Local Environmental Plan 2012 (HLEP) are in the standard form, prescribed in the Standard Instrument (Local Environmental Plans) Order 2006. Hurstville Local Environmental Plan 1994 is not in the standard form as it was made prior to the standardisation of LEPs and applies only to the land deferred from HLEP (Deferred Land). Please see Figure 1 below for a map of the Deferred Land.

![]()
Figure 1 – Deferred Land Map
20. The Deferred Land, which sits under Hurstville Local Environmental Plan 1994, is zoned 3(b) City Centre Business zone. There are no development controls in the Hurstville Local Environmental Plan 1994 that apply to the 3(b) City Centre Business zone. Therefore the community and developers must refer to Hurstville Development Control Plan 2 Amendment Number 5 for the relevant planning and design guidelines.
21. Whilst Kogarah Local Environmental Plan 2012 and Hurstville Local Environmental Plan 2012 are in the standard form, both instruments have different objectives, zoning patterns, local provisions and development controls.
Georges River Local Environmental Plan
22. Council resolved on 27 November 2017 (Notice of Motion 015-17):
a. That Council commence the preparation of a new Local Environmental Plan (LEP) for the Georges River local government area in early 2018.
b. That the General Manager prepare a report detailing the proposed program for preparation of the LEP, including the necessary strategic studies, community consultation framework, timeframes and costs for preparation of the LEP.
c. That the General Manager investigates the scheduling of additional Councillor Workshop sessions during 2018 for the purposes of formulating the draft LEP
23. In October 2017, the NSW Government released the draft Greater Sydney Region Plan and the revised draft South District Plan. The draft Greater Sydney Region Plan and Draft South District Plan outlined the need for councils to update their local environmental plans once both of the State Government Plans were finalised. The draft South District Plan also sets out a requirement for councils to prepare a Housing Strategy for the local government area. At the same time, the Environmental Planning & Assessment Act 1979 (EP&A Act) was in a review phase, with the Environmental Planning & Assessment Bill 2017 (Bill) being passed by Parliament and awaiting assent. The Bill set out a requirement that councils must draft a Community Participation Plan and a Local Strategic Planning Statement for the local government area.
24. Council staff prepared a Council report to respond to Notice of Motion 015-17, the Bill, the draft Greater Sydney Region Plan and the Draft South District Plan, by recommending the preparation of a Housing Strategy, Community Participation Plan, Local Strategic Planning Statement and a principal Local Environmental Plan for the local government area.
25. Council resolved on 26 February 2018 (CCL001-18) that:
a. The report on the Georges River Principal Local Environmental Plan be received and noted.
b. Council endorse the preparation of a Housing Strategy, Community Participation Plan and Local Strategic Planning Statement for the Georges River local government area.
c. Council endorse the preparation of a principal Local Environmental Plan for the Georges River local government area.
26. In March 2018, the amendments to the EP&A Act came into force and the Greater Sydney Region Plan and the South District Plan were finalised.
27. Council has commenced the drafting of the Georges River principal local environmental plan and has a dedicated planning resource for this project.
28. Council is awaiting the release of guidelines to inform the drafting of a Housing Strategy, amendments to the Environmental Planning & Assessment Regulation 2000 to inform the drafting of a Community Participation Plan and the release of Planning Secretary requirements on the preparation and making of Local Strategic Planning Statements, including with respect to the participation of councillors.
29. A Housing Strategy, Community Participation Plan and Local Strategic Planning Statement are all required to inform the drafting of the Georges River Local Environmental Plan.
Housing Targets
30. Council’s current planning controls will ensure that the 2016 – 2021 housing target of 4,800 (South District Plan, Planning Priority S5, p42) for the LGA will be delivered. Our current approvals are tracking beyond our five year housing target.
31. Significant housing is also being delivered within our centres, our transport corridors, the Kogarah North precinct and other areas of the former Kogarah Council. For example:
a. King Georges Road and Princes Highway Blakehurst – increase of 868 dwellings
b. Blakehurst waterfront, along the Princes Highway – increase of 300 dwellings
c. Kogarah Town Centre and Kogarah North precinct – increase of 2800 dwellings
d. South Hurstville precinct – increase of 1337 dwellings
e. Princes Highway Carlton precinct (B6 Enterprise corridor) – increase of 950 dwellings
f. Ramsgate, Rocky Point Road – increase of 327 dwellings;
32. A Housing Strategy was prepared for Kogarah Council in July 2014. The Kogarah Housing Strategy supported the “New City Plan” amendment which was gazetted in May 2017 to the Kogarah Local Environmental Plan 2012. The former Hurstville Council did not have a housing strategy. The Hurstville LEP 2012 is a translation of the previous Hurstville LEP 1994.
33. Council requires a new housing strategy that addresses the existing and future housing needs of its population. Council has not assessed the LGA’s changing demographic forecasts of population and local housing demand since the current LEPs were gazetted in 2012. Nor has Council have an estimate of local housing needed in 20 years. This is the role of a housing strategy.
34. Each LGA within the Greater Sydney Region is required to prepare a Housing Strategy, Community Participation Plan and Local Strategic Planning Statement, under the Greater Sydney Region Plan, District Plans and the EP&A Act.
35. The purpose of these strategic documents is to inform any amendments to local planning controls. However, councils have not been given the opportunity to draft the documents as we are awaiting the guidelines to inform the drafting of a Housing Strategy, amendments to the Environmental Planning & Assessment Regulation 2000 to inform the drafting of a Community Participation Plan and the release of Planning Secretary requirements on the preparation and making of Local Strategic Planning Statements, including with respect to the participation of councillors.
36. If an assessment of where such development and density is appropriate in the LGA is not conducted at the strategic level through a Housing Strategy, Community Participation Plan and Local Strategic Planning Statement, the implementation of the new Low rise medium density housing code and new medium density housing types will result in an ad hoc approach to density and housing type with no consideration for local infrastructure demands and deficits, and no assessment of environmental, social or economic impacts of the development.
37. It should be noted that Council only received the Guideline from the Department of Planning and Environment for the preparation of the Local Strategic Planning Statement on 12 June 2018.
Background
38. Notice of Motion 035-18 was adopted by Council on 28 May 2018 and states:
a. That the General Manager urgently prepare a report to Council in June 2018 on the NSW Coalition Government's new Low Rise Medium Density Housing Code, to be introduced on 6 July 2018, and the impact that this new Code will have on the Georges River Council LGA, including the extent of the likely significant increase in the number of dwellings permitted in low density areas and; the approximate number of sites in the LGA where the new Code will allow the fast-tracked development of manor houses, duplexes and terrace houses in low density areas.
b. That Council notes with serious concern that the new Code will allow Private Certifiers to approve 2 storey residential flat buildings comprising 3-4 dwellings, known as "manor homes", as well as duplexes and terrace housing, under the complying development approval process (SEPP) in R2 Low Density Residential Zones, with minimal neighbour notification and no requirement for objections to be considered.
c. That to protect our community from future impacts from the Code:
i. Council immediately and concurrently prepare a Planning Proposal to:
a. Prohibit manor houses from the R2 Low Density Residential Zone.
b. Prohibit terraces/town houses/villa development from the R2 Low Density Residential Zone.
c. Restrict dual occupancy development to current planning rules.
ii. Submit the Planning Proposal to the Greater Sydney Commission for Gateway approval.
iii. Delegate to the General Manager any administrative arrangements to progress the Planning Proposal, including exhibition, once a Gateway Determination has been received.
d. That Council write to the Minister for Planning, the Hon Anthony Roberts MP to seek an exemption from the Code’s SEPP amendments within the R2 zone and to request that Council’s local planning controls prevail over the SEPP until the Planning Proposal has been gazetted.
e. That Council apply for grant funding of $2.5 million to assist in accelerating the preparation of the Georges River LEP review within a 12 month period, with such funds being used for studies, resources and other items needed to advance the LEP review within the required two-year period.
f. That the NSW Coalition Government’s policy changes and its implications for our City be widely communicated to the community.
39. Council has written to the Minister for Planning, the Hon Anthony Roberts MP by letter dated 1 June 2018 seeking an exemption from the Code’s SEPP amendments within the R2 zone. The letter requests that Council’s local planning controls prevail over the SEPP until the Planning Proposal has been gazetted.
40. Council by letter dated 4 June 2018 has applied for grant funding of $2.5 million to assist in accelerating the preparation of the Georges River LEP review, with such funds being used for studies, resources and other items needed to advance the LEP review within the required two-year period.
Impact of the new Code within Georges River LGA
41. The following table (Table 1) provides an outline of the planning provisions that will apply for complying development under the Medium Density Housing – Low Rise Medium Density Housing Code within Georges River LGA.
42. It should be noted that the following directions apply and overrule the local environmental plans of Council:
a. Direction 5: Only the following types of development may be included in the Land Use Table: Add “Multi dwelling housing (terraces)” after “Multi dwelling housing”.
b. Direction 6: Manor houses must be permitted wherever multi dwelling housing is permitted in the Land Use Table.
c. Direction 7: Multi dwelling housing (terraces) cannot be prohibited in a zone if multi dwelling housing is permitted in that zone
43. In summary:
a. The Kogarah LEP 2012 permits Dual Occupancies in the R2 Low Density Residential Zone and Dual Occupancies and Multi Dwelling Housing in the R3 – Medium Density Residential Zone.
b. The Hurstville LEP 2012 permits Dual Occupancies and Multi Dwelling Housing in the R2 and R3 Zones.
44. The Low Rise Medium Density Housing Code and its accompanying legislative changes permit:
a. manor housing and terrace housing in the R2 and R3 residential zones under the Hurstville LEP 2012,
b. manor housing and terrace housing in the R3 residential zone under the Kogarah LEP 2012, and
c. terrace housing for land listed in Items 17, 18 and 19 of Schedule 1 Additional Permitted Uses and that are zoned R2 under the Kogarah LEP 2012. Refer to Attachment 2 for the properties listed in Items 17, 18 and 19 of Schedule 1 to the Kogarah LEP 2012.
Table 1 - Planning provisions and the Code
|
Type of Housing |
Low Rise Medium Density Housing Code |
KLEP applicable controls |
HLEP applicable controls |
|
Dual Occupancy Attached or detached but not located above
|
|
|
|
|
Lot requirements – size |
|
650m2 1000m2 |
630m2 1000m2 |
|
Lot Width |
Width 12m |
|
|
|
Height |
8.5m |
|
|
|
Maximum gross floor area |
400m2 – 2000m2: 25% of lot area + 300m2 >2,000m2: 800m2 |
|
|
|
Manor Houses, Dual occupancies (located above part of another dwelling)
manor house means a building containing 3 or 4 dwellings, where: (a) each dwelling is attached to another dwelling by a common wall or floor, and (b) at least 1 dwelling is partially or wholly located above another dwelling, and (c) the building contains no more than 2 storeys (excluding any basement). |
|
|
|
|
Lot size requirements – manor house |
600m2 |
|
|
|
Lot size requirements - dual occupancy |
|
650m2 1000m2 |
630m2 1000m2 |
|
Lot Width |
15m width |
|
|
|
Height |
8.5m |
|
|
|
Maximum gross floor area |
The maximum gross floor area of all buildings on a lot is 25% of the lot area plus 150m2, to a maximum of 400m2. |
|
|
|
Multi dwelling housing (terraces)
multi dwelling housing means 3 or more dwellings (whether attached or detached) on one lot of land where: (a) each dwelling has access at ground level, and (b) no part of a dwelling is above any part of any other dwelling, and includes multi dwelling housing (terraces). Note. Multi dwelling housing is a type of residential accommodation—see the definition of that term in this Dictionary. multi dwelling housing (terraces) means multi dwelling housing where all dwellings are attached and face, and are generally aligned along, 1 or more public roads |
|
|
|
|
Lot size requirements |
Other than K in the HELP 2012 – 600m2 |
800m2 |
K – 500m2 per dwelling |
|
Lot Width |
18m width |
|
|
|
Height |
9m |
|
|
|
Maximum gross floor area |
R2 – 60% of lot area 80% of lot area |
|
|
45. Table 2 below provides the approximate number of sites in the LGA where the new Low Rise Medium Density Housing Code will allow the fast tracked development of dual occupancies, manor housing and terrace housing.
Table 2 – Number of sites affected by Code per Zone/LEP
|
Type |
LEP |
Zone |
Lot Area |
Frontage |
Estimated No. of Land |
|
Dual Occ |
HLEP12 |
R2 |
|
||
|
(attached & detached) |
|
|
≥ 630sqm |
≥ 12m |
3130 |
|
|
|
|
≥ 1000sqm |
≥ 12m |
170 |
|
|
|
R3 |
|
|
|
|
|
|
|
≥ 630sqm |
≥ 12m |
640 |
|
|
|
|
≥ 1000sqm |
≥ 12m |
0 |
|
|
KLEP12 |
R2 |
|
||
|
|
|
|
≥ 650sqm |
≥ 12m |
2640 |
|
|
|
|
≥ 1000sqm |
≥ 12m |
50 |
|
|
|
R3 |
|
||
|
|
|
|
≥ 650sqm |
≥ 12m |
590 |
|
|
|
|
≥ 1000sqm |
≥ 12m |
1 |
|
Dual Occ |
HLEP12 |
R2 |
|
||
|
(2 storey) |
|
|
≥ 630sqm |
≥ 15m |
2350 |
|
|
|
|
≥ 1000sqm |
≥ 15m |
150 |
|
|
|
R3 |
|
|
|
|
|
|
|
≥ 630sqm |
≥ 15m |
610 |
|
|
|
|
≥ 1000sqm |
≥ 15m |
0 |
|
|
KLEP12 |
R2 |
|
||
|
|
|
|
≥ 650sqm |
≥ 15m |
2010 |
|
|
|
|
≥ 1000sqm |
≥ 15m |
50 |
|
|
|
R3 |
|
||
|
|
|
|
≥ 650sqm |
≥ 15m |
530 |
|
|
|
|
≥ 1000sqm |
≥ 15m |
1 |
|
Manor House |
HLEP12 |
R2 |
|
||
|
|
|
|
≥ 600sqm |
≥ 15m |
4030 |
|
|
|
R3 |
|
|
|
|
|
|
|
≥ 600sqm |
≥ 15m |
650 |
|
|
KLEP12 |
R3 |
|
||
|
|
|
|
≥ 600sqm |
≥15m |
590 |
|
Terraces |
HLEP12 |
R2 |
|
||
|
|
|
|
≥ 600sqm |
≥ 18m |
1460 |
|
|
|
|
≥ 1500sqm |
≥ 18m |
10 |
|
|
|
R3 |
|
|
|
|
|
|
|
≥ 600sqm |
≥ 18m |
510 |
|
|
|
|
≥ 1500sqm |
≥ 18m |
0 |
|
|
KLEP12 |
R3 |
|
||
|
|
|
|
≥ 800sqm |
≥ 18m |
420 |
46. Table 2 only details the sites that are eligible for complying development for the different types of housing that will be permitted under the new Low Rise Medium Density Housing Code. Land affected by the following is excluded from complying development:
a. Land that contains State heritage
b. Land that contains Item of environmental heritage’
c. Land that is in an environmentally sensitive area (Coastal SEPP 2018)
d. Land within a heritage conservation area
e. Land reserved for public acquisition
f. Land affected by classes 1 and 2 acid sulphate soils
g. Land in the foreshore area
h. Environmentally sensitive land (E1 and E2 zones)
Note: Table 2 also excludes land classified as Flood Planning Control allotments.
Note: Table 2 does not distinguish sites that already have been developed for dual occupancy and multi-unit housing.
47. The table indicates that sites available under the SEPP for:
a. Dual occupancies with a 12m frontage is 7,220,
b. Dual occupancy with a 15m frontage – 5701 (council controls),
c. Manor housing is 5270,
d. Terraces is 2400.
48. The changes to the Standard LEP instrument amend both the Kogarah and Hurstville LEPs. If the development cannot be carried out as complying development due to an exclusion or a non-compliance with the new Low Rise Medium Density Housing Code, a DA can be lodged, as manor housing and terrace housing will be permitted in the R3 Medium Density Housing zone under Kogarah LEP 2012 and in the R2 and R3 zones under the Hurstville LEP 2012.
49. Therefore it is envisaged that there will be an increase in the DA and the CDCs for manor housing, dual occupancies and terrace housing – manor housing however will be the most popular form of development.
Kogarah Local Environmental Plan 2012
50. Items 17, 18 and 19 of Schedule 1 Additional Permitted Uses allow medium density housing to be carried out in the R2 Low Density Residential zone on land listed in the schedule.
51. Medium density housing is not currently permitted in the R2 Low Density Residential zone and is contrary to the objectives of the zone.
52. The proposed expansion of the definitions of multi dwelling housing and residential flat buildings to include multi dwelling housing (terraces) and manor houses, the amendment to Direction 5 and the introduction of Directions 6 and 7 in the Land Use Table means that the Multi dwelling housing land use is diametrically opposed to the R2 objective of providing for the housing needs of the community within a low density residential environment.
53. It is no longer appropriate to allow multi dwelling housing on land in the R2 Low Density Residential zone through an additional permitted use, until such time as Council has completed a Housing Strategy and reviewed all of the land in the LGA, to determine what land has merit on strategic planning grounds to accommodate medium density housing.
54. Dual occupancies are permitted with consent in the R2 Low Density Residential zone. It is not appropriate to apply the Low Rise Medium Density Housing Code to Dual occupancies in the R2 Low Density Residential zone as it changes the characterisation of the Dual occupancy land use into a land use that is only appropriate in the R3 Medium Density zone. The Dual Occupancy land use is only acceptable in the R2 Low Density Residential zone if the merit of each development is assessed against the objectives of the zone through the development assessment process.
55. If the Low Rise Medium Density Housing Code applied to the Dual occupancy land use in the R2 Low Density Residential zone, the land use would no longer meet the low density character of the zone, as whole streets of low density houses could become rows of dual occupancies without development consent and with no neighbour consultation. This would dramatically increase the density of the area in a zone that does not have the requisite facilities or services for such medium density housing, to meet the day to day needs of residents in that zone.
56. The permissibility of medium density housing may continue on land zoned R3 Medium Density Housing and Council does not oppose the application of the Low Rise Medium Density Housing Code to the R3 Medium Density Housing zone, as such development meets the objectives of the zone and the community and Council have been consulted with in determining the appropriateness of such a zoning on that land.
Hurstville Local Environmental Plan 2012
57. Multi dwelling housing is currently permitted with consent in the R2 Low Density Residential zone. The proposed expansion of this land use to include manor houses and multi dwelling housing (terraces) means that the Multi dwelling housing land use will no longer meet the objectives of the R2 Low Density Residential zone. The purpose of the zone is to provide housing for the community in a low density residential environment, whilst ensuring that a high level of residential amenity is achieved and maintained. Multi dwelling housing is now contrary to these objectives, as it will adversely affect the surrounding residential amenity and the natural and cultural heritage of the area. This is further compounded by the Low Rise Medium Density Housing Code which will remove any consideration of the objectives of the zone and the impact of the development on the low density character of the area. This could destroy suburbs such as Oatley and Lugarno which are leafy suburbs with high residential amenity, underpinned by a strong fabric of social and environmental values.
58. It is no longer appropriate to permit multi dwelling housing on land in the R2 Low Density Residential zone, until such time as Council has completed a Housing Strategy and reviewed all of the land in the LGA, to determine what land has merit on strategic planning grounds to accommodate medium density housing.
59. Dual occupancies are permitted with consent in the R2 Low Density Residential zone. It is not appropriate to apply the Low Rise Medium Density Housing Code to Dual occupancies in the R2 Low Density Residential zone as it changes the characterisation of the Dual occupancy land use into a land use that does not meet the objectives of the zone and is only appropriate in the R3 Medium Density zone. The Dual Occupancy land use is only acceptable in the R2 Low Density Residential zone if the merit of each development is assessed against the objectives of the zone through the development assessment process.
60. If the Low Rise Medium Density Housing Code applied to the Dual occupancy land use in the R2 Low Density Residential zone, the land use would no longer meet the low density character of the zone, a high level of residential amenity could not be maintained and such development would compromise the amenity of the surrounding area, as whole streets of low density houses could become rows of dual occupancies without development consent and with no neighbour consultation. This would dramatically increase the density of the area in a zone that does not have the requisite facilities or services for such medium density housing, to meet the day to day needs of residents in that zone.
61. Due to the change in characterisation of the dual occupancy land under the Low Rise Medium Density Housing Code, an amendment is required to increase the minimum lot size for dual occupancies to 650sqm for land identified as “G” in either the R2 Low Density Residential zone or the R3 Medium Density Residential zone. This brings the minimum lot size for dual occupancies under Hurstville Local Environmental Plan 2012 in line with the minimum lot size for dual occupancies under Kogarah Local Environmental Plan 2012, in order to protect the integrity of the R2 Low Density Residential zone.
62. The permissibility of medium density housing may continue on land zoned R3 Medium Density Housing and Council does not oppose the application of the Low Rise Medium Density Housing Code to the R3 Medium Density Housing zone, as such development meets the objectives of the zone and the community and Council have been consulted with in determining the appropriateness of such a zoning on that land.
Impact of the Low Rise Medium Density Housing Code on the planning proposal process
63. The commencement of the Low Rise Medium Density Housing Code and medium density housing in the R2 Low Density Residential zone will undermine the Department’s own process for preparing local environmental plans, which requires such changes to land uses and zoning to have strategic justification and be appropriately assessed through the planning proposal process. This includes the application of a “suite of Ministerial Directions which require consideration for local plan making that covers issues such as employment, environment and heritage, housing, infrastructure and urban development” (Greater Sydney Region Plan, Objective 39, p. 183).
Impact of the expansion of multi dwelling housing on the Georges River LGA
64. The impact of the expansion of medium density housing in the Georges River LGA can be illustrated by understanding the area of land zoned R2 Low Density Residential and R3 Medium Density Residential; the number of lots eligible for manor houses, multi dwelling housing (terraces) and dual occupancies in the R2 Low Density Residential and R3 Medium Density Residential zones; and the number of multi dwelling housing developments that have been approved by the former Kogarah Council, former Hurstville Council and Georges River Council.
Impact of SEPP Controls on the Built Environment of the City
65. The SEPP provisions proposing a 12m frontage for dual occupancies and the provisions of 600m2 site area and 15m frontage for manor houses will have an adverse impact on the built form characteristics of the R2 zoned areas within the City.
66. The impacts are:
a. the resulting land use would no longer meet the low density character of the R2 zone,
b. a high level of residential amenity could not be maintained as such development would compromise the amenity of the surrounding area, as whole streets of low density houses could become rows of dual occupancies without development consent and with no neighbour consultation
c. a dramatic increase the density of the area in a zone that does not have the requisite facilities or services for such medium density housing, to meet the day to day needs of residents in that zone, and
d. The reduction of rear yard areas and tree canopy.
67. For these reasons Council is seeking exemption from the SEPP. The delivering of a diversity of housing through a range of housing typology such as manor houses, small scale residential flat buildings, terrace housing and dual occupancy should be developed by Council which reflect local characteristics.
Planning Proposal
68. The Planning Proposal has been drafted in accordance with the relevant sections of the Environmental Planning and Assessment Act 1979, Environmental Planning and Assessment Regulation 2000 and the following advisory documents prepared by the Department of Planning and Environment:
a. “A guide to preparing planning proposals” (August, 2016); and
b. “A guide to preparing local environmental plans” (August, 2016).
69. The drafting has included a review of the strategic planning framework and an LGA wide assessment as listed below:
a. Kogarah Local Environmental Plan 2012;
b. Hurstville Local Environmental Plan 2012;
c. State Environmental Planning Policies;
d. Ministerial Section 117 Directions;
e. Environmental, Social and Economic Impacts; and
f. Services and Infrastructure.
70. Section 55 of the Environmental Planning & Assessment Act, 1979 outlines that a planning proposal must explain the intended effect and the justification for making the proposed instrument and must include the following components:
a. A statement of the objectives and intended outcomes of the proposed instrument (Part 1)
b. An explanation of the provisions that are to be included in the proposed instrument (Part 2)
c. The justification for those objectives, outcomes and the process for their implementation (including whether the proposed instrument will comply with relevant directions under section 117) (Part 3)
d. Maps, where relevant, to identify the intent of the planning proposal and the area to which it applies (Part 4)
e. Details of community consultation that is to be undertaken before consideration is given to the making of the proposed instrument (Part 5).
71. Attachment 3 contains a copy of the Draft Planning Proposal for the Panel’s information.
72. The objectives of the Planning Proposal are to:
a. Ensure that appropriate strategic studies are carried out to “identify the right locations for growth, including areas that are unsuitable for significant change in the short to medium term” (Greater Sydney Region Plan, Objective 10, p. 64)
b. Uphold the integrity of the objectives of the R2 Low Density Residential zone
c. Protect the low density residential character of the R2 Low Density Residential zone
d. Ensure that the community is able to have their say on the future of the Georges River LGA, including the type of housing that is permitted and where it is permitted in the LGA
e. Ensure that social, environmental and economic factors are considered prior to allowing multi dwelling housing in the Georges River LGA
Conclusion
73. Council has raised concern with the impact of the Low Rise Medium Density Code and medium density housing in its R2 Low Density Residential Zone with the Department of Planning and Environment; and has outlined those concerns in this report.
74. By letter dated 24 May 2018 the Department has advised that the Minister has indicated that he would consider deferring the commencement of the code to allow councils to rectify local planning controls to meet the strategic intent of the council area; and that this deferral was contingent on the lodgement of a planning proposal with the Department by 27 June 2018.
75. A Planning Proposal has been prepared in accordance with the Council resolution dated 28 May 2018. This report recommends that the Georges River Local Planning Panel recommends to Council that the Planning Proposal – Low Rise Medium Density Housing Code, be forwarded to the delegate of the Greater Sydney Commission for a Gateway Determination under Section 3.34 of the Environmental Planning and Assessment Act 1979.
76. Attachment 3 contains a copy of the Draft Planning Proposal for the Panel’s information.
|
Attachment ⇩1 |
Letter dated 24 May 2018 from the Department of Planning and Environment |
|
Attachment ⇩2 |
Schedule 1 - Additional Permitted Uses under the Kogarah LEP 2012 |
|
Attachment ⇩3 |
draft Planning Proposal |
|
Georges River Council - Georges River Local Planning Panel (LPP) - Thursday, 21 June 2018 LPP025-18 Planning Proposal - Low Rise Medium Density Housing Code [Appendix 1] Letter dated 24 May 2018 from the Department of Planning and Environment |
Page 1245 |



