AGENDA - LPP
|
Meeting: |
Georges River Local Planning Panel (LPP) |
|
Date: |
Thursday, 5 March 2020 |
|
Time: |
4.00pm |
|
Venue: |
Council Chambers, Civic Centre, Hurstville |
|
Panel Members: |
Sue Francis (Chairperson) Milan Marecic (Expert Panel Member) Jason Perica (Expert Panel Member) Erin Sellers (Community Reperesentative) |
|
1. On Site Inspections - 1.00pm – 3.30pm a) 16 Peake Parade Peakhurst b) 977 Forest Road Lugarno c) 655-659 Princes Highway Blakehurst d) 19-23 Empress Street Hurstville e) 546 Railway Parade Hurstville
|
|
Break - 3.30pm
|
|
2. Public Meeting – Consideration of Items 4.00pm – 6.00pm
|
|
Public Meeting Session Closed - 6.00pm (Break – Light Supper served to Panel Members)
|
|
Georges River Council – Local Planning Panel Thursday, 5 March 2020 |
Page 2 |
LPP007-20 977 Forest Road Lugarno - REV2020/0001
(Report by Senior Development Assessment Planner)
LPP008-20 655-659 Princes Highway Blakehurst - DA2017/0408
(Report by Senior Development Assessment Planner)
LPP009-20 546 Railway Parade Hurstville - DA2018/0584
(Report by Senior Development Assessment Planner)
LPP010-20 16 Peake Parade Peakhurst - REV2020/0003
(Report by Senior Development Assessment Officer)
LPP011-20 19-23 Empress Street Hurstville - DA2019/0329
(Report by Senior Development Assessment Planner)
|
4. Confirmation of Minutes |
REPORT TO GEORGES RIVER COUNCIL
LPP MEETING OF Thursday, 05 March 2020
|
LPP Report No |
LPP007-20 |
Development Application No |
REV2020/0001 |
|
Site Address & Ward Locality |
977 Forest Road Lugarno Peakhurst Ward |
||
|
Proposed Development |
Review of Determination - Fit-out and use of the ground floor of an existing church building to be used as an early childhood education facility for 34 children, associated landscaping and car parking works |
||
|
Owners |
The Congregational Christian Church of Samoa Parish of Sydney Inc. |
||
|
Applicant |
The Congregational Christian Church of Samoa Parish of Sydney Inc. |
||
|
Planner/Architect |
Planner - Lee Environmental Planning; Draftsman - JMH Living Design |
||
|
Date Of Lodgement |
8/01/2020 |
||
|
Submissions |
Eighteen (18) submissions received. |
||
|
Cost of Works |
$10,000.00 |
||
|
Local Planning Panel Criteria |
The application is referred to the Local Planning Panel for determination as DA2019/0042 was determined by way of refusal by the Panel on 7 November 2019 and more than 10 unique submissions were recveived objecting to the application. |
||
|
List of all relevant s.4.15 matters (formerly s79C(1)(a)) |
State Environmental Planning Policy No 55 – Remediation of Land, State Environmental Planning Policy (Educational Establishments and Childcare) 2017, State Environmental Planning Policy (Vegetation in Non-Rural Areas) 2017, State Environmental planning Policy – Infrastructure 2007, Greater Metropolitan Regional Environmental Plan No 2 - Georges River, State Environmental Planning Policy Infrastructure 2007, Draft Environment State Environmental Planning Policy, Draft Remediation State Environmental Planning Policy, Hurstville Local Environmental Plan 2012, Hurstville Development Control Plan 2013 |
||
|
List all documents submitted with this report for the Panel’s consideration |
Site Plan Elevations
|
||
|
Report prepared by |
Senior Development Assessment Planner |
||
|
|
Summary of matters for consideration under Section 4.15 Have all recommendations in relation to relevant s4.15 matters been summarised in the Executive Summary of the assessment report? |
Yes |
|
Legislative clauses requiring consent authority satisfaction Have relevant clauses in all applicable environmental planning instruments where the consent authority must be satisfied about a particular matter been listed and relevant recommendations summarised, in the Executive Summary of the assessment report? |
Yes |
|
Clause 4.6 Exceptions to development standards If a written request for a contravention to a development standard (clause 4.6 of the LEP) has been received, has it been attached to the assessment report? |
Not Applicable |
|
Special Infrastructure Contributions Does the DA require Special Infrastructure Contributions conditions (under s7.24)? |
Not Applicable |
|
Conditions Have draft conditions been provided to the applicant for comment? |
No, the application is recommended for refusal, the refusal reasons will be available to view when the agenda is published. |
|
Site Plan
Site plan with the allotment outlined in blue |
Executive Summary
Proposal
1. Council is in receipt of a Section 8.2 Review application relating to an application for the fitout and use of the ground floor of an existing church building for use as an early childhood education centre for 34 children, landscaping and car parking works at 977 Forest Road, Lugarno.
2. The information provided by the planning consultant states:
“Rather than amend the development application, the application for review is based upon clarification and confirmation of information. The Development Application remains for a 34 place child care centre, to occupy lower ground floor space within an existing building where the upper ground floor is lawfully occupied and used by the Congregational Christian Church Samoa Parish of Sydney.”
Site and Locality
3. The site is rectangular in shape with a splayed south western corner 1.83m in length which fronts Forest Road and a frontage of 24.69m to Ponderosa Place and a northern boundary of 120.120m and a southern boundary of 118.77m. The allotment has an area of 3140sqm.
4. The site is located on the eastern side of Forest Road and Ponderosa Place. The allotment has a fall to the rear north eastern corner of 4.81m and a fall within the existing building footprint, comprising a church building and attached rear part one (1) part two (2) storey hall, of 2.72m.
5. A single storey church/sanctuary building with attached rear part one/two storey hall with sub-floor is located on the western side of the site. This building has a 2.313m setback from the southern boundary and a variable setback from the northern boundary (3.54m to 6.71). The northern boundary setback is occupied by a driveway that provides vehicular access to the rear (eastern side) of the site and the existing dwelling house at the rear.
6. Adjoining the site to the north are five (5) residential neighbours comprising dwelling houses. There are also five (5) existing dwelling houses existing to the north of the site and five (5) existing dwellings exist to the south and two (2) adjoining dwelling houses to the east of the proposal.
Zoning and Permissibility
7. The subject site is zoned R2 Low Density Residential under the provisions of Hurstville Local Environmental Plan 2012 (HLEP 2012). The proposal involves the fitout and use of the ground floor of an existing church building for use as “centre-based child care facility” for 34 children, landscaping and car parking works.

Figure 1 - zoning map with the allotment outlined in blue
Submissions
8. The application was placed on neighbouring notification between 20 January 2020 and 17 February 2020. Eighteen (18) submissions were received objecting to the proposed development.
Referrals
9. The Review application was referred to the following council officers:
· Traffic Engineer - the proposal is not supported as it fails to comply with the relevant Australian Standards for access and parking, will have adverse impacts on pedestrian and children’s safety, and proposes works on council property for which consent has not been provided.
· Building Surveyor – BCA issues could be addressed at Construction Certificate stage.
· Environmental Health – the proposal is not supported as it fails to demonstrate how acoustic issues will be mitigated.
· Consultant Arborist – the proposal could be supported subject to the provision of a Landscape Plan and conditions of consent should the application be approved.
10. The Review application did not contain stormwater management plans and as such the Review application was not referred to the Development Engineer. Comments within this report with regard to stormwater were provided in the assessment of DA2019/0042 – refer to comments in the DCP section of this report.
Reasons for Referral to the Local Planning Panel
11. The application is referred to the Georges River Local Planning Panel (LPP) for consideration and determination as the original application (DA219/0042) was refused by the Panel at its meeting on 7 November 2019 and more than 10 unique submissions were received objecting to the application.
Conclusions
12. The application has been assessed having regard to the Matters for Consideration under Section 8.2 and Section 4.15 of the Environmental Planning and Assessment Act 1979, the provisions of the relevant State Environmental Planning Policies, and in particular against the requirements of the State Environmental Planning Policy (Educational Establishments and Child Care Facilities) 2017, the Hurstville Local Environmental Plan (LEP) 2012 and Hurstville Development Control Plan No. 1 (DCP). The proposal has not adequately addressed the reasons for refusal of the original Development Application and is therefore recommended for refusal.
Report in Full
Proposal
13. Council is in receipt of a Section 8.2 Review application for the fitout and use of the ground floor of an existing church building for use as an “centre-based child care facility” for 34 children, landscaping and car parking works at 977 Forest Road, Lugarno.
14. The following documentation was submitted with the review application:
· Application form;
· Covering letter from planning consultant;
· Document from planning consultant addressing the reasons for refusal;
· Architectural plans;
· Solar access diagrams;
· Arborist Report;
· Acoustic report; and
· Letter from Traffic Engineer Consultant.
15. The information provided by the planning consultant states:
“Rather than amend the development application, the application for review is based upon clarification and confirmation of information. The Development Application remains for a 34 place child care centre, to occupy lower ground floor space within an existing building where the upper ground floor is lawfully occupied and used by the Congregational Christian Church Samoa Parish of Sydney.”
16. The Statement of Environmental Effects, dated November 2018, provided in support of the original application (DA2019/0042), describes the proposal as:
“The proposed development is for a proposed Childcare Centre use within the ground floor of an existing two story building where the upper level floor is occupied by an existing Place of Public Worship.
It involves the internal fit-out of the building space and there will be no built form changes externally to the existing bulk, scale and height of the church building.
The proposed child care centre will operate between 7am until 6pm Monday to Friday, and will accommodate 34 children and 7 staff.
The proposed child care centre will operate on the ground floor at the rear of the existing church building with outdoor space being located to the east of the building with a north and east aspect.
Car parking will be provided at both the front of the site for drop off and pick up and for staff and other visitor vehicles to the rear of the building. Both of these areas are already utilised as parking areas for the Church use.”
17. Detail on the proposal and its’ operations is tabulated in the SEE as follows, it is acknowledged there is discrepancy in the staff numbers, the assessment has been based on 6:
The centre will provide places for thirty four (34) children as follows:
· 0-2 year olds – Twelve (12) children
· 2-3 year olds – Twelve (12) children
· 3-5 year olds – Ten (10) children
These children will be supervised by a total of six (6) staff members.
The following car parking is proposed for the site:
· Six (6) spaces for child care staff; and
· Five (5) spaces for children drop off/pickup, including one accessible space.
(these spaces are used by the Church when in operation, these spaces are not in addition to the spaces currently allocated to the Church)
18. Provision of the proposed car parking spaces within the front setback of the existing Church building will require preservation measures to be implemented to protect the three (3) canopy trees, including a Grey Gum (Eucalyptus punctata), a Blackbutt (Eucalyptus pilularis) and a Willow Gum (Eucalyptus scoparia). Provision of the formal car parking at the rear of the site will require protection measures to be implemented for one (1) significant Willow Gum (Eucalyptus scoparia) and an exempt Silky Oak (Grevillea robusta).
19. Vehicular access to the site is to be amended to provide an additional driveway on the southern side of the site providing a circular drive through arrangement at the front of the site. This proposal will enable vehicles to enter and exit the site in a forward direction.
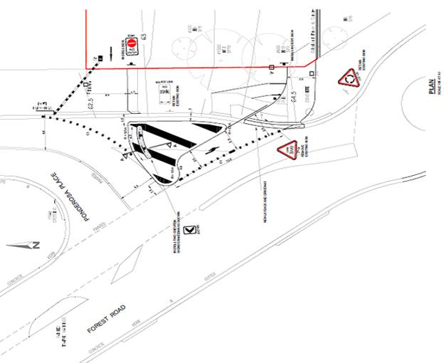
20. The application also proposes an adjustment to the existing road line-marking and traffic island arrangement. The existing arrangement is shown in Figure 2.

Figure 2: Existing corner intersection design (Source: GoogleMaps)

Figure 3: Modified road/access design (Source: Applicant DA2019/0042)
21. The Application proposes the adoption of a new southbound slip-lane exit from Ponderosa Place to Forest Road to service the development, see Figure 3 above. The proposed new road markings will require south-bound traffic on Ponderosa Place to utilise the existing right turn lane to turn left onto Forest Road.
22. The applicant has not lodged the required application for approval for these road network changes with Council (Section 138 application). Further discussion is provided in this report in the traffic referral section.
23. Stormwater disposal from the site is proposed to be by way of a charged line to Council’s drainage system in Ponderosa Place.
The Site and Locality
24. The site is rectangular in shape with a splayed south western corner 1.83m in length which fronts Forest Road and a frontage of 24.69m to Ponderosa Place and a northern boundary of 120.120m and a southern boundary of 118.77m. The allotment has an area of 3140sqm.
25. The site is located on the eastern side of Forest Road and Ponderosa Place. The allotment has a fall to the rear north eastern corner of 4.81m and a fall within the existing building footprint, comprising a church building and attached rear part one (1) part two (2) storey hall, of 2.72m.
26. A single storey church/sanctuary building with attached rear part one/two storey hall with sub-floor is located on the western side of the site. This building has a 2.313m setback from the southern boundary and a variable setback from the northern boundary (3.54m to 6.71m). The northern boundary setback is occupied by a driveway that provides vehicular access to the rear (eastern side) of the site and the existing dwelling house at the rear.
27. Adjoining the site to the north are five (5) residential neighbours comprising dwelling houses. There are also five (5) existing dwelling houses existing to the north of the site and five (5) existing dwellings exist to the south and two (2) adjoining dwelling houses to the east of the proposal.
28. Photos of the site area provided in the figures below.

Figure 4: The site as viewed from Ponderosa Place

Figure 5: The front setback to Forest Road

Figure 6: The existing driveway providing vehicular access to the rear of the property

Figure 7: Lower ground level (northern elevation) – area of proposed child care centre within the area bounded by the blue brickwork

Figure 8: Proposed area for outdoor play and rear car park to the left

Figure 9: Rear car park

Figure 10: Southern elevation of the existing ground level
Background
|
Date |
Event |
|
23 March 2007 |
Deferred commencement consent granted for an extension to the existing church building including the provision of a church hall under 06/DA-372. |
|
21 May 2007 |
Deferred commencement activated for 06/DA-372. |
|
28 September 2010 |
Pre-application advice is provided to the applicant in relation to the potential lodgement of a child care centre application. |
|
15 July 2011 |
Development application for a child care centre lodged under 11/DA-236 for the provision of additional sub-floor area under the approved church hall for use as a child care centre. |
|
July - November 2011 |
Unauthorised excavation works for the provision of the rear child care centre commence on site, increasing the excavation permitted under a previous consent for the church hall. |
|
6 December 2011 |
Section 96 modification lodged under 06/DA-372REV01 for the provision of additional excavation to increase the area of the ground/sub-floor level underneath the approved church hall. |
|
7 March 2012 |
11/DA-236 is refused for variations to the Hurstville Local Environmental Plan 2012, numerous variations to Hurstville Development Control Plan No 1, insufficient information, traffic and parking issues and safety concerns. |
|
4 April 2012 |
Development modification 06/DA-372REV01 considered at a Council meeting where the application was approved by Council. |
|
3 June 2014 |
Pre-lodgement application for a child care centre lodged under PRE2014/0010. |
|
7 August 2014 |
The Hurstville Traffic Advisory Committee considered proposed alterations under PRE2014/0010 at the intersection of Forest Road and Ponderosa Place for a proposed child care centre. The committee resolved: “THAT the proposed channelisation of the intersection of Forest Road and Ponderosa Place to improve road safe at the vehicular access points of the Congregational Christian Church in Samoa and the proposed child care centre at 977 Forest Road Lugarno be approved. THAT a Section 138 Application under the Roads Act 1993 be lodged to Council’s Traffic Section for determination. A detailed plan of the proposed channelisation of the intersection of Forest Road and Ponderosa Place, Lugarno be incorporated with the application. THAT all costs associated with the proposed works be borne by the applicant. FURTHER THAT the applicant be advised of Council’s decision.” |
|
17 September 2014 |
Formal pre-development advice provided to the applicant detailing issues with the proposed plans including tree removal, traffic, parking and disabled access. The applicant was advised to lodge plans/information that addressed these issues in detail. |
|
23 December 2015 |
Application for child care centre lodged DA2015/0443. |
|
2 February 2016 |
Council requests provision of acoustic report and landscape plan |
|
15 March 2016 |
Council receives complaint from neighbour relating to unauthorised fit out of the ground/sub-floor level |
|
16 March 2016 |
Stop work order issued in relation to the fit out works. |
|
27 May 2016 |
Acoustic Consultant, “Acoustic Dynamics” requested to prepare acoustic report on behalf of Council in relation to the proposal. |
|
27 October 2016 |
DA2015/0443 for a Child Care Centre for 34 children at ground level – Refused. |
|
18 December 2018 |
DA2018/0570 lodged seeking to operate an Early Childhood Education facility within the existing building. |
|
7 January 2019 |
DA2018/0570 rejected due to inadequacies in drainage, traffic, parking and need for Pre-lodgement meeting |
|
13 February 2019 |
DA2019/0042 application seeking consent for fit out and use of the ground floor as a childcare centre lodged. |
|
3 October 2019 |
Noise complaint relating to Church activities currently before the Court. |
|
7 November 2019 |
DA2019/0042 was refused by the Georges River Local Planning Panel. |
|
8 January 2020 |
REV2020/0001 lodged seeking a review of the determination of DA2019/0042. |
|
20 January – 17 February 2020 |
Neighbour notification period – Two (2) submissions were received. Plus an additional sixteen (16) following the formal notification period. |
29. DA2019/0042 sought consent for the fit-out and use of the ground floor of an existing church building for use as an early childhood education centre for 34 children, landscaping and car parking works on the subject site. The application was referred to the Georges River Local Planning Panel as more than 10 unique submissions were received (48 in total) on the proposed development. The Panel refused the application at its meeting on 7 November 2019. The reasons for refusal were:
1. Refusal Reason - Environmental Planning Instrument - Pursuant to Section 79C(1)(a)(i) of the Environmental Planning and Assessment Act 1979, the proposed development does not comply with the relevant environmental planning instruments in terms of the following:
a) Clause 2.3 Zone objectives – the proposal does not satisfy the following objective of the zone: To ensure that a high level of residential amenity is achieved and maintained. The noise emission from the indoor play area will not provide for appropriate adjoining neighbour amenity when the windows and doors are open.
b) Clause 5.9 and Clause 6.4 – The removal of landscaped areas along the street frontage and likely detrimental impacts on existing trees. These trees are significant in terms of their height and dimensions and species and contribute significantly to the visual and environmental amenity of the Foreshore Scenic Protection Area.
c) Clause 6.7 – inadequate vehicular access is available to the site.
2. The proposed development is unsatisfactory having regard to Section 4.15(b), 4.15(c), 4.15(d) and 4.15(e) of the Environmental Planning and Assessment Act 1979 (NSW) in that the site is not suitable for the development and will have an adverse impact for the reasons as follows:
a) The proposed siting and design of the outdoor play structure and acoustic fence results in unnecessary visual bulk and scale which results in an adverse impact to the built environment. Additionally inadequate setback and screen landscaping is proposed adjacent to the acoustic fence.
b) The design and sitting of the building addition results in an urban form which is incompatible with the immediate surrounding residential context.
c) The proposal results in adverse built environment and social impacts and is therefore not considered to be in the public interest.
3. Refusal Reason - Development Control Plan - Pursuant to Section 79C(1)(a)(iii) of the Environmental Planning and Assessment Act 1979, the proposed development does not comply with the following sections of Development Control Plan No 1 - LGA Wide
a) Section 3.1 Car Parking – insufficient car parking, vehicular access and pedestrian safety is provided on site for a child care centre use and church operating concurrently.
b) Section 3.5 Energy Efficiency – insufficient solar access and natural ventilation is available to the child care centre.
c) Section 3.11 Preservation of Trees and Vegetation – the proposal does not satisfactorily provide for the preservation of significant trees on site.
d) Section 5.3 Child Care Centres – the proposal does not comply with various specific requirements for child care centres.
4. Refusal Reason - Regulation - Pursuant to Section 79C(1)(a)(iv) of the Environmental Planning and Assessment Act 1979, the proposed development does not comply with the relevant State Environmental Planning Policy (Educational Establishments and Child Care facilities) 2017, Educations and Care Services National Regulations and the Child Care Planning Guidelines NSW 2017 as they relate to provisions dealing with: in terms of the following:
a) Streetscape impacts;
b) Provision of natural light and ventilation;
c) identifying a suitable site based upon compatibility with the existing streetscape character;
d) disclosure of the educational programming and practice to be provided at the Facility;
e) ensuring and illustrating that the development retains a landscaped character complimentary to the streetscape;
f) ensuring and illustrating that outdoor open space areas have adequate solar access to 30% of the area year round;
g) ensuring and illustrating that the internal floor space is appropriately designed to be naturally ventilated and natural lighting; and
h) illustrating that the facility has a visible presence from the public road and safe/secure accessibility.
5. Refusal Reason - Impacts on the Environment - Pursuant to Section 79C(1)(b) of the Environmental Planning and Assessment Act 1979, the proposed development is likely to have an adverse impact on the following aspects of the environment:
a) Natural Environment – The proposal requires the removal of front landscaping area and potentially results in the loss of significant trees.
b) Social Impact – The proposal will result in an intensification of the existing noise, parking and traffic impacts on surrounding neighbours.
6. Refusal Reason - Suitability of Site - Pursuant to Section 79C(1)(c) of the Environmental Planning and Assessment Act 1979, the site is not considered suitable for the proposed development for the following reasons:
a) The site has two (2) significant trees on the front boundary that require retention. Adequate vehicular access and car parking cannot be provided to the site on this basis.
b) Inappropriate solar access and cross ventilation for a child care centre use is available to the existing building.
7. Refusal Reason - Lack of Information
(a) The submitted plans and documentation are inaccurate and inconsistent and are therefore insufficient to assess the proposal.
(b) Insufficient information has been submitted to demonstrate compliance with relevant government guidelines and to determine whether the use is a permissible activity within the R2 Low Density Residential zone.
30. REV2020/0001 (the current application) was lodged on 8 January 2020. The application seeks consent for the fit-out and use of the ground floor of an existing church building for use as “centre-based child care facility” for 34 children, landscaping and car parking works on the subject site.
Division 8.2 Reviews
31. Division 8.2 of the Environmental Planning and Assessment Act requires the following provisions (section 8.3) to be considered in the assessment of an application to review a determination:
(1) An applicant for development consent may request a consent authority to review a determination or decision made by the consent authority. The consent authority is to review the determination or decision if duly requested to do so under this Division.
(2) A determination or decision cannot be reviewed under this Division:
(a) after the period within which any appeal may be made to the Court has expired if no appeal was made, or
(b) after the Court has disposed of an appeal against the determination or decision.
(3) In requesting a review, the applicant may amend the proposed development the subject of the original application for development consent or for modification of development consent. The consent authority may review the matter having regard to the amended development, but only if it is satisfied that it is substantially the same development.
32. The statutory considerations pursuant to Division 8.2 Reviews have been met. The application has been lodged within an appropriate timeframe and is considered to be substantially the same as the original application (DA2019/0042).
Discussion on reasons for refusal and the Review application
33. An assessment of how the review application has addressed the reasons for refusal is provided in the following table.
|
Reason for refusal |
Review - applicant’s comments |
Council Officer Comment |
|
1. Refusal Reason - Environmental Planning Instrument - Pursuant to Section 79C(1)(a)(i) of the Environmental Planning and Assessment Act 1979, the proposed development does not comply with the relevant environmental planning instruments in terms of the following: |
||
|
a) Clause 2.3 Zone objectives – the proposal does not satisfy the following objective of the zone: To ensure that a high level of residential amenity is achieved and maintained. The noise emission from the indoor play area will not provide for appropriate adjoining neighbour amenity when the windows and doors are open.
|
This claim is not supported by the acoustic assessment report that confirms that the proposed child care centre will perform to an acceptable level and will not give rise to unacceptable acoustic impacts upon any adjoining residential property. No evidence to the contrary has been made available to support this reason for refusal. |
The amended acoustic report states compliance will be achieved only if all windows are closed and mechanical ventilation is provided or the windows are left open with additional acoustic treatment to the building.
The plans submitted with this application do not address either option.
Council’s Environmental Health Officer has reviewed the amended acoustic report and does not support the assessment or recommendations contained within the report as it does not consider the existing use of the site for a church and associated events. |
|
a) Clause 5.9 and Clause 6.4 – The removal of landscaped areas along the street frontage and likely detrimental impacts on existing trees. These trees are significant in terms of their height and dimensions and species and contribute significantly to the visual and environmental amenity of the Foreshore Scenic Protection Area.
|
Clause 5.9 of the Hurstville Local Environmental Plan 2012 has been repealed for some time, so self-evidently it cannot be a reason for refusal of a Development Application lodged and assessed under the provisions of HLEP2012.
Clause 6.4 makes reference to the Foreshore Scenic Protection Area map. It is acknowledged that the site falls within the broad scenic protection area, however the site is not a foreshore location by any definition. The trees in question are not proposed to be removed in any event so the claim of significant impact is disputed. |
Clause 5.9 of the HLEP2012 has been repealed.
The existing trees on the site (three in the front and two in the rear) are to be retained as indicated in the plans submitted with the Review application, however a Landscape Plan has not been submitted and there are inconsistencies in the arborist report (discussed in further detail later in this report). |
|
a) Clause 6.7 – inadequate vehicular access is available to the site.
|
The proposed vehicular access to the site has previously been considered and agreed by Council as being acceptable. This issue is discussed in detail in the submission prepared by Traffic Impact Services. |
Council’s Traffic Engineer has reviewed the documentation submitted with the Review application and does not support the proposal. Details are provided later in this report. |
|
1. The proposed development is unsatisfactory having regard to Section 4.15(b), 4.15(c), 4.15(d) and 4.15(e) of the Environmental Planning and Assessment Act 1979 (NSW) in that the site is not suitable for the development and will have an adverse impact for the reasons as follows: |
||
|
a) The proposed siting and design of the outdoor play structure and acoustic fence results in unnecessary visual bulk and scale which results in an adverse impact to the built environment.
Additionally inadequate setback and screen landscaping is proposed adjacent to the acoustic fence.
|
This is demonstrably not the case. The perspective and architectural drawings prepared by JMH Living Design should assist in understanding the location and heights of the recommended acoustic screens for the outdoor play area, relative to the adjoining properties. |
The application fails to demonstrate the proposal (including the proposed acoustic screening) will not have an adverse acoustic impact on neighbouring residential properties despite the proposed acoustic treatment to the existing building and as such the screens are not worthy of support if it cannot be concluded thy will adequately acoustically screen the outdoor play area.
A Landscape Plan has not been submitted with the Review application to enable a proper assessment of the proposal as a whole. |
|
b) The design and sitting of the building addition results in an urban form which is incompatible with the immediate surrounding residential context.
|
The child care centre occupies existing lower ground floor space within the building. There is no building extension, nor change to bulk, scale or character of the building.
|
The proposed child care centre is located within the existing building, however the required acoustic privacy screens around the outdoor play area and lack of landscaping detail provided in the Review application does not enable a proper assessment to be made of the proposal as a whole. |
|
c) The proposal results in adverse built environment and social impacts and is therefore not considered to be in the public interest.
|
As noted above, there are no adverse built form impacts. In relation to social environment, rather than having adverse impacts, the contrary is more likely. Child care centres are necessary within our urban environments, including residential environments. They are generally considered positive contributors to the life of a community. A combination of uses upon one site, including church and education uses, is not by any means an unusual or harmful combination from a social perspective - quite the opposite in fact, which is probably why there are so many examples of this type of mixed use across all forms of residential environments. What is critical is proper management and coordination of uses to avoid the potential impacts that could arise if all uses attempted to operate simultaneously. Church activities do not occur during child care centres hours and child care centre activities do not occur during church times. |
The application fails to demonstrate the proposal will not have an adverse impact on the amenity of neighbouring residential properties, and as such it is considered that the proposal is not in the public interest. |
|
3. Refusal Reason - Development Control Plan - Pursuant to Section 79C(1)(a)(iii) of the Environmental Planning and Assessment Act 1979, the proposed development does not comply with the following sections of Development Control Plan No 1 - LGA Wide |
||
|
a) Section 3.1 Car Parking – insufficient car parking, vehicular access and pedestrian safety is provided on site for a child care centre use and church operating concurrently.
|
The proposed development provides for 11 on site spaces, compared with the minimum requirement of 7. Put another way, the development provides 160% of the DCP requirement. It does so by utilising both existing parking areas in the most efficient fashion. It allows for short stay drop off parking at the front of the site and long stay staff parking (one movement in/one movement out) to the rear. It provides safe pedestrian movements through a well defined path of travel directly into the front reception area of the centre. The revised drawings from JHM Living Design specifically highlights this. |
Council’s Traffic Engineer has reviewed the documentation submitted with the Review application and does not support the proposal. Details are provided later in this report (in the DCP and Council’s Referrals sections). This has not taken into consideration the co-located uses. |
|
b) Section 3.5 Energy Efficiency – insufficient solar access and natural ventilation is available to the child care centre. |
The proposed development complies with the legislated requirements. Refer to drawings. |
Insufficient information has been provided to enable a proper assessment of solar access and ventilation in accordance with the Guidelines and the BCA. |
|
c) Section 3.11 Preservation of Trees and Vegetation – the proposal does not satisfactorily provide for the preservation of significant trees on site. |
Refer to Arborist report.
|
The existing trees on the site are proposed to be retained; however there are inconsistencies in the arborist report (discussed in further throughout this report – DCP section and Council’s Referrals section). |
|
d) Section 5.3 Child Care Centres – the proposal does not comply with various specific requirements for child care centres. |
The proposed development complies with the legislated requirements. Refer to drawings. |
No assessment of compliance has been provided with the Review application of the proposal against the DCP or Guidelines.
The assessment contained in this report indicates the proposal fails to meet a number of controls contained in the SEPP Guidelines and the DCP. |
|
4. Refusal Reason - Regulation - Pursuant to Section 79C(1)(a)(iv) of the Environmental Planning and Assessment Act 1979, the proposed development does not comply with the relevant State Environmental Planning Policy (Educational Establishments and Child Care facilities) 2017, Educations and Care Services National Regulations and the Child Care Planning Guidelines NSW 2017 as they relate to provisions dealing with: in terms of the following: |
||
|
a) Streetscape impacts;
|
The dominant streetscape element is the existing building that is not undergoing any external alterations and therefore remains unchanged when viewed from the street. In relation to the existing trees that are a feature of the front of the site, refer to the Arborist report. |
No landscaping detail has been provided in the Review application, and therefore a proper assessment of the impacts of the proposed carpark on the streetscape cannot be made.
|
|
b) Provision of natural light and ventilation;
|
The work associated with the existing building to create the child care centre will be compliant with the relevant Australian Standard in terms of natural light and ventilation |
Inadequate information has been provided to conclude compliance can be achieved (no BCA report provided with the application, and the existing internal layout does not appear to be compliant). |
|
c) identifying a suitable site based upon compatibility with the existing streetscape character; |
See comments above. The potential impact upon streetscape is related directly to existing trees. |
No landscaping detail has been provided in the Review application, and therefore a proper assessment of the impacts of the proposed carpark on the streetscape cannot be made. |
|
d) disclosure of the educational programming and practice to be provided at the Facility;
|
Council does not have any jurisdiction on specific programming and practice of any child care centre through the Development Application process. Similar with all other registered child care centres, adherence to the Education and Care Services National Regulations will be required. |
No information has been provided with the application detailing whether the centre complies with the Regulations in this regard. Inadequate information has been provided for council to assess whether the childcare centre is an additional use on the site or an ancillary service to the church i.e. religious instruction rather than early education facility. |
|
e) ensuring and illustrating that the development retains a landscaped character complimentary to the streetscape;
|
The proposed development seeks to occupy an existing building. The outdoor play area will occupy an existing concrete pad to the rear of the building. There is no diminution of landscape area from the site. |
No landscaping detail has been provided in the Review application which does not enable a proper assessment to be made of the proposal as a whole. |
|
f) ensuring and illustrating that outdoor open space areas have adequate solar access to 30% of the area year round;
|
Refer to submitted architectural plans prepared by JMH Living Design |
The solar access plans submitted with this application do not adequately demonstrate that 30% of the outdoor play area receives solar access year round. |
|
g) ensuring and illustrating that the internal floor space is appropriately designed to be naturally ventilated and natural lighting; and |
Refer to submitted architectural plans prepared by JMH Living Design |
Insufficient information has been provided to enable a proper assessment of solar access and ventilation. |
|
h) illustrating that the facility has a visible presence from the public road and safe/secure accessibility.
|
Refer to submitted architectural plans prepared by JMH Living Design. There is a safe and dedicated pedestrian access way into the building. |
The entry to the child care centre is located at the front of the existing building and is identifiable from the street.
|
|
5. Refusal Reason - Impacts on the Environment - Pursuant to Section 79C(1)(b) of the Environmental Planning and Assessment Act 1979, the proposed development is likely to have an adverse impact on the following aspects of the environment: |
||
|
(a) Natural Environment – The proposal requires the removal of front landscaping area and potentially results in the loss of significant trees.
|
This is not a true reflection of either the existing circumstance or of the future outcomes. The front area of the site is not a landscaped area - it is a car park area already heavily utilised by the Church at those times when Church activities are being held. It does accommodate Trees 1, 2 and 3 as per the Arborist report, but the trees are not being removed. |
The front setback is not currently approved for car parking.
No landscaping detail has been provided in the Review application which does not enable a proper assessment to be made of the proposal as a whole. In addition, the updated arborist report submitted with the application contains conflicting data and outdated plans and site information. Further discussion is provided in the council referrals section of this report. |
|
(b) Social Impact – The proposal will result in an intensification of the existing noise, parking and traffic impacts on surrounding neighbours.
|
Refer to the submitted Acoustic report. The child care centre use will not give rise to any noise impacts. This should be acknowledged on the basis of the factual report prepared by Acoustic Works and submitted in support of this application. The measurable acoustic performance that is achievable by this proposed development must be then separated from any previous or ongoing concerns that Council may have in relation to the acoustic performance of the operation of the Church, which occurs under a different consent, within a different component of the building and at different times to what is proposed for the child care centre. In relation to traffic and parking, refer to the submitted Traffic and Parking response from Traffic Impact Services. More than the required number of onsite car parking spaces to service the child care centre are provided. The Church activities do not overlap and therefore an appropriate number of on site spaces are available for the proposed use. |
Council’s Environmental Health Officer has reviewed the amended acoustic report and does not support the assessment or recommendations contained within the report as it does not consider the existing use of the site for a church and associated events. An analysis of the child care centre cannot be separated from the existing uses on the site for which legal action is pending in relation to noise impacts.
Council’s Traffic Engineer has reviewed the documentation submitted with the Review application and does not support the proposal. Details are provided later in this report. Further discussion is provided in the council referrals section of this report. |
|
6. Refusal Reason - Suitability of Site - Pursuant to Section 79C(1)(c) of the Environmental Planning and Assessment Act 1979, the site is not considered suitable for the proposed development for the following reasons: |
||
|
(a) The site has two (2) significant trees on the front boundary that require retention. Adequate vehicular access and car parking cannot be provided to the site on this basis.
|
Refer to Arborist report. The area in question at the front of the site is already utilised as a car parking area being fully occupied at all times when the Church activities are happening on weekends. This area has been a car parking area for all of the time that church activities have been undertaken on the site. The trees in question remain in good health notwithstanding this. This is an issue resolvable through the implementation of appropriate conditions of consent. |
The front setback is not approved for car parking.
The arborist report contains outdated information and fails to assess the health of the trees in their current state.
No landscaping detail has been provided in the Review application which does not enable a proper assessment to be made of the proposal as a whole.
|
|
(b) Inappropriate solar access and cross ventilation for a child care centre use is available to the existing building.
|
Refer to Architectural Drawings prepared by JMH Living Design. The proposal will be compliant with AS1428.1-2009. This is also a matter that can be the subject of an appropriate condition of development consent, with compliance confirmed in Construction Certificate documentation. |
Insufficient information has been provided to enable a proper assessment of solar access and ventilation. |
|
7. Refusal Reason - Lack of Information |
||
|
(a) The submitted plans and documentation are inaccurate and inconsistent and are therefore insufficient to assess the proposal. (b) Insufficient information has been submitted to demonstrate compliance with relevant government guidelines and to determine whether the use is a permissible activity within the R2 Low Density Residential zone.
|
The information submitted with the review application is accurate and consistent. Throughout the assessment process of DA2019 /0042, the question of permissibility was never raised with the applicant and the justification for why this has been included as a reason for refusal remains unclear. The land use zone of the site is R2 Low Density Residential. A centre-based child care facility is defined as under both the State Environmental Planning Policy (Educational Establishments and Child Care Facilities) 2017 and Hurstville Local Environmental Plan 2012, as being: A building or place used for the education and care of children that provides anyone or more of the following: 1. Long day care, 2. Occasional child care, 3. Out-of-school-hours care (including vacation care), 4. Preschool care. Under the State policy, the R2 Low Density Residential zone is a prescribed zone and therefore the proposal is permissible development. Childcare Centres are also permissible within the R2 Low Density Residential Zone of HLEP2012. There has never been any doubt that the proposed development constitutes a centre based child care facility. This reason for refusal should be set aside. |
The plans and documentation, or lack thereof, remain inconsistent which does not enable a proper assessment of the proposal as a whole. |
State Environmental Planning Policies
34. Compliance with the relevant state environmental planning policies is summarised in the following table, and discussed in more detail below.
|
State Environmental Planning Policy |
Complies |
|
State Environmental Planning Policy (Educational Establishments and Child Care Facilities) 2017 |
No |
|
Greater Metropolitan Regional Environmental Plan No 2 – Georges River Catchment |
Yes |
|
State Environmental Planning Policy No 55 - Remediation of Land |
Yes |
|
State Environmental Planning Policy (Vegetation in Non-Rural Areas) 2017 |
Yes
|
|
State Environmental Planning Policy (Infrastructure) 2007 |
Yes |
State Environmental Planning Policy (Educational Establishments and Child Care Facilities) 2017
35. State Environmental Planning Policy (Educational Establishments and Child Care Facilities) 2017 (Education and Child Care SEPP) commenced on 1 September 2017 and aims to facilitate the effective delivery of educational establishments and early education and care facilities across the State.
36. Clause 22 of the Education and Child Care SEPP indicates that the consent authority cannot grant consent to a development for the purpose of a centre-based child care facility except with the concurrence of the Regulatory Authority. However, concurrence of the Regulatory Authority is only required if the floor area of the building and the proposed outdoor spaces do not satisfy Parts 107 and 108 of the Education and Care Services National Regulations.
37. Part 107(2) of the Regulations states that, for each child being educated and cared for by the service, the education and care service premises is to have at least 3.25sqm per child of unencumbered indoor space equating to 111sqm for the proposed thirty four (34) children.
38. The proposed unencumbered indoor space is 317sqm equating to 9.32sqm per child, which exceeds the minimum requirement.
39. Part 108(2) of the Regulations states that, for each child being educated and cared for by the service, the education and care service premises has at least 7.0sqm of unencumbered outdoor space equating to 238sqm for the proposed thirty four (34) children.
40. The outdoor space proposed is to be 247sqm equating to 7.26sqm per child, which exceeds the minimum requirement.
41. Clauses 25 and 26 of the SEPP are addressed in the table below.
|
Clause |
Control |
Proposal |
Complies |
|
25 Centre-based child care facility—non discretionary development standards |
(1) The object of this clause is to identify development standards for particular matters relating to a centre-based child care facility that, if complied with, prevent the consent authority from requiring more onerous standards for those matters. |
Proposal has considered the applicable standards within this assessment. |
Yes |
|
|
(2) The following are non-discretionary development standards for the purposes of section 4.15 (2) and (3) of the Act in relation to the carrying out of development for the purposes of a centre-based child care facility: (a) location—the development may be located at any distance from an existing or proposed early education and care facility,
(b) indoor or outdoor space
(i) for development to which regulation 107 (indoor unencumbered space requirements = 3.25sqm per child) or 108 (outdoor unencumbered space requirements = 7sqm per child) of the Education and Care Services National Regulations applies—the unencumbered area of indoor space and the unencumbered area of outdoor space for the development complies with the requirements of those regulations, or
(ii) for development to which clause 28 (unencumbered indoor space and useable outdoor play space) of the Children (Education and Care Services) Supplementary Provisions Regulation 2012 applies—the development complies with the indoor space requirements or the useable outdoor play space requirements in that clause,
(c) site area and site dimensions—the development may be located on a site of any size and have any length of street frontage or any allotment depth,
(d) colour of building materials or shade structures—the development may be of any colour or colour scheme unless it is a State or local heritage item or in a heritage conservation area. |
Noted
Noted
Indoor unencumbered area = 9.32sqm per child.
Outdoor unencumbered area = 7.26sqm per child.
Noted
Noted
Noted. The site is not identified as a State or Local heritage item and is not located in a heritage conservation area. |
Yes
Yes
Yes
Yes
Yes
Yes
Yes
|
|
26 Centre-based child care facility—development control plans |
(1) A provision of a development control plan that specifies a requirement, standard or control in relation to any of the following matters (including by reference to ages, age ratios, groupings, numbers or the like, of children) does not apply to development for the purpose of a centre-based child care facility: (a) operational or management plans or arrangements (including hours of operation),
(b) demonstrated need or demand for child care services,
(c) proximity of facility to other early education and care facilities, (d) any matter relating to development for the purpose of a centre-based child care facility contained in: (i) the design principles set out in Part 2 of the Child Care Planning Guideline, or (ii) the matters for consideration set out in Part 3 or the regulatory requirements set out in Part 4 of that Guideline (other than those concerning building height, side and rear setbacks or car parking rates). |
The proposal seeks development consent for centre-based child care facility (CCC) for thirty four (34) children. This clause overrides any applicable control within the Hurstville instruments.
Plans of Management (POM) are not enforceable for the CCC, however, in this instance the site accommodates multiple uses and the necessity for a POM is evident. The applicant states in their application that the Church is working on a POM; however it has not been submitted with this application.
Demand is accepted.
No other CCC is noted as a deterrent for the subject CCC
See table below.
See table below.
|
Yes
Noted
Yes
Yes
See below
See below
|
|
|
(2) This clause applies regardless of when the development control plan was made. |
This clause has been considered as part of this assessment. |
Noted |
42. Clause 23 of the SEPP requires the consent authority to consider the applicable provisions of the Child Care Planning Guideline. An assessment of the proposal against the Guidelines is provided in the table below.
|
Child Care Planning Guideline Compliance Table |
|||
|
Controls |
Requirement |
Proposed |
Complies |
|
1.3 What are the planning Objectives |
The planning objectives of this Guideline are to: · promote high quality planning and design of child care facilities in accordance with the physical requirements of the National Regulations
· ensure that child care facilities are compatible with the existing streetscape, context and neighbouring land uses
· minimise any adverse impacts of development on adjoining properties and the neighbourhood, including the natural and built environment.
· deliver greater certainty to applicants, operators and the community by embedding the physical requirements for service approval into the planning requirements for child care facilities. |
The proposal does not achieve this Objective as the CCC design simply aims to accommodate the facility in an existing lower ground floor of a building with evident ventilation, solar and amenity concerns.
Acceptable as CCC will be located at rear of the site, the car parking at front will impact the streetscape appearance and noise concerns to neighbouring properties.
Noise issues, traffic and car parking concerns are raised for neighbouring amenity and have not been adequately addressed.
Noted. |
No
Acceptable
No – Further discussion is provided in the council referrals section of this report.
Noted.
|
|
3.1 Site selection and location |
C1- For proposed developments in or adjacent to a residential zone consider: |
||
|
§ the acoustic and privacy impacts of the proposed development on the residential properties
|
An acoustic report accompanies the proposal which recommends the windows and doors are closed and internal play area air-conditioned when active. An acoustic fence is proposed along the outdoor play area due to potential impacts on neighbouring allotments. |
No |
|
|
Comments on acoustic privacy Council’s Environmental Health Officer has reviewed the amended acoustic report and does not support the assessment or recommendations contained within the report as it does not consider the existing use of the site for a church and associated events.
Further discussion is provided in the council referrals section of this report. |
|||
|
§ the setbacks and siting of buildings within the residential context
|
The proposal will be accommodated within the existing building footprint on the land. |
Yes |
|
|
§ traffic and parking impacts of the proposal on residential amenity
|
The proposal seeks to provide eleven (11) car spaces on site which meets Council’s Development Control Plan requirements for the CCC. However, should the activity operate whilst church activities are operating then there would be a shortfall of nine (9) spaces. |
No |
|
|
|
Comments on parking Council’s Traffic Engineer has reviewed the documentation submitted with the Review application and does not support the proposal. In summary the proposal fails to comply with access and parking standards, and proposes works on council land for which approval has not been sought.
Further discussion is provided in the council referrals section of this report. |
||
|
|
C2 - When selecting a site, ensure that: |
||
|
|
§ the location and surrounding uses are compatible with the proposed development or use
|
The location of the proposed child care centre is generally compatible with residential development where noise and traffic control measures are implemented. |
No - Insufficient information has been provided to make a proper assessment. |
|
|
§ the site is environmentally safe including risks such as flooding, land slip, bushfires, coastal hazards |
The site is not impacted by any affectations such as flooding, landslip, bushfire or coastal hazards. |
Yes |
|
|
§ there are no potential environmental contaminants on the land, in the building or the general proximity, and whether hazardous materials remediation is needed |
A site contamination report has not been submitted to confirm the site is suitable for the use. |
No |
|
|
§ the characteristics of the site are suitable for the scale and type of development proposed having regard to: - size of street frontage, lot configuration, dimensions and overall size
- number of shared boundaries with residential properties.
- the development will not have adverse environmental impacts on the surrounding area, particularly in sensitive environmental or cultural areas. |
The proposal is located on the corner of Forest Road (Main Road) and Ponderosa Place (Local Road) adjacent to a roundabout intersection in a predominantly residential environment.
The property adjoins eleven (11) residential properties.
Issues related to noise, traffic and car parking have been identified as directly impacting neighbouring amenity. |
Yes
No
No |
|
|
§ there are suitable drop off and pick up areas, and off and on street parking
|
The proposal provides car parking on site, with 5 spaces at the front of the site and 6 behind the building. The Traffic Report relies on the CCC and Church activities to operate at different times to ensure there is adequate onsite car parking. |
No |
|
|
Comments on parking and access Council’s Traffic Engineer has reviewed the documentation submitted with the Review application and does not support the proposal. In summary the proposal fails to comply with access and parking standards, and proposes works on council land for which approval has not been sought.
Further discussion is provided in the council referrals section of this report. |
||
|
|
§ the type of adjoining road (for example classified, arterial, local road, cul-de-sac) is appropriate and safe for the proposed use |
Ponderosa Place is a local road. This road is not identified as a collector road within the Hurstville DCP 2013. Forest Road is a Main Collector and the access is to be modified. |
Yes |
|
|
§ it is not located closely to incompatible social activities and uses such as restricted premises, injecting rooms, drug clinics and the like, premises licensed for alcohol or gambling such as hotels, clubs, cellar door premises and sex services premises. |
The subject site is located in a residential setting and is not impacted by any of the criterion listed within this clause. |
Yes |
|
|
C3 - A child care facility should be located: |
||
|
|
§ near compatible social uses such as schools and other educational establishments, parks and other public open space, community facilities, places of public worship |
The subject site is surrounded by residential uses within the immediate vicinity and the site accommodates a place of public worship and is within 500m of a shopping precinct (Chivers Hill), parks and school. |
Yes |
|
|
§ near or within employment areas, town centres, business centres, shops |
The subject site is located relatively close to Lugarno commercial precinct known as Chivers Hill and Lime Kiln Road. |
Yes |
|
|
§ with access to public transport including rail, buses, ferries |
Bus stops are located along Forest and Old Forest Roads. |
Yes |
|
|
§ in areas with pedestrian connectivity to the local community, businesses, shops, services and the like. |
The subject site has pedestrian connectivity to the Lugarno commercial precinct known as Chivers Hill. |
Yes |
|
|
C4- A child care facility should be located to avoid risks to children, staff or visitors and adverse environmental conditions arising from proximity to: |
||
|
|
§ heavy or hazardous industry, waste transfer depots or landfill sites § LPG tanks or service stations § water cooling and water warming systems § odour (and other air pollutant) generating uses and sources or sites § which, due to prevailing land use zoning, may in future accommodate noise or odour generating uses § extractive industries, intensive agriculture, agricultural spraying activities |
The site is not located within proximity to any of the risks identified within this clause. |
Yes |
|
|
§ any other identified environmental hazard or risk relevant to the site and/ or existing buildings within the site. |
No other hazards identified. |
Yes |
|
3.2 Local character, streetscape and the public domain interface |
C5 - The proposed development should:
|
||
|
|
§ contribute to the local area by being designed in character with the locality and existing streetscape |
The proposal utilises the existing church built form and will not be visible from the street. |
No - The car parking will however result in the loss of landscaped area at the street front and will detract from the streetscape. |
|
|
§ reflect the predominant form of surrounding land uses, particularly in low density residential areas |
The proposal utilises the existing church built form and will not be visible from the street. This is considered to be not incompatible with the built forms within the immediate vicinity. |
Yes |
|
|
§ recognise predominant streetscape qualities, such as building form, scale, materials and colours |
The existing building form is not inconsistent with the character of the existing streetscape as it cannot be seen from the streetscape. |
Yes |
|
|
§ include design and architectural treatments that respond to and integrate with the existing streetscape |
The proposal relies on the existing building form with the exception of the works required to address the acoustic treatment. |
No - The street front appearance will be adversely impacted due to increased hardstand surfaces for car parking which detracts from the streetscape and may lead to the loss of existing mature trees located in the setback. |
|
|
§ use landscaping to positively contribute to the streetscape and neighbouring amenity
|
The proposal will result in an overall reduction in site landscaping due to the creation of car parking in the front setback. |
No - The car parking in the front setback will replace landscaping and inadequate information has been provided on how additional landscaping will mitigate the adverse impacts of the increased hard surface area. |
|
|
§ integrate car parking into the building and site landscaping design in residential areas. |
Car parking is proposed to be formalised at the rear of the Church Hall and also for parental use at the street front. |
No - The car parking in the front setback will replace landscaping and inadequate information has been provided on how additional landscaping will mitigate the adverse impacts of the increased hard surface area. |
|
|
C6 - Create a threshold with a clear transition between public and private realms, including: |
||
|
|
§ fencing to ensure safety for children entering and leaving the facility |
Appropriate fencing is proposed, and would be conditionally required if approved, to ensure safe child access from the street and car parks into the CCC. |
Yes |
|
|
§ windows facing from the facility towards the public domain to provide passive surveillance to the street as a safety measure and connection between the facility and the community |
CCC is to be located in the existing level which is below the Church Hall and will not have a visual presence from the street to provide for passive surveillance. |
No - There is no surveillance available from inside the centre to the public domain. |
|
|
§ integrating existing and proposed landscaping with fencing. |
Landscaping is being replaced with car parking and a Landscape Plan was not submitted with the Review. |
No - A landscape plan was not submitted with the Review application. |
|
|
C7- On sites with multiple buildings and/or entries, pedestrian entries and spaces associated with the child care facility should be differentiated to improve legibility for visitors and children by changes in materials, plant species and colours. |
The application seeks to provide another pathway from the proposed front carpark adjacent to the ramp leading up into the Church at the front of the site. This new access pathway will be adjacent to the driveway access. A new office space is to be created internally for the parents/carers to sign the children in. However the entry into the internal and external play areas associated with the child care centre requires a parent/carer to leave the Church building and then enter the childcare centre at the rear of the site. There are significant changes in levels internally which has not been appropriately detailed. Or a person needs to walk down the driveway to access ramp providing access to the child care centre. The accessibility to the centre is poorly resolved. |
No - The entry to the centre is not easily identifiable, it is convoluted and dangerous. |
|
|
C9- Front fences and walls within the front setback should be constructed of visually permeable materials and treatments. Where the site is listed as a heritage item, adjacent to a heritage item or within a conservation area front fencing should be designed in accordance with local heritage provisions. |
No front fence is proposed. The site is not listed as a heritage item or within a conservation area. |
Yes |
|
|
C10- High solid acoustic fencing may be used when shielding the facility from noise on classified roads. The walls should be setback from the property boundary with screen landscaping of a similar height between the wall and the boundary. |
Forest Road is not a classified road in this location although it is a local collector road.
|
N/A
|
|
3.3 Building orientation, envelope and design |
C11- Orient a development on a site and design the building layout to: |
||
|
|
§ ensure visual privacy and minimise potential noise and overlooking impacts on neighbours by: - facing doors and windows away from private open space, living rooms and bedrooms in adjoining residential properties - placing play equipment away from common boundaries with residential properties - locating outdoor play areas away from residential dwellings and other sensitive uses |
The proposal has no choice in location of outdoor play area, as it is confined to the area adjacent to rear of the hall and bounded by a car park. Noise issues are proposed to be addressed by the use of hooded screens over the play area. High screening walls, partly roofed, are proposed to address noise from the outdoor play area. This wall will have visual impacts as well as funnelled noise concerns. |
No |
|
|
Comments on acoustic privacy Council’s Environmental Health Officer has reviewed the amended acoustic report and does not support the assessment or recommendations contained within the report as it does not consider the existing use of the site for a church and associated events.
Further discussion is provided in the council referrals section of this report. |
||
|
|
§ optimise solar access to internal and external play areas
|
The CCC is located within the lower level of the building beneath the church hall but has a northerly aspect for the windows/doors along this façade. The outdoor play area is proposed to be heavily screened and partly roofed, whilst being located on the eastern end of the hall building. Solar access will be hindered by the construction of the acoustic treatment. The Applicant has not submitted any solar access analysis. |
Insufficient information has been provided to enable a proper assessment of solar access and ventilation. |
|
|
§ avoid overshadowing of adjoining residential properties |
Proposal will not result in structures which adversely overshadow neighbouring lands. |
Yes |
|
|
§ minimise cut and fill |
The proposal seeks no cut and fill, this has already been completed. |
Yes |
|
|
§ ensure buildings along the street frontage define the street by facing it |
The proposal involves no external building works on the front façade of the Church. |
Yes |
|
|
§ ensure that where a child care facility is located above ground level, outdoor play areas are protected from wind and other climatic conditions. |
The proposal is located at ground level with appropriate shelter protection from the elements. |
Yes |
|
|
C12- The following matters may be considered to minimise the impacts of the proposal on local character: |
||
|
|
§ building height should be consistent with other buildings in the locality |
The proposal involves no external building additions that can be seen from the street, however acoustic screens are proposed over the outdoor play area which have not been demonstrated to mitigate acoustic impacts and will have an adverse visual impact from adjoining properties to the side of the subject site. |
No |
|
|
§ building height should respond to the scale and character of the street |
The overall building height is unaltered. The works where the CCC is proposed is existing. |
Yes |
|
|
§ setbacks should allow for adequate privacy for neighbours and children at the proposed child care facility |
The building position remains unaltered. |
Yes |
|
|
§ setbacks should provide adequate access for building maintenance |
The building position is unaltered. |
Yes |
|
|
§ setbacks to the street should be consistent with the existing character. |
The building position is unaltered. |
Yes |
|
|
C13- Where there are no prevailing setback controls minimum setback to a classified road should be 10m. On other road frontages where there are existing buildings within 50m, the setback should be the average of the two closest buildings. Where there are no buildings within 50m, the same setback is required for the predominant adjoining land use. |
The building position is unaltered. |
Yes |
|
|
C14- On land in a residential zone, side and rear boundary setbacks should observe the prevailing setbacks required for a dwelling house. |
The building position is unaltered. |
Yes |
|
|
C15- The built form of the development should contribute to the character of the local area, including how it: |
||
|
|
§ respects and responds to its physical context such as adjacent built form, neighbourhood character, streetscape quality and heritage |
The front setback is proposed to provide parking and vehicular access for the childcare centre. No landscape plan has been submitted with the Review application to demonstrate how the increase in hard surface will be mitigated by landscaping. |
No |
|
|
§ contributes to the identity of the place |
The building position is unaltered. |
Yes |
|
|
§ retains and reinforces existing built form and vegetation where significant |
The proposal seeks to retain trees on the site and within the front setback but pave the front setback for access and parking. |
No |
|
|
§ considers heritage within the local neighbourhood including identified heritage items and conservation areas |
The subject site and immediate surrounding area are not identified as being heritage listed or within a conservation area. |
Yes |
|
|
§ responds to its natural environment including local landscape setting and climate
|
The proposal seeks to retain trees on the site and within the front setback but pave the front setback for access and parking. |
No |
|
|
C16- Entry to the facility should be limited to one secure point which is: |
||
|
|
§ located to allow ease of access, particularly for pedestrians § directly accessible from the street where possible § directly visible from the street frontage § easily monitored through natural or camera surveillance § not accessed through an outdoor play area. § in a mixed-use development, clearly defined and separate from entrances to other uses in the building. |
The proposal seeks a main entry along the northern side elevation which is accessed from Ponderosa Place via a pedestrian walkway.
The rear car park access is via a ramp along the northern facade.
The proposal seeks a dual entry/exit arrangement to provide a circular drive to the front hard stand car parking area. This arrangement raises safety and manoeuvring concerns in this area as well as conflict with the driveway to the rear of the site as discussed in report. |
No - The entry to the centre is not easily identifiable from the street. |
|
|
C17- Accessible design can be achieved by: |
||
|
|
§ providing accessibility to and within the building in accordance with all relevant legislation § linking all key areas of the site by level or ramped pathways that are accessible to prams and wheelchairs, including between all car parking areas and the main building entry § providing a continuous path of travel to and within the building, including access between the street entry and car parking and main building entrance. Platform lifts should be avoided where possible § minimising ramping by ensuring building entries and ground floors are well located relative to the level of the footpath. § NOTE: The National Construction Code, the Discrimination Disability Act 1992 and the Disability (Access to Premises – Buildings) Standards 2010 set out the requirements for access to buildings for people with disabilities. |
The proposal is accompanied by an Access Report which concludes that the CCC will be suitably accessible in accordance with the requirements of the National Construction Code and relevant Australian Standards. |
Yes |
|
3.4 Landscaping
|
C18- Appropriate planting should be provided along the boundary integrated with fencing. Screen planting should not be included in calculations of unencumbered outdoor space. Use the existing landscape where feasible to provide a high quality landscaped area by: |
||
|
|
§ reflecting and reinforcing the local context § incorporating natural features of the site, such as trees, rocky outcrops and vegetation communities into landscaping. |
The front setback is proposed to provide parking and vehicular and pedestrian access for the childcare centre. A landscape plan has not been submitted with the Review application to demonstrate how the increase in hard surface will be mitigated by landscaping. |
No |
|
|
C19- Incorporate car parking into the landscape design of the site by: |
||
|
|
§ planting shade trees in large car parking areas to create a cool outdoor environment and reduce summer heat radiating into buildings § taking into account streetscape, local character and context when siting car parking areas within the front setback § using low level landscaping to soften and screen parking areas. |
It has not been demonstrate the car parking is integrated with the landscape design as a landscape plan has not been submitted with the Review application. |
No |
|
|
C21- Minimise direct overlooking of indoor rooms and outdoor play spaces from public areas through: |
||
|
|
§ appropriate site and building layout § suitably locating pathways, windows and doors § permanent screening and landscape design |
The proposal has been designed to reasonably satisfy the requirements of this clause. |
Yes |
|
|
C22 Minimise direct overlooking of main internal living areas and private open spaces in adjoining developments through: |
||
|
|
§ appropriate site and building layout § suitable location of pathways, windows and doors § landscape design and screening. |
The centre is proposed to occupy the existing lower ground level of the church building and will not overlook neighbours. |
Yes |
|
|
C23- A new development, or development that includes alterations to more than 50 per cent of the existing floor area, and is located adjacent to residential accommodation should: |
||
|
|
§ Provide an acoustic fence along any boundary where the adjoining property contains a residential use. (An acoustic fence is one that is a solid, gap free fence). |
New works and use are proposed and acoustic screening and roof over to the northern and southern sides of the outside play area has been proposed as a result of the recommendations of the acoustic report. |
Council’s Environmental Health Officer has reviewed the amended acoustic report and does not support the assessment or recommendations contained within the report as it does not consider the existing use of the site for a church and associated events. |
|
|
C24- A suitably qualified acoustic professional should prepare an acoustic report which will cover the following matters: |
|
|
|
|
§ identify an appropriate noise level for a child care facility located in residential and other zones § determine an appropriate background noise level for outdoor play areas during times they are proposed to be in use § determine the appropriate height of any acoustic fence to enable the noise criteria to be met. |
The acoustic report has identified an appropriate background noise and requires an acoustic fence to an overall height of 2.4m, with pitched roof, along the northern Outdoor Play Area (OPA) and a roof element to 4m in height above the existing 3.12m high southern boundary wall OPA. The acoustic report was reviewed by Council’s Coordinator Environmental Health who raised concern that the internal areas will need to be air-conditioned rather than naturally ventilated. |
No.
|
|
|
Comments on acoustic privacy Council’s Environmental Health Officer has reviewed the amended acoustic report and does not support the assessment or recommendations contained within the report as it does not consider the existing use of the site for a Church and associated events. Further discussion is provided in the Council referrals section of this report. |
||
|
3.6 Noise and air pollution
|
C25 Adopt design solutions to minimise the impacts of noise, such as: § creating physical separation between buildings and the noise source § orienting the facility perpendicular to the noise source and where possible buffered by other uses § using landscaping to reduce the perception of noise § limiting the number and size of openings facing noise sources § using double or acoustic glazing, acoustic louvres or enclosed balconies (winter gardens) § using materials with mass and/or sound insulation or absorption properties, such as solid balcony balustrades, external screens and soffits § locating cot rooms, sleeping areas and play areas away from external noise sources. |
The proposal incorporates an acoustic fence with roof over around the outdoor play area.
The proposal has incorporated design elements consistent with the intent of this clause to respond to potential noise impacts from the centre. |
Council’s Environmental Health Officer has reviewed the amended acoustic report and does not support the assessment or recommendations contained within the report as it does not consider the existing use of the site for a church and associated events.
|
|
|
C26- An acoustic report should identify appropriate noise levels for sleeping areas and other non-play areas and examine impacts and noise attenuation measures where a child care facility is proposed in any of the following locations: • on industrial zoned land • where the ANEF contour is between 20 and 25, consistent with AS 2021 – 2000 • along a railway or mass transit corridor, as defined by State Environmental Planning Policy (Infrastructure) 2007 • on a major or busy road • other land that is impacted by substantial external noise. |
An amended acoustic report was submitted with the Review application. |
Council’s Environmental Health Officer has reviewed the amended acoustic report and does not support the assessment or recommendations contained within the report as it does not consider the existing use of the site for a church and associated events. |
|
|
C27- Locate child care facilities on sites which avoid or minimise the potential impact of external sources of air pollution such as major roads and industrial development. |
The site is located on a local road, with partial frontage to the collector road Forest Road, and is not within close proximity to any industrial uses. |
Yes |
|
|
C28- A suitably qualified air quality professional should prepare an air quality assessment report to demonstrate that proposed child care facilities close to major roads or industrial developments can meet air quality standards in accordance with relevant legislation and guidelines. The air quality assessment report should evaluate design considerations to minimise air pollution. |
The subject site is located away from potential impacts from external sources. Therefore an air quality assessment report was not required. |
N/A |
|
3.7 Hours of operation
|
C29- Hours of operation within areas where the predominant land use is residential should be confined to the core hours of 7.00am to 7.00pm weekdays. The hours of operation of the proposed child care facility may be extended if it adjoins or is adjacent to non-residential land uses. |
The proposal seeks consent to operate between 7.00am – 6.00pm Monday to Friday. Closed on Saturday, Sunday and Public Holidays.
|
Yes |
|
3.8 Traffic, parking and pedestrian circulation
|
C31 Off street car parking should be provided at the rates for child care facilities specified in a Development Control Plan that applies to the land. |
Compliant car parking provided on site in accordance with the Hurstville Development Control Plan 2013, where the Centre use operates exclusively of the church activities only. |
Council’s Traffic Engineer has reviewed the documentation submitted with the Review application and does not support the proposal. Details are provided later in this report. |
|
|
C33- A Traffic and Parking Study should be prepared to support the proposal to quantify potential impacts on the surrounding land uses and demonstrate how impacts on amenity will be minimised. |
||
|
|
§ the amenity of the surrounding area will not be affected § there will be no impacts on the safe operation of the surrounding road network |
An addendum letter to the Traffic and Parking study has been submitted with the DA.
|
Council’s Traffic Engineer has reviewed the documentation submitted with the Review application and does not support the proposal. Details are provided later in this report. |
|
|
C36- The following design solutions may be incorporated into a development to help provide a safe pedestrian environment: |
||
|
|
§ separate pedestrian access from the car park to the facility |
The proposal provides separate pedestrian and vehicular access from Ponderosa Place |
Yes |
|
|
§ pedestrian paths that enable two prams to pass each other
|
The ramp design does not cater for two prams to pass each other. In addition, visitors to the centre are required to enter the lobby then exit the building and re-enter from the ramp to access the indoor play area. |
No |
|
|
§ delivery and loading areas located away from the main pedestrian access to the building and in clearly designated, separate facilities |
Council’s Traffic Engineer has reviewed the documentation submitted with the Review application and does not support the proposal. Details are provided later in this report. |
No |
|
|
§ vehicles can enter and leave the site in a forward direction. |
Council’s Traffic Engineer has reviewed the documentation submitted with the Review application and does not support the proposal. Details are provided later in this report. |
No |
|
|
C38 Car parking design should: |
||
|
|
§ include a child safety fence to separate car parking areas from the building entrance and play areas § provide clearly marked accessible parking as close as possible to the primary entrance to the building in accordance with appropriate Australian Standards |
The proposal provides a separate pedestrian entry to that of the lower floor entry. Requiring safety fence and markings will result in the driveway not being wide enough to meet relevant standards. |
No
|
43. The proposed development is unsatisfactory in design and form when assessed against the broad principle provisions of the Education and Care Services National Regulations and the Child Care Planning Guidelines NSW 2017. Of particular note are the non-compliances with provisions relating to the following:
a) Identifying a suitable site based upon compatibility with the existing streetscape character. The locality, although adjacent to a roundabout, remains a low density residential area with soft landscaping the predominant visual feature which is not attainable with the current proposed design;
b) Disclosure of the educational programming and practice at the facility is required to be provided. This is a necessary requirement for the subject application to clearly illustrate that the facility will achieve the requirements for the definition of a Centre-Based Child Care Facility to be a permissible land use;
c) Ensuring and illustrating that the development retains a landscaped character complimentary to the streetscape as identified in point (a) above;
d) Ensuring and illustrating that outdoor open space areas have adequate solar access to 30% of the area year round. The current proposal seeks to introduce large arched acoustic walls around the outdoor play area to minimize noise for neighbouring properties. With the arched design and high wall height it is questionable whether the outdoor play area can achieve direct solar access to 30% of the play area year round and the Applicant has failed to illustrate that this is achievable;
e) Ensuring and illustrating that the internal floor space is appropriately designed to be naturally ventilated and achieves adequate natural lighting. Generally internal areas should not have a depth greater than 2.5 times the room height to ensure reasonable natural ventilation and lighting can be achieved. In this instance the height at 2.42m provides for only an acceptable depth of 6.05m whilst the subject design provides an internal play area depth of 12.2m;
f) Illustrating that the facility has a visible presence from the public road and safe/secure accessibility. In this instance the entry to the facility will be :
· in excess of 25m from the street front;
· not easily identifiable from the street;
· located 15m behind the existing church building alignment; and
· will not be able to provide visual security surveillance of the access pathway or the car park area at the street front.
44. With design modifications these issues may be resolvable, or improved, however, the general landscaping, car parking, accessibility, tree retention, streetscape, ventilation and solar access requirements under the Regulations/Guidelines appear to be issues that require significant re-assessment and redesign in order to achieve an acceptable outcome.
45. On the basis of this assessment, it is concluded that the current application design/form does not conform to the aims and objectives of the Regulations or Guidelines and is therefore not an appropriate form of development under those instruments.
Deemed State Environmental Planning Policy – Georges River Catchment
46. The subject land is located within the Georges River Catchments and as such The Greater Metropolitan Regional Environmental Plan No 2 - Georges River applies to the application.
47. Georges River Catchment generally aims to maintain and improve the water quality and river flows of the Georges River and its tributaries. The existing development drains to the front of the site being Ponderosa Place.
State Environmental Planning Policy Vegetation 2017
48. The Vegetation SEPP regulates clearing of native vegetation on urban land and land zoned for environmental conservation/management that does not require development consent.
49. The Vegetation SEPP applies to clearing of:
(a) Native vegetation above the Biodiversity Offset Scheme (BOS) threshold where a proponent will require an approval from the Native Vegetation Panel established under the Local Land Services Amendment Act 2016; and
(b) Vegetation below the BOS threshold where a proponent will require a permit from Council if that vegetation is identified in the council’s development control plan (DCP).
50. The Vegetation SEPP repeals clause 5.9 and 5.9AA of the Standard Instrument - Principal Local Environmental Plan with regulation of the clearing of vegetation (including native vegetation) below the BOS threshold through any applicable DCP.
51. The proposal has been reviewed by Council’s consulting arborist who supports the retention of existing trees subject to the paving of the car park be a specific porous style of paving. However a Landscape Plan has not been submitted with the Review application to enable a proper assessment of the proposal as a whole.
State Environmental Planning Policy No 55 - Remediation of land
52. SEPP 55 aims to promote the remediation of contaminated land in order to reduce the risk of harm to human health or any other aspect of the environment.
53. Clause 7 requires contamination and remediation to be considered in determining a development application. The consent authority must not consent to the carrying out of development on land unless it has considered whether or not the land is contaminated.
54. A contamination report was not submitted with the Review application. The provisions of SEPP 55 have not been met.
State Environmental Planning Policy (Infrastructure) 2007
55. The aim of the Infrastructure SEPP is to facilitate the effective delivery of infrastructure across the State.
56. The application was referred to Ausgrid on 11 January 2020 in accordance with Clause 45 of State Environmental Planning Policy (Infrastructure) 2007. A response was received on 16 January 2020. No objection was raised by Ausgrid to the proposal.
57. The provisions and requirements of the Infrastructure SEPP have been addressed and satisfied by the proposal.
Draft Environmental Planning Instruments
Draft Environment SEPP
58. The Draft Environment SEPP was exhibited from 31 October 2017 to 31 January 2018. This consolidated SEPP proposes to simplify the planning rules for a number of water catchments, waterways, urban bushland and Willandra Lakes World Heritage Property. Changes proposed include consolidating the following seven existing SEPPs:
· State Environmental Planning Policy No. 19 – Bushland in Urban Areas;
· State Environmental Planning Policy (Sydney Drinking Water Catchment) 2011;
· State Environmental Planning Policy No. 50 – Canal Estate Development;
· Greater Metropolitan Regional Environmental Plan No. 2 – Georges River Catchment;
· Sydney Regional Environmental Plan No. 20 – Hawkesbury-Nepean River (No.2-1997);
· Sydney Regional Environmental Plan (Sydney Harbour Catchment) 2005;
· Willandra Lakes Regional Environmental Plan No. 1 – World Heritage Property;
59. The proposal is not inconsistent with the provisions of this Draft Instrument.
Draft Remediation SEPP
60. The draft SEPP was exhibited from 31 January to 13 April 2018. The following are the aims of the SEPP as per below;
· provide a state-wide planning framework for the remediation of land;
· maintain the objectives and reinforce those aspects of the existing framework that have worked well;
· require planning authorities to consider the potential for land to be contaminated when determining development applications and rezoning land;
· clearly list the remediation works that require development consent; and
· introduce certification and operational requirements for remediation works that can be undertaken without development consent.
61. A contamination report was not submitted with the Review application. The provisions of SEPP 55 have not been met.
ENVIRONMENTAL PLANNING POLICIES
Hurstville Local Environmental Plan 2012
62. The provisions of this local environmental plan are relevant to the proposal. The extent to which the proposal complies with the relevant standards of Hurstville Local Environmental Plan 2012 (HLEP2012) is outlined in the table below.
|
Clause |
Standard |
Assessment Under HLEP 2012 |
|
Part 2 – Permitted/ Prohibited Development |
R2 Low Density Residential |
The Application is for a centre based childcare facility. For the purposes of definition the Applicant seeks approval as a child care centre (CCC) which is permissible in the zone. See comments below. |
|
|
Objectives of the Zone |
The proposal does not comply with two objectives of the zone (refer to discussion following this table). |
|
4.3 – Height of Buildings |
9m as identified on Height of Buildings Map |
As existing - 8.9m. |
|
4.4 – Floor Space Ratio |
0.6:1 as identified on Floor Space Ratio Map |
As existing - 0.48:1, inclusive of church/hall and residence. |
|
4.5 – Calculation of floor space ratio and site area |
FSR and site area calculated in accordance with Cl.4.5 |
N/A as existing. |
|
6.4 – Foreshore Scenic Protection Area |
Council cannot grant consent to the carrying out of development on land within a Foreshore Scenic Protection Area unless consideration has been made of the following: “(3)(a) affect the natural environment, including topography, rock formations, canopy vegetation or other significant vegetation, and
(b) affect the visual environment, including the views to and from the Georges River, foreshore reserves, residential areas and public places, and
(c) affect the environmental heritage of Hurstville, and
(d) Contribute to the scenic qualities of the residential areas and the Georges River by maintaining the dominance of landscape over built form.” |
The site is located in the Foreshore Scenic Protection Area. The proposal has been assessed against the matters for consideration and is concluded to be unacceptable.
The development comprises work that reduces the landscaped area within the front setback and is replaced with paving for car parking.
There are no views afforded to properties in this area.
The proposal will not impact on any items of environmental heritage listed under Schedule 5 of the LEP.
The proposed car park at the front of the site, and the lack of landscaping detail provided in the Review application, does not result in the “dominance of landscape over built form” being achieved. |
|
6.7 – Essential Services |
The following services that are essential for the development shall be available or that adequate arrangements must be made available when required: * Supply of water, electricity and disposal and management of sewerage * Stormwater drainage or on-site conservation
* Suitable vehicular access |
Adequate facilities for the supply of water and for the removal of sewage and drainage are available to this land.
Appropriate stormwater disposal is proposed. An existing charged system was approved via DA2006/0372 for the Church Hall and additions. Vehicular access from Ponderosa Place/Forest Road is proposed subject to agreement being reached on modifications to the intersection. This is presently not supported by Council’s Traffic Engineers. |
Part 2 – Permitted or Prohibited Development
Clause 2.1 – Land Use Zones
63. The subject site is zoned R2 Low Density Residential and the Applicant seeks approval of an early childhood education centre which is being assessed as a “Centre-Based Child Care Facility” being a permissible form of development with consent, and defined as follows:
centre-based child care facility means:
(a) a building or place used for the education and care of children that provides any one or more of the following:
(i) long day care,
(ii) occasional child care,
(iii) out-of-school-hours care (including vacation care),
(iv) preschool care, or
(b) an approved family day care venue (within the meaning of the Children (Education and Care Services) National Law (NSW)),
Note. An approved family day care venue is a place, other than a residence, where an approved family day care service (within the meaning of the Children (Education and Care Services) National Law (NSW)) is provided.
but does not include:
(c) a building or place used for home-based child care or school-based child care, or
(d) an office of a family day care service (within the meanings of the Children (Education and Care Services) National Law (NSW)), or
(e) a babysitting, playgroup or child-minding service that is organised informally by the parents of the children concerned, or
(f) a child-minding service that is provided in connection with a recreational or commercial facility (such as a gymnasium) to care for children while the children’s parents are using the facility, or
(g) a service that is concerned primarily with providing lessons or coaching in, or providing for participation in, a cultural, recreational, religious or sporting activity, or providing private tutoring, or
(h) a child-minding service that is provided by or in a health services facility, but only if the service is established, registered or licensed as part of the institution operating in the facility.
64. With regard to the subject application the Applicant has not clarified the basis for the proposals compliance with the definition with regard to :
· What is the educational role of the facility as required by (a) and (g)? and;
· Whether the Education Facility has a religious role and thus would be excluded from the definition.
65. At this time the Applicant has failed to confirm that the proposed activity is consistent with the definition for a “Centre-Based Child Care Facility”.
66. Where the facility is determined not to be a “Centre-Based Child Care Facility” (CCC), the Applicant would need to rely on the facility operating as an ancillary use to the existing “Place of Public Worship” use to be assessed as being permissible. Reliance on this approach to permit the activity would necessitate the Applicant illustrating that the “Place of Public Worship” use would remain the dominant land use considering that the CCC Facility is proposed to operate 5 days weekly and the Church only on weekends this seems unlikely.
Objectives of Zone
67. The objective of the R2 zone are:
• To provide for the housing needs of the community within a low density residential environment.
• To enable other land uses that provide facilities or services to meet the day to day needs of residents.
• To encourage development of sites for a range of housing types, where such development does not compromise the amenity of the surrounding area, or the natural or cultural heritage of the area.
• To ensure that a high level of residential amenity is achieved and maintained.
• To encourage greater visual amenity through maintaining and enhancing landscaping as a major element in the residential environment.
• To provide for a range of home business activities where such activities are not likely to adversely affect the surrounding residential amenity.
68. The proposed use fails to satisfy the following objective of the zone:
· To enable other land uses that provide facilities or services to meet the day to day needs of residents.
69. A CCC is a service that provides for the day to day needs of residents and the wider community. However, the plans and reports provided in support of the proposal do not sufficiently demonstrate that the proposal can provide a satisfactory facility which can suitably accommodate the children and maintain reasonable neighbour amenity.
70. This assessment identifies that the proposal has not been suitably designed to provide:
· appropriate car parking and vehicular site egress/access;
· appropriate indoor/outdoor space to safely and securely accommodate the children whilst providing sufficient natural light and ventilation to the centre;
· appropriate noise amelioration measures to ensure preservation of the neighbouring residential property amenity; and
· landscaping details of the front setback.
71. The proposed use also fails to satisfy the following objective of the zone:
· To ensure that a high level of residential amenity is achieved and maintained.
72. The use of the existing building for church activities has already proved to be insufficient, in terms of acoustic treatment, to provide a satisfactory level of acoustic amenity to adjacent neighbours. The provision of a child care centre in the existing building without adequately addressing the noise impact from the indoor/outdoor play spaces associated with the child care centre use remains unsatisfactory.
73. The application has not demonstrated that the proposal achieves suitable acoustic amenity from the use of indoor areas. The Acoustic Dynamics 2016 report, commissioned by Georges River Council, had previously advised that:
“…the calculated noise emission from the indoor playground will not achieve compliance with the relevant noise emission criteria when windows and sliding doors are open. Accordingly Acoustic Dynamics advises that air conditioning should be installed to service the Child Care Centre. This will provide the option for mechanical ventilation of the Child Care Centre, and provide the occupants with the option to leave external doors and windows closed.”
74. The Applicant’s current acoustic report prepared by Acoustic Works, dated 19 December 2019, recommends the following:
“8.2 Indoor play area
Based on the predicted noise levels and subjective assessment of the site and surrounds, noise impacts from the indoor play area at the residential receiver locations are predicted to comply on the condition that either closed windows plus alternative ventilation (Section 8.2.1) or open windows with additional acoustic treatment (Section 8.2.2) are implemented.
8.2.1 Option 1 – Alternative ventilation
All windows and doors located in the indoor play area must remain closed when being utilised by children or staff. It is recommended that the indoor play area have the provision for an alternative ventilation system (in accordance with National Construction Code 2016 requirements and AS1668.2) similar to air-conditioning or mechanical ventilation to allow doors and windows to be closed.
8.2.2 Option 2 – Acoustic treatment
To allow windows to remain open at all times, the following treatment options would be required:
• The total area of open windows in the indoor play area must not exceed 10% of the total wall area.
• Install 185sqm of acoustic treatment to the indoor play area ceiling using 12mm square hole Echostop back with 70mm thick 14k/m3 insulation within the ceiling cavity to achieve an NRC 0.8.
• Acoustic barriers shall be constructed with the height and extent of the recommended acoustic barriers presented in Figure 4. The acoustic barriers should be constructed using either 20mm lapped timber (minimum 40% overlap), masonry, 9mm fibre cement sheet, Hebel, Perspex, plywood, or other materials with a minimum surface density of 11kg/sqm and shall be free of gaps and holes.”
75. The suggested resolution of the internal noise generation impact, involving keeping windows/doors closed during use, will appropriately address noise generation, however, for the operation of the child care centre it is considered to be a poor amenity outcome. A Plan of Management (POM) is warranted, considering the multiple use activities of this site, to ensure suitable action is taken by the child care centre operator when necessary. The applicant has stated that a Plan of Management is being ‘worked on’ by the Church.
76. Although reliance on air-conditioning is not a preferred outcome, (no details of where the condensers would be placed has been provided), for a child care centre, indeed the SEPP encourages natural ventilation, it is an option where noise levels during active periods is unreasonable and this is generally acknowledged as an option by the SEPP provisions. Air-conditioning is not an appropriate option where there is no enforceable POM available to instruct the centre operators.
77. As such, the proposal cannot provide for appropriate acoustic amenity for the adjoining neighbours and therefore fails to satisfy the objective of the LEP.
78. Additionally, the proposed development involves increased paved areas within the front setback thus reducing the potential landscaped area further. No landscape plan has been submitted with the Review application to enable a proper assessment of the proposal as a whole.
Development Control Plans
Hurstville Development Control Plan 2013
79. The proposal has been considered in accordance with the applicable subsections and considerations below.
DEVELOPMENT CONTROL PLAN NO 1 – LGA WIDE – SECTION 3.1 CAR PARKING
|
Section 3.1 |
Requirements |
Proposed |
Complies |
|
3.1.4.1 (table) – Child care centres refers requirements under 5.4.10 |
1 space per 2 staff (7 staff required) = 3.5 car spaces Short term drop off and pick up spaces at 1 space per 10 children (single access driveways) (34 children) = 4 car spaces Total required = 8 car spaces |
6 proposed
5 proposed
11 proposed spaces |
Yes
Yes
Yes |
|
3.1.4.1 Place of Public Worship |
1 space per 10 seats or 1 space per 10sqm GFA whichever is greater) GFA is 839.279sqm = 84 spaces
|
11 available – shared with proposed child care centre use (Church original approval required the provision of 9 spaces including 2 accessible spaces) |
No |
|
3.1.4.1 Residential – controls under 4.1 |
Dwelling House 2 car parking spaces required for 3 or more bedrooms |
Single garage – 1 space |
No |
On site car parking
80. As demonstrated in the table above, the child care centre development proposes a compliant number of car parking spaces for the proposed child care centre use. For each individual activity taking place on the subject land, the proposed car parking is considered to be adequate, noting that the Church activity was approved with a requirement for nine (9) spaces. However, concerns remain that without appropriate management conditions applying to all uses of the land, the likelihood of multiple uses occurring on the land simultaneously is high. As the site is unsuitable to provide for appropriate car parking for both proposed uses, being the church and the child care centre, operating concurrently the application is recommended for refusal.
Intensification of car parking demand
81. The car parking approved for the site as part of the previous extensions to the hall under 06/DA-372 and later modified under 06/DA-372REV01 included the provision of nine (9) car parking spaces at the rear of the church hall. Two (2) of these spaces were to be designated accessible spaces. Two (2) additional spaces were provided for the existing dwelling house resulting in a total of eleven (11) spaces for the site.
82. The original Council report identified a shortfall of car parking provision of fifty (50) spaces for the site for the church and church hall use. This existing shortfall of fifty (50) spaces was permitted to be increased (when the sub-floor area was increased in size) on the basis that existing congregation numbers were demonstrated to be low and the parking provided on site would be sufficient for the existing congregation size. The justification claimed the additional floor space would not result in an intensification of the use. This was supported by Council with the provision of the following condition of consent:
65. The proposed hall shall be used for purposes ancillary to the church only and shall not be hired or let to other persons for private use.
79B. The approved hall shall only be used for church activities and is not permitted to be leased for commercial activities, functions or the like.
83. The intention of these conditions was to ensure the intensity of use of the hall was in accordance with the existing approved place of public worship. That is the church hall was to be used by parishioners that would otherwise attend the church itself and that eleven (11) spaces were sufficient.
84. The “Assessment of Traffic and Parking Implications” dated November 2018, and the addendum letter dated 12 December 2019 submitted with the Review application, both prepared by Traffic Impact Services Pty Ltd, specifies that the weekday use of the proposed child care centre “will not conflict with the church activities which are held only on a Sunday” and “In the unlikely event that a church activity was to occur on a weekday, this would be restricted to the hours of 9.30am–3.30pm or 7pm – 9pm which would be outside the child care centre drop off and pick up times.”
85. However timetable information provided by the Church in previous applications indicates that the occasional Church related activity occurs during the week. On occasions where Church use and child care centre use overlap, it is claimed that Church events during the week “would be restricted to the hours of 9.30am-3.30pm which would be outside the child care drop off and pick up times.” Demonstration of how events would be restricted has not been provided.
86. Potential instances of parking overlap are problematic where the church/church hall use and the proposed child care centre use operate concurrently, significant deficiencies in car parking would result. Insufficient information has been provided to demonstrate that there will be no parking conflict between any use of the church/church hall and the child care centre during the week.
87. Existing conditions of consent relating to the use of the church and church hall do not specify that the church and ancillary uses cannot occur during the week. There is no capacity to provide conditions of consent under the current application that will prevent multiple activities overlapping.
88. As such there is no certainty that the combined uses, church and facility related, will not result in an intensification of car parking demand and its spill over into the surrounding road network. Insufficient management strategies, ie no plan of management, have been provided in support of the application to demonstrate how this issue can be avoided through general agreement arrangements.
Summary
89. The child care centre use will increase the current car parking demand for the site and the subject application has not adequately addressed the following:
· Landscaping to mitigate the paving of the front setback for the proposed car park;
· The rear car parking cannot be supported for use by visitors to the child care centre as it raises a safety issue for pedestrians accessing the child care centre via the driveway and potential conflicts in passing vehicles along the access drive;.
· The site cannot provide suitable vehicular access and car parking on site to accommodate the demand of concurrently operating activities and as such is not supported.
DEVELOPMENT CONTROL PLAN NO 1 – LGA WIDE – SECTION 3.3 ACCESS AND MOBILITY
90. This section of Development Control Plan No 1 requires the provision of “access for all persons through the principal entrance and access to appropriate sanitary facilities in accordance with the BCA and relevant Australian Standards.”
91. The Development Application (DA2019/0042) was accompanied by an “Accessibility Report” prepared by Accessibility Solutions Pty Ltd, dated 10 October 2017, which relies on outdated plans for the development, including a larger car park at the rear. The conclusions reached relating to the accessibility of the existing building remain relevant as no changes are proposed as part of this application. The Consultant concluded as follows:
“The plans confirm the new works will provide appropriate ramped entry and internal circulation to essential features and amenities for children and staff with disabilities, including outdoor play areas in a manner that can comply with the abovementioned standards and legislation”.
92. No Access Report was submitted with the Review application.
93. If the application was to be supported than a condition would be imposed to have the Construction Certificate plans reviewed to ensure compliance prior to the issue of the Construction Certificate.
DEVELOPMENT CONTROL PLAN NO 1 – LGA WIDE – SECTION 3.4 CRIME PREVENTION THROUGH ENVIRONMENTAL DESIGN
|
Section 3.4 |
Requirements |
Proposed |
Complies |
|
Fencing |
Allows natural surveillance to street |
The front of the site has no fences and the proposal will not alter the existing level of natural surveillance to the street currently available, however surveillance is not available from the child care centre given its recessed location within site. |
Yes |
|
Blind Corners |
To be avoided |
Blind corners, such as to the car parks, are generally overlooked by windows by the church above. This clause could only be satisfied if the Church was operating at the same time as the child care facility. |
No |
|
Communal Areas |
Provide opportunities for natural surveillance |
The child care centre entry and outdoor play spaces are visible from within the centre or the adjacent Church office. |
Yes |
|
Entrances |
Clearly visible and not confusing |
The entry to the child care centre is at front/side of the premises and pedestrian access is via a designated pathway adjacent to the driveway. This may be confusing without appropriate signage. |
No |
|
Site and Building Layout |
- Provide surveillance opportunities - Building addresses street - Offset windows |
Surveillance opportunities provided at the rear of the premises only. The existing church provides street surveillance opportunities from the office window but this is proposed to be replaced with doors. To maintain this casual surveillance any doors introduced in this area should be glass doors.
As the adequacy of surveillance is only achieved where the church is functioning concurrently which would raise parking demand issues. |
No |
|
Lighting |
- Diffused/movement sensitive lighting provided externally - Access/egress points illuminated - No light spill towards neighbours - Hiding places illuminated - Lighting is energy efficient |
Can be conditioned to satisfy these requirements, should the application be approved. |
Yes |
|
Landscaping |
- Avoid dense medium height shrubs - Allow spacing for low growing dense vegetation - Low ground cover or high canopy trees around car parks and pathways |
A landscape plan has not been submitted with the Review application. |
No |
|
Building Identification |
- Clearly numbered buildings - Entrances numbered - Unit numbers provided at entry |
Can be conditioned to satisfy these requirements, should the application be approved. |
Yes |
|
Security |
Provide an appropriate level of security |
Sufficient level of security provided. |
Yes |
|
Ownership |
Use of fencing, landscaping, colour and finishes to imply ownership |
Ownership is implied by the church building and appropriate signage could be installed to direct the users of the childcare centre if the proposal was supported. |
Yes |
DEVELOPMENT CONTROL PLAN NO 1 – LGA WIDE – SECTION 3.5 ENERGY EFFICIENCY
94. The provisions of Section 3.5.2.1 specify a number of requirements relevant to the proposal.
Solar Access
95. Solar access to buildings is encouraged in order to provide for energy efficiency. The indoor play area occupies a central area of the floor plan and is 19.8m deep measured from the doors; hence, solar access to the majority of the indoor play area is unavailable. No openings, and therefore no solar access or natural lighting, is provided to the southern or western rooms in the child care centre as this portion of the centre is underground.
96. The solar access analysis submitted with the Review application does not illustrate that reasonable solar access can be provided to either the internal of the centre or the outdoor play areas.
Windows and cross ventilation
97. As described above, no windows are provided to any of the southern or western rooms of the child care centre and the indoor play area will not be cross ventilated should the doors to the rear play area be closed as required by Council’s Acoustic Consultant (providing advice on a similar proposal under DA2015/0443) where no air conditioning is proposed. The design for the conversion of the area below the Church Hall is considered to be inappropriate for a child care centre in that natural light and ventilation is not provided to the majority of the centre.
DEVELOPMENT CONTROL PLAN NO 1 – LGA WIDE – SECTION 3.7 DRAINAGE AND ON SITE DETENTION
98. A hydraulic plan was not submitted with the Review application.
99. The hydraulic plan provided with DA2019/0042 relates to a previous design of the proposal (plans), including having ten (10) car parking spaces at the rear. This plan does not take into account the excavation undertaken for the provision of the outdoor play area to the rear and the drainage of this area has not been detailed appropriately. It is acknowledged that the proposal seeks to utilise the existing site drainage system, including an existing pump-out arrangement for the rear car park. Insufficient information has been provided to enable a final assessment of the stormwater disposal from the site in accordance with this section of Development Control Plan No 1. The building form is as approved and relies on the existing stormwater system whilst the outdoor paving and car parking areas are to be drained to existing pump out system shown on plans.
DEVELOPMENT CONTROL PLAN NO 1 – LGA WIDE – SECTION 3.9 WASTE MANAGEMENT
100. A waste management plan was not submitted with the Review application.
101. A waste management plan was provided in DA2019/0042. A final detailed waste management plan for construction will be required in order to undertake a full assessment of the proposal. Inclusion of a plan of management with appropriate details of waste storage and disposal required for the child care centre and the Church uses needs to be provided. On this basis insufficient information has been provided to demonstrate compliance with this section of Development Control Plan No 1.
DEVELOPMENT CONTROL PLAN NO 1 – LGA WIDE – SECTION 3.11 PRESERVATION OF TREES AND VEGETATION
102. The architectural plans and arborist report submitted with the Review application state the trees on the site are to be retained, however as discussed in this report, a landscape plan has not been submitted and there continue to be inconsistencies within the arborist report that claims to have been updated, still contains information obtained at the site over 8 years ago. The lack of, and inconsistency between information in relation to trees and landscaping does not enable a proper assessment of the proposal as a whole, and forms part of the reasons for refusal of the application.
DEVELOPMENT CONTROL PLAN NO 1 – LGA WIDE – SECTION 5.3 CHILD CARE CENTRES
103. The proposed child care centre has been assessed against the requirements of Section 5.3 of Council’s Development Control Plan No 1 – LGA Wide as shown below.
|
Section 5.3 |
Standard |
Proposed |
Complies |
|
DS2.1-DS2.13 Locational Criteria |
Should be located close to community focal points |
The site is located diagonally opposite Lugarno Public School. |
Yes |
|
Minimum site area of 500sqm |
3140sqm |
Yes |
|
|
Min. frontage of 18m where a separate entry and exit is provided |
24.69m |
Yes |
|
|
Sites must not have a property boundary to a state road |
The site does not adjoin a state road. |
Yes |
|
|
Site must be at least 300m away from telecommunications towers, large over-head power wires, any other inappropriate area |
High tension power lines, telecommunications towers or other inappropriate structures or uses are not located within 300m of the site. |
Yes |
|
|
Approval will not be given to sites which are less than 55m from an LPG above ground gas tank or tanker unloading position |
The site is not located near an LPG tank or tanker unloading position. |
Yes |
|
|
Analysis of existing and/or potential site contamination |
As the previous and current use of the site is a place of public worship, no significant contamination is likely to be present on the site. |
Yes |
|
|
Approval will not be given to sites located within cul-de-sacs or closed roads |
The site is not located within a cul-de-sac or closed road, but the site is located on an intersection with Ponderosa Place which is a cul-de-sac requiring all vehicles to exit/enter from this intersection. |
Yes |
|
|
Child care centres are not to be located on bushfire or flood prone land, or located adjoining drug clinics or other inappropriate land uses |
The site is not bushfire or flood prone land. |
Yes |
|
|
Proposals must be accompanied by a Traffic Impact Statement provided by a qualified Consultant |
A traffic report has been provided. It has been assessed by Council’s Traffic Engineers as being unacceptable. |
Yes |
|
|
DS3.1-DS3.4 Cumulative Impacts from Centres within Residential Areas |
Only one child care centre is permitted at an intersection |
No other child care centres are located at the intersection. |
Yes |
|
Child care centres will not be permitted on land adjoining any other existing or approved child care centre |
The site does not adjoin any other existing or approved child care centres. |
Yes |
|
|
Only one child care centre is permitted per street block |
No other child care centre is located on the same block. |
Yes |
|
|
DS5.1-DS5.3 Size of Centres and Child Age Groups |
Maximum 40 children within the R2 - Low Density Residential |
Maximum 34 proposed. |
Yes |
|
Minimum number of places within the 0-2 year age group is to be the same as the % of 0-2 year olds in the under 5 years population at most recent census (which is 35% from the 2011 census) = 12 children |
12 children = 35.29% |
Yes |
|
|
DS6.1-DS6.3 Building Form |
Height – Single storey in the R2 Low Density Residential Zone |
Within existing part single part two storey building. |
Yes |
|
DS6.4 –DS6.6 Setbacks |
Front Setback 5.5m to primary front |
>5.5m. |
Yes |
|
Side Setback - 0.9m |
>0.9m to 2.313m |
Yes |
|
|
Rear Setback – 3m |
48.1m and there is a dwelling separating the child care centre and the rear boundary. |
Yes |
|
|
DS6.7-DS6.12 Relationships to Adjoining Properties
|
Impacts of the following to be considered: · Play areas – indoor and outdoor
· Windows and doors (particularly those associated with indoor play areas)
· Verandahs
· Point of entry · Pick-up and drop-off points · Any plant equipment which may be required within the context of the centre · Openings such as windows and doors should not correspond with existing opening on adjoining properties |
Acoustic barriers relating to the outdoor play areas may be designed so as to meet satisfy acoustic amenity. Indoor play areas have not been demonstrated to be capable of achieving appropriate acoustic amenity for adjacent neighbours. Acoustic separation between internal spaces and the adjacent neighbours does not provide appropriate acoustic amenity when windows are open. No verandah play areas are proposed. The entry lobby is adjacent to the rear yards of the northern neighbours at the front of the site for sign in and to the side when entering the playroom. The Acoustic Dynamics report of 10 August 2016 (prepared on behalf of Council for DA2016/0443) has concluded that the child care centre may provide appropriate acoustic separation with a 2.2m high acoustic barrier along the northern boundary and the undertaking of all internal play with windows closed and mechanical ventilation provided. The current design however is considered inadequate as the acoustic barrier cannot operate in compliance with the DCP or Regulation whilst also achieving the provision of natural light and ventilation. |
No
No
N/A
No
|
|
DS6.13—DS6.15 Solar Design and Energy Efficiency |
A minimum of 3 hours sunlight between 9am and 3pm is to be maintained to adjoining private open space, habitable rooms and solar collectors |
Complies (no change to the existing building height or setbacks). |
Yes |
|
DS6.16 Streetscape Assessment |
Streetscape and the design principles used to improve the existing streetscape |
The front setback is proposed to be provided as car parking and no landscape plan has been submitted to mitigate the increase in hard surface. |
No |
|
DS6.17 Building Detail |
The design of the centre must provide strong visual links between indoor and outdoor spaces |
Provided through two glazed double doors. |
Yes |
|
DS7.1– DS7.11 Parking and Driveway |
1 space per 2 staff 7 staff = 4 spaces 1 space per 15 children 34 children = 3 spaces Total = 7 spaces |
See assessment. Only adequate where other uses do not operate concurrently. |
No |
|
Vehicles must be able to enter and leave the site in a forward direction |
Vehicles can enter and exit the site in a forward direction, however the car park design and driveway along the northern boundary do not comply with the relevant Australian Standards (refer to Traffic Engineer comments). |
No |
|
|
Bike racks must be provided on site. 1 required |
No bike racks proposed. |
No |
|
|
Driveway crossing on corner allotments must not be located closer than 9m to the property alignment at the intersection |
11m from roundabout. The access arrangements are being requested to be altered and are not supported by Council’s Traffic Engineers. |
Yes |
|
|
Landscaping and paving design associated with driveways must achieve the following: · Pedestrian safety and visibility · Level, hard surface from vehicles to entry point · Satisfactory manoeuvrability for disabled persons and/or prams · Clear delineation between driveway and yard areas |
Driveway and pedestrian access provides for inappropriate pedestrian safety. |
No |
|
|
A “Neighbourhood Parking Policy” and a “Motor Vehicle and Pedestrian Risk Assessment Report” must be submitted for Council’s consideration |
The submitted Traffic Report considers pedestrian safety and on street parking. It has been assessed as unsuitable. |
No |
|
|
Physical demarcation is required to be provided between pedestrians and vehicular access ways to ensure pedestrian safety |
Any shared position is to be demarcated by use of bollards/fencing to ensure separation, however it will affect the width of the driveway which would result in a non-compliance with the relevant standards. |
No |
|
|
DS7.12- DS7. Traffic Considerations |
Council to consider traffic and safety impacts |
A Traffic Report was submitted with the application. The report has been reviewed by Council’s Senior Traffic Engineer who does not support the proposed car park design, access arrangements and changes to the road network. |
No |
|
Consideration of traffic impacts between 7.30am-9am and 3.30pm-6pm. |
The submitted traffic report has considered traffic impacts. Council’s Senior Traffic Engineer who does not support the proposed car park design, access arrangements or changes to the road network. |
No |
|
|
DS7.15-DS7.16 Access for Persons with Limited Mobility |
A 1m wide landscaped area is required to be provided along the front setback |
A landscape plan was not submitted with the Review application; however the architectural plans indicate the three trees in the front setback are to be retained. |
Yes |
|
Disabled access is to be provided from the street to the main entrance |
The Applicant’s Accessibility Report indicates that the site will be accessible; it fails to demonstrate the current plans are capable of compliance as the report is based on a previous revision of plans. |
No |
|
|
Disabled access ramp is to be provided to the playground areas |
An accessible access ramp is provided between the playground area and the entry lobby. Also along the northern side of the child care centre. |
Yes |
|
|
DS8.1-DS8.8 Tree Preservation and Planting |
A 1m wide landscaped area is required to be provided along the front setback Screen planting is to be provided along the side boundaries |
A landscape plan was not submitted with the Review application; however the architectural plans indicate the three trees in the front setback are to be retained. |
Yes |
|
Tree retention where required by Council’s Tree Officer/Arborist |
A landscape plan was not submitted with the Review application; however the architectural plans indicate the three trees in the front setback are to be retained. |
Yes |
|
|
DS8.8.7 Drainage |
Play areas must be capable of rapid clearance of surface water |
A hydraulic plan was not submitted to enable assessment.
|
No |
|
DS11.1-11.3 Hours of Operation |
Max. 7.00am – 6.30pm |
Monday – Friday: 7.00am – 6.00pm. |
Yes |
|
DS12.1-12.2 Visual Privacy |
Minimise overlooking through screening etc. |
A 2.4m high acoustic barrier (1.8m wall to 2.4m pitched roof) along the northern boundary of outdoor play area (OPA) and 4m barrier (3.12m wall to 4m roof pitch) along the southern boundary of OPA is proposed. The indoor play area is not visible from adjacent properties. |
Yes |
|
Play equipment to be setback 3m from boundaries adjoining residential |
No details of play equipment provided but sufficient outdoor play space is available. |
Yes |
|
|
DS12.3-12.4 Acoustic Amenity |
Acoustic Report by a suitably qualified consultant to be provided |
An Acoustic Report has been provided by Acoustic Works Pty Ltd. |
Yes |
|
DS12.5-12.6 Fencing |
Where it is essential that side street boundaries be fully fenced, they are to be designed to allow landscaping along the boundary. |
Boundary fencing is retained as existing.
|
Yes
|
|
Stormwater Assessment |
|
|
Existing Stormwater System |
A hydraulic plan was not submitted with the Review application. The proposal does not provide sufficient information to facilitate assessment. |
|
Proposed Stormwater System |
As existing. However the car park and the outdoor play area has not been assessed or considered. |
|
Stormwater objectives for development type met? |
No (pump systems not permitted). It is acknowledged that a pump out system exists on this site approved via DA2016/0372 for the approval of the church hall and additions. However no consideration has been given to the hard surfaces that result from this application. |
|
Slope to rear (measured centreline of site) |
Yes by approximately 3m, RL63.62 to RL60.60. |
|
Gravity to street (from property boundary to street kerb)? |
Yes from front property boundary, but is charged to this point. |
|
Discharge into the same catchment? |
Yes |
|
Easement required? |
No |
Developer Contributions
104. The proposed development, if approved, would not require the payment of developer contributions under Section 7.12 of the Environmental Planning and Assessment Act 1979 as the proposal has a value less than $100,000.
105. Note: The applicant has indicated the cost of development as $10,000, which is questionable given the extent of the works proposed and the fit-out work necessary to operate a compliant child care centre.
IMPACTS
Natural Environment
106. The proposal fails to adequately demonstrate that the proposal will not result in adverse impacts to the natural environment with respect to the existing trees on the site. A landscape plan was not submitted with the Review application, inadequate information is provided with respect to the likelihood of survival of the site trees given the proposed porous paving in the car parks. The arborist report submitted with the Review application, dated December 2019, contains references to site information from over 8 years ago, references incorrect plans and cannot be relied upon for a proper assessment of the proposal currently before the Panel.
Built Environment
107. The documentation submitted with the application fails to demonstrate the proposal will not have adverse impacts on the built environment with respect to acoustic and traffic impacts.
Social Impact
108. The documentation submitted with the application fails to demonstrate the proposal will not have adverse impacts on the amenity of neighbouring properties.
Economic Impact
109. There is no apparent adverse economic impact that is likely to result within the locality in relation to the proposed child care centre.
Suitability of the site
110. The site is zoned R2 Low Density Residential. The proposal is a permissible form of development in this zone. However the Review application fails to demonstrate how the child care centre can be accommodated on site without adversely impacting the acoustic amenity of neighbouring properties, provide adequate and compliant vehicular access and parking, and provide landscaping to mitigate the increase in hard surface area within the front setback.
SUBMISSIONS
111. The application was notified between 20 January 2020 and 17 February 2020 in accordance with the provisions within the Hurstville DCP No. 1. In response, eighteen (18) submissions were received. All submissions have been read and considered as part of the assessment of the application and a summary of the issues raised, relevant to the Review application, in the submissions include:
Traffic and Parking
112. Concerns regarding safety, congestion, conflict between church and child care uses.
113. Comment: Council’s Senior Traffic Engineer has reviewed the plans and documentation submitted with the Review application and does not support the proposal as it fails to comply with relevant Australian Standards for access and car parking. In addition, the application fails to adequately address the community and council concerns regarding the multiple existing and proposed uses on the site and competition for car parking.
Acoustic Impacts
114. Concerns regarding the accuracy of the acoustic report and effectiveness of the acoustic screens proposed.
115. Comment: Council’s Environmental Health Officer has reviewed the plans and documentation submitted with the Review application and does not support the proposal as it fails to adequately demonstrate how the proposal can meet the required acoustic limitations for the proposed use and sufficiently mitigate the impacts on the amenity of neighbouring residential properties and the future occupants of the childcare centre.
Solar access
116. The internal area will not receive sufficient solar access.
117. Comment: The application fails to demonstrate the internal and external play areas of the childcare centre will receive the required amount of solar access.
Ventilation
118. The internal areas cannot be naturally ventilated.
119. Comment: The application fails to demonstrate the internal areas of the child care centre can be adequately ventilated.
Use of the site for many purposes
120. Concern is raised that despite the applicant claiming no church uses will occur while the childcare is open, many other services are provided on site seven (7) days per week.
121. Comment: The application fails to adequately address the community and Council concerns regarding the multiple existing and proposed uses on the site.
REFERRALS
Council’s Referrals
Building Surveyor
122. Council’s Building Surveyor has carried out an assessment of the proposal. A BCA report has not been provided with this application for the purposes of a thorough assessment; however compliance with the BCA could be achieved subject to upgrade works and appropriate documentation provided to the Certifying Authority.
Traffic Engineer
123. Council’s Traffic Engineer has carried out an assessment of the proposal and provided the following comments:
Works on Council’s assets without approval
The Traffic Section cannot accept the one way configuration that is proposed at the front of the site along Ponderosa Place as the applicant has not completed the required authorisation from Council’s Assets and Infrastructure Section.
A Section 138 application for the proposed treatment on Ponderosa Place has not been submitted to Council’s Assets and Infrastructure department. The traffic section will simply not consider this treatment until detailed survey and designs of this channelization conforming to Australian standards and RMS technical directions is submitted to Council’s design section (located within the Asset and Infrastructure Department) for review and approval.
The applicant had five years to submit his plans and work with Council in investigating if the channelization will be feasible and to explore if it will conform to the required Australian Standards and RMS technical direction. The Traffic Advisory’s agreement was for the channelization to be considered, it is not the final approval. Accordingly until the applicant submits the section 138 for the channelization treatment in Ponderosa Place and receives approval from Council’s Design section, the traffic section will refuse to allow the drive in drive out configuration at the front of the site and will demand that it be removed from the architectural plans as this constitutes to illegal work on Council’s assets.
Furthermore the applicant needs to be made aware that all works associated with the channelization if approved will be a condition of consent that the applicant pay for all the works, including final designs and construction/line marking to Council’s specification.
Australian Standards
The aisle width of the car parking spaces at the front of the site are not sufficient, it needs to be a minimum of 5.8m or 6.1m if the other side is confined by a high vertical obstruction to the nominal edge of the aisle ( such as the trees that are located at the front of the site). Current drawings did not clarify the proposal.
AS2890.1:2004,3.2.2 requires that on long driveways, passing opportunities should be provided at least every 30m. The proposed driveway leading to the rear parking spaces is more than 50m long without any passing opportunities. This could result in cars reversing along the driveway. Reversing manoeuvres are not favoured in particular in developments where young children are involved such as in child care centres.
Safety
The rear parking spaces are directly outside the outdoor Play Space. A crash barrier such as crash Omni-STOP ENERGY Absorbing Bollards would be required to be installed at a spacing no more than 1.2m apart (measured centre to centre) to protect the outdoor play area from accidental crashes of vehicles from the parking lot.
Space 6 at the rear of the site can cause cars to reverse into the proposed pedestrian pathway. Once more this is not a favourable outcome as reversing around children is not encouraged.
Consultant Arborist
124. Council’s Arborist has carried out an assessment of the proposal and has identified inconsistencies within the Arborist Report, dated 1 October 2015 (updated December 2019) as follows:
· The dates have changed on the front page, the photos used within the latest plan are referenced as being on the 9/10/2012, some eight years ago and of interest is the tree assessment “tree health and condition assessment schedule, page 20” has exactly the same heights, spreads, DBH and comments as the first arborist report some eight years ago. It appears and I assume that the arborist has only changed the arborist report details and hasn’t attended the site of late.
· The arborist report still references the plans from 2012.
· Apart from the inconsistencies and out of date Arborist report, my recommendations are:
- The three trees at the front of the site need to be retained protected and growing conditions improved.
- The proposal shall retain the location of the existing driveway entrance close to the southern boundary.
- The utilisation of a permeable turfpave or similar product NOT paving that eventually clogs up and restricts air and moisture movement through to the roots and subsequent decline in mature trees.
- The reconfiguration of driveway and parking spaces between the building and trees, so as to maximise free open garden bed under and around the three trees to be retained and allowing a workable traffic solution.
- If amended material is forwarded, that updated landscape plans and arborist reports are synchronising and changes have been made to place a higher priority on the retention of trees that contribute to the locale generally.
Environmental Health Officer
125. Council’s Environmental Health Officer has carried out an assessment of the and provided the following comments:
“Background:
The proposal is attached to a building which consists of church and church hall.
In addition to church services, the Church hall is used for the following:
- Weddings;
- Birthdays;
- Funerals;
- Special events (such as "fashion event");
- Christmas celebration;
- Easter celebration;
- Meetings;
- Women’s Bingo;
- Choir Practice;
- Language classes; and
- Youth group activities.
The above activities can be on any weekday or weekend. The use of the hall which is on the first floor above the proposed child care centre has been known to cause a noise nuisance to adjoining residents.
Due to the ongoing noise nuisance Council is involved in legal action against the church.
Assessment:
Food handling assessment:
Minimum details showing on the plan this can be conditioned at the Construction Certificate stage.
Ownership confirmation:
The name of Council records and previous application differ slightly from the name on the review application.
On the application is Congregational Christian Church Samoa Parish of Sydney.
On Council record system – The Congregational Christian Church of Samoa Parish of Sydney Incorporated.
Previous application and ABN searches show: Congregational Christian Church in Samoa.
Evidence of ownership is required to ensure documents are issued to the correct identity.
Noise Assessment Report:
Acoustic report prepared by Acoustic Works dated 19 December 2019 received with the application addresses the use of the ground floor as a child care centre and did not mention the use of the rest of the building as church and church hall.
The introduction of the child care centre will increase the percentage of hours each day that residents are subjected to the use from this property, whether it is minor in nature or not. Given this, it is not comprehensible to assess the child care centre without consideration to the use of the building wholly.
Currently there are legal actions taken against the church for noise nuisance from the use of the church building including the church hall on the first floor at the top of the proposed childcare. This matter has been going on for a number of years now and a resolution has yet to be achieved. The most affected adjoining resident is No. 3 Tara Place Lugarno, identified as receiver no. 5 in the acoustic report.
Applicant needs to provide evidence and commitments that the use of the building as whole will not have a negative impact of adjoining residential properties.
The supporting statement attached to the application acknowledge that there is current noise nuisance issues “To be clear, the Church has confirmed that there is not and will not be, any organized Church activities between 7am and 6pm, Monday to Friday. To this effect, an appropriate condition of consent can be imposed upon a consent if a consent is to be granted. This is possible event to extent that any previous consents relevant to the Church use are overridden or require some for modification to ensure no inherent conflicts between development approvals.
It also refers to Management Plan previously submitted to Council. This management plan was a template given to Mr Malifa (the applicant) to use as reference and was partly completed and send back to Council. The management plan wasn’t satisfactory and also did not prove it was working as noise complaints are still received from adjoining residents.
Matter for discussion:
Considering all the above and operating approval (06/DA-372) for the church building has the following condition:
Condition 75 of the DA 06/DA-372 - consent stated,
“75. ZC14 - Amplified music/public address systems must not be audible outside the premises, unless approved by Hurstville City Council. “
I recommend considering the proposal and the supporting documents received with the current consent and request a modification to current consent when realistic measurable conditions can be used to solve this ongoing matter as whole.”
The Public Interest
126. The application fails to demonstrate how the proposed centre based child care centre will not have adverse impacts on the natural and built environment and therefore is not in the public interest.
CONCLUSION
127. The application has been assessed having regard to the Matters for Consideration under Section 8.2 Review and Section 4.15 (1) of the Environmental Planning and Assessment Act 1979 and relevant statutory provisions. The proposal is found to be unsuitable for the site. The application fails to demonstrate compliance with vehicular access and car parking standards, natural ventilation, solar access, landscaping controls, acoustic impacts and will have adverse amenity impacts on the neighbouring residential properties.
128. The proposal fails to satisfy the aims and objectives of State Environmental Planning Policy (Educational Establishments and Child Care Facilities) 2017.
129. The proposal has been assessed against the provisions of both Hurstville Local Environmental Plan 2012 and Hurstville Development Control Plan No. 1. The proposal fails to comply with the objectives of the zone and a number of objectives and controls in the DCP.
130. Inadequate information has been submitted with the Review application to enable a proper assessment of the proposal.
131. For the above reasons, the proposal is recommended for refusal.
DETERMINATION AND STATEMENT OF REASONS
Statement of Reasons
132. The reasons for this recommendation are:
· The proposal fails to satisfy the aims and objectives of State Environmental Planning Policy (Educational Establishments and Child Care Facilities) 2017.
· The proposal has been assessed against the provisions of both Hurstville Local Environmental Plan 2012 and Hurstville Development Control Plan No. 1. The proposal fails to comply with the objectives of the zone and a number of objectives and controls in the DCP.
· Inadequate information has been submitted with the Review application to enable a proper assessment of the proposal.
· The proposal is unsuitable for the site and would establish an undesirable precedent in the area. Its approval is not in the public interest.
Determination
133. THAT pursuant to Section 4.16(1) of the Environmental Planning and Assessment Act 1979 (as amended) the Georges River Local Planning Panel refuse development consent to Review Application REV2020/0001 for the fitout and use of the ground floor of an existing church building for use as an early childhood education centre for 34 children, landscaping and car parking works at Lot 2 in DP 405732 known as 977 Forest Road, Lugarno, for the following reasons:
1. Environmental Planning Instrument - Pursuant to Section 4.15(1)(a)(i) of the Environmental Planning and Assessment Act 1979, the proposed development is inconsistent with State Environmental Planning Policy (Educational Establishments and Child Care Facilities) 2017, Educations and Care Services National Regulations and the Child Care Planning Guidelines NSW 2017 as they relate to provisions in terms of the following:
a) Streetscape impacts;
b) Provision of natural light and ventilation;
c) Identifying a suitable site based upon compatibility with the existing streetscape character;
d) Disclosure of the educational programming and practice to be provided at the Facility;
e) Ensuring and illustrating that the development retains a landscaped character complimentary to the streetscape;
f) Ensuring and illustrating that outdoor open space areas have adequate solar access to 30% of the area year round;
g) Ensuring and illustrating that the internal floor space is appropriately designed to be naturally ventilated and natural lighting; and
h) Illustrating that the facility has a visible presence from the public road and safe/secure accessibility.
2. Environmental Planning Instrument - Pursuant to Section 4.15(1)(a)(i) of the Environmental Planning and Assessment Act 1979, the proposed development fails to demonstrate compliance with State Environmental Planning Policy No. 55 – Remediation of Land as a preliminary site contamination report was not submitted with the application.
3. Environmental Planning Instrument - Pursuant to Section 4.15(1)(a)(i) of the Environmental Planning and Assessment Act 1979, the proposed development is inconsistent with the objectives of the R2 Low Density Residential zone under Hurstville Local Environmental Plan 2012 in terms of the following:
a) The proposal does not ensure a high level of residential amenity is achieved and can be maintained, and
b) Visual amenity of the site is not enhanced through landscaping in keeping with the landscaped residential setting of the site.
4. Development Control Plan - Pursuant to Section 4.15(1)(a)(iii) of the Environmental Planning and Assessment Act 1979, the proposed development is inconsistent with the provisions of Hurstville Development Control Plan No. 1 with respect to:
a) Section 3.1 Car Parking – insufficient car parking, vehicular access and pedestrian safety are provided on site for a child care centre use and church operating concurrently.
b) Section 3.5 Energy Efficiency – insufficient solar access and natural ventilation is available to the child care centre.
c) Section 5.3 Child Care Centres – the proposal does not comply with various specific requirements for child care centres.
5. Adequacy of Information - Pursuant to Section 4.15(1)(a)(iii) of the Environmental Planning and Assessment Act 1979, the proposed development fails to demonstrate compliance with relevant standards and controls in relation to:
a) Acoustic impacts on neighbouring properties;
b) Safe and adequate vehicular access and car parking;
c) Solar access and natural ventilation; and
d) Permissibility of the use on the site with regard to the existing approved uses.
6. Impacts on the Environment - Pursuant to Section 4.15(1)(b) of the Environmental Planning and Assessment Act 1979, the proposed development is likely to have an adverse impact on the following aspects of the environment:
a) Natural environment:
i. The proposal fails to provide adequate and consistent information in relation to the retention of the existing trees on the site and provision of additional landscaping on the site to maintain the landscaped residential setting of the site.
b) Built environment:
i. The proposal fails to adequately demonstrate the building is suitable for the use of child care centre.
7. Suitability of Site - Pursuant to Section 4.15(1)(c) of the Environmental Planning and Assessment Act 1979, the site is not considered suitable for the proposed development for the following reasons:
a) The proposed siting and design of the outdoor play structure and acoustic fence results in unnecessary visual bulk and scale which results in an adverse impact to the built environment. Additionally an inadequate setback and screen landscaping is proposed adjacent to the acoustic fence.
8. Public interest - Pursuant to Section 4.15(1)(e) of the Environmental Planning and Assessment Act 1979, the proposed development is not considered to be in the public interest and is likely to set an undesirable precedent within the locality.
Appeal Rights - Part 8 (Reviews and appeals) of the Environmental Planning and Assessment Act 1979 confers on an applicant who is dissatisfied with the determination of the application a right of appeal to the Land and Environment Court of New South Wales.
|
Attachment ⇩1 |
Site Plan - 977 Forest Rd Lugarno |
|
Attachment ⇩2 |
Elevations - 977 Forest Rd Lugarno |
|
Georges River Council - Georges River Local Planning Panel (LPP) - Thursday, 5 March 2020 LPP007-20 977 Forest Road Lugarno [Appendix 1] Site Plan - 977 Forest Rd Lugarno |
Page 77 |
|
Georges River Council - Georges River Local Planning Panel (LPP) - Thursday, 5 March 2020 LPP007-20 977 Forest Road Lugarno [Appendix 2] Elevations - 977 Forest Rd Lugarno |
Page 78 |
|
Georges River Council – Local Planning Panel Thursday, 5 March 2020 |
Page 79 |
REPORT TO GEORGES RIVER COUNCIL
LPP MEETING OF Thursday, 05 March 2020
|
LPP Report No |
LPP008-20 |
Development Application No |
DA2017/0408 |
|
Site Address & Ward Locality |
655-659 Princes Highway Blakehurst Blakehurst Ward |
||
|
Proposed Development |
Demolition of all structures, site consolidation and the construction of shop top housing development including three (3) retail tenancies and a residential flat building containing a total of 50 apartments with basement car parking for 118 vehicles, roof top communal open space and associated site works |
||
|
Owners |
Cro Developments |
||
|
Applicant |
Cro Developments |
||
|
Planner/Architect |
Planning Ingenuity and Peter Dunn Architects |
||
|
Date Of Lodgement |
14/09/2017 |
||
|
Submissions |
Nine (9) submissions to the original proposal with a submission containing 39 signatures and a further three (3) submissions to the latest amended plans. |
||
|
Cost of Works |
$20,510,837 |
||
|
Local Planning Panel Criteria |
The development falls within the requirements of State Environmental Planning Policy, Design of Residential Flat Development. The application has also received more that ten (10) unique submissions. |
||
|
List of all relevant s.4.15 matters (formerly s79C(1)(a)) |
Environmental Planning and Assessment Act 1979, Environmental Planning and Assessment Regulation 2000, State Environmental Planning Policy No 55 – Remediation of Land, State Environmental Planning Policy No 65 – Design Quality of Residential Apartment Development, State Environmental Planning Policy (Building and Sustainability Index: 2004), State Environmental Planning Policy (Infrastructure) 2007, State Regional Environmental Plan No 2 – Georges River Catchment, State Environmental Planning Policy (Vegetation in Non-Rural Areas) 2017, Draft Environment State Environmental Planning Policy, Draft State Environmental Planning Policy –Remediation of Land Kogarah Local Environmental Plan 2012 Kogarah Development Control Plan 2012 |
||
|
List all documents submitted with this report for the Panel’s consideration |
Statement of Environmental Effects – Planning Ingenuity Amended Architectural Plans – Peter Dunn and AssociatesUpdated, Traffic Impact Assessment – Terraffic P/L Landscape Plan – Stuart Noble Associates Ecological Assessment – Cumberland Ecology Updated Clause 4.6 Statement – Planning Ingenuity |
||
|
Report prepared by |
Senior Development Assessment Planner |
||
|
|
Summary of matters for consideration under Section 4.15 Have all recommendations in relation to relevant s4.15 matters been summarised in the Executive Summary of the assessment report? |
Yes |
|
Legislative clauses requiring consent authority satisfaction Have relevant clauses in all applicable environmental planning instruments where the consent authority must be satisfied about a particular matter been listed and relevant recommendations summarised, in the Executive Summary of the assessment report? |
Yes |
|
Clause 4.6 Exceptions to development standards If a written request for a contravention to a development standard (clause 4.6 of the LEP) has been received, has it been attached to the assessment report? |
Yes The proposal exceeds the height (Clause 4.3 Height of Buildings) |
|
Special Infrastructure Contributions Does the DA require Special Infrastructure Contributions conditions (under s7.24)? |
Not Applicable |
|
Conditions Have draft conditions been provided to the applicant for comment? |
No the application is recommended for refusal and the refusal reasons can be viewed when the report is published. |
|
Site Plan
The subject site outlined red |
Executive Summary
Proposal
1. Council is in receipt of a development application (DA2017/0408) which originally sought planning permission for site consolidation and the construction of a part eight (8), part seven (7) storey mixed use development containing fifty five (55) apartments, three (3) retail tenancies and basement car parking for one hundred and twenty one (121) vehicles with access off a new service lane, a rooftop area of communal open space and associated landscaping and site works at the subject site being 655-659 Princes Highway, Blakehurst. A photomontage of the original scheme is shown in Figure 1.

Figure 1: Photomontage of the proposed development as originally proposed (courtesy Peter Dunn Architects)
2. The proposal has been amended on two occasions. On 6 June 2019 the Applicant amended the design by reducing the number of units from fifty five (55) to fifty three (53) with a total reduction in the overall floor space from 6,663sqm to 6,354sqm to now be compliant with the maximum FSR of 2.5:1. The design included changes to accommodate the RMS required road widening acquisition along the Princes Highway. The amendments included an additional area of rooftop as communal open space, and removed the two (2) points of access at the rear, making the rear a service lane as the only point of access. The photomontage of this amended scheme is provided at Figure 2.

Figure 2: Photomontage of the amended development (first set of amended plans May 2019) (courtesy Peter Dunn Architects)
3. The first set of amended plans were reviewed by Council Officers and there were still concerns relating to the architectural treatment and merit of the building and the amount and degree of exceedance with the height limit. On 26 September 2019 Council wrote to the Applicant outlining the main planning and environmental issues which included the following;
- The architectural design of the building along Princes Highway required further refinement and improvement. The enclosure of balconies acting as winter gardens was considered to add unnecessary visual bulk.
- The Gross Floor Area (GFA) calculations required to be updated to include enclosed balcony areas and ensure all areas within the building were included in accordance with the definition of GFA in the Kogarah LEP.
- The design of the proposed rear service lane was of concern given its design is not at grade and its inclusion will remove the existing trees onsite.
- The proposed removal of the significant and mature trees onsite required further justification. An Ecological report was required to consider the status of the Sydney Blue Gum (Eucalytus Saligna) as it could potentially be part of a threatened and Endangered Ecological Species (EEC).
4. The Applicant made further amendments to the design and lodged the modified plans on 23 October 2019 (these plans are identified as Issue 3). The changes that have been made include the following;
o The height of the building has been reduced by one (1) storey.
o Improving the appearance and articulation of the building in particular the front façade facing Princes Highway.
o Increasing the amount of soft landscaped area within the central courtyard.
o Increasing the separation distances between the two buildings onsite by increasing the central area of communal open space.
o Reduction in the overall density from 53 units to 50 units.
o Reduction in the GFA to be below the 2.5:1 maximum.
5. The most recent plans are relied on as part of this assessment. A photomontage of the latest scheme is provided as Figure 3 below.
Figure 3: Photomontage of the proposed development as recently amended (October 2019 Issue 3) (courtesy Peter Dunn Architects)
State Environmental Planning Policy – State and Regional Development 2011 (SRD SEPP)
6. The proposed development was originally classified as “Regional” development as it had a Capital Investment Value (CIV) of $20,510,837. This exceeded the $20 million threshold as outlined in Clause 2 of Schedule 7 of the State Environmental Planning Policy (State and Regional Development) 2011 for this type of development at the time of lodgement. The CIV threshold pursuant to the SEPP increased to $30 million on 18 October 2017 as a result of the Environmental Planning and Assessment Amendment Bill 2017 being passed. Given the application was lodged prior to the Bill being passed the previous CIV provisions applied.
7. However, Planning Circular (PS 10-008) issued 10 May 2010 defines the Capital Investment Value and clearly states that GST is excluded as part of the CIV. The application was accompanied by a detailed Quantity Surveys report prepared by MMD Construction Consultants and the total CIV included GST. By excluding the GST the CIV value of the project will be $18,646,215 which is below the $20million threshold. As a result the assessment of the application is therefore delegated to the Local Planning Panel. This was confirmed in writing by the South Sydney Regional Planning Panel Secretariat on 15 January 2020.
Site and locality
8. The subject site comprises of four (4) parcels of land known as 655-659 Princes Highway, Blakehurst. 655 Princes Highway is legally known as Lot 4 DP13988. Existing onsite is a two storey commercial/retail brick building with driveway access along the northern side off the Princes Highway with access to a rear brick garage. This site is a rectangular shaped allotment with a frontage of 13.41m to Princes Highway, depth of 49.96m and total site area of 673.7sqm.
9. The Applicant originally relied on an outdated Survey Plan dated 25 February 2013 prepared by Burton and Field Surveyors. Council’s Intramap system includes an updated Survey Plan prepared by Paul Davis-Raiss, dated 8 August 2018 which was formally registered on 13 September 2018. The Applicant lodged an updated survey which was amended on 24 October 2018 to capture the proposed road acquisitions and dedications along the of Princes Highway frontage required by RMS (refer to Figure 4 below). This survey plan was submitted with the second set of amended plans which ensured the building is now sited to consider the RMS road dedication and required works along Princes Highway. The survey was prepared by Burton and Field and dated 25 February 2013 with the boundary dimensions adjusted (the survey reference details remained unaltered).
10. The updated survey is relevant when considering the three (3) allotments known as 659 Princes Highway. These remaining three (3) allotments are known as Lots 29, 30 and 31 in DP1246418 and have respective areas of 654.7sqm, 624sqm and 597sqm. These three allotments have restrictions on their title identifying parts of the front of the site as an area to be acquired by RMS and dedicated as public road under Section 10 of the Roads Act, 1993 after any construction is completed on site. 659 Princes Highway was previously occupied by a Caltex Service Station however the site has been remediated and a Site Validation Report accompanies the application. These sites are currently vacant as can be seen in the site plan.

Figure 4: Extract from the updated survey plan showing the subject sites (courtesy Burton and Field February, 2013 with updated boundary dimensions)
11. The total site area of the subject site is 2,549.4sqm.
12. The site adjoins smaller scale residential developments to the west; to the east is Todd Park and a Caltex Petrol Station located on the corner of Princes Highway and Bunyala Street. To the north are smaller scale two storey retail/commercial properties fronting Princes Highway with a new seven storey shop top housing development nearing completion at 621-635 Princes Highway, Blakehurst. To the south is Church Street Reserve which includes a public car park. The locality comprises of a mixture of land uses.
Zoning and Kogarah LEP 2012 (KLEP) Compliance
13. The site is zoned B2 Local Centre and the proposed “shop top housing” and “residential flat building” development is permissible pursuant to the provisions of the Kogarah Local Environmental Plan 2012 (KLEP).
14. The proposal meets the definition of a “residential flat building” (RFB) which is “a building containing 3 or more dwellings, but does not include an attached dwelling or multi dwelling housing” for the rear section of the development and the front part of the building facing Princes Highway is defined as “shop top housing” which is defined as “one or more dwellings located above ground floor retail premises or business premises”. Both land uses are permissible within the zone. The proposal also satisfies the objectives of the B2 zone. However the rear RFB could also be considered as “shop top housing” given that the building sits above some retail parking and the loading dock area it could be considered as fulfilling this definition.
15. The site has a height limit of 21m in accordance with the provisions of Clause 4.3 of the KLEP. The height of the building has been reduced however still exceeds the height limit. The application is accompanied by a Clause 4.6 Statement which seeks to justify the exceedance of the control. The variation to the height control comprises of the lift overrun, pergola feature on the roof, planter boxes and WC which are structures associated with the rooftop area of communal open space. A detailed assessment of the Clause 4.6 Statement is provided later in this report. In summary, the variation is considered to be generally acceptable however the Clause 4.6 Statement cannot be supported as there is a lack of appropriate information provided in justifying that the variation satisfies the objectives of the height control. There is a lack of evidence produced to ensure there are no amenity impacts generated by the non-compliance. Unfortunately in this case the Clause 4.6 statement is not considered to be well-founded.
16. The floor space ratio (FSR) for the site is 2.5:1 in accordance with Clause 4.4 of the KLEP. Originally the floor space exceeded the maximum Floor Space Ratio control. Council clearly stipulated that it will not support any exceedance in the GFA. The development was modified on two occasions and is now compliant with the maximum GFA being 2.47:1 which is below the max FSR.
State Environmental Planning Policy
17. The proposal has been considered to be satisfactory in regards to the following policies which have been considered in respect to the application:
· Environmental Planning and Assessment Act 1979.
· Environmental Planning and Assessment Regulation 2000.
· State Environmental Planning Policy No 55 – Remediation of Land.
· State Environmental Planning Policy No 65 – Design Quality of Residential Apartment Development.
· State Environmental Planning Policy (Building and Sustainability Index: 2004).
· State Environmental Planning Policy (Infrastructure) 2007.
· State Regional Environmental Plan No 2 – Georges River Catchment.
· State Environmental Planning Policy (Vegetation in Non-Rural Areas) 2017.
18. A detailed assessment of the proposal against the provisions of these policies is provided in the body of this report.
Outstanding Planning and Environmental Issues
19. At the time of preparing this report there were a series of unresolved issues and insufficient information provided in order to assess the proposal. The following issues remain outstanding;
· Transmission lines exist at the front of the site along the Princes Highway. These are managed and owned by State Rail as they are classed as rail infrastructure. State Rail concurrence is required in accordance with the Infrastructure SEPP to ensure the location of the building and its design, construction and ongoing use does not interfere with the operation of these lines. A series of plans, a Blow Out report, and additional information that was initially required by State Rail has been submitted for their consideration. As of Thursday 13 February 2020 State Rail provided the Applicant with a register of outstanding matters that need to be addressed and then re-referred to State Rail’s Engineers to ensure compliance is achieved. Given the sensitive nature of this matter concurrence is required prior to determination being issued, given the time delays to date Council needs to determine the matter.
· Roads and Maritime Services (RMS) were also notified of the proposed development in accordance with the provisions of the Infrastructure SEPP as the development fronts the Princes Highway which is a classified road. RMS have acquired a small section of the Site for future road widening purposes and have provided draft plans for the Applicant to include as part of any future design so that the road widening is catered for. Amended details were submitted to RMS for their concurrence. To date no response from this agency has been received.
· 659 Princes Highway was a former service station and the site has, to date, been remediated and validated. Council’s Environmental Services Unit has confirmed that the validation and remediation has occurred and is satisfactory. However no contamination details have been provided for the building and land at 655 Princes Highway which forms part of this development site. In accordance with the provisions of SEPP 55 a Phase 1 contamination report needs to be prepared to assess the degree (if any) the site is affected. The report will confirm the site is clear of any contamination or may require further detailed assessment to occur. Prior to determination the consent authority needs to be satisfied that the site is suitable for its intended use. This report has not been received. Given the length of time the application has been under assessment no further extensions in time have been provided.
· The Clause 4.6 Statement which was amended and updated in December 2019 to address the changes in the height and density of the development. The statement is not considered to be well founded as the statement does not reflect the accurate variations in the height control and fails to provide a clear, accurate and supportable argument in respect to degree of non-compliance. The report fails to justify that the breaches and non-compliance satisfies the objectives of the height control (Clause 4.3) in KLEP.
· In terms of the overall built form and massing the most recent design is considered to be satisfactory and reflect a modern aesthetic that is consistent with the anticipated form and scale for development in this area. The internal amenity of apartments is very good and the separation distances between apartments and neighbouring properties is considered acceptable and reasonable. One area of concern remaining is the transition of the rear building and its relationship to the small scale residential buildings to the west.
· Council’s Landscape Officer is not supportive of the removal of the mature trees that exist across the site/s and strongly suggests the retention of Trees 1, 4 and 5. There are no solid grounds to support the removal of these trees as they are in good condition and good vigour, form part of an existing green corridor and make a significant visual contribution to the streetscape and immediate surrounds. They also act as a buffer, screen and delineate the transition from the business zone to the residential zone immediately to the west.
20. Although the Design Review Panel was not supportive of the original design and first set of amendments, the Panel wanted to see an alternative built form. They were critical of the rear service lane and removal of the large Sydney Blue Gum (now identified as a Flooded Gum) and associated mature vegetation on site. The Panel felt the performance of the proposed internal communal courtyard would be poor as it would be largely overshadowed by both buildings. The DRP comments have been considered in detail and the final design has not been referred to the Panel as it is felt it still would not adequately address their concerns. The alternative built form that could be considered would be one single building on the site which is not considered the best design solution from a planning and design perspective. The two built forms substantially improve the amenity of apartments especially fronting Princes Highway as these are dual aspect apartments with two balconies and acoustic impacts are substantially improved by this layout and arrangement.
· The overall design changes to the front façade facing Princes Highway create a more harmonious and balanced building with strong, defined bays. There are several additional design changes that could be implemented to improve the aesthetics and visual appearance of the building and these could be conditioned if consent was to be granted. These issues are addressed in more detail in the SEPP 65 (ADG Table) section of the report.
Kogarah Development Control Plan 2013 (KDCP)
21. The provisions of Part B (General Controls) and Part D1 (Development in the B1 Neighbourhood Centres and B2 Local Centre zones) and Part D2 (Commercial Locality Guides) are applicable to this development as the site is located within the Blakehurst precinct. A detailed assessment of compliance with these provisions is outlined later in this report.
22. The built form in general is considered to be an acceptable urban design and planning response for this Site subject to the reconsideration of other issues (i.e. tree retention and the treatment and transition of the scale and form of the building at the rear). The proposal generally satisfies the applicable provisions contained within the Kogarah Development Control Plan (KDCP).
Submissions
23. In response to the public exhibition period, nine (9) submissions were received, in addition to a submission containing 39 signatories. The final amended plans were renotified and generated a further three (3) submissions. The issues raised in the submissions have been summarised as follows:
· Development exceeds permitted maximum building height and will establish a poor precedent for future development. The development is considered to be an overdevelopment of the site in terms of bulk and scale, and is not compatible with the low density character of surrounding development.
· The proposed scale and form of the development will detrimentally affect the small scale residential properties immediately to the west along Water Street and the development will overlook and overshadow these neighbouring homes.
· Traffic impacts:
o Significant traffic impacts will be created by the development on the surrounding road network. Existing traffic is extremely congested at the Water Street intersection and the development creating in excess of 121+ vehicles will increase this congestion and cause significant delays and traffic queuing.
o The traffic report prepared with the DA is not accurate and has referred to the old petrol station on the site which has not been in operation for over 10 years.
o The driveway entrance on Water Street is not located in an appropriate position as traffic is already queued up in this area in peak hours.
o Water Street is too narrow to accommodate a development of this scale;
o The development would impact upon the existing commuter/customer car park on Water Street as there would be no car parks available as they would be used by residents of the development;
o That the carpark on Water Street would be occupied by residents of the development and there would be no spaces available for customers of the nearby businesses as the Princes Highway is already a clearway along that section of road;
o That the development will require the closure of the pedestrian footpath on Princes Highway, how will customers parking in the Water Street carpark access the business along Princes Highway – there is no alternative access.
24. These issues have been addressed in greater detail later in this report.
Conclusion
25. Having regard to the matters for consideration Section 4.15 and Section 4.16(1)(a) of the Environmental Planning and Assessment Act 1979 and following a detailed assessment of the proposed application, DA2017/0408 is recommended for refusal as insufficient information has been provided. The reasons for refusal are referenced as the end of this report.
Report in Full
Site and Locality
26. The subject site comprises of four (4) allotments which are legally identified as follows;
· 655 Princes Highway – Lot 4 DP 13988
27. This site has an area of 673.7sqm and contains a traditional two storey commercial brick and fibro building with a detached garage structure at the rear. The property has a formal driveway along the northern side providing direct vehicular access to the rear of the site from Princes Highway.
The site is regular in shape with a frontage of 13.41m to Princes Highway and depth of 49.96m.
· 659 Princes Highway – Comprises of Lots 29, 30 and 31 in DP 1246418
28. These three (3) allotments have respective areas of 654.7sqm, 624sqm and 597sqm. Each allotment has a restriction on their title identifying parts of the front of the site as an area to be acquired by RMS and dedicated as public road under Section 10 of the Roads Act, 1993 after any construction is completed on site. The proposal has been designed to consider the required RMS dedications and RMS have confirmed formally that no objection is raised to the proposed development subject to the imposition of conditions.
29. These sites are currently vacant (previously the site accommodated a Service Station) with some small insignificant features on each such as a few low brick retaining walls. The most significant feature is the Sydney Blue Gum Tree which I located along the south west corner of the site.
30. Combined the site has a frontage of some 52.08m and varying depths of 47.99m to Water Street and 49.96m along the northern boundary with a total site area of 2,549.4sqm. The whole site has a gradual fall from the rear (west) to the front (east) by approximately 2m.

Photo 1: Subject sites when viewed from Water Street
To the east
31. Immediately to the east of the site is a Service Station located on the corner of Princes Highway and Bunyala Street, together with Todd Park.

Photo 2: Properties to the east of the site including Todd Park
To the west
32. Immediately to the west are a series of lower scale residential properties comprising predominantly of single and two storey dwelling houses and dual occupancy developments.
33. 3, 5 and 7 Water Street are a series of detached single storey dwelling houses with 1 Water Street located on the corner of Water and Vaughan Street comprising of a two storey detached dwelling house.
34. The properties along Vaughan Street at the rear of the subject site being 12, 14 and 16 Vaughan Street comprise of single storey detached weatherboard cottages.

Photo 3: 5 and 7 Water Street immediately to the west of the site
To the north
35. Properties immediately to the north comprise of mixed uses and commercial/retail tenancies which form part of the small Blakehurst Neighbourhood commercial centre.
36. This small scale centre comprises of a variety of shops and commercial/retail premises including two storey modern style shop top housing developments.
37. 621-635 Princes Highway comprises of a newly constructed and completed seven (7) storey “shop top housing” development which was approved on 11 May 2017 (DA2016/0157).

Photo 4: 655 Princes Highway and adjoining retail/commercial properties to the north within the small Blakehurst Commercial centre.
To the south
38. To the south of the site is Church Street Reserve which includes a designated public car park which accommodates some thirty (30) car parking spaces that are accessed off Water Street and Church Street.

Photo 5: Public car parking area to the south with access off Water Street and Church Street

Photo 6: Church Street Reserve to the south
39. The immediate locality comprises of a variety and diversity of land uses. The site is well located and accessible to a variety of large areas of open space including Carss Park and Todd Park and retail/commercial uses although the neighbourhood centre at present does not include a shopping centre or supermarket of a viable scale and size to accommodate the local community.
40. The proposed development includes a large retail/commercial tenancy which could introduce this land use. Alternatively the newly constructed shop top housing development at 621-635 Princes Highway may be able to accommodate or facilitate this use as it seems some of its spaces are still vacant.
41. The site is within close proximity to bus stops which provide direct access to the larger commercial centres such as Hurstville and Kogarah.
Proposal
42. The amended proposal seeks approval for the amalgamation of the existing sites and construction of a part six (6) part seven (7) storey “shop top housing” development and “residential flat building” designed as two separate built forms containing a total of fifty (50) apartments with two and a half levels of basement car parking accommodating one hundred and eighteen (118) car parking spaces, with access off Water Street through a service lane including roof top communal open space and associated landscaping and site works at the property known as 655-659 Princes Highway, Blakehurst.
43. The proposal has been amended and its design and layout improved. More specific details of the current design (based on Issue 3 plans) and layout are provided below.
Lower Basement Plan
· A total of fifty eight (58) car parking spaces allocated in the following way;
- 1 x visitor space No.11 which doubles up as a carwash bay.
- 57 x resident spaces (including 2 x accessible spaces, 2 x small car parking spaces (No.s 111 and 115)
· A designated motorbike parking area
· Three (3) lift lobbies
· Garbage and recycling room
· Four (4) x Individual storage areas
· Electrical and plant and pump rooms and
· Fire stairs towards.
Upper Basement Plan
· A total of forty six (46) car parking spaces allocated in the following way;
- 10 x visitor spaces
- 8 x retail spaces
· 28 x resident spaces (including 6 x accessible spaces)
· A designated motorbike parking area
· Secure bike storage room
· Bulky good storage area
· Rainwater tank
· Garbage and recycling room
· Three (3) lift lobbies
· Seven (7) x Individual storage areas
· Electrical and plant and pump rooms and
· Fire stairs.
Ground Floor Plan
· Vehicular access off the western side of the site via a newly designed service lane.
· Retail space No.1 with total GFA of 81sqm
· Retail space No.2 with a total GFA of 410sqm
· 2 x formal lift lobbies off Princes Highway
· Loading Dock with associated garbage holding bay
· Lobby No.3 with access off Water Street
· Stormwater detention tank
· Bicycle Parking areas and
· A total of fourteen (14) car parking spaces allocated in the following way;
- 13 x retail spaces (including 1 x small car space and 1 x accessible space)
- 1 x residential space
Level 1 Plan
· Building 1 (facing Princes Highway)
- 3 x 2 bedroom apartments
- 1 x 3 bedroom apartment
· Retail space No.3 with access off Water Street and includes a GFA of 35sqm
· Forty one (41) independent residential storage spaces
· Switch room, electrical substation
· Three lift lobbies
· Stormwater detention tank, switch room and plant rooms and
· Central courtyard space and landscaped area with direct access off Water Street.
Level 2 Plan
· Building 1 (facing Princes Highway)
- 3 x 2 bedroom apartments
- 1 x 3 bedroom apartment
· Building 2 (rear building)
- 5 x 1 bedroom apartments
- 3 x 2 bedroom apartments
Level 3 Plan
· Building 1 (facing Princes Highway)
- 3 x 2 bedroom apartments
- 1 x 3 bedroom apartments
· Building 2 (rear building)
- 3 x 1 bedroom apartments
- 2 x 2 bedroom apartments
- 2 x 3 bedroom apartments
Level 4 Plan
· Building 1 (facing Princes Highway)
- 3 x 2 bedroom apartments
- 1 x 3 bedroom apartment
· Building 2 (rear building)
- 1 x 1 bedroom apartments
- 3 x 2 bedroom apartments
- 1 x 3 bedroom apartment
· Three (3) separate garden terraces at the rear.
Level 5 Plan
· Building 1 (facing Princes Highway)
- 3 x 2 bedroom apartments
- 1 x 3 bedroom apartment
· Building 2 (rear building)
- 1 x 1 bedroom apartments
- 1 x 2 bedroom apartments
- 2 x 3 bedroom apartment
Level 6 Plan
· Building 1 (facing Princes Highway)
- 2 x 3 bedroom apartment
· Building 2 (rear building)
- 1 x 1 bedroom apartments
- 1 x 2 bedroom apartments
- 2 x 3 bedroom apartment
Level 7 Plan
· Three (3) separate of communal rooftop terrace area for common use.
· Photovoltaic solar panels located on the roof of the rear building.
The proposed fifty (50) residential apartments comprise the following mix:
· 11 x 1 bedrooms (22%);
· 25 x 2 bedrooms (50%) and;
· 14 x 3 bedrooms (28%)
Statutory framework
Environmental Planning and Assessment Act 1979 (EP&A) Act 1979
44. The proposal has been assessed and considered against the provisions of Section 4.15 of the Environmental Planning and Assessment Act 1979 (EP&A Act), the objects of the EP&A Act, and the principles of ecologically sustainable development as follows.
Objects of the EP&A Act
45. Consent authority is required to consider the objects in Section 1.3 of the EP&A Act when making decisions under the Act. Council has considered the object of the EP&A Act in the Table below and is satisfied that the proposal complies with all objects.
Table 1: Compliance with the objects of the EP and A Act
|
Objects of the EP&A Act |
Proposal |
Complies |
|
(a) to promote the social and economic welfare of the community and a better environment by the proper management, development and conservation of the State’s natural and other resources |
The proposal results in the urban infill development of a “shop top housing” development and a “residential flat building” within this neighbourhood business precinct that is currently in a process of transition to medium density developments. |
Yes |
|
(b) to facilitate ecologically sustainable development by integrating relevant economic, environmental, and social considerations in decision-making about environmental planning and assessment |
The design considers the principles of ESD. The building has been designed to comply with all BASIX commitments. |
Yes |
|
(c) to promote the orderly and economic use and development of land |
The development has been designed to largely satisfy the key planning controls for this site. The built form as proposed is considered to reflect the desired future character for development within the locality and for this precinct, subject to some further design changes and concurrences from government agencies. |
Yes |
|
(d) to promote the delivery and maintenance of affordable housing |
The development does not accommodate any affordable housing component as part of the scheme however it does include a mix of accommodation styles and types with eleven (11) smaller one bedroom units. |
Yes |
|
(e) to protect the environment, including the conservation of threatened and other species of native animals and plants, ecological communities and their habitats |
The site includes a large and significant Sydney Blue Gum Tree. Although sitting in isolation on the site it could be considered to be part of the remnant vegetation and part of the assemblage of trees along Church Street Reserve and if it forms part of this vegetation then it could be considered to be part of an EEC as the Sydney Blue Gum Forest is identified as a Threatened species. The Applicant has been requested to provide an ecological assessment of this tree and its association with adjoining vegetated areas. This report is forthcoming. |
Yes |
|
(f) to promote the sustainable management of built and cultural heritage |
The Site is not a designated Heritage Item nor is it located within a Heritage Conservation Area. |
Yes |
|
(g) to promote good design and amenity of the built environment |
This report assesses the proposal’s design and amenity against SEPP 65, the ADG Guidelines and KDCP.
Concerns were raised regarding the design of the original scheme and first set of amended plans. The massing, bulk, scale and proportions of the building were considered to be unacceptable. The current set of amended plans (Issue 3 plans) provide more verticality and balanced articulation to the front façade and reconsideration of the massing and reduction in scale by reducing the height of the building. This is considered to improve the visual appearance of the building when viewed from Princes Highway in particular. |
Yes |
|
(h) to promote the proper construction and maintenance of buildings, including the protection of the health and safety of their occupants |
The proposal will achieve this object by complying with Council’s recommended consent conditions relating to the construction phase of the development. |
Yes |
|
(i) to promote the sharing of the responsibility for environmental planning and assessment between the different levels of government in the State |
The proposal does not fall into the category of regionally significant development and therefore the Georges River Local Planning Panel is the consent authority.
|
Yes |
|
(j) to provide increased opportunity for community participation in environmental planning and assessment |
The submissions section of this report outlines Council’s public exhibition of the proposal, including an assessment and consideration of all public submissions.
The original plans and final set of amended plans were notified to adjoining properties in accordance with the advertising and notification requirements of the KDCP. |
Yes |
Section 4.15 Assessment
46. In accordance with Clause 4.15 of the Act the following assessment has been conducted;
(1) Matters for consideration—general In determining a development application, a consent authority is to take into consideration such of the following matters as are of relevance to the development the subject of the development application:
(a) the provisions of:
(i) any environmental planning instrument
47. The proposal has been considered under the relevant statutory provisions as per below:
o Environmental Planning and Assessment Act 1979.
o Environmental Planning and Assessment Regulation 2000.
o Greater Metropolitan Regional Environmental Plan No 2 – Georges River Catchment
o State Environmental Planning Policy No 55 – Remediation of Land.
o State Environmental Planning Policy No 65 – Design Quality of Residential Apartment Development.
o State Environmental Planning Policy (Building and Sustainability Index: 2004).
o State Environmental Planning Policy (Infrastructure) 2007.
o State Regional Environmental Plan No 2 – Georges River Catchment.
o State Environmental Planning Policy (Vegetation in Non-Rural Areas) 2017.
o Draft Environment State Environmental Planning Policy.
o Kogarah Local Environmental Plan 2012.
48. The development has been assessed against these provisions.
Draft Environment SEPP
49. The Draft Environment SEPP was exhibited from 31 October 2017 to 31 January 2018.
50. This consolidated SEPP proposes to simplify the planning rules for a number of water catchments, waterways, urban bushland, and Willandra Lakes World Heritage Property. The SEPP’s intent is to create a systematic and integrated approach for the protection and management of the natural environment across the State.
51. Changes proposed include consolidating the following seven existing SEPPs:
· State Environmental Planning Policy No. 19 – Bushland in Urban Areas
· State Environmental Planning Policy (Sydney Drinking Water Catchment) 2011
· State Environmental Planning Policy No. 50 – Canal Estate Development
· Greater Metropolitan Regional Environmental Plan No. 2 – Georges River Catchment
· Sydney Regional Environmental Plan No. 20 – Hawkesbury-Nepean River (No.2-1997)
· Sydney Regional Environmental Plan (Sydney Harbour Catchment) 2005
· Willandra Lakes Regional Environmental Plan No. 1 – World Heritage Property.
52. The proposed development will not affect the intentions of the Draft SEPP in relation to the management and protection of catchments, waterways, bushland or any protected areas. However, there are a series of mature, established and significant trees on site that are proposed to be removed and assessment of their condition and reasoning for their removal needs to be accounted for as part of this assessment.
53. The application was accompanied by an Aboricultural Assessment report prepared by TALC dated 2013. It acknowledged that there are six (6) trees existing on site, all of which will be affected by the proposed development. Figure 5 below shows the location of all the existing trees on site.

Figure 5: Location and siting of all existing trees on site (courtesy TALC, April 2014)
54. Tree No.1 is identified as a Sydney Blue Gum (Eucalyptus saligna) in all reports. This tree is classified as mature, in fair condition with no diseases and good vigour. This is a large and significant tree that provides a visual contribution to the immediate area. Much of the contribution this tree makes is accentuated by the fact the site is vacant and as such this feature is visually dominating.
55. The other five (5) trees on site are clustered and located on 655 Princes Highway. They include a Cheese Tree (T2) in poor condition, Avocado Tree (T3) in poor condition, 2 x Lemon Scented Gum Trees (T4 and T5) in fair condition and achieving heights of approximately 18m and a Mango Tree (T6) which is in poor condition. The trees that are rated poor are due to the supressed nature of the trees. The arborist assessment supports the removal of these trees as “it is considered that the amenity the trees provide is minimised due to the number of trees present within neighbouring lands and could be replaced through the replanting of trees, shrubs and ground covers as part of landscape works for the development”.
56. An updated Arboricultural Report was provided to Council dated 6 February 2018 prepared by TALC and provided some additional information as to why the Gum tree cannot be retained. The reasoning is based on the location of the service lane and basement being too close to the trunk of the tree/s, the Gum tree has “developed a spreading form due to its open growing location with production of a predominately horizontal branching habit.
Pruning in accordance with 4373-2007 “Pruning of Amenity Trees” of the tree to accommodate the elevation of development would remove 50% of the trees crown area introducing an imbalance further impacting upon the trees structural integrity.” The Arborist also believes the existing green environment will not be adversely affected by the removal of this tree.
57. Council’s Landscape Officer has reviewed the Arborist assessments and considered the visual qualities and character of the Sydney Blue Gum (Eucalyptus saligna) as significant and the amenity offered by this tree is high. Despite this species sitting essentially on its own it could form part of a remnant species as the site adjoins Todd Park and more immediately the Church Street Reserve which are areas of open space and include a number of trees that look to include similar species. The Scientific Committee, established by the Threatened Species Conservation Act, has made a Final Determination to list the Blue Gum High Forest in the Sydney Basin Bioregion, as a critically endangered ecological community in Part 2 of Schedule 1A of the Biodiversity Act, and as a consequence omit reference to the Blue Gum High Forest in Part 3 of Schedule 1 of the Act. Listing of critically endangered ecological communities is provided for by Part 2 of the Act. This tree may form part of an assemblage of trees that make up the EEC located at Todd Park or Church Street Reserve. Due to the potential significance of this tree the Applicant has been requested to prepare and submit an Ecological report which will detail the importance and provide a detailed assessment of the tree in respect to its immediate setting and current condition.
58. Cumberland Ecology has prepared an Ecological assessment of the proposed tree with their report dated 7 February 2020. One of the key findings of the report confirms that the tree in question is not a Eucalyptus saligna (Sydney Blue Gum) but in fact a Eucalyptus grandis (Flooded Gum). There is a fine distinction between the two species based on the fruit characteristics. The report states that the “Eucalyptus grandis (Flooded Gum) is distinct from Eucalyptus saligna (Sydney Blue Gum) in having fruit with four to five (predominately five) broad-triangular, incurved valves when dehisced. The latter species consistently has fruit with four narrow-acuminate, erect valves when dehisced.”
59. The ecological assessment has made a detailed assessment of the tree and its immediate environment and made the following conclusions:
· The tree in question was planted after 1943. In 1943 a structure was located where the tree now exists (refer to Figure 7 below). It was individually planted.
· This species is not endemic to the area and occurs more commonly in the North Coast in taller wet forests or rainforest margins. “As such this species is not considered to be naturally occurring within the subject land, or the adjoining Todd Park and Church Street Reserve”.
· OEH vegetation mapping has mapped an area of the Church Street Reserve as Coastal Enriched Sandstone Dry Forest. This community is a tall open eucalypt forest with an understorey of dry sclerophyll shrubs with ferns…it is commonly encountered on the upper slopes and dry gullies of Sydney Urban Areas.
· Trees and vegetation within Todd Park comprises of non-endemic species and exotic species.

Figure 7: Location and siting of all trees on site as existing (left) and in 1943 (right) (courtesy Cumberland Ecology, February 2020)
60. Based on the conclusions of the Ecological assessment the existing tree does not form part of a Threatened species, namely the Blue Gum High Forest and the tree is not endemic to the area. Given these findings its removal is warranted and the provision of a minimum of three (3) street trees along Water Street will compensate for the loss of some existing vegetation on site.
61. Council’s Landscape Officer has reviewed this report and all the arboricultural assessments conducted in association with this application. Like the Design Review Panel, Council’s Landscape Officer does not support the removal of several trees across the site and believes the assessments do not adequately justify their removal. This issue is discussed in greater detail later in this report however in summary the following concerns are raised;
· The existing trees on site are in very good condition and good vigour.
· The trees add to the visual quality and amenity of the streetscape and immediate area.
· The trees form part of an existing green corridor and canopy linkage.
· There is limited potential for compensatory planting across the site given the development will not cater for any substantial deep soil areas.
· Trees No.1, 4 and 5 should be retained and form part of the redevelopment of the site/s.
Greater Metropolitan Regional Environmental Plan No 2 – Georges River Catchment
62. The site is within the area affected by the Greater Metropolitan Regional Environmental Plan No 2 – Georges River Catchment. The proposal, including the disposal of stormwater, is considered to be consistent with the Council’s requirements for the disposal of stormwater in the catchment. The site is not located within a flood prone area.
63. All stormwater from the development will be managed by the proposed stormwater system and will be treated in accordance with Council’s Water Management Policy and would therefore satisfy the relevant provisions of the Deemed State Environmental Planning Policy – Georges River Catchment.
64. Council’s Development Engineers have not raised any issues with the proposed method of stormwater disposal subject to the imposition of standard conditions if approval is to be granted.
State Environmental Planning Policy no. 55 – Contamination of Land (SEPP 55)
65. SEPP 55 applies to the land and Clause 7 stipulates that a consent authority must not consent to the carrying out of any development on land unless it has considered matters for consideration contained in Clause 7.
66. 659-661 Princes Highway, Blakehurst which comprises of three allotments used to be a Caltex Service Station and in 2010 the site was formally remediated and site validation works undertaken by Coffey Environment Pty Ltd. A Site Validation Report accompanies the site which was prepared by Coffey Environments Pty Ltd and dated 30 September 2010.
67. Remediation of the site included the removal of the existing five (5) UST’s, associated pipework and contaminated soils. Validation of the site was completed through the collection and laboratory analysis of representative soil samples from excavation faces, text pits and stockpiled soils. The report concluded that “the results of the site validation program indicated that identified soil contamination has been excavated from the site and the site validated”. Council’s Coordinator Environmental Health is satisfied with this process.
68. The process of validation included soils excavated from the site which were stockpiled and classified to enable either off-site disposal or on-site re-use. All stockpiled soils were assessed as being suitable for re-use to backfill excavations on-site. Stockpiles were disposed of as either General Solid Waste in accordance with the Waste Classification Guidelines (NSW, DECC, 2009) or disposed of as Hazardous Waste. Imported fill soils were similarly classified to ensure their suitability on site.
69. In terms of groundwater, tests found that most concentrations of the contaminants in the water were within acceptable levels with the exception of traces of copper and zinc captured in a few monitoring wells. Coffey stated that in relation to these contaminants “concentrations of copper and zinc are considered likely to be representative of naturally occurring concentrations in regional groundwater rather than on-site activities associated with the former occupation of the site as a service station.”
70. The report concluded that “based on the results of soil and groundwater validation works, Coffey Environments considers that the site has been remediated to a standard which does not prevent the use of the property for any use expressly permitted under the current zoning of the property which is 3(a) Business, permitting the development of child care centres.”
71. In 2010 the site was zoned Business 3 (a) - Business (Local Centre) Zone pursuant to the provisions of the Kogarah Local Environmental Plan 1998. The objectives of the zone were to “provide opportunities for retail and other business development and to encourage multi-unit housing to be developed in conjunction with businesses, where appropriate”. This zone permitted a variety and mixture of land uses including residential uses, child care centres and shop top housing. The KLEP 1998 was comprehensively updated in 2012 and the Kogarah LEP 2012 zoned the site B2 Local Centre which is very similar to the previous Business 3 (a) zone. The validation results would still be applicable to this zone as similar uses are permissible.
72. 655 Princes Highway includes a two storey traditional commercial building with a detached brick garage structure at the rear. The historical uses associated with this site are unlikely to generate any contamination but given it adjoined a Service Station some contaminants could have infiltrated this site. The Applicant has approached EI Australia to prepare a Detailed Site Investigation. On 7 February 2020 correspondence confirms that the preparation of this report is ongoing and that it is unlikely that the site is contaminated given the adjoining site has been remediated. At this stage with insufficient information in relation to this matter it is unclear whether No.655 Princes Highway is suitable for its intended land use and as such does not satisfy the provisions and requirements of SEPP 55.
Draft State Environmental Planning Policy – Remediation of Land
73. The Department of Planning and Environment (‘DPE‘) has announced a Draft Remediation of Land SEPP (‘Draft SEPP‘) which will repeal and replace the current State Environmental Planning Policy No 55—Remediation of Land (‘SEPP 55‘).
74. The main changes proposed include the expansion of categories of remediation work which requires development consent, a greater involvement of principal certifying authorities particularly in relation to remediation works that can be carried out without development consent, more comprehensive guidelines for Councils and certifiers and the clarification of the contamination information to be included on Section 149 Planning Certificates.
75. Whilst the proposed SEPP will retain the key operational framework of SEPP 55, it will adopt a more modern approach to the management of contaminated land.
76. As discussed above the proposal fails to satisfy the provisions of SEPP 55 and therefore will also fail to satisfy the provisions of the Draft Remediation of Land SEPP.
State Environmental Planning Policy – Building Sustainability Index BASIX– 2004 (SEPP BASIX) 2004
77. The objectives of this Policy ensure that the performance of the development satisfies the requirements to achieve water and thermal comfort standards that will promote a more sustainable development.
78. A current BASIX (Building Sustainability Index) certificate No.999501M was prepared and is dated 21 February 2020 which assesses the most recent set of amended plans (Issue 3) against the provisions of BASIX and found the proposal to be compliant.
State Environmental Planning Policy – Infrastructure 2007 (SEPP) Infrastructure 2007
79. The aim of the Policy is to facilitate the effective delivery of infrastructure across the State.
Clause 101 (Development with frontage to a Classified Road)
80. Division 17, Subdivision 2 of the Infrastructure SEPP relates to Development that is in or adjacent to road corridors and road reservations. The Pacific Highway is a Classified Road and in accordance with Clause 101 concurrence from the Roads and Maritime Services Authority (RMS) is required.
81. The original application was referred to RMS and the agency’s initial response on 24 October 2017 stated that “The subject property is affected by the proposed Princes Highway from King Georges Road to Torrens Street Tidal Flow Removal Project, as shown in PINK on the attached Sketch – "5R4948".
However, Roads & Maritime would raise no objections on property grounds to the submitted application provided any new building or structures (other than pedestrian footpath awnings), together with any improvements integral to the future use of the site, are erected clear of the land required for road (unlimited in height or depth).
The submitted proposal does not comply with the Roads and Maritime requirement that any proposed improvements (including buildings & structures) in respect of a development application must be clear of the land required for road (unlimited in height or depth). Roads and Maritime would be prepared to further consider the subject application upon receipt of amended plans that clearly show all proposed buildings & structures, together with any improvements essential to the future use of the site are not within the land required for a road (unlimited in height or depth).”
82. RMS have acquired small sections of the front of 659 Princes Highway for road widening purposes (refer to the most up to date Survey plan provided at figure 4). The original design did not facilitate or include the road dedication. RMS in its response also provided the applicant with detailed plans of the proposed road works and associated design that is required to be accommodated by any development on the subject site (refer to plan at Figure 8).
83. The most recent amended plans (Issue 3) have included the design changes and acquisition requirements of the RMS in accordance with their requirements. These plans were referred to RMS. To date no response has been received and formal concurrence from RMS is required in accordance with the Infrastructure SEPP provisions. As such Clause 101 of the Infrastructure SEPP has not been satisfied.

Figure 8: RMS Design Plan for the road dedication at the subject site (courtesy RMS, 2018)
Clause 102 (Impact of road noise or vibration on non-road development)
84. Clause 102 of the Infrastructure SEPP relates to impact of road noise or vibration on non-road development. This clause applies to development for any of the following purposes that is on land in or adjacent to the road corridor for a freeway, a tollway or a transit way or any other road with an annual average daily traffic volume of more than 20,000 vehicles (based on the traffic volume data published on the website of RMS) and that the consent authority considers is likely to be adversely affected by road noise or vibration on residential accommodation.
85. Princes Highway generates traffic volumes of over 40,000 vehicles daily near the subject site and as such the development will need to consider these acoustic impacts. A Noise Impact Assessment was prepared by Acoustic Logic and dated 4 September 2017. Although the development scheme has been redesigned the built form and general layout has remained unaffected and the original acoustic report and its findings is considered to still be applicable to the currently amended scheme. The main acoustic standards that need to be met by the development are stipulated in both the KDCP and the Infrastructure SEPP. Clause 102(3) of the Infrastructure SEPP states the following;
If the development is for the purposes of residential accommodation, the consent authority must not grant consent to the development unless it is satisfied that appropriate measures will be taken to ensure that the following LAeq levels are not exceeded:
(a) in any bedroom in the residential accommodation—35 dB(A) at any time between 10 pm and 7 am,
(b) anywhere else in the residential accommodation (other than a garage, kitchen, bathroom or hallway)—40 dB(A) at any time.
86. Noise monitoring was conducted on site with three (3) acoustic monitoring locations selected being one location point being the closest point along the boundary with 7 Water Street, the front of the site along the Princes Highway frontage and one central location (refer to Figure 9 for exact locations). Loggers reported anticipated background noise impacts (predominantly attributed to traffic noise) exceeding 72dB(A) for a 24 hour period. The report concluded that noise transmission through window and door openings is the greatest whilst transmission will not be significant through masonry elements.

Figure 9: On site noise logger locations (courtesy Acoustic Logic, 2017)
87. In order for the proposal to comply with the required standards, some additional construction treatments and finishes will be required to reduce acoustic impacts internally within apartments. Construction measures to be implemented include double glazing to windows, increasing door thicknesses and seals, specific requirements for roof design and materials. The recommendations of the acoustic report will be included as a condition if consent was recommended.
88. In relation to mechanical ventilation the report states that “With respect to natural ventilation of the dwelling, the NSW Department of Planning document “Development near Busy Roads and Rail Corridors - Interim Guideline” dictates that:
If internal noise levels with windows or doors open exceed the criteria by more than 10dB(A), the design of the ventilation for these rooms should be such that occupants can leave windows closed, if they so desire, and also to meet the ventilation requirements of the Building Code of Australia.”
89. On that basis with windows open, the allowable internal noise goal of 10dB(A) higher than when the windows are closed is permitted and this translates to an allowable level of 45dB(A) in bedrooms and 50dB(A) in living rooms. Internal spaces within the rear building facing Water Street will achieve the levels as these spaces will be screened and buffered by the front building, however, habitable spaces facing Princes Highway will exceed the noise limits and will need to rely on mechanical ventilation. The building has been designed to consider the impacts of noise from Princes Highway and as a result the Applicant has created “winter gardens” or enclosed balconies in the form of sunrooms.
90. These spaces adjoin the living room and bedrooms to some apartments at most levels. These spaces could potentially improve the internal amenity of spaces within apartments but they will impact on the visual bulk and appearance of the building when viewed from the Princes Highway. In addition, these elements need to be included as floor space in accordance with the Gross Floor Area (GFA) definition within the KLEP. There are a number of concerns with the design of these areas, namely;
· The enclosed balconies are divided (partitioned) into two separate spaces being a “winter garden” and an “enclosed balcony” which reduces the size and limits the functionality of the space.
· The enclosed balconies become protrusions to the built form and increase the visual bulk.
· The disadvantage to the design is that there is additional glazing required and limits the opportunity to have access to an open style balcony, even if most of the time the internal spaces may rely on mechanical ventilation. Flexibility in the use of this space is restricted.
· The spaces may assist in improving noise transmission but the reliance on mechanical ventilation is not reduced by the implementation of these enclosed balconies.
· Most of the apartments facing Princes Highway have a dual orientation with a small balcony off the Princes Highway frontage and the rear of the units looking into the central courtyard.
91. For the reasons noted above, it is not considered that these design features add value to the design nor do they improve internal amenity of the apartments. It is suggested if approval is considered that a condition be imposed that the “enclosed balconies” are opened up and not enclosed with the winter gardens to remain. This will further improve the visual appearance of the façade and create indentations in the building which will reduce the visual bulk and improve articulation.
92. The noise transmission impacts and reliance on mechanical ventilation will remain the same as anticipated by the acoustic report. In order to minimise impacts of noise transmission to adjoining residential properties to the west, and if the development is recommended for approval a condition will require the location of mechanical ventilation to be sensitively sited away from common residential boundaries. In addition a condition should require validation and certification that the recommendations of the acoustic report have been implemented prior to the issuing of an Occupation Certificate.
Clause 103 (Excavation in or immediately adjacent to corridors)
93. The proposed development relies on two levels of basement parking which amounts to over 6m of excavation along all boundaries. Given the extent of earthworks, Clause 103 of the Infrastructure SEPP is relevant to consider. Subclause 2 of the SEPP states that;
“Before determining a development application (or an application for modification of a consent) for development to which this clause applies, the consent authority must—
(a) give written notice of the application to RMS within 7 days after the application is made, and
(b) take into consideration—
(i) any response to the notice that is received within 21 days after the notice is given, and
(ii) any guidelines that are issued by the Secretary for the purposes of this clause and published in the Gazette, and
(iii) any implications of the ground penetration for the structural integrity of the road or project, and
(iv) any cost implications for the road or project of the ground penetration.
(3) The consent authority must provide RMS with a copy of the determination of the application within 7 days after the determination is made.”
94. RMS has not provided formal concurrence to the development and to date the proposal fails to satisfy Clauses 101 and 103 of the Infrastructure SEPP.
Clause 86 (Excavation in, above, below or adjacent to rail corridors)
95. Whilst the development is not adjoining a rail corridor in accordance with Clause 86 of the Infrastructure SEPP it adjoins rail infrastructure and assessment in accordance with Clause 45 is required.
96. This section of the Princes Highway includes a 33kV High Voltage Aerial Transmission Line which immediately adjoins the proposed development and is operated by RailCorp.
97. RailCorp has provided State Rail with delegation to act as the electricity supply authority and to process the review for this development application which adjoins the rail electricity power line. State Rail required the following information from the Applicant;
· Cross Section drawing showing the proposed development in relation to the Sydney Trains electrical asset, including: ground surface, sub soil profile, electrical asset (High Voltage aerial line/conductors and pole); proposed basement excavation and structural design. All horizontal and vertical measurements must be accurate to Sydney Trains satisfaction.
· Pending review of the above cross section, Sydney Trains may also require a blow-out report for review. The blow-out report must show the proposed development in relation to the Sydney Trains electrical asset, blow-out design and calculations, and compliance with all relevant Safety and Electrical Standards including AS7000 and ISSC 20, Work Cover requirements and the Safe Approach Distances (SADs) in the Sydney Trains Document titled “SMS-06-GD- Working Around Electrical Equipment”. In addition, the report must take into account the construction methodology for the proposed development, including unloading of building materials and/use of equipment.
98. The Applicant provided the additional information to satisfy State Rail standards and therefore should not adversely impact upon the electrical asset. However, to date their concurrence has not been received and therefore the proposal does not satisfy the provisions of Clause 86 of the Infrastructure SEPP.
99. On the 4 February 2020 State Rail confirmed that they were still in the process of assessing the information. The one issue State Rail raised was the scheduling of proposed construction works at the site and timing of the RMS Tidal Flow road works. If HV (high voltage) lines are still active when works are to begin on site that will influence the need for any isolation of the Sydney Trains/RailCorp lines. If the lines are already removed by RMS when the development site works begin, then there is no need for isolation. Further correspondence received by Council on 6 February and on 13 February 2020 confirmed State Rail has progressed the matter, however are waiting on the Applicant to address the additional plans and documentation that is required.
100. To date no conditions or formal concurrence has been provided. Given the technical issues, concurrence in this case cannot be assumed.
Subdivision 2 Development likely to affect an electricity transmission or distribution network
101. Clause 45 of the Infrastructure SEPP applies to development that “involves penetration of ground within 2m of an underground electricity power line or an electricity distribution pole or within 10m of any part of an electricity tower or within or immediately adjacent to an easement for electricity purposes (whether or not the electricity infrastructure exists), or immediately adjacent to an electricity substation, or within 5m of an exposed overhead electricity power line”
102. The application was referred to Ausgrid for comment in accordance with the requirements of Clause 45(2) of the Infrastructure SEPP. On 13 October 2017 Ausgrid raised objection to the proposed development on the following grounds;
“Proximity to Existing Network Assets - Overhead Powerlines
There are existing overhead electricity network assets in Princes Highway and Water Street.
The proposed awning over the Princess Hwy footpath area extends into Ausgrid’s pole allocation area. The drawing shows the awning as being cut out around the existing poles however; when these poles need to be replaced the new pole is typically replaced approximately 2m away from the existing pole in the same alignment. The proposed awning will significantly impact on Ausgrid's ability to replace these poles when required.
Safework NSW Document – Work Near Overhead Powerlines: Code of Practice, outlines the minimum safety separation requirements between these mains/poles to structures within the development throughout the construction process. It is a statutory requirement that these distances be maintained throughout construction. Special consideration should be given to the positioning and operating of cranes and the location of any scaffolding.
The “as constructed” minimum clearances to the mains should also be considered. These distances are outlined in the Ausgrid Network Standard, NS220 Overhead Design Manual.
The proposed development may encroach the statutory clearances of nearby powerlines as per the requirements set out in AS7000 and Ausgrid Standard NS220.
The developer is required to either:
• Engage an Accredited Service Provider Level 3 (ASP3) to confirm that the development does maintain the statutory clearances to the powerlines (this must include wind impacts), or
• Make suitable arrangements to have powerlines relocated so that statutory clearances are not encroached.”
103. In order to address and satisfy Ausgrid requirements, the overhead power lines would require relocation to allow for minimum safety clearances and sufficient clearance distances will need to be maintained in perpetuity. The Applicant has prepared a report by a Level 3 service provider (Shelmerdines) which states that State Rail power lines and Ausgrid power lines are to be located below ground. Although it seems that the revised layout will not impact on the location of the one existing Ausgrid pole at the northern end of the sites and the proposed setback from this pole and cabling comfortably exceeds Ausgrid’s requirements. Formal confirmation that this arrangement is satisfactory from Ausgrid has not been received.
State Environmental Planning Policy – Vegetation in Non-Rural Areas 2017 (Vegetation SEPP)
104. The State Environmental Planning Policy (Vegetation in Non-Rural Areas) 2017 replaces Clause 5.9 of KLEP 2012 (Preservation of Trees and Vegetation).
105. The intent of this SEPP is “to protect the biodiversity values of trees and other vegetation in non-rural areas of the State, and to preserve the amenity of non-rural areas of the State through the preservation of trees and other vegetation”.
106. The tree initially identified as a Sydney Blue Gum tree which has since been formally identified as a Flooded Gum by the Ecological Assessment confirmed that this tree is not a threatened or endangered species (EEC).
State Environmental Planning Policy No. 65 – Design Quality of Residential Flat Buildings (SEPP 65)
107. SEPP 65 is applicable to the proposed development and the extent to which the proposal complies with the controls and principles of the SEPP and the Apartment Design Guide are outlined in the tables below.
Table 2: Compliance with Part 1 - Application of SEPP 65
|
Clause |
Standard |
Proposal |
Complies |
|
3. Definitions |
Complies with definition of “Residential Apartment Development” (RAD) and “Shop top housing” |
The proposed development complies with the definitions. |
Yes |
|
4. Application of Policy |
Development involves the erection of a new RFB, shop top housing or mixed use development of (at least 3 storey’s and the building contains more than 4 dwellings) |
The proposal is for the erection of a new residential flat building and shop top housing development which satisfies the definition of the policy. |
Yes |
|
5. Development Applications |
Design verification statement provided by qualified designer
Registered Architect Name and Registration No. |
A Design Verification Statement has been provided by Registered Architect Peter Dunn (Nominated Architect No.4470). |
Yes |
108. Council’s Design Review Panel considered the original design on the 17 November 2017 and later reviewed the first set of amended plans at its meeting held on 12 September 2019.
109. The Panel raised concerns regarding the design and built form of the development on both occasions. A detailed Request for Information (RFI) letter was sent to the Applicant on 24 September 2019 highlighting outstanding design issues focusing on the need to address the visual appearance and improve the design of the building.
110. Other issues raised included the non-compliance with the height and it was made clear that Council cannot support the degree of non-compliance and that the bulk and scale of the development needs to be reconsidered. In addition, the Applicant was requested to address the issue of removing the Sydney Blue Gum Tree (as it was identified at the time) and to outline the intention and purpose of the proposed Service Lane.
111. The Applicant modified the proposal and the final set of amended plans were not presented to the Design Review Panel (DRP) as the plans did not alter the built form and massing of the development and therefore did not address the main concerns of the Panel. It is Council’s assessing staffs opinion that the current plans improve the overall appearance and presentation of the building and reasonably address the issues of statutory non-compliance. Table 3 below summarises the DRP comments. Comments in italix reflect the Panel’s initial comments and those in bold reflect the Panel’s comments in regard to the first amended scheme.
Table 3: Compliance with Part 2 - Design Quality Principles under SEPP 65
|
Principle |
Panels Comments |
Council’s comments |
|
Context and Neighbourhood character Good design responds and contributes to its context. Context is the key natural and built features of an area, their relationship and the character they create when combined. It also includes social, economic, health and environmental conditions.
Responding to context involves identifying the desirable elements of an area’s existing or future character. Well-designed buildings respond to and enhance the qualities and identity of the area including the adjacent sites, streetscape and neighbourhood.
Consideration of local context is important for all sites, including sites in established areas, those undergoing change or identified for change.
|
The proposal is for a major mixed use development of eight (8) levels to the highway and six (6) levels Water Street and the rear of the site. The form of the proposal creates a very substantial building element which in future will be replicated to some degree on nearby sites along the highway.
The building form fits more comfortably with the highway frontage than the adjacent sites on Water Street. A central courtyard with perimeter development is proposed. The courtyard itself is highly complex in its planning and would provide visual amenity, but very limited use as a communal space. The proponent argues that adequate levels of solar access can be provided to all units.
The proposal has been resubmitted with an increased setback to the Princes Highway. This impacts significantly on the courtyard which is greatly reduced in width, especially at its southern end. Now, the proposal is plagued by building separation and privacy issues across an inadequately sized courtyard and to sites on the west. Together with the issues around the aforementioned trees and unresolved lane proposal, the proposed courtyard typology appears not to work. The Panel recommends that alternative built form options are investigated.
As proposed development largely complies with the LEP height control except for the corner element which exceeds the control, but is considered to be acceptable due to lack of offsite impacts.
It appears that the 8 storey “corner element” now extends for roughly 70 percent of the Princes Highway elevation. This is not acceptable to the Panel.
In order to address the major concerns (tree retention and vehicle access in particular) it would be necessary to address the following:
· Retention of at least the most significant tree adjacent to Water Street · Provision of service access from service lane (possibly with turntable), rather than as proposed from Water Street · Provision of parking access either from dedicated service lane or from Water Street north of the tree to be retained · Possible relocation of units lost due to tree retention to the east corner of Water Street and the highway (this will cause penetration through the height plane, however it is considered that no unacceptable impacts should result) · The RMS requires an increased setback to the highway from the corner Water Street. This needs to be clearly understood and complied with. · Access to roof top communal space from all buildings (see · comments below under ‘Social issues’ and ‘Landscape’)
In order to resolve these issues it is considered that some additional height in excess of the LEP height control would be reasonable on the highway frontage block, provided that other issues are resolved and the design complies with the FSR control.
These issues have not been adequately addressed and require resolution as set out above. |
On both occasions the Panel felt that the proposed built form which proposes two distinct buildings separated by a central courtyard is not considered to be an appropriate design solution for the site and an alternate built form should be investigated. An alternative design could be to create one traditional building at the site similar to the form reflected at 621-635 Princes Highway (north of the site). The built form at this site is one L-shaped building with a rear area of open space. This site has the benefit of three road frontages and adjoins a laneway to the rear which provides additional separation distances. The proposed building form is considered to be a reasonable design response for this site as it creates a rear service lane which could provide benefits for the future redevelopment of sites to the north and the central courtyard establishes apartments with a dual aspect and will have better amenity than single aspect apartments especially fronting the Princes Highway. The issue of tree retention has been addressed earlier in this report. The Panel on two occasions have accepted additional height along the corner of the site however the exceedance in the height of habitable areas is not supported by Council Officers and the Applicant has amended the design and reduced the height and scale so that the encroachment is minimal and only affects the lift overrun and the roof top area of communal open space. The Panel also requested the retention of the existing significant trees. Council’s Landscape Officer has assessed and considered the condition of the trees. It is agreed that the trees are attractive and significant. Council’s Landscape Officer does not support the removal of a series of trees across the site. The Panel suggested that to address some of the issues some additional height may be able to be captured. Council Officers do not encourage the utilization of any additional height for habitable areas. The latest amended design reduces the height of the development and now the only encroachments are the lift overruns and some areas of communal open space located on the roof. The proposed service lane has been retained and could offer an alternative point of access to properties further to the north and remove access off Princes Highway. The latest plans aim to address and satisfy the RMS and State Rail requirements. Access to rooftop open space is provided at both buildings and every central lobby area provides access to the roof. |
|
Built Form and Scale Good design achieves a scale, bulk and height appropriate to the existing or desired future character of the street and surrounding buildings. Good design also achieves an appropriate built form for a site and the building’s purpose in terms of building alignments, proportions, building type, articulation and the manipulation of building elements. The appropriate built form defines the public domain, contributes to the character of streetscapes and parks, including their views and vistas, and provides internal amenity and outlook. |
The proposal is for a major mixed use development of eight (8) levels to the highway and six (6) levels Water Street and the rear of the site. The form of the proposal creates a very substantial building element which in future will be replicated to some degree on nearby sites along the highway.
The building form fits more comfortably with the highway frontage than the adjacent sites on Water Street. A central courtyard with perimeter development is proposed. The courtyard itself is highly complex in its planning and would provide visual amenity, but very limited use as a communal space. The proponent argues that adequate levels of solar access can be provided to all units.
The proposal has been resubmitted with an increased setback to the Princes Highway. This impacts significantly on the courtyard which is greatly reduced in width, especially at its southern end. Now, the proposal is plagued by building separation and privacy issues across an inadequately sized courtyard and to sites on the west. Together with the issues around the aforementioned trees and unresolved lane proposal, the proposed courtyard typology appears not to work. The Panel recommends that alternative built form options are investigated.
As proposed the development complies with the LEP height control except for the corner element which exceeds the control, but is considered to be acceptable due to lack of offsite impacts.
It appears that the 8 storey “corner element” now extends for roughly 70 percent of the Princes Highway elevation. This is not acceptable to the Panel.
In order to address the major concerns (tree retention and vehicle access in particular) it would be necessary to address the following:
· Retention of at least the most significant tree adjacent to Water Street · Provision of service access from service lane (possibly with turntable), rather than as proposed from Water Street · Provision of parking access either from dedicated service lane or from Water Street north of the tree to be retained · Possible relocation of units lost due to tree retention to the east corner of Water Street and the highway (this will cause penetration through the height plane, however it is considered that no unacceptable impacts should result) · The RMS requires an increased setback to the highway from the corner Water Street. This needs to be clearly understood and complied with. · Access to roof top communal space from all buildings (see comments below under ‘Social issues’ and ‘Landscape’)
In order to resolve these issues it is considered that some additional height in excess of the LEP height control would be reasonable on the highway frontage block, provided that other issues are resolved and the design complies with the FSR control. These issues have not been adequately addressed and require resolution as set out above. |
The increased setback to Princes Highway has been required by the RMS who have acquired a section of the front of the site for road widening. The amended plans reflect the requirements of the RMS.
The central courtyard is irregular in shape with the central section achieving an average separation distance of some 9m with a lesser separation distance at the entry to this space between Lobby 2 and 3 of some 6m. Further to the north this area opens up to become larger and have a separation distance of over 12m. This is generally considered acceptable as the perspective of the space opening up to the north will provide a greater sense of space and separation. The intention is to landscape this area and create an attractive space with mounds and planter boxes as well as seating and a large water feature. Despite the separation distances being less than the 12m requirement along the southern side this space is still functional and the units have been designed so there is no opportunity for overlooking between units. The Panel supported an exceedance in the height of the building however Council Officers will not support any habitable area above the height limit. The current amended plans have removed a level of the building and this involves deleting three (3) apartments. This reduces the physical scale and height of the building and now only the lift overruns exceed the height. In respect to the proposed service Lane, the Applicant has justified its design and purpose for the following reasons; · It aims to assist in facilitating the future redevelopment of sites that are isolated and have no rear lane access to the north. · Alternate access to the basement can be provided and the retention of the tree achieved however the access point would be sited closer to the east and this could affect the intersection with Princes Highway. The access point would be located too close to the intersection and queuing and conflicts could occur.
Communal open space on the roof has been integrated as part of the most recent changes.
|
|
Density Good design achieves a high level of amenity for residents and each apartment, resulting in a density appropriate to the site and its context.
Appropriate densities are consistent with the area’s existing or projected population. Appropriate densities can be sustained by existing or proposed infrastructure, public transport, access to jobs, community facilities and the environment. |
The density as proposed is marginally above the LEP 2.5:1 control. This needs to be reviewed in the context of addressing the recommendations above. With the required RMS setbacks and complex challenges raised by the existing trees and the rear lane it appears that the density proposed is not able to be achievable on the site.
|
The current amended plans have reduced the density of the development and removed a further three (3) apartments which existed on the top level of the building. The GFA calculation has been confirmed and the development in its amended form complies with the maximum FSR of 2.5:1 with a GFA of 6,294sqm which amounts to an FSR of 2.47:1. This calculation includes the winter gardens and enclosed balconies.
|
|
Sustainability Good design combines positive environmental, social and economic outcomes.
Good sustainable design includes use of natural cross ventilation and sunlight for the amenity and liveability of residents and passive thermal design for ventilation, heating and cooling reducing reliance on technology and operation costs. Other elements include recycling and reuse of materials and waste, use of sustainable materials and deep soil zones for groundwater recharge and vegetation. |
Subject to BASIX, however it is expected that a development of this scale would exhibit best sustainability initiatives including:-
· Rainwater harvesting and reuse · Deep soil planting · Solar energy capture · Reuse of stormwater from toilet flushing It is noted by the Panel that the revised proposal is liable to create a very dark courtyard with limited amenity and/or landscape potential. The proposal does however provide useful roof top communal open space and solar collectors on one of the buildings. The scheme does not retain the significant existing trees which is very negative environmental outcomes.
|
The proposal includes an updated BASIX Certificate which confirms compliance. The latest set of amended plans have significantly improved the environmental outcomes and improved sustainability for the future of the scheme by including a series of photovoltaic solar panels on the roof. The Applicant has justified why it is impossible to retain the trees on the site. A significant TPZ would need to be included which would render the site undevelopable and the majority of the trees on site are not considered to be in good condition. The provision of a minimum three (3) street trees along Water Street as part of the development would improve the streetscape outcome.
A rainwater reuse tank is designated within the upper basement in the north-western side of the basement area. |
|
Landscape Good design recognises that together landscape and buildings operate as an integrated and sustainable system, resulting in attractive developments with good amenity. A positive image and contextual fit of well-designed developments is achieved by contributing to the landscape character of the streetscape and neighbourhood. Good landscape design enhances the development’s environmental performance by retaining positive natural features which contribute to the local context, coordinating water and soil management, solar access, micro-climate, tree canopy, habitat values and preserving green networks.
Good landscape design optimises useability, privacy and opportunities for social interaction, equitable access, respect for neighbours’ amenity and provides for practical establishment and long-term management. |
The site design has ignored the constraint presented by the existing mature trees on the site. These trees appear, upon limited visual inspection, to be healthy. They make a strong contribution to the visual environment and would offer significant amenity to residents if retained, especially in the context of a busy highway. The trees also contribute to level of canopy cover which delivers a variety of benefits to the environment both above and below ground and the deep soil area required to retain these trees is valuable both on site and beyond the site itself. The trees will help mitigate the scale of the building to the west where it interfaces with a lower density residential area, as well as contribute to solar passive performance by providing shade. In the case where the adjoining sites are developed, retention of the trees will provide a visual buffer and separation. It is critical to develop environmentally responsible design options to retina these trees.
This is the critical issue that has not been addressed in the site planning or building design. As noted above, this requires an alternate building form to at a minimum retain the 3 very large existing site trees as noted in “context”. Likewise, the design must consider the likely form, habit and soil requirements of street trees as they mature and this must be accommodated in the design. For example, awnings must have sufficient cut-out, space must be allowed to accommodate tree guards without impacting pedestrian movement, conflict with other street elements must be minimised and the trees must be located in a position that maximises available soil volume and passive watering. The current built form significantly impacts on capacity to provide adequate space for street trees. The awning could be largely removed / reduced on Water Street and set back on the Princes Highway to allow for tree growth. The communal open space on level one is inadequate for a development of this scale. Its long narrow layout limits capacity for use and will create privacy issues. It may also be noisy and could be largely overshadowed with future development. There is an excellent opportunity to create a high quality communal open space with deep soil that retains the existing site trees on the rear of the site. This would contribute significantly to the amenity for residents, as well as supporting wider neighbourhood. |
The Panel in their comments acknowledged that large, mature street trees could be introduced which will improve the visual appearance of the development whilst creating a greener streetscape. If consent is recommended a condition will require the implementation/integration of a minimum four (4) street trees along Water Street. There is scope for street trees along Princes Highway is limited given that this roadway is under the jurisdiction of RMS a condition could include the provision of a minimum 4 street trees to be planted along this side subject to the type, style, form and location satisfying relevant government agencies i.e. State Rail and Roads and Maritime Services if approval is recommended. The Panel raised concerns regarding the potential for overlooking between apartments. It is acknowledged that there may be some overlooking between units but on the whole the design has limited and reduced this impact through window openings, room location and layout and balconies being offset so that living spaces don’t overlook each other. Issues outlined by the Panel in relation to the type, style form and design of awnings along Water Street and Princes Highway can be conditioned appropriately to ensure they satisfy Council’s requirements. |
|
Amenity Good design positively influences internal and external amenity for residents and neighbours. Achieving good amenity contributes to positive living environments and resident well being.
Good amenity combines appropriate room dimensions and shapes, access to sunlight, natural ventilation, outlook, visual and acoustic privacy, storage, indoor and outdoor space, efficient layouts and service areas and ease of access for all age groups and degrees of mobility. |
Generally well considered. The impact of the highway in relation to noise and pollution is a major challenge which has been addressed by way of glazing and louvers to the balcony facades. This should in principle resolve concerns with the exception that this then will necessitate mechanical ventilation to bedrooms fronting the highway. Other options should be explored, for example it may be that acceptable acoustic conditions could be a result - at least at upper levels - if adequate acoustic treatment were to be provided to balcony soffits and end walls. Note that the use of louvres to enclose private open spaces for the purpose of sound attenuation SHOULD NOT result in enclosed balconies being included in floor space calculations. The Panel has concerns about the design and program for the central courtyard communal open space and recommends that adequate communal spaces be provided as roof terraces accessible from each block.
While roof terraces have been provided, the courtyard has now been reduced in width and has become a space that is liable to be dark and overshadowed. The building separation across this space is also compromised and is liable to lead to a poor residential outcome.
The communal space program must include recreational opportunities for children and families. This area should include shade, change facilities and elements that engage children such as pattered paving, interactive elements and areas where a scooter or similar could be used (not necessarily fixed play equipment). Passive surveillance and safety in design must be considered.
This should be provided at roof level. As noted above, there is capacity to provide a landscape garden incorporating remnant trees for communal outlook and amenity at ground level. |
The Panel was concerned about the design of apartments facing Princes Highway and the impact of noise for internal areas. Most apartments that are located along the Princes Highway frontage have been well designed as dual aspect apartments and include winter gardens/partially enclosed balconies which will mitigate traffic and noise from the highway. As previously discussed the proposed “enclosed balconies” along the Princes Highway frontage are proposed to be “opened up” if approval is recommended. This will still allow for the winter gardens to exist Despite the Panel’s recommendations not to include enclosed balconies in the GFA both the winter gardens and enclosed gardens have been included as per the definition. The GFA definition in the KLEP does not offer flexibility in its calculation. If the enclosed balconies are opened up they will be excluded for the calculation and the FSR will be further reduced. Although the central courtyard isn’t very large, it offers a secondary space for some passive recreation and also allows for a green space that will improve the visual connection of the built forms on site. Communal open space has been integrated on the roof level which will also improve the amenity of the development for future occupants. |
|
Safety Good design optimises safety and security within the development and the public domain. It provides for quality public and private spaces that are clearly defined and fit for the intended purpose. Opportunities to maximise passive surveillance of public and communal areas promote safety. A positive relationship between public and private spaces is achieved through clearly defined secure access points and well-lit and visible areas that are easily maintained and appropriate to the location and purpose. |
Acceptable. The “rear lane” is in fact an open sunken driveway lacking in activation or passive surveillance. Therefore, this space could become an unsafe environment.
|
The proposed rear lane will act as a service lane. It is functional and could create benefits for future development to the north which could link up and connect to this roadway. The entry to the lane is at grade from Water Street; however it then ramps down so as to connect to the basement parking levels. Objection has been raised in relation to the subterranean nature of the lane. The siting of the lane will still allow for the redevelopment of the adjoining sites which could have their basement levels connecting through to this lane. If approval is granted a condition will be required so that the laneway will become an easement for access and in future will allow for the potential connection for development further to the north. It is not proposed as a laneway dedicated to Council. |
|
Housing Diversity and Social Interaction Good design achieves a mix of apartment sizes, providing housing choice for different demographics, living needs and household budgets. Well designed apartment developments respond to social context by providing housing and facilities to suit the existing and future social mix.
Good design involves practical and flexible features, including different types of communal spaces for a broad range of people and providing opportunities for social interaction among residents. |
Appears appropriate in relation to the residential units. Toilets will need to be provided to serve ground floor commercial tenancies. The design of communal open spaces will require reconsideration. It is recommended that two (2) separate spaces be provided serving the northern and southern blocks respectively and accessible directly by lifts from those blocks. Each should be provided with attractive landscaped deck/terrace, small enclosed space fitted with kitchenette and toilet, and a children’s play space.
See notes above. |
The building has been designed to include a diversity of apartment types, forms and styles. No affordable housing is proposed. |
|
Aesthetics Good design achieves a built form that has good proportions and a balanced composition of elements, reflecting the internal layout and structure. Good design uses a variety of materials, colours and textures.
The visual appearance of a well-designed apartment development responds to the existing or future local context, particularly desirable elements and repetitions of the streetscape. |
It is suggested that the large relatively bland façade to the highway be further articulated to express inherent structure, and as well include some additional variation in colours and finishes. While the aesthetic presentation of the building is promising, a substantial number of issues described above must be resolved before its aesthetics can be substantially addressed.
|
The Applicant has substantially improved the front façade and dominant elevation to Princes Highway. Council Staff was concerned about the visual bulk of the building and the undefined bays. Council Staff felt the façade wasn’t well articulated and could be improved by creating better defined recessive elements, and by reducing the number of enclosed balconies. The modified scheme has created distinct ‘broken up’ vertical bays or wings with the sections being defined with varying materials, colours and finishes. |
112. The proposal has been amended to create a more reasonable planning and design response for the Site. The issue of the service lane, its functionality and design is discussed in more detail in the section of the assessment against the provisions of the KDCP.
Consideration of Apartment Design Guide (ADG) under Clause 30 of SEPP 65
Table 4: Compliance with Design Provisions in Part 3 and Part 4 of the ADG
|
Clause |
Standard |
Proposal |
Complies |
|
|
Part 3 – Siting the development |
||||
|
3D-1 Communal and public open space
|
1. Communal open space has a minimum area equal to 25% of the site. -Where it cannot be provided on ground level it should be provided on a podium or roof -Where developments are unable to achieve the design criteria, such as on small lots, sites within business zones, or in a dense urban area, they should: • provide communal spaces elsewhere such as a landscaped roof top terrace or a common room • provide larger balconies or increased private open space for apartments • demonstrate good proximity to public open space and facilities and/or provide contributions to public open space
2. Developments achieve a minimum of 50% direct sunlight to the principal usable part of the communal open space for a minimum of 2 hours between 9 am and 3 pm on 21 June (mid-winter) |
There are two areas of communal open space within the development; i) Central Courtyard – 400sqm. ii) Roof top area of open space – 3 separate areas totalling 395sqm. The total area of communal open space is around 795sqm which amounts to 30%. The central courtyard includes seating and planting and a water feature. The roof top areas of open space also includes seating and planting as well as a WC. There is a bridge at the roof level which connects the rear building to the area of roof top communal open space at the front (and vice versa). It is recommended that this bridge element be removed and the buildings read as two (2) independent/separate built forms when viewed from the southern side if approval was recommended. There is no need for the connection as every building has its own designated roof top area of open space. A condition would ensure that each space on the roof includes some seating. A WC is provided on communal roof terrace No.2 and all residents should be able to access this space (via Lobby 2) if they utilise the area for a longer period of time. Providing WC’s in the other spaces is not encouraged as it would add undue bulk to the roof space.
The landscape plans prepared by Stuart Noble (refer to Fig 10) show well designed landscaped areas within the development that would be visually attractive. The provision of larger planter boxes in the central courtyard should be able to cater for larger trees within this space. Conditions could be imposed to ensure the courtyard includes mature trees if the application was to be supported. The rooftop areas of open space will receive full solar access throughout the day. All roof top areas of open space will receive very good solar access given their elevated location and orientation. |
Yes
|
|
|
3E-1 Deep Soil Zones
|
1. Deep soil zones are to meet the following minimum requirements: Where the site is between 650sqm - 1500sqm = 3m minimum dimension Deep soil = 7% Achieving the design criteria may not be possible on some sites including where: • the location and building typology have limited or no space for deep soil at ground level (eg central business district, constrained sites, high density areas, or in centres) • there is 100% site coverage or non-residential uses at ground floor level Where a proposal does not achieve deep soil requirements, acceptable stormwater management should be achieved and alternative forms of planting provided such as on structure. |
The proposal requires a minimum of 7% of the site comprising of deep soil area. There is no deep soil area proposed. This fails to satisfy the minimum requirements. The central courtyard has been designed so that there are large sections and planter boxes and mounds which are raised to accommodate deeper soil profiles to allow for dense planting and the planting of trees or taller palms etc. in this space. Although these spaces could accommodate some deeper soil profiles and accommodate some larger trees and vegetation as they are above structure they cannot be classified as deep soil. In addition not all areas have a minimum width of 3m and as such would fail to satisfy the definition of “deep soil”. The design guidance provisions within the ADG do make allowances for some instances where deep soil areas are not able to be achieved. The ADG states that; “achieving design criteria many not be possible on some sites including where: - The location and building typology have limited or no space for deep soil ground level (e.g. central business district, constrained sites, high density areas, or in centres) - There is 100% site coverage or non-residential uses at ground floor level. Where a proposal does not achieve deep soil requirements, acceptable stormwater management should be achieved and alternative forms of planting provided such as on structure.” The proposed development fits within the category stipulated above being located as it is within Blakehurst Centre. The built form, and the need to provide retail floor space and the service lane, restricts the capacity to create a deep soil zone. Without the presence or integration of the service lane at the rear a deep soil area could be included however this would create adverse traffic and access issues, and the provision of the access lane could provide future benefits to developments further to the north. The development has created a central courtyard space which will be well landscaped (refer to Figure 10 below) and include plantings on structure. This courtyard space has been well designed and treated with a variety of plants and species, seating, planter boxes and includes a large water feature. It will allow for passive recreation, a pleasant meeting space and will improve the visual quality of the development by focusing the outlook of the rear units to look down on this area. Given that the site is opposite Todd Park and Church Street Reserve and within close proximity to Stuart Park the lack of deep soil areas will not adversely affect or compromise the functionality of the areas of open space within the development. |
No
|
|
|
Figure 10: Landscaping proposed within the central courtyard space (courtesy Sturt Noble, 2019) |
||||
|
3F-1 Visual Privacy |
1. Separation between windows and balconies is provided to ensure visual privacy is achieved. Minimum required separation distances from buildings to the side and rear boundaries are as follows: -Up to 12m (4 storeys) Habitable rooms and balconies = 6m Non-habitable rooms = 3m
|
North – Nil side setback as this property adjoins retail/commercial developments as part of the Blakehurst Commercial Centre and a nil side setback is required to ensure continuity of mixed use developments and encourage active frontages, and an appropriate street-edge along the Princes Highway. There are no openings along the northern side of the front building facing Princes Highway. This is satisfactory and complies with the ADG. The rear building however is setback some 3m from the northern boundary and includes a series of windows along Levels 1-5. The intention for these windows is to capture solar access up until the adjoining site to the north redevelops. These windows could quite easily be redesigned to become snorkel windows and this elevation becomes a defensive wall so that no potential for future overlooking occurs. Balconies can include privacy screens or blade walls. Also along the upper levels (5 and 6) the balconies along the northern side could become non-trafficable. Design changes could easily be adopted to satisfy the ADG provisions and achieve no window openings within 6m of the boundary. South – The site adjoins Water Street and across the road is Church Reserve which includes a public parking area. The building hugs the corner of Princes Highway and Water Street and is setback between 3m - 5.5m on the ground floor with the upper level balconies located on the boundary. Given the ground floor commercial components and the provision of an awning the siting of the upper levels on the boundary are generally consistent with the character and nature of development within a commercial zone. East - The eastern part of the building is located on the front boundary and aligned with the Princes Highway frontage which is consistent with the character and nature of development on main roads. The development will include an awning above the ground floor shops. West – The western, rear side of the development includes the service lane which is setback 8m at the ground floor level. The upper level units are setback a minimum of 6m at Levels 1 - 4 with the building wall setback 9m for Levels 5 and 6 in accordance with the ADG separation distances. A few additional conditions would be imposed if the application was to be supported to improve privacy between properties including: - The staircase along the western side of Lobby 3 shall include obscure glazed openings to reduce the potential for overlooking to the residential lots to the rear. - All western facing balconies shall include a sliding privacy screen along each balcony to reduce the potential for overlooking and also provide additional solar protection. - The proposed garden terraces on Level 4 located along the western side which are dedicated to Units 31, 32 and 33 are to become non-trafficable landscaping areas that are communal and will be open style spaces which include a series of low scale plants. |
Yes
|
|
|
3J-1 Bicycle and car parking |
1. For development in the following locations: - On sites that are within 800m of a railway station or light rail stop in the Sydney Metropolitan Area; - The minimum car parking requirement for residents and visitors is set out in the Guide to Traffic Generating Developments, or the car parking requirement prescribed by the relevant Council, whichever is less. |
This section of the ADG is not applicable to this development. The proposal is not located in an “accessible” area and the parking provisions to be relied upon are the provisions within the Kogarah DCP. Parking rates are assessed later in this report. Appropriate designated bike parking has been provided.
|
N/A as the site is not located within an “accessible” area |
|
|
4A-1 Solar and daylight access |
1. Living rooms and private open spaces of at least 70% of apartments in a building receive a minimum of 2 hours direct sunlight between 9 am and 3 pm at mid-winter in the Sydney Metropolitan Area 3. A maximum of 15% of apartments in a building receive no direct sunlight between 9 am and 3 pm at mid-winter |
The development has been designed to comply with the solar access provisions of the ADG. A total of 35 apartments out of 50 receive a minimum of 2 hours of solar access in accordance with the ADG requirements which amounts to 70%. Most apartments will have dual orientation and therefore will achieve the minimum solar access requirements with a couple of the southern facing apartments not complying due to their orientation. Also apartments in the rear wing which face east and look onto the central courtyard will be partially overshadowed by the front building. |
Yes
|
|
|
4B-3 Natural Ventilation |
1. At least 60% of apartments are naturally cross ventilated in the first nine storeys of the building. Apartments at ten storeys or greater are deemed to be cross ventilated only if any enclosure of the balconies at these levels allows adequate natural ventilation and cannot be fully enclosed 2. Overall depth of a cross-over or cross-through apartment does not exceed 18m, measured glass line to glass line |
Since the design has created two built forms and separate buildings the building depth complies with the 18m maximum depth from glass line to glass line. The eastern building facing Princes Highway has a maximum glass line to glass line building depth of 15m. The western building is wider and has a depth of some 18m which satisfies the ADG provisions. In terms of cross ventilation, most apartments have dual aspect and therefore comply with the minimum cross ventilation requirements. Thirty five (35) apartments are designed to allow for cross-ventilation which amounts to 70% of the development which exceeds the 60% minimum requirement. |
Yes
|
|
|
4C-1 Ceiling heights |
1.Measured from finished floor level to finished ceiling level, minimum ceiling heights are: Habitable rooms = 2.7m Non-habitable rooms = 2.4m Ground floor heights for commercial/retail uses are 3.3m to promote future flexibility |
The floor to floor heights are 3.05m which is slightly lower than the 3.1m suggested by the ADG however this is only a small non-compliance and the development will still be able to achieve a minimum floor to ceiling height of 2.7m with appropriate servicing solutions.
Retail area No.2 on the ground floor has a floor to ceiling height of 3.3m which satisfies the provision. This tenancy is located on the corner of Princes Highway and Water Street and due to the existing ground levels and topography (sloping from north to south) part of this tenancy will be located below the ground level. There is an internal ramp providing access to this space. It is a relatively large tenancy 410sqm and this arrangement and design will not compromise its use and functionality. Retail Unit No.1 faces Princes Highway and has a floor to ceiling height of 3.248 which is marginally short of the 3.3m minimum. The non-compliance is not considered to adversely affect the operation of this space. The retail tenancy which is designated as a “coffee shop” located along Water Street is only a small space some 35sqm in area. It has a floor to ceiling height of 3m. Although this is below the 3.3m requirement given the size and location of this small retail tenancy the floor to ceiling height is acceptable in this case as it will act as a small retail or potentially commercial tenancy for the future. The space will likely be used for a small local business and the necessity to comply with the floor to ceiling height provision is not necessary. The exact location and form of the proposed mechanical plant has not been designated on the plan. |
Yes
Partial non-compliance
|
|
|
4D-1 Apartment size and layout |
1. Apartments are required to have the following minimum internal areas: 1 bedroom = 50sqm 2 bedroom = 70sqm 3 bedroom = 90sqm
The minimum internal areas include only one bathroom. Additional bathrooms increase the minimum internal area by 5sqm each
Every habitable room must have a window in an external wall with a total minimum glass area of not less than 10% of the floor area of the room. Daylight and air may not be borrowed from other rooms |
The design and internal size of each apartment has been designed to comply with the minimum provisions of the ADG as noted below. 1 bedroom = 54sqm and above 2 bedroom = 90sqm and above 3 bedroom = 115sqm and over The one bedroom apartments have one bathroom. Two bedroom apartments include ensuites, this clarifies why these apartments are larger than the minimum required. This also applies for the three bedroom apartments
At least one window is provided to each room. |
Yes
Yes
Yes
|
|
|
4D-2 |
Habitable room depths are limited to a maximum of 2.5m x the ceiling height In open plan layouts (where the living, dining and kitchen are combined) the maximum habitable room depth is 8m from a window |
Within range.
Open plan layouts are 8m or less from window or balcony. The depth of all kitchens do not exceed 8m from a window, balcony or opening. The apartments facing Princes Highway have been designed to consider the acoustic implications generated by this busy roadway. The design includes balconies which are generally enclosed (partially as winter gardens). To improve the visual appearance of the balconies and reduce their visual bulk the winter gardens should be maintained but the “enclosed balcony” elements should be ‘opened up’ and include a consistent balustrade with the winter gardens. This can be imposed as a condition if the proposal was to be supported. This would create some additional recessive features rather than the majority of the façade being enclosed and solid which increases the visual bulk. Opening up parts of the balcony will lighten and soften the eastern (front) façade. |
Yes
Yes |
|
|
|
Master bedrooms have a minimum area of 10sqm and other bedrooms 9sqm (excluding wardrobe space)
Bedrooms have a minimum dimension of 3m (excluding wardrobe space)
Living rooms or combined living/dining rooms have a minimum width of: -3.6m for studio and 1 bedroom
- 4m for 2 and 3 bedroom apartments |
Every master bedroom has a minimum area of 10sqm.
Bedrooms are well proportioned and sized, having minimum dimensions of 3m.
The width of living/dining spaces for one-bedroom apartments have a minimum width of 3.6m.
The width of living/dining rooms for the two and three-bedroom apartments is a minimum of 4m. |
Yes
Yes
Yes
Yes
|
|
|
4E-1 Private Open space and balconies |
All apartments are required to have primary balconies as follows:
- one-bedroom = 8sqm/2m depth
- two-bedroom = 10sqm/2m depth
- 3+ bedroom = 12sqm/2.4m depth
The minimum balcony depth to be counted as contributing to the balcony area is 1m
For apartments at ground level or on a podium or similar structure, a private open space is provided instead of a balcony. It must have a minimum area of 15sqm and a minimum depth of 3m |
All balcony areas are at or greater than the minimum specified and the minimum dimensions are observed for primary balconies as required.
All one bedroom apartments comply with the minimum 8sqm balcony size if the winter gardens are included along the front elevation facing Princes Highway.
All two bedroom apartments have balconies with minimum areas of 10sqm when including the winter gardens along Princes Highway frontage.
The three bedroom apartments have minimum balcony sizes of 12sqm if winter gardens are included.
There are no balconies with depths of 1m or less.
There are no ground floor apartments. Apartments on Level 1 in the front building have balconies facing Princes Highway and courtyards that face the central courtyard space. They have access to two sets of external spaces which is a benefit to the design and provide these units with better internal amenity than most apartments which face busy arterial roadways as these largely only have one orientation. |
Yes
|
|
|
4F-1 Common circulation spaces |
The maximum number of apartments off a circulation core on a single level is eight |
There are three lift cores. Lift Lobby 1 provides access to two (2) apartments at every level of the building.
Lift Lobby 2 provides access to two (2) apartments at every level of the building.
Lift Lobby 3 provides access to eight (8) apartments (Level 2) five (5) apartments on Level 4 and three (3) apartments on Levels 5 and 6. |
Yes |
|
|
4G-1 Storage |
In addition to storage in kitchens, bathrooms and bedrooms, the following storage is provided: 1 bedroom = 6m³ 2 bedroom – 8m³ 3 bedroom – 10m³ |
All apartments have storage cupboards that comply with the requirements with dedicated independent storage rooms for 51 apartments in the basement. The provision of storage in association with this development is considered to be appropriate and compliant. |
Yes
|
|
|
4H Acoustic Privacy |
Noisy areas within buildings including building entries and corridors should be located next to or above each other and quieter areas next to or above quieter areas
|
The development has been sensitively designed to respect the context of the area. This application is accompanied by an Acoustic report and the noise assessment and findings of the report were discussed earlier in this report. The benefit of this design is that the creation of two (2) buildings mitigates noise impacts from the roadway to internal spaces ie the front building will act as a barrier and shield to a large degree noise from Princes Highway to the rear building. Most apartments within the front building have dual aspect so the courtyards facing the internal communal open space will be quieter spaces than the front balconies. The noise impacts have been largely mitigated and minimised through the design of the development. |
Yes |
|
|
4J Noise and Pollution |
Design solutions to mitigate noise include: limiting the number and size of openings facing noise sources providing seals to prevent noise transfer through gaps using double or acoustic glazing, acoustic louvres or enclosed balconies (wintergardens) using materials with mass and/or sound insulation or absorption properties e.g. solid balcony balustrades, external screens and soffits |
This has been discussed above and is considered to be acceptable from a design perspective. |
Yes |
|
|
4K Apartment Mix |
A range of apartment types and sizes is provided to cater for different household types now and into the future |
The development provides a variety and mix of apartment types. · 11 x 1 bedrooms (22%); · 25 x 2 bedrooms (50%) and; · 14 x 3 bedrooms (28%) |
Yes |
|
|
4L Ground Floor Apartments |
Direct street access should be provided to ground floor apartments Privacy and safety should be provided without obstructing casual surveillance. |
Not applicable to this form of mixed use development where retail/commercial uses dominate the ground floor. This is the preferred land use for this site and within this zone in accordance with the KLEP provisions for “shop-top” housing development. |
N/A |
|
|
4M Facades |
Facades should be well resolved with an appropriate scale and proportion to the streetscape and human scale. |
The front façade of the building has been redesigned on three (3) occasions and the most recent amended design (refer to Figure 9 below) is considered to be an improvement particularly in respect to the buildings visual presentation to Princes Highway. The front façade is more ordered and balanced. It includes defined bays which break up the bulk and length of the built form. The reduction in the height and scale of the building also improves its visual appearance to the street. The corner element remains a strong feature which distinguishes the retail/mixed use element (fronting Princes Highway) and the more residential form and character facing Water Street. Contemporary materials and finishes have been employed and the colour palette is consistent with the character of modern developments in the street and immediate locality. The development relies on a number of architectural elements which enhance its visual appearance and break up the mass and form of the buildings. It is proposed to further soften the front façade by “opening up” the “enclosed balconies” which will introduce some recessive elements along the front façade whilst also reducing the visual bulk and prominence of the these elements which will be protrusive. |
Yes |
|
|
|
||||
|
4N Roof |
Roof treatments are integrated into the building design and positively respond to the street.
Opportunities to use roof space for residential accommodation and open space are maximised. Incorporates sustainability features. |
The proposed roof is a standard flat roof form with the inclusion of roof top areas of open space.
The roof has been amended to include a series of photovoltaic panels and also the inclusion of a ventilation system on the roof which is considered to be environmentally sustainable. |
Yes |
|
|
4O Landscape Design |
Landscape design is viable and sustainable, contributes to the streetscape and amenity |
A detailed Landscape design has been prepared and included as part of this assessment prepared by Sturt Noble. The planting and landscaping area and arrangement is considered to be well designed (see Figure 12 below). |
Yes |
|
|
Figure 12: Landscaping proposed around the development and within the rooftop (courtesy Sturt Noble, 2019) |
||||
|
4P Planting on structures |
Planting on structures – appropriate soil profiles are provided, plant growth is optimised with appropriate selection and maintenance, contributes to the quality and amenity of communal and public open spaces |
Landscaping includes planter boxes in areas where deep soil cannot be achieved and where there is a podium. This is largely within most of the site but in particular within the central courtyard area. There are substantial planter boxes proposed in this space and include a variety of other features (water features and spaces for seating). This space even though in the future with development occurring to the north will be overshadowed could still be an attractive space that adds amenity to the utilisation of apartments. It is essentially a private space for the exclusive use of the development and the lack of sunlight is compensated by the use of the roof top areas which will have good solar access throughout the day. |
Yes |
|
|
4Q Universal Design |
Universal design – design of apartments allow for flexible housing, adaptable designs, accommodate a range of lifestyle needs |
The various sizes and designs of apartments allows for use by differing lifestyles. The design of apartments is flexible and considered to be appropriate. There are two (2) adaptable units (7 and 18) proposed which adds to the flexibility of the design. |
Yes |
|
|
4R Adaptive Reuse |
New additions to existing buildings are contemporary and complementary and enhance an area's identity and sense of place |
This is a purpose built building. |
N/A |
|
|
4S Mixed Use |
Mixed use developments are provided in appropriate locations, provide active street frontages, residential levels of the building are integrated within the development and safety and amenity is maximised for residents |
The development is classified as a mixed use development and satisfies the provisions of the ADG in respect to these types of developments. |
Yes |
|
|
4T Awnings and signage |
Awnings and signage – awnings are well located and compliment and integrate with the building design, signage responds to the context and desired streetscape character |
An awning is proposed along the Princes Highway frontage. The design complies with Council’s requirements however if approval is recommended standard conditions will ensure the awning and associated public works (footpath detailing, street tree location and type) will be compliant and in accordance with Council’s requirements. Consideration will also be given to the requirements of the RMS and Rail Corp given the infrastructure within Princes Highway frontage. |
Yes |
|
|
4U Energy Efficiency |
Development incorporates passive environmental design, passive solar design to optimise heat storage in winter and reduce heat transfer in summer, natural ventilation minimises need for mechanical ventilation |
The development incorporates BASIX commitments in the design to provide appropriate energy efficiency features. A compliant BASIX certificate accompanies this application. The development has been amended to include a series of environmentally sustainable initiatives which is considered to satisfy the intention of the ADG. |
Yes |
|
|
4V Water management and conservation |
Water management and conservation – potable water use is minimised, stormwater is treated on site before being discharged, flood management systems are integrated into the site design |
Development incorporates appropriate stormwater measures and Council’s Development Engineers are satisfied with the design. |
Yes |
|
|
4W Waste Management |
Waste management – storage facilities are appropriately designed, domestic waste is minimised by convenient source separation and recycling |
Waste facilities are provided in the basement. There are a number of designated garbage rooms for both the residential and the retail/commercial component included within the design. Council’s Waste/Sustainability Officer is satisfied with the number and arrangement of bins. The development also caters for a bulky goods storage room and ample space to store garbage next to the loading bay. |
Yes |
|
|
4X Building maintenance |
Building maintenance – building design provides protection form weathering, enables ease of maintenance, material selection reduces ongoing maintenance cost |
The design incorporates a mix of external finishes that require minimal maintenance. The proposed finishes and materials are considered to be durable and the inclusion of brick finishes and simple materials will require less maintenance in the longer term. |
Yes |
|
Kogarah Local Environmental Plan 2012
Zoning
113. The subject site is zoned B2 Local Centre under the provisions of the Kogarah Local Environmental Plan (KLEP) 2012. Refer to Figure 13 below.

Figure 13: Zoning of the area with the site outlined in blue.
114. The proposal is defined as “shop top housing” which is defined as “one or more dwellings located above ground floor retail premises or business premises”. The rear building is designed as a residential flat building (RFB) as it doesn’t include retail uses on the ground floor. However this part of the building sits above retail car spaces and the loading zone which services the retail/commercial component. An RFB is also a permissible land use in the zone.
115. The proposal generally satisfies the objectives of the zone which include;
· To provide a range of retail, business, entertainment and community uses that serve the needs of people who live in, work in and visit the local area.
· To encourage employment opportunities in accessible locations.
· To maximise public transport patronage and encourage walking and cycling.
Table 5: Compliance with KLEP2012
|
Clause |
Standard |
Proposed |
Complies |
|
2.2 Zone |
B2 Local Centre zone |
The proposal is defined as shop top housing and a residential flay building which is a permissible use within the zone. |
Yes |
|
2.3 Objectives |
Objectives of the Zone |
Consistent with zone objectives as discussed above. |
Yes |
|
4.3 – Height of Buildings |
21m as identified on Height of Buildings Map |
The building exceeds the 21m height limit and achieves an overall height at the highest point of 24.74m. The lift overrun and the rooftop area of communal open space are the only elements which exceeds the height control. The non-compliance at the highest point is a 23% non-compliance with the control however this only relates to one lift overrun. The other structures are lower and about 2.4m above the control (11% variation beyond the control) and 1m for planter boxes (4% non-compliance). |
No – see discussion below regarding Clause 4.6 Statement which has been submitted. |
|
4.4 – Floor Space Ratio |
2.5:1 as identified on Floor Space Ratio Map |
The proposed FSR is 2.5:1. The proposal complies with a maximum GFA of 6,373.5sqm. The proposal provides a GFA of 6,294sqm which amounts to a total FSR of 2.47:1 |
Yes |
|
4.5 – Calculation of floor space ratio and site area |
FSR and site area calculated in accordance with Cl.4.5 |
The GFA calculations provided by the Applicant are accurate and in accordance with the definition of GFA in accordance with the KLEP provisions. There are in fact some areas the Applicant has included which should be “excluded” in accordance with the GFA calculation including the “switch room” on Level 1, “plant room” on the ground floor, the “retail garbage” area which is partially below ground (basement). These elements should be excluded. The winter gardens and enclosed balconies have been included in accordance with the definition. The rooftop WC has been excluded but this element should be included. It amounts to some 8sqm and its inclusion would increase the GFA calculation marginally and the FSR would stay at 2.47:1. If the proposed “enclosed balconies” were ‘opened up’ to become traditional balconies the gross floor area would be further reduced. |
Yes |
|
5.10 – Heritage Conservation |
The objectives of this clause are; (i) to conserve the environmental heritage of Kogarah, (ii) to conserve the heritage significance of heritage items and heritage conservation areas, including associated fabric, settings and views. |
The site is not a designated item of heritage nor is it within a Conservation Area. The closest item is I131 which is “Carss Park”. This item is physically separated from the site by the highway and Todd Park. The proposal will not have any adverse impacts on the integrity, aesthetics and historical importance of this item. |
Yes |
|
6.1 Acid Sulphate Soils (ASS) |
The objective of this clause is to ensure that development does not disturb, expose or drain acid sulfate soils and cause environmental damage |
The site is located within the Class 5 ASS zone. Class 5 relates to “works within 100m of adjacent Class 2, 3 or 4 land that is below 5 metres Australian Height Datum and by which the water table is likely to be lowered below 1m Australian Height Datum on adjacent Class 2, 3 or 4 land. Subclause 3 states that “Development consent must not be granted under this clause for the carrying out of works unless an acid sulfate soils management plan has been prepared for the proposed works in accordance with the Acid Sulfate Soils Manual and has been provided to the consent authority.” The subject site adjoins Class 3 ASS and therefore an Acid Sulphate Soils Management Plan is a mandatory requirement pursuant to the provisions of the KLEP. The Applicant has justified why a detailed management plan is not required; - Extensive testing of soils during the process of remediation did not suggest the presence of any Acid Sulphates. - The Botany Bay Acid Sulphates Soil Risk map does not show the presence of any acid sulphate soils (ASS). - The method of basement construction (fully sealed, tanked basement) will not impact or lower the water table. Despite this justification which may be accurate and reasonable an Acid Sulphate Soils management plan needs to be provided which would potentially support these arguments. The wording within the LEP requires this report to be submitted. |
Yes |
|
6.2 Earthworks |
To ensure that earthworks do not have a detrimental impact on environmental functions and processes, neighbouring uses, cultural or heritage items or features of the surrounding land |
The proposal includes the provision of two levels of basement car parking. This is a standard amount of excavation and site works to accommodate a development of this scale and density and is similar to the basement car parking arrangement that has been constructed at 621 Princes Highway. The proposed earthworks are not considered to be unreasonable. |
Yes |
|
6.3 Flood Planning |
The objectives of this clause are as follows— (a) to minimise the flood risk to life and property associated with the use of land, (b) to allow development on land that is compatible with the land’s flood hazard, taking into account projected changes as a result of climate change, (c) to avoid significant adverse impacts on flood behaviour and the environment. |
The site is not affected by any flood planning restrictions. |
Yes |
|
6.5 Airspace Operations |
The consent authority must not grant development consent to development that is a controlled activity within the meaning of Division 4 of Part 12 of the Airports Act 1996 of the Commonwealth unless the applicant has obtained approval for the controlled activity under regulations made for the purposes of that Division. |
The height of the proposed development is above the Obstacle Limitation Surface (OLS) level of 15.24m. The application was referred to Sydney Airports for their formal concurrence. To date no response has been received. If a response has not been received within 21 days then concurrence can be assumed. The proposed RL at the highest point of the building is at RL35.90 (lift overrun). The roof parapet sits at approximately RL27.8 and approximately RL30.9 The assessment needs to ensure the height of the building does not exceed the “prescribed airspace” which is governed by the Obstacle Limitation Surface (OLS). In Kogarah closer to the airport the OLS is 51m. The proposed development is well within the OLS so there should be no penetration within the prescribed airspace. |
Yes |
Clause 4.6 Exceptions to development standards
Detailed assessment of variation to Clause 4.3 Height of Buildings
116. The proposed development seeks a variation to the development standard relating to building height, Clause 4.3(2) of the KLEP. The LEP identifies a maximum height of 21m for the Site (refer to Figure 14 below). The height of the building has been determined by complying with the definition of building height which means;
(a) in relation the height of a building in metres – the vertical distance from ground level (existing) to the highest point of the building, or
(b) in relation to the RL of a building – the vertical distance from the Australian Height Datum to the highest point of the building, including plant and lift overruns, but excluding communication devices, antennae, satellite dishes, masts, flagpoles, chimneys, flues and the like.
117. Taking this definition into account, the proposed development will exceed the height control by approximately 4.8m (at the highest point) which comprises of the lift overrun, open style pergola, planter boxes and WC which are located on the roof top and forms part of the communal area of open space. This is a 23% variation above the control. Although the exceedance seems substantial it only affects the lift overrun to that degree. The pergola and WC structures only exceed the control by some 2.4m- 2.6m which amounts to an 11%-12% variation and the fixed planter boxes exceed the control by approximately 1m, a 5% variation.
118. These variations to the height can only be considered under Clause 4.6 – Exceptions to Development Standards of the KLEP. The area and degree of non-compliance with the height is shown in Figure 12 below. The amended Clause 4.6 Statement was based on the plans as noted in Figure 12 however the heights of structures were not included and plans have been updated after Council wanted plans showing the RL’s of the structures on the roof (pergola, lift and fire stairs, planter boxes, WC etc). Figure 13 shows the updated section showing the modified heights.

Figure 14: Red line showing the areas of the building that exceed the 21m height limit (courtesy Peter Dunn Architects)

Figure 15: Updated sections showing actual RL’s to the top of the building (courtesy Peter Dunn Architects Feb 2020).
119. Clause 4.6(1) outlines the objectives of the standard which are to “provide an appropriate degree of flexibility in applying certain development standards to particular development” and “to achieve better outcomes for and from development by allowing flexibility in particular circumstances”.

Figure 16: Height Map – site outlined in blue
120. Clause 4.6 (3) of the KLEP states that:
“Development consent must not be granted for development that contravenes a development standard unless the consent authority has considered a written request from the applicant that seeks to justify the contravention of the development standard by demonstrating:
- that compliance with the development standard is unreasonable or unnecessary in the circumstances of the case, and
- that there are sufficient environmental planning grounds to justify contravening the development standard”
121. To support the non-compliance, the applicant has provided an updated request for a variation to Clause 4.3 in accordance with Clause 4.6 of KLEP 2012 which assesses the final development scheme however bases the conclusions on the plans shown in Figure 12 not Figure 13 with the updated plans and height confirmation. The Clause 4.6 request for variation is assessed as follows:
Is the planning control in question a development standard?
122. Height of Buildings limitation under Clause 4.3 of the KLEP 2012 is a development standard.
What are the underlying objectives of the development standard?
123. The objectives of Height of Buildings standard under Clause 4.3 of KLEP 2012 are:
(a) to establish the maximum height for buildings,
(b) to minimise the impact of overshadowing, visual impact and loss of privacy on adjoining properties and open space areas,
(c) to provide appropriate scale and intensity of development through height controls.
124. In order to satisfy the requirements of Subclause 4.6(3) (outlined above) and 4.6(4) which states;
Development consent must not be granted for development that contravenes a development standard unless;
(a) the consent authority is satisfied that—
(i) the applicant’s written request has adequately addressed the matters required to be demonstrated by subclause (3), and
(ii) the proposed development will be in the public interest because it is consistent with the objectives of the particular standard and the objectives for development within the zone in which the development is proposed to be carried out,
125. The proposal needs to satisfy both the development standard and zone objectives in order to determine whether the development is in the public interest. The issue of achieving a better design solution for the site (with the variation) is not a consideration. In supporting the non-compliance the Clause 4.6 Statement is discussed in greater detail below.
126. In respect to compliance with the objectives of the height control, the Applicant has provided the following justification:
a) To establish a maximum height for buildings
127. Applicants Comment: “This objective articulates the ultimate function of the height of buildings development standard. The maximum height for buildings on land within the former Kogarah Local Government Area is identified on the Height of Buildings Map. As previously described, the maximum building height permitted on the subject site is 21m and the maximum height of the proposal is 24.74m. The proposal contravenes the standard, which has prompted the preparation of this written variation request. Despite the nature and scale of the development proposed by this Development Application, Clause 4.3 achieves the objective of establishing a maximum building height for the site, using the Height of Buildings Map as a mechanism to do so. This written request identifies the extent of variation proposed and explains why the variation is acceptable in the circumstances.”
128. Council’s comment: The Clause 4.6 Statement was amended and updated in December 2019 and based on the final set of drawings. The statement alludes to the height of the lift overrun exceeding the control by 3.74m. It is unclear how this figure was derived since the final plans (refer to Figure 12) did not include an RL to the uppermost part of the building. Council raised this issue with the Applicant who in February provided amended elevations and sections showing the lift overrun to be higher than originally anticipated and higher than the Clause 4.6 Statement reflected. The Clause 4.6 Statement was not updated to reflect this change.
129. The up to date sections (see Figure 15 above) show clearly the RL’s to the uppermost part of the building. The plans relied upon by the Clause 4.6 statement dated December 2019 do not include any RL’s to the top of the roof structures (refer to Figure 14 above). The more accurate and up to date sections show the non-compliance to be in the order of 4.8m which is a further 1.06m higher than the assumption used by Planning Ingenuity to prepare their updated Clause 4.6 Statement.
130. Although this additional height may not be considered substantial in the overall scope of works it has not been taken into account when preparing the Clause 4.6 Statement which makes the statement inaccurate and therefore the request cannot be considered to be well-founded as it isn’t based on the most up to date information.
b) To minimise the impact of overshadowing, visual impact and loss of privacy on adjoining properties and open space areas
131. Applicants comment: “The height variation relates to the lift overruns and shading structures at the rooftop terraces 2 and 3. These built forms are relatively central to the site, and will therefore have no substantial impact on overshadowing to adjoining properties. For the same reason, the visual impact will also be acceptable. Landscaping is provided to the edges of Terrace 3 to ensure overlooking to adjacent lower density residential areas is minimised. Due to the minimal nature of the items that breach the maximum building height, the impacts to overshadowing, visual impact and privacy are minor”.
132. Council comment: At the time of preparing this report no updated shadow diagrams have been prepared considering the additional shadowing of the rooftop structures and their associated impacts. The Statement does not provide enough information to ensure that the impacts (overshadowing, visual impacts and loss of privacy) are minimised. There are no sight lines provided that ensure the rooftop communal open space at the top of the rear building (where it exceeds the height limit) will not overlook the adjoining residential properties.
133. The evidence to demonstrate impacts are minimised and the exceedance in the height does not adversely affect the amenity of the street and adjoining properties has not been presented to adequately justify that this objective has been met.
c) To provide appropriate scale and intensity of development through height controls
134. Applicants comment: “The extent of the building height non-compliance varies as a result of the topographic characteristics of the site and the massing arrangement that has been adopted. It is important to note that the building height variation is not a by-product of non-compliant development density. The scale and intensity of development from a building density perspective is consistent with that of a compliant development, as evidenced by compliance with the maximum FSR of 2.5:1. Importantly, the proposal has been amended to ensure that no habitable floor space is located above the maximum building height.
135. The proposal concentrates the building mass at the south-eastern corner of the development site and this is an appropriate response to the ‘gateway’ location of the land in that this arrangement gives prominence to the corner which is the southern-most block in the Blakehurst Local Centre and the first block one encounters when travelling in the northbound lane. The variation in the development scale and intensity across the site is appropriate for the reasons described above and importantly the proposal complies with the maximum FSR of 2.5:1.”
136. Council comment: The proposed scale of the building is considered generally satisfactory and consistent with similar contemporary mixed-use developments in the immediate locality (ie 621 Princes Highway). The 21m height limit anticipates a development of 6-7 storeys which this proposal satisfies. Given the site is located on a prominent corner location some additional height may be warranted and acceptable provided no impacts are generated.
137. As the southern side of Water Street includes a public car park and associated reserve, it is unlikely any adverse impacts will be created however the additional height could be in the form of an architectural element or roof element not a lift overrun as this is a solid ancillary structure which does not add value or architectural merit to the building.
138. It is also accepted that the buildings on site complies with the floor space permitted however, the way the massing and built form is translated across the site is important to consider. The proposed bulk and scale is generally considered acceptable and given the proposal has been amended and density and overall height reduced the urban design response is considered to be more in line with the expected form for development within this zone.
139. So in respect to the proposal (as amended) satisfying the objectives of the height control it is considered that the justification for the non-compliance is not warranted or well supported by appropriate evidence and documentation.
140. The argument in the Clause 4.6 Statement is considered to be too weak and does not provide clarity and enough substance to ensure impacts are minimised and the degree and extent of variation in this case is reasonable or necessary. In addition the justification has been derived using the incorrect height.
141. The objectives of the B2 Local Centre zone are;
· To provide a range of retail, business, entertainment and community uses that serve the needs of people who live in, work in and visit the local area,
· To encourage employment opportunities in accessible locations,
· To maximise public transport and patronage and encourage walking and cycling.
142. When considering compliance against the zone objectives the Applicant provides the following:
143. Applicants comment: “The proposal incorporates commercial floor space at ground level and it is anticipated that this space will be tenanted by a range of retail and business uses that serve the needs of people who live, work and visit Blakehurst Local Centre, The commercial floor space comprises two tenancies measuring 81sqm and 410sqm which will allow for a range of uses and business sizes. The larger of the tenancies is suitable for small format supermarket. A coffee shop is also provided on the Water Street frontage at Level 1, serving the needs of local residents both within the subject site and in the adjoining residential areas.
144. The commercial floor space proposed will potentially be tenanted by a range of retail and business uses and the extension will create employment opportunities. The site currently contains two small commercial tenancies which are vacant and therefore offers few viable employment opportunities at present. The development will markedly improve the range and quantum of jobs available in this locality. The site is accessible in that it is proximate to a number of north and south bound bus stops serviced by numerous bus routes, including 958 providing services to Hurstville and Kogarah, route 959 providing a loop service to Hurstville and route 970 providing a service to Miranda and Hurstville and route 971 providing a service to Cronulla and Hurstville.
145. The proposal includes bike storage and will therefore encourage the user of bicycles as an alternative transport option. By increasing residential density in this location, the development will undoubtedly maximise patronage of local bus services, even if only a small portion of residents utilise public transport services as opposed to driving. Furthermore by co-locating residential and commercial uses residents will be less inclined to leave the site by car if they are able to obtain the necessary goods and services on site.”
146. Council comment: It is fair to say that the development delivers and satisfies the zone objectives. Currently this small shopping precinct has local shopfronts and include a series of commercial uses which are not primary retail or commercial uses but secondary in nature. There is a lack of decently proportioned retail shops to service the local community.
147. The new development at 621 Princes Highway includes a child care centre on the ground floor; however this too restricts retail activation at this location. The proposal provides for a larger retail tenancy that could be utilised as a supermarket which would be a well-resourced and well serviced land use as no other is provided in this precinct. The other two tenancies offer diversity in retail/commercial activities that could be catered for at the site. In this case and through the design of the development the zone objectives have been satisfied and met.
148. In considering the breach and preparation of the Clause 4.6 Statement, the Department of Planning and Environment’s publication “Varying development standards: A Guide” (August 2011), assists and outlines the matters that should be considered when varying a development standard. The Guide has essentially adopted a 5 point test for consideration which was also set out by the Land and Environment Court in Wehbe v Pittwater Council (2001) NSW LEC 827, specifically that there are five different ways in which compliance with a development standard can be considered unreasonable or unnecessary, namely:
· the objectives of the standard are achieved notwithstanding non-compliance with the standard;
149. Comment: As discussed above, the degree of variation as depicted in the Clause 4.6 Statement is not consistent with the updated elevation and therefore justifying the non-compliance is not considered to be accurate. In this case it cannot be said that the objectives of the standard have been achieved despite the variation.
· the underlying objective or purpose of the standard is not relevant to the development and therefore compliance is unnecessary;
150. Comment: The objectives of the building height standard remain relevant and as discussed above the Statement has not calculated the variation accurately and therefore determining the impacts of the breach are not considered to be up to date or accurate (ie the lack of updated shadow diagrams and the lack of any sight lines to ensure overlooking from the rooftop is minimised despite non-compliance has not been provided).
151. As such there is inadequate information to justify that the variation is acceptable and satisfies the objectives of the control.
· the underlying object of purpose would be defeated or thwarted if compliance was required and therefore compliance is unreasonable;
152. Comment: If by chance the variation is considered to be acceptable in the circumstances the object and purpose would not be defeated or thwarted as the breaches only relate to ancillary structures and do not relate to any habitable areas. As such the majority of the buildings on site comply with the control.
· the development standard has been virtually abandoned or destroyed by the Council's own actions in granting consents departing from the standard and hence compliance with the standard is unnecessary and unreasonable;
153. Comment: The building height standard has not been abandoned by Council through its actions and the granting of consent for other buildings in the vicinity that depart from the standard.
· the zoning of the particular land is unreasonable or inappropriate so that a development standard appropriate for that zoning is also unreasonable and unnecessary as it applies to the land and compliance with the standard would be unreasonable or unnecessary. That is, the particular parcel of land should not have been included in the particular zone.
154. Comment: The proposed mixed-use development is a permissible land use and the zoning of the site is considered to be appropriate in this location and in the context of the surrounding land uses and built form.
155. In light of the above, the Applicant has failed to demonstrate that the first test under the Wehbe method has been met, and as such the Clause 4.6 Statement in this case cannot be supported and is not considered to be well founded.
156. The Clause 4.6 Statement fails to accurately account for the actual degree and amount of variation sought and does not provide sufficient evidence to ensure compliance with the objectives of the height control and that these have been met despite the non-compliance. As such there are insufficient environmental planning grounds to justify contravening the standard as per the requirements of Clause 4.6(3)(b) of the KLEP and the variation in this case is not in the public interest.
(d) the concurrence of the Director-General has been obtained.
157. In accordance with clause 64 of the Environmental Planning and Assessment Regulation 2000, Council may assume the Secretary’s concurrence for exceptions to development standards for applications made under clause 4.6 of the LEP. This was further confirmed by directions provided within Planning Circular PS 18-003 issued on 21 February 2018.
Whether contravention of the development standard raises any matter of significance for State or regional environmental planning (Clause 4.6(5)(a))
158. Contravention of the maximum height development standard proposed by this application does not raise any matter of significance for State or regional environmental planning.
Conclusion – Assessment of Clause 4.6 Request for Variation
159. Despite the non-compliance in terms of the height, the proposed variation is considered to be unreasonable given that the Clause 4.6 Statement does not accurately detail the degree of non-compliance and lacks acceptable justification to prove that the variation satisfies the building height standard objectives and fails to convince Council that the non-compliance is in the public interest.
160. It is considered that the Clause 4.6 Statement lodged with the application and as updated in December 2019 is not well founded as the height of the building is inaccurately documented and there are insufficient environmental planning grounds to justify contravening the standard in accordance with the provisions of Clause 4.6.
KOGARAH DEVELOPMENT CONTROL PLAN 2013
161. The Kogarah Development Control Plan 2013 (KDCP) is applicable to this development. Part B (General Controls) and Part D (Commercial and Industrial) of the Plan are relevant. The following compliance table considers the main controls in accordance with the plan.
Table 6: Compliance Table – Kogarah Development Control Plan No. 1
|
Performance Criteria |
Design Solution |
Proposal |
Complies |
|
Part B General Controls |
|||
|
B2 Tree Management and Green Web |
(2) Development consent or a Council permit is required to ringbark, cut down, top, lop, remove, injure or wilfully destroy any tree, whether on private or public land, which has: (i) A height greater than 3.5m, or (ii) A branch spread exceeding 3 metres in diameter (3) An application to ringbark, cut down, top, lop, remove, injure or wilfully destroy any tree shall contain the following information: (i) An application on the prescribed form. (ii) The written consent of the land owner unless the application is for pruning a tree over the applicant’s property from a tree on the neighbouring property. (iii) Details as to the reasons for the pruning/removal of the tree. |
This issue has been discussed in greater detail above. There are a number of trees that are proposed to be removed. Most species are considered to be significant and important given their condition and vigour. Although the arborists report alludes to their development being compromised and supressed to a large degree due to the development across the site and also the fact most of the site is concreted Council’s Landscape Officer does not agree with this observation. Discussion regarding the significance of existing trees on site and their removal has been addressed earlier in this report. The subject site is not identified as being part of the Green Web Within a Habitat Corridor or Habitat Reinforcement Corridor) however the reserve across the road is designated as a Green Web site. The site has a cluster of trees however these are not identified as significant in council’s mapping system and noted as “Urban/Exotic/Native species”. The Site is not subject to a Biodiversity Offset Scheme. The Applicant has provided quite a lot of information regarding the proposed removal of the trees onsite however Council’s Landscape Officer is not satisfied with the reasoning for their removal. Council’s Landscape Officer states that the trees are important and significant species which add aesthetic and visual value to the immediate area. They provide a substantial green buffer between the business and residential zone and given their condition there is no justification for their removal. The retention of the key trees (No.1, 4 and 5) as requested by Council’s Landscape Officer will supress and limit development across the Site due to the TPZ’s that will need to be provided. However no alternative development scheme has been considered despite the DRP’s concerns expressed relating to tree removal and in the need to explore a different built form. |
Yes |
|
B3 Development near Busy Roads and Rail Corridors |
Acoustic assessments for noise sensitive developments as defined in clauses 87 and 102 of the Infrastructure SEPP may be required if located in the vicinity of a rail corridor or busy roads. |
This issue has been addressed earlier in the report in detail, The application was accompanied by an Acoustic Report which has been considered and assessed in detail. If approval is recommended then the recommendations of the report are to be endorsed by way of a condition on the consent. |
Yes |
|
B4 Parking and Traffic The car parking rate for development types are outlined in Table 1 – Parking Requirements. In the event of a discrepancy between the parking rates specified in this Part of the DCP and another Part of the DCP, the specific requirements identified within the detailed controls for a locality/area shall prevail.
It should be noted that the parking spaces required by this DCP are minimum numbers. Some uses, due to the nature of their operation, may warrant additional parking spaces and these may be required by Council. |
1 bedroom unit = 1 space/unit
2 bedroom unit = 1.5 spaces/unit
3 bedroom unit = 2 spaces/unit,
plus 1 visitor space/5 units or part thereof, and 1 designated car wash bay which may also be a visitor space
A minimum of 1% of the total number of car parking spaces within the development are to be designated “accessible” spaces for people with mobility impairments. For developments with less than 100 car spaces, a minimum of one accessible space must be provided Designated accessible car spaces may be treated as resident car spaces in the calculation of parking requirements.
Shops/retail 1space/25m² of gross leasable floor area
For commercial developments or for the commercial component of a mixed development – 1 space per 5 car parking spaces.
For the residential component in a mixed use/shop top housing development – 1 space per 3 dwellings plus 1 space per 10 dwellings (visitors).
Bicycle parking facilities are to be designed in accordance with Australian Standard AS2890.3 – 1993 (Parking Facilities – Part 3 Bicycle Parking Facilities).
Internal car park layouts, space dimensions, ramp grades, access driveways, internal circulation aisles and service vehicle areas shall be designed in accordance with the requirements set out in AS 2890.1 (2004) and AS 2890.2 (2002) for off street parking and commercial vehicles.
Loading Bay Retail floor area 15sqm – 500sqm – One loading dock is required 500sqm – 1500sqm – 2 loading docks are required. |
11 x 1 space (1 bed) = 11 spaces 25 x 1.5 spaces (2 bed) = 37.5 spaces 14 x 2 spaces = 28 spaces
Required Residential Total = 77 spaces
Visitor spaces = 50/5 = 10 spaces and one designated as a carwash bay.
Retail = 526sqm/25sqm = 21 spaces Subtotal = 108 spaces
Provided 86 resident spaces (including 8 accessible spaces) 11 visitor spaces (1 space doubles up as a car wash bay No.11). 21 retail spaces (1 x accessible retail spaces)
Subtotal = 118 spaces The proposal exceeds the numerical requirements for car parking pursuant to the KDCP which are minimum requirements. The development includes six (6) small car spaces but given that the number of spaces exceeds the minimum requirement by 10 spaces this is considered satisfactory. If consent is to be granted a condition should be included to define and delineate each small space (retail/visitor or residential).
The proposal requires a minimum of 1 accessible space for persons with a disability. The proposal provides for five (5) accessible spaces provided on upper basement level plan. As there is no commercial component no parking for the retail component is required.
For the residential component, 17 bicycle spaces are required and 5 spaces for visitors. Total of 22 bicycle parking spaces are to be provided Total of some 7 spaces are provided along the entry (adjoining Lobby 1 and 3) There is also a designated bike storage area that aims to cater for over 20 bikes in the form of traditional parking and including wall racking.
The car parking spaces and general parking layout is compliant with Australian Standards and in accordance with Council’s controls.
Although technically 2 loading docks are required the retail floor space is 526sqm which is marginally over the 500sqm minimum before it triggers the need for 2 loading docks. Also given there is one larger retail space this would be the only use generating the regular need/demand for the loading dock. The other two retail tenancies are small (81sqm and 35sqm) and these would not rely heavily on the need of a loading dock for servicing the uses. One large, well designed loading dock has been provided that complies with the minimum bay width of 3.5m and length of over 6.5m which will cater for an MRV (medium rigid vehicle) The development also has two large designated spaces for motor bike parking. The KDCP does not specify a minimum requirement for the amount of motorbike parking. |
Yes
Yes
Yes
Yes
Partial non-compliance with loading bay requirements but considered satisfactory |
|
B5 Waste Minimisation |
Prepare the Waste Management Plan in accordance with the requirements in Kogarah Waste Not Plan 2012.
For residential flat buildings with a passenger lift, the development shall incorporate a garbage chute system which complies with the following requirements:
(i) Garbage chutes are to be accessed from communal internal garbage and recycling rooms located on every floor.
(ii) Domestic waste deposited into the chute system is to be bagged and transferred to the garbage bins. |
A waste management plan accompanies the application which has been assessed by Council’s Waste Management Officer.
Although garbage chutes are not included as part of the development the general waste management arrangement is considered to be satisfactory.
There are several spaces designated for waste disposal within the basement levels. The number and location of bins and associated storage is considered to be acceptable. No chute system proposed. |
Yes |
|
B7 Environmental Management |
Development is to be designed and constructed to reduce the need for active heating and cooling by incorporating passive design measures including design, location and thermal properties of glazing, natural ventilation, and appropriate use of thermal mass and external shading, including vegetation. |
The development has been amended to include a series of environmentally sustainable measures. The proposal includes the provision of a series of photovoltaic solar panels on the roof and skylights. This will improve the environmental performance of the building. A rainwater tank is located within upper basement level.
If approval is granted a condition could be imposed to require a space within the basement to be designated to accommodate a car battery charging facility. |
Yes |
|
Part D Commercial and Industrial |
|||
|
D1 Development in the B1 and B2 zones 3.1 Streetscape
3.2 Shop-top housing
3.4 Building Heights
3.5 Setbacks
3.6 Building Design
3.6.7 Public Art
3.6.8 Roof forms and parapets
3.6.9 Signage
3.8 Dwelling mix
3.9 Home Office
3.10 Storage
3.12 Amenity
3.13 Open space and Landscaping
|
Facades are to be ordered and articulated to visually break up the building massing, for example through materials, colour and the design of openings. Large areas of glass curtain walling and blank walls are to be avoided.
Enhance pedestrian amenity through the provision of continuous awnings for weather protection.
Site and design vehicular access (driveways, parking facilities, service access and garages) away from the main street frontage, from rear lanes or secondary streets
The ground floor level of buildings shall maintain active retail/commercial uses facing the street.
Residential uses are only be permitted subject to demonstration of satisfactory amenity for building occupants, particularly in relation to impacts from noise, fumes and vibration on heavily trafficked streets.
Building heights are to be in accordance with the Locality Controls. Buildings are massed towards the street frontage and step down towards the rear, to be in keeping with the existing retail/commercial built form pattern and compatible with the scale and character of adjacent residential areas.
Where allotment adjoins a low density residential area, buildings should be: (i) reduced in height in accordance with the locality controls; and (ii) setback from the adjoining property boundary
Floor to ceiling heights should be a minimum of 3m at ground floor level, to allow for a range of uses including retail, commercial offices and home offices. Floor to ceiling should be a minimum of 2.7m at the upper storeys of the building, to allow for a range of uses, and to improve the environmental performance and amenity of the building.
Buildings adjacent to public roads are generally to align with and be built to the street frontage to provide continuity in the streetscape and encourage active frontages to ground level. Side setbacks are generally not permitted in order to maintain the continuity of active frontages, unless specified in the locality controls.
Where the locality abuts a residential zone and/or a residential allotment, the side setbacks are generally to be a minimum 3m, except where the locality character is established by the existing footprints and the allotment capacity of the locality would be unreasonably constrained. Refer to the Locality Controls of Part D2 for specific side setback requirements.
Ensure that corner buildings respond to the characteristics of the two streets they address, reinforcing the corner elements.
Encourage identifiable, good quality entry spaces to lobbies, foyers or individual dwelling entrances.
Each apartment is to have at least one primary balcony.
Primary balconies are to have a minimum depth of 2.5m and a minimum size of 10sqm.
Development on sites over 1000sqm should, where possible include the provision of high quality artwork within development in a publicly accessible location.
The artwork should be prepared having regard to links between the Locality and details of such artwork and the proposed location are to be submitted with the Development Application.
Variation to the existing pattern of roof forms may only occur where the parapet line is not disrupted and where the new roof is not visible from the street below or adjacent public areas.
Ensure that signage is in keeping with the scale of development, quality and overall design.
Provide a mix of studios, 1, 2 and 3 or more bedroom apartments in varying layouts.
Clearly identify the home office area, ideally by designing it so that it can be closed off from the rest of the apartment. The design should be sufficiently flexible to allow later or alternate use as part of the residence.
All developments must provide a designated secure storage space (in addition to any areas set aside for off street parking) to a minimum floor area of 4m2 for each dwelling or unit.
Visual Privacy Design building separation for parallel ranges of buildings to at least the following standards for the residential component: · 12m between habitable rooms/the edge of their balconies · 9m between habitable rooms/the edge of their balconies and non-habitable rooms. · 6m between non-habitable rooms Offset facade openings from existing openings in adjacent development to minimise direct overlooking of rooms and private open spaces.
Retain existing, and incorporate new indigenous trees, shrubs and ground cover where appropriate.
Maximise deep soil zones to provide for substantial landscaping and mature trees. Submit a landscape plan prepared by a qualified landscape architect.
|
The amended design has altered and the visual appearance of the front façade has been improved by breaking up the bulk and mass of the building by creating vertical bays and dividing up sections of building.
A continuous awning is proposed that wraps around the corner of the site. A condition will be imposed to ensure the height, type, style and design detailing of the awning is consistent with Council’s requirements and that of the RMS and RailCorp.
The proposal through its design has created a service lane at the rear which will act as a form of “secondary” access and will separate the driveway from the busy corner of Water Street and Princes Highway. This arrangement also avoids any access being provided off Princes Highway. A more detailed discussion in respect to the service lane is provided later in this report.
The ground floor includes retail uses in accordance with the DCP.
RFB’s are permitted land uses within the B2 zone and the general design of the development satisfies the ADG.
Refer to this discussion which is provided below. The original design created a taller building towards the corner however this additional level exceeded the statutory height control and the degree of variation could not be supported. The additional storey has been removed and the corner is still well articulated and includes some architectural treatment (through varying materials and finishes) to define this prominent location.
The allotment adjoins the R3 zoned residential properties to the west. The height of the building at the rear complies with the overall height control of 21m. The rear building has not been designed to transition down towards this residential zone (which permits a maximum height of 15m). The rear building is setback between 6m and 9m which generally complies with the separation distances that are required in accordance with the ADG. A better outcome would be achieved if the rear building would be reduced in scale by one storey so that there would be a step in the built form tapering from 7 storeys at Princes Highway down to 5 storeys down to the residential zone to the west which permits built forms of 4-5 storeys.
The floor to ceiling heights of 3m and 2.7m respectively are satisfied and are also in accordance with the ADG
The building aligns to all street frontages (Water Street and Princes Highway) in accordance with the DCP control. The front building has a nil side setback to Water Street and to 653 Princes Highway whilst the back RFB is setback 3-4m from the northern boundary which is a benefit for this building as it allows for cross ventilation into the apartments and offers a dual aspect and until the building to the north is developed good solar access. Any potential future development to the north can still be built on the boundary and can be designed to have a defensive wall.
The building at the rear is setback 6-9m from the rear (western) boundary
The building has been designed to enhance the corner location by including a blade wall that defines the development and its location. The differentiation in design along Princes Highway (which exemplifies a more commercial mixed use style) and Water Street (which exemplifies a more residential character) ensures that the development addresses each street and its different character.
Lobbies are considered to be wide and spacious.
Most units have two balconies which are compliant with the requirements for balcony sizes in accordance with the ADG. The one bedroom apartments will not comply with the DCP controls and neither will the width of the balconies for the two bedroom apartments as widths are 2m not 2.5m. Satisfies the ADG provisions. In addition many units have two sets of balconies which substantially improves the amenity of these spaces.
The site is over 1,000sqm. The provisions in respect to the incorporation of public art in accordance with the DCP has not been strictly implemented to date. This development has been designed so that it can accommodate a sculptural feature or public art within the central courtyard space and could be included as a condition of consent if this is considered to be a reasonable request. The central courtyard is essentially a private area and therefore CPTED issues would arise if members of the public could freely access this space. Alternatively a sculpture could be included at the front of the site along Water Street and could be provided within the outdoor front terrace area adjoining the proposed café. This would be a better location and could be easily appreciated by members of the public and add interest to this building.
The proposed flat roof form is consistent with the type and style of roof forms in the locality and this caters for the ability to have communal open space within the roof. A small parapet is proposed but this is not designed to be a high or dominating feature and is sympathetic with the anticipated character for new contemporary developments.
The only signage proposed is along the corner of the Site which is a standard building identification sign which outlines the street/building name.
The proposal provides a mix of 1, 2 and 3 bedroom apartments of varying styles, layouts and sizes.
Not proposed. The small study areas are located within some apartments (i.e. unit 03, 15, 26, 35, 43) however these spaces are not designed to be home offices in the true sense.
The development has been well designed and includes independent storage spaces for each unit in the basement The area of each storage space satisfies the ADG requirement of 6 cubic metres, 8 cubic metres and 10 cubic metres for each 1, 2 and 3 bedroom apartments respectively. The ADG provisions override the DCP provisions and the development would not satisfy the 4sqm requirement as this would require a minimum space of 1m x 4m or 2m x 2m to be designated for storage which is quite a large area.
As previously discussed the internal separation distance between buildings is generally 12m however there are sections of the communal courtyard that do not achieve the 12m minimum however apartments have been designed so that overlooking is minimised between apartments.
This issue has been discussed in greater detail earlier in this report in respect to separation distances under the ADG.
Window openings have been sensitively designed and orientated away from other apartments and internal spaces.
The proposal fails to satisfy the DCP control and seeks to remove all the existing vegetation on site. As previously mentioned Council’s Landscape Officer does not support the proposed approach and believes the existing trees add valuable visual amenity to the area and are significant visual features in good condition.
|
Yes
Yes
Yes
Yes
Yes
No
No see further discussion below
Yes
Yes
Yes
Yes
Yes
Yes
No but acceptable and balcony sizes and dimensions comply with the ADG
No but could be dealt with via a condition
Yes
Yes can also be regulated through conditions
Yes
Yes
Yes
No but generally considered acceptable
Yes
No discussed in greater detail below
|
|
D2 – Commercial Locality Guides 12. Blakehurst |
|||
|
12.3 Design Solutions
12.3.1 Height
12.3.2 Preferred Land Use
12.3.3 Amalgamation
12.3.5 Pedestrian Entry
12.3.6 Car parking
12.3.8 Balconies
|
The street wall height to the Princes Highway/King Georges Road is to maintain a two (2) storey façade.
The maximum number of levels = 3.
The maximum overall height (to the uppermost habitable part of the building) = 10.2m. The total overall building height (including roofs and any projections such as plant, lift overruns, blades or the like) shall not exceed 2m above the habitable part of the building. No development is permitted in the roof void.
Ground floor - retail, first floor - commercial/residential and second floor –commercial/residential
The DCP anticipates the amalgamation of the three lots at 659 Princes Highway to facilitate the development.
Should be obtained from Princes Highway and side streets
Off street parking is to be provided for any new development either underground or at the rear of the properties.
Where a basement is provided as part of a development, no part of the basement is to be elevated above ground level fronting the Princes Highway.
To maintain the privacy of the adjoining properties to the rear of sites fronting the Princes Highway, balconies along the rear elevations of buildings are to be designed to prevent down viewing onto the adjoining residential properties. This is a particularly important consideration for properties between James Street and Water Street. |
The height provisions proposed for this precinct in accordance with the KDCP are not in line with the updated statutory height control of 21m in the KLEP. The LEP controls take precedence and the DCP controls have not been updated to reflect these changes and are therefore not applicable.
The proposal satisfies the preferred and intended land uses for this mixed use development.
Satisfies the proposed amalgamation plan. The proposal includes No.655 Princes Highway which does not form part of this site however its inclusion will not isolate any allotments and suitable built form outcomes will still be able to be achieved if sites are consolidated and redeveloped immediately to the north.
Two lobbies are provided with access off Princes Highway and one lobby off Water Street which complies with the DCP requirement for pedestrian access to the development.
The development has been designed to provide driveway access through the provision of a “service lane” at the rear of the site.
The basement levels are not elevated and do not protrude above existing ground levels.
The balconies at the rear of the building are setback 6 - 9m from the residential development to the west. A condition should be imposed if the application as to be supported for these balconies to include sliding, full height privacy screens to balconies at all levels as this will reduce the potential for overlooking but also enable some greater solar protection to these spaces as they face west. |
No but height control superseded by KLEP provisions
Yes
Yes
Yes
Yes
Yes
Yes
|
Provision of a service lane/accessway at the rear
162. The desired character statement for development within the Blakehurst locality states that “Vehicular access to sites should be from Stuart Street, via Stuart Lane (where the rear lane already exists). For the properties fronting the Princes Highway, between James Street and Water Street, vehicular access from the rear or side streets may be more difficult to achieve. It is considered that the creation of rear lane access between James Street and Water Street may not be a viable option. In this regard, the creation of rear lane access between James Street and Water Street will not be required. Where possible, access via a right of way should be provided from 659 Princes Highway. For the sites 645-649 Princes Highway, vehicular access from the Princes Highway may be the only acceptable solution. This would be subject to approval from the RTA.”
163. Although the DCP recognises that access from the rear (via the creation of a new service lane) may be difficult to achieve if it works and is a viable option it should be considered. In this case the development relies on a service lane which provides access to the basement. The lane starts at grade from Water Street but slopes down and becomes lower than the existing ground level so that access below ground is achieved.
164. It would seem that the intent of the DCP would be an at grade rear service lane that would link up to James Street. Although this would be the preferred design solution the proposed design is such that it would allow for future redevelopments to the north 651 and 653 Princes Highway to link up to this access point even though it may be partially submerged.
165. It would reduce the need for access off Princes Highway. The service lane would need to become an easement or right of way on the title so that future development could potentially utilise it. If approval is granted an easement on the title will need to be worded such that the service lane could potentially be utilised by future developments to the north. This could be a deferred commencement condition. The provision of the service lane does have its benefits as it removes the likelihood of a podium over the basement which may occur if no service lane was created.
Parking and traffic
166. An updated Traffic and Parking assessment report was prepared by Terraffic dated 24 March 2019. This was prepared in response to the first set of amended plans that were prepared. The report considers the parking layout and its numerical compliance. As stipulated earlier in this report the numbers of car parking spaces that have been provided are in accordance with Council’s DCP and the 118 spaces exceed the minimum required. The traffic assessment report also assessed the parking layout and general arrangement and made the following observation;
“The proposed car parking areas and access ramps have been designed to generally satisfy the following requirements of the Australian Standard AS/NZS2890.1:2004 – “Off-street car parking”:
• Class 1A long-stay residential parking spaces have a minimum length of 5.4m and width of 2.4m
• Class 3A short-stay retail spaces have a minimum length of 5.4m and width of 2.7m
• Small car spaces are a minimum 5.0m long and 2.3m wide
• The access/manoeuvring aisles for the Class 1A spaces are a minimum 5.8m wide
• The access/manoeuvring aisles for the Class 3A spaces are a minimum 6.2m wide
• An additional 0.3m has been provided for spaces adjacent to a wall or obstruction
• 1.0m wide dead-end aisle extensions have been provided where necessary
• Pavement cross-falls at parking spaces do not exceed 5% (1 in 20) in any direction
• Columns have been located in accordance with Clause 5.2 of the Standard
• The first 6m of the access ramp from the property boundary does not exceed 5% (1 in 20)
• Maximum ramp grades do not exceed 20% (1 in 5) and are measured along the inside curve
• Ramp transitions do not exceed 12.5% (1 in 8) over a distance of 2.0m
• Two-way access ramps have a minimum roadway width of 5.5m with 2 x 300mm kerbs
• A minimum headroom clearance of 2.2m has been provided throughout the basement car park
• Pedestrian sight lines in accordance with Figure 3.3 of the Standard have been provided at the property boundary to enhance pedestrian safety
The disabled parking spaces have also been designed in accordance with the Australian Standard AS/NZS2890.6:2009 – “Off-street parking for people with disabilities” as follows:
• A 5.4m long x 2.4m wide dedicated (non-shared) parking space
• An adjacent shared area that is also 5.4m long x 2.4m wide
• A 2.4m long x 2.4m wide shared area that is located within the access aisle (not marked)
• A minimum headroom of 2.5m above the disabled spaces
• Pavement cross-falls in disabled spaces do not exceed 2.5% (1 in 40) in any direction
167. The proposed development includes a dedicated loading bay which measures 10m x 4m in the ground level car park. The loading bay has been designed to comply with the Australian Standard AS2890.2:2002 accommodating an 8.8m long Medium Rigid Vehicle (MRV) with a headroom clearance of 4.5m.
168. The ability of the MRV to access the loading dock was tested by Terraffic using the Autodesk Vehicle Tracking software. This program has been specifically created for the simulation of vehicle turning manoeuvres and includes all vehicles specified by the Australian Standards and Austroads. In this case the proposal satisfies the requirements for accommodating vehicles of this nature.
169. Council’s traffic and parking provisions require two (2) loading bays to be provided. This is not considered reasonable as the retail component of the development has been designed to include one larger tenancy and two small ones. The small tenancies are unlikely due to their size (80sqm and 35sqm) to generate the need for MRV’s to distribute goods or services to these spaces. The one large tenancy (over 400sqm) could cater for a small convenience store or small supermarket and it is this use that is likely to take advantage of the loading dock as well as the occasional reliance by units which may have tenants moving in or out.
170. The retail scale, type and use of the development are unlikely to generate the need for two loading bays. The proposal complies numerically with Council’s controls in terms of the number of car parking spaces required and the deficient loading bay is considered acceptable in this instance.
Traffic Generation
171. In respect to the traffic generation created by the development the density has been further reduced with the final set of plans proposing 50 apartments. The results of the traffic generation that is proposed will be slightly less given that change. The updated traffic assessment was conducted on the basis of the development catering for a density of 53 apartments and 3 retail tenancies having an area of some 526sqm.
172. The submissions received by neighbouring properties have raised significant concern regarding vehicular movements along this street and current congestion being worsened by the development. It is recognised that Water Street is one of the only streets along this immediate stretch off Princes Highway that allows for vehicles to access Princes Highway to travel southward. This arrangement means that Water Street attracts vehicles from other streets adjoining the site creating congestion along Water Street at peak times in particular.
173. Many residents were concerned that the vehicular access point for the development is too close to the busy intersection and public carpark and traffic generated by the development will adversely affect and influence this key intersection that locals rely on. It is fair to say that the Princes Highway along this part of Blakehurst is exceptionally busy and generates a lot of traffic movement during any day of the week. The vehicular access point has been altered and moved from its originally proposed location (more central) and is now located some 45m from the intersection with Princes Highway. This is at the furthest point of the site from the intersection which will reduce potential conflicts and considered acceptable given that the only other option for access is off Princes Highway and this will not be permitted by the RMS. The residents raised a series of valid issues that are currently occurring which should be addressed and improved. There are potentially a whole series of options that could be adopted that would reduce congestion (i.e. restricting access to the public car park from Water Street only and closing off Church Street access as this additional access to the car park means cars are cutting through any queues and obstructing traffic flows. There are improvements that could be considered however these would need to be flagged with Council and considered by the Local Traffic Committee.
174. The existing trip generation rates were considered assuming the service station (former use) was operating and in addition to this the commercial premises at No.655 was counted and considered. On this basis at the worst case the land uses would generate 83 trips per hour in peak periods. The traffic assessment considered that the residential component was classed or categorised as “high density residential” and generated 0.29vtmph. High density developments in the RMS guidelines relate to developments in Metropolitan CBD areas and close to public transport.
175. This site is not considered to qualify as “high density” and should be considered as medium density and generation rates revised to be consistent with this form of development (0.50vtmph for 2 bedroom units and 0.65vtmph for the 3 bedroom units need to be calculated as per medium density rates). This amounts to 31 movements per hour in peak for the residential component (as opposed to 15 anticipated by the assessment) and the retail component remains as approximately 25 traffic movements (although the retail floor space has been marginally reduced since the initial and amended assessment was conducted). The development would generate a total of some 56 vehicular traffic movements in total as opposed to the 40 originally predicted by the assessment. Terraffic’s assessment of the former uses (service station and commercial office building) generate approximately 83 trips per hour in the peak period and the proposed development generating a total of 56 trips is less and not considered to have an adverse impact on the local residential streets. Despite some residents stating that the previous service station use is no longer in operation that land use shouldn’t be considered. The previous use was a legal and legitimate use which although no longer in operation did have an impact and should be considered as part of the assessment.
176. What also needs to be taken into consideration is the current tidal flow situation along Princes Highway. As previously mentioned this section of the roadway is very busy and pressure is also placed on immediately adjoining streets. RMS proposes substantial works along Princes Highway between James Street south of Torrens Street to improve traffic movements and flows. Part of these works are reflected by the RMS acquiring sections of sites (including the subject site and across the road along the Todd park frontage). The proposed works are extensive and include the following;
• Widening Princes Highway between James Street and south of Torrens Street to accommodate the removal of the existing tidal flow arrangement
• Removing the existing tidal flow arrangement on Princes Highway to allow a freeflow of traffic, with four northbound lanes and three southbound lanes between James Street and south of Torrens Street
• Strip acquisition of the southern verge of Todd Park, adjacent to Princes Highway, to accommodate the widening of Princes Highway
• Construction of new medians on Princes Highway and upgrade of traffic signals at the intersections of Princes Highway and Torrens Street, Water Street and Bunyala Street
• Realigning the access into Torrens Street from Princes Highway to accommodate the widening of Princes Highway
• Removal of two car parking spaces near the access into Torrens Street from Princes Highway to accommodate the realignment
• Strip and property acquisition of residential and business premises on Princes Highway to accommodate the widening of Princes Highway
• Realigning the access into Church Street from Princes Highway to accommodate the widening of Princes Highway
• Adjusting the access into the Church Street car park from Church Street, and relocating of a water bubbler to accommodate the widening on Princes Highway
• Relocating the existing north bound bus stop on Princes Highway, from south of Church Street, to closer to the Church Street car park
• Installing a new signalised pedestrian crossing on Princes Highway, south of Torrens Street
• Installing new signalised pedestrian crossings on Bunyala Road, Water Street and Torrens Street, at the Princes Highway intersections
• Adjusting existing footpaths on Princes Highway, Torrens Street and Church Street
• Upgrading and relocating the existing street lighting, utilities, signage and drainage
• Tree removal, trimming and landscaping.
177. The timing and scheduling of these works is unclear however once implemented should improve traffic flows and movement within along the Princes Highway as well as within the immediate vicinity of the highway.
Built form and transition to the residential zone
178. The side setback controls within the KDCP state that “where the locality abuts a residential zone and/or a residential allotment, the side setbacks are generally to be a minimum 3m, except where the locality character is established by the existing footprints and the allotment capacity of the locality would be unreasonably constrained. Refer to the Locality Controls of Part D2 for specific side setback requirements.” In addition to the setback controls the objectives of the DCP also seek to create a development that respects the siting and location of lower scaled residential dwellings. The subject site is located in a business zone and immediately to the west the small scale residential zone has been up-scaled although the zoning remains residential in nature (R3). Although the LEP encourages a medium density form of development achieving a maximum height of 15m there is a difference of some 6m (2 levels) between the subject site and the potential that can be achieved to the west if sites were redeveloped to their full potential.
179. Currently the adjoining residential properties to the west are modest small scale residential dwelling houses.
180. The second set of amended plans dated May 2019 showed the rear building as 5-6 storeys in scale (west elevation shown in Figure 17). This shows the rear building at 6 storeys along the south western corner, then tapering and stepping down to 5 storeys with an RL27.80 at this point.

Figure 17: Western elevation (courtesy Peter Dunn Architect, May 2019)
181. The proposed built form was altered in October 2019 and although these final plans reduce the height and scale of the development when viewed from Princes Highway, the development increased the scale of the building at the rear to read as 6 storey’s with a maximum height reaching RL30.80 as opposed to the previous 5 storey height (RL27.80). This adds a substantial amount of bulk to the rear despite only catering for two apartments (Units 45 and 46). The scale and form at the rear is now greater than the amended scheme presented in May 2019 (refer to Figure 18) and fails to satisfy the transitional provisions as the scale along this rear portion needs to respect the lower scaled residential properties.

Figure 18: Western elevation (courtesy Peter Dunn Architect, October 2019)
182. The most recent changes add unnecessary bulk and scale at the rear and fail to provide an appropriate degree of transition in scale and form to the west. In addition, the new level will further reduce the provision of solar access to the central courtyard space. The removal of units 45 and 46 will create a fifth level at the rear which is considered to be a more appropriate scale and form. The 6 storey section along the south western corner may be acceptable if there are no amenity impacts generated by its form.
Interim Policy – Georges River Development Control Plan 2020
183. Council at its Environmental and Planning Committee Meeting dated 24 June 2019 resolved to adopt the Georges River Interim Policy DCP which became effective on 24 July 2019.
184. The Interim Policy is a public policy is to be used as a guide to set a consistent approach for the assessment of residential development within the LGA. It is a supplementary document meaning that current DCP controls will prevail if they are considered to be best practice. The interim policy has no statutory recognition in the assessment of Development Applications pursuant to the Environmental Planning and Assessment Act, 1979 (EP and A Act)
185. An assessment of the proposal has been carried out against the provisions of the Interim Policy as set out in the following table.
Table 7: Compliance against the Interim Policy – Georges River DCP 2020
|
Standard |
Proposed |
Complies |
|
Site Frontage |
||
|
20m |
The frontage of the site along Princes Highway is 53m and the frontage to Water Street is some 48m |
Yes |
|
Building Height |
||
|
The relevant LEP controls relating to height will prevail over the DCP controls that relate to storeys |
The height of the building exceeds the statutory height limit but only with the ancillary structures (lift overruns and pergola feature to the rooftop area of open space) exceeding the control. A Clause 4.6 statement has been submitted which justifies the amount and degree of non-compliance. |
No The building exceeds the height limit and the Clause 4.6 statement is not considered to be well founded as its assessment fails to consider the potential impacts and does not take into consideration the updated heights of the ancillary roof structures. |
|
Private Open Space |
||
|
The ADG requirements prevail over the DCP controls for private open space |
Satisfies the ADG provisions for private open space and exceeds these requirements for several units. |
Yes |
|
Parking |
||
|
The RMS parking provisions apply if the site is located within an “accessible” area pursuant to the provisions of the ADG |
The site is not within an “accessible” area and therefore the KDCP parking rates apply. This has been discussed earlier and the development complies with the numerical requirements for a development of this scale. |
Yes |
|
Solar Access |
||
|
The ADG requirements prevail over the DCP controls for solar access. |
The solar access provisions of the ADG have been complied with. |
Yes |
(iii) any planning agreement that has been entered into under section 7.4, or any draft planning agreement that a developer has offered to enter into under section 7.4, and,
186. Comment: there are no planning agreements that pertain to this site.
(iv) the regulations (to the extent that they prescribe matters for the purposes of this paragraph), that apply to the land to which the development application relates,
187. Comment: There are no further prescribed matters under the Regulations apart from compliance with the National Building Code of Australia (BCA) and meeting the Australian Standards for parts of the design.
188. If approval is granted standard conditions will be included in regards to the building and construction process and ensure that any proposed materials and finishes i.e. cladding complies with the provisions of the National Construction Code and conditions relating to construction management would be imposed.
(b) the likely impacts of that development, including environmental impacts on both the natural and built environments, and social and economic impacts in the locality,
Natural Environment
189. The submission of a detailed Ecological Report has quantified and assessed the importance and status of the existing trees on site. The larger trees are not endemic to the area however their removal is not supported by Council’s Landscape Officer. Council’s Landscape Officer believes the trees are of good quality and condition and add to the visual amenity and quality of the area and Site. There is limited potential to replace these types of trees within the development site.
Built Environment
190. The proposed development is unlikely to result in adverse impacts to the built environment and on the whole provide a positive contribution to this precinct which is in the process of undergoing and is in need of change (subject to changes to the design to address planning and environmental issues raised in this report). The architectural design, intended use of high quality materials and finishes should create an interesting and vibrant built form and assist in revitalising this local centre and activating the street frontage. The development is considered to create a positive contribution to the streetscape and will enhance the public domain subject to the amendments referenced throughout this report.
Social Impact
191. The proposed development will have no serious adverse social impact in fact it will fulfil a much needed housing requirement in the area by providing more accommodation in this generally accessible and convenient location subject to a reconsideration of the scale and form of the rear building as discussed to create a better transition to the lower scale residential properties to the west.
Economic Impact
192. The proposed development will have no adverse economic impact in fact it will benefit the longer term viability and the sustainability of this local centre through the provision of the three (3) commercial tenancies. Also through the construction process the development will ensure employment in this industry in the short term if this development is approved.
(c) the suitability of the site for the development,
193. Comment: The site has a series of impediments and constraints but these should not preclude it from being suitable for the proposed development subject to the concurrence from a series of government agencies and incorporating some design changes. The site is zoned to permit larger scaled mixed uses developments.
(e) any submissions made in accordance with this Act or the regulations,
194. Comment: The proposal has been notified and all submissions received have been considered in detail below.
(f) the public interest.
195. Comment: The proposal at this stage fails to satisfy all the provisions within the key Environmental Planning Instruments and as such it cannot be concluded that the development is in the public interest at this point in time.
196. The application at this point in time fails to satisfy a number of planning controls and provisions and the insufficient information at the time of assessment results in a failure to address and provide details in relation to a series of outstanding planning and design issues.
Environmental Planning and Assessment Regulations 2000 (EP&A)
197. The proposed development satisfies the relevant matters for consideration for development under the Regulations.
198. The proposed development would require the payment of contributions in accordance with Section 7.11 and 7.12 (Contributions towards the provisions or improvement of amenities or services) based on the provisions of additional dwellings on the subject site and retail tenancies/floor space. The contribution amount is not calculated as the application is recommended for refusal.
SUBMISSIONS AND THE PUBLIC INTEREST
199. The application was notified to immediately adjoining properties and they were given a 14 day period in which to comment. The original proposal generated a total of nine (9) written submissions and a submission containing thirty nine (39) signatures. The latest plans were renotified and a further three (3) submissions were received. The following issues were raised by the submitters.
· The density of the development is too large and the scale and height of the development is inappropriate in this location and exceeds the height control.
200. Officer Comment: The original application was amended and the height and floor space reduced. The density of the development has been reduced by five (5) dwellings with a small decrease in retail floor space. But it has increased in height to the residential interface which is not considered to be an appropriate design and built form outcome along this side of the Site.
· An unacceptable degree of overshadowing will occur to the west.
201. Officer Comment: The amended application is not accompanied by updated shadow diagrams however the scale and height of the development has been reduced along the Princes Highway and as such the shadowing impacts are likely to be reduced in some areas. The scale of the building has increased in height to the residential interface which will increase shadowing to some degree The development in mid-winter at 9am will overshadow No.5 and 7 Water Street and to a lesser degree the eastern boundary of No.3 Water Street. From 12 noon onwards the development will not overshadow any adjoining residential property as it falls on Water Street and the Princes Highway. From 12pm until 3pm the development will overshadow the public car park and the eastern section of Church Street Reserve. The south-western part of the reserve is unaffected and this is the largest and more private area of the parkland. From 3pm onwards the development affects a small section of Todd Park, Caltex Service Station and the Princes Highway.
202. As such the immediately adjoining residential properties will not be affected by the development in the afternoon in midwinter. This is considered to be an acceptable planning outcome as immediately adjoining residences will receive a minimum of 3 hours of sunlight during the day in midwinter.
· The scale of the development at the rear is inappropriate and the transition to the residentially zoned properties to the west is not acceptable.
203. Officer comment: Currently the residential properties along Water Street are single and two storey detached dwelling houses. These properties have been up-zoned like the subject site to accommodate medium density development achieving a maximum height of 15m for future development. This equates to some 4-5 storeys. The proposed development has been reduced in height so that the parapet and all habitable areas are located within the 21m height limit however the most recent set of amended plans increases the scale along the western side to reflect a 6 storey building. The second set of amended plans showed this section of the building at five (5) storeys which is a better scale and transition to this residential precinct.
204. The proposed encroachments to the height control consist of the lift overrun, pergola feature, WC and planter boxes which are all ancillary elements to the rooftop areas of open space. The Applicant has submitted a Clause 4.6 Statement which seeks to justify the amount and degree of non-compliance. In this case the statement lacks appropriate detail and information to justify the exceedance and is therefore is not considered to be well founded in this case.
205. Despite this the proposed form and scale of development as proposed is generally consistent with the anticipated scale that the controls envisage along the Princes Highway frontage however, the scale of the rear building as amended by the plans in October 2019 has increased the height of the rear building from 5 to 6 storeys. This is a poor outcome as the development will not step down to the lower residential properties. The proposed amended design in May 2019 had the majority of the rear building achieving 5 storeys in scale. Part of this issue could be resolved by lowering the building and removing apartments 45 and 46.
206. This issue has been discussed in greater detail in this report and it is concluded that the amended design doesn’t provide an appropriate transition to the west and is not in accordance with the objectives of the KDCP.
· An unacceptable degree of overlooking will occur
207. Council comment: The rear building has been designed so that it provides for compliant separation distances of 6m-9m along this side. If consent is granted there are a number of conditions that could be implemented to further reduce overlooking such as sliding fixed louvered screens to balconies to provide additional screening. Also the garden terraces along Level 4 should become a small communal spaces and landscaped elements rather than private areas. Landscaping around and within this space should be increased. Also the provision of raised planter boxes along the western boundary adjoining the western boundary should include species that can achieve heights of 3-4m to provide some additional screening and greenery (i.e. bamboo or the like).
· Increase in traffic, parking and congestion problems.
208. Council comment: This is a key planning concern that has been raised by most submitters. All residents are concerned that the cumulative impacts of the development in terms of traffic movements that will increase the current level of congestion along Water Street. Water Street is one-way and one of the few streets in the immediate locality that permits a south bound turn onto Princes Highway, hence it attracts a large amount of vehicles in the AM peak (in particular) who are heading south. This is evident by the photos provided by one resident (see Figure 19 and 20 below). The issue of congestion and trip generation has been discussed in more detail earlier in this report.
209. Added to this, congestion of the vehicles that travel up Church Street and turn into the public car park and access Water Street that way is a current issue. This creates a clear banking up of traffic and cars that are approaching the intersection (Princes Highway and Water Street) from a number of points from the west. One submitter suggested that the originally proposed driveway into the development should not be located opposite the public car park exit.
210. In addressing this issue the driveway to the development has been relocated further to the west and will be offset from the car park access point. This goes some way to address this resident’s concerns.
211. The issue of traffic generation has been addressed in greater detail earlier in this assessment and the projected levels by McLaren have been scrutinised and considered to be inaccurate however even a recalculation of traffic generation levels created by the development seems there will be less traffic movements than when the service station was fully functional. The issue of traffic congestion in Water Street is largely a result of the existing traffic conditions in the broader locality funnelling residents into Water Street. This is not an issue that can be resolved by this application alone. This is a larger issue which needs Council’s and the Local Traffic Committee’s attention.
212. A series of mechanisms should be considered such as closing access through to the public car park from Church Street. This will to some degree remove and limit access to and from Church Street. Other traffic calming mechanisms could be adopted however a more detailed study of the whole precinct would need to occur. In addition congestion should improve after RMS Tidal flow improvements occur.

Figure 19: Extract from one of the submissions showing the congestion along Water Street at peak times

Figure 20: Extract from one of the submissions showing the queuing and conflicts with additional cars cutting through to Water Street from the public car park.
· Public Transport is limited in this location which increases the reliance on cars
213. Council comment: It is acknowledged that this site is not considered to be “accessible” in planning terms. If a site is classified as “accessible” onsite parking provisions are reduced in accordance with RMS requirements. As the development is not accessible the development needs to comply with Council’s minimum parking requirements in accordance with the Kogarah Development Control Plan (KDCP). The proposal complies with Council’s numerical controls pertaining to car parking.
· House shown at 7 Water Street on the amended plans is inaccurate.
214. Officer comment: This issue has been addressed above. The proposed built form at 7 Water Street as shown in the amended elevations and is only an indicative built form model for possible future redevelopment opportunities at this site. In assessing the proposal Council considers the existing situation and factors in the potential for future redevelopment of adjoining sites.
REFERRALS
Council Internal Referrals
Landscape Officer
215. Council’s Landscape Officer has reviewed the application and has raised an objection to the removal of the larger and more significant trees on site. The following formal comments were provided;
216. “The following reports have been reviewed and considered;
- I have the Arborist report from TALC dated 16th April 2014
- I have a Statement prepared by TALC dated 6th February 2018, Ref:4431
- Tree Assessment – Cumberland Ecology, dated 7th Feb 2020.
a) The Arborist Report provided and dated 2014, assessed six (6) trees with four trees being of Australian Native, significant, with the Author rating Tree 1, 4, 5 having good vigour and a Sustainable Retention Index Value (SRIV) of MGVF9 (Medium term, potential for longer with improved growing conditions). My site visit this morning, some six years later still confirms these ratings and trees having good vigour. The size of the trees has also increased since 2014.
b) The comment from the 2014 report – “It is considered that the amenity the trees provide is minimised due to the number of trees present within neighbouring lands and could be replaced through the replanting of trees, shrubs and ground covers as part of landscape works for the development” (5. Discussion). This comment is not supported and the importance of canopy linkage is evidenced in the reserve to the south, the parks trees to the east and general canopy cover within the Todd Park/Carrs Park precinct. These trees provide an important canopy link throughout the area.
.
c) The Arborist Report dated 2014 recommends removal of all trees – 1, 2, 3, 4, 5 and 6 and yet the report mentions within Appendix D “Tree Protection Guidelines’ and Appendix E “Tree Protection Zone Standard Procedure”… and yet no trees are being retained which contradicts the conclusion to some degree.
d) The Statement provided by TALC, dated 6th February, states that the “feasibility for retention” for the one tree, being Tree 1. There are several other trees upon the proposed site that are of equal importance, notably Corymbia citriodora x 2. Again the statement – Amenity issues – “The area in general is that of a leafy nature supporting multiple trees minimising any perceived impacts upon the amenity of the immediate area through the removal of the subject tree”. This statement cannot be supported. The author states as well that “any amended design would require a setback of 12 metres radius to be considered impacting upon the viability of the development”. This statement demonstrates that the main focus is the viability of the development as opposed to the viability of the subject tree. Yes I believe the proposal needs amending to cater for the subject tree (tree No.1) and cater for the other trees not mentioned within this statement as they contribute greatly to the canopy link throughout the area and broader community.
e) Of note this subject site is classed as B2 with the land directly to the west of this site being R3, being a lower residential height limit. These trees provide a break from this dissection in zoning boundaries and future occupant’s privacy from both sites.
f) The Tree Assessment by Cumberland Ecology has mentioned that the tree1 was misdiagnosed by TALC and in fact a Eucalyptus grandis. The findings within this tree Assessment by Cumberland Ecology are that the trees do not form part of threatened ecological communities. With this in mind, it still demonstrates the importance of a greening canopy linkage, and the contribution these trees have on the greening of this community as a whole.
217. As of the site visit this morning, 19/2/20 there is a minimum seven (7) tree species that have seeded from the surrounding seed bank of trees. These trees range in DBH (Diameter at Breast Height) of .150mm up to .300mm, classed as trees under Georges River Councils tree management Policy 2019. The Arborist report only shows one tree evaluation matrix. Another evaluation matrix called STARS – Significance of a Tree Assessment Rating System, shows that trees 1, 4 and 5 are rated as having a HIGH Significance (must have min 3 criteria) being;
1 – The tree is in good condition and good vigour
2 – The tree has a form typical for the species
3 – The tree is rare or uncommon in the local area (Cumberland Ecology A.5. Discussion)
4 – The tree is visually prominent and visible from a considerable distance when viewed from most directions within the landscape due to its size and scale and makes a positive contribution to the local amenity
218. My recommendations are that trees 1, 4 and 5 be retained and the proposal redesign to cater for these significant trees”.
Development Engineer
219. Council’s Development Engineer has raised no objection to the proposed stormwater/drainage design subject to conditions of consent being attached to any consent granted. An OSD tank is proposed with the site draining towards the Princes Highway being the low point of the site. A series of sumps are proposed along the eastern side which will manage surface runoff. This design has been adopted as a result of the recommendations of the Geotechnical Report (prepared by EI and dated 22 March 2016). The Geotechnical report acknowledged that the basement levels will intersect ground water levels. The report suggested that this can be controlled by a conventional sump and pump system. Conditions would need to be imposed to ensure that a well-designed ground water controlled system is designed and that careful ongoing inspections and maintenance programs are adopted.
220. The stormwater plans are concept only and would require a detailed design prior to the issuing of the Construction Certificate.
Traffic Engineer
221. Council’s Traffic Engineer has examined the application and has raised no objection to the development in principle subject to conditions of consent requiring the car spaces to comply with the Australian Standards. Council’s Traffic Engineers reviewed the updated Traffic and Parking assessment and have not made any detailed assessment or comments on the road network.
Environmental Health Officer
222. Council’s Environmental Health Officer has reviewed the application and confirmed in writing that the site of the former Service Station at 659 Princes Highway has been appropriately remediated and validation provided. Council’s Environmental Health Officer stated;
“Submitted Site Validation Report Former Caltex Blakehurst Service Station (ID: 22162S) 659-661 Princess Highway Blakehurst prepared by Coffey Environments Pty Ltd ( Project Ref # ENVIRHOD00595AB) dated 3 September 2010 indicates that identified soil contaminants have been excavated from the site and the resulting excavations validated. A summary of previous assessment work by Coffey Environments Pty Ltd included the following:
1. Divestment Risk Assessment (DRA) dated 2008a;
2. Register of Hazardous Materials dated 2008 b ;
3. Environmental Site Assessment dated 2009 and
4. Remediation Action Plan (RAP) dated 2010.
Remediation of the site included the removal of all identified USTs, associated pipework, and contaminated soils. The results of the site validation program indicated that identified soil contamination has been excavated from the site and the site validated. Excavated soils from the site were stockpiled and classified to enable off-site disposal or on-site re-use. Imported fill soils were classified as VENM and therefore suitable for use as backfill within on-site excavations. Concentrations of contaminants of potential concern were reported less than the adopted acceptance criteria with the exception of copper and zinc which are considered likely to be representative of naturally occurring concentrations in regional groundwater than on-site activities associated with former occupation of the site as a service station. According to the Coffey Environments the site has been adequately remediated to a standard which does not prevent the use of the property for any use expressly permitted under the current zoning of the property 3(a) Business.”
223. Despite appropriate remediation occurring at 659 Princes Highway Council is still not satisfied that 655 Princes Highway is suitable for its intended use as no preliminary or detailed site inspection has occurred and as such the provisions of SEPP 55 have not been satisfied.
Coordinator Environment Sustainability and Waste
224. Council’s Coordinator Environment Sustainability and Waste reviewed the proposal and has raised no objection “in principle” subject to conditions of consent being attached to any consent. One comment that was raised in the referral was the type of concrete floor i.e. “To allow access to the garbage truck onto the property the concrete floor which requires the truck to drive onto the property needs to be reinforced to adequately hold a 27tonne truck. An indemnity needs to be filled out to give permission for the contractor to enter the property. The Height clearance for the truck to enter the property needs to be 4m along the length of the distance to be used by the truck.” This issue can be addressed by conditions if approval is to be granted.
225. The waste arrangement has been designed to cater for on-site removal of waste twice a week by a private contractor. The arrangement is in accordance with the Waste Management Plan that was lodged with the application.
External Referrals
Roads and Maritime Services (RMS)
226. The application was referred to RMS in accordance with the provisions of Clause 102 and 106 of the Infrastructure SEPP. RMS to date have not provided formal concurrence to the application.
Ausgrid
227. The application was referred to Ausgrid who raised a series of issues regarding the design of the proposal and its potential impacts onto existing electrical transmission lines. The Applicant has been liaising with Ausgrid but to date no information has been provided to state that Ausgrid are satisfied with the scheme. The proposal fails to satisfy ‘Subdivision 2’ (Clause 45) of the Infrastructure SEPP. It does seem the outstanding issue could possibly be resolved with the cabling being provided underground. Given this site is located next to sensitive State infrastructure it’s important that Ausgrid is satisfied with the proposed arrangement.
State Rail
228. The application was referred to State Rail on several occasions. Additional information was required to be prepared in respect to a ‘Blow Out’ report and updated Sections. The amended information was provided to State Rail for their assessment and consideration. To date their concurrence in accordance with Clauses 86 and 103 of the Infrastructure SEPP has not been provided. As of February 2020 State Rail were in the process of reviewing the new engineering information however had not finalised their assessment.
CONCLUSION
229. The application has been assessed having regard to the Matters for Consideration under Clause 4.15 of the Environmental Planning and Assessment Act 1979, the provisions of the relevant State Environmental Planning Policies, Local Environmental Plans and Development Control Plans.
230. The application seeks approval for the consolidation of the existing four (4) allotments, demolition of all structures and the construction of a part six (6), part seven (7) storey mixed use development comprising fifty (50) residential units, over two and a half levels of basement car parking catering for one hundred and eighteen (118) car parking spaces, associated landscaping in the form of a central courtyard space and roof top communal terrace areas and associated site works.
231. The proposed design has been amended a series of times and the final design is considered to be an improvement and is considered an acceptable design response for this Site subject to the scale and form of the rear building being reconsidered and reduced and consideration given to retaining the existing trees.
232. There is also a series of outstanding information that has not been provided and the insufficient information means that the development in its current form fails to satisfy a series of Environmental Planning Instruments and cannot be recommended for approval. Deferred Commencement consent cannot be issued as the information required is mandatory and concurrence required prior to determination.
233. It is considered that Development Application No DA2017/0408 should be refused subject to the following reasons.
DETERMINATION AND STATEMENT OF REASONS
234. The reasons for this recommendation in summary are:
§ The proposal fails to satisfy the objectives of Clause 4.3 (Height of Buildings control) as part of the Kogarah Local Environmental Plan 2012 (KLEP). The degree of non-compliance with the height has been inaccurately calculated and considered and the lack of updated shadow diagrams fails to justify the amenity impacts generated by the variation are considered to be reasonable and acceptable in this case.
§ The proposed development fails to satisfy the provisions of Clause 4.6 of the Kogarah Local Environmental Plan (KLEP) in respect to calculating the degree of non-compliance with the height control. The updated Clause 4.6 Statement is not considered to be well-founded and fails to accurately assess the degree of variation; with respect to the height control.
§ The proposal fails to satisfy the provisions of Clause 6.1 of the Kogarah Local Environmental Plan (KLEP) as the site is located within the Class 5 Acid Sulphate Soils (ASS) zone. The subject site adjoins Class 3 ASS and therefore an Acid Sulphate Soils Management Plan is a mandatory requirement pursuant to the provisions of the KLEP. The ASS Management Plan has not been prepared and as such Subclause 3 of Clause 6.1 has not been satisfied.
§ The provisions of State Environmental Planning Policy No.55 have not been satisfied as it is unclear whether No. 655 Princes Highway is suitable for its intended use. To date no site investigations have occurred and the obligations and requirements of SEPP 55 have not been satisfied.
§ Clauses 86 and 103 of the State Environmental Planning Policy (Infrastructure) have not been satisfied as State Rail have not provided formal concurrence for the proposed development.
§ Clause 101 of the State Environmental Planning Policy (Infrastructure) has not been satisfied as Roads and Maritime Services have not provided their formal concurrence for the proposed development.
§ The provisions of Clause 45 of the State Environmental Planning Policy (Infrastructure) have not been satisfied as Ausgrid have not provided their formal concurrence to the proposed development.
§ Council’s Landscape Officer is not in support of the removal of the large, significant existing trees (Trees No.1, 4 and 5) on site given their good condition and vigour and the fact that they contribute significantly to the aesthetic and visual quality of the area and streetscape.
§ The six (6) storey scale of the rear building is inappropriate and fails to satisfy the Kogarah Development Control Plan provisions which require new development to respect and create an appropriate transition between properties to the rear.
§ The proposal is not in the public interest given the number of submissions received and non-compliance with the objectives of the Height of Buildings Control.
Determination
235. THAT pursuant to Section 4.16(1) of the Environmental Planning and Assessment Act, 1979, as amended, the Georges River Local Planning Panel, refuses development consent to Development Application DA2017/0408 for site consolidation of the existing four (4) allotments, demolition of all structures and the construction of a part six (6), part seven (7) storey mixed use development comprising fifty (50) residential units, over two and a half levels of basement car parking catering for one hundred and eighteen (118) car parking spaces, associated landscaping in the form of a central courtyard space and roof top communal terrace areas and associated site works, at the site known as Lot 4 in DP13988 and Lots 29, 30, 31 in DP 124618 at 655-659 Princes Highway, Blakehurst subject to the following reasons:
1. The proposed development fails to satisfy the objectives of Clause 4.3 (Height of Buildings control) of the Kogarah Local Environmental Plan 2012 in that the degree of non-compliance with the height control has not appropriately justified that the variation will “minimise” amenity impacts such as overshadowing, visual impact and overlooking. In this case the non-compliance is considered to be unreasonable and unnecessary.
2. The proposed development fails to satisfy the provisions of Clause 4.6 of the Kogarah Local Environmental Plan 2012 in respect to calculating the degree of non-compliance with the height control. The updated Clause 4.6 Statement is not considered to be well-founded as it fails to accurately assess the degree of variation; as such the proposal is not in the public interest and does not satisfy the objectives of the height standard and provisions of Clause 4.6.
3. The proposal fails to satisfy the objectives and provisions of Clause 6.1(3) of the Kogarah Local Environmental Plan 2012 as an Acid Sulphate Soils Management Plan has not been prepared and the provisions and requirements of Clause 6.1 of the Kogarah Local Environmental Plan 2012 have not been satisfied.
4. The proposal fails to satisfy the provisions of State Environmental Planning Policy No.55 – Remediation of Land as it is unclear whether No.655 Princes Highway is suitable for its intended use as no Preliminary (Phase 1) or Detailed (Phase 2) site investigations have occurred.
5. Clauses 86 and 103 of the State Environmental Planning Policy - Infrastructure have not been satisfied as State Rail has not provided formal concurrence for the proposed development and its associated design given that State Rail infrastructure immediately adjoins the site and the impact (or lack of) from the proposal on these assets has not been determined.
6. Clause 45 of the State Environmental Planning Policy - Infrastructure have not been satisfied as Ausgrid has not provided formal concurrence for the proposed development, its associated design.
7. Clause 101 of the State Environmental Planning Policy - Infrastructure has not been satisfied as Roads and Maritime Services have not provided their formal concurrence to the proposed development and design given the siting of the proposal is on a classified roadway.
8. The proposal fails to satisfy the objectives of Section 3.4, Part D of the Development Control Plan 2012 in respect to Building Heights as an appropriate transition to the lower scaled residential buildings to the west has not been achieved. The proposed six-storey scale and form of the rear building is considered inappropriate and will adversely affect the smaller scaled residential properties to the rear along Water Street.
9. The proposed removal of the existing substantial trees on site (Trees No.1, 4 and 5) is not supported given the visual and aesthetic qualities and contribution of these trees to the locality and streetscape and their good condition and vigour. Their removal will be detrimental to the quality of streetscape and immediate surrounds.
10. The development is not in the public interest given the number of submissions received and the exceedance in the height of the building above the height control.
NOTES/ADVICES
Review of Determination - Section 8.2 of the Environmental Planning and Assessment Act confers on an applicant who is dissatisfied with the determination of the application the right to lodge an application with Council for a review of such determination. Any such review must however be completed within 6 months from its determination. Should a review be contemplated sufficient time should be allowed for Council to undertake public notification and other processes involved in the review of the determination.
Note: Review provisions do not apply to Complying Development, Designated Development, State Significant Development, Integrated Development or any application determined by the Sydney South Planning Panel or the Land & Environment Court.
Appeal Rights - Part 8 (Reviews and appeals) of the Environmental Planning and Assessment Act 1979 confers on an applicant who is dissatisfied with the determination of the application a right of appeal to the Land and Environment Court of New South Wales.
Lapsing of Consent - This consent will lapse unless the development is physically commenced within 5 years from the Date of Operation of this consent, in accordance with Section 4.53 of the Environmental Planning and Assessment Act 1979 as amended.
|
Attachment ⇩1 |
South Elevation - 655-659 Princes Hwy Blakehurst |
|
Attachment ⇩2 |
North Elevation - 655-659 Princes Hwy Blakehurst |
|
Attachment ⇩3 |
Eastern Elevation - 655-659 Princes Hwy Blakehurst |
|
Attachment ⇩4 |
Western Elevation - 655-659 Princes Hwy Blakehurst |
|
Attachment ⇩5 |
Roof Plan - 655-659 Princes Hwy Blakehurst |
|
Georges River Council - Georges River Local Planning Panel (LPP) - Thursday, 5 March 2020 LPP008-20 655-659 Princes Highway Blakehurst [Appendix 1] South Elevation - 655-659 Princes Hwy Blakehurst |
Page 184 |
|
Georges River Council - Georges River Local Planning Panel (LPP) - Thursday, 5 March 2020 LPP008-20 655-659 Princes Highway Blakehurst [Appendix 2] North Elevation - 655-659 Princes Hwy Blakehurst |
Page 185 |
|
Georges River Council - Georges River Local Planning Panel (LPP) - Thursday, 5 March 2020 LPP008-20 655-659 Princes Highway Blakehurst [Appendix 3] Eastern Elevation - 655-659 Princes Hwy Blakehurst |
Page 186 |
|
Georges River Council - Georges River Local Planning Panel (LPP) - Thursday, 5 March 2020 LPP008-20 655-659 Princes Highway Blakehurst [Appendix 4] Western Elevation - 655-659 Princes Hwy Blakehurst |
Page 187 |
|
Georges River Council - Georges River Local Planning Panel (LPP) - Thursday, 5 March 2020 LPP008-20 655-659 Princes Highway Blakehurst [Appendix 5] Roof Plan - 655-659 Princes Hwy Blakehurst |
Page 188 |
|
Georges River Council – Local Planning Panel Thursday, 5 March 2020 |
Page 189 |
REPORT TO GEORGES RIVER COUNCIL
LPP MEETING OF Thursday, 05 March 2020
|
LPP Report No |
LPP009-20 |
Development Application No |
DA2018/0584 |
|
Site Address & Ward Locality |
546 Railway Parade Hurstville Kogarah Bay Ward |
||
|
Proposed Development |
Demolition and construction of a ten storey residential flat building comprising 17 units and 2 levels of basement car park. |
||
|
Owners |
Marija Komandina |
||
|
Applicant |
Cornerstone Design |
||
|
Planner/Architect |
Architect: Nick Lycenko; Planner: Rod Logan Planning |
||
|
Date Of Lodgement |
21/12/2018 |
||
|
Submissions |
Four (4) |
||
|
Cost of Works |
$6,919,849.00 |
||
|
Local Planning Panel Criteria |
The proposed development is a residential flat building and is subject to the provisions of State Environmental Planning Policy No. 65. |
||
|
List of all relevant s.4.15 matters (formerly s79C(1)(a)) |
State Environmental Planning Policy No. 65 – Design Quality of Residential Apartment Development, State Environmental Planning Policy (Vegetation in Non-Rural Areas) 2017, State Environmental Planning Policy (BASIX) 2004, Greater Metropolitan Regional Environmental Planning Policy No 2- Georges River Catchment, State Environmental Planning Policy No. 55 – Remediation of Land, State Environmental Planning Policy (Infrastructure) 2007, Draft Environment State Environmental Planning Policy, Draft Remediation of Land State Environmental Planning Policy, Kogarah Local Environmental Plan 2012, Kogarah Development Control Plan 2013 |
||
|
List all documents submitted with this report for the Panel’s consideration |
Site and Elevation Plans
|
||
|
Report prepared by |
Senior Development Assessment Planner |
||
|
|
Summary of matters for consideration under Section 4.15 Have all recommendations in relation to relevant s4.15 matters been summarised in the Executive Summary of the assessment report? |
Yes |
|
Legislative clauses requiring consent authority satisfaction Have relevant clauses in all applicable environmental planning instruments where the consent authority must be satisfied about a particular matter been listed and relevant recommendations summarised, in the Executive Summary of the assessment report? |
Yes |
|
Clause 4.6 Exceptions to development standards If a written request for a contravention to a development standard (clause 4.6 of the LEP) has been received, has it been attached to the assessment report? |
Yes - Clause 4.3 Height of buildings |
|
Special Infrastructure Contributions Does the DA require Special Infrastructure Contributions conditions (under s7.24)? |
Not Applicable |
|
Conditions Have draft conditions been provided to the applicant for comment? |
No, the application is recommended for refusal, and the refusal reasons can be reviewed when the report is published. |
|
Site Plan
The site is outlined in blue |
Executive Summary
Proposal
1. The development application proposes demolition works and construction of a 10 storey residential flat building comprising 17 units and 2 levels of basement parking. The proposed unit mix is 4 x 1 bedroom units and 13 x 2 bedroom units. Communal open space is provided on the rooftop. The car parking will operate via a mechanical parking system.

Figure 1: Photomontage of the proposal
Site and Locality
2. The subject site is legally identified as CP/SP13440, and has a street address of 546 Railway Parade, Hurstville.
3. The site is located on the southern side of Railway Parade between St Georges Parade and Cow Lane. The site is currently occupied by a three (3) storey residential flat building with a drainage easement registered through the rear of the site.

Figure 2: Built form existing on the development site.
4. The wider locality is characterised by a mix of old and new residential flat buildings and older single storey housing stock. The T4 – Eastern Suburbs and Illawarra Rail Line is located to the north of the site across Railway Parade.
Zoning and Permissibility
5. The site is zoned ‘R4 High Density Residential’ under the Kogarah Local Environmental Plan 2012 (KLEP). The development is defined a residential flat building under KLEP, which is permissible with consent.
Submissions
6. The development application was publicly exhibited in accordance with the provisions of the Kogarah Development Control Plan 2013. Four (4) submissions were received as a result.
Level of Determination
7. This development application is referred to the Local Planning Panel for consideration and determination as it comprises development to which State Environmental Planning Policy No. 65 – Design Quality of Residential Apartment Development applies as required by the Ministerial Direction of 23 February 2018.
Conclusion
8. The application has been assessed having regard to the Matters for Consideration under Section 4.15 of the Environmental Planning and Assessment Act, 1979, the provisions of the relevant State Environmental Planning Policies, Local Environmental Plan and Development Control Plans. The proposal results in an unreasonable planning and urban design outcome in the context of the site and performs poorly against the design quality principles of State Environmental Planning Policy No 65. The Clause 4.6 Objection in relation to the building height development standard is considered to not be well-founded. As a result the application is recommended for refusal.
Report in Full
Description of Proposal
9. The development application proposes demolition works and construction of a 10 storey residential flat building with two levels of basement parking. The proposal contains 4 x 1 bedroom units and 13 x 2 bedroom units. Communal open space is provided on the rooftop. The car parking will operate via a mechanical parking system.
10. Specifically, the proposal includes the following:
Basement Levels
Two levels of basement are proposed to accommodate an automated car stacking system that provides parking for 23 vehicles.
Ground Floor
The ground floor contains the residential entry lobby from St Georges Parade, a pump room, bin store room; cleaners room and lift access to the levels above. Vehicular access to the site is proposed from St Georges Parade via a driveway which provides access to the car stacker system from the ground floor. 1 x 2 bedroom unit is located adjacent to the Railway Parade frontage.
Fire stairs from the residential units discharge at this level and lift access is provided from the ground floor to the rooftop communal open space area.
Levels 1 to 3
These levels contain two units per floor (2 x 2 bedroom units) with lift access and egress stairs.
Levels 4 to 7
Each level contains 1 x 1 bedroom unit and 1 x 2 bedroom unit with lift access and egress stairs.
Level 8
This level contains 1 x 2 bedroom unit and an area of communal open space (56.56sqm) on the south eastern side of the building, with lift access and egress stairs.
Level 9
This level contains 1 x 2 bedroom unit with lift access and egress stairs.
Rooftop Communal Open Space
The roof level provides a second area of communal open space (101.12sqm), a common room with WC, including covered and open areas, a BBQ and landscaped planters along the edges. Lift access and egress stairs are provided to this level.
11. The site is an irregular shape, having a primary street frontage of 16.435m to Railway Parade, a splay of 2.66m and a secondary frontage to St Georges Parade of 27.205m and an overall area of 510.2sqm. A 1.0m wide drainage easement traverses the site at the rear, between the existing detached garage and the flat building, which drains 548 Railway Parade to the south west. A substation exists to the St George Parade, Hurstville frontage.
12. Immediately to the west of the site is a single storey dwelling house known as 548 Railway Parade, Hurstville. The property immediately to the south is known as 1-3 St Georges Parade, Hurstville and contains a four storey residential flat building.
13. Opposite on St Georges Parade to the east is a two storey residential flat building with attached garages known as 542 Railway Parade, Hurstville.
14. The wider locality is characterised by a mix of old and new residential flat buildings and older single storey housing stock. The T4 – Eastern Suburbs and Illawarra Rail Line is located to the north of the site on the opposite side of Railway Parade, Hurstville.
15. The built form immediately adjoining the site is illustrated in figures 3, 4 and 5 below.

Figure 3: 548 Railway Parade (west of the site)

Figure 4: 1-3 St Georges Parade (south of the site)

Figure 5: 542 Railway Parade (opposite to the east)
PLANNING ASSESSMENT
16. The subject site has been inspected and the development has been assessed under the relevant Section 4.15, Matters for Consideration of the Environmental Planning and Assessment Act 1979.
Environmental Planning Instruments
State Environmental Planning Policies
17. Compliance with relevant State Environmental Planning Policies is summarised in the table as follows and discussed in more detail thereafter.
|
State Environmental Planning Policy |
Complies |
|
State Environmental Planning Policy No 55 - Remediation of Land |
Yes |
|
State Environmental Planning Policy (Building Sustainability Index: BASIX) 2004 |
Yes |
|
State Environmental Planning Policy (Vegetation in Non-Rural Areas) 2017 |
N/A
|
|
State Environmental Planning Policy No. 65 - Design Quality of Residential Apartment Development |
Yes |
|
State Environmental Planning Policy (Infrastructure) 2007 |
Yes |
State Environmental Planning Policy No 55 - Remediation of Land
18. SEPP 55 aims to promote the remediation of contaminated land in order to reduce the risk of harm to human health or any other aspect of the environment.
19. Clause 7 requires contamination and remediation to be considered in determining a development application. The consent authority must not consent to the carrying out of development on land unless it has considered whether or not the land is contaminated.
20. A Preliminary Site Investigation Report was submitted with the application, which concludes:
“Asbestos has been identified as a contaminant of potential concern in the identified AECs. The NSW EPA endorsed guidance around intrusive investigations for asbestos in soils, prefers the use of excavated test pits. Access to soils in AEC01, AEC02 and AEC03 with conventional excavation equipment, is currently constrained by the presence of a retaining wall, as well as the presence of existing buildings. Access to soils in AEC01 with conventional excavation equipment, is currently constrained by the presence of an existing building and concrete hardstand materials.
Based on AG's assessment of the desktop review information and fieldwork data, in the context of the proposed the proposed high-density residential development, AG makes the following conclusions:
• Four areas of environmental concern (AEC) have been identified for the site; and
• The site could be made suitable (from a land contamination perspective) for the proposed residential subdivision, subject to validation of the absence (or removal) of potential contamination risks in the identified AEC.
Based on these conclusions, AG makes the following recommendations:
• a remedial action plan (RAP) should be prepared, which includes a strategy for:
o validating residual soils in AEC01, AEC02 and AEC03, following demolition and basement excavation works;
o validating soils in AEC04, following demolition and removal of overlying structures and pavements;
o managing unacceptable contamination risks, if identified during validation works;
• a hazardous building materials survey should be undertaken on existing structures, prior to demolition works being undertaken;
• a hazardous building materials clearance certificate should be obtained following hazardous building material removal/abatement works on existing structures, and prior to commencement of demolition works;
• a waste classification of soils proposed for excavation on site, should be prepared to
facilitate their offsite disposal; and;
• the RAP and clearance certificate should be prepared by a suitably experienced environmental consultant.”
21. Based on the information provided demonstrating that contaminants are present on the site, a Detailed Site Investigation Report is required. This report was not provided and has not been requested at this time given the application is recommended for refusal.
State Environmental Planning Policy (Building Sustainability Index: BASIX) 2004
22. The State Environmental Planning Policy (Building Sustainability Index: BASIX) 2004 aims to ensure consistency in the implementation of a scheme to encourage sustainable residential development throughout New South Wales (also referred to as the ‘BASIX scheme’).
23. A BASIX certificate accompanies the DA verifying that the relevant water, energy and thermal comfort targets have been met by the proposal. Conditions of consent have been included in the recommendation to ensure the commitments required under the BASIX certificate will be satisfied by the proposed development.
State Environmental Planning Policy (Infrastructure) 2007
24. The aim of the Infrastructure SEPP is to facilitate the effective delivery of infrastructure across the State.
25. The DA was referred to Ausgrid on 10 January 2019 in accordance with Clause 45 of State Environmental Planning Policy (Infrastructure) 2007. Conditions of consent were received from Ausgrid on 19 February 2019.
State Environmental Planning Policy (Vegetation in Non-Rural Areas) 2017
26. The State Environmental Planning Policy (Vegetation in Non-Rural Areas) 2017 (‘Vegetation SEPP’) regulates clearing of native vegetation on urban land and land zoned for environmental conservation/management that does not require development consent.
27. The Vegetation SEPP applies to clearing of:
a. Native vegetation above the Biodiversity Offset Scheme (BOS) threshold where a proponent will require an approval from the Native Vegetation Panel established under the Local Land Services Amendment Act 2016; and
b. Vegetation below the BOS threshold where a proponent will require a permit from Council if that vegetation is identified in the Council’s Development Control Plan (DCP).
28. The Vegetation SEPP repeals clauses 5.9 and 5.9AA of the Standard Instrument - Principal Local Environmental Plan, with the regulation of the clearing of vegetation (including native vegetation) below the BOS threshold being through any applicable DCP.
29. No issues arise in terms of the provisions of the Vegetation SEPP, as there is no significant vegetation on the site or within the footpath area of either street immediately fronting the site. Further, there is no significant vegetation on immediately adjoining properties in close proximity to the site.
State Environmental Planning Policy No 65 – Design Quality of Residential Apartment Development
30. The State Environmental Planning Policy No 65 – Design Quality of Residential Apartment Development (SEPP 65) aims to improve the design quality of residential apartment development in New South Wales.
31. The proposed development meets the pre-requisites for the application of the SEPP 65 in that it constitutes development for the purpose of a ‘residential flat building’ in a proposed building of more than three (3) storeys and having more than four (4) dwellings. Therefore, it must be assessed against the provisions of SEPP 65 and the Apartment Design Guide (ADG).
32. A design verification statement dated December 2018 has been provided by N. Lycenko Registered Architect (Registration No. 3010) in accordance with Clause 50 of the Environmental Planning and Assessment Regulation 2000.
33. The DA has been reviewed by the Design Review Panel (DRP) and their comments are further detailed in the DRP discussions below.
Design Review Panel
34. A Pre DA Application was considered by the Design Review Panel (DRP) on 8 February 2018 (comments in italics in the table below and comments on this application are in standard font) and the plans that accompanied the application were referred to the DRP on 9 May 2019. The design quality principles of SEPP 65 are addressed as follows, in the context of the DRP comments. Commentary in response has been provided by the Assessment Officer where necessary.
|
SEPP 65 – Design Quality of Residential Flat Buildings |
DRP Comment |
Planner’s comment |
|
Context and Neighbouring Character Good design responds and contributes to its context. Context is the key natural and built features of an area, their relationship and the character they create when combined. It also includes social, economic, health and environmental conditions. Responding to context involves identifying the desirable elements of an area’s existing or future character. Well-designed buildings respond to and enhance the qualities and identity of the area including the adjacent sites, streetscape and neighbourhood. Consideration of local context is important for all sites, including sites in established areas, those undergoing change or identified for change. |
The Panel believes that the planning controls applying to this site are inappropriate for the context, both individually and cumulatively. A 4:1 FSR is most appropriate for a mixed use town centre, transit-oriented development. A building height of 33m would have generated ten (10) storeys prior to the ADG requirement of 3.1m floor-to-floor height which would now generate twelve (12) floors to facilitate 4:1.
Given that the adjacent development to the south east is essentially three (3) storeys and largely developed, this will make a very dramatic transition.
The proposal is for a substantially lower density than 4:1 which reflects the constrained nature of the site. The proposal has been amended with larger setbacks to the rear to address the issues of transition and impacts on the property to the south east.
The St Georges Parade streetscape is exemplary and provides a fine framework for three (3) storey RFBs. The site area is not sufficient to support the ground floor infrastructure required of a development of this scale in a manner which does not compromise its presentation to the street.
The Panel believes that major modifications should be made to the built form to establish a substantial setback in compliance with the DCP (5-7m for the full height of the building) and the provision of substantial canopy trees to extend the pattern of large trees in the front setback within the existing streetscape and built form context.
The Panel strongly recommends that the site be amalgamated with the two (2) single house lots to the west. The applicant should demonstrate development options for these sites.
The applicant has demonstrated that the zero (0) southern setback would not inhibit development of 548 and 550 Railway Parade. |
Note: comments provided against the latest DRP comments (not the italicised comments).
The proposal has a FSR of 2.79:1 and complies with the required ADG separation distances.
The proposed setbacks to the street frontages do not comply with the DCP, and range between 2.375m and 3.250m, resulting in a series of disconnected deep soil areas incapable of accommodating substantial landscaping or canopy trees.
The proposed nil setback to the SW boundary will not inhibit future development of the adjoining site. |
|
Built Form and Scale Good design achieves a scale, bulk and height appropriate to the existing or desired future character of the street and surrounding buildings. Good design also achieves an appropriate built form for a site and the building’s purpose in terms of building alignments, proportions, building type, articulation and the manipulation of building elements. Appropriate built form defines the public domain, contributes to the character of streetscapes and parks, including their views and vistas, and provides internal amenity and outlook. |
The Panel feels that the proposal’s form and scale is inappropriate for its context. This however is problematic in relation to the former Kogarah Council’s relatively new LEP and unformed DCP.
The Panel feels that the site can be developed in a manner which is sympathetic to the context; however this may not achieve maximum yield expectations for the site.
With new setbacks, tree planting and greater attention to the Railway Parade setback in particular, the Panel believes that an amenable small floor plate tower building could be successfully achieved. However this will require re-planning to accommodate two (2) units per floor and the refinement of the form with the deletion of the projecting winter gardens from the upper levels. In addition the building must meet the ground in a more amenable and appropriate manner. It may be better for example to dedicate the entire ground floor to lobby, and even café space, so that there is more leeway to engage directly with its topography and streetscape.
The proposal is a very narrow tower which depends on a party wall with the adjacent site. This may or may not be possible to achieve in an acceptable manner. The context and the zoning suggest a freestanding residential building and this will be difficult to achieve on this small site.
The proponent has demonstrated that a party wall in this location is able to facilitate appropriate development on the western property. Given that the party wall will be exposed for an indefinable period it is crucial that it is appropriately expressed using a well-considered language consistent with the rest of the building, which is sensitive to the context.
The parking should be re-planned to relocate the mechanical car parking spaces within the Railway Parade frontage to the rear basement underneath the proposed driveway.
|
The front setbacks remain non-compliant, being half of that required by the DCP, and result in a series of disconnected deep soil areas incapable of accommodating substantial landscaping or canopy trees.
The winter gardens remain at Levels 4 to 8.
The ground floor remains an entry lobby, service area and one residential unit, with a ground level street wall presentation to St Georges Parade which adds to the bulk of the building at the lower level.
The exposed elevation is proposed to have a painted concrete finish with a grid-like pattern. Had the application been worthy of support, a condition could have been included for the elevation to be more suitably treated.
The proposed car stacking arrangement is not support by Council’s Traffic Engineer (refer to comments in the council referral’s section of this report). The size and dimensions of the site are insufficient for traditional basement parking to be provided, and this forms one of the reasons for refusal. |
|
Density Good design achieves a high level of amenity for residents and each apartment, resulting in a density appropriate to the site and its context. Appropriate densities are consistent with the area’s existing or projected population. Appropriate densities can be sustained by existing or proposed infrastructure, public transport, access to jobs, community facilities and the environment. |
The proposed density is too high for the site as demonstrated by the breach of the height control, the need for a party wall and dominance over St Georges Parade. The parking solution has not been demonstrated.
Clearly the density of 4:1 is unachievable on this site. The current proposal needs to be substantially modified if it is to successfully achieve the density as proposed. |
The proposal complies with the maximum FSR for the site, however as discussed in this report, the proposed scale fails to achieve appropriate design quality as per the advice of the panel. |
|
Sustainability Good design combines positive environmental, social and economic outcomes. Good sustainable design includes use of natural cross ventilation and sunlight for the amenity and liveability of residents and passive thermal design for ventilation, heating and cooling reducing reliance on technology and operation costs. Other elements include recycling and reuse of materials and waste, use of sustainable materials and deep soil zones for groundwater recharge and vegetation. |
It will be difficult to provide sustainable solutions for this problematic small site.
The front setback (Railway Parade) is critical to providing deep soil zones for ground water recharge and vegetation. As noted above substantial canopy trees in this zone will improve the local environment and contribute to reduced reliance on heating and cooling systems.
The proposal has high levels of cross ventilation and solar access.
The information provided did not indicate stormwater collection. This should be utilised in the development.
Otherwise subject to BASIX. |
The proposal is BASIX compliant. |
|
Landscape Good design recognises that together landscape and buildings operate as an integrated and sustainable system, resulting in attractive developments with good amenity. A positive image and contextual fit of well designed developments is achieved by contributing to the landscape character of the streetscape and neighbourhood.
Good landscape design enhances the development’s environmental performance by retaining positive natural features which contribute to the local context, co-ordinating water and soil management, solar access, micro-climate, tree canopy, habitat values and preserving green networks.
Good landscape design optimises useability, privacy and opportunities for social interaction, equitable access, respect for neighbours’ amenity and provides for practical establishment and long term management. |
The landscape proposal is compromised by the footprint. Streetscape presentation is critical at this gateway location to St Georges Parade and street planting is important to both streetscapes.
Refer to comments above under ‘Built Form’ regarding the Railway Parade setback as noted above. This is a gateway location and the landscape proposal needs to integrate large trees to not only reflect existing planting but also to mitigate the scale of the building. Current design includes small trees which are inappropriate. Large trees such as Gums or Brushbox would be more appropriate for the neighbourhood context.
Furthermore the landscape needs to be improved by relocating the basement car parking and the re-planning Unit G01 (including reviewing internal levels and redesigning the external courtyards).
Roof gardens on the top floor require a demonstrated program of use and variety of spaces for different demographics, and relevant amenity including shade and planting. In addition a small amenities room is recommended to support use of the communal open space.
Communal open spaces are provided at the eighth floor and rooftop. Both spaces would benefit from more shelter. The rooftop common room as proposed is not functional due to the arrangement of the lift and three (3) doorways and should be re-planned to enable the placement of furniture.
Other recommendations are:
· Change species proposed on Railway Parade to larger trees such as Tallowwoods
· Provide additional street tree on St Georges Parade and reposition the proposed replacement street tree (provide two (2) trees in this location)
· Relocate electrical substation clear of landscape zones and integrate into the building footprint
· Review proposed species on rooftops to provide increased shade |
The front setbacks remain non-compliant, being half of that required by the DCP, and result in a series of disconnected deep soil areas incapable of accommodating substantial landscaping or canopy trees.
The proposed car stacking arrangement is not support by Council’s Traffic Engineer. The size and dimensions of the site are insufficient for traditional basement parking to be provided, and this forms one of the reasons for refusal.
Minimal shelter is proposed at each level. The common room remains small and is considered not to be functional.
Two Water Gums are proposed.
One Tallowood is proposed.
The substation remains within the landscaped area on St Georges Parade frontage.
Plants proposed will reach a height of 1m and will not provide shade. |
|
Amenity Good design positively influences internal and external amenity for residents and neighbours. Achieving good amenity contributes to positive living environments and resident wellbeing.
Good amenity combines appropriate room dimensions and shapes, access to sunlight, natural ventilation, outlook, visual and acoustic privacy, storage, indoor and outdoor space, efficient layouts and service areas and ease of access for all age groups and degrees of mobility. |
Overshadowing analysis is insufficient to substantiate increased height impacts.
Separation with neighbours is inadequate.
Separation between neighbours has been improved at the rear of the site. The zero (0) setback on the south western boundary is discussed under ‘Built Form’.
The proposal does not comply with ADG requirements for separation eastern boundary and the change in zoning.
See above.
The ease of use of the car parking, including access for visitors, has not been demonstrated.
The proposal is proposed to install a car stacking device. Details are required on matters such as queuing and delivery times of the vehicles. The car park arrangements mean that no basement storage is available. The ADG volume requirements must be satisfied in the units in a functional manner.
Adaptable units were not demonstrated by before and after drawings, as currently shown the bathrooms combined with the laundries cannot meet AS4299.
See notes above regarding ground floor level and its relationship with streetscape and topography. |
The proposal complies with the required separation distances of the ADG; however the built form is inappropriate for a site of this size due to the proposed street setbacks, a nil setback to the south west boundary, lack of landscaped areas around the building.
Council’s Traffic Engineer does not support the proposed car stacking system, and this forms one of the reasons for refusal.
Two units have been nominated as adaptable units but no pre- and post- drawings have been provided.
Refer to comments above. |
|
Safety Good design optimises safety and security within the development and the public domain. It provides for quality public and private spaces that are clearly defined and fit for the intended purpose.
Opportunities to maximise passive surveillance of public and communal areas promote safety.
A positive relationship between public and private spaces is achieved through clearly defined secure access points and well lit and visible areas that are easily maintained and appropriate to the location and purpose. |
Access to and security of the car park has not been demonstrated.
Satisfactory. |
The proposal meets the requirement of CPTED. |
|
Housing Diversity and Social Interaction Good design achieves a mix of apartment sizes, providing housing choice for different demographics, living needs and household budgets.
Well-designed apartment developments respond to social context by providing housing and facilities to suit the existing and future social mix.
Good design involves practical and flexible features, including different types of communal spaces for a broad range of people and providing opportunities for social interaction among residents. |
The vast majority of the building is comprised of two (2) bedroom apartments, limiting options for different demographics.
Given the constraints of the site, the unit mix is satisfactory. |
A suitable unit mix is proposed with a variety of unit layouts. |
|
Aesthetics Good design achieves a built form that has good proportions and a balanced composition of elements, reflecting the internal layout and structure.
Good design uses a variety of materials, colours and textures.
The visual appearance of a well designed apartment development responds to the existing or future local context, particularly desirable elements and repetitions of the streetscape. |
The proposal does not sit well within its context. The Panel feels that the aesthetics are severely compromised by the attempt to achieve height and density controls, specifically the proposed party wall. The Panel finds it difficult to comprehend an acceptable aesthetic solution due to the height and density controls.
The 3D images demonstrate an appropriate approach to the corner location. However the massing of the building could be further refined with the reduction of projecting winter gardens for example and more attention to the alignment of the vertical bays with projections such as awnings. While the building expression and building materials are acceptable, the proposed terracotta coloured vertical blade disrupts the clarity of the architectural composition.
As noted above a building of this scale needs to come to ground elegantly and create a welcoming amenable environment. This will require amendments to setback and use on ground floor level as noted above. |
The winter gardens (and replicated rounded balcony edges beginning at the ground level) remain a prominent feature of the building at the upper levels. The base of the building remains bulky encroaching the required front setbacks and results in an unacceptable presentation to the public domain.
Additionally, due to the site failing to meet the minimum site width control for flat buildings, the sub-station, OSD and pump room are located on the St Georges Parade elevation, which creates a façade to the street that is not activated with large blank rendered walls which is an unacceptable outcome. |
Apartment Design Guide
35. An assessment of the proposed development against the relevant design criteria of the Apartment Design Guide (ADG) is detailed in the compliance table as follows.
Note: where relevant, the figures/percentages in the ADG compliance table have been rounded up/down to the nearest whole number.
|
Clause |
Standard |
Proposal |
Complies |
|
|
Objective 3D-1 |
Communal open space has minimum area equal to 25% of site area |
Communal open space (on the 8th floor and rooftop) = total 157.68sqm or 30% of site area. |
Yes |
|
|
|
50% direct sunlight to principal usable part of communal open space area for minimum of 2 hours between 9am and 3pm at mid-winter. |
2 hours of sunlight is achieved to at least 50% of the rooftop communal open space area. |
Yes |
|
|
Objective 3E-1 |
Minimum 7% deep soil zone |
15% deep soil. |
Yes – refer to comments below. |
|
|
Comments on deep soil zones The SEE submitted with the DA states 15% of the site is deep soil area. A review of the proposal reveals the areas that could be included as deep soil within the street setbacks are of insufficient size and dimension to accommodate canopy trees and substantial landscaping.
The absence of suitably consolidated deep soil zones and insufficient building setbacks to the street frontages precludes the planting of significant canopy trees within the site itself to ameliorate the scale of the building and reduce its visual impact. |
||||
|
Objective 3F-1 |
Up to 4 storeys: Minimum setback to adjoining allotment boundary:
· Habitable rooms: 6m · Non-habitable: 3m
5-8 storeys: · Habitable rooms: 9m · Non-habitable: 4.5m
9+ storeys: · Habitable rooms: 12m · Non-habitable: 6m
Additional 3m separation required where sites adjoin a low density residential zone. |
Nil setback proposed to common boundary with 548 Railway.
South Eastern Setbacks: Ground floor – garage and service rooms – 6.065m Levels 1 to 3: Habitable: 9.005m Non-habitable: 9.005m Level 4: Habitable: 12.005m Non-habitable: 10.505m
Levels 5 – 7: Habitable: 12. 005m Non-habitable: 10.505m
Level 8: Habitable: 12.225m (COS) Non-habitable: NA
Level 9: Habitable: NA Non-habitable: 16.985m
|
Refer to comments below.
|
|
|
Comments on building separation The proposal includes a nil setback/blank wall to the common boundary to 548 Railway Parade, and complies numerically with the building separation controls to 1-3 St Georges Parade, however the intent for redevelopment of these and other similarly located R3 and R4 zoned sites is to provide residential flat development with landscaped setbacks and suitable setbacks to street boundaries.
The proposal fails to meet the required street setbacks, as discussed below, and fails to provide suitably dimensioned deep soil areas that can accommodate substantial canopy planting. For these reasons the proposal is an unacceptable response to the site size and dimension, which forms part of the reasons for refusal of the application. |
||||
|
Objective 3J-1 |
For sites within 800m of a railway station in Sydney Metropolitan Area, the minimum car parking requirement for residents and visitors is set out in the Guide to Traffic Generating Developments, or the car parking requirement prescribed by the relevant council, whichever is less. The rate used is the medium density RMS rates 1 per unit (17) + 1 per 5x2B (3.4)
Total = 20.4 spaces |
The site is located 450m from Hurstville Station.
The proposed parking arrangement within the two basement levels is an automated car stacking system for 23 cars.
|
Yes -
The proposed parking arrangement is not supported by Council’s Traffic Engineer and forms a reason for refusal.
|
|
|
Objective 4A-1 |
Living rooms and private open spaces of at least 70% of dwellings to receive minimum of 2 hours of direct sunlight between 9am and 3pm at mid-winter |
All units receive a minimum of 2 hours sunlight during midwinter. |
Yes |
|
|
Objective 4B-3 |
60% of apartments to be naturally cross ventilated |
All units are naturally cross ventilated. |
Yes |
|
|
Objective 4C-1 |
Minimum ceiling height of 2.7m for habitable rooms and 2.4m for non-habitable rooms |
2.7m for all rooms. |
Yes |
|
|
Objective 4D-1 |
Apartments to have the following minimum internal areas: · 1-bed: 50sqm
· 2-bed: 70sqm
· 3-bed: 90sqm
Additional bathrooms increase the requirement by 5sqm. |
1 bedroom dwellings are a minimum of 54sqm.
2 bedroom dwellings are a minimum of 79sqm.
No 3 bedroom units provided.
All units with additional bathrooms provide the additional floor space required. |
Yes
|
|
|
Objective 4D-2 |
Habitable room depths are limited to a maximum of 2.5 x ceiling height |
Within range |
Yes |
|
|
|
In open plan layouts the maximum habitable room depth is 8m from window |
Within range |
Yes |
|
|
Objective 4D-3 |
Master bedrooms have minimum area of 10sqm and other bedrooms 9sqm excluding wardrobe space |
All bedrooms comply |
Yes |
|
|
|
Bedrooms have a minimum dimension of 3m excluding wardrobe space |
All bedrooms comply |
Yes |
|
|
|
Living rooms or combined living/dining rooms have a minimum width of 4m for 2 and 3 bedroom apartments |
All living rooms comply |
Yes |
|
|
Objective 4E-1 |
All apartments are required to have primary balconies as follows: · 2-bed: 8sqm area and 2m depth · 3-bed: 12sqm area and 2.4m depth |
All balconies comply in terms of minimum area and depth requirements. |
Yes
|
|
|
|
Ground level apartments to provide minimum private open space area of 15sqm with minimum depth of 3m |
The ground level unit has a private open space area and width that complies with these requirements. |
Yes |
|
|
Objective 4F-1 |
Maximum number of apartments off circulation core on a single level is 8 |
2 units are proposed per floor. |
Yes |
|
|
Objective 4G-1 |
In addition to storage in kitchens, bathrooms and bedrooms, the following storage is to be provided: · 1-bed: 6 cubic metres · 2-bed: 8 cubic metres · 3-bed: 10 cubic metres |
Each unit has the required amount of storage in the unit, no storage in the basement. |
Yes |
|
Draft Environmental Planning Instruments
Draft Environment SEPP
36. The Draft Environment SEPP was exhibited from 31 October 2017 to 31 January 2018.
37. This consolidated SEPP proposes to simplify the planning rules for a number of water catchments, waterways, urban bushland, and Willandra Lakes World Heritage Property.
· Changes proposed include consolidating the following seven existing SEPPs:
· State Environmental Planning Policy No. 19 – Bushland in Urban Areas
· State Environmental Planning Policy (Sydney Drinking Water Catchment) 2011
· State Environmental Planning Policy No. 50 – Canal Estate Development
· Greater Metropolitan Regional Environmental Plan No. 2 – Georges River Catchment
· Sydney Regional Environmental Plan No. 20 – Hawkesbury-Nepean River (No.2-1997)
· Sydney Regional Environmental Plan (Sydney Harbour Catchment) 2005
· Willandra Lakes Regional Environmental Plan No. 1 – World Heritage Property.
38. The proposal is consistent with the provisions of this Draft Instrument given there is no vegetation impacted by the proposed development.
Draft Remediation of Land SEPP
39. The Department of Planning and Environment has announced a Draft Remediation of Land SEPP, which will repeal and replace the current State Environmental Planning Policy No 55—Remediation of Land.
40. The main changes proposed include the expansion of categories of remediation work which requires development consent, a greater involvement of principal certifying authorities particularly in relation to remediation works that can be carried out without development consent, more comprehensive guidelines for Councils and certifiers and the clarification of the contamination information to be included on Section 149 Planning Certificates.
41. Whilst the proposed SEPP will retain the key operational framework of SEPP 55, it will adopt a more modern approach to the management of contaminated land.
“Asbestos has been identified as a contaminant of potential concern in the identified AECs. The NSW EPA endorsed guidance around intrusive investigations for asbestos in soils, prefers the use of excavated test pits. Access to soils in AEC01, AEC02 and AEC03 with conventional excavation equipment, is currently constrained by the presence of a retaining wall, as well as the presence of existing buildings. Access to soils in AEC01 with conventional excavation equipment, is currently constrained by the presence of an existing building and concrete hardstand materials.
Based on AG's assessment of the desktop review information and fieldwork data, in the context of the proposed the proposed high-density residential development, AG makes the following conclusions:
• Four areas of environmental concern (AEC) have been identified for the site; and
• The site could be made suitable (from a land contamination perspective) for the proposed residential subdivision, subject to validation of the absence (or removal) of potential contamination risks in the identified AEC.
Based on these conclusions, AG makes the following recommendations:
• a remedial action plan (RAP) should be prepared, which includes a strategy for:
o validating residual soils in AEC01, AEC02 and AEC03, following demolition and basement excavation works;
o validating soils in AEC04, following demolition and removal of overlying structures and pavements;
o managing unacceptable contamination risks, if identified during validation works;
• a hazardous building materials survey should be undertaken on existing structures, prior to demolition works being undertaken;
• a hazardous building materials clearance certificate should be obtained following hazardous building material removal/abatement works on existing structures, and prior to commencement of demolition works;
• a waste classification of soils proposed for excavation on site, should be prepared to
facilitate their offsite disposal; and
• the RAP and clearance certificate should be prepared by a suitably experienced
environmental consultant.”
42. Based on the information provided, a Detailed Site Investigation Report is required. This report has not been requested from the applicant as the application is recommended for refusal.
Kogarah Local Environmental Plan 2012
Zoning and Permissibility
43. The site is located within the ‘R4 High Density Residential’ zone under the Kogarah Local Environmental Plan 2012.
44. The proposed development is defined as a residential flat building which is permissible in the zone.

Figure 6: Extract from the NSW legislation website including the subject site outlined in yellow
45. The objectives for development in the R4 High Density Residential zone are as follows:
• To provide for the housing needs of the community within a high density residential environment.
• To provide a variety of housing types within a high density residential environment.
• To enable other land uses that provide facilities or services to meet the day to day needs of residents
46. The proposed development is consistent with the above objectives in that it provides for additional residential accommodation.
47. An assessment of the proposed development against the relevant provisions of Kogarah LEP 2012 is detailed in the compliance table below.
|
Clause |
Objectives/Provisions |
Comment |
Complies |
|
4.3 - Height of buildings |
The height of a building on any land is not to exceed the maximum height shown for the land on the Height of Buildings Map. In this case, the relevant map limits the height of buildings on the subject site to 33m. |
35.245m (exceeds the maximum height by 2.245m). |
No – refer to the assessment of the Clause 4.6 variation request following this table. |
|
4.4 - Floor space ratio |
The maximum floor space ratio for a building on any land is not to exceed the floor space ratio shown for the land on the Floor Space Ratio Map. In this case, the relevant map limits the floor space ratio for buildings on the subject site to 4:1. |
2.79:1 |
Yes |
|
6.2 - Earthworks
|
The objective of this clause is to ensure that earthworks for which development consent is required will not have a detrimental impact on environmental functions and processes, neighbouring uses, cultural or heritage items or features of the surrounding land. |
Excavation is limited to the extent required for the basement parking levels. If approved, suitable conditions of consent can be imposed during construction to protect neighbouring property from damage and undermining. |
Yes |
|
6.5 - Airspace operations |
The objective of this clause is to protect airspace around airports
|
The proposed development will penetrate prescribed airspace for Sydney Airport requiring a ‘controlled activity’ within the meaning of Division 4 of Part 12 of the Airports Act 1996. The applicant has obtained the necessary approval for the controlled activity (refer to further commentary in the referrals section of this report). |
Yes |
Exception to Development Standards – Clause 4.6
Detailed assessment of variation to Kogarah Local Environmental Plan 2012 (LEP) - Clause 4.3 Height of Buildings
48. The objectives of Clause 4.6 are as follows:
(a) to provide an appropriate degree of flexibility in applying certain development standards to particular development,
(b) to achieve better outcomes for and from development by allowing flexibility in particular circumstances.
49. The proposed development seeks a variation to the development standard relating to height (Clause 4.3). The LEP identifies a maximum height of 33m for the site and the proposed development reaches a maximum height of 35.245m. The building exceeds the height by 2.245m which comprises of the stair and lift overrun on the rooftop. This amounts to a 6.8% variation to the control.
50. Any variation to a statutory control can only be considered under Clause 4.6 – Exceptions to Development Standards of the KLEP. An assessment of the proposed height against the survey plan levels was conducted to indicate the Applicant’s calculations are generally accurate.

Figure 7: Section plan of the proposal showing proposed height variation
Is the planning control in question a development standard?
51. Height of Buildings control under Clause 4.3 of the KLEP 2012 is a development standard. The maximum permissible height is 33m.
52. Clause 4.6(3) states that:
“Development consent must not be granted for development that contravenes a development standard unless the consent authority has considered a written request from the applicant that seeks to justify the contravention of the development standard by demonstrating:
- that compliance with the development standard is unreasonable or unnecessary in the circumstances of the case, and
- that there are sufficient environmental planning grounds to justify contravening the development standard”
53. To support the non-compliance, the applicant has provided a request for a variation to Clause 4.3 in accordance with Clause 4.6 of KLEP 2012. The Clause 4.6 request for variation is assessed as follows:
What are the underlying objectives of the development standard?
54. The objectives of Height of Buildings standard under Clause 4.3 of KLEP 2012 are:
(a) to establish the maximum height for buildings,
(b) to minimise the impact of overshadowing, visual impact and loss of privacy on adjoining properties and open space areas,
(c) to provide appropriate scale and intensity of development through height controls.
Compliance is unreasonable or unnecessary in the circumstances of the case (clause 4.6(3)(a))
55. There have been several Court cases that have established provisions to assist in the assessment of Clause 4.6 statements to ensure they are well founded and address the provisions of Clause 4.6. In Wehbe V Pittwater Council (2007) NSW LEC 827 Preston CJ set out ways of establishing that compliance with a development standard is unreasonable or unnecessary.
56. Preston CJ in the judgement then expressed the view that there are 5 different ways in which an objection may be well founded and that approval of the objection may be consistent with the aims of the policy, as follows (with emphasis placed on number 1 for the purposes of this Clause 4.6 variation:
1. The objectives of the standard are achieved notwithstanding non-compliance with the standard;
2. The underlying objective or purpose of the standard is not relevant to the development and therefore compliance is unnecessary;
3. The underlying object or purpose would be defeated or thwarted if compliance was required and therefore compliance is unreasonable;
4. The development standard has been virtually abandoned or destroyed by the Council's own actions in granting consents departing from the standard and hence compliance with the standard is unnecessary and unreasonable;
5. The zoning of the particular land is unreasonable or inappropriate so that a development standard appropriate for that zoning is also unreasonable and unnecessary as it applies to the land and compliance with the standard that would be unreasonable or unnecessary. That is, the particular parcel of land should not have been included in the particular zone.
57. The Clause 4.6 Statement was prepared in consideration of the recent court cases and their judgements.
58. Applicants comment: “The objectives of Clause 4.6 are considered to be satisfied in that:
(a) the use of an appropriate degree of flexibility is justified in relation to the variation to the maximum height control for this particular development as the variation does not detract from the objectives of the control, is of an appropriate scale and density for the locality (as the permitted residential floor space is achieved within the building height control), the building is considered to be a high quality urban form and the non compliance does not detract from that impression of the building; and the variation does not detract from the ability of adjoining sites or the public domain to receive exposure to sunlight or views of the sky having regard to the minor nature and extent of the elements of the building that breach the 33 m height limit; and
(b) allowing flexibility in the particular circumstances of the proposed development of this site will allow an appropriately scaled and sited development which would be consistent within the context of the anticipated future development of the locality, particularly in terms of the recent increase in the development potential of the area allowing for 10-11 storey development, and the variation allows for the specific provision of a rooftop communal open space area, which provides a significant improvement to the amenity of the development t and is a better outcome for the development.”
“The development will now be assessed against each of these five ways in turn:
1. The objectives of the standards are achieved notwithstanding noncompliance with the standards.
The objectives for the height of buildings development standard is as follows:
· To establish a maximum height for buildings.
· To minimise the impact of overshadowing, visual impact and loss of privacy on adjoining
· properties and open space areas.
· To provide appropriate scale intensity of development through height controls.
The proposed development achieves the objectives of the standard notwithstanding non-compliance with the height of buildings control because:
• The proposed building largely complies with the statutory height limit, with the exception of a small portion of the stairwell, common room and lift overrun. However, due to the position and orientation, the additional height of the stair and lift overrun above the 33m standard will not cause any significantly greater overshadowing or a loss of sky exposure to the adjoining properties or surrounding public domain. Further, the non-compliance with the height standard does not contribute to an unreasonable visual impact or loss of privacy to adjoining properties.
• As noted above, despite the non-compliance, the scale, form and intensity of the building is consistent with the intended potential of the land and the desired future character of the locality.
• The variation in height is to a maximum point of 3.075m or 9.3% for the lift overrun, which is a minor built element within the roofscape, with the remainder of the area in breach of the height standard being a small portion of the common room roof and the access stair which, at the maximum point due to the site fall, is a variation of 1.675m or 5%. These minor variations have no consequence on the general appreciation of the scale intensity of the development.
The following graphic projects the 33m building height limit as a plane over the site and clearly demonstrates the nature, location and extent of the height breach. The shadow diagrams that have been prepared demonstrate that the overshadowing cast by the area that is in breach would present minimal additional impact and arises primarily through the lift overrun.

The variation to the standard does not impair the capacity of the development to meet all of the Objectives of the standard despite that non-compliance. More generally the variation does not establish an unusual precedent in the locality that would undermine the applicability of the development standard to other development of comparable sites located within the local context due to the very minor nature and extent of the variation that this particular development proposes.
Conclusion
As noted in Wehbe, the rationale behind this way of showing that compliance with a development standard is unreasonable or unnecessary:
‘is that development standards are not ends in themselves but means of achieving ends. The ends are environmental or planning objectives. Compliance with a development standard is fixed as the usual means by which the relevant environmental or planning objective is able to be achieved. However, if the proposed development proffers an alternative means of achieving the objective, strict compliance with the standard would be unnecessary (it is achieved anyway) and unreasonable (no purpose would be served).’
In view of the above, the requirement to strictly adhere to the development standard for height of building is considered to be unreasonable and unnecessary in this instance as the proposed development achieves and is consistent with the relevantly applicable objectives of the standard.
2. The underlying objective or purpose of the standard is not relevant to the development and therefore compliance is not necessary.
Comment: The purpose of the standard is considered to be relevant to the development and on that basis this way is not applicable ground for justification of the variation.
3. The underlying object of purpose would be defeated or thwarted if compliance was required and therefore compliance is unreasonable.
Comment: The underlying purpose of the standard is to influence building form and scale and limit possible impact on solar access and privacy impact on adjoining lands. The underlying object of purpose of the standard would not be defeated or thwarted if compliance was required and on that basis this way is not applicable ground for justification of the variation.
4. The development standard has been virtually abandoned or destroyed by the council’s own actions in granting consents departing from the standard and hence compliance with the standard is unnecessary and unreasonable.
Comment: Council has not generally abandoned this development standard, despite Council conceding similar variations of this nature and scale on other like developments elsewhere in the Council area, and on that basis this way is not applicable ground for justification of the variation.
5. Compliance with the development standard is unreasonable or inappropriate due to existing use of land and current environmental character of the particular parcel of land. That is, the particular parcel of land should not have been included in the zone.
Comment: The current use and character of the land is generally for high density residential purposes with an emerging wave of contemporary development that is consistent with the current strategic direction for the precinct, the current zoning of the land and applicable development controls. Intensification of the use of the site for that purpose under the applicable zoning is appropriate and can be readily facilitated and on that basis this way is not applicable ground for justification of the variation.”
Clause 4.6(3)(b) are there sufficient environmental planning grounds to justify contravening the standard
59. Having regard to Clause 4.6(3)(b) and the need to demonstrate that there are sufficient environmental planning grounds to justify contravening the development standard, it is considered that there is an absence of any negative impacts of the proposed non-compliance on the environmental quality of the locality and amenity of adjoining properties in terms of overshadowing, overlooking or view loss.
60. Applicants comment: “It is considered that there are sufficient environmental planning grounds to justify contravening the requirement of Cl 4.3 (2) regarding the maximum height building standard in this particular instance on the basis that: -
• Despite the lift overrun, common room and access stair exceeding the height of buildings principal development standard, the remainder of the building sits within and below the 33m height limit. As such, the overall bulk and scale of the building is considered to be acceptable in terms of its urban form and no additional floor space is generated by the proposed variation.
• The additional height does not constitute an additional storey and maintains a building of a scale and form that is appropriate for the location, providing visual interest and a varied building profile, and
• Despite the increased height above the statutory height limit, the proposed development will not have an unreasonable impact on adjoining sites in terms of significant additional overshadowing, loss of solar access or impact on views.
• The site is located within close proximity to local shopping and services and the proposed development is of a form and scale that is appropriate for the locality. The development on site is sustainable given its proximity to public transport and the facilities and services available in the Hurstville Town Centre.
• Strict compliance with the development standard would result in a failure to achieve an appropriate increase in permitted residential density, by the resultant need to reduce the building by a residential floor, in a highly appropriate location, consistent with the underlying objectives of the zoning of the land, which is considered contrary to the orderly and economic use of the land.
On that basis, the proposed variation is considered to be consistent with the relevant objects of the Environmental Planning and Assessment Act, 1979, the applicable Zone and Standard Objectives and is not contrary to the public interest. The proposal satisfies the underlying intent of the relevantly applicable objectives of the control and, as such, compliance is considered unnecessary or unreasonable in the circumstances of this case. The above discussion demonstrates that there are sufficient environmental planning grounds to justify the departure from the control.”
Clause 4.6(4)(a)(ii) the proposed development will be in the public interest because it is consistent with the objectives of the particular standard and the objectives for development within the zone in which the development is proposed to be carried out
61. Clause 4.6(4) states that:
“Development consent must not be granted for development that contravenes a development standard unless:
(a) the consent authority is satisfied that:
(i) the applicant’s written request has adequately addressed the matters required to be demonstrated by subclause (3), and
(ii) the proposed development will be in the public interest because it is consistent with the objectives of the particular standard and the objectives for development within the zone in which the development is proposed to be carried out,”
62. Applicants comment: “As stated elsewhere in this submission the development is considered to satisfy the objectives of the standards that are proposed to be varied. The relevant objectives of the zone are to:
· To provide for the housing needs of the community within a high density residential environment.
· To provide a variety of housing types within a high density residential environment.
It is considered that the development is of a type and nature that satisfies the objectives of the zone as:
• The development is of a form and scale that will provide for the housing needs of the community in a manner that is consistent with the high density housing zoning of the land and anticipated building form for the locality, having regard to the height and floor space ratio provisions that apply; and
• The locality is capable of supporting increased population within its catchment area and the proposed development provides for a range of unit types and sizes.
Accordingly, granting consent to the proposed development is considered to be in the public interest. In accordance with the provisions of Clause 4.6(4) Council can be therefore be satisfied that this written request has adequately addressed the matters required to be demonstrated by Clause 4.6(3).”
63. Officer Comment: The proposed development has been designed to ensure all habitable areas are located within the height limit and the only protrusions are in relation to the rooftop communal open space area, stair access and the lift overrun. The lift overrun is the highest structure that exceeds the height control.
64. The proposal generally satisfies the objectives of the development standard in the following ways:
(a) to establish the maximum height for buildings,
65. Officer Comment: The site and its immediately adjoining properties to the west have been up scaled to allow for medium to larger scaled development. In part this is due to the proximity of the site to Hurstville Town Centre and Hurstville railway station. Figure 8 shows the extent of the immediate precinct which allows for a maximum height of 15m, 21m and 33m. The proposed variation is located at the rear of the building, and accordingly will not be perceptible from the public domain. The building generally will read as being of a compliant height.

Figure 8: Extract from KLEP 2012 Height of buildings map
(b) to minimise the impact of overshadowing, visual impact and loss of privacy on adjoining properties and open space areas,
66. Officer Comment: This objective relates to considering the amenity impacts associated with the non-compliance. In terms of visual impact the structures are generally centrally located which reduces their visual appearance from the immediately adjoining streetscapes.
67. The objective seeks to “minimise” the visual impact, it is not requiring it to be eliminated or totally negated, and as this is a small scale ancillary structure which will not be highly visible or intrusive. It will not be visible from immediately adjoining properties and streetscapes given that it is centrally located. With regard to the overshadowing impacts, the proposal will overshadow adjoining properties however the shadows cast result in the private open spaces and living areas of adjacent development continuing to receive the required minimum 3 hours of solar access in midwinter. There will be no adverse impacts in terms of overlooking to adjoining properties as balconies and communal open spaces are oriented to Railway Parade and St Georges Parade.
(c) to provide appropriate scale and intensity of development through height controls.
68. Officer Comment: New developments of a similar scale have been approved in the area and have established a precedent for development in the street and immediate area. The proposed development is consistent with the pattern of development that is slowly being established in the up-zoned precinct; however for other reasons discussed in this report, the proposal has an unacceptable built form, despite the height encroachment.
69. The non-compliant height of the building which only relates to the stair and lift access to the roof can be catered for in this location given the siting and orientation, however the proposed non-compliances with the site width, front setback control, car parking design and impervious areas, the proposal is not supported.
70. Officer Comment: The height non-compliance does not undermine the objectives of the zone. The development on an undersized allotment (in terms of site width) is the reason for the compromised built form which results in the development not satisfying the residential amenity objective of the zone.
71. The proposal however fails to satisfy the “public interest” test as the exceedance of the control does not meet the objectives of the zone which include the following:
· To provide for the housing needs of the community within a high density residential environment.
72. Officer Comment: The redevelopment of this site would contribute to the housing needs of the community. However it is the scale, form and density of the development proposed that is unsuitable for the site. The compromised built form directly results from the narrow width of the allotment, with the built form failing to compensate for the lack of pervious areas, undersized and disconnected pockets of deep soil, encroachment of the required front setbacks and unsuitable carpark design and operation. It is considered the proposal is an overdevelopment of the site, resulting in adverse impacts on the public domain.
· To provide a variety of housing types within a high density residential environment.
Officer Comment: The proposal provides 17 residential apartments, being a combination of 1 and 2 bedrooms units.
· To enable other land uses that provide facilities or services to meet the day to day needs of residents.
Officer Comment: This objective is not relevant to the proposed development as it is a residential flat building.
Whether contravention of the development standard raises any matter of significance for State or regional environmental planning (Clause 4.6(5)(a))
73. Contravention of the maximum height development standard proposed by this application does not raise any matter of significance for State or regional environmental planning.
The public benefit in maintaining the development standard (Clause 4.6(5)(b))
74. It is noted that in Initial Action Pty Ltd v Woollahra Municipal Council [2018] NSWLEC 118, Preston CJ clarified what items a Clause 4.6 does and does not need to satisfy. Importantly, there does not need to be a "better" planning outcome resulting from the non-compliance.
75. Clause 4.6 does not directly or indirectly establish a test that the non-compliant development should have a neutral or beneficial effect relative to a compliant development.
76. The second matter was in cl 4.6(3)(b), where the Commissioner applied the wrong test in considering this matter by requiring that the development result in a "better environmental planning outcome for the site" relative to a compliant development. Clause 4.6 does not directly or indirectly establish this test. The requirement in cl 4.6(3)(b) is that there are sufficient environmental planning grounds to justify contravening the development standard, not that the development that contravenes the development standard have a better environmental planning outcome than a development that complies with the development standard.
77. The proposal generates adverse bulk, scale and streetscape impacts and fails to satisfy the objectives of the zone and a number of Kogarah DCP 2013 controls. The request to vary the development standard is not supported.
Kogarah Development Control Plan 2013
78. The provisions of Kogarah Development Control Plan 2013 (KDCP 2013) are relevant to the proposed development. Several controls within the KDCP 2013 are inconsistent with the scale of development now permitted under the KLEP 2012 (as amended on 26 May 2017). As a consequence, the proposed development will contravene a number of the controls including significant variations to the height and floor space ratio controls as contained in the DCP.
79. The significant variations to KDCP 2013 have resulted from the subsequent amendments to KLEP 2012 which allows a higher density/scale of development. The approach to support the development with significant variations to KDCP 2013 (but compliant with KLEP 2012) is consistent with recent judgements in the NSW Land and Environment Court. In particular, in Michael Murr v Georges River Council [2017] NSWLEC1369.
80. It is also noted that in the hierarchy of planning controls, Development Control Plans cannot prescribe more onerous corresponding controls than those in a Local Environmental Plan.
81. An assessment of the proposed development against the relevant controls in the KDCP 2013 is detailed in the compliance table below.
|
Part B General Controls |
|||
|
Part |
Objectives/Controls |
Comments |
Complies |
|
B2 - Tree Management and Green Web |
The objectives of this part include the following: · Ensure the protection of existing trees which contribute to the visual amenity and environment of the City of Kogarah; · Protect trees within and adjacent to development sites; · Maximise healthy tree canopy coverage across the City of Kogarah. |
Refer to earlier comments regarding the provisions of the Vegetation SEPP. The site is not within a ‘habitat corridor’ or ‘habitat reinforcement corridor’ under Council’s green web strategy. |
N/A |
|
B3 - Developments near Busy Roads and Rail Corridors |
The objectives of this part are to: · Ensure an appropriate acoustic amenity can be achieved for development near transport corridors, particularly residential development and other noise sensitive land uses; · Provide additional acoustic design or mitigation measures that may be necessary; · Development fronting a busy road or a rail corridor should be designed and sited to minimise noise impacts. |
An acoustic report has been submitted with the DA to assess the rail noise/vibration and road noise/vibration provisions in clauses 87 and 102 of State Environmental Planning Policy (Infrastructure) 2007 that are relevant to this proposal.
The report provides recommendations that could be imposed as conditions of consent should the application be approved. |
Yes |
|
B4 - Parking and Traffic |
The objectives of this part are to: · Minimise traffic congestion and ensure adequate traffic safety and management; · Ensure an adequate environmental quality of parking areas (including both safety and amenity); · Provide adequate car parking for building users and visitors, depending on building use and proximity to public transport. |
Given this development is within an accessible area the requirements of the RMS Guide for Traffic Generating Development are triggered by SEPP 65 and the Apartment Design Guide. |
N/A – Refer to the ADG assessment earlier in this report.
It is noted that the proposed automated car stacking arrangement is not supported by Council’s Traffic Engineers. |
|
B5 - Waste Management and Minimisation |
The objectives of this part are to: · Encourage best practice in waste management that minimises waste generation, facilitates waste separation and maximises reuse and recycling; · Ensure quality design of waste management facilities that complement the building design and minimise noise, odour and visual impacts on adjacent uses and the public domain; · Ensure suitable and efficient waste storage, recycling and collection in all development. |
An acceptable waste management plan has been submitted with the application.
|
Yes
|
|
B6 - Water Management |
The objectives of this part are to: · Reduce flooding and drainage impacts within and downstream of the development site; · Reduce pollutant loads exported to the waterways via the stormwater system; · Conserve water and reduce mains water consumption. |
A suitable stormwater management plan has been provided and conditions of consent provided by Council’s Development Engineer. The proposed method of drainage for the site is by gravity to St Georges Parade via an on-site detention system. |
Yes |
|
B7- Environment Management
|
The objectives of this part are to: · Apply principles and processes that contribute to ecologically sustainable development; · Reduce the impacts of development on the environment; · Increase the resilience of development to the effects of climate change; · Ensure that greenhouse gas emissions will be reduced; · Reduce the use of potable water; · Ensure that development can adapt to climate change. |
A BASIX certificate has been submitted with the application verifying that the relevant water, energy and thermal comfort targets have been met by the proposal.
|
Yes |
|
PART C2 – MEDIUM DENSITY HOUSING |
|||
|
1. Site isolation and amalgamation for medium density development |
|||
|
Adjoining sites not to be left isolated.
Site amalgamation requirements apply for specific sites. |
The proposal does not cause any site isolation.
The site is not subject to any amalgamation requirement. |
Yes
N/A |
|
|
2. Specific precinct controls – residential flat buildings |
|||
|
Specific precinct controls apply to various sites and locations |
The site is not located in a specific precinct nominated in the DCP. |
N/A |
|
|
4. Medium site and density requirements |
|||
|
20m minimum frontage for residential flat building |
16m Railway
|
No – refer below |
|
|
Comments on site width The DCP states the minimum site width for residential flat buildings is 20m. The site has a primary frontage of 16m to Railway Parade which does not comply with the control. The Interim Policy - Georges River Development Control Plan 2020 also requires a 20m site frontage.
The applicant has stated compliance with the control as the secondary frontage to St Georges Parade is 27m in length. The use of the secondary frontage length to justify the non-compliance with the primary frontage width is not supported.
The ADG also prescribes minimum separation requirements between buildings, with which the proposal numerically complies, however the intent for redevelopment of these and other similarly located R3 and R4 zoned sites is to provide residential flat building developments with landscaped setbacks and suitable setbacks to street boundaries.
The proposal fails to meet the required street setbacks, as discussed below, fails to provide suitably dimensioned deep soil areas that can accommodate substantial canopy planting and cannot provide a suitable, functioning car parking design that does not result in adverse impacts. For these reasons the proposal is an unacceptable response to the site size and dimension, which forms part of the reasons for refusal of the application. |
|||
|
1.1sqm of site area per square metre of dwelling
|
In accordance with the provisions of clause 3.43(5) of the EP&A Act, this control has no effect. In this regard, it is inconsistent with the floor space ratio standard in KLEP 2012. |
N/A – Refer to the KLEP 2012 assessment earlier in this report. |
|
|
5. Height and building envelope requirements |
|||
|
4-storey RFBs have a “H1” height control of 12m; and a “H2” height control of 14m.
(method for calculating these heights are discussed in detail in KDCP 2013) |
In accordance with the provisions of clause 3.43(5) of the EP&A Act, this control has no effect. In this regard, it is inconsistent with the building height standard in KLEP 2012. |
N/A - Refer to the KLEP 2012 assessment earlier in this report. |
|
|
6. Building setbacks |
|||
|
Front setbacks:
Maximum 75% of width of building to be setback minimum 5m, remainder 25% being setback minimum 7m |
To Railway Parade: 2.25m to 3.25m
To St Georges Parade: 2.375m to 3.035m |
No – refer to comments below. |
|
|
Comment on Front Setback The front
setback does not comply with the minimum standard detailed by KDCP
2013. The DCP requires a front setback between 5m and 7m to Railway
Parade.
The varied setback to the street frontages results in small pockets of landscaping that cannot accommodate substantial areas of landscaping or canopy trees and results in the built form dominating the streetscape, which is not the desired character for residential development in this locality and is not consistent with the zone objectives. |
|||
|
Side/rear setbacks: 3m + one quarter of the amount that the wall height exceeds 3m.
[3m + (¼ x 12m)] = 7.5m required. |
Nil setback to south western site boundary.
6m to 9m to south eastern site boundary.
|
No – refer to comments below |
|
|
Comments on setbacks: Since the adoption of the Kogarah New City Plan in 2017, many of the controls within the KDCP 2013 do not align and significantly conflict with the scale of development now permitted under the KLEP 2012 (as amended on 26 May 2017).
The significant variations to KDCP 2013 have resulted from the subsequent amendments to KLEP 2012 which allows a higher density/scale of development. The approach to support the development with significant variations to KDCP 2013 (but compliant with KLEP 2012) is consistent with recent judgements in the NSW Land and Environment Court.
The ADG also prescribes minimum separation requirements between buildings, with which the proposal numerically complies only for the south-eastern site boundary, however the intent for redevelopment of these and other similarly located R3 and R4 zoned sites is to provide residential flat building developments with landscaped setbacks and suitable setbacks to street boundaries.
The proposal fails to meet the required street setbacks, as discussed above, and fails to provide suitably dimensioned deep soil areas that can accommodate substantial canopy planting. For these reasons the proposal is an unacceptable response to the site size and dimension, which forms part of the reasons for refusal of the application. |
|||
|
7. Site coverage |
|||
|
Maximum 45% (229sqm) |
67% In accordance with the provisions of clause 3.43(5) of the EP&A Act, this control has no effect. In this regard, it is inconsistent with the floor space ratio standard in KLEP 2012. |
N/A – Refer to the KLEP 2012 assessment earlier in this report. |
|
|
8. Open space |
|||
|
Private open space (POS) – 35sqm with min. 3m dimension for ground level dwellings and 12sqm with min. 3m dimension for other dwellings
|
The ground floor unit has a private courtyard area of 57sqm and meets the minimum dimensions, however will have poor amenity due to its proximity to the street frontages and lack of area for substantial landscaping to provide privacy. |
No |
|
|
Common open space – 30sqm per dwelling with min. overall area of 75sqm and min. dimension of 5m. i.e. 30sqm x 18 units = 540sqm
|
In accordance with the provisions of clause 6A (2) of SEPP 65, this control is of no effect. |
N/A – Refer to the ADG assessment earlier in this report. |
|
|
Maximum 55% impervious area |
Impervious area is 432sqm or 84.6%.
|
No – refer to comments below. |
|
|
Comments on impervious area Since the adoption of the Kogarah New City Plan in 2017, many of the controls within the KDCP 2013 do not align and significantly conflict with the scale of development now permitted under the KLEP 2012 (as amended on 26 May 2017).
The significant variations to KDCP 2013 have resulted from the subsequent amendments to KLEP 2012 which allows a higher density/scale of development. The approach to support the development with significant variations to KDCP 2013 (but compliant with KLEP 2012) is consistent with recent judgements in the NSW Land and Environment Court.
However, the variation to the site coverage control is not supported. The applicant has justified the exceedance of the maximum impervious area by stating:
- provides deep soil areas that numerically exceed the 7% required as per the Apartment Design Guide, that can accommodate suitably scaled trees and shrubs; - has an acceptable built form for the site; and - a suitable stormwater management system is provided.
As discussed earlier in this report, the absence of suitably consolidated deep soil zones and insufficient building setbacks to the street frontages precludes the planting of significant canopy trees within the site itself to ameliorate the scale of the building and reduce its visual impact.
As discussed elsewhere in this report, the proposed built form is not supported. |
|||
|
9. Vehicular access, parking and circulation |
|||
|
Car parking to be provided in accordance with Part B4 |
Compliant parking provided as detailed in Part B4 above, however the automated car stacking system is not supported. |
No |
|
|
Garages to be accessed from rear lane where available |
Access off St Georges Parade, no rear lane available |
N/A |
|
|
All residential flat buildings to provide car wash bay |
No car wash bay provided as an automated car stacking system is proposed and cannot be accommodated. |
No - The proposed parking arrangement is unsuitable for the site; therefore a carwash bay is unable to be provide onsite, or even condition to be provided, which is unacceptable. |
|
|
11. Solar access |
|||
|
Primary open space to achieve 4 hours of direct sunlight between 9am and 3pm at mid-winter |
In accordance with the provisions of clause 6A (2) of SEPP 65, this control is of no effect. |
N/A – Refer to the ADG assessment earlier in this report. |
|
|
Neighbours’ private open space and living areas to maintain 3 hours of direct sunlight between 9am and 3pm at mid-winter |
Neighbours’ private open space and living areas will maintain 3 hours of direct sunlight between 9am and 3pm mid-winter. |
Yes
|
|
|
12. Views and view sharing |
|||
|
Provide for reasonable sharing of views |
The location does not have significant views that will be impacted by the proposal. |
Yes |
|
|
13. Adaptable and accessible housing |
|||
|
2 adaptable units required for developments with 11-20 units |
2 adaptable dwellings nominated – Units 402 and 502. |
Yes |
|
Interim Policy – Georges River Development Control Plan 2020
82. Council at its Environment and Planning Committee Meeting dated Council at its Environment and Planning Committee Meeting dated 24 June 2019 resolved to adopt the Georges River Interim Policy Development Control Plan which became effective on 22 July 2019.
83. The Interim Policy is a public policy that is to be used as a guide to set a consistent approach for the assessment of residential development within the LGA. It is a supplementary document, meaning that current Development Control Plan controls will prevail if they are considered best practice. The Interim Policy has no statutory recognition in the assessment of DAs pursuant to the Environmental Planning and Assessment Act, 1979 (EP&A Act).
84. An assessment of the proposal has been carried out against the provisions of the Interim Policy as set out in the following table.
|
Interim Policy – Georges River Development Control Plan 2020 |
||
|
Standard |
Proposed |
Complies |
|
Site Frontage |
||
|
24m
|
Railway Parade – 16.43m |
No – see Kogarah Development Control Plan compliance table above for discussion. |
|
Building Height |
||
|
The relevant LEP controls relating to building height will prevail over Development Control Plan controls that relate to height in storeys |
The proposal has been assessed against the Kogarah Local Environmental Plan 2012 height standard. The proposal does not currently comply. |
No – See Kogarah Local Environmental Plan 2012 Compliance Table above for further details. |
|
Private Open Space |
||
|
The ADG requirements prevail over the Development Control Plan controls for private open space |
The proposal is fully compliant with the ADG’s private open space requirements. Refer to “4E – Private Open Space and Balconies” within the ADG Compliance Table above. |
Yes |
|
Communal Open Space |
||
|
The ADG requirements prevail over the Development Control Plan controls for COS under the Interim Policy |
The proposal is fully compliant with the ADG’s communal open space requirements. Refer to “3D – Communal and Public Open Space” within the ADG Compliance Table above. |
Yes |
|
Parking |
||
|
In accordance with 'A Plan for Growing Sydney' (Department of Planning and Environment): · If located in a strategic centre (i.e. Kogarah CBD and Hurstville CBD) and within 800m of a Railway, the “Metropolitan Regional Centre (CBD)” rates apply. · If located within 800m of a railway and outside the strategic centres the “Metropolitan Subregional Centre” rates apply. · If located outside of 800m of a Railway, the relevant Development Control Plan applies. |
The site is located more than 800m away from a railway station and is not within a strategic centre. The proposal has been assessed against the Development Control Plan controls and proposes the requisite number of parking spaces, however does so in the form of an automated car stacking system, which is not supported by Council staff. |
No
The proposed parking arrangement is not supported by Council’s Traffic Engineer and forms a reason for refusal.
|
|
Solar Access |
||
|
The ADG requirements prevail over the Development Control Plan controls for solar access under the Development Control Plan
|
The proposal is deemed to be compliant with the solar access provisions of the ADG. Refer to “4A – Solar and Daylight Access” within the ADG Compliance Table above. |
Yes |
Developer Contributions
85. The proposed development if approved would require the payment of developer contributions under Section 7.11 of the Environmental Planning and Assessment Act 1979 as the proposal is increasing the density of the locality by the construction of 17new apartments. If the development was to be approved a condition outlining the required contributions would be imposed.
Impacts
Natural Environment
86. The absence of suitably consolidated deep soil zones and insufficient building setbacks to the street frontages precludes the planting of significant canopy trees within the site itself to ameliorate the scale of the building and reduce its visual impact.
87. Accordingly the application is recommended for refusal.
Built Environment
88. The proposal exceeds the building height development standard of Kogarah Local Environmental Plan 2012. A Clause 4.6 Objection has been submitted in support of the non-compliance.
89. The exceedance of this standard is unreasonable and unacceptable in the site’s context and the neighbourhood’s character. The proposal is inconsistent with various DCP controls (as detailed above) and does not reflect the desired future planning and design outcome for the site. The bulk of the building, its inadequate setbacks and deep soil area, the unsuitable car parking design and its functionality, combined with the undersized allotment result in an unacceptable outcome for the site and will set an undesirable precedent, and is thus recommended for refusal.
Social Impact
90. No adverse social impacts have been identified as part of the assessment. The provision of additional dwellings would in principle provide for additional housing in close proximity to a local centre for a cross-section of the community. However, the built form is not an appropriate outcome for the site.
Economic Impact
91. The proposed development has no apparent adverse economic impact. There may be a small positive economic impact as a result of the construction of the development.
Suitability of the site
92. The site is zoned R4 High Density Residential. The proposal is a permissible land use within the zone, subject to development consent.
93. The subject site in isolation is not suitable for the construction of a Residential Flat Building as the site does not meet the minimum site width control and therefore cannot achieve suitable setbacks to the street frontages resulting in an unacceptable built form for the site.
94. This residential flat building has not been sensitively designed to respond to the constraints of the site, in particular the land’s dimensions, area and context, as evidenced by its various non-compliances with relevant building envelope controls as detailed previously within this report.
SUBMISSIONS
95. The application was publicly exhibited between 25 January 2019 and 11 February 2019 in accordance with the public notification provisions in Part A of the Kogarah Development Control Plan 2013. Four (4) submissions plus one submission containing eleven (11) signatories objecting to the proposal were received.
96. The issues raised in the submission are addressed below.
Impacts on neighbouring properties from excavation
97. Comment: The application is recommended for refusal, however should the application be approved conditions of consent would be included requiring dilapidation reports be prepared for adjacent properties prior to excavation commencing.
Overshadowing to units at 1-3 St Georges Parade
98. Comment: The proposal will cast shadow over neighbouring properties at different times of the day, however overall the proposal complies with the solar access controls in the DCP that require neighbours to receive at least 3 hours of sunlight during midwinter.
Impacts during construction on neighbours
99. Comment: If the application was to be approved, standard conditions of consent for construction activity would be imposed.
Noise during construction
100. Comment: If the application was to be approved, standard conditions of consent for construction activity would be imposed.
Privacy
101. Comment: The proposal does not include any private balconies overlooking neighbouring properties and the proposed setback of the building to the boundaries of residential allotments complies with the relevant planning controls. The Level 8 communal open space area is setback in excess of 12m from the neighbouring property and the rooftop communal open space is oriented to Railway Parade, not adjoining dwellings.
Out of context for the locality
102. Comment: The proposed development is recommended for refusal for a number of built form and functionality reasons, including front setbacks, deep soil areas and parking.
No ROC provided for access to 548 Railway Parade
103. Comment: The proposal is not required to provide an easement for access from any future development on 548 Railway Parade.
Easement to be created to drain water from 548 Railway Parade
104. Comment: The application proposes drainage of the site by gravity to St Georges Parade via an on-site detention system. The existing easement for drainage that benefits 548 Railway Parade is not affected by the proposed development.
REFERRALS
Council Referrals
Landscaping
105. No objections were raised subject to conditions if the application were to be approved.
Stormwater
106. The application proposes drainage of the site by gravity to St Georges Parade via on site detention. No objections were raised subject to conditions if the application were to be approved. It is noted that the OSD is proposed within the front setback to St Georges Parade, between the proposed driveway and the building entry, with 1.2m high pool fencing above the retaining wall proposed around the OSD which is 1m from the substation. Council’s Engineer has advised it will not impact the drainage of the site but will result in an unacceptable impact on the streetscape.
Property Information
107. No objections were raised subject to conditions if the application were to be approved.
Health
108. No objections were raised subject to conditions if the application were to be approved.
Traffic
109. Council’s Traffic Engineer does not support the proposed car stacking parking arrangement for the following reasons:
a. The applicant has not provided queue length calculations in accordance with the relevant Australian Standard (AS2890.1:2004);
b. A Plan of Management and Technical Specifications have not been submitted with the application and therefore an assessment of the functionality and reliability cannot be made;
c. The provision of mechanical parking systems is not best practice for basement parking and is not supported for this site; and
d. It is considered that visitors to the building will choose not to use the system due to unfamiliarity with it and will choose instead to park on the surrounding streets, placing unnecessary pressure on street parking when developments are required to provide visitor parking on site.
This forms one of the reasons for refusal.
External Referrals
Department of Infrastructure, Regional Development and Cities
110. The proposed development will penetrate prescribed airspace for Sydney Airport and hence constitutes a ‘controlled activity’ within the meaning of Division 4 of Part 12 of the Airports Act 1996. The applicant has obtained the necessary approval for the controlled activity.
Ausgrid
111. The application was referred to Ausgrid in accordance with Clause 45 of State Environmental Planning Policy (Infrastructure) 2007. Conditions of consent were received on 19 February 2019. Notwithstanding, the DA is recommended for refusal due to significant built form issues.
CONCLUSION
112. The proposal has been assessed using the matters for consideration listed in Section 4.15 of the Environmental Planning and Assessment Act 1979. The proposal is found to be an unreasonable overdevelopment of the site, with excessive visual bulk and unmitigated scale and inadequately proportioned deep soil zones. As such, it represents an unacceptable planning and design outcome for this site and would adversely affect both the character of development in the street and the immediate locality and the residential amenity of the area.
113. The proposal is inconsistent with various design quality principles of State Environmental Planning Policy 65 including context and neighbourhood character, built form and scale, landscape, amenity and aesthetics.
114. The application fails to demonstrate how the proposed mechanical car parking system meets the relevant standards with regard to vehicle queuing and the time for the operation of the system to park a vehicle, a plan of management or technical specifications. The proposed system is not supported.
115. The proposal has been assessed against the provisions of both Kogarah Local Environmental Plan 2012 and Kogarah Development Control Plan 2013. The proposal exceeds the building height development standard of Kogarah Local Environmental Plan 2012. The Clause 4.6 Objection submitted in support of this variation is not supported as the development is recommended for refusal.
116. The proposal also fails to comply with various built form controls of Kogarah Development Control Plan 2013 including the minimum site width, minimum front setback and maximum impervious area controls.
117. For the above reasons, the proposal is recommended for refusal.
DETERMINATION AND STATEMENT OF REASONS
Statement of Reasons
118. The reasons for this recommendation are:
· The proposal fails to achieve a suitably dimensioned area of deep soil as required by the Apartment Design Guide that is capable of accommodating substantial landscaping and canopy trees.
· The proposal is not suitable for the site due to the area and width of the site and it therefore fails to achieve an acceptable scale and built form for the site.
· The proposal does not relate well to the site context, results in an unacceptable interface with adjoining properties and the public domain.
· The application fails to demonstrate the site is suitable for the proposal with regard to the provisions of State Environmental Planning Policy No 55 - Remediation of Land as the preliminary investigation report recommends the preparation of a Detailed Site Investigation Report and a Remedial Action Plan, which have not been submitted with the application.
· The proposal fails to meet the maximum building height permitted on the site pursuant to Clause 4.3 (Height of Buildings) of Kogarah Local Environmental Plan 2012 and the Clause 4.6 Objection submitted is not supported.
· The site fails to meet the primary frontage minimum width control contained in the Kogarah DCP 2013.
· The proposal fails to meet the required Development Control Plan setbacks to Railway Parade and St Georges Parade.
· The proposed automated car stacking system is not supported due to a lack of technical information and an assessment of queuing times provided with the application and the undersized allotment does not appear to be able to provide the required car parking within a traditional basement layout.
· The proposal exceeds the maximum impervious area control in the Development Control Plan.
· The proposal represents an overdevelopment of the site and establishes an undesirable precedent in the area. Its approval is not in the public interest.
Determination
119. THAT pursuant to Section 4.16(1) of the Environmental Planning and Assessment Act 1979 (as amended) the Georges River Local Planning Panel refuse development consent to Development Application DA2018/0584 for demolition of existing structures and construction of a 10 storey residential flat building with basement parking at Lot CP/SP13440 known as 546 Railway Parade, Hurstville, for the following reasons:
1. Refusal Reason – Environmental Planning Instrument - Pursuant to Section 4.15(1)(a)(i) of the Environmental Planning and Assessment Act 1979, the proposed development does not comply with the relevant environmental planning instruments in terms of the following:
(a) The proposal fails to satisfy Part 4 of State Environmental Planning Policy No 65 – Design Quality of Residential Apartment Development as it is inconsistent with various design quality principles of State Environmental Planning Policy No 65 with respect to its response to the site’s context and neighbourhood character and its built form and scale, density, landscape and aesthetics. The proposal does not achieve an acceptable built form with insufficient front setbacks to minimise the visual dominance of the building when viewed from the public domain.
2. Refusal Reason – Environmental Planning Instrument - Pursuant to Section 4.15(1)(a)(i) of the Environmental Planning and Assessment Act 1979, the proposed development does not comply with State Environmental Planning Policy No 55 - Remediation of Land as the preliminary investigation report recommends the preparation of a Detailed Site Investigation Report and Remedial Action Plan, which have not been submitted with the application.
3. Refusal Reason - Development Control Plan - Pursuant to Section 4.15(1)(a)(iii) of the Environmental Planning and Assessment Act 1979, the proposed development does not comply with Kogarah Development Control Plan 2013, Chapter C2 – Medium Density Housing:
a. Section 4 Minimum site and density requirements - the site has a frontage of 16.4m, which fails to comply with the minimum 20m required by the Development Control Plan.
b. Section 6(1) Building Setbacks – the proposal encroaches the minimum front setbacks required by the Development Control Plan.
c. Section 8 Open Space – the proposal exceeds the maximum impervious area control of the Development Control Plan.
These non-compliances result in the site being unsuitable for the proposed development and it having unreasonable adverse impacts on the streetscape setting an undesirable precedent.
4. Refusal Reason – Impacts on the Environment - Pursuant to Section 4.15(1)(b) of the Environmental Planning and Assessment Act 1979, the proposed development is likely to have an adverse impact on the following aspects of the environment:
(a) Natural environment – The proposal does not provide sufficient front setbacks which precludes the planting of canopy trees around the perimeter of the site to provide a landscaped setting for the proposal and ameliorate the scale of the building. In addition, the location of the OSD basin its setback to St Georges Parade, and its required fencing for safety, is an unsuitable outcome for the site and reduces the opportunity for landscaping in the front setback.
(b) Built environment – The proposal does not respond to the context of the site nor the neighbourhood’s character on the basis that it exceeds the maximum building height that applies to the site and fails to provide the minimum required front setbacks envisaged for the site and adjoining development.
5. Refusal Reason – Suitability of Site - Pursuant to Section 4.15(1)(c) of the Environmental Planning and Assessment Act 1979, the site is not considered suitable for the proposed development for the following reasons:
(a) The site cannot adequately accommodate the proposed built form without significant adverse impacts on the amenity of the locality with respect to built form, visual dominance, bulk and scale.
6. Refusal Reason – Public interest - Pursuant to Section 4.15(1)(e) of the Environmental Planning and Assessment Act 1979, the proposed development is not considered to be in the public interest and is likely to set an undesirable precedent within the locality.
NOTES/ADVICES
Review of Determination - Section 8.2 of the Environmental Planning and Assessment Act confers on an applicant who is dissatisfied with the determination of the application the right to lodge an application with Council for a review of such determination. Any such review must however be completed within 6 months from its determination. Should a review be contemplated sufficient time should be allowed for Council to undertake public notification and other processes involved in the review of the determination.
Note: Review provisions do not apply to Complying Development, Designated Development, State Significant Development, Integrated Development or any application determined by the Sydney South Planning Panel or the Land & Environment Court.
Appeal Rights - Part 8 (Reviews and appeals) of the Environmental Planning and Assessment Act 1979 confers on an applicant who is dissatisfied with the determination of the application a right of appeal to the Land and Environment Court of New South Wales.
Lapsing of Consent - This consent will lapse unless the development is physically commenced within 5 years from the Date of Operation of this consent, in accordance with Section 4.53 of the Environmental Planning and Assessment Act 1979 as amended.
|
Attachment ⇩1 |
Site Plan - 546 Railway Pde Hurstville |
|
Attachment ⇩2 |
Elevations - 546 Railway Pde Hurstville |
|
Georges River Council - Georges River Local Planning Panel (LPP) - Thursday, 5 March 2020 LPP009-20 546 Railway Parade Hurstville [Appendix 1] Site Plan - 546 Railway Pde Hurstville |
Page 237 |
|
Georges River Council - Georges River Local Planning Panel (LPP) - Thursday, 5 March 2020 LPP009-20 546 Railway Parade Hurstville [Appendix 2] Elevations - 546 Railway Pde Hurstville |
Page 240 |


|
Georges River Council – Local Planning Panel Thursday, 5 March 2020 |
Page 295 |
REPORT TO GEORGES RIVER COUNCIL
LPP MEETING OF Thursday, 05 March 2020
|
LPP Report No |
LPP010-20 |
Development Application No |
REV2020/0003 |
|
Site Address & Ward Locality |
16 Peake Parade Peakhurst Peakhurst Ward |
||
|
Proposed Development |
Review of Determination of Application No DA2017/0627 for demolition of existing structures and construction of three (3) levels of residential flat building with one (1) level of parking |
||
|
Owners |
Mr J Staninovski, Mrs S Staninovski Mr Z Kevilovski |
||
|
Applicant |
Cornerstone Design |
||
|
Planner/Architect |
Planner: BMA Urban, Architect: Cornerstone Design |
||
|
Date Of Lodgement |
17/01/2020 |
||
|
Submissions |
One (1) unique submission |
||
|
Cost of Works |
$1,782,715.55 |
||
|
Local Planning Panel Criteria |
The original development application was refused by the Georges River Local Planning Panel (LPP). Pursuant to S8.3 (5) of the Environmental Planning and Assessment Act 1979, the S8.2 Review is to be determined by the Georges River Local Planning Panel. |
||
|
List of all relevant s.4.15 matters (formerly s79C(1)(a)) |
State Environmental Planning Policy No. 65 – Design Quality of Residential Apartment Development, State Environmental Planning Policy (Vegetation in Non-Rural Areas) 2017, State Environmental Planning Policy (BASIX) 2004, Greater Metropolitan Regional Environmental Planning Policy No 2- Georges River Catchment, State Environmental Planning Policy No. 55 – Remediation of Land, State Environmental Planning Policy (Infrastructure) 2007, Hurstville Local Environmental Plan 2012, Hurstville Development Control Plan No. 1, Draft Environment State Envrionmental Planning Policy, Draft Remediation of Land State Environmental Planning Policy |
||
|
List all documents submitted with this report for the Panel’s consideration |
Architectural Plans Statement of Environmental Effects Landscape Plans
|
||
|
Report prepared by |
Senior Development Assessment Officer |
||
|
|
Summary of matters for consideration under Section 4.15 Have all recommendations in relation to relevant s4.15 matters been summarised in the Executive Summary of the assessment report? |
Yes |
|
Legislative clauses requiring consent authority satisfaction Have relevant clauses in all applicable environmental planning instruments where the consent authority must be satisfied about a particular matter been listed and relevant recommendations summarised, in the Executive Summary of the assessment report? |
Yes |
|
Clause 4.6 Exceptions to development standards If a written request for a contravention to a development standard (clause 4.6 of the LEP) has been received, has it been attached to the assessment report? |
Yes - Clause 4.3 Height of buildings |
|
Special Infrastructure Contributions Does the DA require Special Infrastructure Contributions conditions (under s7.24)? |
Not Applicable |
|
Conditions Have draft conditions been provided to the applicant for comment? |
No, the application is recommended for refusal. The refusal reasons can be viewed when the report is published. |
|
Site Plan
Subject site outlined in red |
Executive Summary
Proposal
1. Council is in receipt of an application to Review a Determination in accordance with the provisions of Section 8.2 of the Environmental Planning and Assessment Act. Development Application DA2017/0627 was refused by the Local Planning Panel on 19 September 2019.
2. This application proposed the demolition of existing structures, tree removal and construction of a three (3) levels of residential flat building over a level of parking, comprising six (6) units (3 x 2 bedroom units and 3 x 3 bedroom units) and eleven (11) car parking spaces within the parking level. The application was refused on the following grounds:
1. Pursuant to Section 4.15(1)(a)(i) of the Environmental Planning and Assessment Act 1979, the proposed development does not comply with the relevant environmental planning instruments in terms of the following:
a) The proposal fails to satisfy Part 4 of State Environmental Planning Policy No 65 – Design Quality of Residential Apartment Development as it is inconsistent with various design quality principles of State Environmental Planning Policy No 65 with respect to its response to the site’s context and neighbourhood character and its built form and scale, density, landscape and aesthetics, and fails to comply with the corresponding design criteria of the Apartment Design Guide. The proposal does not achieve an acceptable built form with insufficient setbacks and separation to minimise the visual dominance of the building when viewed from both the public domain and adjoining properties. In addition, the proposal fails to provide any 6m wide deep soil landscaped area on the site.
b) The proposal fails to satisfy Part 4 of State Environmental Planning Policy No 65 – Design Quality of Residential Apartment Development on the basis that it fails to either achieve or adequately demonstrate compliance with the design criteria of the Apartment Design Guide with respect to internal solar access, cross ventilation and the minimum area of communal open space.
2. Pursuant to Section 4.15(1)(a)(iii) of the Environmental Planning and Assessment Act 1979, the proposed development does not comply with Hurstville Development Control Plan No. 1, Chapter 4.1 Residential Flat Buildings, Section DS2.1 Site Frontage or Section DS3.1 Isolated Sites. The site has a frontage of 15.8m, which fails to comply with the minimum 24m required by the Development Control Plan. The site is not deemed to be an isolated site and no evidence has been provided from the applicant to indicate attempts have been made to purchase adjoining sites for amalgamation with the subject site. Together these non-compliances result in the site being unsuitable for the proposed development and it having unreasonable adverse impacts on neighbouring properties.
3. Pursuant to Section 4.15(1)(b) of the Environmental Planning and Assessment Act 1979, the proposed development is likely to have an adverse impact on the following aspects of the environment:
a) Natural environment – The proposal does not meet the deep soil zones design criteria of the Apartment Design Guide nor provide sufficient front or side setbacks which precludes the planting of canopy trees around the perimeter of the site to provide a landscaped setting for the proposal and ameliorate the scale of the building. Furthermore, no landscaped boundary setback is provided on the north eastern side of the vehicle driveway.
b) Built environment – The proposal does not respond to the context of the site nor the neighbourhood’s character on the basis that it exceeds the maximum building height that applies to the site, encroaches on the minimum required side and rear setbacks expected on the site, and fails to demonstrate a suitable level of internal amenity for the proposed apartments.
c) Basement car park – The layout of the basement car park is unsatisfactory and does not provide for appropriate manoeuvrability for vehicles.
4. Pursuant to Section 4.15(1)(c) of the Environmental Planning and Assessment Act 1979, the site is not considered suitable for the proposed development for the following reasons:
(a) The site cannot adequately accommodate the proposed built form without significant adverse impacts on the amenity of adjacent and nearby properties with respect to built form, visual dominance, bulk and scale.
5. Pursuant to Section 4.15(1)(3) of the Environmental Planning and Assessment Act 1979, the proposed development is not considered to be in the public interest and is likely to set an undesirable precedent within the locality.

Figure 1: Photomontage of the proposed development
Site and Locality
3. The application applies to land known as 16 Peake Parade, Peakhurst, and is legally described as Lot 292 in DP 36537.
4. The site has a boundary to Peake Parade of 15.85m, side boundary lengths of 40.845m and 43.54m, and a rear boundary length of 10.06m and 6.40m combined, giving a site area of 677.9sqm.
5. The land falls by 4.25m from the street to the rear boundary.
6. The site is located within an R3 Medium Density Residential precinct. A number of properties in the locality have been redeveloped from single dwelling houses to residential flat buildings and dual occupancies.
Zoning and Permissibility
7. The subject site is zoned R3 Medium Density Residential under the provisions of Hurstville Local Environmental Plan 2012 (HLEP 2012). The proposal is for a residential flat building which is permissible with consent in the zone.

Figure 2: Zoning Map – the site is outlined in blue
Submissions
8. The DA was notified to adjoining properties in accordance with the Hurstville Development Control Plan No. 1 (HDCP) for a statutory notification period of 14 days between 29 January and 12 February 2020. One (1) submission was received.
Reason for Referral to the Local Planning Panel
9. This application is referred to the Georges River Local Planning Panel (LPP) for consideration and determination, as the original application was refused by the LPP in September 2019. Pursuant to Section 8.3(5) of the Environmental Planning and Assessment Act 1979, the Section 8.2 Review is to be undertaken by the Georges River Local Planning Panel.
10. A new Clause 4.6 statement has been submitted with the Section 8.2 Review application seeking a variation to the height control (Clause 4.3) in accordance with the provisions of the Hurstville Local Environmental Plan 2012 to justify and support the non-compliance.
Planning and Design Issues
11. The proposal fails to comply with the building height development standard of 12m that applies to the site under Hurstville Local Environmental Plan 2012. The lift overrun, communal WC and awning over the rooftop communal open space area exceeds the height limit, with the top of the lift overrun having a height of 14.4m (20% variation). A variation request to the building height development standard has been submitted pursuant to Clause 4.6 of Hurstville Local Environmental Plan 2012; however it has been assessed as being not well founded, as discussed in this report.
12. The proposal fails to achieve the required setbacks pursuant to the Apartment Design Guide (ADG) and the design treatment of the side elevations will result in poor internal amenity for many of the units.
13. Insufficient communal open space is provided, and there is insufficient information provided to enable a full and proper assessment of the solar access and natural ventilation available to the proposed units.
14. The subject site is 15.85m wide and does not comply with the minimum 24m site width control in the Hurstville Development Control Plan (DCP), resulting in an unacceptable design outcome for the site and the streetscape. The justification for the proposed residential flat building on an under-width lot relies on the site being an isolated lot; this justification is not accepted by Council Assessment Staff.
Conclusion
15. The application has been assessed having regard to the Matters for Consideration under Section 4.15 and Section 8.2 of the Environmental Planning and Assessment Act, 1979, the provisions of the relevant State Environmental Planning Policies, Local Environmental Plan and Development Control Plans. The proposal is an unreasonable planning and urban design outcome in the context of the site and performs poorly against the design quality principles of State Environmental Planning Policy No 65. The Clause 4.6 Objection in relation to the building height development standard is considered to not be well-founded. As a result the Section 8.2 Review application is recommended for refusal.
Report in Full
Description of the Proposal
16. Council is in receipt of a Section 8.2 Review application relating to a development application (DA) that seeks consent for the proposed demolition of existing structures, tree removal and construction of a three (3) levels of residential flat building over a level of parking, comprising six (6) units (3 x 2 bedroom units and 3 x 3 bedroom units one being nominated as adaptable) and eleven (11) car parking spaces within the parking level.
17. Essentially the building is a five (5) storey building which contains three (3) levels of residential apartments, car parking level and an enclosed common area containing a kitchen and BBQ area on the rooftop area adjacent to the communal open space.
18. Further details of the proposal are as follows:
Car park
- Nine (9) residential car parking spaces (of which one is an accessible parking space) and two (2) visitor car parking spaces;
- Residential storage allocated to individual apartments;
- Bicycle parking for two (2) bicycles;
- Service areas;
- Egress stairs; and
- Lift access to the upper levels.
Ground Floor
- Two (2) apartments comprising a 2 bedroom and a 3 bedroom apartment which is nominated as adaptable.
- Shared communal pedestrian access from the street is proposed along the south western side boundary.
- Dual width driveway access from Peake Parade is located in the south eastern corner of the site adjacent to 14A Peake Parade. The driveway and ramp is located in close proximity to the eastern boundary which does not provide a sufficient width for planting.
- The waiting bay adjacent to the car park access requires a vehicle to reverse into the public domain to manoeuvre to access the car park, this results in pedestrian and vehicle conflict.
- Bin store area adjacent to the entry foyer (western side).
- The service and circulation spaces of the building are centrally located, with the lift being to the eastern side of the building and the circulation stair to the western side.
First and Second Floors
- Two (2) apartments on each level comprising of a 2 bedroom and a 3 bedroom apartment.
- The service and circulation spaces of the building are centrally located, with the lift being to the eastern side of the building and the circulation stair to the western side.
Rooftop
- Rooftop area of communal open space (113.61sqm) with a shading device over the northern section with a BBQ, and an enclosed area which contains a common WC and a kitchen.
- Perimeter landscaping around the communal open space within planter boxes.
19. The proposal involves the removal of five (5) trees/shrubs from within the site.
The Site and Locality
20. The subject site is known as 16 Peake Parade, Peakhurst and is legally described as Lot 292 in DP36537.
21. The site has a frontage to Peake Parade of 15.85m and a site area of 677.9sqm. The property shares a rear boundary with Peake Avenue Reserve and the site has a fall of 4.25m from the street to the rear.

Figure 3: The site as viewed from Peake Parade
22. The site is currently occupied by a single storey dwelling house and scattered vegetation, none of which is significant.
23. The site is located in a residential neighbourhood characterised by recently constructed residential flat buildings and dual occupancy developments. The property to the east is occupied by a two storey attached dual occupancy development (Figure 4). The property to the west is currently occupied by dwelling houses, however approval has been granted for a three storey residential flat building on the corner of Peake Parade and Pearce Avenue (DA2016/0366) (Figure 5).

Figure 4: Dual occupancy at 14A and 14B Peake Parade (east of the site)

Figure 5: Approved residential flat building at 18-20 Peake Parade (west of the site)
Background
24. DA2017/0627 sought consent for the demolition of one detached dwelling house and the construction of a three (3) storey residential flat building containing 6 residential apartments. Car parking is contained within a semi-basement level containing 11 car parking spaces for residents and visitors. The application was refused by the Local Planning Panel at its meeting held on 19 September 2019 for the following reasons:
1. Pursuant to Section 4.15(1)(a)(i) of the Environmental Planning and Assessment Act 1979, the proposed development does not comply with the relevant environmental planning instruments in terms of the following:
a) The proposal fails to satisfy Part 4 of State Environmental Planning Policy No 65 – Design Quality of Residential Apartment Development as it is inconsistent with various design quality principles of State Environmental Planning Policy No 65 with respect to its response to the site’s context and neighbourhood character and its built form and scale, density, landscape and aesthetics, and fails to comply with the corresponding design criteria of the Apartment Design Guide. The proposal does not achieve an acceptable built form with insufficient setbacks and separation to minimise the visual dominance of the building when viewed from both the public domain and adjoining properties. In addition, the proposal fails to provide any 6m wide deep soil landscaped area on the site.
b) The proposal fails to satisfy Part 4 of State Environmental Planning Policy No 65 – Design Quality of Residential Apartment Development on the basis that it fails to either achieve or adequately demonstrate compliance with the design criteria of the Apartment Design Guide with respect to internal solar access, cross ventilation and the minimum area of communal open space.
2. Pursuant to Section 4.15(1)(a)(iii) of the Environmental Planning and Assessment Act 1979, the proposed development does not comply with Hurstville Development Control Plan No. 1, Chapter 4.1 Residential Flat Buildings, Section DS2.1 Site Frontage or Section DS3.1 Isolated Sites. The site has a frontage of 15.8m, which fails to comply with the minimum 24m required by the Development Control Plan. The site is not deemed to be an isolated site and no evidence has been provided from the applicant to indicate attempts have been made to purchase adjoining sites for amalgamation with the subject site. Together these non-compliances result in the site being unsuitable for the proposed development and it having unreasonable adverse impacts on neighbouring properties.
3. Pursuant to Section 4.15(1)(b) of the Environmental Planning and Assessment Act 1979, the proposed development is likely to have an adverse impact on the following aspects of the environment:
a) Natural environment – The proposal does not meet the deep soil zones design criteria of the Apartment Design Guide nor provide sufficient front or side setbacks which precludes the planting of canopy trees around the perimeter of the site to provide a landscaped setting for the proposal and ameliorate the scale of the building. Furthermore, no landscaped boundary setback is provided on the north eastern side of the vehicle driveway.
b) Built environment – The proposal does not respond to the context of the site nor the neighbourhood’s character on the basis that it exceeds the maximum building height that applies to the site, encroaches on the minimum required side and rear setbacks expected on the site, and fails to demonstrate a suitable level of internal amenity for the proposed apartments.
c) Basement car park – The layout of the basement car park is unsatisfactory and does not provide for appropriate manoeuvrability for vehicles.
4. Pursuant to Section 4.15(1)(c) of the Environmental Planning and Assessment Act 1979, the site is not considered suitable for the proposed development for the following reasons:
a) The site cannot adequately accommodate the proposed built form without significant adverse impacts on the amenity of adjacent and nearby properties with respect to built form, visual dominance, bulk and scale.
5. Pursuant to Section 4.15(1)(3) of the Environmental Planning and Assessment Act 1979, the proposed development is not considered to be in the public interest and is likely to set an undesirable precedent within the locality.
Division 8.2 Reviews
25. Division 8.2 of the Environmental Planning and Assessment Act requires the following provisions (Section 8.3) to be considered in the assessment of an application to review a determination:
(1) An applicant for development consent may request a consent authority to review a determination or decision made by the consent authority. The consent authority is to review the determination or decision if duly requested to do so under this Division.
(2) A determination or decision cannot be reviewed under this Division:
(a) after the period within which any appeal may be made to the Court has expired if no appeal was made, or
(b) after the Court has disposed of an appeal against the determination or decision.
(3) In requesting a review, the applicant may amend the proposed development the subject of the original application for development consent or for modification of development consent. The consent authority may review the matter having regard to the amended development, but only if it is satisfied that it is substantially the same development.
26. The statutory considerations pursuant to Division 8.2 Reviews have been met. The application has been lodged within an appropriate timeframe and is considered to be substantially the same as the original application (DA2017/0627).
Discussion on reasons for refusal and the Review application
27. The Applicant has made the following amendments to the design and lodged the modified plans on 20 January 2020 in conjunction with the Section 8.2 review application. The changes that have been made include the following;
Car park level
- Removal of storage spaces behind car spaces 5, 7 and 9 to accommodate the deep soil planting at the front of the allotment.
- Removal of external paths and reconfiguration of external stairs to accommodate deep soil planting in the north western portion of the site.
- Removal of one bollard and relocation of the second bollard outside the lift in the car park.
- Increase in car park aisle widths from 5.8m to 6.25m and 6.2m to 6.36m.
Ground floor
- Removal of splayed walls on the western elevation for bedrooms 1 and 3 of unit G.02.
- Increase in deep soil planting to the north western part of the site.
- Increase in deep soil planting centrally within the front setback of the site.
- Reduction in the size of the south facing terrace for unit G.01 from 37.12sqm to 19.56sqm.
- Stairs providing access from the north western corner of the site to the ground floor reconfigured.
First floor and second floor
- Removal of splayed walls on the western elevation for bedrooms 1 and 3 of units 1.02 and 2.02.
Roof top
- Squaring off of the roof form on the western side of the building consistent with the removal of the angled walls in the levels below.
Elevations
- The removal of the angled walls has now resulted in the provision of west facing windows for bedrooms 1 and 3 in units G.01, 1.01 and 2.01.
Table 1: Comments on reasons for refusal
|
Reason for refusal |
Applicants comments |
Officer comment |
|
Refusal Reason - 1. Pursuant to Section 4.15(1)(b) of the Environmental Planning and Assessment Act 1979, the proposed development does not comply with the relevant environmental planning instruments in terms of the following:
(a) The proposal fails to satisfy Part 4 of State Environmental Planning Policy No 65 – Design Quality of Residential Apartment Development as it is inconsistent with various design quality principles of State Environmental Planning Policy No 65 with respect to its response to the site’s context and neighbourhood character and its built form and scale, density, landscape and aesthetics, and fails to comply with the corresponding design criteria of the Apartment Design Guide. The proposal does not achieve an acceptable built form with insufficient setbacks and separation to minimise the visual dominance of the building when viewed from both the public domain and adjoining properties. In addition, the proposal fails to provide any 6m wide deep soil landscaped area on the site.
(b) The proposal fails to satisfy Part 4 of State Environmental Planning Policy No 65 – Design Quality of Residential Apartment Development on the basis that it fails to either achieve or adequately demonstrate compliance with the design criteria of the Apartment Design Guide with respect to internal solar access, cross ventilation and the minimum area of communal open space. |
It is considered that the proposed development now satisfies the relevant provisions detailed in Part 4 of SEPP 65 as described in the accompanying evaluation of the SEPP 65 design quality principles prepared by Nicholas Lycenko.
Furthermore, the proposal is considered to appropriately respond to the design criteria detailed in the Apartment Design Guide (Refer to part 4.4.3 of this document.
The appropriateness of the built form within its context has been adequately addressed in the assessment of the design quality principles accompanying this application.
With regards to deep soil, Part 3E of the ADG identifies a minimum required dimension of 3m for any provided deep soil zone and % of site area of 7% both of which the development complies with.
Refer to Part 4.4.3 of this document being an excerpt of the design architects address of the relevant design criteria of the ADG.
|
The built form is still inappropriate for the subject site. The non-compliance with the minimum lot width creates a number of non-compliances with the ADG, communal open space, visual privacy, vehicle access, solar access, storage and façade treatment.
It is noted that the site has provided 8.43% of landscaped area with a minimum 3m dimension consistent with Part 3E of the ADG. This part of the reason for refusal has now been amended to remove this non compliance.
Inadequate information has been provided to confirm compliance, it would appear unlikely that there would be solar penetration into living rooms of street facing units given this is the southern side of the development.
|
|
2. Pursuant to Section 4.15(1)(a)(iii) of the Environmental Planning and Assessment Act 1979, the proposed development does not comply with Hurstville Development Control Plan No. 1, Chapter 4.1 Residential Flat Buildings, Section DS2.1 Site Frontage or Section DS3.1 Isolated Sites. The site has a frontage of 15.8m, which fails to comply with the minimum 24m required by the Development Control Plan. The site is not deemed to be an isolated site and no evidence has been provided from the applicant to indicate attempts have been made to purchase adjoining sites for amalgamation with the subject site. Together these non- compliances result in the site being unsuitable for the proposed development and it having unreasonable adverse impacts on neighbouring properties. |
An assessment of how this development responds to the relevant design provisions of Hurstville DCP No 1 is detailed in Part 4.8.1 of this document.
In terms of site isolation, attempts have been made to acquire the neighbouring sites at 14 and 14A Peake Parade. Refer to Part 5.3.7 of this document. The suitability of the proposed development on the site is discussed in Part 5.4 of this document. |
The proposed development does not comply with the minimum 24m frontage. This non-compliance results in a development that has unreasonable impacts upon the amenity of the adjoining properties and provides inadequate internal amenity.
The applicant has provided some documentation to indicate that attempts have been made to acquire the neighbouring sites at 14 and 14A Peake Parade, Peakhurst however no evidence of any attempt to acquire the neighbouring sites at 18-20 Peake Parade, Peakhurst have been provided.
|
|
3 Pursuant to Section 4.15(1)(b) of the Environmental Planning and Assessment Act 1979, the proposed development is likely to have an adverse impact on the following aspects of the environment:
(a) Natural environment – The proposal does not meet the deep soil zones design criteria of the Apartment Design Guide nor provide sufficient front or side setbacks which precludes the planting of canopy trees around the perimeter of the site to provide a landscaped setting for the proposal and ameliorate the scale of the building. Furthermore, no landscaped boundary setback is provided on the north eastern side of the vehicle driveway.
(b) Built environment – The proposal does not respond to the context of the site nor the neighbourhood’s character on the basis that it exceeds the maximum building height that applies to the site, encroaches on the minimum required side and rear setbacks expected on the site, and fails to demonstrate a suitable level of internal amenity for the proposed apartments.
(c) Basement car park – The layout of the basement car park is unsatisfactory and does not provide for appropriate manoeuvrability for vehicles. |
As detailed in Part 4.4.3 of this document, the proposed development provides deep soil zones that comply with both the area and width requirements relevant to this form of development consistent with the provisions of Part 3E of the ADG.
In terms of the provisions of a landscaped buffer along the north eastern side of the driveway, the accompanying landscape plan prepared by Zenith landscape design nominates the provision of native grasses in this location.
Refer to accompanying SEPP 65 Design Principles Statement, Part 5.3.4 (visual privacy) and Part 4.4.3 (ADG table) of this document in address of this reason for refusal. A Clause 4.6 variation is provided (Appendix A) in address of the height standard variation.
Vehicular manoeuvring within the basement has been design in accordance with the relevant standards. |
It is noted that the amended plans now provide 8.43% of deep soil landscaped area with a minimum 3m dimension consistent with Part 3E of the ADG.
The proposed development still fails to provide a suitable landscape buffer to the north eastern side of the driveway.
The proposal fails to comply with the minimum separation distances for habitable areas and the maximum building height. It is considered the scale and form of the development is inappropriate for the site given its present allotment width.
The applicant has submitted a new Clause 4.6 variation to the height development standard. This has not been well founded and is not supported.
Council’s Traffic Engineer has reviewed the documentation submitted with the review application and has raised concerns with the manoeuvrability within the car park and access to car spaces. |
|
4. Pursuant to Section 4.15(1)(c) of the Environmental Planning and Assessment Act 1979, the site is not considered suitable for the proposed development for the following reasons:
(a) The site cannot adequately accommodate the proposed built form without significant adverse impacts on the amenity of adjacent and nearby properties with respect to built form, visual dominance, bulk and scale. |
The accompanying SEPP 65 Design Quality Principles Statement and the detailed assessment against the provisions of 4.15 (c) undertaken within this document, both confirm that the subject site is capable of accommodating the proposed development in a manner that will not unreasonably impact the amenity of neighbouring properties nor will it result in a built form and scale that is visually at odds with that of the existing or anticipated future development within the context. |
The subject site in isolation is not suitable for the construction of a RFB within a medium density environment as the site does not meet the minimum site width control and is unable to achieve suitable setbacks to neighbouring properties. As a result the development is unsuitable with respect to the amenity impacts on the adjoining allotment and the amenity for future occupants. |
|
5. Pursuant to Section 4.15(1)(3) of the Environmental Planning and Assessment Act 1979, the proposed development is not considered to be in the public interest and is likely to set an undesirable precedent within the locality. |
Having regard to the amendments made and the assessment contained within this Statement, the development is considered to be in the public interest. |
The proposal is still considered to be an overdevelopment of the site given the narrow width of the allotment to accommodate a RFB in its current form. The proposal is not considered to be in the public interest. |
State Environmental Planning Policies (SEPPs)
28. Compliance with the relevant State Environmental Planning Policies is summarised in the following table and discussed in further detail below it.
Table 2: Compliance with State Planning Policies
|
State Environmental Planning Policy Title |
Complies |
|
Greater Metropolitan Regional Environmental Plan No 2 – Georges River Catchment |
Yes |
|
State Environmental Planning Policy (Building Sustainability Index: BASIX) 2004 |
Yes |
|
State Environmental Planning Policy No 55 – Remediation of Land |
Yes |
|
State Environmental Planning Policy (Infrastructure) 2007 |
Yes |
|
State Environmental Planning Policy (Vegetation in Non-Rural Areas) 2017 |
Yes
|
|
State Environmental Planning Policy No 65—Design Quality of Residential Apartment Development
|
No – Non-compliance with respect to Design Quality Principles 1 and 2. Refer to State Environmental Planning Policy No 65 section below. |
|
Draft Environment State Environmental Planning Policy |
Yes |
|
Draft Remediation of Land State Environmental Planning Policy |
Yes |
Greater Metropolitan Regional Environmental Plan No 2 – Georges River Catchment
29. The primary relevant aims and objectives of this plan are:
· to maintain and improve the water quality and river flows of the Georges River and its tributaries and ensure that development is managed in a manner that is in keeping with the national, State, regional and local significance of the Catchment,
· to protect and enhance the environmental quality of the Catchment for the benefit of all users through the management and use of the resources in the Catchment in an ecologically sustainable manner,
· to ensure consistency with local environmental plans and also in the delivery of the principles of ecologically sustainable development in the assessment of development within the Catchment where there is potential to impact adversely on groundwater and on the water quality and river flows within the Georges River or its tributaries,
· to establish a consistent and coordinated approach to environmental planning and assessment for land along the Georges River and its tributaries and to promote integrated catchment management policies and programs in the planning and management of the Catchment,
30. The stormwater design was referred to Council’s Engineering Section for review. The plans propose the same drainage as per the original application where no objection was raised with respect to the management and disposal of stormwater subject to the imposition of deferred commencement conditions (for an easement to drain water from the site to the open drain in council’s reserve to the north of the site) if consent was to be granted.
31. In summary, the proposal is consistent with the aims, objectives or purpose of the Regional Plan if approved with appropriate conditions of consent.
State Environmental Planning Policy (Building Sustainability Index: BASIX) 2004
32. BASIX Certificate No. 879258M_03 dated 18 December 2019 was lodged with the Section 8.2 Review application and indicates that the proposal meets the provisions and minimum requirements of BASIX in terms of water, thermal comfort and Energy efficiency.
State Environmental Planning Policy No 55 - Remediation of Land (State Environmental Planning Policy 55)
33. State Environmental Planning Policy No 55 aims to promote the remediation of contaminated land in order to reduce the risk of harm to human health or any other aspect of the environment.
34. Clause 7 requires contamination and remediation to be considered in determining a DA. The consent authority must not consent to the carrying out of development on land unless it has considered whether or not the land is contaminated.
35. Though a Preliminary Investigation Assessment report was not submitted with the DA, a review of historic aerial photography indicates that the site has been used for residential purposes since at least 1943. Residential usage is not typically associated with activities that would result in the contamination of land. On this basis, the site is likely to be suitable for residential development in its current state for the development proposed with respect to contamination.
State Environmental Planning Policy (Vegetation in Non-Rural Areas) 2017
36. The Vegetation State Environmental Planning Policy aims to protect the biodiversity values of trees and other vegetation in non-rural areas of the State, and to preserve the amenity of non-rural areas of the State through the preservation of trees and other vegetation.
37. The Vegetation State Environment Planning Policy applies to clearing of:
(a) Native vegetation above the Biodiversity Offset Scheme (BOS) threshold where a proponent will require an approval from the Native Vegetation Panel established under the Local Land Services Amendment Act 2016; and
(b) Vegetation below the BOS threshold where a proponent will require a permit from Council if that vegetation is identified in the council’s development control plan (Development Control Plan).
38. The Vegetation State Environmental Planning Policy repeals clauses 5.9 and 5.9AA of the Standard Instrument - Principal Local Environmental Plan with regulation of the clearing of vegetation (including native vegetation) below the BOS threshold through any applicable development control plan (Development Control Plan).
39. The proposal involves the removal of five (5) trees from the site. Council’s Consultant Arborist has reviewed the proposed tree removal and raised no objection to the removal of the five (5) trees subject to appropriate replacement tree planting both on site and within the public domain should the application be supported. The recommended conditions provided by the consultant arborist require one additional tree to be planted within deep soil areas of the site in addition to those shown on the submitted landscape plans, and one street tree to be planted within the road frontage.
40. On this basis, the proposal, should it be supported, is consistent with relevant provisions of the Vegetation State Environmental Planning Policy.
Draft Remediation of Land State Environmental Planning Policy
41. The Department of Planning and Environment has announced a Draft Remediation of Land State Environmental Planning Policy, which will eventually repeal and replace the current State Environmental Planning Policy No 55 — Remediation of Land.
42. The main changes proposed include the expansion of categories of remediation work which requires development consent, a greater involvement of principal certifying authorities particularly in relation to remediation works that can be carried out without development consent, more comprehensive guidelines for Councils and certifiers and the clarification of the contamination information to be included on Section 149 Planning Certificates.
43. Whilst the proposed State Environmental Planning Policy will retain the key operational framework of State Environmental Planning Policy 55, it will adopt a more modern approach to the management of contaminated land. The Draft State Environmental Planning Policy will not alter or affect the findings with respect to State Environmental Planning Policy 55 detailed above.
Draft Environment State Environmental Planning Policy
44. The Draft Environment State Environmental Planning Policy was exhibited from 31 October 2017 to 31 January 2018. This consolidated State Environmental Planning Policy proposes to simplify the planning rules for a number of water catchments, waterways, urban bushland, and Willandra Lakes World Heritage Property.
45. Changes proposed include consolidating the following seven existing State Environmental Planning Policies:
· State Environmental Planning Policy No. 19 – Bushland in Urban Areas
· State Environmental Planning Policy (Sydney Drinking Water Catchment) 2011
· State Environmental Planning Policy No. 50 – Canal Estate Development
· Greater Metropolitan Regional Environmental Plan No. 2 – Georges River Catchment
· Sydney Regional Environmental Plan No. 20 – Hawkesbury-Nepean River (No.2-1997)
· Sydney Regional Environmental Plan (Sydney Harbour Catchment) 2005
· Willandra Lakes Regional Environmental Plan No. 1 – World Heritage Property.
46. The proposal is consistent with the provisions of this Draft Instrument.
State Environmental Planning Policy No 65 — Design Quality of Residential Apartment Development
47. State Environmental Planning Policy No 65 – Design Quality of Residential Flat Buildings (State Environmental Planning Policy 65) was gazetted on 26 July 2002 and applies to the assessment of DAs for residential flat developments of three or more storeys in height and containing at least four dwellings. Amendment 3 to State Environmental Planning Policy 65 commenced on 17 July 2015 and implemented various changes including the introduction of the Apartment Design Guide (ADG) to replace the Residential Flat Design Code. Given the nature of the development proposed, State Environmental Planning Policy 65 applies.
48. Clause 28(2) of State Environmental Planning Policy 65 requires that the consent authority take into consideration the following as part of the determination of DAs to which State Environmental Planning Policy 65 applies:
a) the advice (if any) obtained from the design review panel, and
b) the design quality of the development when evaluated in accordance with the design quality principles, and
c) the Apartment Design Guide.
49. The review application was not referred to the DRP given the application did not substantially change and the application was lodged with insufficient time for the matter to be reviewed by the DRP again prior to the expiry of the review period.
50. As detailed within the table earlier in this report, the proposal fails to satisfy various Design Quality Principles and provisions of the ADG, particularly where they relate to context and neighbourhood character, built form and scale, density and façade design. The proposal also fails to meet various design criteria of the ADG with respect to residential amenity of the apartments.
51. The tables below provide a comprehensive assessment against the principles, objectives and controls of State Environmental Planning Policy 65 and the ADG.
Table 3: Application of State Environmental Planning Policy 65
|
Clause |
Standard |
Proposal |
Complies |
|
3 - Definitions |
Complies with definition of “Residential Apartment Development” (RAD) Section 4 (1) (Application of Policy) of the State Environmental Planning Policy 65 states that the policy “applies to development for the purpose of a residential flat building, shop top housing or mixed use development with a residential accommodation component if: (a) the development consists of any of the following:
(i) the erection of a new building, (ii) the substantial redevelopment or the substantial refurbishment of an existing building, (iii) the conversion of an existing building, and
(b) the building concerned is at least 3 or more storeys (not including levels below ground level (existing) or levels that are less than 1.2 metres above ground level (existing) that provide for car parking), and
(c) the building concerned contains at least 4 or more dwellings.” |
The proposal is over five (5) levels, with three (3) levels of residential flat building and one (1) level of parking and an enclosed room adjacent to the rooftop communal open space. |
Yes |
|
4 - Application of Policy |
Development involves the erection of a new RFB, substantial redevelopment or refurbishment of a RFB or conversion of an existing building into a RFB. The definition of an RFB in the State Environmental Planning Policy includes mixed use developments. |
This application is for the erection of an RFB which satisfies the State Environmental Planning Policy’s definition. |
Yes |
|
50 – Development Applications |
Design verification statement provided by qualified designer Registered Architect Name and Registration No. |
Design Verification Statement provided by Registered Architect: N Lycenko (Registration No.3010) |
Yes |
52. Clause 28 of State Environmental Planning Policy 65 requires the consent authority to take into consideration the provisions of the ADG. The Table below assesses the proposal against these provisions, with relevant assessment comments provided where non-compliances are proposed.
Table 4: Part 3 and Part 4 – Consideration of Apartment Design Guide
|
ADG Compliance Table |
||
|
Standard |
Proposal |
Complies |
|
3D – Communal Open Space (COS) |
||
|
Provide COS at least 25% of the site area (169.48sqm)
Located on a podium or roof if it cannot be located on ground level
At least 50% direct sunlight to the principal usable part of the COS for at least 2 hours between 9am and 3pm on 21 June (mid-winter) |
16.76% (113.61sqm).
COS located on roof level.
Complies for the COS provided, however the COS provide is substantially less than the COS required. |
No
Yes
Yes |
|
Comment on Communal Open Space The proposal does not provide the communal open space specified by the Apartment Design Guide. It is noted that the narrowness of the site and the scale of the building mean that there is little opportunity for the provision of compliant and quality areas of communal open space on the site.
The units in the proposal do not benefit from larger balconies to compensate for the deficient COS, and the ground floor is heavily disrupted by the protruding basement and service/circulation areas, meaning there is no alternative location for additional open space. |
||
|
3E – Deep Soil Zones |
||
|
Site area is 650sqm - 1,500sqm = 3m min dimensions
Min deep soil area of 7% (47sqm) |
Amended plans show that the deep soil area proposed achieves the minimum 3m dimensions.
57.13sqm (8.43%) |
Yes
Yes |
|
Comment on Deep Soil Zones The building has been redesigned and now provides sufficient deep soil zones with minimum dimensions of 3m and a minimum total area of 8.43% of the site area, as required by the ADG for a site of this size. |
||
|
3F – Visual Privacy |
||
|
Minimum separation to side and rear boundaries:
Up to 12m (4 storeys): 3m non-habitable rooms 6m habitable rooms and balconies |
Levels G – 2
East Elevation: · Between 2.345m and 4.825m to habitable/balcony
West Elevation: · Between 2.615m and 4.125m to habitable rooms |
No
No |
|
Comment on Visual Privacy The proposed development fails to achieve the required separation distances to adjoining properties, and in the plans refused under the original DA used ungainly angled windows to manage privacy impacts. These angled windows have been removed from the western side of the building and replaced with standard windows which also fail to satisfy the ADG requirements. The angled walls on the eastern side of the building remain, which restrict the amount of potential light within the building.
The inadequate separations will impose unreasonable impacts on the developments either side of the site, and accordingly will form part of the reasons for refusal.
It is noted that the failure to provide separation is a result of the narrow width of the site in its present form. The lack of separation along both side boundaries will create adverse amenity impacts to adjoining properties and the lack of compliant separation distances in this case will not satisfy the objectives of the ADG, which aim to achieve an “equitable” distribution of separation between properties. |
||
|
3G – Pedestrian Access and Entries |
||
|
Building entries and pedestrian access connects to and addresses the public domain
Multiple entries (including communal building entries and individual ground floor entries) should be provided to activate the street edge |
One entry provided (western side) with access from Peake Parade.
One communal entry (western side) and one entry to Unit G.01 via a terrace. |
Yes
Yes |
|
3H – Vehicle Access |
||
|
Vehicle access points are designed and located to achieve safety, minimise conflicts between pedestrians and vehicles and create high quality streetscapes |
The driveway has an insufficient setback along the south eastern boundary. Landscaping between the driveway and the boundary shared with 14A Peake Parade, will be visually dominant in the streetscape relative to the development. The waiting bay adjacent to the driveway does not enable manoeuvring into the car park and will require a vehicle to reverse into the public domain resulting in vehicle and pedestrian conflict. |
No – see comment below |
|
Comment on Vehicle Access: The proposed driveway off Peake Parade has an insufficient setback from the south eastern boundary and occupies 34% of the site frontage thereby forming a dominant feature with respect to the streetscape character of the development.
The failure to provide a strip of landscaping (eg 1.5m) to enable a softening of the harshness and sterile nature of the driveway, and the dominance of the driveway with respect to the site width both indicate that the proposed driveway design will not deliver a sufficiently high quality streetscape. In conjunction with the pedestrian entries including access stairs and ramps, this will cumulatively result in hard surfaces dominating the streetscape.
As the driveway is not able to be reduced for reasons of satisfying Australian Standards for design, this indicates that the site is not wide enough to accommodate the development as proposed, and forms part of the refusal reasons.
Concern is also raised with the conflict between pedestrian and vehicles as the waiting bay area located to the west of the driveway is of insufficient depth and requires that the vehicle reverses back into the public domain before entering the car park. |
||
|
3J – Bicycle and Car Parking |
||
|
Car parking provided in accordance with RMS GTTGD
(Applies to sites that are within 800m of a railway station or light rail stop in the Sydney Metropolitan Area) |
Not applicable – site is more than 1km from Riverwood Station and therefore the Development Control Plan (DCP) rates apply to the proposal.
Required: 1 space/1B or 2B = 3 spaces 2 spaces/3B= 6 spaces 1 visitor space/4 units = 2 spaces
Proposed: 9 resident spaces 2 visitor spaces |
N/A
Yes Yes |
|
4A – Solar and Daylight Access |
||
|
Living rooms and private open space receive 2 hours direct sunlight between 9am and 3pm in midwinter for 70% of apartments
Max. 15% of apartments receive no direct sunlight between 9am and 3pm in midwinter |
Inadequate information provided to confirm compliance – unlikely to achieve solar penetration into living rooms of street facing units given this is the southern side of the development.
3/6 apartments = 50% |
No – see comment below
No |
|
Comment on Solar and Daylight Access The shadow diagrams submitted with the application fail to provide solar access diagrams for the proposed units and do not show the penetration of direct sunlight into the units. It is likely that the living rooms of the street facing units will not receive 2 hours of sunlight in winter as required by the ADG, particularly if the site to the east is developed in a similar manner into the future. On this basis, compliance with the Solar and Daylight Access design criteria has not been demonstrated and the proposal is deemed unacceptable.
It is noted that although the ADG requires provision of separation distances primarily for reasons of privacy in Part 3, Part 2F (which relates to preparation of building controls) notes that separation is also important to assist in providing residential amenity with respect to sunlight and daylight access. Given the proposal is on a site that is below the required site width, it is relevant to note that the inability to deliver solar access to the required number of units is a direct symptom of the inadequate width of the site.
This matter forms part of the reasons for refusal. |
||
|
4B – Natural Ventilation |
||
|
At least 60% of apartments are naturally cross ventilated in the first nine storeys of the building.
Overall depth of a cross-over or cross-through apartment does not exceed 18m, measured glass line to glass line
The building should include dual aspect apartments, cross through apartments and corner apartments and limit apartment depths |
Inadequate information provided to make a proper assessment.
13m maximum
Achieved |
The proposal appears to comply, however further information is required to confirm this criterion given the insufficient setbacks.
Yes
Yes |
|
Comment on natural ventilation The SEE submitted with the application states all units are designed and configured to permit natural cross ventilation, and the layout of the units appear to comply, however no ventilation diagrams were provided with the architectural plans to demonstrate compliance with the control, given the compromised design to address the inadequate setbacks provided.
This forms part of the reasons for refusal. |
||
|
4C – Ceiling Heights |
||
|
Minimum ceiling heights measured from FFL to finished ceiling level: Habitable rooms = 2.7m Non-habitable rooms = 2.4m |
All rooms have 2.7m internal ceiling height. |
Yes |
|
4D – Apartment Size and Layout |
||
|
Minimum internal areas: 1br: 50sqm 2br: 70sqm 3br: 90sqm
(Add 5sqm if second bathroom proposed)
Each habitable room must have a window in an external wall with a total minimum glass area of at least 10% of the floor area of the room. |
All apartments meet minimum internal sizes.
Calculated accordingly.
Each habitable room has a suitably sized window.
|
Yes
Yes
Yes |
|
Habitable room depths are limited to a maximum of 2.5 x the ceiling height
In open plan layouts (where the living, dining and kitchen are combined) the maximum habitable room depth is 8m from a window |
All rooms compliant.
Street facing units measure depth from balcony door to “front” of kitchen (7.4m) while rear facing units are measured to the rear wall of the kitchen (8m). |
Yes
Yes |
|
Master bedrooms have a minimum area of 10sqm and other bedrooms 9sm (excluding wardrobe space)
Bedrooms have a minimum dimension of 3m (excluding wardrobe space)
Living rooms or combined living/dining rooms have a minimum width of: - 3.6m for studio and 1 bedroom - 4m for 2 and 3 bedroom apartments
Internal width of cross-over or cross-through apartments are at least 4m |
All bedrooms meet minimum internal sizes (excluding wardrobe space).
All bedrooms meet minimum dimensions excluding wardrobe space as specified.
All living rooms comply.
All such apartments meet the minimum width requirement. |
Yes
Yes
Yes
Yes |
|
Comment on Apartment Size and Layout To overcome the width of the site being 37% below the required 24m site frontage for RFBs under the Hurstville Development Control Plan (DCP), and the inability of the proposed building to achieve the required setbacks to the side boundaries for visual privacy, the design treatment of the side elevations of the building includes ‘hooded’ windows facing the rear of the site. This results in poor internal amenity for most bedrooms, and the living and dining rooms of the street-facing units, in terms of solar access, ventilation and outlook.
This forms a reason for refusal. |
||
|
4E – Private Open Space and Balconies |
||
|
Minimum primary balcony sizes: 1br: 8sqm area, 2m depth 2br: 10sqm area, 2m depth
3+br: 12sqm area, 2.4m depth
The minimum balcony depth to be counted as contributing to the balcony area is 1m
For apartments at ground level or on a podium or similar structure, a private open space is provided instead of a balcony. It must have a minimum area of 15sqm and a minimum depth of 3m. |
All 2 bedroom units compliant in area and width.
All 3 bedroom units compliant in area and width.
Calculated accordingly.
G.01 complies. |
Yes
Yes
Yes
Yes |
|
4F – Common Circulation Areas |
||
|
Maximum 8 apartments off a circulation core on a single level |
2 units per level. |
Yes |
|
4G – Storage |
||
|
In addition to storage in kitchens, bathrooms and bedrooms, the following storage is provided: 1br: 6m³ 2br: 8m³ 3+br: 10m³
At least 50% of storage is located within the apartment |
2br G.01, 1.01 & 2.01 <8m3 3br G.02, 1.02 & 2.02<10m3
Units G.01, 1.01 and 2.01 > 50% of storage is in basement. |
No No
No |
|
4H – Acoustic Privacy |
||
|
Adequate building separation is provided within the development and from neighbouring buildings/adjacent uses.
Window and door openings are generally orientated away from noise sources
Noisy areas within buildings including building entries and corridors should be located next to or above each other and quieter areas next to or above quieter areas
Storage, circulation areas and non-habitable rooms should be located to buffer noise from external sources |
Refer to 3F – Visual Privacy.
Bedrooms generally oriented away from the street.
Achieved
Generally achieved where practicable. |
No
Yes
Yes
Yes |
|
4J – Noise and Pollution |
||
|
To minimise impacts the following design solutions may be used: · physical separation between buildings and the noise or pollution source · residential uses are located perpendicular to the noise source and where possible buffered by other uses · buildings should respond to both solar access and noise. Where solar access is away from the noise source, non-habitable rooms can provide a buffer · landscape design reduces the perception of noise and acts as a filter for air pollution generated by traffic and industry |
The site is not located in close proximity to any noise or pollution sources. |
Yes |
|
4K – Apartment Mix |
||
|
A range of apartment types and sizes is provided to cater for different household types now and into the future.
The apartment mix is distributed to suitable locations within the building. |
Each floor contains the following unit mix:
· 1 x 2 bedroom unit · 1 x 3 bedroom unit. |
Yes |
|
4L – Ground Floor Apartments |
||
|
Street frontage activity is maximised where ground floor apartments are located
Design of ground floor apartments delivers amenity and safety for residents |
Unit G.01 has direct access from Peake Parade however the courtyard is almost 1m below the street level on the southern side of the building, and is located between the driveway and communal pedestrian access for the building.
Accordingly it is considered this is a poor design outcome and is not appropriate. This forms part of the reasons for refusal. |
No |
|
4M – Facades |
||
|
Facades should be well resolved with an appropriate scale and proportion to the streetscape and human scale |
The bulk of the building is too large for a site having a width of 15.85m, and the inability to achieve suitable setbacks to the side boundaries further exacerbates the scale of the building being out of character in the streetscape and the broader locality.
This forms a refusal reason of the application. |
No |
|
4N – Roof Design |
||
|
Roof treatments are integrated into the building design and positively respond to the street. Opportunities to use roof space for residential accommodation and open space are maximised. Incorporates sustainability features |
Clean, simple roof form, lift overruns centralised over the building, open space on rooftop achieved.
Acceptable shading to apartment openings. |
Yes
Yes |
|
4O – Landscape Design |
||
|
Landscape design is viable and sustainable, contributes to the streetscape and amenity |
Insufficient room for canopy trees along the perimeter of the site. |
No – see comment below |
|
Comment on Landscape Design The amended proposal provides a larger area of deep soil however there are still limited opportunities for significant canopy tree planting to ameliorate the scale of the building regulate the local microclimate and contribute to a landscaped setting in the locality, particularly between buildings. |
||
|
4P – Planting on Structures |
||
|
Planting on structures – appropriate soil profiles are provided, plant growth is optimised with appropriate selection and maintenance, contributes to the quality and amenity of communal and public open spaces |
Planter boxes would need to be of appropriate depth by condition of consent if approved |
Achievable by a condition of consent if approved. |
|
4Q – Universal Design |
||
|
Universal design – design of apartments allow for flexible housing, adaptable designs, accommodate a range of lifestyle needs. Benchmark of 20% liveable dwellings. |
No liveable dwellings proposed. |
No |
|
4R – Adaptive Reuse |
||
|
Adaptive reuse as apartment of existing buildings- new additions are contemporary and complementary, provide residential amenity while not precluding future adaptive reuse. |
N/A – not an adaptive re-reuse as the building is new. |
N/A |
|
4U – Energy Efficiency |
||
|
Development incorporates passive environmental design, passive solar design to optimise heat storage in winter and reduce heat transfer in summer, natural ventilation minimises need for mechanical ventilation |
Appropriate building orientation, natural ventilation, passive solar design, exceeds BASIX target for energy efficiency. |
Yes |
|
4V – Water Management and Conservation |
||
|
Water management and conservation – potable water use is minimised, stormwater is treated on site before being discharged, flood management systems are integrated into the site design |
Suitable. |
Yes |
|
4W – Waste Management |
||
|
Waste management – storage facilities are appropriately designed, domestic waste is minimised by convenient source separation and recycling |
Can be addressed through conditions of consent if approved. |
Achievable |
|
4X – Building Maintenance |
||
|
Building design provides protection form weathering
Enables ease of maintenance, material selection reduces ongoing maintenance cost |
Suitable. |
Yes |
53. The proposal is therefore unsatisfactory with regards building separation, solar access, site landscaping, provision of communal open space, driveway dominance and other amenity matters.
54. The majority of these issues are driven by the narrow width of the site. In the context that the site fails to achieve an acceptable level of design with regards to the matters identified in Apartment Design Guide for a site that is not isolated. Accordingly the design issues outlined above will form part of the reasons for refusal of the application.
Environmental Planning Instruments
Hurstville Local Environmental Plan 2012
Zoning
55. The subject site is zoned R3 Medium Density Residential under the provisions of the Hurstville Local Environmental Plan 2012 (HLEP2012) (see zoning map below). The proposed development is for a residential flat building which is a permissible land use in the zone.

Figure 6: Zoning map – the site is outlined in blue
56. The objectives of the zone are as follows:
• To provide for the housing needs of the community within a medium density residential environment.
• To provide a variety of housing types within a medium density residential environment.
• To enable other land uses that provide facilities or services to meet the day to day needs of residents.
• To ensure that a high level of residential amenity is achieved and maintained.
• To provide for a range of home business activities, where such activities are not likely to adversely affect the surrounding residential amenity.
57. The proposal does not satisfy all of the objectives of the R3 Medium Density Residential zone. Although it provides a variety of residential apartments in a medium density residential environment, it does not achieve or maintain a high level of residential amenity, given the lack of building separation which is as a result of the non compliant allotment width.
58. The non-compliance with the minimum allotment width results in a number of non- compliances with the ADG, in particular the minimum building separation requirements, and as a result has an adverse impact upon the amenity between adjoining properties.
59. The extent to which the proposal complies with the relevant standards of Hurstville Local Environmental Plan 2012 (HLEP2012) is outlined in the table below.
Table 5: HLEP2012 Compliance Table
|
Clause |
Standard |
Proposed |
Complies |
|
2.2 Zone |
R3 Medium Density Residential |
The proposal is defined as a residential flat building which is a permissible use within the zone. |
Yes |
|
2.3 Objectives |
Objectives of the Zone: - To provide for the housing needs of the community within a medium density residential environment.
- To provide a variety of housing types within a medium density residential environment.
- To enable other land uses that provide facilities or services to meet the day to day needs of residents.
- To ensure that a high level of residential amenity is achieved and maintained.
- To provide for a range of home business activities, where such activities are not likely to adversely affect the surrounding residential amenity. |
The proposal is inconsistent with the zone objectives in that the proposed building fails to ensure that a high level of residential amenity is achieved and maintained.
This is as a result of the lack of separation along both side boundaries which will create adverse amenity impacts to the adjoining properties. The reduced setbacks are a result of the limited site width to cater for the density proposed.
Compliant setbacks could be achieved if the site was to amalgamate with an adjoining site which in turn would assist in meeting the objective in relation to residential amenity. |
No |
|
4.3 – Height of Buildings |
12m as identified on Height of Buildings Map |
The building exceeds the 12m height limit and proposes an overall height at the highest point of 14.4m. |
No – see discussion below regarding Clause 4.6 Statement submitted. |
|
4.4 – Floor Space Ratio |
1:1 as identified on Floor Space Ratio Map |
The proposed FSR is 0.96:1.
|
Yes |
|
4.5 – Calculation of floor space ratio & site area |
FSR and site area calculated in accordance with Cl.4.5 |
The GFA calculations provided by the Applicant have been verified and are considered satisfactory. |
Yes |
|
6.2 Earthworks |
To ensure that earthworks do not have a detrimental impact on environmental functions and processes, neighbouring uses, cultural or heritage items or features of the surrounding land |
Excavation for the car parking level is proposed. Suitable conditions of consent could be imposed to protect neighbouring properties during construction should the application be approved.
|
Yes |
Clause 4.6 Exceptions to development standards
Detailed assessment of variation to Clause 4.3 Height of Buildings
60. Clause 4.3 of Hurstville Local Environmental Plan (HLEP2012) relates to the maximum permitted building height for a site and refers to the Height of Buildings Map. The relevant map identifies the subject site as having a maximum height of 12m. Building Height is defined as:
“Building height (or height of building) means:
(a) In relation to the height of a building in metres – the vertical distance from ground level (existing) to the highest point of the building, or
(b) In relation to the RL of a building the vertical distance from the Australian Height Datum to the highest point of the building
Including plant and lift overruns, but excluding communication devices, antennae, satellite dishes, masts, flagpoles, chimneys, flues and the like.”

Figure 7: Extract from the HELP (height Map_005) designated as “M” notes a 12m height limit
61. The proposed development seeks a variation to the development standard relating to height (Clause 4.3). The Local Environmental Plan identifies a maximum height of 12m for the site (refer to Figure 8 below) and the proposed development will exceed the height by 2.4m which comprises of the lift overrun, fire stairs, enclosed common area, and the pergola over the rooftop communal open space area. This is a 20% variation above the control. Any variation to the height can only be considered under Clause 4.6 – Exceptions to Development Standards of the Hurstville Local Environmental Plan 2012.

Figure 8: Red line showing the areas of the building that exceed the 12m height limit (courtesy Cornerstone Design).
62. Clause 4.6(1) outlines the objectives of the standard which are to “provide an appropriate degree of flexibility in applying certain development standards to particular development” and “to achieve better outcomes for and from development by allowing flexibility in particular circumstances”.
63. Clause 4.6(3) states that:
“Development consent must not be granted for development that contravenes a development standard unless the consent authority has considered a written request from the applicant that seeks to justify the contravention of the development standard by demonstrating:
- that compliance with the development standard is unreasonable or unnecessary in the circumstances of the case, and
- that there are sufficient environmental planning grounds to justify contravening the development standard”
64. To support the non-compliance, the applicant has provided a request for a variation to Clause 4.3 in accordance with Clause 4.6 of HLEP2012. The Clause 4.6 request for variation is assessed as follows:
Is the planning control in question a development standard?
65. The Height of Buildings control under Clause 4.3 of the Hurstville Local Environment Plan 2012 is a development standard.
What are the underlying objectives of the development standard?
66. The objectives of Height of Buildings standard under Clause 4.3 of Hurstville Local Environmental Plan 2012 are:
(a) to ensure that buildings are compatible with the height, bulk and scale of the existing and desired future character of the locality,
(b) to minimise visual impact, disruption of views, loss of privacy and loss of solar access to existing development and to public areas and public domain, including parks, streets and lanes,
(c) to minimise the adverse impact of development on heritage items,
(d) to nominate heights that will provide a transition in built form and land use intensity,
(e) to establish maximum building heights that achieve appropriate urban form consistent with the major centre status of the Hurstville City Centre,
(f) to facilitate an appropriate transition between the existing character of areas or localities that are not undergoing, and are not likely to undergo, a substantial transformation,
(g) to minimise adverse environmental effects on the use or enjoyment of adjoining properties and the public domain.
Compliance is unreasonable or unnecessary in the circumstances of the case (clause 4.6(3)(a))
67. There have been several Court cases that have established provisions in which to assess Clause 4.6 statements to ensure they are well founded and address the provisions of Clause 4.6.
68. In Wehbe V Pittwater Council (2007) NSW LEC 827 Preston CJ sets out ways of establishing that compliance with a development standard is unreasonable or unnecessary. This list is not exhaustive. It states, inter alia:
“An objection under State Environmental Planning Policy 1 may be well founded and be consistent with the aims set out in clause 3 of the Policy in a variety of ways. The most commonly invoked way is to establish that compliance with the development standard is unreasonable or unnecessary because the objectives of the development standard are achieved notwithstanding non-compliance with the standard.”
69. The Judgment goes on to state that:
“The rationale is that development standards are not ends in themselves but means of achieving ends. The ends are environmental or planning objectives. Compliance with a development standard is fixed as the usual means by which the relevant environmental or planning objective is able to be achieved. However, if the proposed development proffers an alternative means of achieving the objective strict compliance with the standard would be unnecessary (it is achieved anyway) and unreasonable (no purpose would be served).”
70. Preston CJ in the judgement then expressed the view that there are 5 different ways in which an objection may be well founded and that approval of the objection may be consistent with the aims of the policy, as follows (with emphasis placed on number 1 for the purposes of this Clause 4.6 variation):
1. The objectives of the standard are achieved notwithstanding non-compliance with the standard;
2. The underlying objective or purpose of the standard is not relevant to the development and therefore compliance is unnecessary;
3. The underlying object or purpose would be defeated or thwarted if compliance was required and therefore compliance is unreasonable;
4. The development standard has been virtually abandoned or destroyed by the Council's own actions in granting consents departing from the standard and hence compliance with the standard is unnecessary and unreasonable;
5. The zoning of the particular land is unreasonable or inappropriate so that a development standard appropriate for that zoning is also unreasonable and unnecessary as it applies to the land and compliance with the standard that would be unreasonable or unnecessary. That is, the particular parcel of land should not have been included in the particular zone.”
71. The statement was prepared in consideration of the recent court cases and their judgements.
72. Applicants comment: “Preston CJ identifies 5 options in Wehbe V Pittwater Council (2007) NSW LEC 827 which can be used to analyse whether the application of the standard to a particular building is unreasonable or unnecessary in the circumstances of the case.
Preston CJ at [16] states as follows:
“As to the first matter required by cl 4.6(3)(a), I summarised the common ways in which an applicant might demonstrate that compliance with a development standard is unreasonable or unnecessary in Wehbe v Pittwater Council at [42] – [51]. Although that was said in the context of an objection under State Environmental Planning Policy No 1 – Development Standards to compliance with a development standard, the discussion is equally applicable to a written request under cl 4.6 demonstrating that compliance with a development standard is unreasonable or unnecessary.”
In Wehbe, Preston CJ identified five ways in which it could be shown that application of a development standard was unreasonable or unnecessary. However, his Honour said that these five ways are not exhaustive; they are merely the most commonly invoked ways. Further, an applicant does not need to establish all of the ways.
The five methods outlined in Wehbe are:
1. The objectives of the standard are achieved notwithstanding non-compliance with the standard (first method).
2. The underlying objective or purpose of the standard is not relevant to the development and therefore compliance is unnecessary (Second method).
3. The underlying object of purpose would be defeated or thwarted if compliance v/as required and therefore compliance is unreasonable (Third method).
4. The development standard has been virtually abandoned or destroyed by the Council's own actions in granting consents departing from the standard and hence compliance with the standard is unnecessary and unreasonable (Fourth method).
5. The zoning of the particular land is unreasonable or inappropriate so that a development standard appropriate for that zoning is also unreasonable and unnecessary as it applies to the land and compliance with the standard that would be unreasonable or unnecessary. That is, the particular parcel of land should not have been included in the particular zone (Fifth method).
Of particular assistance in this matter, in establishing that compliance with a development standard is unreasonable or unnecessary are the First and Fourth methods.
First method – Achieves the objectives of the standard
The objectives of the height of buildings principal development standard area:
(a) to ensure that buildings are compatible with the height, bulk and scale of the existing and desired future character of the locality,
(b) to minimise visual impact, disruption of views, loss of privacy and loss of solar access to existing development and to public areas and public domain, including parks, streets and lanes,
(c) to minimise the adverse impact of development on heritage items,
(d) to nominate heights that will provide a transition in built form and land use intensity,
(e) to establish maximum building heights that achieve appropriate urban form consistent with the major centre status of the Hurstville City Centre,
(f) to facilitate an appropriate transition between the existing character of areas or localities that are not undergoing, and are not likely to undergo, a substantial transformation,
(g) to minimise adverse environmental effects on the use or enjoyment of adjoining properties and the public domain.
It is considered that the proposed development achieves the objectives of the standard for the following reasons:
The underlying purpose of objective (a) is to ensure that any future development is designed in a manner whereby any resulting building height will appropriately respond to both the existing and future context in a controlled manner. The recessive nature of the height breach particularly from the Peake Parade frontage and notable site slope, enable the proposed building to visually integrate with that of neighbouring development both current and future, serving as an affirmation of the objective and not that of a building that abandons height controls.
The proposal is compliant in height along the Peake Parade Street frontage consistent with the height and scale envisaged by the standard. Due to the minor non-compliance being limited to the lift overrun and ancillary structures servicing the roof top communal open space, the development is generally indistinguishable from a fully compliant scheme when viewed from the Peake Parade frontage and neighbouring properties.
Objective (b) seeks to minimise the visual impact, disruption of views, loss of privacy and loss of solar access to existing development and the adjoining public domain from buildings.
Visual Impact
The visual impact of the non-compliant height elements are not significant because:
· The height breaching elements are suitably integrated into the overall design of the building and are of a form and materiality that do not create any unwarranted visual impact;
· The portion of the building that exceeds the building height is limited to the centre of the building away from the building edges and therefore, does not impose on either the neighbouring properties, public reserve adjoining the site to the rear or streetscape along Peake Parade.
· The landscaped treatments proposed to the roof of the building will serve to soften the visual presentation of the building.
Having regard to the above, the elements in breach of the height will be largely imperceptible when compared to a height compliant building on this site, most notably when observed from the public domain along Peake Parade
Disruption of Views
The location of the subject site, its relationship with adjoining properties and extent of available views offered to neighbouring properties both existing and future; none of which are considered of any appreciable significance, will not be compromised by the extent of building height breach observed by this building height variation.
Loss of Privacy
The non-compliant building elements, notably those that are proposed to be trafficable, are sited within the centre of the building generously setback from the building edges. Furthermore, planter boxes are proposed along the accessible perimeters of the communal rooftop space excluding that with direct address to Peake Parade. The aforementioned design measures will further mitigate the ability for privacy impacts to be incurred by either neighbouring properties or by persons utilising the public reserve for recreation purposes located to the rear of the site.
Solar Access to neighbouring buildings, parks and the public domain
The height breaching elements of the building will not unreasonably impact the extent of available solar access capable of being provided to either the neighbouring properties, adjoining reserve or public domain. The envisaged impact of additional shadowing anticipated to be cast on neighbouring development is demonstrated in Figures 20 and 21 of the Clause 4.6 variation. This analysis demonstrates that the extent of additional shadowing that will be incurred by the height breach (highlighted in red), is limited to the solid and unfenestrated components of the neighbouring developments. Importantly, the diagrams display the likely impact to be incurred by the approved but yet to be constructed residential flat building at 18-20 Peake Parade and not that of the existing dwelling.
On this basis, the proposal is consistent with objective (b).
There are no heritage items in the vicinity of the subject site and therefore objective (c) is met.
Objective (d) seeks to nominate heights that will provide a transition in built form and land use intensity.
The proposed development complies with the allowable FSR made available to the land and therefore, there is no identifiable nexus between the height variation and the extent of density afforded to the land.
Further to the above, the breaching height elements are suitably integrated into the overall design of the building and are of a form and materiality that do not create any unwarranted visual impact. The areas that exceed the height standard are inconsequential when viewed from the public domain and do not contribute to the scale and density of the building in terms of its visual perception to contributing bulk. Where the rooftop building elements servicing the communal open space area exceed the height standard, they have been designed in a manner where they are centrally located and do not increase the scale or intensity of development when viewed by the casual observer.
The site is not located within Hurstville City Centre and is therefore, objective (e) is not relevant to this development.
In relation to objective (f), the locality maintains a largely medium density development character whereby undeveloped lands within the definable context are all afforded with height and density controls consistent with that observed on the subject site.
In response to objective (g) which seeks to minimise adverse environmental effects on the use or enjoyment of adjoining properties and the public domain, the extent of height breach proposed in a largely centralised location on the roof, will not result in any future restriction on the ability for adjoining properties or general public to continue utilising their identifiable spaces in a manner that remains uncompromised by the extent of building height breach.
Having regard to the address of the building height objectives above, it is evident that the proposed development remains consistent with the objectives for maximum height, despite the numeric non-compliance.
Fourth Method - Development standard has been virtually abandoned or destroyed by the granting of consents departing from the standard in similar cases to this
Compliance with the clause 4.3 Height of buildings development standard is also unreasonable or unnecessary in the circumstances of this case because the development standard has been virtually abandoned as far as it relates to equitable roof top access to communal open space. We do not say that it has been abandoned as far as it relates to habitable floors above the maximum building height.
Other residential flat buildings in this locality encroach the maximum 12m height standard for the communal rooftop and associated structures relating to that rooftop, being lift overrun, stairs, amenities and shade structures.”
73. Officer Comment: The proposed development is seeking approval for a residential flat building on a site that is 15.85m wide, which is considerably below the minimum 24m site width nominated within the Hurstville Development Control Plan (DCP).
74. The proposal is an overdevelopment of the site and the design does not respond appropriately to the topography of the land and the slope of the site to the rear, resulting in the non-compliance with the 12m height limit.
75. The proposal fails to satisfy the objectives of the development standard as follows:
(a) to ensure that buildings are compatible with the height, bulk and scale of the existing and desired future character of the locality,
76. Officer Comment: The proposal is not compatible with the height, bulk or scale of the desired future character of the locality. The adjoining buildings (existing and approved) comply with the height limit and are a suitable response to their respective sites. The site fails to achieve the minimum site width required for residential flat buildings, as such the development proposed is constrained when attempting to satisfy the provisions of State Environmental Planning Policy 65 and the ADG resulting in a compromised built form providing reduced amenity to the future occupants and an undesirable built form outcome presenting to the street. The proposal is not suitable for the site.
(b) to minimise visual impact, disruption of views, loss of privacy and loss of solar access to existing development and to public areas and public domain, including parks, streets and lanes
77. Officer Comment: This objective relates to the amenity impacts generated by the exceedance in the height control. The non-compliance will not result in any adverse overlooking, overshadowing (lift core is centralised so the lift overrun will overshadow the building itself), view loss or outlook generated by the variation and it will not adversely affect the public domain.
(c) to minimise the adverse impact of development on heritage items,
78. Officer Comment: The site is not located within proximity of any heritage items.
(d) to nominate heights that will provide a transition in built form and land use intensity,
79. Officer Comment: Objective (d) is aimed at establishing a maximum height for buildings so that within a given zone there is consistency in the scale and built form of the building.
80. It is accepted that the exceedance at its worst point is centrally located within the roof form however the design of the building fails to respond appropriately to the slope of the site to the rear and is an overdevelopment on an undersized (narrow) allotment, rendering it unsuitable for the proposed development.
81. The non-compliance is not considered minor as it relies on the roof level area for its only area of communal open space as this is the only area for passive recreation for the development. The building envelope and built form, as proposed, is non-compliant with the ADG separation distances and therefore the additional scale and height is not considered to reflect the desired future planning and design outcome that is sought/envisaged for this precinct.
(e) to establish maximum building heights that achieve appropriate urban form consistent with the major centre status of the Hurstville City Centre,
82. Officer Comment: The site is not located within the Hurstville City Centre.
(f) to facilitate an appropriate transition between the existing character of areas or localities that are not undergoing, and are not likely to undergo, a substantial transformation,
83. Officer Comment: Given the non-compliant width of the site, the proposed development does not provide an appropriate transition between the approved residential flat building to the west (which complies with the height control) and the existing two storey dual occupancy to the east. A more appropriate development for the site would be a dual occupancy as a compliant built form could be achieved and the amenity afforded to the future occupant’s and the adjoining allotments would greatly improve.
(h) to minimise adverse environmental effects on the use or enjoyment of adjoining properties and the public domain.
84. Officer Comment: The non-compliance will not result in any adverse overlooking, overshadowing (lift core is centralised so the lift overrun will overshadow the building itself), view loss or loss of outlook generated by the variation and it will not adversely affect the public domain.
Clause 4.6(3)(b) are there sufficient environmental planning grounds to justify contravening the standard
85. Having regard to Clause 4.6(3)(b) and the need to demonstrate that there are sufficient environmental planning grounds to justify contravening the development standard, It is considered that the Clause 4.6 Statement lodged with the review application addresses all the information required pursuant to Clause 4.6, however the statement is not considered to be well founded and there are insufficient environmental planning grounds to justify contravening the standard given that in this case the proposal does not satisfy the objectives of the height control.
86. Clause 4.6(4) states that:
“Development consent must not be granted for development that contravenes a development standard unless:
(a) the consent authority is satisfied that:
(i) the applicant’s written request has adequately addressed the matters required to be demonstrated by subclause (3), and
(ii) the proposed development will be in the public interest because it is consistent with the objectives of the particular standard and the objectives for development within the zone in which the development is proposed to be carried out,”
87. Applicant’s comment: “Clause 4.6(3) b of the HLEP 2012, requires the consent authority to be satisfied that the applicants written request has adequately addressed clause 4.6(3)(b) by demonstrating:
“That there are sufficient environmental planning grounds to justify contravening the development standard.”
The environmental planning grounds relied on in the written request under Clause 4.6 must be sufficient to justify contravening the development standard. The focus is on the aspect of the development that contravenes the development standard, not the development as a whole. Therefore, the environmental planning grounds advanced in the written request must justify the contravention of the development standard and not simply promote the benefits of carrying out the development as summarised in (Initial Action Pty Ltd v Woollahra Municipal Council [2018] NSWLEC 118.
On ‘planning grounds’ and in order to satisfy that the proposal meets objective 1(b) of Clause 4.6 in that allowing flexibility in the particular circumstances of this development will achieve “a better outcome for and from development”, it is considered that the current proposal will facilitate greater amenity for future residents on a site that is highly suited for such purposes and in a configuration that will not detract from the existing approved developments or future anticipated development on neighbouring properties.
The height departure relates to the encroachment of the lift over run, protruding shelter structure and a portion of the balustrade with the remainder of the building positioned below the maximum building height limit. The lift overrun is a core service element of the development and is setback significantly from the Peake Parade façade and will not be readily visible from the street level. The shelter structure provides necessary amenity benefits to residents using the communal area.
There are sufficient environmental planning grounds to justify the variation of the height control, particularly given that:
· The development has been designed to minimise impacts where practicable on neighbouring properties and future adjoining properties;
· Strict compliance with the building height standard would result in no material built form benefits;
· The proposed height non-compliance relates to parts of the building that will be imperceptible to the casual observer when viewed from the adjacent street frontage, public reserve or from private properties;
· The height breach dies not unreasonably contribute to the extent of overshadowing cast on neighbouring properties or public reserve nor will it result in any identifiable loss of privacy to these areas; and
· The non-compliant sections of the building do not result in view loss.
The benefit of exercising flexibility in the application of the height of building control in this instance is improved residential amenity for occupants by the provision of quality communal open space with equitable access.
88. Officers comment: The objectives of the R3 Medium Density Residential zone are:
• To provide for the housing needs of the community within a medium density residential environment.
• To provide a variety of housing types within a medium density residential environment.
• To enable other land uses that provide facilities or services to meet the day to day needs of residents.
• To ensure that a high level of residential amenity is achieved and maintained.
• To provide for a range of home business activities, where such activities are not likely to adversely affect the surrounding residential amenity.
89. The height non-compliance does not undermine the objectives of the zone. The development on an undersized allotment is the reason for the poor amenity outcomes and the compromised built form which results in the development not satisfying the residential amenity objective of the zone.
90. The proposal however fails to satisfy the “public interest” test as the exceedance of the control does not meet the objectives of the zone which include the following:
· To provide for the housing needs of the community within a medium density residential environment.
91. Officer Comment: The redevelopment of this site would contribute to the housing needs of the community. However it is the scale, form and density of the development proposed that is unsuitable for the site. The compromised built form directly results from the narrow width of the allotment with the built form attempting to ameliorate the non-compliances of the design having regard to State Environmental Planning Policy 65 and the ADG compliance. It is considered the proposal is an overdevelopment of the site, resulting in adverse impacts on neighbouring properties and the public domain.
· To provide a variety of housing types within a medium density residential environment.
92. Officer Comment: The development incorporates two and three bedroom apartments.
· To enable other land uses that provide facilities or services to meet the day to day needs of residents.
93. Officer Comment: The development is residential in nature and does not include any additional land uses. This objective is offering some greater flexibility in the provision of land uses within this zone broadly.
· To ensure that a high level of residential amenity is achieved and maintained.
94. Officer Comment: The development fails to demonstrate compliance with a number of State Environmental Planning Policy 65 and the ADG controls, including solar access and natural ventilation, resulting in poor internal amenity for future occupants.
· To provide for a range of home business activities, where such activities are not likely to adversely affect the surrounding residential amenity
95. Officer Comment: This development does not include any additional business activities or land uses.
96. It is considered that the Clause 4.6 Statement lodged with the review application addresses all the information required pursuant to Clause 4.6. The non compliance comprises habitable area. The Panel has on previous occasions permitted the exceedance in the height control of ancillary structures such as lift over runs, pergolas and areas of communal open space as these areas are generally not adding to the bulk of the building and do not comprise habitable space. If the development was of a scale, form and density that was able to be supported, and the areas of habitable space were removed, which are contributing the visual bulk, the clause 4.6 would likely have assessing officer support.
97. However, the proposal fails to achieve the minimum site width required for residential flat buildings. The undersized allotment therefore fails to comply with the State Environmental Planning Policy 65 and ADG criterion in relation to communal open space, building separation, solar access and internal apartment amenity. In addition, the proposal fails to meet a number of Development Control Plan controls, including landscaped area, streetscape presentation, built form and scale.
Whether contravention of the development standard raises any matter of significance for State or regional environmental planning (Clause 4.6(5)(a))
98. Contravention of the maximum height development standard proposed by this application does not raise any matter of significance for State or Regional environmental planning.
The public benefit in maintaining the development standard (Clause 4.6(5)(b))
99. It is noted that in Initial Action Pty Ltd v Woollahra Municipal Council [2018] NSWLEC 118, Preston CJ clarified what items a Clause 4.6 does and does not need to satisfy. Importantly, there does not need to be a "better" planning outcome resulting from the non-compliance.
100. Clause 4.6 does not directly or indirectly establish a test that the non-compliant development should have a neutral or beneficial effect relative to a compliant development.
101. The second matter was in cl 4.6(3)(b), where the Commissioner applied the wrong test in considering this matter by requiring that the development result in a "better environmental planning outcome for the site" relative to a compliant development. Clause 4.6 does not directly or indirectly establish this test. The requirement in cl 4.6(3)(b) is that there are sufficient environmental planning grounds to justify contravening the development standard, not that the development that contravenes the development standard have a better environmental planning outcome than a development that complies with the development standard.
102. The proposal generates adverse bulk, scale and streetscape impacts and fails to satisfy the objectives of the zone and a number of SEPP 65 and ADG criterion and controls within the Development Control Plan.
Any other matters required to be taken into consideration by the Planning Secretary before granting concurrence (Clause 4.6(5)(c))
103. In accordance with clause 64 of the Environmental Planning and Assessment Regulation 2000, Council may assume the Secretary’s concurrence for exceptions to development standards for applications made under clause 4.6 of the LEP. This was further confirmed by directions provided within Planning Circular PS 18-003 issued on 21 February 2018.
Conclusion – Assessment of Clause 4.6 Request for Variation
104. Despite the non-compliance in terms of the height, the proposed variation is considered to be unacceptable and does not satisfy the provisions of Clause 4.6. The variation to the maximum building height includes habitable space, which results in additional visual bulk and an unreasonable amount of additional height to the building
105. The proposed development does not satisfy the objectives of the height control as it will be a visually dominating and bulky structure in this location. The building proposes habitable space adjacent to the communal roof top open space area, which exceeds the maximum building height. The proposed design response is not considered to be in the public interest and does not minimise impacts as stipulated by the objectives of the height control. The additional height for the habitable space is considered to establish an undesirable urban design and planning precedent in the immediate locality and the scale of the development will not be sympathetic with the existing scale and form of existing adjoining developments.
106. For these reasons the Clause 4.6 Statement is not considered to be well-founded and cannot be supported in this case.
Development Control Plans
HURSTVILLE DEVELOPMENT CONTROL PLAN NO 1 (HDCP)
107. The proposal is subject to the provision of Hurstville Development Control Plan No.1 Chapter 3 and Chapter 4.1. These provisions are addressed in more detail below.
Table 6: HDCP Compliance Table
|
Development |
Requirements |
Proposed |
Complies |
||
|
3.1 Vehicle Access and Parking |
DS1.5 Refer to AS 2890.1 2004 and AS2890.2 Part 2 for the design and layout of parking facilities. DS1.6
Council does not encourage, but may consider stacked parking for parking spaces in a controlled parking situation which: a. allows no more than two cars in the stacked parking arrangement; b. is likely to maintain a very low turnover; or c. is able to function easily within the management of the site’s future operation
A designated car washing area (which may also be a designated visitor car space) is required for service stations and residential developments of four or more dwellings. |
Turning and manoeuvring into and out of car spaces and aisle widths are not in accordance with the Australian Standards.
The proposal includes 6 car parking spaces, which are in the form of 3 stacked spaces (residents) and five single spaces (three resident and two visitor spaces).
A car wash bay has not been provided. |
No - Council’s Traffic Engineer has raised concerns with manoeuvrability and parking spaces within the car park.
Yes
No – could be conditioned if the proposal was to be supported as a visitor space can double as a car wash bay. |
||
|
Numerical parking controls |
Residential Accommodation Dwelling (1-2 bedrooms): 1 space per dwelling Dwelling (3 bedrooms and over): 2 spaces per dwelling Visitor spaces: 1 space per 4 dwellings (or part thereof) |
3 x 2B = 3 spaces 3 x 3B = 6 spaces 2 visitors spaces
11 spaces required
11 spaces proposed |
Yes - although the at grade visitor spaces provided result in a reduction in landscaped area to accommodate the required spaces. |
||
|
3.3 Access and Mobility |
In developments containing five or more dwellings, a minimum of one adaptable dwelling, designed in accordance with relevant Australian Standards must be provided for every ten dwellings or part thereof.
Access for all persons through the principal entrance and access to any common laundry, kitchen, sanitary or other common facilities in accordance with relevant Australian Standards. |
Unit G-02 is nominated as an adaptable apartment.
In general, access through the building for people with a disability has been catered for and lift access has been provided to all levels including the roof communal open space. |
Yes - pre and post development plans not provided and were not pursued given the application was being recommended for refusal.
Yes
|
||
|
3.4 Crime Prevention through Environmental Design |
Ensures that the way in which the site, and the buildings within the site, are laid out enhance security and feelings of safety.
Ensures that private and public spaces are clearly delineated
Ensures that the design of the development allows for natural surveillance to and from the street and between individual dwellings or commercial units within the site |
The design of the building generally complies with the objectives and controls. |
Yes |
||
|
3.5 Landscaping |
Site layout and design, including buildings, structures and hardstand, ensures the long term retention and health of existing significant trees and vegetation.
Where significant trees or vegetation are required to be removed to allow for site development, they are to be replaced with the same or similar species achieving the same coverage at maturity. |
8.43% of the site is deep soil area and is located in small, irregular pockets along the site boundaries resulting in an inability to appropriately landscape the site.
The proposal results in the reduction of landscaped area to provide at grade parking at the rear which restricts the potential for a suitable an appropriate landscape setting around the building. |
No |
||
|
3.6 Public Domain |
Development contributes to the creation of attractive, comfortable and safe streets that comprise consistent and high quality paving, street furniture and street tree plantings. |
The front setback is predominantly hard surface area with the small pocket of deep soil area unable to support significant landscaping to soften the built form of the building. |
No – forms part of reasons for refusal. |
||
|
3.7 Stormwater |
A development application is supported by a concept stormwater management plan showing how surface and roof waters are to be discharged by gravity to the street or easement and the size of all pipes. |
Council’s Engineers have reviewed the proposed drainage and stormwater arrangement and have raised no objection subject to the imposition of conditions.
|
Yes |
||
|
4.1 Residential Flat Buildings |
|||||
|
PC2 Site frontage |
Min Street frontage 24m |
Street frontage 15.85m |
No |
||
|
PC3 Isolated sites |
Where a site is isolated, Council will consider on merit an application for a RFB which does not meet the minimum street frontage requirement contained this DCP. |
The Applicant has provided documentation relating to offers presented to the neighbours at 14 and 14A Peake Parade which have not been accepted, however no approach was made to the property owners of 18–20 Peake Parade, who have a RFB approved, on acquiring their development site for consolidation with the subject site. |
No – Council Officers are not satisfied that the site is isolated. The assessment of the adjoining RFB DA2016/0366 (18-20 Peake Parade) states that the subject site is not in fact isolated as consolidation with 14A and 14B Peake Pde remains possible in order for the sites to achieve their highest and best use development potential. Regardless of this a merit assessment has determined that the proposed development is unsuitable for the subject site. |
||
|
Isolated sites |
Where an application for a residential flat building will result in the creation of an isolated site, the applicant must show that reasonable efforts have been made to amalgamate the site. Where this has not been achieved, it must be shown that the isolated site is capable of accommodating a suitable development in the future.
In order to satisfy this requirement the applicant must provide: a. evidence of offers made to acquire the site to be isolated (e.g. correspondence including responses to offers) based on at least two independent valuations. These valuations must be based on the site to be isolated forming part of the development site. b. a schematic design which demonstrates how the isolated site may be developed. |
The site is not an isolated site as 18-20 Peake Parade has an existing approval for a RFB and 14 and 14A Peake Parade currently contains a dual occupancy development. |
No
|
||
|
Comments on Residential Flat Buildings The site width of the subject allotment is substantially below the 24m width required under the Development Control Plan applying to the site.
The site does not meet the minimum site frontage nominated in the Development Control Plan, the lack of width leads to issues with the character of the locality (given the inadequate space provided between buildings), amenity, privacy, a compromised carpark arrangement and a lack of communal open space, as such a variation to the frontage required could be supported.
The non-compliance with site frontage therefore forms part of the reasons of refusal.
In addition, the Interim Georges River Development Control Plan came into effect in July 2019. The Interim Policy is a public policy that is to be used as a guide to set a consistent approach for the assessment of residential development within the LGA. It is a supplementary document, meaning that current Development Control Plan controls will prevail if they are considered best practice. The Interim Development Control Plan still requires a 24m site frontage for residential flat buildings and notes that the control will not be varied unless the development site is an isolated site. |
|||||
|
PC4 Building Height |
In accordance with HLEP 2012 and 3 storeys.
|
A variation is requested to the 12m height control and is not supported (see Clause 4.6 assessment in this report) The development is over 5 levels. |
No |
||
|
PC5 Excavation
|
The maximum excavation for any building’s finished ground floor level facing a public street is 0.5m below natural ground level. |
Excavation exceeds the minimum controls but this is an anticipated design response given the site and the precedent that has been established for new medium density development in the street given the slope of the allotments. |
Acceptable on merit |
||
|
PC6 Setbacks
|
The minimum setback to a primary or secondary street is 6m |
6m to building façade. 5.2m to balcony edge.
|
Yes Yes |
||
|
PC8 Landscaping |
Minimum amount of landscaped area of open space is 20% of the site area
Min dimension of landscaped open space is 2m |
8.43% of the site is deep soil area and is located in small, irregular pockets along the site boundaries resulting in an inability to appropriately landscape the site.
Complies
|
No - forms part of reasons for refusal
Yes |
||
|
Comments on Landscaping The lack of building separation and the proposed construction of the building and driveways within close proximity to the boundary, results in the inability to provide a landscape interface between the building and the property boundary. |
|||||
|
PC9 Solar access |
Development allows for at least 3 hours of sunlight on the windows of main living areas and adjoining principal private open space of adjacent dwellings between 9.00am and 3.00pm on 21 June. |
Complies
|
Yes
|
||
|
PC10 Noise |
Windows of adjacent dwellings are separated by a distance of at least 3m |
Complies |
Yes |
||
|
PC11 Streetscape
|
Development creates a high quality interface between the public and private domain
|
The building is generally well articulated however is an overdevelopment of the site as it is unable to achieve the required setbacks due to the lot width.
The narrow width of the site imposes a relatively tall and narrow building that will be out of character with regard to the prevailing streetscape.
The dominance of stairs, ramps and driveway along with other servicing such as hydrant boosters on the site do not provide an acceptable interface between the building and the public domain. |
No – forms reasons for refusal. |
||
|
PC13 Fencing
|
Provides appropriate levels of privacy, security and noise attenuation |
Front fencing between 1m and 1.8m is proposed. |
Yes
|
||
|
PC14 Site Facilities |
Development provides space for the storage of recyclable goods, either in the curtilage of each dwelling or in a central storage area in larger developments. |
Storage is provided within the units and in the carpark. |
No - changes to the car park has resulted in a reduction in storage and is now not compliant with the ADG provisions. |
||
Interim Policy – Georges River Development Control Plan 2020
108. Council at its Environment and Planning Committee Meeting dated Council at its Environment and Planning Committee Meeting dated 24 June 2019 resolved to adopt the Georges River Interim Policy Development Control Plan which became effective on 22 July 2019.
109. The Interim Policy is a public policy that is to be used as a guide to set a consistent approach for the assessment of residential development within the LGA. It is a supplementary document, meaning that current Development Control Plan controls will prevail if they are considered best practice. The Interim Policy has no statutory recognition in the assessment of DAs pursuant to the Environmental Planning and Assessment Act, 1979 (EP&A Act).
110. An assessment of the proposal has been carried out against the provisions of the Interim Policy as set out in the following table.
Table 7: Interim Policy Compliance Table
|
Interim Policy – Georges River Development Control Plan 2020 |
||
|
Standard |
Proposed |
Complies |
|
Site Frontage |
||
|
24m
|
Peake Parade – 15.85m |
No – see Hurstville Development Control Plan compliance table above for discussion. |
|
Building Height |
||
|
The relevant LEP controls relating to building height will prevail over Development Control Plan controls that relate to height in storeys |
The proposal has been assessed against the Hurstville Local Environmental Plan 2012 height standard. The proposal does not currently comply. |
No – See Hurstville Local Environmental Plan 2012 Compliance Table above for further details and in the Clause 4.6 assessment. |
|
Private Open Space |
||
|
The ADG requirements prevail over the Development Control Plan controls for private open space |
The proposal is fully compliant with the ADG’s private open space requirements. Refer to “4E – Private Open Space and Balconies” within the ADG Compliance Table above. |
Yes |
|
Communal Open Space |
||
|
The ADG requirements prevail over the Development Control Plan controls for COS under the Interim Policy |
No – the proposal is substantially short of providing the required COS. |
No – forms part of the reasons for refusal.
|
|
Parking |
||
|
In accordance with 'A Plan for Growing Sydney' (Department of Planning and Environment): · If located in a strategic centre (i.e. Kogarah CBD and Hurstville CBD) and within 800m of a Railway, the “Metropolitan Regional Centre (CBD)” rates apply. · If located within 800m of a railway and outside the strategic centres the “Metropolitan Subregional Centre” rates apply. · If located outside of 800m of a Railway, the relevant Development Control Plan applies. |
The site is located more than 800m away from a railway station and is not within a strategic centre. The proposal has been assessed against the Development Control Plan controls and is fully compliant. Refer to the Hurstville Development Control Plan No. 1 compliance table above. |
N/A |
|
Solar Access |
||
|
The ADG requirements prevail over the Development Control Plan controls for solar access under the Development Control Plan
|
The proposal is deemed to be non-compliant with the solar access provisions of the ADG. Refer to “4A – Solar and Daylight Access” within the ADG Compliance Table above. |
No – see ADG compliance table for discussion. |
DEVELOPER Contributions
111. The proposed development if approved would require the payment of developer contributions under Section 7.11 of the Environmental Planning and Assessment Act 1979 as the proposal is increasing the density of the locality by the construction of six new apartments. If the development was to be approved a condition outlining the required contributions will be imposed.
Impacts
Natural Environment
112. The proposed tree removal has been assessed by Council’s Consultant Arborist as being acceptable subject to appropriate conditions of consent requiring replacement tree planting both within the site and in the public domain adjacent to the site. However, the absence of ADG compliant deep soil zones with minimum 6m dimensions and insufficient building setbacks precludes the planting of significant canopy trees within the site itself to ameliorate the scale of the building and reduce its visual impact.
Accordingly the application is recommended for refusal.
Built Environment
113. The proposal exceeds the building height development standard of Hurstville Local Environmental Plan 2012. A Clause 4.6 Objection has been submitted in support of the non-compliance.
114. The exceedance of this standard is unreasonable and unacceptable in the site’s context and the neighbourhood’s character. The proposal is inconsistent with State Environmental Planning Policy 65 Design Quality Principles (as detailed above) and does not reflect the desired future planning and design outcome for the site. The bulk of the building, its inadequate setbacks, deep soil areas and communal open space area result in an unacceptable outcome for the site and will set an undesirable precedent.
It is further noted that the narrow, tall form of the building provides proportions that are not anticipated by the Development Control Plan that applies to the locality, and accordingly the proposal is inconsistent with the existing and future desired character of the precinct and is thus recommended for refusal.
Social Impact
115. No adverse social impacts have been identified as part of the assessment. The provision of additional dwellings would in principle provide for additional housing in close proximity to a local centre for a cross-section of the community. However, the built form is not an appropriate outcome for the site.
Economic Impact
116. The proposed development has no apparent adverse economic impact. There may be a small positive economic impact as a result of the construction of the development.
Suitability of the site
117. The site is zoned R3 Medium Density Residential. The proposal is a permissible land use within the zone, subject to development consent.
118. The subject site in isolation is not suitable for the construction of an RFB within a medium density environment as the site does not meet the minimum site width control and therefore cannot achieve suitable setbacks to neighbouring properties.
119. This RFB has not been sensitively designed to respond to the constraints of the site, in particular the land’s dimensions, area and context, as evidenced by its various non-compliances with relevant building envelope controls as detailed previously within this report.
Submissions and the Public Interest
120. The application was neighbour notified in accordance with Hurstville Development Control Plan between 29 January and 12 February 2020. One (1) submission was received as a result.
121. The issues raised in the submission are summarised as follows, with a response provided to each.
Over Development in the area
122. Concern was raised with regard to the number of residential flat buildings in Peake Parade and the wider locality in general.
Officer Comment: The site is located within a Zone R3 Medium Density Residential area that has received an uplift with respect to Floor Space Ratio and building heights under the Hurstville LEP 2012. As such, the area is likely to undergo a transition over time in the form of additional residential flat buildings. However, this particular proposal represents a poor outcome for the site as the site does not meet the minimum 24m site width control and as such cannot achieve compliance with a number of other controls including setbacks deep soil. The proposal is recommended for refusal
Parking Impacts
123. Concern is raised that the proposal will result in reduced street parking.
Officer Comment: The proposal makes provision for an acceptable amount of on-site car parking for residents and visitors consistent with the off street parking requirements of the Hurstville Development Control Plan. This does not constitute a reason for refusal in this instance.
Privacy Impacts
124. Concern has been raised that the proposed development will have adverse privacy impacts on neighbouring properties.
Officer Comment: The proposal fails to meet the required setbacks to the side boundaries and Council considers the privacy of neighbouring properties will be adversely affected as result. The application is recommended for refusal.
Referrals
Council Referrals
Development Engineer
125. Council’s Development Engineer reviewed the amended proposal. The stormwater plans have not changed from the DA and as such no objection is raised with respect to the proposed stormwater drainage design, subject to conditions of consent being imposed. Deferred commencement conditions were recommended, if the application was to be approved in relation to the applicant obtaining an easement to drain water into the open drain in the council reserve at the rear of the subject site.
Traffic Engineer
126. The DA was referred to Council’s Traffic Engineer. Council’s Traffic Engineer has raised concerns with manoeuvrability within the carpark and to car spaces in the carpark.
Consultant Arborist
127. Council’s Consultant Arborist reviewed existing tree conditions and raised no objection to the removal of the existing trees subject to conditions of consent if approval is granted. Those conditions require replacement tree planting on site and within the street to offset the loss of existing trees.
Waste Officer
128. The original DA was referred to Council’s Waste Officer for review. The Waste Officer advised that the proposal would require 4 x 240L waste bins (2 x waste and 2 x recycling), all collected twice a week. A bin store area is located adjacent to the walkway from the street and the common building entry foyer. A garbage store room is also indicated in the carpark area. Council’s waste officer requires a dedicated bin store room to meet certain design and operational criteria. Conditions of consent could be included should the application be approved to delete the ground level bin store room and include the design requirements for the carpark bin store room. Given that the proposal has only had minor changes the previous comments are still relevant.
Building Surveyor
129. Council’s Building Surveyor raised no objection subject to conditions of consent if approval is granted.
External Referrals
Ausgrid
130. The application was referred to Ausgrid in accordance with Clause 45 of State Environmental Planning Policy (Infrastructure) 2007. Comments were received from Ausgrid on 5 February 2020 and they have raised no objection to the proposed development.
CONCLUSION
131. The proposal has been assessed having regard to the Matters for Consideration under Section 8.2 and Section 4.15 of the Environmental Planning and Assessment Act. The proposal is found to be an unreasonable overdevelopment of the site, with excessive visual bulk and unmitigated scale, inadequately proportioned deep soil zones, lack of storage for units, inadequate landscaped areas and communal open space areas and encroachment on required setbacks (from adjoining properties). As such, it represents an unacceptable planning and design outcome for this site and would adversely affect both the character of development in the street, which is intended to be buildings set in a landscaped setting, the immediate locality and the residential amenity of the area. The building façade is dominated by the driveway, stairs and ramps which does not provide an appropriate scale and proportion to the streetscape.
132. The proposal is inconsistent with various design quality principles of State Environmental Planning Policy 65 including context and neighbourhood character, built form and scale, landscape, amenity and aesthetics.
133. The proposal has been assessed against the provisions of both Hurstville Local Environmental Plan 2012 and Hurstville Development Control Plan No. 1. The proposal exceeds the building height development standard of Hurstville Local Environmental Plan 2012. The Clause 4.6 Objection submitted in support of this variation is not supported.
134. The proposal also fails to comply with various built form controls of Hurstville Development Control Plan No. 1 including the site frontage and landscaped area controls.
135. For the above reasons, the proposal is recommended for refusal.
DETERMINATION AND STATEMENT OF REASONS
Statement of Reasons
136. The reasons for this recommendation are:
· The proposal fails to satisfy the provisions of the maximum building height permitted on the site pursuant to Clause 4.3 (Height of Buildings) of HLEP2012. The new Clause 4.6 statement is not considered to be well founded and as such is not supported.
· The proposal does not achieve the minimum side and rear setbacks required by the Apartment Design Guide and would create unacceptable amenity impacts upon the adjoining properties.
· The proposal fails to achieve the minimum communal open space and storage requirements of the ADG. In addition the proposal fails to provide adequately sized areas along the common boundaries to provide significant landscape features to soften the building and contribute positively to the buildings setting.
· The site has a frontage of 15.85m, which fails to comply with the minimum 24m required by the Development Control Plan resulting in an unacceptable design outcome for the site. The justification for the proposed residential flat building on an under-width lot relies on the site being an isolated lot; this justification is not accepted by Council Assessment Staff.
· The development is also found to be deficient with a number of residential amenity requirements of the Apartment Design Guide and is deemed to fail to meet the Apartment Design Guide’s solar access and cross ventilation criteria on the basis that insufficient information has been received to confirm compliance.
· The proposal represents an overdevelopment of the site and would establish an undesirable precedent in the area. Its approval is not in the public interest.
Determination
137. THAT pursuant to Section 4.16(1) of the Environmental Planning and Assessment Act 1979 (as amended), the Georges River Local Planning Panel refuse development consent to Review Application REV2020/0003 (DA2017/0627) for demolition of existing structures, tree removal and construction of three (3) levels of residential flat building with one (1) level of parking at Lot 292 in DP36537 known as 16 Peake Parade, Peakhurst, for the following reasons:
1. Refusal Reason – Environmental Planning Instrument - Pursuant to Section 4.15(1)(a)(i) of the Environmental Planning and Assessment Act 1979, the proposed development does not comply with the relevant environmental planning instruments in terms of the following:
a) The proposal fails to satisfy Part 3 and 4 of State Environmental Planning Policy No 65 – Design Quality of Residential Apartment Development as it is inconsistent with various design quality principles of State Environmental Planning Policy No 65 with respect to its response to the site’s context and neighbourhood character and its built form and scale, density, landscape and aesthetics, and fails to comply with the corresponding design criteria of the Apartment Design Guide. The proposal does not achieve an acceptable built form with insufficient setbacks and separation to minimise the visual dominance of the building when viewed from both the public domain and adjoining properties.
b) The proposal fails to satisfy Part 3 and 4 of State Environmental Planning Policy No 65 – Design Quality of Residential Apartment Development on the basis that it fails to either achieve or adequately demonstrate compliance with the design criteria of the Apartment Design Guide with respect to internal solar access, cross ventilation and the minimum area of communal open space.
2. Refusal Reason – Environmental Planning Instrument - Pursuant to Section 4.15(1)(a)(i) of the Environmental Planning and Assessment Act 1979, in that the development fails to meet the objectives of the R3 Medium Residential zone in that the proposed development does not ensure that a high level of residential amenity is achieved and maintained. The lack of separation along both side boundaries will create adverse amenity impacts to adjoining properties and the lack of compliant separation distances in this case will not satisfy the ADG which aim to achieve an “equitable” distribution of separation between properties.
3. Refusal Reason - Development Control Plan - Pursuant to Section 4.15(1)(a)(iii) of the Environmental Planning and Assessment Act 1979, the proposed development does not comply with Hurstville Development Control Plan No. 1, Chapter 4.1 Residential Flat Buildings, Section DS2.1 Site Frontage or Section DS3.1 Isolated Sites. The site has a frontage of 15.85m, which fails to comply with the minimum 24m required by the Development Control Plan. The site is not deemed to be an isolated site and no evidence has been provided from the applicant to indicate attempts have been made to purchase all adjoining sites for amalgamation with the subject site. Together these non-compliances result in the site being unsuitable for the proposed development and has unreasonable adverse impacts on neighbouring properties.
4. Refusal Reason – Impacts on the Environment - Pursuant to Section 4.15(1)(b) of the Environmental Planning and Assessment Act 1979, the proposed development is likely to have an adverse impact on the following aspects of the environment:
a) Natural environment – The proposal does not meet the deep soil zones design criteria of the Apartment Design Guide nor provide sufficient front or side setbacks which precludes the planting of canopy trees around the perimeter of the site to provide a landscaped setting for the proposal and ameliorate the scale of the building. Furthermore, no landscaped boundary setback is provided on the north eastern side of the vehicle driveway.
b) Built environment – The proposal does not respond to the context of the site nor the neighbourhood’s character on the basis that it exceeds the maximum building height that applies to the site, encroaches on the minimum required side and rear setbacks expected on the site, and fails to demonstrate a suitable level of internal amenity for the proposed apartments.
c) The car park layout is unsatisfactory and does not provide for appropriate manoeuvrability for vehicles.
5. Refusal Reason – Suitability of Site - Pursuant to Section 4.15(1)(c) of the Environmental Planning and Assessment Act 1979, the site is not considered suitable for the proposed development for the following reasons:
a) The site cannot adequately accommodate the proposed built form without significant adverse impacts on the amenity of adjacent and nearby properties with respect to built form, visual dominance, bulk and scale.
6. Refusal Reason – Public interest - Pursuant to Section 4.15(1)(e) of the Environmental Planning and Assessment Act 1979, the proposed development is not considered to be in the public interest and is likely to set an undesirable precedent within the locality.
Appeal Rights - Part 8 (Reviews and appeals) of the Environmental Planning and Assessment Act 1979 confers on an applicant who is dissatisfied with the determination of the application a right of appeal to the Land and Environment Court of New South Wales.
|
Attachment ⇩1 |
Rooftop Plan and Streetscape Elevation - 16 Peake Pde Peakhurst |
|
Georges River Council - Georges River Local Planning Panel (LPP) - Thursday, 5 March 2020 LPP010-20 16 Peake Parade Peakhurst [Appendix 1] Rooftop Plan and Streetscape Elevation - 16 Peake Pde Peakhurst |
Page 296 |
|
Georges River Council – Local Planning Panel Thursday, 5 March 2020 |
Page 375 |
REPORT TO GEORGES RIVER COUNCIL
LPP MEETING OF Thursday, 05 March 2020
|
LPP Report No |
LPP011-20 |
Development Application No |
DA2019/0329 |
|
Site Address & Ward Locality |
19-23 Empress Street Hurstville Hurstville Ward |
||
|
Proposed Development |
Construction of a four storey residential flat building containing 28 residential apartments and basement car parking |
||
|
Owners |
JB Empress Pty Ltd |
||
|
Applicant |
AB Works (now known as Loucas Architects Pty Ltd) |
||
|
Planner/Architect |
Architect: AB Works (now known as Loucas Architects Pty Ltd); Planner: Andrew Robinson Planning Services |
||
|
Date Of Lodgement |
31/07/2019 |
||
|
Submissions |
Nil |
||
|
Cost of Works |
$7,933,967.00 |
||
|
Local Planning Panel Criteria |
The application relates to development to which the State Environmental Planning Policy No. 65 – Design Quality of Residential Apartment Development applies and the variation to the LEP height standard exceeds 10%. |
||
|
List of all relevant s.4.15 matters (formerly s79C(1)(a)) |
State Environmental Planning Policy No 65 – Design Quality of Residential Apartment Development, State Environmental Planning Policy (Affordable Rental Housing) 2009, State Environmental Planning Policy (Vegetation in Non-Rural Areas) 2017, State Environmental Planning Policy (Building Sustainability Index: BASIX) 2004, Greater Metropolitan Regional Environmental Plan No 2 – Georges River Catchment, State Environmental Planning Policy No 55 - Remediation of Land, State Environmental Planning Policy (Infrastructure) 2007, Greater Metropolitan Regional Environmental Plan No 2 – Georges River Catchment, Kogarah Local Environmental Plan 2012, Kogarah Development Control Plan 2012 |
||
|
List all documents submitted with this report for the Panel’s consideration |
Site Plan Elevations
|
||
|
Report prepared by |
Senior Development Assessment Planner |
||
|
|
Summary of matters for consideration under Section 4.15 Have all recommendations in relation to relevant s4.15 matters been summarised in the Executive Summary of the assessment report? |
Yes |
|
Legislative clauses requiring consent authority satisfaction Have relevant clauses in all applicable environmental planning instruments where the consent authority must be satisfied about a particular matter been listed and relevant recommendations summarised, in the Executive Summary of the assessment report? |
Yes |
|
Clause 4.6 Exceptions to development standards If a written request for a contravention to a development standard (clause 4.6 of the LEP) has been received, has it been attached to the assessment report? |
Yes - Clause 4.3 Height of buildings |
|
Special Infrastructure Contributions Does the DA require Special Infrastructure Contributions conditions (under s7.24)? |
Not Applicable |
|
Conditions Have draft conditions been provided to the applicant for comment? |
No, standard conditions have been attached with no design changes, the conditions can be reviewed when the report is published. |
|
Site Plan
The site is outlined in red |
Executive Summary
Proposal
1. The development application proposes lot consolidation and construction of a four (4) storey residential flat building over two (2) levels of basement parking. The total number of residential units proposed is 28, including five (5) affordable rental housing units (2 x 1 bedroom units, 25 x 2 bedroom units and 1 x 3 bedroom unit). Communal open space and associated structures is provided on the rooftop.

Figure 1: Photomontages of the proposal
Site and Locality
2. The site is identified as 19-23 Empress Street, Hurstville and it consists of three (3) individual lots having a legal description of Lots 36-38 Sec 6 in DP 1808. The site is a regularly shaped parcel of land and is located on the south western side of Empress Street with a secondary frontage to Finney Street. Cole Lane adjoins the site to the rear.
3. The site has an area of 1425.85sqm and street frontages to both Empress Street and Cole Lane of 30.18m and Finney Street of 47.245m.
4. The locality contains a mixture of single storey dwellings which are yet to be redeveloped, multi-dwelling housing and multi storey residential flat buildings of varying scales.
Zoning and Permissibility
5. The site is zoned ‘R3 Medium Density Residential under the Kogarah Local Environmental Plan 2012 (KLEP). The development is defined as a residential flat building under KLEP which is permissible with consent in this zone.
Submissions
6. The development application was publicly exhibited in accordance with the provisions of the Kogarah Development Control Plan 2013. No submissions were received.
Level of Determination
7. This development application is referred to the Local Planning Panel for consideration and determination as it comprises development to which State Environmental Planning Policy No 65 – Design Quality of Residential Apartment Development applies as required by the Ministerial Direction of 23 February 2018.
Conclusion
8. The proposed development has been assessed having regard to the matters for consideration under Section 4.15(1) of the Environmental Planning and Assessment Act 1979. The proposal is acceptable and it is recommended for approval subject to conditions.
Report in Full
Background
9. The Georges River Local Planning Panel granted consent for ‘Demolition of existing structures and construction of a four-storey residential flat building containing twenty six (26) residential units and basement car parking’ on 7 May 2018 (DA2017/0465).
10. This application generally retains the approved built form of DA2017/0465, and proposes an additional two units, providing five affordable rental housing units under the provisions of SEPP (Affordable Rental Housing) 2009, and relocates the communal open space to the rooftop.
11. The site is now vacant with the demolition of the structures previously on site undertaken in accordance with the approval of DA2017/0465.
Description of Proposal
12. The development application proposes lot consolidation and construction of a four (4) storey residential flat building over two (2) levels of basement parking. The total number of residential units proposed is 28, including five (5) affordable rental housing units (2 x 1 bedroom units, 25 x 2 bedroom units and 1 x 3 bedroom unit). Communal open space and associated structures is provided on the rooftop.
13. Specifically, the proposal includes the following:
Basement Levels
· Lower Basement - 20 parking spaces, residential storage, two (2) motorcycle parking spaces, lift and egress stairs.
· Upper Basement - 14 parking spaces, residential storage, garbage room, service rooms, bicycle parking, cleaners room and accessible WC, lift, egress stairs and plant.
Ground Floor
The ground floor contains six units (1 x 1 bedroom, 4 x 2 bedroom and 1 x 3 bedroom units). Entry to the basement parking is proposed from Cole Lane, pedestrian access to the building is provided from Empress Street. Each unit is afforded a private open space area including a terrace and landscaped courtyard. An area of communal open space is also provided on the south eastern side of the building at ground level.
A secondary pedestrian pathway is proposed from Cole Lane through the communal open space to a second lobby on the south eastern side of the ground floor. A platform lift is provided for accessible entry to the building. The hydrant booster is located adjacent to the entrance on Empress Street (however a condition of consent is recommended for it to be relocated to Finney Street).
Levels 1, 2 and 3
These levels contain seven units each (7 x 2 bedroom units).
Rooftop Terrace
The rooftop level contains the primary area of communal open space, and includes a semi-enclosed kitchen, seating area, accessible WC and perimeter planting within planter boxes.
Description of the Site and Locality
14. The site is identified as 19-23 Empress Street, Hurstville and it consists of three (3) individual lots having a legal description of Lots 36-38 Sec 6 in DP 1808. The site is a regularly shaped parcel of land and is located on the south western side of Empress Street with a secondary frontage to Finney Street. Cole Lane adjoins the site to the rear.
15. The site has an area of 1425.85sqm and street frontages to both Empress Street and Cole Lane of 30.18m and Finney Street of 47.24m.
16. The locality contains a mixture of single storey dwellings which are yet to be redeveloped, multi-dwelling housing and multi storey residential flat buildings of varying scales.
17. Adjoining the site to the south east at 25-27 Empress Street, Hurstville is a two (2) storey townhouse development containing five (5) dwellings. The north western elevation of this development can be seen in the site photo below being Figure 2.

Figure 2: The site as viewed from Empress Street
PLANNING ASSESSMENT
18. The subject site has been inspected and the development has been assessed under the relevant Section 4.15, Matters for Consideration of the Environmental Planning and Assessment Act 1979.
Environmental Planning Instruments
State Environmental Planning Policies
19. Compliance with relevant State Environmental Planning Policies is summarised in the table as follows and discussed in more detail thereafter.
|
State Environmental Planning Policy |
Complies |
|
State Environmental Planning Policy No 55 - Remediation of Land |
Yes |
|
State Environmental Planning Policy (Building Sustainability Index: BASIX) 2004 |
Yes |
|
State Environmental Planning Policy (Vegetation in Non-Rural Areas) 2017 |
N/A
|
|
State Environmental Planning Policy No. 65 - Design Quality of Residential Apartment Development |
Yes |
|
State Environmental Planning Policy – Infrastructure |
Yes |
|
State Environmental Planning Policy (Affordable Rental Housing) 2009 |
Yes |
State Environmental Planning Policy No 55 - Remediation of Land
20. SEPP 55 aims to promote the remediation of contaminated land in order to reduce the risk of harm to human health or any other aspect of the environment.
21. Clause 7 requires contamination and remediation to be considered in determining a development application. The consent authority must not consent to the carrying out of development on land unless it has considered whether or not the land is contaminated.
22. A Preliminary Investigation Report was submitted with the application, which concludes:
‘STS consider that the site may be suitable for the proposed development provided it is developed as per proposed plans. Due to the presence of historical fills from unknown sources and that deep soil areas are being proposed, it would be necessary to implement an Unexpected Finds Protocol (UFP). As such, a UFP should be prepared for implementation at the commencement of any further ground disturbance activity.’
23. Based on the information provided, a contingency condition has been included in the recommended conditions detailing what is required to take place should unexpected contamination be found during demolition, excavation and construction.
State Environmental Planning Policy (Building Sustainability Index: BASIX) 2004
24. The State Environmental Planning Policy (Building Sustainability Index: BASIX) 2004 aims to ensure consistency in the implementation of a scheme to encourage sustainable residential development throughout New South Wales (also referred to as the ‘BASIX scheme’).
25. A BASIX certificate accompanies the DA verifying that the relevant water, energy and thermal comfort targets have been met by the proposal. Conditions of consent have been included in the recommendation to ensure the commitments required under the BASIX certificate will be satisfied by the proposed development.
State Environmental Planning Policy (Infrastructure) 2007
26. The aim of the Infrastructure SEPP is to facilitate the effective delivery of infrastructure across the State.
27. The DA was referred to Ausgrid on 8 August 2019 in accordance with Clause 45 of State Environmental Planning Policy (Infrastructure) 2007. At the time of writing this report, no response had been received. The DA may be determined in the event that no response has been received from Ausgrid within twenty one (21) days, ie 29 August 2019.
State Environmental Planning Policy (Vegetation in Non-Rural Areas) 2017
28. The State Environmental Planning Policy (Vegetation in Non-Rural Areas) 2017 (‘Vegetation SEPP’) regulates clearing of native vegetation on urban land and land zoned for environmental conservation/management that does not require development consent.
29. The Vegetation SEPP applies to clearing of:
a) Native vegetation above the Biodiversity Offset Scheme (BOS) threshold where a proponent will require an approval from the Native Vegetation Panel established under the Local Land Services Amendment Act 2016; and
b) Vegetation below the BOS threshold where a proponent will require a permit from Council if that vegetation is identified in the Council’s Development Control Plan (DCP).
30. The Vegetation SEPP repeals clauses 5.9 and 5.9AA of the Standard Instrument - Principal Local Environmental Plan, with the regulation of the clearing of vegetation (including native vegetation) below the BOS threshold being through any applicable DCP.
31. No issues arise in terms of the provisions of the Vegetation SEPP, as there is no significant vegetation on the site or within the footpath area or immediately fronting the site. Further, there is no significant vegetation on immediately adjoining properties in close proximity to the site.
State Environmental Planning Policy (Affordable Rental Housing) 2009 (ARHSEPP)
32. The proposal incorporates an affordable housing component and dedicates five (5) units as affordable rental units. Therefore this Policy applies to the development.
33. The aims of this Policy are:
· to provide a consistent planning regime for the provision of affordable rental housing,
· to facilitate the effective delivery of new affordable rental housing by providing incentives by way of expanded zoning permissibility, floor space ratio bonuses and non-discretionary development standards,
· to facilitate the retention and mitigate the loss of existing affordable rental housing,
· to employ a balanced approach between obligations for retaining and mitigating the loss of existing affordable rental housing, and incentives for the development of new affordable rental housing
Accessibility
34. Clause 4 of the SEPP requires the site to be “accessible”, meaning the proposal needs to satisfy the following provisions being:
(a) 800 metres walking distance of a public entrance to a railway station or a wharf from which a Sydney Ferries ferry service operates, or
(b) 400 metres walking distance of a public entrance to a light rail station or, in the case of a light rail station with no entrance, 400 metres walking distance of a platform of the light rail station, or
(c) 400 metres walking distance of a bus stop used by a regular bus service (within the meaning of the Passenger Transport Act 1990) that has at least one bus per hour servicing the bus stop between 06.00 and 21.00 each day from Monday to Friday (both days inclusive) and between 08.00 and 18.00 on each Saturday and Sunday.
35. The proposal satisfies subsection (a) as the site is located 500m walking distance from Hurstville railway station. The site is considered to be “accessible” in accordance with the SEPP provisions.
36. The provisions of Part 2 Division 1 (In-fill affordable housing) are relevant to this development. The provisions of Clause 13 (floor space ratio) and Clause 14 (standards that cannot be used to refuse consent) are considered in the table below.
|
Control |
Numerical Requirement |
Proposed Development |
Complies |
|
Floor Space |
KLEP 2012, Clause 4.4 stipulates an FSR of 1.5:1. 20% (468sqm) of the total gross floor area (GFA) is provided as affordable housing and in accordance with Clause 13(2) of the ARH SEPP this permits a bonus FSR of 0.2:1. On this basis the maximum FSR that is permissible is 1.7:1. |
Affordable housing units GFA = 468sqm (20%)
Total GFA = 2,324sqm FSR = 1.63:1 |
Yes |
|
Site Area |
450sqm |
1,425.85sqm |
Yes |
|
Landscaped Area |
30% of the site area |
31% of the site. |
Yes |
|
Deep Soil Zones |
15% of the site area |
26% of the site area. |
Yes |
|
Solar Access |
70% of dwellings receive 3 hours of solar access between 9am and 3pm |
71% (20 of 28 units) receive 3 hours or more of sunlight in midwinter between 9am and 3pm. |
Yes |
|
Parking |
(ii) in any other case—at least 0.5 parking spaces are provided for each dwelling containing 1 bedroom, at least 1 parking space is provided for each dwelling containing 2 bedrooms and at least 1.5 parking spaces are provided for each dwelling containing 3 or more bedrooms: 2 x 1B units = 1 space 25 x 2B units = 25 spaces 1 x 3B unit = 1.5 spaces Total required = 27.5 |
30 resident spaces and 4 visitor spaces are proposed.
A condition of consent has been recommended to provide 28 resident spaces and 6 visitor spaces in accordance with the Kogarah DCP parking controls (this is the assessment criteria for the application not the RMS criterion). |
Yes |
|
Dwelling Size |
1 bedroom apartments = 50sqm 2 bedroom apartments = 70sqm 3 bedroom apartments = 95sqm |
52sqm
75sqm
95sqm |
Yes |
37. In accordance with Clause 14 of the ARHSEPP, the development cannot be refused if the development site does not comply with the minimum requirements relating to site area, landscaped area, deep soil zones, solar access, parking and dwelling size in accordance with the ARHSEPP. In this case the development satisfies these provisions. The solar access diagrams submitted by the Applicant indicate that 71% of units will receive a minimum of 3 hours of solar access between 9am to 3pm in midwinter which satisfies the minimum requirement.
Character assessment
38. Clause 16 of the ARHSEPP requires consideration against the provisions of SEPP 65 which apply to this development. A detailed assessment of the development against the provisions of SEPP 65 is provided below.
39. Under clause 16A of the State Environmental Planning Policy (Affordable Rental Housing) 2009, a consent authority must not consent to a development if the design is incompatible with the character of the local area. No guidelines were developed to inform how to apply the compatibility test. A number of court cases have provided some guidance as to how to assess the “character” of a local area and what to consider ensuring an affordable housing development is suitable.
40. In considering compatibility with neighbouring character, in Sterling Projects v The Hills Shire Council [2011] the Commissioner said that “character is not limited to a consideration of streetscape but includes the wider context of the site, in particular the characteristics of the properties which adjoin the site”.
41. In the recent decision of Louden Pty Ltd v Canterbury-Bankstown Council [2018] clause 16A played a prominent role in Commissioner Gray’s judgement. Commissioner Gray stated that all buildings of all typologies must be incorporated into the assessment of the local area character. This assessment concurs with Commissioner Roseth SC who in Project Venture Developments v Pittwater Council [2005] stated that “compatibility is thus different from sameness. It is generally accepted that buildings can exist together in harmony without having the same density, scale or appearance, though as the difference in these attributes increases, harmony is harder to achieve.” Therefore in order to establish a local character in a mixed, diverse area the plans should reasonably match other structures in the vicinity and should consider such aspects as building forms, setbacks and scale.
42. The subject site is located within a precinct that is undergoing change and transition from a lower scale residential environment to a medium density landscape. This transition is evident in the immediate locality on Empress Street, Finney Street and West Street where land is zoned R3 and multi-storey Residential Flat Building (RFB) developments are under construction or have been finalised. The locality can be described as diverse in its character as it comprises of small scale residential developments in the form of detached dwelling houses, and a medium density residential development with a mix of multi-dwelling housing developments and 3-4 storey residential flat buildings. The proposed development is considered to be consistent with the character of the locality and the future character envisaged by the planning controls. The scale and form of the development is consistent with newly constructed RFB’s within the immediate context of the site. The development also satisfies the objectives of the R3 zone which include:
• To provide for the housing needs of the community within a medium density residential environment.
• To provide a variety of housing types within a medium density residential environment.
• To enable other land uses that provide facilities or services to meet the day to day needs of residents.
43. The proposal is well located and is within walking distance if the Hurstville City Centre. The proposed built form is considered to be a sympathetic and desirable response for this site in terms of its scale and design intent and will be in keeping with the anticipated development outcome for the area.
44. The site is afforded three street frontages, and the design of the building is such that its primary address is Empress Street. The front façade presents as four storeys which is in keeping with existing residential developments in the immediate locality. Vehicular access to the development is from Cole Lane. The setback to the Finney Street frontage contains deep soil planting and private open space at ground level, with private terraces at the upper level to provide casual surveillance to the street and a height that complements the existing development on Finney Street to the south-west.
45. The height and scale of the building and the orientation of private terraces primarily to the street frontages, is in keeping with more recent construction in Empress Street and Finney Street. As such the proposal satisfies the objectives and intent of Clause 16A.
State Environmental Planning Policy No 65 – Design Quality of Residential Apartment Development
46. The State Environmental Planning Policy No 65 – Design Quality of Residential Apartment Development (‘SEPP 65’) aims to improve the design quality of residential apartment development in New South Wales.
47. The proposed development meets the pre-requisites for the application of the SEPP 65 in that it constitutes development for the purpose of a residential flat building being more than three (3) storeys and having more than four (4) dwellings. Therefore, it must be assessed against the provisions of SEPP 65 and the Apartment Design Guide (ADG).
48. A Design Verification Statement dated February 2018 has been provided by Jim Apostolou Registered Architect (Registration No. 7490) in accordance with Clause 50 of the Environmental Planning and Assessment Regulation 2000.
Design Review Panel
49. Given the general retention of the approved built form under DA2017/0465, the subject application was not referred to the Design Review Panel for comment.
Apartment Design Guide
50. An assessment of the proposed development against the relevant design criteria of the Apartment Design Guide (ADG) is detailed in the compliance table as follows.
Note: where relevant, the figures/percentages in the ADG compliance table have been rounded up/down to the nearest whole number.
|
Section |
Design Criteria |
Proposed |
Comply |
|
3D - Communal and public open space |
Communal open space has a minimum area equal to 25% of the site (1425.85 x 0.25 = 356.25sqm) |
Landscaped communal open space is located on the ground floor (205sqm) and on the rooftop (200sqm) totalling 405sqm or 28.4% of the site area. The primary area of COS is the rooftop as it provides a BBQ, kitchen, seating and an accessible WC. |
Yes |
|
Developments achieve a minimum of 50% direct sunlight to the principal usable part of the communal open space for a minimum of 2 hours between 9am and 3pm on 21 June (mid-winter) |
2 hours of sunlight is achieved to at least 50% of the communal open space areas, with the roof top area receiving direct sunlight throughout the day. |
Yes |
|
|
3E – Deep soil zones |
Deep soil zones are required at a sliding scale in this clause.
For a site area of 1425.85sqm, the deep soil zone requirement is a deep soil zone of 7% with minimum 3m dimensions. |
376sqm (26%) of deep soil is provided on the site with dimensions of at least 3m. |
Yes |
|
3F – Visual privacy |
Minimum required separation distances from buildings to the side and rear boundaries are as follows: · For building height up to 12m / 4 storeys – Habitable rooms and balconies 6m; and non-habitable rooms 3m.
· For building height up to 25m / 5-8 storeys – Habitable rooms 9m; and non-habitable rooms 4.5m.
· For building height over 25m / 9+ storeys – Habitable rooms 12m; and non-habitable rooms 6m |
Setbacks to south east boundary:
All levels – minimum 6m to the south eastern boundary.
The other site boundaries are street frontages (to which this control does not apply) with setbacks between 3m and 5m.
Rooftop COS – 9m to the south eastern boundary. |
Yes |
|
3J – Bicycle and car parking |
For development in the following locations: · on sites that are within 800m of a railway station or light rail stop in the Sydney Metropolitan Area; or · on land zoned, and sites within 400 metres of land zoned, B3 Commercial Core, B4 Mixed Use or equivalent in a nominated regional centre
The minimum car parking requirement for residents and visitors is set out in the Guide to Traffic Generating Developments, or the car parking requirement prescribed by the relevant council, whichever is less The car parking needs for a development must be provided off street. |
30 resident spaces and 4 visitor spaces are proposed.
A condition of consent has been recommended to provide 28 resident spaces and 6 visitor spaces in accordance with the Kogarah DCP parking controls (this is the assessment criteria for the application not the RMS criterion). |
Yes
|
|
4A – Solar and daylight access |
Living rooms and private open spaces of at least 70% of apartments in a building receive a minimum of 2 hours direct sunlight between 9am and 3pm at mid-winter in the Sydney Metropolitan Area and in the Newcastle and Wollongong local government areas |
71% of units achieve minimum 2 hours sunlight in mid-winter. |
Yes |
|
A maximum of 15% of apartments in a building receive no direct sunlight between 9am and 3pm at mid-winter |
All units receive some level of direct sunlight. |
Yes |
|
|
4B – Natural ventilation |
At least 60% of apartments are naturally cross ventilated in the first nine storeys of the building. Apartments at ten storeys or greater are deemed to be cross ventilated only if any enclosure of the balconies at these levels allows adequate natural ventilation and cannot be fully enclosed. |
71% of units are cross ventilated.
|
Yes |
|
Overall depth of a cross-over or cross-through apartment does not exceed 18m, measured glass line to glass line. |
All of the proposed units are less than 18m in depth. |
Yes |
|
|
4C – Ceiling heights |
Measured from finished floor level to finished ceiling level, minimum ceiling heights are: · Habitable rooms 2.7m · Non-habitable rooms 2.4m · For 2 storey apartments: 2.7m for main living area floor 2.4m for second floor, where its area does not exceed 50% of the apartment area · Attic spaces: 1.8m at edge of room with a 30 degree minimum ceiling slope · If located in mixed use areas - 3.3m for ground and first floor to promote future flexibility of use
These minimums do not preclude higher ceilings if desired. |
All of the proposed units have ceiling heights of 2.8m.
|
Yes |
|
4D – Apartment size and layout |
Apartments are required to have the following minimum internal areas: Studio – 35sqm 1 bedroom – 50sqm 2 bedroom – 70sqm 3 bedroom – 90sqm
The minimum internal areas include only one bathroom. Additional bathrooms increase the minimum internal area by 5sqm each
A fourth bedroom and further additional bedrooms increase the minimum internal area by 12sqm each. |
All units meet the minimum internal size requirements.
Minimum 52sqm Minimum 75sqm Minimum 95sqm
Calculated accordingly.
N/A
|
Yes
Yes
N/A
|
|
Every habitable room must have a window in an external wall with a total minimum glass area of not less than 10% of the floor area of the room. Daylight and air may not be borrowed from other rooms. |
All within the prescribed range.
|
Yes |
|
|
Habitable room depths are limited to a maximum of 2.5m x the ceiling height. |
All within the prescribed range. |
Yes |
|
|
In open plan layouts (where the living, dining and kitchen are combined) the maximum habitable room depth is 8m from a window |
All within the prescribed range. |
Yes |
|
|
Master bedrooms have a minimum area of 10sqm and other bedrooms 9sqm (excluding wardrobe space) |
All bedrooms comply. |
Yes |
|
|
Bedrooms have a minimum dimension of 3m (excluding wardrobe space) |
All bedrooms comply. |
Yes |
|
|
Living rooms or combined living/dining rooms have a minimum width of: · 3.6m for studio and 1 bedroom apartments · 4m for 2 and 3 bedroom apartments |
All living rooms comply. |
Yes |
|
|
The width of cross-over or cross-through apartments are at least 4m internally to avoid deep narrow apartment layouts. |
All of the proposed units are in excess of 4m in width internally. |
Yes |
|
|
4E – Private open space and balconies |
All apartments are required to have primary balconies as follows: · Studio apartments require 4sqm with no min depth · 1 bedroom apartments require 8sqm with min depth 2m · 2 bedroom apartments require 10sqm with min depth 2m · 3+ bedroom apartments require 12sqm with minimum 2.4m depth
The minimum balcony depth to be counted as contributing to the balcony area is 1m. |
All primary balconies achieve the minimum area and depth requirements.
Calculated accordingly. |
Yes
Yes |
|
For apartments at ground level or on a podium or similar structure, a private open space is provided instead of a balcony. It must have a minimum area of 15sqm and a minimum depth of 3m. |
Ground floor units have courtyards greater than 15sqm with a depth greater than 3m. |
Yes |
|
|
4F – Common circulation and spaces |
The maximum number of apartments off a circulation core on a single level is eight. |
A maximum of 7 units at each level. |
Yes |
|
4G - Storage |
In addition to storage in kitchens, bathrooms and bedrooms, the following storage is provided: · Studio apartments require 4m3 · 1 bedroom apartments require 6m3 · 2 bedroom apartments require 8m3 · 3+ bedroom apartments require 10m3
At least 50% of the required storage is to be located within the apartment. |
All units have compliant total storage volumes as per the Apartment Design Guide (ADG) volumes.
At least 50% of storage is located within the units. |
Yes
Yes |
Draft Environmental Planning Instruments
Draft Environment SEPP
51. The Draft Environment SEPP was exhibited from 31 October 2017 to 31 January 2018.
52. This consolidated SEPP proposes to simplify the planning rules for a number of water catchments, waterways, urban bushland, and Willandra Lakes World Heritage Property.
· Changes proposed include consolidating the following seven existing SEPPs:
· State Environmental Planning Policy No. 19 – Bushland in Urban Areas
· State Environmental Planning Policy (Sydney Drinking Water Catchment) 2011
· State Environmental Planning Policy No. 50 – Canal Estate Development
· Greater Metropolitan Regional Environmental Plan No. 2 – Georges River Catchment
· Sydney Regional Environmental Plan No. 20 – Hawkesbury-Nepean River (No.2-1997)
· Sydney Regional Environmental Plan (Sydney Harbour Catchment) 2005
· Willandra Lakes Regional Environmental Plan No. 1 – World Heritage Property.
53. The proposal is consistent with the provisions of this Draft Instrument given there is no vegetation impacted by the proposed development.
Draft Remediation of Land SEPP
54. The Department of Planning and Environment has announced a Draft Remediation of Land SEPP, which will repeal and replace the current State Environmental Planning Policy No 55—Remediation of Land.
55. The main changes proposed include the expansion of categories of remediation work which requires development consent, a greater involvement of principal certifying authorities particularly in relation to remediation works that can be carried out without development consent, more comprehensive guidelines for Councils and certifiers and the clarification of the contamination information to be included on Section 149 Planning Certificates.
56. Whilst the proposed SEPP will retain the key operational framework of SEPP 55, it will adopt a more modern approach to the management of contaminated land.
57. A Preliminary Investigation Report was submitted with the application, which concludes:
‘STS consider that the site may be suitable for the proposed development provided it is developed as per proposed plans. Due to the presence of historical fills from unknown sources and that deep soil areas are being proposed, it would be necessary to implement an Unexpected Finds Protocol (UFP). As such, a UFP should be prepared for implementation at the commencement of any further ground disturbance activity.’
58. Based on the information provided, a contingency condition has been included in the recommended conditions detailing what is required to take place should unexpected contamination be found during demolition, excavation and construction.
Kogarah Local Environmental Plan 2012
Zoning and Permissibility
59. The site is located within the ‘R3 Medium Density Residential’ zone under the Kogarah Local Environmental Plan 2012.

Figure 3: Zoning map with the site outlined in blue
60. The proposed development is defined as a residential flat building, which is permissible in the zone.
61. The objectives for development in the R3 Medium Density Residential zone are as follows:
• To provide for the housing needs of the community within a medium density residential environment.
• To provide a variety of housing types within a medium density residential environment.
• To enable other land uses that provide facilities or services to meet the day to day needs of residents.
62. The proposed development is consistent with the above objectives in that it provides for additional residential accommodation within close proximity to a range of services and facilities including public transport options.
63. An assessment of the proposed development against the relevant provisions of Kogarah LEP 2012 is detailed in the compliance table below.
|
Clause |
Objectives/Provisions |
Comment |
Complies |
|
4.1A – Minimum lots sizes |
A minimum 1000m2 lot area is required for the purpose of residential flat buildings. |
A consolidated lot area of 1425.85sqm is provided. |
Yes |
|
4.3 - Height of buildings |
The height of a building on any land is not to exceed the maximum height shown for the land on the Height of Buildings Map. In this case, the relevant map limits the height of buildings on the subject site to 15m. |
The proposal has a building height of up to 17.3m. |
No – a Clause 4.6 variation request has been submitted and discussed following this table. |
|
4.4 - Floor space ratio |
The maximum floor space ratio for a building on any land is not to exceed the floor space ratio shown for the land on the Floor Space Ratio Map. In this case, the relevant map limits the floor space ratio for buildings on the subject site to 1.5:1. |
The proposal has a floor space ratio of 1.63:1. |
No – however the application has the benefit of a floor space bonus permitted under SEPP (Affordable Rental Housing) 2009. |
|
6.2 - Earthworks
|
The objective of this clause is to ensure that earthworks for which development consent is required will not have a detrimental impact on environmental functions and processes, neighbouring uses, cultural or heritage items or features of the surrounding land. |
Excavation is limited to the extent required for the basement parking levels. Suitable conditions of consent have been recommended to protect neighbouring properties and the public domain during demolition and construction. |
Yes |
|
6.3 - Flood planning
|
The subject site is identified in the Kogarah Bay Creek Floodplain Risk Management Study and Plan 2009 and is within the 1 in 100 year floor extents |
The proposed development has been designed to comply with the requirements established by the Flood Study prepared by WMA Water with respect to FPLs within the development ensuring that the proposal does not result in any off-site impacts. |
Yes- Discussed in more detail below |
|
6.5 - Airspace operations |
The objective of this clause is to protect airspace around airports
|
The proposed development will penetrate prescribed airspace for Sydney Airport requiring a ‘controlled activity’ within the meaning of Division 4 of Part 12 of the Airports Act 1996. The applicant has obtained the necessary approval for the controlled activity (refer to further commentary in the referrals section of this report). |
Yes |
Flood Planning
64. The subject site is identified in the Kogarah Bay Creek Floodplain Risk Management Study and Plan 2009 and is within the 1 in 100 year flood extents.
Figure 4: Flood Planning Map – site outlined in red
65. The flood planning levels provided by Council apply to the whole of the site despite there being a significant level difference across the site from Empress Street to Cole Lane. In order to establish flood planning levels (FPLs) and 1% AEP Levels that are more specific to the site and relevant to the proposed development a detailed Flood Study has been undertaken by WMA Water.
66. The Flood Study concludes:
As per Council policy, habitable areas must have a minimum floor level that is at or above the FPL of the 1% AEP (100-year ARI) peak flood level plus a 0.5m freeboard. Therefore, the minimum residential floor level for the proposed development was found to be 51.9m AHD, corresponding to the FPL at location I.
As per Council policy, non-habitable areas, such as garages and basements, must be protected to a FPL of the 1% AEP (100-year ARI) peak flood level. This typically applies to all possible ingress points to the car park such as vehicle entrances and exits, ventilation ducts, windows, light wells, lift shaft openings, risers and stairwells. As such, the minimum non-habitable entry levels for the proposed development are:
• 49.4m AHD at the driveway entrance fronting Cole Lane, with the driveway corresponding to location E and F, and;
• 51.4m AHD at the pedestrian access stair-well at the west of the site, corresponding to location I.
67. Council’s Drainage Engineer has reviewed the proposal and supports the application subject to conditions of consent in relation to the flood study being updated and certification of the building once constructed by the flood consultant.
Exception to Development Standards – Clause 4.6
Detailed assessment of variation to Kogarah Local Environmental Plan 2012 (LEP) - Clause 4.3 Height of Buildings
68. The objectives of Clause 4.6 are as follows:
(a) to provide an appropriate degree of flexibility in applying certain development standards to particular development,
(b) to achieve better outcomes for and from development by allowing flexibility in particular circumstances.
69. The proposed development seeks a variation to the development standard relating to height (Clause 4.3). The LEP identifies a maximum height of 15m for the site and the proposed development reaches a maximum height of 17.3m. The building exceeds the height by 2.3m which comprises the stair; lift overrun and communal open space structures on the rooftop. This amounts to a 15.3% variation to the control.
70. Any variation to a statutory control can only be considered under Clause 4.6 – Exceptions to Development Standards of the KLEP 2012. An assessment of the proposed height against the survey plan levels was conducted to indicate the Applicant’s calculations are accurate.

Figure 5: Section plan of the proposal showing proposed height variation
Is the planning control in question a development standard?
71. Height of Buildings control under Clause 4.3 of the KLEP 2012 is a development standard. The maximum permissible height is 15m.
72. Clause 4.6(3) states that:
“Development consent must not be granted for development that contravenes a development standard unless the consent authority has considered a written request from the applicant that seeks to justify the contravention of the development standard by demonstrating:
- that compliance with the development standard is unreasonable or unnecessary in the circumstances of the case, and
- that there are sufficient environmental planning grounds to justify contravening the development standard”
73. To support the non-compliance, the applicant has provided a request for a variation to Clause 4.3 in accordance with Clause 4.6 of KLEP 2012. The Clause 4.6 request for variation is assessed as follows:
What are the underlying objectives of the development standard?
74. The objectives of Height of Buildings standard under Clause 4.3 of KLEP 2012 are:
(a) to establish the maximum height for buildings,
(b) to minimise the impact of overshadowing, visual impact and loss of privacy on adjoining properties and open space areas,
(c) to provide appropriate scale and intensity of development through height controls.
Compliance is unreasonable or unnecessary in the circumstances of the case (clause 4.6(3)(a))
75. There have been several Court cases that have established provisions to assist in the assessment of Clause 4.6 statements to ensure they are well founded and address the provisions of Clause 4.6. In Wehbe V Pittwater Council (2007) NSW LEC 827 Preston CJ set out ways of establishing that compliance with a development standard is unreasonable or unnecessary.
76. Preston CJ in the judgement then expressed the view that there are 5 different ways in which an objection may be well founded and that approval of the objection may be consistent with the aims of the policy, as follows (with emphasis placed on number 1 for the purposes of this Clause 4.6 variation:
1. The objectives of the standard are achieved notwithstanding non-compliance with the standard;
2. The underlying objective or purpose of the standard is not relevant to the development and therefore compliance is unnecessary;
3. The underlying object or purpose would be defeated or thwarted if compliance was required and therefore compliance is unreasonable;
4. The development standard has been virtually abandoned or destroyed by the Council's own actions in granting consents departing from the standard and hence compliance with the standard is unnecessary and unreasonable;
5. The zoning of the particular land is unreasonable or inappropriate so that a development standard appropriate for that zoning is also unreasonable and unnecessary as it applies to the land and compliance with the standard that would be unreasonable or unnecessary. That is, the particular parcel of land should not have been included in the particular zone.
77. The Clause 4.6 Statement was prepared in consideration of the recent court cases and their judgements.
78. Applicants comment: “As described earlier, the lift overrun exceed the 15m maximum building height by a maximum of 2.3m, representing a variation of 15.3% above the development standard. In numerical terms this represents a relatively significant variation to the principal development standard. Notwithstanding, as demonstrated in the NSW LEC decisions in Micaul Holdings Pty Limited v Randwick City Council and Moskovich v Waverley Council there should be no artificial conservatism about the use of Clause 4.6 based on the numerical extent of the variation being sought, given that the purpose of Clause 4.6 is to allow flexibility and to achieve better outcomes for a site by allowing developments to exceed height and/or FSR where there are justifiable circumstances.
An important finding in Micaul Holdings Pty Limited was that while the judgement did not directly overturn the Four2Five v Ashfield decision, the Chief Judge indicated that one of the obligations of a consent authority is to be satisfied that the applicant’s written request has adequately addressed the matters in Clause 4.6(3), namely……………that compliance with the development standard is unreasonable and unnecessary in the circumstances of the case………….and that there are sufficient environmental planning grounds to justify contravening the development standard. In this particular instance, it is considered that compliance with the development standard is unreasonable and unnecessary and that there is sufficient environmental planning merit to justify the proposed non-compliance, as described below:
The objectives of the height of buildings principal development standard are:
(a) to establish the maximum height for buildings,
(b) to minimise the impact of overshadowing, visual impact and loss of privacy on adjoining properties and open space areas,
(c) to provide appropriate scale and intensity of development through height controls.
It is considered that the proposed development achieves the objectives of the standard for the following reasons:
· the proposed scale and massing of the building is consistent with the desired future character of the locality;
· the non-compliance relates to the roof and lift overrun associated with the roof top communal open space and does not seek to increase the number of storeys or density of the development. As such, there is no tangible nexus between the height variation and the overall land use intensity. The non-compliance allows equitable access to this communal area without impacting on the amenity of surrounding properties;
· the area of non-compliance will not result in any adverse impacts on the adjoining land uses with respect to overshadowing, loss of privacy, inappropriate scale etc.
In consideration of the above, Council’s attention is also drawn to the Department of Planning and Environment’s publication “Varying development standards: A Guide” (August 2011), which outlines the matters that must be considered when varying a development standard. The Guide has essentially adopted the 5 point test for consideration set out by the Land & Environment Court in Wehbe v Pittwater Council (2001) NSW LEC 827, specifically that there are five different ways in which compliance with a development standard can be considered unreasonable or unnecessary, namely:
· the objectives of the standard are achieved notwithstanding non-compliance with the standard;
79. Officer Comment: As discussed above, the proposal is considered to be consistent with the objectives of the building height standard, notwithstanding the numerical variation.
· the underlying objective or purpose of the standard is not relevant to the development and therefore compliance is unnecessary;
80. Officer Comment: The objectives of the building height standard remain relevant and the proposal is consistent with, or at least is not antipathetic to the objectives of the building height standard, notwithstanding the numerical variation.
· the underlying object of purpose would be defeated or thwarted if compliance was required and therefore compliance is unreasonable;
81. Officer Comment: The proposal is consistent with the objectives of the building height standard, notwithstanding the numerical variation, and it would not defeat the purpose of the standard.
· the development standard has been virtually abandoned or destroyed by the Council's own actions in granting consents departing from the standard and hence compliance with the standard is unnecessary and unreasonable;
82. Officer Comment: The building height standard has not been abandoned by Council through its actions in granting consent for other buildings in the vicinity that depart from the standard.
· the zoning of the particular land is unreasonable or inappropriate so that a development standard appropriate for that zoning is also unreasonable and unnecessary as it applies to the land and compliance with the standard would be unreasonable or unnecessary. That is, the particular parcel of land should not have been included in the particular zone.
83. Officer Comment: The proposed residential flat building is a permissible land use and the zoning of the site is considered to be appropriate in this location and in the context of the surrounding land uses and built form.
84. In light of the above, it has been demonstrated that the first test under the Wehbe method has been met, such that the requirement to strictly adhere to the numerical development standard for building height is considered to be unreasonable and unnecessary in this instance.
Clause 4.6(3)(b) are there sufficient environmental planning grounds to justify contravening the standard
85. Having regard to Clause 4.6(3)(b) and the need to demonstrate that there are sufficient environmental planning grounds to justify contravening the development standard, it is considered that there is an absence of any negative impacts of the proposed non-compliance on the environmental quality of the locality and amenity of adjoining properties in terms of overshadowing, overlooking or view loss.
86. Applicants Comment: Based on the discussion above, it is considered that there are sufficient environmental planning grounds to justify contravening the development standard. Key environmental planning grounds to support the variation include:
· Despite a portion of the roof and the lift overrun exceeding the height of buildings principal development standard, the remainder of the building sits within the 15m height limit. As such, the overall bulk and scale of the building is considered to be acceptable in terms of its scale and built form and the relationship of the building to the adjoining residential development;
· The additional height of the roof and lift overrun does not constitute an additional storey and maintains a building of a scale and form that is appropriate for the location, providing visual interest and a varied building profile; and
· Despite the increased height of the roof and lift overrun above the statutory height limit, the proposed development will not have an unreasonable impact on adjoining sites in terms of overshadowing, loss of privacy or views.
87. Officer Comment: Clause 4.6(4)(a)(ii) the proposed development will be in the public interest because it is consistent with the objectives of the particular standard and the objectives for development within the zone in which the development is proposed to be carried out.
88. Clause 4.6(4) states that:
“Development consent must not be granted for development that contravenes a development standard unless:
(a) the consent authority is satisfied that:
(i) the applicant’s written request has adequately addressed the matters required to be demonstrated by subclause (3), and
(ii) the proposed development will be in the public interest because it is consistent with the objectives of the particular standard and the objectives for development within the zone in which the development is proposed to be carried out,”
89. Applicants Comments: The proposed development will be in the public interest because it is consistent with the objectives of the particular standard and the objectives for development within the zone in which the development is proposed to be carried out.
The table below demonstrates that the proposed development will be in the public interest because it will be consistent with both the height of buildings principal development standard objectives and the R3 Medium Density Residential zone objectives of the LEP.

Figure 6: Applicant’s justification against zone and standard objectives
90. Officer Comment: The proposed development has been designed to ensure all habitable areas are located within the height limit and the only projections are in relation to the rooftop communal open space area, stair access and the lift overrun.
91. The proposal generally satisfies the objectives of the development standard in the following ways:
(a) to establish the maximum height for buildings,
92. Officer Comment: The site and its immediately adjoining properties have been up scaled to allow for medium to larger scaled development. Figure 7 shows the extent of the immediate precinct which allows for a maximum height of 15m. The proposed variation is located centrally within the building, and accordingly will not be perceptible from the public domain. The building generally will read as being of a compliant height.

Figure 7: Height of buildings map – site outlined in red
(b) to minimise the impact of overshadowing, visual impact and loss of privacy on adjoining properties and open space areas,
93. Officer Comment: This objective relates to considering the amenity impacts associated with the non-compliance. In terms of visual impact the structures are generally centrally located which reduces their visual appearance from the immediately adjoining streetscapes.
94. The objective seeks to “minimise” the visual impact, it is not requiring it to be eliminated or totally negated, and as this is a small scale ancillary structure which will not be highly visible or intrusive given the scale and proportions of the building. In respect to the more dominant elements like the lift overrun accessing the roof terrace, this will be a visible element when viewed from a distance. It will not be visible from immediately adjoining properties and streetscapes given that it is centrally located. There will be no adverse impacts in terms of overshadowing or overlooking to adjoining properties and the additional height will not result in any additional impact to the neighbouring properties due to its central location and distance form site boundaries.
(c) to provide appropriate scale and intensity of development through height controls.
95. Officer Comment: New developments of a similar nature have been approved in this precinct and have established a precedent for development in the street and immediate area. The proposed development is consistent with the pattern of development that is slowly being established in the precinct.
96. The non-compliant height of the building which only relates to certain sections of the uppermost level, rooftop communal open space and lift access to the roof can be catered for in this location given the siting, orientation and the fact the buildings comply with the anticipated building envelope which is compliant with the ADG and KDCP in terms of the separation distances, landscaped area requirements, front setback control etc. The proposed development is considered to satisfy the objectives of the development standard.
97. The exceedance in the control generally satisfies the objectives of the zone for the following reasons:
· To provide for the housing needs of the community within a medium density residential environment.
· To provide a variety of housing types within a medium density residential environment.
· To enable other land uses that provide facilities or services to meet the day to day needs of residents
98. The proposal provides 28 residential units, being a combination of 1, 2 and 3 bedrooms in a highly accessible location. In addition five units are dedicated as affordable rental housing units and will be conditioned accordingly.
99. The level and location of the non-compliance is not considered to be unreasonable and will not establish an undesirable precedent. It will not have any adverse effect on the surrounding locality, which is emerging to be characterised by residential flat building development of comparable character. The proposal promotes the economic use and development of the land consistent with its zone and purpose. The Panel is requested to invoke its powers under Clause 4.6 to permit the variation proposed.
100. The public benefit of the variation is that it will appropriately facilitate the provision of residential accommodation on a R3 zoned site and provide for a range of new housing stock, including affordable rental housing. It is noted that in Initial Action Pty Ltd v Woollahra Municipal Council [2018] NSWLEC 118, Preston CJ clarified what items a Clause 4.6 does and does not need to satisfy. Importantly, there does not need to be a "better" planning outcome resulting from the non-compliance.
101. The second matter was in cl 4.6(3)(b), where the Commissioner applied the wrong test in considering this matter by requiring that the development, which contravened the height development standard, results in a "better environmental planning outcome for the site" relative to a development that complies with the height development standard (in [141] and [142] of the judgment). Clause 4.6 does not directly or indirectly establish this test. The requirement in cl 4.6(3)(b) is that there are sufficient environmental planning grounds to justify contravening the development standard, not that the development that contravenes the development standard have a better environmental planning outcome than a development that complies with the development standard.
102. The roof top area and its associated ancillary structures could be deleted and the building largely be compliant however this space will add value and provide greater functionality for the future occupants, providing additional open space and amenity for residents.
103. In this case the proposal seeks to establish a preferred and appropriate design and built form outcome for this site with the building complying in large with the height standard. There will be no adverse amenity or visual impacts generated by the variation, the proposal satisfies the objectives of the zone and the development standard objectives. In this case the justification to vary the height control is considered to be a reasonable and well-founded request.
Clause 4.6(b) the concurrence of the Secretary has been obtained.
104. Concurrence from the Secretary has been obtained and can be assumed in this case.
105. It is considered that the Clause 4.6 Statement lodged with the application addresses all the information required pursuant to Clause 4.6 and the statement is considered to be well founded as there are sufficient environmental planning grounds to justify contravening the standard given that in this case the proposal satisfies the objectives of the zone and development standard (Clause 4.3 building height control).
Development Control Plans
Kogarah Development Control Plan 2013
106. The provisions of the Kogarah Development Control Plan 2013 (KDCP 2013) are relevant to the proposed development. Several controls within the KDCP 2013 do not align and significantly conflict with the scale of development now permitted under the KLEP 2012 (as amended on 26 May 2017). As a consequence, the proposed development will contravene a number of the controls including significant variations to the height and density controls.
107. The significant variations to KDCP 2013 have resulted from the subsequent amendments to KLEP 2012 which allows a higher density/scale of development. The approach to support the development with significant variations to KDCP 2013 (but compliant with KLEP 2012) is consistent with recent judgements in the NSW Land and Environment Court. In particular, in Michael Murr v Georges River Council [2017] NSWLEC1369.
108. It is also noted that in the hierarchy of planning controls, Development Control Plans cannot prescribe more onerous corresponding controls than those in a Local Environmental Plan.
109. An assessment of the proposed development against the relevant controls in the KDCP 2013 is detailed in the compliance table below.
|
Kogarah Development Control Plan 2013 |
|||||
|
Part B General Controls |
|||||
|
Controls |
Required |
Proposed |
Comply |
||
|
Part B2_ Tree Management and Greenweb |
The objectives of this Part are: (a) Establish the criteria governing the removal or pruning of trees. (b) Ensure that appropriate information is submitted to Council regarding tree management. |
An assessment in relation to vegetation management is discussed in detail under the State Environmental Planning Policy (Vegetation in Non-Rural Areas) 2017 commentary earlier in this report.
|
Yes |
||
|
Part B4 – Parking and Traffic |
The parking requirements for a residential flat building is: (i) 1 space per 1-bedroom apartment (ii) 1.5 spaces per 2-bedroom apartment (iii) 2 spaces per 3-bedroom apartment (iv) 1 visitor space per 5 apartments 1 designated car wash bay which may also be a visitor space. |
30 resident spaces and 4 visitor spaces are proposed.
A condition of consent has been recommended to provide 28 resident spaces and 6 visitor spaces in accordance with the Kogarah DCP parking controls (this is the assessment criteria for the application not the RMS criterion). |
Yes |
||
|
Part B5 – Waste Management and Minimisation |
Submit a Waste Management Plan with DAs involving: · demolition; · construction of a new building(s); or · change of use or alterations/additions to existing premises (only when this would result in a change of waste generation). For residential developments that include six or more dwellings, a dedicated caged area may be required within the bin room for the storage of discarded bulky items which are awaiting removal. This area must be easily accessible to all residents. Waste storage facilities must be easily accessible from residential units and appropriately located to facilitate the removal of waste to the Council collection point. Waste and recycling storage areas must be visually and physically integrated into the design of the development. Design elements such as fencing, landscaping and roof treatments may be used to screen the waste and recycling storage area |
The proposal is accompanied by a waste management Plan for construction and occupation of the building. Demolition of the structures on site has already occurred. A waste storage area has been provided within the basement area readily accessed off Cole Lane. The relevant details submitted with the application were referred to Council’s Waste Officer for comment. This is discussed in more detail in the referrals section of this report. |
Yes |
||
|
Part B6 – Water management |
All developments requiring Council approval within the City of Kogarah require consideration of the Water Management Policy. Habitable floor levels are to have a minimum of 500mm freeboard above the 100-year ARI flood level. Basements are to be protected up to and including the 100-year ARI flood level.
|
Council’s Drainage Engineer and Development Engineer have reviewed the proposal and provided conditions of consent in relation to flooding and drainage. The development has been designed to comply with the floor level restrictions. |
Yes |
||
|
Part C2- Medium Density Housing |
|||||
|
Site Coverage
|
Site Coverage: 45% (641.6sqm) |
The proposed development has site coverage of 55.8% (796sqm). . |
No – refer to comments below. |
||
|
Comments on site coverage The proposal exceeds the maximum site coverage control in the DCP by 155sqm or 24%. Since the adoption of the Kogarah New City Plan in 2017, many of the controls within the KDCP 2013 do not align and significantly conflict with the scale of development now permitted under the KLEP 2012 (as amended on 26 May 2017).
The significant variations to KDCP 2013 have resulted from the subsequent amendments to KLEP 2012 which allows a higher density/scale of development. The approach to support the development with significant variations to KDCP 2013 (but compliant with KLEP 2012) is consistent with recent judgements in the NSW Land and Environment Court.
The variation to the site coverage control is supported as the proposal complies with the floor space limits (in accordance with the SEPP (Affordable Rental Housing) 2009) and the landscaping controls in SEPP 65 and the ADG. |
|||||
|
Open Space |
Common Open Space Must be provided at the rate of 30sqm/dwelling for dwellings having balconies as the only form of private open space, with a minimum overall area of 75sqm, and with minimum dimensions of 5m. This equates to 660sqm of Common Open Space
Private Open Space Where provided, courtyards for ground floor units must be a minimum of 35sqm/dwelling, with a minimum dimension of 3m. Otherwise all dwellings must be provided with a balcony 12sqm in area with a minimum dimension of 3m. |
In accordance with the provisions of clause 6A (2) of SEPP 65, this control is of no effect.
|
N/A – Refer to the ADG assessment earlier in this report. |
||
|
Impervious Area |
Maximum 55% or 784.2sqm |
73.6% or 1049sqm impervious area proposed.
|
No - However the development provides for more than the required amount of deep soil area in accordance with SEPP 65 and the provisions of the ADG. The development has deep soil landscaping to all boundaries of the site. |
||
|
Views and View Sharing |
Development shall provide for the reasonable sharing of views. |
The site and surrounding properties are not afforded any views. |
Yes
|
||
|
Adaptable and Accessible Housing |
The minimum number of adaptable units designed in accordance with AS4299 - 1995 Adaptable Housing must be incorporated into the above developments: • 21-30 units – 3 adaptable units
The adaptable units must comply with the relevant Australian Standards and be certified as “adaptable housing units”. |
The proposed development provides three (3) adaptable units being units G.2, 1.2 and 2.2. |
Yes |
||
|
Part C2- Medium Density Housing- Appendix 2- Specific Precincts (Hurstville) |
|||||
|
Housing Types |
§ Provide a range of medium density housing. § Address streets with well-designed façades and windows. § Allow building to side boundaries without windows to create continuous street façades and to avoid problems of overlooking backyards. § Reduce walking distances and the need for lifts with maisonette apartments on upper levels. § Create extensive views to the south from the upper levels of residential buildings, by stepping building heights down towards the south. § Minimise environmental impact of taller buildings by relating site sizes and courtyard sizes to building height. |
The development consists of a single building with a height of four (4) storeys accommodating twenty eight (28) residential units and two (2) levels of basement car parking with access off Cole Lane at the rear. The development appropriately addresses Empress Street, Finney Street and Cole Lane with differentiated facades The locality is characterised by a mix of residential development types with two (2) storey townhouses and three (3) to four (4) storey residential flat developments being most prevalent and dominating the streetscape. The development is of a scale and form that is anticipated within the R3 – Medium Density Zone and reflects the desired future character having regard to the height & FSR provisions of KLEP 2012 (Amd No 2) - New City Plan. |
Yes |
||
|
Building Heights |
A maximum height of three (3) storeys for the subject site.
|
In accordance with the provisions of clause 3.43(5) of the EP&A Act, this control has no effect. In this regard, it is inconsistent with the building height standard in KLEP 2012. |
N/A - Refer to the KLEP 2012 assessment earlier in this report and the Clause 4.6 variation to the height control development standard. |
||
|
Density |
A maximum floor space ratio of 1.5:1.
|
In accordance with the provisions of clause 3.43(5) of the EP&A Act, this control has no effect. In this regard, it is inconsistent with the building height standard in KLEP 2012 as ARHSEPP provides an FSR bonus. |
N/A – The floor space bonus under the provisions of ARHSEPP 2009 applies to the proposal. |
||
|
Site Area |
§ Maximum development densities and heights may only be achieved on sites which exceed the site areas in Table A.
§ Individual housing lots are not to be left isolated between larger development parcels. The minimum development lot size is two existing housing lots.
§ In the case of new development, the lots shown in the building footprints in Figure 4 shall be consolidated and developed as a single parcel of land (with the exception Nos. 9-19 West Street, South Hurstville). |
The site has area of 1425.85sqm which exceeds the minimum area of 1000sqm specified.
The proposal does not isolate any sites.
The proposed development consolidates the three (3) identified parcels of land into a single development site.
|
Yes |
||
|
Minimum Unit Sizes |
Unit sizes are to comply with the following: § 1 bedroom – 75sqm § 2 bedroom – 100sqm § 3 bedroom – 115sqm |
In accordance with the provisions of clause 6A (2) of SEPP 65, this control has no effect. |
N/A – Refer to the ADG assessment earlier in this report. |
||
|
Building Setbacks |
§ Site buildings within building footprints as shown in Figure 4.
§ Set buildings back a minimum 5m from the property boundary on the street.
§ Set buildings back a minimum of 5m from the new front property boundary where property boundaries are set back 3.05m due to street widening.
§ Build walls without windows where building envelopes show the potential to build to the side boundary. |
The building footprint varies from the DCP however it is a suitable response to the orientation of the site and the triple street frontage afforded to the site. The footprint remains the same as the footprint approved for the site in DA2017/0465.
The setbacks vary from the DCP; however it is a suitable response to the orientation of the site and the triple street frontage afforded to the site. The footprint remains the same as the footprint approved for the site in DA2017/0465.
Not applicable.
Not applicable.
|
On merit
On merit
N/A
N/A |
||
|
Visual and Acoustic Privacy |
Site buildings within building footprints as shown in Figure 4 above. § Set buildings back a minimum 5m from the property boundary on the street. § Set buildings back a minimum of 5m from the new front property boundary where property boundaries are set back 3.05m due to street widening. § Build walls without windows where building envelopes show the potential to build to the side boundary. |
In accordance with the provisions of clause 6A (2) of SEPP 65, this control ha of no effect. |
N/A – Refer to the ADG assessment earlier in this report. |
||
|
Solar Access |
§ Dwellings and courtyard areas of existing attached dwellings, multi dwelling housing and dual occupancy development are not to be overshadowed for a period of more than 3 hours between 9.00am and 3.00pm in mid-winter. § The setback requirements and private open space areas proposed should result in acceptable levels of solar access to new dwellings. |
Neighbouring properties will continue to receive a minimum 3 hours solar access.
In accordance with the provisions of clause 6A (2) of SEPP 65, this control has no effect. |
Yes
N/A – Refer to the ADG assessment earlier in this report. |
||
|
Parking |
§ Provide 1 car space per dwelling. § Provide one visitor car space per 5 dwellings. § 100% of car parking is to be provided on-site. § Parking spaces are not to be used as a storage space. § Vehicles are to enter and exit parking areas in a forward direction. § All parking is to be located below ground level. Council will permit part of the car parking area to be above ground level for ventilation (up to one metre), and will also consider variations to this on steeply sloping sites provided the general objectives are met. § The area of excavation for parking and other works below ground level is restricted to the footprint. |
§ 1 space per unit is provided § 1 visitor space per 5 units is provided. § All parking is provided on site. § Can be conditioned.
§ Complies.
§ Basement parking is proposed.
§ Complies. |
Yes Yes
Yes Yes
Yes
Yes
Yes |
||
|
Landscape |
§ In general, the building envelope shown for the building above the ground should also be the same for any building works below ground level. The area of excavation for parking and other works below the ground level is restricted to the footprint area as shown in Figure 2 (for 2-4 West Street) and Figure 4. This ensures that there are sufficient areas for deep planting of trees and § That stormwater runoff is minimised. § Advanced trees or shrubs are to be planted. § Plant street frontages with full canopied trees to visually relate taller and lower developments in the street and to enhance front entrances to buildings. § Advanced tall tree species should be planted in the front of units that will integrate with the proposed streetscape trees to define the public domain and create a dense cover of tree screening. § Provision should be made for deep soil planting (ie the planting of large trees) around the perimeter of the building and an area within the courtyard. Deep soil landscaping areas should be provided where possible within the side, front and rear setback areas. § Minimise impervious surfaces such as hard-paved outdoor area, footpaths, etc., to reduce stormwater runoff. § Maximise pervious surfaces by using porous pavements for car parks, footpaths and outdoor areas to promote filtration. |
Generally, the building footprint above the ground is consistent with the basement car parking area. Significant areas of deep soil are provided along all street frontages and along the south western boundary of the site fronting Cole Lane. These areas allow for the provision of canopy trees and screening plants that will integrate the development into the streetscape and adjoining developments.
|
Yes |
||
|
Fencing |
§ Front fences must complement the streetscape where a pattern or style is established. § All fencing to the street is to be of a low masonry construction and must not exceed 1 metre in height. If street facing fences are over 1m in height they should be open style construction eg picket and must not exceed 1.8m. § Front fences must not be made of colourbond sheets or closed timber palings. Preferred materials are masonry, ornate timber (eg. pickets), modern ornate metal grilles or a combination of these. § Privacy for courtyards/units should be achieved through the provision of shrubs and trees. |
Front fences to the courtyards and terraces along both Empress and Finney Streets will be dark and anodised with an aluminium finish. The proposed fencing will be of a palisade form promoting casual surveillance to these street frontages. The proposed fencing is considered to compliment the proposed development and existing streetscape. The fencing to Finney Street is a 500mm brick wall with landscaping behind. Each terrace is raised above natural ground and has a palisade or glass balustrade. There is no fencing proposed to Cole Lane as the basement walls extend above natural ground and landscaping is proposed in the setback to the street. Conditions imposed in relation to the flooding affection associated with the site. |
Yes |
||
|
Retaining Walls |
§ Walls should be designed to complement the design of the development and the streetscape.
§ Walls should be designed to minimise runoff to neighbouring properties or public land.
§ Walls should not interfere with natural drainage.
§ Retaining walls should have a maximum height of 600mm and comply with relevant Australian Standards |
A condition of consent is recommended for an updated flood study to be prepared to address the design of fencing and basement protrusion around the site. The development has been designed so as to not interfere with the natural movement of water. An updated flood study has been requested as a condition of consent with respect to fencing and the basement protrusion.
|
Yes |
||
|
Roof Line |
§ Provide a variety of roof forms, including hips, gables, dormers, pergolas and the like. § Emphasise corners and building entrances with tower elements and canopies. § Build floor space into roof areas with dormer windows, to reduce apparent building height and create an interesting roof scape. |
The flat roof form is not inconsistent with existing roof forms in the locality and is reflective of the likely future character of the area.
|
Yes |
||
|
Façade Articulation |
§ Articulate façades with balconies, bay windows, entrance canopies and a range of materials and colours.
|
The proposal incorporates a variety of architectural elements, materials and colours that responds to the street and setting. Architectural elements such as entries, balconies, screens and shading devices, as well as two pedestrian entries, one from Cole Lane and one from Empress Street, contributing positively activating the streetscapes. |
Yes |
||
|
Building Entrances |
§ Building entrances are to be clearly marked with canopies, large doorways and other architectural elements. § Building entrances are to be accessible from the street, preferably directly addressing the street frontage |
An entry awning and wall feature inclusive of timber look cladding will ensure that the building entry is readily identifiable. A secondary pedestrian entry is provided from Cole Lane to the eastern side of the building at ground level. |
Yes |
||
|
Balconies |
Balconies are to be recessed into the building façade. Projecting balconies are desirable only where the balcony is also recessed into the façade. |
The balconies are recessed into the building their form and design ensures that they add interest and do not detract from the façade. |
Yes |
||
|
Service/Lifts |
Accommodate refuse areas in discreet enclosed areas on site.
All connection points to services are to be incorporated within buildings or associated hard or soft landscaping.
Service connections are not to cause a hazard to pedestrians or vehicles. All residential flat buildings that have more than two habitable storeys are required to have lifts. |
All servicing and waste collection shall take place from Cole Lane at the rear of the site. As required all floors and common areas of the development are serviced by a lift. A platform lift provides access from the ground floor COS into the building. |
Yes |
||
Interim Policy – Georges River Development Control Plan 2020
110. Council at its Environment and Planning Committee Meeting dated 11 June 2019 resolved to adopt the Georges River Interim Policy DCP coming into effect on 22 July 2019.
111. The Interim Policy is a public policy that is to be used as a guide to set a consistent approach for the assessment of residential development within the LGA. It is a supplementary document, meaning that current DCP controls will prevail if they are considered best practice. The Interim Policy has no statutory recognition in the assessment of DAs pursuant to the Environmental Planning and Assessment Act, 1979 (EP&A Act).
112. An assessment of the proposal has been carried out against the provisions of the Interim Policy as set out in the following table.
|
Interim Policy – Georges River DCP 2020 |
||
|
Standard |
Proposed |
Complies |
|
Site Frontage |
||
|
20m |
30.18m to Empress Street |
Yes |
|
Building Height |
||
|
The relevant LEP controls relating to building height will prevail over DCP controls that relate to height in storeys |
The proposal exceeds the height control but is supported by the provision of a Clause 4.6 Statement. This statement is considered to be well founded and discussed in detail earlier in this report. |
Yes |
|
Private Open Space |
||
|
The ADG requirements prevail over the DCP controls for private open space |
The proposal is fully compliant with the ADG’s private open space requirements. Refer to “4E – Private Open Space and Balconies” within the ADG Compliance Table above. |
Yes |
|
Communal Open Space |
||
|
The ADG requirements prevail over the DCP controls for COS
|
The proposal is considered to comply with the requirements of the ADG with respect to COS. Refer to “3D – Communal Open Space” within the ADG Compliance Table above. |
Yes
|
|
Parking |
||
|
In accordance with 'A Plan for Growing Sydney' (Department of Planning and Environment): · If located in a strategic centre (i.e. Kogarah CBD and Hurstville CBD) and within 800m of a Railway, the “Metropolitan Regional Centre (CBD)” rates apply. · If located within 800m of a railway and outside the strategic centres the “Metropolitan Subregional Centre” rates apply. · If located outside of 800m of a Railway, the relevant DCP applies. |
30 resident spaces and 4 visitor spaces are proposed in accordance with the current DCP controls.
A condition of consent has been recommended to provide 28 resident spaces and 6 visitor spaces in accordance with the Kogarah DCP parking controls (this is the assessment criteria for the application not the RMS criterion).
|
Proposal satisfies the numerical requirements of the DCP. |
|
Solar Access |
||
|
The ADG requirements prevail over the DCP controls for solar access
|
The proposal complies with the ADG Solar Access requirements as detailed within the ADG Compliance Table above. Refer to “4A – Solar and Daylight Access” within the ADG Compliance Table. |
Yes |
Draft Amendment to Part C2 – Medium Density Development of Kogarah DCP 2013
113. Arising from the significant increase in development activity as a result of the New City Plan (Amendment No 2) to the Kogarah Local Environmental Plan gazetted in May 2017 which permitted greater density (1.5:1) and height (15m), Council immediately proceeded to prepare an amendment to Part C of the Kogarah Development Control Plan for the area generally bounded by the Princes Highway, Stubbs Street/Poulton Avenue and Wyuna Street, Beverley Park, and Park Road and John Street, Kogarah Bay as a first priority and as a second priority, the west side of the Princes Highway from Jubilee Avenue to Park Road which is in part High Density B6 zone and in part High Density B2 zone.
114. Council has engaged Consultants to prepare a new Development Control Plan 2020 which will consolidate and harmonise existing controls and establish appropriate new controls to assist with redevelopment for up zoned sites.
115. In summary the development of the DCP will involve five (5) stages:
· Stage 1 Community Participation Plan
· Stage 2 General and Industrial
· Stage 3 Residential Precincts
· Stage 4 Business Precincts
· Stage 5 Specific Sites and Localities
116. Stage 3 aims to review and establish controls across different precincts and categories of residential developments (Residential Flat Building’s, Multi-Dwelling Housing, Dwelling Houses, Dual Occupancy’s etc). The first task within this stage is to look at medium density development within R3 zoned areas. Nine (9) precincts have been identified for specific attention, as they have been up zoned and the current controls in the Development Control Plans are outdated and not reflective of the scale and form that is permitted under the Local Environmental Plans. The subject site falls within the Kogarah Bay Precinct (No.2) refer to the figure below.

Figure 8: Map highlighting the Nine (9) R3 precincts within the LGA that are being considered in accordance with the DCP review.
117. One of the key identified areas of concern relate to there being no current controls which consider the interface of new larger developments and their treatment and transition to lower scale residential zones, that adjoin these area, predominantly zoned R2 having 9m and 12m height limits.
118. Council on 25 November 2019 adopted a report which will result in an amendment to Part C2 – Medium Density Housing in Kogarah DCP 2013. This amendment was on public exhibition from 20 January 2019. As such this draft amendment is now a statutory planning document it must be considered in any assessment.
|
Draft Amendment to Part C2- Medium Density Development of Kogarah DCP 2013 |
||
|
Part 1 Residential Flat Buildings |
||
|
Required |
Proposed |
Complies |
|
1. Minimum site requirements |
||
|
1000sqm minimum lot size 24m minimum frontage |
1,425.85sqm 30.18m |
Yes Yes |
|
2. Site isolation and amalgamation |
||
|
Adjoining sites not to be left isolated. Site amalgamation requirements apply for specific sites. |
The proposal does not cause any site isolation. The site is not subject to any amalgamation requirement. |
Yes
N/A |
|
3. Building Setbacks |
||
|
Front setbacks Up to four (4) storeys – 5m Above four (4) storeys – 8m
Ground floor private open space may encroach up to 2m into the 5m front setback leaving a min 3m of landscaped area to the street. |
5.16m 15m
5m landscaped setback provided to Empress Street. 3m landscaped setback provided to Finney Street. |
Yes Yes
Yes
Yes |
|
Private open space and balconies must comply with Part 4E of the ADG. |
Complies |
Yes |
|
Side boundary setbacks Up to four (4) storeys – 6m
Ground floor private open space may encroach up to 3m into the side and rear setbacks leaving a min 3m landscaped buffer |
6m to south east site boundary.
5.16m landscaped setback provided to Empress Street. 3m landscaped setback provided to Finney Street. |
Yes
Yes
Yes
|
|
Above four (4) storeys – 9m |
9m setback provided to the rooftop terrace to the south east. |
Yes |
|
Rear boundary setbacks Up to four (4) storeys – 6m Ground floor |
6m to south east or this west site boundary. |
Yes |
|
Up to four (4) storeys – 6m Levels 1-3 |
6m to south east site boundary. |
Yes |
|
Above four (4) storeys – 9m |
Rooftop terrace - 9m |
Yes |
|
Private open space and balconies must comply with Part 4E of the ADG. |
Complies |
Yes |
|
4. Basement Setbacks |
||
|
3m from site boundaries South East South West North West North East |
6m 3m 3m 5.162m |
Yes Yes Yes Yes |
|
Basement setback areas are to be deep soil areas as defined in the ADG |
The basement setback areas provided are Deep Soil Zones. |
Yes |
|
Driveways and crossings are to be located a minimum of 1.5m from a side boundary |
15m to the residential allotment and 8.5m from the Finney Street boundary. |
Yes |
|
5. Façade Treatment and Street Corners |
||
|
Building facades to be clearly articulated with high quality materials and finishes. Modulation and articulation in the building form to be explored. Large areas of blank, minimally or poorly articulated walls are not acceptable. Façade treatments such as wall cladding and green walls should be considered as alternatives. Clear glazing balustrades to be avoided where they are visible from the public domain. |
Satisfactory
Satisfactory
Satisfactory
Satisfactory
|
Yes
Yes
Yes
Yes |
|
7. Landscaped area and Private Open Space |
||
|
A minimum 10% of the site is to be landscaped area with a minimum dimension of 2m on two axes. |
Deep Soil zone provided is 26%
|
Yes |
|
Private open space to be adjacent to and visible from the main living area/dining rooms and be accessible |
Complies |
Yes |
|
Private open space and balconies must comply with Part 4E of the ADG |
Complies |
Yes |
|
7. Common Open space |
||
|
Common Open Space to be a minimum of 25% of the site area with a minimum dimension of 5m. |
Communal open space provided is 405sqm (28.4%) with a minimum 5m dimension (ground and rooftop). |
Yes
|
|
A maximum of 50% of common open space may be provided above ground level. |
Roof top communal open space is 200sqm, which equates to approximately 50% of the total common open space |
Yes |
|
At least 50% of the required common open space area is to receive 2 hours of direct sunlight between 9am and 3pm on 21 June. |
Complies |
Yes |
|
A minimum of 50% of the total area of common open space provided at ground level is to comprise unpaved landscape area. |
Complies |
Yes |
|
The useable and trafficable area of any rooftop common open space is to be setback a minimum of 2.5m from the edge of the roof of the floor below with landscape planters to prevent overlooking. |
Complies |
Yes |
|
Roof top open space areas should include equitable access. |
Equitable accesses through lifts and ramps have been provided along with an accessible toilet. |
Yes |
|
Ancillary structures such as lift overruns and staircases should be centralised to reduce their visual dominance. |
Fire stairs and lift over runs are centrally located. |
Yes |
|
8. Solar Access |
||
|
Where the neighbouring properties are affected by overshadowing, at least 50% of the neighbouring existing primary private open space or windows to main living areas must receive a minimum of 3 hours sunlight between 9am–3pm on the winter solstice (21 June) |
The primary private open spaces of the adjoining property to the south east do not receive more than 3 hours sunlight during midwinter. The property is occupied by five townhouses. The private open spaces are a combination of landscaped areas and covered terraces at ground level and are located along the north western and south eastern sides of these dwellings. The setbacks of the dwellings measure approximately 3m from their north western site boundary. Maintaining a minimum of 3 hours solar access to the spaces, which currently do not achieve that minimum as demonstrated on the existing and proposed shadow diagrams submitted by the applicant, is unlikely given the allowable height and density permitted on the site and in the R3 zone in general. |
On merit given site orientation.
|
|
9. Vehicular access, parking and circulation |
||
|
Car parking to be provided in accordance with Part B4 unless objective 3J-1 of the ADG applies. |
Parking complies with the DCP provision in Chapter B4.
30 resident spaces and 4 visitor spaces are proposed.
A condition of consent has been recommended to provide 28 resident spaces and 6 visitor spaces in accordance with the Kogarah DCP parking controls (this is the assessment criteria for the application not the RMS criterion). |
Yes |
|
Car parking layout and vehicular access complies with AS2890.1-2004 |
Complies |
Yes |
|
All residential flat buildings to provide car wash bay |
Can be conditioned in a visitor space. |
Yes |
|
10. Views and view sharing |
||
|
Provide for reasonable sharing of views |
The location does not have significant views. The development generally complies with height requirements and is reasonable in terms of view sharing. |
Yes |
|
11. Dwelling Mix |
||
|
Dwellings that propose more than 20 dwellings are to provide a mix of dwellings as follows: Studio apartments -15% max 1 bed apartments - 30% max 2 bed apartments – 40% min 3 bed apartments – 15% min |
The proposal includes the following unit mix: 2 x 1 bedroom units = 7.1% 25 x 2 bedroom units = 89% 1 x 3 bedroom units = 3.6% |
No - The proposal provides less than the required percentage of 3 Bedroom units, however the unit mix responds to the current market demand in this area. |
|
12. Adaptable and accessible housing |
||
|
21-30 units – 3 adaptable units 28 units proposed – 3 adaptable units required Every adaptable unit needs to have an accessible car space. |
3 adaptable units are proposed.
3 accessible spaces are proposed plus an additional space for visitors.
|
Yes
Yes
|
Section 7.11 Contributions
119. Monetary contributions are required under Section 7.11 of the Environmental Planning and Assessment Act 1979, with respect to the proposed development. These contributions have been calculated appropriately and a suitable condition of consent has been included in the recommendation in this respect:

Figure 9: Calculation of Section 7.11 charges
IMPACTS
Natural Environment
120. The proposed development is unlikely to result in adverse impacts on the natural environment.
Built Environment
121. The proposed development is unlikely to result in adverse impacts on the built environment.
122. In particular, the proposal is consistent with the bulk and scale of both existing and emerging development in both the immediate and broader context.
Social Impacts
123. The development will provide additional housing stock, including five affordable rental housing units, to the area and cater to the needs of families by providing a range of dwelling sizes through a mix of one, two and three bedroom units.
Economic Impacts
124. The development will have a positive short term economic benefit associated with construction employment and minimal adverse economic impacts over the longer term.
Suitability of the site
125. The subject site is inherently suitable for the proposed development having regard to the emerging character of the surrounding locality which features multi-level residential flat buildings and its location in close proximity to public transport options and a wide range of services and facilities.
SUBMISSIONS
126. The application was publicly exhibited in accordance with the public notification provisions in Part A of the Kogarah Development Control Plan 2013. No submissions objecting to the proposal were received.
REFERRALS
Council Referrals
Landscaping
127. No objections were raised to the proposed landscape plan subject to conditions. Those conditions have been incorporated into the recommended conditions.
Stormwater
128. The proposed development drains to Cole Lane and incorporates an on-site detention system located under the paved area of the COS. No objections were raised to the drainage design and stormwater discharge subject to conditions. Those conditions have been incorporated into the recommended conditions.
Health
129. No objections were raised to the acoustic assessment subject to conditions. Those conditions have been incorporated into the recommended conditions.
Waste
130. No objections were raised to the proposal, subject to conditions. Those conditions have been incorporated into the recommended conditions.
Building
131. No objections were raised to the proposal, subject to conditions. Those conditions have been incorporated into the recommended conditions.
Traffic
132. No objections were raised to the proposal, subject to conditions. Those conditions have been incorporated into the recommended conditions.
External Referrals
Department of Infrastructure, Regional Development and Cities
133. The proposed development will penetrate prescribed airspace for Sydney Airport and constitutes the need for a ‘controlled activity’ within the meaning of Division 4 of Part 12 of the Airports Act 1996. The applicant has obtained the necessary approval for the controlled activity.
Ausgrid
134. The DA was referred to Ausgrid on 8 August 2019 in accordance with Clause 45 of State Environmental Planning Policy (Infrastructure) 2007. At the time of writing this report, no response had been received. The DA may be determined in the event that no response has been received from Ausgrid within twenty one (21) days, ie 29 August 2019.
CONCLUSION
135. The proposal has been assessed using the matters for consideration listed in Section 4.15 and 4.16(1) (a) of the Environmental Planning and Assessment Act 1979. Based on this assessment, the proposal is generally considered to be a satisfactory outcome for subject site subject to appropriate conditions.
DETERMINATION AND STATEMENT OF REASONS
Statement of Reasons
· The proposal is an appropriate response to the “up-zoning” of the site (including increased FSR and height limits) afforded by the Kogarah “New City Plan”. The building is consistent with the desired future character of the R3 Medium Density Residential zone and is commensurate with nearby recent Residential Flat Building development.
· The proposed variation to the 15m building height limit will allow for the provision of a high quality area of communal open space on the rooftop and is supported pursuant to Clause 4.6 of KLEP 2012.
· The proposal’s bulk and scale is appropriately contained within a generally compliant building envelope that is respectful of the established character of the area in relation to height, street setback and boundary setbacks.
· The proposal has sufficient façade modulation and wall articulation that will serve to provide visual interest and reduce the bulk of the building.
· The proposal achieves full compliance with the Apartment Design Guide.
Determination
136. THAT Georges River Local Planning Panel support the request for variation under Clause 4.6 of the Kogarah LEP 2012, in relation to the building height control (Clause 4.3).
137. THAT pursuant to Section 4.16(1)(a) of the Environmental Planning and Assessment Act 1979, the Georges River Local Planning Panel grant development consent to Development Application DA2019/0329 for lot consolidation and construction of a four storey residential flat building over basement parking at Lots 36, 37 and 38 in DP 1808 and known as 19-23 Empress Street, Hurstville, subject to the following conditions of consent:
Development Details
1. Approved Plans - The development must be implemented in accordance with the approved plans and supporting documentation listed below which have been endorsed by Council’s approved stamp, except where marked up on the plans and/or amended by conditions of this consent:
|
Description |
Reference No. |
Date |
Revision |
Prepared by |
|
Site Plan |
DA-1000 |
6-5-19 |
C |
Architecture and Building Works |
|
Basement 2 Plan |
DA-1010 |
6-5-19 |
C |
Architecture and Building Works |
|
Basement 1 Plan |
DA-1020 |
6-5-19 |
C |
Architecture and Building Works |
|
Ground Floor Plan |
DA-1030 |
31-7-19 |
C |
Architecture and Building Works |
|
First Floor Plan |
DA-1040 |
31-7-19 |
C |
Architecture and Building Works |
|
Second Floor Plan |
DA-1050 |
31-7-19 |
C |
Architecture and Building Works |
|
Third Floor Plan |
DA-1060 |
31-7-19 |
C |
Architecture and Building Works |
|
Roof Plan |
DA-1070 |
31-7-19 |
C |
Architecture and Building Works |
|
North East Elevation |
DA-1110 |
31-7-19 |
C |
Architecture and Building Works |
|
North West Elevation |
DA-1120 |
31-7-19 |
C |
Architecture and Building Works |
|
South West Elevation |
DA-1130 |
31-7-19 |
C |
Architecture and Building Works |
|
South East Elevation |
DA-1140 |
31-7-19 |
C |
Architecture and Building Works |
|
Section A |
DA-1150 |
31-7-19 |
C |
Architecture and Building Works |
|
Section B |
DA-1160 |
6-5-19 |
B |
Architecture and Building Works |
|
Driveway Section |
DA-1170 |
24-7-19 |
A |
Architecture and Building Works |
|
Adaptability Details |
DA-1500 |
6-5-19 |
B |
Architecture and Building Works |
|
Construction Management Plan |
DA-1900 |
24-7-19 |
B |
Architecture and Building Works |
|
Excavation Area |
DA-2000 |
23-7-19 |
A |
Architecture and Building Works |
|
Landscape Plan |
ISO237DA1 |
2-5-19 |
C |
Ithsmus Landscape Design |
|
Landscape Plan |
ISO237DA2 |
2-5-19 |
C |
Ithsmus Landscape Design |
2. Surrender of development consent - In accordance with the provisions of the Environmental Planning and Assessment Act, 1979 and the Environmental Planning and Assessment Regulation, 2000 (Clause 97), development consent DA2017/0465 must be surrendered.
Separate Approvals Required Under Other Legislation
3. Vehicular Crossing - Major Development - The following vehicular crossing and road frontage works will be required to facilitate access to and from the proposed development site:
(a) Construct a 1.5m wide footpath for the full length of the frontage of the site in Finney Street in accordance with Council’s Specifications applying at the time construction approval is sought.
(b) The thickness and design of the driveway shall be in accordance with Council’s Specifications applying at the time construction approval is sought.
(c) Any existing vehicular crossing and/or laybacks which are redundant must be removed. The kerb and gutter, any other footpath and turf areas shall be restored at the expense of the applicant. The work shall be carried out in accordance with Council’s specification, applying at the time construction approval is sought.
Constructing a vehicular crossing and/or footpath requires separate approval under Section 138 of the Roads Act 1993, prior to the commencement of those works.
4. Building - Hoarding Application Prior to demolition of the buildings on the site, or the commencement of work above ground level, a separate application for the erection of an ‘A class’ (fence type) or a ‘B class’ (overhead type) hoarding or ‘C type’ scaffold, in accordance with the requirements of SafeWork NSW, must be erected along that portion of the footways/roadway where the building is within 3 metres of the street boundary.
An application for this work under Section 68 of the Local Government Act 1993 and the Roads Act 1993 must be submitted for approval to Council.
The following information is to be submitted with a Hoarding Application under Section 68 of the Local Government Act 1993 and Section 138 of the Roads Act 1993:
(a) A site and location plan of the hoarding with detailed elevation, dimensions, setbacks, heights, entry and exit points to/from the site, vehicle access points, location of public utilities, electrical overhead wire protection, site management plan and builders sheds location; and
(b) Hoarding plan and details that are certified by an appropriately qualified engineer; and
(c) The payment to Council of a footpath occupancy fee based on the area of footpath to be occupied and Council's Schedule of Fees and Charges (available on our website) before the commencement of work; and
(d) A Public Risk Insurance Policy with a minimum cover of $10 million in relation to the occupation of and works within Council's road reserve, for the full duration of the proposed works, must be obtained a copy provided to Council. The Policy is to note Council as an interested party; and
(e) The application must be endorsement by the Roads & Maritime Services (RMS) as the hoarding is located within 100m of an intersection with traffic lights. For assistance you should contact the DA unit at RMS and speak to Hans on 88492076. Or email hans.pilly.mootanah@rms.nsw.gov.au to obtain concurrence for the hoarding structure.
5. Below ground anchors - Information to be submitted with S68 Application under LGA 1993 and S138 Application under Roads Act 1993 - In the event that the excavation associated with the basement carpark is to be supported by the use of below ground (cable) anchors that are constructed under Council’s roadways/footways, an application must be lodged with Council under Section 68 of the Local Government Act 1993 and the Roads Act 1993 for approval, prior to commencement of those works. The following details must be submitted.
a) That cable anchors will be stressed released when the building extends above ground level to the satisfaction of Council.
b) The applicant has indemnified Council from all public liability claims arising from the proposed works, and provide adequate insurance cover to the satisfaction of council.
c) Documentary evidence of such insurance cover to the value of $20 million.
d) The applicant must register a non-terminating bank guarantee in favour of Council for the amount of $50,000.
The guarantee will be released when the cables are stress released. In this regard it will be necessary for a certificate to be submitted to Council from a structural engineer at that time verifying that the cables have been stress released.
e) That in the event of any works taking place on Council’s roadways/footways adjoining the property while the anchors are still stressed, all costs associated with overcoming the difficulties caused by the presence of the ‘live’ anchors will be borne by the applicant.
6. Section 138 Roads Act 1993 and Section 68 Local Government Act 1993 - Unless otherwise specified by a condition of this consent, this Development Consent does not give any approval to undertake works on public infrastructure.
Separate approval is required under Section 138 of the Roads Act 1993 and/or Section 68 of the Local Government Act 1993 for any of the following activities carried out in, on or over a public road (including the footpath) listed below.
An application is required to be lodged and approved prior to the commencement of any of the following works or activities;
(a) Placing or storing materials or equipment;
(b) Placing or storing waste containers or skip bins;
(c) Erecting a structure or carrying out work
(d) Swinging or hoisting goods over any part of a public road by means of a lift, crane or the like;
(e) Pumping concrete from a public road;
(f) Pumping water from the site into the public road;
(g) Constructing a vehicular crossing or footpath;
(h) Establishing a “works zone”;
(i) Digging up or disturbing the surface of a public road (eg Opening the road for the purpose of connections to utility providers);
(j) Stormwater and ancillary works in the road reserve;
(k) Stormwater and ancillary to public infrastructure on private land; and
(l) If any excavation is to be supported by the use of below ground (cable) anchors that are constructed under Council’s roadways/footways.
These separate activity approvals must be obtained and evidence of the approval provided to the Certifying Authority prior to the issue of the Construction Certificate.
The relevant Application Forms for these activities can be downloaded from Council’s website www.georgesriver.nsw.gov.au. For further information, please contact Council’s Customer Service Centre on (02) 9330 6400.
7. Road Opening Permit - A Road Opening Permit must be obtained from Council, in the case of local or regional roads, or from the RMS, in the case of State roads, for every opening of a public road reserve to access services including sewer, stormwater drains, water mains, gas mains, and telecommunications before the commencement of work in the road.
Requirements of Concurrence, Integrated & Other Government Authorities
8. General
Terms of Approval - The development shall be carried out in accordance with
the requirements of the General Terms of Approval (GTA) outlined below.
|
Approval Body |
Date of GTA |
|
Airspace Protection |
17 October 2019 |
A copy of the requirements of the approval Authority is attached to this consent.
9. Electricity Supply - An application is required to be made to Ausgrid for a network connection. This may require the network to be extended or its capacity augmented. Evidence of this application being lodged with Ausgrid is required to be provided to the Certifying Authority prior to the issue of a Construction Certificate. For further details, you are advised to contact Ausgrid on 13 13 65 or www.ausgrid.com.au (Business and Commercial Services).
10. Connection to the network will be required prior to the release of any Occupation Certificate - Where works within the road reserve are to be carried out by the developer, a Road Opening Permit must be obtained from Council's Customer Service Centre before commencement of work.
11. Sydney Water - Tap in TM - The approved plans must be submitted to a Sydney Water Tap inTM to determine whether the development application will affect Sydney Water’s sewer and water mains, stormwater drains and/or easements, and if further requirements need to be met. The approved plans will be appropriately endorsed. For details please refer to ‘Plumbing, building and developing’ section of Sydney Water’s web site at www.sydneywater.com.au then see ‘Building’, or telephone 13000 TAP IN (1300 082 746). The Certifying Authority must ensure that a Tap inTM agent has appropriately stamped the plans prior to the issue of the Construction Certificate.
12. Notice of Requirements for a Section 73 Certificate - A Notice of Requirements of what will eventually be required when issuing a Section 73 Compliance Certificate under the Sydney Water Act 1994 must be obtained from Sydney Water Corporation. Application must be made through an authorised Water Servicing Co-ordinator. Please refer to the ‘Plumbing, building and developing’ section of the web site www.sydneywater.com.au then refer to ‘Providers’ under ‘Developing’ or telephone 13 20 92 for assistance.
Following application, a ‘Notice of Requirements’ will advise of water and sewer infrastructure to be built and charges to be paid. Please make early contact with the Co-ordinator, as it can take some time to build water/sewer pipes and this may impact on other services and building, driveway or landscape design.
The Notice of requirements must be submitted prior to the commencement of work. A Section 73 Compliance Certificate will be required at the completion of development in accordance with further conditions.
Prior to the Issue of a Construction Certificate
13. Low reflectivity roof - Roofing materials must be low glare and reflectivity. Details of finished external materials including colours and texture must be provided to the Certifying Authority.
·
14. Pre-Construction Dilapidation Report - Private Land - A professional engineer specialising in structural or geotechnical engineering shall prepare a Pre-Construction Dilapidation Report detailing the current structural condition of all adjoining structures
a) All neighbouring structures by the excavation as determined by the consulting engineer.
The report shall be prepared at the expense of the applicant and submitted to the satisfaction of the Certifying Authority prior to the issue of the Construction Certificate.
A copy of the pre-construction dilapidation report is to be provided to the adjoining properties (subject of the dilapidation report), a minimum of 5 working days prior to the commencement of work. Evidence confirming that a copy of the pre-construction dilapidation report was delivered to the adjoining properties must be provided to the PCA.
Should the owners of properties (or their agents) refuse access to carry out inspections, after being given reasonable written notice, this shall be reported to Council to obtain Council’s agreement to complete the report without access. Reasonable notice is a request for access in no sooner than 14 days between 8.00am-6.00pm.
15. On Site Detention - The submitted stormwater plan prepared by R Squire Pty Ltd dated 6/11/2018 has been assessed as a concept plan only. Final detailed plans of the drainage system shall be prepared by a professional engineer specialising in hydraulic engineering and submitted for approval with the Construction Certificate.
The design must include the computations of the inlet and outlet hydrographs and stage/storage relationships of the proposed OSD using the following design parameters:
(a) peak flow rates from the site are to be restricted to a permissible site discharge (PSD) equivalent to the discharge when assuming the site contained a single dwelling, garage, lawn and garden,
(b) at Annual Recurrence Intervals of 2 years and 100 years.
Refer to Flow Controls in Council's Draft/Adopted Stormwater Drainage Policy. The OSD facility shall be designed to meet all legislated safety requirements and childproof safety fencing around the facility must be provided where the OSD facility is open or above ground when the design peak storage depth is greater than 300mm. A durable metal plate or similar sign is to be placed at the OSD facility and must bear the words:
"BEWARE: This is an on-site detention basin/tank for rainwater which could overflow during heavy storms."
Full details shall accompany the application for the Construction Certificate.
16. Compliance with Flood Study - The development shall be designed to conform to the recommendations and conclusions of the submitted flood study report ‘“Re: Flood Impact Assessment for the development site -19-23 Empress Street, Hurstville” by WMA Water dated 14 September 2017.
This shall include, but not be limited to, any recommendations for the following:
(a) All possible ingress points such as vehicle entrances and exits, ventilation ducts, windows, light wells, lift shaft openings, risers and stairwells to the basement car parking levels are built at or protected up to the 1 in 100 year flood levels as defined in in the report
(b) Recommended flood planning level
(c) Protection of the basement from inundation of surface waters
Evidence from professional engineer that specialises in hydraulic engineering that all design requirements have been adhered to shall be submitted with the Construction Certificate application.
17. Pump-Out System Design for Stormwater Disposal - The design of the pump-out system for stormwater disposal will be permitted for drainage of basement areas only, and must be designed in accordance with the following criteria:
a) The pump system shall consist of two pumps, connected in parallel, with each pump being capable of emptying the holding tank at the rate equal to the rate of inflow for the one-hour duration storm. The holding tank shall be capable of holding one hour’s runoff from a one-hour duration storm of the 1 in 20 year storm;
b) The pump system shall be regularly maintained and serviced, every six (6) months; and
c) Any drainage disposal to the street gutter from a pump system must have a stilling sump provided at the property line, connected to the street gutter by a suitable gravity line.
Details and certification of compliance from a professional engineer specialising in civil engineering shall be provided for approval with the Construction Certificate application.
18. Driveway Construction Plan Details - Detailed engineering plans for the driveway shall be submitted with the Construction Certificate application for approval that show:
a) Longitudinal and cross sections, gradients, access onto the proposed lots, type of construction materials designed in accordance with Council's Subdivision standards and AS/NZS2890.1-2004.
b) Suitable underground provision for the supply of all relevant services to the proposed lots (proposed position of pipes and conduits).
c) The full length of the driveway designed with a minimum 150mm thick reinforced concrete and minimum of 5m wide pavement/kerb face to kerb face width, and a non-slip surface.
19. Council Property Shoring - Prior to the issue of the Construction Certificate, plans and specifications prepared by a professional engineer specialising in practising structural engineering must detail how Council’s property shall be supported at all times.
Where any shoring is to be supporting, or located on Council’s property, certified structural engineering drawings detailing; the extent of the encroachment, the type of shoring and the method of removal, shall be included on the plans. Where the shoring cannot be removed, the plans must detail that the shoring will be cut to 150mm below footpath level and the gap between the shoring and any building shall be filled with a 5MPa lean concrete mix.
20. Fire Safety Measures - Prior to the issue of a construction certificate a list of the essential fire safety measures that are to be provided in relation to the land and any building on the land as a consequence of the building work must accompany an application for a construction certificate, which is required to be submitted to either Council or a PCA. Such list must also specify the minimum standard of performance for each essential fire safety measure included in the list. The Council or PCA will then issue a Fire Safety Schedule for the building.
21. Damage Deposit - Major Works - In order to insure against damage to Council property the following is required:
a) Pay Council, before the issue of the Construction Certificate, a damage deposit for the cost of making good any damage caused to any Council property as a result of the development: $132,944.16
b) Pay Council, before the issue of the Construction Certificate, a non-refundable inspection fee to enable assessment of any damage and repairs where required: $300.00.
c) Submit to Council, before the commencement of work, a dilapidation report of the condition of the Council nature strip, footpath and driveway crossing, or any area likely to be affected by the proposal.
At the completion of work Council will review the dilapidation report and the Works-As-Executed Drawings (if applicable) and inspect the public works.
The damage deposit will be refunded in full upon completion of work where no damage occurs and where Council is satisfied with the completion of works. Alternatively, the damage deposit will be forfeited or partly refunded based on the damage incurred.
22. Access for Persons with a Disability - Access for persons with disabilities must be provided direct to the site, including to the foyer, carpark and to sanitary facilities in accordance with the requirements of the Premises Standards, the Building Code of Australia and AS 1428.1. Details must be submitted with the Construction Certificate Application.
In regards to the above, pedestrian access throughout basement levels shall be highlighted/line marked and sign posted to safeguard egress.
In the event that full compliance cannot be achieved the services of an accredited access consultant is to be obtained to determine alternative methods of compliance, such a report must be submitted to and endorsed by the Certifying Authority prior to issue of the Construction Certificate.
23. Slip Resistance - All pedestrian surfaces in areas such as foyers, public corridors, common areas and stairs as well as floor surfaces in the wet rooms in any residential units must have slip resistance classifications, as determined using test methods in either wet or dry conditions, appropriate to their gradient and exposure to wetting. The classifications of the new pedestrian surface materials, in wet or dry conditions, must comply with AS/NZS4586:2004 - Slip Resistance Classifications of New Pedestrian Materials and must be detailed on the plans lodged with the application for the Construction Certificate.
24. Geotechnical report - The applicant must submit a Geotechnical Report, prepared by a suitably qualified Geotechnical Engineer who holds the relevant Certificate of accreditation as required under the Building Professionals Act 2005 in relation to dilapidation reports, all site works and construction. This is to be submitted before the issue of the Construction Certificate and is to include:
(a) Investigations certifying the stability of the site and specifying the design constraints to be placed on the foundation, any earthworks/stabilization works and any excavations.
(b) Dilapidation Reports on the adjoining properties prior to any excavation of site works. The Dilapidation Report is to include assessments on, but not limited to, the dwellings at those addresses and any external paths, grounds etc. This must be submitted to the Certifying Authority and the adjoining residents as part of the application for the Construction Certificate. Adjoining residents are to be provided with the report five (5) working days prior to any works on the site.
(c) On-site guidance by a vibration specialist during the early part of excavation.
(d) Rock breaking techniques. Rock excavation is to be carried out with tools such as rock saws which reduce vibration to adjoining buildings and associated structures.
(e) Sides of the excavation are to be piered prior to any excavation occurring to reinforce the walls of the excavation to prevent any subsidence to the required setbacks and neighbouring sites.
25. Vibration Damage - To minimise vibration damage and loss of support to the buildings in close proximity to the development, any excavation is to be carried out by means of a rock saw and if available, in accordance with the guidelines of the Geotechnical Engineer’s report.
Alternatively where a hydraulic hammer is to be used within 30 metres of any building (other than a path or a fence) a report from a qualified geotechnical engineer detailing the maximum size of hammer to be used is to be obtained and the recommendations in that report implemented during work on the site. The report shall be submitted with the Construction Certificate application.
26. Contamination of Land - Reference is made to the Preliminary Site Investigation report issued by STS Geo Environmental Pty Ltd on July 2019, Report No:19/1661 - Project No: 22543/2173D-E - as per Section 22. Conclusions and recommendations - Unexpected Finds Protocol (UFP) report to be submitted to Council Prior to the issue of the construction certificate.
27. Construction Traffic Management Plan - A Construction Traffic Management Plan detailing:
(a) construction vehicle routes;
(b) anticipated number of trucks per day;
(c) hours of construction;
(d) Access arrangements; and
(e) Proposed traffic measures to minimise impacts of construction vehicles
must be submitted for the approval of Council’s Engineers. Council’s Engineers must specify in writing that they are satisfied with the Traffic Management Plan prior to the issue of the Construction Certificate.
28. An updated Flood Impact Assessment is to be prepared - The assessment is to include:
a) the required distance between the wall adjacent to the eastern most corner of the building and the south east boundary of the site to allow for the modelled flow conveyance along the south east boundary of the site.
b) the extent and design details along all property boundaries of the site to allow for the design overland flow paths entering and exiting the site, including locations where impermeable walls or fencing are not to be installed.
c) the assessment is to be amended as necessary for the approved proposal
d) detail of any design measures the flood consultant determines necessary to prevent floodwater entering the building including at the main entry to the ground floor of the building from Empress Street, and at the stairwell entry to the basement at the eastern corner of the building.
e) Detail that all openings including ventilation ducts windows, light wells, lift shaft openings, risers and stairwells to the basement car parking levels are built at or protected up to the 1 in 100 year flood level.
The architectural plans are to be revised to include all design requirements stated in the updated Flood Impact Assessment.
29. Acoustic Requirements - An Acoustic Report prepared by a suitably qualified acoustic consultant is required to be lodged to council prior to the issue of the construction certificate.
The report to demonstrate that, the proposed use of the premises and the operation of all plant and equipment shall not give rise to an ‘offensive noise’ as defined in the Protection of the Environment Operations Act 1997 (as amended) and Regulations.
An Acoustic Report shall be prepared by a suitably qualified acoustic consultant demonstrating that the operation of the premises and plant equipment shall not give rise to a sound pressure level at any affected premises that exceeds the background LA90, 15 min noise level, measured in the absence of the noise sources under consideration by more than 5dB. The source noise level shall be assessed as an LAeq, 15 min in accordance with the NSW Environment Protection Authority’s Noise Policy for Industry.
30. SEPP 65 Design Verification Statement - A design verification statement, prepared by a qualified designer, shall be submitted to the Certifying Authority verifying that the plans and specifications achieve or improve the design quality of the development for which development consent was granted, having regard to the design quality principles set out under Schedule 1 of State Environmental Planning Policy No 65 -Design Quality of Residential Flat Development.
31. Waste Storage - Residential and Mixed Use Developments - The plans shall include details of the waste storage area. The waste storage area shall not be visible from the street. The waste storage area shall be located within the lot/building in accordance with the approved plans.
The waste storage area shall be large enough to accommodate the required number of bins for the development and located in an area to suitably facilitate servicing on waste collection day.
The path to the bin room is to be at least 1.0 metres wide and kept clear and unobstructed at all times.
Residential Waste
The development will require the provision of the following waste and recycling facilities:
The development will require thirteen (13) garbage bins and thirteen (13) recycling bins collected once a week.
The bins must be taken to Empress Street for collection.
The waste room will contain the following to minimise odours, deter vermin, protect surrounding areas, and make it a user-friendly and safe area:
· waste room floor to be sealed;
· waste room walls and floor surface is flat and even;
· all walls painted with light colour and washable paint;
· equipment electric outlets to be installed 1700mm above floor levels;
· The bin storage rooms will be mechanically exhausted as required by AS 1668.2;
· light switch installed at height of 1.6m;
· waste rooms must be well lit (sensor lighting recommended);
· optional automatic odour and pest control system installed to eliminate all pest
· types and assist with odour reduction - this process generally takes place at
· building handover - building management make the decision to install;
· all personnel doors are hinged and self-closing;
· waste collection area must hold all bins - bin movements should be with ease of access;
· conform to the Building Code of Australia, Australian Standards and local laws; and childproofing and public/operator safety shall be assessed and ensured.
· Occupational Health and Safety issues such as slippery floors in waste rooms and the weight of the waste and recycling receptacles will need to be monitored.
· Cleaners will monitor the bin storage area and all spills will be attended to immediately by cleaners.
32. Design Quality Excellence (Major Development) -
(a) In order to ensure the design quality excellence of the development is retained:
i. The design architect is to have direct involvement in the design documentation, contract documentation and construct stages of the project;
ii. The design architect is to have full access to the site and is to be authorised by the applicant to respond directly to the consent authority where information or clarification is required in the resolution of the design issues throughout the life of the project;
iii. Evidence of the design architect’s commission is to be provided to the Council prior to release of the Construction Certificate.
(b) The design architect of the project is not to be changed without prior notice and approval of the Council.
33. Use of rooftop open space - A Plan of Management (POM) for use of rooftop open space must be submitted for approval of Council. The POM must outline the:
· hours of use of the rooftop deck which shall be restricted from 8am until 10pm;
· maximum number of users at any one time shall be specified (for this development a maximum of 30 is recommended);
· Outline provisions to maximise the safety (fire safety and general safety) for users of this area.
· No amplified music to be played;
· Identify other measures to ensure that the amenity and safety of persons within the development and in nearby existing and future development is maintained.
· Location and type of signage to be installed in the building to notify residents and visitors in respect to the use of this space.
· The approved POM shall be incorporated into the Owners Corporation by-laws in any future Strata subdivision and a sign in the front entry of the building shall be included to ensure the use of this space is monitored and understood by all occupants.
The POM shall be prepared and shall be to the satisfaction of Council’s Manager of Building and Development.
34. Fees to be paid - The fees listed in the table below must be paid in accordance with the conditions of this consent and Council’s adopted Fees and Charges applicable at the time of payment (available at www.georgesriver.nsw.gov.au).
Payments must be made prior to the issue of the Construction Certificate or prior to the commencement of work (if there is no associated Construction Certificate).
Please contact Council prior to the payment of Section 7.11 Contributions to determine whether the amounts have been indexed from that indicated below in this consent and the form of payment that will be accepted by Council.
Council will only accept Bank Cheque or Electronic Funds Transfer (EFT) for transaction values of $500,000 or over. Council must be contacted prior to payment to determine correct total amount to be paid and bank account details (if applicable).
A summary of the fees to be paid are listed below:
|
Fee Type |
Fee |
|
GENERAL FEES |
|
|
Long Service Levy (to Long Service Corporation) Or, provide evidence of Payment direct to the Long Service Corporation. See https://portal.longservice.nsw.gov.au/bci/levy/ |
|
|
Builders Damage Deposit |
$132,944.16 |
|
Inspection Fee for Refund of Damage Deposit |
$300.00 |
|
Driveway and Restoration Works Design Inspection Fee (Multi-unit Development) |
$360.00 |
|
DEVELOPMENT CONTRIBUTIONS |
|
|
Kogarah Section 94 Development Contributions Plan No.1 - Roads and Traffic Management - Residential |
$2,521.22 |
|
Kogarah Section 94 Development Contributions Plan No.5 - Open Space 2007 |
$265,459.74 |
|
Kogarah Section 94 Development Contributions Plan No.9 - Kogarah Libraries - Buildings |
$7,218.80 |
|
Kogarah Section 94 Development Contributions Plan No.9 - Kogarah Libraries - Books |
$5,147.02 |
|
Total Contributions |
$280,346.78 |
General Fees
The fees and charges above are subject to change and are as set out in the version of Council's Schedule of Fees and Charges or as required by other Government Authorities, applicable at the time of payment.
Development Contributions
The Section 7.11 contribution is imposed to ensure that the development makes adequate provision for the demand it generates for public amenities and public services within the area.
Indexation
The above contributions will be adjusted at the time of payment to reflect changes in the cost of delivering public amenities and public services, in accordance with the indices provided by the relevant Section 94 Development Contributions Plan.
Timing of Payment
The contribution must be paid and receipted by Council prior to the release of the Construction Certificate.
Further Information
A copy of the all current Development Contributions Plans may be inspected or a copy purchased at Council’s offices (Georges River Civic Centre, MacMahon Street, Hurstville and Kogarah Library and Service Centre, Kogarah Town Square, Belgrave Street, Kogarah) or viewed on Council’s website www.georgesriver.nsw.gov.au.
35. Site Management Plan - Major Development - A Site Management Plan must be submitted with the application for a Construction Certificate, and include the following:
a) location of protective site fencing;
b) location of site storage areas/sheds/equipment;
c) location of building materials for construction, e.g. stockpiles
d) provisions for public safety;
e) dust control measures;
f) method used to provide site access location and materials used;
g) details of methods of disposal of demolition materials;
h) method used to provide protective measures for tree preservation;
i) provisions for temporary sanitary facilities;
j) location and size of waste containers/skip bins;
k) details of proposed sediment and erosion control measures;
l) method used to provide construction noise and vibration management;
m) construction and demolition traffic management details.
The site management measures are to be implemented prior to the commencement of any works including demolition and excavation. The site management measures are to be maintained throughout the works, to maintain reasonable levels of public health, safety and amenity. A copy of the Site Management Plan must be kept on site and is to be made available upon request.
36. BASIX Commitments - All energy efficiency measures as detailed in the BASIX Certificate No. 857762M_02 must be implemented on the plans lodged with the application for the Construction Certificate.
37. Required design changes - The following changes are required to be made and shown on the Construction Certificate plans:
|
Amendments to architectural plans |
The architectural plans are to clearly detail that the full width of the driveway entrance is to reach a minimum level of RL 49.4m AHD as per the requirements of the Flood Impact Assessment to prevent flood water to enter the basement levels. |
|
Rooftop Communal Open Space |
BBQ facilities are to be provided in the rooftop communal open space kitchen area. |
|
Hydrant Booster |
The hydrant booster is to be relocated to the Finney Street frontage. |
|
Allocation of car parking spaces |
Parking spaces are to be allocated and sign posted as follows: 28 x resident spaces 6 x visitor spaces |
38. Erosion and Sedimentation Control - Erosion and sediment controls must be provided to ensure:
(a) Compliance with the approved Erosion and Sediment Control Plan
(b) Removal or disturbance of vegetation and top soil is confined to within 3m of the approved building area (no trees to be removed without approval)
(c) All clean water runoff is diverted around cleared or exposed areas
(d) Silt fences, stabilised entry/exit points or other devices are installed to prevent sediment from entering drainage systems or waterways
(e) All erosion and sediment controls are fully maintained for the duration of demolition, excavation and/or development works
(f) Controls are put into place to prevent tracking of sediment by vehicles onto adjoining roadway
(g) All disturbed areas are rendered erosion-resistant by turfing, mulching, paving or similar
(h) Compliance with Managing Urban Stormwater - Soils and Construction (Blue Book) produced by Landcom 2004.
These measures are to be implemented prior to the commencement of work (including demolition and excavation) and must remain until works are completed and all exposed surfaces are landscaped/sealed.
39. Stormwater System - The submitted stormwater plan has been assessed as a concept plan only. Final detailed plans of the drainage system, prepared by a professional engineer specialising in hydraulic engineering, shall be submitted for approval with the Construction Certificate.
All stormwater shall drain by gravity to Council's kerb and gutter directly into Cole Lane in accordance with the Australian/New Zealand Standard AS/NZS 3500.3: 2015 (as amended).
40. Stormwater Drainage Plan Details - Stormwater drainage plans including pipe sizes, type, grade, length, invert levels, dimensions and types of drainage pits prepared by a professional engineering specialising in hydraulic engineering shall be submitted with the Construction Certificate application.
These plans shall be prepared in accordance with the Australian Institute of Engineers Australian Rainfall and Runoff (1987) and Council's Hurstville Development Control Plan 1 which includes Appendix 2.
41. Stormwater Systems with Basement - The underground basement car park must pump to and all other stormwater must drain by gravity to the street gutter.
The design of the proposed drainage system must be prepared by a professional engineer who specialises in hydraulic engineering and be submitted for approval with the Construction Certificate application.
42. Structural details - Engineer's details prepared by a practising Structural Engineer being used to construct all reinforced concrete work, structural beams, columns and other structural members. The details are to be submitted to the Principal Certifying Authority for approval prior to construction of the specified works.
A copy shall be forwarded to Council where Council is not the PCA.
43. Traffic Management - Compliance with AS2890 - All driveways, access ramps, vehicular crossings and car parking spaces shall be designed and constructed in accordance with the current version of Australian Standards, AS 2890.1 (for car parking facilities) and AS 2890.2 (for commercial vehicle facilities).
44. Waste Management Plan - A Waste Management Plan incorporating all requirements in respect of the provision of waste storage facilities, removal of all materials from the site that are the result of site clearing, extraction, and, or demolition works and the designated Waste Management Facility shall be submitted to the Certifying Authority prior to the issue of any Construction Certificate.
45. Landscape Plans - All landscape works shall be carried out in accordance with the approved landscape plans and specifications, drawn by Isthmus Landscape Design, Ref No IS0237DAI, Issue C, sheet 1 /2 and Deep Soil Planting Calculations, DA-1800 and dated 2/5/19. The landscaping shall be maintained in accordance with the approved plans in perpetuity, subject to the following -
a) The proposed thirty (30) trees at 45 litre and all plant species, pot/ bag size and quantities of plants shall be in accordance with the proposed plant schedule upon the landscape plan. If plant species, pot/ bag size and quantities cannot be sourced, Council shall be contacted for alternatives.
b) All trees proposed upon the approved landscape plan shall comply with AS 2303 - 2018, Tree Stock for Landscape use and NATSPEC Specifying Trees: a guide to assessment of tree quality (2003), and be planted and maintained in accordance with Councils standard specification.
c) If the planted thirty (30) trees and plants are found to be faulty, damaged, dying or dead within twelve (12) months of planting then they must be replaced with the same species. If the trees are found dead before they reach a height where they are protected by Councils Tree Management Controls, they must be replaced with the same species and pot/bag size.
d) A certificate of compliance for the planting of all thirty (30) trees and all shrubs proposed for the site. An AQF 5 Horticulturist shall be engaged and in writing certify that all trees have been planted as per landscape plan and specifications and forwarded to the PCA - Principal Certifying Authority.
46. Tree Protection and Retention - The following trees shall be retained and protected:
|
Tree Species |
Location of Tree / Tree No. |
Tree Protection Zone (metres) Fencing distance from trunk |
|
Cupressus Spp |
Within front corner of 25 Empress St |
6.0 metres radially out from its trunk |
|
Tristaniopsis laurina x 2 |
Councils street tree within Finney St |
3.0 metres radially out from its trunk |
Details of the trees to be retained must be included on the Construction Certificate plans.
- The client shall engage a qualified Arborist who holds an AQF Level 5 or above in Arboriculture and who is a current practicing and financial member of an Arboricultural Association or Affiliation.
- A certificate of compliance letter for tree protection measures shall be completed and forwarded to the PCA - Principal Certifying Authority, before works, during works and once all building works have been completed, that tree protection measures have been installed and maintained during the building process.
General Tree Protection Measures
(a) All trees on Council property, subject site and adjacent sites, to be retained shall be protected before and maintained during demolition, excavation and construction of the site.
(b) The tree protection measures must be in undertaken in accordance AS4970 -2009 Protection of trees on development sites.
(c) Details of the tree protection measures to be implemented must be provided with the application for a Construction Certificate by a qualified Arborist who holds an AQF Level 5 or above in Arboriculture and who is a current practicing and financial member of an Arboricultural Association or Affiliation.
(d) The Project Arborist must be present on-site during the stages of excavation, demolition and construction when works are being undertaken that could impact on the tree canopy or root zone within the tree protection zone of each tree.
(e) Unless otherwise specified in AS 4970-2009 Protection of trees on development sites, a protective fence consisting of 2.4 x 1.8 metres high, fully supported chainmesh fence shall be used. The distance of the fence from the base of each tree is to be in accordance with the TPZ listed in the table above. A layer of organic mulch 100 millimetres thick shall be placed over the protected area and no soil or fill should be placed within the protection area.
(f) The Tree Protection Zone of each tree, to be protected, shall be watered thoroughly and regularly to minimise the effects of construction works.
(g) No building products/ materials or services shall be installed within the TPZ of the tree/s unless approved by Council. This fence shall be kept in place during demolition, construction and also have a sign displaying ‘Tree Protection Zone - DO NOT ENTER’ attached to the fence and must also include the name and contact details of the Project Arborist.
Excavation works near tree to be retained
(h) Excavations around the trees to be retained on site or the adjoining properties shall be supervised by the Project Arborist to ensure that the root system will not adversely be affected.
(i) Where the Tree Protection Zone (TPZ) of trees on site or adjoining sites become compromised by any excavation works, the Project arborist shall be consulted to establish the position of any major roots and determine the necessary measures to protect these roots. The recommendations of the Arborist shall be submitted to Council prior to any further demolition or construction works taking place.
(j) Tree Protection Zone around the trees to be retained are not to have soil level changes, building product / materials stored or services installed in this area. Any structures proposed to be built in this area of the trees are to utilise pier and beam or cantilevered slab construction.
Details satisfying this condition shall be shown on the Construction Certificate plans.
Street Tree planting by Council
(k) Six (6) street trees of species to be determined must be provided in the road reserve fronting the site of Finney Street and Empress Street.
(l) Council shall be appointed to plant all trees on public land. All costs associated with the planting of trees shall be met by the applicant.
(m) The fee payable is to ensure that the development makes adequate provision for the demand it generates for public amenities and public services within the area.
(n) The fees payable will be adjusted at the time of payment to reflect changes in the cost of delivering public amenities and public services, in accordance with the indices provided by the relevant conditions set out in this consent.
A copy of the Hurstville City Council’s Tree Removal and Pruning Guidelines and Kogarah City Council, Street Tree Management Strategy, Masterplan, and Tree Management Policy 2019, can be downloaded from Council’s website www.georgesriver.nsw.gov.au.
Prior to the Commencement of Work (Including Demolition & Excavation)
47. Dilapidation Report on Public Land - Prior to the commencement of works (including demolition and excavation), a dilapidation report must be prepared for the Council infrastructure adjoining the development site. The report must include the following:
a) Photographs showing the existing condition of the road pavement fronting the site,
b) Photographs showing the existing condition of the kerb and gutter fronting the site,
c) Photographs showing the existing condition of the footpath pavement fronting the site,
d) Photographs showing the existing condition of any retaining walls within the footway or road, and
e) Closed circuit television/video inspection (in DVD format) of public stormwater drainage systems fronting, adjoining or within the site, and
f) The full name and signature of the structural engineer.
g) The Dilapidation Report must be prepared by a qualified structural engineer. The report must be provided to the PCA and a copy provided to the Council.
The Dilapidation Report must be prepared by a professional engineer. The report must be provided to the PCA and a copy provided to the Council.
The report is to be supplied in electronic format in Word or PDF. Photographs are to be in colour, digital and date stamped.
Note: Council will use this report to determine whether to refund the damage deposit after the completion of works.
48. Structural Engineers Details - Supporting Council road/footway - Prior to the commencement of work in connection with the excavation of the site associated with the basement carpark, structural engineer’s details relating to the method of supporting Council’s roadways/footways must be submitted to the satisfaction of Council.
49. Contamination of land - Any new information that comes to light during demolition or construction which has the potential to alter previous conclusions about site contamination and remediation must be notified to Council and the accredited certifier and all works on site must cease immediately.
A detailed site contamination investigation shall be carried out by a certified contaminated land consultant in accordance with the requirements of the relevant NSW EPA Guidelines approved under the Contaminated Land Management Act 1997 including the EPA Guidelines for Consultants Reporting on contaminated sites and shall certify the suitability of the site for the proposed development. A copy of the detailed site contamination report must be submitted to Council for review.
Should the detailed site contamination report find that contamination makes the land unsuitable for the proposed development and remediation is required, a Remedial Action Plan must be submitted to Council as per required under State Environmental Planning Policy No 55 - Remediation of Land.
Works associated with the development must not commence until such time a validation report prepared by the certified contaminated land consultant verifying that the land is suitable to be used for this development consent is submitted to Council.
Should the recommendation in the detailed site contamination report recommend monitoring of the site, then a monitoring program is to be submitted to Council for assessment and approval prior to any recommencement of works.
50. Dial before your dig - The applicant shall contact “Dial Before You Dig on 1100” to obtain a Service Diagram prior to the issuing of the Construction Certificate. The sequence number obtained from “Dial Before You Dig” shall be forwarded to the Principal Certifying Authority (PCA) and Council for their records.
51. Registered Surveyors Report - During Development Work - A report must be submitted to the PCA at each of the following applicable stages of construction:
a) Set out before commencing excavation.
b) Floor slabs or foundation wall, before formwork or commencing brickwork.
c) Completion of Foundation Walls - Before any construction of flooring, detailing the location of the structure relative to adjacent boundaries and floor levels relative to the datum shown on the approved plans.
d) Completion of Floor Slab Formwork - Before pouring of concrete/walls construction, detailing the location of the structure relative to adjacent boundaries and floor levels relative to the datum shown on the approved plans. In multi-storey buildings a further survey must be provided at each subsequent storey.
e) Completion of any Pool Formwork - Before concreting of pool shell, detailing the location of the pool relative to the adjacent boundaries and its height relative to the datum shown on the approved plans.
f) Completion of any Roof Framing - Before roof covered detailing eaves/gutter setback from boundaries.
g) Completion of all Work - Detailing the location of the structure (including eaves/gutters) relative to adjacent boundaries and its height relative to the datum shown on the approved plans. A final Check Survey must indicate the reduced level of the main ridge.
Work must not proceed beyond each stage until the PCA is satisfied that the height and location of the building is proceeding in accordance with the approved plans.
52. Utility Arrangements - Arrangements are to be made with utility authorities in respect to the services supplied by those authorities to the development. The cost associated with the provision or adjustment of services within the road and footway areas is to be at the applicant’s expense.
During Construction
53. Building Materials - Flood Prone Land - All building materials used to construct the proposed building must be constructed using flood proof materials up to the Flood Plan Level and this must be specified by the manufacturer. All electrical services must also be located above this level. The applicant should refer to the NSW Government Public -Reducing Vulnerability of Buildings to Flood Damage Guidance on Building in Flood Prone Areas <http://www.ses.nsw.gov.au/content/documents/pdf/resources/Building_Guidelines.pdf>, Chapter 4.3’.
54. Structural Certificate during Construction - The proposed building must be constructed in accordance with details designed and certified by the practising qualified structural engineer. All structural works associated with the foundations, piers, footings and slabs for the proposed building must be inspected and structurally certified for compliance by an independent practising geotechnical and structural engineer. In addition a Compliance or Structural Certificate, to the effect that the building works have been carried out in accordance with the structural design, must be submitted to the Certifying Authority at each stage of Construction or prior to the issue of the Occupation Certificate.
55. Site sign - Soil & Erosion Control Measures - Prior to the commencement of works (including demolition and excavation), a durable site sign, issued by Council in conjunction with this consent, must be erected in a prominent location on site. The site sign warns of the penalties which apply to pollution, storing materials on road or footpath and breaches of the conditions relating to erosion and sediment controls. The sign must remain in a prominent location on site up until the completion of all site and building works.
56. Hours of construction for demolition and building work - Any work activity or activity associated with the development consent that requires the use of any tools (including hand tools) or any power operated plant and machinery that creates noise on or adjacent to the site shall not be performed, or permitted to be performed, except between the hours of 7.00 am to 5.00 pm, Monday to Saturday inclusive. No work or ancillary activity is permitted on Sundays, or Public Holidays.
Note: A penalty infringement notice may be issued for any offence.
57. Ground levels and retaining walls - The ground levels of the site shall not be excavated, raised or filled, or retaining walls constructed on the allotment boundary, except where indicated on approved plans or approved by Council.
58. Cost of work to be borne by the applicant - The applicant shall bear the cost of all works associated with the construction of the development that occurs on Council property. Care must be taken to protect Council's roads, including the made footway, kerbs, etc., and, where plant and vehicles enter the site, the footway shall be protected against damage by deep-sectioned timber members laid crosswise, held together by hoop iron straps and chamfered at their ends. This construction shall be maintained in a state of good repair and condition throughout the course of construction.
59. Obstruction of Road or Footpath - The use of the road or footpath for the storage of any building materials, waste materials, temporary toilets, waste or skip bins, or any other matter is not permitted unless separately approved by Council under Section 138 of the Roads Act 1993 and/or under Section 68 of the Local Government Act 1993. Penalty infringement Notices may be issued for any offences and severe penalties apply.
60. Waste Management Facility - All materials removed from the site as a result of demolition, site clearing, site preparation and, or excavation shall be disposed of at a suitable Waste Management Facility. No vegetation, article, building material, waste or the like shall be ignited or burnt.
Copies of all receipts for the disposal, or processing of all such materials shall be submitted to the PCA and Council, where Council is not the Principal Certifying Authority.
Prior to the issue of the Occupation Certificate
61. Section 73 Compliance Certificate - A Section 73 Compliance Certificate under the Sydney Water Act 1994 must be submitted to the PCA prior to the issue of the Occupation Certificate.
62. Major Development - Internal driveways and parking spaces are to be adequately paved with concrete or bitumen, or interlocking pavers to provide a dust-free surface. All car parking spaces are to be line marked in accordance with AS1742, ‘Australian Standard Manual of Uniform Traffic Control Devices’ and the relevant guidelines published by the RMS.
63. SEPP 65 Design Verification Statement - The PCA must not issue an Occupation Certificate to authorise a person to commence occupation of the residential flat development unless the PCA has received a design verification from a qualified designer, being a statement in which the qualified designer verifies that the residential flat development achieves the design quality of the development as shown in the plans and specifications in respect of which the construction certificate was issued, having regard to the design quality principles set out in Part 2 of State Environmental Planning Policy No 65Design Quality of Residential Flat Development.
64. Flood Impact Assessment - Prior to the issue of the Occupation Certificate the flood consultant is to provide certification that the building and the design overland flow paths through the site have been provided in accordance with the requirements of the Flood Impact Assessment.
65. Restriction to User and Positive Covenant for On-Site Detention Facility - A Restriction on Use of the Land and Positive Covenant shall be created and registered on the title of the property, which places the responsibility for the maintenance of the on-site stormwater management system on the owners of the land. The terms of the instrument are to be in accordance with Council’s standard terms and restrictions which are as follows;
Restrictions on Use of Land
The registered proprietor shall not make or permit or suffer the making of any alterations to any on-site stormwater management system which is, or shall be, constructed on the lot(s) burdened without the prior consent in writing of Georges River Council. The expression “on-site stormwater management system” shall include all ancillary gutters, pipes, drains, walls, kerbs, pits, grates, tanks, chambers, basins and surfaces designed to manage stormwater quantity or quality including the temporary detention or permanent retention of stormwater storages. Any on-site stormwater management system constructed on the lot(s) burdened is hereafter referred to as “the system.
Name of Authority having the power to release, vary or modify the Restriction referred to is Georges River Council.”
Positive Covenants
1. The registered proprietor of the lot(s) hereby burdened will in respect of the system:
a) keep the system clean and free from silt, rubbish and debris
b) maintain and repair at the sole expense of the registered proprietors the whole of the system so that if functions in a safe and efficient manner
c) permit the Council or its authorised agents from time to time and upon giving reasonable notice (but at any time and without notice in the case of an emergency) to enter and inspect the land for the compliance with the requirements of this covenant
d) comply with the terms of any written notice issued by the Council in respect of the requirements of this covenant within the time stated in the notice.
2. Pursuant to Section 88F(3) of the Conveyancing Act 1919 the Council shall have the following additional powers:
a) in the event that the registered proprietor fails to comply with the terms of any written notice issued by the Council as set out above the Council or its authorised agents may enter the land with all necessary materials and equipment and carry out any work which the Council in its discretion considers reasonable to comply with the said notice referred to in part 1(d) above
b) the Council may recover from the registered proprietor in a Court of competent jurisdiction:
i. any expense reasonably incurred by it in exercising its powers under subparagraph (i) hereof. Such expense shall include reasonable wages for the Council’s employees engaged in effecting the work referred to in (i) above, supervising and administering the said work together with costs, reasonably estimated by the Council, for the use of materials, machinery, tools and equipment in conjunction with the said work.
ii. legal costs on an indemnity basis for issue of the said notices and recovery of the said costs and expenses together with the costs and expenses of registration of a covenant charge pursuant to section 88F of the Act or providing any certificate required pursuant to section 88G of the Act or obtaining any injunction pursuant to section 88H of the Act. Name of Authority having the power to release vary or modify the Positive Covenant referred to is Georges River Council.
66. Maintenance Schedule - On-site Stormwater Management - A Maintenance Schedule for the proposed on-site stormwater management measures is to be prepared and submitted to Council. The Maintenance Schedule shall outline the required maintenance works, how and when these will be done and who will be carrying out these maintenance works.
67. Works as Executed and Certification of Stormwater works - Prior to the issue of an Occupation Certificate, the PCA must ensure that the stormwater drainage system has been constructed in accordance with the approved design and relevant Australian Standards. A works-as-executed drainage plan and certification must be forwarded to the PCA and Council, from a professional engineer specialising in hydraulic engineering.
This Plan and Certification shall confirm that the design and construction of the stormwater drainage system satisfies the conditions of development consent and the Construction Certificate stormwater design details approved by the PCA.
The works-as-executed drainage plan must be prepared by a professional engineer specialising in hydraulic engineering in conjunction with a Registered Surveyor and must include the following details (as applicable):
(a) The location of any detention basin/s with finished surface levels;
(b) Finished site contours at 0.2 metre intervals (if applicable)
(c) Volume of storage available in any detention areas;
(d) The location, diameter, gradient and material (i.e. PVC, RC etc.) of all stormwater pipes;
(e) The orifice size/s (if applicable);
(f) Details of any infiltration/absorption systems; and (if applicable);
(g) Details of any pumping systems installed (including wet well volumes) (if applicable).
68. Consolidation of Site - The site shall be consolidated into one allotment and by a Plan of Consolidation being prepared by a Registered Surveyor. This Plan shall be registered at the NSW Land and Property Information prior to the issue of a final occupation certificate.
69. Requirements prior to the issue of the Occupation Certificate - The following shall be completed and or submitted to the PCA prior to the issue of the Occupation Certificate:
(a) All the stormwater/drainage works shall be completed in accordance with the approved Construction Certificate plans prior to the issue of the Occupation Certificate.
(b) The internal driveway construction works, together with the provision for all services (conduits and pipes laid) shall be completed in accordance with the approved Construction Certificate plans prior to the issue of the Occupation Certificate.
(c) Construct new vehicle crossing.
(d) Replace all redundant vehicle crossing laybacks with kerb and guttering, and replace redundant concrete with turf.
(e) A Section 73 (Sydney Water) Compliance Certificate for the Subdivision shall be issued and submitted to the PCA prior to the issue of the Occupation Certificate.
(f) Work as Executed Plans prepared by a Chartered Professional Engineer or a Registered Surveyor when all the site engineering works are complete shall be submitted to the PCA prior to the issue of the Occupation Certificate.
(g) Council must advise in writing that they are satisfied with the Works-As-Executed prior to the issue of an Occupation Certificate.
70. Vehicular crossing & Frontage work - Major development - The following road frontage works shall be constructed in accordance with specifications issued under the ‘Application for Driveway Crossing and Associated Works on Council Road Reserve’ approval issued by Council’s Assets and Infrastructure Division:
(a) Construct a 1.5m wide footpath for the full length of the frontage of the site in Finney Street in accordance with Council’s Specifications for footpaths.
(b) Construct the driveway crossing in accordance with Council’s specifications for vehicular crossings.
(c) Any existing vehicular crossing and/or laybacks which are redundant must be removed. The kerb and gutter, any other footpath and turf areas shall be restored at the expense of the applicant and in accordance with Council’s Specification for Driveway Crossings and Associated Works.
A private contractor shall carry out the above work, at the expense of the applicant and in accordance with Council’s Specification for Driveway Crossings and Associated Works.
The driveway and road frontage works are to be completed before the issue of the Occupation Certificate.
71. Completion of Major Works - Prior to the issue of a Final Occupation Certificate, the following works must be completed at the applicant’s expense to the satisfaction of Council’s Engineering Services section:
(a) Stormwater pipes, pits and connections to public stormwater systems within the road related area;
(b) Driveways and vehicular crossings within the road related area;
(c) Removal of redundant driveways and vehicular crossings;
(d) New footpaths within the road related area;
(e) Relocation of existing power/light pole
(f) Relocation/provision of street signs
(g) New or replacement street trees;
(h) New footway verges, where a grass verge exists, the balance of the area between the footpath and the kerb or site boundary over the full frontage of the proposed development must be turfed. The grass verge must be constructed to contain a uniform minimum 75mm of friable growing medium and have a total cover of turf predominant within the street.
(i) New or reinstated kerb and guttering within the road related area; and
(j) New or reinstated road surface pavement within the road.
Council’s Assets and Infrastructure Section must advise in writing that the works have been completed to their satisfaction prior to the issue of the Occupation Certificate. Note: The damage deposit paid to Council will not be released until the works have been completed to Council’s satisfaction.
72. Fire Safety Certificate before Occupation or Use - In accordance with Clause 153 of the Environmental Planning and Assessment Regulation 2000, on completion of building works and prior to the issue of an Occupation Certificate, the owner must cause the issue of a Final Fire Safety Certificate in accordance with Clause 170 of the aforesaid Regulation. The Fire Safety Certificate must be in the form or to the effect of Clause 174 of the Environmental Planning and Assessment Regulation, 2000. In addition, in relation to each essential fire or other safety measure implemented in the building or on the land on which the building is situated, such a Certificate is to state:
(a) That the measure has been assessed by a person (chosen by the owner of the building) who is properly qualified to do so.
(b) That as at the date of the assessment the measure was found to be capable of functioning at a standard not less than that required by the attached Schedule. [NOTE: ATTACH SCHEDULE]
A copy of the certificate is to be given by the applicant to the Commissioner of Fire & Rescue NSW and a further copy is to be displayed in a frame and fixed to a wall inside the building's main entrance.
73. BASIX Certificate - All energy efficiency measures as detailed in the approved BASIX Certificate in the plans approved with the Development Consent, must be implemented before issue of any Occupation Certificate.
74. Acoustic Compliance - Prior to the issue of any Occupation Certificate, a report prepared by a suitably qualified acoustic consultant must be submitted to the PCA certifying that the construction has incorporated the recommendations in the DA Acoustic submitted with the construction certificate.
75. Acoustic Compliance - General Operation of Premises - The proposed use of the premises and the operation of all plant and equipment shall not give rise to an ‘offensive noise’ as defined in the Protection of the Environment Operations Act 1997 (as amended) and Regulations.
A suitably qualified person shall certify that the operation of the plant equipment shall not give rise to sound pressure level at any affected premises that exceeds the background LA90, 15 min noise level, measured in the absence of the noise sources under consideration by more than 5dB. The source noise level shall be assessed as an LAeq, 15 min in accordance with the NSW Environment Protection Authority’s “NSW industrial Noise Policy.
Certification must be submitted to the PCA prior to the issue of any Occupation Certificate.
76. Allocation of car parking spaces - Car parking associated with the development is to be allocated as follows:
(a) Residential dwellings: 28
(b) Residential visitors: 6
77. BASIX Compliance Certificate - A Compliance Certificate must be provided to the PCA regarding the implementation of all energy efficiency measures as detailed in the approved BASIX Certificate before any Occupation Certificate is issued.
78. Completion of Landscape Works - All landscape works must be completed before the issue of the Final Occupation Certificate. In accordance with approved landscape plans and specifications, drawn by Isthmus Landscape Design, Ref No IS0237DAI, Issue C, sheet 1/2 and Deep Soil Planting Calculations, DA-1800 and dated 2/5/19. The landscaping shall be maintained in accordance with the approved plans in perpetuity, subject to the following -
a) The proposed thirty (30) trees and all plant species, pot/ bag size and quantities of plants shall be in accordance with the proposed plant schedule upon the landscape plan. If plant species, pot/ bag size and quantities cannot be sourced, Council shall be contacted for alternatives.
b) All trees proposed upon the approved landscape plan shall comply with AS 2303 - 2018, Tree Stock for Landscape use and NATSPEC Specifying Trees: a guide to assessment of tree quality (2003), and be planted and maintained in accordance with Councils standard specification.
c) If the planted thirty (30) trees and plants are found to be faulty, damaged, dying or dead within twelve (12) months of planting then they must be replaced with the same species. If the trees are found dead before they reach a height where they are protected by Councils Tree Management Controls, they must be replaced with the same species and pot/bag size.
d) A certificate of compliance for the planting of all thirty (30) trees and all shrubs proposed for the site. An AQF 5 Horticulturist shall be engaged and in writing certify that all trees have been planted as per landscape plan and specifications and forwarded to the PCA - Principal Certifying Authority.
79. Restriction on use of land - Clause 38(1) SEPP (Affordable Rental Housing) - Residential Flat Buildings - Social Housing Providers - For 10 years from the date of the issue of the Occupation Certificate:
(a) Five (5) units within the development as referenced on the approved Development Application Plans to which the Development Application relates will be used for the purpose of affordable rental housing, and
(b) All accommodation that is used for affordable housing will be managed by a registered community housing provider.
A Restriction of Use of the Land is to be created using Section 88E of the Conveyancing Act 1919 over the subject property on which this development is to be carried out. This Restriction shall ensure that the requirements of Clause 38(1) of State Environmental Planning Policy (Affordable Rental Housing) 2009 are met and shall be worded as follows:
For a continuous period of 10 years from the date of issue of any occupation certificate (being an Interim or Final Occupation Certificate) the following Restrictions on the Use of the Land will apply:
i. Five (5) units within the development as referenced on the approved Development Application Plans to which the development application relates will be used for the purpose of affordable rental housing, and
ii. All accommodation that is used for affordable housing will be managed by a registered community housing provider.
This Restriction shall benefit Council and Council is to be nominated as the Authority to release, vary or modify this Restriction.
This Restriction on Use of Land shall be registered on the title of the land, prior to of the issue of any Occupation Certificate for the development (Interim or Final Occupation Certificate).
Documentary evidence of the registration of this Restriction on title is to be supplied to the PCA prior to the issue of any Occupation Certificate.
Operational Conditions (Ongoing)
80. Noise Control - The use of the premises must not give rise to the transmission of offensive noise to any place of different occupancy. Offensive noise is defined in the Protection of the Environment Operations Act 1997 (as amended).
81. Lighting - General Nuisance - Any lighting on the site shall be designed so as not to cause a nuisance to other residences in the area or to motorists on nearby roads and to ensure no adverse impact on the amenity of the surrounding area by light overspill or glare.
Flashing, moving or intermittent lights or signs are prohibited.
82. Entering & Exiting of vehicles - All vehicles shall enter and exit the premises in a forward direction.
83. Annual Fire Safety Statement - The owner of the building premises must ensure the Council is given an annual fire safety statement in relation to each essential fire safety measure implemented in the building. The annual fire safety statement must be given:
(a) Within 12 months after the date on which the fire safety certificate was received.
(b) Subsequent annual fire safety statements are to be given within 12 months after the last such statement was given.
(c) An annual fire safety statement is to be given in or to the effect of Clause 181 of the Environmental Planning and Assessment Regulation 2000.
(d) A copy of the statement is to be given to the Commissioner of Fire & Rescue NSW, and a further copy is to be prominently displayed in the building.
84. Responsibility of Owners Corporation - The Owners Corporation shall be responsible for presenting all approved waste and recycling receptacles for collection, and returning all receptacles to the Main Waste Collection Room, as soon as practicable after they have been serviced.
The Owners Corporation shall also be responsible for maintaining all equipment, systems, facilities and storage areas used in conjunction with the provision of waste management services in accordance with all applicable regulatory requirements, relevant health and environmental standards, and to the satisfaction of Council.
85. Maintenance of Landscaping - All trees and plants forming part of the landscaping must be maintained. Maintenance includes watering, weeding, removal of rubbish from tree bases, fertilizing, pest and disease control, replacement of dead or dying plants and any other operations required to maintain healthy trees, plants and turfed areas.
86. Outdoor Lighting - To avoid annoyance to the occupants of adjoining premises or glare to motorist on nearby roads, outdoor lighting must comply with AS 4282-1997: Control of the obtrusive effects of outdoor lighting.
87. Amenity of the neighbourhood - The implementation of this development shall not adversely affect the amenity of the neighbourhood or interfere unreasonably with the comfort or repose of a person who is outside the premises by reason of the emission or discharge of noise, fumes, vapour, odour, steam, soot, dust, waste water, waste products, grit, oil or other harmful products.
Operational Requirements Under the Environmental Planning & Assessment Act 1979
88. Requirement for a Construction Certificate - The erection of a building must not commence until a Construction Certificate has been issued.
89. Appointment of a PCA - The erection of a building must not commence until the applicant has:
(a) appointed a PCA for the building work; and
(b) if relevant, advised the PCA that the work will be undertaken as an Owner -Builder.
If the work is not going to be undertaken by an Owner - Builder, the applicant must:
(a) appoint a Principal Contractor to undertake the building work. If residential building work (within the meaning of the Home Building Act 1989) is to be undertaken, the Principal Contractor must be a holder of a contractor licence; and
(b) notify the PCA of the details of any such appointment; and
(c) notify the Principal Contractor of any critical stage inspections or other inspections that are required to be carried out in respect of the building work.
An Information Pack is attached for your convenience should you wish to appoint Georges River Council as the PCA for your development.
90. Notification Requirements of PCA - No later than two days before the building work commences, the PCA must notify:
(a) the consent authority and the Council (if not the consent authority) of his or her appointment; and
(b) the applicant of the critical stage inspections and other inspections that are to be carried out with respect to the building work.
91. Notice of Commencement - The applicant must give at least two days notice to the Council and the PCA of their intention to commence the erection of a building.
A Notice of Commencement Form is attached for your convenience.
92. Critical Stage Inspections - The last critical stage inspection must be undertaken by the PCA. The critical stage inspections required to be carried out vary according to Building Class under the Building Code of Australia and are listed in Clause 162A of the Environmental Planning and Assessment Regulation 2000.
93. Notice to be given prior to critical stage inspections - The principal contractor for a building site, or the owner-builder, must notify the PCA at least 48 hours before each required inspection needs to be carried out.
Where Georges River Council has been appointed as the PCA, 48 hours notice in writing, or alternatively 24 hours notice by facsimile or telephone, must be given when specified work requiring inspection has been completed.
94. Occupation Certificate - A person must not commence occupation or use of the whole or any part of a new building unless an Occupation Certificate has been issued in relation to the building or part.
Only the PCA appointed for the building work can issue the Occupation Certificate.
An Occupation Certificate Application Form is attached for your convenience.
Prescribed Conditions
95. Clause 97A - BASIX Commitments - This Clause requires the fulfilment of all BASIX Commitments as detailed in the BASIX Certificate to which the development relates.
96. Clause 98 - Building Code of Australia & Home Building Act 1989 - Requires all building work to be carried out in accordance with the Building Code of Australia. In the case of residential building work to which the Home Building Act 1989 relates, there is a requirement for a contract of insurance to be in force before any work commences.
97. Clause 98A - Erection of Signs - Requires the erection of signs on site and outlines the details which are to be included on the sign. The sign must be displayed in a prominent position on site and include the name and contact details of the PCA and the Principal Contractor.
98. Clause 98B - Home Building Act 1989 - If the development involves residential building work under the Home Building Act 1989, no work is permitted to commence unless certain details are provided in writing to Council. The name and licence/permit number of the Principal Contractor or Owner Builder and the name of the Insurer by which work is insured under Part 6 of the Home Building Act 1989.
99. Clause 98E - Protection & support of adjoining premises - If the development involves excavation that extends below the level of the base of the footings of a building on adjoining land, this prescribed condition requires the person who benefits from the development consent to protect and support the adjoining premises and where necessary underpin the adjoining premises to prevent any damage.
100. Clause 98E - Site Excavation - Excavation of the site is to extend only to that area required for building works depicted upon the approved plans. All excess excavated material shall be removed from the site.
All excavations and backfilling associated with the erection or demolition of a building must be executed safely and in accordance with appropriate professional standards.
All excavations associated with the erection or demolition of a building must be properly guarded and protected to prevent them from being dangerous to life or property.
If the soil conditions require it, retaining walls associated with the erection or demolition of a building or other approved methods of preventing movement of the soil shall be provided and adequate provision shall be made for drainage.
Notes/Advice
101. Review of Determination - Section 8.2 of the Environmental Planning and Assessment Act confers on an applicant who is dissatisfied with the determination of the application the right to lodge an application with Council for a review of such determination. Any such review must however be completed within 6 months from its determination. Should a review be contemplated sufficient time should be allowed for Council to undertake public notification and other processes involved in the review of the determination.
Note: Review provisions do not apply to Complying Development, Designated Development, State Significant Development, Integrated Development or any application determined by the Sydney South Planning Panel or the Land & Environment Court.
102. Appeal Rights - Part 8 (Reviews and appeals) of the Environmental Planning and Assessment Act 1979 confers on an applicant who is dissatisfied with the determination of the application a right of appeal to the Land and Environment Court of New South Wales.
103. Lapsing of Consent - This consent will lapse unless the development is physically commenced within 5 years from the Date of Operation of this consent, in accordance with Section 4.53 of the Environmental Planning and Assessment Act 1979 as amended.
104. Access to NSW Legislations (Acts, Regulations and Planning Instruments) - NSW legislation can be accessed free of charge at www.legislation.nsw.gov.au
105. Energy Efficiency Provisions - Should Council be appointed as the Principal Certifying Authority, a report prepared and endorsed by an Energy Efficiency Engineer or other suitably qualified person must be submitted, detailing the measures that must be implemented in the building to comply with Section J of the BCA. The proposed measures and feature of the building that facilitate the efficient use of energy must be identified and detailed on the architectural plans. At completion of the building and before the issue of an Occupation Certificate, a certificate certifying that the building has been erected to comply with the energy efficiency provisions must be submitted to the Principal Certifying Authority.
106. Compliance with Access, Mobility and AS4299 - Adaptable Housing - Should the Council be appointment as the PCA, the Construction Certificate Application must be accompanied by detailed working plans and a report or a Certificate of Compliance from an Accredited Access Consultant certifying that the building design and access to the adaptable units complies with Council’s DCP and AS 4299 Adaptable Housing.
107. Sydney Water Section 73 Certificates - The Section 73 Certificate must be a separate certificate that relates specifically to this development consent. For example, if the development consent relates to the subdivision of the land, a Section 73 Certificate for the construction of the building that is subject to a different development consent will not suffice.
108. Disability Discrimination Act - This application has been assessed in accordance with the Environmental Planning and Assessment Act 1979. No guarantee is given that the proposal complies with the Disability Discrimination Act 1992. The applicant is responsible to ensure compliance with this and other anti-discrimination legislation. The Disability Discrimination Act 1992 covers disabilities not catered for in the minimum standards called up in the Building Code of Australia which refers to AS1428.1-Design for Access and Mobility.
109. Long Service Levy - The Long Service Corporation administers a scheme which provides a portable long service benefit for eligible workers in the building and construction industry in NSW. All benefits and requirements are determined by the Building and Construction Industry Long Service Payments Act 1986. More information about the scheme and the levy amount you are required to pay to satisfy a condition of your consent can be found at http://www.longservice.nsw.gov.au.
The required Long Service Levy payment can be direct to the Long Service Corporation via their web site https://online.longservice.nsw.gov.au/bci/levy. Payments can only be processed on-line for the full levy owing and where the value of work is between $25,000 and $6,000,000. Payments will be accepted for amounts up to $21,000, using either MasterCard or Visa.
110. Security deposit administration & compliance fee - Under Section 97 (5) of the Local Government Act 1993, a security deposit (or part) if repaid to the person who provided it is to be repaid with any interest accrued on the deposit (or part) as a consequence of its investment.
Council must cover administration and other costs incurred in the investment of these monies. The current charge is $50.00 plus 2% of the bond amount per annum.
The interest rate applied to bonds is set at Council's business banking facility rate as at 1 July each year. Council will accept a bank guarantee in lieu of a deposit.
All interest earned on security deposits will be used to offset the Security Deposit Administration and Compliance fee. Where interest earned on a deposit is not sufficient to meet the fee, it will be accepted in full satisfaction of the fee.
111. Site Safety Fencing - Site fencing must be erected in accordance with SafeWork Guidelines, to exclude public access to the site throughout the demolition and/or construction work, except in the case of alterations to an occupied dwelling. The fencing must be erected before the commencement of any work and maintained throughout any demolition and construction work.
A demolition licence and/or a high risk work license may be required from SafeWork NSW (see www.SafeWork.nsw.gov.au).
112. Stormwater & Ancillary Works - Applications under Section 138 Roads Act and/or Section 68 Local Government Act 1993 - To apply for approval under Section 138 of the Roads Act 1993 and/or Section 68 Local Government Act 1993:
(a) Complete the Stormwater Drainage Application Form which can be downloaded from Georges River Council’s website at www.georgesriver.nsw.gov.au.
(b) In the Application Form, quote the Development Consent No. (eg. DA2018/0***) and reference this condition number (e.g. Condition 23)
(c) Lodge the application form, together with the associated fees at Council’s Customer Service Centre, during business hours. Refer to Council’s adopted Fees and Charges for the administrative and inspection charges associated with stormwater applications.
The developer must meet all costs of the extension, relocation or reconstruction of any part of Council’s drainage system (including design drawings and easements) required to carry out the approved development.
The preparation of all engineering drawings (site layout plans, cross sections, longitudinal sections, elevation views together with a hydraulic grade analysis) and specifications for the new stormwater drainage system to be arranged by the applicant. The design plans must be lodged and approved by Council prior to the issue of a Construction Certificate.
NOTE: A minimum of four weeks should be allowed for assessment.
|
Attachment ⇩1 |
Site Plan - 19-23 Empress St Hurstville |
|
Attachment ⇩2 |
Elevations - 19-23 Empress St Hurstville |
|
Georges River Council - Georges River Local Planning Panel (LPP) - Thursday, 5 March 2020 LPP011-20 19-23 Empress Street Hurstville [Appendix 1] Site Plan - 19-23 Empress St Hurstville |
Page 376 |