AGENDA - LPP
|
Meeting: |
Georges River Local Planning Panel (LPP) |
|
Date: |
Thursday, 10 December 2020 |
|
Time: |
4.00pm |
|
Venue: |
Council Chambers, Civic Centre, Hurstville |
|
Panel Members: |
Paul Vergotis (Chairperson) John Brockhoff (Expert Panel Member) Michael Leavey (Expert Panel Member) Annette Ruhotas (Community Representative) |
|
1. On Site Inspections - 1.00pm – 3.30pm a) 15 Dalcassia Street Hurstville b) 24 Salisbury Street Penshurst c) 1-3 Peake Parade Peakhurst d) 932 Forest Roda Peakhurst e) 57 Lorraine Street Peakhurst
|
|
Break - 3.30pm
|
|
2. Public Meeting – Consideration of Items 4.00pm – 6.00pm
|
|
Public Meeting Session Closed - 6.00pm (Break – Light Supper served to Panel Members)
|
|
Georges River Council – Local Planning Panel Thursday, 10 December 2020 |
Page 2 |
LPP063-20 15 Dalcassia Street Hurstville – DA2020/0261
(Report by Senior Development Assessment Officer)
LPP064-20 57 Lorraine Street Peakhurst – DA2020/0115
(Report by Independent Assessment)
LPP065-20 1-3 Peake Parade Peakhurst – MOD2020/0136
(Report by Senior Development Assessment Planner)
LPP066-20 932 Forest Road Peakhurst – DA2020/0327
(Report by Senior Development Assessment Planner)
LPP067-20 24 Salisbury Street Penshurst – DA2020/0353
(Report by Development Assessment Planner)
|
4. Confirmation of Minutes |
REPORT TO GEORGES RIVER COUNCIL
LPP MEETING OF Thursday, 10 December 2020
|
LPP Report No |
LPP063-20 |
Development Application No |
DA2020/0261 |
|
Site Address & Ward Locality |
15 Dalcassia Street Hurstville Hurstville Ward |
||
|
Proposed Development |
Demolition of existing and construction of boarding house |
||
|
Owners |
Citywide Pty Ltd |
||
|
Applicant |
Cracknell and Longergan Architects Pty Ltd |
||
|
Planner/Architect |
Architect: Cracknell and Longergan Architects Pty Ltd, Planner: Cracknell and Longeran Architects Pty Ltd |
||
|
Date Of Lodgement |
30/06/2020 |
||
|
Submissions |
Seven (7) submissions |
||
|
Cost of Works |
$2,300,000.00 |
||
|
Local Planning Panel Criteria |
Council Delegations for Local Planning Panel Determinations |
||
|
List of all relevant s.4.15 matters (formerly s79C(1)(a)) |
Environmental Planning and Assessment Act 1979, Environmental Planning and Assessment Regulation 2000, State Environmental Planning Policy No. 55 – Remediation of Land, State Environmental Planning Policy - BASIX: 2004, State Environmental Planning Policy (Affordable Rental Housing) 2009, State Environmental Planning Policy (Vegetation in Non-Rural Areas) 2017, Greater Metropolitan Regional Enviromental Plan No – 2 Georges River Catchment, State Environmental Planning Policy (Infrastructure) 2007, Draft Environment State Environmental Planning Policy, Draft Remediation of Land State Environmental Planning Policy, Hurstville Local Environmentl Plan 2021, Draft Georges River Local Environmental Plan 2020, Hurstville Development Control Plan No 1, Interim Policy Georges River 2020 |
||
|
List all documents submitted with this report for the Panel’s consideration |
Architectural Plans
|
||
|
Report prepared by |
Senior Development Assessment Officer |
||
|
|
Summary of matters for consideration under Section 4.15 Have all recommendations in relation to relevant s4.15 matters been summarised in the Executive Summary of the assessment report? |
Yes |
|
Legislative clauses requiring consent authority satisfaction Have relevant clauses in all applicable environmental planning instruments where the consent authority must be satisfied about a particular matter been listed and relevant recommendations summarised, in the Executive Summary of the assessment report? |
Yes |
|
Clause 4.6 Exceptions to development standards If a written request for a contravention to a development standard (clause 4.6 of the LEP) has been received, has it been attached to the assessment report? |
Not Applicable
|
|
Special Infrastructure Contributions Does the DA require Special Infrastructure Contributions conditions (under s7.24)? |
Not Applicable |
|
Conditions Have draft conditions been provided to the applicant for comment? |
No, as the application is recommended for refusal. The refusal reasons can be reviewed when the report is published. |
|
Site Plan
Aerial photograph of subject site (15 Dalcassia Street, Hurstville) outlined in blue and immediate surrounding area (Source: Intramaps, GRC 2020) |
EXECUTIVE SUMMARY
1. Council is in receipt of a development application which seeks development consent for the demolition of all existing structures and the construction of a fifteen (15) room boarding house (one being a caretakers room) on land known as 15 Dalcassia Street, Hurstville.
2. In detail, the proposal is described as follows:
- Demolition of existing dwelling house and ancillary structures;
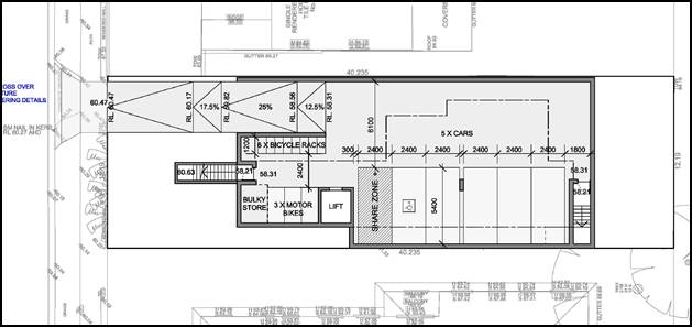
- Construction of four (4) storey boarding house with a basement car park;
- Basement: driveway ramp, five car (5) spaces, one (1) being accessible, eight (8) bicycle spaces, three (3) motorcycle spaces, bulky storage, lift, two (2) egress stairs;
- Ground Floor: entry, lift, central corridor, common room, common open space within front setback, laundry, drying court, two (2) accessible rooms with courtyards;
- Level 1: lift, central corridor, five (5) boarding rooms with balconies;
- Level 2: lift, central corridor, five (5) boarding rooms with balconies;
- Level 3: lift, central corridor, two (2) boarding rooms with balconies and one (1) caretakers room with balcony.
3. The site is zoned R3 Medium Density Residential pursuant to the Hurstville Local Environmental Plan 2012. A “boarding House” is permitted within consent in the zone. The proposal meets the definition of a boarding house.
4. The proposal does not satisfy Section 1.3 Objects of the Act of the Environmental Planning and Assessment Act 1979 whereby the proposal does not satisfy objective (g) which states “to promote good design and amenity of the built environment”. In this instance, the proposal seeks a four (4) storey built form on an allotment with a width of 12.19m which is not compatible with the site dimensions and immediate context whereby comparable built forms (density and scale) such as residential flat buildings are located on wider allotments within the visual catchment. This results in reduced amenity for future occupants and generates adverse impacts on adjoining properties.
5. The proposal is not considered to satisfy State Environmental Planning Policy Affordable Rental Housing (2009) and does not comply with the minimum number of car parking required, being seven (7). Five (5) car spaces are proposed on site. Whist the provisions of the SEPP prevails over the Hurstville Development Control Plan regarding minimum car parking requirements, it is noted that Council’s controls would require ten (10) car spaces.

Figure 1: Extract of proposed basement level (Source: Cracknell Lonergan Architects, 2020).
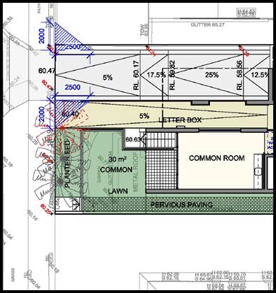
6. The design proposes a majority of the communal open space (13sqm of the 20sqm required) within the front setback which is contrary to the SEPP and inconsistent with the local character of the area.

Figure 2: Extract of ground floor indicating the location of the proposed communal open space within front setback (Source: Cracknell Lonergan Architects, 2020).
7. The proposal fails to satisfy Clause 30A Character of the area given the proposed form and proportion of the development results in limited spatial separation to adjoining properties. The proposal adopts a building typology with a scale and form of a four (4) storey residential flat building, with a 1.6m side setback for all four (4) levels. The established character of the locality is residential flat buildings with pitched roofs surrounded by landscaped areas, with proportionate spatial separation and lot width. Established dwelling houses are located on allotments of similar widths and size to that of the subject site. (*Note: the proposed rear setback of the boarding houses aligns with 17 Dalcassia Street (side) at 6m from the rear boundary).

Figure 3: Extract of section of subject site in relation to adjoining properties (Source: Cracknell Lonergan Architects, 2020).
8. Clause 4.3 of the Hurstville Local Environmental Plan 2012 prescribes a height of building control of 12m. A lift overrun has been shown on the section below, however this has not been shown any of the external elevations.

Figure 4: Extract of cross section indicating breach of lift overrun over 12m, no RL for the lift overrun has been provided (Source: Cracknell Lonergan Architects, 2020).
9. Based on the section and scaled dimensions submitted, Council’s assessment indicates that the proposal seeks a height of building in excess of 12m to accommodate the lift overrun at 12.6m.
10. A Clause 4.6 Exception to Development Standard is required to consider a variation to a Development Standard. A Clause 4.6 Exception to Development Standard has not been provided in support of this height breach.

Figure 5: Extract roof plan indicating a lift overrun with no nominated RL (Source: Cracknell Lonergan Architects, 2020).
11. The proposal was reviewed by Council’s Urban Design Consultant (GM Urban Design and Architecture) who raised concerns in relation to inadequate side setbacks, visual bulk, and location of the open waste storage area which is in close proximity the dwelling house at 13 Dalcassia Street, Hurstville together with the entry and the lack of opportunities to provide for surveillance.
12. The proposal fails to comply with the following subsections of the Hurstville Development Control Plan No. 1.
· Section 3.3 – Access and Mobility
· Section 3.9 – Waste Management
· Appendix 1 – Indicative Number of Storeys
13. The proposal results in adverse impacts in relation to occupant and neighbouring amenity whereby rooms (103, 203 and 302) on levels 1, 2 and 3 have a poor aspect and outlook as they are generally orientated internally as their windows which directly face side boundary are frosted.

Figure 6: Extract of part of unit layout on levels 1, 2 and 3 with poor aspect and outlook (Source: Cracknell Lonergan Architects, 2020).
14. The proposal is not supported by a clause 4.6 Exception to Development Standard request to vary the height which is exceeded in the area of the lift overrun.
15. On 30 June 2020 the applicant was requested to reconsider their application and were given (7) days to respond as they were advised the proposal was unlikely to be recommended for approval given the proposed built form on a narrow allotment width. No response was received.
Site and Locality
16. The subject site is legally described as Lot 56 in DP 6510 and is known as 15 Dalcassia Street, Hurstville.
17. The site has dimension of 12.19m in width and 40.235m in length with a site area of 490.5sqm. The site slopes from the rear to the front with an approximate fall of 1.72m.
18. A single storey masonry dwelling is centrally located on site. An outbuilding comprising an entertainment room, laundry and stacked double garage are located at the rear.
Zoning and Permissibility
19. The subject site is zoned R3 Medium Density Residential under the provisions of Hurstville Local Environmental Plan 2012 (HLEP 2012). The proposal involves demolition works and the construction of a boarding house which is a permissible use in the zone with development consent.
Submissions
20. The DA was publicly notified to neighbouring properties between 29 June and 13 July 2020 in accordance with the provisions of the Hurstville Development Control Plan No. 1 (HDCP). In response, seven (7) submissions were received raising concerns regarding; amenity, traffic, privacy, overshadowing, noise, bulk and scale, waste, damage to adjoining properties and devaluation to properties. These representations have been considered and addressed accordingly in further detail within this assessment report.
Reason for Referral to the Local Planning Panel
21. The application for the boarding house, via Council Delegations, is required to be determined by the Georges River Local Planning Panel.
Conclusion
22. The application has been assessed having regard to the Matters for Consideration under 4.15 of the Environmental Planning and Assessment Act 1979, the provisions of the relevant State Environmental Planning Policies, Local Environmental Plans and Development Control Plans.
23. The proposal being a boarding house is a permissible use in the zone with consent, however the proposal fails to meet the requirements of SEPP (Affordable Rental Housing) 2009, Hurstville Local Environmental Plan 2012 and Hurstville Development Control Plan No.1.
24. The proposal is therefore recommended for refusal and would require a substantial redesign to satisfactorily address the matters raised within the report.
REPORT IN FULL
Description of the Proposal
25. Council is in receipt of a development application which seeks development consent for the demolition of the existing dwelling and associated structures and construction of a fifteen (15) room (one being the caretakers room) boarding house over basement car parking on land known as 15 Dalcassia Street, Hurstville.
26. In detail, the proposal is described as follows:
- Demolition of existing dwelling house and ancillary structures;
- Construction of four (4) storey boarding house with a basement car park;
- Basement: driveway ramp, five car (5) spaces, one (1) being accessible, eight (8) bicycle spaces, three (3) motorcycle spaces, bulky storage, lift, two (2) egress stairs;
- Ground Floor: entry, lift, central corridor, common room, common open space within front setback, laundry, drying court, two (2) accessible rooms with courtyards;
- Level 1: lift, central corridor, five (5) boarding rooms with balconies;
- Level 2: lift, central corridor, five (5) boarding rooms with balconies;
- Level 3: lift, central corridor, two (2) boarding rooms with balconies and one (1) caretakers room with balcony.
Description of the Site and Locality
27. The subject site is legally described as Lot 56 in DP 6510 and is known as 15 Dalcassia Street, Hurstville.
28. The site is has a width of 12.19m and a length of 40.235m with a total site area of 490.5sqm. The site slopes from the rear to the front with an approximate fall of 1.72m.
29. A single storey masonry dwelling is centrally located on site. An outbuilding comprising an entertainment room, laundry and stacked double garage are located to the rear.

Figure 7: The site (15 Dalcassia Street, Hurstville) as viewed from Dalcassia Street, Hurstville (Source: GRC, November 2020).
30. The visual catchment along Dalcassia Street, Hurstville comprises residential flat buildings and dwelling houses which are zoned R3 Medium Density Residential under the Hurstville Local Environmental Plan 2012.

Figure 8: The site (15 Dalcassia Street, Hurstville) as viewed from Dalcassia Street, Hurstville (Source: GRC, November 2020).
Zoning and Permissibility
31. The subject site is zoned R3 Medium Density Residential under the provisions of Hurstville Local Environmental Plan 2012 (HLEP 2012). The proposal involves demolition works and the construction of a boarding house which is a permissible use in the zone with development consent.

Figure 9 Extract of zoning map of Hurstville Local Environmental Plan 2012 (Source: Intramaps, 2020).
State Environmental Planning Policies (SEPPs)
32. Compliance with the relevant SEPPs is summarised in the following table and discussed in further detail below.
Table 1: SEPP Considerations
|
SEPP Title |
Complies |
|
State Environmental Planning Policy No 55 - Remediation of Land |
Yes |
|
Greater Metropolitan Regional Environmental Plan No 2 – Georges River Catchment |
Yes |
|
State Environmental Planning Policy (Building Sustainability Index: BASIX) 2004 |
Yes |
|
State Environmental Planning Policy (Vegetation in Non-Rural Areas) 2017 |
Yes |
|
State Environmental Planning Policy (Infrastructure) 2007 |
Yes |
|
State Environmental Planning Policy (Affordable Rental Housing) 2009 |
No |
State Environmental Planning Policy No 55 - Remediation of Land
33. SEPP 55 aims to promote the remediation of contaminated land in order to reduce the risk of harm to human health or any other aspect of the environment.
34. Clause 7 requires contamination and remediation to be considered in determining a development application. The consent authority must not consent to the carrying out of development on land unless it has considered whether or not the land is contaminated.
Deemed State Environmental Planning Policy – Georges River Catchment
36. The stormwater from the proposed development can be treated in accordance with Council’s Water Management Policy and can drain to the street satisfying the relevant provisions of the Deemed State Environmental Planning Policy – Georges River Catchment. It is noted that the proposal seeks to drain to the front of the site to Council’s kerb and gutter. The proposed stormwater disposal has been reviewed by Council’s Development Engineer. This aspect of the proposal is acceptable subject to conditions if the application was to be supported.
State Environmental Planning Policy (Building Sustainability Index: BASIX) 2004
37. The proposal satisfies the requirements of Statement Environmental Planning Policy BASIX. A valid BASIX Certificate (1090839M dated 10 June 2020) was submitted with this application. This development application was lodged with Council on 30 June 2020. In this regard, the requirements of the SEPP have been reasonably satisfied.
State Environmental Planning Policy (Vegetation in Non-Rural Areas) 2017
38. The Vegetation SEPP regulates clearing of native vegetation on urban land and land zoned for environmental conservation/management that does not require development consent.
39. The Vegetation SEPP applies to clearing of:
a) Native vegetation above the Biodiversity Offset Scheme (BOS) threshold where a proponent will require an approval from the Native Vegetation Panel established under the Local Land Services Amendment Act 2016; and
b) Vegetation below the BOS threshold where a proponent will require a permit from Council if that vegetation is identified in the council’s development control plan (DCP).
40. The Vegetation SEPP repeals clause 5.9 and 5.9AA of the Standard Instrument - Principal Local Environmental Plan with regulation of the clearing of vegetation (including native vegetation) below the BOS threshold through any applicable DCP.
41. The proposed development does not involve the removal of any significant trees or vegetation. In this regard, the provisions of this SEPP are considered to be met.
42. The proposal and accompanying Landscape Plan and arborist report have been considered by Council’s Consulting Arborist. No concerns were raised in relation to this aspect of the proposal which sought the removal of one (1) tree, retention of two (2) trees on site and protection of two (2) trees on adjoining properties.
State Environmental Planning Policy (Infrastructure) 2007
43. The aim of the Infrastructure SEPP is to facilitate the effective delivery of infrastructure across the State. The DA was referred to Ausgrid on 30 June 2020 in accordance with Clause 45(2) of State Environmental Planning Policy (Infrastructure) 2007. In response, Ausgrid advised that there are no issues with the proposal subject to as minimum clearance distances from Ausgrid’s Infrastructure.
44. In this regard, the provisions and requirements of the Infrastructure SEPP have been adequately satisfied.
State Environmental Planning Policy (Affordable Rental Housing) 2009
45. The proposal has been considered in accordance with the objectives of State Environmental Planning Policy (Affordable Rental Housing) 2009 of which the following objectives have not been satisfied.
(a) to provide a consistent planning regime for the provision of affordable rental housing.
(b) to facilitate the effective delivery of new affordable rental housing by providing incentives by way of expanded zone permissibility, floor space ratio bonuses and non-discretionary development standards.
46. The above objectives have not been satisfied as the proposal has not satisfied the development standards. The proposal is therefore inconsistent with the planning regime for the provision of affordable rental housing.
47. The proposal seeks consent for a boarding house pursuant to the provisions of the SEPP, specifically Division 3 – Boarding Houses. An assessment of the proposal against the relevant provisions of the SEPP is provided in the following table below.
Table 2: State Environmental Planning Policy (Affordable Rental Housing) 2009
|
Clause |
Standards |
Proposal |
Complies |
|
26 – Land to which Division applies for the purpose of a boarding house with consent |
· R1 General Residential · R2 Low Density Residential · R3 Medium Density Residential · R4 High Density Residential · B1 Neighbourhood Centre · B2 Local Centre · B4 Mixed Use |
Site is zoned R3 Medium Density Residential under the Hurstville Local Environmental Plan 2012 |
Yes |
|
27 – Development to which Division applies |
(1) This Division applies to development, on land to which this Division applies, for the purposes of boarding houses.
(2) Despite subclause (1), clauses 29, 30 and 30A do not apply to development on land within Zone R2 Low Density Residential or within a land use zone that is equivalent to that zone in the Sydney region unless the land is within an accessible area. |
Noted.
The land is within an accessible area to the entrance Hurstville Railway Station – refer to comments below. |
-
Yes – refer to discussion below. |
48. An accessible area is defined by Clause 4 of SEPP (ARH) 2009 as follows:
‘accessible area means land that is within:
(a) 800m walking distance of a public entrance to a railway station or a wharf from which a Sydney Ferries ferry service operates, or
(b) 400m walking distance of a public entrance to a light rail station or, in the case of a light rail station with no entrance, 400 metres walking distance of a platform of the light rail station, or
(c) 400m walking distance of a bus stop used by a regular bus service (within the meaning of the Passenger Transport Act 1990) that has at least one bus per hour servicing the bus stop between 06.00 and 21.00 each day from Monday to Friday (both days inclusive) and between 08.00 and 18.00 on each Saturday and Sunday.’
49. The subject site satisfies the requirements of an accessible area as defined in (a) above. A map below indicates the walking distance from the subject site (15 Dalcassia Street Hurstville to Hurstville Railway Station being 634.4sqm.

Figure 10: Map showing distance from subject site to Hurstville Railway Station (Source: Intramaps, 2020).
Table 3: State Environmental Planning Policy (Affordable Rental Housing) 2009
|
Clause |
Standard |
Proposed |
Complies |
|
29 - Standards that cannot be used to refuse consent Council cannot refuse a development application for a boarding house under the ARHSEPP 2009 on any of the following grounds: |
|||
|
(1) Floor Space Ratio |
(c) if the development is on land within a zone in which residential flat buildings are permitted and the land does not contain a heritage item that is identified in an environmental planning instrument or an interim heritage order or on the State Heritage Register—the existing maximum floor space ratio for any form of residential accommodation permitted on the land, plus: (i) 0.5:1, if the existing maximum floor space ratio is 2.5:1 or less, or Site area = 490.5sqm = maximum FSR = 1.5:1 (735.75sqm) |
1.1:1
(539.13sqm) |
Yes |
|
(2) Height |
(a) If the building height is not more than the maximum height permitted under another EPI for any building on the land: Max 12m HLEP2012 |
Parapet 11.42m (RL72.75)
Insufficient detail on plans provided by the applicant for the top of the lift overrun which is higher than the parapet. Based on RL’s and scaled elevations on the plans Council Officer assessment indicates a height of 12.6m (RL73.35). |
No |
|
Landscaped Area |
(b) If the landscape treatment of the front setback area is compatible with the streetscape in which the building is located |
The proposed landscaped front setback area is privatised and enclosed by high fencing; this is not consistent with the immediate visual catchment which comprises of lawn areas and low height masonry front fences. |
Yes |
|
Solar Access |
(c) Where the development provides for one or more communal living rooms, if at least one of those rooms receives a minimum of 3 hours direct sunlight between 9am and 3pm in mid-winter |
3 hours of direct sunlight is achieved to the communal room which contains windows within the front western elevation. |
Yes |
|
Private Open Space |
(d) if at least the following private open space areas are provided (other than the front setback area):
(i) one area of at least 20sqm with a minimum dimension of 3m is provided for the use of the lodgers,
(ii) if accommodation is provided non site for a boarding house manager- one area of at least 8sqm with a minimum dimension of 2.5m is provided adjacent to that accommodation. |
7sqm are provided which complies. Part of the proposed communal open space (13sqm of the minimum 20sqm required) excluding the front terrace is located within the front setback.
Private open space of 12sqm which meets this criterion is provided in the form of a balcony. |
No, refer to discussion below.
Yes |
|
Comments on private open space areas The proposal provides only 7sqm which does not comply with the SEPP. The proposal provides the majority of communal private open space for lodgers of the boarding house located within the front setback forward of the building line. This is not considered to be appropriate and results in limited privacy and amenity which is considered to detract of the use of this space providing poor recreation areas for future occupants.
Figure 11 The proposal seeks 13sqm of communal open space forward of the building line which results in poor amenity and detracts from the usability of this space (Source: Cracknell Lonergan Architects, 2020). |
|||
|
(e) Parking |
(iia) 0.5 spaces per boarding room (14 boarding rooms) x 0.5 = 7 spaces required.
(iii) Not more than 1 parking space is provided for each person employed in connection with the development and who is resident on site |
5 spaces located within the basement car park.
No boarding room manager’s car space has been nominated on plans or proposed within the applicant’s statement of environmental effects. |
No
No |
|
(f) Accommodation size |
Each boarding room has a gross floor area (excluding any area used for the purposes of private kitchen or bathroom facilities) of at least:
(i) 12sqm in the case of a boarding room intended to be used by a single lodger, or (ii) 16sqm in any other case
(*Note: 1m in front of kitchen benchtops have been considered as circulation spaces and have been excluded from the room calculations). |
G01 – 25sqm G02 - 23sqm 102 - 22sqm 102 - 21sqm 103 - 21sqm 104 - 21sqm 105 - 22sqm 201 - 19sqm 202 - 24sqm 203 – 19sqm 204 - 18sqm 205 – 22sqm 301 - 24sqm 302 – 24sqm 303 – 24sqm All rooms have been proposed as double rooms with the exception of the manager’s room. In total the proposal seeks to accommodate twenty eight (28) lodgers and one (1) boarding house manager. |
Yes |
|
Clause 30 – Standards for Boarding Houses A consent authority must not consent to development for boarding houses unless it is satisfied of each of the following: |
|||
|
Communal living |
(a) If a boarding house has 5 or more boarding rooms, at least one communal living room will be provided |
The proposal seeks fourteen (14) boarding rooms with one (1) communal living room provided on the ground floor at the front of the building. |
Yes |
|
Size of boarding rooms |
(b) No boarding room will have a gross floor area (excluding any area used for the purposes of private kitchen or bathroom facilities) of more than 25sqm |
G01 – 25sqm G02 - 23sqm 102 - 22sqm 102 - 21sqm 103 - 21sqm 104 - 21sqm 105 - 22sqm 201 - 19sqm 202 - 24sqm 203 – 19sqm 204 - 18sqm 205 – 22sqm 301 - 24sqm 302 – 24sqm 303 – 24sqm |
Yes |
|
Maximum occupancy |
(c) No boarding room will be occupied by more than 2 adult lodgers |
All boarding rooms are to accommodate a maximum of 2 adult lodgers. In total the proposal seeks to accommodate twenty eight (28) lodgers and one (1) boarding house manager. |
Yes |
|
Kitchen and bathroom facilities |
(d) Adequate bathroom and kitchen facilities will be available within the boarding house for the use of each lodger |
All boarding rooms and manager’s room have a kitchen and ensuite facilities. A communal kitchenette is located within the communal living room. |
Yes |
|
Boarding house manager |
(e) If the boarding house has capacity to accommodate 20 or more lodgers, a boarding room or on site dwelling will be provided for a boarding house manager |
The proposal seeks to accommodate a maximum of twenty-eight (28) lodgers. A Manager’s Room is located at the rear of the third floor. |
Yes |
|
Bicycle and motor cycle spaces |
(h) At least one parking space will be provided for a bicycle, and one will be provided for a motorcycle, for every 5 boarding rooms (15/5 = 3). |
Three (3) motorcycle spaces are proposed within the basement, located between the lift and bulky store area. |
Yes |
Clause 30A – Character of local area
50. Clause 30A states that Council cannot grant consent to a boarding house unless it has taken into consideration whether the design of the development is compatible with the character of the local area.
51. Case law has held that the test in Clause 30A is “one of compatibility not sameness” (Gow v Warringah Council [2013] NSWLEC 1093 (15 March 2013)). Compatibility is widely accepted to mean “capable of existing together in harmony” (Project Venture Developments Pty Ltd v Pittwater Council [2005] NSWLEC 191.
52. It has also been held that in assessing ‘compatibility’ both the existing and future character of the local area needs to be taken into account (Sales Search Pty Ltd v The Hills Shire Council [2013] NSWLEC 1052 (2 April 2013) and Revelop Projects Pty Ltd v Parramatta City Council [2013] NSWLEC 1029).
Relationship to the Existing and Future Character of the Local Area
53. In Revelop Projects Pty Ltd v Parramatta City Council [2013] NSW LEC 1029, Commissioner Morris concluded that the ‘local area’ includes both sides of the street and the ‘visual catchment’ as the minimum area to be considered in determining compatibility.
54. Whilst State Environmental Planning Policy No 65 – Design Quality of Residential Apartment Development does not apply to boarding houses. It is noted that a frontage of 24m is required for a residential flat building within the Hurstville Development Control Plan No. 1 – Section 4.0 Specific Controls for Residential Development - PC2 Site Frontage.
55. For the purposes of comparison regarding building typologies the proposal seeks the following setbacks:
Table 4: Setback comparison guidance table
|
Setbacks |
Proposal (levels G-3) |
Apartment Design Guide “guidance” RFB up to 12m |
|
Front setback |
6.9m to balcony (scaled off plans not dimensioned) |
6m average front setback |
|
Side setback |
1.6m (scaled off plans not dimensioned) |
6m habitable 3m non-habitable |
|
Side setback |
1.6m (scaled off plans not dimensioned) |
6m habitable 3m non-habitable |
|
Rear setback |
7.7m (scaled off plans not dimensioned) |
6m habitable 3m non-habitable |
56. The ‘local area’ in this case is taken to include both sides of Dalcassia Street, Hurstville which form the immediate visual catchment.
Table 5: Summary of immediate local area built form allotment width
|
Address |
Built form |
Allotment width |
No of storeys |
|
23 Dalcassia Street, Hurstville *corner site |
Dwelling house |
14.8m |
1 |
|
19-21 Dalcassia Street, Hurstville |
Established residential flat building |
18.1m |
4 |
|
17 Dalcassia Street, Hurstville |
Established residential flat building |
18.2m |
3 |
|
15 Dalcassia Street, Hurstville (Subject site) |
Established dwelling house (boarding house proposed) |
12.19m |
4 |
|
13 Dalcassia Street, Hurstville |
Established dwelling house |
11.8m |
1 |
|
11 Dalcassia Street, Hurstville |
Established dwelling house |
11.8m |
1 |
|
7-9 Dalcassia Street, Hurstville |
Established residential flat building |
24.3m |
4 |
|
1-5 Dalcassia Street, Hurstville *corner site |
Established residential flat building |
35.2m |
4 |
|
1 Patrick Street, Hurstville *corner site |
Established residential flat building |
14.3m |
3 |
|
4 Dalcassia Street, Hurstville |
Established dwelling house |
12m |
1 |
|
6 Dalcassia Street, Hurstville |
Established dwelling house |
11.5 |
1 |
|
8 Dalcassia Street, Hurstville |
Established dwelling house |
12m |
1 |
|
10-12 Dalcassia Street, Hurstville |
Established residential flat building |
24m |
4 |
|
14 Dalcassia Street, Hurstville |
Established dwelling house |
11.6m |
1 |
|
16 Dalcassia Street, Hurstville |
Established dwelling house |
11.7m |
1 |
|
18 Dalcassia Street, Hurstville |
Established dwelling house |
11.6m |
1 |
|
20-24 Dalcassia Street, Hurstville *corner site |
Established residential flat building |
35.4m |
4 |
57. Given the above, it is considered all residential flat building built forms within the visual catchment range from 3 to 4 storeys and are all on allotments larger than that of the subject site (being 12.19m) being lots which range from 18.1m – 24m. Further that it is anticipated that built forms (similar to that proposed) such as residential flat buildings are to have a minimum allotment width of 24m.
58. In Project Venture Developments v Pittwater Council [2005] NSWLEC 191 the Land and Environment Court specifically set out a relevant planning principle. Consideration has therefore been given to the two (2) key questions identified in the Land and Environment Court Planning Principles:
(a) Are the proposal’s physical impacts on surrounding development acceptable? The physical impacts include constraints on the development potential of surrounding sites.
59. The building form proposed adopts a similar building typology to that of a four (4) storey residential flat building with basement parking.
60. The proposed side setbacks of 1.6m for all four (4) storeys along the side elevations results in adverse overshadowing impact to the southern adjoining residential flat building at 17 Dalcassia Street, Hurstville. No elevational shadow diagrams have been provided demonstrating the impact of the proposal on the adjoining property and if compliance is achieved.
61. Further to the above, the blank side elevations result in a poor visual outlook from the adjoining neighbouring properties given the minimal side boundary setback of the proposed development being 1.6m.
(b) Is the proposal’s appearance in harmony with the buildings around it and the character of the street?
62. The proposal in its current form is considered to result in a form that is inconsistent with the surrounding development given the development is vertical in its expression and there is no relief horizontally given the narrowness of the allotment.
63. The application was referred externally for urban design comments, which resulted in the following:
64. “The site’s immediate area is predominately characterised by 3-4 storey residential flat buildings on larger/consolidated lots. Most lot widths are greater than 18m and traditional dwelling houses on smaller fine-grain lots are also found in the area. Larger scale development generate provides setbacks resulting in 6-9m separation (measured from Nearmap) between building and landscaped areas alongside boundaries. This forms part of the existing streetscape character of the area.
65. As per the Ground Level Plan (DA 102, Cracknell & Lonergan Architects, March 2020), the proposal provides approximately 1.5-1.6m setback to side boundaries with no provision of deep soil planting due to the narrow lot width and the extent of the basement level, which is built to both side boundaries. HDCP has not provided detailed guidelines for boarding houses; however, the residential flat buildings are required to provide side setbacks in accordance with ADG (HDCP 4.1 D.S 6.1) and landscaping are encouraged alongside boundaries (HDCP 3.5 P.C 5). For developments of similar scale, residential flat buildings will be required to provide at least 4.5m setbacks to side boundaries. We acknowledge that the ADG does not apply to boarding house developments but it is reasonable to expect that the development responds to key ADG principles to ensure an outcome which is compatible with future (RFB) developments in the area. If the proposal is to keep consistent with the desired future character, we consider that an increased side setback for both sides needed to achieve a better relationship with the neighbouring development, and incorporate deep soil planting to create a landscape buffer that responds to the character of the area.
66. The current design provides long continuous blank wall facades facing both side boundaries, which is a concern resulting in a visual impact to the neighbouring developments as well as to the streetscape character. This issue is further exacerbated as no landscape buffers are proposed to screen the side boundaries. The continuous blank wall element in its current height and proximity to the side boundary will create an increased sense of enclosure and a poor outlook for the development at No 17 Dalcassia St where the adjacent property has living rooms/balconies facing the common boundary.
67. Given the above the proposal is not considered to be harmonious with the character of the surrounding area. The proposed design results in a built form which is not considered compatible due to insufficient side setbacks which result in a development that fits poorly in the streetscape. The proposal adopts a four (4) storey built form with a flat roof and generally blank walls along the side elevations which further adds visual massing. Further that, the increase in setbacks would result in a full redesign of the proposal given the lift core, circulation spaces and car parking layout. It is also noted that no elevational solar access diagrams have been provided demonstrating the extent of impact to the adjoining residential flat building windows and balconies at 17 Dalcassia Street, Hurstville.
68. The proposed development is not consistent with the existing or desired future character of the locality with respect to inadequate setbacks and spatial separation when considered in the context of the immediate visual catchment. In this regard, the proposal is not considered to satisfy Clause 30A Character of Local Area of the SEPP.
Environmental Planning Instruments
Hurstville Local Environmental Plan 2012 (HLEP 2012)
Zoning
69. The subject site is zoned R3 Medium Density Residential pursuant to the provisions of the Hurstville Local Environmental Plan 2012 (HLEP 2012). The proposed development satisfies the definition of a “boarding house”. A boarding house is a permissible land use in the R3 Medium Density Residential Zone with consent.

Figure 12 Extract of zoning map of Hurstville Local Environmental Plan 201 – site outlined in blue (Source: Intramaps, 2020).
70. The proposal fails to satisfy the objective of the R3 Medium Density Residential zone as follows:
• To ensure that a high level of residential amenity is achieved and maintained.
71. The proposal has not provided adequate, functional and private communal open space, an accessible room and accessible access to and within the site, a waste storage area and is deficient in car parking which result in poor levels of residential amenity for the future occupants of the development.
72. The proposed built form and setbacks result in unnecessary adverse overshadowing impacts onto 17 Dalcassia Street, Hurstville which prevents a high level of residential amenity being achieved and maintained.
73. The proposal seeks significant excavation to the side boundaries with a nil boundary setback to accommodate the basement. This limits opportunities for meaningful and substantial planting along the side boundaries for the full length of the building which are characteristic of similar built forms within the immediate vicinity. In a residential zoning development is not encouraged to be built to the allotment boundaries.
74. Given the above, the proposal fails to satisfy the objectives of the R3 Medium Density Residential Zone and results in a poor planning outcome. Furthermore, this also results in an undesirable precedent for narrow single allotments of which currently are occupied by established dwelling houses within Dalcassia Street, Hurstville and the broader precinct.
75. The extent to which the proposal complies with the relevant standards of Hurstville Local Environmental Plan 2012 (HLEP2012) is outlined in the table below.
Table 6: Hurstville Local Environmental Plan 2012
|
HLEP 2012 Clause |
Standard |
Proposed |
Complies |
|
|
2.2 Zone |
R2 Low Density Residential |
The proposal meets the definition of boarding house which is a permissible use within the zone. |
Yes |
|
|
2.3 Objectives |
Objectives of the Zone |
As discussed earlier, the proposal is not consistent with the zone objective being “to ensure that a high level of residential amenity is achieved and maintained”. |
No |
|
|
4.3 – Height of Buildings |
12m as identified on Height of Buildings Map |
Parapet 11.42m (RL72.75).
Based on the nominated RL’s and scaling of the elevations Council’s assessment equates to height of 12.6m being RL73.35.
(Note: There is no spot level directly below the proposed lift on the survey). |
No |
|
|
Height of building Based on the submitted architectural plans the lift overrun exceed the 12m height control.
Figure 13 The subject site and immediate surrounding area has a height limit of 12m Source: Intramaps, 2020). |
||||
|
4.4 – Floor Space Ratio |
1:1 as identified on Floor Space Ratio Map
Site area = 490.5sqm
It is noted that SEPP ARH prevails over the HLEP in relation to floor space whereby 1.5:1 is permitted. |
1.1:1
(539.13sqm) |
Yes |
|
|
4.5 – Calculation of floor space ratio and site area |
FSR and site area calculated in accordance with Cl.4.5 |
The FSR and site area has been calculated according to the criterion of this clause. |
Yes |
|
|
5.10 – Heritage Conservation |
The objectives of this clause are; (i) to conserve the environmental heritage of Kogarah, (ii) to conserve the heritage significance of heritage items and heritage conservation areas, including associated fabric, settings and views. |
The proposal does not directly adjoin or is located within the immediate vicinity of any environmental heritage item nominated under HLEP 2012.
|
N/A |
|
|
6.1 Acid Sulphate Soils |
The objective of this clause is to ensure that development does not disturb, expose or drain acid sulfate soils and cause environmental damage |
The site is not affected by Acid Sulfate Soils under HLEP 2012. |
N/A |
|
|
6.2 Earthworks |
To ensure that earthworks do not have a detrimental impact on environmental functions and processes, neighbouring uses, cultural or heritage items or features of the surrounding land |
Earthworks are proposed to accommodate the boarding house, basement level, driveway and on-site detention which is a requirement of this development. |
Yes |
|
Draft State Environmental Planning Policies (SEPPs)
Draft Georges River Local Environmental Plan 2020
76. Consideration is given to the provisions of Draft Georges River Local Environmental Plan 2020 in the assessment this application.
77. In this regard, the provisions have no determining weight as a result of proposed operation of Clause “1.8A Savings provisions relating to development applications” of the Draft Plan which provides “If a development application has been made before the commencement of this Plan in relation to land to which this Plan applies and the application has not been finally determined before that commencement, the application must be determined as if this Plan had not commenced.”
78. Comment: The proposal is inconsistent with the provisions of this Draft Instrument in regard to the height of the building which exceeds the permitted 12m. As previously stated within this report, Council’s assessment has indicated that the proposal results in a lift overrun height of 12.6m whereby no Clause 4.6 Exception to Development Standard has been provided. As a result this application cannot be lawfully considered for a favourable determination.
Draft Environment SEPP
79. The Draft Environment SEPP was exhibited from 31 October 2017 to 31 January 2018. This consolidated SEPP proposes to simplify the planning rules for a number of water catchments, waterways, urban bushland, and Willandra Lakes World Heritage Property.
80. Changes proposed include consolidating the following seven existing SEPPs:
· State Environmental Planning Policy No. 19 – Bushland in Urban Areas
· State Environmental Planning Policy (Sydney Drinking Water Catchment) 2011
· State Environmental Planning Policy No. 50 – Canal Estate Development
· Greater Metropolitan Regional Environmental Plan No. 2 – Georges River Catchment
· Sydney Regional Environmental Plan No. 20 – Hawkesbury-Nepean River (No.2-1997)
· Sydney Regional Environmental Plan (Sydney Harbour Catchment) 2005
· Willandra Lakes Regional Environmental Plan No. 1 – World Heritage Property
81. Comment: The proposal is not inconsistent with the provisions of this Draft Instrument.
Draft Remediation of Land SEPP
82. The Department of Planning and Environment has announced a Draft Remediation of Land SEPP, which will repeal and replace the current State Environmental Planning Policy No 55 — Remediation of Land.
83. The main changes proposed include the expansion of categories of remediation work which requires development consent, a greater involvement of principal certifying authorities particularly in relation to remediation works that can be carried out without development consent, more comprehensive guidelines for Councils and certifiers and the clarification of the contamination information to be included on Section 149 Planning Certificates.
84. Whilst the proposed SEPP will retain the key operational framework of SEPP 55, it will adopt a more modern approach to the management of contaminated land. The Draft SEPP will not alter or affect the findings in relation to contamination at the site.
85. The site has a history of residential uses and as such, site contamination is not suspected. In this regard, no further assessment is warranted with regard to site contamination.
86. Comment: The proposal is not inconsistent with the provisions of this Draft Instrument.
Development Control Plan
Hurstville Development Control Plan No 1 (HDCP)
87. The proposal has been considered in accordance with the relevant chapters of the HDCP No 1 below.
DEVELOPMENT CONTROL PLAN NO 1 – LGA WIDE – SECTION 3.1 VEHICLE ACCESS, PARKING AND MANOEUVRING
88. The car parking rates set out within the State Environmental Planning Policy (Affordable Rental Housing) 2009 supersedes the DCP requirements. Under the SEPPARH seven (7) spaces are required however five (5) spaces are provided.
89. It is noted in relation to car parking; Council’s DCP controls for boarding houses prescribe a rate of “1 car space per 3 beds and 1 space per 2 employees”. Given that the proposal seeks to accommodate twenty eight lodgers (2 per room) and one (1) boarding house manager, based on fourteen (14) double beds and a double bed for a single boarding house manager. The car parking rate is based on the number of rooms therefore 14 divided by 3 equals 4.66 rounded up to 5 and 1 for the Manager/Caretaker. As a result 6 spaces are required. Notwithstanding the above, the proposal does not comply with the requirements of the SEPP in relation to minimum car parking.
DEVELOPMENT CONTROL PLAN NO 1 – LGA WIDE – SECTION 3.3 ACCESS AND MOBILITY
90. The development has been assessed against the key requirements of Section 3.3 as provided below.
Table 7: Hurstville Development Control Plan Section 3.3 Access and Mobility
|
Places of Shared Accommodation |
Standard |
Proposal |
Complies |
|
Adaptable dwellings |
1 accessible room per 5 guests/tenants bedrooms or part thereof – (28 tenants /14 bedrooms) = 3 required |
2 x accessible rooms (G01 and G02) proposed. The proposal is deficient by one (1) accessible room.
|
No |
|
Access requirements |
Access in accordance with AS1428 for all persons through the principal entrance of the building and to common areas |
The proposal has not provided adequate accessible travel pathways along the southern side which is noted as “pervious paving”.
(Note: No details provided of pervious paving consists of) |
No |
|
Accessible car space |
1 parking space per 10 rooms or part thereof – 1.5 required (rounded up to 2) as fifteen (15) rooms are proposed. |
The proposal is deficient space. |
No |
91. The application fails to provide sufficient, accessible parking, is deficient by one (1) accessible unit and provides inadequate accessible paths of travel. These aspects form reasons for refusal of the application.
DEVELOPMENT CONTROL PLAN NO 1 – LGA WIDE – SECTION 3.4 CRIME PREVENTION THROUGH ENVIRONMENTAL DESIGN
92. The proposal has been considered in accordance with the relevant provisions. The proposal incorporates the communal living room with a direct outlook to Dalcassia Street, Hurstville. Boarding rooms on levels 1 to 3 which also face Dalcassia Street provide opportunities for passive natural surveillance. In this regard, the proposal has adequately satisfied the requirements of this subsection.
DEVELOPMENT CONTROL PLAN NO 1 – LGA WIDE – SECTION 3.5 LANDSCAPING
93. As previously discussed within this report. A landscape plan was submitted and accompanied by an arborist report which have been reviewed as part of this proposal by Council’s Consulting Arborist and is considered acceptable.
DEVELOPMENT CONTROL PLAN NO 1 – LGA WIDE – SECTION 3.7 STORMWATER
94. The proposed drainage arrangement is discharging by gravity to an outlet in the street via an OSD system to the kerb and gutter to Dalcassia Street, Hurstville. Council’s Development Engineer supports this aspect of this proposal.
DEVELOPMENT CONTROL PLAN NO 1 – LGA WIDE – SECTION 4 – SPECIFIC CONTROLS FOR RESIDENTIAL DEVELOPMENT
95. Council’s Development Control Plan does not contain any specific controls for boarding house developments.
DEVELOPMENT CONTROL PLAN NO 1 – LGA WIDE – APPENDIX 1 – SECTION 7 WASTE MANAGEMENT
96. A Waste Management Plan has been submitted with the application and the submitted ground floor plan indicates 4 x 240L general waste bins, 2 x 240L recycling bins and 1 x 240L green waste bins are provided in the bin area shown on the site plan and the owners are responsible for placing bins on the kerb to be collected by the Council’s waste collection service.
97. The site plan submitted with this application indicates waste storage areas located on the ground floor and is not enclosed being adjacent to the north east side setback which is considered to result in adverse impacts in relation to odour, in particular to the adjoining dwelling at 13 Dalcassia Street, Hurstville. Given the above the proposal has not adequately satisfied the requirement of this section.
DEVELOPMENT CONTROL PLAN NO 1 – LGA WIDE – APPENDIX 1 – SECTION 8 ENERGY EFFICIENCY
98. As previously addressed within this report, a valid BASIX certificate accompanies this development application which achieves a pass mark. In this regard, the proposal has satisfied the considerations of this subsection.
DEVELOPMENT CONTROL PLAN NO 1 – LGA WIDE – APPENDIX 1 – SECTION 9 PRESERVATION OF TREES AND VEGETATION
99. A Landscape Plan was and submitted arborist report reviewed as part of this proposal and is supported by Council’s Consulting Arborist.
DEVELOPMENT CONTROL PLAN NO 1 – LGA WIDE – APPENDIX 1 – SECTION BUILDING HEIGHTS AND INDICATIVE NUMBER OF STOREYS
100. Council’s controls provide an indicative conversion for the building height in metres to a maximum number of storeys for residential zones. The site is zoned R3 Medium Density Residential which is to form three (3) storeys. The proposal seeks four (4) storeys. It is also noted that the proposal seeks floor to floor heights of 2,800mm – 3,000mm which may be inadequate for slab thickness and services. In this regard, the proposal does not satisfy the intention of this subsection.
INTERIM POLICY GEORGES RIVER DCP 2020
99. The proposed development is subject to the provisions of the Interim Policy Georges River DCP 2020. Only the applicable aspects have been assessed with respect to the Interim DCP. All other aspects have been thoroughly assessed under Hurstville DCP. The aim of an Interim Policy is to set a consistent approach for the assessment of residential development within the Georges River Local Government Area, until such a time as a comprehensive DCP is prepared and implemented. Comments are made with respect to the proposal satisfying the objectives and controls contained within the DCP. The proposal is not considered to be inconsistent with the Interim Policy.
DEVELOPER CONTRIBUTIONS
101. A boarding house requires payment of developer contributions under Section 7.12 of the Environmental Planning and Assessment Act 1979. The proposal is not recommended for support as a result contributions have not been levied.
IMPACTS
Natural Environment
102. A landscape plan and arborist report were submitted with the application. Council’s Consulting Arborist supports the proposal. Council’s Development Engineer supports the proposal in relation to the disposal of stormwater. In this regard, the proposal is considered to be satisfactory with respect to impacts on the natural environment.
Built Environment
103. The proposal in its current form is considered to result in a poor built form and internal functionality which results in amenity impacts on adjoining properties, reduced occupant amenity and adverse traffic and parking impacts.
104. The design is considered to be poor in terms of the layout, occupant and neighbouring amenity.
105. The proposal has not provided adequate car parking, communal open space, is deficient by one (1) accessible unit and has not demonstrated acceptable accessible access to and within the site, poor location of the waste storage area which results in poor levels of residential amenity.
106. The proposal seeks significant excavation to the side boundaries with a nil boundary to accommodate the basement. This limits opportunities for meaningful and substantial planting along the side boundaries for the full length of the building which are characteristic of similar built forms within the immediate vicinity. Building boundary to boundary is not characteristic of development in a residential zone.
Social Impact
107. The submitted Plan of Management makes reference to communal open space being accessible between 7.00am to 10.00pm seven days a week. The late night use is considered to result in adverse impacts to the immediate properties given its location.
Economic Impact
108. There is no apparent adverse economic impact given the residential nature of the proposal.
Suitability of the site
109. The site is zoned R3 – Medium Density Residential under the Hurstville Local Environmental Plan 2012. A boarding house is a permissible form of development in this zone however the proposal fails to meet a number of standards of the State Environmental Planning Policy (Affordable Rental Housing) 2009, Hurstville Local Environmental Plan 2012 and Hurstville Development Control Plan No 1. These non-compliances adversely affect the amenity of the development for future occupants and adjoining properties. For these reasons, and others discussed throughout this report, the application is not supported and is recommended for refusal.
SUBMISSIONS AND THE PUBLIC INTEREST
110. The application was neighbour notified in accordance with Hurstville DCP No 1 between 29 June and 13 July 2020. In response, Seven (7) submissions were received. All concerns raised within the submissions have been considered. The key issues raised within the submissions have been addressed below.
Insufficient car parking/traffic impacts to street parking
111. Officer Comment: The proposal is deficient by two (2) car parking spaces which are considered to detract from the amenity for future occupants. The reduced car parking results in a greater demand for on street car parking. This is considered to result in a poor planning outcome.
Poor amenity for future residents
112. Officer Comment: The proposal results in poor levels of occupant amenity and results in outcome which is inconsistent with the zone objectives. Furthermore, the proposal does not comply with the Development Standards within SEPP (ARH) 2009. It is acknowledged this development form is permissible in this zone, however the application is poorly planned having regard to the constraints of the site.
Overlooking/privacy impacts on neighbour properties
113. Officer Comment: Concerns were raised in relation to overlooking and privacy impacts. The proposal is considered to result in adverse impacts on the immediately adjoining northern neighbour due to the proposed design and outlook of the side balconies located on levels 1 to 3 which are 1.6m from the shared boundary.
Noise impacts on neighbours generated by the use /anti-social behaviour
114. Officer Comment: Concerns were raised in relation to the noise impacts generated by the boarders and communal open space. A Plan of Management accompanies this development application which includes management policies and procedures regarding behaviour. The proposed communal open space is proposed to be used between 7.00am to 10.00pm seven days a week which is considered to result in an adverse impact in relation to the late hours given the residential context which adjoins residential units at 17 Dalcassia Street, Hurstville. This forms a reason for refusal.
Side setback/ bulk and scale
115. Officer Comment: Concerns were raised in relation to the side setbacks of 1.6m for the four (4) storeys which is not supported as this detracts from the amenity of adjoining properties in relation to overshadowing, scale and outlook. Concerns were raised in relation to bulk and scale impacts given the proposed built form in this streetscape context. Council’s assessment indicates that the proposal results in a built form which is incompatible and not sympathetic in the immediate local area which is primarily due to the proposed built form being tall on a narrow allotment of 12.19m and there is no balance in the vertical/horizontal scale.
Noise impacts from lift
116. Officer comment: The proposed lift is not considered to result any unreasonable noise impact given the residential nature of the development. However the application is not supported for other reasons contained within this report.
Impact of demolition/adjoining structures
117. Officer Comment: Demolition works are subject to standard conditions and a geotechnical report would be required prior to the issue of a Construction Certificate however the application is not recommended for approval for other reasons contained within this report.
Noise impact generated by AC units
118. Officer Comment: No details have been provided in relation to the location of AC units.
Overshadowing impact
119. Officer Comment: The proposed built form is considered to result in unacceptable overshadowing impacts which result from the 1.6m side setbacks. The proposed side setbacks are considered to be insufficient and result in adverse overshadowing impacts to adjoining properties.
Density and impact from Covid-19 and associated health risks
120. Officer Comment: The proposal is a permissible use. The number of persons per boarding room is limited to two (2) lodgers which complies with the maximum number of lodgers per room under SEPP (Affordable Rental Housing) 2009.
Increased waste
121. Officer Comment: Concerns were raised in relation to increased waste demand. The proposal provides an open waste area is which is not considered to be desirable and is likely to result in adverse odour impacts given its location. Issues in relation to existing dumping of waste such as mattresses form a compliance matter and are separate to the assessment of this application.
Devaluation in property
122. Officer comment: Concerns were raised in relation to devaluation of property. This is not a matter for consideration under the provisions of the Environmental Planning an Assessment Act.
REFERRALS
Council Referrals
Consultant Arborist
123. The application was referred to Council’s Consultant Arborist who has supported the proposal subject to conditions.
Development Engineer
124. The application was referred to Council’s Development Engineer. The proposal seeks to drain through the inlet in the kerb and gutter in front of the subject site which is supported subject to conditions of consent.
Traffic Engineer
125. The application was referred to Council’s Senior Traffic Engineer. The proposal has not provided adequate car parking on site and further that:
“A blanket requirement of 2.3m minimum headroom applies to all travel paths to and from parking spaces for people with disabilities, together with additional headroom above such spaces for unloading roof-mounted wheelchairs as per AS2890.6
Conflict between vehicles leaving the site and vehicles entering the site along the one-way vehicular crossing has not been addressed”
126. Comment: Given the above, the proposal has not provided adequate on site car parking which results in poor amenity and site functionality and serviceability for future occupants.
Environmental Health Officer
127. Council’s Environmental Health Officer has reviewed the proposal and did not raise any concerns regarding the proposal.
Senior Building Surveyor
128. The application was referred to Council’s Senior Building Surveyor for comment, who supported the application subject to conditions.
129. Comment: It is noted that no BCA report or information on services such as boosters has been provided. The requirement of such services may potentially detract from the front setback and presentation to the street if required and ultimately change the façade treatment and serviceability of the development.
Infrastructure
130. The application was referred to Council’s Infrastructure Engineer for comment, who supports this aspect of the proposal subject to conditions.
GIS
131. The application was referred to Council’s GIS section for comment; this aspect of the proposal was supported subject to conditions.
External Referrals
Ausgrid
132. The application was referred to Ausgrid in accordance with Clause 45(2) of State Environmental Planning Policy (Infrastructure) 2007. In response, Ausgrid advised there are no issues with the proposal subject to as minimum clearance distances from Ausgrid’s Infrastructure.
Urban Design Referral
133. The application was referred externally for urban design comments which raised the following deficiencies with the current design as follows.
134. “GMU has reviewed the DA information provided by Council relating to the new generation boarding house development located at 15 Dalcassia Street, Hurstville. Please see below urban design comments summarising the findings of our initial review.
Context and building character
135. The site’s immediate area is predominately characterised by 3-4 storey residential flat buildings on larger/consolidated lots. Most lot widths are greater than 18m and traditional dwelling houses on smaller fine-grain lots are also found in the area. Larger scale development generally provides side setbacks resulting in 6-9m separation (as measured from NearMap) between buildings as landscaped areas alongside boundaries. This forms part of the existing streetscape character of the area.
136. As per the Ground Level Plan (DA 102, Cracknell & Lonergan Architects, March 2020), the proposal provides approximately 1.5-1.6m setback to side boundaries with no provision of deep soil planting due to the narrow lot width and the extent of the basement level, which is built to both side boundaries. HDCP has not provided detailed guidelines for boarding houses; however, the residential flat buildings are required to provide side setbacks in accordance with ADG (HDCP 4.1 D.S 6.1) and landscaping are encouraged alongside boundaries (HDCP 3.5 P.C 5). For developments of similar scale, residential flat buildings will be required to provide at least 4.5m setbacks to side boundaries. We acknowledge that the ADG does not apply to boarding house developments but it is reasonable to expect that the development responds to key ADG principles to ensure an outcome which is compatible with future (RFB) developments in the area. If the proposal is to keep consistent with the desired future character, we consider that an increased side setback for both sides needed to achieve a better relationship with the neighbouring development, and incorporate deep soil planting to create a landscape buffer that responds to the character of the area.
137. The current design provides long continuous blank wall facades facing both side boundaries, which is a concern resulting in a visual impact to the neighbouring developments as well as to the streetscape character. This issue is further exacerbated as no landscape buffers are proposed to screen the side boundaries. The continuous blank wall element in its current height and proximity to the side boundary will create an increased sense of enclosure and a poor outlook for the development at No 17 Dalcassia St where the adjacent property has living rooms/balconies facing the common boundary.
138. We recommend the proposal be amended to incorporate substantial vertical indents and higher quality façade design to the northern and southern elevations to break up the continuous length of the facades, which in turn, will provide increased opportunity for landscaped areas and allow for rooms to be reorientated to front the internal open spaces. This would improve outlook to these rooms and assist in mitigating overlooking and visual privacy issues including those related to Rooms 103, 203 and 302 which all have balconies looking over the common boundary which borrows the amenity from the neighbouring site.
139. The main building envelope appears to comply with the maximum height control with only a minor part of the lift overrun exceeding the height limit (DA 301). However, this is achieved through reduced floor to floor heights (2.88m) which may limit the internal amenity for future occupants. Further detailed information is required to demonstrate that the proposal can achieve a minimum floor-to-ceiling height of 2.7m with appropriate thickness proposed for slabs and finishes to ensure appropriate levels of amenity and daylight to rooms.
140. According to the photomontage (DA 701 & 702, Cracknell & Lonergan Architects, March 2020), the proposal has not yet achieved a well-composed façade design, especially to its western and eastern elevations. The proposed rhythm of the openings and solid walls, thick frames and overhangs above the entries and common rooms result in poor built form proportions and excessive visual bulk which is considered out of character with the surrounding area. The combination of rectangular shapes and curvy forms further contribute to an unbalanced façade design to the streetscape, creating visual clutter. We recommend that the front and rear elevations are simplified to achieve a more harmonious outcome.
Pedestrian and vehicle access
141. The proposed vehicle ramp is exposed along the side boundary. We notice this becomes a repetitive pattern established by the other RFB type developments in the vicinity of the subject site. However, we consider it presents a poor outcome that should not be set as a precedent for future development. We recommend encapsulating the vehicle entry and ramp within the main building envelope if possible to allow increased opportunity for deep soil landscaping along the side boundaries as well as contribute positively to the desired residential streetscape character.
142. The proposed residential entry and pathway is adjacent to the vehicle ramp, which presents a potential safety concern. A clearly separated pedestrian and vehicle access should be provided. The residential lobby is deeply inset away from the street boundary by approximately 18m and is not clearly identified through the façade design.
143. One of the proposed fire exits from the basement level is located adjacent to the ground level terrace associated with the communal room. It is not well integrated with the main building design and may provide a potential area of concealment. The design should be revised to incorporate it into the main building envelope and in a location that allows a continuous active front façade to the street boundary.
Communal Spaces
144. The current design presents a safety concern and poor amenity for the front common space as it appears to be fully visible and accessible from the street. With regards to accessing the rear lawns, residents have to exit the building, walk along the side boundary and pass through the windows of the adjacent apartment, which we consider would be an acoustic concern for the neighbouring residents.
145. Units G01 and G02 are sunken into the ground by around 1 metre. With publicly accessible lawns sitting in front, it brings potential acoustic, privacy and overlooking issue to these units as no privacy-protecting measures have been provided.
Waste Room
146. The waste room is located on the ground floor behind the basement entry but directly opposite to the residential lobby. It appears that the waste room is not fully enclosed with an opening to the side boundary. We are concerned that it will result in amenity issues for both the future residents on site and neighbours, i.e. odors and adverse visual impact. It is recommended to relocate it to the basement level and fully enclosed if possible.
Location of manager’s room
147. The proposed Care Taker’s room is located on the top floor at the rear of the building. It is far from the main activity zones i.e. communal living room, main building entry. We recommend to relocate it to the ground level closer to where the common room and main pedestrian entry are, providing passive surveillance to these areas.
Conclusion
148. It is GMU’s opinion that the current scheme requires adjustments to ensure a sympathetic response to the existing and desired future context. Further amendments are required to address the issues raised above to achieve a better urban design outcome”
149. Comment: The above concerns have been considered as part of the assessment of the application regarding; insufficient allotment width, blank walls along the side elevations, inadequate floor to floor heights, pedestrian and vehicle safety, poor amenity of communal open space, amenity issues due to open waste room and location of managers room being disjointed from main building entry. The extent of the changes required to satisfy the above have implications to the current layout and would require a full redesign.
CONCLUSION
150. The proposal has been assessed in accordance with Section 4.15 of the Environmental Planning and Assessment Act, 1979. As discussed within this assessment report, the proposal fails to meet a number of the minimum standards in State Environmental Planning Policy (Affordable Rental Housing) 2009. The proposal also fails to meet a number of matters referenced in the Development Control Plan relating to; accessibility, car parking, vehicular access to the site and number of storeys, resulting in adverse amenity impacts. As such, the proposed development in its current form is not considered to be suitable for the site and the immediate context.
151. The application is recommended for refusal for the reasons outlined below.
DETERMINATION AND STATEMENT OF REASONS
Statement of Reasons
152. The reasons for this recommendation are:
· The proposal fails to demonstrate compliance with a number of State Environmental Planning Policy (Affordable Rental Housing) 2009 standards in relation to car parking, communal open space and local Character
· The proposed development results in poor residential functional amenity (access, communal open space) on site for future occupants and results adverse amenity impacts to adjoining properties.
· The proposal does not provide sufficient amenity in terms of; onsite parking, accessible units, access arrangements, vehicular access, accessible parking and waste storage with the Hurstville Development Control Plan No. 1.
· The proposed development will have unacceptable adverse impacts on the built environment.
· In consideration of the aforementioned reasons, the proposed development in its current form is not a suitable and planned use of the site and its approval is not in the public interest.
Determination
153. THAT pursuant to Section 4.15 of the Environmental Planning and Assessment Act, 1979, the Georges River Local Planning Panel refuse Development Application DA2020/0261 for demolition of existing structures and construction of 15 room boarding house (one being a caretakers room), landscaping and site works on Lot 56 DP6510 and known as 15 Dalcassia Street, Hurstville for the following reasons:
1. Insufficient information – No Clause 4.6 Exception to Development Standard -
(a) No Clause 4.6 Exception to Development Standards has been provided in support of the lift overrun which breaches the 12m height of building of the Hurstville Local Environmental Plan 2012.
2. State Environmental Planning Policy (Affordable Rental Housing) 2009 - Pursuant to Section 4.15(1)(a)(i) of the Environmental Planning and Assessment Act 1979, the proposed development does not comply with the State Environmental Planning Policy (Affordable Rental Housing) 2009 in terms of the following:
(a) Cl. 29(2)(d)(i) – the proposal provides inadequate, poorly located and insufficient communal open space which detracts from the functionality, liveability and on-site amenity for future occupants. This also results in poor amenity impacts to directly adjoining properties given the proposed late night operation until 10.00pm seven days a week.
(b) Cl. 30(e)(iia) – the proposed development has provided insufficient on site car parking spaces which detract from the amenity, functionality and serviceability of the development for future occupants.
(c) Cl.30A – the proposed development is not consistent with the existing or desired future character of the locality with respect to inadequate setbacks and spatial separation within this streetscape context and visual catchment and provides limited opportunity for meaningful landscaping along the side setbacks for the full length of the building.
3. Hurstville Local Environmental Plan 2012 - Pursuant to Section 4.15(1)(a)(i) of the Environmental Planning and Assessment Act 1979, the proposed development does not satisfy the following objective of the R3 Low Density Residential Zone of the Hurstville Local Environmental Plan 2012.
o To ensure that a high level of residential amenity is achieved and maintained.
4. Hurstville Development Control Plan No 1 - Pursuant to Section 4.15(1)(a)(iii) of the Environmental Planning and Assessment Act 1979, the proposed development does not comply with the following sections of Chapter 3 of the Hurstville Development Control Plan No. 1:
(a) Chapter 3.3 Access and Mobility - The proposal is deficient one (1) accessible space, and one (1) accessible room, with the application failing to demonstrate suitable vehicular access and manoeuvrability within the site.
5. Hurstville Development Control Plan No 1 - Pursuant to Section 4.15(1)(a)(iii) of the Environmental Planning and Assessment Act 1979, the proposed development does not comply with the following Appendix 1 – Building heights and indicative number of storeys:
(a) The proposal seeks four (4) storeys whereby three (3) storeys are indicative within the R3 Medium Density Residential Zone resulting in poor built form scale.
6. Impacts on the Environment - Pursuant to Section 4.15(1)(b) of the Environmental Planning and Assessment Act 1979, the proposed development is likely to have an adverse impact on the following aspects of the built environment:
(a) The proposal in its current form is incompatible with the existing and desired future character in relation to the proposed side setbacks and inadequate spatial separation.
(b) The development proposes inadequate and poorly located communal open space within the front setback.
(c) The Plan of Management is deficient with respect to its content.
7. Suitability of Site - Pursuant to Section 4.15(1)(c) of the Environmental Planning and Assessment Act 1979, the site is not considered suitable for the proposed development as:
(a) The development fails to achieve suitable levels of amenity for future residents and adjoining allotments as a result of poor layout and functionality.
8. Public interest - Pursuant to Section 4.15(1)(e) of the Environmental Planning and Assessment Act 1979, the proposed development in its current form is not considered to be in the public interest and is likely to set an undesirable precedent within the locality.
9. Insufficient information
(a) No elevational solar access diagrams have been provided demonstrating the extent of impact to the adjoining residential flat building windows and balconies at 17 Dalcassia Street, Hurstville and if in fact compliance can be achieved.
Appeal Rights - Part 8 (Reviews and appeals) of the Environmental Planning and Assessment Act 1979 confers on an applicant who is dissatisfied with the determination of the application a right of appeal to the Land and Environment Court of New South Wales.
Review of Determination - Section 8.2 of the Environmental Planning and Assessment Act confers on an applicant who is dissatisfied with the determination of the application the right to lodge an application with Council for a review of such determination. Any such review must however be completed within 6 months from its determination. Should a review be contemplated sufficient time should be allowed for Council to undertake public notification and other processes involved in the review of the determination.
Note: Review provisions do not apply to Complying Development, Designated Development, State Significant Development, Integrated Development or any application determined by the Sydney South Planning Panel or the Land & Environment Court.
|
Attachment ⇩1 |
Site Plan and Elevations - 15 Dalcassia Street Hurstville |
|
Georges River Council - Georges River Local Planning Panel (LPP) - Thursday, 10 December 2020 LPP063-20 15 Dalcassia Street Hurstville [Appendix 1] Site Plan and Elevations - 15 Dalcassia Street Hurstville |
Page 40 |


|
Georges River Council – Local Planning Panel Thursday, 10 December 2020 |
Page 100 |
REPORT TO GEORGES RIVER COUNCIL
LPP MEETING OF Thursday, 10 December 2020
|
LPP Report No |
LPP064-20 |
Development Application No |
DA2020/0115 |
|
Site Address & Ward Locality |
57 Lorraine Street Peakhurst Peakhurst Ward |
||
|
Proposed Development |
Hurstville Golf Club - Demolition of the existing clubhouse, construction of a new two (2) storey clubhouse and use of the strucutre |
||
|
Owners |
Georges River Council |
||
|
Applicant |
Georges River Council |
||
|
Planner/Architect |
Webber Architects |
||
|
Date Of Lodgement |
23/03/2020 |
||
|
Submissions |
Two (2) |
||
|
Cost of Works |
$2,586,100.00 |
||
|
Local Planning Panel Criteria |
Development for which the Land Owner and Applicant is Georges River Council. |
||
|
List of all relevant s.4.15 matters (formerly s79C(1)(a)) |
State Environmental Planning Policy (Coastal Management) 2018; State Environmental Planning Policy No.55 – Remediation of Land; State Environmental Planning Policy (Infrastructure) 2007; State Environmental Planning Policy (Vegetation in Non-Rural Areas) 2017; Deemed State Environmental Planning Policy – Georges River Catchment; Hurstville Local Environmental Plan 2012; Hurstville Development Control Plan No.1 – LGA Wide; Draft Environment State Environmental Planning Policy 2017; Draft Remediation State Environmental Planning Policy; Draft Georges River Local Environmental Plan 2020; and Draft Georges River Development Control Plan |
||
|
List all documents submitted with this report for the Panel’s consideration |
Architectural Plans Statement of Environmental Effects
|
||
|
Report prepared by |
Independent Assessment |
||
EEEEW
|
|
Summary of matters for consideration under Section 4.15 Have all recommendations in relation to relevant s4.15 matters been summarised in the Executive Summary of the assessment report? |
Yes |
|
Legislative clauses requiring consent authority satisfaction Have relevant clauses in all applicable environmental planning instruments where the consent authority must be satisfied about a particular matter been listed and relevant recommendations summarised, in the Executive Summary of the assessment report? |
Yes |
|
Clause 4.6 Exceptions to development standards If a written request for a contravention to a development standard (clause 4.6 of the LEP) has been received, has it been attached to the assessment report? |
Not Applicable
|
|
Special Infrastructure Contributions Does the DA require Special Infrastructure Contributions conditions (under s7.24)? |
Not Applicable |
|
Conditions Have draft conditions been provided to the applicant for comment? |
Yes – the applicant has reviewed the conditions |
|
Site Plan
The development area is outlined in red and the site is outlined in blue (Source: Metromap) |
EXECUTIVE SUMMARY
Proposal
1. The proposed development seeks consent for the demolition of the existing single storey clubhouse and ancillary structure (i.e. BBQ area, outdoor seating, and practice nets) and construction of a new part one (1) and part two (2) storey clubhouse at the Hurstville Golf Club. The proposed clubhouse comprises three (3) buildings: a single storey pro-shop, a two (2) storey clubroom, and a single storey golf cart storage area.
2. The clubhouse is proposed to operate from 5:45am – 7:00pm daily, with the exception of a few annual events which would operate up to 10.00pm.
3. The application also proposes the removal of twenty two (22) trees on the site in order to accommodate the new clubhouse.
Site and Locality
4. The subject site is legally identified as Lot 1 in DP 176469 (allotment the work is being undertaken on), Lot 1 DP33385 and Lot 7054 DP1127614 and Lot 3 DP522691 (57A Lorraine Street) and has a street address of 57 Lorraine Street, Peakhurst.
5. The site has an area of approximately 39.42 hectares and is irregular in shape. The site is bounded by Oatley Heights Park and Lime Kiln Bay to the south east, industrial development on the northern side of Roberts Avenue and low-density residential development on the western side of Lorraine Street.
6. The locality is characterised by dwelling houses typically ranging in height from one (1) to two (2) storeys.
7. The site is currently occupied by Hurstville Golf Club, which comprises an 18-hole golf course, a single storey clubhouse, and significant vegetation (including mature tree plantings).
Zoning and Permissibility
8. The site is zoned part RE1 Public Recreation and part W2 Recreational Waterways under the Hurstville Local Environmental Plan 2012. The proposed works are located on land zoned RE1 Public Recreation. The proposed clubhouse is ancillary to the existing golf course, which is categorised as a recreational facility (outdoor), which are permitted with consent in the zone.
Submissions
9. The development application was publicly exhibited in accordance with the provisions of the Hurstville Development Control Plan No.1. The application was notified between 6 April 2020 and 27 April 2020. Two (2) submissions were received in response. These submissions will be discussed in detail later in this report.
Reason for Referral to the Local Planning Panel
10. The application is referred to the Local Planning Panel for consideration and determination as it relates to a development for which the Land Owner is Georges River Council.
Conclusion
11. The proposed development has been assessed having regard to the matters for consideration under Section 4.15(1) of the Environmental Planning and Assessment Act 1979. The proposal is acceptable and the application is recommended for approval subject to conditions.
REPORT IN FULL
DESCRIPTION OF THE PROPOSAL
12. The proposed development seeks consent for the demolition of the existing single storey clubhouse and ancillary structure (ie BBQ area, outdoor seating, and practice nets) and construction of a new part one (1) and part two (2) storey clubhouse at the Hurstville Golf Club.
13. The application also proposes the removal of twenty two (22) trees on the site in order to accommodate the new clubhouse building.
14. The new clubhouse complex comprises three (3) buildings: a single storey pro-shop, a two (2) storey clubroom, and a single storey golf cart storage area. The buildings are sited as separate structures yet are connected by one (1) roof form. The proposed clubhouse has a larger footprint and extends further towards the north east than the existing clubhouse on the site.
15. The single storey pro-shop building comprises an 86sqm pro-shop, a front counter, a workshop, and one (1) office. An outdoor golf cart staging area is proposed to the rear of the building at ground floor.
16. The two (2) storey clubroom/amenities building is proposed to accommodate amenities and changing room facilities, a meeting room, a plant room, and one (1) office at ground floor. Proposed uses at first floor level include amenities, storage, a kitchen, and an indoor clubroom area of approximately 134sqm with internal seating for approximately 80 persons. A balcony/viewing platform is proposed to extend from the rear of the indoor seating area (i.e. overlooking the golf course). The building will be serviced by a lift and stairway that provide access between the ground and first floors. An outdoor seating and BBQ area is proposed at ground floor to the rear (i.e. south west) of the clubroom/amenities building.
17. The single storey golf cart storage building will provide storage area for 30 golf carts. External structures, including two (2) 5000L rainwater tanks, a plant room, an enclosed bin room, and a bin wash bay are proposed adjacent to the building.
18. The external building materials include linear honed concreate brickwork, vertical metal cladding, white render, and grey tinted glazing. Photovoltaic panels are proposed to the roof of the golf cart storage and clubroom/amenities buildings.
19. Internal access paths (ie sandstone paving) are proposed to lead from the entrance of the site and will connect the three (3) built forms.
20. The proposed landscaping scheme comprises feature shrub plantings, and ground covers within the front setback and to the rear (ie south east) of the proposed building.
21. The existing golf course operates from 5.45am to 7.00pm daily. The proposed clubhouse is to operate from 5.45am to 7.00pm daily, with the exception of a few annual events which will operate up until 10.00pm.
22. Food (ie hot food and confectionary) and drink, including alcoholic beverages, are currently sold on the site. No food is prepared on site. No change is proposed to this existing arrangement.
23. A total of seven (7) staff are currently employed on the site. No change is proposed to this existing arrangement.
DESCRIPTION OF THE SITE AND LOCALITY
24. The site is located at 57 Lorraine Street, Peakhurst and is legally described as Lot 1 in DP 176469 (allotment the work is being undertaken on), Lot in DP33385 and Lot 7054 in DP1127614 and Lot 3 in DP522691 (57A Lorraine Street). The location of the site is shown in Figure 1.

Figure 1: Aerial view of site and locality (Source: Metromap)
25. The site has an area of approximately 39.42 hectares and is irregular in shape. The site has a 640m frontage to Lorraine Street and a 470m frontage to Roberts Avenue. As shown in Figure 1, the site of the proposed works is centrally located on the western boundary of the site on the Lorraine Street frontage.
26. The topography of the site has a slight fall from the north to the south.
27. The site is located in a predominately low-density residential locality comprising development of a variety of architectural styles and form.
28. The site is bounded by Oatley Heights Park and Lime Kiln Bay to the south east, industrial development to the north of Roberts Avenue and low-density residential development to the west of Lorraine Street and to the east along Ballantyne Road.
29. Development on the western side of Lorraine Street is characterised by dwelling houses typically ranging in height from one (1) to two (2) storeys (refer to Figure 2).
Figure 2: Two (2) storey dwellings at 108 (left) and 106 (right)
Lorraine Street, to the north west of site
30. Directly to the west of the site, at 110A-110B and 110C-110D Lorraine Street are two (2) dual occupancy dwellings (refer to Figure 3).
Figure 3: Dual occupancy dwellings at 110A-110B (right) and
110C-110D (left) Lorraine Street, to the west of site
31. The site is currently occupied by Hurstville Golf Club, which comprises an 18-hole golf course and a single storey clubhouse. The existing clubhouse includes a pro-shop, amenities and changing facilities, golf cart storage, and covered outdoor seating. The existing clubhouse building has no indoor area for members or patrons of the golf course to congregate. This is limited to the ‘covered’ outdoor BBQ area to the south of the first tee and the outdoor seating area in front of the clubhouse building.
32. The existing golf course operates from 5.45am to 7.00pm daily. Food (ie hot food and confectionary) and drink, including alcoholic beverages, are currently sold on the site. No food is prepared on site.
33. The site benefits from an existing liquor license which permits the sale, supply and consumption of bottled or canned alcohol from the pro-shop and for events to the marquee area adjacent to the southern side of the pro-shop between the hours of 10.00am and 4.00am the following day. The license restricts the marquee area to a maximum number of 120 persons and restricts the sale of alcohol to within the confines of the premises and that no alcohol is sold for the purposes of consumption outside the perimeter of the subject property.
34. Significant vegetation (including mature tree plantings) exists on the subject site.
35. A site inspection was undertaken on 19 October 2020. Photographs of the site and existing development are shown in Figures 4-6.
Figure 4: Front (ie western) façade of existing clubhouse
on subject site, viewed from Lorraine Street

Figure 5: Southern façade of existing clubhouse (ie pro-shop) on subject site
Figure 6: Existing clubhouse and trees on subject site, viewed
towards the south west
36. As shown in Figure 7, the facility is serviced by on-street parking located along the eastern side of Lorraine Street, adjacent to the clubhouse entrance. 148 perpendicular (ie 90 degree) parking spaces exist along the golf course frontage, 70 of which are marked.

Figure 7: Southern view of Lorraine Street (NB: residential dwellings to right of image; 90 degree on-street parking to left of image)
BACKGROUND
37. Hurstville golf course opened in 1968.
38. DA1995/0466 was approved on 6 October 1995 for the addition of an amenities block and clubhouse at the site.
39. Approval was granted under DA1995/0467 on 6 October 1995 for the fit-out of the golf pro-shop.
40. DA2008/0089 granted consent for alterations to the recreational facility at the site on 4 March 2008.
41. DA2013/0163 was approved on 4 September 2013 for an extension to the existing pro-shop for a new meeting room with awning. However, this does not appear to have been constructed.
42. MOD2015/0018 was approved on 6 May 2015 to modify DA2013/0163 for internal reconfiguration works and the addition of a water tank at the site.
PLANNING ASSESSMENT
43. The development has been assessed having regard to Matters for Consideration under Section 4.15(1) of the Environmental Planning and Assessment Act 1979. Compliance with the relevant Environmental Planning Instruments is detailed below.
STATE ENVIRONMENTAL PLANNING POLICIES
State Environmental Planning Policy (Coastal Management) 2018
44. The Coastal Management SEPP provides management objectives for land use planning within coastal management areas. Clauses 11 and 15 of the SEPP apply to the subject site as it is identified within the Coastal Environment Area and the Coastal Use Area.
45. The site of the proposed works is not located on land identified as Coastal Environment Area or Coastal Use Area. Notwithstanding, assessment of the proposed development against Clauses 11 and 15 of the SEPP is provided below.
Clause 11
46. Clause 11 of the SEPP states that development on land in ‘proximity area for coastal wetlands’ or ‘proximity area for littoral rainforest’, must not be granted development consent unless the consent authority has considered whether the proposed development is likely to cause an adverse impact on the following:
“(a) The biophysical, hydrological or ecological integrity of the adjacent coastal wetland or littoral rainforest, or
(b) The quantity and quality of surface and ground water flows to and from the adjacent coastal wetland or littoral rainforest.”
47. The proposed development is consistent with the provisions of Clause 11 as outlined below:
· Minimal excavation works are proposed, thus there is no potential for significant adverse impact to the biophysical, hydrological, or ecological environment; and
· The proposal incorporates on-site stormwater collection measures to manage water flows to and from nearby coastal wetland and littoral rainforest.
Clause 15
48. Clause 15 of the SEPP states that “development consent must not be granted to development on land within the coastal zone unless the consent authority is satisfied that the proposed development is not likely to cause increased risk of coastal hazards on that land or other land”.
49. Noting that the proposed works are not located on or near the coastal edge, the risk of coastal hazards or adverse impact to the marine environment is not likely.
State Environmental Planning Policy No 55 – Remediation of Land
50. SEPP 55 prescribes a statutory process associated with the development of land that is contaminated and needs remediation.
51. The site has historically been used for the purpose of a recreational facility. The proposal seeks approval for the construction of a recreational facility and does not involve a change of use. On this basis, the proposal is consistent with the provision of SEPP 55.
State Environmental Planning Policy (Infrastructure) 2007
52. The aim of the Infrastructure SEPP is to facilitate the effective delivery of infrastructure across the State. The DA was referred to Ausgrid in accordance with Clause 45 of State Environmental Planning Policy (Infrastructure) 2007. Ausgrid raised no objection to the proposal, subject to ‘as constructed’ minimum clearance distances from Ausgrid’s Infrastructure.
State Environmental Planning Policy (Vegetation in Non-Rural Areas) 2017
53. The Vegetation SEPP seeks to protect the biodiversity values of trees and other vegetation in non-rural areas of the State and preserve the amenity of non-rural areas through the preservation of trees and other vegetation. This is applicable pursuant to Clause 5(1) of the Vegetation SEPP as the site is both within the Georges River Local Government Area and on land zoned RE1 Public Recreation.
54. The Vegetation SEPP applies to clearing of:
a) Native vegetation above the Biodiversity Offset Scheme (BOS) threshold where a proponent will require an approval from the Native Vegetation Panel established under the Local Land Services Amendment Act 2016; and
b) Vegetation below the BOS threshold where a proponent will require a permit from Council if that vegetation is identified in the Council’s development control plan (DCP).
55. Pursuant to Clause 8(1) of the SEPP, clearing does not require authority under the policy as it is a type of clearing that is authorised under Section 60O of the Local Land Services Act 2013 (specifically, that associated with a development consent issued under Part 4 of the Environmental Planning and Assessment Act 1979).
56. The proposed development seeks the removal of twenty two (22) trees on the site in order to accommodate the new clubhouse. An extract from the submitted Site Demolition Plan noting existing trees to be removed is provided at Figure 8.

Figure 8: Extract from Site Demolition Plan noting exiting trees to be removed (Source: Webber Architects)
57. An Arboricultural Assessment Report prepared by Truth About Trees dated 2 March 2020 was submitted in support of the application. The report provides an assessment of trees on the site to be removed, retained, and protected.
58. Council’s Consultant Arborist reviewed the submitted Arborist Report and raised no objections subject to the imposition of conditions, including a requirement for the planting of forty four (44) replacement trees, which have been endorsed.
Deemed State Environmental Planning Policy – Georges River Catchment
59. The Greater Metropolitan Regional Environmental Plan No 2—Georges River Catchment applies to all land within the Georges River Catchment. The Catchment consists of parts of the Georges River LGA and includes the subject site.
60. The aims of the plan which are relevant to the subject application include:
“(a) to maintain and improve the water quality and river flows of the Georges River and its tributaries and ensure that development is managed in a manner that is in keeping with the national, State, regional and local significance of the Catchment,
(b) to protect and enhance the environmental quality of the Catchment for the benefit of all users through the management and use of the resources in the Catchment in an ecologically sustainable manner,
(…)
(f) to provide a mechanism that assists in achieving the water quality objectives and river flow objectives agreed under the Water Reform Package.”
61. The proposal involves minor excavation works. All excavated and disturbed soil are proposed to be stored on the site to prevent soil erosion and are unlikely to result in any significant adverse impact with regard to soil erosion or sedimentation.
62. The proposed development does not encroach on any Vegetated Buffer Areas of the Georges River or its tributaries.
63. All stormwater from the proposed development can be treated in accordance with Council’s Water Management Policy and will satisfy the relevant provisions of the Deemed State Environmental Planning Policy – Georges River Catchment.
Integrated Development
64. The proposal is not integrated development as defined under Clause 4.46 of the Environmental Planning and Assessment Act 1979.
LOCAL ENVIRONMENTAL PLAN
Hurstville Local Environmental Plan 2012
65. The site is zoned part RE1 Public Recreation and part W2 Recreational Waterways under the Hurstville Local Environmental Plan 2012.
66. The proposed works are located on land zoned RE1 Public Recreation. The existing use of the site for the purposes of a golf course is categorised as a public recreation facility (outdoor). The proposed demolition of and construction of a new clubhouse and associated facilities is ancillary to the existing permitted use of the site.
67. The objectives of the RE1 Public Recreation zone are as follows:
· To enable land to be used for public open space or recreational purposes.
· To provide a range of recreational settings and activities and compatible land uses.
· To protect and enhance the natural environment for recreational purposes.
The proposed development is consistent with the stated objectives of the RE1 zone in that it seeks to improve the function and operations of an existing golf course. The works will allow the golf club to cater to current and future membership requirements.
68. The proposal also seeks to upgrade the amenity of the surrounding landscape, to enable the site to retain a landscaped setting that is compatible with surrounding residential land uses. This is achieved through the planting of various feature shrubs and ground cover within the front setback and to the rear (i.e. south-east) of the building. The proposed landscaping will facilitate privacy screening and softening of the front building façade, whilst maintaining opportunities for passive surveillance.
69. Compliance with applicable standards of the HLEP 2012 is outlined below.
|
Clause |
Standard |
Proposed |
Complies |
|
4.3 Height of Buildings |
There is no height of buildings development standard applying to the subject site. |
8.6m |
N/A |
|
4.4 Floor Space Ratio |
There is no floor space ratio development standard applying to the subject site. |
The proposal results in a gross floor area (GFA) of 712sqm. |
N/A |
|
6.1 - Acid Sulfate Soils |
The site is located within the Class 1, Class 2, and Class 5 acid sulfate soils zones. |
The location of proposed works is not contained in any acid sulfate soils zone and the proposal does not involve excavation greater than 1m in depth. |
Yes |
|
6.2 Riparian Land and Watercourses |
The site is identified as containing sensitive riparian/ watercourses land. |
The site of proposed works is not located on sensitive riparian/ watercourses land.
Notwithstanding, the proposal is unlikely to have significant adverse impact on the water quality, stability of beds and banks, or ecological processes within watercourses, or on aquatic and riparian habitats. The proposal does not involve any increase in water extraction from the nearby watercourse. |
Yes |
|
6.4 - Foreshore Scenic Protection Area |
The site is identified within a ‘Foreshore Scenic Protection Area’. Clause 6.4(3) provides that development consent must not be granted to development on land to which this clause applies unless consent authority has considered how the development would – |
||
|
(a) affect the natural environment, including topography, rock formations, canopy vegetation or other significant vegetation, and |
The design of the proposal aligns with the natural topography of the site. Notwithstanding the proposed removal of trees, significant vegetation is retained and replacement planted required on the site and is well integrated with the built form. |
Yes |
|
|
(b) affect the visual environment, including the views to and from the Georges River, foreshore reserves, residential areas and public places, and |
The proposed design will not have significant adverse impact to existing views and outlook of residential properties, given that a wide view of the golf course will be maintained. The building design is separated into three (3) distinct built forms connected by a flat roof, providing glimpses through the building towards the golf course and existing vegetation to the east. |
Yes |
|
|
(c) affect the environmental heritage of Hurstville, and |
The site is not listed as a heritage item or located in a conservation area. |
Yes |
|
|
(d) contribute to the scenic qualities of the residential areas and the Georges River by maintaining the dominance of landscape over built form. |
The site of proposed works is zoned RE1 Public Recreation with residential development to the west, on the opposite site of Lorraine Street.
Notwithstanding the proposed removal of trees, significant landscaping is retained on the site.
The integration of the proposed clubhouse buildings with the landscape scheme enhances the scenic qualities of neighbouring residential development. |
Yes |
|
|
6.7 Essential Services |
The following services that are essential for the development shall be available or made available by adequate arrangements “(a) the supply of water, (b) the supply of electricity, (c) the disposal and management of sewage, (d) stormwater drainage or on-site conservation, (e) suitable road and vehicular access.” |
The proposed development has made adequate arrangements available for the supply of water, electricity, sewage, stormwater drainage, and vehicular access. |
Yes |
DEVELOPMENT CONTROL PLAN
Hurstville Development Control Plan No 1 – LGA Wide
70. The Hurstville Development Control Plan No. 1 (HDCP) applies to all land to which the HLEP 2012 applies, excluding land identified as the Hurstville City Centre. The proposal has been assessed under the relevant sections of HDCP No. 1 as follows.
Hurstville Development Control Plan No 1 – LGA Wide – Section 3.1 – Vehicle Access, Parking and Manoeuvring
71. The DCP does not prescribe any specific parking rate for a golf course or recreational facility (outdoor).
72. The existing golf course has no off-street parking, however, is serviced by 148 perpendicular (ie 90 degree) on-street car parking spaces, including seventy (70) marked spaces and two (2) accessible parking spaces provided along the Lorraine Street frontage of the site.
73. A Traffic Impact Study submitted with the DA notes that no change is proposed to the existing traffic arrangements on the site and no increase in parking demand is anticipated. The study concludes that:
“the existing parking supply within the vicinity of the site provides a suitable number of parking spaces for the golf club with numerous vacancies available during the peak periods associated with the golf course.
As the golf course and club facilities shall operate in much the same manner as present, there are no changes to the anticipated to the existing traffic conditions. Vehicle access to the site from Roberts Avenue will continue to provide for the servicing of the site.”
74. The application was referred to Council’s Traffic Engineer. The submitted Traffic Impact Study was reviewed and no objection was raised with regard to the proposal.
75. This issue is discussed in greater detail in paragraphs 148-153.
Hurstville Development Control Plan No 1 – LGA Wide – Section 3.2 – Subdivision
76. No subdivision is proposed.
Hurstville Development Control Plan No 1 – LGA Wide – Section 3.3 – Access and Mobility
77. The Building Code of Australia (BCA) Compliance Report submitted with the DA confirms that the proposed development is capable of complying with the provisions of the BCA and relevant Australian Standards.
78. The two (2) storey clubroom/amenities building will be serviced by an accessible lift providing access between the ground and first floors. Additionally, accessible amenities are proposed at both ground and first floor levels of the building.
Hurstville Development Control Plan No 1 – LGA Wide – Section 3.4 – Crime Prevention Through Environmental Design
79. Assessment of the proposal against the relevant provisions of Section 3.4 of HDCP No.1 is provided in the table below.
|
Development Provision |
Proposal |
Complies |
|
|
Site and Building Layout |
|||
|
DS1.1 |
Avoid blank walls fronting the street. |
The western (ie street) elevation includes window openings from the ground floor workshop and a common stairwell. |
Complies |
|
DS1.2 |
Offset windows, doorways and balconies to allow for natural observation while protecting privacy. |
Window openings to Lorraine Street will provide passive surveillance of the street. The proposed deck is oriented to the rear of the building to maximise privacy. |
Complies |
|
DS1.4 |
Entrances should be located in prominent positions, be easily recognisable through design features and directional signage and should allow users to see into the building before entering. |
The entrance to the clubhouse is easily recognisable by way of building identification signage proposed to be affixed above the entrance. Directional signage is proposed to be affixed adjacent to the entrance pathway. |
Complies |
|
DS1.5 |
Pathways within and to the development should be direct and all barriers along the pathways should be permeable including landscaping and fencing. |
Internal and external pathways are direct are unobstructed. |
Complies |
|
DS1.9 |
Where elevators or stairwells are provided, open style or transparent materials are encouraged on doors and/or walls of elevators/stairwells. |
Large transparent window openings are proposed to the western elevation of the stairwell to provide high levels of visibility. |
Complies |
|
DS1.10 |
Waiting areas and entries to elevators/stairwells should be close to areas of active uses, and should be visible from the building entry. |
The ground floor foyer to the lift and stairwell is directly accessible from the primary pedestrian pathway that leads from the premises’ entrance. |
Complies |
|
DS1.11 |
Seating should be located in areas of active uses |
Outdoor seating is proposed at ground level proximate to BBQ facilities and pedestrian pathways. |
Complies |
|
DS1.35 |
Seating, play equipment, BBQ areas etc should be provided to encourage the use of open spaces. |
BBQ facilities are proposed at the rear of the site at ground level. |
Complies |
|
DS1.36 |
Seating should be conveniently located and easily seen. |
Outdoor seating at ground level is accessible and visible from the primary pathway that leads from the premises’ entrance. |
Complies |
|
DS1.37 |
Facilities e.g. toilets and telephones, should be located close to areas of active uses and access to facilities should be direct and free of obstruction. |
The proposed amenities building (i.e. including change room and toilet facilities) is directly accessible from the main pedestrian pathway and is situated in close proximity to the pro-shop. |
Complies |
|
DS1.38 |
Pathways should be direct, follow pedestrian desire lines and avoid blind corners. |
The internal pathways are direct and avoid blind corners. |
Complies |
|
Lighting |
|||
|
DS2.4 |
Direct lights towards access/egress routes and possible hiding places to illuminate potential offenders, rather than towards buildings or resident observation points |
This issue is proposed to be addressed by way of a condition. |
Capable of compliance |
|
DS2.5 |
Illuminate possible places for intruders to hide. |
This issue is proposed to be addressed by way of a condition. |
Capable of compliance |
|
DS2.6 |
This issue is proposed to be addressed by way of a condition. |
Capable of compliance |
|
|
DS2.7 |
Generally areas should be lit to enable users to identify a face 15 metres away. |
This issue is proposed to be addressed by way of a condition. |
Capable of compliance |
|
DS2.8 |
Avoid light spillage onto neighbouring properties as this can cause nuisance and reduce opportunities for natural surveillance. |
A condition is proposed to address this issue. |
Capable of compliance |
|
DS2.9 |
Use energy efficient lamps/fittings/switches to save energy |
A condition is proposed to address this issue. |
Capable of compliance |
|
Landscaping |
|||
|
DS2.19 |
Avoid medium height vegetation with concentrated top to bottom foliage. Plants such as low hedges and shrubs, creepers, ground covers and high canopied vegetation are good for natural surveillance. |
Low shrubs and ground cover are proposed within the front setback to provide privacy screening and ‘softening’ of the building façade, whilst maintaining opportunities for passive surveillance. |
Complies |
|
DS2.20 |
Trees with dense low growth foliage should be spaced or crown raised to avoid a continuous barrier. |
Proposed tree plantings are appropriately spaced. |
Complies |
|
DS2.21 |
Use low ground cover or high canopied trees, clean trunks, to a height of 2m around children’s play areas, car parks and along pedestrian pathways. |
Low ‘garden bed’ planting is proposed along pedestrian pathways. |
Complies |
|
DS2.22 |
Avoid vegetation, which conceals the building entrance from the street. |
The low shrub and ground cover vegetation proposed within the front setback does not conceal the building entrance. |
Complies |
|
DS2.24 |
When planting is provided within 5m of a pedestrian pathway, it should be lower than 1 metre or thin trunked with high canopy. |
The proposed planting along pedestrian pathways comprises medium to tall shrubs, with a maximum height of approximately 2m. |
Generally complies |
|
Fencing |
|||
|
DS4.1 |
Front fences are to be predominantly open in design to allow sight through the fences e.g. picket fences, wrought iron. |
The proposed front fencing is composed of vertical battens of an open design and is existing. |
Complies |
|
Building Identification |
|||
|
DS6.5 |
Location maps and directional signage should be provided for larger developments. |
Directional signage is proposed to be affixed adjacent to the entrance pathway.
|
Complies |
|
Building Maintenance |
|||
|
DS9.3 |
Strong, wear resistant laminate, impervious glazed ceramics, treated masonry products, stainless steel materials, anti-graffiti paints and clear over sprays will reduce the opportunity for vandalism. Flat or porous finishes should be avoided in areas where graffiti is likely to be a problem. |
The proposed building materials include concrete brickwork, metal cladding, and white render. |
Generally complies |
Hurstville Development Control Plan No 1 – LGA Wide – Section 3.5 – Landscaping
80. Assessment of the proposal against the relevant provisions of Section 3.5 of HDCP No.1 is provided in the table below.
|
Development Provision |
Proposal |
Complies |
|
|
DS1.1 |
Where a street or neighbourhood has an existing desirable landscape character, similar species are planted on site, except where the species are identified as being undesirable in accordance with Appendix 1 – Recommended species for landscaping. |
The proposed landscape design incorporates plants species identified as ‘recommended species’. |
Complies |
|
DS3.1 |
Site layout and design, including buildings, structures and hardstand, ensures the long term retention and health of existing significant trees and vegetation. |
The removal of twenty two (22) trees is required to accommodate the proposed development. Subject to the imposition of conditions of consent relating to the retention and protection of trees, the proposal will ensure the long term retention and health of existing significant trees and vegetation. |
Generally complies |
|
DS3.2 |
Where significant trees or vegetation are required to be removed to allow for site development, they are to be replaced with the same or similar species achieving the same coverage at maturity. |
The removal of twenty two (22) trees is required to accommodate the proposed development.
Council’s Consultant Arborist has recommended appropriate conditions of consent requiring the planting of forty-four (44) replacement trees in accordance with Council’s Policy. All replacement tree species selection must be as per Appendix 1, Tree Planting of the Tree Management Policy. |
Capable of complying |
|
DS4.1 |
Landscaping in front setbacks consists of: a. an area of sufficient dimensions to accommodate planting Note: this area must be a minimum of 2m b. shade trees that grow to a height consistent with or greater than that of the building c. screening shrubs where required to mitigate the visual impact of blank walls d. low shrubs and ground covers to ensure complete coverage of planting area |
Landscaping, including screening shrubs, and ground cover, is proposed within the 11.73m-12m front setback. The landscaping will facilitate privacy screening and ‘softening’ of the building façade, whilst maintaining opportunities for passive surveillance.
Conditions are proposed to be imposed in relation to canopy trees. |
Complies |
|
DS10.1 |
Fire resistant species are planted in areas that are susceptible to bushfire hazard. |
The submitted Bushfire Report confirms that the proposed landscape scheme can comply with the ‘Planning for Bush Fire Protection’ document. |
Complies |
|
DS11.1 |
Opportunities for on-site stormwater infiltration are provided through measures such as: a. turf and raised planting beds b. minimising the extent of impervious surfaces |
Raised planter beds are proposed within the front setback and will provide opportunities for on-site stormwater infiltration. |
Complies |
|
DS11.2 |
Landscaped areas and suitably drained and ensure the soil and sediment does not exit the site. |
Soil and sediment from the proposed front and rear landscaped areas are raised to provide suitable drainage. Noting the topography of the site, soil and sediment will fall by gravity and remain contained within the site. |
Complies |
|
DS13.1 |
Landscaping is sited and designed in accordance with the principles of CPTED. |
The proposed landscape scheme does not adversely impact on the ability for the principles of CPTED to be achieved. |
Complies |
|
DS13.2 |
Landscaping enables clear sight lines to be achieved along pathways and minimise opportunities for concealment. |
Subject to appropriate maintenance, the proposed landscaping is not expected to obstruct any sight lines or facilitate concealment. |
Complies |
|
DS13.3 |
Dense screening vegetation is not provided within front setbacks. |
The proposed landscaping in the front setback is scattered and comprises a variety of screening shrubs, and ground cover. |
Complies |
|
DS14.1 |
Landscaping does not interfere with the effective functioning of overhead, surface level or underground utilities. |
Subject to appropriate maintenance, the proposed landscaping is not expected to interfere with the functioning of utilities. |
Complies |
Hurstville Development Control Plan No 1 – LGA Wide – Section 3.6 – Public Domain
81. The development does not propose any works in the public domain.
Hurstville Development Control Plan No 1 – LGA Wide – Section 3.7 – Stormwater
82. The application was referred to Council’s Development Engineer. Following consultation with Council’s Development Engineer, a revised set of stormwater plans (dated 17 June 2020) were issued by the applicant. The revised plans demonstrate that stormwater will discharge by gravity directly to Council’s underground stormwater main located within the golf course. No objection was raised with regard to stormwater and drainage, subject to the imposition of conditions.
83. The proposal is exempt from the provision of an on-site detention (OSD) system under Section 4.4(b) of the Georges River Stormwater Management Policy, which states that OSD will not be required for “a lot where the site’s stormwater discharges directly to a bay or stream”. Stormwater generated by the proposed development will discharge directly to Council’s drainage system downstream of the Lorraine Street road reserve and within the golf course.
Hurstville Development Control Plan No 1 – LGA Wide – Section 5.5 – Signage
84. Building identification signage displaying the words ‘Hurstville Golf Club’ is proposed to be affixed to the roof parapet of the western building façade. Directional signage is also proposed to be affixed to the external building wall adjacent to the entrance pathway.
85. The signage is generally consistent with the relevant provisions of Section 5.5. The signage is considered appropriate to the streetscape and not dominating in terms of its scale, proportion, or form.
86. The wall signage does not project above or beyond the wall and does not have any adverse impact to views, vistas, or skylines.
87. Where in the RE1 Public Recreation zone, only signage identified as ‘exempt development’ in HLEP 2012 is permitted. The proposed signage is compliant with the signage standards specified under Schedule 2 of HLEP 2012.
Hurstville Development Control Plan No 1 – LGA Wide – Appendix 1
Waste Management
88. A waste management plan has been submitted with the application and is consistent with the relevant provisions of HDCP No 1. The proposed bin store is externally accessible via an existing driveway entry, yet is suitably screened from the street by fencing and landscaping within the front setback.
Energy Efficiency
89. The proposed building design (ie window orientation and material selection) provides for natural ventilation and passive heating/cooling. Photovoltaic panels are proposed to the roof of the cart storage and clubroom/amenities buildings. Furthermore, conditions are proposed to be imposed addressing energy efficiency.
Preservation of Trees and Vegetation
90. The proposed development entails the removal of twenty two (22) trees on the site in order to accommodate the new clubhouse. Council’s Consultant Arborist reviewed the submitted Arborist Report and raised no objections subject to the imposition of conditions, including a requirement for the planning of forty four (44) replacement trees, which have been endorsed.
Georges River Development Control Plan 2020 - Interim Policy
91. The Georges River Development Control Plan 2020 - Interim Policy was introduced in response to a resolution of Council which cited numerous development control plans that applied across the LGA and the need for consistency. The Interim Policy is a supplementary document, meaning that current DCP controls continue to apply if a particular control is not specified, or if it is still considered best practice.
92. The Interim Policy does not contain any provisions relevant to the proposed development, and accordingly, consideration of the policy is not necessary.
DRAFT PLANNING INSTRUMENTS
Draft Environment State Environmental Planning Policy 2017
93. In October 2017, the DPIE released the Explanation of Intended Effect for the Draft Environment State Environmental Planning Policy 2017 (Environment SEPP). This consolidated SEPP proposes to simplify the planning controls for a number of water catchments, including the Georges River Catchment.
94. The Draft SEPP notes that controls relating to the Catchment are located in several NSW planning instruments. Duplication with other legislation will be removed and the remaining provisions under Greater Metropolitan REP No. 2 – Georges River Catchment will be transferred to the Environment SEPP. These provisions include aims and objectives, heads of consideration, and prohibitions for certain types of development.
95. Following completion of public exhibition on 31 January 2018, the proposed Draft SEPP is currently under consideration including a review of public and government submissions.
96. The proposal is consistent with the provisions of this Draft Instrument.
Draft Remediation of Land State Environmental Planning Policy
97. The Draft Remediation of Land State Environmental Planning Policy (Remediation SEPP) was exhibited from 31 January 2018 to 13 April 2013.
98. The Draft Remediation SEPP will repeal and replace the current State Environmental Planning Policy No.55 – Remediation of Land and seeks to:
· Provide a state-wide planning framework for the remediation of land;
· Maintain the objectives and reinforce those aspects of the existing framework that have worked well;
· Require planning authorities to consider the potential for land to be contaminated when determining development applications and rezoning land;
· Clearly list the remediation works that require development consent; and
· Introduce certification and operational requirements for remediation works that can be undertaken without development consent.
99. The proposal is consistent with the provisions of the Draft Instrument, and the issue of contamination has been addressed in relation to SEPP 55.
Draft Georges River Local Environmental Plan 2020
100. Consideration is given to the provisions of the Draft Georges River Local Environmental Plan 2020 in the assessment this application.
101. In this regard, the provisions have no determining weight as a result of proposed operation of Clause 1.8A ‘Savings provisions relating to development applications’ which provides that “if a development application has been made before the commencement of this Plan in relation to land to which this Plan applies and the application has not been finally determined before that commencement, the application must be determined as if this Plan had not commenced.”
102. There are no significant changes proposed to the planning controls pertaining to the subject site under the Draft Georges River Local Environmental Plan 2020 and the zoning of the property is to remain as RE1 – Public Recreation.
103. Clause 6.4 prescribes provisions for stormwater management. Stormwater generated by the proposal will discharge by gravity directly to Council’s underground stormwater main located within the golf course. The proposal is exempt from the provision of an on-site detention system under Section 4.4(b) of the Georges River Stormwater Management Policy.
Draft Georges River Development Control Plan 2020
104. The Draft Georges River Development Control Plan 2020 seeks to consolidate the DCPs applying to land within the Georges River LGA. The Draft DCP is currently on exhibition from 21 October 2020 to 27 November 2020.
105. Part 1.7 ‘Savings provision’ provides that “If an application has been made before the commencement of the DCP in relation to land to which the DCP applies, and the application has not been finally determined before that commencement, the application must be determined as if the DCP had not commenced. All applications received after the commencement date of an amendment to the DCP are subject to the DCP as amended.” Given the draft DCP is yet to be formally adopted the provisions of the Draft DCP have no determining weight in the assessment and determination of this DA.
106. Notwithstanding this, an assessment of the proposal against the relevant provisions of the Draft DCP, not already considered under HDCP No 1, is provided in the following sections.
Draft DCP Section 3.4 – Bushfire Prone Land
107. The subject site is located on bushfire prone land. The submitted Bushfire Report concludes that the proposed development can comply with the ‘Planning for Bush Fire Protection’ publication, subject to the imposition of conditions relating to the provision of an inner protection area (IPA), maintenance of landscaping, and the preparation of an emergency evacuation plan.
Draft DCP Section 3.11 – Ecological Sustainable Development
108. The submitted Building Code of Australia (BCA) Report does not include consideration of the energy efficiency provisions of the BCA. Notwithstanding, the proposed building design (i.e. window orientation and material selection) provides for natural ventilation and passive heating/cooling.
109. Photovoltaic panels are proposed to the roof of the cart storage and clubroom/amenities buildings.
110. Suitable conditions of consent relating to water efficient amenities are recommended to be imposed.
Draft DCP Section 3.13 – Parking Access and Transport
111. The Draft DCP has a requirement for one (1) space per golf hole; plus one (1) space per 2 employees; plus one (1) space per 5sqm of clubhouse GFA for golf course development.
112. Given the proposed development relates to the existing Hurstville golf course and there is no increase in the number of golf holes or the number of staff employed on site, there is only a requirement to consider the proposed increase in the size of the golf clubhouse over the existing facility.
113. The existing golf clubhouse/pro-shop/amenities has a GFA of approximately 193.27sqm.
114. The GFA of the proposed development (ie pro-shop, clubroom) has a total area of 522sqm. This excludes the storage shed (190sqm) for the purposes of storing the golf carts as this is not considered to be strictly part of the clubhouse for the purposes of calculating parking requirements. On this basis, the proposed club house represents an increase in GFA on the site over the existing facilities of 328.73sqm, which equates to a requirement for 66 car spaces.
115. Given the existing golf course and associated clubhouse is serviced by 148 on-street car parking spaces, including seventy (70) marked spaces and two (2) accessible parking spaces, along the Lorraine Street frontage of the site, there is sufficient car parking in the vicinity of the site to address the car parking requirements of the Draft DCP had they been strictly applied. This is further supported by the Traffic and Parking Report submitted with the DA which is discussed in further detail in paragraphs 148 - 153.
Planning Agreements
116. No planning agreements or draft planning agreements have been offered or have been entered into.
Matters prescribed by the Regulations
117. No additional regulations required for the proposed development.
Local Government Act 1993
118. Section 35 of the Local Government Act 1993 identifies that Community land is required to be used and managed in accordance with:
· the plan of management applying to the land
· any law permitting the use of the land for a specified purpose or otherwise regulating the use of the land
· this Division.
119. The Generic Plan of Management (POM) – Sportsgrounds was adopted in 2006 and provides the future direction and policy for the planning, management and development of all sportsgrounds within the former Hurstville City Council LGA, now part of Georges River Council. The Hurstville golf course is listed in Schedule 1 of the POM as one of the sportsgrounds to which the POM applies.
120. The objectives for Sportsgrounds under the POM are:
1. To provide optimum access to Hurstville’s sportsgrounds and their facilities for all users and stakeholders.
2. To provide appropriate amenity, aesthetic and landscaping facilities within all sportsgrounds to maximise benefits for all users.
3. To manage the environmental elements of sportsgrounds to preserve biodiversity values and minimise disturbance.
4. To maximise funding opportunities for the development and improvement of sportsgrounds and facilities.
5. To manage sportsgrounds efficiently and effectively, and allow for their equitable use for a range of organised and informal recreational activities that are compatible with management objectives and the function of sportsgrounds.
6. To manage areas with multiple land categorisation contained within sportsgrounds according to the requirements of their core objectives.
7. To adequately maintain facilities, and to encourage respectful, law-abiding behaviour while using the grounds to maximise public safety and minimise damage to facilities.
8. To provide and maintain, within budget, high quality sporting fields and facilities to meet identified community needs.
9. To provide and maintain road network and car parking facilities that are safe, effective and user friendly.
10. To provide high quality sporting facilities to meet community needs without impacting negatively on bushland areas.
121. The proposal is considered to meet the objectives of the POM in that it would deliver high quality sporting facilities to meet the needs of the community.
122. Section 4 of the POM identifies the following management issues:
· Access
· Amenity and Landscaping
· Flora and Fauna
· Funding
· Management and Use
· Management of Dual Use Areas
· Safety and Risk Management
· Sports Fields and Facilities
Each of the above issues has a specific objective.
123. The proposal is considered to be generally consistent with the specific objective of the above management area, where relevant, for the following reasons:
· The proposal will provide improved amenity for both the users and operators of the golf course through a larger and well-designed facility, within well landscaped grounds and additional tree planting to offset the tree removal required to enable the development.
· Disturbance has been minimised through the construction on the location of the existing clubhouse. It is acknowledged that the proposal will result in the loss of some trees from the site but this will be compensated through additional tree planting on the site and will not significantly impact on the broader landscaped character of the site or the wider area;
· The proposal will provide improved high quality facilities, and
· The design maximises safety and minimise risk through design.
124. For the above reasons the proposal is considered consistent with the applicable POM under Section 35 of the Local Government Act 1993.
IMPACTS
Loss of Trees/Flora and Fauna impacts
125. As identified, the proposed development seeks consent for the removal of 22 trees from the site. It is noted that the arborist report submitted with the DA identifies 15 trees to be removed from the site, comprising 5 x Tallowwood, 4 Weeping Bottle Brush, 2 x Cypress, 1 x Swamp She Oak, 1 x Wollybutt, 1 x Eucalypt and 1 x Forest Red Gum. Eight (8) of these trees are identified by the arborist as being of low retention value and seven (7) trees are of medium retention value. However, it is noted that Council’s Consultant Arborist noted that a further seven (7) fig trees area also proposed to be removed.
126. Council’s Consultant Arborist raised no objections to the submitted Arborist Report and has recommended conditions with respect to the retention and protection of other existing trees on the site. The consultant concludes that the removal of twenty two (22) trees to accommodate the proposed development, subject to a 2:1 replacement for all trees removed, is considered acceptable and will result in an increase in the urban canopy.
127. As part of additional information submitted, the applicant has submitted a Tree Replacement Plan identifying the proposed location of the replacement tree planting. The Tree Replacement Plan identifies that replacement trees are to be planted between the third and fifteenth fairways, which is located approximately 300m to the east of the clubhouse site on the lower eastern half of the golf course. Notwithstanding this, a condition is proposed requiring the planting of some of the replacement canopy trees in the vicinity of the clubhouse site.
128. Whilst it is acknowledged that the removal of 22 trees from the site will result in the loss of some tree canopy in the area of the proposed works, given the scale of the site, the extent of urban tree canopy the site currently contributes to the wider area, and the opportunity to provide double the amount of replacement planting to supplement the tree loss, the extent of impact is considered reasonable.
129. Subject to the imposition of recommended conditions, the proposed development is unlikely to result in unreasonable adverse impact on the natural environment.
Bulk and Scale Impacts
130. The existing pro-shop/clubhouse on the site comprises two (2) relatively modest flat roofed buildings with a combined footprint of approximately 19sqm. One building contains the amenities/change rooms and one containing the pro-shop. The buildings are approximately 10m in width to Lorraine Street, as one building is behind the other.
131. The proposal is a part one (1) and part two (2) storey building on a setback of approximately 12m. The building is broken into three (3) elements and is generally well articulated. The combined width of the three (3) building elements, to the street, is approximately 40m, inclusive of 7m of gaps between buildings. Whilst this represents a significant increase over the existing building, the proposed built form is of a bulk and scale that is still considered compatible with the streetscape and not out of character with the one (1) and two (2) storey residential development along the western side of Lorraine Street.
Building Materials and Streetscape Impacts
132. The existing pro-shop and clubhouse is a single storey brown brick building with a flat metal roof with dark green fascia’s.
133. Development along the western side of Lorraine Street is a mix of residential architectural styles, materials and ages. Development is typically a mix of one or two storey detached pitched roof dwellings with some more recent attached dual occupancy type developments. Façade materials vary from fibro sheet, horizontal timber and zincalume type cladding, face brick, rendered and painted, to more recent part brick/part corrugated metal construction. Facade colours vary from more neutral face brick tones to pale fibro, clad, painted or rendered facades; however it is noted that a number of dwellings are white or very pale in colour.
134. The proposed pro-shop and clubhouse components of the building are proposed to be constructed of linear honed concrete blockwork and white render with vertical metal cladding roofing fascia elements. The façade is well articulated and will be generally pale or light in appearance.
135. The golf cart store is proposed to comprise of white, rolled corrugated metal cladding installed in a vertical format. The store is proposed with a single skillion roof falling from south to north. It is proposed to have a height varying between 3.8m - 5m. A storage shed of this nature is not uncharacteristic of such buildings on a golf course and subject to suitable screen and tree planting along the northern and western elevations is considered acceptable.
136. Whilst the white materials represent a significant change when compared with the existing golf course building and will therefore have a higher level of visibility, the colour and materials are not considered to be detrimental or out of character with the area given the mix of materials in the residential development along the western side of Lorraine Street.
Acoustic Impacts
137. A Noise Assessment was submitted with the proposed development and provides an assessment of the likely noise generated from the use of the proposed clubroom and associated balcony.
138. It is noted that the Noise Assessment identifies that the clubroom will be open from 5.30am - 6.30pm for 7 days (with the exception of a small number of days per year coinciding with major events). The applicant has since confirmed that the operating hours would be 5.45am - 7.00pm consistent with existing golf course operations.
139. The Noise Assessment identifies that the clubroom is a replacement of the current barbeque area and will have the same usage as currently. The use will be golfers resting post round or utilising areas for a drink bought from the pro-shop. The Assessment identifies the clubroom would accommodate approximately 100 persons, will not be a hired out as a function venue and there will be no use of the facility after 10pm.
140. The Noise Assessment has modelled the noise from 70 patrons seated inside the club room and 30 on the balcony, with 25% of patrons talking loudly at any one time. The Noise Assessment modelling identifies that the noise level generated (34 dB(A) Leq (15 min)) complies with the Evening (6pm-10pm) criteria of 35 dB(A) Leq (15 min) for a Suburban Location as specified in the Noise Policy for Industry (NPI) at the nearest residential receiver being the dwellings on the western side of Lorraine Street opposite the proposed clubhouse.
141. Notably, the Noise Assessment does not model any use of the ground floor level or building surrounds of an evening ie at the same time as the clubroom being used by 100 patrons. In this respect, for the clubroom to be permitted to be used by 100 patrons after 6pm, the use of the areas around the pro-shop clubhouse would need to cease to ensure no cumulative intensification of noise generation. It is recommended that a condition be imposed to this effect.
142. Based on this and subject to the imposition of suitable conditions of consent associated with the operations of the clubhouse, the proposed development is not foreseen to result in any unreasonable acoustic impacts upon the amenity of neighbouring residential properties.
143. The proposed operating hours of the clubhouse are consistent with those of the existing golf course and club house generally being 5.45am to 7.00pm. The proposed use is for golf course uses only.
144. Conditions of consent are recommended to be imposed in relation to no third party hire or use of the facility, hours of operation, no amplified music etc.
Overshadowing
145. The proposal will not overshadow any adjoining properties.
Visual Privacy
146. The development will not result in any visual privacy impacts to residential properties adjoining the site to the west. The proposed east-facing rear deck will be appropriately screened from surrounding residential properties (ie dwellings fronting Lorraine Street) by the structure of the building. Window openings are oriented away from Lorraine Street and, accordingly, adverse privacy impacts are not likely to result from the proposal. Proposed window openings fronting the street are from the ground floor workshop and a stairwell.
Loss of Views
147. The proposed design will not result in the loss of any significant views. Whilst the proposal will alter the outlook from a number of the residential properties on the western side of Lorraine Street, immediately opposite the clubhouse, a wide view of the golf course will generally be maintained. The modulated building design is separated into three (3) distinct built forms connected by a flat roof. The single storey nature of the outer building elements will still enable views to the golf course tree canopy beyond, and the gaps between building elements will enable some glimpses through towards the golf course and existing vegetation to the east.
Traffic and Parking
148. As identified earlier in this report, the existing Hurstville DCP No 1 has no required parking rates for a golf course or associated clubhouse.
149. The draft Georges River DCP, currently on exhibition, contains draft minimum parking provisions and whilst such provisions do not strictly apply to the assessment and determination of the DA, an assessment against such provisions has been undertaken and it is considered that the existing supply of on-street parking is sufficient for the proposed upgraded clubhouse under the draft parking rates.
150. Also as identified earlier in this report, the application was referred to Council’s Traffic Engineer, who raised no objection to the proposal in terms of traffic and parking impacts.
151. A Traffic Assessment was submitted with the DA. The Assessment includes a survey of parking spaces in the vicinity of the site and occupancy during of a weekday morning.
“Surveys undertaken show the available parking within the vicinity of the site. On Lorraine Street, adjacent to the golf club, there are 148, 90° angle parking spaces provided (70 of these spaces are marked). There are also a number of on-street parking opportunities within the area, along Lorraine Street, Monterra Avenue and Whitegates Avenue.
Surveys demonstrate that during the peak period for the club (Tuesday mornings) there is an abundance of available parking within the area through both the 90° angle parking spaces and the on-street parking spaces as shown in Table 1 and Table 2 above. At the absolute peak period (9.15AM) there were 68 spaces available on Lorraine Street in addition to the existing club demands. There were a further 17 spaces available on surrounding streets.
As such it is considered that the available parking within the area along Lorraine Street, Monterra Avenue and Whitegates Avenue is sufficient to accommodate the current and ongoing demands associated with the golf club.”
152. In response to a request for additional parking surveys to be undertaken to confirm the usage of existing on-street parking at afternoon and evening times, the applicant’s consultant advised:
“The use of the clubhouse/clubroom is ancillary to the operation of the golf course and does not generate parking demands in its own right. The parking beat surveys were therefore undertaken to correspond with the peak use of the golf course hence in the AM peak allowing for golfers to take the course early and then continue to stay on site and use the clubhouse to socialise or to attend the pro-shop early and then move onto the course. This is consistent with the existing situation along with other golf courses where peak demands are in the morning and decrease across the day.”
153. Given the proposed clubhouse does not seek to operate independently of the golf course and is solely for the purpose of the existing golfers and will not provide any separate dining, bar or restaurant facilities, and therefore should not generate any additional traffic or parking demand in its own right, it is considered that the existing parking arrangements at the site can accommodate the proposal.
Liquor License
154. As identified in paragraph 33, the site benefits from an existing liquor license which permits the sale, supply and consumption of bottled or canned alcohol from the pro-shop and for events to the marquee area adjacent to the southern side of the pro-shop between the hours of 10.00am and 4.00am the following day. The license restricts the marquee area to a maximum number of 120 persons and restricts the sale of alcohol to within the confines of the premises and that no alcohol is sold for the purposes of consumption outside the perimeter of the subject property.
155. The applicant intends for the new clubhouse premises to be licensed, which will require an application for an amended liquor license. Ultimately, the liquor license will be a matter for the Office of Liquor and Gaming, however any development consent issued for a licensed premise should ideally be consistent with the respective liquor license and vice versa. On this basis, plans were requested from the applicant identifying what areas of the new complex were intended to be licensed.
156. Plans have been submitted identifying the areas that the applicant intends to have licensed. Extracts of such plans are provided in Figures 9 to 12. Figures 9 and 10 highlight in yellow the areas proposed to be licensed for day to day operations, whereas Figures 11 and 12 show outlined in purple the areas proposed be licensed for events. The applicant intends for the following:
· During typical day to day operations - the pro-shop, and clubroom building including first floor balcony and ground floor outdoor seating to be licensed, and
· During events – the whole building complex including cart storage area to be licensed including outdoor areas to be licensed. This allows for a wider area for the event management.

Figure 9: Extract from Proposed Licensed Areas Plan highlighting ground floor area to be licensed on a day to day basis (Source: Webber Architects)

Figure 10: Extract from Proposed Licensed Areas Plan highlighting first floor area to be licensed on a day to day basis (Source: Webber Architects)

Figure 11: Extract from Proposed Licensed Areas Plan highlighting ground floor area to be licensed for events (Source: Webber Architects)

Figure 12: Extract from Proposed Licensed Areas Plan highlighting first floor area to be licensed for events (Source: Webber Architects)
157. The applicant has advised that typically on a day to day basis there would be no more than 10-15 people within the licensed area at any one time, whereas events could typically have 100-120 persons.
158. Should the application be approved, it is recommended that a conditions of consent be imposed in relation to obtaining an amended Liquor License, maximum patron numbers, and requiring the preparation and submission of a Plan of Management for the approval of Council outlining how the premises are proposed to be managed in relation to the sale of liquor on the premises.
Hours of Operation
159. As identified in paragraph 21, the existing golf course operates from 5.45am to 7.00pm daily. Notwithstanding this, it is noted that there is no evidence of any approved hours of operation on previous consents.
160. The clubhouse is proposed to operate from 5.45am to 7.00pm daily consistent with the existing golf course operations, with the exception of a few annual events which will operate up until 10.00pm.
161. The Acoustic Report submitted with the DA identified that the clubroom would be open in conjunction with the approved hours of operation of the golf course, with the exception of a small number of days per year coinciding with major events when it would operate up until 10.00pm. Examples of such events would be the Annual General Meeting and the Annual Mayor’s Charity Day.
162. Given such events currently occur on the site without the benefit of an internal clubhouse ie entirely outdoors, subject to conditions the operation of the first floor clubroom up until 10.00pm for a handful of events each calendar year is unlikely to impact on the amenity of the surrounding area.
Social and Economic Impacts
163. The proposed development is not likely to result in any significant adverse social or economic impacts.
164. The proposal seeks to improve the function and aesthetic appearance of an existing golf course and clubhouse building. The works will allow the golf club to cater to current and future membership requirements and are consistent with the stated objectives of the RE1 Public Recreation zone.
165. The proposed works involve an upgrade to the amenity of the surrounding landscape and enable the site to retain a landscaped setting that is compatible with the streetscape and surrounding residential land uses.
Suitability of the Site
166. The proposed works are located on land zoned RE1 Public Recreation. The application seeks consent for an outdoor recreational facility, which is permitted with consent in the zone.
167. It is considered the proposal will not result in any significant adverse impacts to neighbouring properties or the streetscape. The proposal is considered to be a suitable form of development on the site.
Submissions and the Public Interest
168. In accordance with the provisions of Council’s Public Notification process, the application was placed on neighbour notification for a period of twenty one (21) days between 6 April 2020 and 27 April 2020. Two (2) submissions were received. A summary of the issues raised is discussed below.
Insufficient detail regarding operational details of clubroom
169. Comment: A request for additional information confirmed that the intended use of the clubhouse is for post-game beverages and one-off club meetings (ie Annual General Meetings, which comprise of a small number of club officials and members). The clubhouse is proposed to operate from 5.45am – 7.00pm daily. Food (ie hot food and confectionary) and drink, including alcoholic beverages, are currently sold on the site and no change is proposed to this existing arrangement. A condition has been recommended to restrict the use of the kitchen for food re-heating purposes only.
Acoustic impact to neighbouring residents
170. Comment: The proposed development is not foreseen to result in any unreasonable impact upon the amenity of neighbouring residential properties. The submitted Acoustic Assessment confirms that noise emissions from the clubroom will be within acceptable levels. The proposed east-facing rear deck will be appropriately screened from surrounding residential properties (ie dwellings fronting Lorraine Street) by the structure of the building. Window openings are oriented away from Lorraine Street and, accordingly, sound will travel to the east (ie away from residential properties). Proposed window openings fronting the street are from the ground floor workshop and a stairwell.
171. Suitable conditions of consent are recommended to mitigate any adverse acoustic impacts associated with the operations of the clubhouse. A condition is recommended to restrict the operating hours of the clubhouse from 5.45am to 7.00pm daily and a condition is recommended is limit the use of the premises for uses associated with the golf course only.
Safety and security concerns for neighbouring residents
172. Comment: Noting that the proposal does not involve any change to existing clubhouse operating hours, the development will not directly result in any additional safety impacts. A condition is recommended is limit the use of the premises for uses associated with the golf course only.
Impact of tree removal on outlook from neighbouring properties
173. Comment: The proposal will not have significant adverse impact to the outlook of residential properties given that a wide view of the golf course will be maintained. The building design is separated into three (3) distinct built forms connected by a flat roof, providing transparency through towards the golf course and significant existing vegetation to the east. Additionally, feature shrub planting and subject to condition, canopy trees are proposed within the front setback to enhance the landscape amenity of the streetscape.
Inappropriate building materials
174. Comment: The proposed external building materials compliment the architectural and natural character of the locality.
175. A condition is proposed to be imposed requiring the submission of an amended landscape plan which includes the planting of additional trees and shrubs within the front setback and along the northern side of the golf cart store. This will provide adequate screening of the storage structure to ‘soften’ the presentation of the building to Lorraine Street and minimise adverse impacts to the outlook of properties on the western side of the street.
Insufficient parking survey information
176. Comment: Given the clubhouse is not proposed to operate independently of the golf course, and the proposed works will not increase the capacity of the golf course, the extent of parking survey information is considered sufficient.
Inappropriate bulk and scale
177. Comment: The bulk and scale of the proposed development is considered to be appropriate for the site. This issue is addressed in paragraphs 130-131.
178. Having regard to the above, it is considered that the proposal is in the public interest.
REFERRALS
Internal Referrals
Consultant Arborist
179. The application was referred to Council’s Consultant Arborist. No objection was raised, subject to the imposition of conditions clarifying trees to be removed, retained, and protected during site works. In addition, and in accordance with Georges River Council’s Tree Management Policy, 2019, a 2:1 replacement was recommended which will reinstate and increase urban canopy. All replacement tree species selection must be as per Appendix 1, Tree Planting of the Tree Management Policy.
Environmental Health Officer
180. The application was referred to Council’s Environmental Health Officer. No objection was raised, subject to the imposition of conditions relating primarily to acoustic impact control and the use of the kitchen.
Development Engineer
181. The application was referred to Council’s Development Engineer. No objection was raised with regard to stormwater and drainage, subject to the imposition of conditions.
Traffic Engineer
182. The application was referred to Council’s Traffic Engineer. The submitted Traffic Impact Study was reviewed and no objection was raised with regard to the proposal.
Building Surveyor
183. The application was referred to Council’s Building Surveyor. No objections were raised, subject to the imposition of conditions.
External Referrals
Ausgrid
184. The application was referred to Ausgrid in accordance with Clause 45 of State Environmental Planning Policy (Infrastructure) 2007. Ausgrid raised no objection to the proposal, subject to ‘as constructed’ minimum clearance distances from Ausgrid’s Infrastructure.
Local Infrastructure Contributions
185. Not applicable.
CONCLUSION
186. The application has been assessed having regard to the Matters for Consideration under Section 4.15 of the Environmental Planning and Assessment Act 1979, the provisions of the relevant State Environmental Planning Policies, Hurstville Local Environmental Plan 2012 and Hurstville Development Control Plan No. 1.
187. The proposal has been considered on its merits and is considered to be acceptable for the reasons outlined within this report. The proposal is reasonable given that it generally complies with the key development standards and meets the underlying objectives of these controls.
188. Following detailed assessment contained within this report, DA2020/0115 is recommended for approval subject to conditions of consent.
DETERMINATION AND STATEMENT OF REASONS
Statement of Reasons
189. The reasons for this recommendation are:
· The proposal is an appropriate response to the zoning of the site and generally complies with the requirements of the relevant environmental planning instruments and development control plan.
· The proposed development is considered to be compatible with the streetscape and surrounding residential land uses.
· Subject to the implementation of the recommended conditions, the development will not result unreasonable impact on the natural or built environment.
· The proposed development seeks to improve the function of an existing golf course and clubhouse building. The works will allow the golf club to better cater to current and future patrons and members of the golf course, which is in the public interest.
Recommendation:
190. That the Georges River Council Local Planning Panel as the consent authority pursuant to Section 4.16(1)(a) Environmental Planning and Assessment Act 1979, grant consent to Development Application No DA2020/0115 for the demolition of the existing clubhouse and construction of a new two (2) storey clubhouse on land known as Lot 1 in DP 176469 (allotment the work is being undertaken on), Lot 1 DP33385 and Lot 7054 DP1127614 and Lot 3 DP522691 (57A Lorraine Street) being the Hurstville Golf Course, 57 Lorraine Street, Peakhurst, subject to the following conditions of consent.
Development Details
1. Approved Plans - The development must be implemented in accordance with the approved plans and supporting documentation listed below which have been endorsed by Council’s approved stamp, except where marked up on the plans and/or amended by conditions of this consent:
|
Description |
Reference No. |
Date |
Revision |
Prepared by |
|
Site Plan |
2696/0201/G |
28/02/20 |
G |
Webber Architects |
|
Site Demolition Plan |
2696/0202/F |
28/02/20 |
F |
Webber Architects |
|
Landscape Plan – Sheet 1 of 2 |
2696/0203/D |
28/02/20 |
D |
Webber Architects |
|
Landscape Plan – Sheet 2 of 2 |
2696/0204/B |
28/02/20 |
B |
Webber Architects |
|
Shadow Diagrams – December 21 |
2696/0206/B |
28/02/20 |
B |
Webber Architects |
|
Shadow Diagrams – June 21 |
2696/0207/B |
28/02/20 |
B |
Webber Architects |
|
Environmental Site Construction Management Plan |
2696/0208/A |
28/02/20 |
A |
Webber Architects |
|
2696/0301/G |
28/02/20 |
G |
Webber Architects |
|
|
First Floor Plan |
2696/0302/G |
28/02/20 |
G |
Webber Architects |
|
Roof Floor Plan |
2696/0303/G |
28/02/20 |
G |
Webber Architects |
|
Elevations – Sheet 1 |
2696/0401/G |
28/02/20 |
G |
Webber Architects |
|
Elevations – Sheet 2 |
2696/0402/G |
28/02/20 |
G |
Webber Architects |
|
Sections – Sheet 1 |
2696/0501/D |
28/02/20 |
D |
Webber Architects |
|
3Ds and Materials |
2696/1001/E |
28/02/20 |
E |
Webber Architects |
|
Tree Replacement Plan |
2020_1_TRP-01 |
2/11/2020 |
A |
Weidlich Golf Design |
|
Regular Licensed Areas Ground Floor Plan |
2696/0301/G |
28/02/20 |
G |
Webber Architects |
|
Regular Licensed Areas First Floor Plan |
2696/0302/G |
28/02/20 |
G |
Webber Architects |
|
Event Licensed Areas Ground Floor Plan |
2696/0301/G |
28/02/20 |
G |
Webber Architects |
|
Event Licensed Areas First Floor Plan |
2696/0302/G |
28/02/20 |
G |
Webber Architects |
Separate Approvals Required Under Other Legislation
2. Section 138 Roads Act 1993 and Section 68 Local Government Act 1993 - Unless otherwise specified by a condition of this consent, this Development Consent does not give any approval to undertake works on public infrastructure.
Separate approval is required under Section 138 of the Roads Act 1993 and/or Section 68 of the Local Government Act 1993 for any of the following activities carried out in, on or over a public road (including the footpath) listed below.
An application is required to be lodged and approved prior to the commencement of any of the following works or activities;
(a) Placing or storing materials or equipment;
(b) Placing or storing waste containers or skip bins;
(c) Erecting a structure or carrying out work;
(d) Swinging or hoisting goods over any part of a public road by means of a lift, crane or the like;
(e) Pumping concrete from a public road;
(f) Pumping water from the site into the public road;
(g) Constructing a vehicular crossing or footpath;
(h) Establishing a “works zone”;
(i) Digging up or disturbing the surface of a public road (e.g. Opening the road for the purpose of connections to utility providers);
(j) Stormwater & ancillary works in the road reserve;
(k) Stormwater & ancillary to public infrastructure on private land; and
(l) If any excavation is to be supported by the use of below ground (cable) anchors that are constructed under Council’s roadways/footways.
These separate activity approvals must be obtained and evidence of the approval provided to the Certifying Authority prior to the issue of the Construction Certificate.
The relevant Application Forms for these activities can be downloaded from Council’s website www.georgesriver.nsw.gov.au. For further information, please contact Council’s Customer Service Centre on (02) 9330 6222.
3. Road Opening Permit - A Road Opening Permit must be obtained from Council, in the case of local or regional roads, or from the RMS, in the case of State roads, for every opening of a public road reserve to access services including sewer, stormwater drains, water mains, gas mains, and telecommunications before the commencement of work in the road.
Requirements of Concurrence, Integrated & Other Government Authorities
4. Trade Waste Agreements - A Trade Waste Agreement with Sydney Water may be required. Details of any work required to comply with the agreement must be detailed on the plans lodged with the Construction Certificate. If no trade waste agreement or grease trap is required, a letter from Sydney Water to this effect must be submitted with the application for the Construction Certificate.
5. Sydney Water – Tap in TM - The approved plans must be submitted to a Sydney Water Tap inTM to determine whether the development application will affect Sydney Water’s sewer and water mains, stormwater drains and/or easements, and if further requirements need to be met. The approved plans will be appropriately endorsed. For details please refer to ‘Plumbing, building and developing’ section of Sydney Water’s web site at www.sydneywater.com.au then see ‘Building’, or telephone 13000 TAP IN (1300 082 746). The Certifying Authority must ensure that a Tap inTM agent has appropriately stamped the plans prior to the issue of the Construction Certificate.
6. Liquor Licence - Application shall be made to NSW Office of Liquor and Gaming for an amended Liquor Licence under the Liquor Act 2007, prior to the issue of a construction certificate. Evidence that the amended Licence has been issued shall be provided to the PCA prior to the commencement of works.
Note: A use which is reliant on the obtaining of a Liquor Licence should refrain from progressing until the Licence is obtained.
Prior to the issue of a Construction Certificate
7. Fees to be paid - The fees listed in the table below must be paid in accordance with the conditions of this consent and Council’s adopted Fees and Charges applicable at the time of payment (available at www.georgesriver.nsw.gov.au).
Payments must be made prior to the issue of the Construction Certificate or prior to the commencement of work (if there is no associated Construction Certificate).
Please contact council prior to the payment of S94 Contributions to determine whether the amounts have been indexed from that indicated below in this consent and the form of payment that will be accepted by Council.
Council will only accept Bank Cheque or Electronic Funds Transfer (EFT) for transaction values of $500,000 or over. Council must be contacted prior to payment to determine correct total amount to be paid and bank account details (if applicable).
A summary of the fees to be paid are listed below:
|
Fee Type |
Fee |
|
GENERAL FEES |
|
|
Long Service Levy (to Long Service Corporation) Or, provide evidence of Payment direct to the Long Service Corporation. |
|
|
Builders Damage Deposit |
$67,980.00 |
|
Inspection Fee for Refund of Damage Deposit |
$371.00 |
|
Driveway Design and Inspection Fee (Dwelling) |
$TBA |
|
Driveway and Restoration Works Design |
$TBA |
General Fees
The fees and charges above are subject to change and are as set out in the version of Council's Schedule of Fees and Charges or as required by other Government Authorities, applicable at the time of payment.
8. Damage Deposit – Major Works - In order to insure against damage to Council property the following is required:
(a) Pay Council, before the issue of the Construction Certificate, a damage deposit for the cost of making good any damage caused to any Council property as a result of the development: $67,980.00
(b) Pay Council, before the issue of the Construction Certificate, a non-refundable inspection fee to enable assessment of any damage and repairs where required: $371.00
(c) Submit to Council, before the commencement of work, a dilapidation report of the condition of the Council nature strip, footpath and driveway crossing, or any area likely to be affected by the proposal.
At the completion of work Council will review the dilapidation report and the Works-As-Executed Drawings (if applicable) and inspect the public works.
The damage deposit will be refunded in full upon completion of work where no damage occurs and where Council is satisfied with the completion of works. Alternatively, the damage deposit will be forfeited or partly refunded based on the damage incurred.
9. Low reflectivity roof - Roofing materials must be low glare and reflectivity. Details of finished external materials including colours and texture must be provided to the Certifying Authority.
10. Lighting Plan – Details of proposed lighting are to be submitted demonstrating the following:
· Lighting towards access/egress routes and possible hiding places to illuminate potential offenders and possible places for intruders to hide;
· Lighting should have a wide beam of illumination, which reaches to the beam of the next light, or the perimeter of the site or area being traversed, thereby avoiding dark shadows.
11. Installation of Dual Flush Toilets - All toilets installed within the development must be of water efficient dual-flush or other water-saving capacity with at least a 4-star rating under the Water Efficiency and Labelling Scheme (WELS). The details must be submitted for the approval of the Accredited Certifier, prior to a Construction Certificate being issued.
12. Installation of Water Efficient Taps - All taps and shower heads installed must be water efficient with at least a 4-star rating under the Water Efficiency and Labelling Scheme (WELS). The details are to be submitted for the approval of the Principal Certifier, prior to any Occupation Certificate being issued.
13. Installation of water efficient urinals - New urinal suites, urinals and urinal flushing control mechanisms must use waterless technology. Where it is submitted that this is not feasible, it must be demonstrated that products have been selected with at least a 4-star rating under the Water Efficiency and Labelling Scheme (WELS). Systems must include "smart controls" to reduce unnecessary flushing. Continuous flushing systems are not approved. Details are to be submitted to and approved by the Accredited Certifier, prior to a Construction Certificate being issued.
14. Site Management Plan – Major Development - A Site Management Plan must be submitted with the application for a Construction Certificate, and include the following:
(a) location of protective site fencing;
(b) location of site storage areas/sheds/equipment;
(c) location of building materials for construction, e.g. stockpiles;
(d) provisions for public safety;
(e) dust control measures;
(f) method used to provide site access location and materials used;
(g) details of methods of disposal of demolition materials;
(h) method used to provide protective measures for tree preservation;
(i) provisions for temporary sanitary facilities;
(j) location and size of waste containers/skip bins;
(k) details of proposed sediment and erosion control measures;
(l) method used to provide construction noise and vibration management; and
(m) construction and demolition traffic management details.
The site management measures are to be implemented prior to the commencement of any works including demolition and excavation. The site management measures are to be maintained throughout the works, to maintain reasonable levels of public health, safety and amenity. A copy of the Site Management Plan must be kept on site and is to be made available upon request.
15. Section 79BA Bushfire Risk Assessment Certificate - All bushfire measures as recommended in the Bushfire Risk Assessment Report prepared by Newcastle Bushfire Consulting and dated 28 January 2020, and in the Bushfire Risk Assessment Certificate approved by Phillip Couch (Certification No. BPD-PA-16132), must be implemented and the details of bushfire safety measures must be submitted with the Construction Certificate application.
16. Bushfire Attack Level - The proposed development is to fully comply with all requirements applicable to a Bush Fire Attack Level (BAL) of BAL-LOW. With regard to the construction requirements both Addendum: Appendix 3 Planning for Bush Fire Protection 2010, and AS3959 -2009 Construction of Buildings in Bush Fire prone areas shall be referenced. Full details of proposed method of compliance are to be submitted with the Construction Certificate application.
17. Required design changes - The following changes are required to be made to the detailed Hydraulic Stormwater plans for inclusion with the Construction Certificate Application.
|
Drawing Reference |
Drawing Date |
Revision |
Drawing Details |
Author |
|
Project No.0720A Dwg. No.H101 |
17/2/2020 |
A |
Hydraulic Services Ground Floor – Stormwater Drainage |
Webb Australia Group (NSW) Pty Ltd |
|
Project No.0720A Dwg. No.H001 |
17/6/2020 |
02 |
Hydraulic Services Site Plan |
Webb Australia Group (NSW) Pty Ltd |
|
Project No.0720A Dwg. No.H002 |
17/6/2020 |
01 |
Hydraulic Services Site Stormwater Connection Plan |
Webb Australia Group (NSW) Pty Ltd |
|
Project No.0720A Dwg. No.H103 |
17/6/2020 |
A |
Hydraulic Services Roof – Stormwater Drainage |
Webb Australia Group (NSW) Pty Ltd |
(i) The inclusion of a fully detailed drawing of a silt/litter arrestor pit with Maximesh RH3030 (or similar) galvanised screen, located downstream of the last connection to the on-site drainage system and upstream of the proposed connection to Council’s trunk drainage system located within the Hurstville Golf Course site.
18. Erosion & Sedimentation Control - Erosion and sediment controls must be provided to ensure:
(a) Compliance with the approved Erosion & Sediment Control Plan
(b) Removal or disturbance of vegetation and top soil is confined to within 3m of the approved building area (no trees to be removed without approval)
(c) All clean water run-off is diverted around cleared or exposed areas
(d) Silt fences, stabilised entry/exit points or other devices are installed to prevent sediment from entering drainage systems or waterways
(e) All erosion and sediment controls are fully maintained for the duration of demolition, excavation and/or development works
(f) Controls are put into place to prevent tracking of sediment by vehicles onto adjoining roadway
(g) All disturbed areas are rendered erosion-resistant by turfing, mulching, paving or similar
(h) Compliance with Managing Urban Stormwater – Soils and Construction (Blue Book) produced by Landcom 2004.
These measures are to be implemented prior to the commencement of work (including demolition and excavation) and must remain until works are completed and all exposed surfaces are landscaped/sealed.
19. Stormwater System - The submitted stormwater plan has been assessed as a concept plan only. Final detailed plans of the drainage system, prepared by a professional engineer specialising in hydraulic engineering, shall be submitted for approval with the Construction Certificate.
(a) All stormwater shall drain by gravity to the upper level of Council’s stormwater drainage pipeline located on the Hurstville Golf Course site in accordance with the Australian/New Zealand Standard AS/NZS 3500.3: 2015 (as amended).
(b) Stormwater drainage plans including pipe sizes, type, grade, length, invert levels, dimensions and types of drainage pits prepared by a professional engineer who specialises in Hydraulic Engineering in accordance with the Australian Institute of Engineers Australian Rainfall and Runoff (1987) and Council's Stormwater Drainage Guidelines, shall accompany the application for the Construction Certificate.
20. Detailed Stormwater Drainage Design - The submitted stormwater plan has been assessed as a concept plan only. A detailed drainage design supported by a catchment area plan and drainage calculations (including a Hydraulic Grade Line Analysis) must be submitted with the Construction Certificate application.
21. Stormwater Drainage Plan Details - Stormwater drainage plans including pipe sizes, type, grade, length, invert levels, dimensions and types of drainage pits prepared by a professional engineering specialising in hydraulic engineering shall be submitted with the Construction Certificate application.
These plans shall be prepared in accordance with the Australian Institute of Engineers Australian Rainfall and Runoff (1987) and Council's Stormwater Management Policy.
22. Fire Safety Measures - Prior to the issue of a construction certificate a list of the essential fire safety measures that are to be provided in relation to the land and any building on the land as a consequence of the building work must accompany an application for a construction certificate, which is required to be submitted to either Council or a PCA. Such list must also specify the minimum standard of performance for each essential fire safety measure included in the list. The Council or PCA will then issue a Fire Safety Schedule for the building.
23. Structural details - Engineer's details prepared by a practising Structural Engineer being used to construct all reinforced concrete work, structural beams, columns and other structural members. The details are to be submitted to the Principal Certifying Authority for approval prior to construction of the specified works.
A copy shall be forwarded to Council where Council is not the PCA.
24. Access for persons with disabilities - Access for persons with disabilities must be provided direct to the site, including to all common areas, from external carpark and required sanitary facilities in accordance with the Premises Standards, the Building Code of Australia and AS 1428.1.
In the event that full compliance cannot be achieved the services of an accredited access consultant is to be obtained to determine alternative methods of compliance, such a report must be submitted to and endorsed by the Certifying Authority prior to issue of the Construction Certificate.
25. Slip Resistance - All pedestrian surfaces in areas such as foyers, public corridors, common areas, stairs and ramps as well as floor surfaces in the wet rooms must have slip resistance classifications, as determined using test methods in either wet or dry conditions, appropriate to their gradient and exposure to wetting. The classifications of the new pedestrian surface materials, in wet or dry conditions, must comply with AS/NZS4586:2004 - Slip Resistance Classifications of New Pedestrian Materials and must be detailed on the plans lodged with the application for the Construction Certificate.
26. Stormwater Drainage Application - This Development Consent does not give approval to undertake works on public infrastructure. A separate approval of a Stormwater Drainage Application is required under Section 68 of the Local Government Act 1993 to undertake:
(a) Stormwater & ancillary works to public infrastructure on private land.
The Stormwater Drainage Application approval must be obtained and evidence of the approval provided to the Certifying Authority prior to the issue of the Construction Certificate.
The Application Form for this activity can be downloaded from Council’s website www.georgesriver.nsw.gov.au. For further information, please contact Council’s Customer Service Centre on (02) 9330 6400.
27. Landscape Plans - A detailed landscape plan, drawn to scale, A3 size and coloured, by a qualified landscape architect or an AQF Level 5 landscape designer, must be submitted prior to the issue of the Construction Certificate. The plan must include:
(a) Location of existing and proposed structures, services and existing trees to be retained and /or removed;
(b) Details of earthworks including mounding and retaining walls, Reduced Levels and planter boxes;
(c) For the removal of twenty-two (22) trees upon the site, the applicant shall plant forty-four (44) trees at minimum 45 litre pot/ bag size, in accordance with Georges Rivers Tree Management Replacement Policy of 2:1.
(d) A minimum of 12 of the 44 replacement canopy trees, are to be planted in the immediate vicinity of the clubhouse, including within the front setback of the cart store and to the north of the cart store, to replace the loss of canopy trees from this part of the site. These trees are to be of the following species and a minimum pot size of 100 litres:
· Smooth Barked Apple Myrtle
· Lemon Scented Gum
· Forest Red Gum
· Brush Box
(e) Three (3) additional weeping bottle brush species are to be planted between the cart store and the Lorraine Street frontage to provide additional screening to the cart store.
(f) Location of proposed forty-four (44) trees and plants proposed as well as a plant schedule showing the plant symbol, botanical name/ common name; quantity; pot size/; and mature height x width.
(g) A higher proportionate mix of natives than exotics plantings, with all trees proposed, able to reach a height at maturity of nine (9) metres.
(h) Reference Georges River Councils, Tree Management Policy, 2019, 2:1 tree replacement. Council’s Policy requires that for every tree removed from the site, two (2) trees shall be planted to replace those lost.
(i) Tree species selection from – Georges River Council’s Tree Management Policy, April 2019, Appendix 1 – Tree Planting.
(j) Details of planting specifications, procedures and a maintenance schedule for twelve (12) months;
(k) Landscape ratios – pervious to impervious surfaces / deep soil zones
(l) Details of drainage and watering systems;
(m) Details of garden edging and turf;
(n) Any required fencing, retaining walls and other structures not shown on other approved architectural and engineering plans;
(o) The contact details and website of the landscape architect or AQF Level 5 landscape designer, as well as qualifications; and
(p) Associations and / or Memberships of Affiliation within the landscape industry.
28. Compliance with submitted Arborist Report - The recommendations outlined in the Arborist’s Report titled Arboricultural Impact Assessment prepared by Tom Hare- Truth About Trees, dated 2 March 2020, must be implemented throughout the relevant stages of construction. Details of tree protection measures to be implemented must be detailed and lodged with the Construction Certificate application for approval and shall be in accordance with Section 4 - Australian Standard AS 4970-2009: Protection of trees on development sites.
29. Tree Protection and Retention (CC9.87) - The following trees shall be retained and protected:
|
Tree Species |
Location of Tree / Tree No. |
Tree Protection Zone (metres) TPZ as per AS4970 - 2009 Fencing distance from trunk |
|
T11 - Melaleuca viminalis |
Within site fronting practice nets |
2.4 metres |
|
T12 - Melaleuca viminalis |
Within site fronting practice nets |
4.9 metres |
|
T13 – Melaleuca viminalis |
Within site along front boundary fence |
3.8 metres |
|
T14 – Melaleuca viminalis |
Within site along front boundary fence |
3.8 metres |
|
T15 – Melaleuca viminalis |
Within site along front boundary fence |
4.5 metres |
|
T16 – Melaleuca viminalis |
Within site along front boundary fence |
2.2 metres |
|
T17 – Melaleuca viminalis |
Within site along front boundary fence |
5.9 metres |
|
T18 – Melaleuca viminalis |
Within site along front boundary fence |
2.0 metres |
|
T19 – Melaleuca viminalis |
Within site along front boundary fence |
4.0 metres |
|
T20 – Melaleuca viminalis |
Within site along front boundary fence |
4.4 metres |
|
T21 – Melaleuca viminalis |
Within site along front boundary fence |
3.6 metres |
|
T22 – Melaleuca viminalis |
Within site along front boundary fence |
4.2 metres |
|
T23 – Melaleuca viminalis |
Within site close to existing covered area, BBQ and pergola area |
5.5 metres |
|
T24 – Melaleuca viminalis |
Within site close to existing covered area, BBQ and pergola area |
4.7 metres |
|
T25 - Melaleuca viminalis |
Within site close to existing covered area, BBQ and pergola area |
5.4 metres |
|
T26 - Melaleuca viminalis |
Within site close to existing covered area, BBQ and pergola area |
3.1 metres |
|
T27 – Eucalytpus saligna |
Within site close to existing covered area, BBQ and pergola area |
7.7 metres |
|
T1112 – Casuarina cunninghamiana |
Within site, rear of 9th Tee |
5.5 metres |
|
T1113 – Casuarina cunninghamiana |
Within site, rear of 9th Tee |
2.2 metres |
|
T1116 - Melaleuca viminalis |
Within site, rear of 9th Tee, close to boundary fence |
3.2 metres |
|
T1207 – Eucalyptus microcorys |
Within site close to existing covered area, BBQ and pergola area |
5.3 metres |
|
T1208 - Melaleuca viminalis |
Within site close to existing covered area, BBQ and pergola area |
2.4 metres |
|
T1209 - Melaleuca viminalis |
Within site close to existing covered area, BBQ and pergola area |
4.9 metres |
|
T1210 - Melaleuca viminalis |
Within site close to existing covered area, BBQ and pergola area |
4.2 metres |
|
T73 – Eucalytpus microcorys |
Extent of works, south, along 1st fairway |
9.0 metres |
(a) The client shall engage a qualified Arborist who holds an AQF Level 5 or above in Arboriculture and who is a current practicing and financial member of an Arboricultural Association or Affiliation.
(b) A certificate of compliance letter for tree protection measures shall be completed and forwarded to the PCA – Principal Certifying Authority, at three (3) stages being - before works, during works and once all building works have been completed, that tree protection measures have been installed and maintained during the building process.
General Tree Protection Measures
(c) The tree protection measures must be in undertaken in accordance AS4970 -2009 Protection of trees on development sites.
(d) Details of the tree protection measures to be implemented must be provided with the application for a Construction Certificate by a qualified Arborist who holds an AQF Level 5 or above in Arboriculture and who is a current practicing and financial member of an Arboricultural Association or Affiliation.
(e) The engaged AQF 5 Consulting Project Arborist must be present on-site during the stages of site set up, excavation, demolition and construction when works are being undertaken that could impact on the tree canopy or root zone within the tree protection zone of each tree.
(f) In accordance with AS 4970-2009 Protection of trees on development sites, a protective fence consisting of 2.4 x 1.8 metres high, fully supported chainmesh fence shall be used. The distance of the fence from the base of each tree is to be in accordance with the TPZ listed in the table above. A layer of organic mulch 100 millimetres thick shall be placed over the protected area and no soil or fill should be placed within the protection area.
(g) The Tree Protection Zone of each tree, to be protected, shall be watered thoroughly and regularly to minimise the effects of construction works.
(h) No building products/ materials or services shall be installed within the TPZ of the tree/s unless approved by Council. This fence shall be kept in place during demolition, construction and also have a sign displaying ‘Tree Protection Zone – DO NOT ENTER’ attached to the fence and must also include the name and contact details of the Project Arborist.
Excavation works near tree to be retained
(i) As per Arborist report, for the protection of trees in the location of the proposed stormwater piping – Trees 13 to 23, underground boring or the use of Air Spade type of non destructive excavations shall be utilised.
(j) Excavations around the trees to be retained on site shall be supervised by the AQF 5 Project Arborist to ensure that the root system will not adversely be affected, as per recommendations within the Arborist Report.
(k) Where the Tree Protection Zone (TPZ) of trees on site become compromised by any excavation works, the AQF 5 Project arborist shall be consulted to establish the position of any major roots and determine the necessary measures to protect these roots. The recommendations of the Arborist shall be submitted to Council prior to any further demolition or construction works taking place.
(l) Tree Protection Zones around the trees to be retained are not to have soil level changes, building product / materials stored or services installed in this area. Any structures proposed to be built in this area of the trees are to utilise pier and beam or cantilevered slab construction.
(m) Removal or pruning of any other tree (that would require consent of Council) on the site is not approved. All pruning must be undertaken by a qualified Arborist in accordance with AS4373 -2007 Pruning of Amenity Trees and Amenity Tree Industry, Code of Practice (SafeWork NSW August 1998).
30. Tree Removal & Replacement - In accordance with Georges River Tree Management Policy 2019, a 2:1 Policy is to be implemented. For every one (1) tree to be removed, two (2) trees shall be planted on the subject site to compensate for the loss of each tree. If Council finds that locations within the site cannot be found for the trees viability, an offset fee shall be forwarded to Council to plant the tree/s elsewhere, within the municipality.
Permission is granted for the removal of the following trees:
|
Tree Species |
Number of trees |
Location |
|
T1 – Eucalyptus scoparia |
1 |
Front of existing dwelling, close to Fairway 1 |
|
T3 – Eucalytpus longifolia |
1 |
Front of existing clubhouse |
|
T4 – Eucalytpus microcorys |
1 |
Front of existing clubhouse |
|
T5 – Agonis flexuosa |
1 |
East side of existing clubhouse |
|
T6/ 7 – Melaleuca viminalis |
2 |
East side of existing clubhouse |
|
T8/9 – Cupressus macrocarpa |
2 |
Side of clubhouse |
|
T10 – Eucalytpus globulus |
1 |
Side of clubhouse |
|
T1117 – Melaleuca viminalis |
1 |
Close to boundary fence, roadway |
|
T1118 – Eucalytpus microcorys |
1 |
Side of clubhouse |
|
T1119 – Casuarina glauca |
1 |
Between 9th Green and clubhouse |
|
T1120 – Eucalyptus microcorys |
1 |
Side of clubhouse |
|
T1121 – Eucalytpus microcorys |
1 |
Side of clubhouse |
|
T1122 – Eucalytpus microcorys |
1 |
South east side of clubhouse |
|
Ficus Spp |
7 |
Front fence entrance (4) to Golf Course and close to BBQ and pergola area (3). |
General Tree Removal Requirements
(a) All tree removal shall be carried out by a minimum certificate Level 3, Licenced and insured Tree Surgeon/Arborist to ensure that removal is undertaken in a safe manner and complies with the AS 4373-2007 - Pruning of Amenity Trees and Tree Works Industry Code of Practice (Work Cover NSW 1.8.98).
(b) No trees are to be removed on the site or neighbouring properties without the prior written approval of Council.
|
Summary |
|
|
Number of trees removed from site |
22 |
|
Number of trees required as per offset scheme (2:1 ratio) |
44 |
31. Acoustic Requirements - Compliance with submitted Acoustic Report - The Construction Certificate plans shall demonstrate compliance with the Acoustic Report submitted and approved by Council, titled ‘Noise Assessment Report’ prepared by Spectrum Acoustics dated February 2020.
32. Food Premises - The following information shall be provided and shown on the Construction Certificate Plans
(a) Plans and Specifications - Details of the construction and fit out of food premises must be submitted to Council’s Environmental Health Officer. The plans and specifications must demonstrate compliance with the:
i. Food Act 2003 (as amended)
ii. Food Regulation 2015 (as amended)
iii. Food Standards Code as published by Food Standards Australia
iv. New Zealand and Australian Standard AS4674:2004 Design, Construction and fit out of food premises (as amended)
v. Sydney Water – trade Waste Section.
Environmental Health Officers’ must advise in writing that the plans and specification are considered satisfactory prior to the issue of any Construction Certificate.
33. Food - Installation of mechanical exhaust system - Should a mechanical exhaust system be proposed, details to be submitted to Council for assessment prior to any installation. The plans should show the proposed location and capacity of the system.
Prior to the Commencement of Work (Including Demolition and Excavation)
34. Demolition & Asbestos - The demolition work shall comply with the provisions of Australian Standard AS2601:2001 – Demolition of Structures, NSW Work Health & Safety Act 2011 and the NSW Work Health & Safety Regulation 2011. The work plans required by AS2601:2001 shall be accompanied by a written statement by a suitably qualified person that the proposals contained in the work plan comply with the safety requirements of the Standard. The work plans and the safety statement shall be submitted to the PCA prior to the commencement of works.
For demolition work which involves the removal of asbestos, the asbestos removal work must be carried out by a licensed asbestos removalist who is licensed to carry out the work in accordance with the NSW Work Health & Safety Act 2011 and the NSW Work Health & Safety Regulation 2011 unless specified in the Act and/or Regulation that a license is not required.
All demolition work including the removal of asbestos, shall be undertaken in accordance with the Demolition Code of Practice (NSW Work Cover July 2015).
Note: Copies of the Act, Regulation and Code of Practice can be downloaded free of charge from the SafeWork NSW website: www.SafeWork.nsw.gov.au.
35. Demolition Notification Requirements - The following notification requirements apply to this consent:
(a) The developer /builder must notify adjoining residents five (5) working days prior to demolition. Such notification is to be a clearly written note giving the date demolition will commence, contact details of the developer/builder, licensed asbestos demolisher and the appropriate regulatory authority. Notification is to be placed in the letterbox of every premises (including every residential flat or unit, if any) either side and immediately at the rear of the demolition site.
(b) Five (5) working days prior to demolition, the developer/builder is to provide written notification to Council advising of the demolition date, details of the SafeWork licensed asbestos demolisher and the list of residents advised of the demolition.
(c) On demolition sites where buildings to be demolished contain asbestos, a standard commercially manufactured sign containing the words “DANGER ASBESTOS REMOVAL IN PROGRESS” measuring not less than 400mm x 300mm is to be erected in a prominent visible position (from street frontage) on the site. The sign is to be erected prior to demolition work commencing and is to remain in place until such time as all asbestos material has been removed from the site to an approved waste facility.
36. Dial before your dig - The applicant shall contact “Dial Before You Dig on 1100” to obtain a Service Diagram prior to the issuing of the Construction Certificate. The sequence number obtained from “Dial Before You Dig” shall be forwarded to the Principal Certifying Authority (PCA) and Council for their records.
37. Existing drainage easement, drainage reserve or stormwater drainage system benefiting Council - Council drainage easement(s) drainage reserve(s) or stormwater system either pass through or are adjacent to the site. No building or other structure must be placed over the drainage easement or stormwater system or within the zone of influence taken from the invert of any pipe.
The applicant must determine the exact location, size and level details of the potentially affected stormwater drainage systems and without causing any damage to the public system ensure its protection. The owner, principal contractor or owner builder must not obstruct or otherwise remove, disconnect or render inoperable the Stormwater Drainage System.
Works such as fences must not obstruct the natural stormwater flowpath or alter the flowpath in such a way as to direct or concentrate stormwater on to neighbouring properties.
Where the relocation or reconstruction of Council’s drainage system is approved then all work carried out on Council’s assets will revert to the ownership, care, control or management of Council. Therefore, upon handover to Council, the asset must comply with Council’s Construction of drainage and associated works specification.
The applicant must meet all costs associated with such works.
Note: This condition does not set aside the need to obtain relevant approvals under the Roads Act 1993 or Local Government Act 1993 for works within Roads and other public places.
38. Registered Surveyors Report - During Development Work - A report must be submitted to the PCA at each of the following applicable stages of construction:
(a) Set out before commencing excavation.
(b) Floor slabs or foundation wall, before formwork or commencing brickwork.
(c) Completion of Foundation Walls - Before any construction of flooring, detailing the location of the structure relative to adjacent boundaries and floor levels relative to the datum shown on the approved plans.
(d) Completion of Floor Slab Formwork - Before pouring of concrete/walls construction, detailing the location of the structure relative to adjacent boundaries and floor levels relative to the datum shown on the approved plans. In multi-storey buildings a further survey must be provided at each subsequent storey.
(e) Completion of any Roof Framing - Before roof covered detailing eaves/gutter setback from boundaries.
(f) Completion of all Work - Detailing the location of the structure (including eaves/gutters) relative to adjacent boundaries and its height relative to the datum shown on the approved plans. A final Check Survey must indicate the reduced level of the main ridge.
Work must not proceed beyond each stage until the PCA is satisfied that the height and location of the building is proceeding in accordance with the approved plans.
During Construction
39. Site sign – Soil & Erosion Control Measures - Prior to the commencement of works (including demolition and excavation), a durable site sign, issued by Council in conjunction with this consent, must be erected in a prominent location on site. The site sign warns of the penalties which apply to pollution, storing materials on road or footpath and breaches of the conditions relating to erosion and sediment controls. The sign must remain in a prominent location on site up until the completion of all site and building works.
40. Hours of construction for demolition and building work - Any work activity or activity associated with the development consent that requires the use of any tools (including hand tools) or any power operated plant and machinery that creates noise on or adjacent to the site shall not be performed, or permitted to be performed, except between the hours of 7.00 am to 5.00 pm, Monday to Saturday inclusive. No work or ancillary activity is permitted on Sundays, or Public Holidays.
Note: A penalty infringement notice may be issued for any offence.
41. Structural Certificate during Construction - The proposed building must be constructed in accordance with details designed and certified by the practising qualified structural engineer. All structural works associated with the foundations, piers, footings and slabs for the proposed building must be inspected and structurally certified for compliance by an independent practising geotechnical and structural engineer. In addition a Compliance or Structural Certificate, to the effect that the building works have been carried in accordance with the structural design, must be submitted to the Certifying Authority at each stage of Construction or prior issue of the Occupation Certificate.
42. Physical connection of Stormwater to site - No work is permitted to proceed above the ground floor slab level of the building until there is physical connection of the approved stormwater drainage system from the land the subject of this consent to Council's trunk stormwater drainage pipeline located on Hurstville Golf Course in the vicinity of Nos. 122 and 124 Lorraine Street.
43. Site contamination – Additional information - Any new information that comes to light during demolition or construction which has the potential to alter previous conclusions about site contamination and remediation must be notified to Council and the accredited certifier immediately.
44. Obstruction of Road or Footpath - The use of the road or footpath for the storage of any building materials, waste materials, temporary toilets, waste or skip bins, or any other matter is not permitted unless separately approved by Council under Section 138 of the Roads Act 1993 and/or under Section 68 of the Local Government Act 1993. Penalty infringement Notices may be issued for any offences and severe penalties apply.
45. Road Opening Permit - A Road Opening Permit must be obtained from Council for every opening of a public road reserve to access services including sewer, water mains, gas mains, connecting of stormwater to the kerb and telecommunication. This is for any work that involves excavation through or within a public road, kerb and gutter, and or the public footway between the road and the property boundary. The permit is to be lodged prior to the commencement of works. Additional approval is required from Roads and Maritime Services for works on a State Road.
46. Waste Management Facility - All materials removed from the site as a result of demolition, site clearing, site preparation and, or excavation shall be disposed of at a suitable Waste Management Facility. No vegetation, article, building material, waste or the like shall be ignited or burnt.
Copies of all receipts for the disposal, or processing of all such materials shall be submitted to the PCA and Council, where Council is not the Principal Certifying Authority.
Prior to the issue of the Occupation Certificate
47. Requirements prior to the issue of the Occupation Certificate - The following shall be completed and or submitted to the PCA prior to the issue of the Occupation Certificate:
(a) All the stormwater/drainage works shall be completed in accordance with the approved Construction Certificate plans prior to the issue of the Occupation Certificate.
(b) The provision for all services (conduits and pipes laid) shall be completed in accordance with the approved Construction Certificate plans prior to the issue of the Occupation Certificate.
(c) Replace all redundant vehicle crossing laybacks with kerb and guttering, and replace redundant concrete with turf.
(d) A Section 73 (Sydney Water) Compliance Certificate for the Subdivision shall be issued and submitted to the PCA prior to the issue of the Occupation Certificate.
(e) Work as Executed Plans prepared by a Chartered Professional Engineer or a Registered Surveyor when all the site engineering works are complete shall be submitted to the PCA prior to the issue of the Occupation Certificate.
(f) The construction of the stormwater drainage connection within the Hurstville Golf Course site shall be completed in accordance with the conditions and specifications of the Section 68 Activity Approval.
48. Vehicular crossing & Frontage work – Major development - The following road frontage works shall be constructed in accordance with the specifications issued under the ‘Application for Driveway Crossing and Associated Works on Council Road Reserve’ approval issued by Council’s Assets and Infrastructure Division:
(a) Any existing vehicular crossing and/or laybacks which are redundant must be removed. The kerb and gutter, any other footpath and turf areas shall be restored at the expense of the applicant and in accordance with Council’s Specification for Driveway Crossings and Associated Works.
The above work shall be carried out in accordance with Council’s Specification for Driveway Crossings and Associated Works.
The driveway and road frontage works are to be completed before the issue of the Occupation Certificate.
49. Completion of Major Works - Prior to the issue of a Final Occupation Certificate, the following works must be completed at the applicant’s expense to the satisfaction of Council’s Engineering Services section:
(a) Stormwater pipes, pits and connections to Council’s trunk stormwater drainage system within the Hurstville Golf Course site;
(b) Removal of redundant driveways and vehicular crossings;
(c) New or reinstated kerb and guttering within the road related area; and
(d) New or reinstated road surface pavement within the road.
Council’s Assets and Infrastructure Section must advise in writing that the works have been completed to their satisfaction prior to the issue of the Occupation Certificate. [Note: The damage deposit paid to Council will not be released until the works have been completed to Council’s satisfaction.
50. Stormwater drainage works – Works As Executed - Prior to the issue of the Occupation Certificate, storm water drainage works are to be certified by a professional engineer specialising in hydraulic engineering, with Works-As-Executed drawings supplied to Council detailing:
(a) Compliance with conditions of development consent relating to stormwater;
(b) Pipe invert levels and surface levels to Australian Height Datum.
51. Fire Safety Certificate before Occupation or Use - In accordance with Clause 153 of the Environmental Planning and Assessment Regulation 2000 on completion of building works and prior to the issue of an Occupation Certificate, the owner must cause the issue of a Final Fire Safety Certificate in accordance with Clause 170 of the aforesaid Regulation. The Fire Safety Certificate must be in the form or to the effect of Clause 174 of the Environmental Planning and Assessment Regulation 2000. In addition, in relation to each essential fire or other safety measure implemented in the building or on the land on which the building is situated, such a Certificate is to state:
(a) That the measure has been assessed by a person (chosen by the owner of the building) who is properly qualified to do so.
(b) That as at the date of the assessment the measure was found to be capable of functioning at a standard not less than that required by the attached Schedule. [NOTE: ATTACH SCHEDULE]
A copy of the certificate is to be given by the applicant to the Commissioner of Fire & Rescue NSW and a further copy is to be displayed in a frame and fixed to a wall inside the building's main entrance.
52. Acoustic Certification - Prior to the issue of any Occupation Certificate, a suitably qualified acoustic consultant shall certify that the operation of the premises and plant equipment shall not give rise to a sound pressure level at any affected premises that exceeds the acoustic criteria established by the Acoustic Report required by a condition of this consent. The development shall at all times comply with these noise levels post occupation.
53. Efficient lighting - All light bulbs used are to be Compact Fluoresecent Lamp (CFL) or Light Emitting Diode (LED) bulbs to ensure energy efficiency and lighting is to be sensor operated. Lighting is to be downward facing to minimise light spill. This is to be demonstrated to the satisfaction of the Principal Certifying Authority prior to the release of any Occupation Certificate.
54. Food Premises – Inspection & Registration - Prior to the issue of any Occupation Certificate or occupation or use of any food premises:
(a) An inspection of the fit out of the Food Premises must be arranged with Council's Environmental Health Officer;
(b) A satisfactory final inspection must have been undertaken by Council's Environmental Health Officer; and
(c) The Food Premises must update its business details with Georges River Council as required under section 100 of the Food Act 2003.
55. Completion of Landscape Works - All landscape works and the planting of forty-four (44) replacement trees must be completed before the issue of the Final Occupation Certificate and to the satisfaction of Councils Tree Management Officers. In accordance with submitted approved landscape plans and specifications, as requested and provided before the issue of the Construction Certificate.
A certificate of compliance for the planting of all forty four (44) trees and shrubs proposed for the site. An AQF 5 Horticulturist shall be engaged and in writing certify that all trees have been planted as per landscape plan and specifications and forwarded to the PCA – Principal Certifying Authority.
56. Tree Protection Measures - A final certificate of compliance letter, once all building and landscape works have been completed, from the engaged AQF 5 Consulting Arborist, that tree protection measures have been installed and maintained for the entirety of the project and report on the condition of the trees that as part of this Consent, were to be protected and retained.
57. Tree Replacement within subject site - A minimum of forty four (44) x 45 litre size additional trees, which will attain a minimum mature height of nine (9) metres, shall be planted within the property. The tree/s are to conform to AS2303-2018, Tree stock for landscape use.
Tree species selected shall be from Georges River Council’s Tree Management Policy, April 2019. Appendix 1 – Tree Planting.
If the replacement trees are found to be faulty, damaged, dying or dead within twelve (12) months of planting then they must be replaced with the same species. If the trees are found dead before they reach a height where they are protected by Councils Tree Management Controls, they must be replaced with the same species and pot/bag size.
A copy of the Hurstville City Council’s Tree Removal and Pruning Guidelines and Kogarah City Council, Street Tree Management Strategy, Masterplan, and Tree Management Policy 2019, can be downloaded from Council’s website www.georgesriver.nsw.gov.au.
58. Plan of Management - The applicant shall provide a Plan of Management for the operations of the premises to the satisfaction of Council prior to commencement of use. The Plan of Management shall be complied with when the premises is in use.
NOTE: The purpose of this Plan is to establish performance criteria for various aspects of the operations of the premises having regard to the relevant matters under the Environmental Planning and Assessment Act 1979 and the Liquor Act 2007.
The Plan of Management shall address:
(a) Hours of operation;
(b) Amenity of neighbourhood;
(c) Noise;
(d) Behaviour of patrons and responsible service of alcohol;
(e) Deliveries and waste removal and management;
(f) Maintenance;
(g) Removal of liquor in open containers;
(h) House policy;
(i) Staff;
(j) Security Management Plan;
(k) Capacity of premises;
(l) Use of levels and courtyards;
(m) Event management.
Operational Conditions (Ongoing)
59. Use of Premises - The use of the premises is to be associated with the golf course use only and any other use requires the prior approval of Council. The premises shall not be available for hire or use by a third party for events and functions without prior consent.
60. Hours of Operation - The approved hours of operation of the overall clubhouse facility shall be restricted to the following:
(a) 5.45am to 7.00pm daily;
(b) Notwithstanding (a) above, the use of the clubroom on the first floor level of the clubhouse may operate between the hours of 7.00pm and 10.00pm for a maximum five (5) events per calendar year.
(c) Notwithstanding (b) above, any use of the premises after 7.00pm is to be confined to the clubroom on the first floor level of the clubhouse.
61. Clubroom Maximum Number of persons – The first floor level of the clubhouse ie the clubroom, shall be limited to a maximum of 100 persons (inclusive of the first floor balcony). After 7.00pm, a maximum of 30 persons is permitted on the balcony at any one time.
62. Maintenance of Landscaping - All trees and plants forming part of the landscaping must be maintained. Maintenance includes watering, weeding, removal of rubbish from tree bases, fertilizing, pest and disease control, replacement of dead or dying plants and any other operations required to maintain healthy trees, plants and turfed areas.
63. External Speakers or amplification – External speakers/noise amplification equipment shall only be used for the announcement of golfers to the golf tee.
64. No Speakers or Music Outside – Other than for the announcement of players to the tee, speakers and/or noise amplification equipment must not be installed and music must not be played in any of the outdoor areas associated with the premises including the public domain. Speakers located within the premises must not be placed so as to direct the playing of music towards the outdoor areas within the boundaries of the premises.
65. Noise Control - The use of the premises must not give rise to the transmission of offensive noise to any place of different occupancy. Offensive noise is defined in the Protection of the Environment Operations Act 1997 (as amended).
66. Lighting – General Nuisance - Any lighting on the site shall be designed so as not to cause a nuisance to other residences in the area or to motorists on nearby roads and to ensure no adverse impact on the amenity of the surrounding area by light overspill or glare.
Flashing, moving or intermittent lights or signs are prohibited.
67. Amenity of the neighbourhood - The implementation of this development shall not adversely affect the amenity of the neighbourhood or interfere unreasonably with the comfort or repose of a person who is outside the premises by reason of the emission or discharge of noise, fumes, vapour, odour, steam, soot, dust, waste water, waste products, grit, oil or other harmful products.
68. Food premises – Restricted use (Premises that are not cooking) - There shall be no cooking (reheating is permitted) in the premises unless a separate development application has been approved by Council for this purpose.
69. Food premises – maintenance of food premises - The food premises must be maintained in accordance with the Food Act 2003 (as amended), Food Regulation 2015 (as amended); the Food Standards Code as published by Food Standards Australia & New Zealand and Australian Standard AS 4674-2004: Construction and fit out of food premises (as amended).
70. Food premises – Garbage Odour - A waste contractor shall be engaged to remove all waste from the garbage storage area on a regular basis so that no overflow of rubbish will occur. Practical measures are also to be taken to ensure that odour emission from the garbage storage area does not cause offensive odour as defined under the provision of the Protection of the Environment Operations Act, 1997 (as amended).
71. Responsibility of Operators– The operators of the Golf Clubhouse premises shall be responsible for presenting all approved waste and recycling receptacles for collection, and returning all receptacles to the Main Waste Collection Room, as soon as practicable after they have been serviced.
The Operators shall also be responsible for maintaining all equipment, systems, facilities and storage areas used in conjunction with the provision of waste management services in accordance with all applicable regulatory requirements, relevant health and environmental standards, and to the satisfaction of Council.
72. Licensed Premises – Noise Levels (7.00am to 12midnight) - The LA10 noise level emitted from the premises, measured between the hours of 7am and 12 midnight, is not to exceed the background noise level in any octave band frequency (centred on 31.5Hz to 8 kHz inclusive) by more than 5 dB, when measured at the boundary of any adjoining residence.
73. No of Patrons in Licensed Premises - A sign shall be displayed in a prominent position in the building specifying the maximum number of persons 100 permitted in the clubroom.
74. Annual Fire Safety Statement - The owner of the building premises must ensure the Council is given an annual fire safety statement in relation to each essential fire safety measure implemented in the building. The annual fire safety statement must be given:
(a) Within 12 months after the date on which the fire safety certificate was received.
(b) Subsequent annual fire safety statements are to be given within 12 months after the last such statement was given.
(c) An annual fire safety statement is to be given in or to the effect of Clause 181 of the Environmental Planning and Assessment Regulation 2000.
(d) A copy of the statement is to be given to the Commissioner of Fire & Rescue NSW, and a further copy is to be prominently displayed in the building.
Operational Requirements under the Environmental Planning and Assessment Act 1979
75. Requirement for a Construction Certificate - The erection of a building must not commence until a Construction Certificate has been issued.
76. Appointment of a PCA - The erection of a building must not commence until the applicant has:
(a) appointed a PCA for the building work; and
(b) if relevant, advised the PCA that the work will be undertaken as an Owner -Builder.
If work is not going to be undertaken by an Owner - Builder, applicant must:
(a) appoint a Principal Contractor to undertake the building work. If residential building work (within the meaning of the Home Building Act 1989) is to be undertaken, the Principal Contractor must be a holder of a contractor licence; and
(b) notify the PCA of the details of any such appointment; and
(c) notify the Principal Contractor of any critical stage inspections or other inspections that are required to be carried out in respect of the building work.
An Information Pack is attached for your convenience should you wish to appoint Georges River Council as the PCA for your development.
77. Notification of Critical Stage Inspections - No later than two days before the building work commences, the PCA must notify:
(a) the consent authority and the Council (if not the consent authority) of his or her appointment; and
(b) the applicant of the critical stage inspections and other inspections that are to be carried out with respect to the building work.
78. Notice of Commencement - The applicant must give at least two (2) days notice to the Council and the PCA of their intention to commence the erection of a building.
A Notice of Commencement Form is attached for your convenience.
79. Critical Stage Inspections - The last critical stage inspection must be undertaken by the PCA. The critical stage inspections required to be carried out vary according to Building Class under the Building Code of Australia and are listed in Clause 162A of the Environmental Planning and Assessment Regulation 2000.
80. Notice to be given prior to critical stage inspections - The principal contractor for a building site, or the owner-builder, must notify the PCA at least 48 hours before each required inspection needs to be carried out.
Where Georges River Council has been appointed as the PCA, 48 hours notice in writing, or alternatively 24 hours notice by facsimile or telephone, must be given when specified work requiring inspection has been completed.
81. Occupation Certificate - A person must not commence occupation or use of the whole or any part of a new building unless an Occupation Certificate has been issued in relation to the building or part.
Only the PCA appointed for the building work can issue the Occupation Certificate.
An Occupation Certificate Application Form is attached for your convenience.
Prescribed Conditions
82. Clause 98 - Building Code of Australia & Home Building Act 1989 - Requires all building work to be carried out in accordance with the Building Code of Australia.
83. Erection of Signs - Requires the erection of signs on site and outlines the details which are to be included on the sign. The sign must be displayed in a prominent position on site and include the name and contact details of the Principal Contractor and any Principal Supervisor.
Advices
84. Review of Determination - Section 8.2 of the Environmental Planning and Assessment Act 1979 confers on an applicant who is dissatisfied with the determination of the application the right to lodge an application with Council for a review of such determination. Any such review must however be completed within 6 months from its determination. Should a review be contemplated sufficient time should be allowed for Council to undertake public notification and other processes involved in the review of the determination.
Note: Review provisions do not apply to Complying Development, Designated Development, State Significant Development, Integrated Development or any application determined by the Sydney South Planning Panel or the Land & Environment Court.
85. Appeal Rights - Part 8 (Reviews and appeals) of the Environmental Planning and Assessment Act 1979 confers on an applicant who is dissatisfied with the determination of the application a right of appeal to the Land and Environment Court of New South Wales.
86. Lapsing of Consent - This consent will lapse unless the development is physically commenced within 5 years from the Date of Operation of this consent, in accordance with Section 4.53 of the Environmental Planning and Assessment Act 1979 as amended.
87. Access to NSW Legislations (Acts, Regulations and Planning Instruments) - NSW legislation can be accessed free of charge at www.legislation.nsw.gov.au
88. Long Service Levy (ADV17.2) - The Long Service Corporation administers a scheme which provides a portable long service benefit for eligible workers in the building and construction industry in NSW. All benefits and requirements are determined by the Building and Construction Industry Long Service Payments Act 1986. More information about the scheme and the levy amount you are required to pay to satisfy a condition of your consent can be found at http://www.longservice.nsw.gov.au.
The required Long Service Levy payment can be direct to the Long Service Corporation via their web site https://online.longservice.nsw.gov.au/bci/levy. Payments can only be processed on-line for the full levy owing and where the value of work is between $25,000 and $6,000,000. Payments will be accepted for amounts up to $21,000, using either MasterCard or Visa.
89. Disability Discrimination Act - This application has been assessed in accordance with the Environmental Planning and Assessment Act 1979. No guarantee is given that the proposal complies with the Disability Discrimination Act 1992. The applicant is responsible to ensure compliance with this and other anti-discrimination legislation. The Disability Discrimination Act 1992 covers disabilities not catered for in the minimum standards called up in the Building Code of Australia which refers to AS1428.1-Design for Access and Mobility.
90. Security deposit administration & compliance fee - Under Section 97 (5) of the Local Government Act 1993, a security deposit (or part) if repaid to the person who provided it is to be repaid with any interest accrued on the deposit (or part) as a consequence of its investment.
Council must cover administration and other costs incurred in the investment of these monies. The current charge is $50.00 plus 2% of the bond amount per annum.
The interest rate applied to bonds is set at Council's business banking facility rate as at 1 July each year. Council will accept a bank guarantee in lieu of a deposit.
All interest earned on security deposits will be used to offset the Security Deposit Administration and Compliance fee. Where interest earned on a deposit is not sufficient to meet the fee, it will be accepted in full satisfaction of the fee.
91. Stormwater & Ancillary Works – Applications under Section 138 Roads Act and/or Section 68 Local Government Act 1993 - To apply for approval under Section 138 of the Roads Act 1993 and/or Section 68 of the Local Government Act 1993:
(a) Complete the ‘Stormwater Drainage Application Form’ which can be downloaded from Georges River Council’s website at www.georgesriver.nsw.gov.au.
(b) In the Application Form, quote the Development Consent No. (DA2020/0115) and reference this condition number (Condition XX)
(c) Lodge the application form, together with the associated fees at Council’s Customer Service Centre, during business hours. Refer to Council’s adopted Fees and Charges for the administrative and inspection charges associated with stormwater applications.
The developer must meet all costs of the extension, relocation or reconstruction of any part of Council’s drainage system (including design drawings and easements) required to carry out the approved development.
The preparation of all engineering drawings (site layout plans, cross sections, longitudinal sections, elevation views together with a hydraulic grade analysis) and specifications for the new storm water drainage system to be arranged by the applicant. The design plans must be lodged and approved by Council prior to the issue of a Construction Certificate.
NOTE: A minimum of four weeks should be allowed for assessment.
92. Council as PCA - Deemed to Satisfy Provisions of BCA - Should the Council be appointed as the PCA in determining the Construction Certificate, the building must comply with all the applicable deemed to satisfy provision of the BCA. However, if an alternative fire solution is proposed it must comply with the performance requirements of the BCA, in which case, the alternative solution, prepared by an appropriately qualified fire consultant, accredited and having specialist qualifications in fire engineering, must justifying the non-compliances with a detailed report, suitable evidence and expert judgement. Council will also require if deemed necessary, for the alternative solution to undergo an independent peer review by either the CSIRO or other accredited organisation. In these circumstances, the applicant must pay all costs for the independent review.
93. Council Appointed as the PCA - Should the Council be appointed as the Principal Certifier in determining the Construction Certificate, the building must comply with all the applicable deemed to satisfy provision of the BCA. However, if an alternative solution is proposed it must comply with the performance requirements of the BCA, in which case, the alternative solution, prepared by an appropriately qualified fire consultant, accredited and having specialist qualifications in fire engineering, must justify the non-compliances with a detailed report, suitable evidence and expert judgement.
In this regard, detailed construction plans and specifications that demonstrate compliance with the above requirements of the BCA and the following below points, must be submitted to the PCA with the Construction Certificate Application.
· The architect is to provide specifications for each non-combustible building element including the fire hazard properties of the proposed floor, wall and ceiling linings.
· The fire separation of classifications complying with specification C1.1.
· Emergency equipment shall be fire separated from non-emergency equipment in accordance with clause C2.13.
· Exits must not be blocked at the point of discharge. Suitable barriers must be provided to prevent exits being blocked. NOTE: all final exit doors are to open in the direction of egress.
· A stairway detail and section, including the offset landing on the lower flight (to facilitate an accessible compliant handrail) shall comply with Parts D2.14, D2.17 and AD1428.1-2009. NOTE: enclosures below the stairway must comply with the fire requirements of D2.8.
· A fire hydrant booster system shall be installed in accordance with E1.3.
· All accessible requirements shall comply with the BCA compliance report provided by BuildCert Consultants (Rev 2), dated 27/02/2020.
· All fire safety measures shall comply with the schedule of measures detailed in Appendix A of the BCA compliance report provided by BuildCert Consultants (Rev 2), dated 27/02/2020.
· NOTE: The proposed w.c. floor plan layout, located on the first floor club/function room level, shall be redesigned as it is not desirable to have female patrons passing by the male w.c. area.
· Based on the number of sanitary facilities, located on the first floor club/function room area, the total number of occupants (including staff) cannot exceed 100 persons. Permanent signage to this effect shall be located within a prominent location of the club/function room.
94. Energy Efficiency Provisions - Should Council be appointed as the PCA, a report prepared and endorsed by an Energy Efficiency Engineer or other suitably qualified person must be submitted, detailing the measures that must be implemented in the building to comply with Section J of the BCA. The proposed measures and feature of the building that facilitate the efficient use of energy must be identified and detailed on the architectural plans. At completion of the building and before the issue of an Occupation Certificate, a certificate certifying that the building has been erected to comply with the energy efficiency provisions must be submitted to the PCA.
Energy efficiency provisions relate only to new building work or the installation of new measure. Existing building fabric and measures may not be upgraded.
95. Site Safety Fencing - Site fencing must be erected in accordance with SafeWork Guidelines, to exclude public access to the site throughout the demolition and/or construction work, except in the case of alterations to an occupied dwelling. The fencing must be erected before the commencement of any work and maintained throughout any demolition and construction work.
A demolition licence and/or a high risk work license may be required from SafeWork NSW (see www.SafeWork.nsw.gov.au).
96. Food Premises - Information on Australian Standards can be obtained from www.standards.com.au - Guidelines and Food Safety Standards may be obtained by contacting the Food Standards Australia New Zealand Authority at foodstandards.gov.au or the NSW Food Authority on 1300 552 406, email: contact@foodauthority.nsw.gov.au or by visiting the website www.foodauthority.nsw.gov.au
Notification of Food Business under Section 100 of the Food Act 2003 requires the proprietor of a food business to give written notice, in the approved form, before conducting a food business. Penalties apply for failure to comply.
97. Noise – Noise related conditions - Council will generally enforce noise related conditions in accordance with the Noise Guide for Local Government (http://www.environment.nsw.gov.au/noise/nglg.htm) and the Industrial Noise Guidelines (http://www.environment.nsw.gov.au/noise/industrial.htm) publish by the Department of Environment and Conservation. Other state government authorities also regulate the Protection of the Environment Operations Act 1997.
Useful links relating to Noise:
Community Justice Centres—free mediation service provided by the NSW Government (www.cjc.nsw.gov.au).
Department of Environment and Conservation NSW, Noise Policy Section web page (www.environment.nsw.gov.au/noise).
New South Wales Government Legislation home page for access to all NSW legislation, including the Protection of the Environment Operations Act 1997 and the Protection of the Environment Noise Control Regulation 2000 (www.legislation.nsw.gov.au).
Australian Acoustical Society—professional society of noise-related professionals (www.acoustics.asn.au /index.php).
Association of Australian Acoustical Consultants—professional society of noise related professionals (www.aaac.org.au).
Department of Gaming and Racing - (www.dgr.nsw.gov.au).
|
Attachment ⇩1 |
Elevations and Montage - 57 Lorraine Street Peakhurst |
|
Attachment ⇩2 |
Site and Landscape Plans - 57 Lorrine Street Peakhurst |
|
Georges River Council - Georges River Local Planning Panel (LPP) - Thursday, 10 December 2020 LPP064-20 57 Lorraine Street Peakhurst [Appendix 1] Elevations and Montage - 57 Lorraine Street Peakhurst |
Page 104 |






|
Georges River Council – Local Planning Panel Thursday, 10 December 2020 |
Page 131 |
REPORT TO GEORGES RIVER COUNCIL
LPP MEETING OF Thursday, 10 December 2020
|
LPP Report No |
LPP065-20 |
Development Application No |
MOD2020/0136 |
|
Site Address & Ward Locality |
1-3 Peake Parade Peakhurst Peakhurst Ward |
||
|
Proposed Development |
Modifications to an approved residential flat building |
||
|
Owners |
Matthews St Pty Ltd |
||
|
Applicant |
ZTA Group |
||
|
Planner/Architect |
Planner: Cohesive Planning / Architect: Arquero |
||
|
Date Of Lodgement |
20/07/2020 |
||
|
Submissions |
No submissions |
||
|
Cost of Works |
Original DA: $2,150,000 |
||
|
Local Planning Panel Criteria |
The proposed development seeks consent for a variation to the height standard greater than 10%. |
||
|
List of all relevant s.4.15 matters (formerly s79C(1)(a)) |
State Environmental Planning Policy No. 65 – Design Quality of Residential Apartment Development and the Apartment Design Guide, State Environmental Planning Policy (Vegetation in Non-Rural Areas) 2017, State Environmental Planning Policy (BASIX) 2004, Greater Metropolitan Regional Environmental Planning Policy No 2 - Georges River Catchment, State Environmental Planning Policy No. 55 – Remediation of Land, State Environmental Planning Policy (Infrastructure) 2007, Draft Environment State Environmental Planning Policy, Draft State Environmental Planning Policy 55 – Remediation of the Land, Hurstville Local Environmental Plan 2012, Draft Georges River Local Environmental Plan 2020, Hurstville Development Control Plan No. 1 |
||
|
List all documents submitted with this report for the Panel’s consideration |
Architectural Plans, Statement of Environmental Effects Varition request for a breach of a development standard – prepared not dissimilar to a Clause 4.6 Variation Request. Approved plans and consent DA2015/0031.
|
||
|
Report prepared by |
Senior Development Assessment Planner |
||
|
|
Summary of matters for consideration under Section 4.15 Have all recommendations in relation to relevant s4.15 matters been summarised in the Executive Summary of the assessment report? |
Yes |
|
Legislative clauses requiring consent authority satisfaction Have relevant clauses in all applicable environmental planning instruments where the consent authority must be satisfied about a particular matter been listed and relevant recommendations summarised, in the Executive Summary of the assessment report? |
Yes |
|
Clause 4.6 Exceptions to development standards If a written request for a contravention to a development standard (clause 4.6 of the LEP) has been received, has it been attached to the assessment report? |
Yes - Clause 4.3 Height of buildings |
|
Special Infrastructure Contributions Does the DA require Special Infrastructure Contributions conditions (under s7.24)? |
Not Applicable |
|
Conditions Have draft conditions been provided to the applicant for comment? |
No, the recommendation is for refusal |
|
Site Plan
The site is edged in blue |
EXECUTIVE SUMMARY
Proposal
1. The Section 4.56 modification application seeks consent for amendments to a Land and Environment Court approval (case number 2016/221690, orders made on 2 December 2016). The application is the Modification of Consent No DA2015/0031 for demolition works, construction of a four storey residential flat building. Modifications include raising the building and removing the split level design.
2. The approved building contains fourteen (14) units, comprising three (3) x one (1) bedroom units and ten (10) x two (2) bedroom units and one (1) x one (1) bedroom + study unit.
3. The modifications sought include:
Basement level: minor design changes in storage and service rooms, change to fire stair arrangement, lift core location and lobby, increase in floor level from RL39.06 to RL39.87.
Ground floor: lift core and fire stair redesign, removal of split floor level to a consistent floor level from RL41.81/RL43.33 to RL43.66.
Level 1: lift core and fire stair redesign, removal of split floor level to a consistent floor level from RL44.85/RL46.38 to RL46.71.
Level 2: deletion of study from Unit 11, lift core and fire stair redesign, removal of split floor level to a consistent floor level from RL47.91/RL49.43 to RL49.76.
Roof terrace: lift core and fire stair redesign, increased floor level from RL50.96 to RL52.744, modification of communal open space area and increase from 107.78sqm to 112.7sqm, and change of roof form from pitch to flat and skillion roof at the rear.
Site and Locality
4. The subject site is identified as 1-3 Peake Parade, Peakhurst and is legally described as Lots 276 and 277 in DP36537.
5. The sites are located on the south eastern side of Peake Parade, approximately 34m from the intersection with Hugh Avenue. The sites have a total frontage to Peake Parade of 32.615m, side boundary lengths of 35m and 35.095m with an overall site area of 1,081sqm.
6. The NSW Land and Environment Court granted consent for demolition works and construction of a four storey residential flat building on the site on 2 December 2016 (DA2015/0031). Demolition of the existing dwellings has been undertaken and the site is now vacant.
7. The site is located in a predominantly residential area characterised by recently constructed residential flat buildings in Peake Parade and Hugh Avenue to the east and west, dwelling houses and neighbourhood shops on Forest Road to the south.
8. The site is affected by overland flow. The Overland Flow Analysis submitted with the application is not representative of current conditions and the true impact of overland flow on the subject development and the neighbouring land has not been adequately presented. For these reasons the application is recommended for refusal.
Zoning and Permissibility
9. The site is zoned R3 Medium Density Residential under Hurstville Local Environmental Plan 2012 (HLEP) and the proposed modification being works to the approved residential flat building is permissible with Council’s consent.
Submissions
10. The application was neighbour notified between 27 July 2020 and 10 August 2020. No submissions were received.
Reason for referral to the Local Planning Panel
11. The proposal is referred to the Local Planning Panel for determination as the development is subject to SEPP 65 and is a Section 4.56 modification to a Court approved development. The Georges River Local Planning Panel is the consent authority via the Ministerial Direction of 23 February 2018.
Conclusion
12. The application has been assessed having regard to Section 4.56 of the Environmental Planning and Assessment (EP&A) Act 1979 and the Matters for Consideration under Section 4.15(1) of the EP&A Act 1979. Following the assessment of the proposal, it is considered that Modification No. MOD2020/0136 is worthy of support and is recommended for approval subject to modified conditions.
REPORT IN FULL
Site and Locality
13. The subject site is identified as 1-3 Peake Parade, Peakhurst and is legally described as Lots 276 and 277 in DP36537.
14. The site is located on the south eastern side of Peake Parade, approximately 34m from the intersection with Hugh Avenue. The site has a frontage to Peake Parade of 32.615m, side boundary lengths of 35m and 35.095m with an overall site area of 1,081sqm.
15. The NSW Land and Environment Court granted consent for demolition works and construction of a four storey residential flat building on the site on 2 December 2016 (DA2015/0031). Demolition of the existing dwellings has been undertaken and the site is now vacant.
16. The site is located in a predominantly residential area characterised by recently constructed residential flat buildings in Peake Parade and Hugh Avenue to the east and west, dwelling houses and neighbourhood shops on Forest Road to the south.
17. Adjoining the site to the north east on the corner of Peake Parade and Hugh Avenue, and to the south west at 5-7 Peake Parade, and opposite the site at 4-6 Peake Parade, are residential flat buildings.

Figure 1: 3 Hugh Avenue (north east of the site)

Figure 2: 5-7 Peake Parade (south-west of the site)
18. To the south of the site are neighbourhood shops bound by Hugh Avenue, Forest Road and Bristow Lane.

Figure 3: Rear of the shops on Forest Road (south east of the site)
Background
19. The approved development is for the demolition works and construction of a four storey residential flat building (DA2015/0031, which was approved (deferred commencement) by the Land and Environment Court on 2 December 2016 (Case number 2016/221690)).
20. The deferred commencement conditions were satisfied and the consent became active on 5 November 2018.
21. Demolition works approved as part of DA2015/0031 were undertaken in late 2019.
22. This modification application was lodged 20 July 2020.
23. This is a modification application lodged pursuant to Section 4.56 of the Environmental Planning and Assessment Act 1979 (EP&A Act) and proposes modifications to Development Consent DA2015/0031, which was approved by the Land and Environment Court on 2 December 2016 (Case number 2016/221690).
24. The modification application is referred to the Local Planning Panel for determination as the application is a modification under clause 4.56 of the EP&A Act to a residential flat building under the provisions of State Environmental Planning Policy 65, whereby the Georges River Local Planning Panel is the determining authority via the Ministerial Direction of 23 February 2018.
Proposal
25. The applicant seeks to modify Development Consent No DA2015/0031in the following manner:
Basement level: minor design changes in storage and service rooms, change to fire stair arrangement, lift core location and lobby, increase in floor level from RL39.06 to RL39.87.
Ground floor: lift core and fire stair redesign, removal of split floor level to a consistent floor level from RL41.81/RL43.33 to RL43.66.
Level 1: lift core and fire stair redesign, removal of split floor level to a consistent floor level from RL44.85/RL46.38 to RL46.71.
Level 2: deletion of study from Unit 11, lift core and fire stair redesign, removal of split floor level to a consistent floor level from RL47.91/RL49.43 to RL49.76.
Roof terrace: lift core and fire stair redesign, increased floor level from RL50.96 to RL52.744, modification of communal open space area and increase from 107.78sqm to 112.7sqm, and change of roof form from pitch to flat and skillion roof at the rear.

Figure 4: Photomontage from Peake Parade
ASSESSMENT
Section 4.56 Considerations
26. The application has been made pursuant to Section 4.56 of the Environmental Planning and Assessment Act 1979 to modify Development Consent DA2015/0031determined on 2 December 2016 by the Land and Environment Court. A consent authority may, on application being made by the applicant or any other person entitled to act on a consent granted by the consent authority and subject to and in accordance with the regulations, modify the consent if it:
· Is satisfied the proposed development as modified is substantially the same development for which consent was originally granted?
27. The proposed development as modified represents substantially the same development for which consent was originally granted being a residential flat building.
· Has advertised and or notified the application in accordance with the regulations or a development control plan?
28. The application was neighbour notified in accordance with the provisions of Hurstville Development Control Plan 2013 and no submissions were received.
· Has considered any submissions made concerning the proposed modification?
29. No submissions were received.
Section 4.15 Evaluation
30. In determining a Section 4.56 modifications the provisions of Section 4.15 of the EP&A Act 1979 (where relevant) need to be considered as part of the assessment. The following considers the proposal in respect to these requirements.
State Environmental Planning Policies
31. Compliance with the relevant State Environmental Planning Policies (SEPPs) are discussed in the table below.
|
State Environmental Planning Policy |
Complies |
|
Greater Metropolitan Regional Environmental Plan No 2 – Georges River Catchment |
No – refer to discussion later in this report. |
|
State Environmental Planning Policy 55 – Remediation of Land |
Yes - no change. |
|
State Environmental Planning Policy (Building Sustainability Index: BASIX) 2004 |
An amended BASIX certificate was provided with the application, dated 16 April 2020. |
|
State Environmental Planning Policy (Infrastructure) 2007 |
Yes - no change. |
|
State Environmental Planning Policy No 65 – Design Quality of Residential Apartment Development |
Yes – refer to discussion |
|
Draft Environment State Environmental Planning Policy |
Yes - no change. |
|
Draft Remediation of Land State Environmental Planning Policy |
Yes - no change. |
State Environmental Planning Policy No 65 – Design Quality of Residential Apartment Development
32. The original DA was approved pursuant to SEPP No. 65 – Design Quality of Residential Flat Development, prior to the introduction of the Apartment Design Guide (AGD) and current design principles.
33. An assessment of the application against the relevant Design Principles of SEPP 65 and the Objectives in the ADG is provided below. The building footprint and relationship to site boundaries remains consistent with the approved development, and the amended proposal is consistent with the design principles.
Part 4 Application of Design Principles under the SEPP
Principle 1: Context and neighbourhood character
34. The overall design of the building is generally unchanged. The internal layout changes and modification to the floor plate levels and overall building height is consistent within its context and how the modified built form will sit within the character of this locality.
Principle 2: Built form and scale
35. The overall design of the building is generally unchanged and its relationship to other built form in the locality remains unchanged. The increase in building height will not have a significant visual or amenity impact on the adjoining allotments or the public domain.
Principle 3: Density
36. The modified design maintains compliance with the maximum FSR for the site.
Principle 4: Sustainability
37. An updated BASIX certificate in relation to the changes to the unit layout has been issued and indicates compliance with the BASIX SEPP.
Principle 5: Landscape
38. An updated Landscape Plan has been submitted which poses suitable landscaping for the site.
Principle 6: Amenity
39. The development provides good amenity for residents, neighbours and visitors to the site which is consistent with Principle 6. The modified unit layout of the affected units achieves acceptable levels of amenity.
Principle 7: Safety
40. The amended design does not affect the safety and security of the development.
Principle 8: Housing diversity and social interaction
41. The amended design proposes a suitable mix of one (1) bedroom and two (2) bedroom units.
Principle 9: Aesthetics
42. The amended design includes suitable material and finish selections and responds well to the existing character of the immediate locality and the streetscape.
43. In summary, the proposal is considered to be consistent with the Design Principles of SEPP 65 – Design Quality of Residential Apartment Development.
STATE ENVIRONMENTAL PLANNING POLICY NO 55 – REMEDIATION OF LAND
44. SEPP 55 aims to promote the remediation of contaminated land in order to reduce the risk of harm to human health or any other aspect of the environment. Clause 7 requires contamination and remediation to be considered in determining a development application. The consent authority must not consent to the carrying out of development on land unless it has considered whether or not the land is contaminated.
45. A review of the site history indicates that the site has been used for residential purposes for extended periods of time, and such uses and/or development are not typically associated with activities that would result in the contamination of the site. The proposed works do not include any change to the use of the land that would result in any concerns with respect to contamination. There is no indication of previous uses that would cause contamination. A SEPP 55 assessment was undertaken as part of the assessment of the parent DA, in this regard there is no indication that the land is contaminated.
STATE ENVIRONMENTAL PLANNING POLICY (BUILDING SUSTAINABILITY INDEX: BASIX) 2004
46. The trigger for BASIX Certification is when the estimated cost of works for residential development (new dwelling(s)/alterations and additions) is equal to or above $50,000. BASIX Certification is also triggered when proposing a swimming pool with a volume of 40,000 litres.
47. A BASIX Certificate prepared by AKT Engineering and Consulting Pty Ltd, dated 16 April 2020, certificate number 1095309M, has been submitted with the Development Application satisfying the minimum requirements of SEPP (Building Sustainability Index: BASIX) 2004.
STATE ENVIRONMENTAL PLANNING POLICY (VEGETATION IN NON-RURAL AREAS) 2017
48. The Vegetation SEPP regulates clearing of native vegetation on urban land and land zoned for environmental conservation/management that does not require development consent.
49. The Vegetation SEPP applies to clearing of:
(a) Native vegetation above the Biodiversity Offset Scheme (BOS) threshold where a proponent will require an approval from the Native Vegetation Panel established under the Local Land Services Amendment Act 2016; and
(b) Vegetation below the BOS threshold where a proponent will require a permit from Council if that vegetation is identified in the council’s development control plan (DCP).
50. The objectives of the SEPP are to protect the biodiversity values of trees and other vegetation in non-rural areas and preserve the amenity of non-rural areas through the preservation of trees and other vegetation. This policy is applicable pursuant to Clause 5(1) of the SEPP as the site is within both Georges River Council and the R3 Medium Density Residential zone.
51. The modification does not impact on any trees.
STATE ENVIRONMENTAL PLANNING POLICY (COASTAL MANAGEMENT) 2018
52. SEPP (Coastal Management) 2018 updates and consolidates three previous SEPPs (SEPP 14 Coastal Wetlands, SEPP 26 Littoral Rainforests, SEPP 71 Coastal Protection) into one integrated Policy and is a matter for consideration for the current DA.
53. The Coastal Management SEPP 2018 aims to: “Promote an integrated and co-ordinated approach to land use planning in the coastal zone in a manner consistent with the objects of the Coastal Management Act 2016 including the management objectives for each coastal management area”.
54. The subject site has not been identified as being located in a coastal vulnerability area and a coastal environmental area as per NSW State Environmental Planning Policy (Coastal Management) 2018 - Maps.
GREATER METROPOLITAN REGIONAL ENVIRONMENTAL PLAN NO 2 — GEORGES RIVER CATCHMENT
55. The main aims and objectives of this plan include but are not limited to the following:
· To maintain and improve the water quality and river flows of the Georges River and its tributaries and ensure that development is managed in a manner that is in keeping with the national, State, regional and local significance of the Catchment,
· To protect and enhance the environmental quality of the Catchment for the benefit of all users through the management and use of the resources in the Catchment in an ecologically sustainable manner,
· To ensure consistency with local environmental plans and also in the delivery of the principles of ecologically sustainable development in the assessment of development within the Catchment where there is potential to impact adversely on groundwater and on the water quality and river flows within the Georges River or its tributaries,
· To establish a consistent and coordinated approach to environmental planning and assessment for land along the Georges River and its tributaries and to promote integrated catchment management policies and programs in the planning and management of the Catchment.
56. The proposed stormwater drainage system has been assessed by Council’s Development Engineer and has been found to be unsatisfactory.
57. A review of the stormwater and overland flow documentation submitted with the application concludes:
(a) That the Overland Flow Analysis submitted be rejected as being non-representative of current Pre-, and hence Post–development scenarios such that the true impact of overland flow on the subject development and neighbouring property has not been presented.
(b) That in any subsequent Flood Impact Analysis a complete report is to be presented which clearly demonstrates ‘current-pre-‘, and post-development scenarios with additional ‘river-stations’/cross-sections that provide the scope of analysis required to confirm 500mm (min.) freeboard is provided for all habitable areas, and 300mm (min.) for the basement area, and that the proposed On Site Detention basin is not vulnerable to the entry of overland flow.
(c) That Basement and Ground Floor Stormwater Management Plans C07 and C08 dated 24/6/’20 be amended to show the diameter of the stormwater drainage pipeline between pits SP2 and SP3.
58. It is for these reasons the application is recommended for refusal.
DRAFT ENVIRONMENTAL PLANNING INSTRUMENTS
Draft Environmental SEPP
59. The Draft Environment SEPP was exhibited from 31 October 2017 to 31 January 2018. This consolidated SEPP proposes to simplify the planning rules for a number of water catchments, waterways, urban bushland and Willandra Lakes World Heritage Property. Changes proposed include consolidating the following seven existing SEPPs:
· State Environmental Planning Policy No. 19 – Bushland in Urban Areas;
· State Environmental Planning Policy (Sydney Drinking Water Catchment) 2011;
· State Environmental Planning Policy No. 50 – Canal Estate Development;
· Greater Metropolitan Regional Environmental Plan No. 2 – Georges River Catchment;
· Sydney Regional Environmental Plan No. 20 – Hawkesbury-Nepean River (No.2-1997);
· Sydney Regional Environmental Plan (Sydney Harbour Catchment) 2005;
· Willandra Lakes Regional Environmental Plan No. 1 – World Heritage Property.
60. The proposal is not inconsistent with the provisions of this Draft Instrument.
Draft Remediation of Land SEPP
61. The Draft Remediation of Land SEPP was exhibited from 31 January 2018 to 13 April 2018. The proposed remediation of land SEPP will
· Provide a state-wide planning framework for the remediation of land;
· Maintain the objectives and reinforce those aspects of the existing framework that have worked well;
· Require planning authorities to consider the potential for land to be contaminated when determining development applications and rezoning land;
· Clearly list the remediation works that require development consent;
· Introduce certification and operational requirements for remediation works that can be undertaken without development consent.
62. The proposal is not inconsistent with the provisions of this Draft Instrument. Contamination was assessed as part of the parent DA.
HURSTVILLE LOCAL ENVIRONMENTAL PLAN 2012
63. The subject site is zoned R3 Medium Density Residential under the provisions of the Hurstville Local Environmental Plan 2012. The proposed development is for modifications to an approved a residential flat building which are permissible land uses in the zone
64. The extent to which the proposed development complies with the Hurstville Local Environmental Plan 2012 (HLEP) is detailed and discussed in the table below.
|
Clause |
Standard |
Proposal |
Complies |
|
4.3 – Height of Buildings |
12m as identified on Height of Buildings Map |
13.66m. |
No |
|
4.4 – Floor Space Ratio |
1:1 as identified on Floor Space Ratio Map |
0.91:1 |
Yes |
|
4.5 – Calculation of floor space ratio and site area |
FSR and site area calculated in accordance with Cl4.5 (b
|
The floor space has been calculated in accordance with Clause 4.5 and the “gross floor area” definition within the HLEP. |
Yes |
|
Clause 4.6 Exceptions to development Standards |
Clause 4.6 Variation to any of the development standards is required. |
See detailed assessment below. |
See comments below |
|
6.7 – Essential Services |
Development consent must not be granted to development unless services that are essential for the development are available |
Essential services are currently available to the site and can be extended to service the development; conditions could be imposed if the application was to be supported. |
Yes |
Clause 4.6 Exceptions to development standards
Assessment of Height variation
65. The height of the development has increased as part of the modification, resulting in a variation to the maximum height of buildings control of 12m. The proposed lift overrun reaches a height of 13.66m, a variation to the standard of 13.8%, and this variation has been assessed below.
66. The approved height of the development is 12m. The increase in height is a result of the levelling of the floor plates, which were approved with split levels, and to address the overland flow affection of the site.

Figure 5: Approved height of building at RL53.55 (12m)

Figure 6: Proposed height of building at RL53.55 (13.66m)

Figure 7: Height plane diagram
67. In the NSW Land and Environment Court case of Gann & Anor v Sutherland Shire Council [2008], the Court held that there is power to modify a development application (via a Section 4.55 application) where the modification would result in the breach of development standards. The Court took the view that development standards within an LEP did not operate to prohibit the granting of consent if they were not complied with (and no objection pursuant to SEPP No. 1 (now relevant to a Clause 4.6 variation) had been lodged). Notwithstanding, the Court held that despite a SEPP No. 1 Objection (or Clause 4.6 variation now) not being required, a Section 96 application (this being a Section 4.56 of the EP&A Act) still requires the consent authority to take into consideration those matters referred to in Section 4.15. These matters, where relevant to the application are assessed below.
Objectives of Clause 4.3 – Height of buildings
68. The objectives of Clause 4.3 are as follows:
(a) to ensure that buildings are compatible with the height, bulk and scale of the existing and desired future character of the locality,
(b) to minimise visual impact, disruption of views, loss of privacy and loss of solar access to existing development and to public areas and public domain, including parks, streets and lanes,
(c) to minimise the adverse impact of development on heritage items,
(d) to nominate heights that will provide a transition in built form and land use intensity,
(e) to establish maximum building heights that achieve appropriate urban form consistent with the major centre status of the Hurstville City Centre,
(f) to facilitate an appropriate transition between the existing character of areas or localities that are not undergoing, and are not likely to undergo, a substantial transformation,
(g) to minimise adverse environmental effects on the use or enjoyment of adjoining properties and the public domain.
69. The proposal satisfies the objectives of the height of building standard as the encroachment relates to the lift overrun and a small part of the planter around the edge of the rooftop communal open space area with the bulk of the building below the 12m height limit.
70. The site and surrounding land is zoned R3 (with the exception of the commercial allotment to the rear) with a height limit of 12m. The proposal is consistent with the existing and desired future of the locality in terms of scale and height.
71. In terms of visual impact the structure is centrally located which reduces its visual appearance from the immediately adjoining streetscapes. The breach relates to a small scale ancillary structure which will not be highly visible or an intrusive element given the scale and proportions of the building. It will not be readily visible from immediately adjoining properties or the streetscapes given that it is centrally located within the built form. There will be no adverse impacts in terms of overshadowing or overlooking to adjoining properties from the part of the building where the height is exceeded.
72. There will be no adverse impacts in terms of overshadowing or overlooking to adjoining properties or the public domain from the encroaching elements as the roof area does not contain any useable areas.
73. The exceedance of the control generally satisfies the objectives of the zone for the following reasons:
· To provide for the housing needs of the community within a medium density residential environment.
74. The development is providing for the housing needs within a medium density residential environment with fourteen (14) residential apartments provided.
· To provide a variety of housing types within a medium density residential environment.
75. The development incorporates two (2) adaptable units within the fourteen (14) units proposed.
· To enable other land uses that provide facilities or services to meet the day to day needs of residents.
76. The development is residential in nature and does not include any additional land uses. This objective is offering some greater flexibility in the provision of land uses within this zone and is not a mandatory requirement.
· To ensure that a high level of residential amenity is achieved and maintained.
77. The units achieve a high level of residential amenity through natural ventilation and solar access. The height non-compliance will not result in unreasonable impacts on neighbouring properties in relation to privacy, overshadowing, visual or acoustic impacts.
· To provide for a range of home business activities, where such activities are not likely to adversely affect the surrounding residential amenity.
78. The proposal does not preclude the use of the units for small home businesses.
79. Although an objection pursuant Clause 4.6 is not required, the reasoning applied in Wehbe v Pittwater Council [2007] NSW LEC 827, is appropriate to rely upon to determine that the proposal is well founded despite the departure from Clause 4.3 of Hurstville LEP 2012. In the judgement the Honourable Brian Preston, Chief Justice of the Land and Environment Court, set out 5 different ways in which an objection may be well founded and that approval of the objection may be consistent with the aims of the policy.
80. The proposal is considered to be consistent with the first of these in that the objectives of the height standard and the R3 zone objectives are achieved notwithstanding the numerical variation proposed.
81. Given that compliance with the zone and development standard objectives is achieved, insistence on strict compliance with the height standard is considered to be unreasonable and unnecessary in the circumstances. The proposal is compliant with the relevant objectives and will create negligible environmental impacts. The proposal is therefore justified on environmental planning grounds.
82. It is noted that in Initial Action Pty Ltd v Woollahra Municipal Council [2018] NSWLEC 118, Preston CJ clarified what items a Clause 4.6 does and does not need to satisfy. Importantly, there does not need to be a "better" planning outcome:
86. The second way is in an error because it finds no basis in cl 4.6. Clause 4.6 does not directly or indirectly establish a test that the non-compliant development should have a neutral or beneficial effect relative to a compliant development. This test is also inconsistent with objective (d) of the height development standard in cl 4.3(1) of minimising the impacts of new development on adjoining or nearby properties from disruption of views or visual intrusion. Compliance with the height development standard might be unreasonable or unnecessary if the non-compliant development achieves this objective of minimising view loss or visual intrusion. It is not necessary, contrary to what the Commissioner held, that the non-compliant development have no view loss or less view loss than a compliant development.
87. The second matter was in cl 4.6(3)(b). I find that the Commissioner applied the wrong test in considering this matter by requiring that the development, which contravened the height development standard, result in a "better environmental planning outcome for the site" relative to a development that complies with the height development standard (in [141] and [142] of the judgment). Clause 4.6 does not directly or indirectly establish this test. The requirement in cl 4.6(3)(b) is that there are sufficient environmental planning grounds to justify contravening the development standard, not that the development that contravenes the development standard have a better environmental planning outcome than a development that complies with the development standard.
83. The proposal is considered to achieve a planning purpose of enhancing residential amenity and housing diversity in the absence of any additional or new adverse impacts, and the proposed height variation is supported.
DRAFT GEORGES RIVER LOCAL ENVIRONMENTAL PLAN 2020
84. Consideration is given to the provisions of Draft Georges River Local Environmental Plan 2020 in the assessment this application. In relation to this development site:
· The zoning is proposed to change from R3 Medium Density Residential to R4 High Density Residential.
· The minimum lot size is proposed to change from 450sqm to 1,000sqm.
85. There is no proposed change to height or FSR.
86. In this regard, the provisions have no determining weight as a result of proposed operation of Clause “1.8A Savings provisions relating to development applications” of the Draft Plan which provides “If a development application has been made before the commencement of this Plan in relation to land to which this Plan applies and the application has not been finally determined before that commencement, the application must be determined as if this Plan had not commenced.”
HURSTVILLE DEVELOPMENT CONTROL PLAN NO 1
87. An assessment of the proposed development against the relevant controls in the HDCP No. 1 is detailed in the compliance table below.
|
Development |
Requirements |
Proposed |
Complies |
||
|
3.0 General Planning Considerations |
|||||
|
3.1 Vehicle access and car parking rates |
Underground parking areas are to be concentrated under building footprints so as to maximise deep soil landscaping.
Driveways to underground car parks are to be designed so as to minimise the visual impact on the street, and to maximise pedestrian safety.
Pedestrian access to the development should be separate and clearly defined.
Access ways to underground car parking areas is to be located away from doors and windows to habitable rooms wherever possible.
Basement car parking is preferable in commercial and residential flat buildings. |
The basement design allows for a deep soil area along the front, rear and side boundaries. The deep soil area remains unchanged.
The driveway is suitably located and remains unchanged by this amendment.
Pedestrian and vehicular access is separate.
Access to the basement parking area is via the central lift and stair core.
Basement parking is proposed. |
Yes
Yes
Yes
Yes
Yes |
||
|
Car Parking Rates (Table 1 – business zones) |
Residential:
a. 1 resident space for every studio, 1 or 2 bedroom dwelling
14 spaces required
b. 2 resident spaces for every 3 or more bedroom dwelling
c. for developments of 4 dwellings or more, one visitor space per 4 dwellings or part thereof
3.5 visitor spaces required |
1B x 4 units 2B x 10 units
14 spaces proposed – remains unchanged.
N/A
N/A
3 visitor spaces proposed – no change proposed. |
Yes
N/A
N/A
No change to approved |
||
|
3.3 Access and Mobility |
In developments containing five or more dwellings, a minimum of one adaptable dwelling, designed in accordance with relevant Australian Standards must be provided for every ten dwellings or part thereof.
Access to required adaptable dwellings and relevant parking spaces Appropriate access for all persons through the principal entrance of the building and access to any common facilities shall be provided.
One accessible space is dedicated to each adaptable apartment |
Units 3 and 4 are accessible.
All parts of the building are accessible.
Two (2) accessible spaces are provided. |
Yes
Yes
Yes |
||
|
3.4 Crime Prevention through Design |
Ensure that the way in which the site, and the buildings within the site, are laid out enhance security and feelings of safety |
The development has been considered to cater for CPTD principles in terms of lighting the location, accessibility and legibility of services and uses. |
Yes |
||
|
3.5 Landscaping |
Development contributes to the creation of a distinct, attractive landscape character for streets and neighbourhoods |
The development contributes positively to the streetscape and locality through providing landscaped areas within the front and rear setbacks which is consistent with existing development in the area and provides deep soil areas to accommodate substantial planting. |
Yes |
||
|
3.6 Public Domain |
Development contributes to the creation of attractive, comfortable and safe streets that comprise consistent and high quality paving, street furniture and street tree plantings. |
Not applicable to this location.
|
N/A |
||
|
3.7 Stormwater |
Stormwater discharge for development sites is not to exceed the 5 year ARI storm event.
An on-site stormwater detention system is provided that reduces the flow rate of stormwater discharge. Stormwater quality
The quality of stormwater leaving development sites is consistent with water quality standards set by the Environment Protection Authority and ANZECC. |
Council’s Development Engineer does not support the proposed stormwater management system and refusal of the application is recommended. |
No |
||
|
4.1 Residential Flat Buildings |
|||||
|
Site Frontage
|
Min street frontage 24m
|
The site has a street frontage to Peake Parade of 32.6m. (consolidation of two (2) lots) |
Yes – no change from approved development. |
||
|
Height
|
In accordance with HLEP 2012 and 3 storeys. |
The maximum height is 13.66m.
The building is a part three (3) and part four (4) storey development. |
No – refer to discussion earlier. No – no change from approved development. |
||
|
Excavation |
The maximum excavation for any building’s finished ground floor level facing a public street is 0.5m below natural ground level. |
The ground floor level is located above natural ground level. Excavation is proposed for the basement which is acceptable subject to recommended conditions. There is a reduction in excavation as part of this modification of 0.31m. |
Yes |
||
|
Front Setback |
The minimum setback to a primary or secondary street is 6m. |
A minimum 7.5m to the building façade. 5m to the balconies. |
Yes |
||
|
Landscaped Area |
Minimum amount of landscaped area of open space is 20% of the Site area Min dimension of landscaped open space is 2m |
19% of the site is deep soil area. All areas used in the calculation exceed 2m in width.
|
Complies with the ADG control. |
||
|
Solar Access |
Development allows for at least 3 hours of sunlight on the windows of main living areas and adjoining principal private open space of adjacent dwellings between 9.00am and 3.00pm on 21 June. |
The adjoining properties will continue to receive more than three (3) hours direct sunlight on 21 June.
|
Yes |
||
|
Noise |
Windows of adjacent dwellings are separated by a distance of at least 3m |
Minimum 3m. |
Yes – no change from approved development. |
||
|
Streetscape |
Development creates a high quality interface between the public and private domain |
The building design and landscape scheme creates a high quality interface to the street frontage. |
Yes |
||
|
Fencing |
Provides appropriate levels of privacy, security and noise attenuation |
Front fencing is not proposed. |
N/A |
||
|
Site Facilities |
Development provides space for the storage of recyclable goods, either in the curtilage of each dwelling or in a central storage area in larger developments. |
Compliant with SEPP 65. |
Yes – no change from approved development. |
||
GEORGES RIVER DEVELOPMENT CONTROL PLAN 2020 (INTERIM POLICY)
88. The Interim Policy is a supplementary document, meaning that current DCP controls continue to apply if a particular control is not specified in the Interim Policy, or if it is still considered best practice. All operative DCPs still legally apply. Whilst the Interim Policy has no statutory weight in the assessment of a Development Applications pursuant to the Environmental Planning and Assessment Act 1979, the policy will be used as a guide as it is an endorsed position of the Elected Council.
89. The proposed development does alter the level of compliance of the approved development with the Interim Policy.
Developer Contributions
90. The proposed development is subject to developer contributions which were levied at the time of the development determination. The unit mix has not changed as part of this modification.
Planning Agreements
91. There is no planning agreement applicable to the development.
EP&A Regulation 2000
92. No matters within the Regulation are affected by the modification. An updated BASIX certificate has been lodged. The BASIX certificate reference in the conditions of consent has been updated.
IMPACTS
Likely impacts of that development, including environmental impacts on both the natural and built environments, and social and economic impacts in the locality
93. The application fails to provide an accurate current overland flow analysis and inadequate stormwater management plans as discussed above.
Suitability of the site for the development
94. The site is zoned R3 – Medium Density Residential. The proposal is a permissible form of development in this zone. The proposed built form changes do not affect the suitability of the site for the development, not impact the development potential of the adjoining allotments, however the application is not supported on the grounds of incomplete overland flow analysis and inadequate stormwater management plans.
SUBMISSIONS AND THE PUBLIC INTEREST
95. The application was notified in accordance with the provisions of Section 4.56 (b)(i) of the Environmental Planning and Assessment Act 1979 with reference to HDCP No. 1 and Section 4.56 (1)(c) of the Environmental Planning and Assessment Act 1979. No submissions were received.
The Public Interest
96. The proposal is considered to be not inconsistent with the public interest.
REFERRALS
Council Referrals
97. The application was referred to council’s Consultant Arborist for comment, who did not raise any objection to the modifications, subject to conditions of consent.
98. The application was referred to council’s Development Engineer for comment, who does not support the proposal as discussed above.
CONCLUSION
99. The application has been assessed having regard to the Section 4.56 and the Matters for Consideration under Section 4.15(1) of the Environmental Planning and Assessment Act 1979. Following the assessment of the modifications, it is considered that Modification No. MOD2020/0136 be refused on the grounds that the overland flow analysis is outdated and the stormwater management plans are inadequate.
100. The modifications to the approved development are a suitable response to the site context with regard to planning and design matters, however the overland flow analysis is outdated and incomplete and the stormwater management plans are inadequate and refusal of the modification is recommended.
DETERMINATION AND STATEMENT OF REASONS
Statement of Reasons
101. The reasons for this recommendation are:
· The overland flow analysis is outdated and incomplete, the stormwater management plans are inadequate;
· The proposed development has unacceptable adverse impacts on the natural and built environments.
· In consideration of the aforementioned reasons, the proposed development fails to demonstrate the design will not result in inundation of the subject site and neighbouring properties and its approval is not in the public interest.
Determination
THAT pursuant to Section 4.16(1)(b) of the Environmental Planning and Assessment Act 1979 that the Georges River Local Planning Panel refuse MOD2020/0136 for modifications to DA2015/0031 at Lots 276 and 277 in DP36537, known as 1-3 Peake Parade, Peakhurst, for the following reasons:
1. Insufficient Information - Pursuant to Section 4.15(1)(a)(iii) of the Environmental Planning and Assessment Act 1979, the overland flow analysis is outdated and incomplete, with the stormwater management plans being inadequate. Current information and adequate plans are required to undertake a full and proper assessment of the application.
2. Impacts on the Environment - Pursuant to Section 4.15(1)(b) of the Environmental Planning and Assessment Act 1979, the proposed development is likely to have an adverse impact on the built environment in that the overland flow analysis is outdated and incomplete resulting in inundation of the adjoining properties resulting in inadequate stormwater management plans.
3. Suitability of Site - Pursuant to Section 4.15(1)(c) of the Environmental Planning and Assessment Act 1979, the site is not considered suitable for the proposed development as submitted in that overland flow analysis is outdated and incomplete and the stormwater management plans are inadequate.
4. Public interest - Pursuant to Section 4.15(1)(e) of the Environmental Planning and Assessment Act 1979, the proposed development is not considered to be in the public interest and is likely to set an undesirable precedent within the locality.
|
Attachment ⇩1 |
Site Plan - 1-3 Peake Pde Peakhurst |
|
Attachment ⇩2 |
Elevations - 1-3 Peake Pde Peakhurst |
|
Georges River Council - Georges River Local Planning Panel (LPP) - Thursday, 10 December 2020 LPP065-20 1-3 Peake Parade Peakhurst [Appendix 1] Site Plan - 1-3 Peake Pde Peakhurst |
Page 132 |
|
Georges River Council - Georges River Local Planning Panel (LPP) - Thursday, 10 December 2020 LPP065-20 1-3 Peake Parade Peakhurst [Appendix 2] Elevations - 1-3 Peake Pde Peakhurst |
Page 134 |

|
Georges River Council – Local Planning Panel Thursday, 10 December 2020 |
Page 182 |
REPORT TO GEORGES RIVER COUNCIL
LPP MEETING OF Thursday, 10 December 2020
|
LPP Report No |
LPP066-20 |
Development Application No |
DA2020/0327 |
|
Site Address & Ward Locality |
932 Forest Road Peakhurst Peakhurst Ward |
||
|
Proposed Development |
Demolition works and construction of a boarding house |
||
|
Owners |
NSW Land and Housing Corporation |
||
|
Applicant |
NSW Land and Housing Corporation |
||
|
Planner/Architect |
Urbis / Barry Rush and Associates |
||
|
Date Of Lodgement |
25/08/2020 |
||
|
Submissions |
Three (3) |
||
|
Cost of Works |
$1,854,000.00 |
||
|
Local Planning Panel Criteria |
The application seeks consent for a boarding house |
||
|
List of all relevant s.4.15 matters (formerly s79C(1)(a)) |
State Environmental Planning Policy (Affordable Rental Housing) 2009, State Environmental Planning Policy (Vegetation in Non-Rural Areas) 2017, State Environmental Planning Policy (Building Sustainability Index: BASIX) 2004, Greater Metropolitan Regional Environmental Plan No.2 – Georges River Catchment, State Environmental Planning Policy No.55 – Remediation of Land, State Environmental Planning Policy (Infrastructure) 2007, Draft Environmental State Environmental Planning Policy, Draft State Environmental Planning Policy – Remediation of Land, Draft Georges River Local Environmental Plan 2020, Hurstville Local Environmental Plan 2012, Hurstville Development Control Plan No. 1. |
||
|
List all documents submitted with this report for the Panel’s consideration |
Architectural Plans, Stormwater Plans, Landscape Plan, Statement of Environmental Effects, Traffic Report
|
||
|
Report prepared by |
Senior Development Assessment Planner |
||
|
|
Summary of matters for consideration under Section 4.15 Have all recommendations in relation to relevant s4.15 matters been summarised in the Executive Summary of the assessment report? |
Yes |
|
Legislative clauses requiring consent authority satisfaction Have relevant clauses in all applicable environmental planning instruments where the consent authority must be satisfied about a particular matter been listed and relevant recommendations summarised, in the Executive Summary of the assessment report? |
Yes |
|
Clause 4.6 Exceptions to development standards If a written request for a contravention to a development standard (clause 4.6 of the LEP) has been received, has it been attached to the assessment report? |
Not Applicable
|
|
Special Infrastructure Contributions Does the DA require Special Infrastructure Contributions conditions (under s7.24)? |
Not Applicable |
|
Conditions Have draft conditions been provided to the applicant for comment? |
Yes – the applicant has reviewed the conditions |
|
Site Plan
Site outlined blue |
EXECUTIVE SUMMARY
Proposal
1. This development application (DA) seeks consent for the demolition of existing structures and the construction of a boarding house comprising nine (9) boarding rooms, a communal living room with at-grade car parking for three (3) vehicles, landscaping and site works, pursuant to State Environmental Planning Policy (Affordable Rental Housing) 2009.
2. The applicant is the NSW Land and Housing Corporation.
Site and Locality
3. The subject site is located on the western side of Forest Road approximately halfway between the intersections with Isaac Street to the north and Belmore Road to the south.
4. The subject site is known as 932 Forest Road, Peakhurst and is legally described as Lot 22 in DP 35407.
5. The site is an irregular shape having a frontage to Forest Road of 16.155m, side boundary lengths of 54.7m and 58.28m a rear boundary length of 16.545m giving a site area of 912.6sqm.
6. The land is relatively flat and is currently occupied by a single storey dwelling house and ancillary structures in the rear yard.
7. The site is located in a low density residential area characterised by one (1) and two (2) storey dwellings, dual occupancies and townhouses. Grandviews Bowling Club is located opposite the site.
Zoning and Permissibility
8. The subject site is zoned R2 Low Density Residential under the provisions of Hurstville Local Environmental Plan 2012 (HLEP 2012). The proposal involves the construction of a boarding house which is a permissible use in the zone with development consent.
9. The proposed development satisfies all relevant objectives contained within the HLEP and is consistent with the requirements of State Environmental Planning Policy (Affordable Rental Housing) 2009.
Submissions
10. The DA was publicly notified to neighbours between 31 August 2020 and 14 September 2020 in accordance with the Hurstville Development Control Plan No 1 (HDCP). A total of three (3) submissions were received raising concerns with parking and traffic congestion, character of the area, reduced property values and the social impacts of the proposed use of the building as a boarding house. These issues are discussed in greater detail in the body of this report.
Reason for Referral to the Local Planning Panel
11. This application is referred to the Georges River Local Planning Panel for determination under Council delegations as the proposal relates to a boarding house.
Conclusion
12. The proposal is an appropriate response to the zoning of the land and is consistent with the desired future building envelope and density for the site.
13. The application has been assessed having regard to the Matters for Consideration under Section 4.15 of the Environmental Planning and Assessment Act 1979, the provisions of the relevant State Environmental Planning Policies, Local Environmental Plan and Development Control Plans.
14. As a result the application is recommended for a deferred commencement approval subject to suitable conditions of consent.
REPORT IN FULL
DESCRIPTION OF THE PROPOSAL
15. The application proposes the demolition of existing structures and the construction of a two (2) storey boarding house containing nine (9) boarding rooms and at-grade parking for three (3) vehicles, landscaping and site works.

Figure 1: Photomontage of the proposed development
16. Further details of the proposal are as follows:
Ground Floor Plan
- Five (5) boarding rooms: three (3) in the front building and two (2) in the rear building;
- Communal living room and communal open space;
- Three (3) car parking spaces including one (1) accessible space located between the two (2) buildings;
- Two (2) bicycle parking spaces;
- Two (2) motor bike spaces;
- Bin store area;
- Vehicular access from Forest Road located on the southern side of the site;
- Pedestrian access on the northern side of the site; and
- Site landscaping.
First Floor
- Four (4) boarding rooms located in the front building.
DESCRIPTION OF THE SITE AND LOCALITY
17. The subject site is located on the western side of Forest Road approximately halfway between the intersections with Isaac Street to the north and Belmore Road to the south.
18. The subject site is known as 932 Forest Road, Peakhurst and is legally described as Lot 22 in DP 35407.
19. The site is an irregular shape having a frontage to Forest Road of 16.155m, side boundary lengths of 54.7m and 58.28m a rear boundary length of 16.545m giving a site area of 912.6sqm.
20. The land is relatively flat and is currently occupied by a single storey dwelling house and ancillary structures in the rear yard.
21. The site is located in a low density residential area characterised by one and two storey dwellings, dual occupancies and townhouses. Grandviews Bowling Club is located opposite the site.

Figure 2: The existing dwelling on the site

Figure 3: Development to the south west of the site

Figure 4: Development to the north east of the site

Figure 5: Grandviews Bowling Club located opposite the site
State Environmental Planning Policies (SEPPs)
22. Compliance with the relevant SEPPs is summarised in the following table and discussed in further detail below.
Compliance with State Planning Policies
|
SEPP Title |
Complies |
|
Greater Metropolitan Regional Environmental Plan No 2 – Georges River Catchment |
Yes |
|
State Environmental Planning Policy (Building Sustainability Index: BASIX) 2004 |
Yes |
|
State Environmental Planning Policy No 55 - Remediation of Land |
Yes |
|
State Environmental Planning Policy (Vegetation in Non-Rural Areas) 2017 |
Yes
|
|
State Environmental Planning Policy (Infrastructure) 2007 |
Yes |
|
State Environmental Planning Policy (Affordable Rental Housing) 2009 |
Yes |
DEEMED STATE ENVIRONMENTAL PLANNING POLICY – GEORGES RIVER CATCHMENT
23. All stormwater from the proposed development can be treated in accordance with Council’s Water Management Policy and will satisfy the relevant provisions of the Deemed State Environmental Planning Policy – Georges River Catchment.
24. The stormwater will drain to Forest Road via an onsite stormwater detention system.
STATE ENVIRONMENTAL PLANNING POLICY (BUILDING SUSTAINABILITY INDEX: BASIX) 2004
25. A BASIX Certificate has been issued for the proposed development and the commitments required under the certificate have been satisfied.
STATE ENVIRONMENTAL PLANNING POLICY NO 55 - REMEDIATION OF LAND
26. SEPP 55 aims to promote the remediation of contaminated land in order to reduce the risk of harm to human health or any other aspect of the environment.
27. Clause 7 requires contamination and remediation to be considered in determining a development application. The consent authority must not consent to the carrying out of development on land unless it has considered whether or not the land is contaminated.
28. The site has a history of residential uses and as such, site contamination is not suspected. In this regard, no further assessment is warranted with regard to site contamination.
STATE ENVIRONMENTAL PLANNING POLICY (VEGETATION IN NON-RURAL AREAS) 2017
29. The Vegetation SEPP regulates clearing of native vegetation on urban land and land zoned for environmental conservation/management that does not require development consent.
30. The Vegetation SEPP applies to clearing of:
a) Native vegetation above the Biodiversity Offset Scheme (BOS) threshold where a proponent will require an approval from the Native Vegetation Panel established under the Local Land Services Amendment Act 2016; and
b) Vegetation below the BOS threshold where a proponent will require a permit from Council if that vegetation is identified in the Council’s Development Control Plan (DCP).
31. The Vegetation SEPP repeals clause 5.9 and 5.9AA of the Standard Instrument - Principal Local Environmental Plan with regulation of the clearing of vegetation (including native vegetation) below the BOS threshold through any applicable DCP.
32. The proposed development does not involve the removal of any trees or significant vegetation. The proposal is supported by Council’s Consulting Arborist. In this regard, the provisions of this SEPP are considered to have been met.
STATE ENVIRONMENTAL PLANNING POLICY (INFRASTRUCTURE) 2007
33. The aim of the Infrastructure SEPP is to facilitate the effective delivery of infrastructure across the State. The DA was referred to Ausgrid on 25 August 2020 in accordance with Clause 45 of State Environmental Planning Policy (Infrastructure) 2007. Ausgrid raises no concern with the proposal and do not require any conditions of consent.
34. The provisions and requirements of the Infrastructure SEPP have been addressed and satisfied by the proposal.
STATE ENVIRONMENTAL PLANNING POLICY (AFFORDABLE RENTAL HOUSING) 2009
35. State Environmental Planning Policy (Affordable Rental Housing) 2009 aims to provide a consistent planning regime for the provision of affordable rental housing. The proposal seeks consent for a boarding house pursuant to the provisions of the SEPP, specifically Division 3 – Boarding Houses. An assessment of the proposal against the relevant provisions of the SEPP is provided in the following table.
|
Clause |
Standards |
Proposal |
Complies |
|
26 – Land to which Division applies for the purpose of a boarding house with consent |
· R1 General Residential · R2 Low Density Residential · R3 Medium Density Residential · R4 High Density Residential · B1 Neighbourhood Centre · B2 Local Centre · B4 Mixed Use |
Site is zoned R2 Low Density Residential |
Yes |
|
27 – Development to which Division applies |
Not applicable – the site is in the R2 zone. |
N/A |
N/A |
36. An accessible area is defined by Clause 4 of SEPP (Affordable Rental Housing) 2009 as follows:
‘accessible area means land that is within:
(a) 800ms walking distance of a public entrance to a railway station or a wharf from which a Sydney Ferries ferry service operates, or
(b) 400m walking distance of a public entrance to a light rail station or, in the case of a light rail station with no entrance, 400 metres walking distance of a platform of the light rail station, or
(c) 400m walking distance of a bus stop used by a regular bus service (within the meaning of the Passenger Transport Act 1990) that has at least one bus per hour servicing the bus stop between 06.00 and 21.00 each day from Monday to Friday (both days inclusive) and between 08.00 and 18.00 on each Saturday and Sunday.’
37. By virtue of the definition, the subject site satisfies the requirements of an accessible area. A map and table outlining bus services within proximity to the site is provided below.
|
Location of Bus Stop |
Bus Route |
Walking Distance |
Mon – Fri Frequency |
Saturday Frequency |
Sunday Frequency |
|
Club Grandviews, Forest Road |
943 Lugarno to Hurstville |
<400m |
Complies |
Complies |
Complies |

Figure 6: Map showing bus stops within 400m of the subject site
38. An assessment of the proposal against the relevant provisions of the SEPP (Affordable Rental Housing) 2009 is provided in the following table.
|
29 - Standards that cannot be used to refuse consent Council cannot refuse a development application for a boarding house under the SEPP (Affordable Rental Housing) 2009 on any of the following grounds. |
|||||
|
Floor Space Ratio |
If the density and scale of the buildings as a FSR is not more than the existing maximum FSR for any form of residential accommodation permitted (0.6:1 or 547.56sqm) |
0.39:1 or 360sqm |
Yes |
||
|
Height |
If the building height is not more than the maximum height permitted under another EPI for any building on the land: Maximum of 9m under the HLEP 2012 |
Maximum height is 7m. |
Yes |
||
|
Landscaped Area |
If the landscape treatment of the front setback area is compatible with the streetscape in which the building is located |
Landscaped front setback area is consistent with the character of the streetscape. |
Yes |
||
|
Solar Access |
Where the development provides for one or more communal living rooms, if at least one of those rooms receives a minimum of 3 hours direct sunlight between 9am and 3pm in mid-winter |
3 hours of direct sunlight is achieved. |
Yes |
||
|
Private Open Space |
If at least the following private open space areas are provided (other than the front setback area):
(i) one area of at least 20sqm with a minimum dimension of 3m is provided for the use of the lodgers,
(ii) if accommodation is provided on site for a boarding house manager—one area of at least 8sqm with a minimum dimension of 2.5m is provided adjacent to that accommodation. |
Located adjacent to the communal room, behind the building line and is 25sqm.
Manager accommodation is not required. |
Yes
N/A |
||
|
Accommodation size |
if each boarding room has a gross floor area (excluding any area used for the purposes of private kitchen or bathroom facilities) of at least— (i) 12sqm in the case of a boarding room intended to be used by a single lodger, or (ii) 16sqm in any other case. |
Room 1 – 21.8sqm Room 2 – 21.8sqm Room 3 – 21.8sqm Room 4 - 21.8sqm Room 5 - 21.8sqm Room 6 - 21.8sqm Room 7 - 21.8sqm Room 8 - 25sqm Room 9 - 24sqm |
Yes |
||
|
Parking |
0.2 parking spaces provided for each boarding room (9 x 0.2 = 2 spaces)
Not more than 1 parking space is provided for each person employed in connection with the development and who is resident on site |
3 spaces provided
N/A |
Yes
N/A
|
||
|
Clause 30 – Standards for Boarding Houses A consent authority must not consent to development for boarding houses unless it is satisfied of each of the following: |
|||||
|
Communal living |
(a) If a boarding house has 5 or more boarding rooms, at least one communal living room will be provided |
One (1) communal room provided at the rear of the two (2) storey building on the ground floor. |
Yes |
||
|
Size of boarding rooms |
(b) No boarding room will have a gross floor area (excluding any area used for the purposes of private kitchen or bathroom facilities) of more than 25sqm |
Room 1 – 21.8sqm Room 2 – 21.8sqm Room 3 – 21.8sqm Room 4 - 21.8sqm Room 5 - 21.8sqm Room 6 - 21.8sqm Room 7 - 21.8sqm Room 8 - 25sqm Room 9 - 24sqm |
Yes |
||
|
Maximum occupancy |
(c) No boarding room will be occupied by more than 2 adult lodgers |
Each room is to accommodate one lodger. The Plan of Management submitted with the DA indicates the occupants will be over 55 year old women in need of secure long term housing. |
Yes |
||
|
Kitchen and bathroom facilities |
(d) Adequate bathroom and kitchen facilities will be available within the boarding house for the use of each lodger |
All rooms have a kitchen and bathroom facilities which contain a washing machine. |
Yes |
||
|
Boarding house manager |
(e) If the boarding house has capacity to accommodate 20 or more lodgers, a boarding room or on site dwelling will be provided for a boarding house manager |
N/A |
N/A |
||
|
Bicycle and motor cycle spaces |
(h) At least one parking space will be provided for a bicycle, and one will be provided for a motorcycle, for every 5 boarding rooms (9/5 = 2 spaces) |
Two (2) motorcycle spaces and two (2) bicycle storage spaces provided. |
Yes |
||
Character assessment
39. Under clause 16A of the State Environmental Planning Policy (Affordable Rental Housing) 2009, a consent authority must not consent to a development if the design is incompatible with the character of the local area. No guidelines were developed to inform how to apply the compatibility test. A number of court cases have provided some guidance as to how to assess the “character” of a local area and what to consider ensuring an affordable housing development is suitable.
40. In considering compatibility with neighbouring character, in Sterling Projects v The Hills Shire Council [2011] the Commissioner said that “character is not limited to a consideration of streetscape but includes the wider context of the site, in particular the characteristics of the properties which adjoin the site”.
41. In the recent decision of Louden Pty Ltd v Canterbury-Bankstown Council [2018] clause 16A played a prominent role in Commissioner Gray’s judgement. Commissioner Gray stated that all buildings of all typologies must be incorporated into the assessment of the local area character. This assessment concurs with Commissioner Roseth SC who in Project Venture Developments v Pittwater Council [2005] stated that “compatibility is thus different from sameness. It is generally accepted that buildings can exist together in harmony without having the same density, scale or appearance, though as the difference in these attributes increases, harmony is harder to achieve.” Therefore in order to establish a local character in a mixed, diverse area the plans should reasonably match other structures in the vicinity and should consider such aspects as building forms, setbacks and scale.
42. The subject site is located within low density residential environment. The character of the locality comprises of small scale residential developments in the form of detached dwelling houses, dual occupancies and townhouse developments.
43. In establishing whether the proposal is in keeping with the character of the area, the proposed built form is two storeys at the front of the site and single storey at the rear, not in different to a dwelling house and secondary dwelling. The proposal retains the location of the existing driveway and extends it to the proposed parking area, which will not be visible from the street. This design is characteristic not only of the existing built form on the site, but a number of dual occupancy and townhouse developments nearby on Forest Road and Belmore Road.
44. The proposal is considered suitable for the site and the locality for the reasons discussed in this report and meets the aims of the SEPP (Affordable Rental Housing) 2009 which include facilitating the delivery of new affordable rental housing.
45. The proposed development is considered to be consistent with the character of the locality and the future character envisaged by the planning controls. The scale and form of the development is consistent with housing within the immediate and wider context of the site. The development also satisfies the objectives of the R2 zone which include:
• To provide for the housing needs of the community within a low density residential environment.
• To enable other land uses that provide facilities or services to meet the day to day needs of residents.
• To encourage development of sites for a range of housing types, where such development does not compromise the amenity of the surrounding area, or the natural or cultural heritage of the area.
• To ensure that a high level of residential amenity is achieved and maintained.
• To encourage greater visual amenity through maintaining and enhancing landscaping as a major element in the residential environment.
• To provide for a range of home business activities where such activities are not likely to adversely affect the surrounding residential amenity.
46. The proposal is well located and is within walking distance of neighbourhood shops in Lugarno and Peakhurst. The site is also opposite Grandviews Bowling Club which offers entertainment and an eatery. The proposed built form is considered to be a sympathetic and a desirable response for this site in terms of its scale and design intent and will be in keeping with the anticipated development outcome for the locality.
47. The separated single and two (2) storey built form is in keeping with existing residential developments in the immediate locality. The setback to Forest Road contains deep soil planting and private open space at ground level, with small Juliette balconies at the upper level to provide casual surveillance of the street and a height that complements the predominant built form of the existing development in the street.
48. The height and scale of the building is in keeping with the predominant built form of housing on Forest Road and in the wider locality.
49. The character of front fencing in the immediate locality and visual catchment from the site is mixed. Some properties do not have front fencing, and for those that do, the designs include low height brick fencing and open form metal fencing. The Club opposite the site has an open metal fence with landscaping behind. The proposed front fence of the development consists of a 1.2m high sandstone block fence with metal palisade fencing above, setback 1m from the front boundary. Landscaping is also proposed on both sides of the fence. A condition has been recommended that the fence be no higher than 1.2m to better compliment the existing character in the locality.
50. As such the proposal satisfies the objectives and intent of Clause 16A.
Draft State Environmental Planning Policies (SEPPs)
Draft Environment SEPP
51. The Draft Environment SEPP was exhibited from 31 October 2017 to 31 January 2018. This consolidated SEPP proposes to simplify the planning rules for a number of water catchments, waterways, urban bushland, and Willandra Lakes World Heritage Property.
52. Changes proposed include consolidating the following seven existing SEPPs:
· State Environmental Planning Policy No. 19 – Bushland in Urban Areas
· State Environmental Planning Policy (Sydney Drinking Water Catchment) 2011
· State Environmental Planning Policy No. 50 – Canal Estate Development
· Greater Metropolitan Regional Environmental Plan No. 2 – Georges River Catchment
· Sydney Regional Environmental Plan No. 20 – Hawkesbury-Nepean River (No.2-1997)
· Sydney Regional Environmental Plan (Sydney Harbour Catchment) 2005
· Willandra Lakes Regional Environmental Plan No. 1 – World Heritage Property
53. The proposal is not inconsistent with the provisions of this Draft Instrument.
Draft Remediation of Land SEPP
54. The Department of Planning and Environment has announced a Draft Remediation of Land SEPP, which will repeal and replace the current State Environmental Planning Policy No 55 — Remediation of Land.
55. The main changes proposed include the expansion of categories of remediation work which requires development consent, a greater involvement of principal certifying authorities particularly in relation to remediation works that can be carried out without development consent, more comprehensive guidelines for Councils and certifiers and the clarification of the contamination information to be included on Section 149 Planning Certificates.
56. Whilst the proposed SEPP will retain the key operational framework of SEPP 55, it will adopt a more modern approach to the management of contaminated land. The Draft SEPP will not alter or affect the findings in relation to contamination at the site.
57. The site has a history of residential uses and as such, site contamination is not suspected. In this regard, no further assessment is warranted with regard to site contamination.
Environmental Planning Instruments
HURSTVILLE LOCAL ENVIRONMENTAL PLAN 2012 (HLEP 2012)
Zoning
58. The subject site is zoned Zone R2 Low Density Residential under the provisions of the Hurstville Local Environmental Plan 2012 (HLEP2012). Refer to zoning map below. The proposed development is defined as a boarding house which is a permissible land use in the zone.

Figure 7: Zoning map subject site outlined in red
59. The objectives of the zone are as follows:
• To provide for the housing needs of the community within a low density residential environment.
• To enable other land uses that provide facilities or services to meet the day to day needs of residents.
• To encourage development of sites for a range of housing types, where such development does not compromise the amenity of the surrounding area, or the natural or cultural heritage of the area.
• To ensure that a high level of residential amenity is achieved and maintained.
• To encourage greater visual amenity through maintaining and enhancing landscaping as a major element in the residential environment.
• To provide for a range of home business activities where such activities are not likely to adversely affect the surrounding residential amenity.
60. The proposal satisfies the objectives of the R2 Zone as it will provide for the housing needs of the community in a low density residential environment.
61. The extent to which the proposal complies with the relevant standards of Hurstville Local Environmental Plan 2012 (HLEP2012) is outlined in the table below.
HLEP2012 Compliance Table
|
Clause |
Standard |
Proposed |
Complies |
|
2.2 Zone |
R2 Medium Density Residential |
The proposal is defined as a boarding house which is a permissible use within the zone. |
Yes |
|
2.3 Objectives |
Objectives of the Zone |
Consistent with zone objectives. |
Yes |
|
4.3 – Height of Buildings |
9m as identified on Height of Buildings Map |
The maximum height is 7m. |
Yes |
|
4.4 – Floor Space Ratio |
0.6:1 (or 547.56sqm) as identified on Floor Space Ratio Map |
0.39:1 or 360sqm. |
Yes |
|
4.5 – Calculation of floor space ratio and site area |
FSR and site area calculated in accordance with Cl.4.5 |
The FSR has been calculated accordingly. |
Yes |
|
5.10 – Heritage Conservation |
The objectives of this clause are; (i) to conserve the environmental heritage of Kogarah, (ii) to conserve the heritage significance of heritage items and heritage conservation areas, including associated fabric, settings and views. |
The proposal does not adjoin any environmental heritage item nominated under HLEP 2012.
|
Yes |
|
6.1 Acid Sulphate Soils (ASS) |
The objective of this clause is to ensure that development does not disturb, expose or drain acid sulfate soils and cause environmental damage |
The site is not affected by Acid Sulfate Soils under HLEP 2012.
|
N/A |
|
6.2 Earthworks |
To ensure that earthworks do not have a detrimental impact on environmental functions and processes, neighbouring uses, cultural or heritage items or features of the surrounding land |
The proposed development includes minimal excavation and associated earthworks to accommodation the foundations of the development. |
Yes subject to conditions. |
Draft Georges River Local Environmental Plan 2020
62. Consideration is given to the provisions of Draft Georges River Local Environmental Plan 2020 in the assessment this application.
63. In this regard, the provisions have no determining weight as a result of proposed operation of Clause “1.8A Savings provisions relating to development applications” of the Draft Plan which provides “If a development application has been made before the commencement of this Plan in relation to land to which this Plan applies and the application has not been finally determined before that commencement, the application must be determined as if this Plan had not commenced.”
Development Control Plan
64. Boarding houses do not have any DCP specific controls for assessment, as a result the assessment criterion in Chapter 4.4 of the HDCP No 1 for dwelling houses on standard lots for areas of assessment not covered by the SEPP have been used as a guide for assessment given the predominance of the surrounding development is dwelling houses and streetscape consistency is of relevance.
|
Applicable DCP Controls |
DCP Provisions |
Development Provisions |
Complies |
|
Neighbourhood character |
DS1.1 The development application is supported by a Statement of Environmental Effects that: a. includes a satisfactory neighbourhood and site description, including the identification of the key features of the neighbourhood and site b. shows how the siting and design response derives from and responds to the key features identified in the neighbourhood and site description c. demonstrates that the residential development proposal respects the existing or preferred neighbourhood character and satisfies objectives of the zone in the LEP |
The proposal is supported by an SEE and addresses the key features of neighbourhood character and demonstrates how the siting and design responds to the site.
|
Yes |
|
Building Height |
DS2.1. Maximum building height is in accordance with the LEP
DS2.2. Maximum ceiling height is 7.2m above the existing ground level vertically below that point. Note: maximum ceiling height is measured at the intersection of the upper most ceiling with the internal face of any external wall |
The maximum building height is 7m.
Maximum 5.8m. |
Yes
Yes |
|
Setbacks |
DS3.1. The minimum front setback to a primary street is: a. 5.5m to the main face of the dwelling or
b. 4.5m to the main face of the dwelling where located on a corner site and 5.5m to the garage or
c. within 20% of the average setback of dwellings on adjoining lots
DS3.4 The minimum side setback outside the FSPA is 900mm (ground floor) and 1.2m (first floor).
DS3.6. Minimum rear boundary setbacks are: a 3m for any basement and ground floor level solid wall b. 6m for first floor level solid walls c. where a first floor balcony is proposed at the rear, 6m from the balustrade. |
5.5m to the wall of the building (balconies encroach)
N/A
N/A
Min. 3m
Min. 3.38m
N/A
26m |
Yes
N/A
N/A
Yes
Yes
N/A
Yes |
|
Facades |
DS4.1. The dwelling house has a front door or window to a habitable room facing the primary street frontage.
DS4.2. The dwelling house incorporates at least two of the following building elements facing any street frontage: a. entry feature or portico b. awnings or other features over windows c. eaves and sun shading d. window planter box treatment e. bay windows or similar features f. wall offsets, balconies, verandas, pergolas or the like DS4.3. Garage doors are not wider than 6m |
Habitable room windows face the street at both levels.
The proposal incorporates all these features.
Garaging is not proposed. |
Yes
Yes
N/A |
|
Solar Access |
DS6.1. Development allows for at least 3 hours of sunlight on the windows of main living areas and adjoining principal private open space of adjacent dwellings between 9.00am and 3.00pm on 21 June.
DS6.2. Development complies with the Energy Efficiency section in Appendix 1 of this DCP and BASIX requirements.
DS6.3. Buildings are encouraged to incorporate window shading devices where necessary to minimise exposure to direct summer sun. Alternatively, windows may be shaded by the planting of large trees, including deciduous species. |
Adjoining properties will continue to receive greater than 3 hours during mid-winter.
The proposal is BASIX compliant.
The proposal is BASIX compliant. |
Yes
Yes
Yes |
|
Visual Privacy |
DS7.1. Windows of proposed dwelling must be offset from neighbouring windows by 1m, especially windows of high-use rooms.
DS7.2. Windows for primary living rooms must be designed so that they maintain privacy of adjoining site’s principal private open space.
DS7.3. Development applications are accompanied by a survey plan or site analysis plan (to AHD) of the proposed dwelling showing the location of adjoining property windows, floors levels, window sill levels and ridge and gutter line levels. |
Windows are offset from adjoining properties and are limited in sill height and number of windows.
The windows for primary living areas are to the front or rear of each boarding room.
The application includes survey plan and architectural plans indicating the adjoining properties, and window sill levels. |
Yes
Yes
Yes |
|
Vehicle access, parking and manoeuvring |
Complies with the SEPP – refer to compliance table |
||
|
Landscaped areas and private open space |
DS10.1. Where located outside the FSPA, a minimum of 20% of site area is landscaped open space.
DS10.2. Where located in the FSPA, a minimum of 25% of the site area is landscaped open space.
DS10.3. The minimum dimension of landscaped open space is 2m in any direction.
DS10.4. A minimum of 15sqm of the landscaped open space is provided between the front setback and the street boundary in the form of a front yard.
DS10.5. An area of Principal Private Open Space is to be provided which: a. has a minimum area of 30sqm b. has a minimum dimension of 5m c. is located at ground level and behind the front wall of the dwelling d. is directly accessible from a main living area |
27%
N/A
Deep soil areas located in the front, side and rear setbacks.
35sqm
N/A – refer to SEPP |
Yes
N/A
Yes
Yes
N/A
|
|
Stormwater |
DS11.1. Diversion of flows from one drainage sub-catchment to another is not encouraged.
DS11.2. Stormwater drainage is to occur by: a. drainage by gravity to the adjacent road kerb and Council’s drainage system or
DS11.3. Where drainage by gravity is involved this must not cause ponding/backwater effects on upstream properties.
DS11.5. On-site retention of roof run-off using rainwater tanks or detention tanks for storage and re-use are encouraged. Overflow from storage facilities must be connected to an appropriate stormwater system as detailed in DS11.2.
DS11.7. Development is not to concentrate overland flow of stormwater onto an adjoining property. |
Not proposed.
Council’s Development Engineers and Drainage Engineers have provided comments and raised no objection in this regard, subject to the recommended conditions relating to this development if the proposal was able to be supported.
Complies
Councils Development Engineers and Drainage Engineers have provided comments and raised no objection in this regard, subject to the recommended conditions relating to this development if the proposal was to be supported.
Complies. |
Yes
Yes
Yes
Yes
Yes |
|
Balconies |
DS14.1. Access to balconies and terraces is direct from a habitable room at the same floor level. Note: a level difference of one step may be considered for the purpose of rain water protection.
DS14.2. Balconies and terraces include fixed planter boxes and / or privacy screens.
DS14.3. Fixed planter boxes are at least 1m wide.
DS14.4. Privacy screens are between 1.5m and 1.8 m high
DS14.5. Terraces are not visible from the street.
DS14.6. Roof top terraces are not provided.
DS14.7. Development applications for terraces and balconies must provide sight line diagrams that demonstrate how privacy issues to neighbouring properties are proposed to be addressed. |
Complies
The first floor balconies are 1.55m in width and incorporate privacy screens on the sides.
Not required.
>1.8m
Small Juliette style balconies are proposed overlooking the street.
Not proposed.
Privacy screens adequately reduce the opportunity for overlooking from first floor balconies. |
Yes
Yes
Yes
Yes
Yes
Yes
Yes
|
65. The design of the development is not in different to a dwelling house and secondary dwelling in the rear yard. As such, an assessment of the proposal against the relevant built form secondary dwelling controls contained in Chapter 4.6 of the Hurstville DCP No. 1 has been undertaken as a guide below.
|
Clause |
Requirement |
Proposed |
Complies |
|
PC3. Building height:
|
DS3.1 Maximum building height is 1 storey.
DS3.2 The minimum floor to ceiling height is 2.4m.
DS3.3 The maximum floor to ceiling height is 3.6m. |
Proposed single storey
2.7m
2.7m |
Yes
Yes
Yes |
|
PC4. Setbacks:
|
DS4.1 The minimum setback to side and rear boundaries is 900mm.
DS4.2 The secondary dwelling is setback behind the main building face to a primary of secondary street. |
Min. 2.5m to side boundaries. Min. 3m to rear boundary.
Rooms 8 and 9 are setback behind the two (2) storey building. |
Yes
Yes |
DEVELOPER CONTRIBUTIONS
66. The proposed development, as it is for the sole purpose of providing affordable housing, is exempt from the payment of developer contributions under Sections 7.11 and 7.12 of the Environmental Planning and Assessment Act 1979.
IMPACTS
Natural Environment
67. The proposed development will not adversely affect the natural environment subject to the site being planted with replacement trees as shown on the approved landscape plan, which is supported by Council’s Consultant Arborist subject to conditions.
Built Environment
68. The proposal represents a good planning outcome for the site with respect to its bulk, scale and density, façade articulation and expression and is an appropriate response to the context of the site and its R2 Low Density Residential zoning.
Social Impact
69. No adverse social impacts have been identified as part of the assessment. The proposed development, in principle, will cater for a cross-section of the community and will assist with providing for additional housing in the area. The construction of a boarding house on the site is consistent with the residential zoning of the land.
Economic Impact
70. There is no apparent adverse economic impact that is likely to result within the locality due to the construction of a boarding house. It is likely there will be a small positive economic impact as a result of the construction of the development.
Suitability of the site
71. The site is zoned R2 Low Density Residential. The proposal is a permissible form of development in this zone and has been designed to reflect the context of the area as it evolves and exists and is in line with the intentions of Council’s zoning of this area.
SUBMISSIONS AND THE PUBLIC INTEREST
72. The application was neighbour notified in accordance with Hurstville DCP No. 1 between 31 August and 14 September 2020. A total of three (3) submissions were received as a result of the notification period. In summary the following issues and concerns were raised.
The development is out of character for the area
73. Comment: The single and two (2) storey built form is in keeping with existing residential developments in the immediate locality. The proposal is compliant with the maximum height and floor space controls and provides suitable setbacks to the front, side and rear property boundaries.
The development will result in increased pressure on street parking
74. Comment: The proposal provides an additional parking space above the number required by SEPP (Affordable Rental Housing) 2009. The SEPP requires two (2) parking spaces and the proposal provides three (3) parking spaces.
Impacts on the health and safety of the community due to proposed use as a boarding house
75. Comment: This matter is not a relevant matter for consideration under the Environmental Planning and Assessment Act 1979.
The proposal will reduce property values
76. Comment: Property values are not a matter for consideration under the Environmental Planning and Assessment Act 1979.
REFERRALS
Council Referrals
Development Engineer
77. The application was referred to Council’s Development Engineers for comment. The application is supported subject to a deferred commencement condition requiring an easement to drain water to Belmore Road.
78. The proposed stormwater design indicates on site detention and drainage by gravity to Forest Road. Due to the gutter level relative to the surface level of water in the OSD tank, and the reduced capacity of the Forest Road sub-catchment to accommodate storms exceeding the 1:20 year event, flow from the site is to be discharged to the Belmore Road sub-catchment which will result in more frequent surcharging of the street drainage system for the range of rare storm events.
Traffic Engineer
79. The application was referred to Council’s Traffic Engineer for comment. The proposed car parking and access arrangements are considered to be compliant with Council’s controls and are satisfactory. Standard conditions are included to ensure compliance will be achieved with Australian Standards during and post construction.
Environmental Health Officer
80. Council’s Environmental Health Officer has raised no objection to the proposal.
Consulting Arborist
81. Council’s Consulting Arborist has raised no objection subject to conditions of consent being imposed if approval is granted.
External Referrals
Ausgrid
82. The application was referred to Ausgrid in accordance with Clause 45 of State Environmental Planning Policy (Infrastructure) 2007. No objection was raised by Ausgrid and no conditions recommended.
CONCLUSION
83. The proposal has been assessed using the matters for consideration listed in Section 4.15 of the Environmental Planning and Assessment Act 1979. The proposal is considered to be a reasonable redevelopment of the site and the proposed scale, bulk and height is considered to be an acceptable planning and design outcome for this site and will be consistent with the existing and desired future character of development in the R2 zoned land in this location and immediate locality.
84. The proposal has been assessed against the provisions of the relevant State Environmental Planning Policies, Hurstville Local Environmental Plan 2012 and Hurstville Development Control Plan No. 1. The proposal satisfies the key planning controls in the Local Environmental Plan.
85. The applicant is the NSW Land and Housing Corporation which are social housing providers. The recommended conditions of consent have been provided to the applicant prior to the meeting. At the time of publishing this report, no comments have been provided by the applicant.
DETERMINATION AND STATEMENT OF REASONS
Statement of Reasons
86. The reasons for this recommendation are:
· The proposal is an appropriate response to the zoning of the site.
· The proposed development complies with the requirements of the relevant environmental planning instruments.
· The proposed design has been sensitively considered to be consistent with the existing and desired future character for development in this area.
· The proposal has effective façade modulation and wall articulation that will serve to provide visual interest and reduce the bulk of the building.
· The proposal aims to provide a high-quality building that will establish a positive urban design outcome.
Determination
87. THAT pursuant to Section 4.16(1) of the Environmental Planning and Assessment Act, 1979, as amended, the Georges River Local Planning Panel, grants development consent to Development Application DA2020/0327 demolition of existing structures and construction of a nine (9) room boarding house with associated landscaping, car parking and site works on Lot 22 in DP35407 known as 932 Forest Road, Peakhurst, subject to the following conditions of consent:
The Development Application described above has been determined by the granting of a Deferred Commencement Consent subject to the conditions specified in this notice.
This Development Application is a Deferred Commencement Consent under Section 4.16(3) of the Environmental Planning and Assessment Act 1979. Strict compliance is required with all conditions appearing in Schedule 1 within thirty six (36) months from the Determination Date of this consent. Upon confirmation in writing from Georges River Council that the Schedule 1 Conditions have been satisfied, the consent shall commence to operate as a Development Consent for a period of five (5) years from the Determination Date of this consent.
Schedule 1
Deferred Commencement Conditions
A. Deferred Commencement - Drainage - Pursuant to Section 4.16(3) of the Environmental Planning and Assessment Act 1979, this consent will not operate until such time as the following requirements are satisfied:
(a) The applicant must acquire an Easement to Drain Water of 1.0 metre (minimum) width. The easement must allow for a piped, gravity fed system of drainage of stormwater from the subject site with direct, underground connection to Council's kerb inlet pit in Belmore Road.
Evidence of registration of the easement to drain water benefitting the subject site and burdening the title of the property(ies) containing the easement is to be provided to Council:
(b) The applicant must obtain separate Development Consent for all drainage works to be carried out within the Easement to Drain Water. The written consent of each of the owners of the property/ies burdened by the Easement will be required for each development application to carry out the drainage works on the burdened lot/s.
Documentary evidence as requested or the above information must be submitted within thirty six (36) months of the granting of this deferred commencement consent. Activation of this Consent cannot commence until written approval by Council is given advising Section A is satisfied.
Subject to Schedule 1 above being satisfied the development is to be carried out subject to the following conditions as referenced in Schedule 2.
Schedule 2
Development Details
1. Approved Plans - The development must be implemented in accordance with the approved plans and supporting documentation listed below which have been endorsed by Council’s approved stamp, except where marked up on the plans and/or amended by conditions of this consent:
|
Description |
Reference No. |
Date |
Revision |
Prepared by |
|
Demolition Plan |
3 of 13 |
18.5.20 |
- |
Barry Rush & Associates |
|
Site Plan |
4 of 13 |
18.5.20 |
- |
Barry Rush & Associates |
|
Ground Floor Plan |
5 of 13 |
18.5.20 |
- |
Barry Rush & Associates |
|
First Floor Plan |
6 of 13 |
18.5.20 |
- |
Barry Rush & Associates |
|
Roof Plan |
7 of 13 |
18.5.20 |
- |
Barry Rush & Associates |
|
Elevations |
8 of 13 |
18.5.20 |
- |
Barry Rush & Associates |
|
Sections |
9 of 13 |
18.5.20 |
- |
Barry Rush & Associates |
|
Finishes Schedule |
10 of 13 |
18.5.20 |
- |
Barry Rush & Associates |
|
Cut and Fill Plan |
11 of 13 |
18.5.20 |
- |
Barry Rush & Associates |
|
Plan of Management |
|
June 2020 |
|
|
Separate Approvals Required Under Other Legislation
2. Vehicular Crossing - Major Development - The following vehicular crossing and road frontage works will be required to facilitate access to and from the proposed development site:
(a) The thickness and design of the driveway shall be in accordance with Council’s Specifications applying at the time construction approval is sought.
(b) Any existing vehicular crossing and/or laybacks which are redundant must be removed. The kerb and gutter, any other footpath and turf areas shall be restored at the expense of the applicant. The work shall be carried out in accordance with Council’s specification, applying at the time construction approval is sought.
Constructing a vehicular crossing and/or footpath requires separate approval under Section 138 of the Roads Act 1993 <http://legislation.nsw.gov.au/>, prior to the commencement of those works.
3. Section 138 Roads Act 1993 and Section 68 Local Government Act 1993 - Unless otherwise specified by a condition of this consent, this Development Consent does not give any approval to undertake works on public infrastructure.
Separate approval is required under Section 138 of the Roads Act 1993 and/or Section 68 of the Local Government Act 1993 for any of the following activities carried out in, on or over a public road (including the footpath) listed below.
An application is required to be lodged and approved prior to the commencement of any of the following works or activities;
(a) Placing or storing materials or equipment;
(b) Placing or storing waste containers or skip bins;
(c) Erecting a structure or carrying out work
(d) Swinging or hoisting goods over any part of a public road by means of a lift, crane or the like;
(e) Pumping concrete from a public road;
(f) Pumping water from the site into the public road;
(g) Constructing a vehicular crossing or footpath;
(h) Establishing a “works zone”;
(i) Digging up or disturbing the surface of a public road (eg Opening the road for the purpose of connections to utility providers);
(j) Stormwater and ancillary works in the road reserve;
(k) Stormwater and ancillary to public infrastructure on private land; and
(l) If any excavation is to be supported by the use of below ground (cable) anchors that are constructed under Council’s roadways/footways.
These separate activity approvals must be obtained and evidence of the approval provided to the Certifying Authority prior to the issue of the Construction Certificate.
The relevant Application Forms for these activities can be downloaded from Council’s website www.georgesriver.nsw.gov.au. For further information, please contact Council’s Customer Service Centre on (02) 9330 6400.
4. Road Opening Permit - A Road Opening Permit must be obtained from Council, in the case of local or regional roads, or from the RMS, in the case of State roads, for every opening of a public road reserve to access services including sewer, stormwater drains, water mains, gas mains, and telecommunications before the commencement of work in the road.
Requirements of Concurrence, Integrated & Other Government Authorities
5. Electricity Supply - An application is required to be made to Ausgrid for a network connection. This may require the network to be extended or its capacity augmented. Evidence of this application being lodged with Ausgrid is required to be provided to the Certifying Authority. For further details, you are advised to contact Ausgrid on 13 13 65 or www.ausgrid.com.au (Business and Commercial Services).
6. Connection to the network will be required prior to Occupation - Where works within the road reserve are to be carried out by the developer, a Road Opening Permit must be obtained from Council's Customer Service Centre before commencement of work.
7. Electricity Supply to Development - The electricity supply to the Development must be underground.
8. Sydney Water - Tap in TM - The approved plans must be submitted to a Sydney Water Tap inTM to determine whether the development application will affect Sydney Water’s sewer and water mains, stormwater drains and/or easements, and if further requirements need to be met. The approved plans will be appropriately endorsed. For details please refer to ‘Plumbing, building and developing’ section of Sydney Water’s web site at www.sydneywater.com.au then see ‘Building’, or telephone 13000 TAP IN (1300 082 746). The Certifying Authority must ensure that a Tap inTM agent has appropriately stamped the plans prior to the commencement of works.
9. Notice of Requirements for a Section 73 Certificate - A Notice of Requirements of what will eventually be required when issuing a Section 73 Compliance Certificate under the Sydney Water Act 1994 <http://legislation.nsw.gov.au/> must be obtained from Sydney Water Corporation. Application must be made through an authorised Water Servicing Co-ordinator. Please refer to the ‘Plumbing, building and developing’ section of the web site www.sydneywater.com.au <http://www.sydneywater.com.au> then refer to ‘Providers’ under ‘Developing’ or telephone 13 20 92 for assistance.
Following application, a ‘Notice of Requirements’ will advise of water and sewer infrastructure to be built and charges to be paid. Please make early contact with the Co-ordinator, as it can take some time to build water/sewer pipes and this may impact on other services and building, driveway or landscape design.
The Notice of requirements must be submitted to the Certifying Authority prior to the commencement of work. A Section 73 Compliance Certificate will be required at the completion of development in accordance with further conditions.
Prior to the Commencement of Works (including Demolition and Excavation)
10. Stormwater System The submitted stormwater plan has been assessed as a concept plan only. Final detailed plans of the drainage system, prepared by a professional engineer specialising in hydraulic engineering, shall be submitted for approval with the Construction Certificate.
(a) All stormwater shall drain by gravity to the upper level of Council’s kerb inlet pit located in Belmore Road in accordance with the Australian/New Zealand Standard AS/NZS 3500.3: 2015 (as amended).
(b) All stormwater shall drain by gravity to the easement to drain water in accordance with the Australian/New Zealand Standard AS/NZS 3500.3: 2015 (as amended).
(c) Stormwater drainage plans including pipe sizes, type, grade, length, invert levels, dimensions and types of drainage pits prepared by a professional engineer who specialises in Hydraulic Engineering in accordance with the Australian Institute of Engineers Australian Rainfall and Runoff (1987) and Council's Stormwater Drainage Guidelines, shall accompany the application for the Construction Certificate.
11. On Site Detention - The final detailed plans of the drainage system, prepared by a professional engineer specialising in hydraulic engineering, and in accordance with the deferred commencement approval shall be submitted for approval with the Construction Certificate.
An onsite detention (OSD) facility designed by a professional engineer who specialises in Hydraulic engineering must be designed, approved and installed.
The required OSD storage requirements and permissible discharge are to be calculated in accordance with Table 3 of Council’s Stormwater Management Policy.
The OSD facility shall be designed to meet all legislated safety requirements and child proof safety fencing around the facility must be provided where the OSD facility is open or above ground when the design peak storage depth is greater than 300mm. A durable metal plate or similar sign is to be placed at the OSD facility and must bear the words:
"BEWARE: This is an on-site detention basin/tank for rainwater which could overflow during heavy storms."
Full details shall accompany the application for the Construction Certificate.
12. Detailed Stormwater Drainage Design - The submitted stormwater plan has been assessed as a concept plan only. A detailed drainage design supported by a catchment area plan and drainage calculations (including a Hydraulic Grade Line Analysis) must be submitted with the Construction Certificate application.
13. Driveway Surface Waters - For driveways on private property sloping to the street and greater than 10 metres in length, drainage control devices such as humps or grated surface inlet pits shall be installed at the front boundary in order to control excess stormwater flowing across Council's footpath.
14. Stormwater Overland Flow - A design which provides for a depression over the full width and length of the drainage easement to provide a stormwater escape route shall be submitted. The escape route shall be designed to have the capacity to carry the difference between a 1 in 100 year recurrence interval flow and half the flow in the pipeline within the easement. This design is to include any openings in existing or proposed fencing on the site to accommodate the overland flow.
Evidence from an appropriately qualified person that this design requirement has been met shall accompany the application for the Construction Certificate.
15. Support for Easement Pipes
(a) All footings within 2.0 metres of the drainage easement shall be designed in such a manner that they are supported by foundations set at a minimum of 300mm below pipe invert levels or founded on sound rock.
(b) Alternatively, the footings of the building or any structure shall be designed not to affect the zone of influence taken from the invert of any pipe.
(c) The walls of any dwelling, pool or structure adjoining the easement shall be designed to withstand all forces should the easement be excavated to existing pipe invert levels.
(d) No building or other structure must be placed over the drainage easement or stormwater system or within the zone of influence taken from the invert of any pipe.
Evidence from an appropriately qualified person that this design requirement has been met shall accompany the application for the Construction Certificate.
16. Stormwater Drainage Plan Details - Stormwater drainage plans including pipe sizes, type, grade, length, invert levels, dimensions and types of drainage pits prepared by a professional engineering specialising in hydraulic engineering shall be submitted with the Construction Certificate application.
These plans shall be prepared in accordance with the Australian Institute of Engineers Australian Rainfall and Runoff (1987) and Council's Stormwater Management Policy.
17. Driveway Construction Plan Details - Detailed engineering plans for the driveway shall be submitted with the Construction Certificate application for approval that show:
(a) Longitudinal and cross sections, gradients, designed in accordance with AS/NZS2890.1-2004.
18. Stormwater Drainage Application - This Development Consent does not give approval to undertake works on public infrastructure. A separate approval of a Stormwater Drainage Application is required under Section 138 of the Roads Act 1993 and/or Section 68 of the Local Government Act 1993 to undertake:
(a) Stormwater & ancillary works in the road reserve. This includes connections to council’s stormwater & ancillary to public infrastructure on private land
The Stormwater Drainage Application approval must be obtained and evidence of the approval provided to the Certifying Authority prior to the issue of the Construction Certificate.
The Application Form for this activity can be downloaded from Council’s website www.georgesriver.nsw.gov.au. For further information, please contact Council’s Customer Service Centre on (02) 9330 6400.
19. Fire Safety Measures - A list of the essential fire safety measures that are to be provided in relation to the land and any building on the land as a consequence of the building work must be submitted to the Certifying Authority. Such list must also specify the minimum standard of performance for each essential fire safety measure included in the list. The Certifying Authority will then issue a Fire Safety Schedule for the building.
20. Electrical Infrastructure - Prior to the commencement of work documentary evidence is to be provided to the Certifying Authority demonstrating approval has been granted by the energy provider to the relocation of the electricity power pole to accommodate the proposed driveway. A plan showing the location of the relocated power pole is to be provided. The relocation of thus infrastructure is to be at the expense of the developer.
21. Fire and Rescue NSW - Building - Prior to the commencement of work the applicant may be required, under Clause 144 of the Environmental Planning and Assessment Regulation, 2000, to seek written comment from FR NSW about the location of water storage tanks, construction of hydrant/booster pump and valve rooms, and any Fire Engineered Solution developed to meet the performance requirements under the Category 2 Fire Safety Provisions.
The applicant is also advised to seek written advice from FR NSW on the location and construction of the proposed Fire Control Centre Facility and location and installation of the sites Fire Indicator/mimic Panels (if required).
22. Fees to be paid - The fees listed in the table below must be paid in accordance with the conditions of this consent and Council’s adopted Fees and Charges applicable at the time of payment (available at www.georgesriver.nsw.gov.au).
Payments must be made prior to occupation.
Council will only accept Bank Cheque or Electronic Funds Transfer (EFT) for transaction values of $500,000 or over. Council must be contacted prior to payment to determine correct total amount to be paid and bank account details (if applicable).
A summary of the fees to be paid are listed below:
|
Fee Type |
Fee |
|
GENERAL FEES |
|
|
Long Service Levy (to Long Service Corporation) Or, provide evidence of Payment direct to the Long Service Corporation. See https://portal.longservice.nsw.gov.au/bci/levy/ |
|
|
Builders Damage Deposit |
$1,900.00 |
|
Inspection Fee for Refund of Damage Deposit |
$155.00 |
General Fees
The fees and charges above are subject to change and are as set out in the version of Council's Schedule of Fees and Charges or as required by other Government Authorities, applicable at the time of payment.
23. Site Management Plan - Major Development - A Site Management Plan must be submitted to the Certifying Authority prior to the commencement of work, and include the following:
a) location of protective site fencing;
b) location of site storage areas/sheds/equipment;
c) location of building materials for construction, e.g. stockpiles
d) provisions for public safety;
e) dust control measures;
f) method used to provide site access location and materials used;
g) details of methods of disposal of demolition materials;
h) method used to provide protective measures for tree preservation;
i) provisions for temporary sanitary facilities;
j) location and size of waste containers/skip bins;
k) details of proposed sediment and erosion control measures;
l) method used to provide construction noise and vibration management;
m) construction and demolition traffic management details.
The site management measures are to be implemented prior to the commencement of any works including demolition and excavation. The site management measures are to be maintained throughout the works, to maintain reasonable levels of public health, safety and amenity. A copy of the Site Management Plan must be kept on site and is to be made available upon request.
24. BASIX Commitments - All energy efficiency measures as detailed in the BASIX Certificate No. 1097733M dated 22/5/20 must be implemented on the plans lodged with the Certifying Authority.
25. Required design changes - The following changes are required to be made and shown on the construction plans:
a) A Give Way to Entering Vehicles sign must be located on the car park side of the splay corner of the fence to Unit 3.
b) Wheel stops shall be installed adjacent to the pedestrian walkway and shall comply with the requirements of AS/NZS 2890.1:2004 - Off Street Car Parking, Section 2.4.5.4, with all costs to be borne by the applicant.
c) The height of the solid block wall base of the fence between the private open space of Unit 3 and the parking area shall be a maximum 1.2m.
d) The front fence shall be no higher than 1.2m at any one point.
e) The access pathway between the communal facilities and Unit 8 (accessible dwelling) shall be widened to 1.2m and be constructed to comply with AS1428.
f) In relation to stormwater:
The following changes are required to be made to the detailed Stormwater Management Plans for submission with the Application for the Construction Certificate:
|
Drawing Reference |
Drawing Date |
Revision |
Drawing Detail |
Author |
|
Project No. CC200105 Sheet C1 |
1/4/20 |
C |
Cover Sheet & Notes |
ACOR |
|
Project No. CC200105 Sheet C2 |
1/4/20 |
C |
Stormwater Management Plan – Site Plan – Part 1 |
ACOR |
|
Project No. CC200105 Sheet C3 |
1/4/20 |
C |
Stormwater Management Plan – Site Plan – Part 2 |
ACOR |
|
Project No. CC200105 Sheet C4 |
1/4/20 |
C |
Stormwater Management Details Sheet No. 1 |
ACOR |
(i) The provision of an underground drainage system that conveys all site runoff via an easement to drain water to Council’s kerb inlet pit in Belmore Road.
(ii) All outlet pipes from grated trench drains and surface inlet pits are to be 150mm (min.).
26. Erosion & Sedimentation Control - Erosion and sediment controls must be provided to ensure:
(a) Compliance with the approved Erosion & Sediment Control Plan
(b) Removal or disturbance of vegetation and top soil is confined to within 3m of the approved building area (no trees to be removed without approval)
(c) All clean water runoff is diverted around cleared or exposed areas
(d) Silt fences, stabilised entry/exit points or other devices are installed to prevent sediment from entering drainage systems or waterways
(e) All erosion and sediment controls are fully maintained for the duration of demolition, excavation and/or development works
(f) Controls are put into place to prevent tracking of sediment by vehicles onto adjoining roadway
(g) All disturbed areas are rendered erosion-resistant by turfing, mulching, paving or similar
(h) Compliance with Managing Urban Stormwater - Soils and Construction (Blue Book) produced by Landcom 2004.
These measures are to be implemented prior to the commencement of work (including demolition and excavation) and must remain until works are completed and all exposed surfaces are landscaped/sealed.
27. Traffic Management - Compliance with AS2890 - All driveways, access ramps, vehicular crossings and car parking spaces shall be designed and constructed in accordance with the current version of Australian Standards, AS 2890.1 (for car parking facilities) and AS 2890.2 (for commercial vehicle facilities).
28. Waste Management Plan - A Waste Management Plan incorporating all requirements in respect of the provision of waste storage facilities, removal of all materials from the site that are the result of site clearing, extraction, and, or demolition works and the designated Waste Management Facility shall be submitted to the Certifying Authority prior to the commencement of work.
29. Landscape Plans - All landscape works shall be carried out in accordance with the approved landscape plans and specifications, drawn by Ray Fuggle and Associates, Ref No BGTX2, Rev P1, Sheet 1 of 1 and dated 20/05/20. The landscaping shall be maintained in accordance with the approved plans in perpetuity, subject to the following -
a) All eight (8) trees proposed upon the landscape plan must be a minimum 45 litre pot/ bag size
b) The proposed eight (8) trees and plant species shall be in accordance with the proposed plant schedule upon the landscape plan. If plant species and quantities cannot be sourced, Council shall be contacted for alternatives;
c) All eight (8) trees proposed upon the approved landscape plan shall comply with AS 2303 – 2018, Tree Stock for Landscape use and NATSPEC Specifying Trees: a guide to assessment of tree quality (2003), and be planted and maintained in accordance with Councils standard specification;
d) If the planted trees and plants are found to be faulty, damaged, dying or dead within twelve (12) months of planting then they must be replaced with the same species. If the trees are found dead before they reach a height where they are protected by Councils Tree Management Controls, they must be replaced with the same species and pot/bag size.
30. Compliance with submitted Arborist Report - The recommendations outlined in the Arborist’s Report titled Arboricultural Impact Assessment prepared by Redgum Horticultural, dated 30 April, 2020, must be implemented throughout the relevant stages of construction. Details of tree protection measures to be implemented must be detailed in the Construction drawings and shall be in accordance with Section 4 - Australian Standard AS 4970-2009: Protection of trees on development sites.
Milestones within Arborist report – 7.4 must be implemented for compliance.
The tree/s to be retained and protected are listed in the table below.
|
Tree Species |
Location of Tree / Tree No. |
Tree Protection Zone (metres) TPZ as per AS4970 - 2009 Fencing distance out from trunk |
|
Melaleuca linarifolia |
Within front yard of No 934 Forest Road |
8.3 metres radially out from its trunk |
|
Phoenix canariensis |
Within rear yard of No 934 Forest Road |
5.0 metres radially out from its trunk |
31. Tree Protection and Retention - The following trees shall be retained and protected:
|
Tree Species |
Location of Tree / Tree No. |
Tree Protection Zone (metres) TPZ as per AS4970 - 2009 Fencing distance out from trunk |
|
Melaleuca linarifolia |
Within front yard of No 934 Forest Rd |
8.3 metres radially out from its trunk |
|
Phoenix canariensis |
Within rear yard of No 934 Forest Rd |
5.0 metres radially out from its trunk |
a) The client shall engage a qualified Arborist who holds an AQF Level 5 or above in Arboriculture and who is a current practicing and financial member of an Arboricultural Association or Affiliation.
b) A certificate of compliance letter from the AQF 5 Arborist and forwarded to the PCA – Principal Certifying Authority, at three (3) stages being, before works, during works and once all building works have been completed, that tree protection measures have been installed and maintained during the building process.
c) All trees on Council property, subject site and adjacent sites, to be retained must be protected before site set up and maintained during demolition, excavation and construction of the site.
d) Although trees may be on adjacent sites, the tree protection fencing must be placed on the nominated distances as per table above, out from the trees trunk, within the subject site to minimise impacts to neighbours trees and kept for the entirety of the project.
e) The tree protection measures must be in undertaken in accordance AS4970 -2009 Protection of trees on development sites.
f) Details of the tree protection measures to be implemented must be provided with the application for a Construction Certificate by a qualified Arborist who holds an AQF Level 5 or above in Arboriculture and who is a current practicing and financial member of an Arboricultural Association or Affiliation.
g) The engaged AQF 5 Consulting Project Arborist must be present on-site during the stages of site set up, excavation, demolition and construction when works are being undertaken that could impact on the tree canopy or root zone within the tree protection zone of each tree.
h) In accordance with AS 4970-2009 Protection of trees on development sites, a protective fence consisting of 2.4 x 1.8 metres high, fully supported chainmesh fence shall be used. The distance of the fence out from the base of each tree is to be in accordance with the TPZ listed in the table above. A layer of organic mulch 100 millimetres thick shall be placed over the protected area and no soil or fill should be placed within the protection area.
i) The tree protection fencing must be installed prior to any works and kept in place during demolition, excavation and construction and also have a sign displaying ‘Tree Protection Zone – DO NOT ENTER’ attached to the fence and must also include the name and contact details of the Project Arborist.
j) The Tree Protection Zone of each tree, to be protected, shall be watered thoroughly and regularly to minimise the effects of construction works.
k) No building products, preparation of building products, storage of materials, site sheds or services shall be installed within the TPZ of the trees.
Excavation works near tree to be retained
l) Excavations around the trees to be retained on site or the adjoining properties shall be supervised by the AQF 5 Project Arborist to ensure that the root system will not adversely be affected.
m) Where the Tree Protection Zone (TPZ) of trees on site or adjoining sites become compromised by any excavation works, the AQF 5 Project arborist shall be consulted to establish the position of any major roots and determine the necessary measures to protect these roots. The recommendations of the Arborist shall be submitted to Council prior to any further demolition or construction works taking place.
n) Tree Protection Zones around the trees to be retained are not to have soil level changes, building product / materials stored or services installed in this area. Any structures proposed to be built in this area of the trees are to utilise pier and beam or cantilevered slab construction.
o) Removal or pruning of any other tree (that would require consent of Council) on the site is not approved. All pruning must be undertaken by a qualified Arborist in accordance with AS4373 -2007 Pruning of Amenity Trees and Amenity Tree Industry, Code of Practice (SafeWork NSW August 1998).
32. Allocation of street addresses - In order to comply with AS/NZS 4819:2011 Rural and Urban Addressing, the NSW Addressing User Manual (Geographical Names Board of NSW) and Georges River Council’s requirements, the street address for the subject development is allocated as follows:
Primary Address
932 Forest Road Peakhurst NSW 2210
Unit Addresses

Details indicating compliance with this condition must be shown on the plans lodged with any Construction Certificate for approval.
Prior to the Commencement of Work (Including Demolition & Excavation)
33. Demolition & Asbestos - The demolition work shall comply with the provisions of Australian Standard AS2601:2001 - Demolition of Structures, NSW Work Health & Safety Act 2011 and the NSW Work Health & Safety Regulation 2011. The work plans required by AS2601:2001 shall be accompanied by a written statement by a suitably qualified person that the proposals contained in the work plan comply with the safety requirements of the Standard. The work plans and the safety statement shall be submitted to the Certifying Authority prior to the commencement of works.
For demolition work which involves the removal of asbestos, the asbestos removal work must be carried out by a licensed asbestos removalist who is licensed to carry out the work in accordance with the NSW Work Health & Safety Act 2011 and the NSW Work Health & Safety Regulation 2011 unless specified in the Act and/or Regulation that a license is not required.
All demolition work including the removal of asbestos, shall be undertaken in accordance with the Demolition Code of Practice (NSW Work Cover July 2015).
Note: Copies of the Act, Regulation and Code of Practice can be downloaded free of charge from the SafeWork NSW website: www.SafeWork.nsw.gov.au.
34. Demolition Notification Requirements - The following notification requirements apply to this consent:
(a) The developer /builder must notify adjoining residents five (5) working days prior to demolition. Such notification is to be a clearly written note giving the date demolition will commence, contact details of the developer/builder, licensed asbestos demolisher and the appropriate regulatory authority. Notification is to be placed in the letterbox of every premises (including every residential flat or unit, if any) either side and immediately at the rear of the demolition site.
(b) Five (5) working days prior to demolition, the developer/builder is to provide written notification to Council advising of the demolition date, details of the SafeWork licensed asbestos demolisher and the list of residents advised of the demolition.
(c) On demolition sites where buildings to be demolished contain asbestos, a standard commercially manufactured sign containing the words “DANGER ASBESTOS REMOVAL IN PROGRESS” measuring not less than 400mm x 300mm is to be erected in a prominent visible position (from street frontage) on the site. The sign is to be erected prior to demolition work commencing and is to remain in place until such time as all asbestos material has been removed from the site to an approved waste facility.
35. Demolition work involving asbestos removal - Work involving bonded asbestos removal work (of an area of more than 10 square metres) or friable asbestos removal work must be undertaken by a person who carries on a business of such removal work in accordance with a licence under clause 458 of the Work Health and Safety Regulation 2011.
36. Dial before your dig - The applicant shall contact “Dial Before You Dig on 1100” to obtain a Service Diagram prior to the commencement of work. The sequence number obtained from “Dial Before You Dig” shall be forwarded to the Certifying Authority and Council for their records.
37. Registered Surveyors Report - During Development Work - A report must be submitted to the Certifying Authority at each of the following applicable stages of construction:
a) Set out before commencing excavation.
b) Floor slabs or foundation wall, before formwork or commencing brickwork.
c) Completion of Foundation Walls - Before any construction of flooring, detailing the location of the structure relative to adjacent boundaries and floor levels relative to the datum shown on the approved plans.
d) Completion of Floor Slab Formwork - Before pouring of concrete/walls construction, detailing the location of the structure relative to adjacent boundaries and floor levels relative to the datum shown on the approved plans. In multi-storey buildings a further survey must be provided at each subsequent storey.
f) Completion of any Roof Framing - Before roof covered detailing eaves/gutter setback from boundaries.
g) Completion of all Work - Detailing the location of the structure (including eaves/gutters) relative to adjacent boundaries and its height relative to the datum shown on the approved plans. A final Check Survey must indicate the reduced level of the main ridge.
Work must not proceed beyond each stage until the Certifying Authority is satisfied that the height and location of the building is proceeding in accordance with the approved plans.
38. Utility Arrangements - Arrangements are to be made with utility authorities in respect to the services supplied by those authorities to the development. The cost associated with the provision or adjustment of services within the road and footway areas is to be at the applicant’s expense.
During Construction
39. Contamination of land - Any new information that comes to light during demolition or construction which has the potential to alter previous conclusions about site contamination and remediation must be notified to Council and the accredited certifier and all works on site must cease immediately.
A detailed site contamination investigation shall be carried out by a certified contaminated land consultant in accordance with the requirements of the relevant NSW EPA Guidelines approved under the Contaminated Land Management Act 1997 including the EPA.
Guidelines for Consultants Reporting on contaminated sites and shall certify the suitability of the site for the proposed development. A copy of the detailed site contamination report must be submitted to Council for review.
Should the detailed site contamination report find that contamination makes the land unsuitable for the proposed development and remediation is required, a Remedial Action Plan must be submitted to Council as per required under State Environmental Planning Policy No 55 – Remediation of Land.
Works associated with the development must not commence until such time a validation report prepared by the certified contaminated land consultant verifying that the land is suitable to be used for this development consent is submitted to Council.
Should the recommendation in the detailed site contamination report recommend monitoring of the site, then a monitoring program is to be submitted to Council for assessment and approval prior to any recommencement of works.
40. Physical connection of Stormwater to site - No work is permitted to proceed above the ground floor slab level of the building until there is physical connection of the approved stormwater drainage system from the land the subject of this consent to Council's kerb inlet pit in Belmore Road.
41. Site sign - Soil & Erosion Control Measures - Prior to the commencement of works (including demolition and excavation), a durable site sign, issued by Council in conjunction with this consent, must be erected in a prominent location on site. The site sign warns of the penalties which apply to pollution, storing materials on road or footpath and breaches of the conditions relating to erosion and sediment controls. The sign must remain in a prominent location on site up until the completion of all site and building works.
42. Hours of construction for demolition and building work - Any work activity or activity associated with the development consent that requires the use of any tools (including hand tools) or any power operated plant and machinery that creates noise on or adjacent to the site shall not be performed, or permitted to be performed, except between the hours of 7.00 am to 5.00 pm, Monday to Saturday inclusive. No work or ancillary activity is permitted on Sundays, or Public Holidays.
Note: A penalty infringement notice may be issued for any offence.
43. Ground levels and retaining walls - The ground levels of the site shall not be excavated, raised or filled, or retaining walls constructed on the allotment boundary, except where indicated on approved plans or approved by Council.
44. Cost of work to be borne by the applicant - The applicant shall bear the cost of all works associated with the construction of the development that occurs on Council property. Care must be taken to protect Council's roads, including the made footway, kerbs, etc., and, where plant and vehicles enter the site, the footway shall be protected against damage by deep-sectioned timber members laid crosswise, held together by hoop iron straps and chamfered at their ends. This construction shall be maintained in a state of good repair and condition throughout the course of construction.
45. Obstruction of Road or Footpath - The use of the road or footpath for the storage of any building materials, waste materials, temporary toilets, waste or skip bins, or any other matter is not permitted unless separately approved by Council under Section 138 of the Roads Act 1993 and/or under Section 68 of the Local Government Act 1993. Penalty infringement Notices may be issued for any offences and severe penalties apply.
46. Damage within Road Reserve and Council Assets - The owner shall bear the cost of restoring any footpath, roadway and any other Council assets damaged due to works at, near or associated with the site. This may include works by Public Utility Authorities in the course of providing services to the site.
47. Public Utility and Telecommunication Assets - The owner shall bear the cost of any relocation or modification required to any Public Utility Authority assets including telecommunication lines & cables and restoring any footpath, roadway and any other Council assets damaged due to works at, near or associated with the site.
48. Waste Management Facility - All materials removed from the site as a result of demolition, site clearing, site preparation and, or excavation shall be disposed of at a suitable Waste Management Facility. No vegetation, article, building material, waste or the like shall be ignited or burnt.
Copies of all receipts for the disposal, or processing of all such materials shall be submitted to the Certifying Authority.
Prior to Occupation
49. Section 73 Compliance Certificate - A Section 73 Compliance Certificate under the Sydney Water Act 1994 <http://legislation.nsw.gov.au/> must be submitted to the Certifying Authority prior to Occupation.
50. Major Development - Internal driveways and parking spaces are to be adequately paved with concrete or bitumen, or interlocking pavers to provide a dust-free surface. All car parking spaces are to be line marked in accordance with AS1742, ‘Australian Standard Manual of Uniform Traffic Control Devices’ and the relevant guidelines published by the RMS.
51. Restriction to User and Positive Covenant for On-Site Detention Facility - A Restriction on Use of the Land and Positive Covenant shall be created and registered on the title of the property, which places the responsibility for the maintenance of the on-site stormwater management system on the owners of the land. The terms of the instrument are to be in accordance with Council’s standard terms and restrictions which are as follows;
Restrictions on Use of Land
The registered proprietor shall not make or permit or suffer the making of any alterations to any on-site stormwater management system which is, or shall be, constructed on the lot(s) burdened without the prior consent in writing of Georges River Council. The expression “on-site stormwater management system” shall include all ancillary gutters, pipes, drains, walls, kerbs, pits, grates, tanks, chambers, basins and surfaces designed to manage stormwater quantity or quality including the temporary detention or permanent retention of stormwater storages. Any on-site stormwater management system constructed on the lot(s) burdened is hereafter referred to as “the system.
Name of Authority having the power to release, vary or modify the Restriction referred to is Georges River Council.”
Positive Covenants
1. The registered proprietor of the lot(s) hereby burdened will in respect of the system:
a) keep the system clean and free from silt, rubbish and debris
b) maintain and repair at the sole expense of the registered proprietors the whole of the system so that if functions in a safe and efficient manner
c) permit the Council or its authorised agents from time to time and upon giving reasonable notice (but at any time and without notice in the case of an emergency) to enter and inspect the land for the compliance with the requirements of this covenant
d) comply with the terms of any written notice issued by the Council in respect of the requirements of this covenant within the time stated in the notice.
2. Pursuant to Section 88F(3) of the Conveyancing Act 1919 the Council shall have the following additional powers:
a) in the event that the registered proprietor fails to comply with the terms of any written notice issued by the Council as set out above the Council or its authorised agents may enter the land with all necessary materials and equipment and carry out any work which the Council in its discretion considers reasonable to comply with the said notice referred to in part 1(d) above
b) the Council may recover from the registered proprietor in a Court of competent jurisdiction:
i. any expense reasonably incurred by it in exercising its powers under subparagraph (i) hereof. Such expense shall include reasonable wages for the Council’s employees engaged in effecting the work referred to in (i) above, supervising and administering the said work together with costs, reasonably estimated by the Council, for the use of materials, machinery, tools and equipment in conjunction with the said work.
ii. legal costs on an indemnity basis for issue of the said notices and recovery of the said costs and expenses together with the costs and expenses of registration of a covenant charge pursuant to section 88F of the Act or providing any certificate required pursuant to section 88G of the Act or obtaining any injunction pursuant to section 88H of the Act. Name of Authority having the power to release vary or modify the Positive Covenant referred to is Georges River Council.
52. Maintenance Schedule – On-site Stormwater Management - A Maintenance Schedule for the proposed on-site stormwater management measures is to be prepared and submitted to Council. The Maintenance Schedule shall outline the required maintenance works, how and when these will be done and who will be carrying out these maintenance works.
53. Works as Executed and Certification of Stormwater works - Prior to the issue of an Occupation Certificate, the PCA must ensure that the stormwater drainage system has been constructed in accordance with the approved design and relevant Australian Standards. A works-as-executed drainage plan and certification must be forwarded to the PCA and Council, from a professional engineer specialising in hydraulic engineering.
This Plan and Certification shall confirm that the design and construction of the stormwater drainage system satisfies the conditions of development consent and the Construction Certificate stormwater design details approved by the PCA.
The works-as-executed drainage plan must be prepared by a professional engineer specialising in hydraulic engineering in conjunction with a Registered Surveyor and must include the following details:
(a) The location of any detention basin/s with finished surface levels;
(b) Finished site contours at 0.2 metre intervals
(c) Volume of storage available in any detention areas;
(d) The location, diameter, gradient and material (i.e. PVC, RC etc.) of all stormwater pipes;
(e) The orifice size/s;
54. Requirements prior to the issue of the Occupation Certificate - The following shall be completed and or submitted to the PCA prior to the issue of the Occupation Certificate:
(a) All the stormwater/drainage works shall be completed in accordance with the approved Construction Certificate plans prior to the issue of the Occupation Certificate.
(b) The internal driveway construction works, together with the provision for all services (conduits and pipes laid) shall be completed in accordance with the approved Construction Certificate plans prior to the issue of the Occupation Certificate.
(c) Construct any new vehicle crossings required.
(d) Replace all redundant vehicle crossing laybacks with kerb and guttering, and replace redundant concrete with turf.
(e) A Section 73 (Sydney Water) Compliance Certificate for the Subdivision shall be issued and submitted to the PCA prior to the issue of the Occupation Certificate.
(f) Work as Executed Plans prepared by a Chartered Professional Engineer or a Registered Surveyor when all the site engineering works are complete shall be submitted to the PCA prior to the issue of the Occupation Certificate.
55. Vehicular crossing & Frontage work – Major development - The following road frontage works shall be constructed in accordance with the specifications issued under the ‘Application for Driveway Crossing and Associated Works on Council Road Reserve’ approval issued by Council’s Assets and Infrastructure Division:
(a) Construct the driveway crossing in accordance with Council’s specifications for vehicular crossings.
(b) Any existing vehicular crossing and/or laybacks which are redundant must be removed. The kerb and gutter, any other footpath and turf areas shall be restored at the expense of the applicant and in accordance with Council’s Specification for Driveway Crossings and Associated Works.
A private contractor shall carry out the above work, at the expense of the applicant and in accordance with Council’s Specification for Driveway Crossings and Associated Works.
The driveway and road frontage works are to be completed before the issue of the Occupation Certificate
.
56. Completion of Major Works - Prior to the issue of a Final Occupation Certificate, the following works must be completed Stormwater pipes, pits and connections to public stormwater systems within the road related area;
(a) Driveways and vehicular crossings within the road related area;
(b) Removal of redundant driveways and vehicular crossings;
(c) Relocation/provision of street signs
(d) New or replacement street trees;
(e) New or reinstated kerb and guttering within the road related area; and
Council’s Assets and Infrastructure Section must advise in writing that the works have been completed to their satisfaction prior to the issue of the Occupation Certificate. [Note: The damage deposit paid to Council will not be released until the works have been completed to Council’s satisfaction.
57. Stormwater drainage works – Works As Executed - Prior to the issue of the Occupation Certificate, stormwater drainage works are to be certified by a professional engineer specialising in hydraulic engineering, with Works-As-Executed drawings supplied to Council detailing:
(a) Compliance with conditions of development consent relating to stormwater;
(b) The structural adequacy of the On-Site Detention system (OSD);
(c) That the works have been constructed in accordance with the approved design and will provide the detention storage volume and attenuation in accordance with the submitted calculations;
(d) Pipe invert levels and surface levels to Australian Height Datum;
(e) Contours indicating the direction in which water will flow over land should the capacity of the pit be exceeded in a storm event exceeding design limits.
58. Fire Safety Certificate before Occupation or Use - In accordance with Clause 153 of the Environmental Planning and Assessment Regulation 2000, on completion of building works and prior to Occupation, the owner must cause the issue of a Final Fire Safety Certificate in accordance with Clause 170 of the aforesaid Regulation. The Fire Safety Certificate must be in the form or to the effect of Clause 174 of the Environmental Planning and Assessment Regulation, 2000. In addition, in relation to each essential fire or other safety measure implemented in the building or on the land on which the building is situated, such a Certificate is to state:
(a) That the measure has been assessed by a person (chosen by the owner of the building) who is properly qualified to do so.
(b) That as at the date of the assessment the measure was found to be capable of functioning at a standard not less than that required by the attached Schedule.
A copy of the certificate is to be given by the applicant to the Commissioner of Fire & Rescue NSW and a further copy is to be displayed in a frame and fixed to a wall inside the building's main entrance.
59. Slip Resistance - At completion of work an in-situ (on-site) test, in wet and dry conditions, must be carried out on the pedestrian floor surfaces used in the foyers, public corridors/hallways, stairs and ramps as well as the floor surfaces in wet rooms in any commercial/retail/residential units to ascertain the actual slip resistance of such surfaces taking into consideration the effects of grout, the gradients of the surface and changes from one material to another. The in-situ test must be carried out in accordance with AS/NZS 4663:2002. Proof of compliance must be submitted with the application for the Occupation Certificate for approval.
60. BASIX Certificate - All energy efficiency measures as detailed in the approved BASIX Certificate in the plans approved with the Development Consent, must be implemented before Occupation.
61. Electricity Supply - Evidence shall be provided demonstrating that the development has been connected to the Ausgrid, if required.
62. BASIX Compliance Certificate - A Compliance Certificate must be provided to the Certifying Authority regarding the implementation of all energy efficiency measures as detailed in the approved BASIX Certificate before Occupation.
63. Completion of Landscape Works
a) All landscape works and the planting of eight (8) trees must be completed before the issue of the Final Occupation Certificate and to the satisfaction of Councils Tree Management Officers. In accordance with approved landscape plans and specifications, drawn by Ray Fuggle and Associates, dated 20/5/20, Rev P1.
b) A certificate of compliance for the planting of all eight (8) trees and shrubs proposed for the site. An AQF 5 Horticulturist shall be engaged and in writing certify that all trees have been planted as per landscape plan and specifications and forwarded to the PCA – Principal Certifying Authority.
Operational Conditions (Ongoing)
64. Boarding House Operation - The following restrictions apply to the approved development:
(a) The development approved under this consent constitutes a ‘Boarding House’ as defined under State Environmental Planning Policy (Affordable Rental Housing) 2009 and shall not be used for the purposes of permanent residential accommodation nor hotel, motel, serviced apartments, private hotel, tourist accommodation or the like.
(b) Not more than one lodger shall occupy boarding rooms Nos. 1 to 9 (all rooms) which are to contain no more than one bed.
(c) The total number of lodgers residing in the boarding house at any one time shall not exceed nine (9) lodgers.
(d) The lodgers must be subject to an occupancy agreement for a term of no less than three months.
(e) The boarding house must always be operated and managed in accordance with the provisions contained within the Plan of Management dated June 2020.
(f) The use and operation of the premises must comply with the requirements of Schedule 2 (Standards for Places of Shared Accommodation) of the Local Government (General) Regulation, 2005 under the Local Government Act 1993, the Public Health Act, 2010 and Regulations thereunder.
(g) The operation of the Boarding House shall be in accordance with the Boarding Houses Act 2012 at all times. This includes the registration of the Boarding House, as required by the Act.
Subdivision of the boarding house is not permitted in accordance with the provisions of the State Environmental Planning Policy (Affordable Rental Housing) 2009.
65. Noise Control - The use of the premises must not give rise to the transmission of offensive noise to any place of different occupancy. Offensive noise is defined in the Protection of the Environment Operations Act 1997 (as amended).
66. Outdoor Lighting - To avoid annoyance to the occupants of adjoining premises or glare to motorist on nearby roads, outdoor lighting must comply with AS 4282-2019: Control of the obtrusive effects of outdoor lighting.
67. Lighting - General Nuisance - Any lighting on the site shall be designed so as not to cause a nuisance to other residences in the area or to motorists on nearby roads and to ensure no adverse impact on the amenity of the surrounding area by light overspill or glare.
Flashing, moving or intermittent lights or signs are prohibited.
68. Activities and storage of goods outside buildings - There shall be no activities including storing or depositing of any goods or maintenance to any machinery external to the building with the exception of waste receptacles.
69. Entering & Exiting of vehicles - All vehicles shall enter and exit the premises in a forward direction.
70. Annual Fire Safety Statement - The owner of the building premises must ensure the Council is given an annual fire safety statement in relation to each essential fire safety measure implemented in the building. The annual fire safety statement must be given:
(a) Within 12 months after the date on which the fire safety certificate was received.
(b) Subsequent annual fire safety statements are to be given within 12 months after the last such statement was given.
(c) An annual fire safety statement is to be given in or to the effect of Clause 181 of the Environmental Planning and Assessment Regulation 2000.
(d) A copy of the statement is to be given to the Commissioner of Fire & Rescue NSW, and a further copy is to be prominently displayed in the building.
71. Maintenance of Landscaping
a) All eight (8) trees and plants forming part of the landscaping must be maintained. Maintenance includes watering, weeding, removal of rubbish from tree bases, fertilising, pest and disease control, replacement of dead or dying plants and other operations required to maintain healthy trees, plants and turfed areas.
Tree Protection Measures
b) A final certificate of compliance letter, once all building and landscape works have been completed, from the engaged AQF 5 Consulting Arborist, that tree protection measures have been installed and maintained for the entirety of the project and report on the condition of the trees that as part of this Consent, were to be protected and retained.
Tree plantings within subject site
c) A minimum of 8 x 45 litre size trees, which will attain a minimum mature height of nine (9) metres, shall be planted within the property. The trees are to conform to AS2303 – 2018, Tree stock for landscape use.
d) If the planted eight (8) trees are found to be faulty, damaged, dying or dead within twelve (12) months of planting then they must be replaced with the same species. If the trees are found dead before they reach a height where they are protected by Councils Tree Management Controls, they must be replaced with the same species and pot/bag size.
e) A copy of the Hurstville City Council’s Tree Removal and Pruning Guidelines and Kogarah City Council, Street Tree Management Strategy, Masterplan, and Tree Management Policy 2019, can be downloaded from Council’s website www.georgesriver.nsw.gov.au.
72. Amenity of the neighbourhood - The implementation of this development shall not adversely affect the amenity of the neighbourhood or interfere unreasonably with the comfort or repose of a person who is outside the premises by reason of the emission or discharge of noise, fumes, vapour, odour, steam, soot, dust, waste water, waste products, grit, oil or other harmful products.
Prescribed Conditions
Not Applicable
END CONDITIONS
NOTES/ADVICES____________________________________________________
73. Review of Determination - Section 8.2 of the Environmental Planning and Assessment Act confers on an applicant who is dissatisfied with the determination of the application the right to lodge an application with Council for a review of such determination. Any such review must however be completed within 6 months from its determination. Should a review be contemplated sufficient time should be allowed for Council to undertake public notification and other processes involved in the review of the determination.
Note: Review provisions do not apply to Complying Development, Designated Development, State Significant Development, Integrated Development or any application determined by the Sydney South Planning Panel or the Land & Environment Court.
74. Appeal Rights - Part 8 (Reviews and appeals) of the Environmental Planning and Assessment Act 1979 confers on an applicant who is dissatisfied with the determination of the application a right of appeal to the Land and Environment Court of New South Wales.
75. Lapsing of Consent - This consent will lapse unless the development is physically commenced within 5 years from the Date of Operation of this consent, in accordance with Section 4.53 of the Environmental Planning and Assessment Act 1979 as amended.
76. Access to NSW Legislations (Acts, Regulations and Planning Instruments) - NSW legislation can be accessed free of charge at www.legislation.nsw.gov.au
77. Compliance with Access, Mobility and AS4299 – Adaptable Housing - Should the Council be appointment as the PCA, the Construction Certificate Application must be accompanied by detailed working plans and a report or a Certificate of Compliance from an Accredited Access Consultant certifying that the building design and access to the adaptable units complies with Council’s DCP and AS 4299 Adaptable Housing.
78. Council as PCA - Compliance with the BCA - Should the Council be appointed as the CERTIFYING AUTHORITY, the Construction Certificate Application must be accompanied by the following details, with plans prepared and certified by an appropriately qualified person demonstrating compliance with the BCA:
a) Mechanical air handling, ventilation and car park exhaust system.
b) Essential fire services and equipment including hydrant systems, hose reels, sprinklers, mechanical air handling system, portable fire extinguishers, emergency lights, exit signs, smoke hazard management and warning systems, etc.
c) Smoke hazard management system and associated alarm system, stair pressurisation and fire modelling etc.
d) Emergency lights, exit signs and warning systems.
e) Energy efficiency report demonstrating compliance with the BCA.
f) Protection of wall openings that stand less than 3 metres from the boundary or fire source feature.
g) Fire Separation and Construction between Occupancies
h) Sound Transmission & Insulation between Occupancies
i) A new Fire Engineered Building Report prepared by an accredited fire engineer, confirming that the existing alternative solution implemented in the building will not be rendered ineffective by the proposed building alterations and fit-out works.
j) Floor plan of the whole of the existing building with sufficient details to enable assessment for compliance with the BCA.
79. Energy Efficiency Provisions - Should Council be appointed as the CERTIFYING AUTHORITY, a report prepared and endorsed by an Energy Efficiency Engineer or other suitably qualified person must be submitted, detailing the measures that must be implemented in the building to comply with Section J of the BCA. The proposed measures and feature of the building that facilitate the efficient use of energy must be identified and detailed on the architectural plans. At completion of the building and before the issue of an Occupation Certificate, a certificate certifying that the building has been erected to comply with the energy efficiency provisions must be submitted to the Certifying Authority.
Energy efficiency provisions relate only to new building work or the installation of new measure. Existing building fabric and measures may not be upgraded.
80. Noise - Noise related conditions - Council will generally enforce noise related conditions in accordance with the Noise Guide for Local Government (http://www.environment.nsw.gov.au/noise/nglg.htm) and the Industrial Noise Guidelines
(http://www.environment.nsw.gov.au/noise/industrial.htm) publish by the Department of Environment and Conservation. Other state government authorities also regulate the Protection of the Environment Operations Act 1997.
Useful links relating to Noise:
(a) Community Justice Centres - free mediation service provided by the NSW Government (www.cjc.nsw.gov.au).
(b) Department of Environment and Conservation NSW, Noise Policy Section web page (www.environment.nsw.gov.au/noise).
(c) New South Wales Government Legislation home page for access to all NSW legislation, including the Protection of the Environment Operations Act 1997 and the Protection of the Environment Noise Control Regulation 2000 (www.legislation.nsw.gov.au).
(d) Australian Acoustical Society - professional society of noise-related professionals (www.acoustics.asn.au/index.php).
(e) Association of Australian Acoustical Consultants - professional society of noise related professionals (www.aaac.org.au).
(f) Department of Gaming and Racing - (www.dgr.nsw.gov.au).
81. Sydney Water Section 73 Certificates - The Section 73 Certificate must be a separate certificate that relates specifically to this development consent. For example, if the development consent relates to the subdivision of the land, a Section 73 Certificate for the construction of the building that is subject to a different development consent will not suffice.
82. Electricity Supply - This development may need a connection to the Ausgrid network which may require the network to be extended or its capacity augmented. You are advised to contact Ausgrid on 13 13 65 or www.ausgrid.com.au (Business and Commercial Services) for further details and information on lodging your application to connect to the network.
83. Long Service Levy - The Long Service Corporation administers a scheme which provides a portable long service benefit for eligible workers in the building and construction industry in NSW. All benefits and requirements are determined by the Building and Construction Industry Long Service Payments Act 1986. More information about the scheme and the levy amount you are required to pay to satisfy a condition of your consent can be found at http://www.longservice.nsw.gov.au.
The required Long Service Levy payment can be direct to the Long Service Corporation via their web site https://online.longservice.nsw.gov.au/bci/levy. Payments can only be processed on-line for the full levy owing and where the value of work is between $25,000 and $6,000,000. Payments will be accepted for amounts up to $21,000, using either MasterCard or Visa.
84. Security deposit administration & compliance fee - Under Section 97 (5) of the Local Government Act 1993, a security deposit (or part) if repaid to the person who provided it is to be repaid with any interest accrued on the deposit (or part) as a consequence of its investment.
Council must cover administration and other costs incurred in the investment of these monies. The current charge is $50.00 plus 2% of the bond amount per annum.
The interest rate applied to bonds is set at Council's business banking facility rate as at 1 July each year. Council will accept a bank guarantee in lieu of a deposit.
All interest earned on security deposits will be used to offset the Security Deposit Administration and Compliance fee. Where interest earned on a deposit is not sufficient to meet the fee, it will be accepted in full satisfaction of the fee.
85. Stormwater & Ancillary Works – Applications under Section 138 Roads Act and/or Section 68 Local Government Act 1993
To apply for approval under Section 138 of the Roads Act 1993 and/or Section 68 Local Government Act 1993:
(a) Complete the ‘Stormwater Drainage Application Form’ which can be downloaded from Georges River Council’s website at www.georgesriver.nsw.gov.au.
(b) In the Application Form, quote the Development Consent No. (eg. DA2018/****) and reference this condition number (e.g. Condition 23)
(c) Lodge the application form, together with the associated fees at Council’s Customer Service Centre, during business hours. Refer to Council’s adopted Fees and Charges for the administrative and inspection charges associated with stormwater applications.
The developer must meet all costs of the extension, relocation or reconstruction of any part of Council’s drainage system (including design drawings and easements) required to carry out the approved development.
The preparation of all engineering drawings (site layout plans, cross sections, longitudinal sections, elevation views together with a hydraulic grade analysis) and specifications for the new storm water drainage system to be arranged by the applicant. The design plans must be lodged and approved by Council prior to the issue of a Construction Certificate.
NOTE: A minimum of four weeks should be allowed for assessment.
86. Council as PCA - Deemed to Satisfy Provisions of BCA - Should the Council be appointed as the Certifying Authority in determining the Construction Certificate, the building must comply with all the applicable deemed to satisfy provision of the BCA. However, if an alternative fire solution is proposed it must comply with the performance requirements of the BCA, in which case, the alternative solution, prepared by an appropriately qualified fire consultant, accredited and having specialist qualifications in fire engineering, must justifying the non-compliances with a detailed report, suitable evidence and expert judgement. Council will also require if deemed necessary, for the alternative solution to undergo an independent peer review by either the CSIRO or other accredited organisation. In these circumstances, the applicant must pay all costs for the independent review.
87. Site Safety Fencing - Site fencing must be erected in accordance with SafeWork Guidelines, to exclude public access to the site throughout the demolition and/or construction work, except in the case of alterations to an occupied dwelling. The fencing must be erected before the commencement of any work and maintained throughout any demolition and construction work.
A demolition licence and/or a high risk work license may be required from SafeWork NSW (see www.SafeWork.nsw.gov.au).
|
Attachment ⇩1 |
Site Plan and Elevations - 932 Forest Rd Peakhurst |
|
Georges River Council - Georges River Local Planning Panel (LPP) - Thursday, 10 December 2020 LPP066-20 932 Forest Road Peakhurst [Appendix 1] Site Plan and Elevations - 932 Forest Rd Peakhurst |
Page 184 |

|
Georges River Council – Local Planning Panel Thursday, 10 December 2020 |
Page 228 |
REPORT TO GEORGES RIVER COUNCIL
LPP MEETING OF Thursday, 10 December 2020
|
LPP Report No |
LPP067-20 |
Development Application No |
DA2020/0353 |
|
Site Address & Ward Locality |
24 Salisbury Street Penshurst Mortdale Ward |
||
|
Proposed Development |
Demolition of existing structures, and construction of a two storey attached dual occupancy with swimming pools, outbuildings and front fence |
||
|
Owners |
Mr Anthony John Trainor, Mr Robert Colin Trainor, Mr Michael Stuart Trainor, Ms Kathryn Ann Seller |
||
|
Applicant |
M Cubed Architects |
||
|
Planner/Architect |
M Cubed Architects |
||
|
Date Of Lodgement |
4/09/2020 |
||
|
Submissions |
No submissions received |
||
|
Cost of Works |
$952,147.00 |
||
|
Local Planning Panel Criteria |
Conflict of interest as the owner(s) are a relative to a Councillor |
||
|
List of all relevant s.4.15 matters (formerly s79C(1)(a)) |
State Environmental Planning Policy No 55 - Remediation Of Land; State Environmental Planning Policy (Building Sustainability Index: BASIX) 2004; State Environmental Planning Policy (Infrastructure) 2007; State Environmental Planning Policy (Vegetation in Non-Rural Areas) 2017; Greater Metropolitan Regional Environmental Plan No 2 – Georges River Catchment; Draft Environment State Environmental Planning Policy; Draft Remediation of Land SEPP; Draft Georges River Local Environmental Plan 2020; Hurstville Local Environmental Plan 2012; Hurstville Development Control Plan No 1 - LGA Wide. |
||
|
List all documents submitted with this report for the Panel’s consideration |
Architectural plans, Statement of Environmental Effects, BASIX Certificates, Arborist Report, Survey Plan, Geotechnical Report, Cost Summary Report
|
||
|
Report prepared by |
Development Assessment Planner |
||
|
|
Summary of matters for consideration under Section 4.15 Have all recommendations in relation to relevant s4.15 matters been summarised in the Executive Summary of the assessment report? |
Yes |
|
Legislative clauses requiring consent authority satisfaction Have relevant clauses in all applicable environmental planning instruments where the consent authority must be satisfied about a particular matter been listed and relevant recommendations summarised, in the Executive Summary of the assessment report? |
Yes |
|
Clause 4.6 Exceptions to development standards If a written request for a contravention to a development standard (clause 4.6 of the LEP) has been received, has it been attached to the assessment report? |
Not Applicable
|
|
Special Infrastructure Contributions Does the DA require Special Infrastructure Contributions conditions (under s7.24)? |
Not Applicable |
|
Conditions Have draft conditions been provided to the applicant for comment? |
No, the conditions can be reviewed when the report is published |
|
Site Plan
Figure 1: Aerial view of subject site outlined in blue |
EXECUTIVE SUMMARY
Proposal
1. The application seeks approval for the demolition of existing structures and construction of an attached two (2) storey dual occupancy with two (2) rear swimming pools, two (2) rear outbuildings and front fencing including landscaping and engineering works at 24 Salisbury Street Penshurst.
Site and Locality
2. The subject site is a rectangular shaped allotment along the north eastern side of Salisbury Street Penshurst. The site has a primary south western frontage of 17.59m to Salisbury Street, and side boundary lengths of 51.5m and a site area of 897.9sqm.
3. The site currently accommodates a single storey weatherboard and metal roofed dwelling, a detached weatherboard garage at the rear accessed by a driveway along the south eastern boundary, and a number of trees within the site and along the Council landscape verge.
Zoning and Permissibility
4. The site is zoned R2 – Low Density Residential and a ‘dual occupancy’ is listed as permissible with consent. The proposed demolition works, swimming pools, outbuildings, and front fence are considered ancillary to a ‘dual occupancy’ which is permitted with consent.
Submissions
5. The application was notified to surrounding neighbours for a period of fourteen (14) days between 21 September 2020 and 6 October 2020 in accordance with the Hurstville Development Control Plan No. 1. No submissions were received.
Conclusion
6. Having regard to the matters for consideration under section 4.15(1) of the Environmental Planning and Assessment Act 1979 and following a detailed assessment, the proposed Development Application (DA2020/0353) is recommended for approval subject to the conditions referenced at the end of this report.
REPORT IN FULL
Proposal
7. Development consent is sought for the demolition of existing structures and construction of an attached two (2) storey dual occupancy with two (2) swimming pools in the rear, two (2) rear outbuildings and front fence including landscaping and engineering works at 24 Salisbury Street Penshurst
8. Further details of the proposed development are as follows:
Demolition:
· Demolition of existing structures being the existing weatherboard house, rear detached weatherboard garage and W/C, onsite paving, internal driveway and crossing and the removal of six (6) onsite trees.
Construction:
Construction of an attached two (2) storey dual occupancy, a swimming pool and outbuilding associated with each dwelling consisting of the following:
· Dwelling 1:
o Ground floor: single garage, entry porch, lounge room with office space, guest room, bathroom, dining and family area, kitchen, pantry and laundry room, rear alfresco and swimming pool with dimensions 3.3m x 5.0m x 1.5m;
o First floor: Two (2) bedrooms, bathroom, an additional bedroom with ensuite, one (1) master bedroom with ensuite and walk-in-robe, rear void area over ground floor living area;
o Detached outbuilding consisting of a pool cabana, bathroom, and studio room.
· Dwelling 2:
o Ground floor: single garage, entry porch, lounge room, guest room with ensuite and lightwell, WC, dining, family, kitchen, pantry and laundry room, courtyard along south-eastern boundary, rear alfresco and swimming pool with dimensions 2.5m x 7.0m x 1.5m;
o First floor: Two (2) bedrooms, bathroom, an additional bedroom with ensuite, one (1) master bedroom with ensuite and walk-in-robe, rear void area over ground floor living area;
o Detached outbuilding consisting of a pool cabana, bathroom, and studio room.
Ancillary Development:
· Construction of a 5.0m wide vehicular crossing onto Salisbury Road;
· Ancillary landscape and stormwater works;
· Construction of a 1.0m (maximum height) masonry front fence.

Figure 2: Proposed site plan (Source: M Cubed Architects 2020).
The Site and Locality
9. The subject site is formally identified as Lot 20, Section 2 in DP3446 and commonly known as 24 Salisbury Street Penshurst. The subject site is a rectangular shaped allotment along the north eastern side of Salisbury Street Penshurst. The site has a primary south western frontage of 17.59m to Salisbury Street and side boundary lengths of 51.5m and a site area of 897.9sqm. The site has a gradual fall to the street with a height difference of approximately 2.0m.
10. Currently the allotment accommodates a single storey weatherboard and metal roofed dwelling, a detached weatherboard garage at the rear accessed by a driveway along the south eastern boundary and a number of trees within the site and along the Council landscape verge.
11. The immediate area is dominated by residential uses containing a mix of one (1) and two (2) storey residential developments. The area is generally residential in character.
12. In the wider context, the subject site is located approximately 200m north of Forest Road and approximately 600m west of Penshurst Park.

Figure 3: Street view of subject site from the assessing officer’s inspection.
Background
13. There are no recent relevant applications pertinent to the subject site.
14. The current development application has been amended through Council’s assessment of the application. The initial plans proposed for the removal of one (1) of the Council street trees (Lophostemon confertus located south). The proposed tree removal was not supported and amended plans were submitted showing a reduced driveway width and an increased setback from the subject tree.
Compliance and Assessment
15. The development site has been inspected and assessed having regarding to the Matters for Consideration under Section 4.15(1) of the Environmental Planning and Assessment Act 1979.
STATE ENVIRONMENTAL PLANNING INSTRUMENTS
16. Compliance with the relevant State Environmental Planning Policies (SEPP) is detailed below.
|
State Environmental Planning Policy |
Complies |
|
State Environmental Planning Policy No 55 - Remediation of Land |
Yes |
|
State Environmental Planning Policy (Building Sustainability Index: BASIX) 2004 |
Yes |
|
State Environmental Planning Policy (Vegetation in Non-Rural Areas) 2017 |
Yes
|
|
Greater Metropolitan Regional Environmental Plan No 2 – Georges River Catchment |
Yes
|
|
State Environmental Planning Policy (Infrastructure) 2007 |
Yes |
STATE ENVIRONMENTAL PLANNING POLICY NO 55 – REMEDIATION OF LAND (SEPP 55)
17. SEPP 55 aims to promote the remediation of contaminated land in order to reduce the risk of harm to human health or any other aspect of the environment. Clause 7 requires contamination and remediation to be considered in determining a development application. The consent authority must not consent to the carrying out of development on land unless it has considered whether or not the land is contaminated.
18. A review of the site history indicates that the site has been used for residential purposes for extended periods of time, and such uses and/or development are not typically associated with activities that would result in the contamination of the site. The proposed works do not include any change to the use of the land that would result in any concerns with respect to contamination. There is no indication of previous uses that would cause contamination. In this regard there is no indication that the land is contaminated. The criterion of SEPP 55 has been satisfied.
STATE ENVIRONMENTAL PLANNING POLICY (BUILDING SUSTAINABILITY INDEX: BASIX) 2004
19. The trigger for BASIX Certification is when the estimated cost of works for residential development (new dwelling(s)/alterations and additions) is equal to or above $50,000. BASIX Certification is also triggered when proposing a swimming pool with a volume of 40,000 litres or more.
20. Two BASIX Certificates prepared by M Cubed Design, certificate numbers 1126119S_02 (dated 13 August 2020) and 1126130S (dated 12 August 2020) have been submitted with the Development Application satisfying the minimum requirements of SEPP (Building Sustainability Index: BASIX) 2004.
21. The amended architectural plans did not require that the BASIX Certificates be amended.
STATE ENVIRONMENTAL PLANNING POLICY (VEGETATION IN NON-RURAL AREAS) 2017
22. The Vegetation SEPP regulates clearing of native vegetation on urban land and land zoned for environmental conservation/management that does not require development consent.
23. The Vegetation SEPP applies to clearing of:
(a) Native vegetation above the Biodiversity Offset Scheme (BOS) threshold where a proponent will require an approval from the Native Vegetation Panel established under the Local Land Services Amendment Act 2016; and
(b) Vegetation below the BOS threshold where a proponent will require a permit from Council if that vegetation is identified in the council’s development control plan (DCP).
24. The objectives of the SEPP are to protect the biodiversity values of trees and other vegetation in non-rural areas and preserve the amenity of non-rural areas through the preservation of trees and other vegetation. This policy is applicable pursuant to Clause 5(1) of the SEPP as the site is within both Georges River Council and the R2 Low Density Residential zone.
25. Pursuant to Clause 8(1) of the SEPP, clearing does not require authority under the policy as it is a type of clearing that is authorised under Section 60O of the Local Land Services Act 2013 (specifically, that associated with a development consent issued under Part 4 of the Environmental Planning and Assessment Act 1979).
26. The proposal requires the removal of six (6) on-site trees. The removed tree will require to be replaced as per Council’s Tree Management Policy. The two (2) street trees are required to be maintained and protected. Standard and specific tree and landscape conditions have been recommended by Council’s consultant arborist and have been referenced at the end of this report.
GREATER METROPOLITAN REGIONAL ENVIRONMENTAL PLAN NO 2 - GEORGES RIVER CATCHMENT
27. The main aims and objectives of this plan include but are not limited to the following:
· To maintain and improve the water quality and river flows of the Georges River and its tributaries and ensure that development is managed in a manner that is in keeping with the national, State, regional and local significance of the Catchment,
· To protect and enhance the environmental quality of the Catchment for the benefit of all users through the management and use of the resources in the Catchment in an ecologically sustainable manner,
· To ensure consistency with local environmental plans and also in the delivery of the principles of ecologically sustainable development in the assessment of development within the Catchment where there is potential to impact adversely on groundwater and on the water quality and river flows within the Georges River or its tributaries,
· To establish a consistent and coordinated approach to environmental planning and assessment for land along the Georges River and its tributaries and to promote integrated catchment management policies and programs in the planning and management of the Catchment,
28. The proposed stormwater drainage system has been assessed by Council’s Development Engineer and has been found to be satisfactory. Specific stormwater conditions have been imposed in this regard.
Draft Environmental Planning Instruments
DRAFT ENVIRONMENTAL STATE ENVIRONMENTAL PLANNING POLICY
29. The Draft Environment SEPP was exhibited from 31 October 2017 to 31 January 2018. This consolidated SEPP proposes to simplify the planning rules for a number of water catchments, waterways, urban bushland and Willandra Lakes World Heritage Property. Changes proposed include consolidating the following seven existing SEPPs:
· State Environmental Planning Policy No. 19 – Bushland in Urban Areas;
· State Environmental Planning Policy (Sydney Drinking Water Catchment) 2011;
· State Environmental Planning Policy No. 50 – Canal Estate Development;
· Greater Metropolitan Regional Environmental Plan No. 2 – Georges River Catchment;
· Sydney Regional Environmental Plan No. 20 – Hawkesbury-Nepean River (No.2-1997);
· Sydney Regional Environmental Plan (Sydney Harbour Catchment) 2005;
· Willandra Lakes Regional Environmental Plan No. 1 – World Heritage Property.
30. The proposal is not inconsistent with the provisions of this Draft Instrument.
DRAFT REMEDIATION OF LAND STATE ENVIRONMENTAL PLANNING POLICY
31. The Draft Remediation of Land SEPP was exhibited from 31 January 2018 to 13 April 2018. The proposed remediation of land SEPP will:
· Provide a state-wide planning framework for the remediation of land;
· Maintain the objectives and reinforce those aspects of the existing framework that have worked well;
· Require planning authorities to consider the potential for land to be contaminated when determining development applications and rezoning land;
· Clearly list the remediation works that require development consent;
· Introduce certification and operational requirements for remediation works that can be undertaken without development consent.
32. The proposal is not inconsistent with the provisions of this Draft Instrument as there is no evidence this site is contaminated based on previous uses.
HURSTVILLE LOCAL ENVIRONMENTAL PLAN 2012
33. The extent to which the proposed development complies with the Hurstville Local Environmental Plan 2012 (HLEP 2012) is detailed and discussed in the table below.
34. The allotment is zoned R2 – Low Density Residential Zone and ‘dual occupancy’ is a permitted use with consent. It is noted that the proposed demolition works, and the construction of swimming pools, outbuildings, and the front fence are considered ancillary to the primary use of ‘dual occupancy’ and are also a permitted form of development with consent.

Figure 4: Zoning Map – site outlined in blue
|
Clause |
Standard |
Proposed |
Complies |
|
Part 1 Preliminary |
|||
|
1.2 – Aims of the Plan |
In accordance with Clause 1.2 (2). |
The development is consistent with the aims of the plan. |
Yes |
|
1.4 – Definitions |
Dual occupancy means a dual occupancy (attached) or a dual occupancy (detached).
dual occupancy (attached) means 2 dwellings on one lot of land that are attached to each other, but does not include a secondary dwelling. |
The proposed development is consistent with the dual occupancy definition. |
Yes
|
|
Part 2 Permitted or prohibited development |
|||
|
2.3 – Zone objectives and Land Use Table |
Meets objectives of R2- Low Density Residential Zone:
· To provide for the housing needs of the community within a low density residential environment. · To enable other land uses that provides facilities or services to meet the day to day needs of residents. · To encourage development of sites for a range of housing types, where such development does not compromise the amenity of the surrounding area, or the natural or cultural heritage of the area. · To ensure that a high level of residential amenity is achieved and maintained. · To encourage greater visual amenity through maintaining and enhancing landscaping as a major element in the residential environment. · To provide for a range of home business activities where such activities are not likely to adversely affect the surrounding residential amenity. |
The proposal satisfies the objectives of the R2 zone and is permissible with development consent. |
Yes |
|
Part 4 Principal development standards |
|||
|
4.1A – Minimum lot size for dual occupancies and multi dwelling housing |
Dual occupancy – 630sqm if land identified as “G” on lot size map |
897.9sqm |
Yes |
|
4.1B – Exception to minimum sizes for dual occupancies |
Subdivision may be granted if there is a constructed dual occupancy and after the subdivision there will only be 1 dwelling per lot |
As there is no lawfully erected dual occupancy on the land, development consent cannot be granted for the subdivision of the land pursuant to this clause. A condition of consent is to be imposed excluding subdivision from this determination. |
Yes |
|
4.3 – Height of Buildings |
9m as identified on Height of Buildings Map |
Dwelling 1: 7.5m
Dwelling 2: 7.25m
Outbuildings:
Dwelling 1: 3.0m Dwelling 2: 2.87m |
Yes |
|
4.4 – Floor space ratio |
(2) The maximum floor space ratio for a building on any land is not to exceed the floor space ratio shown for the land on the Floor Space Ratio Map.
0.6:1 or 538.74sqm |
0.59:1 or 531sqm (includes rear outbuilding enclosed studio and bathrooms) |
Yes |
|
Part 5 Miscellaneous provisions |
|||
|
5.10 – Heritage conservation |
(2) Requirement for consent Development consent is required for any of the following—
(a) demolishing or moving any of the following or altering the exterior of any of the following (including, in the case of a building, making changes to its detail, fabric, finish or appearance)—
(i) a heritage item, (ii) an Aboriginal object, (iii) a building, work, relic or tree within a heritage conservation area, |
Site has not been identified as a heritage item nor located in a heritage conservation area as per the HLEP 2012 Heritage Map.
|
Yes
|
|
Part 6 Additional local provisions |
|||
|
6.1 – Acid sulfate soils |
(2) Development consent is required for the carrying out of works described in the table to this subclause on land shown on the Acid Sulfate Soils Map as being of the class specified for those works. |
The site has not been identified as located in an area containing Acid Sulfate soils as per HLEP 2012 Acid Sulfate Soils Map. |
Yes
|
|
6.7 – Essential services |
Development consent must not be granted to development unless the consent authority is satisfied that any of the following services that are essential for the development are available or that adequate arrangements have been made to make them available when required— (a) the supply of water, (b) the supply of electricity, (c) the disposal and management of sewage, (d) stormwater drainage or on-site conservation, (e) suitable road and vehicular access. |
All essential services are available for the subject site.
|
Yes |
DRAFT GEORGES RIVER LOCAL ENVIRONMENTAL PLAN 2020
35. Consideration is given to the provisions of Draft Georges River Local Environmental Plan 2020 in the assessment this application.
36. In this regard, the provisions have no determining weight as a result of proposed operation of Clause “1.8A Savings provisions relating to development applications” of the Draft Plan which provides “If a development application has been made before the commencement of this Plan in relation to land to which this Plan applies and the application has not been finally determined before that commencement, the application must be determined as if this Plan had not commenced.”
DEVELOPMENT CONTROL PLANS
37. The proposal has been assessed under the relevant sections of the Hurstville Development Control Plan No.1 as follows.
|
DCP Control |
Standard |
Proposed |
Complies |
|
4.3 Dual Occupancy |
|||
|
PC1 – Min. site area and frontage for dual occupancy: |
DS1.1. 630sqm for land located outside of the FSPA
DS1.2. a. 15m for an attached dual occupancy |
897.9sqm
17.59m |
Yes
Yes |
|
PC2 – Building height |
DS2.1. Max. 6.8m wall height
DS2.3. Existing ground level is not excavated more than 600mm in accordance with the Exempt and Complying provisions for on-site cut and fill for the finished ground floor level. |
Dwelling 1 - 6.95m Dwelling 2 - 6.7m
|
Refer to comment
below Yes
|
|
PC2 - Building height The maximum wall height for dual occupancies under the Hurstville DCP No.1 is 6.8m pursuant to control DS2.1. Dwelling 1 has a wall height of 6.95m, which represents a 0.15m departure from the requirement or 2.2% variation.
The subject site has a crossfall from the south eastern boundary to the north western boundary which results in a slight variation being observed along the lower side. The dual occupancy as proposed is well below the 9.0m LEP height limit and complies with the wall height along the lower side.
It is considered that the exceeding wall height does not result in an unreasonable environment impact, with the adjoining neighbour to the north west maintaining the required 3 hours of direct sunlight between 12:00pm and 3:00pm midwinter. Despite the numeric non-compliance of the wall height the relevant objectives of PC2 in HDCP No.1 are achieved. |
|||
|
PC3 – Setbacks:
Front:
Side:
Rear:
|
DS3.1. 5.5m to the main face of the dwelling
DS3.5. The minimum side setback outside the FSPA is 900mm (ground floor) and 1.2m (first floor).
DS3.9. A minimum rear setback of 7m to the ground floor level solid wall must be provided.
DS3.10. A minimum rear setback of 9m to the first floor level solid wall must be provided. |
5.5m
Ground floor: South eastern: 1.0m North western: 1.0m
First floor: South eastern: 1.2m North western: 1.2m
In excess of 7.0m
In excess of 9.0m |
Yes
Yes
Yes
Yes
Yes
|
|
PC3 – Solar Access |
DS4.1. Development allows for at least 3 hours of sunlight on the windows of main living areas and adjoining principal private open space of adjacent dwellings between 9.00am and 3.00pm on 21 June |
Proposed development allows for at least 3 hours of sunlight on the windows of the main living areas and adjoining principal private open space of adjacent dwellings between 12:00pm and 3.00pm on 21 June. |
Yes
|
|
PC5 – Visual Privacy |
DS5.4. First floor balconies located at the rear of dwellings must incorporate fin walls or privacy screens on the side to prevent over-looking |
No balconies are proposed. |
N/A |
|
PC6 – Noise |
DS6.1. Noise generators such as plant and machinery including air conditioning units and pool pumps are located away from windows or other openings of habitable rooms, screened to reduce noise or acoustically enclosed. |
Proposed pool pumps are located away from adjoining neighbours.
The pool pump located along the rear of Dwelling 1 will require acoustic treatment or be setback at least 450mm from the shared boundary. A condition of consent will be imposed in this regard. |
Yes |
|
PC7 – Vehicle access, parking and manoeuvring |
DS7.1. Each dwelling is to provide one (1) garage and one (1) driveway space (unless otherwise provided for in the building envelope).
DS7.2. Garages are to be setback a minimum 5.5m from the front property alignment and recessed a minimum 300mm into the facade of the building.
DS7.4. Driveways are a minimum width of 3m wide and a maximum of 6m |
One shared driveway crossing leads to a single garage per dwelling with a hard stand forward of the garage.
Dwelling 1: 6.1m Dwelling 2: 6.1m
Both garages are setback 600mm from the main building face.
Each internal driveway is 3.0m wide, with the shared vehicular crossing being 5.0m. Prior to the release of the subdivision certificate, the driveway leading to Dwelling 1 will require a right of carriage way to be create to benefit Dwelling 2 to facilitate lawful access to the garage of Dwelling 2. |
Yes
Yes
Yes
|
|
PC9 – Streetscape character |
DS9.1. Dual occupancies are to address all street frontages.
DS9.4. The design of the front of the dual occupancy development is to incorporate at least two of the following design features: a. entry feature b. awnings, louvers, shutters or other features over windows c. balcony or window box treatment to any first floor element d. recessed or projection of prominent architectural elements to visibly break up the facade and avoid blank wall appearance e. open verandahs f. use of bay windows or similar features along the façade g. verandahs, pergolas or similar features above garage doors
DS9.7. The maximum roof pitch is 35 degrees. |
Both occupancies address Salisbury Street.
Both occupancies incorporate an entry feature, and recessed and projected architectural elements.
Flat roof proposed |
Yes
Yes
Yes
|
|
PC11 – Balconies |
DS11.1. The maximum depth for a rear balcony on the first floor is 2m and it incorporates fin walls or privacy screens to minimise overlooking into the rear yards of other premises |
No rear balconies are proposed. |
Yes |
|
PC13 – Front fencing |
DS13.1. Front fences: a. are a maximum height of 1m. |
1m
|
Yes
|
|
PC14 – Landscaped areas and private open space |
DS14.1. Where located outside the FSPA, a minimum of 20% of site area is landscaped open space.
DS14.5. The minimum dimension of landscaped open space is 2m in any direction.
DS14.3. An area of Principal Private Open Space is to be provided which:
a. is provided at ground level
b. has a minimum dimension of 4m x 5m
c. is not steeper than 1 in 20
d. is directly accessible from a main living area
e. may include a covered patio area |
Dwelling 1 and 2 21.6% or 194sqm
Yes
Dwelling 1 and 2 At ground level
Dwelling 1 In excess of 4.0m x 5.0m
Dwelling 2: In excess of 4.0m x 5.0m
Dwelling 1 and 2 Not steeper than 1 in 20
Dwelling 1 and 2 Accessed from main kitchen, dining and family area.
Dwelling 1and 2 Include an alfresco area |
Yes
Yes
Yes
Yes
Yes
Yes
Yes
Yes
|
|
PC15 – Stormwater |
Stormwater management is in accordance with the provisions contained in Section 4.4 Dwelling Houses on Standard Lots |
Drainage by gravity to Salisbury Street kerb and Council’s drainage system. The application was referred to Council’s Development Engineer and specific conditions have been imposed. |
Yes |
|
PC16 – Site utilities |
DS16.2. Each dwelling must provide adequate space for the storage of garbage and recycling bins (a space of at least 3m by 1m must be provided).
DS16.4. Six (6) cubic metres per dwelling is set aside exclusively for general storage. This space may be provided as an extension of a carport or garage, or in the form of an internal cupboard or attic |
Space for storage of bins has been provided for both dwellings.
Storage space for both dwellings has been provided. |
Yes
Yes |
|
PC4 – Significant trees and vegetation |
DS3.1 Site layout and design, including buildings, structures and hardstand, ensures the long term retention and health of existing significant trees and vegetation. |
The proposed removal of six (6) onsite trees has been assessed and supported by Council’s Consultant Arborist. The two (2) street trees will be retained and protected. |
Yes |
|
4.7 Outbuildings |
|||
|
PC2 – Building height |
DS2.1. Maximum height is 3m |
3.0m |
Yes |
|
PC3 – Setbacks |
DS3.1. Minimum setbacks for garages, gyms, cabanas and sheds are 900mm |
1.0m from the side and rear boundaries. |
Yes |
|
PC5 – External finishes and claddings |
DS5.1. External finishes and claddings have low reflectivity |
A condition will be imposed requiring low reflectivity materials to be used. |
Yes, by condition |
|
5.6 Swimming Pools & Spas |
|||
|
PC1 – Pool Siting and Noise Control |
DS1.1. In-ground swimming pools shall be built so that the top of the swimming pool is as close to the existing ground level as possible. On sloping sites this will often mean excavation of the site on the high side to obtain the minimum out of ground exposure of the swimming pool at the low side
DS1.5. Filling is not permitted between the swimming pool and the property boundary.
DS1.7. Swimming pools are to be constructed so that the top of the bond beam is as close to ground level as possible.
DS1.10. The swimming pool edge must be at least 1.5 metres from side and rear property boundaries.
DS1.12. Council may require mechanical equipment to be suitable acoustically treated so that noise to adjoining properties is reduced.
DS1.14. Heated swimming pools must utilise energy for heating from renewable energy sources, such as solar heating, heat pumps and gas heating. Swimming pool covers should be used when the swimming pool is not in use |
The proposed in-ground pools are located close to the existing ground level.
No filling proposed between the pools and sire boundaries.
The proposed in-ground pool of dwelling 2 is located 300mm-400mm below ground level along its north eastern side mainly due to the cross fall observed.
In excess of 1.5m from all boundaries (Except common wall).
The pool pump located along the rear of Dwelling 1 will require acoustic treatment or be setback at least 450mm from the shared boundary. A condition of consent will be imposed in this regard.
BASIX certificates have been provided for the proposal.
|
Yes
Yes
Yes
Yes
Yes
Yes
|
|
PC2 – Landscaping |
DS2.1. Tree and shrub planting is to be provided along the adjoining property boundary lines to achieve a reasonable level of privacy. Refer to Appendix 1 for recommended species to use. |
New trees to be planted as per the submitted landscape plan. |
Yes
|
GEORGES RIVER DEVELOPMENT CONTROL PLAN 2020 (INTERIM POLICY)
38. The Interim Policy is a supplementary document, meaning that the current Development Control Plan controls continue to apply if a particular control is not specified in the Interim Policy, or if it is still considered best practice. All operative Development Control Plans still legally apply. Whilst the Interim Policy has no statutory recognition in the assessment of a Development Applications pursuant to the Environmental Planning and Assessment Act 1979, the policy was used as a guide as it is an endorsed position of the Council.
39. In relation to the proposed dwelling house, the proposal does not conflict with the controls of the Interim Policy Development Control Plan.
IMPACTS
Natural Environment
40. The development will not result in any significant adverse impacts on the natural environment. As the proposal seeks to remove six (6) trees, the proposal was referred to Council’s Consultant Arborist who supported the application subject to specific landscape conditions.
Built Environment
41. The built form of the proposed development is of a bulk and scale that is consistent with contemporary dwelling houses in the locality. The dwelling proposes a flat roof which is not inconsistent with recent developments in the locality
42. The proposed works will result in an architectural style that is compatible with the character of the area and consistent in scale with the surrounding development. The materials proposed include painted render, cladding, stone elements and glazed openings. The design incorporates both attractive and functional architectural details which maintain outlook to living spaces whilst maintaining privacy to neighbouring properties.
43. Shadow diagrams for the proposed development indicate shadow cast at 9am, 12 noon and 3pm on the winter solstice (21 June) demonstrate that neighbouring properties will still receive the required solar access.
Social Impact
44. The proposed development is of a scale and form that is consistent with modern development which does not result in a negative social impact.
Economic Impact
45. The proposal will result in a short term positive economic stimulus due to the employment opportunities created by the demolition and construction works.
Suitability of the Site
46. The site is zoned R2 – Low Density Residential, and dwelling houses are a permissible form of development. The proposal is considered to be a suitable form of development in the subject R2 zone.
SUBMISSIONS, REFERRALS AND THE PUBLIC INTEREST
47. The application was notified to adjoining residents between 21 September 2020 and 6 October 2020, no submissions were received in response to this notification.
REFERRALS
Council Referrals
Consultant Arborist
48. The application has been assessed and endorsed by Council’s Consultant Arborist and relevant tree and landscaping conditions have been recommended.
Development Engineering
49. The application has been assessed and endorsed by Council’s Development Engineer. Stormwater related conditions of consent have been imposed.
GIS
50. The application has been referred to Council’s GIS team. Street numbering has been allocated for this development.
External Referrals
Ausgrid
51. The application was referred to Ausgrid as per Clause 45(2) of the State Environmental Planning Policy (Infrastructure) 2007. A response was received stating that no objections raised and no conditions recommended.
Local Infrastructure Contributions
52. The development is subject to Section 7.11 (former Section 94 Contribution) contribution. In accordance with Council’s Section 94 Plan, Section 7.11 – Contribution towards provision or improvement of amenities or services is applicable to residential developments.
53. In this case the levied charge is $20,000.00 which is required to be paid in full prior to the release of any Construction Certificate.
CONCLUSION
54. Development consent is sought for the demolition of existing structures, and construction of an attached two (2) storey dual occupancy, two (2) swimming pools, two (2) outbuildings at the rear, front fencing, landscaping and engineering works at 24 Salisbury Street Penshurst.
55. The proposal has been assessed in accordance with Section 4.15 (1) of the Environmental Planning and Assessment Act, 1979. As discussed throughout this report, the proposal satisfies the R2 Low Density zone objectives, in addition to complying with the relevant State Environmental Planning Policies, Local Environmental Plan and Development Control Plan. The application proposes a minor variation with regards to the wall height which is considered acceptable on merit.
56. The proposal will not result in any unreasonable impact on the amenity of adjoining properties subject to the conditions of consent recommended below.
57. The application is recommended for approval subject to conditions.
DETERMINATION AND STATEMENT OF REASONS
Statement of Reasons
58.
· The proposal is an appropriate response to the site and is consistent with the objectives of the R2 zone and existing developments in the locality.
· The proposed development generally complies with the requirements of the relevant environmental planning instruments and the development control plan.
· The proposed development is well considered and sensitively designed so that it will not result in any unreasonable impact on the natural and built environment.
· The building will not unreasonably affect the amenity of any immediately adjoining properties in terms of unreasonable overlooking, overshadowing or view loss.
· The proposal is not inconsistent with the provisions of Draft Georges River Local Environmental Plan 2020.
· The proposed development is a suitable and planned use of the site and its approval is in the public interest.
Determination
59. THAT pursuant to Section 4.16(1)(a) of the Environmental Planning and Assessment Act 1979 (as amended) Georges River Local Planning Panel grants consent to DA2020/0353 for the demolition of existing structures, and construction of an attached two (2) storey dual occupancy with two (2) swimming pools, two (2) outbuildings to the rear, front fencing, landscaping and engineering works on Lot 20, Section 2 in DP3446 and known as 24 Salisbury Street Penshurst, subject to the following conditions:
Development Conditions
1. Approved Plans - The development must be implemented in accordance with the approved plans and supporting documentation listed below which have been endorsed by Council’s approved stamp, except where marked up on the plans and/or amended by conditions of this consent:
|
Description |
Reference No. |
Date |
Prepared by |
|
Site Plan |
2/20 |
29 October 2020 |
M Cubed Architects |
|
Ground Floor Plan |
3/20 |
29 October 2020 |
M Cubed Architects |
|
First Floor Plan |
4/20 |
29 October 2020 |
M Cubed Architects |
|
Roof Plan |
5/20 |
29 October 2020 |
M Cubed Architects |
|
South Western and North Eastern Elevation plan |
6/20 |
29 October 2020 |
M Cubed Architects |
|
DW1 South East and North Western Elevations plan |
7/20 |
29 October 2020 |
M Cubed Architects |
|
DW2 South East and North Western Elevations plan |
8/20 |
29 October 2020 |
M Cubed Architects |
|
Section Plan |
9/20 |
29 October 2020 |
M Cubed Architects |
|
Pool Plans |
10/20 |
29 October 2020 |
M Cubed Architects |
|
Excavation Plan |
11/20 |
29 October 2020 |
M Cubed Architects |
|
Outbuilding floor and roof plan |
12/20 |
29 October 2020 |
M Cubed Architects |
|
Outbuilding Elevation and Section Plan |
13/20 |
29 October 2020 |
M Cubed Architects |
|
Landscape Plans |
Job 200257 sheets 1, 2 and 3 |
26 August 2020 |
Dapple Designs |
|
Schedule of Colours and Finishes |
24 Salisbury Street Penshurst |
- |
M Cubed Architects |
Separate Approvals Required Under Other Legislation
2. Section 138 Roads Act 1993 and Section 68 Local Government Act 1993 - Unless otherwise specified by a condition of this consent, this Development Consent does not give any approval to undertake works on public infrastructure.
Separate approval is required under Section 138 of the Roads Act 1993 and/or Section 68 of the Local Government Act 1993 for any of the following activities carried out in, on or over a public road (including the footpath) listed below.
An application is required to be lodged and approved prior to the commencement of any of the following works or activities;
(a) Placing or storing materials or equipment;
(b) Placing or storing waste containers or skip bins;
(c) Erecting a structure or carrying out work
(d) Swinging or hoisting goods over any part of a public road by means of a lift, crane or the like;
(e) Pumping concrete from a public road;
(f) Pumping water from the site into the public road;
(g) Constructing a vehicular crossing or footpath;
(h) Establishing a “works zone”;
(i) Digging up or disturbing the surface of a public road (eg Opening the road for the purpose of connections to utility providers);
(j) Stormwater and ancillary works in the road reserve;
(k) Stormwater and ancillary to public infrastructure on private land; and
(l) If any excavation is to be supported by the use of below ground (cable) anchors that are constructed under Council’s roadways/footways.
These separate activity approvals must be obtained and evidence of the approval provided to the Certifying Authority prior to the issue of the Construction Certificate.
The relevant Application Forms for these activities can be downloaded from Council’s website www.georgesriver.nsw.gov.au. For further information, please contact Council’s Customer Service Centre on (02) 9330 6400.
3. Driveway Crossing - Minor Development - Constructing a driveway crossing and/or footpath requires a separate approval under Section 138 of the Roads Act 1993 prior to the commencement of those works.
To apply for approval, complete the “Application for Driveway Crossing and Associated Works on Council Road Reserve” issued under Section 138 Roads Act.” which can be downloaded from Georges River Council’s Website at www.georgesriver.nsw.gov.au. Lodge the application form, together with the associated fees at Council’s Customer Service Centre, during business hours. Refer to Section P1 and P2, in Council’s adopted Fees and Charges for the administrative and inspection charges associated with Driveway Crossing applications.
An approval for a new or modified driveway crossing will contain the approved access and/or alignment levels which will be required to construct the crossing and/or footpath. Once approved, all work shall be carried out in accordance with Council’s specifications applicable at the time, prior to the issue of an Occupation Certificate.
The design boundary level is to be received from Council prior to construction of the internal driveway
4. Road Opening Permit - A Road Opening Permit must be obtained from Council, in the case of local or regional roads, or from the RMS, in the case of State roads, for every opening of a public road reserve to access services including sewer, stormwater drains, water mains, gas mains, and telecommunications before the commencement of work in the road.
Requirements of Concurrence, Integrated & Other Government Authorities
5. Sydney Water - Tap in TM - The approved plans must be submitted to a Sydney Water Tap inTM to determine whether the development application will affect Sydney Water’s sewer and water mains, stormwater drains and/or easements, and if further requirements need to be met. The approved plans will be appropriately endorsed. For details please refer to ‘Plumbing, building and developing’ section of Sydney Water’s web site at www.sydneywater.com.au then see ‘Building’, or telephone 13000 TAP IN (1300 082 746). The Certifying Authority must ensure that a Tap inTM agent has appropriately stamped the plans prior to the issue of the Construction Certificate.
·
6. Notice of Requirements for a Section 73 Certificate - A Notice of Requirements of what will eventually be required when issuing a Section 73 Compliance Certificate under the Sydney Water Act 1994 <http://legislation.nsw.gov.au/> must be obtained from Sydney Water Corporation. Application must be made through an authorised Water Servicing Co-ordinator. Please refer to the ‘Plumbing, building and developing’ section of the web site www.sydneywater.com.au <http://www.sydneywater.com.au> then refer to ‘Providers’ under ‘Developing’ or telephone 13 20 92 for assistance.
Following application, a ‘Notice of Requirements’ will advise of water and sewer infrastructure to be built and charges to be paid. Please make early contact with the Co-ordinator, as it can take some time to build water/sewer pipes and this may impact on other services and building, driveway or landscape design.
The Notice of requirements must be submitted prior to the commencement of work. A Section 73 Compliance Certificate will be required at the completion of development in accordance with further conditions.
Prior to the Issue of a Construction Certificate
7. Low reflectivity roof - Roofing materials must be low glare and reflectivity. Details of finished external materials including colours and texture must be provided to the Certifying Authority.
8. Stormwater System - Silt Arrestor- A Silt Arrestor Pit must be located inside the property just upstream of the point of discharge from the site for both dwellings. This pit must have minimum dimensions of 450mm x 450mm and shall have a 150mm deep sump and galvanised mesh screen permanently fixed over the outlet pipe or pipes. A minimum of 4 x 30mm diameter seepage holes shall be provided in the pit base. For drainage into the surrounding soil, the pit base shall be constructed on a layer of 200mm thick aggregate base wrapped in geotextile fabric. All non-plastic drainage pits must be benched and streamlined.
9. Stormwater System - Gravity to the Kerb and Gutter- All stormwater shall drain by gravity to Council's kerb and gutter directly in front of the development site in accordance with the Australian/New Zealand Standard AS/NZS 3500.3: 2015 (as amended).
10. Pre-Construction Dilapidation Report - Private Land - A professional engineer specialising in structural or geotechnical engineering shall prepare a Pre-Construction Dilapidation Report detailing the current structural condition of adjoining premises including but not limited to:
(a) All adjoining and neighbouring buildings likely to be affected by the excavation as determined by the consulting engineer.
The report shall be prepared at the expense of the applicant and submitted to the satisfaction of the Certifying Authority prior to the issue of the Construction Certificate.
A copy of the pre-construction dilapidation report is to be provided to the adjoining properties (subject of the dilapidation report), a minimum of 5 working days prior to the commencement of work. Evidence confirming that a copy of the pre-construction dilapidation report was delivered to the adjoining properties must be provided to the PCA.
Should the owners of properties (or their agents) refuse access to carry out inspections, after being given reasonable written notice, this shall be reported to Council to obtain Council’s agreement to complete the report without access. Reasonable notice is a request for access in no sooner than 14 days between 8.00am-6.00pm.
11. Geotechnical report - The applicant must submit a Geotechnical Report, prepared by a professional and suitably qualified engineer specialising in geotechnical engineering who holds the relevant accreditation (if applicable) in relation to dilapidation reports, all site works and construction. This is to be submitted before the issue of the Construction Certificate and is to include:
(a) Investigations certifying the stability of the site and specifying the design constraints to be placed on the foundation, any earthworks/stabilization works and any excavations.
(b) Dilapidation Reports on the adjoining properties including, but not limited to (address) and (address) prior to any excavation of site works. The Dilapidation Report is to include assessments on, but not limited to, the dwellings at those addresses and any external paths, grounds etc. This must be submitted to the PCA and the adjoining residents as part of the application for the Construction Certificate. Adjoining residents are to be provided with the report five (5) working days prior to any works on the site.
(c) On-site guidance by a vibration specialist during the early part of excavation.
(d) Measures to minimise vibration damage and loss of support to other buildings. Where possible any excavation into rock is to be carried out with tools such as rock saws which reduce vibration to adjoining buildings and associated structures. Where a hydraulic hammer is to be used within 30 metres of any building (other than a path or a fence) the report shall detail the maximum size of hammer to be used and provide all reasonable recommendations to manage impacts.
(e) Sides of the excavation are to be piered prior to any excavation occurring to reinforce the walls of the excavation to prevent any subsidence to the required setbacks and neighbouring sites.
12. Vehicular Access Grades- The applicant must submit a profile (longitudinal section) demonstrating access clearance by the B85 Design Vehicle (85% percentile vehicle in accordance with AS2890.1 2004)” for the entry.
This profile (scale 1:20) is to show levels and grades from road centreline to the proposed internal garage floor level including but not limited to levels of, road centreline, changes of grade on road surface, lip of gutter, invert of gutter, back of vehicular crossing(gutter layback), front of path, back of path and boundary. The profiles provided are to also include the natural surface of the land as well as the proposed design including cut and fill dimensions.
Additional profiles are to be provided on either side of driveway when longitudinal grade of road exceeds 8%.
The profile will be used to assess suitability of proposed internal driveway levels and does not represent final footpath or road levels. The levels on Councils road related area including boundary level will be verified following the submission of an “Application for Driveway Crossing and Associated Works on Council Road Reserve” issued under Section 138 Roads Act.
13. On-site Stormwater Detention (OSD) - The submitted Concept Stormwater and OSD Plan prepared by Elite Australia Engineering with job reference number 20034 revision C dated 09/11/2020 has been assessed as a concept plan only. Final detailed plans of the drainage system, prepared by a professional engineer specialising in hydraulic engineering, shall be submitted for approval with the Construction Certificate.
The following amendments must be made to the Approved Concept Stormwater Plans:
a) The OSD volume for the site must be increased to minimum 22.6 cubic metres (each tank being a minimum 11.3 cubic metres).
b) The rainwater tanks for each dwelling must be maintained to be a minimum of 2500L each.
c) The discharge grates for the OSD tanks must be outside of the garages and have minimum dimensions of 600mm x 900mm.
d) Sealed access pit lids must be provided within the garages at the opposite corner of the OSD tanks from the discharge grate to facilitate maintenance access.
e) All gutters, downpipes, and stormwater line upstream of the OSD tanks must be sized to cater for the 1%AEP event.
An OSD facility designed by a professional engineer who specialises in Hydraulic engineering must be designed, approved and installed.
The required OSD storage requirements and permissible discharge are to be calculated in accordance with Table 3 of Council’s Stormwater Management Policy.
A minimum 22.6 cubic metre OSD volume (11.3 cubic metres per dwelling) with a maximum design discharge of 13.65 litres per second (6.85 litres per second per dwelling) is to be provided in accordance with the Stormwater Concept Plan and Council’s Stormwater Management Policy.
The OSD facility shall be designed to meet all legislated safety requirements and child proof safety fencing around the facility must be provided where the OSD facility is open or above ground when the design peak storage depth is greater than 300mm. A durable metal plate or similar sign is to be placed at the OSD facility and must bear the words:
"BEWARE: This is an on-site detention basin/tank for rainwater which could overflow during heavy storms."
Full details shall accompany the application for the Construction Certificate.
14. Fees to be Paid - The fees listed in the table below must be paid in accordance with the conditions of this consent and Council’s adopted Fees and Charges applicable at the time of payment (available at www.georgesriver.nsw.gov.au).
Payments must be made prior to the issue of the Construction Certificate or prior to the commencement of work (if there is no associated Construction Certificate).
Please contact Council prior to the payment of Section 7.11 Contributions to determine whether the amounts have been indexed from that indicated below in this consent and the form of payment that will be accepted by Council.
Council will only accept Bank Cheque or Electronic Funds Transfer (EFT) for transaction values of $500,000 or over. Council must be contacted prior to payment to determine correct total amount to be paid and bank account details (if applicable).
A summary of the fees to be paid are listed below:
|
Fee Type |
Fee |
|
GENERAL FEES |
|
|
Long Service Levy (to Long Service Corporation) Or, provide evidence of Payment direct to the Long Service Corporation. See https://portal.longservice.nsw.gov.au/bci/levy/ |
|
|
Builders Damage Deposit |
$1,900.00 |
|
Inspection Fee for Refund of Damage Deposit |
$155.00 |
|
DEVELOPMENT CONTRIBUTIONS |
|
|
Hurstville Section 94 Development Contributions Plan 2012 - Residential (Community Facilities) |
$2,478.00 |
|
Hurstville Section 94 Development Contributions Plan 2012 - Residential (Open Space, Recreation, Public Domain) |
$17,522.00 |
|
Total S7.11 Contributions |
$20,000.00 |
General Fees
The fees and charges above are subject to change and are as set out in the version of Council's Schedule of Fees and Charges or as required by other Government Authorities, applicable at the time of payment.
Development Contributions
The Section 7.11 contribution is imposed to ensure that the development makes adequate provision for the demand it generates for public amenities and public services within the area.
Indexation
The above contributions will be adjusted at the time of payment to reflect changes in the cost of delivering public amenities and public services, in accordance with the indices provided by the relevant Section 94 Development Contributions Plan.
Timing of Payment
The contribution must be paid and receipted by Council prior to the release of the Construction Certificate.
Further Information
A copy of the all current Development Contributions Plans may be inspected or a copy purchased at Council’s offices (Georges River Civic Centre, MacMahon Street, Hurstville and Kogarah Library and Service Centre, Kogarah Town Square, Belgrave Street, Kogarah) or viewed on Council’s website www.georgesriver.nsw.gov.au.
15. Damage Deposit - Minor Works - In order to insure against damage to Council property the following is required:
(a) Pay Council, before the issue of the Construction Certificate, a damage deposit for the cost of making good any damage caused to any Council property as a result of the development: $1,900.00
(b) Pay Council, before the issue of the Construction Certificate, a non-refundable inspection fee to enable assessment of any damage and repairs where required: $155.00
(c) Submit to Council, before the commencement of work, a photographic record of the condition of the Council nature strip, footpath and driveway crossing, or any area likely to be affected by the proposal.
At the completion of work Council will inspect the public works, and the damage deposit will be refunded in full upon completion of work where no damage occurs. Otherwise the amount will be either forfeited or partly refunded according to the amount of damage.
16. Site Management Plan - A Site Management Plan detailing all weather access control points, sedimentation controls, fencing, builder’s site sheds office, amenities, materials storage and unloading arrangements must be submitted with the application for the Construction Certificate.
17. Required Design Changes - The following changes are required to be made and shown on the Construction Certificate plans:
(a) Pool pump of Dwelling 1 is to setback at least 450mm from the shared common wall or be acoustically treated so as to not produce a sound level exceeding 5 dB(A) above the ambient background level at the closest neighbouring boundary (being the adjoining Dwelling 2) between the hours of 8:00am and 10:00pm on Saturdays, Sundays and Public Holidays and between the hours of 7:00am and 10:00pm on any other day.
If the pool pump is to be setback as per the above, it can be relocated to any other part of the rear yard as long as it is setback 450mm from all boundaries (including shared boundary with Dwelling 2).
18. BASIX Commitments - All energy efficiency measures as detailed in the BASIX Certificates No. 1126119S_02 (dated 13 August 2020) and 1126130S (dated 12 August 2020) must be implemented on the plans lodged with the application for the Construction Certificate.
19. Erosion & Sedimentation Control - Erosion and sediment controls must be provided to ensure:
(a) Compliance with the approved Erosion & Sediment Control Plan
(b) Removal or disturbance of vegetation and top soil is confined to within 3m of the approved building area (no trees to be removed without approval)
(c) All clean water runoff is diverted around cleared or exposed areas
(d) Silt fences, stabilised entry/exit points or other devices are installed to prevent sediment from entering drainage systems or waterways
(e) All erosion and sediment controls are fully maintained for the duration of demolition, excavation and/or development works
(f) Controls are put into place to prevent tracking of sediment by vehicles onto adjoining roadway
(g) All disturbed areas are rendered erosion-resistant by turfing, mulching, paving or similar
(h) Compliance with Managing Urban Stormwater - Soils and Construction (Blue Book) produced by Landcom 2004.
These measures are to be implemented prior to the commencement of work (including demolition and excavation) and must remain until works are completed and all exposed surfaces are landscaped/sealed.
20. Stormwater System - The submitted stormwater plan has been assessed as a concept plan only. Final detailed plans of the drainage system, prepared by a professional engineer specialising in hydraulic engineering, shall be submitted for approval with the Construction Certificate.
(a) All stormwater shall be drained in accordance with the Australian/New Zealand Standard AS/NZS 3500.3: 2015 (as amended).
(b) Stormwater drainage plans including pipe sizes, type, grade, length, invert levels, dimensions and types of drainage pits prepared by a professional engineer who specialises in Hydraulic Engineering in accordance with the Australian Institute of Engineers Australian Rainfall and Runoff (1987) and Council's Stormwater Drainage Guidelines, shall accompany the application for the Construction Certificate.
21. Compliance with Swimming Pool Act 1992 - The alterations and additions to the dwelling house and/or the construction of the new dwelling house subject of this consent must not generate any non-compliances with the Swimming Pools Act 1992, Swimming Pool Regulation 2008, Building Code of Australia and/or AS 1926.1-2007 - Swimming Pool Safety. Details of compliance to be illustrated on the plans lodged with the application for the Construction Certificate.
22. Stormwater Drainage Plan Details - Stormwater drainage plans including pipe sizes, type, grade, length, invert levels, dimensions and types of drainage pits prepared by a professional engineering specialising in hydraulic engineering shall be submitted with the Construction Certificate application.
These plans shall be prepared in accordance with the Australian Institute of Engineers Australian Rainfall and Runoff (1987) and Council's Hurstville Development Control Plan 1 which includes Appendix 2.
23. Structural details - Engineer's details prepared by a practising Structural Engineer being used to construct all reinforced concrete work, structural beams, columns and other structural members. The details are to be submitted to the Principal Certifying Authority for approval prior to construction of the specified works.
A copy shall be forwarded to Council where Council is not the PCA.
24. Swimming Pools - Use and Maintenance - The following apply to the construction, use and maintenance of swimming pools and spas:
(a) no ground level may be raised or filled except where shown specifically on the approved plans;
(b) all pool/spa waste water is to be discharged to the sewer according to the requirements of Sydney Water;
(c) the swimming pool must not be used for commercial or professional purposes;
(d) drain paved areas to the landscaped areas or a suitable lawful drainage system; and
(e) arrange any external pool/spa lighting to minimise glare nuisance to adjoining owners.
25. Traffic Management - Compliance with AS2890 - All driveways, access ramps, vehicular crossings and car parking spaces shall be designed and constructed in accordance with the current version of Australian Standards, AS 2890.1 (for car parking facilities) and AS 2890.2 (for commercial vehicle facilities).
26. Waste Management Plan - A Waste Management Plan incorporating all requirements in respect of the provision of waste storage facilities, removal of all materials from the site that are the result of site clearing, extraction, and, or demolition works and the designated Waste Management Facility shall be submitted to the Certifying Authority prior to the issue of any Construction Certificate.
27. Landscape Plan - All landscape works shall be carried out in accordance with the approved landscape plans and specifications, drawn by Dapple Designs, Ref No LP01, SHEETS 1 - 3 and dated 26/08/20. The landscaping shall be maintained in accordance with the approved plans in perpetuity, subject to the following –
(a) In accordance with Georges River Tree Management Policy 2019, a 2:1 Policy is to be implemented. For every one (1) tree to be removed, two (2) trees shall be planted on the subject site to compensate for the loss of each tree.
(b) The two (2) Council street trees must be retained and protected.
(c) For the removal of six (6) trees over 3m in height, an additional twelve (12) trees must be planted with, six (6) in each dwellings site, be of Australian native Spp and be selected from Georges River Councils, Tree Management Plan, Appendix 1 - Tree Planting. The tree/s shall be a minimum 45 litre pot/ bag size and be able to reach a height at maturity of nine (9) metres.
(d) All twelve (12) trees proposed forming part of this consent, shall comply with AS 2303 - 2018, Tree Stock for Landscape use and NATSPEC Specifying Trees: a guide to assessment of tree quality (2003), and be planted and maintained in accordance with Councils standard specification;
(e) If the planted twelve (12) trees and plants are found to be faulty, damaged, dying or dead within twelve (12) months of planting then they must be replaced with the same species. If the trees are found dead before they reach a height where they are protected by Councils Tree Management Controls, they must be replaced with the same species and pot/bag size;
28. Tree Protection and Retention - The following trees shall be retained and protected.
The revised plans by M Cubed Architects must be used for the purposes of the new driveway entrance configuration;
- Site Plan, dated 29 October (2/20)
- Ground Drainage Plan, Dwg No SW01, Rev C, Dated 9/11/20
|
Tree Species |
Location of Tree / Tree No. |
Tree Protection Zone (metres) TPZ as per AS4970 -2009 |
|
Lophostemon confertus |
Council’s street tree - south |
7 metres radially out from its trunk. |
|
Lophostemon confertus |
Council’s street tree - north |
4.5 metres radially out from its trunk |
|
Liquidambar styraciflua |
Neighbours tree, rear yard of 22 Salisbury St |
7.3 metres |
|
Murraya paniculata |
Within front yard of 26 Salisbury St |
3.0 metres radially out from its trunk |
|
Syzygium Spp |
Within front yard of 26 Salisbury St |
2.0 metres radially out from its trunk |
(a) The client must engage a qualified Arborist who holds an AQF Level 5 or above in Arboriculture and who is a current practicing and financial member of an Arboricultural Association or Affiliation, with a letter of engagement forwarded to the nominated PCA.
(b) A certificate of compliance letter from the AQF 5 Arborist must be forwarded to the PCA - Principal Certifying Authority, at three (3) stages being, before works, during works and once all building works have been completed, that tree protection measures have been installed and being maintained during the building process.
Tree Protection Measures
(c) The proposed driveway excavations close to Councils street tree must be under the guidance of the engaged AQF 5 Arborist to oversee excavations no closer than two (2) metres from Councils street tree.
(d) All excavations within the TPZ of Councils street trees for the purposes of the driveway must be conducted using ‘Air spade” or Hydro Vac” type of non-destructive excavations. No machinery excavator/ bucket type of machinery is permitted.
(e) The excavations for the purposes of building, footings and stormwater piping within the TPZ of 7.3 metres of the neighbours Liquidambar styraciflua must be completed by non-destructive methods of excavation such as “Air spade” or “Hydro Vac” with findings and photographs tabled by the engaged AQF 5 Arborist and forwarded to the nominated PCA, to verify that the impacts by this proposal will not jeopardise the viability or ongoing retention of the neighbours tree, if compliant prior to the issue of an Occupation Certificate.
(f) All trees on Council property, subject site and adjacent sites, to be retained must be protected before site set up and maintained during demolition, excavation and construction of the site.
(g) The excavations for the purposes of stormwater exiting the site for No 24 and within the TPZ of Councils street trees must be completed by non-destructive methods of excavation such as “Air spade” or “Hydro Vac” with findings and photographs tabled by the engaged AQF 5 Arborist and forwarded to the nominated PCA, to verify that the impacts by the stormwater installations will not jeopardise the viability or ongoing retention of the neighbours tree, if compliant prior to the issue of an Occupation Certificate.
(h) Although trees may be on adjacent sites, the tree protection fencing must be placed on the nominated distances as per table above, out from the trees trunk, within the subject site to minimise impacts to neighbours trees and kept for the entirety of the project.
(i) The tree protection measures must be in undertaken in accordance AS4970 -2009 Protection of trees on development sites.
(j) Details of the tree protection measures to be implemented must be provided with the application for a Construction Certificate by a qualified Arborist who holds an AQF Level 5 or above in Arboriculture and who is a current practicing and financial member of an Arboricultural Association or Affiliation.
(k) The engaged AQF 5 Consulting Project Arborist must be present on-site during the stages of site set up, excavation, demolition and construction when works are being undertaken that could impact on the tree canopy or root zone within the tree protection zone of each tree.
(l) In accordance with AS 4970-2009 Protection of trees on development sites, a protective fence consisting of 2.4 x 1.8 metres high, fully supported chainmesh fence shall be used. The distance of the fence out from the base of each tree is to be in accordance with the TPZ listed in the table above. A layer of organic mulch 100 millimetres thick shall be placed over the protected area and no soil or fill should be placed within the protection area.
(m) The tree protection fencing must be kept in place during demolition, excavation and construction and also have a sign displaying ‘Tree Protection Zone - DO NOT ENTER’ attached to the fence and must also include the name and contact details of the Project Arborist.
(n) To preserve the Councils street tree and protection from machinery, no work shall commence until the Tree Protection Zone has been protected with 100mm of organic mulch laid, timber sleepers at 200mm x 100mm laid over the top and secured with metal framing bands as per AS4970-2009, clause 4.5.3 Ground protection under the guidance of the engaged AQF 5 Arborist.
(o) The Tree Protection Zone of each tree, to be protected, shall be watered thoroughly and regularly to minimise the effects of construction works.
(p) No building products, preparation of building products, storage of materials, stockpiling, site sheds or services shall be installed within the TPZ of the trees to be retained.
Excavation works near tree to be retained
(q) Excavations around the trees to be retained on site, adjoining properties, and Councils trees shall be supervised by the AQF 5 Project Arborist to ensure that the root system will not adversely be affected, for compliance.
(r) Where the Tree Protection Zone (TPZ) of trees on site or adjoining sites become compromised by any excavation works, the AQF 5 Project arborist shall be consulted to establish the position of any major roots and determine the necessary measures to protect these roots. The recommendations of the Arborist shall be submitted to Council prior to any further demolition or construction works taking place.
(s) Tree Protection Zones around the trees to be retained are not to have soil level changes, building product / materials stored or services installed in this area. Any structures proposed to be built in this area of the trees are to utilise pier and beam or cantilevered slab construction.
29. Tree Removal & Replacement - Tree removal - In accordance with Georges River Tree Management Policy 2019, a 2:1 Policy is to be implemented. For every one (1) tree to be removed, two (2) trees shall be planted on the subject site to compensate for the loss of each tree, with exempt Species replacement being 1:1.
Permission is granted for the removal of the following trees:
|
Tree Species |
Number of trees |
Location |
|
Cupaniopsis anacardioides |
X1 |
Rear yard of site |
|
Magnolia grandiflora |
X1 |
Rear yard of site |
|
Prunus Spp |
X2 |
Side of dwelling, north |
|
Camellia japonica |
X1 |
Within site, front north west corner |
|
Lagerstroemia indica |
X1 |
Within site, front side fence |
General Tree Removal Requirements
(a) All tree removal shall be carried out by a minimum certificate Level 3, Licenced and insured Tree Surgeon/Arborist to ensure that removal is undertaken in a safe manner and complies with the AS 4373-2007 - Pruning of Amenity Trees and Tree Works Industry Code of Practice (Work Cover NSW 1.8.98).
(b) No trees are to be removed on the site or neighbouring properties without the prior written approval of Council.
|
Summary |
|
|
Number of trees removed from site |
X6 |
|
Number of trees required as per offset scheme (2:1 ratio) |
X12 |
|
Number of trees that must be planted within the site and signed off by the engaged AQF 5 Horticulturist. |
X12 |
30. Allocation of street addresses - In order to comply with AS/NZS 4819:2011 Rural and Urban Addressing & the NSW Addressing User Manual (Geographical Names Board of NSW) and Georges River Council’s requirements, the street addresses for the subject development must be allocated as follows:
|
Description on DA plan |
Location within development |
Proposed street address to comply with AS/NZS 4819:2011 and NSW Addressing Manual |
|
Proposed DW1 |
North western lot |
24A Salisbury Street, Penshurst NSW 2222 |
|
Proposed DW2 |
South eastern lot |
24 Salisbury Street, Penshurst NSW 2222 |
Details indicating compliance with this condition must be shown on the plans lodged with any Construction Certificate for approval.
Prior to the Commencement of Work (Including Demolition & Excavation)
31. Demolition & Asbestos - The demolition work shall comply with the provisions of Australian Standard AS2601:2001 - Demolition of Structures, NSW Work Health & Safety Act 2011 and the NSW Work Health & Safety Regulation 2011. The work plans required by AS2601:2001 shall be accompanied by a written statement by a suitably qualified person that the proposals contained in the work plan comply with the safety requirements of the Standard. The work plans and the safety statement shall be submitted to the PCA prior to the commencement of works.
For demolition work which involves the removal of asbestos, the asbestos removal work must be carried out by a licensed asbestos removalist who is licensed to carry out the work in accordance with the NSW Work Health & Safety Act 2011 and the NSW Work Health & Safety Regulation 2011 unless specified in the Act and/or Regulation that a license is not required.
All demolition work including the removal of asbestos, shall be undertaken in accordance with the Demolition Code of Practice (NSW Work Cover July 2015).
Note: Copies of the Act, Regulation and Code of Practice can be downloaded free of charge from the SafeWork NSW website: www.SafeWork.nsw.gov.au.
32. Demolition Notification Requirements - The following notification requirements apply to this consent:
(a) The developer /builder must notify adjoining residents five (5) working days prior to demolition. Such notification is to be a clearly written note giving the date demolition will commence, contact details of the developer/builder, licensed asbestos demolisher and the appropriate regulatory authority. Notification is to be placed in the letterbox of every premises (including every residential flat or unit, if any) either side and immediately at the rear of the demolition site.
(b) Five (5) working days prior to demolition, the developer/builder is to provide written notification to Council advising of the demolition date, details of the SafeWork licensed asbestos demolisher and the list of residents advised of the demolition.
(c) On demolition sites where buildings to be demolished contain asbestos, a standard commercially manufactured sign containing the words “DANGER ASBESTOS REMOVAL IN PROGRESS” measuring not less than 400mm x 300mm is to be erected in a prominent visible position (from street frontage) on the site. The sign is to be erected prior to demolition work commencing and is to remain in place until such time as all asbestos material has been removed from the site to an approved waste facility.
33. Demolition work involving asbestos removal - Work involving bonded asbestos removal work (of an area of more than 10 square metres) or friable asbestos removal work must be undertaken by a person who carries on a business of such removal work in accordance with a licence under clause 458 of the Work Health and Safety Regulation 2011.
34. Dial before your dig - The applicant shall contact “Dial Before You Dig on 1100” to obtain a Service Diagram prior to the issuing of the Construction Certificate. The sequence number obtained from “Dial Before You Dig” shall be forwarded to the Principal Certifying Authority (PCA) and Council for their records.
35. Registered Surveyors Report - During Development Work - A report must be submitted to the PCA at each of the following applicable stages of construction:
(a) Set out before commencing excavation.
(b) Floor slabs or foundation wall, before formwork or commencing brickwork.
(c) Completion of Foundation Walls - Before any construction of flooring, detailing the location of the structure relative to adjacent boundaries and floor levels relative to the datum shown on the approved plans.
(d) Completion of Floor Slab Formwork - Before pouring of concrete/walls construction, detailing the location of the structure relative to adjacent boundaries and floor levels relative to the datum shown on the approved plans. In multi-storey buildings a further survey must be provided at each subsequent storey.
(e) Completion of any Pool Formwork - Before concreting of pool shell, detailing the location of the pool relative to the adjacent boundaries and its height relative to the datum shown on the approved plans.
(f) Completion of any Roof Framing - Before roof covered detailing eaves/gutter setback from boundaries.
(g) Completion of all Work - Detailing the location of the structure (including eaves/gutters) relative to adjacent boundaries and its height relative to the datum shown on the approved plans. A final Check Survey must indicate the reduced level of the main ridge.
Work must not proceed beyond each stage until the PCA is satisfied that the height and location of the building is proceeding in accordance with the approved plans.
36. Utility Arrangements - Arrangements are to be made with utility authorities in respect to the services supplied by those authorities to the development. The cost associated with the provision or adjustment of services within the road and footway areas is to be at the applicant’s expense.
During Construction
37. Site sign - Soil & Erosion Control Measures - Prior to the commencement of works (including demolition and excavation), a durable site sign, issued by Council in conjunction with this consent, must be erected in a prominent location on site. The site sign warns of the penalties which apply to pollution, storing materials on road or footpath and breaches of the conditions relating to erosion and sediment controls. The sign must remain in a prominent location on site up until the completion of all site and building works.
38. Hours of construction for demolition and building work - Any work activity or activity associated with the development consent that requires the use of any tools (including hand tools) or any power operated plant and machinery that creates noise on or adjacent to the site shall not be performed, or permitted to be performed, except between the hours of 7.00 am to 5.00 pm, Monday to Saturday inclusive. No work or ancillary activity is permitted on Sundays, or Public Holidays.
Note: A penalty infringement notice may be issued for any offence.
39. Swimming Pools - Filling with water - The pool/spa shall not filled until the safety fences have been completed in accordance with the approved plans and specifications and inspected by the PCA.
40. Ground levels and retaining walls - The ground levels of the site shall not be excavated, raised or filled, or retaining walls constructed on the allotment boundary, except where indicated on approved plans or approved by Council.
41. Cost of work to be borne by the applicant - The applicant shall bear the cost of all works associated with the construction of the development that occurs on Council property. Care must be taken to protect Council's roads, including the made footway, kerbs, etc., and, where plant and vehicles enter the site, the footway shall be protected against damage by deep-sectioned timber members laid crosswise, held together by hoop iron straps and chamfered at their ends. This construction shall be maintained in a state of good repair and condition throughout the course of construction.
42. Obstruction of Road or Footpath - The use of the road or footpath for the storage of any building materials, waste materials, temporary toilets, waste or skip bins, or any other matter is not permitted unless separately approved by Council under Section 138 of the Roads Act 1993 and/or under Section 68 of the Local Government Act 1993. Penalty infringement Notices may be issued for any offences and severe penalties apply.
43. Waste Management Facility - All materials removed from the site as a result of demolition, site clearing, site preparation and, or excavation shall be disposed of at a suitable Waste Management Facility. No vegetation, article, building material, waste or the like shall be ignited or burnt.
Copies of all receipts for the disposal, or processing of all such materials shall be submitted to the PCA and Council, where Council is not the Principal Certifying Authority.
44. Tree Removal on Private Land - The trees identified as ‘to be removed/pruned’ on the approved plans or by conditions of this consent shall be removed in accordance with AS4373-2007 and the Amenity Tree Industry Code of Practice (SafeWork NSW, August 1998).
45. Excavation works near tree to be retained - Excavation around the tree/s to be retained on site or the adjoining properties shall be supervised by the Project Arborist to ensure that the root system will not be adversely affected.
Where the Tree Protection Zone of trees on site or adjoining sites become compromised by any excavation works, the Project Arborist shall be consulted to establish the position of any major roots and determine the necessary measures to protect these roots. The recommendations of the Arborist shall be submitted to Council prior to any further demolition or construction works taking place.
Prior to the issue of the Occupation Certificate
46. Restriction to User and Positive Covenant for On-Site Detention Facility - A Restriction on Use of the Land and Positive Covenant shall be created and registered on the title of the property, which places the responsibility for the maintenance of the on-site stormwater management system on the owners of the land. The terms of the instrument are to be in accordance with Council’s standard terms and restrictions which are as follows;
Restrictions on Use of Land
The registered proprietor shall not make or permit or suffer the making of any alterations to any on-site stormwater management system which is, or shall be, constructed on the lot(s) burdened without the prior consent in writing of Georges River Council. The expression “on-site stormwater management system” shall include all ancillary gutters, pipes, drains, walls, kerbs, pits, grates, tanks, chambers, basins and surfaces designed to manage stormwater quantity or quality including the temporary detention or permanent retention of stormwater storages. Any on-site stormwater management system constructed on the lot(s) burdened is hereafter referred to as “the system”.
Name of Authority having the power to release, vary or modify the Restriction referred to is Georges River Council.
Positive Covenants
1. The registered proprietor of the lot(s) hereby burdened will in respect of the system:
a) keep the system clean and free from silt, rubbish and debris
b) maintain and repair at the sole expense of the registered proprietors the whole of the system so that if functions in a safe and efficient manner
c) permit the Council or its authorised agents from time to time and upon giving reasonable notice (but at any time and without notice in the case of an emergency) to enter and inspect the land for the compliance with the requirements of this covenant
d) comply with the terms of any written notice issued by the Council in respect of the requirements of this covenant within the time stated in the notice.
2. Pursuant to Section 88F(3) of the Conveyancing Act 1919 the Council shall have the following additional powers:
a) in the event that the registered proprietor fails to comply with the terms of any written notice issued by the Council as set out above the Council or its authorised agents may enter the land with all necessary materials and equipment and carry out any work which the Council in its discretion considers reasonable to comply with the said notice referred to in part 1(d) above
b) the Council may recover from the registered proprietor in a Court of competent jurisdiction:
ii. any expense reasonably incurred by it in exercising its powers under subparagraph (i) hereof. Such expense shall include reasonable wages for the Council’s employees engaged in effecting the work referred to in (i) above, supervising and administering the said work together with costs, reasonably estimated by the Council, for the use of materials, machinery, tools and equipment in conjunction with the said work.
iii. legal costs on an indemnity basis for issue of the said notices and recovery of the said costs and expenses together with the costs and expenses of registration of a covenant charge pursuant to section 88F of the Act or providing any certificate required pursuant to section 88G of the Act or obtaining any injunction pursuant to section 88H of the Act. Name of Authority having the power to release vary or modify the Positive Covenant referred to is Georges River Council.
47. Maintenance Schedule - On-site Stormwater Management - A Maintenance Schedule for the proposed on-site stormwater management measures is to be prepared and submitted to Council. The Maintenance Schedule shall outline the required maintenance works, how and when these will be done and who will be carrying out these maintenance works.
48. Section 73 Compliance Certificate - A Section 73 Compliance Certificate under the Sydney Water Act 1994 <http://legislation.nsw.gov.au/> must be submitted to the PCA prior to the issue of the Occupation/Subdivision Certificate.
49. Requirements prior to the issue of the Occupation Certificate - Driveways Works - The following shall be completed and or submitted to the PCA prior to the issue of the Occupation Certificate:
(a) Construction if new vehicle crossings as required by this consent.
(b) Replacement of all redundant vehicle crossing laybacks with kerb and guttering, and replacement of redundant concrete with turf.
50. Requirements prior to the issue of the Occupation Certificate - Stormwater and Onsite Detention Works- The following shall be completed and or submitted to the PCA prior to the issue of the Occupation Certificate:
(a) All the stormwater/drainage works shall be completed in accordance with the approved Construction Certificate plans prior to the issue of the Occupation Certificate.
(b) Work as Executed Plans prepared by a Chartered Professional Engineer or a Registered Surveyor when all the site engineering works are complete shall be submitted to the PCA prior to the issue of the Occupation Certificate.
51. Stormwater drainage works - Works As Executed - Prior to the issue of the Occupation Certificate, storm water drainage works are to be certified by a professional engineer specialising in hydraulic engineering, with Works-As-Executed drawings supplied to Council detailing:
(a) Compliance with conditions of development consent relating to stormwater;
(b) The structural adequacy of the On-Site Detention system (OSD);
(c) That the works have been constructed in accordance with the approved design and will provide the detention storage volume and attenuation in accordance with the submitted calculations;
(d) Pipe invert levels and surface levels to Australian Height Datum;
(e) Contours indicating the direction in which water will flow over land should the capacity of the pit be exceeded in a storm event exceeding design limits.
Council must advise in writing that they are satisfied with the Works-As-Executed prior to the issue of an Occupation Certificate.
52. BASIX Compliance Certificate - A Compliance Certificate must be provided to the PCA regarding the implementation of all energy efficiency measures as detailed in the approved BASIX Certificate before any Occupation Certificate is issued.
53. Completion of Landscape Works - All landscape works and the planting of twelve (12) trees must be completed before the issue of the Final Occupation Certificate and to the satisfaction of Councils Tree Management Officers. A certificate of compliance for the planting of all twelve (12) trees and shrubs proposed for the site. An AQF 5 Horticulturist shall be engaged and in writing certify that all trees have been planted as per landscape plan and specifications and forwarded to the Principal Certifying Authority (PCA).
Tree Protection Measures
(a) A final certificate of compliance letter, once all building and landscape works have been completed, from the engaged AQF 5 Consulting Arborist, that tree protection measures have been installed and maintained for the entirety of the project and report on the condition of the trees that as part of this Consent, were to be protected and retained.
(b) The excavations within the TPZ of 7.3 metres of the neighbours Liquidambar styraciflua must be completed by non-destructive methods of excavation such as “Air spade” or “Hydro Vac” with findings and photographs tabled by the engaged AQF 5 Arborist and forwarded to the nominated PCA, to verify and sign off for compliance prior to Occupation Certificate, that the impacts by this proposal will not jeopardise the viability or ongoing retention of the neighbours tree.
Tree Replacement within subject site
(c) A minimum of 12 x 45 litre size trees, which will attain a minimum mature height of nine (9) metres, shall be planted within the property. The trees are to conform to AS2303 - 2018, Tree stock for landscape use.
(d) Tree species selected shall be from Georges River Councils Tree Management Policy, April 2019, Appendix 1 - Tree Planting.
(e) If the replacement trees are found to be faulty, damaged, dying or dead within twelve (12) months of planting then they must be replaced with the same species. If the trees are found dead before they reach a height where they are protected by Councils Tree Management Controls, they must be replaced with the same species and pot/bag size.
(f) A copy of the Hurstville City Council’s Tree Removal and Pruning Guidelines and Kogarah City Council, Street Tree Management Strategy, Masterplan, and Tree Management Policy 2019, can be downloaded from Council’s website www.georgesriver.nsw.gov.au..
54. Vehicular crossing - Minor development - The vehicular crossing and/or footpath works shall be constructed by a private contractor at the expense of the applicant, in accordance with the ‘Application for Driveway Crossing and Associated Works on Council Road Reserve’ approval issued by Council’s Assets and Infrastructure Division.
Any existing vehicular crossing and/or laybacks which are redundant must be removed. The kerb and gutter, any other footpath and turf areas shall be restored at the expense of the applicant and in accordance with Council’s Specification for Vehicular Crossings and Associated Works.
NOTE: No stencilled or coloured concrete may be used outside the boundary of the property.
The work must be completed before the issue of an Occupation Certificate.
55. Notice to Council - Allocation of street addresses - Prior to the issue of any Occupation Certificate, ‘as-built’ drawings detailing the installed and allocated street/unit address and numbering must be submitted to the satisfaction of Council.
Operational Conditions (Ongoing)
56. Noise Control - The use of the premises must not give rise to the transmission of offensive noise to any place of different occupancy. Offensive noise is defined in the Protection of the Environment Operations Act 1997 (as amended).
57. Swimming Pools - Resuscitation Notice - An expired air resuscitation warning notice complying with the Swimming Pools Act 1992 must be affixed in a prominent position adjacent to the pool.
58. Private Swimming Pools & Spas - Pump Noise - The swimming pool/spa pump and associated equipment must be located so that the noise emitted does not exceed 5dB(A) above the background level. If this cannot be achieved, a ventilated and sound-proofed enclosure must enclose the pump to achieve the required noise levels.
Swimming pool is to be installed with a timer that limits the recirculation and filtration systems operation such that it does not emit noise that can be heard within a habitable room in any other residential premises (regardless of whether any door or window to that room is open):
(a) before 8 am or after 8 pm on any Sunday or public holiday, or
(b) before 7 am or after 8 pm on any other day.
59. Maintenance of Landscaping - All twelve (12) trees and plants forming part of the landscaping must be maintained. Maintenance includes watering, weeding, removal of rubbish from tree bases, fertilising, pest and disease control, replacement of dead or dying plants and other operations required to maintain healthy trees, plants and turfed areas.
60. Outdoor Lighting - To avoid annoyance to the occupants of adjoining premises or glare to motorist on nearby roads, outdoor lighting must comply with AS 4282-1997: Control of the obtrusive effects of outdoor lighting.
61. Amenity of the neighbourhood - The implementation of this development shall not adversely affect the amenity of the neighbourhood or interfere unreasonably with the comfort or repose of a person who is outside the premises by reason of the emission or discharge of noise, fumes, vapour, odour, steam, soot, dust, waste water, waste products, grit, oil or other harmful products.
Operational Requirements Under the Environmental Planning & Assessment Act 1979
62. Requirement for a Construction Certificate - The erection of a building must not commence until a Construction Certificate has been issued.
63. Appointment of a PCA - The erection of a building must not commence until the applicant has:
(a) appointed a PCA for the building work; and
(b) if relevant, advised the PCA that the work will be undertaken as an Owner -Builder.
If the work is not going to be undertaken by an Owner - Builder, the applicant must:
(a) appoint a Principal Contractor to undertake the building work. If residential building work (within the meaning of the Home Building Act 1989) is to be undertaken, the Principal Contractor must be a holder of a contractor licence; and
(b) notify the PCA of the details of any such appointment; and
(c) notify the Principal Contractor of any critical stage inspections or other inspections that are required to be carried out in respect of the building work.
An Information Pack is attached for your convenience should you wish to appoint Georges River Council as the PCA for your development.
64. Notification Requirements of PCA - No later than two days before the building work commences, the PCA must notify:
(a) the consent authority and the Council (if not the consent authority) of his or her appointment; and
(b) the applicant of the critical stage inspections and other inspections that are to be carried out with respect to the building work.
65. Notice of Commencement - The applicant must give at least two days notice to the Council and the PCA of their intention to commence the erection of a building. A Notice of Commencement Form is attached for your convenience.
66. Critical Stage Inspections - The last critical stage inspection must be undertaken by the PCA. The critical stage inspections required to be carried out vary according to Building Class under the Building Code of Australia and are listed in Clause 162A of the Environmental Planning and Assessment Regulation 2000.
67. Notice to be given prior to critical stage inspections - The principal contractor for a building site, or the owner-builder, must notify the PCA at least 48 hours before each required inspection needs to be carried out.
Where Georges River Council has been appointed as the PCA, 48 hours notice in writing, or alternatively 24 hours notice by facsimile or telephone, must be given when specified work requiring inspection has been completed.
68. Occupation Certificate - A person must not commence occupation or use of the whole or any part of a new building unless an Occupation Certificate has been issued in relation to the building or part.
Only the PCA appointed for the building work can issue the Occupation Certificate.
An Occupation Certificate Application Form is attached for your convenience.
Prescribed Conditions
69. Clause 97A - BASIX Commitments - This Clause requires the fulfilment of all BASIX Commitments as detailed in the BASIX Certificate to which the development relates.
70. Clause 98 - Building Code of Australia & Home Building Act 1989 - Requires all building work to be carried out in accordance with the Building Code of Australia. In the case of residential building work to which the Home Building Act 1989 relates, there is a requirement for a contract of insurance to be in force before any work commences.
71. Clause 98A - Erection of Signs - Requires the erection of signs on site and outlines the details which are to be included on the sign. The sign must be displayed in a prominent position on site and include the name and contact details of the PCA and the Principal Contractor.
72. Clause 98B - Home Building Act 1989 - If the development involves residential building work under the Home Building Act 1989, no work is permitted to commence unless certain details are provided in writing to Council. The name and licence/permit number of the Principal Contractor or Owner Builder and the name of the Insurer by which work is insured under Part 6 of the Home Building Act 1989.
73. Clause 98E - Protection & support of adjoining premises - If the development involves excavation that extends below the level of the base of the footings of a building on adjoining land, this prescribed condition requires the person who benefits from the development consent to protect and support the adjoining premises and where necessary underpin the adjoining premises to prevent any damage.
74. Clause 98E - Site Excavation - Excavation of the site is to extend only to that area required for building works depicted upon the approved plans. All excess excavated material shall be removed from the site.
All excavations and backfilling associated with the erection or demolition of a building must be executed safely and in accordance with appropriate professional standards.
All excavations associated with the erection or demolition of a building must be properly guarded and protected to prevent them from being dangerous to life or property.
If the soil conditions require it, retaining walls associated with the erection or demolition of a building or other approved methods of preventing movement of the soil shall be provided and adequate provision shall be made for drainage.
Advice
75. Review of Determination - Section 8.2 of the Environmental Planning and Assessment Act confers on an applicant who is dissatisfied with the determination of the application the right to lodge an application with Council for a review of such determination. Any such review must however be completed within 6 months from its determination. Should a review be contemplated sufficient time should be allowed for Council to undertake public notification and other processes involved in the review of the determination.
Note: Review provisions do not apply to Complying Development, Designated Development, State Significant Development, Integrated Development or any application determined by the Sydney South Planning Panel or the Land & Environment Court.
76. Appeal Rights - Part 8 (Reviews and appeals) of the Environmental Planning and Assessment Act 1979 confers on an applicant who is dissatisfied with the determination of the application a right of appeal to the Land and Environment Court of New South Wales.
77. Lapsing of Consent - This consent will lapse unless the development is physically commenced within 5 years from the Date of Operation of this consent, in accordance with Section 4.53 of the Environmental Planning and Assessment Act 1979 as amended.
78. Torrens Title Subdivision of a Dual Occupancy Development - A separate development application is required to be lodged with Council for the Torrens Title Subdivision of a Dual Occupancy. Development consent for Torrens Title Subdivision cannot be granted until after the final Occupation Certificate has been issued for the Dual Occupancy Development.
79. Long Service Levy - The Long Service Corporation administers a scheme which provides a portable long service benefit for eligible workers in the building and construction industry in NSW. All benefits and requirements are determined by the Building and Construction Industry Long Service Payments Act 1986. More information about the scheme and the levy amount you are required to pay to satisfy a condition of your consent can be found at http://www.longservice.nsw.gov.au.
The required Long Service Levy payment can be direct to the Long Service Corporation via their web site https://online.longservice.nsw.gov.au/bci/levy. Payments can only be processed on-line for the full levy owing and where the value of work is between $25,000 and $6,000,000. Payments will be accepted for amounts up to $21,000, using either MasterCard or Visa.
80. Security deposit administration & compliance fee - Under Section 97 (5) of the Local Government Act 1993, a security deposit (or part) if repaid to the person who provided it is to be repaid with any interest accrued on the deposit (or part) as a consequence of its investment.
Council must cover administration and other costs incurred in the investment of these monies. The current charge is $50.00 plus 2% of the bond amount per annum.
The interest rate applied to bonds is set at Council's business banking facility rate as at 1 July each year. Council will accept a bank guarantee in lieu of a deposit.
All interest earned on security deposits will be used to offset the Security Deposit Administration and Compliance fee. Where interest earned on a deposit is not sufficient to meet the fee, it will be accepted in full satisfaction of the fee.
81. Register your Swimming Pool - All swimming pools in NSW are required to be registered. Fines apply for pools that are not registered. To register please visit: www.swimmingpoolregister.nsw.gov.au.
82. Stormwater & Ancillary Works - Applications under Section 138 Roads Act and/or Section 68 Local Government Act 1993 - To apply for approval under Section 138 of the Roads Act 1993 and/or Section 68 Local Government Act 1993:
(a) Complete the Stormwater Drainage Application Form which can be downloaded from Georges River Council’s website at www.georgesriver.nsw.gov.au.
(b) In the Application Form, quote the Development Consent No. (eg. DA2020/0***) and reference this condition number (e.g. Condition 23)
(c) Lodge the application form, together with the associated fees at Council’s Customer Service Centre, during business hours. Refer to Council’s adopted Fees and Charges for the administrative and inspection charges associated with stormwater applications.
The developer must meet all costs of the extension, relocation or reconstruction of any part of Council’s drainage system (including design drawings and easements) required to carry out the approved development.
The preparation of all engineering drawings (site layout plans, cross sections, longitudinal sections, elevation views together with a hydraulic grade analysis) and specifications for the new stormwater drainage system to be arranged by the applicant. The design plans must be lodged and approved by Council prior to the issue of a Construction Certificate.
NOTE: A minimum of four weeks should be allowed for assessment.
83. Council as PCA - Deemed to Satisfy Provisions of BCA - Should the Council be appointed as the PCA in determining the Construction Certificate, the building must comply with all the applicable deemed to satisfy provision of the BCA. However, if an alternative fire solution is proposed it must comply with the performance requirements of the BCA, in which case, the alternative solution, prepared by an appropriately qualified fire consultant, accredited and having specialist qualifications in fire engineering, must justifying the non-compliances with a detailed report, suitable evidence and expert judgement. Council will also require if deemed necessary, for the alternative solution to undergo an independent peer review by either the CSIRO or other accredited organisation. In these circumstances, the applicant must pay all costs for the independent review.
84. Site Safety Fencing - Site fencing must be erected in accordance with SafeWork Guidelines, to exclude public access to the site throughout the demolition and/or construction work, except in the case of alterations to an occupied dwelling. The fencing must be erected before the commencement of any work and maintained throughout any demolition and construction work.
A demolition licence and/or a high risk work license may be required from SafeWork NSW (see www.SafeWork.nsw.gov.au).
|
Attachment ⇩1 |
Site Plan - 24 Salisbury Street Penshurst |
|
Attachment ⇩2 |
Elevation Plans - 24 Salisbury Street Penshurst |
|
Attachment ⇩3 |
Schedule of Colours and Finishes - 24 Salisbury Street Penshurst |
|
Georges River Council - Georges River Local Planning Panel (LPP) - Thursday, 10 December 2020 LPP067-20 24 Salisbury Street Penshurst [Appendix 1] Site Plan - 24 Salisbury Street Penshurst |
Page 229 |
|
Georges River Council - Georges River Local Planning Panel (LPP) - Thursday, 10 December 2020 LPP067-20 24 Salisbury Street Penshurst [Appendix 2] Elevation Plans - 24 Salisbury Street Penshurst |
Page 230 |



